Zoneomics Logo
search icon

Wauwatosa City Zoning Code

CHAPTER 24

06 SPECIAL PURPOSE DISTRICTS

24.06.010 General

  1. Special Purpose Districts. Like overlay zoning districts, special purpose zoning districts are tools for dealing with special situations or accomplishing special planning and zoning goals. Unlike overlay districts, special purpose districts are base zoning classifications; they do not "over-lay" other base zoning districts.
  2. The Districts. The city's special purpose zoning districts are listed below. When this zoning ordinance refers to "special purpose" zoning districts or "SP" districts, it is referring to these districts.

    Zoning District

    Map Symbol

    Formerly Known As

    Conservation

    SP-CON

    Conservancy

    Parks and Open Space

    SP-POS

    Parks and Open Space

    Cemetery

    Public Facilities

    SP-PUB

    Municipal Center and Public Works

    Institutions

    SP-INS

    Institutions

    Medical Center

    SP-MED

    Medical Center and Institutions

    Research Park

    SP-RP

    Research Park Planned Development

    Parking Support

    SP-PKG

    Off-Street Parking

24.06.020 SP-CON, Conservation District

  1. Purpose. The SP-CON district is primarily intended to accommodate natural resource conservation, open space and passive, public recreation uses.
  2. Uses. Principal uses are allowed in SP-CON districts in accordance with the use table of Section 24.07.030. Any property owned by Milwaukee County in the SP-CON district is considered to be zoned as "Parks" for purposes of Wisconsin Statutes Section 59.17(2)(b)(3).
  3. Lot and Building Standards. The lot and building standards of the following table apply to all principal and accessory uses allowed in the SP-CON district, except as otherwise expressly stated in this zoning ordinance. General exceptions to these standards and rules for measuring compliance can be found in Section 24.18.030. In approving a conditional use, the common council may impose greater restrictions and additional limitations, such as lot area, lot width and lot coverage.

    Lot and Building Standards

    SP-CON

    Minimum Setbacks (feet)

      Front

    100

      Side, Street

    100

      Side, Interior

    100

      Rear

    100

    Maximum Height (feet)

      Principal Buildings

    35

      Accessory Buildings

    20

HISTORY
Adopted by Ord. O-16-16 pt. I on 5/3/2016

24.06.030 SP-POS, Parks And Open Space District

  1. Purpose. The SP-POS district is primarily intended to accommodate public parks, open spaces and recreation uses and public entertainment and spectator sport venues.
  2. Uses. Principal uses are allowed in SP-POS districts in accordance with the use table of Section 24.07.030.
  3. Lot and Building Standards. The lot and building standards of the following table apply to all principal and accessory uses allowed in the SP-POS district, except as otherwise expressly stated in this zoning ordinance. General exceptions to these standards and rules for measuring compliance can be found in Section 24.18.030. In approving a conditional use, the common council may impose greater restrictions and additional limitations, such as lot area, lot width and lot coverage.

    Lot and Building Standards

    SP-POS

    Minimum Setbacks (feet)

      Front

    100

      Side, Street

    100

      Side, Interior

    100

      Rear

    100

    Maximum Height (feet)

      Principal Buildings

    No max.

      Accessory Buildings

    20

24.06.040 SP-PUB, Public Facilities District

  1. Purpose. The SP-PUB district is primarily intended to accommodate municipal facilities and other public works and services uses.
  2. Uses. Principal uses are allowed in SP-PUB districts in accordance with the use table of Section 24.07.030.
  3. Lot and Building Standards. The lot and building standards of the following table apply to all principal and accessory uses allowed in the SP-PUB district, except as otherwise expressly stated in this zoning ordinance. General exceptions to these standards and rules for measuring compliance can be found in Section 24.18.030.

    Lot and Building Standards
    SP-PUB
    Minimum Lot Area (square feet)
    10,000

    Lot and Building Standards

    [SP-PUB]

    Minimum Lot Width (feet)

    100

    Minimum Setbacks (feet)

      Front

    25

      Side, Street

    25

      Side, Interior

    25

      Rear

    25

    Maximum Height (feet)

      Principal Buildings

    50

      Accessory Buildings

    35

    Maximum Building Coverage (% of lot area)

    80

(Ord. O-14-20, pt. III, 8-5-2014)

24.06.050 SP-INS, Institutions District

  1. Uses. Principal uses are allowed in SP-INS districts in accordance with the use table of Section 24.07.030.
  2. Lot and Building Standards. The lot and building standards of the following table apply to all principal and accessory uses allowed in the SP-INS district, except as otherwise expressly stated in this zoning ordinance. General exceptions to these standards and rules for measuring compliance can be found in Section 24.18.030.

    Lot and Building Standards

    SP-INS

    Minimum Lot Area (square feet)

    9,000

    Minimum Lot Width (feet)

    80

    Minimum Setbacks (feet)

    Front

    25

    Side, Street

    15

    Side, Interior

    10[1]

    Rear

    24[1]

    Maximum Height (feet)

    Principal Buildings

    No Max.

    Accessory Buildings

    20

    Maximum Building Coverage (% of lot area)

    Interior Lot

    45

    Corner Lot

    50

    [1] Plus one foot for each foot of building height above 35 feet.
HISTORY
Repealed & Replaced by Ord. O-25-25 on 11/18/2025

24.06.060 SP-MED, Medical Center District

  1. Uses. Principal uses are allowed in SP-MED districts in accordance with the use table of Section 24.07.030.
  2. Lot and Building Standards. The lot and building standards of the following table apply to all principal and accessory uses allowed in the SP-MED district, except as otherwise expressly stated in this zoning ordinance. General exceptions to these standards and rules for measuring compliance can be found in Section 24.18.030.

    Lot and Building Standards

    SP-MED

    Minimum Lot Area (square feet)

    10,000

    Minimum Lot Width (feet)

    100

    Minimum Setbacks (feet)

      Front

    25

      Side, Street

    25

      Side, Interior

    25[1][2]

      Rear

    25[1][2]

    Maximum Height (feet)

      Principal Buildings

    No Max.

      Accessory Buildings

    50

    Maximum Building Coverage (% of lot area)

      Interior Lot

    35[3]

      Corner Lot

    40[3]

    [1] Plus one foot for each foot of building height above 35 feet.
    [2] As to that portion of the current SP-MED district located south of Watertown Plank Road, east of Interstate Highway 45, north of Wisconsin Avenue and west of the eastern boundary of the current SP-MED district (the "MRMC Campus"), the interior side setback and the rear setback shall be zero; provided, however, that where the MRMC Campus abuts a residential district, the interior side setback and rear setback shall be 25 feet plus one foot for each foot of building height above 35 feet.
    [3] As to the MRMC Campus, the Maximum Building Coverage (% of lot area) for interior and corner lots shall be 65.
  3. Educational Facility Housing.
    1. Educational facility housing within the SP-MED district shall be restricted to east of 92nd Street and south of Watertown Plank Road.
    2. Educational facility housing shall have a maximum front setback of 25 feet and a minimum building height of four stories or 50 feet.

HISTORY
Adopted by Ord. O-18-11 pt. I on 5/1/2018
Amended by Ord. O-25-25 on 11/18/2025

24.06.070 SP-RP, Research Park District

  1. Purpose. The SP-RP district is intended to establish and regulate uses in conjunction with the authority of the Milwaukee Regional Innovation Center, Inc., formerly known as the Milwaukee County Research Park Corporation, consisting of research and development facilities, certain specialized manufacturing operations of a non-nuisance type, offices and professional support activities and services and prototype business incubators; all to be located in an aesthetic environment conducive to innovative and technological advancement and new job formation. Development within the research park must be in general conformance with the approved master plan for the site and must respect protective covenants established to promote a quality environment.
  2. Permitted Uses. The following uses are permitted as of right in the SP-RP district:
    1. Automatic temperature controls
    2. Biological products
    3. Business and laboratory incubators
    4. Business and management consulting services
    5. Computer programming services
    6. Dental laboratory services
    7. Commercial testing laboratories
    8. Drugs, chemical and allied products
    9. Data processing
    10. Educational and scientific research services
    11. Educational services
    12. Electrical machinery, equipment and supplies
    13. Electrical transmission and distribution equipment
    14. Electric and steam and chilled water generation plants and related facilities
    15. Electrometallurgical products
    16. Electronic components and accessories
    17. Electronic control equipment
    18. Engineering and architectural services
    19. Engineering, laboratory and scientific and research instruments and associated equipment
    20. Exhibition halls
    21. Facilities management services
    22. Fabricated metal products
    23. Finance, insurance and real estate services
    24. Food and kindred products
    25. Forestry activities and related services
    26. Horticultural services
    27. Hotels and motels
    28. Industrial inorganic and organic chemicals
    29. Instruments for measuring, controlling and indicating physical characteristics
    30. Mechanical measuring and controlling instruments (except automatic temperature controls)
    31. Medical and health services
    32. Medical laboratory services
    33. Medical research, technology and development
    34. Medical scientific research facilities
    35. Medicinal chemicals and botanical products
    36. Miscellaneous plastic products
    37. Mixed-Use Building, Vertical
    38. Multi-Unit Buildings, 5-12 units
    39. Multi-Unit Buildings, 13+ units
    40. Motion picture production
    41. Office buildings
    42. Office computing and accounting machines
    43. Optical instruments and lenses
    44. Orthopedic, prosthetic and surgical appliances
    45. Pharmaceutical preparations
    46. Photographic equipment supplies
    47. Plastics materials and synthetic resins, synthetic rubber, synthetic and other manmade fibers
    48. Printing and publishing
    49. Professional, scientific and controlling instruments
    50. Research, development and testing services
    51. Resources production and extraction
    52. Stenographic services and other duplicating and mailing services
    53. Surgical, medical and dental instruments
    54. Technical training facilities
    55. X-ray apparatus and tubes: medical, industrial, research and control
  3. Conditional Uses. The following uses may be allowed in the SP-RP district if reviewed and approved in accordance with the conditional use permit procedures of Section 24.16.040. Such uses must be accessory to allowed principal uses in each building and may not exceed 30% of the building's gross floor area.
    1. Banking services and related functions
    2. Barber services
    3. Beauty services
    4. Day care centers
    5. Eating places
    6. Groceries
    7. Heliport landing/takeoff pads
    8. Laundry and dry-cleaning pickup stations only
    9. Office supplies and equipment
    10. Off-street parking
    11. Recreation or fitness centers
    12. Telephone relay towers (microwave)
    13. Television transmitting stations and relay towers
    14. Water storage
  4. Additional Conditional Uses. In addition to those conditional uses authorized under subsection C above, the following uses may be allowed in the SP-RP District if reviewed and approved in accordance with the conditional use permit procedures of Section 24.16.040, except they may be free standing conditional uses and not accessory to any allowed principal uses:
    1. Buildings in which any of the commercial uses listed in B and C, above, occupy the ground floor.  
    2. Eating places with indoor seating capacity in which sales of prepared foods, meals and non-alcoholic beverages constitute at least 50% of the establishment's gross income and which do not include drive-through or drive-in facilities.
  5. Minimum Ground Floor Area. The minimum ground floor area is 8,000 square feet, unless a smaller area is approved by the common council on the final plan.
  6. Maximum Lot Coverage. Buildings may not cover more than 50% of the gross site area.
  7. Lot Area. Lots must have a minimum area of one acre.
  8. Lot Width. Lots must have a minimum width of 100 feet.
  9. Setbacks. Minimum building setbacks are as follows:
    1. From property line on Mayfair Road, Watertown Plank Road and Wisconsin Avenue: 50 feet
    2. From property line at highway 45: 100 feet
    3. From shared property line within the park: 25 feet
    4. From curbline of internal streets other than main street: 40 feet
    5. From curbline of main street: 25 feet
    6. From creek and water feature: 60 feet
  10. Height. Within 300 feet of the curbline of Mayfair Road and Wisconsin Avenue, building heights may not exceed 100 feet. Other areas of the park have no set maximum height limit.
  11. Design Review. Design review is the responsibility of a special board authorized for this purpose. Design review must occur before final plan review by the common council.
  12. Final Plan Review. Final plan review must be conducted by the common council. Changes and amendments to approved developments prior to or during construction must be reviewed and approved as follows:
    1. Changes in the approved final development plan must be reviewed by the special board authorized as a project review board and returned to the common council if 40% or more of the members present consider the change to be a variance to the approved plan and/or that it does not meet the intent of conditions and restrictions placed on the approved plan.
    2. Minor changes in the location, siting and height of buildings and structures may be authorized by the development director.

(Ord. O-14-20, pt. IV, 8-5-2014)

HISTORY
Amended by Ord. O-16-32 §§ II—V on 9/20/2016
Amended by Ord. O-25-25 Part XI on 11/18/2025

24.06.080 SP-PKG, Parking Support District

  1. Purpose. The SP-PKG district is primarily intended to accommodate off-street parking areas bordering the C (commercial) district while protecting nearby residential areas from adverse impacts associated with spillover parking into residential neighborhoods.
  2. Uses. At-grade and below-grade, accessory and non-accessory parking of private vehicles and commercial vehicles with a maximum rated capacity of 3/4 ton are the only uses permitted in the SP-PKG district.
  3. Regulations.
    1. No part of any parking lot, except fencing and landscaping, may be located within 7 feet of any lot line adjoining an R-zoned lot, nor may any motor vehicle be parked or located less than 7 feet from any street line nor less than 10 feet from any residential dwelling. See Section 8.44 for additional requirements.
    2. Parking lots may not be used for vehicle repair work or servicing of any kind, or for the sale, display, demonstration, or advertising of merchandise or service of any kind or for the storage of motor vehicles, mechanical equipment or materials. Signs containing a commercial message are prohibited.
    3. Buildings above grade are not permitted in the SP-PKG district.
    4. Landscaping, screening, lighting and fencing must be designated on the approved site plan with respect to size, type and specifications and must be replaced with identical stock or materials which are acceptable substitutes upon approval of the board of public works when damage or deterioration should occur.


HISTORY
Adopted by Ord. O-21-17 pt. II on 8/3/2021
Repealed & Replaced by Ord. O-25-25 Part XIII on 11/18/2025

24.06.085 MID, Midtown Districts

  1. Districts. The MID districts are listed below. When this zoning ordinance refers to "MID" districts it is referring to these districts. After August 28, 2019, the MID zoning classification may be applied only to property with street frontage on North Avenue between Wauwatosa Avenue and Menomonee River Parkway.

    TABLE 24-1 MID DISTRICTS

    Zoning District
    Map Symbol
    Midtown Residential
    MID-RES
    Midtown Transitional
    MID-TRN
    Midtown Mixed-Use
    MID-MIX
  2. Purpose. The MID, Midtown district regulations are intended to help implement the recommendations of the Midtown North Avenue Plan.
    1. MID-RES. The MID-RES (Midtown Residential) district regulations are established to help implement the "limited multi-family" subarea recommendations of the Midtown North Avenue Plan.
    2. MID-TRN. The MID-TRN (Midtown Transitional) district regulations are established to help implement the "transitional" subarea recommendations of the Midtown North Avenue Plan.
    3. MID-MIX. The MID-MIX (Midtown Mixed-Use) district regulations are established to help implement the "mixed-use" sub-area recommendations of the Midtown North Avenue Plan.
  3. Uses. Uses are allowed in MID districts in accordance with the use table of Sec. 24.07.030.
  4. Building Types. Uses are allowed in the MID districts in accordance with Table 24-2. The regulations governing allowed building types are presented in Sec. 24.06.085-F. through Sec. 24.06.085-L.
  5. TABLE 24-2 ALLOWED BUILDING TYPES

    Building Types

    MID Districts

    RES

    TRN

    MIX

    P = permitted      - = prohibited

    Detached house

    P

    P

    -

    Semi-detached house

    P

    P

    -

    Two-unit house

    P

    P

    -

    Three-unit house / Four-unit house

    P

    P

    P

    Cottage Courts

    P

    P

    -

    Live-Work

    -

    P

    P

    Attached house

    P

    P

    P

    Commercial house

    -

    P

    -

    Multi-unit Residential Building, 5-12 units

    P

    P

    P

    Multi-unit Residential Building, 13+ units

    -

    P

    P

    Commercial building

    -

    P

    P

    Vertical mixed-use building

    -

    P

    P

    Public or civic building

    P

    P

    P

  6. Other Regulations. Uses and development in MID districts are subject to all other applicable regulations and standards of this zoning ordinance, including the following:
    1. Accessory Uses and Structures. See Chapter 24.10.
    2. Temporary Uses. See Sec. 24.10.080.
    3. Parking and Loading. See Chapter 24.11.
    4. Landscaping and Screening. See Chapter 24.12.
    5. Nonconformities. See Chapter 24.15.
    6. Additional Regulations. Additional MID district-specific regulations are presented in Sec. 24.06.085-M through Sec. 24.06.085-U.
  7. Detached, Two-Unit, and Three-/Four-Unit House; Cottage Court Regulations. Detached houses, two-unit houses, three-/four-unit houses, and cottage courts are subject to the regulations of Table 24-3. See also Figure 24-1, which is keyed to the letter symbols in the first column of the table.

    TABLE 24-3 DETACHED, TWO-UNIT, THREE-UNIT /FOUR-UNIT HOUSES; COTTAGE COURTS

    MID-RES

    MID-TRN

    MID-MIX

    Supplemental

    1. Lot

    A

    Minimum Lot Area (square feet)

    6,000

    B

    Minimum Lot Width (feet)

    Interior Lot
    Corner Lot

    50
    60

    2. Principal Building Siting

    C

    Minimum Front Setback (feet)

    25

    D

    Minimum Interior Side Setback (one side/both sides, feet)

    3/9

    E

    Minimum Street Side Setback (% of lot width)

    20[1]

    F

    Minimum Rear Setback (% of lot depth)

    20[2]

    3. Accessory Building Siting

    Minimum Rear and Interior Side Setback (feet)

    1.5

    Minimum Alley Setback (feet)

    5

    4. Uses

    G

    Allowed Uses in All Stories

    Residential uses allowed by Sec. 24.07.030

    5. Building Coverage

    Maximum Building Coverage of Principal & Accessory Buildings Combined (% of lot area)

    Interior Lot
    Corner Lot

    37
    42

    Maximum Building Coverage of Accessory Buildings (% of lot area)

    12[3]

    6. Building Height

    Sec. 24.06.085-M

    H

    First Story Floor Elevation (min/max above sidewalk, ft.)

    0 to 4

    I

    Maximum Principal Building Height (feet)

    35

    I

    Maximum Accessory Building Height (feet)

    16[4]

    7. Building Facade

    J

    Minimum Front Facade Transparency (%)

    15

    Sec. 24.06.085-O

    J

    Minimum Street-Side Facade Transparency (%)

    5

    8. Lot Edges


    K

    Edge Type Required

    Landscape

    Sec. 24.06.085-P

    L

    Edge Element Required

    Porch or Stoop

    Sec. 24.06.085-Q

    Table 24-3 Notes
    [1] Not required to exceed 15 feet.
    [2] Minimum 15 feet; not required to exceed 25 feet.
    [3] Not to exceed 720 square feet.
    [4] Accessory building heights of up to 20 feet may be approved by the zoning administrator if the administrator determines that the additional height is necessary to accommodate a roof pitch consistent with the architectural style of the principal building and that the additional height will not be used to create habitable floor area.

    Figure 24-1. Detached, Two-Unit, and Three-Unit/Four-Unit Houses

  8. Semi-Detached and Attached House Regulations. Semi-Detached Houses and Attached houses are subject to the regulations of Table 24-4. See also Figure 24-2, which is keyed to the letter symbols in the first column of the table.

    TABLE 24-4 SEMI-DETACHED AND ATTACHED HOUSES

    MID-RES

    MID-TRN

    MID-MIX

    Supplemental

    1. Lot

    A

    Minimum Lot Area (square feet)

    Semi-Detached Houses
    Attached Houses

    3,000

    2,000

    B

    Minimum Lot Width (feet)

    Semi-Detached Houses
    Attached Houses

    30

    20

    2. Principal Building Siting

    C

    Minimum Front Setback (feet)

    25

    D

    Minimum Interior (non-street) Side Setback (feet)

    0[1]

    E

    Minimum Street Side Setback (% of lot width)

    20

    F

    Minimum Rear Setback (% of lot depth)

    20[2]

    3. Accessory Building Siting

    Minimum Rear and Interior Side Setback (feet)

    1.5

    Minimum Alley Setback (feet)

    5

    4. Uses

    G

    Allowed Uses in All Stories

    Residential uses allowed by Sec. 24.07.030

    5. Building Coverage

    Maximum Building Coverage of Principal & Accessory Buildings Combined (% of lot area)

    Interior Lot



    Corner Lot

    50

    60

     

    Maximum Building Coverage of Accessory Buildings (% of lot area)

    12[3]

    6. Building Width

    Maximum Number of Attached Units

    8

    7. Building Height

    Sec. 24.06.085-M

    H

    First Story Floor Elevation (min/max above sidewalk, ft.

    0 to 4

    I

    Maximum Principal Building Height (feet)

    35

    I

    Maximum Accessory Building Height (feet)

    16[4]

    8. Building Facade

    J

    Minimum Front Facade Transparency (%)

    15

    Sec. 24.06.085-O

    J

    Minimum Street-Side Facade Transparency (%)

    5

    9. Lot Edges

    K

    Edge Type Required

    Landscape

    Sec. 24.06.085-P

    L

    Edge Element Required

    Porch or Stoop

    Sec. 24.06.085-Q

    Table 24-4 Notes
    [1] End units subject to minimum 4.5-foot interior side setback.
    [2] Minimum 15 feet; not required to exceed 25 feet.
    [3] Not to exceed 720 square feet.
    [4] Accessory building heights of up to 20 feet may be approved by the zoning administrator if the administrator determines that the additional height is necessary to accommodate a roof pitch consistent with the architectural style of the principal building and that the additional height will not be used to create habitable floor area.


    Figure 24-2. Semi-detached and Attached Houses

  9. Commercial House and Live-Work Regulations. Commercial houses are former detached houses that have been converted for occupancy by nonresidential principal uses, such as offices or retail shops. Commercial houses and live-work units are subject to the regulations of Table 24-5. See also Figure 24-3, which is keyed to the letter symbols in the first column of the table.

    TABLE 24-5 COMMERCIAL HOUSES AND LIVE-WORK UNITS

    MID-TRN

    MID-MIX

    Supplemental

    1. Lot

    A

    Minimum Lot Area (square feet)

    6,000

    B

    Minimum Lot Width (feet)

    Interior Lot
    Corner Lot

    50
    60

    2. Principal Building Siting

    C

    Minimum Front Setback (feet)

    25

    D

    Minimum Interior Side Setback (one side/both sides, feet)

    3/9

    E

    Minimum Street Side Setback (% of lot width)

    20[1]

    F

    Minimum Rear Setback (% of lot depth)

    20[2]

    3. Accessory Building Siting

    Minimum Rear and Interior Side Setback (feet)

    1.5

    Minimum Alley Setback (feet)

    5

    4. Uses

    G

    Allowed Uses in Ground Story

    Commercial uses allowed by Sec. 24.07.030

    G

    Allowed Uses in Other Stories

    Any use allowed by Sec. 24.07.030

    5. Building Coverage

    Maximum Building Coverage of Principal & Accessory Buildings Combined (% of lot area)

    Interior Lot
    Corner Lot

    50
    60

    Maximum Building Coverage of Accessory Buildings (% of lot area)

    12[3]

    6. Building Height

    Sec. 24.06.085-M

    H

    First Story Floor Elevation (min/max above sidewalk, ft.)

    0 to 4

    I

    Maximum Principal Building Height (feet)

    35

    I

    Maximum Accessory Building Height (feet)

    16[4]

    7. Building Facades

    J

    Minimum Front Facade Transparency (%)

    15

    Sec. 24.06.085-O

    J

    Minimum Street-Side Facade Transparency (%)

    5

    8. Lot Edges

    K

    Edge Type Required

    Sec. 24.06.085-P

    L

    Edge Element Required

    Sec. 24.06.085-Q

    Table 24-5 Notes
    [1] Not required to exceed 15 feet.
    [2] Minimum 15 feet; not required to exceed 25 feet.
    [3] Not to exceed 720 square feet.

    [4] Accessory building heights of up to 20 feet may be approved by the zoning administrator if the administrator determines that the additional height is necessary to accommodate a roof pitch consistent with the architectural style of the principal building and that the additional height will not be used to create habitable floor area.


    Figure 24-3. Commericial House and Live-Work

  10. Multi-Unit Residential Building Regulations. Multi-unit residential buildings (as defined in Sec. 24.08.020.A.5) are subject to the regulations of Table 24-6. See also Figure 24-4, which is keyed to the letter symbols in the first column of the table.

    TABLE 24-6 MULTI-UNIT RESIDENTIAL BUILDINGS

    MID-RES

    MID-TRN
    MID-MIX

    Supplemental

    1. Lot

    A

    Minimum Lot Area (square feet)

    6,000

    6,000

    B

    Minimum Lot Width (feet)

    Interior Lot
    Corner Lot

    50

    60

    50

    60

    2. Principal Building Siting

    C

    Minimum Front Setback (feet)

    25

    10

    C

    Maximum Front Setback (feet)

    30

    30

    Minimum Building Coverage at/between Min. and Max. Front Setback (%)

    75

    75

    D

    Minimum Interior Side Setback (one side/both sides, feet)

    3/9

    3/9

    E

    Minimum Street Side Setback (% of lot width)

    20[1]

    20[1]

    F

    Minimum Rear Setback (% of lot depth)

    20[2]

    20[2]

    3. Accessory Building Siting

    Minimum Rear and Interior Side Setback (feet)

    1.5

    1.5

    Minimum Alley Setback (feet)

    5

    5

    4. Uses

    G

    Allowed Uses in All Stories

    Residential uses allowed by Sec. 24.07.030

    5. Building Coverage

    Maximum Building Coverage of Principal & Accessory Buildings Combined (% of lot area)

    Interior Lot
    Corner Lot

    50

    60

    50

    60

    Maximum Building Coverage of Accessory Buildings (% of lot area)

    12[3]

    12[3]

    6. Building Width

    Maximum Building Width (feet)

    85

    No Max.

    7. Building Height

    Sec. 24.06.085-M

    H

    First Story Floor Elevation (min/max above sidewalk, ft.)

    0 to 4

    0 to 4

    I

    Maximum Principal Building Height (feet)

    45

    45

    I

    Maximum Accessory Building Height (feet)

    16[4]

    16[4]

    8. Building Façade

    J

    Minimum Front Facade Transparency

    20

    20

    Sec. 24.06.085-O

    J

    Minimum Street-Side Facade Transparency

    5

    5

    9. Lot Edges

    K

    Edge Type Required

    Landscape

    Sec. 24.06.085-P

    L

    Edge Element Required

    Porch or Stoop

    Sec. 24.06.085-Q

    Table 24-6 Notes
    [1] Not required to exceed 15 feet.
    [2] Minimum 15 feet; not required to exceed 25 feet.
    [3] Not to exceed 720 square feet.
    [4] Accessory building heights of up to 20 feet may be approved by the zoning administrator if the administrator determines that the additional height is necessary to accommodate a roof pitch consistent with the architectural style of the principal building and that the additional height will not be used to create habitable floor area.



    Figure 24-4. Multi-Unit Residential Building

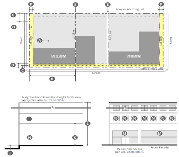
  11. Commercial Building Regulations. Commercial buildings are subject to the regulations of Table 24-7. See also Figure 24-5, which is keyed to the letter symbols in the first column of the table. Commercial buildings are buildings occupied by nonresidential uses in all stories of the building.

    TABLE 24-7 COMMERCIAL BUILDINGS

    MID-TRN

    MID-MIX

    Supplemental

    1. Lot

    A

    Minimum Lot Area (square feet)

    6,000

    6,000

    B

    Minimum Lot Width (feet)

    50

    50

    2. Principal Building Siting

    C

    Minimum Front Setback (feet)

    10

    5

    D

    Maximum Front Setback (feet)

    25

    10

    Minimum Building Coverage at/between Min. and Max. Front Setback (%)

    60

    70

    E

    Minimum Interior (non-street) Side Setback (feet)

    3[1]

    3[1]

    F

    Minimum Street Side Setback (% of lot width)

    10[2]

    10[2]

    G

    Minimum Rear Setback (% of lot depth)

    20[3]

    20[3]

    3. Accessory Building Siting

    Minimum Rear and Interior Side Setback (feet)

    3

    3

    Minimum Alley Setback (feet)

    5

    5

    4. Uses

    H

    All Stories

    Any use allowed by 24.07.030

    5. Building Coverage

    Maximum Building Coverage (% of lot area)

    75

    75

    6. Building Height

    Sec. 24.06.085-M

    I

    First Story Floor Elevation (min/max above sidewalk, ft.)

    0 to 3

    0 to 3

    J

    Maximum Principal Building Height (stories/feet)

    3/42

    3/42

    Sec. 24.06.085-N

    J

    Maximum Accessory Building Height (feet)

    20

    20

    7. Building Façade

    K

    Minimum Front Facade Transparency

    Sec. 24.06.085-O

    L

    Ground Story
    Upper Stories (above first)

    50
    15

    60
    20

    Minimum Street-Side Facade Transparency
    All Stories

    15

    15

    8. Lot Edges

    M

    Edge Type Required

    Hardscape

    Sec. 24.06.085-P

    Edge Element Required

    None

    Table 24-7 Notes
    [1] No side setback is required abutting a lot occupied by a nonresidential building with no side setback along the shared lot line.
    [2] Not required to exceed 15 feet.
    [3] Minimum 15 feet; not required to exceed 25 feet.


    Figure 24-5. Commercial Building
  12. Vertical Mixed-use Building Regulations. Vertical mixed-use buildings (as defined in Sec. 24.08.020.A.6) are subject to the regulations of Table 24-8. See also Figure 24-6, which is keyed to the letter symbols in the first column of the table.

    TABLE 24-8 VERTICAL MIXED-USE BUILDINGS

    MID-TRN

    MID-MIX

    Supplemental

    1. Lot

    A

    Minimum Lot Area (square feet)

    6,000

    6,000

    B

    Minimum Lot Width (feet)

    50

    50

    2. Principal Building Siting

    C

    Minimum Front Setback (feet)

    10

    5

    D

    Maximum Front Setback (feet)

    25

    10

    Minimum Building Coverage at/between Min. and Max. Front Setback (%)

    60

    80

    E

    Minimum Interior (non-street) Side Setback (feet)

    3[1]

    3[1]

    F

    Minimum Street Side Setback (% of lot width)

    10[2]

    10[2]

    G

    Minimum Rear Setback (% of lot depth)

    20[3]

    20[3]

    3. Accessory Building Siting

    Minimum Rear and Interior Side Setback (feet)

    3

    3

    Minimum Alley Setback (feet)

    5

    5

    4. Uses

    H

    Allowed Uses in Ground Story

    Commercial uses allowed by Sec. 24.07.030 [4]

    I

    Allowed Uses in Other Stories

    Any use allowed by Sec. 24.07.030

    5. Building Coverage

    Maximum Building Coverage (% of lot area)

    75

    75

    6. Building Height

    Sec. 24.06.085-M

    J

    First Story Floor Elevation (min/max above sidewalk, ft.)

    0 to 1.5

    0 to 1.5

    K

    Minimum Ground Story Height (floor-to-floor/feet)

    14

    14

    L

    Minimum Principal Building Height (stories)

    2

    2

    L

    Maximum Principal Building Height (feet)

    45

    45

    Sec. 24.06.085-N

    L

    Maximum Accessory Building Height (feet)

    20

    20

    7. Building Facade

    M

    Minimum Front Facade Transparency

    Sec. 24.06.085-O

    N

    Ground Story
    Upper Stories (above first)

    55
    20

    70
    25

    Minimum Street-Side Facade Transparency
    All Stories

    15

    15

    8. Lot Edges

    O

    Edge Type Required

    Hardscape

    Sec. 24.06.085-P

    Edge Element Required

    None

    Table 24-8 Notes
    [1] No side setback is required abutting a lot occupied by a nonresidential building with no side setback along the shared lot line.
    [2] Not required to exceed 15 feet.
    [3] Minimum 15 feet; not required to exceed 25 feet.

    [4] Residential dwelling units may be located in the ground-story but not within 20 feet of a North Avenue-facing building facade.

    Figure 24-6. Veritical Mixed-Use Building

  13. Public and Civic Building Regulations. Public and civic buildings, which are buildings occupied solely by allowed public or civic uses, are subject to the regulations of Table 24-9.

    TABLE 24-9 PUBLIC AND CIVIC BUILDINGS
    MID- RES MID- TRN MID- MIX Supplemental
    Lot

    Minimum Lot Area (square feet)
    6,0006,0006,000

    Minimum Lot Width (feet)
    50500
    1. Principal Building Siting

    Minimum Front Setback (feet)
    25105

    Minimum Interior (non-street) Side Setback (feet)
    3[1]
    3[1]
    3[1]


    Minimum Street Side Setback (% of lot width)
    2010[2]
    10[2]


    Minimum Rear Setback (% of lot depth)
    20[3]
    20[3]
    20[3]

    2. Accessory Building Siting

    Minimum Rear and Interior Side Setback (feet)
    333

    Minimum Alley Setback (feet)
    555
    3. Uses

    Allowed Uses in All Stories
    Any use allowed by Sec. 24.07.030
    4. Building Coverage

    Maximum Building Coverage (% of lot area)
    607575
    5. Building Height



    Sec. 24.06.085-M

    First Story Floor Elevation (min/max above sidewalk, ft.)
    0 to 40 to 40 to 4

    Maximum Principal Building Height (stories/feet)
    3/353/423/42Sec. 24.06.085-N

    Maximum Accessory Building Height (feet)
    162020
    Table 24-9 Notes

    [1] No side setback is required abutting a lot occupied by a nonresidential building with no side setback along the shared lot line.
    [2] Not required to exceed 15 feet.
    [3] Minimum 15 feet; not required to exceed 25 feet.
  14. Building Height.
    1. Maximum overall building height limits apply to the entire building.
    2. Minimum story (floor-to-floor) heights must be met along all street facing facades and for at least 75% of the story area.
    3. The following requirements apply to vertical mixed-use building types:
      1. The second story area must be covered and enclosed and equal at least 75% of the first story's floor area;
      2. The second story facade must extend the entire width of any first story building facade except for second story areas used for unenclosed or uncovered outdoor dining area, uncovered decks, uncovered balconies, unenclosed stairs and uncovered atriums; and
      3. The entire indoor area of the second story must be conditioned space (HVAC) and available for human occupancy.
  15. Neighborhood Transition Height Limit.
    1. MID-MIX and MID-TRN-zoned lots that abut R-zoned lots or that are separated from R-zoned lots solely by alleys are subject to the neighborhood transition height limits of this subsection.
    2. Principal buildings may not exceed 3 stories or 35 feet in height within 30 feet of the lot line of the abutting or alley-separated R-zoned lot.
  16. Transparency. Transparency regulations govern the minimum percentage of a street-facing building façade that must be covered by windows or glazed, transparent elements. In determining compliance with transparency requirements on a building facade, the transparency of each building story must be calculated separately.
  17. Lot Edges.
    1. Description. The term "lot edge" refers to the area of a lot located immediately beyond the back of the sidewalk between:
      1. The back of the sidewalk and a principal building; and
      2. The back of the sidewalk and an allowed parking lot.
    2. Purpose. The design of lot edges helps define the transition between public and private property and contributes to the overall character of the area, particularly for pedestrians.
    3. General Lot Edge Regulations. Different lot edge types and elements are required in accordance with the regulations that apply to the different building types allowed in MID districts. The following general regulations apply to all lot edge types:
      1. Mechanical equipment and other building service may not be located in the lot edge along the front of the lot.
      2. Lot edges may not be used for vehicles, except for driveway or alley crossing, incidental service, maintenance or emergency actions.
      3. Landscape material used to satisfy lot edge tree planting and landscape requirements must comply with the standards of Sec. 24.12.050.
    4. Landscape Edge. Landscape edges are subject to the following regulations:
      1. Landscaping, such as trees, shrubs, groundcover plants, sod, or annual or perennial vegetation, must be provided in at least 70% of the lot edge area. The area of any stoops or porches is not counted in determining the total lot edge area.
      2. The landscape edge may not be used for vehicles, except for incidental service, maintenance or emergency actions.
      3. The landscape edge may not be covered, except by features allowed to encroach into required building setbacks (see Sec. 24.18.030-F).
      4. Landscape edges with a depth of 7 feet or more must be planted with at least one deciduous tree per 50 linear feet of street frontage, except where this condition is satisfied through preservation of existing on-site or adjacent street trees.
    5. Hardscape Edge. Hardscape edges are subject to the following regulations:
      1. Hardscape areas improved for pedestrian amenity or aesthetic appeal must be provided in at least 50% of the lot edge area. The area of any stoops or porches is not counted in determining the total lot edge area.
      2. Hardscape edges greater than 10 feet in depth must be planted with at least one deciduous tree per 50 linear feet of street frontage, except where this condition is satisfied through preservation of existing on-site or adjacent street trees.
      3. Hardscape edges must provide at least one bench or similar seating area per 50 linear feet.
      4. Hardscape edges may not be covered, except by features allowed to encroach into required building setbacks (see Sec. 24.18.030-F).
    6. Parking Edge.
      1. Lot edges that are immediately adjacent to an allowed parking lot are subject to following regulations:
        1. Perimeter landscaping must be provided in accordance with Sec. 24.12.020.
        2. At least one point of pedestrian access in the form of paths, walkways, ramps, or stairs must be provided to connect the public sidewalk to the parking lot.
  18. Edge Elements. Edge elements in the form of porches and stoops are required for detached house, two-unit houses, semi-detached house, attached house, and commercial house building types. When required, such elements are subject to compliance with the regulations of this subsection.
    1. Porches. Required porches must be located along the front facade and comply with the following:
      1. A porch must be at least 4 feet in depth, not including any steps leading to the porch.
      2. A porch must have a width of at least 20% of the building facade from which it projects.
      3. A porch must have a roof, but it may not be otherwise enclosed except by screens.
      4. Porches required under these MID district provisions may extend into a required front setback if such extension is at least 2 feet from all lot lines.
      5. A porch may not encroach onto the sidewalk or into the right-of-way.
    2. Stoops. Required stoops must be located along the front facade and comply with the following:
      1. A stoop may not exceed 6 feet in depth, not including any steps leading to the stoop.
      2. A stoop may have a cover but may not be enclosed.
      3. Stoops required under these MID district provisions may extend into a required front setback if such extension is at least 2 feet from all lot lines.
      4. A stoop may not encroach onto the sidewalk or into the right-of-way.
  19. Pedestrian Access.
    1. Buildings Abutting Lot Edges. All buildings that abut a lot edge (see Sec. 24.06.085-P) are subject to the following regulations:
      1. All building types and individual ground-story commercial establishments must provide a pedestrian entrance along the lot edge that provides both ingress and egress, operable to residents or customers. This requirement expressly applies to individual dwelling units within an attached house building.
      2. Additional entrances off another street, an open space, or internal parking area are also permitted.
      3. If a building abuts a lot edge along more than one public street, the required pedestrian entrance must face North Avenue.
      4. All required entrances must provide safe and convenient pedestrian pathways from the adjacent public sidewalk. Pathways that exclusively serve individual residential units must have a minimum width of 3 feet. All other pathways must have a minimum width of 5 feet.
    2. Buildings Not Abutting Lot Edges. All buildings that do not abut a lot edge are subject to the following regulations:
      1. Buildings and individual ground-story commercial establishments must provide safe and convenient pedestrian pathway from their required pedestrian entrance to a public sidewalk. This requirement expressly applies to individual dwelling units with an attached house building.
      2. Pathways that exclusively serve individual residential units must have a minimum width of 3 feet. All other pathways must have a minimum width of 5 feet.
      3. The total combined length of the pedestrian pathway from the entrance to the sidewalk may not exceed 150% of the straight line distance from the entrance to the closest public sidewalk.
  20. Building Design.
    1. Applicability. The building design regulations of this section apply to all allowed building types except detached houses and two-unit houses, unless otherwise expressly stated.
    2. Purposes. The building design regulations of this section are intended to improve the physical and aesthetic quality of buildings, activate the pedestrian environment and maintain and protect the character of MID districts.
    3. Exterior Wall Finish Materials. The following exterior wall finish materials must be used on at least 80% of all street-facing building facades, not including building foundations, non-glass window components, and doors:
      1. Brick, including full-depth and half-depth masonry brick, but not simulated brick veneers; or
      2. Stone, including unpainted natural stone, unpainted cast stone having the appearance of natural stone, and unpainted terracotta.
    4. Vertical Delineation of Building Stories. The first one or 2 stories of every vertical mixed-use and commercial building must be delineated from the stories above through the use of cornice lines, horizontal shadow lines, fenestration and other forms of architectural detailing.
    5. Building Articulation and Massing. In order to avoid large expanses of flat (one-dimensional) exterior walls along sidewalks, building facades over 50 feet in length along a street, including abutting attached house dwelling units, must incorporate wall projections or recesses a minimum of 12 inches in depth. The combined length of such recesses and projections must constitute at least 20% of the total façade length along the public street.
    6. Rooflines. Building roof lines along street-facing facades must change at least once every 200 feet of facade length. This change must occur for a minimum length of 20 feet and be accomplished through at least one of the following:
      1. A change of roof parapet wall height and material;
      2. A change in roof cornice design;
      3. A change in the number of stories;
      4. A change in roof shape.
    7. Facade Length. Street-facing building facades may not exceed 300 feet in length along any single street.
  21. Parking.
    1. Parking Location.
      1. Access to off-street parking spaces serving attached houses must come from alleys or shared driveways located in street side or rear yard. Access to off-street parking spaces serving all other building types must come from alleys or driveways.
      2. Off-street parking may not be located between a public street and a principal building's front facade. On lots with more than one street frontage, the front of the lot is deemed to be North Avenue.
      3. Off-street parking spaces located within the ground-story of any building may not be located within 20 feet of a North Avenue-facing building facade that abuts a lot edge. This provision does not apply to the street-side facade of detached houses, two-unit houses, semi-detached houses or attached houses.
  22. PUD Overlays. After August 28, 2019, no new /PUD overlay districts may be established on property classified in a MID district. Existing /PUD overlay district regulations that apply to property classified in a MID district may be amended as long as such amendment does not expand the /PUD overlay district boundary in existence on August 28, 2019.
HISTORY
Adopted by Ord. O-19-17 pt. I on 8/6/2019
Amended by Ord. O-25-25 on 11/18/2025

24.06.090 Residential Planned Development District (Obsolete)

No applications may be accepted for rezoning to the Residential Planned Development district. Land classified in the Residential Planned Development district on the effective date specified in Section 24.01.020 may be used and developed in accordance with the Residential Planned Development district regulations in effect immediately preceding the effective date specified in Section 24.01.020 or in accordance with an approved PUD plan.

24.06.100 Business Planned Development District (Obsolete)

No applications may be accepted for rezoning to Business Planned Development district. Land classified in the Business Planned Development district on the effective date specified in Section 24.01.020 may be used and developed in accordance with the Business Planned Development district regulations in effect immediately preceding the effective date specified in Section 24.01.020 or in accordance with an approved PUD plan.

24.06.110 Generally Applicable Regulations

Uses and development in all SP districts are subject to all other applicable regulations and standards of this zoning ordinance, including the following (note that special parking rules apply to the SP-MED district under Sec. 24.11.060E):

  1. Nonconformities. See Chapter 24.15.
  2. Accessory Uses and Structures. See Chapter 24.10.
  3. Parking and Loading. See Chapter 24.11.
  4. Landscaping and Screening. See Chapter 24.12.
  5. Temporary Uses. See Section 24.10.080.
HISTORY
Adopted by Ord. O-18-11 pt. II on 5/1/2018

O-25-25

O-21-17