- DEVELOPMENT STANDARDS
This Chapter shall not apply to single-family detached or duplex residential development.
The purpose of this article is to provide standards for all development in the City of Cape Coral.
All development is required to connect to public or private utilities, as required as by the City of Cape Coral Code of Ordinances, Chapter 19 Water and Sewer Utilities.
A.
In new residential subdivisions, all utility lines (including electrical power distribution, telephone, communication, street lighting, and cable television signal service) shall be installed underground. This Section shall apply to all cable, conduits, or wires forming part of an electrical distribution system, including service lines to individual properties.
However, this Section shall not apply to wires, conductors, or associated apparatus and supporting structures whose exclusive function is in transmission of electrical energy between generating stations, substations, transmission lines of other utility systems, and main distribution feeder electric lines delivering power to local distribution systems. Appurtenances such as transformer boxes, pedestal-mounted terminal boxes, and meter cabinets may be placed above ground and in such a manner as to minimize noise effects upon the surrounding residential properties.
B.
The developer shall provide for the necessary costs and other arrangements for such underground utility installation.
C.
For all new buildings in the Commercial Corridor, South Cape, and PUD zoning districts all onsite utilities including telephone, electricity, cable television, and other wires of all kinds shall be placed underground. However, appurtenances to these systems that require aboveground installation, including utility panel boxes, are exempt from this requirement if the appurtenances are not placed in front yards. When such appurtenances are placed in utility easements abutting a platted alley, they shall be placed at least ten and one-half feet from the centerline of the platted alley. These underground requirements also apply to those improvements to non-conforming structures that exceed the 50% thresholds as described in Article 8, Nonconformities. All utility infrastructure, including electric utility poles and power lines, shall be concealed from public view wherever possible. All new electric distribution lines shall be located in utility easements abutting platted alleys and the utility poles shall be positioned so that a minimum clearance of ten and one-half feet from the centerline of any platted alley is maintained. For properties that do not have a rear platted alley, the electric distribution lines and utility poles shall be placed in the rear utility easement wherever possible.
D.
In the South Cape zoning district where overhead or underground utility lines have been placed in the six-foot PUE, a property owner shall choose one of the following options:
1.
Relocate the utility lines to the alley or other acceptable location, at the property owner's sole expense, and subject to approval by the affected utility provider(s) and the City of Cape Coral; or
2.
Place a concrete sidewalk or architectural elements on the front six-foot property setback. If overhead electric lines are in place, no awnings, canopies, balconies, colonnades, arcades, or front porches may be constructed forward of this line even if otherwise required by this code. If underground lines of any type are in place, the property owner is solely responsible for repairing any damage to lawful encroachments into the six-foot easement resulting from maintenance or improvements to utility lines.
Except as otherwise provided, all building sites shall have access on a street or a road shown on an approved and recorded final plat. One or more buildings may have no direct access to a street provided that the approving authority finds that such building site(s) have adequate indirect access to a street such as a recorded easement or right-of-way through or over another parcel. The city may prohibit direct access from a parcel or building site to a street when the approving authority finds that prohibition of direct access would promote the public health, safety, and welfare based on factors including traffic or transportation safety and when the parcel or building site could be afforded indirect access to a street or other road via another parcel or building site.
A.
Intent. It is the intent of the City Council to protect underground pipelines and utilities from destruction or damage to prevent:
1.
Death or injury to persons;
2.
Property damage to private and public property; and
3.
Loss of essential pipeline or utility services to the general public.
B.
All excavation on public property, rights-of-way, or dedicated easements shall comply with the requirements of F.S. Ch. 556. Underground Facility Damage Prevention and Safety.
C.
Penalties for violation. Any person violating this section shall be punished as provided in the Code of Ordinances of the City of Cape Coral.
A.
Except as otherwise provided in the Cape Coral Code of Ordinances or the Land Development Code, in the R-1, RML, RE, and A zoning districts, the six-foot easement around the perimeter of sites shall be preserved and nothing shall be placed or constructed on such easements other than a paved driveway, walkway, sidewalk, fences, or well. In addition, for non-residential uses lawfully located in residential zoning districts, paved off-street parking areas may be placed or constructed on the six-foot easement around the perimeter of the site.
B.
In the R-1 zoning district, on property improved with a principal residential structure, stairs, hardscape features, landscape features, fall protection planters, elevated walkways, decks, and access ramps, may be constructed and placed in the six-foot public utility easement (PUE) along a side or rear property line of the residential structure and are not subject to rear or side setback requirements, provided each of the following requirements is met:
1.
Stairs, hardscape features, landscape features, elevated walkways, decks, and access ramps may project up to 36" into the 7.5-foot side yard setback and project into or occupy no more than 18" of the PUE, as measured perpendicular to the 7.5-foot side yard setback.
2.
Stairs, hardscape features, landscape features, elevated walkways, decks, and access ramps may project into the rear yard setback, including the 10-foot rear yard setback for pools and pool enclosures. Stairs, hardscape features, landscape features, elevated walkways, decks, and access ramps may be placed in the PUE along the rear property line.
3.
Fall protection planters, installed directly adjacent to an open-sided walking surface, may project up to 36" into the 7.5-foot side yard setback and project into or occupy up to 18" of the PUE, or project into the rear setback and PUE, provided the width of the planter is between 36" and 48", as measured perpendicular to such walking surface. The top surface of the fall protection planter must be located no more than 30" measured vertically to the floor or grade below at any point within 36" horizontally to the edge of the open-sided walking surface.
4.
Stairs, hardscape features, landscape features, fall protection planters, elevated walkways, decks, and access ramps shall not be structurally connected to the foundation of the residential structure in any manner that would preclude removing such material without damage to the residential structure or pool.
5.
Stairs, hardscape features, landscape features, fall protection planters, elevated walkways, decks, and access ramps shall not be permitted to project or occupy the side or rear yard PUE if any utilities or drainage improvements, above or below ground, are located in the subject PUE.
6.
An applicant may request an administrative deviation from the requirements of this Section to allow for certain encroachments into the PUE. The Development Services Director is authorized to approve such requests if all of the following conditions are met:
a.
The encroachment does not contain mechanical, electric, or plumbing equipment and/or the associated equipment pad.
b.
The encroachment will preserve at least 18 inches of the PUE, as measured from the property line.
c.
The applicant submits a letter of no objection from each utility provider with an interest in the PUE.
d.
The applicant executes a hold harmless and indemnification agreement in a form approved by the City Attorney's Office.
e.
The hold harmless and indemnification agreement is recorded by the City in the Public Records of Lee County, Florida, at the applicant's expense.
The Development Services Director's decision shall constitute final agency action appealable to Circuit Court. The applicant shall be responsible for paying fees associated with applying for such administrative deviation. Those fees shall be established by resolution and approved by the City Council.
C.
In the RMM zoning district, where lot depth is greater than 131 feet, the six-foot easement around the perimeter of the sites shall be preserved and nothing shall be placed or constructed on such easement other than a paved driveway, walkway, sidewalk, paved off-street parking areas, or a well when site conditions make it impractical to locate elsewhere. On sites with a depth of less than 131 feet, paving of the front easement for parking purposes shall be permitted.
D.
Lawn sprinkler systems and landscaping may be placed in the 6' PUE easements as permitted by the Code of Ordinances or the Land Development Code.
E.
In the C, CC, I, INST, MXB, MX7, NC, P, and SC zoning districts, paved off-street parking areas, paved driveways, sidewalks, wells, walkways at ground level, lawn sprinkler systems, or landscaping may be placed in an easement provided that all other requirements of the Code of Ordinances or the Land Development Code are met.
F.
Nothing in this section shall prohibit the construction of seawalls, davits, docks, or other structures as permitted by the Cape Coral Code of Ordinances.
G.
If a utility removes, damages, or disturbs the construction or other material within an easement as allowed by this section, the property owner shall be responsible for the cost of its removal, relocation, repair, or replacement. If any plant material in an easement required by Chapter 5 of this Article of the Land Development Code is removed or damaged, the property owner shall replace all such material within 30 days of the completion of the utility work. These requirements also include repair or replacement of sod within the right-of-way. In addition, prior to issuing a permit to locate, place, construct, or install any structure, construction, driveway, or other material in an easement, the city shall require the property owner to agree to indemnify and to hold the city harmless from any or all costs or expenses incurred as a result of such removal from the easement or the location, placement, construction, or installation in the easement. The City Attorney's Office shall approve the form of such indemnification and hold harmless agreement, which agreement shall be binding on the property owner, and the successors and assigns of the property owner. The indemnification and hold harmless agreement shall be recorded by the City in the Public Records of Lee County, Florida, at the property owner's expense.
H.
The city may deny applications to place wells, fences, walls, or other materials in an easement if such would conflict with existing or proposed utilities or drainage functions.
(Ord. 46-20, § 1, 7-27-2020; Ord. 25-25, § 1, 6-4-2025)
As an aid to allow for safe operation of vehicles, pedestrians, and cyclists in the proximity of intersecting streets, driveways, alleys, and bicycle paths, there shall be limitations on the height of fences, walls, gateways, ornamental structures, signs, hedges, shrubbery, and other fixtures as visually depicted in the Cape Coral Engineering and Design Standards and as follows:
A.
All landscaping and signs within the visibility triangle shall provide unobstructed visibility between 30 inches and eight feet, with the exception of tree trunks that do not create a traffic hazard.
B.
The property owner shall be responsible for maintaining all landscaping within the visibility triangle to provide the unobstructed visibility.
C.
The Community Development Director shall make the final determination regarding visibility triangles.
A.
Non-Residential Zoning Districts. As part of construction of each building erected in non-residential or mixed-use zoning districts (C, CC, I, INST, MXB, MX7, NC, P, and SC) right-of-way improvements (including sidewalks, curbs, gutters, alleys, street lighting, and lane widening) shall be installed prior to the issuance of a certificate of occupancy pursuant to the standards and specifications set forth in the City of Cape Coral Engineering Design Standards, by Lee County, and by the Florida Department of Transportation (FDOT). For example, and not by way of limitation, on properties with frontage on Pine Island Road, sidewalks shall be installed in the Pine Island Road right-of-way across the entire frontage of the site to be developed in accordance with design standards approved by the FDOT. In the alternative, required sidewalks may be constructed on private property pursuant to an agreement with the applicable state or local agency.
B.
All sidewalks shall be constructed in accordance with the City of Cape Coral Engineering Design Standards, except where a sidewalk has been installed and the established width is less than five feet, the minimum width of the sidewalk to be installed shall be the width of the existing sidewalk.
C.
Lot owners who develop property, erect buildings, or change the use on only a portion of a lot must provide the curbs, sidewalks, gutters, street lighting, and lane widening for the entirety of the property, as required by this subsection, which shall be at the expense of the lot owner.
D.
As part of property development and construction of each building erected in the C, CC, I, INST, MXB, MX7, NC, P, and SC zoning districts adjacent to a platted alley the alley shall be improved prior to the issuance of a certificate of occupancy. Such alley portion shall be constructed in accordance with the Engineering Design Standards along the length of the property line of the site lying adjacent to the platted alley. In addition to new construction in the C, CC, I, INST, MXB, MX7, NC, P, and SC zoning districts, alterations to existing sites lying adjacent to a platted alley shall be required to make the alley improvements required by this section if the value of such alterations exceeds 50% of the replacement value of the site improvements. These improvements include parking areas, internal curbing, and retention areas but exclude internal, previously existing modifications to the building.
E.
Payment in Lieu of Construction. At the discretion of the city, the city may accept payment in lieu of construction for all or part of the off-site improvements required by the city. For projects where payment in lieu of construction will be employed, the developer shall submit to the city 110% of the estimated cost of the improvements as prepared by a professional engineer licensed in the state of Florida, which shall be reviewed and approved by the city. The developer shall provide the city with payment for all construction costs prior to the issuance of a development permit for the site.
F.
Special Assessments. At the discretion of the City Council, right-of-way improvements along City, County, and State maintained roadways may be done through a city established special assessment district.
G.
Residential. New residential subdivisions and Planned Unit Developments of 20 or more lots or units and multi-family development of 50 or more units shall install sidewalks along all street frontages abutting and within the development. This does not apply to existing structures that are being remodeled or repaired.
H.
Institutional District. Owners may request a waiver from sidewalk, alley, and other right-of-way improvements when developing or redeveloping sites with Institutional (INST) zoning.
1.
To be eligible for consideration, an owner shall submit in writing a request to the Director identifying those specific improvements the owner seeks relief from. City right-of-way improvements may be waived, in whole or in part, by the Director at the sole discretion of the Director. In determining whether to waive any required right-of-way improvement, the Director shall consider the following:
a.
Whether the required right-of-way improvement will provide continuity with similar right-of-way improvements already present.
b.
Whether the proposed use on the owner's site is anticipated to generate pedestrian traffic.
c.
Whether the site is within walking distance of ½ mile from a public school, public park, or shopping center.
d.
Whether the site has two or more sides of frontage along a city right-of-way lacking off-site improvements.
e.
Whether the site has frontage along an arterial or collector street.
f.
Whether other factors exist that warrant a waiver to one or more required right-of-way improvements.
2.
Owners are not eligible to request waivers from the city for mandatory improvements in rights-of-way managed by either the Florida Department of Transportation or the Lee County Department of Transportation.
(Ord. 46-22, § 1, 7-20-2022; Ord. 56-25, § 1, 11-19-2025)
A.
General. Except as provided below, no construction, change, modification, or alteration of any type or nature whatsoever, including the addition or removal of fill, vegetation, or other materials, or the placement, installation, or erection of any object or vegetation, shall be allowed within a city-owned right-of-way or swale, except as provided in Chapter 1 of this Article.
B.
No permit required. The following work or activities shall be allowed in the public right-of-way or roadway easement areas without the necessity of a city permit:
1.
Trimming, cutting, or maintenance of trees, shrubs, and other vegetation existing as of the effective date of this ordinance in the public rights-of-way or swales;
2.
Markers, commonly known as buttons, turtles, or half-moons, may be placed 18 inches from the edge of the pavement in residential zoning districts provided that such markers shall not exceed a height of four inches. However, no markers shall be placed within any public right-of-way which is adjacent to a roadway with four or more lanes;
3.
Mailboxes may be placed in the public rights-of-way or swales so long as they are in accordance with the City of Cape Coral Engineering Design Standards. The mailbox may be immediately surrounded by a small bed consisting of landscape edging materials or concrete curbing, bedding plants or groundcover, and mulch or decorative rock provided that such decorative rock shall not exceed four inches when measured in any direction, pursuant to Chapter 5 of this Article. In no event shall the diameter of the plant bed exceed two feet when measured from the outer-most edges of any landscape edging material or concrete curbing utilized. and
4.
A Registration Certificate is required to install landscaping material in the lateral right-of-way areas between the roadway pavement and the private property line in accordance with Section 5.5.19 of this Article.
C.
Permit required. The following work or activities shall be allowed in the public right-of-way or roadway easement areas provided that the property owner first obtains a permit from the city:
1.
Culvert installation and appurtenant work;
2.
Sod installation and appurtenant work;
3.
Driveway installation and appurtenant work;
4.
Curb, gutter, sidewalk, sod, and paving;
5.
Alley improvements;
6.
Installation of sprinkler systems. However, if the sprinkler system is disturbed, damaged, or destroyed by the City performing work in the public right-of-way, the owner shall be solely responsible for any cost resulting from such disturbance, damage to, or destruction of the sprinkler system in the right-of-way; and
7.
Planting in medians, cul-de-sacs, and roundabouts as permitted in Section 5.5.17 of this Article.
8.
Installation of marine improvements and appurtenant work, as provided in Chapter 4 of this article.
9.
Installation of seawalls, alternatives to vertical bulkheads, and appurtenant work, as provided in Section 5.4.8. of this article.
D.
Under no circumstances shall any of the activities permitted above result in any change, modification, or alteration of any type whatsoever, to the established grade, slope, or contour of the public swale or right-of-way not specifically addressed by the City of Cape Coral Engineering Design Standards.
E.
None of the prohibitions contained in this ordinance shall apply to any construction, change, modification, or alteration within a public right-of-way or swale which is performed by or required by a governmental entity or public utility.
F.
Public Utilities. No public utility including electric, phone, cable tv, internet, cellular, or gas company will be allowed to install or maintain facilities, begin construction, change, modify, or alter in any way whatsoever the public right-of-way, swale, or adjacent public utility easements, including the addition or removal of fill, vegetation, or other materials, without a permit as required by the City of Cape Coral Code of Ordinances.
(Ord. 42-21, § 1, 6-2-2021)
All property owners shall be responsible to either maintain or construct the city-owned right-of-way lying between their property boundaries and the city pavement, to include the following standards.
A.
Prior to preparation of a building lot for construction, the building permit holder shall obtain the correct swale flow line elevations from the City and proceed immediately to create the required swale needed to allow continuous uninterrupted flow of stormwater throughout the construction process.
B.
During construction or reconstruction approved erosion control devices shall be placed in the swale adjacent to both property lines to impede all foreign matter from entering the stormwater system. The erosion control devices shall remain in place until placement of final sod in the right-of-way.
C.
No excavated material or construction material shall restrict stormwater flow within the swale area.
D.
Upon issuance of the certificate of occupancy, the owner shall maintain the swale indefinitely to the same standard that is applied to privately-owned property.
E.
All pavement damage must be repaired to meet or exceed the City of Cape Coral Engineering Design Standards.
All buildings in the City of Cape Coral shall display a proper building number at least four feet from the ground level. All building numbers shall be visible from the public right-of-way which the front of the building faces. Building numbers of sufficient size which are affixed to both sides of mail boxes on such right-of-way or building numbers which are affixed to lawful signs not attached to the building may be substituted for number affixed to buildings.
A.
Double frontage other than corner lots. Double frontage other than corner lots shall meet front setback regulations on all adjacent streets.
B.
Corner lots. In the SC and MXB zoning district(s), corner lots shall be deemed to have front lot lines abutting all street right-of-way lines. For corner lots in all other zoning districts, the following shall apply:
1.
The front of any building site shall be determined by the lesser dimension of a single lot (not building site). This frontage shall have the established setback for the particular zoning district, but in no instance be less than 25 feet.
2.
The remaining street frontage shall have a setback of no less than ten feet in all zoning districts. The remaining street frontage shall be maintained as a front yard and the regulations for fences, shrubbery, and walls of this ordinance shall apply.
3.
On sites bounded by three streets, one lot line shall be designated by the Director as the rear and maintained as the rear setback of that zoning district. For purposes of this section, all but the rear yard shall be maintained as a front yard and the regulations for fences, shrubbery, and walls of this ordinance shall apply.
4.
The front of a single-family residential building shall not be offset from the front property line by an angle greater than 45 degrees.
C.
No parcel shall be reduced below the minimum dimensional requirements in the zoning district. This provision shall not apply when a portion of a parcel is acquired for a public purpose.
In addition to all other provisions of this Code, single-family residential uses shall be subject to the following requirements.
A.
In the A, R1, and RE zoning districts only one single family residence shall be permitted per parcel.
B.
Ornamental walls. Ornamental walls attached to the principal building shall have the following requirements
1.
Ornamental walls shall not be higher than four feet at any point where they extend beyond the roof overhang and into the side setback.
2.
Ornamental walls may extend into the side setback but shall not extend into the six-foot perimeters easements.
3.
An ornamental wall not to exceed 30 inches in height may be installed in the front yard.
4.
Ornamental walls may be in the form of a planter.
5.
A planter may be incorporated into the construction of a wingwall.
C.
Water discharge. All gutter downspouts or similar water discharge devices shall direct the discharge to the front or rear property lines. Refer to the City of Cape Coral Engineering Design Standards, Section L, Drainage Design Standards for lot grading and drainage information.
D.
The following fill limitations will apply to the construction of single-family or duplex structures within a designated Special Flood Hazard Area to regulate the area of the lot outside the foundation of the primary structure as follows:
1.
Foundation Fill: The maximum allowable depth of base fill beneath the structure's foundation shall not exceed 12 inches, measured from the existing natural grade to the bottom of the foundation.
2.
On-Site Fill Outside the Structure Foundation: The maximum depth of fill permitted on the remainder of the site, outside the foundation of the primary structure, shall be limited to 30 inches maximum from existing natural grade, or shall maintain a slope no steeper than 4:1 (horizontal to vertical), whichever standard is more restrictive. This does not authorize exceeding 30 inches from existing natural grade.
3.
Exception. Any deviation from these limits shall require prior written approval from the Building Official, based on a determination that such deviation will not adversely affect drainage, floodplain management, or neighboring properties.
E.
Generators and Heating, Ventilation, and Air Conditioning (HVAC) equipment may be installed in front of a single-family residence or in the front yard of a single-family residence subject to the following requirements:
1.
A generator or Heating, Ventilation, and Air Conditioning (HVAC) equipment placed in front of a single-family residence or in the front yard of a single-family residence shall be screened from the street and from any abutting residential site by an enclosure. The enclosure shall be composed of materials consistent with the building and be painted to match the front façade. The enclosure shall have a maximum height of six feet unless a greater height is needed to screen from view the full height of the equipment. For purposes of this subsection, the required enclosure shall not be considered a wall and shall not be subject to the requirements of Section 5.2.7.
2.
The enclosure shall meet all building setback requirements for the applicable zoning district.
3.
The generator or Heating, Ventilation, and Air Conditioning (HVAC) equipment shall be located at a distance not to exceed five feet from the front of the building unless a greater distance is required by the Florida Building Code.
4.
The enclosure shall be designed to provide screening solely for the generator or Heating, Ventilation, and Air Conditioning (HVAC) equipment. No other equipment or materials shall be screened or stored within the enclosure.
5.
The provisions of this subsection shall not apply to the temporary use of portable generators during emergencies or after natural disasters.
(Ord. 32-24, § 2, 6-5-2024; Ord. 25-25, § 2, 6-4-2025)
In addition to other provisions of this ordinance, single-family attached structures, duplexes, and multi-family residential uses shall be subject to the following requirements.
A.
Distance between buildings.
1.
Clustered buildings. Buildings may be constructed on proper building sites in cluster style providing a minimum of 20 feet is maintained between the buildings up to a height of 38 feet.
a.
One foot shall be added to the 20-foot distance for every foot of height increase over 38 feet.
b.
Carports will not be considered in determining the 20-foot distance between buildings.
B.
Water discharge.
1.
All gutter downspouts or roof drains from multi-family buildings shall be directed to the water management system.
2.
All gutter downspouts or similar water discharge devices from duplexes shall direct the discharge to the front or rear property lines. Refer to the City of Cape Coral Engineering Design Standards, Section L, Drainage Design Standards for lot grading and drainage information.
C.
Maximum Fill. For duplex construction activities on any site in a Special Flood Hazard Area, the maximum amount of fill on-site shall be limited to 12 inches, unless otherwise approved by the Building Official.
Except where noted below, all sites with uses other than single-family residences and duplexes, shall provide commercial trash receptacles in accordance with the regulations in this section.
A.
Screening.
1.
Except for the SC and MXB Districts, when commercial trash receptacles are in a rear yard that abuts an alley, all commercial trash receptacles shall be enclosed from view on at least three sides by an opaque visual barrier.
2.
When a commercial trash receptacle is visible from an adjacent property or an adjacent street, at ground level, then the commercial trash receptacle shall be enclosed on the fourth side by an opaque gate that shall be the same height as the opaque visual barrier on the other three sides.
3.
The principal structure may be used as the opaque visual barrier on one or more sides provided the commercial trash receptacle is completely concealed from view.
B.
Materials.
1.
The following materials, either singly or in any combination, are the only materials that may be used for the opaque visual barrier and gate:
a.
Wood fencing;
b.
Plastic or vinyl fencing;
c.
Concrete block and stucco wall;
d.
Brick wall; or
e.
Formed, decorative, or precast concrete.
2.
Chain link fencing, whether singly, or combination with other materials, including plastic slats, shall be prohibited.
3.
Gates shall be constructed of a durable, opaque material, consistent or complimentary in color with the enclosure and of a height to screen the container.
C.
Location.
1.
Commercial trash receptacles shall not be located on unimproved sites.
2.
Commercial trash receptacles and accompanying visual barriers, are subject to the following minimum setbacks:
a.
Six feet from the front property lines in the SC and MXB Districts.
b.
Three feet from alley rights-of-way.
3.
When located in a public utility or drainage easement, the property owner shall be solely responsible for removal of the commercial trash receptacle as well as for any cost resulting from disturbance, damage, destruction, or restoration of the receptacle resulting from work associated with utilities in such easement. Prior to issuing a permit, the City may require the property owner to agree, in writing, to indemnify and to hold the city harmless from any costs or expenses resulting from placing a commercial trash receptacle in an easement.
4.
A commercial trash receptacle may be placed on an adjoining property provided that the premises are adjacent to or directly behind the development and written consent of the adjoining property owner is submitted to and approved by the Director. The adjoining property owner may revoke this consent upon written notice to the development and the Director. The development shall have 30 days from revocation to relocate the commercial trash receptacle and to comply with all requirements of this section.
5.
Developments within 25 feet of a City-owned parking lot may, upon approval by the Director, locate enclosures on the City-owned parking lot. Approval may be revoked at any time, upon reasonable notification, by the City.
D.
Dimensions. The dumpster enclosure shall have a minimum interior dimension of ten feet by ten feet and a height at least six inches higher than the enclosed commercial trash receptacle. Neither the dumpster enclosure or the gate providing access to the commercial trash receptacle shall be considered a fence or a wall pursuant to the City Code of Ordinances or Land Development Code.
E.
All dumpster enclosures shall be located so that a sanitation vehicle has physical access to the commercial trash receptacle that is adequate for safely servicing the facility.
F.
Each commercial trash receptacle shall be located on a concrete pad.
G.
All solid waste or other refuse, including recycling materials stored in commercial trash receptacles, shall be concealed by a lid attached that shall remain in the closed position unless materials are being placed into the receptacle or the receptacle is being serviced. No material shall be permitted to overflow the receptacle.
H.
In the event a commercial trash receptacle is in a dumpster enclosure that includes a gate, regardless of whether such a gate would have been required pursuant to this section, the gate shall be of a type that opens sufficiently to allow unimpeded access to the trash receptacle by the sanitation vehicle and shall have drop pins, hooks, or other devices installed to hold the gate open while the receptacle is being serviced. All gates shall remain closed unless the receptacle is being serviced.
I.
Deviations. In the event an owner is unable to comply with the requirements of this section, the owner may request an administrative deviation from the Director. In determining whether to approve an administrative deviation, the Director shall consider factors such as dimensions of the property, site constraints such as existing development, or other location factors that may make compliance with this section impossible or impractical. The determination to approve an administrative deviation shall be at the sole discretion of the Director.
J.
Maintenance. Commercial trash containers shall be maintained in a manner which is not a nuisance to surrounding uses.
1.
The receptacle shall be stored in the enclosure and the gate(s) to the enclosure shall remain closed at all times unless it is being accessed at that time.
2.
Refuse may not be left outside of the enclosure or on the ground within the enclosure.
Outdoor dining may be permitted as an accessory use to a restaurant, hotel, bar, or fraternal organization provided the following conditions are met:
A.
All outdoor dining:
1.
Music may be permitted to be performed or amplified in outdoor dining areas, in accordance with Section 12-22 of the City's Code of Ordinances, or in accordance with a permit per Chapter 9 of this Article.
2.
Parking shall be provided at a rate of 1 parking space per 4 seats of outdoor dining are, except in the SC, MX7, or MXB zoning districts, where no additional parking is required.
3.
Outdoor dining in common areas, such as shopping centers, must have written authorization from the property owner.
B.
Outdoor dining on public rights-of-way.
1.
Stanchions, planters, or other features approved by the City may be used to delineate outdoor dining areas.
2.
The number of outdoor seats and tables shall be limited to that number that can be reasonably accommodated according to the available widths of the associated storefront and sidewalk or patio area. Only the area(s) adjacent to the associated storefront and with 50' may be used for outdoor dining. No fixtures or furniture may be attached to the right-of-way or public property.
3.
Clear pedestrian access shall be maintained at all times, and no seating or tables shall interfere with ingress and egress to buildings or create an unsafe situation with street traffic.
4.
The owner or operator of the outdoor dining area shall remove any seating or tables when necessary for special events or when an authorized agent of the City makes such a request.
5.
Public sidewalks adjacent to any approved outdoor dining area shall be properly maintained for safety and cleanliness by the owner or operator on a daily basis. Litter, dirt, grime, grease, and food shall not be permitted to accumulate at any time. The sidewalk must be cleaned by pressure washing on a regular basis or when an authorized agent of the city makes such a request. The Public Works Department must approve the method and equipment used for pressure washing.
6.
Portable lighting may be used in the outdoor dining area. Extension cords may not be run from any nearby buildings. The use of generators is prohibited. City light poles may not be used for electrical connections. Portable heaters may be used if approved by the Fire Department.
7.
An indemnity agreement, provided by the City shall be signed and provided by the outdoor dining owner or operator, along with proof of public liability insurance as approved by the city attorney.
8.
The use of glass table tops or furniture is prohibited. The use of plastic or PVC furniture, wooden picnic tables, or couches and chairs intended for indoor use is prohibited. All furniture and fixtures to be used shall be specified in the outdoor dining permit and approved by the City.
9.
The City Manager may revoke an outdoor dining permit for locations on the public right-of-way for noncompliance with these regulations.
A.
The minimum dwelling unit size in mixed-use buildings shall be 500 square feet provided all requirements of the Florida Building Code are met.
(1)
Reserved.
(2)
The non-residential design standards set forth in Article 5, Chapter 8 shall apply to all mixed-use buildings.
In addition to all other provisions of this ordinance, automotive and watercraft uses are subject to the following regulations.
A.
Abandoned vehicles and watercraft are prohibited from being parked or stored on any property in the City of Cape Coral including in driveways, carports, or on unimproved lots.
B.
For locations where abandoned vehicles are prohibited, if an abandoned vehicle or watercraft is not removed from the premises within five days from date of written notice to do so, the vehicle or watercraft shall be deemed a nuisance and shall be in violation of this ordinance.
C.
Vehicles that are in garages on improved property shall not be deemed to be "abandoned" under this ordinance.
D.
Repairs may be made on the premises if an emergency exists or if performed on an occasional basis. In all cases, repairs must be performed in such a manner as to not cause unsightliness, noise, or obnoxious odors.
A.
Purpose. To establish standards and criteria for the placement of newsracks and newspaper vending machines. It is the purpose of this section to establish reasonable time, place, and manner restrictions to further the city's objective in public safety and aesthetics.
B.
Standards.
1.
No person shall place, install, or maintain any newsrack that projects or rests onto, into, or over any part of the roadway of any public street.
2.
No person shall place, install, use or maintain a newsrack that endangers the safety of persons or property when such site interferes with public utility uses or other governmental use; when such newsrack impedes the flow of pedestrian or vehicular traffic, the ingress into or egress from any residence or place of business or any legally parked or stopped vehicle, or the use of light poles, posts, traffic signs or signals, hydrants, mailboxes, or any other objects permitted at or near such location; when such newsrack interferes with the cleaning of any sidewalk by use of any sidewalk cleaning machinery or the mowing of grass by mechanical mowing machinery or when such newsrack interferes with the ordinary use of public property.
3.
Newsracks are prohibited in any median within a public right-of-way, roadway, or street.
4.
All newsracks shall comply with the following standards:
i.
The newsracks shall be anchored, set, and maintained on a concrete pad.
5.
Newsracks shall not be placed, installed, used, or maintained:
i.
Within 10 feet of any marked crosswalk.
ii.
Within 15 feet of the curb return of an unmarked crosswalk.
iii
Within 10 feet of any fire hydrant.
iv.
Within 10 feet of any driveway.
v.
Within 15 feet of any designated mass transit bus stop.
vi.
Within 15 feet of a "No Parking" sign or zone.
6.
Newsracks shall not be used for the display of signs or placement of placards, other than to promote the newspaper, periodical, or other publications contained therein.
7.
Every person who places or maintains a newsrack in the city shall affix on the rear of the newsrack a weather resistant decal no larger than five inches x seven inches that states the distributor's name, address, and telephone number.
C.
Indemnification. All distributors of publications utilizing newsracks within the city shall execute an indemnification, in a form approved by the City Attorney, which will hold the city, its officers, employees and agents harmless from any claim, demand or judgment in favor of any person or entity arising out or resulting from the placement of any newsrack in or over a public right-of-way.
(3)
Enforcement. Removal of any and all newsracks shall be determined by the following criteria:
1.
Upon determination by a code enforcement officer (as specified in § 2-82.1 of the Code of Ordinances) that a newsrack has been installed or maintained in violation of the provisions of this section, a citation shall be issued, in a form prescribed by the city, and shall state:
2.
The time and date of issuance;
3.
The name and address of the distributor and in the case of a newspaper vending machine, the publisher of the respective newspaper, to whom the citation shall be issued to and served upon;
4.
The time and date of the violation;
5.
A brief description of the violation and the facts constituting reasonable cause;
6.
The number or section of this code violated;
7.
The name of the code enforcement officer;
8.
Shall specify a reasonable time, not to exceed ten days, in which corrective action should be taken;
9.
The procedure for the person cited to follow in order to pay the civil penalty or to contest the citation;
10.
The applicable minimum ($25) and maximum ($200) civil penalty if the person elects to contest the citation;
11.
The applicable civil penalty if the person elects not to contest the citation;
12.
A conspicuous statement that if the person fails to pay the civil penalty within the time allowed, or fails to appear in court, as the case may be, to contest the citation, the person will be deemed to have waived his right to contest the citation and that in such case, judgment may be entered against the person for the amount stated in the citation;
13.
A copy of the citation shall be affixed on the respective newsrack.
(4)
Any aggrieved party may appeal a final order to the Circuit Court. Such an appeal shall not be a hearing de novo, but shall be limited to appellate review of the record created before the County Court. An appeal must be filed within 30 days of the execution of the order to be appealed.
F.
Should any newsrack constitute a threat to public health or safety, or is in violation of this section after notice and hearing on said violation, the newsrack shall be subject to removal by the city within 48 hours, unless conditions warrant a shorter time period, following the issuance and service of a citation accompanied by a notice of intent to remove the newsrack. Upon removal, the code enforcement officer shall deliver a notice of removal to the distributor and, in the case of a newspaper vending machine, to the newspaper publisher such notice to describe the location from which the newsrack was removed, the address of the location where the newsrack is being stored and a brief explanation of the procedures by which the publisher or distributor may obtain a release of the newsrack.
G.
A newsrack removed hereunder shall be stored in a secure location for a period not to exceed 30 days. The newsrack shall be released to its distributor, upon proof of ownership and payment of reasonable and actual storage charges. A $25 pick-up and collection charge will be assessed in addition to the actual and reasonable storage charge for any newsrack not picked up within 48 hours. If any newsrack is not claimed within 30 days, the newsrack shall be deemed abandoned and shall become the property of the city, and thereafter be sold at public auction. Approximately ten days prior to the auction, the City Clerk shall furnish a description of the newsrack, the location from which it was removed and a notice of the auction in a newspaper of general circulation within Lee County. The proceeds of the sale shall be applied first to storage charges and then paid to the General Fund of the City of Cape Coral. The city may otherwise dispose of the newsrack in accordance with Florida law, as the city deems appropriate.
H.
Amortization period. Each newsrack legally located and placed on the adoption date of this section shall have 90 days from the adoption date of this section to comply with the provisions of this section to recoup any investment from that newsrack and to have sufficient time to transition nonconforming units out of locations throughout the city and to provide conforming newsracks for placement within city limits. Any newsrack not in compliance with this section following the 90-day amortization period may be removed by the city in accordance with this section.
A.
This chapter shall pertain to residential properties unless otherwise specifically stated herein. Accessory structures on non-residential properties shall be reviewed per the standards of that zoning district. Agriculturally zoned properties shall not be considered residential for purposes of this section.
B.
Accessory buildings shall be constructed to conform to the minimum building requirements and shall meet all other regulations applicable to the district.
C.
Residential accessory buildings shall be in the rear yard, other than those listed in Section 5.2.1, and shall comply with all of the requirements found in this Section.
D.
Accessory structures, such as pergolas, arbors, trellises, and flag poles may be in the rear, side, or front yard of the primary structure. Fences and sheds may be permitted in the rear or side yard of the primary structure.
E.
With the exception of marine improvements and boat canopies lawfully permitted under Chapter 4 of this article, no accessory structure, including fences, shall be constructed on any residential parcel not containing a primary structure.
F.
Accessory buildings shall be elevated above the base flood elevation (BFE) or provide hydrostatic vents consistent with FEMA regulations.
G.
All nonconforming accessory structures shall be subject to the requirements of Article 8 Nonconformities.
H.
Any accessory structure not listed in this chapter may be reviewed and considered for approval through a similar use determination process.
I.
In non-residential districts, all accessory structures shall be reviewed and held to the same standard as a non-residential structure.
J.
Setbacks shall be measured from the property line and must be considered in addition to all other locational requirements.
(Ord. 80-23, § 1, 11-1-2023)
Table 5.2.1.A. Setback Requirements for Accessory Structures.
X Not permitted
SAP Same as Principle Structure
N/A Not Applicable
Diagram 5.2.1.B Double Frontage Lot Fence and Accessory Structure Requirements.
A.
Arbors, trellises, and pergolas shall be allowed as freestanding or attached structures. There is no limit on the number of attached pergolas, arbors, and trellises per primary structure.
B.
Freestanding pergolas and arbors are limited to 200 square feet of coverage per single-family detached residential property. Freestanding pergolas and arbors are limited to 100 square feet per unit of a duplex property.
C.
The amount of freestanding square footage coverage for multi-family residential developments may be determined by the Community Development Director. The criteria for this determination include:
1.
Design, size, location, and number of proposed arbors, trellises, and pergolas;
2.
Design, size of property, location, and number of units of the multi-family residential development; and
3.
Whether the structure will be contrary to the public interest.
D.
Attached pergolas.
1.
Attached pergolas may be placed over the front entrance or walkway into a residence and must not extend beyond the most forward portion of the primary structure.
2.
A pergola is considered attached if a minimum of 20% of the pergola's perimeter is attached to the primary structure.
3.
A pergola that is attached to a previously-attached pergola is considered to be an extension of the original attached pergola; the enlarged pergola must abide by the setback requirements listed in Table 5.2.1.A.
E.
Pergolas, generally.
1.
Pergolas must conform to all zoning requirements in terms of height and setbacks.
2.
The only exception to the prohibition of the placement of a pergola in the rear setback is for pergolas on docks.
3.
If placed in the rear yard of a waterfront property, or on a dock, pergolas must not unreasonably restrict or block the view of the canal or waterway of an adjoining lot.
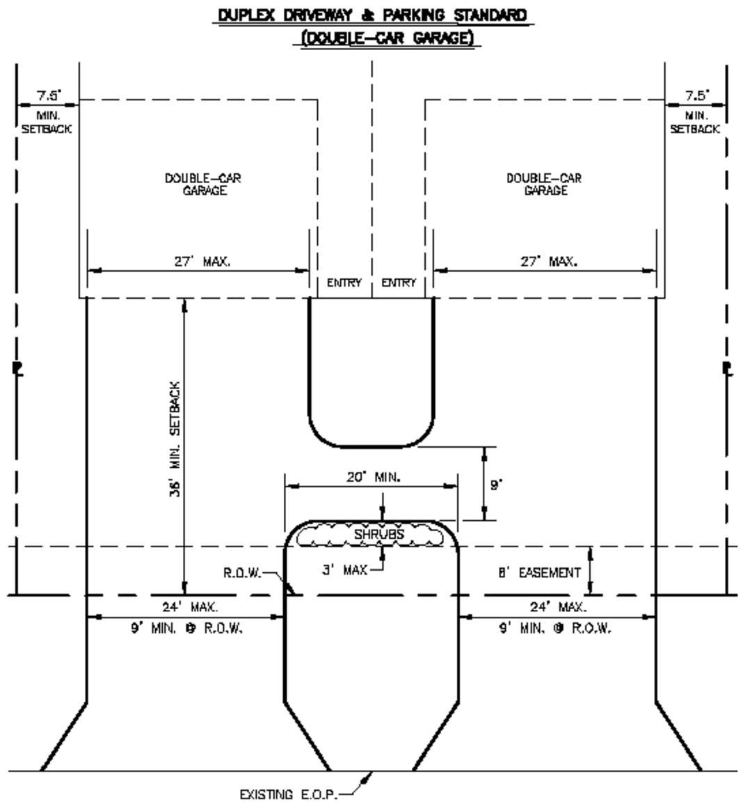
A.
All single-family detached and single-family semi-detached dwelling units and each unit of a duplex structures shall include a garage with minimum dimensions of 14 feet by 20 feet unobstructed space. Carports are prohibited on single-family detached, single-family semi-detached, and duplex residential properties requiring a garage.
(Ord. No. 55-20, § 1, 9-14-2020)
B.
For attached garages, the following shall apply:
1.
A garage shall be considered attached if:
a.
It shares at least a five-foot length of common wall with the principal structure; or
b.
It is connected to and accessible from the principal structure by a roofed breezeway with minimum dimensions of 4 feet by 8 feet. For purposes of this section, a roofed breezeway means a roofed open passage that contains a floor, an access door to the garage, and an access door to the principal structure so that a person may access the garage from the principal structure via the breezeway.
(Ord. No. 55-20, § 1, 9-14-2020)
2.
For purposes of this LDC, an attached garage shall be considered to be a part of the principal structure and shall comply with all district regulations for the zoning district in which it is located.
3.
An operable garage door capable of providing access to the garage by a motor vehicle is required.
4.
A driveway providing vehicular access to the garage is required and shall be constructed and maintained in a condition that is safe and free of potholes, and in accordance with the City of Cape Coral Engineering Design Standards.
5.
The garage shall not be included in determining the living area.
6.
No garage or storage area shall be used as living quarters unless another garage is constructed prior to conversion. Should a garage connected to the principal structure by a roofed breezeway be converted to living quarters, the conversion of the garage and roofed breezeway shall comply with all applicable regulations, rules, and laws for living quarters, including, but not limited to, the Florida Building Code.
(Ord. No. 55-20, § 1, 9-14-2020)
7.
The exterior building materials of an attached garage shall conform to the exterior building materials of the principal structure.
C.
For detached garages, the following shall apply:
1.
A detached garage shall meet all of the setback requirements of the principal structure.
2.
A detached garage shall be on the same parcel as the principal structure.
3.
The area of a detached garage shall not exceed the living area square footage of the principal structure or, if the principal structure has more than one story, the living area square footage of the first floor of the principal structure.
(Ord. No. 55-20, § 1, 9-14-2020)
4.
The height of a detached garage shall not exceed 14 feet in height when measured according to the definition of "building height" in the Land Development Code.
5.
An operable garage door capable of providing access to the garage by a motor vehicle is required.
6.
The maximum size and height restrictions shall not apply in the RE district or A district.
7.
No plumbing shall be allowed in a detached garage except that a utility sink and one bathroom consisting of a toilet and a sink shall be allowed.
(Ord. No. 55-20, § 1, 9-14-2020)
8.
The exterior building materials of a detached garage shall conform to the exterior building materials of the principal structure.
9.
A parcel may contain both an attached and detached garage, but only one detached garage shall be permitted.
10.
Except on a corner lot, the driveway to a detached garage shall connect the garage exclusively to the street that the principal structure faces. On a corner lot, the driveway to the detached garage may connect the garage to the street that intersects with the street that the principal structure faces.
11.
When a property, including but not limited to a parcel or a double frontage lot, has frontage on a street other than the street that the principal structure faces, no detached garage or any portion thereof shall be located farther than 115 feet from the property line abutting the street that the principal structure faces.
(Ord. No. 55-20, § 1, 9-14-2020)
A.
Requirements in the R1, RE, RML, and A districts.
1.
Lighting is prohibited on all outdoor recreation facilities on all properties containing single-family detached and duplex dwellings.
2.
An opaque landscape hedge shall be planted between a recreational facility and a side or rear property line of different ownership. The landscaping shall be maintained at a minimum of four feet in height and shall be provided along the entire length of the recreational facility.
B.
Requirements in the RMM or other districts with permitted multi-family uses.
1.
Lighting may be installed to allow evening use of the facility. All outdoor lighting shall be installed and maintained in such a manner that the light falls substantially within the perimeter of the property through the use of shielding and limitations on intensity. In no instance shall the facility lighting create glare off of the property exceeding 0.3 foot candles which impacts any roadway. Directional lighting may not be installed which shines directly into any dwelling unit.
2.
An opaque landscape buffer, a minimum of four feet in height, shall be installed which shields the recreational facility from any adjacent right-of-way. Fencing may be installed to a maximum height of ten feet.
A.
Decks extending into rear or side yard may not exceed a height of 30 inches above grade. Decks over 30 inches in height shall meet all setbacks.
B.
Deck height shall be measured from the walking surface of the deck, not the railing.
C.
Railing shall be spaced in such a way as to allow air and light to pass through.
A.
General Requirements.
1.
All fences shall be of sound construction and not detract from the surrounding area.
2.
No barbed wire, spire tips, sharp objects, or electrically charged fences shall be erected, except as otherwise provided herein. This shall not be interpreted to mean that bona fide agricultural users cannot use barbed wire or electrically charged fences to control livestock when located in districts permitting the raising, keeping, or breeding of livestock.
3.
No fences shall be placed within the visibility triangle.
4.
If a fence or wall is located in a public utility or drainage easement, the property owner shall be solely responsible for removal of the fence or wall as well as for any cost resulting from disturbance, damage, or destruction of the fence or wall resulting from work associated with utilities or drainage facilities, including those related to alley improvements within such easement.
5.
Unless the posts or other supports used in connection with the fence or wall are visible from and identical in appearance from both sides of the fence, all posts or other supports used in connection with the fence or wall shall be on the side of the fence or wall that faces the property on which it is to be erected. If a fence or wall is constructed in such a way that only one side of the fence is "finished", then the "finished" side of the fence shall face outward toward the street or adjoining property (facing away from the property on which it is erected). The "finished" side of the fence shall be the side that is painted, coated, or smoothed so as to be more decorative in appearance.
6.
Fencing for critical public utilities infrastructure, including water and wastewater facilities and electric and natural gas facilities, which may enclose either an entire site or only an area containing equipment, may be maintained at a height of eight feet. Barbed wire, spire tips, sharp objects, or electrically charged fencing are permitted on the top of fencing around critical infrastructure sites or equipment, however, the height of the fencing together with any barbed wire, spire tips, sharp objects, or electrically charged fencing may not exceed eight feet, and only the top two feet may contain barbed wire, spire tips, sharp objects, or electrically charged fencing.
7.
Reserved.
8.
Fences are not permitted on any unimproved property in a residential zoning district.
9.
Fences may be installed on unimproved sites in non-residential or mixed-use zoning districts, when the Director determines that such fence is necessary for:
a.
Site security or safety reasons;
b.
To secure temporary utility infrastructure storage areas; and
c.
Temporary fencing for demolition sites or sites with pending building permit or site development applications.
10.
No wall or fence of any kind whatsoever shall be constructed on any lot until after the height, type, design, and location has been approved in writing and proper permit issued by the Director.
11.
Fencing for recreational facilities may be increased in height to ten feet. Such fencing must immediately enclose the recreational facility. Hooded backstops for diamond sports may be increased to a maximum height of 28 feet. For sports other than diamond sports, backstops may be increased to a height of 12 feet. All fencing at recreational facilities must be constructed of at least nine-gauge fence fabric and schedule 40 tubing.
12.
A may be maintained at a height greater than otherwise allowed herein if a higher fence height is required by the city for the purpose of screening a special exception use.
13.
A fence or wall shall be constructed of one or more of the following materials or finishes:
a.
Wood (decay resistant or pressure treated only), shall be painted or stained;
b.
Concrete block with stucco (CBS);
c.
Reinforced concrete with stucco;
d.
Stone or brick, including cast (simulated) stone or brick;
e.
Concrete;
f.
Wrought iron;
g.
Aluminum;
h.
Plastic or vinyl;
i.
Galvanized steel privacy panels painted with alkali-resistant coatings. Alkali-resistant coatings include heavy-bodied bituminous paint or methacrylate lacquer; or
j.
Chain-link without slats
All other finishes and materials are prohibited.
14.
For fences or walls located in a public utility or drainage easement, only the following materials or finishes are permitted:
a.
Wood (decay resistant or pressure treated only);
b.
Aluminum;
c.
Chain-link without slats;
d.
Plastic or vinyl;
e.
Galvanized steel privacy panels painted with alkali-resistant coatings. Alkali-resistant coatings include heavy-bodied bituminous paint or methacrylate lacquer;
f.
Engineered reinforced concrete with stucco; or
g.
Engineered concrete block (CBS) with stucco.
If a fence or wall is located within a public utility or drainage easement, the property owner shall be solely responsible for the removal of any fence or wall as may be required by the City or a utility provider, at such entity's sole discretion. The property owner shall be responsible for all costs resulting from the disturbance, damage, destruction, removal, and replacement of any fence or wall resulting from any work associated with the utility or drainage infrastructure, including those related to alley improvements within such easement.
15.
Multi-family developments over 1 acre in size may construct a fence or wall around the entire perimeter of the property or in a location not otherwise allowed by this subsection.
16.
Maintenance. All fences shall be properly maintained, in accordance with the International Property Management Code Sec. 304.2 Protective Treatment, as referenced by Article 12, Section 12.1.C of this code.
B.
Residential Zoning Districts.
1.
A No fence shall be maintained at a height greater than six feet, and no wall or fence shall be erected or placed within the front setback lines of any residential lot, except if a residential use abuts property used for commercial or professional purposes, a fence may be maintained at a height up to eight feet along the side(s) of the property which abut(s) the property or properties containing commercial or professional uses. For purposes of this section, a property shall be deemed to abut another property if the two properties are either immediately adjacent to each other or separated only by an alley. Properties separated by a street, canal, lake, or other body of water shall not be deemed to be abutting properties.
2.
Any fencing within 20 feet of the rear property line on waterfront sites must be open mesh above a height of three feet. The Director may, in his or her discretion, approve minor projections above the restricted heights for architectural features.
3.
No part of a fence shall be located forward of the forward-most part of the side of the principal structure to which the fence is closest. In no instance shall a fence enclose any portion of the front facade of the principal structure.
4.
No fence, hedge, or other growth shall be erected on any residential property within the city which shall unreasonably restrict or block the view of a canal or other waterway from an adjoining lot, or except as required to screen a special exception use. No fence or hedge or other growth shall be erected on property which would obstruct the view of either a pedestrian or driver of a moving vehicle so as to create a hazard to the health and welfare of its citizens.
C.
Non-Residential and Mixed-Use Zoning Districts.
1.
Construction of fences or walls must meet the following restrictions:
a.
Maximum height: six feet, except property in a commercial, professional, or mixed-use zoning district, which contains a non-residential use, and which abuts a residential use, whether such use is in a residential zoning district or mixed-use zoning district, may erect a fence or wall up to eight feet in height along the side(s) of the property which abut(s) a residential use. For purposes of this subsection, a property shall be deemed to abut another property if the two properties share a common border or property line or if the two properties are separated by only an alley.
b.
Industrial business center uses in the Commercial Corridor (CC) zoning district shall construct an opaque wall that is 6 feet in height around the perimeter of the property.
c.
Required setbacks:
D.
Multi-family developments over 1 acre in size may construct a fence or wall around the entire perimeter of the property or in a location not otherwise allowed by this subsection.
E.
Industrial zoning district:
1.
Maximum height: eight feet.
2.
Required setbacks: none, except that fences shall be setback 10' from alleys.
3.
Fencing shall provide an opaque visual barrier, constructed of materials which conform to applicable codes, to conceal storage areas.
F.
Agricultural zoning district:
1.
Maximum height: eight feet.
2.
Required setbacks: none.
G.
Institutional zoning district:
1.
Maximum height: eight feet.
2.
Required setbacks: none, except that fences shall be setback 10' from alleys.
3.
Fencing shall provide an opaque visual barrier, constructed of materials which conform to applicable codes, to conceal storage areas.
H.
Preservation zoning district:
1.
Maximum height: eight feet.
2.
Required setbacks: none.
I.
South Cape and MXB zoning district(s):
1.
Maximum height.
a.
When placed in front yards, 42 inches.
b.
When not placed in front yards, six feet (except that a property which contains a non-residential use, and which abuts a property containing a residential use, whether such use is in a residential zoning district or mixed-use zoning district, may erect a fence up to eight feet in height along the side(s) of the property which abut(s) a property containing a residential use). For purposes of this subsection, a property shall be deemed to abut another property if the two properties are either immediately adjacent to each other or separated by only an alley. Properties which are separated by a street, canal, lake, or other body of water shall not be deemed to be abutting properties.
c.
Fences, walls, and hedges may be maintained at a height greater than otherwise allowed herein if a higher height is required by the city for the purpose of screening a special exception use.
d.
Fencing for recreational facilities may be increased in height to ten feet. Such fencing must immediately enclose the recreational facility. Hooded backstops for diamond sports may be increased to a maximum height of 28 feet.
e.
Required setbacks:
A.
Residential zoning districts or sites with residential uses shall be limited to no more than two flagpoles.
B.
In non-residential zoning districts, in mixed use zoning districts, and on sites containing non-residential uses in residential zoning districts, no more than three flagpoles are allowed on a site.
C.
Flagpoles shall not exceed 35 feet in height other than those on non-residential properties abutting Pine Island Road which shall not exceed 80 feet in height.
D.
The installation of a flag standard on a site does not require a permit. The number of flags that may be displayed on a flagpole or on a single flag standard is not limited.
E.
For the purposes of this article, flags on non-residential, private property which contain a symbol other than that of a nation, government, political subdivision, or other entity shall be presumed commercial; however, it shall be considered a rebuttable presumption, which may be overturned by the Director if the evidence contradicting it is true or if a reasonable person of average intelligence could logically conclude from the evidence that the presumption is not valid.
A.
Fountains and sculptures shall not to exceed 12 feet in height.
B.
Reflecting pools greater than 24 inches in depth deep shall be fenced for safety.
A.
Gazebos, sun shelters, and similar structures on residential single-family detached or duplex parcels may not exceed 150 square feet in roof coverage. The total area of all such structures shall not exceed 300 square feet.
B.
All structures in all other zoning districts may not exceed 300 square feet.
C.
The maximum height shall not exceed 14 feet as measured from the dock or land on which the structure is constructed. Should the surface on which the structure is constructed have a grade, the measurement required shall be from the lowest point of the grade under the structure, including overhangs.
D.
The minimum height of the palm fronds composing the sun shelter shall be six feet, as measured in subsection (C) above.
E.
These structures shall not be constructed within six feet of any rear lot line except on waterfront lots where sun shelters are permitted to be constructed on docks. These structures shall not overhang the edges of the dock or be constructed over an easement.
(Ord. 80-21, § 3, 11-3-2021)
A.
Detached structures serving as a guest house shall only be permitted in the Residential Estate (RE) zoning district and must comply with the following:
1.
Guest Houses shall only be on constructed on sites with a principal residential dwelling unit.
2.
May not exceed one story.
3.
Maximum building height shall not exceed 14 ft.
4.
May not exceed 30% of the area of the primary structure or 800 square feet, whichever is less.
B.
A guest house is not a dwelling unit to be rented, it provides only guest accommodations and shall meet the following requirements:
1.
A guesthouse may not contain more than two bedrooms.
2.
A guesthouse may not contain a kitchen or the electrical or gas connections to install a stove or oven.
3.
An additional parking space must be provided for a guesthouse.
A.
On residential single-family detached and duplex properties, the City shall not be responsible for permitting and inspection of play equipment.
B.
Play equipment for other than single-family detached and duplex properties must be permitted and inspected prior to any use.
A.
The maximum height of a shed or greenhouse shall not exceed 15 feet in overall height.
B.
The maximum floor area shall not exceed 200 square feet.
C.
Sheds and greenhouses are allowed in the R1, RML, RE, and A districts.
D.
A lot may contain no more than one shed and one greenhouse.
E.
Sheds and greenhouses may be within the side yard of a parcel so long as the shed or greenhouse is screened. Screening is required for that portion of the wall of the shed or greenhouse that is visible from the right-of-way and the nearest adjoining residential property. A wall, fence, shrubs, or a combination thereof may be used to meet screening requirements as follows:
1.
If an opaque wall or fence is used for screening, the wall or fence shall be six-feet in height. The wall or fence may be constructed of wood, vinyl, or a material that has the appearance of wood or vinyl, or the wall may be masonry, but not be unfinished concrete block. All other materials are prohibited. A screening wall with a continuous foundation may not encroach into any easement.
2.
Alternatively, sheds or greenhouses may be screened with shrubs that meet the following requirements:
a.
A row of shrubs planted along both sides of the shed and extend at least five feet beyond the walls of the shed or greenhouse.
b.
All shrubs required for screening within this subsection shall be a minimum of 32 inches in height and be in at least a seven-gallon container size at the time of planting. All shrubs shall be planted no more three feet apart as measured on center.
c.
All shrubs shall be maintained at a minimum height of six feet at maturity and shall be maintained in good condition as long as the shed requires screening pursuant to this subsection.
3.
A shed or greenhouse that would be visible from the right-of-way or from the nearest adjoining property, but for an existing fence, wall, or landscaping that shields the shed or greenhouse is exempt from additional screening requirements. In the event the screening is removed or altered to cause the shed or greenhouse to be visible from the right-of-way or nearest adjoining property, the shed or greenhouse shall be screened in accordance with those requirements outlined above or moved to fully comply with this Section.
4.
On a double frontage lot, sheds or greenhouses shall be screened from view from rights-of-way and adjoining properties. See Diagram 5.2.1.B. Double frontage lot fence and accessory structure requirements.
5.
On double frontage lots, sheds or greenhouses in the rear yard shall be setback to a distance equivalent to the front setback of any adjacent lots that are not double frontage lots.
A.
General requirements.
1.
Permitted accessory equipment. Rooftop photovoltaic solar systems shall be deemed permitted accessory equipment for all buildings in all zoning categories. Nothing contained in this chapter shall be deemed to prohibit the installation of rooftop photovoltaic solar systems on buildings containing legally nonconforming uses.
2.
Maintenance. The photovoltaic system shall be properly maintained and be kept free from hazards, including faulty wiring, loose fastenings, or being maintained in a condition that is unsafe or detrimental to public health, safety, or general welfare.
3.
Abandonment. Abandoned or unused freestanding solar energy systems not in use for a period of 18 months shall be removed at the owner's expense.
B.
Building-mounted PV systems.
1.
Roof mounted:
a.
Notwithstanding the height limitations of the zoning district, building mounted solar energy systems shall not extend higher than three feet above the ridge level of a roof, for structures with gable, hip, or gambrel roofs and shall not extend higher than 10 feet above the surface of the roof when installed on flat or shed roof.
b.
The solar collector surface and mounting devices shall be set back not less than one foot from the exterior perimeter of a roof for every one foot that the system extends above the roof surface on which the system is mounted. Solar energy systems that extend less than one foot above the roof surface shall be exempt from this provision.
2.
Wall mounted or flush to a building or structure:
a.
PV arrays are allowed on the walls or sides of any building or structure but shall not encroach into the required front yard setback and may not encroach into side and rear yard setback by more than three feet and shall not extend into or over an easement.
b.
A minimum of nine feet vertical distance shall be maintained under the PV array where needed to provide adequate clearance for pedestrians.
c.
To the maximum extent possible, wall mounted PV arrays shall be designed as compatible to the structure and surface to which it is attached.
C.
At-grade PV systems.
1.
Exemptions. The restrictions of this Subsection with respect to height, location, and setbacks are not applicable to any accessory component to a freestanding outdoor lighting fixture, telephone pole, parking meter, or any other similar structure, as determined by the city.
2.
Height. The maximum height of any at-grade PV array shall not exceed twelve feet, except for residential locations, as established in subsection 3., below.
3.
Residential location. For PV arrays in or abutting residential zoning districts, the following requirements apply:
a.
PV arrays up to six feet in height are allowed;
b.
PV arrays shall be setback at least seven and one-half feet from interior side property lines and 10' from rear property lines;
c.
PV arrays are not allowed within the front setback or front yard of a residentially zoned property; and
d.
The area of the solar collector surface of freestanding solar energy systems shall not exceed five percent of the lot area.
4.
Commercial location. For PV arrays in non-residential zoning districts and not adjacent to residentially zoned property, at-grade PV systems must meet all setback requirements for a structure within the zoning district.
5.
The supporting framework for freestanding solar energy systems shall not include unfinished lumber.
A.
Location of swimming pools, spas, and hot tubs.
1.
Except in the RE zoning district, swimming pools, spas, and hot tubs are prohibited in the front yard and front setback of any single-family detached, attached and semi-detached, or duplex dwelling.
In the RE zoning district, swimming pools, spas, and hot tubs are allowed in the front yard of any parcel that is greater than 3 acres in size.
2.
Swimming pools, spas, and hot tubs in the side yard of any single-family detached, attached and semi-detached, or duplex dwelling shall comply with the following regulations:
a.
Except for swimming pools, spas, and hot tubs in the side yard of a waterfront parcel, the swimming pool, spa, or hot tub in the side yard shall be screened from the view of all adjacent streets by a six-foot tall opaque fence or wall that meets all applicable standards in Section 5.2.7.
b.
Swimming pools, spas, and hot tubs in the side yard shall maintain a rear and side setback of ten feet.
c.
Swimming pools, spas, and hot tubs in the side yard shall maintain the same front setback or the same actual (i.e. as built) setback distance as the principal structure, whichever is the greater distance.
d.
The setback shall be measured from the exterior of the screen or fence for an enclosed swimming pool, spa or hot tub, or the waterline of an unenclosed swimming pool, spa, or hot tub to the closest point on the property line.
3.
Swimming pools, spas, hot tubs, pool enclosures, and screen enclosures are prohibited in public utility or drainage easements.
4.
All swimming pools, spas, hot tubs, and enclosures constructed or erected on any parcel, other than accessory to a single-family detached, attached and semi-detached, or duplex residence shall meet the minimum setback requirements specified for buildings or structures in the zoning district in which the construction occurs.
B.
Swimming pool, spa, and hot tub screening.
1.
All residential swimming pools, spas, or hot tubs shall be enclosed by either a fence or a screened enclosure. When using a fence only, the swimming pool, spa, and hot tub area or the entire rear yard shall be enclosed with a minimum four-foot high fence. When fencing a waterfront yard, the fence shall extend to and no farther than the water side of the seawall cap, otherwise the fence shall extend across the back yard to the rear of the swimming pool. This fencing or screened enclosure must be completed before the pool is filled with water over 24 inches in height and before a final inspection.
2.
In the event that the swimming pool, spa, or hot tub is secured solely by a required screened enclosure or solely by a permanent fence and the screened enclosure or permanent fence is damaged by a fire, accident, or severe weather event such as a hurricane, to the extent that the screened enclosure or permanent fence is no longer securing the swimming pool, spa, or hot tub, then a temporary mesh safety barrier that is a minimum height of four feet above grade shall be installed around the entire swimming pool, spa, or hot tub.
a.
The temporary mesh safety barrier shall be installed as soon as practicable but in no event more than ten days after such fire, accident, or severe weather event.
b.
The temporary mesh barrier may remain in place for a period not to exceed 90 days after the fire, accident, or severe weather event. The Director of the Department of Community Development may extend the time period stated herein upon good cause shown, such as satisfactory evidence that the property owner has contracted with a licensed contractor to replace the screened enclosure or permanent fence that was damaged by the fire, accident, or severe weather event.
C.
Non-residential swimming pool handrails and grabrails. Handrails shall be provided for all stairs. Grabrails shall be mounted in the pool deck at each side of recessed steps. Handrails and grabrails shall be anchored or mounted pursuant to the Florida Building Code. This sub-section C. shall apply to non-residential swimming pools only.
D.
Portable Swimming Pools, spas, and hot tubs. Portable swimming pools, spas, and hot tubs are prohibited in the front or the side of any residential and non-residential lot. Portable swimming pools, spas, and hot tubs capable of holding 24 inches in depth or more of water shall be anchored into the ground sufficiently to prohibit movement during a hurricane. Portable swimming pools, spas, and hot tubs shall be enclosed by either a fence or a screened enclosure, which must comply with the requirements for swimming pool, spa, and hot tub screening in Section 5.2.15.B. Drainage of swimming pools, spas, or hot tubs so as to permit the water to run onto property of other people is prohibited. Wading or splash pools not capable of holding 12 inches or more of water are exempt from the provisions of this subsection.
(Ord. No. 56-20, § 1, 9-14-2020)
A.
Unattended donation bins are prohibited except within commercial developments and subject to the following requirements:
B.
Unattended donation bins are permitted only on sites with a minimum of 125 parking spaces;
C.
Bins may not be in a required parking space or a drive aisle;
D.
Bins may not be placed in required landscape buffers and trees may not be removed in order to locate a bin;
E.
Bins shall be maintained in good condition and appearance with no structural damage, holes, or visible rust and shall be free of graffiti;
F.
Bins shall be locked or otherwise secured;
G.
Bins shall contain contact information in accordance with F.S. § 496.4121; and
H.
Bins shall be serviced and emptied as needed, but at least once per month, or within five business days of a request by the City. Boxes, garbage, and donation goods shall not be permitted to accumulate around unattended donation bins.
A.
Removal or extraction of dirt, soil, and sand.
1.
All borrow pits from which dirt, sand or soil has been removed shall be completely enclosed by a fence or earth berm at least six feet in height.
2.
Prior to any such removal or excavation, the following shall be submitted to the Department of Community Development: drainage plans, aerial photo of the site, a plan for development of the total site when the removal is completed, the estimated costs of restoring the site to a safe and developable condition, and a deposit of funds or other financial instruments payable to the City of Cape Coral is required equal to the estimated cost of restoring the site. The estimated cost for restoring the site shall include fence or berm removal, lake bank sloping and stabilization, site grading, seeding or mulching, drainage, and any other items that the Department, Hearing Examiner, or Council deems appropriate to ensure that the site is restored to a safe and usable condition. The plans shall be reviewed by the Hearing Examiner and written recommendation made to the Council prior to application for an excavation permit.
3.
Determination of the size of buffer strip necessary shall be made by the Hearing Examiner subject to final approval of the City Council.
B.
Removal or extraction of rock, gravel, shell, aggregate, or marl.
1.
All such excavations and extractions shall be sealed by fencing or grading or other device from general public access. All entrances to said excavation shall be fenced and locked during nonbusiness hours.
2.
Prior to any such removal or excavation, the following shall be submitted to the Department of Community Development: drainage plans, aerial photograph of the site, a plan for development of the total site when the removal is completed, the estimated costs of restoring the site to a safe and developable condition, and a deposit of funds or other financial instruments payable to the City of Cape Coral is required equal to the estimated cost of restoring the site. The estimated cost for restoring the site shall include fence or berm removal, lake, bank sloping and stabilization, site grading, seeding or mulching, drainage, and any other items that the Department, HEX, or Council deems appropriate to ensure that the site is restored to a safe and usable condition. The plans shall be reviewed by the HEX and written recommendation made to the Council prior to application for an excavation permit.
3.
Determination of the size of buffer strip necessary shall be made by the Hearing Examiner subject to final approval by the City Council.
4.
No excavation or extraction may be made with explosives without express permission of the Council. Excavation or borrow pit permits involving explosives must be renewed every 90 days.
C.
Excavations, removal, or extraction for purposes of oil or gas exploration or production.
1.
All such excavations, removals, or extractions shall be sealed by fencing or grading or other device from general public access. All entrances shall be fenced and locked during nonbusiness hours.
2.
Prior to any such excavation, removal, or extraction the following shall be submitted to the Department of Community Development: drainage plans, aerial photograph of the site, a plan for development of the total site when the removal is completed, the estimated costs of restoring the site to a safe and developable condition, and a deposit of funds or other financial instruments payable to the City of Cape Coral is required equal to the estimated cost of restoring the site. The estimated cost for restoring the site shall include fence or berm removal, lake, bank sloping and stabilization, site grading, seeding or mulching, drainage, and any other items that the Department, Hearing Examiner, or Council deems appropriate to ensure that the site is restored to a safe and usable condition. The plans shall be reviewed by the HEX and written recommendation made to the Council prior to application for an excavation permit. No permit to drill a gas or oil well shall be issued unless City Council approves the application for such permit by resolution.
3.
Determination of the size of buffer strip necessary shall be made by the Hearing Examiner subject to final approval by the City Council.
4.
No excavation or extraction may be made with explosives without express permission of the Council. Excavation permits involving explosives must be renewed every 90 days.
5.
No person or entity may engage in any oil and gas exploration or production that utilizes well stimulation within the corporate boundaries of the City of Cape Coral or, consistent with F.S. § 377.24(6), within the tidal waters of the state abutting or immediately adjacent to the corporate limits of the municipality, or within three miles of the City's corporate limits extending from the line of the mean high tide. As used in this section, the term "well stimulation" shall mean a well intervention, exploration, operation, or maintenance procedure performed by injecting fluid into a rock formation in order to increase production at an oil or gas well by improving the flow of hydrocarbons from the formation into the wellbore. Well stimulation does not include routine well cleaning that does not affect the integrity of the well or the formation.
D.
Procedures.
1.
The applicant shall meet with the Director and other city staff deemed appropriate by the Director prior to a public hearing with the Hearing Examiner to review staff concerns and to establish the basis for determining cost estimates as required.
2.
All excavation or borrow pit requests shall be reviewed by the city staff, the Lee County Health Department, and the Hearing Examiner. After their review and recommendation, the City Council shall call for a public hearing on the application and shall determine whether or not said application shall be granted.
3.
If the conceptual plan as presented by the applicant will require a zoning amendment for development, the applicant must prepare and submit a planned development project for the entire project prior to approval of the excavation.
4.
If the excavation or borrow pit application is approved, the applicant may then apply for an excavation or borrow pit permit.
A.
Proposed alterations to ground elevation or vegetative cover not associated with an approved Site Development Plan, Final Subdivision Plan, or building permit shall be submitted to the Director with an application for a permit for Land Clearing and Fill containing the required plans and documentation. The director may require certification by a registered professional engineer that site improvements have been made in accordance with permits issued pursuant to this Section.
B.
The following activities shall require a site improvement permit:
1.
Clearing of trees and vegetation without disturbing the soil surface;
2.
Clearing including stump removal and grubbing of top soils; and
3.
Filling.
C.
Maintenance:
1.
The applicant shall be responsible for the maintenance, repair, and replacement of all existing vegetation as may be required by the provisions of Chapter 8.
2.
In buffer areas and areas outside the impervious cover, plant material shall be tended and maintained in a healthy growing condition and free from refuse and debris. Plant materials required by Chapter 8 of this article which is unhealthy, dying, or dead shall be replaced during the next planting season.
D.
Excavation involving more than surface contouring for erosion control is only permitted with approval of a Site Development Plan or Subdivision Construction Plan.
E.
In all districts, other than agriculture zoning, the city shall not permit any new borrow pits or mining activities, however, reshaping or restoration of existing borrow pits may only be permitted incidental to an approved Site Development Plan or Subdivision Construction Plan. Agriculturally zoned lands may propose new borrow pits as a Special Exception.
F.
The following land clearing activities shall not require a permit:
1.
Removal of invasive plants without disturbance of the soil; or
2.
Land clearing for agricultural uses.
Construction sites shall be maintained in a manner which is non-deleterious to nearby properties. The requirements of this Section set minimum standards for the operation of the project site to eliminate or minimize impacts to the site and to the neighborhood to include vehicle parking and loading area, traffic control, fencing, placement of materials, safety, neatness, and cleanliness.
A.
Construction site management plan required. All development and building permit applications must be accompanied by a construction site management plan, unless waived by the building official or development services manager.
1.
Parking plan shall include:
a.
Location of on-site and adjacent unpaved portion of the right-of-way parking and the maximum number of vehicles that will be parked along the unpaved portion of the right-of-way.
b.
Parking plan for worker vehicles and machinery on the site.
c.
A single access with dimensions.
2.
A temporary fence location, height, and type shall comply with the following:
a.
For the purposes of construction site screening only, chain link fencing is permitted and shall be faced with a screen mesh.
b.
A maximum height of six feet in residential zoned properties and eight feet in commercially zoned properties.
c.
Fencing may not be required in agriculture or preservation zoned properties, upon a determination by the Director.
3.
Construction trailers, loading and unloading areas, and material storage areas shall not be stored in areas intended for stormwater retention or rain gardens.
4.
Traffic control plans shall include:
a.
Access points with dimensions;
b.
Area to be stabilized and a written plan on staging of construction related traffic including adequate parking (both on and off-site); and
c.
Plan for delivery of materials.
B.
Approval of plan and waivers. The building official or development services manager shall review, approve, or deny the construction site management plan and is authorized to grant waivers from submittal requirements:
1.
If the requirement is unrelated to proposed development;
2.
If the impact of the proposed development is negligible in that submittal requirement area; or
3.
If unusual site conditions do not allow full compliance with this Section.
In order to allow all waterfront property the same ability to utilize and access adjacent waterways, the development of docks, wharves, mooring piles, and watercraft moorings must be accomplished in a standard and unified manner. Marine improvements and boat canopies may be constructed by the owner of a waterfront lot after complying with the provisions of Chapter 4 of this article and receiving a building permit from the City.
(Ord. 80-23, § 2, 11-1-2023)
A.
An applicant who disagrees with the measurement of the calculated waterway width may submit a survey of the waterway width, prepared by a professional surveyor licensed in the state of Florida, to support the applicant's contention that the calculated waterway width is inaccurate. For purposes of this chapter, calculated waterway width shall be the width of the waterway measured using the City of Cape Coral's Geographic Information System (GIS).
B.
No dock or piling shall be permitted that interferes with the right to navigate safely within the waterways of the city. In no event shall the navigable area be reduced to less than 50% of the calculated waterway width.
C.
The property owner shall be solely responsible for compliance with all applicable provisions of the Lee County Manatee Protection Plan.
D.
Any marine improvement located in a non-residential zoning district or public projects shall require a Florida registered professional engineer to design the marine improvement and seal the plans prior to its submission for approval of the city.
E.
All marine improvements that are constructed of concrete shall be designed by a Florida registered professional engineer who shall seal the plans prior to their submission for approval by the city.
F.
All marine improvements and boat canopies shall be maintained in a safe condition and removed or replaced should they become unsafe. No structure or obstruction may be placed in a public waterway unless specifically provided for in this section. In addition, because the waterways in the City of Cape Coral are public rights-of-way, all marine improvements and boat canopies located in such waterways may be required by the city at any time to be relocated or removed for the benefit of the public health, safety, and welfare, regardless of whether the construction of such marine improvements and boat canopies had been permitted by the city.
G.
Except as otherwise provided herein for joint marine improvements, no marine vessel (or any part thereof) when secured in any way to a marine improvement shall extend beyond the ends of the water frontage of the parcel from which the marine improvement projects.
(Ord. 80-21, § 4, 11-3-2021)
A.
Protrusions into a waterway.
1.
Marine improvements which do not extend more than six feet into a waterway as measured from the water frontage line may extend the full length of the water frontage of the parcel. However, where the end of a parcel's water frontage line abuts the water frontage line of another parcel, the angle at which such two water frontage line ends meet shall be bisected and apportioned equally between the two waterfront parcels. Except as provided elsewhere in this section for corner parcels, end parcels, adjacent parcels, or for parcels located on a lake or basin, no part of a marine improvement shall extend beyond the bisector of the angle.
2.
Except as provided elsewhere in this section for corner parcels, end parcels, adjacent parcels, or for parcels located on a lake or basin, no marine improvement may extend more than six feet into a waterway as measured from the water frontage line, except under the following conditions:
a.
No part of a marine improvement which extends more than six feet into a waterway shall be located less than 12 feet from the ends of the water frontage line.
b.
Except as provided below, no part of any marine improvement, including but not limited to docks, mooring posts, boat lifts, lift structures, and walkways, shall project into a waterway to a point more than 25% of the calculated waterway width or 40 feet, whichever is less, as measured from the water frontage line.
i.
Marine improvements located within the Caloosahatchee River shall be subject to the requirements of state and federal regulations.
ii.
A marine improvement may project farther into a canal than would be otherwise allowed by this subsection, if the marine improvement is projecting from an outside corner parcel that projects into two canals at the intersection, excluding a "T" intersection, of two canals. Such farther projection, however, may only occur in the area that results from the following calculation: Each of the two waterfrontage lines of the property shall be extended from the point immediately preceding where it begins to curve to meet the other waterfrontage line or from where it angles to meet the other waterfrontage line, whichever is applicable, to a point 25% of the calculated canal width or 40 feet, whichever is less. Then, in each intersecting canal, a line shall be drawn that is parallel to the extension of each of the waterfrontage lines and that runs through a point that is located at 25% of the calculated waterway width or 40 feet from the waterfrontage line, whichever is less. A marine improvement may project up to 40 feet from the waterfrontage line within the area formed by the intersection of the aforesaid four lines, even if such distance is farther than would be otherwise allowed by this subsection. See Diagrams 5.4.3.O. & P.
iii.
In the event a significant portion of a waterway is not developable on one side due to ecological, or other constraints, a marine improvement located on the opposite side of the undevelopable portion shall be permitted to project into the waterway up to 50% of the calculated waterway width or 40 feet, whichever is less, as measured from the waterfrontage line. See Diagram 5.4.3.N.
3.
Marine improvements for parcels at or adjacent to canal ends or parcels on lakes and basins (excluding outside corner parcels) are subject to the following:
a.
For purposes of this section, a "canal end line" shall be deemed to be a line or lines drawn from the farthest point where the canal meets land perpendicular to the sides of the canal, or to the sides of the canal as extended if necessary. If the side of a canal curves near its end point, such canal side shall be extended from the point immediately preceding where it begins to curve. For purposes of this section, a waterfront parcel shall be deemed to be located at the end of a canal and, therefore, an "end parcel" if any part of the parcel abuts or includes within its boundaries any part of the canal end line or any part of an extension of a side line between the side line and the canal end line. Any waterfront parcel that is not an end parcel, but that abuts an end parcel, shall be deemed to be an "adjacent parcel" for purposes of this section.
b.
Canal ends. Except for parcels governed by Section 5.4.3.A.3.g below, end parcels shall be permitted to have marine improvements projecting into the waterway up to a maximum of 30 feet. Adjacent parcels shall be permitted to have marine improvements projecting into the waterway up to a maximum of 30 feet or 25% of the calculated canal width, whichever is less.
c.
Lakes and basins. Corner parcels shall be permitted to have marine improvements projecting into the waterway up to a maximum of 30 feet. Adjacent parcels shall be permitted to have marine improvements projecting into the waterway up to a maximum of 30 feet or 25% of the calculated waterway width, whichever is less. End parcels shall be permitted to have marine improvements projecting into the waterway up to a maximum of 40 feet or 25% of the calculated waterway width, whichever is less.
d.
With respect to end parcels with a water frontage line of at least 80 feet, no part of a marine improvement which extends more than six feet into a canal shall be located less than 12 feet from the ends of the water frontage line of the parcel. See Diagrams 5.4.3.A. & J
e.
With respect to end parcels with more than 40 feet, but less than 80 feet, of water frontage line, any part of a marine improvement which extends more than six feet into a canal shall be set back from the ends of the water frontage line of the parcel in accordance with the following formula: (Parcel Waterfrontage - 40 feet) x 0.3. The foregoing restrictions shall apply to marine improvements projecting from adjacent parcels (based on the length of their waterfrontage lines) in the same manner as end parcels, except that on the side of the adjacent parcel that abuts an end parcel, a marine improvement may be built up to the side boundary of the adjacent parcel's marine improvement area, as determined pursuant to paragraph 5.4.3.A.3.j.ii below. See Diagram 5.4.3.H
f.
With respect to end and adjacent parcels with 40 feet or less of water frontage, no marine improvement shall extend more than six feet into the canal except in accordance with the following:
i.
Such a parcel may have either a platform dock not more than ten feet wide and extending not more than 16 feet into the canal or not more than two finger piers (with or without a boat lift) that together total no more than six feet in deck width and that extend not more than 30 feet into the canal.
ii.
No marine improvement that projects more than six feet into the canal shall extend more than ten feet either side of the center point of the water frontage line of the parcel. Furthermore, no marine improvement shall extend beyond the ends of the water frontage line of the parcel. All marine improvements shall be centered on the centerline of the waterfront parcel's marine improvement area. See Diagram 5.4.3.F
iii.
At the end of the construction of any marine improvement extending more than six feet into the canal, but prior to the final inspection by the Department of Community Development, the property owner or his or her representative shall submit to the Department of Community Development a final signed and sealed survey showing that all construction is in compliance with the requirements of this section.
g.
When a parcel is at the corner of a waterway so as to include water frontage (all under the same ownership) on both the side and end of a waterway, the property owner may install or erect a marine improvement that extends from the side of the waterway to a maximum distance of 25% of the calculated width of the waterway or 30 feet, whichever is less, and from the end of the waterway a distance of 30 feet into the waterway.
h.
Except as otherwise provided herein for joint marine improvements, no marine vessel (or any part thereof) when secured in any way to a marine improvement projecting from an end parcel, an adjacent parcel, or a parcel on a lake or basin (excluding outside corner parcels) shall extend beyond the boundaries of the marine improvement area of the parcel.
i.
Marine improvements that do not project more than six feet into a waterway as measured from the water frontage line may extend the full length of the water frontage of the parcel. However, where the end of a parcel water frontage line abuts the water frontage line of another parcel, the angle at which such two water frontage line ends meet shall be bisected and apportioned equally between the two waterfront parcels. In that event, no marine improvement shall extend beyond the bisector of the angle.
j.
No marine improvement that projects more than six feet from the water frontage line of the property shall be permitted to be outside of the marine improvement area for a waterfront parcel. The boundaries and dimensions of the marine improvement area shall be determined as follows:
i.
End parcels.
(a)
The access width of the waterway shall be calculated by subtracting from the calculated waterway width twice the maximum distance that a marine improvement along one side of the waterway could lawfully project as determined pursuant to Section 5.4.3.A.2. For purposes of this section, the access width of a waterway shall be that portion of the waterway width in which no marine improvement may lawfully be constructed.
(b)
The waterway access ratio shall be calculated by dividing the waterway access width by the calculated width of the waterway.
(c)
The waterway center point (WCP) is a point on the centerline of the canal 30 feet from the water's end. All marine improvement area lines and intersections are calculated and plotted from the WCP. See Diagram 5.4.3.B.
(d)
Offset points for the parcel are determined as follows: If the parcel has 80 feet or more of water frontage line, then the offset points shall be located 12 feet from each end of the water frontage line of the parcel. If the parcel has more than 40 feet, but less than 80 feet of water frontage line, then the offset points shall be located in from the ends of the water frontage line the distance (in feet) resulting from the following formula: (Feet of Water Frontage Line - 40) x 0.3. If the parcel has 40 feet or less of water frontage line, then the ends of the parcel's water frontage line shall be the offset points. See Diagram 5.4.3.C.
(e)
From the WCP, plot a line having the same relationship to the WCP as the water frontage line has to the center of the canal end, but with all distances reduced in size by the waterway access ratio. This line is the offset line for the parcel. See Diagram 5.4.3.D.
(f)
The marine improvement area is that area enclosed by the water frontage line, the offset line, and lines connecting the ends of the offset line to corresponding offset points. See Diagram 5.4.3.E.
ii.
Adjacent parcels. The marine improvement area for an adjacent parcel shall be calculated in the same manner as that for an end parcel except as follows:
(a)
Adjacent parcel that abuts an end parcel with 40 feet or less of water frontage line. On the side of the adjacent parcel that abuts an end parcel with 40 feet or less of water frontage line, the side boundary of the marine improvement area shall constitute the side boundary of such adjacent parcel's marine improvement area. See Diagram 5.4.3.I. & J.
(b)
Adjacent parcel that abuts an end parcel with more than 40 feet of water frontage line. On the side of the adjacent parcel that abuts an end parcel with more than 40 feet of water frontage line, the side boundary of the adjacent parcel's marine improvement area shall be determined by drawing a line from the end of the subject adjacent parcel's water frontage line (on the same side as the subject end parcel) to the nearest terminus point of the subject end parcel's offset line and passing through the adjacent parcel's offset line. The side boundary shall be that portion of the aforesaid line between the end of the adjacent parcel water frontage line and the parcel's offset line. However, in no event shall the side boundary extend beyond the bisector of the angle formed where the adjacent parcel's water frontage line abuts the end parcel's water frontage line. The bisector shall be extended into the waterway the maximum distance a marine improvement could lawfully project within the marine improvement area. See Diagram 5.4.3.G.
iii.
Parcels on lakes and basins (excluding outside corner parcels). A waterfront parcel shall be deemed to be on a lake or a basin if the parcel abuts a body of water identified as a lake or a basin in the City's GIS database. Except for outside corner parcels, all waterfront parcels on lakes or basins shall be categorized as corner parcels, adjacent parcels, or end parcels. A corner lake or basin parcel shall be a parcel that either touches or is on both sides of an interior corner of a lake or basin. In other words, a corner lake or basin parcel may be one with a water frontage line that is V-shaped because it physically runs along the edge of the lake or basin, turns at the corner, and continues along the edge of the lake or basin, or it may be a parcel the water frontage line of which ends at a corner of the lake or basin where another side of the lake or basin begins, or it may be a parcel that is angled in such a way that each end of its water frontage line touches a different side of the lake or basin. Also, an adjacent lake or basin parcel shall be a parcel that is on a lake or basin and that abuts at least one corner parcel. All other parcels on lakes or basins and that are neither corner parcels nor adjacent parcels shall be treated as end parcels.
iv.
The marine improvement area for parcels on lakes or basins shall be calculated as follows:
(a)
For an end parcel, the side of the lake or basin upon which the parcel is physically located shall be deemed to be the end of the lake or basin and the sides of the lake or basin shall be deemed to be the sides of the lake or basin running roughly perpendicular to the end of the lake or basin and to the left and to the right of the parcel (when facing the lake or basin). For purposes of this Section, the waterway access ratio for all end lake and basin parcels shall be one. In addition, the WCP for end lake or basin parcels shall be 40 feet into the lake or basin as measured perpendicularly to the lake or basin end from the center of the lake or basin end. All marine improvement area lines and intersections are calculated and plotted from the WCP. The remainder of the marine improvement area boundary calculations for end lake or basin parcels shall be the same as those performed with respect to canal end parcels.
(b)
For corner lake or basin parcels, the configuration of the marine improvement area shall be determined by the physical configuration of the particular corner parcel. With respect to a corner parcel the water frontage line of which lies entirely on one side or end of a lake or basin, but terminates at the corner of the lake or basin where the other side of the lake or basin begins, the marine improvement area shall be calculated in the same manner as for end lake or basin parcels except that the side boundary of such marine improvement area (on the side where the corner of the lake or basin is located) shall be formed by a line bisecting the angle of such corner and extending to the offset line of the marine improvement area. See Diagram 5.4.3.K.
(c)
With respect to a corner parcel that is angled so that each end of its water frontage line is on a different side of the lake or basin or for a corner parcel with a V-shaped water frontage line, the marine improvement area configuration shall be determined as follows: First, calculate the waterway access ratio for each side of the lake or basin in the same manner as the waterway access ratio for a canal is determined. Then measure the distance from the center of each side of the lake or basin touched by the corner property to the end of the water frontage line, or to the offset point, if any, on such side of the lake or basin. Multiply each of the aforesaid distances by the waterway access ratio for the relative side of the lake or basin to obtain the length of the waterway line for each side of the lake or basin. Plot the waterway line from the center of the side of the lake or basin for which it was calculated to a point that is 30 feet waterward from the water frontage line. The offset line for a corner parcel marine improvement area is formed by connecting the two foregoing points. The marine improvement area for the corner parcel is that area enclosed by the parcel water frontage line, the offset line, and lines connecting the ends of the offset line to the corresponding offset points for the parcel, if any, or to the ends of the water frontage line. See Diagrams 5.4.3.L & M.
(d)
For adjacent lake or basin parcels, the marine improvement area shall be calculated in the same manner as that for end lake or basin parcels except as follows: With respect to an adjacent lake or basin parcel that abuts a corner parcel with 40 feet or less of water frontage line, the side boundary of the corner parcel marine improvement area (on the side where it abuts the adjacent parcel) shall form the side boundary of the adjacent parcel marine improvement area. With respect to an adjacent lake or basin parcel that abuts a corner parcel with more than 40 feet of water frontage line, the side boundary of the adjacent parcel (on the same side as the subject corner parcel) shall be determined by drawing a line from the end of the adjacent parcel water frontage line to the nearest terminus point of the subject corner parcel offset line and passing through the adjacent parcel offset line. The side boundary of the adjacent parcel shall be that portion of the aforesaid line between the end of the adjacent parcel waterfrontage line and such parcel's offset line. See Diagram 5.4.3.M
(e)
If the owner of a waterfront parcel on a lake or basin is aggrieved by the interpretation or application of this Section to such parcel due to the physical configuration of the particular lake or basin, then the Director may interpret and apply the provisions of this Section so as to alleviate the hardship resulting from the configuration of the lake or basin and so as to enable the waterfront parcel a reasonable marine improvement area.
4.
In the event a significant portion of a waterway is not developable on one side due to ecological or other constraints, a marine improvement on the opposite side of the unnavigable portion shall be permitted to project into the waterway up to 50% of the calculated waterway width or 40 feet, whichever is less, as measured from the waterfrontage line. See Diagram 5.4.3.N
5.
All properties adjacent to bridges shall be reviewed individually by the city to determine what, if any, marine improvement may project from that property. Factors to be considered in making this determination include, but are not limited to, public safety and the impact of a planned marine improvement on navigability.
B.
Maximum dock surface area.
1.
For parcels with more than 40 feet of waterfrontage, the maximum deck surface area coverage shall be calculated as follows: the linear feet of water frontage of the parcel minus 24 feet times one-half times the linear feet of the maximum projection into the waterway (25% of the calculated width of the waterway or 40 feet, whichever is less).
Maximum Dock Surface Area = (Linear Feet of Waterfrontage - 24) * (1/2 Maximum Projection)
Maximum Projection = 25% of width of waterway or 40 feet whichever is less
2.
For parcels with 40 feet or less of waterfrontage, the maximum deck surface area shall be calculated as follows: the linear feet of waterfrontage of the parcel times one-quarter times the linear feet of the maximum projection into the waterway (25% of the calculated width of the waterway or 40 feet, whichever is less).
Maximum Dock Surface Area = Linear Feet of Waterfrontage * (1/4 Maximum Projection)
Maximum Projection = 25% of width of waterway or 40 feet whichever is less
C.
Diagrams.
(Ord. 80-21, § 4, 11-3-2021)
Owners of adjoining waterfront parcels may adjust their abutting marine improvement area boundaries and offset requirements by entering into a written joint use agreement, provided the marine improvements are connected. A captain's walk does not constitute a connection for requiring a joint marine improvement. All limitations regarding the maximum area of marine improvements shall apply to each property and the maximum marine improvement area allowed for each parcel shall not be combined or modified in any way so as to increase the maximum marine improvement area allowed for either parcel. Marine vessels or boat canopies when secured in any way to a joint marine improvement may extend beyond the end of one of the waterfront parcels involved at the point where such parcel abuts the other parcel sharing the marine improvement. However, no marine vessel (or any part thereof) shall extend beyond the outer ends of the water frontage of the two waterfront parcels except as provided in § 5.4.2.G. The joint use agreement shall, at a minimum, comply with the following requirements.
A.
The agreement shall contain the name(s) and current home address(es) of both property owners.
B.
The agreement shall identify the waterway upon which the subject parcels are located and shall identify the waterfront parcels involved by legal description and by STRAP number. The agreement shall also include a signed and sealed survey of the subject adjoining parcels.
C.
The agreement shall include a drawing of the proposed marine improvement(s) to be constructed, showing the design and dimensions of the marine improvement(s), and where the marine improvements will project from the parcels.
D.
The agreement shall identify those areas that would be subject to access (ingress and egress) easements in conjunction with the joint marine improvement. Such easement(s) shall identify by legal description the property to which the easement attaches and shall be irrevocable except with the written consent of the city. The rights of each party with respect to such easement(s) shall run with the title to the respective parcels. A drawing identifying the easements shall also be included with the agreement.
E.
The agreement shall identify the responsibilities of each of the parties for the construction and maintenance of the facilities. However, identification or division of responsibilities between parties in the agreement shall not affect the ability of the city to enforce any and all provisions of its Code of Ordinances or Land Development Codes against the property owner(s) of the joint marine improvement, jointly and severally.
F.
The agreement shall state that the parties understand and agree to abide by all applicable federal, state, and local regulations pertaining to the construction, maintenance, and use of the facilities.
G.
The agreement shall run with the land and be binding upon the parties, their successors, heirs, and assignees and it shall provide that it may not be rescinded or amended without the written consent of the city.
H.
The parties to the agreement shall record the agreement, at their own expense, in the public records of Lee County. The agreement shall satisfy all requirements for recording, including those contained in the Florida Statutes. No permit for the construction of a joint marine improvement or for the erection or installation of a boat canopy on a joint marine improvement shall be issued by the city until the parties have first provided to the city a copy of the fully executed agreement and evidence of recording that is satisfactory to the city, in its sole discretion.
I.
Prior to execution and recording of the agreement, the parties shall submit a draft of the proposed agreement to the Community Development Director for review and comment.
(Ord. 80-21, § 4, 11-3-2021)
Editor's note— Ord. 80-21, § 4, adopted Nov. 3, 2021, repealed § 5.4.5, which pertained to quays and mooring piles and derived from the Original Land Development Code.
A.
Lifts: An electrical permit is required to install a lift on a dock.
B.
Davits:
1.
The minimum side setback for davit installation shall be five feet from the side lot line to the center of the davit base.
2.
Davits, including swinging lifts when extended over the water, may not extend further than 25% into the waterway or 30 feet whichever is less.
3.
Overhead hoists, davits, or machinery shall not exceed eight feet above mean high water when not in use.
C.
Floating docks and lifts:
1.
For dimensional requirements refer to Section 5.4.3. above.
2.
A floating dock or lift must be anchored in place so as not to impede the use of neighboring waterfront property.
(Ord. 80-21, § 4, 11-3-2021)
A.
No overhead structure shall be constructed on any dock other than an approved boat canopy or sun shelter. Sun shelters shall be erected or installed on docks only in accordance with Section 5.2.10. of this article.
B.
Boat canopies are permitted to be erected or installed on marine improvements for the purpose of protecting a vessel from the elements only in accordance with the following:
1.
The support(s) and frame(s) of a boat canopy shall be constructed of a corrosion-resistant material, with a diameter or width of not less than one and one-quarter inches. Boat canopy supports shall be arranged in an open design so as to allow visibility through the sides with openings no smaller than four feet in any dimension. No boat canopy support or frame shall be of a solid or opaque design so as to create a wall. No boat canopy shall have wooden framing or supports. No shutter roll-up design shall be permitted.
2.
The canopy shall be fabric or a material which can be rolled and folded without damage. The canopy shall be attached to the boat canopy supports or frames in such a manner that it detaches in a wind load of 70 mph or greater.
3.
The boat canopy shall not extend horizontally more than 30 inches over any dock or seawall to which the canopy is attached. Canopies attached to marine improvements that are built to the maximum projection, may extend up to 30 inches beyond the structure.
4.
No boat canopy shall exceed 40 feet in length or 18 feet in width.
5.
Boat canopies, their supports, and frames shall be maintained in good repair at all times. No canopy, canopy support, or frame shall be allowed to fall into disrepair or to become dilapidated, structurally dangerous, or unsafe. In the event a boat canopy, canopy support, or frame falls into disrepair, it shall be the responsibility of the owner of the waterfront parcel to remove the offending structure.
6.
Only one canopy may be permitted per parcel. On single-family residential properties which have a water frontage length greater than 80'-0", a second boat canopy is permitted provided that the maximum combined area of all boat canopies permitted on the property does not exceed nine times the length of the property's water frontage, or 1,500 square feet, whichever is less.
7.
No boat canopy, when measured at its highest point, shall extend more than 20'-0" from the Mean High Water Line of the waterway or 16'-0" above the grade of the decking of the attached marine improvement, whichever is less.
8.
The boat canopy shall be attached to the boat canopy side supports or frames so that at least 75% of the area of each side of the boat canopy structure is left open and uncovered.
9.
Except as otherwise provided herein for boat canopies attached to joint marine improvements, no part of any boat canopy shall be located less than 12 feet from the ends of the water frontage line unless the prior written consent of the affected abutting property owner(s) is obtained. Such consent shall be recorded in the public records of Lee County, at the expense of the property owner(s), shall be irrevocable by the affected abutting property owner, and shall be binding on the heirs, tenants, successors in interest and/or assigns of the affected property owner unless the owner of the property with the boat canopy that is located less than 12 feet from the ends of the water frontage line consents in writing to the revocation and removes or relocates the boat canopy so as to comply with all applicable requirements of this section. The owner of the parcel containing the marine improvement to which the boat canopy is attached shall be responsible for providing the aforesaid written consent to the city prior to obtaining a permit for the construction or erection of a boat canopy.
10.
Second boat canopies on single-family residential properties that obtained a deviation prior to April 2, 2015, to lawfully construct a second boat canopy, shall be deemed legal and conforming and, if damaged or removed, may be repaired or replaced.
11.
No boat canopy shall be located in or over a public waterway unless it is attached to a marine improvement or seawall.
12.
With respect to properties on which multi-family residential uses are located, no more than one boat canopy for each residential unit lawfully existing on the property shall be permitted.
(Ord. 51-19, § 1, 11-18-2019; Ord. 80-21, § 4, 11-3-2021; Ord. 56-24, § 1, 11-13-2024)
A.
Saline or brackish water; mandatory seawalls. Except as provided in Subsection A.1., all parcels having frontage or direct and immediate access to frontage on any saline, brackish, or tidally influenced canal or other body of water within or bordering the boundaries of the city are required to have constructed on them, at the owner's expense, a seawall bulkheading the entire frontage exposed to contact with the water. Seawalls shall be structurally maintained at owner's expense so as not to cause a nuisance or hazard to safety.
1.
Alternative shoreline stabilization: Parcels owned by the City of Cape Coral, or for projects in which the City is serving as the permit applicant, where the parcel has 85 feet or more water frontage, are required to have constructed on them either a seawall bulkhead or alternative shoreline stabilization along the water frontage. Proposed plans shall be reviewed and may be approved by the Public Works Director for a seawall bulkhead or alternative shoreline stabilization. Notwithstanding the foregoing, all applicable permits from local, state, and federal agencies shall be obtained prior to the commencement of construction.
B.
Fresh or non-saline water; mandatory seawalls or alternatives to vertical bulkheads. All parcels having frontage or direct and immediate access to frontage on any freshwater or non-tidal canal or other body of water within or bordering the boundaries of the city are required to have constructed on it, at the owner's expense, a seawall bulkheading the entire frontage exposed to contact with the water or alternatives to vertical bulkheads as specified in the City of Cape Coral Engineering Design Standards. Seawalls or their alternative shall be structurally maintained at owner's expense so as not to cause a nuisance or hazard to safety. The provisions of this Section shall not apply to any parcels adjacent to or contiguous with any drainage ditch, canal, pond, or lake within any public or private golf course or public park.
C.
Unexcavated platted waterway right-of-way.
1.
The original developer of Cape Coral dedicated waterways on the Plat but did not excavate certain waterways to the full width indicated on the Plat, resulting in dry land existing between a platted lot line and the water. For purposes of this Section, "unexcavated platted waterway right-of-way" shall mean land lying between a platted lot line and the actual water part of any platted waterway. In the event that a person desires to place, install, or construct a seawall, alternative to vertical bulkhead, marine improvement, or any combination thereof, upon any unexcavated platted waterway right-of-way, such person may apply for and, subject to the approval of the City, receive an approval for a vacation of the unexcavated platted waterway right-of-way pursuant to Section 3.4.5, or alternatively, enter into an agreement with the City as provided in this section.
2.
Written agreement required. It shall be unlawful for any person to place, install, or construct a seawall, alternative to vertical bulkhead, marine improvement, or any combination thereof, upon an unexcavated platted waterway right-of-way, without first entering into a written agreement with the City authorizing such work. The agreement to encroach into an unexcavated platted waterway right-of-way is intended as an alternative to the vacation of the subject right-of-way. Notwithstanding the foregoing, said agreement requirement is not intended to apply to seawalls, alternatives to vertical bulkheads, and marine improvements placed, installed, or constructed on or projecting from a platted lot line, directly into a platted waterway.
3.
Application. An abutting property owner may submit an application to enter into an agreement with the City to authorize the placement, installation, or construction of a seawall, alternative to vertical bulkhead, marine improvement, or any combination thereof upon an unexcavated platted waterway right-of-way on a form provided by the City, and shall include all required information as specified in the application, including, but not limited to:
a)
The legal description of the property that abuts the subject right-of-way, prepared by a professional surveyor licensed in the state of Florida within one year of the date of the application hereunder;
b)
A survey showing the boundaries and features of the subject right-of-way to be subject to encroachment(s), prepared by a professional surveyor licensed in the state of Florida within one year of the date of the application hereunder;
c)
A site plan drawn to scale and showing the location and dimensions of the proposed seawall, alternative to vertical bulkhead, and any marine improvements to be placed in the subject right-of-way;
d)
Proof of ownership of the subject property abutting the platted waterway right-of-way:
e)
Any additional information reasonably required by the City; and
f)
A non-refundable application fee, as may be established by resolution of the City Council.
4.
Review criteria. In determining whether an abutting property owner may place, install, or construct a seawall, alternative to vertical bulkhead, and marine improvements upon an unexcavated platted waterway right-of-way, the City shall consider factors that include, but are not limited to, the following:
a)
Effect on navigational safety;
b)
Effect on existing and proposed public utilities, powerlines, and other right-of-way improvements;
c)
Effect on surface waters and drainage patterns;
d)
Whether the proposed seawall, alternative to vertical bulkhead, and marine improvements would interfere with any infrastructure or maintenance use by the City or any utility company; and
e)
Whether the proposed marine improvements meet the requirements set forth in Chapter 4 of this article.
5.
Approval. The City Manager, or the City Manager's designee, is authorized to approve an application to encroach into an unexcavated platted waterway right-of-way and enter into a written agreement with the abutting property owner upon a determination that the proposed improvements will not have an unreasonably negative impact on the review criteria identified in Section 5.4.8.C.4., or the proposed marine improvements do not meet the requirements of Chapter 4. The form of said agreement shall be approved by the City Attorney's Office.
a)
Unless expressly prohibited by an approved agreement with the City pursuant to this Subsection C., a property owner abutting an unexcavated platted waterway right-of-way may use such area to place, install, construct, maintain, and operate any surface improvements, including, but not limited to, sidewalks, walkways, curbing, landscaping and fencing, but excluding buildings, pools or any structures with a foundation.
b)
Any approval to encroach into the platted waterway right-of-way shall not negate the requirement to obtain all other permits required by applicable governmental agencies, including, but not limited to, the City of Cape Coral and the U.S. Army Corps of Engineers.
c)
Any approval granted by the City is to be deemed solely as a right to encroach into the platted waterway right-of-way, and no other property interest is acquired by the property owner.
d)
Any approval granted by the City to the abutting property owner is made with the express condition that neither the owner or the owner's heirs, successors, assignees or any person claiming under or through them shall acquire any right superior to the City's right in such platted waterway right-of-way, whether by lapse of time or otherwise.
e)
The City shall record the agreement, at the abutting property owner's expense, in the public records of Lee County, Florida. The agreement shall run with the land and be binding upon the parties thereto, their heirs, successors, and assignees, and it shall provide that it may not be rescinded or amended in any manner without the written consent of the City.
6.
Denial. An application shall be denied by the City Manager, or the City Manager's designee, if the proposed improvements will have an unreasonably negative impact on the criteria in Section 5.4.8.C.4. or the proposed marine improvements do not meet the requirements of Chapter 4. If the City Manager, or the City Manager's designee, denies the application to encroach into a platted waterway right-of-way, the applicant shall have ten calendar days from the date of the notice of denial to appeal the decision to the City's Special Magistrate. Such appeal to the City's Special Magistrate shall be treated as an Administrative Appeal and follow the procedures provided in Section 3.1.14.B. of this Code.
7.
Maintenance and removal. The person who owns the property abutting the unexcavated platted waterway right-of-way in which a seawall, alternative to vertical bulkhead, marine improvements, or surface improvements are located or installed, shall be responsible for repairing any damage to approved encroachments in the right-of-way. Such person shall also be solely responsible to maintain the seawall, alternative to vertical bulkhead, marine improvements, surface improvements, and the subject unexcavated platted waterway right-of-way area in good condition so as to present a healthy, neat, and orderly appearance. Maintenance of the unexcavated platted waterway right-of-way area shall include, but not be limited to, grass mowing and erosion control. The failure to maintain the seawall, alternative to vertical bulkhead, marine improvements, and surface improvements shall constitute a violation of this section and may be grounds for removal by the City of such improvements from the right-of-way, at such abutting property owner's sole expense. The failure to maintain the unexcavated platted waterway right-of-way area shall constitute a violation of this section.
In the event that the City, during the course of exercising its rights over an unexcavated platted waterway right-of-way, damages a seawall or alternative to vertical bulkhead built by the abutting property owner pursuant to an agreement hereunder, the City shall repair or replace such seawall or alternative to vertical bulkhead at the City's sole cost and expense. The repair or replacement of any marine improvements and surface improvements shall not be the responsibility of the City. The abutting property owner assumes all liability and responsibility to repair or replace marine improvements and surface improvements built on an unexcavated platted waterway right-of-way, as permitted in the agreement with the City.
Any seawall, alternative to vertical bulkhead, marine improvement, or surface improvement placed, installed, or constructed upon an unexcavated platted waterway right-of-way without the express written permission of the City shall be subject to removal by the City in its sole discretion. The City may also, in its sole discretion, require the removal of any seawall, alternative to vertical bulkhead, marine improvements, or surface improvements located or installed in an unexcavated platted waterway right-of-way, for utility maintenance, safety, or any other reason. In such instance, the City Manager, or the City Manager's designee, shall give 60 days written notice to the abutting property owner that the agreement is canceled. Mailing of such notice by U.S. Mail to the current owner, at the address shown in the records of the Lee County Property Appraiser or such other address provided to the City, shall constitute prima facie evidence of sufficient notice in accordance with this section. Upon such notice of cancellation, the owner shall, within 90 days, remove from the right-of-way all items placed in it at such owner's sole expense. The failure to timely remove the seawall, alternative to vertical bulkhead, marine improvements, and surface improvements upon such notice by the City shall constitute a violation of this section. If the property owner fails to remove such items and if the City deems it to be in the best interest of the public health, safety, and welfare, the City may remove the items and seek reimbursement from the abutting property owner for the cost of removal. The authorization in this section for the removal of items from the right-of-way shall be construed as supplementary to any other means of enforcement available to the City and shall not be construed so as to negate the authority of the Code Compliance Special Magistrate to hear and adjudicate appropriate cases.
Alternatively, and in the City's sole discretion, the City may elect to remove such items at the City's expense.
In the event that the Agreement is cancelled or otherwise terminated by the City, the City shall record a Release of Agreement in the public records of Lee County, Florida.
(Ord. 51-19, § 2, 11-18-2019; Ord. 42-21, § 2, 6-2-2021; Ord. 34-24, § 1, 6-5-2024; Ord. No. 31-25, § 3, 6-4-2025)
A.
Handrails shall not exceed 42 inches in height (as measured from the deck of the structure). Pilings or posts used to support handrails may exceed 42 inches in height in accordance with § 5.4.10.G. A minimum distance of 30 inches must be maintained between pilings or posts used to support handrails.
B.
Interior handrail members (pickets, balusters, and rungs) must be parallel to each other and may not intersect. A minimum of four inches of open space must be maintained between interior handrail members. The actual dimensions of any handrail member shall not exceed two inches by six inches. Alternative handrail designs may be approved at the discretion of the Building Official, upon finding the alternate design meets the intent of this section.
(Ord. 51-19, § 3, 11-18-2019)
A.
All wooden pilings used in connection with marine improvements subject to the terms of this section shall be made of pressure treated wood. Such pilings shall conform to the specifications contained in ASTM (American Society for Testing of Material) D25-88 and shall be treated with preservatives meeting standards of AWPA (American Wood Preservers Association) Standard P-5. The minimum retention of preservative for such wooden pilings shall be 2.5 pounds per cubic foot (p.c.f.) of chromated copper arsenate (CCA) in the zone 0 to 1.5 inches from the surface of the piling and 1.5 pounds per cubic foot (p.c.f.) in the zone 1.5 to 2 inches from the surface of the piling.
B.
All pilings made of precast concrete and used in connection with marine improvements subject to the terms of this section shall have a minimum concrete strength of 3,000 pounds per square inch (psi) at 28 days and shall be at least eight inches square in cross section.
C.
All non-prestressed concrete pilings shall have at least four #5 epoxy-coated steel reinforcing bars the entire length of the piling and have at least two inches of concrete cover.
D.
All wooden pilings used for the support of a marine improvement or as framing for a marine improvement shall have a minimum classification of eight-inch butt diameter.
E.
All wooden pilings used for support of boat lifts, or other structures supporting marine vessels, shall conform to the specifications of the manufacturer of the boat lift or other structure supported by such wooden piling(s). However, in no event shall any wooden pilings used for support of boat lifts or other structures supporting marine vessels be less than eight inches in butt diameter.
F.
All wood that is located below mean high water or that is in contact with the water in any way shall be treated to two and one-half per cubic foot (p.c.f.) CCA. All wood that is located above mean high water shall be treated to four-tenths per cubic foot (p.c.f.) CCA, except that decking may be treated to a minimum of twenty-five-one-hundredths per cubic foot (p.c.f.) CCA.
G.
The elevation of pilings shall not exceed ten feet above the seawall cap or, if no seawall exists, 13 feet above mean water level.
H.
The elevation of the decking of a marine improvement shall not exceed two feet above the seawall cap, or if no seawall exists, five feet above mean water level. For marine improvements located in the Caloosahatchee River, and for marine improvements, located in canals, within 300 feet of the platted shoreline of the Caloosahatchee River, the elevation of the decking shall not exceed four feet above the seawall cap, or if no seawall exists, seven feet above mean water level.
I.
All pilings and/or mooring posts shall be offset a minimum of 3 feet from any storm drain outfall pipe. Such measurement shall be made from the outside edge of the outfall pipe to the center of the piling or mooring post.
J.
The minimum nominal dimensions of stringers and headers shall be two inches by eight inches. Stringers shall be supported by through bolts to pilings or by headers through-bolted to pilings with machine bolts or carriage bolts. Such machine bolts or carriage bolts shall have a diameter of not less than one-half inch. Machine bolts also shall have a suitable washer under both head and nut while carriage bolts shall have a suitable washer under the nut only. Headers shall be used below center stringers for support.
K.
Cross-bracing shall be either through-bolted with machine bolts or carriage bolts with a minimum diameter of one-half inch or fastened with lag bolts with a minimum diameter of one-half inch and a minimum length of six inches used in conjunction with a suitable washer under the head only.
L.
All fasteners shall be either stainless steel or hot dipped galvanized steel or of a substance which, in terms of corrosion-resistance, is at least equal to stainless steel or hot dipped galvanized steel. The Building Official shall determine whether a proposed fastener is equivalent to either stainless steel or hot dipped galvanized steel in terms of corrosion-resistance.
M.
All manufactured, re-manufactured, modified boat lifting devices and associated material or structural supplements, shall be certified by a Florida registered professional engineer. The capacity of the boat lift shall be affixed to the lift by the manufacturer and shall be affixed in a position as close as practicable to the lift controls.
N.
Except as otherwise provided herein, all pilings within six feet of the seawall face shall be driven a minimum of four feet into the submerged bottom of the waterway. Except as otherwise provided herein, pilings more than six feet from the seawall face shall be driven a minimum of six feet into the submerged bottom of the waterway. If pilings cannot be set to the depth provided herein, then the use and installation of cross bracing and/or tie backs shall be required to ensure the structural integrity of the structure. All pilings, whether wooden or concrete, shall be installed using equipment that is suitable to accomplish the task effectively. However, all freestanding mooring posts or other pilings shall be driven a minimum of eight feet into the submerged bottom of the waterway.
O.
Pilings shall be spaced in relation to stringer lumber size. However, when a single stringer of nominal dimensions less than or equal to two inches by eight inches is used, the space between any two consecutive pilings shall not exceed ten feet and eight inches (or 128 inches) when measured from the center of one piling to the center of the next consecutive piling. Any stringer splices shall occur within three feet of pilings. Scabs shall be not less than six feet in length and shall overlap the splice by not less than three feet and, if possible, bolted to the piling. Scabs shall not be used past the next to last piling in a row of pilings. Scabs shall be fastened using not less than six 20 penny, hot dipped galvanized steel nails per side. Stringers used for decking shall be spaced not more than 30 inches apart when measured from the center of one stringer to the center of the next consecutive stringer.
P.
The minimum nominal thickness of all wooden decking shall be two inches. Decking shall be either nailed into place by means of not less than 12d nails or screwed into place by means of not less than three-inch screws. The fastener pattern for all wooden decking shall be arranged so as not to cause a continuous split in excess of 18 inches in length. Spacing between wooden decking shall not exceed one-half inch on docks projecting into canals or one inch on docks projecting into the Caloosahatchee River at the time of installation.
Q.
Crossbracing shall be provided on every two closest adjacent pilings where water depth is more than eight feet from mean high water. Such cross bracing shall be oriented between 30 degrees and 45 degrees to the vertical. The actual dimension of any crossbracing shall be not less than two inches by six inches.
R.
All docks permitted under this section that project from a parcel with a seawall shall have a ladder extending from the dock into the waterway. No ladder extending from a dock into a waterway shall be made of wood.
1.
If one or more metal ladders are used in conjunction with a marine improvement, such ladders shall be made of stainless steel, anodized aluminum, or an equally corrosion-resistant material to be approved by the Building Official.
2.
If one or more plastic ladders are used in conjunction with a marine improvement, such ladders shall be constructed of a stabilized polymer plastic material resistant to degradation when exposed to the daily stress of sunlight, heat, and water.
3.
If a non-extendable ladder is used in conjunction with a marine improvement, such ladder shall be located so as to reach at least three feet under the surface of the water at low tide or to the bottom of the waterway, whichever is less.
4.
If an extendable ladder is used in conjunction with a marine improvement, such ladder shall be required to have the ability to extend to a point at least three feet under the surface of the water at low tide or so as to reach to the bottom of the waterway, whichever is less. Extendable ladders shall be of a type that is capable of being pulled down by a person in the water without the use of tools.
S.
Amber reflectors or amber reflective material with at least four square inches of reflective surface shall be placed on all freestanding mooring posts or other freestanding pilings as well as on the outside end pilings of all docks which project into a waterway. For purposes of this section, marine improvements which are "U"-shaped, "V"-shaped, "J"-shaped, or which otherwise have more than one section of the marine improvement projecting into the waterway shall have such reflectors or reflective material located on the outside end pilings of each section of the marine improvement which projects into the waterway. Such reflectors shall be located so as to be visible to vessels approaching in the waterway from any direction.
T.
This section shall control the regulation, construction, and maintenance of marine improvements within the City of Cape Coral. If any part of this section conflicts with any other codes adopted by the city, the most restrictive provision shall apply. Furthermore, all such marine improvements shall conform to all requirements of the National Fire Code, this section, and other applicable law.
A.
In accordance with Sections 3.3.6. and 3.4.2. of this Code, deviations from the strict application of the requirements of this chapter may be made as follows:
1.
Administrative deviations.
a.
Maximum length or width of a boat canopy. Deviations of up to a 10% increase in either the maximum length or width of the boat canopy requirements of this chapter may be approved by the Director in accordance with Section 3.3.6., provided that such deviation will not encroach into the side setbacks or project farther into the waterway than allowed per Section 5.4.7.B.3., will not be contrary to the public interest, and will be in harmony with the general intent and purpose of this section.
b.
In determining whether to approve such a deviation, factors the Director shall consider include, but are not limited to, the design, size, and location of the proposed larger boat canopy; the effect of such larger boat canopy on the waterway in which it is proposed to be located; and the effect of such larger boat canopy on the use and enjoyment of surrounding properties.
2.
Deviations requiring a public hearing.
a.
Deviations from the requirements of this chapter may be approved by the Hearing Examiner in accordance with Section 3.4.2., provided that the deviation will not be contrary to the public interest and will be in harmony with the general intent and purpose of this section.
b.
In determining whether to approve a deviation request related to a boat canopy, factors the Hearing Examiner shall consider include, but are not limited to, the design, size, and location of the proposed boat canopy; the effect of such boat canopy on the waterway in which it is proposed to be located; and the effect of such boat canopy on the use and enjoyment of surrounding properties.
c.
In determining whether to approve a deviation request related to marine improvements other than a boat canopy, factors the Hearing Examiner shall consider include, but are not limited to, the effect the proposed deviation would have on the navigability of the waterway involved; whether the proposed deviation would infringe upon the use of neighboring properties or any extant marine improvements in the subject waterway; whether there are special conditions related to the subject property or waterway which justify the proposed deviation; and whether conditions exist that are not the result of the applicant and which are such that a literal enforcement of the regulations involved would result in unnecessary or undue hardship. Subject to these standards and criteria, the Hearing Examiner shall approve only the minimum deviation from the provisions of this chapter necessary to avoid the unnecessary or undue hardship required herein.
(Ord. 80-21, § 4, 11-3-2021)
This section is established to provide general landscape regulations, to improve the appearance of certain setback and yard areas, including off-street vehicular parking, open lot sales and service areas, and to protect and preserve the appearance, character, and value of the surrounding neighborhoods. The principles of the Florida-Friendly Landscaping Program with regard to planning and design, soil improvement, efficient irrigation, limited turf areas, mulches, drought tolerant plants, and appropriate maintenance are the basis for the principles in this section and should be used as guidance in all new construction and landscape renovations so as to provide the most green with the least water and create a landscape that can survive largely undamaged in case of short term water restrictions.
The city strongly encourages adherence to the Florida-Friendly Landscaping Program that includes the following principles:
A.
Right plant, right place. Plants selected to suit a specific site will require minimal amounts of water, fertilizer and pesticides.
B.
Water efficiently. Irrigate only when lawn and landscape need water.
C.
Fertilize appropriately. Less is often better. Over-use of fertilizer can be hazardous to your yard and the environment.
D.
Mulch. Maintaining a layer of mulch will help retain soil moisture, prevent erosion and suppress weeds.
E.
Attract wildlife. Plants in private yards that provide food, water and shelter can conserve Florida's diverse wildlife.
F.
Manage yard pests responsibly. Unwise use of pesticides can harm people, pets, beneficial organisms, and the environment.
G.
Recycle yard waste. Grass clippings, leaves, and yard trimmings recycled onsite provide nutrients to the soil and reduce waste disposal.
H.
Reduce stormwater runoff. Water running off from private yards can carry pollutants such as soil, debris, fertilizer, and pesticides that can adversely impact water quality.
I.
Protect the waterfront. Waterfront property is very fragile and should be carefully protected to maintain freshwater and marine ecosystems.
A.
Except as provided under Section 5.5.4, Exemption, the landscape standards of this section shall apply to all new construction of single-family homes and duplexes, and to all other new construction requiring SDP review under Article 3. The landscape standards of this section are in addition to any landscape standards for specific land uses as established in Chapter 10, Specific Use Regulations, of this Article.
B.
Additionally, all landscape standards of this section shall apply to amendments to a site plan that would have the effect of:
1.
Increasing the total square footage of any one building or the total square footage of all buildings on a site by more than 20%;
2.
Increasing the number of buildings; or
3.
Adding any new or expanding any existing off-street parking area.
C.
The existing portion of an amended or expanded project which is demonstrated to be completely and fully in compliance with an approved landscape plan at the time of application is not required to be modified to comply with this section.
D.
All areas of an existing project affected by an amendment or expansion or those areas that are not in full compliance with an approved landscape plan are required to comply with this section.
E.
No certificate of occupancy or certificate of completion shall be issued until the Department of Community Development (DCD) has determined that the applicant has complied with all the provisions of this section and has approved the finished landscape product.
These regulations do not apply to projects located where the City Council has established specific landscape standards for a unique area of the city; unless the specific landscape standards otherwise expressly state their applicability.
If any of the landscape standards of this section conflict with any other provision of the City of Cape Coral Code of Ordinances or the LDC the provision that establishes the more specific standard governs. If neither conflicting provision establishes a more specific standard, then the more stringent provision governs unless otherwise expressly provided.
A.
Landscape plan required. A landscape plan that meets the requirements below shall be provided as required by Article 3.
B.
Landscape plan standards. Landscape plans for all projects that require a landscape plan, including Site Development Plans and Subdivision Construction Plans shall be signed and sealed by a landscape architect, or other licensed professional authorized pursuant to F.S. Ch. 481, Part II, as amended. All landscape plans shall meet the following requirements and contain the following information:
1.
Scale of not less than one-inch equals 30 feet. This requirement shall not preclude the inclusion of a smaller-scaled drawing such as a key map for the purpose of establishing the orientation of landscape plans for large sites that, because of their size, cannot be displayed on a single sheet.
2.
Zoning district and future land use classification for the subject parcel and all abutting parcels.
3.
The approximate location, quantity, diameter/caliper, botanical and common name, and native status of all heritage trees and other existing trees with a caliper of two inches or greater, and whether they are proposed to be preserved or removed. Trees to be removed, if any, shall be indicated on a separate sheet.
4.
Location, quantity, spacing, diameter/caliper, overall height (at time of planting) of proposed trees, palm trees, botanical and common name, and native status. Any existing trees located within the street right-of-way, between the closest outside edge of pavement and the subject property shall be shown.
5.
Location, quantity, spacing, container size, overall height (at time of planting) of proposed shrubs and groundcover, botanical and common name, and native status.
6.
Types, amounts, and placement of other hardscape materials such as berms and walls required by this section or Section 5.5.13, or both.
7.
A statement or plan describing compliance with the irrigation standards of these regulations.
8.
Location and type of existing and proposed utility lines, easements, electrical transformer boxes, fire hydrants or fire appliances, sidewalks, parking spaces, light poles, and stop signs.
9.
Indication of existing and proposed grades if existing vegetation is to be retained on site.
10.
Existing or proposed onsite curbing.
11.
Calculations, notes, and installation details indicating how the proposed landscaping will be in compliance with requirements of this section.
12.
Vegetation protection barricades to be used during construction, for all trees to be preserved.
13.
Safe sight distance triangles.
14.
Locations of proposed and existing off-street parking area lighting, if applicable.
15.
A note that all existing prohibited vegetation shall be removed.
Landscaping shall not interfere with or obstruct any existing or proposed pad-mounted transformer, overhead or underground utility line, utility service, fire hydrant, or fire appurtenance.
A.
Overhead power lines. Canopy tree branches or palm tree fronds within ten feet of existing overhead transmission or distribution lines, measured radially from the line, shall be subject to trimming or removal by the power company as necessary to maintain public overhead utilities in accordance with the National Electric Safety Code (NESC). No canopy trees or palm trees shall be planted closer to an overhead transmission or distribution line than as specified by the Minimum Separation Distance Between Center of Trees and Overhead Transmission or Distribution Lines indicated in Table 1. In order to avoid conflicts with power lines and avoid the need for removal or pruning that would harm or distort their natural shape, it is recommended that no canopy trees or palm trees should be planted closer to an overhead transmission or distribution line than as specified by the Recommended Separation Distance Between Trees and Overhead Transmission or Distribution Lines indicated in Table 1. The separation between a tree and an overhead transmission or distribution line shall be the distance from the center of the tree at ground level to the closest point on the ground that is within the vertical plane of an overhead transmission or distribution line at rest. A species of canopy tree or palm tree that is not listed in Tables 5.5.7.A and 5.5.7.B shall not be planted within 20 feet of existing overhead transmission or distribution lines without the prior written consent of the Department of Community Development Director.
A.
Generally. Except for trees on the Florida Exotic Pest Plant Council's list of Category I invasive exotics of those tress listed in Table 5.5.9, existing trees may be used to meet the minimum tree requirements for the site if they are indicated on the landscape plan (when a landscape plan is required), have a minimum diameter at breast height (DBH) of two inches, and are properly protected during any clearing or construction on the property.
Developers are encouraged to preserve existing heritage trees. For any site other than a single-family or duplex site, if during development or any time throughout the life of the development, regardless of change in ownership or use(s), any heritage tree is removed or damaged, it shall be replaced with a Florida native tree that meets the quality of materials standards in this article, with a minimum caliper of six inches measured at a height of 12 inches above the ground, with a height not less than 20 feet; however, this requirement shall not increase the total number of trees otherwise required for the site by more than 10%.
B.
Protection of trees during development activities. Prior to any land preparation or other development activities, a protective barrier shall be established around all trees that are not to be removed, as follows:
1.
The protective barrier shall enclose at least that area within a radius of one foot for every inch of caliper DBH around the tree.
2.
The protective barrier may encompass more than one tree, and shall be established with a barrier as follows:
a.
Posts shall be implanted in the ground deep enough to be stable and with at least three feet visible above ground.
b.
The protective posts shall be placed not more than six feet apart and shall be linked together at a height of at least three feet by rope, chain, silt fence fabric, or orange safety fence at least three feet in height, or any combination thereof.
3.
Required protective barriers and perimeter lines shall remain in place until all construction activity, except landscaping within the protected area, is terminated.
C.
Construction activity limitations.
1.
No attachment, wires (other than supportive wires), signs or permits may be fastened to any tree that is not to be removed.
2.
Landscaping activities within the area of the protective barrier (before and after it is removed) shall be accomplished with manual labor or light machinery that, if self-propelled, is not designed to bear the weight of the operator. Such light machinery may include string trimmers, walk-behind lawn mowers, or chainsaws. Except as necessary to perform landscaping activities as described above, no construction personnel shall enter the area within the protective barrier. Further, no equipment, tools, construction materials, debris of any kind, or more than six inches of soil shall be placed within the protective barrier.
3.
If fill is deposited adjacent to a protective barrier, a suitable temporary or permanent retaining structure shall be constructed to prevent siltation within the area of the protective barrier.
4.
If it can be reasonably accomplished, water, sewer, and other utility lines should be routed around the protective barrier of trees that are not to be removed. If a line cannot reasonably be routed around the protective barrier, the line shall be tunneled beneath the area and shall be offset to one side of the trunk to prevent damage to the main tap roots.
D.
Exempt trees. This subsection shall not apply to trees grown at commercial nurseries, as part of their stock.
A.
The following invasive exotic plants are prohibited and shall be removed from the development site, in its entirety. For projects developed in phases, all invasive exotic plants shall be removed from areas to be developed under future phases at the time the first or any subsequent phase is developed. Notwithstanding the foregoing, invasive exotic plants may be removed from public parks and recreational facilities in accordance with a phasing plan or an invasive exotic plant removal plan, as provided in Subsection B. below. Methods to remove and control invasive exotic plants must be included on required landscape plans, for projects that require a landscape plan. Methods of removal and control that would damage native vegetation to be preserved are prohibited. The development sites shall be maintained free from invasive exotic plants in perpetuity. For purposes of this subsection, invasive exotic plants include the following listed plants, or those plants currently listed as a Category I invasive by the Florida Exotic Pest Plant Council (FLEPPC) at the time of development:
B.
For public parks and recreational facility projects, invasive exotic plants may be removed from a site in accordance with a phasing plan or an invasive exotic plant removal plan. The plan shall be submitted to the Director for review and shall show areas of the site where exotics shall be removed in sequential fashion along with timelines for removing exotics for each area depicted on the plan. The plan shall be approved, approved with conditions, or denied by the Director. Factors to be considered by the Director in approving said plans shall include the area of the site, the estimated number of exotics, the accessibility of the exotics, and the estimated cost of removal. Such plans may be amended from time to time with the approval of the Director. A certificate of completion shall not be issued for an area shown on the plan until exotic vegetation has been removed from that particular area.
C.
The Weeping Fig (Ficus benjamina) is prohibited due to aggressive root systems unless it is maintained as a hedge with a maximum height of eight feet.
D.
City of Cape Coral and state-prohibited vegetation shall be removed from all sites prior to issuance of certificate of occupancy or certificate of completion.
(Ord. 96-20, § 1, 3-3-2021)
All plant materials required by this section shall conform to the following at the time of planting:
A.
Plant installation standards. Plant materials shall be installed in soil conditions that are conducive to the proper growth of the plant material. Soil in planting areas shall be loose, permeable, friable, and free of limestone and other construction materials, off-street parking area base material, rocks, noxious weeds, grasses, hard pan, clay, or other debris. For purposes of this section, noxious weeds are those plants listed in Section 5B-57.007, F.A.C, State Noxious Weed List, by the Florida Department of Agriculture and Consumer Services. It is recommended that such materials be removed to a depth of two and one-half feet for the well-being of plant materials. Required canopy trees, accent trees, palm trees, and shrubs shall be planted on grades not exceeding 3:1.
B.
Plant species and grade. A minimum of 50% of all required canopy trees and accent trees and a minimum of 30% of all required shrubs and groundcovers, excluding turf grass areas, shall be Florida native as defined by this section. Any plant material on the Florida Exotic Pest Plant Council's list of Category I or 2 invasive exotics, as may be amended, shall not be counted toward the required plantings in this section. The City of Cape Coral prohibits the use of any plant material on the Florida Exotic Pest Plant Council's list of Category I invasive exotics, which are not expressly prohibited by Section 5.5.9. Plant materials used in conformance with the provisions of this section shall meet or exceed the Standards for Florida No. 1, as set forth in the latest edition of "Grades and Standards for Nursery Plants" published by the State Department of Agriculture and Consumer Services, including minimum crown spread diameter, root-ball sizes, and container volumes.
C.
Tree standards.
1.
Canopy tree size. Except in the South Cape Downtown District, all canopy trees required to meet minimum requirements shall have a minimum height of ten feet and shall have a minimum caliper of two inches measured at a height of 12 inches above the ground. In the South Cape Downtown District, all canopy trees required to meet minimum requirements shall have a minimum height of 12 feet and a minimum caliper of three inches measured at a height of 12 inches above the ground at planting.
2.
Palm tree size. Palm trees required to meet minimum requirements shall have a minimum size of 16 feet overall, unless located within ten feet of a walkway, in which case they shall have a minimum of ten feet of clear trunk at planting.
3.
Accent tree size. Accent trees required to meet minimum requirements shall have a minimum height of eight feet and have a minimum caliper of one and one-half inches measured at a height of six inches above the ground at planting.
4.
Tree species mix. A mix of species shall be provided according to the overall number of trees required to be planted. Species shall be planted in proportion to the required mix. The minimum number of species to be planted is indicated in Table 2.
5.
Shrub standards. Except as otherwise provided herein, shrubs planted in residential development shall be a minimum of 18 inches in height and be in at least a three-gallon container size at time of planting. Shrubs planted in all non-residential and mixed-use development must be a minimum of 24 inches in height and be in at least a seven-gallon container size at time of planting. Shrubs required for buffer yard plantings must be a minimum of 32 inches in height and be in at least a seven-gallon container size at time of planting. Ornamental grasses may be used in lieu of 20% of shrubs required. Saw palmettos (Serenoa repens) and coonties (Zamia floridana) may be used as shrubs, provided they are 12 inches in height at time of planting.
6.
Groundcovers and sod.
a.
Groundcovers shall be planted no more than 24 inches apart for one-gallon pots or 12 inches apart for four-inch pots.
b.
Wherever used, sod shall be installed with no gaps or overlaps, so as to present a finished appearance and prohibit erosion of the planted area.
7.
Firewise landscaping. Landscaping within areas subject to wildfire hazard and should incorporate firewise landscaping techniques promulgated by the Florida Department of Economic Opportunity and the Department of Agriculture and Consumer Services.
No canopy trees, accent trees, palm trees, or shrubs required by this section shall be planted within a public drainage or utility easement without approval of the city. The city may deny approval to place landscaping materials in an easement if such would conflict with existing or proposed utilities or drainage functions. If the city approves the placement of any plant material installed to meet the requirements of this section within a public drainage or utility easement and the landscape material is removed or damaged by construction or maintenance of drainage facilities or utilities, the property owner shall replace all such plant material within 30 days of the completion of the drainage or utility work, in accordance with the following criteria:
A.
Canopy trees.
1.
If planted back in the public drainage or utility easement, the property owner shall replace the canopy tree with a tree having a minimum caliper as the removed or damaged tree; however, if the removed or damaged tree is greater than four inches in caliper (measured at a height of 12 inches above the ground), the replacement tree shall be required to be a minimum of four inches in caliper.
2.
If planted in an alternate location that is not within a public drainage or utility easement, the property owner shall replace the canopy tree with one meeting the minimum size required within this Chapter and that is subject to all other requirements of this section. For sites required to have a site plan, such alternate plant location shall be indicated on a revised landscape plan and is subject to approval by the city.
B.
Palm trees.
1.
If planted back in the public drainage or utility easement, the property owner shall replace the palm tree with a palm tree having a minimum caliper as the removed or damaged palm tree; however, if the removed or damaged palm tree is greater than nine inches in caliper (measured at a height of 12 inches above the ground), the replacement palm tree shall be required to be a minimum of nine inches in caliper.
2.
If planted in an alternate location that is not within a public drainage or utility easement, the property owner shall replace the palm tree with one meeting the minimum size required within this Chapter and that is subject to all other requirements of this section. For sites required to have a site plan, such alternate plant location shall be indicated on a revised landscape plan and is subject to approval by the city.
C.
Shrubs. Regardless of whether the shrub is located in a public drainage or utility easement, the property owner shall replace the shrub with a shrub meeting the minimum size required within this chapter.
The property owner shall notify the city when the replacement planting required by this subsection have been installed and are ready for re-inspection.
The following landscape requirements shall be met for all single-family and duplex units.
A.
Trees required for single-family homes. All newly constructed single-family homes shall have a minimum number of trees per building site in accordance with Table 5.5.12.A: Trees Required for Single-Family Homes. Where a home site includes a septic tank between the structure and the street, trees shall be planted a minimum of six feet from the septic tank or its drain field.
B.
Trees required for Duplexes. All newly constructed duplexes shall have a minimum number of trees per side in accordance with Table 5.5.12.B Trees Required for Duplexes. Where a site includes a septic tank between the structure and the street, trees shall be planted a minimum of six feet from the septic tank or its drain field.
C.
Credit for larger, canopy trees. The required number of canopy trees may be reduced by one tree if an existing or proposed canopy tree is at least two inches of increased caliper above the minimum planting size specified in this Chapter. Single-family homes and duplexes are not eligible for the Tree Credit Program provided by Section 5.5.15.
D.
Shrubs required. Each single-family home and duplex shall be landscaped with a minimum of 20 three-gallon shrubs of which a minimum of ten shall be planted at any location in the front yard.
E.
Mulch, groundcover, and planting beds.
1.
The soil surface of the land area not covered by structures or hardscape features shall be covered with sod or planting beds containing canopy trees, accent trees, palm trees, shrubs, groundcover, or any combination thereof. When shrubs are used in planting beds, shall be planted not more than 48 inches apart. Permeable synthetic turf may be used in lieu of sod, so long as it is not used to cover more than 20% of the total land area not covered by structures or hardscape features and is not within a front yard or right-of-way.
2.
A two-inch minimum layer of organic mulch, measured after watering-in, shall be placed and maintained around all newly installed canopy trees, accent trees, palm trees, and shrubs. A two-inch minimum layer of organic mulch, measured after watering-in, shall be placed around all newly installed groundcover plants so that bare areas of sod are not exposed; however, the mulch around groundcover plants is not required to be maintained after the groundcover becomes established. Except as otherwise provided in these regulations, each canopy tree, accent tree, and palm tree shall have organic mulch no less than 36 inches beyond its trunk in all directions; however, the mulch shall be kept away from the trunks and stems of plants so as to avoid conditions that may be conducive to collar rot, basal canker, or other fungi. The use of cypress or cedar mulch is strongly discouraged.
3.
The use of any inorganic mulch, including pebbles or shells to cover the soil surface is not recommended. Inorganic mulch should only be used to frame the outside of beds or to control erosion and should not be used to cover the root ball of newly planted trees or shrubs. Inorganic mulch shall not exceed 10% of the total land area not covered by hardscape features.
4.
The right-of-way from the edge of the street pavement to the property line shall be planted with sod or other approved groundcovers, except as otherwise provided in the City of Cape Coral Code of Ordinances or Land Development Code.
F.
Irrigation systems. Irrigation systems are encouraged but not required; however, where they are installed, they shall meet the standards of Section 5.5.14.
The provisions of this section shall not apply to single-family detached dwellings and duplexes unless otherwise specifically stated herein. The soil surface of the land area not covered by structures or hardscape features shall be covered with sod or planting beds containing canopy trees, accent trees, palm trees, shrubs, groundcover, or any combination thereof. Shrubs in planting beds shall be planted not more than 48 inches apart. Permeable synthetic turf may be used in lieu of sod, so long as it is not used to cover more than 20% of the total land area not covered by structures or hardscape features and is not within a front yard or right-of-way. The right-of-way from the edge of the street pavement to the property line shall be planted in accordance with the requirements of subsection B. below.
(Ord. 96-20, § 2, 3-3-2021)
A.
Tree planting requirements.
1.
Except in the South Cape District, all sites shall have at least one canopy tree for each 1,000 square feet of gross land area less lake areas as indicated in Subsection A.1.a. below, except that accent trees or palm trees may be substituted for a required canopy tree as indicated below. Trees required for buffers may be used for meeting the minimum number of trees required for a site. In the South Cape District, all sites shall have at least one canopy tree for each 3,500 square feet of gross land area, except that accent trees or palm trees may be substituted for a required canopy tree as indicated below. For all districts, in the event the calculation of required number of canopy trees yields a fractional number, that number shall be rounded up to the next highest whole number prior to any calculation of the quantity of substituted accent trees or palm trees. Trees planted to meet the other requirements of this section can be included in the calculation of total number of trees required by this section. Such trees may be planted singularly or grouped together. Required canopy trees shall not be spaced less than 20 feet on center. Except in the South Cape District, each canopy tree shall be planted in a minimum planting area of 100 square feet with a minimum dimension of seven feet in width unless an alternative minimum planting area or dimensions are approved by the Director, based on planting details that ensure reasonable soil surface and planting medium volumes.
a.
Lake areas or portions of lake areas 100' or greater in width may be deducted from the total property area for purposes of determining the general tree requirement.
b.
Requests for a reduction to the total tree planting requirements may be approved as provided in Section 5.5.13.A.3. Notwithstanding the foregoing, reductions of up to 15% of the total tree planting requirements may be elected and mitigated for development other than parks and recreation facilities pursuant to Section 5.5.13.A.3.c., without a request to or approval from the City. Any such tree reduction shall be reflected in the final landscape plan and calculations, including the method of mitigation pursuant to Section 5.5.13.A.3.c.
(Ord. 96-20, § 2, 3-3-2021; Ord. 75-23, § 1, 12-13-2023)
2.
In the South Cape District, each canopy tree shall be planted a minimum planting area of 24 square feet with a minimum dimension of four feet in width unless an alternative minimum planting area or dimensions are approved by the Director, based on planting details that ensure reasonable soil surface and planting medium volumes. Except in the South Cape District not more than 50% of the required canopy trees may be substituted with accent trees or palm trees in accordance with Section 5.5.13. In the South Cape District, not more than 25% of the required canopy trees may be substituted with accent trees or palm trees, in accordance with Section 5.5.13., as follows:
a.
Accent trees may be substituted for required canopy trees at a rate of two accent trees for each canopy tree required; however, no canopy tree required for a landscape buffer yard shall be substituted with an accent tree, unless the minimum width of available buffer yard options would preclude compliance with the minimum separation distance between trees and overhead power lines.
b.
The following palms shall not be substituted for required canopy trees:
To meet tree planting requirements in a landscape buffer yard or in off-street parking and vehicle use areas, palm trees, other than those listed above, may be substituted for canopy trees at a rate of three palm trees per each canopy tree substituted, regardless of the palm tree species. Except in the South Cape Downtown District, to meet tree planting requirements for areas other than a landscape buffer or off-street parking and vehicle use areas, palm trees may be substituted for required canopy trees at a rate of one palm tree per each canopy tree substituted. In the South Cape Downtown District, to meet tree planting requirements for areas other than a landscape buffer yard, palm trees may be substituted for required canopy trees at a rate of two palm trees per each canopy tree substituted.
c.
Except for plantings in or near surface water management areas, a two-inch minimum layer of organic mulch, measured after watering-in, shall be placed and maintained around all newly installed canopy trees, accent trees, palm trees, and shrubs. Except in the South Cape District, each tree shall have organic mulch no less than 36 inches beyond its trunk in all directions. In the South Cape District, each tree shall have organic mulch no less than 18 inches beyond its trunk in all directions. All mulch shall be kept away from the trunks and stems of plants so as to avoid conditions that may be conducive to collar rot, basal canker, or other fungi.
The use of cypress or cedar mulch is strongly discouraged.
d.
The use of any inorganic mulch, including pebbles or shells to cover the soil surface shall only be used to frame the outside of beds or to control erosion. Inorganic mulch shall not exceed 10% of the total land area not covered by structures, pools, accent boulders, driveways, sidewalks, or other paving. Inorganic mulch shall not be used to cover the root ball of newly planted trees or shrubs. The balance of the soil surface shall be covered with planting beds with a two-inch minimum layer of organic mulch.
(Ord. 75-23, § 1, 12-13-2023)
e.
Canopy trees shall not be planted within seven feet of any roadway, sidewalk, or public utility unless an acceptable root barrier material is installed between the tree and the roadway, sidewalk, or public utility. Acceptable root barrier material shall consist of one of the following: a manufactured root barrier material, installed in accordance with manufacturer's directions, reinforced concrete with a minimum depth of 16 inches, or a continuous sheet of aluminum with a minimum depth of 16 inches and a minimum thickness of 0.024 inches. Where a root barrier is required, it shall be installed for a minimum distance of 20 linear feet.
f.
In the event a property owner installs a public sidewalk closer than seven feet to any extant canopy tree, the property owner shall install an acceptable root barrier material in accordance with manufacturer's directions, such as herbicide impregnated materials or reinforced concrete of sufficient width and length, which will prevent the encroachment or undermining by the tree's root system, prior to the installation of the sidewalk.
(Ord. 75-23, § 1, 12-13-2023)
3.
Reductions to the Total Tree Planting Requirements.
a.
Reductions to the total tree planting requirements may be approved by the Director for public parks and recreational facilities as follows:
i.
In determining whether a particular request should be approved, the Director shall consider the following:
1.
Whether the required trees will be unnecessary for a facility primarily designed to be a natural area or preserve where a substantial number of native trees on the site will be protected; or
2.
Whether the required trees will interfere with the design, function, or purpose of all or part of the amenities planned for the facility, such as outdoor athletic fields, open space, or special event grounds; or
3.
Whether the facility, because of the area involved, will require an inordinately large number of trees to comply with the LDC.
ii.
Requests for reductions to the total tree planting requirement shall be made in writing to the Director. Materials submitted to the Director shall include a narrative explaining the magnitude of the reduction requested, why the request should be approved, and how the request would operate to the benefit of the public interest. The Director may request additional information necessary to adequately evaluate such requests, including a site plan, landscaping plan, and estimated cost of the landscaped materials.
iii.
The Director may approve reductions in the total tree planting requirement up to 100% for public parks and recreational facilities. The Director shall find the request would serve the intent of this section to protect the health, safety, and welfare of the public while ensuring a high level of overall functionality in the public park and recreational facility. In approving such requests, the Director may impose reasonable conditions on the project in conformity with this section.
iv.
The Director shall obtain a recommendation from the Director of Parks and Recreation for any request for a reduction to the total tree planting requirements exceeding 25%. The Director of Parks and Recreation shall consider the criteria in Section 5.5.13.A.3.a.i. when making such recommendations.
v.
Reductions to the total tree planting requirements approved pursuant to this section shall be reflected in the landscape plan calculations and shall be indicated on the final landscape plan.
b.
Reductions to total tree planting requirements, not to exceed 30%, may be approved by the Director for development other than parks and recreational facilities as follows:
i.
In determining whether a particular request should be approved, the Director shall consider the following:
1.
Whether existing site improvements would make it impractical to meet the total tree planting requirements; or
2.
Whether the size or shape of the property creates constraints that may make it impractical to meet the tree planting requirements; or
3.
Whether access and circulation requirements preclude planting of trees.
ii.
Requests for reductions to the total tree planting requirement shall be made in writing to the Director. Materials submitted to the Director shall include a narrative explaining the magnitude of the reduction requested, why the total tree planting requirements cannot be achieved and the proposed mitigation for the reduction. The Director may request additional information necessary to adequately evaluate such requests, including a site plan and landscaping plan demonstrating how the site constraints prohibit tree planting.
iii.
The Director may approve requested reductions in the total tree planting requirement in whole or in part and may impose reasonable conditions on the project in conformity with this section.
iv.
Overly intense development of a site shall not be considered a site constraint qualifying for a reduction in the total tree planting requirements.
v.
Tree reductions may not be applied to trees required in buffers or off-street parking and vehicular use areas.
vi.
Notwithstanding any provision to the contrary in this section, requests for total tree reductions up to 100% may be approved within the South Cape District, except for required buffers.
vii.
Reductions to the total tree planting requirements approved pursuant to this section shall be reflected in the landscape plan calculations and the method of mitigation shall be indicated on the final landscape plan.
c.
Mitigation options for reductions to the total tree planting requirements for development other than parks and recreational facilities. Applicants approved for tree planting reductions may:
i.
Contribute into the General Tree Fund a non-refundable Tree Contribution Amount, as established in Subsection iii below, for each two-inch caliper tree required pursuant to Section 5.5.19. for development in areas other than the South Cape District; or
ii.
Contribute into the South Cape Tree Fund a non-refundable Tree Contribution Amount, as established in Subsection iii below, for each three-inch caliper tree required pursuant to Section 5.5.19. for development in the South Cape District.
iii.
The City Council shall establish by Resolution the Tree Contribution Amount for the mitigation of required caliper trees. All Tree Funds received by the City hereunder shall be expended, utilized, and disbursed in accordance with the provisions of Section 5.5.19.D. Tree mitigation approved pursuant to this section shall run with the land.
d.
The provisions of this section do not preclude a developer from applying for most landscape deviations allowed pursuant to Article 3 or Article 5. However, a developer utilizing and contributing to a Tree Fund in order to reduce the total tree planting requirements for a site shall be prohibited from also requesting a deviation from the minimum number of trees required for the same site pursuant to Sections 3.3.6., 3.4.2., or 5.5.20.
(Ord. 75-23, § 1, 12-13-2023)
B.
Right-of-way. The right-of-way from the edge of the street pavement to the property line shall be planted with sod or other approved groundcovers, except as otherwise provided in the City of Cape Coral Code of Ordinances or Land Development Code.
C.
Landscape design features. Six types of landscaping may be required on a site, depending on the site location and the specific elements of the development: foundation landscaping, landscaping adjacent to roads, off-street parking and vehicle use areas, retention/detention areas, and buffers. Trees planted to meet the requirements of these landscape design features can be included in the calculation of total number of trees required by this section under tree planting requirements.
1.
Foundation Landscaping. To provide aesthetic relief between a building and off-street parking or vehicular use areas, all new development, except development in the Industrial District and South Cape District, must provide foundation landscaped areas equal to 10% of the proposed building gross ground level floor area. These foundation landscaped areas must be between the off-street parking area and the building, between public streets and the building, or between vehicular access ways and the building, or any combination thereof, with emphasis on the side(s) most visible to the public. Foundation landscaping may consist of surface level landscaped areas, raised planters, planter boxes, or any combination thereof. The width of the foundation landscaped areas shall be five feet, except for sites less than one acre with an average depth less than or equal to 135 feet, in which case the width shall be three feet. Foundation landscaped areas may be planted with trees, but must be planted with shrubs spaced a maximum of three feet on centers.
2.
Landscaping Adjacent to Roads. Where a development site abuts a public right-of-way, excluding a dedicated alley, the following shall apply except for development sites in the NC, MX7, MXB, and SC Zoning Districts:
(Ord. 60-21, § 1, 8-4-2021)
a.
Except as otherwise provided herein, a strip of land, a minimum of ten feet in width, shall be provided between the abutting right-of-way and any structure or off-street parking area. For sites or portions of sites that are 135 feet or less in depth, the width may be reduced to five feet.
b.
At a minimum, perimeter landscaping in this area shall consist of the following:
i.
One shrub for every three linear feet of landscaped area, planted separately or grouped, except where a carport or an off-street parking or vehicular use area abuts the strip of land that is required adjacent to roads. Where a carport or an off-street parking or vehicular use area abuts the strip of land required adjacent to roads, a continuous hedge, consisting of shrubs spaced no greater than three feet on center is required.
ii.
The requirement for canopy trees or accent trees depends on the presence of overhead electric distribution or transmission lines. Shade or accent trees shall be provided as follows:
(a)
Except as provided below, one canopy tree for each 30 linear feet of frontage is required. If the calculations yield a fractional number, that number shall be rounded up to the next highest whole number. Trees may be placed in any arrangement within the landscape strip provided that the spacing between tree trunks is no greater than 60 feet.
(b)
In locations where an adequate separation distance from overhead distribution or transmission lines, as specified in Tables 5.5.7.A and 5.5.7.B, is not available, two accent trees may be substituted for any shade tree required for each 30 linear feet of frontage.
(Ord. 60-21, § 1, 8-4-2021)
c.
Ingress and egress from the public right-of-way through all such landscaping to off-street parking or other vehicular use areas shall be permitted and may be subtracted from the linear dimension used to determine the number of trees and shrubs required.
d.
Visibility triangles. As an aid to allow for safe operation of vehicles, pedestrians, and cyclists in the proximity of intersecting streets, driveways, alleys, and bicycle paths, there shall be limitations on the height of fences, walls, gateways, ornamental structures, signs, hedges, shrubbery, and other fixtures as visually depicted in the Cape Coral Engineering and Design Standards and as follows:
i.
All landscaping and signs within the visibility triangle shall provide unobstructed visibility between 30 inches and eight feet, with the exception of tree trunks that do not create a traffic hazard.
ii.
The property owner shall be responsible for maintaining all landscaping within the visibility triangle to provide the unobstructed visibility.
iii.
The Community Development Director shall make the final determination regarding visibility triangles.
3.
Off-street parking and vehicle use areas. The provisions of this section apply to all new off-street parking or other vehicular use areas not situated directly beneath a building containing habitable space.
a.
Protection of landscaped areas from vehicular encroachment. When a landscaped area abuts or is within an off-street parking or vehicular use area, wheel stops or curbing shall be used to protect landscaped areas from encroachment. The placement of shrubs and trees shall be in accordance with the Parking Lot Standards of the City of Cape Coral Engineering Design Standards.
b.
Except in the South Cape District, landscaping for sites with both of the following: 1) an average depth less than or equal to 135 feet; and 2) an area less than or equal to one acre. All off-street parking areas shall be landscaped to provide visual relief and cooling effects and to define logical areas for pedestrian and vehicular circulation, as follows:
i.
Minimum landscaped area. Landscaped areas including, but not limited to, landscaped islands, foundation landscaping, and landscaping within divider medians shall equal or exceed a minimum of 5% of the total off-street parking and vehicle use areas.
ii.
Tree planting. At least one canopy tree shall be provided for every 150 square feet of required planting area. Palm trees may be substituted for canopy trees in accordance with this Chapter.
iii.
Divider medians. Where canopy trees are planted in divider medians, the minimum width of the divider median shall be nine feet.
iv.
Landscaping at the end of a row of parking spaces. Each row of parking spaces containing ten or more parking spaces shall be terminated by a landscaped area at each end that measures not less than five feet in width and not less than 15 feet in length. No required trees shall be planted in landscaped islands less than nine feet in width.
c.
Except in the South Cape District, landscaping for sites with either of the following: 1) an average depth greater than 135 feet; or 2) an area greater than one acre. All off-street parking areas shall be landscaped to provide visual relief and cooling effects and to define logical areas for pedestrian and vehicular circulation, as follows:
i.
Minimum landscaped area. Landscaped areas including landscaped islands, foundation landscaping, and landscaping within divider medians shall equal or exceed a minimum of 10% of the total paved surface area. Landscaped areas reserved for future parking spaces may not be included in this calculation.
ii.
Tree planting.
(1)
At least one canopy tree shall be provided for every 150 square feet of required planting area. Palm trees may be substituted for canopy trees in accordance with this Chapter.
(2)
No parking space may be more than 100 feet from a tree.
iii.
Divider medians. If a divider median is used to meet the landscaping requirements, it shall be a minimum width of nine feet.
iv.
Landscaping at the end of a row of parking spaces. Each row of parking spaces containing ten or more parking spaces shall be terminated by a landscaped area that measures not less than nine feet in width and not less than 15 feet in length. Each such landscaped area shall be planted with at least one canopy tree. Palm trees may be substituted for canopy trees in accordance with this Chapter.
v.
Landscape materials. All interior landscaped areas not dedicated to trees or to preservation of existing vegetation shall be landscaped with grass, groundcover, shrubs or other approved landscaping materials and this shall be noted on the landscape plans.
d.
Landscaping for sites in the South Cape District. Except within city dedicated parking areas, all off-street parking areas and applicable off-street parking area setbacks shall be landscaped to provide visual relief and cooling effects and to define logical areas for pedestrian and vehicular circulation, as follows:
i.
Minimum landscaped area.
1.
Unless otherwise provided herein, all required landscape areas shall be planted with trees, shrubs, groundcover, sod, or any combination thereof. At a minimum, the landscape area(s) shall include low-lying shrubs or ground cover plants with a minimum 50% coverage of the landscape area at time of planting. When utilized, shrubs shall be planted at no more than three feet on center.
2.
All applicable minimum off-street parking area setbacks required by Article 4, Chapter 5, except rear when abutting an alley, shall be landscaped unless otherwise provided herein. This provision shall not apply to portions of setbacks areas utilized for shared curb cuts, joint driveways and shared off-street parking areas across lot lines.
3.
Ingress and egress from the right-of-way through any setback area is permitted and the width of the ingress and egress may be subtracted from required landscape areas.
ii.
Landscaping for lots with a lot frontage greater than or equal to 125 feet. Off-street parking areas containing 24 or more parking spaces shall provide a landscaped area that measures not less than nine feet in width and not less than 15 feet in length for every 12 parking spaces. Such landscaped area(s) shall be located as intermediate within or terminal islands to parking space rows. Each such landscaped area shall be planted with at least one canopy tree and groundcovers or sod.
4.
Retention or detention areas.
a.
Planting of trees, palm trees, shrubs, and groundcovers in retention or detention areas is encouraged, provided that the placement does not conflict with the volume of storage required for the retention or detention areas and does not significantly interfere with or impede the flow of runoff in the retention or detention area.
b.
All retention or detention areas shall be stabilized with sod or other groundcover capable of stabilizing the soil. Organic mulch is not allowed.
5.
Buffers.
a.
Determination of required buffer. Landscape buffer and screening shall be required to separate uses of differing zoning districts from each other. The type and width of buffer required shall be determined by using Table 5.5.13.B: Table of Minimum Buffer Requirements. If the developing property contains a non-residential use in a Residential District, the buffer shall be as indicated along the row labeled "Non-Residential Uses in Residential Districts"; otherwise, the buffer required shall be as indicated along the row of the developing property's zoning district under the applicable column. The buffer that is required along any segment of property line, if any, is dependent on the zoning of the abutting property and property separated by only a street containing not more than two lanes for motor vehicle traffic. A bicycle "lane" shall not be considered to be a lane for motor vehicle traffic. The specifications for each type of buffer are provided in Table 5.5.13.B.
b.
Buffer specifications.
i.
The standards for minimum width, plant types and quantities, and opaque features shall be in accordance with Table 5.5.13.B: Minimum Buffer Width and Table 5.5.13 C, Buffer Plantings. All plants provided within a buffer are specific to, and must be located within the buffer area. The buffer landscaping is in addition to other landscaping required by this Chapter and this landscaping must be within the buffer area. For buffer options that include a wall, the wall must conform to the standards of Article 5, Chapter 2, including the setback requirements.
ii.
The buffer width shall be measured along a line perpendicular or radial to the property line.
iii.
The number of each type of plant required shall be determined by dividing the length of each side of the property requiring a given type of buffer by 100 and multiplied by the number of plants per 100 feet indicated for a selected option. If the calculations yield a fractional number, that number shall be rounded up to the next highest whole number.
iv.
If a wall is required, the wall shall extend the entire length of the property line, or until it connects to another wall.
v.
Ingress and egress from the right-of-way through any buffer shall be avoided; however, where it is determined by the city that avoidance is impractical or not preferable due to traffic flow or safety considerations, penetration through a buffer to ingress and egress from the right-of-way may be permitted and the width of the ingress and egress can be subtracted from the length of the buffer for the calculation of the number of plants required.
vi.
Plants, berms, or walls required for buffers within required sight triangles shall be in accordance with standards provided in Article 5, Section 1. Further, no fence, wall, or plant material shall be placed within a buffer that would impede the movement of or obstruct the view of either a pedestrian or driver of a vehicle that would create a potential safety hazard.
c.
Buffer requirements. No development within required buffer. Required buffer shall not contain any development other than drainage facilities, sidewalks, plants, walls, or berms. Driveways shall only be allowed in the required buffer if the buffer runs along a street. No grading, development, or land-disturbing activities shall occur within the buffer unless as part of an approved development or landscape plan.
d.
Buffer maintenance.
i.
Any landscape buffer required pursuant to this section shall be maintained in order to preserve such buffer.
ii.
The plantings, walls, and berms that constitute screening for any buffer required pursuant to this section shall be maintained for the life of the development. Such maintenance shall include all actions necessary to keep the buffer free of litter and debris, and to keep plantings, walls, and berms in good repair and neat appearance.
iii.
In the event that any buffer screening or any element thereof, is damaged or fails to live so that it no longer furthers the purpose and intent of this section, it shall be replanted or replaced, whichever is applicable, with the type and size of material specified on the landscape plan.
e.
Plant and tree arrangement. Required plants and trees shall be distributed in a manner to meet the intent of screening incompatible uses. In the event that plant materials are prohibited in a public drainage or utility easement which abuts or is coincident with a buffer, no new plant materials shall be centered closer than two feet from such easement.
f.
Existing vegetation.
i.
Retaining existing Florida native trees and other vegetation within a buffer is strongly encouraged.
ii.
If existing plants do not fully meet the standards for the type of buffer required, additional plant materials shall be installed.
g.
Buffer walls and berms.
i.
Whenever a wall is required within a buffer, it is shown in Table 5.5.13.B.
ii.
Where the buffer requires a berm, the berm shall be graded to appear smooth, rounded, and natural. Slopes shall not exceed a 3:1 grade.
iii.
Whenever a wall is required within a buffer, the wall shall conform to all requirements of Article 5 Section 2, and the requirements herein, and all other requirements for a wall. The wall may be placed anywhere in the buffer, provided at least 75% of the required trees and 100% of the required shrubs are on the side facing outward toward the right-of-way or abutting property (facing away from the property on which the wall is erected). Bare concrete block, even if painted, is prohibited. The following materials, either singly or in any combination, are the only materials that may be used to form the wall:
(a)
Concrete block coated with stucco;
(b)
Textured concrete block;
(c)
Stone;
(d)
Brick; or
(e)
Formed, decorative, or precast concrete.
iv.
Whenever a wall is required within a buffer, it shall be 100% opaque and shall be the maximum height allowed for the use and the location of the wall.
h.
Gates. A gate may be allowed in a buffer wall, provided such gate is opaque, unless spanning a vehicular entrance, and meets the intent and purpose of this section. Gates shall be maintained in accordance with the maintenance standards for screening contained in this section.
i.
Staggered walls. Whenever a wall is required within a buffer, it may be divided along the length of a buffer so that a wall consists of a series of wall segments instead of a continuous line. Such a divided wall shall be allowed only if it meets the intent and purpose of this section and if the wall segments overlap by a minimum of one-half of the distance between the two wall segments.
j.
Vehicular use areas. Concrete curbs or wheel stops at least five inches high shall be provided between vehicular use areas and buffer areas.
3.
Location of buffer.
a.
The landscape buffer required by this section shall be located along the perimeter of a property except at approved entrances or exits to the parcel.
b.
Buffers shall extend to the lot line or right-of-way line, except where easements, covenants, visibility triangles, or natural features require the buffer to be set back from the property line. The presence of an easement, covenant, or natural feature does not necessarily preclude the placement of a buffer, unless due to the nature of the easement, covenant, or natural feature the placement of a buffer would be precluded.
c.
Nothing other than open landscaped areas shall be located between the required buffer and the site perimeter unless the presence of an easement, covenant, or natural feature, which due to its nature, would preclude open landscaped areas.
d.
Buffers may not be located on any portion of an existing or dedicated street right-of-way or roadway easement.
All landscaping shall contain an automatic irrigation system. All required irrigation systems shall be designed to minimize the application of water to impervious areas, including roads, drives, and other vehicle areas. Required irrigation shall also be designed to avoid damage to existing native vegetation from over watering or from physical conflicts with plant roots. The following standards shall apply to the design, installation, and maintenance of irrigation systems:
A.
The irrigation system shall be properly maintained and operated consistent with watering schedules established by the South Florida Water Management District or the City of Cape Coral, whichever is more restrictive.
B.
Existing native plants are exempt from this requirement.
C.
Automatic control systems shall be equipped with an operable rain sensor or other devices, such as soil moisture sensors, to prevent unnecessary irrigation.
A.
Tree credits for all development other than single-family homes and duplexes are available, to encourage the planting of larger trees than are otherwise required and to preserve trees existing on development sites. Based on the gross square feet of land area, each tree credit earned can count toward the number of trees required, subject to limitations indicated below. If tree credits are used, the credits shall be shown in the calculations on the landscape plan. Single-family homes and duplexes are not eligible for the tree credit program provided by this subsection. In no event, shall the number of trees required in a buffer be reduced.
B.
Credit for planting larger canopy trees. One tree credit shall be applied to the overall tree count for each two inches of increased caliper above the minimum planting size specified in this Chapter. In no event, however, shall the actual number of trees be less than one-half of the total number required.
C.
Credit for preserving existing canopy trees. Existing canopy trees in good health and meeting the minimum standards provided in this Chapter that are preserved on a site, and that are properly protected prior to and during the course of development activities, may be used to meet the requirements of this section for the site where the existing trees are located. For purposes of this subsection, development activities include land clearing, construction, grading, or placement of fill. Canopy trees that exceed the minimum size required by Article 5, Section 15 are credited at the following ratios for existing canopy trees:
No credit shall be given to canopy trees on the Florida Exotic Pest Plant Council list of Category I or Category II invasive exotics.
D.
Credit for preserving existing palms. Existing palm trees in good health and having a minimum of ten feet of clear trunk that are preserved on a site and properly protected prior to and during the course of development activities, may be used to meet the requirements of this section for the site where the existing palm trees are located. This credit shall be available for palms preserved in place or transplanted within a site, using accepted horticultural procedures.
A.
General maintenance required. The property owner shall maintain all landscaping in accordance with the approved landscape plan, if any, and with the standards contained in this section, including:
1.
Trees, palm trees, shrubs, and other vegetation shall be trimmed so as to not be an obstruction to pedestrian or vehicular traffic or traffic visibility;
2.
Trees, palm trees, shrubs, and tree bed(s) shall be kept free of refuse, debris, and disease;
3.
Nonliving materials shall be maintained in good condition at all times.; and
4.
Shrubs planted in non-residential and mixed-use developments shall grow and be maintained at all times according to the minimum size specified on the approved landscape plan or to a minimum height of 36 inches, if not specified on the approved landscape plan. Shrubs that do not meet the minimum height specified or the alternate minimum height of 36 inches shall be replaced with like kind species and be maintained at a height of 36 inches.
This requirement shall not preclude the placement of additional plant materials or other landscape features that comply with other requirements of these regulations.
B.
Compliance required. For any development for which a landscape plan was submitted, the city shall not issue a certificate of occupancy or certificate of completion until the landscape architect or other licensed professional authorized pursuant to F.S. Ch. 481, Part II, who prepared, signed, and sealed the plan certifies to the city that all elements of the landscape plan have been installed in accordance with the approved plan. Each development will be inspected by the City of Cape Coral within two years after the certificate of occupancy or certificate of completion is issued, and from time to time thereafter to ensure compliance with the applicable landscape standards and with the approved landscape plan, if any. Any dead or missing plant, or plant that appears to be dying or unable to sustain healthy future growth shall be replaced by one that conforms to the requirements of this section and approved landscape plan, if any. Failure to comply with this requirement shall constitute a violation of the City of Cape Coral Code of Ordinances, subject to any penalty imposed by law.
C.
Changes subsequent to landscape plan approval. The replacement of plants indicated on an approved landscape plan with plants of the same species, or the placement of hardscape features that comply with other requirements of these regulations shall not require the submission of an amended landscape plan. The substitution of plants indicated on an approved landscape plan with plants of an alternative species of the same size and plant category (canopy tree, accent tree, palm tree, shrub) shall not require the submission of an amended landscape plan, unless a specific species has been prescribed as a condition of approval by the Hearing Examiner or City Council; however, any such substitution shall meet all other landscape requirements, including the minimum separation distance between trees and overhead power lines, the Florida native plant percentage, the tree species mix, and species specific palm tree substitution requirements. Except as described above, after a landscape plan has been approved, it shall be unlawful to change, modify, alter, or otherwise deviate from the terms or conditions of the landscape plan without first obtaining written approval of an amendment to the landscape plan. The approval of an amendment to a landscape plan does not constitute an amendment to the site plan. Modifications that require approval of an amended landscape plan include:
1.
Replacement of any plant indicated on an approved landscape plan with a plant of a different species; or
2.
The reduction of any quantity or size of plants below the size that was indicated on the most recently approved landscape plan.
The city may impose a reasonable fee for the review and approval of an application for an amendment to a landscape plan. An application for an amendment to a landscape plan shall be reviewed in accordance with the standards herein, unless the landscaped area is a legal nonconformity. An application for an amendment to a nonconforming landscaped area shall be reviewed in accordance with Article 5, Section 6.
D.
Nonconforming landscaped areas.
1.
Legal nonconforming landscaped areas established. All landscaped areas which were lawful prior to the adoption of this Code but which fail by reason of adoption of such amendment to comply therewith, are hereby declared to be nonconforming. Such nonconforming landscaped areas are hereby declared to be lawful and shall not be required to be altered to conform with such regulations as adopted by the City of Cape Coral; provided, however, that such nonconforming landscaped areas are restricted and subject to the requirements of this section.
2.
Requirements for nonconforming landscaped areas.
a.
For sites with an approved landscape plan, nonconforming landscaped areas, including buffers, shall be maintained in accordance with approved landscape plans, as modified by requirements of any approval for PUD, PDP, special exception, or variance, if any. If the minimum requirements for landscaping are reduced subsequent to the most recently approved landscape plan, the property owner may request approval of an amended landscape plan meeting the minimum requirements pursuant to Article 5, Section 6.
b.
For single-family and duplex sites, nonconforming landscaped areas shall be maintained in accordance with landscape regulations in effect at the time of issuance of the original building permit for the primary structure.
c.
For sites without an approved landscape plan, other than single-family and duplex sites, nonconforming landscaped areas shall be maintained in accordance with landscape regulations in effect at the time of the most recent site plan approval.
E.
Canopy tree pruning.
1.
Except as otherwise provided herein, trees required by regulations in effect at the time of site development shall only be pruned to promote healthy, uniform, natural growth, to keep trees trimmed back from doors, windows, and public sidewalks or where necessary to promote health, safety, and welfare. Pruning shall be in accordance with "American National Standard for Tree Care Operations - Tree, Shrub, and Other Woody Plant Maintenance - Standard Practices (Pruning) (A300, Part 1)" by the American National Standard Institute and "Best Management Practices: Tree Pruning" by the International Society of Arboriculture (ISA). Pruning of trees on any site over one acre should be supervised by a certified arborist. Pruning necessary to maintain public overhead utilities shall be in accordance with the National Electric Safety Code (NESC).
2.
Trees required by regulations in effect at the time of site development shall not be pruned so as to include topping of trees through removal of crown material or the central leader, or any other similar procedure to permanently limit growth to a reduced height or spread or that cause irreparable harm to the natural form of the tree, except where such procedures are necessary to maintain public overhead utilities. Severely pruned trees required by regulations in effect at the time of site development must be replaced by the property owner. Replacement trees must meet the tree size requirements of this Chapter. A tree's growth habit shall be considered in advance of conflicts that might arise (e.g., signs, power lines, sidewalks, buildings, and similar conflicts).
Excessively pruned trees.
3.
Palm maintenance and pruning. Palms shall only be pruned in such a manner that removal of fronds does not exceed a 9:00 to 3:00 pattern and no more than one-half of the fronds are removed at a single time. This limitation shall not apply to flower stalks or fronds that are yellow or dead.
A.
Permits.
1.
Required. It shall be unlawful for any person to place any landscape material, including plant materials and hardscape materials other than mulch, in any median or cul-de-sac under the control of the city, without first obtaining a permit for such work from the City.
2.
Application. An application for a permit shall be submitted on a form provided by the city and include all required information as specified in the permit application forms, including, but not limited to:
a.
A general vicinity map showing the nearest intersecting streets;
b.
The location of existing public and private utilities, including overhead power lines and drainage facilities within twenty (20) feet of the proposed landscaping;
c.
A planting plan showing all pertinent dimensions, the location of existing plant materials with indication if they are to be removed, the location of proposed plant materials indicating the size and species, the location of existing or proposed hardscape materials, and the proposed irrigation plan and source of water;
d.
Any additional information reasonably required by the City because of unique circumstances of the project; and
e.
A non-refundable application fee as established by Resolution of the City Council.
B.
Median or cul-de-sac design. Landscaping in medians or cul-de-sacs shall be in accordance with the City of Cape Coral Engineering Design Standards and the City-approved median landscape templates. The median landscape templates shall be approved by Resolution of the City Council.
C.
Prohibited vegetation. The prohibited vegetation standards of Section 5.5.9 of this article shall apply in medians and cul-de-sacs.
D.
Review criteria. In determining whether a permit will be issued, the city shall consider factors that include, but are not limited to, the following:
1.
Relationship to traffic and pedestrian safety in accordance with the City of Cape Coral Engineering Design Standards;
2.
Location of existing and proposed public utilities, power lines, and other right-of-way improvements;
3.
Effect on surface waters and drainage patterns;
4.
Aesthetic effect of the proposed landscaping, including whether the resultant theme and intensity would be consistent throughout the specific median or cul-de-sac in accordance with the median landscape templates, and whether the proposed landscaping would coordinate with the landscape theme and intensity established in the vicinity;
5.
Type, size, and location of any extant plant materials and hardscape materials, if any;
6.
Type, size, and location of proposed plant materials and hardscape materials on the median or cul-de-sac, in accordance with the median landscape templates;
7.
Method of removal of existing plant materials and hardscape materials;
8.
Adequacy of proposed irrigation, its expense to the city, and availability of water supply;
9.
The city's ability to maintain the landscaping including economic ability, manpower, and location of the median or cul-de-sac; and
10.
Potential sight obstructions and compliance with all standards and regulations regarding sight distances and clear zones.
E.
Approval.
1.
In its approval of any permit request, the city may request modifications, which may include:
a.
The planting plan, in accordance with the City of Cape Coral Engineering Design Standards and median landscape templates, including a requirement that the entire median or cul-de-sac be included in the design, as well as to plant sizes, species, location, and nature placement of hardscape materials;
b.
Plant installation or removal methods or specifications;
c.
Regulation of the commencement and completion date, work hours, or phasing of installation or removal;
d.
Requirement of a financial instrument to ensure removal of the landscaping;
e.
Requirement that all or part of the landscaping be installed by a licensed landscape contractor or certified arborist;
f.
Requirement that temporary traffic control measures be implemented by a barricade company with certification by the American Traffic Safety Services Association (ATSSA) or the International Municipal Signal Association (IMSA);
g.
Requirement that curbing be installed;
h.
Requirement that erosion control measures be implemented; and
i.
Submission of a hold harmless agreement acceptable to the city.
2.
The permittee shall be responsible for compliance with the permit.
3.
Approval of a permit to install landscape materials shall not obviate the requirement to obtain all other necessary permits, including permits for irrigation and signs.
F.
Changes subsequent to approval. After a planting plan has been approved, it shall be unlawful to change, modify, alter, or otherwise deviate from the terms of the planting plan without first obtaining written approval of an amendment to the planting plan. Modifications that require approval of an amended landscape plan include the following:
1.
Replacement of any plant indicated on an approved planting plan with a plant of a different species in accordance with the City of Cape Coral Engineering Design Standards and median landscape templates; or
2.
Modification of the location of any plants or other landscape materials.
The city may impose a reasonable fee for the review and approval of an application for an amendment to a planting plan. Such fee, if any, shall be established by Resolution of the City Council. An application for an amendment shall be reviewed in accordance with the standards herein. The replacement of plants indicated on an approved landscape plan with plants of the same species shall not require the submission of an amended landscape plan.
G.
Permit expiration. A permit for installing landscape materials in any median or cul-de-sac under the control of the city shall be valid for a one-year period from the date of issuance, except as otherwise provided within the permit approval.
H.
Maintenance. Once any landscape materials are installed in a median or cul-de-sac in accordance with the planting plan approved by the City, the materials shall be the property of the city. The City shall be responsible for maintaining any and all landscaping permitted by this subsection in accordance with Section 5.5.16 of this article. Should any plant material or other landscape material or portion thereof become a safety hazard, unsightly, or die or become diseased, or if it is installed or maintained in a manner inconsistent with the permitting requirements herein, the city shall have the option of replacing or removing it. The City will determine compliance with this subsection.
I.
Removal. Any landscape materials planted or installed without the express written permission of the city shall be subject to removal by the city in its sole discretion. Except for the City and persons with a permit or other written authorization from the City, no person shall remove landscape materials from a median or cul-de-sac.
1.
The authorization in this section for the removal of landscaping in medians and cul-de-sacs shall be construed as supplementary to any other means of enforcement available to the city and shall not be construed so as to negate the authority of the Code Compliance Special Magistrate to hear and adjudicate appropriate cases.
2.
The city may also, in its sole discretion, remove any landscape materials placed in any median or cul-de-sac under the city's control, for utility maintenance, safety, or any other reason. The City is not required to replace any landscaping removed pursuant to this section.
J.
Revocation. If any requirements of the approval are not satisfied, the city may revoke or stop work on any permit issued pursuant to this subsection.
K.
City improvements. The City may install infrastructure improvements and recognition signage in medians or cul-de-sacs improved pursuant to this section. The City has the sole discretion of the placement, location, and size of any recognition signage installed pursuant to this section. In making such determination the City's decision shall be based on, but not be limited to, the classification of the road; width of the roadway, median, or cul-de-sac; proximity to intersections; and curves/bends in the roadway.
(Ord. 33-20, § 1, 7-20-2020)
A.
No permit required- Registration required. It shall be unlawful to install any trees or shrubs in the city-owned lateral right-of-way without first obtaining a registration certificate from the city.
B.
Refer to Section 5.1.9 for landscaping that may be installed within the lateral right-of-way without a permit or registration certificate.
C.
Placement of planting material. In the South Cape Downtown District, in order to provide a cohesive urban streetscape, applicants may enter into an agreement with the city for placement of planting material in the lateral right-of-way. In all other districts, the planting of trees, palm trees, and shrubs, and the placement of the tree bed(s) shall be allowed in the city-owned lateral right-of-way subject to the following restrictions:
1.
The property owner must call the Sunshine 811 notification service to have all underground utilities located and marked on the ground prior to installation of any landscape material. All excavation on public property, rights-of-way, or dedicated easements shall comply with the requirements of F.S. Ch. 556. UNDERGROUND FACILITY DAMAGE PREVENTION AND SAFETY.
2.
Where potable water, irrigation or sanitary sewer force mains are located within the right of way, the property owner must contact the Utility Department to confirm the location of proposed canopy trees and palm trees.
3.
No canopy tree shall be planted within 10 feet of existing or proposed drainage inlet or potable water, irrigation and sanitary sewer force mains.
4.
No palm tree with a mature diameter of 8 inches or greater shall be planted within 5 feet of existing or proposed drainage inlet or potable water, irrigation and sanitary sewer force mains
5.
Planting near overhead utility infrastructure shall be in accordance with the requirements of Section 5.5.7 of this article;
6.
One or more trees may be immediately surrounded by a bed consisting of landscape edging materials, bedding plants or groundcover, and mulch or decorative rock so long as the size of the bed is reasonably related to the size and number of trees contained therein. Groundcover or annual bedding plants shall be permitted within the tree bed. Unless otherwise permitted, no other landscape edging material, concrete curbing, bedding plant or groundcover, mulch, or decorative rock shall be allowed in the city-owned lateral right-of-way;
7.
The property owner abutting the portion of the lateral right-of-way in which the plantings and the tree bed(s) are placed shall be responsible for any and all costs incurred by the city for damage sustained to any drainage system orunderground utility facilities as a result of said plantings or placement of the tree bed(s), and shall indemnify and hold the city, its officers, employees, and agents, harmless from any and all claims for injuries and damages to persons and property, both real and personal resulting from said plantings or placement of the tree bed(s);
8.
No tree, shrub, landscape edging material, concrete curbing, bedding plant, groundcover, mulch, or decorative rock shall be placed in the city-owned lateral right-of-way within five feet of the roadway. Canopy trees shall not be planted within seven feet of any roadway, sidewalk, or underground utility unless an acceptable root barrier material, installed in accordance with this Chapter.
9.
No tree, shrub, landscape edging material, concrete curbing, bedding plant, groundcover, mulch, or decorative rock shall be placed in the city-owned lateral right-of-way:
i.
Within five feet of either side property boundaries, as measured perpendicular from the side property line;
ii
Within three feet of the bottom on the swale in either direction;
iii.
Within three feet of a public sidewalk; or
iv.
So as to be an obstruction to pedestrian or vehicular traffic or traffic visibility and each shall be maintained accordingly.
D.
Maintenance. Once any landscape materials are installed in a lateral right-of-way, the materials are the property of the city. The person or entity who owns the property abutting a portion of the lateral right-of-way along a city street in which the trees, palm trees, shrubs, landscape edging material, concrete curbing, bedding plants, or groundcover, mulch, or decorative rock have been placed shall be responsible for the following:
1.
Maintaining all plantings and tree bed(s) in good condition so as to present a healthy, neat, and orderly appearance;
2.
Trimming such trees, palm trees, shrubs, and tree bed(s) so as to not be an obstruction to pedestrian or vehicular traffic or traffic visibility; and
3.
Keeping such trees, palm trees, shrubs, and tree bed(s) free of refuse, debris, and disease.
Failure to maintain such trees, palm trees, shrubs, and tree bed(s) in accordance with this provision shall constitute a violation of this section and shall be grounds for removal by the city of the trees, palm trees, shrubs, and tree bed(s) in the right-of-way.
E.
Removal.
1.
The authorization in this section for the removal of trees, palm trees, shrubs, and tree bed(s) shall be construed as supplementary to any other means of enforcement available to the city and shall not be construed so as to negate the authority of the Code Compliance Special Magistrate to hear and adjudicate appropriate cases.
2.
The city may also, in its sole discretion, remove any trees, palm trees, shrubs, and tree bed(s) placed in a city-owned lateral right-of-way for utility maintenance, safety, or any other reasonable cause. Except for the city, persons with written authorization from the city, and the property owner abutting the portion of the lateral right-of-way in which landscape materials have been placed, no person shall remove landscape materials from a lateral right-of-way.
3.
All expenses incurred by the city for removal trees, palm trees, shrubs, and tree bed(s), for any reason, shall be the responsibility of the property owner.
4.
If, for any reason, such trees, palm trees, shrubs, and tree bed(s) are removed, the adjoining owner shall be responsible for returning the right-of-way to its original condition prior to the placement of the plantings and tree bed(s) and any expenses related thereto regardless of whether the removal of the trees, palm trees, shrubs, and tree bed(s) was performed by the property owner or the city pursuant to this section.
A.
The General Tree Fund and the South Cape Tree Fund are established for the purpose of accepting and disbursing the fees paid to the City as assessed on development permits and any other monies deposited in the fund accounts for tree preservation and landscape beautification purposes. The General Tree Fund shall be used in areas other than the South Cape District. The South Cape Tree Fund shall be used in the South Cape District only.
B.
The Tree Funds established in this section shall be maintained, unless specifically terminated by the City Council.
C.
All monies received hereunder shall be placed in the appropriate Tree Fund account and inure to the use and benefit of the City.
D.
Administration of tree funds.
1.
The Tree Funds shall be expended, utilized, and disbursed by the Public Works department, upon approval of the City Manager or designee, for the purposes designated in this section.
2.
All Tree Funds deposited must be in separate accounts established and maintained apart from the general revenue funds and accounts of the City.
3.
All funds obtained hereunder may be accepted on behalf of the City by the City Manager, who shall promptly deliver to the Finance Department, which shall cause the same to be credited to the appropriate Tree Fund.
4.
Tree Funds shall be expended, utilized, and disbursed to obtain trees, irrigation systems, and any other items or materials necessary and proper for the installation and maintenance of trees in the urban forest on any publicly owned land, street right-of-way or publicly accessible parcels in the respective areas of the City. Tree Funds shall also be expended, utilized, and disbursed for the planning, planting, establishment, and preservation of trees on public lands; for planning and managing the urban forest; for reforestation; and for any other ancillary costs associated with the planting, establishment, or preservation of trees. These funds may also be expended by the City on similar programs approved by the City Council.
(Ord. 75-23, § 2, 12-13-2023)
A.
Deviations of up to 10% from the requirements of this section may be approved by the Director and as further provided herein) provided that the deviation will not be contrary to the public interest and will be in harmony with the general intent and purpose of this section and where either of the following applies:
1.
Conditions exist that are not the result of the applicant and which are such that a literal enforcement of the regulations involved would result in unnecessary or undue hardship; or
2.
Literal conformity with the regulations would inhibit innovation or creativity in design.
B.
In determining whether a particular deviation request should be approved as the result of unnecessary or undue hardship, factors the Director shall consider include the following: site constraints such as shape, topography, dimensions, and area of the property, the effect other regulations would have on the proposed development, or other locational factors that may make compliance with this section impossible or impracticable, and the effect the requested deviation would have on the community appearance. Additionally, the Director shall find that the approval of the deviation(s) would serve the intent of this section to protect the health, safety, and welfare of the public while ensuring a high level of overall aesthetic appeal and visual interest in the city.
C.
In determining whether a particular deviation request should be approved because literal conformity with the regulations would inhibit innovation or creativity in design, the Director may approve the request for deviation(s) if the applicant demonstrates that the design of the landscaping for which one or more deviations is sought is unique and innovative and, further, that the approval of the deviation(s) would enhance such unique and innovative design. Additionally, the Director shall find that the approval of the deviation(s) would serve the intent of this section to protect the health, safety, and welfare of the public while ensuring a high level of overall aesthetic appeal and visual interest in the city. For purposes of this section, indicia of unique and innovative design may include, but are not limited to, the following:
1.
Landscape details that are unique or that are exceptional in quality by virtue of artistic composition, quality of materials, dimensional attributes, or any combination thereof;
2.
Plant massing that evokes exceptional expression through use of angularity, curvature, or other means;
3.
Design elements or other forms that achieve dynamic or symmetric aesthetic balance; or
4.
Other details or forms that preclude visual monotony and are pleasing in aesthetic character.
D.
Requests for deviations and the reasons therefore shall be set forth by the applicant in the application for deviation and shall be accompanied by documentation including, a narrative that clearly defines the section(s) of the regulations of the requested deviation, a narrative explanation as to the reason for the requested deviation and why it should be approved, sample detail drawings, elevations, and perspectives which shall graphically demonstrate the proposed deviation(s) and illustrate how each deviation would operate to the benefit, or at least not to the detriment, of the public interest.
E.
For deviations to avoid unnecessary or undue hardship, the Director subject to these standards and criteria, shall approve only the minimum deviation from the provisions of this section. For deviations to avoid the inhibition of innovation or creativity in design, the Director shall approve deviations necessary to enhance the unique and innovative design. The Director may impose reasonable conditions of approval in conformity with this section. Violation of such conditions and safeguards, when made a part of the terms under which a deviation is granted, shall be deemed a violation of this section and shall be enforceable not only by revocation of the deviation, but also by all other remedies available to the city, including all code enforcement procedures.
The purpose and intent of this Section is to create outdoor lighting standards that promote the health, safety, and welfare of the residents and decrease the impacts of ambient lighting on the natural sky by establishing maximum intensities of lighting and controlling glare from lighting fixtures. The provisions of this article shall apply to all permanent outdoor lighting from any light source in nonresidential development.
A.
Outdoor lighting fixtures. All outdoor lighting fixtures shall be installed in such a manner that the source of each individual light is shielded, positioned, and maintained so as not to be visible off the premises.
B.
Light shielding for parking lot illumination. All parking lot lighting shall have no light emitted above 90 degrees.
C.
Outdoor lighting fixtures adjacent to residential. Any outdoor lighting fixture providing light to any parcel adjacent to a residentially zoned parcel, whether adjoining or not, shall emit no more than 0.1 foot-candles of light, as measured from the property line of the adjacent residential parcel, using a standard light meter, the cell of which is directed towards the source of the light.
D.
All areas designed for use after daylight hours shall be adequately lit, in accordance with Table 5.6.2. below.
Table 5.6.2. Lighting levels for commercial and industrial developments
E.
Illumination ratio. Luminaire fixtures in parking lots shall be arranged in order to provide uniform illumination throughout the parking lot area of not more than a 4:1 ratio of average to minimum illumination, and not more than 12:1 ratio of maximum to minimum illumination.
F.
Automatic Switching Requirements. Controls shall be provided that automatically extinguish all outdoor lighting when sufficient daylight is available using a control device or system such as a photoelectric switch, astronomic time switch, or equivalent functions from a programmable lighting controller, building automation system, or lighting energy management system, all with battery or similar backup power or device.
G.
Modifications. Additions, modifications, or replacement of more than 25 percent of outdoor lighting fixtures existing as of the effective date of this ordinance shall require the submission of a complete inventory and photometric plan detailing all existing and any proposed new outdoor lighting. Any new lighting shall meet the requirements of this ordinance.
H.
Exempt lighting. The provisions above shall not apply to streetlights, single-family residences, duplexes, or governmental facilities.
All rooftop equipment shall be screened from view from the right-of-way or adjacent properties by the use of a parapet wall or other architectural feature to screen the equipment or shall be set back adequately from the building edge to conceal the equipment from adjacent properties at ground level.
A.
All permitted storage areas shall be screened from adjacent properties and the right-of-way. Permissible screening materials include:
B.
A six-foot high wall of concrete or similar approved material, Section. 5.2.7 on walls;
C.
A six-foot high opaque fence of an approved material, Section. 5.2.7 fences; or
D.
A vegetative buffer, consisting of two staggered rows of shrubs a minimum of three feet tall at planting. The buffer shall create a dense barrier, at 80% opacity, within two years.
A.
All mechanical equipment at ground level shall be screened from adjacent property and the right-of-way. When possible, sound deadening materials shall be used. Permissible screening materials include:
1.
A wall or opaque fence of adequate height to screen the view of the equipment, see Section. 5.2.7 for approved materials.
2.
A vegetative buffer, which meets the specifications in Section 5.6 for a four-foot tall buffer.
Permanently installed stand-by generators serving all properties other than single-family and duplex residences where life and safety does not depend on the performance of the system.
A.
The generator may only be used in emergency situations when there is a power outage.
B.
Repairs and testing may only occur during daylight hours a maximum of once per week.
C.
Installation of a generator shall comply with the following restrictions:
1.
The generator shall not encroach more than three feet into any required setback, and in no case shall be any closer than two and one-half feet from any property line. The generator shall not be installed in an easement.
2.
The generator shall be screened from public view by:
a.
A vegetative buffer which meets the specifications in Section 5.6 for a five-foot high hedge; or
b.
A wall or opaque fence, of an adequate height to screen the equipment, which meets the specifications of Section 5.2.7.
3.
Permanent signs shall be placed at the electrical service indicating the type and location of the generator.
The appearance of non-residential and mixed-use development affects the visual image and attractiveness of the City of Cape Coral. Utilitarian design and developments with minimal architectural features detract from the city's image and character. The purpose and intent of the non-residential design standards is to promote the City as an attractive destination for tourists and residents, and to support economic vitality while protecting the public health, safety, and welfare. These regulations intend to:
A.
Enhance the visual image and attractiveness of the City;
B.
Establish reasonable standards that offer flexible and diverse design options;
C.
Ensure development in Cape Coral is of consistent high quality and character; and
D.
Regulate site layout and architectural features to ensure aesthetic and visual interest.
A.
The standards of this section shall apply to all non-residential and mixed-use development for which application for site plan approval, or a building permit is made.
B.
These design standards shall apply to existing development if a building's gross floor area is increased by 50% or more.
C.
Development on Industrial zoned sites shall be exempt from these standards.
D.
The design standards of this section do not apply when the City Council has established specific design standards for a unique area of the city unless the specific design standards otherwise expressly state their applicability.
The following types of buildings shall be exempt from the non-residential design standards.
A.
Any building that has received a temporary use permit.
B.
Any accessory structure.
C.
Bona fide agricultural buildings in the Agricultural and RE Districts such as barns and stables.
D.
Guard houses.
E.
Government facilities that are screened or not visible from a public street.
F.
Model homes.
G.
Municipal pump station buildings.
H.
Self-storage buildings provided the buildings are enclosed with a wall with a minimum height of eight feet.
I.
Pavilions, carports, gas canopies, and similar buildings that have support posts or columns but no sides except for roof treatments as required in Section 5.8.8.
J.
Buildings similar to those listed above as determined by the Director.
If any of the non-residential and mixed-use design standards of this section conflict with any other provision of the City of Cape Coral Code of Ordinances or Land Development Code, the provision that establishes the more specific standard or architectural theme governs. If neither conflicting provision establishes a specific standard or architectural theme, then the more restrictive provision governs unless otherwise expressly provided.
A.
Consistency Within a Development. Except for buildings on outparcels that contain only one unit, designed and constructed to be occupied by a single end user, regardless of the number of business operations conducted within the single unit, buildings within a development shall be designed with color schemes, building materials, finishes, roof types, roof lines, and exterior roof finishing consistent with or that resemble those of the principal building or structure on the main parcel(s).
B.
Consistency and Integrity of Building Components. All portions of any exterior side of a building, extending from finished grade to the top of the parapet wall or eaves, extending the entire width of the side of a building, must be designed with consistent architectural style, detail and trim features. All architectural features other than parapet walls, including towers or cupolas, shall be designed so as to have an equivalent character from any ground-level angle from which they can be viewed.
C.
Glazing.
1.
For buildings abutting and facing a public street, transparent windows, doors, or any combination thereof, shall cover at least 25% of the first story building wall area from grade to a height of 10 feet.
2.
For buildings with walls abutting but not facing a public street, transparent windows, doors, or any combination thereof, shall cover at least 15% of the first story building wall area from grade to a height of 10 feet
3.
For lots abutting dedicated city parking areas or portions of alleys abutting dedicated city parking areas, transparent windows, doors, or any combination thereof, shall cover at least 25% of the first story building wall area from grade to a height of 10 feet.
D.
Sides of a building. For buildings located on outparcels, all exterior sides of a building shall comply with this section. Additionally, except for a side of a building built flush with a side lot line, a side of a building that faces a rear lot line of an abutting property, and a side of a building that faces a property line that abuts an alley, all sides of a building shall comply with the standards of this section.
1.
All exterior sides of a building subject to this subsection shall include a repeating or varying pattern and shall comply with both design elements listed below. At least one of the three design elements shall repeat horizontally. All elements shall repeat or alternate at intervals of no more than 50 feet, either horizontally or vertically.
a.
Each wall shall provide visual differentiation of wall surfaces through variations in a minimum of one of the following:
i.
Building materials;
ii.
Finish textures; or
iii.
Color.
b.
Each wall shall provide a minimum of two of the following architectural features:
i.
Columns;
ii.
Pilasters;
iii.
Awnings;
iv.
Canopies;
v.
Reveals (if provided shall have a minimum depth of ½ inch);
vi.
Corbels;
vii.
Quoins ;
viii.
Keystones;
ix.
Cornices (if provided shall have a minimum height of four inches); or
x.
Other features as determined by the DCD Director that provide articulation or reduce building massing.
2.
All exterior sides of a building shall provide a minimum number of design elements among elements a. thru r. below in accordance with the gross square footage of a building, as provided herein. Required design elements may be located on an exterior wall of a building, on the roof of the building, or on both the wall(s) and the roof of a building, as applicable. If located on a roof, the design element shall be located on a portion of the roof that faces in the same direction as the exterior wall. It is not the intent of this section, however, to require the design elements to be on both the exterior wall(s) and the roof.
a.
Architectural features and detailing that create a frame and definition to the primary public entrance;
b.
One or more canopies or awnings that extend a total length of at least 30% of the length of any side of a building subject to this subsection;
c.
One or more attached porticos;
d.
Peaked or arched roof form;
e.
Overhanging eaves a minimum of 18 inches wide on all portions of a building with a pitched roof;
f.
Arcade;
g.
Colonnade;
h.
Arches or arched forms other than roof forms or an arcade;
i.
Windows or glazing that exceed the minimum glazing requirements of Subsection 5.8.5.C. by a minimum of 10% for a wall;
j.
Ornamental or structural details, including, banding or moldings used throughout the exterior building walls that add decoration and detail to a building roofline, building openings, or windows;
k.
Two or more ornamental or structural details that are horizontally continuous (except for interruptions for doors and windows), which may include belt courses or any type of three-dimensional molding, banding, projections, recesses, or niches that help to define a base, body, and cap to the proposed building;
l.
A tower such as a clock tower or bell tower;
m.
A cupola;
n.
Sculptured artwork (excluding corporate logos or advertising);
o.
Vertical articulation of walls, including pilasters, columns, or other relief with maximum separation of one third of the wall on which they are located, not to exceed a separation of 100 feet;
p.
Planter boxes that are integrated into the building architecture or wing walls that incorporate landscaped areas or places for sitting; or
q.
Curved wall containing an uninterrupted curve along at least 10% of the length of any side of a building subject to this subsection.
r.
One or more vegetated trellises that occupy a minimum of 25% of the area of a single wall.
3.
For buildings with a gross floor area of greater than 50,000 square feet, no exterior wall shall exceed 100 linear feet in a horizontal direction within a single, continuous wall plane, nor shall any single, continuous wall plane constitute more than 60% of the building's total length. A wall shall be deemed to be in a single, continuous wall plane unless it is offset (recessed or projected) by at least 24 inches from any adjacent wall plane or contains a pilaster that projects at least 36 inches from the wall.
A.
Buildings that are more than twice the height of the height of extant buildings on abutting property shall incorporate one or more transitional height elements to segue the height of the new building to the height of the closest existing building. The transitional height element shall be incorporated on the new building at the approximate cornice or roof line of the nearest existing building, if any. Where there is no extant building on adjacent property, the requirements of this sub-section will not apply. Where no single building is "nearest" to the new building, but instead two or more buildings are located an equidistance from the new building, the property owner may select the approximate cornice or roof line of any of such equidistant buildings at which to incorporate the transitional height element on the new building.
B.
Transitional height elements may include:
1.
Cornices or other decorative elements that run the length and width of the building and project a minimum of six inches from the wall;
2.
Upper story setbacks and offsets at the approximate cornice or roof line of the nearest existing building as provided above;
3.
Variations in roof planes.
Only the following finish materials for exterior walls are permitted. All other finish materials are prohibited.
A.
Concrete block with stucco finish (CBS), synthetic stucco (an exterior cladding system with a stucco-like outer finish applied over insulating boards or composite materials), or other exterior coating that is the visual equivalent of stucco. Non-textured concrete block with visible mortar joints, even if painted, is not an acceptable finished material.
B.
Textured or ribbed concrete block, e.g. "split-face block".
C.
Reinforced concrete of any finish.
D.
Glass or other glazing, whether transparent, translucent, or applied as a veneer. For purposes of this subsection, glazing consists of glass or any material that resembles glass including, but not limited to, Plexiglass or polycarbonate.
E.
Stone or brick, including simulated stone or brick.
F.
Wood, other than plywood or T1-11 type paneling, if termite-resistant species, pressure-treated, painted, or stained.
G.
Fiber-reinforced cement panels or boards.
H.
Tile.
I.
Architectural metal panels, provided that corrugated metal panels shall not exceed 30% of the surface of any wall.
J.
Vinyl siding, provided that vinyl siding shall not exceed 30% of the surface of any wall.
K.
Cargo or shipping containers, provided that any exterior wall of the container is completely sheathed with one of more of the allowable materials listed in this subsection.
A.
All non-residential and mixed-use buildings shall have variations in rooflines and roof features that are consistent with the building's mass and scale. In addition, roofs shall include features from at least two of the following five categories below.
1.
Parapet wall provided the parapet extends completely around the building on all sides. However, this requirement shall not prohibit the substitution of a pitched roof in lieu of a parapet for part of a building.
2.
A three-dimensional cornice treatment, a minimum of four inches high (not applicable along any portion of a wall that is built flush to the side lot line). Flashing at the top of a parapet shall not qualify as a cornice. Cornices shall return a minimum of eight feet around corners that transition from a building wall that requires a cornice to a building wall that does not require a cornice.
3.
Varied roof lines with different roof heights and or separate or distinct roof segments that fall at different horizontal planes above the cornice line;
4.
Overhanging eaves that extend at least 18 inches beyond the supporting walls, with a minimum fascia of six inches in height (not applicable along any portion of a wall that is built flush to the side lot line);
5.
Vertical variation in the roof line with a minimum change in elevation of two feet.
B.
Pitched roofs such as gable, hip, shed or mansard roofs shall be clad with highly durable materials such as standing seam metal, slate, ceramic, or fireproof composite tiles. Fiberglass and asphalt shingles are prohibited except for dimensional grade or better.
1.
Allowed slope. Pitched roofs shall have a minimum slope of three feet vertical rise for every 12 feet of horizontal run. The maximum slope of a pitched roof shall not exceed a one-foot vertical rise for every on foot of horizontal run.
C.
Roofs covering pavilions, carports, gas canopies, and similar structures with support posts or columns but no sides. Buildings with roofs that lack walls, whether free-standing or attached to another building, shall have a minimum slope of three feet vertical rise for every 12 feet of horizontal run. Unless a roof with an alternative design is approved by the DCD Director, all roofs are required to possess a pitched roof with a minimum slope of three feet vertical rise for every 12 feet of horizontal run. The DCD Director shall consider the following two criteria in determining whether to approve a roof with an alternative design:
1.
Whether the design of the roof evokes exceptional expression through the use of angularity, curvature, or other means; or
2.
Whether the design of the roof precludes visual monotony and enhances the aesthetic character.
Flat and parapet roofs are prohibited for buildings covered by this subsection.
A.
All buildings, whether residential, nonresidential or compound use, shall conform to the design standards provided herein., except as superseded by the following requirements.
B.
Public entrances. Public entrances shall be provided as follows:
1.
Any building facade that faces a street (excluding alleys) shall provide a public entrance oriented toward such street. In the case of a corner lot where more than one building facade faces a street, a corner entrance may serve to meet the requirements for the two streets that intersect and create the corner. All public entrances shall have convenient pedestrian access providing a direct connection from the street to the entrance via a walkway a minimum of four feet in width and not traversing any portion of an off-street parking area. In the event the City determines that this provision cannot be met due to site constraints, such walkway may traverse the off-street parking area but shall be clearly delineated by a change in paving material, pavement markings, or similar treatment.
2.
Any building facade that faces a dedicated city parking area shall provide a public entrance oriented toward such dedicated city parking area with convenient pedestrian access providing a direct connection via a walkway a minimum of four feet in width.
3.
It is not the intent of these provisions to require more than two public entrances to any use intended to be occupied by a single tenant. In the event that the provisions above cumulatively require more than two public entrances, then the requirements may be reduced such that two public entrances shall be required. In determining the orientation of such public entrances. Parkway street designations and dedicated city parking areas shall have priority.
C.
Transparency of building walls. Except for parking structures, building walls shall contain transparent windows, doors, or any combination thereof, meeting the following standards:
1.
For lots abutting primary or secondary street designations, transparent windows, doors, or any combination thereof, shall cover at least 50% of the first story building wall area that faces the primary or secondary street designation. Above the first story, non-residential uses, except hotels, shall provide transparent windows, doors, or any combination thereof, covering at least 25% of the entire building wall area; residential and hotel uses shall provide at least 15%.
2.
For lots abutting local street designations, non-residential uses, except hotels, shall provide transparent windows, doors, or any combination thereof, covering at least 25% of the entire building wall area that faces the secondary or tertiary street designations; residential and hotel uses shall provide at least 15%.
3.
For lots abutting dedicated city parking areas or portions of alleys abutting dedicated city parking areas, non-residential uses, except hotels, shall provide transparent windows, doors, or any combination thereof, covering at least 25% of the entire building wall area that faces the dedicated city parking area; residential and hotel uses shall provide at least 15%.
4.
Non-residential use building walls facing navigable waterways shall provide transparent windows, doors, or any combination thereof, covering at least 25% of the entire building wall area.
5.
The exterior of windows and doors shall remain unshuttered at all times of the day. This provision shall not apply to the following:
a.
Un-walled areas such as, but not limited to, dining and seating areas associated with restaurants and bars.
b.
Hurricane shutters or flood-proofing panels during the time period in which a flood watch or warning, a tropical storm watch or warning, or a hurricane watch or warning is in effect for any portion of Lee County. Such shutters or panels shall be removed within a week from the time they are put up, unless a hurricane, tropical storm, or flood has impacted the area, in which case the shutters may remain up for not more than three months from the date of the incident, except for good cause shown to the City.
D.
Non-residential buildings with a first story consisting of more than 35,000 square feet of floor area and consisting of a single use shall meet the following requirements:
1.
One public entrance shall be provided for every 75 feet of overall building frontage; or
2.
Liner buildings meeting the following requirements shall be provided:
a.
Liner buildings shall be provided along at least 50% of the overall building frontage.
b.
Liner buildings shall contain active uses with at least one public entrance provided for every 75 feet of liner building frontage. Such liner buildings shall comply with all applicable building setbacks and building frontages.
c.
Liner buildings shall have an interior depth of at least 15 feet.
d.
Liner buildings may be detached from, attached to, or integrated into the principal building.
E.
Architectural elements design standards: awnings, canopies, colonnades, arcades, balconies, front porches, stoops/landings, and cupolas. A first story facade facing a street or dedicated city parking area shall provide shade with awnings, canopies, colonnades, arcades, balconies, or any combination thereof, for at least 50% of its length or width, unless prohibited by Article 4, Chapter 5. Notwithstanding Section 5.1.6 of the LDC, architectural elements or any combination of architectural elements, may occur forward of the minimum setback, as applicable, but shall not extend forward of a lot line, except as provided herein. Notwithstanding Section 5.1.8 of the LDC, architectural elements, or any combination of architectural elements may extend forward of a lot line into the public right-of-way with the approval of the City Manager. The city may require the property the property owner to enter into a formal easement agreement or formal right-of-way agreement in a form acceptable to the City Attorney. The owner of the structure containing the architectural elements encroaching into the easement or right-of-way is solely responsible for repairing any damage to encroachments in the easement or right-of-way that result from maintenance or public infrastructure improvements. The property owner must comply with the provisions of Section 5.8.9.E.1-8 below.
1.
The City Manager shall consider the following criteria in determining whether to approve an architectural element, or any combination of architectural elements, that would encroach into the easement or public right-of-way.
a.
The extent to which the architectural element would encroach into the easement or right-of-way;
b.
The effect of such encroachment on any utilities that are either currently located in the easement or right-of-way or that may be located in the easement or right-of-way in the future; and
c.
The effect of such placement on any abutting properties or streetscape and on the navigability of the public right-of-way.
2.
Awnings and canopies. Awnings and canopies extending from the first story, facing a street or dedicated city parking area, and serving to meet the 50% length/width requirement of Article 4, Chapter 5 shall conform to the following:
a.
Depth shall be a five-foot minimum projection from the building facade.
b.
Height shall be an eight-foot minimum clearance, including suspended signs.
3.
Colonnades and arcades. Colonnades and arcades facing a street or dedicated city parking area shall conform to the following:
a.
Depth shall be a minimum of five feet from the building wall to the inside column face.
b.
Height shall be an eight-foot minimum clearance, including suspended signs. The lowest point on arches shall not extend below seven feet.
c.
Openings between piers, columns, or similar supporting elements shall be at least 50% of the colonnade or arcade facade area.
d.
Open multi-story verandas, awnings, balconies, and enclosed habitable space shall be permitted above the colonnade or arcade.
4.
Balconies. Balconies shall be open and un-air-conditioned. Balconies may have roofs. Roofed balconies may be enclosed with screen and may contain privacy partitions. Balconies shall not project beyond the rear building setback requirement, as applicable. Balconies shall be located no closer than six feet from the abutting side lot line. Balconies facing a street or dedicated city parking area shall have a height clearance of ten feet minimum from grade; their decorative or supporting elements that project from building walls shall have a clearance of seven feet from grade.
5.
Front porches. Front porches shall be un-air-conditioned. may be screened, and shall conform to the following:
a.
Front porches facing a street or dedicated city parking area and serving to meet the minimum building frontage requirements of Article 4, Chapter 5 shall be a minimum of eight feet in depth.
b.
Open multi-story verandas, awnings, balconies, and enclosed habitable space shall be permitted above front porches.
6.
Stoops and landings. Stoops and landings may be roofed or unroofed, and shall maintain the required minimum building setback, as applicable. However, access to a stoop, whether by stairs, ramp, or other means, may extend forward of the minimum building setback as applicable, if approved by the Director but shall not be located less than three feet from the front lot line.
7.
Cupolas. When provided, cupola(s) shall have a maximum of 400 square feet in horizontal dimension and shall be limited to two per building.
8.
Garage doors associated with residential uses, when facing the front of the lot, shall be set back at least 20 feet behind the building line.
A.
For all non-residential and mixed-use developments, air conditioning, heating, and similar equipment shall be placed on the roof or the ground.
1.
Air conditioning and heating equipment shall be prohibited from being mounted on the side of a building.
2.
Rooftop equipment shall be screened on all sides in a manner consistent with the architectural design of the building. Such screening shall be at least as high as the highest portion of the equipment or apparatus being screened.
3.
Equipment located on the ground shall be located or screened so as not to be visible from any property line abutting a public street other than an alley when viewed along a line perpendicular or radial to such property line. Screening shall consist of a wall, fence, plant material, or any combination thereof. Fences used for screening shall not be constructed of chain link with or without slats and are encouraged to be designed to appear to be constructed of material the same as the building, and to incorporate architectural trim features consistent with the building.
4.
Electric meters and similar panels may be wall-mounted and are subject to the same screening requirements outlined in subsection c. above. In lieu of screening, the equipment may be painted to match the color of the building.
5.
Attic vents and solar panels are exempt from the requirements of this subsection.
B.
Loading areas that are visible from an abutting property with a residential future land use classification or that is separated from a property with a residential future land classification by an alley or a two-lane street shall be screened by a wall that is at least six feet in height, which is constructed of the same material as the building or is designed to appear to be constructed of material the same as the building, and that incorporates architectural trim features consistent with the building, by an earthen berm that is at least six feet in height, or by a combination of wall and berm that is at least six feet in height.
A.
Deviations from the provisions of this section may be approved by the Director provided that the deviation will not be contrary to the public interest and will be in harmony with the general intent and purpose of this section and where either of the following applies:
1.
Conditions exist that are not the result of the applicant and which are such that a literal enforcement of the regulations involved would result in unnecessary or undue hardship; or
2.
Literal conformity with the regulations would inhibit innovation or creativity in design.
B.
In determining whether a particular deviation request should be approved as the result of unnecessary or undue hardship, factors the Director shall consider include, but are not limited to, the following: site constraints such as shape, topography, dimensions, and area of the property, the effect other regulations would have on the proposed development, or other locational factors that may make compliance with this section impossible or impracticable, the effect the requested deviation would have on the community appearance including, but not limited to, consideration of the mass, scale, and other characteristics of a proposed building relative to the characteristics of existing and approved surrounding buildings whether on the same or nearby sites, and the relative visibility and character of equipment or loading areas which are otherwise required to be screened along with constraints on alternative location of such equipment or loading areas. Additionally, the Director shall find that the approval of the deviation(s) would serve the intent of this section to protect the health, safety, and welfare of the public while ensuring a high level of overall aesthetic appeal and visual interest in the city.
C.
In determining whether a particular deviation request should be approved because compliance with the regulations would inhibit innovation or creativity in design, the Director approve the request for deviation(s) if the applicant demonstrates that the design of the building or development for which one or more deviations is sought is unique and innovative and further, that the approval of the deviation(s) would enhance such unique and innovative design. Additionally, the Director shall find that the approval of the deviation(s) would serve the intent of this section to protect the health, safety, and welfare of the public while ensuring a high level of overall aesthetic appeal and visual interest in the city. For purposes of this section, indicators of unique and innovative design may include, but are not limited to, the following:
1.
Architectural details that are unique or that are exceptional in quality by virtue of artistic composition, quality of materials, dimensional attributes, or any combination thereof;
2.
Building forms that evoke exceptional expression through use of angularity, curvature, or other means;
3.
Design elements or other forms that achieve dynamic or symmetric aesthetic balance; or
4.
Other details or forms that preclude visual monotony and are pleasing in aesthetic character.
D.
Requests for deviations and the reasons therefor shall be set forth by the applicant in the application for deviation and shall be accompanied by documentation including sample detail drawings, schematic architectural drawings, site plans, floor plans, elevations, and perspectives which shall graphically demonstrate the proposed deviation(s) and illustrate how each deviation would operate to the benefit or at least not to the detriment, of the public interest.
E.
Subject to these standards and criteria, the Director shall approve only the minimum deviation from the provisions of this section necessary to avoid either the unnecessary or undue hardship or the inhibition of innovation or creativity in design. The Director may impose reasonable conditions of approval in conformity with this section. Violation of such conditions and safeguards, when made a part of the terms under which a deviation is granted, shall be deemed a violation of this section and shall be enforceable not only by revocation of the deviation, but also by all other remedies available to the city, including, but not limited to, all code enforcement procedures.
A.
The purpose of this Section is to ensure all temporary events and activities are located and coordinated in harmony with the surrounding community. Temporary uses are authorized in this article as temporary accessory or principal uses for time periods proportionate and appropriate to the nature of the temporary use. Temporary uses permitted by this article may not be listed as a use in a particular zoning district. Temporary uses not listed in this article may be permitted through a temporary use agreement approved by the Director of Community Development
B.
All temporary uses and special events approved subject to the standards and requirements set forth under this article are deemed to be a privilege and not a right, which may be revoked by the city for failure to comply with any of the provisions of this article or any other local, state, or federal law governing the event. Approved temporary uses and special events may also be revoked if such revocation is in the best interest of the city based on emergency, disorder, or other unforeseen conditions. Private events held on private property shall not require a temporary use permit. Signs shall be limited to the signs permitted in Section 5.9.10 of this article and shall not be allowed within the right-of-way.
C.
Application for a temporary permit.
1.
Temporary use permits shall be coordinated by the Community Development department who may request reviews from the Fire, Police, Building, and Public Works departments as necessary to ensure safety.
2.
If a temporary use or event is proposed at a public park property, an application must be submitted to the Parks and Recreation Department along with any applicable fees and proof of insurance.
3.
Private events held on private property shall not require a temporary use permit.
Temporary outdoor sales are prohibited, except as provided here in. Excepted seasonal events involving outdoor sales of merchandise shall meet all appropriate requirements of the Building Code, Electrical Code, Fire (Life Safety) Code, and Plumbing Code, particularly regarding temporary sanitary facilities. Temporary outdoor sales are prohibited unless they have applied for and received all required permits in compliance with this Subsection. Firework, pumpkin, and Christmas tree sales may be in all nonresidential zoning districts except the Preservation and Public Zoning Districts subject to the following:
A.
Application. A complete application must be submitted to the Department of Community Development, along with a conceptual site plan.
B.
Dates and hours of operation:
1.
Firework sales may be operated from December 15 through January 1 and from June 1 through July 10;
2.
Pumpkin sales may be operated from October 1 through November 5;
3.
Christmas tree sales may be operated from November 15 to January 1; and
4.
Lots may be open from 8 AM to 10 PM.
C.
Parking and facilities.
1.
Temporary sales lots must provide five parking spaces per half acre. A paved parking lot shall not be required.
2.
Permission to place one or more tents (up to a total of 425 square feet in size) on the site, provided that the applicant provides proof of fire-retardancy and adequate tie-down measures with the application. Tents larger than 425 square feet shall require a separate tent permit. The location and setback of the tent(s) shall be shown on the conceptual site plan. If a sales trailer is being used in lieu of a sales tent, the sales trailer shall be handicap-equipped and accessible in accordance with the Florida Accessibility Code for Building Construction and ADA requirements and shall be anchored in accordance with all applicable building code standards.
3.
Permission to utilize an electric generator on site. A temporary electric pole shall not, however, be authorized by the temporary sale permit. A temporary electric pole shall require a separate permit to be applied for and issued to a licensed electrical contractor.
D.
The Director may approve temporary outdoor seasonal sales in the RML zoning district, if it is determined that such sale would not result in adverse impacts on the surrounding neighborhood. Approval of a season sale in the RML district may include conditions to protect the surrounding neighborhood from adverse impacts.
E.
The applicant shall request inspection by the city of the items authorized pursuant to this Section and shall receive approval thereof prior to beginning the sale activity. Inspection of items authorized pursuant to this Section shall be made by the Community Development and Fire Departments.
Unless otherwise permitted, outdoor display of merchandise is prohibited, except on improved property in accordance with the following conditions:
A.
All outdoor display of merchandise in non-residential districts are prohibited with the exception of the following items listed below when displayed in conjunction with an existing licensed business location which retails the items: boats; displays of new or used cars by auto dealerships or auto rental companies; bicycles; motorcycles; garden equipment such as lawnmowers, tillers, and edgers; landscaping nursery items displayed by a nursery business; tires as displayed in service stations; vehicles displayed as part of a temporary off-site vehicle sale approved pursuant to this Code; temporary sales approved pursuant to this Code; and seasonal fundraising events approved pursuant to this Code. In addition to the foregoing, the outdoor displays of fruit, vegetables, flowers, jewelry, books, or antiques are allowed in the South Cape zoning district. This restriction shall not apply to special events approved pursuant to the Code.
B.
All outdoor display of merchandise for sale, in non-residential districts is permitted with the following conditions:
1.
Except in the South Cape zoning district, such displays may be no closer than 10 feet to the front or rear property lines and five feet to side property lines or 15 feet to the side property line on corner lots.
2.
Displays may not placed in required parking areas.
3.
Displays may be placed on the public sidewalk subject to the following requirements:
a.
Displays may be placed only directly in front of the lawfully existing business which retails the items being displayed;
b.
Displays shall be placed on tables, shelves, or racks that are moved indoors during any hours the business is not open.
c.
Displays shall not impede pedestrian circulation, use of the sidewalk, or ingress and egress to nearby buildings.
C.
Outdoor display of merchandise for sale on vacant property is prohibited, except as permitted for seasonal events in accordance with Section 5.9.2. or special events in accordance with Section 5.9.10.
D.
All outdoor displays of merchandise must be approved the City Council. Notice of the Council meeting shall be mailed to surrounding property owners with 500' of the site in question.
Garage sales may be permitted on a private property in accordance with the following regulations:
A.
Garage sales are permitted to be held for a period not to exceed three days, on the basis of three such activities per residence per year, not to be held closer than 30 days apart.
B.
Prior to conducting a garage sale, the person conducting such sale is required to obtain a permit online from the city website or at the Code Enforcement Division. Such permit shall be posted or otherwise displayed on the property where the sale is being held to be visible from the street. In the event a garage sale is conducted without a permit, such sale shall be closed by the Police Department or the Code Enforcement Division, and shall remain closed until a valid garage sale permit is received from the city. Garage sale permits shall include authorization for on-site signs and off-site signs in accordance with applicable portions of the City of Cape Coral Land Development Code. On-site or off-site garage sale signs shall not be attached to any utility pole, street sign, tree, or other landscaping.
C.
The purchase of items for resale at a residence, which in essence establishes a residence as a second-hand store, is hereby prohibited.
D.
A violation of this Section shall be punishable by a fine of not less than $75 and not more than $250. Each day any violation of any provision of this Section occurs or continues shall constitute a separate offense. As an alternative, violators may be cited by a Code Enforcement Officer to appear before the Code Enforcement Special Master. In such event, violators shall be subject to fine(s) not to exceed $250 per day for first time violations or not to exceed $500 per day for repeat violations, as imposed by the Code Enforcement Special Master pursuant to the City of Cape Coral Code of Ordinances or the Florida Statutes. A person is subject to arrest if he or she refuses to close down a garage sale for which no valid permit is in effect.
A.
Construction trailers in residential zoning districts are subject to the following requirements.
1.
Construction trailers shall not be connected to potable water and sewer facilities. If the construction trailer is wired for electricity, the wiring must conform to all applicable city electric codes.
2.
The construction trailer must be removed from the site prior to issuance of a certificate of occupancy.
3.
No overnight residential use shall be permitted in a construction trailer.
4.
Construction trailers must comply with the setback requirements of the zoning district or the site.
5.
Construction trailers shall not be larger than 200 square feet.
B.
Construction trailers in non-residential zoning districts are subject to the following requirements.
1.
When a construction trailer is used as a temporary office, the trailer must be wired for electricity and must be connected to potable water and sewer facilities, if available. Wiring and plumbing must conform to applicable Electric and Plumbing Codes.
2.
The construction trailer must be located at the construction site or an abutting site with the property owner's written permission.
3.
The construction trailer must be removed from the site prior to issuance of a certificate of occupancy.
4.
No overnight residential use shall be permitted in a construction trailer.
5.
Construction trailers must comply with the setback requirements of the zoning district or the site.
A.
Contractor staging for essential public facilities. Contractor staging areas for materials used in construction of essential public facilities are permitted in all zoning districts, subject to the following requirements:
1.
The temporary staging area shall serve a project being carried out in the vicinity of the construction staging area;
2.
No land clearing, removal of vegetation, or fill shall occur to accommodate the staging area;
3.
All activities at the staging area shall occur between 7:00 a.m. to 7:00 p.m. Monday through Saturday only;
4.
Temporary fencing may be used to enclose the staging area;
5.
No structures other than a permitted construction trailer may be placed on the property; and
6.
No outdoor lighting is permitted for any staging area in a residential zoning district.
7.
The staging area shall be restored upon completion of the work and restoration of any damage to any City facilities, such as roadside swales, pipes, catch basins, pavement, signs, striping, etc.
B.
Construction staging areas. Construction staging areas are a permitted activity in all zoning districts, provided the staging area is on the same parcel where construction activity is authorized by a valid building permit. Construction staging areas on vacant, adjoining, or nearby parcels is prohibited.
C.
Post disaster debris staging areas. Post disaster debris staging areas are allowed in all zoning districts on sites designated by the City for such activity.
D.
Post disaster construction staging. Staging areas for post disaster reconstruction efforts are allowed in all non-residential zoning districts.
A.
Temporary sales offices are mobile structures used only for the sale or lease of units within that development. For the purpose of this section, units to be located within the development shall mean residential, non-residential, or mixed use habitable space or leasable floor area, whether occupying all of a building or individual area within a building including residential units, residential or non-residential units, individual units in a multi-unit non-residential development, or freestanding residential or non-residential structures.
B.
Requirements for a temporary sales office. The following requirements must be met prior to the approval of a temporary sales office:
1.
Connection to sewer and water is required. If sanitary sewer and potable water are unavailable to the site, bottled water and portable sanitary facilities may be utilized until such time as sanitary sewer and potable water are available. A temporary sales office shall be connected to such facilities within 90 days of availability or within 90 days of the permitted temporary sales office, whichever is less.
2.
The temporary sales office shall meet the setbacks of the zoning district in which it is located.
3.
A temporary sales office shall not be used as a place of habitation or abode by any person(s), and shall not be used or occupied for business, office, or other purpose(s) at any time except between the hours of 7:00 a.m. and 9:00 p.m.
4.
A minimum of three paved off-street parking spaces shall be provided for the temporary sales office.
5.
The entrance to the site on which the temporary sales office is located shall consist of a city approved driveway or construction entrance. Any impervious area added for the temporary sales office shall be subject to review and approval by the city.
6.
The base of any temporary sales office shall be fully obscured by landscaping and skirting. Shrubs must be planted on 30-inch centers and have a minimum planted height of two feet. The type of irrigation, if applicable, must also be provided on the plan. Erosion shall be minimized and prevented to the extent practicable around any disturbed area.
7.
The maximum duration of the permit shall not exceed one year. The Director may extend permits for up to six months each, based upon factors that include:
a.
Size of the project.
b.
Number of lots or units in the development remaining to be sold or leased.
c.
Effect that the extension would have on the surrounding properties.
d.
Developer's need for an extension and efforts, if any, the developer has put forward toward completion of the development (e.g., effort to complete construction in a timely manner, delays beyond the reasonable control of the developer, etc.).
8.
A temporary sales office shall be removed no later than the date the development is completed or within 30 days after notice by the city that the application for development has been denied, whichever is applicable.
C.
Permit application and submittal requirements. A permit shall be required for a temporary sales office. In order to obtain a permit for the use of a structure for a temporary sales office, the applicant shall submit the following to the Department of Community Development:
1.
A scaled drawing of the site, identifying the location of the temporary sales office with dimensions. Construction plans shall also be submitted.
2.
The names of the property owner and the operator of the temporary sales officer. In the event the operator is different from the property owner, written and notarized consent from the property owner must be submitted. Such written consent shall be revocable. In the event such consent is revoked, the temporary sales office shall be removed within 30 days.
3.
The length of time the temporary mobile sales office is proposed for the site.
4.
The description of potable water and sanitary facilities that will be available for the temporary office.
D.
Inspection by city officials. To ensure compliance with all applicable laws and regulations, the temporary sales office shall be held open for reasonable inspection, without court order, by employees or agents of the City of Cape Coral or any other duly authorized governmental agency.
A.
Temporary storage containers are prohibited in any zoning district of the city, except as follows:
1.
Residential zoning districts. No more than one temporary storage container per dwelling unit is permitted in residential zoning districts.
2.
Non-residential zoning districts. No more than two temporary storage containers are permitted in non-residential zoning districts. In the case of multi-tenant non-residential properties, each business or tenant may have a temporary storage container.
3.
This section is not intended to restrict the storage or location of temporary storage containers on the premises of a business which is lawfully engaged in the sale, rental, or distribution of such containers so long as the containers are on the property of such business as "merchandise" and not for temporary storage of items or goods.
4.
The provisions of this section shall not apply to prohibit or restrict the location of temporary storage containers on any property for which a valid City of Cape Coral building permit has been issued and is in effect provided that the construction on the property has not been abandoned or allowed to lie idle in violation of Article 5-2 of the City of Cape Coral Code of Ordinances.
B.
General Requirements:
1.
No temporary storage container may be placed in one or more parking spaces if the required number of parking spaces is reduced below the minimum number of spaces required for the site.
2.
No temporary storage container shall block or reduce access to fire lane(s), handicapped parking area(s), or drainage facilities or structures, including swales and catch basins.
3.
Temporary storage containers shall not be placed in an easement or in any area designated as a buffer.
4.
The maximum size of temporary storage containers shall not exceed ten feet in width, ten feet in height, or 40 feet in length.
5.
Non-residential zoning districts. Temporary storage container permits are valid for 30 days. A maximum of two temporary storage container permits may be issued for a property or, in the case of multi-use or multi-unit properties, for each business or commercial enterprise located on the property in any calendar year. Temporary container permits may run consecutively without any minimum period required to elapse between the issuance of permits.
6.
Residential zoning districts. Temporary storage container permits are valid for seven days. A maximum of two temporary storage container permits may be issued in any calendar year. Temporary container permits may run consecutively without any minimum period required to elapse between the issuance of permits. No dwelling unit shall utilize a temporary storage container for more than 14 days in any 12-month period.
A.
Purpose and intent. The purpose of this ordinance is to provide a means by which residents, business owners, governmental agencies, and medical facilities are able to live and conduct business on the same site as their damaged structure using temporary housing and temporary business structures. When disasters result in significant destruction rendering homes and businesses uninhabitable, temporary housing and temporary business structures will provide residents and businesses with the ability to quickly resume normal activities during the restoration of their permanent structures.
B.
Definitions. Terms used in this subsection shall have the meanings as defined in Article 11, Definitions, unless the context clearly indicates or requires a different meaning.
C.
Declaration of habitable structure emergency. Following a disaster, the city shall evaluate the effect of the disaster on the public health, safety, and welfare. If the City Council finds that the disaster has negatively affected residential housing or business structures in the city by a significant degree, the City Council may, by a majority vote, declare the existence of a habitable structure emergency. Upon the declaration of a habitable structure emergency by vote of the City Council, the provisions of this subsection shall become effective. The habitable structure emergency shall identify the disaster which created the emergency situation, and may be declared for either a specified period of time or an indefinite period of time. If the emergency is for an indefinite period of time, the emergency shall continue until City Council, by a majority vote, terminates the habitable structure emergency.
D.
Habitable structure emergencies. During a habitable structure emergency, the city will allow, in accordance with the provisions set forth herein, the use of temporary structures. Temporary residential structures and temporary business structures must be approved by the city with a temporary placement permit. Application and issuance criteria for a temporary placement permit are as set forth below.
E.
Temporary business structures may be used for business owners to provide a means for a business to remain open during the time the permanent business structure is being repaired or replaced. Temporary business structures may be used to provide temporary facilities for governmental uses, critical public facilities, charitable, religious, or educational institutions that have been rendered uninhabitable. The regulations for temporary business structures shall apply to temporary business structures used for governmental uses, critical public facilities, charitable, religious, or educational institutions. For these institutions, the habitable structure regulations shall apply; however, the Building Official may waive any regulations when strict enforcement may preclude them from carrying out their normal or emergency functions. Critical facilities shall be limited to the following:
1.
Federal, state, regional, or local government facilities;
2.
State, county, or local emergency operations centers;
3.
Police, fire, and emergency medical facilities;
4.
Radio and television stations;
5.
Public, semi-public, and privately-owned utilities;
6.
Hospitals, emergency medical care facilities, infusion centers, dialysis centers, physician's offices; and
7.
Nursing homes and assisted living facilities.
F.
Temporary placement permit. Following the declaration of a habitable structure emergency, a property owner may apply for a temporary placement permit (TPP) to locate onsite while the permanent structure is being repaired or rebuilt. A temporary placement permit (TPP) may be considered by the Building Official when the following criteria are met:
1.
The existing permanent habitable structure has been determined to be uninhabitable as the result of a disaster by inspection of the city Building Official;
2.
The property owner or occupant of a damaged structure desires to locate in a temporary residential or business structure; and
3.
A habitable structure emergency must be in effect at the time of application.
G.
Applications for temporary placement permits.
1.
Application forms and required fees.
2.
The following permits are required prior to application for a TPP:
a.
City permits for hook-up to electric, potable water, and wastewater utilities; and
b.
A State Department of Health or State Department of Environmental Protection permit authorizing the connection of the temporary residence to an onsite or small domestic wastewater treatment system.
H.
Time limits. Temporary structures may be located for a period not to exceed 30 days. At the end of that 30-day period, if no application has been filed, the temporary habitable structure must be immediately removed from the site. If an application has been filed within the 30-day time period, the temporary habitable structure may remain in place until the TPP is either approved or denied. Once approved, the temporary habitable structure may remain in accordance with the TPP. If denied, the temporary structure shall be removed within five days from the date of denial.
I.
Terms of use of temporary habitable structures. Applicants for a temporary habitable structure shall be subject to the following:
1.
Except as otherwise provided herein, temporary structures shall not be occupied until such time as a valid TPP has been issued and is in effect for the site.
2.
Connection to sanitary sewer and potable water, or onsite water and wastewater facilities, and an external electrical system are required within 20 days of issuance of the TPP. Inspections for such connections shall be called into the city within two days of completion of each connection. Electrical and plumbing connections must be done by electricians or plumbers licensed to do business in the City of Cape Coral. If there is no electricity to the site due to a power outage, a generator may be used. Upon restoration of electricity to the property, connection to the local power grid must be made within 24 hours of power restoration.
3.
An application for a building permit is required within three months from the date of issuance of the TPP for temporary residential structures or within six months for temporary business structures. Failure to apply for a building permit within the required time shall deem the TPP revoked pursuant.
4.
If a building permit application has not been submitted within the required time-frames, an applicant may petition City Council for relief from the time restrictions of this subsection. City Council shall determine whether the failure to apply for a building permit is due to good cause shown by the applicant. If City Council denies the request for relief, the temporary structure shall be removed from the site within ten days from the date of denial, or at the end of the initial three-month period for temporary residential structures, or at the end of the initial six-month period for temporary business structures, whichever is later.
5.
Temporary habitable structures with a TPP may be used until the earlier of: 1) completion of the rehabilitation or reconstruction of the damaged structure; or 2) until such time as the owner or occupants of the damaged structure are established in a permanent structure at another location.
6.
Occupants must comply with all mandatory hurricane evacuation requirements.
J.
Temporary structures. Temporary habitable structures must comply with the following:
1.
Temporary residential structures may consist of a recreational vehicle or a travel trailer. Temporary business structures may consist of recreational vehicles, travel trailers, or mobile offices. At the discretion of the Building Official, additional types of temporary business structures may be allowed, consistent with applicable federal, state, and local regulations and the provisions of this ordinance.
2.
Must meet all applicable National Fire Protection Association and Life Safety codes and regulations as well as all applicable state and local requirements for tie-downs.
3.
Shall contain plumbing (both water and wastewater) and electrical connections and shall be capable of being hooked up or attached to external plumbing and electrical systems. Temporary residential structures shall contain a kitchen capable of being hooked up or attached to external plumbing and electrical systems. Requirements for temporary business structures shall be based upon the proposed use.
4.
Shall meet the Florida Accessibility Code for building construction amenities.
L.
Placement of temporary habitable structures. The following site considerations are required for placement of a temporary habitable structure:
1.
Temporary residential structures may be anywhere on the site of the existing permanent residence; however, no a temporary residence is allowed within road rights-of-way or drainage or utility easements. The city may waive any development regulations regarding lot areas, dimensions, setbacks, lot coverage, height, and open space to accommodate temporary residential structures.
2.
Where more than one existing permanent residence has been rendered uninhabitable, the Building Official may allow up to the number of damaged permanent residences or residential units on the site. Such determination shall be based upon consideration of life, health, and safety requirements.
3.
For temporary business structures:
a.
Temporary business structures may be anywhere on the parcel of the existing business; however, temporary business structures are not allowed within road rights-of-way or drainage or utility easements. The city may waive any development regulations regarding lot areas, dimensions, setbacks, lot coverage, height, and open space to accommodate temporary business structures.
b.
Temporary business structures may be on property adjacent to the permanent business structure if a notarized, written consent from the property owner is submitted at the time of application for a TPP.
c.
The establishment of an emergency response team center on a parcel containing a business does not necessarily preclude the placement of one or more temporary business structures on the same parcel.
d.
Parking for a temporary business structure shall be provided based upon the square footage of the temporary business structure, including handicapped parking. However, a minimum of two handicapped parking spaces must be provided.
e.
The entrance to the site shall have a city approved driveway or construction entrance. Any impervious area added for the temporary business structure shall be subject to review and approval by the city.
f.
Additional conditions or restrictions may be placed on a temporary business structure as a condition of issuance in areas including, but not limited to, the following:
i.
Hours of operation;
ii.
Traffic control and access;
iii.
Lighting; and
iv.
Noise control.
M.
Issuance and revocation. The Building Official may revoke a TPP upon finding that any of the following has occurred:
1.
Failure to connect to water, sewer, and electrical within 20 days of the receipt of the TPP.
2.
If an application for a building permit has not been submitted within required time from the date of receipt of the TPP, or relocation has not occurred before the time of expiration of the TPP, or, if a building permit later expires.
3.
If, upon inspection by the Building Official, a temporary residence is not in compliance with the requirements of this subsection.
4.
Failure to evacuate temporary residence during mandatory evacuation orders.
5.
Upon revocation of a TPP, the temporary residence must be vacated and the temporary residence removed within five days of revocation. Failure to vacate or remove the temporary residence constitutes a violation subject to the penalty imposed herein.
N.
Extensions and expiration of temporary placement permits.
1.
Residential TPPs shall be valid for six months from the date of issuance. The Building Official may, for good cause shown, issue up to two extensions for six months each, for an 18-month maximum period of validity from the date of issuance.
2.
Non-residential TPPs shall be valid for nine months from the date of issuance. The Building Official may, for good cause shown, issue up to two extensions for six months each, for a 21-month maximum period of validity from the date of issuance.
3.
All applications for extensions of time must be submitted prior to the date of expiration of the current TPP.
4.
Any further extensions after the second extension and maximum time period may not be issued by the Building Official: however, applicants may submit a request to City Council for their approval of any further extension of time for the TPP.
5.
Factors to be considered by the Building Official or the City Council in determining whether to grant an extension of time of the TPP shall include:
a.
The ability of the property owner or occupant of the temporary residential or business structure to secure permanent quarters; and
b.
Any hardship that, in the opinion of the Building Official or City Council, as applicable, would warrant a further extension of the TPP.
6.
Upon the, expiration of a TPP, a temporary residence or business structure must be removed or placed in proper storage on the property within 30 days. Failure to remove or properly store the temporary residence or business structure constitutes a violation subject to the penalty imposed herein.
7.
Termination of temporary habitable structure. Once an uninhabitable structure has been issued a certificate of occupancy or certificate of use for a new or rehabilitated residence, business, or institutional facility, the TPP shall be deemed to be terminated. A temporary residential or business structure must then be removed or placed in proper storage on the property within 30 days. Failure to remove or properly store the temporary residence or business structure constitutes a violation subject to the penalty imposed herein.
8.
Penalty. Any violation of the provisions of this subsection shall be subject to a $500 fine. Each day of violation shall constitute a separate offense and shall be punishable as such.
The display of vehicles, including, but not limited to, automobiles, trucks, vans, recreational vehicles such as camping trailers, motorcycles and recreational terrain vehicles, and water craft such as boats, jet skis and wave runners, displayed for the purpose of sale, lease, trade or rental, shall be permitted at an off-site location (that is, on an improved property that is not the approved location of the business).
A.
Temporary Off-Site Vehicle Sales shall adhere to the following requirements:
1.
The commercial establishment seeking the temporary sale permit must have the written permission of the owner, or an authorized representative of the owner, of the property on which the temporary sale will be conducted. The written permission shall state that, as a condition of the city's issuance of a permit for the temporary sale, the property owner agrees to be responsible for any damage to the city's right-of-way or utility systems as a result of the sale and that any such damage shall be repaired at the expense of the property owner. In addition, such written permission shall also state that, in consideration of the city's issuance of the permit, the property owner shall hold the city harmless from any claim, loss, damage, or cause of action that arises because of the temporary sale or the issuance of the permit therefore, including any loss or damage to the owner's property or improvements thereon. Such written permission shall have a notarized signature and shall be filed with the Department of Community Development.
2.
The duration of any such temporary sale shall not exceed five consecutive days.
3.
The property on which the off-site sale is conducted shall not have been used for temporary off-site sales for more than six occasions in the preceding one-year period.
4.
Temporary sales shall only be conducted between the hours of 8:00 a.m. to 9:00 p.m.
5.
The display of vehicles and the operation of the temporary sale shall not interfere with the normal parking and traffic circulation of the business(es) located on the site.
6.
The temporary off-site vehicle sales permit shall, at all times during the permitted time period authorized for the sales, be displayed on the site upon which such sales are being conducted.
7.
No temporary sale shall begin until a permit therefore has been approved and issued by the city and all fees are paid in accordance with the city's adopted fee schedule. Prior to the issuance of a temporary sale permit, a complete application must be submitted to the Department of Community Development, along with a conceptual site plan. In addition to the proposed site layout and setbacks, the conceptual site plan shall address vehicular traffic and parking measures, fire protection measures, sanitary facilities and lighting and areas of electric needs. The temporary sale permit shall include, as applicable:
a.
The right to erect one sign or banner, a maximum of 32 square feet in size, or two such signs or banners for properties having frontage on more than one street. In lieu of such sign(s) or banner(s), the applicant may display an inflatable object in accordance with Article 7 of this code. The applicant shall include with the application sign details such as the placement of the sign and anchoring or tie-down measures. The placement and anchoring of the means of advertisement shall not interfere with the visual safety of motoring traffic.
b.
Permission to place one or more tents (up to a total of 425 square feet in size) on the site, provided that the applicant provides proof of fire-retardancy and adequate tie-down measures with the application. Tents larger than 425 square feet shall require a separate tent permit. The location and setback of the tent(s) shall be shown on the conceptual site plan. If a sales trailer is being used in lieu of a sales tent, the sales trailer shall be handicap-equipped and accessible in accordance with the Florida Accessibility Code for Building Construction and ADA requirements and shall be anchored in accordance with all applicable building code standards.
c.
Permission to utilize an electric generator on site. A temporary electric pole shall not, however, be authorized by the temporary sale permit. A temporary electric pole shall require a separate permit to be applied for and issued to a licensed electrical contractor.
d.
The applicant shall request inspection by the city of the items authorized under this section and shall receive approval thereof prior to beginning the off-site sale activity. Inspection of items authorized pursuant to subparagraphs a. through c. shall be made by the Department of Community Development. Items authorized pursuant to subparagraphs b. and c. shall also be made by the Fire Department.
B.
Any other outdoor display on improved property must be approved by City Council and is subject to review annually at the discretion of Council, except that the City Manager may approve requests for temporary displays of no longer than five days duration no more than two times per calendar year for any location or applicant when he or she is satisfied that the request would be in keeping with the harmony of the zoning district and that it would violate none of the ordinances of the City of Cape Coral.
A.
A tent may be permitted to be erected for a for a maximum of five days for an event.
B.
A tent permit is required, and the application must include the following information.
1.
A site plan showing tent location(s) with the dimensions from the property lines, existing structures, location of equipment, all streets, entrances, exits, parking areas, and restroom facilities;
2.
Notarized agent authorization from the property owner;
3.
Proof of current liability insurance; and
4.
If required, proof of sanitary facilities (port-o-let) or a letter from a neighboring business stating that restroom facilities are available for their use and the hours of operation are compatible.
C.
Review Criteria. All tent permits will be reviewed for zoning compliance, compliance with applicable building and fire code requirements, and a City Business Tax Receipt.
A person desiring to hold any temporary event, not listed herein, shall contact the Community Development department regarding the necessity of a permit and any additional permissions that may be required.
A.
Temporary seawall construction staging in residential zoning districts. Temporary off-site staging areas for seawall construction are allowed in residential zoning districts subject to the following requirements:
1.
Requirements for temporary seawall construction staging areas:
a.
Time limits. Temporary seawall staging areas may be permitted for up two years;
b.
Allowable storage of materials. Only materials used in the repair or reconstruction of seawalls may be stored on the permitted staging site. Materials shall not be located in the side yard setbacks of the staging site. All rubble or debris shall be stored in dumpsters;
c.
No land clearing, removal of vegetation, or fill shall occur to accommodate the staging area;
d.
All activities at the staging area shall occur between 7:00 a.m. to 7:00 p.m. Monday through Saturday only. No work shall occur on New Years Day, July 4 th , Thanksgiving, or Christmas Day;
e.
No structures other than a permitted construction trailer may be placed on the property;
f.
No outdoor lighting is permitted for any staging area in a residential zoning district;
g.
The permittee shall be responsible for restoration of the staging area upon completion of the work and restoration of any damage to any City facilities, such as roadside swales, pipes, catch basins, pavement, signs, striping, etc.;
h.
Barges may not be docked or moored in any manner that obstructs navigation or use of docks or boats; and
i.
Prohibited on-site activities. The following activities are prohibited:
i.
Jackhammering or other methods of breaking up concrete or other demolition debris from damaged seawalls;
ii.
Grinding or saw cutting of concrete or rebar debris; and
iii.
Any dust creating operations.
2.
Permit application and submittal requirements. A permit shall be required for a temporary seawall staging area. The applicant shall submit the following information to the Department of Community Development:
a.
A scaled drawing of the site showing the location of all material to be stored or staged for construction;
b.
The name and notarized written consent of the property owner(s). Such written authorization may be revoked at any time;
c.
The length of time the site is to be used for staging, including post-staging clean up; and
d.
The name, address, and contact information for the person(s) responsible for the staging area activities.
3.
Notice to Neighbors. Mailed notice to surrounding property owners is required for any individual seawall staging area expected to be used for a period exceeding nine months. The notice shall be mailed to all property owners of record in a 500' radius from the site. The applicant shall be responsible for the cost of notice.
4.
Extensions and expiration of seawall staging areas. Seawall staging area permits shall expire two-years from issuance unless an extension is granted. Permitted staging areas may apply for a (1) one-year extension.
5.
Inspection by City officials. In order to ensure compliance with all applicable laws and regulations, temporary seawall construction staging areas shall be held open for reasonable inspection, without court order, by employees or agents of the City of Cape Coral or any other duly authorized governmental agency.
6.
Penalty. Any violation of the provisions of this subsection shall be subject to a $500 fine. Each day of violation shall constitute a separate offense and fines.
A.
The uses listed in this chapter are deemed to be appropriate uses when developed and operated in accordance with the requirements listed within each Section. Approval may be granted administratively as long as the requirements are met and maintained. The applicant shall provide all documents necessary to prove that the requirements are met prior to receiving approval to operate and on an ongoing basis as required for the specific use.
B.
The landscape standards of this chapter are in addition to any landscape standards established in Chapter 5, Landscaping, of this Article.
A.
Requirements. All craft breweries, distilleries, or wineries which produces alcoholic beverages for consumption on premise or provide retail sales, shall comply with the following requirements:
1.
The business owner shall submit semi-annual production records to the Department of Community Development for all alcohol and nonalcohol products produced within the establishment.
2.
All mechanical equipment used in the alcohol production process shall be behind a wall or fence that separates the equipment from any property line abutting a public street other than an alley when viewed along a line perpendicular or radial to such property line. The wall or fence shall be opaque and have a minimum height of six feet.
3.
Loading and unloading areas shall be provided to the side or rear of the building. Loading and unloading areas shall not be along the front of the building.
4.
Spent or used grain or similar wastes may be placed outdoors for a period not to exceed 24 hours. The temporary stockpiling for spent or used grain shall be:
a.
Clearly shown on a detailed dimensional and labeled drawing that depicts the location of the stockpiled spent grains on the property and the distance of the stockpiled grains from the property lines and the building containing the artisan brewery, distillery, or winery;
b.
Located only along the side or rear of the building; and
c.
Fully enclosed in containers that are behind an opaque wall or fence. The wall or fence shall have a minimum height of six feet. Cargo containers and tractor trailers shall not be utilized for the temporary stockpiling of spent or used grains even if the cargo containers and tractor trailers are behind an opaque wall or fence.
B.
Waiver of requirements.
1.
Permitted and Conditional Uses. To encourage the repurposing of existing buildings in the NC or SC districts, any craft brewery, distillery, or winery that is approved as a permitted use, the provisions of this Section may be waived in part or in their entirety by the Director for the purpose of spurring economic development based on the criteria contained in Subsection 2.
2.
Criteria. In determining whether to waive one or more of these standards the Community Development Director shall utilize the following criteria:
a.
The visibility of the mechanical equipment and loading areas from any public street(s).
b.
The proximity and visibility of the mechanical equipment and loading areas from existing residential development.
c.
The existence of site conditions that are not the result of the applicant and which are such that a literal enforcement of the regulations involved would result in unnecessary or undue hardship.
d.
The effect other regulations would have on the proposed development or other locational factors that may make compliance with this Section impossible or impracticable.
e.
The annual production of alcohol anticipated to be produced by the establishment.
f.
The size and extent of the equipment requiring screening.
Duplexes and Single-family Semi-detached dwellings must meet the following conditions:
A.
All duplexes or single-family semi-detached dwellings on parcels less than 20,000 square feet in area must be served by public water and sewer.
B.
All duplex and single-family semi-detached dwelling parking areas and driveways in the RML zoning district shall conform to one of the following Duplex Driveway and Parking Design Standards:
C.
Duplex structures in the RML zoning district may not be sold, subdivided, or conveyed by deed into individually owned parcels or dwelling units.
D.
Landscaping shall be provided at a rate of two trees and six shrubs per each 2,500 square feet of the lot. A portion of the required landscaping shall be placed in the locations shown on the Duplex Driveway and Parking Design Standards.
E.
All duplexes and single-family semi-detached structures shall incorporate three of the following design elements into each dwelling unit:
1.
Dwelling entry as the primary façade feature;
2.
Garage door recessed from the front façade, a preferred minimum of four feet;
3.
Horizontal eaves broken up with gables, projection, and articulation;
4.
Projecting eaves and gables, related to building massing;
5.
Building massing and roof form which articulate individual unit definition;
6.
Offset of four feet where two garage doors are adjacent to each other; or
7.
Projections and decorative elements, such as trellises, for visual interest.
F.
Duplexes on corner lots that have at least one dwelling unit entry on the side of a duplex shall not be required to provide a turn-around or a bump-out driveway on a 2-lane street.
G.
As an alternative to the design requirements of subsection B, above, a duplex or single-family semi-detached dwelling unit in the RML zoning district may provide a two-car garage for each dwelling unit.
Editor's note— Ord. No. 69-21, § 3, adopted Oct. 20, 2021, repealed § 5.10.4, which pertained to home occupations and derived from the Original Land Development Code.
Editor's note— Ord. 29-20, § 2, adopted May 11, 2020, repealed § 5.10.5, which pertained to RV resorts and derived from the Original Code.
Roadside food and vegetable stands shall be subject to the following requirements:
A.
Must meet the minimum building setback requirements for the district;
B.
May be in operation during daylight hours only;
C.
Shall provide a designated parking area at the side or rear of the roadside food and vegetable stand sufficient to accommodate ten vehicles;
D.
Shall be no larger than eight feet by 32 feet in dimensions, and must be structurally sound;
E.
Must meet state, county, or local access requirements;
F.
May sell fruits, plants, and vegetables only;
G.
Must be built with tie downs capable of withstanding 110 mph winds; and
H.
Must contain adequate toilet facilities.
Accessory parking lots shall meet the following requirements:
A.
Accessory parking lots on RML property shall be used only in connection with an existing use or structure in the C, CC, or P zoning districts.
B.
The parcel shall meet minimum dimensional requirements.
C.
The lots in the RML, C, CC, and P zoning districts proposed for accessory parking shall be composed of contiguous lots in that district and owned by the commercial or professional property owner or corporation served by the parking site. For purposes of this section, lots separated only by a platted alley shall be deemed contiguous.
D.
A minimum of 40% of the required parking spaces for the use shall be in a Commercial or Professional zoning district. The number of required parking spaces shall be determined by Article 6.
E.
The location of accessory parking lots shall be immediately to the rear, or across any platted alley, and within the extended side yard lot lines of the property that the parking is intended to serve.
F.
Driveways from accessory parking in RML, C, CC, and P areas to streets with abutting R-1 zoning shall not be permitted. However, commercial property fronting on Del Prado Boulevard or Santa Barbara Boulevard with full block depth and abutting R-1 zoning, shall be permitted one driveway access to the street with abutting R-1 zoning, in accordance with the City of Cape Coral Engineering Design Standards.
G.
The driveway shall be included in any traffic impact study for the property to determine the impact of commercial traffic on the local street and its intersections and if improvements are needed.
H.
Where necessary for safe and efficient turn movements, the city may restrict certain turn movements at the driveway accessing the street with abutting R-1 zoning.
I.
The parking area shall be classified as part of the entire non-residential building site.
J.
A landscape plan for the accessory parking areas in RML, C, CC, and P zoning shall be submitted with the application for this use. Landscape plans shall be drawn to scale, including dimensions and distances, and shall clearly delineate:
1.
Existing and proposed parking spaces, or other vehicular use areas, access aisles, driveways, and ingress and egress points;
2.
The location and floor area of existing building(s) to be served;
3.
The source of water supply for plantings and materials to be installed or, if existing, to be used in accordance with the requirements hereof.
4.
All parking areas shall be landscaped in accordance with the requirements of Section 5.5.13 of this Article.
5.
There shall be a minimum of seven feet of green area in side setbacks and ten feet of green area in setbacks from street lot lines which face residential areas.
6.
There shall be a continuous undulating 18 inch to three feet high by five feet deep berm of earth extending along the property facing streets.
K.
Lighting. If any parking areas are artificially lighted, they shall be so designed and arranged that lighting is primarily directed on-site. Such areas shall not be lighted at any time other than during the same hours that the use to which the parking is appurtenant is open for business, except for necessary security lighting.
L.
Stormwater Management. All parking areas shall incorporate appropriate stormwater quality design features to be reviewed with the SDP application.
(Ord. 29-20, § 3, 5-11-2020)
Solar Arrays shall meet the following requirements:
A.
These facilities may only be permitted in the Agriculture, Institutional, or Industrial zoning districts.
B.
Solar Arrays may only be permitted on lots over one acre in size.
C.
Must maintain appropriate security fencing and signs for protection.
D.
Solar Arrays shall be effectively screened with a fence, landscape material, or a combination thereof, where visible from an abutting property or right-of-way as determined by the Director.
1.
The structures may be screened with an opaque wall or fence, up to the height allowed in that zoning district.
2.
Alternatively, the structures may be screened with shrubs that meet the following requirements:
a.
A row of shrubs shall be planted along all sides of the facility for which screening is required.
b.
All shrubs required for screening shall be a minimum of 32 inches in height and be in at least a seven-gallon container size at the time of planting. All shrubs shall be planted at a spacing of three feet apart as measured on center.
c.
All shrubs shall be maintained at a minimum height of six feet at maturity and shall be maintained in good condition as long as the structures requiring screening remain.
d.
An adequate combination of the two screening options may be permitted.
Vehicle Sales, Light must meet the following requirements:
A.
The minimum parcel size shall be 2 acres.
B.
Vehicle Sales, Light shall be a standalone use only.
C.
All display areas must be on an impervious surface such as asphalt or concrete.
D.
All repairs must be ancillary and must be conducted within a building.
E.
Other than vehicles, no outdoor display of any other items shall be permitted.
Wireless Communication Facilities are permitted with the following requirements:
1.
Adequate documentation that co-location on an existing approved tower or on an existing building or structure, has been attempted and is not feasible. Such documentation shall include:
2.
The results of a designed service study demonstrating to the satisfaction of the city that the equipment planned for a proposed communication tower cannot be accommodated on an existing or approved and un-built structure.
3.
The designed service study analysis shall be based upon a search area radius of three-quarters of a mile minimum distance from the location of the intended WCF or tower, including areas outside the City of Cape Coral. At the discretion of the city, based on the city's knowledge of existing co-location opportunities, the city may allow an applicant to provide an affidavit from a professional radio frequency engineer which establishes the search area diameter for the proposed WCF or tower location and identifies all other alternatives in the area. Further information may be required by the city on the ability of the WCF or tower to be accommodated on specific sites within three-quarters of a mile of the proposed WCF or tower.
4.
When co-location is determined by staff to be infeasible, the determination shall be based upon the results of the designed service study and other evidence provided by the applicant documenting one or more of the following reasons:
a.
Structural limitation. The proposed equipment would exceed the structural capacity of the existing or approved structure, as documented by a licensed professional engineer, and the existing or approved structure cannot be reinforced, modified, or replaced to accommodate the planned or equivalent equipment at a reasonable cost.
b.
Interference. The proposed equipment would cause interference or obstruction materially impacting the usability of other existing or planned equipment at the tower or building as documented by a qualified professional and the interference or obstruction cannot be prevented at a reasonable cost.
c.
Insufficient height. Existing or approved towers and buildings within the search radius cannot accommodate the planned equipment at a height necessary to function reasonably as documented by a licensed, if applicable, professional.
d.
Lack of space. Evidence from the applicant, verified by a licensed professional, of the lack of space on existing towers or other structures within the search radius to accommodate the proposed facility.
e.
Other factors. Other reasons that make it unfeasible to locate the planned equipment upon an existing or approved tower or building as documented by a qualified and licensed, if applicable, professional.
f.
Technical consultants. The city shall have the right to retain independent technical consultants and experts that it deems necessary to properly evaluate applications for wireless telecommunications facilities or towers and to charge reasonable fees as necessary to offset the cost of such evaluations.
In addition to any other applicable requirements provided elsewhere in the Land Development Code, an application for a communication tower shall include the following:
A.
Fall zone. In the event of a catastrophic failure or collapse, towers shall be designed to collapse within an engineered fall zone lying wholly within the lot lines of the parcel containing the tower. Such fall zone shall be certified by a professional engineer, licensed in the State of Florida.
B.
Tower design for co-location. A proposed tower shall be designed to allow for future rearrangement of antennas, to provide space for antennas to be mounted at varying elevations, and to accommodate co-location.
C.
Monopoles or stealth. All towers shall be monopoles or stealth design.
D.
Illumination. A tower shall not be artificially lighted except as may be required by federal or state regulations.
E.
Surface or finish color. All towers shall be painted or have a non-contrasting finish that minimizes the visibility of the facility from public view, except where contrasting color is required by federal or state regulation. In addition, the exterior of support facilities shall be designed to be compatible with the architectural design prevailing among the structures in the surrounding developed area.
F.
Sign. The main access gate in the tower shall have affixed to it a sign not to exceed two feet by three feet in size which displays the owner's or permittee's name and an emergency telephone number.
G.
Maximum height. The maximum height of towers shall be 100 feet if the tower is designed for one service provider, 120 feet if the tower is designed to accommodate two service providers, or 140 feet if the tower is designed to accommodate three or more service providers.
H.
Landscape screening. The accessory components to the tower shall be screened from view by shrubs maintained at a height of six feet, immediately adjacent to the fence surrounding the facility and minimum of eight trees planted outside of the shrub buffer
Model Homes shall meet the following requirements.
A.
Model homes are intended to facilitate the sale of the model design, or products similar in design to the model and is not intended to allow the full scope of real estate activities and shall be restricted primarily to the sale and marketing of the model, or products similar to the model. Model homes shall be permitted as a temporary, conditional use, not to exceed 10 years, in residential zoning districts (R1, RE, RML) or within a Planned Development.
B.
A model home must meet all of the zoning and building requirements for a residence in that zoning district as well as the following:
1.
Parking. Three off-street vehicular parking spaces, including the garage, shall be provided on the model site or on an adjacent vacant property.
2.
On-site parking. A parking space may be provided in the garage. A handicap parking space is required and shall count as one of the three required spaces.
3.
Off-site parking. Adjacent vacant single-family lot(s) may be used for model home parking. A plan to provide parking on an adjacent parcel shall require ownership by the same or an affidavit of authorization from the property owner as well as a surety deposit payable to the City of Cape Coral to convert the property back to a residential or other permitted use when the structure is converted or sold. The deposit shall cover the costs associated with the conversion of the parking lot. The deposit shall be based on no less than 110% of the estimated cost by a professional engineer licensed in the State of Florida which shall be signed and sealed by the engineer, and found to be acceptable to the City. Funds and resulting interest shall be returned upon conversion of the site to a residential or other permitted use, the entire amount if the work is completed by the applicant, or the remaining funds if the City completes the work.
4.
A hedge row of at least 36 inches in height shall be planted and maintained around the vehicular parking area.
5.
On-site or off-site parking shall be a paved or approved impervious surface with appropriate signs and markings, including handicap parking.
6.
Treatment of stormwater runoff will be required for the first inch of runoff from the paved area associated with the parking lot area only.
7.
Model home parking lots require a Limited Site Development Plan approval prior to construction.
C.
Handicapped standards shall be met throughout the home, including access per the Florida Building Code and handrail and grab bar requirements.
D.
Garage office. For any garage being used as an office for a model home the applicant must submit the following:
1.
Plan of garage-office facility, including false walls, temporary electrical and plumbing.
2.
Plan showing how garage will be returned to its original use.
3.
$10,000.00 refundable surety to ensure that the garage is converted back to the FEMA standards for single-family home usage.
E.
Sign standards as defined in Article 7 of this code.
F.
Upon completion of the construction and approval of the unit as a model home, a "temporary certificate of occupancy" will be issued to the owner of the model home to remain open for a period of five years. Extensions beyond this five-year temporary certificate of occupancy may be granted for the structure in the event an extension is approved for the model's permit by the Director of Community Development. The initial approval and maximum extension will allow the use of an individual model home to exist for a cumulative 10 years. The decision to extend the initial permit shall be pursuant to the following considerations:
1.
The number of existing model homes within the immediate area of the extension request and impacts of those on the neighborhood.
2.
The adequacy of the right(s)-of-way upon which the model home fronts.
3.
The character or makeup of the area surrounding the model home.
4.
The potential effect of the model home on adjacent and surrounding properties.
5.
The existence of complaints relating to that model home.
6.
A demonstration of good cause from the applicant why the extension request is needed.
7.
Approval as a model home shall be recorded against the title.
Buildings and construction with outdoor storage and display shall meet the following requirements:
A.
No storage or display shall be in fire lanes or required parking areas.
B.
Materials or equipment that are brought inside a building overnight shall not be considered as display.
Editor's note— Ord. 67-24, § 2, adopted Oct. 16, 2024, repealed § 5.10.16, which pertained to self-service storage facility and derived from Ord. 11-20, § 1, adopted April 20, 2020; and Ord. 21-23, § 1, adopted March 15, 2023.
Marine fuel pump uses in the C, I, INST, CC, NC, MX7, MXB, or SC Districts shall meet the following requirements. Properties that are owned by the City of Cape Coral shall be exempt from these requirements.
A.
The minimum parcel area shall be two acres.
B.
The site shall abut a waterway with a minimum width of 150 feet.
C.
The site shall have a minimum of 200 feet of continuous water frontage.
D.
A marine fuel pump use shall be an accessory use to a commercial establishment on the site.
E.
Except for a use classified as a marina, a marine fuel pump use shall not be used in conjunction with boat repair or boat storage.
(Ord. 20-24, § 3, 6-5-2024)
A.
Purpose and Intent
1.
To provide standards and criteria for review and approval of specified conditional uses for a specific site.
2.
To provide reasonable limitations or special conditions for conditional uses, in order to address, minimize, or ameliorate potential impacts of the use on surrounding property and for the protection of the public health, safety, and welfare.
B.
General Requirements. Proposed conditional uses must meet the following requirements:
1.
The conditional use standards identified in Article 4 for the specific zoning district use and conditional use in question.
2.
The proposed conditional use will not result in development that is inconsistent with the intended character of the applicable zoning district.
3.
A listed conditional use that does not meet the applicable conditional use standards may apply for approval as a Special Exception.
C.
Review Criteria. A Conditional Use may be approved by the Director based on criteria identified in Article 4. These criteria are specific to each conditional use.
Brewpubs in the MXB district must meet the following conditions:
A.
The area used for brewing, bottling, and kegging of all beverages produced by the establishment shall not exceed 40 percent of the total floor area of the restaurant, bar, or nightclub, or exceed a total floor area of 2,500 square feet devoted for brewing, bottling, and kegging, whichever is less.
B.
An interior floor plan shall be submitted that clearly shows the area of the building that will be devoted to the brewing, bottling, and kegging component of the establishment.
C.
No outdoor storage shall be allowed including the use of portable storage units, cargo containers, and tractor trailers, except as follows: spent or used grain may be placed outdoors for a period not to exceed 24 hours. The temporary stockpiling for spent or used grain shall be:
1.
Clearly shown on a detailed dimensional and labeled drawing that depicts the location of the stockpiled spent grains and the distance of the stockpiled grains from property lines and the building containing the brewpub;
2.
Placed only along the side or rear of the building; and
3.
Fully enclosed in containers that are screened behind an opaque wall or fence. The wall or fence shall have a minimum height of six feet.
Single-family attached dwellings in the RML, CC, NC, MX7, MXB, or SC zoning districts must meet the following conditions:
A.
The number of linearly attached units must be between three and nine.
B.
Landscaping shall be provided at a rate of two trees and six shrubs per 2,500 square feet of lot, rounding up to the next full number.
C.
Three of the following design elements shall be incorporated into each dwelling unit:
1.
Dwelling entry as the primary façade feature;
2.
Garage door recessed from the front façade, a preferred minimum of four feet;
3.
Horizontal eaves broken up with gables, projection, and articulation;
4.
Projecting eaves and gables, related to building massing;
5.
Building massing and roof form which articulate individual unit definition;
6.
Offset of four feet where two garage doors are adjacent to each other; or
7.
Projections and decorative elements, such as trellises, for visual interest.
D.
In the SC zoning district, single-family attached dwellings are only permitted on sites with frontage along local streets, as identified in Section 4.2.15.B.1.
E.
In the CC zoning district, single-family attached dwellings on sites with frontage along Pine Island Road shall meet the following criteria, in addition to the other requirements of this section:
1.
Size. Developments must contain a minimum of four acres of land as shown in Table 4.1.3.B.
2.
Density. Minimum density of ten units per acre without exceeding 25 units per acre. Each project must have a minimum of 50 total units as shown in Table 4.1.3.A.
3.
Pine Island Road Setback. On sites exceeding 200 ft in width as measured at the front property line on Pine Island Road, single-family attached dwellings must be set back at least 250 feet from the Pine Island Road right-of-way. Improvements associated with single-family attached dwellings in the setback area shall be limited to the following: driveways and drive isles, signs allowed under Article 7, and landscape buffers. Stormwater treatment areas shall be prohibited in the setback area unless the stormwater system is shared with a non-residential use located in the setback area.
a.
Reductions to the minimum setback requirement based on parcel configuration. Reductions to the minimum setback requirement of 250 feet for single-family attached dwellings may be approved by the Director. In determining whether a particular request should be approved, the Director shall consider the following:
i.
Whether an irregular or unusually shaped parcel creates a hardship in developing a single-family attached dwelling behind the minimum required setback.
ii.
Whether the presence of a public street or a platted alley to the rear of the site creates a parcel with insufficient depth to provide adequate room for buildings, stormwater, parking, and landscaped areas behind the minimum required setback.
b.
Requests to reduce the minimum setback requirement shall be made in writing to the Director. Materials submitted to the Director shall include a site plan and a letter of intent with a narrative explaining how the configuration of the site impedes or interferes with the development of a single-family attached dwelling behind the required setback line. The Director may request additional information necessary to adequately evaluate such requests.
In determining whether to approve a request to reduce the minimum setback requirement, the Director shall consider whether the request would serve the intent of this section to protect the health, safety, and welfare of the public. In approving such requests, the Director shall approve only the minimum setback relief necessary. The Director may impose reasonable conditions on the project including landscaping for buffering the site from Pine Island Road. Special consideration may be given to projects with a minimum of 10% of the units dedicated to affordable housing.
(Ord. 39-21, § 3, 6-16-2021)
Editor's note— Ord. 39-21, § 3, adopted June 16, 2021, changed the title of § 5.11.3 from "attached residential of three-units or more" to read as herein set out.
Multi-family dwellings in the RML, RMM, CC, NC, MXB, MX7, or SC zoning districts must meet the following conditions:
A.
Building Modulation and Articulation. All multi-family dwellings shall provide a combination of volumetric and massing modulation and articulations to prevent the construction of 'big boxes', but rather buildings that harmonize their architectural quality in a stylistically pleasant manner. All buildings shall incorporate the following combined elements from the articulation criteria identified below.
1.
A minimum of three of the following volumetric elements shall be provided:
a.
Pitched roof forms, minimum pitch of 4/12, whose sum covers greater than 30% of the overall roof area;
b.
Architectural roof overhangs four feet or greater in depth or cornices 12 inches or greater in height;
c.
Architectural arcades may be used as a means of sheltering pedestrian areas;
d.
Accent elements such as tower elements, porticos, cupolas, or domes; or
e.
A building with frontage 90 feet or less in length shall provide the following minimum massing articulations:
i.
A minimum of fifty percent (50%) of the cumulative frontage of each façade shall be setback a minimum of five feet from the primary façade and shall be distributed throughout the building frontage and shall not be provided as a single aggregated setback; and
ii.
A minimum of twenty percent (20%) of each frontage of each facade shall be setback a minimum of eight feet from the primary façade.
2.
A minimum of four of the following architectural elements shall be provided:
a.
Stoops on the ground floor and balconies on all floors above the ground floor;
b.
Porches on the ground floor;
c.
Pilasters, string courses, character lines, or other such means of subdividing the facade;
d.
Structural or ornamental details clearly distinct from the primary wall surface, e.g., lintels, sills, door and window surrounds, decorative panels, etc.;
e.
Decorative planters or planting areas a minimum of five feet in width, integrated into the building design; or
f.
Masonry in at least two contrasting tones or textures, accomplished by a change in material or coursing such as brick, natural stone, brick or stone veneer, glass, masonry stucco, decorative concrete block, decorative concrete panels, tile glazing and framing systems, split face or fluted concrete masonry, factory glazed concrete masonry units, or architectural pre-cast concrete.
B.
In the CC zoning district, multi-family dwellings that are not part of a vertical mixed-use project on sites with frontage along Pine Island Road shall meet the following criteria, in addition to the other requirements of this section:
1.
Size. Developments must contain a minimum of four acres of land as shown in Table 4.1.3.B.
2.
Density. Minimum density of ten units per acre without exceeding 25 units per acre. Each project must have a minimum of 50 total units as shown in Table 4.1.3.A.
3.
Pine Island Road Setback. On sites exceeding 200 ft in width as measured at the front property line on Pine Island Road, multi-family dwellings must be set back at least 250 feet from the Pine Island Road right-of-way. Improvements associated with multi-family dwellings within this setback area shall be limited to the following: driveways and drive isles, signs allowed under Article 7, and landscape buffers. Stormwater treatment areas shall be prohibited in the setback area unless the stormwater system is shared with a nonresidential use located in the setback area.
a.
Reductions to the minimum setback requirement based on parcel configuration. Reductions to the minimum setback requirement of 250 feet for a multi-family dwelling may be approved by the Director. In determining whether a particular request should be approved, the Director shall consider the following:
i.
Whether an irregular or unusually shaped parcel creates a hardship in developing a multi-family dwelling behind the minimum required setback.
ii.
Whether the presence of a public street or a platted alley to the rear of the site creates a parcel with insufficient depth to provide adequate room for buildings, stormwater, parking, and landscaped areas behind the minimum required setback.
b.
Requests to reduce the minimum setback requirement shall be made in writing to the Director. Materials submitted to the Director shall include a site plan and a letter of intent with a narrative explaining how the configuration of the site impedes or interferes with the development of a multi-family dwelling behind the required setback line. The Director may request additional information necessary to adequately evaluate such requests.
In determining whether to approve a request to reduce the minimum setback requirement, the Director shall consider whether the request would serve the intent of this section to protect the health, safety, and welfare of the public. In approving such requests, the Director shall approve only the minimum setback relief necessary. The Director may impose reasonable conditions on the project including landscaping for buffering the site from Pine Island Road. Special consideration may be given to projects with a minimum of 10% of the units dedicated to affordable housing.
4.
Mixed-Use Project. In a mixed-use project, any mixed-use building that is vertically integrated with multi-family dwelling units and a non-residential use does not require additional setbacks per Section 5.11.4.B.3. above. Multi-family dwellings in a horizontal mixed-use project must meet the required setbacks. Multi-family dwellings that are part of a horizontal mixed-use project are eligible for setback relief as outlined in Section 5.11.4.B.3.a-b.
(Ord. 39-21, § 4, 6-16-2021)
Vehicle Repair, Minor in the C and CC districts must meet the following conditions:
A.
The number of cars being kept on site, not in a garage bay, shall be limited to three.
B.
All cars kept on site for repairs must be visually screened from the right-of-way and adjacent properties.
C.
All repair work shall be performed within the garage.
D.
No outside storage of materials or chemicals, all installation to occur within garage.
E.
Hours of operation for repair work shall be limited from 7 a.m. to 8 p.m. when adjacent to any residential development.
Outdoor Screened Storage in the CC district must meet the following conditions:
A.
The screening must consist of opaque fence or wall. Chain-link fencing (with or without slats) is prohibited for screening.
B.
The minimum height of the screening shall be 6 feet.
C.
The height of the screening shall be tall enough to screen items being stored.
D.
All perimeter landscaping shall be on the outside of the screening.
E.
The screened area must be used in conjunction with principal use.
F.
The area used for storage must be an improved impervious surface such as asphalt or concrete.
G.
No vehicular access to the storage area shall be allowed from a local street.
Medical, Research, Testing or Development Laboratory Facilities in the NC district must meet the following conditions:
A.
The laboratory shall not produce any exterior impacts such as sound, smoke, or odor.
B.
No outside storage of materials shall be permitted.
Sporting Facilities, Indoor and Outdoor in the A district must be in conjunction with an agricultural use such as riding stadiums etc.
Boat Sales in the SC district may only be permitted on sites with water frontage and direct access to Caloosahatchee River.
Home-based businesses shall only be allowed as an accessory use to a residential use and must meet the following conditions:
A.
Home-based businesses shall comply with all applicable federal, state, county, and City laws, rules, and regulations, including, but not limited to, City business taxes.
B.
No more than two (2) employees or independent contractors who do not reside at the residential dwelling may work at the business. The business may have additional remote employees that do not work at the residential dwelling.
C.
Vehicles parked at home-based businesses must be parked in the driveway or other legal parking spaces that are not located within the right-of-way, on or over a sidewalk, or on or over any unimproved surfaces at the residence. All vehicles and trailers of any kind located at the residence must be in compliance with applicable parking regulations, including, but not limited to, Article 6 of this Code. The parking of any heavy equipment, such as commercial, industrial, or agricultural vehicles, equipment, or machinery is prohibited.
D.
As viewed from the street, the use of residential property is consistent with the uses of the residential areas that surround the property. External modifications made to a residential dwelling to accommodate a home-based business must conform to the residential character and architectural aesthetics of the neighborhood. The home-based business may not conduct retail transactions at a structure other than the residential dwelling; however, incidental business uses and activities may be conducted at the residential property.
E.
The business activities must comply with applicable City sign regulations in Article 7 of the Land Development Code.
F.
The business activities must comply with applicable local and state regulations with respect to equipment or processes that create noise, vibration, heat, smoke, dust, glare, fumes, or noxious odors.
G.
The business activities must comply with any relevant federal, state, county, and City regulations with respect to the use, storage, or disposal of any corrosive, combustible, or other hazardous or flammable materials or liquids.
(Ord. 69-21, § 4, 10-20-2021)
Vehicle fueling stations in the C, N, and SC (along primary streets) districts must meet the following conditions:
A.
General:
1.
All buildings, including pump islands, shall have a 25' setback from all property lines.
2.
In no case shall a lot have less than 100 feet of street frontage.
3.
Underground storage is required for all receptacles for combustible materials in excess of 55 gallons. Such storage shall comply with all building and fire codes and Environmental Protection Agency standards.
4.
The accumulation and storage of waste petroleum products is forbidden, unless in compliance with Environmental Protection Agency standards.
5.
Primary services and sales permissible include fueling stations and electric charging stations, and include only the following accessory uses:
a.
Car wash services;
b.
Sale of convenience goods; and
c.
Accessory fast food services without a drive-through.
6.
Uses permissible at a gas station do not include body work, straightening of body parts, painting, welding (other than minor repairs), or other work involving noise, glare, fumes, smoke, or other characteristics to an extent greater than normally found in vehicle fueling stations. A vehicle fueling station is not a body shop.
7.
Outside materials storage is not permissible.
8.
Lighting at a gas station shall be designed and installed so as to prevent glare or excessive light above 0.1 foot-candles on adjacent property. No source of illumination shall be allowed if such source of illumination, unshielded, would be visible from a residentially-zoned district to the extent that it interferes with the residential use of that area.
9.
The minimum size parcel shall be 1.25 acres.
10.
An eight-foot tall opaque wall constructed of concrete block coated with stucco, textured concrete block, stone, brick, or concrete (formed, decorative or precast) shall be constructed between any residential properties and a gas station. The wall shall be constructed within the gas station property, seven and one-half feet from the property line shared by the gas station and any adjacent residential property. The wall shall not be within a sight triangle.
a.
The residential side of the wall shall be landscaped with shrubs (seven-gallon and 32 inches at planting) which shall be maintained at a mature height between six and eight feet and 80 percent opacity.
11.
Stormwater runoff from the fueling and storage tank loading areas shall be directed to an oil/gas/water separator prior to entering the surface water treatment area for the project.
B.
Appearance:
1.
All structures on the site shall have a unified architectural theme.
2.
Gas station roofs shall be pitched a minimum of 4:12.
3.
A minimum of 12-inch overhangs shall be provided
4.
Roof and exterior wall surfaces, with the exception of glass areas, shall be nonreflective. Any glass coating shall not reflect outward.
5.
The use of flat steel or metal panels for the exterior walls of the gas station shall be prohibited.
6.
The rear and sides of buildings shall be finished with material that in texture and color resembles the front of the building.
7.
Glass windows and doors must make up at least 25 percent of the front elevation and 15 percent of the side elevations at eye level.
8.
Any canopy shall be restricted to a clearance of 14 feet in height and shall be consistent with the primary structure design. The canopy columns and roof shall be architecturally finished to match the building.
9.
The commercial advertising on the canopy shall be limited to 10 percent of the exterior area of the canopy and backlighting shall not be permitted on the canopy.
10.
Perimeter walls, if utilized, shall be architecturally compatible with the principal structure.
C.
Landscaping:
1.
Front yard buffer. An enhanced front yard buffer shall be required for automobile service stations to limit the visual impact of the use. The following requirements shall be utilized:
2.
Area to be landscaped. A strip of land at least 10 feet in depth, abutting the right-of-way and extending the length of the property except the entrance and exit drives, shall be landscaped.
3.
Minimum tree requirements. Palm clusters on the ends of landscape buffers parallel to the gas pump canopy. The palm clusters shall consist of three palms with a minimum of 13 feet of gray wood, at planting. One cluster shall be provided for every 30 feet of road frontage;
4.
Landscape accents. The use of landscape accents, such as planters and window boxes, shall be incorporated into the overall landscape design of the building and the site;
5.
Other materials. The remainder of the required landscaped area shall be landscaped with grass, ground cover, or other approved landscaping treatment.
D.
Vehicle Fueling Stations in the SC zoning district shall only be allowed with frontage along Del Prado Boulevard.
Religious Institutions in the R1, RML, RMM, RE, and A districts shall have a minimum size of three acres.
Industrial Business Centers in the CC zoning district shall meet the following conditions:
A.
All manufacturing, fabricating, packaging, assembly, and research shall be conducted inside of a building.
B.
No hazardous materials or chemicals shall be stored on-site or produced as a result of activities on-site.
C.
The wall required pursuant to Section 5.2.7.C. must be constructed of concrete block with stucco or brick and shall be constructed along the perimeter of the property in conjunction with the landscape buffer required in Subsection D. below.
D.
Landscaping shall be installed along the exterior of the wall. Required landscaping shall consist of the following:
1.
20-foot wide landscape buffer with nine canopy trees, four accent trees, and 80 shrubs per 100 linear feet.
2.
Canopy trees shall have a minimum height of ten feet and a minimum caliper of two inches measured at a height of 12 inches above the ground at the time of planting. The trees shall be spaced 20 feet apart.
3.
A row of shrubs shall also be planted in front of the canopy trees. The shrubs must be a minimum of 32 inches in height and be in at least a seven-gallon container size at time of planting.
4.
The landscape buffer shall meet all other requirements in Section 5.5.13.
E.
No outdoor storage of raw materials, finished products, or storage containers shall be permitted outside of a building.
(Ord. 98-21. § 4, 1-19-2022)
A.
Purpose and Intent. The purpose of this section is to establish operational and zoning regulations for Mobile Food Vendors (MFVs) in the City within select zoning districts and to provide for the safety of the public and customers of MFVs.
B.
Permitted and Prohibited locations.
1.
Subject to the requirements of this section, MFVs are allowed in the P, C, I, INST, NC, CC, MXB, MX7, and SC zoning districts. Except as provided in Subsection B.2., MFVs are prohibited in the R-1, RE, RML, RMM, PV, and A zoning districts;
2.
MFVs are prohibited in the R-1, RE, RML, RMM, PV, and A zoning districts, except if located in public parks and recreational facilities, City parking lots, or Government-owned or leased facilities, and the MFV complies with the additional requirements in Subsection D. For purposes of this section, City parking lots shall mean those improved parking lots owned or controlled by the City of Cape Coral, including those dedicated or reserved as public parking areas on the plat of the Cape Coral Subdivision; and
3.
MFVs are prohibited from vending or otherwise conducting business within any street right-of-way or right-of-way easement, except Ice Cream Vehicles operating or otherwise conducting business in accordance with Section 5.11.15.F.
C.
General requirements. MFVs shall meet the following requirements:
1.
It shall be a violation for any MFV to offer for retail sales, display or accessory advertising of any food or beverage product at any location except in compliance with the requirements of this section;
2.
All items related to the operation of MFV must be kept either on or in the MFV;
3.
The MFV must maintain the valid license required under F.S. § 509.241; and any other valid licenses and insurance required to operate a motor vehicle within the state;
4.
Alcoholic beverages must not be sold or dispensed by an MFV. Consumption of alcoholic beverages by patrons of an MFV is prohibited except when the MFV is operating as an ancillary use to and on the same premises as an establishment with a valid approval for outdoor consumption of premises;
5.
While vending or otherwise conducting business the operator of an MFV must possess and display the written and notarized permission from the owner of the property;
6.
MFVs must remove all vehicles, equipment, and other accessory items from the permitted site when not vending or otherwise conducting business;
7.
Liquid waste or grease must be disposed of at an approved location and may not be placed in tree pits, storm drains, or sanitary sewers, or onto sidewalks, streets, or other public or private space. If at any time evidence of the improper disposal of liquid waste or grease is discovered, the responsible MFV will be required to cease operation immediately and clean up the improperly disposed material to the reasonable satisfaction of the City. The responsible MFV may not resume vending or otherwise conducting business until an alternate method of disposal has been approved by the City Manager or the City Manager's designee;
8.
MFVs shall not block pedestrian or vehicular traffic entering, exiting, or maneuvering on a property;
9.
MFVs must be located on and over an approved impervious surface. No portion of an MFV shall be located on, or project over, a pervious surface;
10.
MFVs are prohibited from vending or otherwise conducting businesses within required off-street parking spaces on the site, including, but not limited to, handicap parking spaces;
11.
No MFV shall provide tables, chairs, or other furniture or equipment intended to provide accommodations for the patrons of an MFV;
12.
Tents and tarps for the purposes of providing weather protection for patrons in the process of ordering from an MFV may be provided; however, tents or tarps for the purposes of accommodating on-site dining for patrons are prohibited;
13.
Electrical service, if required, must be provided by a portable generator or by a temporary connection to an existing point of service;
14.
A permanent water or wastewater connection is prohibited;
15.
MFVs are limited to the following signs:
a.
Signs attached to its exterior, which must be secured and mounted flat against the conveyance and may not project more than six inches from the exterior of the conveyance;
b.
Awning signs, as defined in LDC Article 11, Definitions, provided that the awning does not project more than five feet (60 inches) from the exterior of the conveyance; and
c.
An A-Frame sign, as defined in LDC Article 11, Definitions, provided that the sign does not have a copy area wider than 24 inches by 36 inches.
16.
MFVs must provide a trash can or similar container and keep areas of consumption free of litter in accordance with City Code of Ordinances Chapter 9 - Health and Sanitation; and
17.
MFVs must meet all fire safety requirements of the Florida Fire Prevention Code (7 th Ed.) 2018, as amended.
D.
Additional requirements for MFVs at public parks and recreational facilities, City parking lots, or Government-owned or leased facilities.
1.
The location, dates, and hours of vending or otherwise conducting business must be approved in writing by the person or entity that owns or controls the property or public right-of-way; and
2.
MFVs, whether vending or otherwise conducting business or out of operation, are prohibited from being parked overnight at that location, regardless of the underlying zoning, unless written permission has been provided by an authorized representative of the Government entity. For purposes of this section, parked overnight shall mean parked or stored for any period of time between the hours of 2:00 a.m. and 6:00 a.m.
E.
Exemptions. The following MFVs are exempt from compliance with the requirements of this section:
1.
MFVs vending or otherwise conducting business as part of a permitted Special Event approved by the Parks and Recreation Department in accordance with LDC Article 3, Chapter 3;
2.
MFVs vending or otherwise conducting business on private property for private parties or a private event for a duration of less than one day and that is not open to the general public; and
3.
MFVs vending or otherwise conducting business during the period of a declared state of emergency in the City.
F.
Ice Cream Vehicles.
1.
Locations. An ice cream vehicle may operate within public rights-of-way and must stop as far to the right of the street as far as possible before serving customers, but may not stop or park within any open drainage conveyance.
2.
Standards. The following standards shall apply:
a.
Ice cream vehicles are allowed to operate between 9:00 a.m. and dusk in all zoning districts.
b.
Ice cream vehicles are permitted to play music from the vehicle to draw the attention of customers; however, this music must be turned off anytime the ice cream vehicle is stopped and serving customers.
G.
Any owner or operator of an MFV, or property owner(s) of property on which an MFV is located, who violates any of the provisions of this section shall be subject to a minimum civil penalty in the amount of $100.00. Each day that a violation exists shall constitute a separate and distinct violation for which a civil citation may be issued. Alternatively, a notice of violation in accordance with the code enforcement provisions and procedures provided in Chapter 2, Division 3, Cape Coral Code of Ordinances, may be issued to any person who violates any of the provisions of this section.
(Ord. 89-22, § 3, 1-25-2023)
A.
Purpose and Intent. The purpose of this section is to establish operational and zoning regulations for Mobile Food Courts (MFC) within select zoning districts and to provide for the safety of the public and customers of these businesses. It is the permanent nature that primarily distinguishes an MFC from temporary MFV locations.
B.
Permitted and Prohibited locations.
1.
Subject to the requirements of this section, MFCs are allowed in the P, C, INST, NC, CC, MXB, MX7, and SC zoning districts;
2.
MFCs are prohibited in the R-1, RE, RML, RMM, PV, I, and A zoning districts;
3.
MFCs are prohibited from occupying required off-street parking spaces; and
4.
MFCs are prohibited on public road rights-of-way.
C.
General requirements. MFCs shall meet the following requirements:
1.
MFCs must have a Site Development Plan (SDP) approved by the Director of the Development Services Department or the Director's designee;
2.
MFCs must provide a stabilized surface for each MFV that will be vending or otherwise conducting business on the property;
3.
Central water and sewer must be provided to each MFVs that will be vending or otherwise conducting business on the property;
4.
For the purposes of this section, the stabilized surface and the utility connections for an individual MFV permitted at an MFC constitute a "vending space";
5.
An MFC must provide for a minimum of three vending spaces on-site and one additional vending space for each additional MFV proposed to be permitted to vend or otherwise conduct business at the MFC. No MFV shall conduct business outside of an approved vending space;
6.
Every vending space and accessory structure must meet the setback requirements for the zoning district in which the MFC is located;
7.
All MFVs vending or otherwise conducting business within an MFC must be capable of being moved. An MFV located within a vending space shall not have any axles removed or be placed on blocks, timbers, or other materials;
8.
A minimum of three parking spaces shall be provided per vending space plus one additional parking space per 15 seats. Additional parking spaces for on-site accessory uses such as bars or restaurants are required per LDC Article 6, as amended;
9.
MFCs must provide on-site improvements for stormwater management, landscaping, sidewalks and roadway improvements, waste collection, and related improvements for non-residential land development;
10.
MFCs shall include restroom facilities on-site in conformance with the requirements of the Florida Building Code, as amended;
11.
All MFVs operating within an MFC must possess and display a current and valid Business Tax Receipt from the City of Cape Coral;
12.
MFCs must be kept free of litter in accordance with City Code of Ordinances Chapter 9 - Health and Sanitation; and
13.
MFCs must meet all fire safety requirements of the Florida Fire Prevention Code (7th Ed.) 2018, as amended.
D.
Any owner or operator of an MFV or MFC who violates any of the provisions of this section shall be subject to a minimum civil penalty in the amount of $100.00. Each day that a violation exists shall constitute a separate and distinct violation for which a civil citation may be issued. Alternatively, a notice of violation in accordance with the code enforcement provisions and procedures provided in Chapter 2, Division 3, Cape Coral Code of Ordinances, may be issued to any person who violates any of the provisions of this section.
(Ord. 89-22, § 4, 1-25-2023)
In addition to other provisions of the Land Development Code, Car wash facilities shall meet all of the following conditions:
A.
Applicability: This section shall apply to all car wash facilities as defined in LDC Section 11.2, except as noted below.
1.
Exceptions:
a.
Car wash facilities that are accessory to a primary use, where the accessory use area occupies no more than 20% of the overall site area, and which are fully integrated into the primary use structure or area are exempt from this section.
b.
Car wash facilities that are accessory to a primary use classified as light vehicle sales on sites where the establishment has a minimum developed area of five acres.
c.
Temporary outdoor car wash facilities associated with a non-profit, religious function, or governmental organization are exempt from this section provided that the use is temporary and no automated equipment or systems are utilized.
B.
Locational Requirements: All facilities shall conform to the following location standards:
1.
There shall be a minimum separation distance of one mile (5,280 feet) between parcels occupied, or to be occupied, by a car wash facility. Such a distance shall be measured by the shortest straight-line measurement between the nearest points of the applicable parcels.
2.
Car Wash facilities shall only be permitted on those parcels which have primary frontage on roadways with the following City of Cape Coral Functional Classifications: Minor Collector; Major Collector; Minor Arterial; Major Arterial; and Principal Arterial. Functional roadway classifications shall be determined by the City of Cape Coral and all classifications shall be made available to the public. Primary frontage is defined as a minimum linear frontage that is equal to or exceeds 75% of overall linear property frontage along all public rights-of-way.
3.
Parcels associated with car wash facilities shall not be permitted within 500 feet of any major intersection involving any combination of collector and/or arterial streets. This distance shall be measured in the shortest straight-line measurement between the centerline of the intersected rights-of-ways and the nearest point of the parcel.
C.
Enclosure Required: All washing uses, facilities, and equipment shall be within an enclosed building, including those systems and equipment which is ancillary or accessory to the operation of the facility except as noted below.
1.
Exception: Centrally designed vacuum facilities may have exposed apertures, nozzles, and piping directly associated with the servicing of a vehicle, provided all central equipment, including pumps, turbines, separators, filters, and manifolds, are completely enclosed within a building and that the noise generated from the exposed equipment is mitigated to the greatest extent possible.
D.
Residential Adjacency: The following regulations shall apply when a car wash facility is located directly adjacent to a site with residential zoning or a residential use, either through directly abutting property line(s) or being separated by an alleyway, canal, or local roadway:
1.
All uses and equipment shall be oriented away from the adjacent residential zoning or uses. Where such orientation would provide an undue hardship to the implementation of the uses on the site, additional screening shall be provided to mitigate the visual impact of the facility. Such screening may be comprised of additional vegetative hedging, living green walls, or an architecturally interesting vertical barrier and implemented as directed through conditions of approval applied by the City of Cape Coral.
2.
The facility shall be designed so as to provide an increased buffered separation along all directly abutting residential property lines. The buffer shall conform to all applicable standards and regulations contained in LDC Article 5, Section 5. The buffer width shall be in excess of 150% the required buffer width specified in Table 5.5.13.B and shall include the utilization of either a six-foot tall bermed earth feature or an eight-foot tall separation wall. The buffer area shall provide plantings of 150% or more of the required amount per LDC Section 5.5.13, for all plantings. The wall shall meet all applicable standards and requirements as specified per LDC Section 5.5.13.C.5.g.
a.
Where the facility abuts a mixed-use zoning district, or mixed-use site, which includes any form of residential uses and no buffer requirement is specified in table 5.5.13.B, the facility shall provide a buffer with a minimum width of twenty feet. Landscaping within the buffer shall be provided at the highest intensity specified per table 5.5.13.C abutting the R-1 district. The buffer area shall be designed to meet all other criteria listed in Section 5.11.17.D.2.
b.
Where a canal or road right-of-way separates two property lines requiring the buffer separation as specified in this section, the buffering requirements shall also be applied along the property lines adjacent to the right-of-way.
E.
Landscape Screening: Specifically designed landscape screenings and treatments shall be provided to mitigate the visual impact of exterior equipment and utilities, exterior vacuum apertures and equipment, and openings in enclosed facility spaces from all public rights-of-way. The screening shall be designed in such a way that the internal and external uses of the facility are screened to the greatest extent possible when viewed from the rights-of-way and shall be approved through conditions of approval applied by the City of Cape Coral.
F.
Outdoor Storage and Display: The outdoor storage and display of merchandise, parts and supplies shall be prohibited. All materials shall be located completely within an enclosed building.
G.
Hours of Operation: For facilities which are located adjacent to residentially zoned districts, the hours of operation for the facility shall be limited through conditions of approval applied by the City of Cape Coral.
H.
Noise Mitigation: The use of exterior loudspeakers, paging equipment or noise makers, is prohibited.
I.
Water Recycling: The facility shall be designed and constructed to comply with National Pollutant Discharge Elimination System (NPDES) requirements for car washes to prevent creating and carrying off the premises, of airborne particles of water, chemicals, and dust. No wash-water runoff generated by the facility may be conveyed off site into stormwater or wastewater systems without pretreatment. Car-wash equipment shall use a 90% water recycling system, utilizing 100% of wastewater.
J.
Prohibitions: The following shall be prohibited on site:
1.
Exterior detailing and waxing which utilizes any type of machines or equipment is prohibited.
K.
View Corridor Protection: Where a facility is developed adjacent to a residential site or use and has any frontage along a canal, or canal right-of-way, the facility shall be so designed to adequately protect visual corridors to the canal way for adjacent residential uses. Design and implementation shall be approved through conditions of approval applied by the City of Cape Coral.
(Ord. 66-24, § 2, 10-16-2024)
In addition to other provisions of the Land Development Code, any self-service storage facility shall meet all of the following conditions:
A.
Limitations: The total aggregated amount of self-service storage facility square-footage throughout the city limits of The City of Cape Coral shall be limited to a maximum of ten (10) square feet per resident. Resident population data shall be determined through the population data distributed through Bureau of Economic and Business Research (BEBR) Population Program for the City of Cape Coral. The City of Cape Coral shall publish the population or population estimate annually; the use of privately provided population estimates is prohibited. The City of Cape Coral shall track the total aggregated amount of permitted storage, as well as the area related to projects under review, and publish that number annually.
B.
Locational Requirements: All facilities shall conform to the following locational standards:
1.
There shall be a minimum separation distance of one mile (5,280 feet) between any parcels occupied, or proposed to be occupied, with a self-service storage facility. Such a distance shall be measured in the shortest straight-line measurement between the nearest points of the parcels.
2.
Self-service storage facilities shall only be permitted on those parcels which have primary frontage on roadways with the following City of Cape Coral Functional Classifications: Minor Collector; Major Collector; Minor Arterial; Major Arterial; and Principal Arterial. Functional roadway classifications shall be determined by the City of Cape Coral and all classifications shall be made available to the public. Primary frontage is defined as a minimum linear frontage that is equal to or exceeds 75% of overall linear property frontage along all public rights-of-way.
3.
Parcels utilized for self-service storage facilities shall be distanced from any major intersection by a minimum distance of 500 feet. This distance shall be measured in the shortest straight-line measurement between the centerline of the intersected rights-of-ways and the nearest point of the parcel.
C.
Enclosure Required: In all permissible zoning districts, except for (I) Industrial, all self-service storage uses, facilities, and equipment shall be completely within an enclosed building, including all uses, systems and equipment which are ancillary and/or accessory to the operation of the self-service storage facility. All storage units and storage areas shall only be accessible from the interior of the building.
D.
Mixed-Use Inclusion: Where a self-service storage facility is developed as part of an integrated vertical mixed-use development, the self-service storage facility may be developed without regard to Section 5.11.18.A provided all of the following are met:
1.
A permissible non-residential use, or any combination of permissible non-residential uses, shall occupy a minimum of 85% of the ground floor area;
2.
The permissible non-residential uses must predominantly front directly along and towards the adjacent rights-of-way;
3.
The permissible non-residential uses must be wholly distinct from, unrelated to, and not an accessory use to or of the self-service storage facility; and
4.
No storage unit or storage area may occupy any area of the ground level.
E.
Building and Site Aesthetics: All self-service storage facilities shall incorporate all of the following design features:
1.
All self-service storage facilities, including integrated mixed-use facilities, shall comply with all required standards established in Article 5, Chapter 8 of the Land Development Code. Where a conflict exists between the provisions of Chapter 8 and this section, the more restrictive provision shall govern.
2.
Multi-story buildings that are two or more floors must be designed to have the appearance of a multi-floor building. This may be achieved through the use of glazing, awnings, canopies, or other prominent architectural features that provide the impression of appearance of separate floors.
3.
Facades facing a public right-of-way or residential zoning district must provide a minimum of 40% transparent glazing area. The glazing area shall be distributed throughout the entire facade and designed in such a way as to present a holistic composition to the building's façade.
4.
Lighting: Light spillage from the facility shall be mitigated so as to limit all ambient lighting, either direct or indirect, from impacting the surrounding sites. Light limits shall meet the most restrictive standard of LDC Article 5, Chapter 6. The use of uplighting shall be prohibited unless the fixture is shielded by a roof overhang, or similar structural shield.
5.
Parking stalls and areas, as well as loading/unloading zones shall be oriented away from any residentially zoned district or right(s)-of-way. Where it is deemed impractical or provides a hardship to the development the city may permit the use of vegetative buffering and screening to reduce the visual impact of those uses on the surrounding neighborhood and rights-of-way. Vegetative buffering or screening may consist of any combination of dense hedge plantings, dense evergreen shrubbery, living green walls, architecturally significant screening structures, or earthen berms or walls per Section 5.5.13.C.5.g.
F.
Perimeter Landscaping: All self-service storage facilities, including integrated mixed-use facilities, shall provide a landscaped buffer area with a minimum width of twenty (20) feet around the entire perimeter of the site. The landscaping shall consist of a minimum of: six canopy trees per 100 feet; 6 accent trees per 100 feet; and 66 shrubs per 100 feet. The use of palm trees cannot be utilized to meet minimum planting requirements of this section. All landscaping within the buffer shall meet all applicable standards and requirements of LDC Article 5, Chapter 5.
1.
Where the facility is adjacent to a residential site, or a mixed-use site which contains any residential use, the buffer width shall be increased to 30 feet for the length of property abutting the adjacent site and shall incorporate either a six-foot high bermed earth separation or an eight-foot heigh separation wall. The required plantings within the landscape zone shall be provided in excess of 150% percent the amount required per this section. The wall shall meet all applicable standards and requirements as specified per LDC Section 5.5.13.C.5.g.
G.
Outdoor Storage and Display: The outdoor storage and/or display of merchandise, parts and supplies associated with the self-service storage use shall be prohibited. These materials shall be located completely within an enclosed building.
H.
Hours of Access: For self-service storage facilities which are located adjacent to residentially zoned districts, the hours in which the storage facility may be accessed by the public shall be limited through conditions of approval applied by the City of Cape Coral.
I.
Prohibitions: The following shall be prohibited on site:
1.
Other than the Industrial (I) district, the sale and/or rental of trucks, vans, trailers, or vehicles of any sort are prohibited.
2.
Other than the Industrial (I) district, the temporary or long-term exterior storage of vehicles of any type, including trailers, on site is prohibited. The storage of vehicles within completely enclosed individual storage units is permissible.
J.
Vehicle and Trailer Rental: The rental of moving vehicles and trailers shall be permitted on sites with Self-Service Storage Facilities provided that the rental is accessory to and operated in part with the self-storage facility use and that all vehicles and trailers associated with rental operations, in any capacity, are permanently parked behind the facility and shielded from both the right-of-way and adjacent residential uses. The vehicles and trailers shall not be parked along any rights-of-way and where adjacent to residential uses, the use of landscaping or buffer enclosures may be provided to soften the impact. The location, amount, and design of the rental area and accompanying systems and elements shall be determined and limited through conditions of approval applied by the City of Cape Coral.
(Ord. 67-24, § 3, 10-16-2024)
A.
Purpose and Intent.
1.
To provide standards and criteria for review and approval of certain special exception uses for a specific site.
2.
To provide reasonable limitations or special conditions for special exception uses, in order to address, minimize, or ameliorate potential impacts of the use on surrounding property and for the protection of the public health, safety, and welfare.
B.
General Requirements. Proposed special exception uses must meet the following requirements:
1.
The use must be a special exception use in the appropriate zoning district.
2.
The special exception use must meet the standards identified in Article 3, and those identified for the specific special exception use in Section 5.12.
3.
The proposed special exception use will not result in development that is inconsistent with the intended character of the applicable zoning district.
C.
Review Criteria. A Special Exception Use must be approved by the Hearing Examiner based on criteria identified in Article 3.
(Ord. 29-20, § 4, 5-11-2020)
Every special exception for a recreational vehicle resort must be approved through the Special Exception process. If a recreational vehicle resort is approved by the Hearing Examiner or City Council, such recreational vehicle resort shall comply not only with the conditions, if any, imposed by the Hearing Examiner or City Council, but also shall comply with the following special regulations:
A.
General provisions. Within a recreational vehicle resort, recreational vehicles that meet the requirements herein, whether self-propelled or pulled by a towing vehicle, and camping cabins, as regulated herein, may be used for temporary lodging. Facilities to accommodate administration, maintenance, recreation, dining, and personal care may be included within a recreational vehicle resort. Recreational vehicle resorts shall be deemed to be nonresidential uses, and any transient guest site occupied by a registered guest of a recreational vehicle resort shall not be deemed to be a "residence", "dwelling." or "residential premises" within the meaning of other provisions of the City of Cape Coral regulations. The management of all transient guest sites and camping cabins must be performed by a single on-site management company or entity, regardless of whether the transient guest sites, camping cabins, or both are owned by more than one person or entity.
B.
Lodging unit characteristics. Lodging shall only be allowed within recreational vehicles and camping cabins that have all of the following characteristics:
1.
Recreational vehicles:
a.
Shall be no more than eight and one-half feet in body width, exclusive of safety devices when slide outs are retracted;
b.
Shall have water and wastewater systems designed for continuous connection to water and wastewater service facilities while parked at a transient guest site; and
c.
Shall not be constructed with collapsible partial sidewalls that fold for towing in such a way as to be unusable for occupancy.
2.
Camping cabins shall comply with all of the following criteria:
a.
Cabins shall be constructed in compliance with the Florida Building Code;
b.
The square footage of interior space shall be a minimum of 200 square feet and a maximum of 600 square feet;
c.
Cabins shall be equipped with electric service and a full bathroom;
d.
Cabins are exempt from non-residential design standards, however when there is more than one cabin in a development, the color scheme, exterior materials on walls, exterior roof finishing, and roof type must be consistent among all cabins;
e.
Corrugated metal is prohibited for exterior walls; and
f.
Roofs shall consist of pitched roofs, including but not limited to, gable, hip, or mansard roofs; however, mansard roofs with flat decks and shed style roofs are prohibited.
C.
Location. Recreational vehicle resorts are permitted only on property with a Mixed-Use future land use designation. No new recreational vehicle resort shall be developed and no existing recreational vehicle resort shall be expanded within a coastal high hazard area, as depicted in the Comprehensive Plan.
D.
Minimum interior road standards. All interior roads shall be privately owned and maintained, and shall be constructed in accordance with the public road standards within the City of Cape Coral Engineering Design standards.
E.
Overall recreational vehicle resort area and density. The following requirements shall apply to the recreational vehicle resort net area:
1.
Minimum recreational vehicle resort net area: 25 acres;
2.
Maximum net density: 10 transient guest sites per acre, based on net area;
3.
Minimum net density: For recreational vehicle resorts with a net area of less than 50 acres, the minimum quantity of transient guest sites shall be 50; for recreational vehicle resorts with a net area of 50 or more acres, there shall be no less than one transient guest site per acre, rounded to the nearest whole number.
For purposes of this section, the net area shall mean the area of the recreational vehicle resort minus extant wetland areas and water areas (e.g. streams, waterways, lakes, estuaries). If an extant wetland or water area is expanded or contracted, the net area shall be based on the resultant wetland and water areas; and
4.
Overall site area: 75 acres, minimum.
F.
Transient guest sites. Transient guest sites can be designed with any of the following: 1) a pad for parking one recreational vehicle; 2) one camping cabin; or 3) one camping cabin and a pad for parking one recreational vehicle. The following standards shall apply to transient guest sites within a recreational vehicle resort:
1.
Each transient guest site shall be clearly defined by a permanent marker, constructed of a durable material such as masonry or metal, placed at all corners;
2.
No transient guest site shall include any space used for common areas, such as roadways, sidewalks, or community recreation areas;
3.
No more than 25% of the total transient guest sites shall be developed with a camping cabin. Transient guest sites with a pad for parking one recreational vehicle and one camping cabin shall not be factored into the 25% limitation to the number of camping cabins;
4.
All transient guest sites shall be designed to provide runoff of surface water to a drainage system or basin external to the transient guest site;
5.
Impervious area shall not exceed 65% of any transient guest site. Pervious areas of each transient guest site shall be covered in turf, groundcover, shrubs, trees, or any combination thereof;
6.
Each transient guest site shall have direct vehicular access to an interior road. No transient guest site shall have direct vehicular access to a public street;
7.
No transient guest site shall be located closer than 40 feet to any public street right-of-way;
8.
Separation: Each transient guest site shall be designed to ensure minimum separation between units. When measuring the distance from a recreational vehicle pad, paved areas that project more than four and one-half feet from the centerline of the pad, e.g., driveway apron flares, walkways, and patio areas, may be excluded. Distances of separation shall be as follows:
a.
Between camping cabins: 15 feet;
b.
Between a camping cabin and a recreational vehicle pad on the same transient guest site: 15 feet;
c.
Between a camping cabin and a recreational vehicle pad on a separate transient guest site: 20 feet;
d.
Between a transient guest site boundary line and a camping cabin: 7½ feet; and
e.
Between transient guest site boundary line and a recreational vehicle pad: 7½ feet.
9.
Each transient guest site designed with only a pad for parking a recreational vehicle shall have the following standards:
a.
Maximum number of recreational vehicles: 1;
b.
Minimum site area: 2,000 square feet;
c.
Maximum site area: 1 acre;
d.
Minimum site width: 35 feet, measured at right angles to and between the designated side boundary lines; and
e.
Pad and driveway materials: Each pad for a recreational vehicle and associated driveway shall be paved with concrete or pavers, or as otherwise approved by the city. The use of asphalt as a paving material for vehicle pads and driveways is prohibited.
10.
Each transient guest site developed with only a camping cabin shall have the following standards:
a.
Maximum number of camping cabins: 1;
b.
Minimum site: 2,500 square feet; and
c.
Parking space: Each site developed with a camping cabin shall include a minimum of one automobile vehicle parking space, paved with concrete or pavers, or as otherwise approved by the city, with minimum dimensions of 9 feet by 18 feet. This limitation shall not apply to transient guest sites with a pad for parking one recreational vehicle and one camping cabin. The use of asphalt as a paving material for vehicle parking spaces is prohibited.
11.
Each transient guest site developed with both a camping cabin and a pad for parking a recreational vehicle shall have the following standards:
a.
Maximum number of units: 1;
b.
Minimum site area: 5,000 square feet;
c.
Maximum site area: 1 acre;
d.
Minimum site width: 35 feet, measured at right angles to and between the designated side boundary lines; and
e.
Pad and driveway materials: Each pad for a recreational vehicle and associated driveway shall be paved with concrete or pavers, or as otherwise approved by the city. The use of asphalt as a paving material for vehicle pads and driveways is prohibited.
12.
Each transient guest site may also include accessory structures for outdoor living, including, but not limited to, an outdoor kitchen, fire pit, spa, hot tub, gazebo, shade shelter, marine improvements, and other hardscape features.
G.
Utilities. Each transient guest site shall have direct connections to central potable water, central wastewater, and electric services. All water and wastewater utility infrastructure within a recreational vehicle resort shall be privately owned and maintained, except as otherwise approved by the City Council. Within the recreational vehicle resort, all telephone, electric, television cable service, or other wires of all kinds must be underground, provided, however, that appurtenances to these systems which require aboveground installation may be exempted from these requirements and primary facilities providing service to the site of the development or necessary to service areas outside the planned development project may be exempted from this requirement.
H.
Lighting. All roads, walkways and parking areas shall be provided with lighting adequate to ensure the safety of vehicular and pedestrian traffic. All lighting shall be designed so that it is not directed toward neighboring properties.
I.
Parking. In addition to parking spaces on transient guest sites, a minimum of one parking space per ten recreational vehicle sites within the resort shall be provided for visitors.
J.
Designated storage. Except for boats at a rental facility or moored at a marine improvement, boats and utility trailers (tow dollies, "toy haulers", etc.) shall be stored in a designated storage area that shall occupy no more than 5% of the gross area of the resort. Such storage area shall be for the exclusive use of registered guests only during the period the guest is a registered occupant of a transient guest site. Designated storage areas shall be enclosed by an opaque visual barrier that is a minimum of eight feet in height. The following materials, either singly or in any combination, are the only materials that may be used to form the opaque visual barrier:
1.
Wood, plastic, vinyl, or metal fencing;
2.
Concrete block and stucco wall;
3.
Brick wall; or
4.
Formed, decorative, or precast concrete.
No storage area shall be located closer than 40 feet to any exterior property line of the recreational vehicle resort. No repair or maintenance other than cleaning shall be conducted within such storage area.
K.
Recreation area. At least one recreation area shall be provided within the resort, designed and improved to serve the recreational needs of the resort users. The recreation area(s) shall be a minimum of 500 square feet per transient guest site. All recreation areas shall be accessible to all occupants of the resort. If more than one recreation area is provided, no recreation area shall be less than 10,000 square feet. A minimum of 50% of the total required recreation area shall be comprised of recreation within a building, or outdoor facilities for active recreation, including, but not limited to, swimming pools, ball fields, tennis courts, or play lots with facilities. No portion of any transient guest site, perimeter buffer yard, internal road or road easement, or stormwater management area, except as provided below, shall be counted as required recreation area. Bodies of water may be counted toward required recreation area if recreational use is not otherwise prohibited on or in the body of water and if recreational amenities, including, but not limited to, a beach, boat rental or launching facilities, are provided. In no event, however, shall bodies of water comprise more than 50% of the required recreation area.
L.
Landscaping plan. Requests for approval for a recreational vehicle resort shall be accompanied by a landscaping plan that provides, at a minimum, compliance with Section 5.5.
M.
Phasing. The Director shall not issue a certificate of zoning compliance for a recreational vehicle resort prior to completion of construction of all of the transient guest sites, internal roads, drainage system, potable water and wastewater utilities, landscaping and buffering, and accessory structures approved for the resort, unless the Hearing Examiner (or the City Council, when applicable) approves a phasing plan that identifies size, location, sequence, and timing of the various phases of the development. If a phasing plan is approved, the Director shall not issue a certificate of zoning compliance for any phase that has not been completed in its entirety.
N.
Operation generally.
1.
Responsibilities of management. The owner of a recreational vehicle resort shall, at all times, maintain the resort and its facilities in a clean, orderly and sanitary condition. The resort management shall inform all registered occupants of transient guest sites of the provisions of this section and other related ordinances and statutes, and of their responsibilities thereunder.
2.
Certificate of use required. No lodging within recreational vehicles or camping cabins shall occur prior to the issuance of a certificate of use for the recreational vehicle resort.
3.
Length of occupancy. No owner of any recreational vehicle resort shall allow or permit any transient guest sites in a recreational vehicle resort to be rented to or occupied by any person or recreational vehicle for any period of time that would permit or allow any person or recreational vehicle to remain at such recreational vehicle resort for more than 180 days in any 365-day period.
4.
Register of occupants. The owner or operator of any recreational vehicle resort shall file a report with the Director showing the guest names and addresses, recreational vehicle license numbers, dates of arrival and departure, and the transient guest site occupied by each guest at the recreational vehicle resort during the preceding calendar quarter. Such reports shall be filed not later than April 15th, July 15th, October 15th and January 15th for the immediately preceding calendar quarter.
O.
Inspections authorized. The Director is hereby authorized to make periodic inspections of the recreational vehicle resort and transient guest sites for the purpose of determining satisfactory compliance with the regulations of this section pertaining to the health, safety and welfare of the community.
P.
Incidental facilities and amenities. Various facilities and amenities incidental to a recreational vehicle resort are permissible, however, all facilities and amenities must meet all requirements stated herein together with any additional conditions of approval.
1.
The following facilities may be approved as incidental to a recreational vehicle resort:
a.
Administrative offices;
b.
Caretaker or watchperson residence (no more than one);
c.
Car wash (Recreational vehicle washing facilities only);
d.
Clubhouses;
e.
Gatehouses;
f.
Grounds maintenance facilities;
g.
Laundry facilities;
h.
Marine improvements;
i.
Restrooms and community showers; and
j.
Sanitary dump stations.
2.
The following amenities are permitted as amenities incidental to the recreational vehicle resort even though they are typically land use classifications identified as individual "uses" within other zoning districts.
a.
Banquet halls;
b.
Bars;
c.
Commercial Recreation - indoor and outdoor;
d.
Cultural and civic facilities;
e.
Personal services;
f.
Professional Offices;
g.
Restaurant, no drive-thru; and
h.
Retail.
3.
For recreational vehicle resorts with no frontage on any type of arterial or collector street, food stores, personal services, and restaurants shall be limited as follows:
a.
Vehicular ingress/egress for parking lots supporting an amenity shall not be directly accessible from any public street, but shall only be accessible from a road within the resort;
b.
No signs shall be visible from outside the recreational vehicle resort; and
c.
The cumulative gross leasable floor area occupied by food stores, personal services, and restaurants shall not exceed 3% of the net area of the recreational vehicle resort. For purposes of this section, the net area shall mean the area of the recreational vehicle resort minus extant wetland areas and water areas (e.g. streams, waterways, lakes, estuaries). If an extant wetland or water area is expanded or contracted, the net area shall be based on the resultant wetland and water areas. Food stores shall not occupy more than 25,000 square feet of contiguous gross leasable floor area.
4.
For recreational vehicle resorts with frontage on any type of arterial or collector street, food stores, personal services, and restaurants shall be limited as follows:
a.
Vehicular ingress and egress for parking lots supporting food stores, personal services, and restaurants may be directly accessible from a public street. Visible evidence of the commercial character of food stores, personal services, and restaurants may be observable from a street outside the resort. For food stores, personal services, and restaurants that have vehicular ingress/egress directly accessible from a public street, or present visible evidence, observable from a street outside the resort, of their commercial character, no certificate of use shall be issued until a minimum of 20% of the total transient guest sites for the entire recreational vehicle resort have been constructed or installed; and
b.
The cumulative gross leasable floor area of food stores, personal services, and restaurants shall not occupy more than 3% of the net area of the resort. Not more than 25,000 square feet of contiguous gross leasable floor area shall be devoted to food stores.
5.
In the event that a recreational vehicle resort fails to meet the minimum required number of transient guest sites as a result of removal of transient guest sites or conversion to another use, or if the offering of lodging at transient guest sites is discontinued for one year or more, any activity that had previously been approved as an amenity incidental to the recreational vehicle resort use shall lose its status as an amenity and shall be treated in the same manner as a nonconforming use.
Q.
Prohibitions. The following uses, activities or improvements listed below are prohibited within a recreational vehicle resort:
1.
Permanent residential use is prohibited, except in an approved caretaker/watchperson residence.
2.
Lodging within any structure other than an approved recreational vehicle, camping cabin, caretaker, or watchperson residence (e.g., tent, mobile home, garage, shed, or agricultural building) is prohibited within a recreational vehicle resort.
3.
The storage of a recreational vehicle, boat, or accessory trailer during any period when the owner or lessee of the vehicle is not a registered occupant of a transient guest site is prohibited. Storage of boats and accessory trailers is prohibited on individual transient guest sites or on internal roads.
4.
The parking of a recreational vehicle, automobile, or truck in an area not designated for parking is prohibited.
5.
Drive-thru facilities for restaurants are prohibited.
6.
Fuel pumps for retail sales of fuel are prohibited.
R.
Evacuation plan. Prior to operation of a recreational vehicle resort, the owner or operator shall provide an emergency response plan, approved by the Fire Chief that requires the removal of all recreational vehicles in the event of a hurricane. At a minimum, all recreational vehicles and occupants shall evacuate when notified of a "Hurricane Watch" being issued for the city. Any amendment by the owner or operator to an approved evacuation plan requires approval by the Fire Chief.
(Ord. 29-20, § 4, 5-11-2020)
Every special exception for a campground must be approved through the Special Exception process. If a campground is approved by the Hearing Examiner or City Council, such campground shall comply not only with the conditions, if any, imposed by the Hearing Examiner or City Council, but also shall comply with the following special regulations:
A.
General provisions. Facilities to accommodate administration, maintenance, and recreation may be included within a campground. Campgrounds shall be deemed to be nonresidential uses, and any camp site occupied by a registered guest of a campground shall not be deemed to be a "residence", "dwelling." or "residential premises" within the meaning of other provisions of the City of Cape Coral regulations.
B.
Location. No new campgrounds shall be developed and no existing campground shall be expanded within a coastal high hazard area, as depicted in the Comprehensive Plan.
C.
Minimum interior road standards. All interior roads shall be privately owned and maintained, and shall be constructed in accordance with the public road standards within the City of Cape Coral Engineering Design standards.
D.
Overall camp site density is limited to 5 camp sites per acre, based on net area.
For purposes of this section, the net area shall mean the area of the campground minus extant wetland areas and water areas (e.g. streams, waterways, lakes, estuaries). If an extant wetland or water area is expanded or contracted, the net area shall be based on the resultant wetland and water areas.
E.
Camp sites. Camp sites can be designed for any temporary lodging which does not utilize a permanent structure. The following standards shall apply to camp sites within a campground:
1.
No camp site shall include any space used for common areas, such as roadways, sidewalks, or community recreation areas;
2.
No more than 25% of the total camp sites shall be used by a recreational vehicle at any given time.
3.
Impervious area shall not exceed 65% of any camp site. Pervious areas of each camp site shall be covered in turf, groundcover, shrubs, trees, or any combination thereof;
4.
Each camp site shall have direct vehicular access to an interior road. No camp site shall have direct vehicular access to a public street;
5.
No camp site shall be located closer than 40 feet to any public street right-of-way;
F.
Lighting. All roads, walkways and parking areas shall be provided with lighting adequate to ensure the safety of vehicular and pedestrian traffic. All lighting shall be designed so that it is not directed toward neighboring properties.
G.
Recreation area. Each campground shall provide at least one recreation area, designed and improved to serve the recreational needs of the campground users.
H.
Operation generally.
1.
Responsibilities of management. The owner of a campground shall, at all times, maintain the campground and its facilities in a clean, orderly and sanitary condition. The campground management shall inform all registered occupants of camp sites of the provisions of this section and other related ordinances and statutes, and of their responsibilities thereunder.
2.
Length of occupancy. No owner of any campground shall allow or permit any camp sites in a campground to be rented to or occupied by any person or recreational vehicle for any period of time that would permit or allow any person or recreational vehicle to remain at such campground for more than 21 days in any 365-day period.
3.
The management of all camp sites must be performed by a single on-site management company or entity.
I.
Inspections authorized. The Director is hereby authorized to make periodic inspections of the campground and camp sites for the purpose of determining satisfactory compliance with the regulations of this section pertaining to the health, safety and welfare of the community.
J.
Incidental facilities and amenities. Various facilities and amenities incidental to a campground are permissible, however, all facilities and amenities must meet all requirements stated herein together with any additional conditions of approval. The following facilities may be approved as incidental to a campground:
1.
Administrative offices;
2.
Caretaker or watchperson residence (no more than one);
3.
Clubhouses;
4.
Gatehouses;
5.
Grounds maintenance facilities;
6.
Marine improvements;
7.
Restrooms and community showers; and
8.
Sanitary dump stations.
K.
Prohibitions. The following uses, activities or improvements listed below are prohibited within a campground:
1.
Permanent residential use is prohibited, except in an approved caretaker/watchperson residence.
2.
Lodging within any structure other than an approved recreational vehicle, caretaker or watchperson residence, or temporary camping structure is prohibited within a campground.
3.
The storage of a recreational vehicle, boat, or accessory trailer during any period when the owner or lessee of the vehicle is not a registered occupant of a camp site is prohibited. Storage of boats and accessory trailers is prohibited on individual camp sites or on internal roads.
4.
The parking of a recreational vehicle, automobile, or truck in an area not designated for parking is prohibited.
L.
Evacuation plan. Prior to operation of a campground, the owner or operator shall provide an emergency response plan, approved by the Fire Chief that requires the removal of all vehicles in the event of a hurricane or other natural disaster. At a minimum, all vehicles and occupants shall evacuate when notified of a "Hurricane Watch" being issued for the city. Any amendment by the owner or operator or its successors to an approved evacuation plan requires approval by the Fire Chief or designee.
(Ord. 29-20, § 4, 5-11-2020)
The purpose of this section is to encourage the redevelopment of commercial sites with existing single-family or duplex dwellings resulting from an amendment to the Comprehensive Plan, including future land use map amendments, which amendment was not the result of an application or other action by the property owner. These provisions will provide owners with greater flexibility in converting these properties to new commercial uses while promoting the health, safety, and welfare of the surrounding community.
(Ord. 33-24, § 1, 6-5-2024)
Notwithstanding any Code provision to the contrary, sites with existing single-family dwellings or duplexes that are proposed to be converted to a nonresidential use where the owner was not an applicant of the Comprehensive Plan change that rendered the original residential use of the site to a legal nonconformity, shall comply with the following standards:
1.
Parking. A minimum of three spaces, including one handicap space shall be required on the site.
2.
Commercial trash receptacles. A commercial trash receptable and accompanying enclosure shall not be required. Trash receptacles may be stored in the building and rolled out to the curb for service. Trash receptacles stored outside shall be screened from view by an opaque fence or wall with a height of six feet from all public rights-of-way and adjacent properties.
3.
Landscaping. Landscape buffers described in LDC, Section 5.5.13.C.5. shall not be required. Where a site with nonresidential zoning shares one or more property lines with a site with residential zoning, landscaping shall include four canopy trees per 100 linear feet and a row of shrubs spaced every three feet on center along the shared property line or lines of the nonresidential site. Accent and palm trees may be substituted for canopy trees at the rate of two accent trees for every canopy tree, and three palms for every canopy tree. All shrubs shall be a minimum of 32 inches in height and be in at least a seven-gallon container size at time of planting.
4.
Sidewalks, alleys, and other right-of-way improvements. Right-of-way improvements when absent along an arterial or collector road shall be constructed consistent with LDC, Section 5.1.8. Required right-of-way improvements along local streets and alleys may be waived, in whole or in part, by the Director, at the sole discretion of the Director. In determining whether to waive any required right-of-way improvements, the Director shall consider the following:
a.
Whether the required right-of-way improvements will provide continuity with similar right-of-way improvements already present within the subject block along the subject street or alley; or
b.
Whether the site is within walking distance of ½ mile from a school or public park; or
c.
Whether the subject site has two or more sides of frontage along a public right-of-way lacking right-of-way improvements.
5.
Demolition of nonconforming residential building. In the event the owner of the site when the future land use amendment was approved demolishes the nonconforming single-family or duplex building, or proposes improvements that collectively equal or exceed 50% of the building value over a 12-month period, the provisions of this Chapter 13 shall not apply, and the site shall be redeveloped in conformance with the applicable provisions of the LDC. This provision, however, shall not restrict or prevent the owner from seeking relief from a provision appearing in the LDC that any other owner may be entitled to request.
6.
Other regulations and permits. Except as provided above, the owner of the site shall comply with all applicable local, state, and federal laws and regulations, including, but not limited to, applying for and obtaining any permits required for the development.
(Ord. 33-24, § 1, 6-5-2024)
- DEVELOPMENT STANDARDS
This Chapter shall not apply to single-family detached or duplex residential development.
The purpose of this article is to provide standards for all development in the City of Cape Coral.
All development is required to connect to public or private utilities, as required as by the City of Cape Coral Code of Ordinances, Chapter 19 Water and Sewer Utilities.
A.
In new residential subdivisions, all utility lines (including electrical power distribution, telephone, communication, street lighting, and cable television signal service) shall be installed underground. This Section shall apply to all cable, conduits, or wires forming part of an electrical distribution system, including service lines to individual properties.
However, this Section shall not apply to wires, conductors, or associated apparatus and supporting structures whose exclusive function is in transmission of electrical energy between generating stations, substations, transmission lines of other utility systems, and main distribution feeder electric lines delivering power to local distribution systems. Appurtenances such as transformer boxes, pedestal-mounted terminal boxes, and meter cabinets may be placed above ground and in such a manner as to minimize noise effects upon the surrounding residential properties.
B.
The developer shall provide for the necessary costs and other arrangements for such underground utility installation.
C.
For all new buildings in the Commercial Corridor, South Cape, and PUD zoning districts all onsite utilities including telephone, electricity, cable television, and other wires of all kinds shall be placed underground. However, appurtenances to these systems that require aboveground installation, including utility panel boxes, are exempt from this requirement if the appurtenances are not placed in front yards. When such appurtenances are placed in utility easements abutting a platted alley, they shall be placed at least ten and one-half feet from the centerline of the platted alley. These underground requirements also apply to those improvements to non-conforming structures that exceed the 50% thresholds as described in Article 8, Nonconformities. All utility infrastructure, including electric utility poles and power lines, shall be concealed from public view wherever possible. All new electric distribution lines shall be located in utility easements abutting platted alleys and the utility poles shall be positioned so that a minimum clearance of ten and one-half feet from the centerline of any platted alley is maintained. For properties that do not have a rear platted alley, the electric distribution lines and utility poles shall be placed in the rear utility easement wherever possible.
D.
In the South Cape zoning district where overhead or underground utility lines have been placed in the six-foot PUE, a property owner shall choose one of the following options:
1.
Relocate the utility lines to the alley or other acceptable location, at the property owner's sole expense, and subject to approval by the affected utility provider(s) and the City of Cape Coral; or
2.
Place a concrete sidewalk or architectural elements on the front six-foot property setback. If overhead electric lines are in place, no awnings, canopies, balconies, colonnades, arcades, or front porches may be constructed forward of this line even if otherwise required by this code. If underground lines of any type are in place, the property owner is solely responsible for repairing any damage to lawful encroachments into the six-foot easement resulting from maintenance or improvements to utility lines.
Except as otherwise provided, all building sites shall have access on a street or a road shown on an approved and recorded final plat. One or more buildings may have no direct access to a street provided that the approving authority finds that such building site(s) have adequate indirect access to a street such as a recorded easement or right-of-way through or over another parcel. The city may prohibit direct access from a parcel or building site to a street when the approving authority finds that prohibition of direct access would promote the public health, safety, and welfare based on factors including traffic or transportation safety and when the parcel or building site could be afforded indirect access to a street or other road via another parcel or building site.
A.
Intent. It is the intent of the City Council to protect underground pipelines and utilities from destruction or damage to prevent:
1.
Death or injury to persons;
2.
Property damage to private and public property; and
3.
Loss of essential pipeline or utility services to the general public.
B.
All excavation on public property, rights-of-way, or dedicated easements shall comply with the requirements of F.S. Ch. 556. Underground Facility Damage Prevention and Safety.
C.
Penalties for violation. Any person violating this section shall be punished as provided in the Code of Ordinances of the City of Cape Coral.
A.
Except as otherwise provided in the Cape Coral Code of Ordinances or the Land Development Code, in the R-1, RML, RE, and A zoning districts, the six-foot easement around the perimeter of sites shall be preserved and nothing shall be placed or constructed on such easements other than a paved driveway, walkway, sidewalk, fences, or well. In addition, for non-residential uses lawfully located in residential zoning districts, paved off-street parking areas may be placed or constructed on the six-foot easement around the perimeter of the site.
B.
In the R-1 zoning district, on property improved with a principal residential structure, stairs, hardscape features, landscape features, fall protection planters, elevated walkways, decks, and access ramps, may be constructed and placed in the six-foot public utility easement (PUE) along a side or rear property line of the residential structure and are not subject to rear or side setback requirements, provided each of the following requirements is met:
1.
Stairs, hardscape features, landscape features, elevated walkways, decks, and access ramps may project up to 36" into the 7.5-foot side yard setback and project into or occupy no more than 18" of the PUE, as measured perpendicular to the 7.5-foot side yard setback.
2.
Stairs, hardscape features, landscape features, elevated walkways, decks, and access ramps may project into the rear yard setback, including the 10-foot rear yard setback for pools and pool enclosures. Stairs, hardscape features, landscape features, elevated walkways, decks, and access ramps may be placed in the PUE along the rear property line.
3.
Fall protection planters, installed directly adjacent to an open-sided walking surface, may project up to 36" into the 7.5-foot side yard setback and project into or occupy up to 18" of the PUE, or project into the rear setback and PUE, provided the width of the planter is between 36" and 48", as measured perpendicular to such walking surface. The top surface of the fall protection planter must be located no more than 30" measured vertically to the floor or grade below at any point within 36" horizontally to the edge of the open-sided walking surface.
4.
Stairs, hardscape features, landscape features, fall protection planters, elevated walkways, decks, and access ramps shall not be structurally connected to the foundation of the residential structure in any manner that would preclude removing such material without damage to the residential structure or pool.
5.
Stairs, hardscape features, landscape features, fall protection planters, elevated walkways, decks, and access ramps shall not be permitted to project or occupy the side or rear yard PUE if any utilities or drainage improvements, above or below ground, are located in the subject PUE.
6.
An applicant may request an administrative deviation from the requirements of this Section to allow for certain encroachments into the PUE. The Development Services Director is authorized to approve such requests if all of the following conditions are met:
a.
The encroachment does not contain mechanical, electric, or plumbing equipment and/or the associated equipment pad.
b.
The encroachment will preserve at least 18 inches of the PUE, as measured from the property line.
c.
The applicant submits a letter of no objection from each utility provider with an interest in the PUE.
d.
The applicant executes a hold harmless and indemnification agreement in a form approved by the City Attorney's Office.
e.
The hold harmless and indemnification agreement is recorded by the City in the Public Records of Lee County, Florida, at the applicant's expense.
The Development Services Director's decision shall constitute final agency action appealable to Circuit Court. The applicant shall be responsible for paying fees associated with applying for such administrative deviation. Those fees shall be established by resolution and approved by the City Council.
C.
In the RMM zoning district, where lot depth is greater than 131 feet, the six-foot easement around the perimeter of the sites shall be preserved and nothing shall be placed or constructed on such easement other than a paved driveway, walkway, sidewalk, paved off-street parking areas, or a well when site conditions make it impractical to locate elsewhere. On sites with a depth of less than 131 feet, paving of the front easement for parking purposes shall be permitted.
D.
Lawn sprinkler systems and landscaping may be placed in the 6' PUE easements as permitted by the Code of Ordinances or the Land Development Code.
E.
In the C, CC, I, INST, MXB, MX7, NC, P, and SC zoning districts, paved off-street parking areas, paved driveways, sidewalks, wells, walkways at ground level, lawn sprinkler systems, or landscaping may be placed in an easement provided that all other requirements of the Code of Ordinances or the Land Development Code are met.
F.
Nothing in this section shall prohibit the construction of seawalls, davits, docks, or other structures as permitted by the Cape Coral Code of Ordinances.
G.
If a utility removes, damages, or disturbs the construction or other material within an easement as allowed by this section, the property owner shall be responsible for the cost of its removal, relocation, repair, or replacement. If any plant material in an easement required by Chapter 5 of this Article of the Land Development Code is removed or damaged, the property owner shall replace all such material within 30 days of the completion of the utility work. These requirements also include repair or replacement of sod within the right-of-way. In addition, prior to issuing a permit to locate, place, construct, or install any structure, construction, driveway, or other material in an easement, the city shall require the property owner to agree to indemnify and to hold the city harmless from any or all costs or expenses incurred as a result of such removal from the easement or the location, placement, construction, or installation in the easement. The City Attorney's Office shall approve the form of such indemnification and hold harmless agreement, which agreement shall be binding on the property owner, and the successors and assigns of the property owner. The indemnification and hold harmless agreement shall be recorded by the City in the Public Records of Lee County, Florida, at the property owner's expense.
H.
The city may deny applications to place wells, fences, walls, or other materials in an easement if such would conflict with existing or proposed utilities or drainage functions.
(Ord. 46-20, § 1, 7-27-2020; Ord. 25-25, § 1, 6-4-2025)
As an aid to allow for safe operation of vehicles, pedestrians, and cyclists in the proximity of intersecting streets, driveways, alleys, and bicycle paths, there shall be limitations on the height of fences, walls, gateways, ornamental structures, signs, hedges, shrubbery, and other fixtures as visually depicted in the Cape Coral Engineering and Design Standards and as follows:
A.
All landscaping and signs within the visibility triangle shall provide unobstructed visibility between 30 inches and eight feet, with the exception of tree trunks that do not create a traffic hazard.
B.
The property owner shall be responsible for maintaining all landscaping within the visibility triangle to provide the unobstructed visibility.
C.
The Community Development Director shall make the final determination regarding visibility triangles.
A.
Non-Residential Zoning Districts. As part of construction of each building erected in non-residential or mixed-use zoning districts (C, CC, I, INST, MXB, MX7, NC, P, and SC) right-of-way improvements (including sidewalks, curbs, gutters, alleys, street lighting, and lane widening) shall be installed prior to the issuance of a certificate of occupancy pursuant to the standards and specifications set forth in the City of Cape Coral Engineering Design Standards, by Lee County, and by the Florida Department of Transportation (FDOT). For example, and not by way of limitation, on properties with frontage on Pine Island Road, sidewalks shall be installed in the Pine Island Road right-of-way across the entire frontage of the site to be developed in accordance with design standards approved by the FDOT. In the alternative, required sidewalks may be constructed on private property pursuant to an agreement with the applicable state or local agency.
B.
All sidewalks shall be constructed in accordance with the City of Cape Coral Engineering Design Standards, except where a sidewalk has been installed and the established width is less than five feet, the minimum width of the sidewalk to be installed shall be the width of the existing sidewalk.
C.
Lot owners who develop property, erect buildings, or change the use on only a portion of a lot must provide the curbs, sidewalks, gutters, street lighting, and lane widening for the entirety of the property, as required by this subsection, which shall be at the expense of the lot owner.
D.
As part of property development and construction of each building erected in the C, CC, I, INST, MXB, MX7, NC, P, and SC zoning districts adjacent to a platted alley the alley shall be improved prior to the issuance of a certificate of occupancy. Such alley portion shall be constructed in accordance with the Engineering Design Standards along the length of the property line of the site lying adjacent to the platted alley. In addition to new construction in the C, CC, I, INST, MXB, MX7, NC, P, and SC zoning districts, alterations to existing sites lying adjacent to a platted alley shall be required to make the alley improvements required by this section if the value of such alterations exceeds 50% of the replacement value of the site improvements. These improvements include parking areas, internal curbing, and retention areas but exclude internal, previously existing modifications to the building.
E.
Payment in Lieu of Construction. At the discretion of the city, the city may accept payment in lieu of construction for all or part of the off-site improvements required by the city. For projects where payment in lieu of construction will be employed, the developer shall submit to the city 110% of the estimated cost of the improvements as prepared by a professional engineer licensed in the state of Florida, which shall be reviewed and approved by the city. The developer shall provide the city with payment for all construction costs prior to the issuance of a development permit for the site.
F.
Special Assessments. At the discretion of the City Council, right-of-way improvements along City, County, and State maintained roadways may be done through a city established special assessment district.
G.
Residential. New residential subdivisions and Planned Unit Developments of 20 or more lots or units and multi-family development of 50 or more units shall install sidewalks along all street frontages abutting and within the development. This does not apply to existing structures that are being remodeled or repaired.
H.
Institutional District. Owners may request a waiver from sidewalk, alley, and other right-of-way improvements when developing or redeveloping sites with Institutional (INST) zoning.
1.
To be eligible for consideration, an owner shall submit in writing a request to the Director identifying those specific improvements the owner seeks relief from. City right-of-way improvements may be waived, in whole or in part, by the Director at the sole discretion of the Director. In determining whether to waive any required right-of-way improvement, the Director shall consider the following:
a.
Whether the required right-of-way improvement will provide continuity with similar right-of-way improvements already present.
b.
Whether the proposed use on the owner's site is anticipated to generate pedestrian traffic.
c.
Whether the site is within walking distance of ½ mile from a public school, public park, or shopping center.
d.
Whether the site has two or more sides of frontage along a city right-of-way lacking off-site improvements.
e.
Whether the site has frontage along an arterial or collector street.
f.
Whether other factors exist that warrant a waiver to one or more required right-of-way improvements.
2.
Owners are not eligible to request waivers from the city for mandatory improvements in rights-of-way managed by either the Florida Department of Transportation or the Lee County Department of Transportation.
(Ord. 46-22, § 1, 7-20-2022; Ord. 56-25, § 1, 11-19-2025)
A.
General. Except as provided below, no construction, change, modification, or alteration of any type or nature whatsoever, including the addition or removal of fill, vegetation, or other materials, or the placement, installation, or erection of any object or vegetation, shall be allowed within a city-owned right-of-way or swale, except as provided in Chapter 1 of this Article.
B.
No permit required. The following work or activities shall be allowed in the public right-of-way or roadway easement areas without the necessity of a city permit:
1.
Trimming, cutting, or maintenance of trees, shrubs, and other vegetation existing as of the effective date of this ordinance in the public rights-of-way or swales;
2.
Markers, commonly known as buttons, turtles, or half-moons, may be placed 18 inches from the edge of the pavement in residential zoning districts provided that such markers shall not exceed a height of four inches. However, no markers shall be placed within any public right-of-way which is adjacent to a roadway with four or more lanes;
3.
Mailboxes may be placed in the public rights-of-way or swales so long as they are in accordance with the City of Cape Coral Engineering Design Standards. The mailbox may be immediately surrounded by a small bed consisting of landscape edging materials or concrete curbing, bedding plants or groundcover, and mulch or decorative rock provided that such decorative rock shall not exceed four inches when measured in any direction, pursuant to Chapter 5 of this Article. In no event shall the diameter of the plant bed exceed two feet when measured from the outer-most edges of any landscape edging material or concrete curbing utilized. and
4.
A Registration Certificate is required to install landscaping material in the lateral right-of-way areas between the roadway pavement and the private property line in accordance with Section 5.5.19 of this Article.
C.
Permit required. The following work or activities shall be allowed in the public right-of-way or roadway easement areas provided that the property owner first obtains a permit from the city:
1.
Culvert installation and appurtenant work;
2.
Sod installation and appurtenant work;
3.
Driveway installation and appurtenant work;
4.
Curb, gutter, sidewalk, sod, and paving;
5.
Alley improvements;
6.
Installation of sprinkler systems. However, if the sprinkler system is disturbed, damaged, or destroyed by the City performing work in the public right-of-way, the owner shall be solely responsible for any cost resulting from such disturbance, damage to, or destruction of the sprinkler system in the right-of-way; and
7.
Planting in medians, cul-de-sacs, and roundabouts as permitted in Section 5.5.17 of this Article.
8.
Installation of marine improvements and appurtenant work, as provided in Chapter 4 of this article.
9.
Installation of seawalls, alternatives to vertical bulkheads, and appurtenant work, as provided in Section 5.4.8. of this article.
D.
Under no circumstances shall any of the activities permitted above result in any change, modification, or alteration of any type whatsoever, to the established grade, slope, or contour of the public swale or right-of-way not specifically addressed by the City of Cape Coral Engineering Design Standards.
E.
None of the prohibitions contained in this ordinance shall apply to any construction, change, modification, or alteration within a public right-of-way or swale which is performed by or required by a governmental entity or public utility.
F.
Public Utilities. No public utility including electric, phone, cable tv, internet, cellular, or gas company will be allowed to install or maintain facilities, begin construction, change, modify, or alter in any way whatsoever the public right-of-way, swale, or adjacent public utility easements, including the addition or removal of fill, vegetation, or other materials, without a permit as required by the City of Cape Coral Code of Ordinances.
(Ord. 42-21, § 1, 6-2-2021)
All property owners shall be responsible to either maintain or construct the city-owned right-of-way lying between their property boundaries and the city pavement, to include the following standards.
A.
Prior to preparation of a building lot for construction, the building permit holder shall obtain the correct swale flow line elevations from the City and proceed immediately to create the required swale needed to allow continuous uninterrupted flow of stormwater throughout the construction process.
B.
During construction or reconstruction approved erosion control devices shall be placed in the swale adjacent to both property lines to impede all foreign matter from entering the stormwater system. The erosion control devices shall remain in place until placement of final sod in the right-of-way.
C.
No excavated material or construction material shall restrict stormwater flow within the swale area.
D.
Upon issuance of the certificate of occupancy, the owner shall maintain the swale indefinitely to the same standard that is applied to privately-owned property.
E.
All pavement damage must be repaired to meet or exceed the City of Cape Coral Engineering Design Standards.
All buildings in the City of Cape Coral shall display a proper building number at least four feet from the ground level. All building numbers shall be visible from the public right-of-way which the front of the building faces. Building numbers of sufficient size which are affixed to both sides of mail boxes on such right-of-way or building numbers which are affixed to lawful signs not attached to the building may be substituted for number affixed to buildings.
A.
Double frontage other than corner lots. Double frontage other than corner lots shall meet front setback regulations on all adjacent streets.
B.
Corner lots. In the SC and MXB zoning district(s), corner lots shall be deemed to have front lot lines abutting all street right-of-way lines. For corner lots in all other zoning districts, the following shall apply:
1.
The front of any building site shall be determined by the lesser dimension of a single lot (not building site). This frontage shall have the established setback for the particular zoning district, but in no instance be less than 25 feet.
2.
The remaining street frontage shall have a setback of no less than ten feet in all zoning districts. The remaining street frontage shall be maintained as a front yard and the regulations for fences, shrubbery, and walls of this ordinance shall apply.
3.
On sites bounded by three streets, one lot line shall be designated by the Director as the rear and maintained as the rear setback of that zoning district. For purposes of this section, all but the rear yard shall be maintained as a front yard and the regulations for fences, shrubbery, and walls of this ordinance shall apply.
4.
The front of a single-family residential building shall not be offset from the front property line by an angle greater than 45 degrees.
C.
No parcel shall be reduced below the minimum dimensional requirements in the zoning district. This provision shall not apply when a portion of a parcel is acquired for a public purpose.
In addition to all other provisions of this Code, single-family residential uses shall be subject to the following requirements.
A.
In the A, R1, and RE zoning districts only one single family residence shall be permitted per parcel.
B.
Ornamental walls. Ornamental walls attached to the principal building shall have the following requirements
1.
Ornamental walls shall not be higher than four feet at any point where they extend beyond the roof overhang and into the side setback.
2.
Ornamental walls may extend into the side setback but shall not extend into the six-foot perimeters easements.
3.
An ornamental wall not to exceed 30 inches in height may be installed in the front yard.
4.
Ornamental walls may be in the form of a planter.
5.
A planter may be incorporated into the construction of a wingwall.
C.
Water discharge. All gutter downspouts or similar water discharge devices shall direct the discharge to the front or rear property lines. Refer to the City of Cape Coral Engineering Design Standards, Section L, Drainage Design Standards for lot grading and drainage information.
D.
The following fill limitations will apply to the construction of single-family or duplex structures within a designated Special Flood Hazard Area to regulate the area of the lot outside the foundation of the primary structure as follows:
1.
Foundation Fill: The maximum allowable depth of base fill beneath the structure's foundation shall not exceed 12 inches, measured from the existing natural grade to the bottom of the foundation.
2.
On-Site Fill Outside the Structure Foundation: The maximum depth of fill permitted on the remainder of the site, outside the foundation of the primary structure, shall be limited to 30 inches maximum from existing natural grade, or shall maintain a slope no steeper than 4:1 (horizontal to vertical), whichever standard is more restrictive. This does not authorize exceeding 30 inches from existing natural grade.
3.
Exception. Any deviation from these limits shall require prior written approval from the Building Official, based on a determination that such deviation will not adversely affect drainage, floodplain management, or neighboring properties.
E.
Generators and Heating, Ventilation, and Air Conditioning (HVAC) equipment may be installed in front of a single-family residence or in the front yard of a single-family residence subject to the following requirements:
1.
A generator or Heating, Ventilation, and Air Conditioning (HVAC) equipment placed in front of a single-family residence or in the front yard of a single-family residence shall be screened from the street and from any abutting residential site by an enclosure. The enclosure shall be composed of materials consistent with the building and be painted to match the front façade. The enclosure shall have a maximum height of six feet unless a greater height is needed to screen from view the full height of the equipment. For purposes of this subsection, the required enclosure shall not be considered a wall and shall not be subject to the requirements of Section 5.2.7.
2.
The enclosure shall meet all building setback requirements for the applicable zoning district.
3.
The generator or Heating, Ventilation, and Air Conditioning (HVAC) equipment shall be located at a distance not to exceed five feet from the front of the building unless a greater distance is required by the Florida Building Code.
4.
The enclosure shall be designed to provide screening solely for the generator or Heating, Ventilation, and Air Conditioning (HVAC) equipment. No other equipment or materials shall be screened or stored within the enclosure.
5.
The provisions of this subsection shall not apply to the temporary use of portable generators during emergencies or after natural disasters.
(Ord. 32-24, § 2, 6-5-2024; Ord. 25-25, § 2, 6-4-2025)
In addition to other provisions of this ordinance, single-family attached structures, duplexes, and multi-family residential uses shall be subject to the following requirements.
A.
Distance between buildings.
1.
Clustered buildings. Buildings may be constructed on proper building sites in cluster style providing a minimum of 20 feet is maintained between the buildings up to a height of 38 feet.
a.
One foot shall be added to the 20-foot distance for every foot of height increase over 38 feet.
b.
Carports will not be considered in determining the 20-foot distance between buildings.
B.
Water discharge.
1.
All gutter downspouts or roof drains from multi-family buildings shall be directed to the water management system.
2.
All gutter downspouts or similar water discharge devices from duplexes shall direct the discharge to the front or rear property lines. Refer to the City of Cape Coral Engineering Design Standards, Section L, Drainage Design Standards for lot grading and drainage information.
C.
Maximum Fill. For duplex construction activities on any site in a Special Flood Hazard Area, the maximum amount of fill on-site shall be limited to 12 inches, unless otherwise approved by the Building Official.
Except where noted below, all sites with uses other than single-family residences and duplexes, shall provide commercial trash receptacles in accordance with the regulations in this section.
A.
Screening.
1.
Except for the SC and MXB Districts, when commercial trash receptacles are in a rear yard that abuts an alley, all commercial trash receptacles shall be enclosed from view on at least three sides by an opaque visual barrier.
2.
When a commercial trash receptacle is visible from an adjacent property or an adjacent street, at ground level, then the commercial trash receptacle shall be enclosed on the fourth side by an opaque gate that shall be the same height as the opaque visual barrier on the other three sides.
3.
The principal structure may be used as the opaque visual barrier on one or more sides provided the commercial trash receptacle is completely concealed from view.
B.
Materials.
1.
The following materials, either singly or in any combination, are the only materials that may be used for the opaque visual barrier and gate:
a.
Wood fencing;
b.
Plastic or vinyl fencing;
c.
Concrete block and stucco wall;
d.
Brick wall; or
e.
Formed, decorative, or precast concrete.
2.
Chain link fencing, whether singly, or combination with other materials, including plastic slats, shall be prohibited.
3.
Gates shall be constructed of a durable, opaque material, consistent or complimentary in color with the enclosure and of a height to screen the container.
C.
Location.
1.
Commercial trash receptacles shall not be located on unimproved sites.
2.
Commercial trash receptacles and accompanying visual barriers, are subject to the following minimum setbacks:
a.
Six feet from the front property lines in the SC and MXB Districts.
b.
Three feet from alley rights-of-way.
3.
When located in a public utility or drainage easement, the property owner shall be solely responsible for removal of the commercial trash receptacle as well as for any cost resulting from disturbance, damage, destruction, or restoration of the receptacle resulting from work associated with utilities in such easement. Prior to issuing a permit, the City may require the property owner to agree, in writing, to indemnify and to hold the city harmless from any costs or expenses resulting from placing a commercial trash receptacle in an easement.
4.
A commercial trash receptacle may be placed on an adjoining property provided that the premises are adjacent to or directly behind the development and written consent of the adjoining property owner is submitted to and approved by the Director. The adjoining property owner may revoke this consent upon written notice to the development and the Director. The development shall have 30 days from revocation to relocate the commercial trash receptacle and to comply with all requirements of this section.
5.
Developments within 25 feet of a City-owned parking lot may, upon approval by the Director, locate enclosures on the City-owned parking lot. Approval may be revoked at any time, upon reasonable notification, by the City.
D.
Dimensions. The dumpster enclosure shall have a minimum interior dimension of ten feet by ten feet and a height at least six inches higher than the enclosed commercial trash receptacle. Neither the dumpster enclosure or the gate providing access to the commercial trash receptacle shall be considered a fence or a wall pursuant to the City Code of Ordinances or Land Development Code.
E.
All dumpster enclosures shall be located so that a sanitation vehicle has physical access to the commercial trash receptacle that is adequate for safely servicing the facility.
F.
Each commercial trash receptacle shall be located on a concrete pad.
G.
All solid waste or other refuse, including recycling materials stored in commercial trash receptacles, shall be concealed by a lid attached that shall remain in the closed position unless materials are being placed into the receptacle or the receptacle is being serviced. No material shall be permitted to overflow the receptacle.
H.
In the event a commercial trash receptacle is in a dumpster enclosure that includes a gate, regardless of whether such a gate would have been required pursuant to this section, the gate shall be of a type that opens sufficiently to allow unimpeded access to the trash receptacle by the sanitation vehicle and shall have drop pins, hooks, or other devices installed to hold the gate open while the receptacle is being serviced. All gates shall remain closed unless the receptacle is being serviced.
I.
Deviations. In the event an owner is unable to comply with the requirements of this section, the owner may request an administrative deviation from the Director. In determining whether to approve an administrative deviation, the Director shall consider factors such as dimensions of the property, site constraints such as existing development, or other location factors that may make compliance with this section impossible or impractical. The determination to approve an administrative deviation shall be at the sole discretion of the Director.
J.
Maintenance. Commercial trash containers shall be maintained in a manner which is not a nuisance to surrounding uses.
1.
The receptacle shall be stored in the enclosure and the gate(s) to the enclosure shall remain closed at all times unless it is being accessed at that time.
2.
Refuse may not be left outside of the enclosure or on the ground within the enclosure.
Outdoor dining may be permitted as an accessory use to a restaurant, hotel, bar, or fraternal organization provided the following conditions are met:
A.
All outdoor dining:
1.
Music may be permitted to be performed or amplified in outdoor dining areas, in accordance with Section 12-22 of the City's Code of Ordinances, or in accordance with a permit per Chapter 9 of this Article.
2.
Parking shall be provided at a rate of 1 parking space per 4 seats of outdoor dining are, except in the SC, MX7, or MXB zoning districts, where no additional parking is required.
3.
Outdoor dining in common areas, such as shopping centers, must have written authorization from the property owner.
B.
Outdoor dining on public rights-of-way.
1.
Stanchions, planters, or other features approved by the City may be used to delineate outdoor dining areas.
2.
The number of outdoor seats and tables shall be limited to that number that can be reasonably accommodated according to the available widths of the associated storefront and sidewalk or patio area. Only the area(s) adjacent to the associated storefront and with 50' may be used for outdoor dining. No fixtures or furniture may be attached to the right-of-way or public property.
3.
Clear pedestrian access shall be maintained at all times, and no seating or tables shall interfere with ingress and egress to buildings or create an unsafe situation with street traffic.
4.
The owner or operator of the outdoor dining area shall remove any seating or tables when necessary for special events or when an authorized agent of the City makes such a request.
5.
Public sidewalks adjacent to any approved outdoor dining area shall be properly maintained for safety and cleanliness by the owner or operator on a daily basis. Litter, dirt, grime, grease, and food shall not be permitted to accumulate at any time. The sidewalk must be cleaned by pressure washing on a regular basis or when an authorized agent of the city makes such a request. The Public Works Department must approve the method and equipment used for pressure washing.
6.
Portable lighting may be used in the outdoor dining area. Extension cords may not be run from any nearby buildings. The use of generators is prohibited. City light poles may not be used for electrical connections. Portable heaters may be used if approved by the Fire Department.
7.
An indemnity agreement, provided by the City shall be signed and provided by the outdoor dining owner or operator, along with proof of public liability insurance as approved by the city attorney.
8.
The use of glass table tops or furniture is prohibited. The use of plastic or PVC furniture, wooden picnic tables, or couches and chairs intended for indoor use is prohibited. All furniture and fixtures to be used shall be specified in the outdoor dining permit and approved by the City.
9.
The City Manager may revoke an outdoor dining permit for locations on the public right-of-way for noncompliance with these regulations.
A.
The minimum dwelling unit size in mixed-use buildings shall be 500 square feet provided all requirements of the Florida Building Code are met.
(1)
Reserved.
(2)
The non-residential design standards set forth in Article 5, Chapter 8 shall apply to all mixed-use buildings.
In addition to all other provisions of this ordinance, automotive and watercraft uses are subject to the following regulations.
A.
Abandoned vehicles and watercraft are prohibited from being parked or stored on any property in the City of Cape Coral including in driveways, carports, or on unimproved lots.
B.
For locations where abandoned vehicles are prohibited, if an abandoned vehicle or watercraft is not removed from the premises within five days from date of written notice to do so, the vehicle or watercraft shall be deemed a nuisance and shall be in violation of this ordinance.
C.
Vehicles that are in garages on improved property shall not be deemed to be "abandoned" under this ordinance.
D.
Repairs may be made on the premises if an emergency exists or if performed on an occasional basis. In all cases, repairs must be performed in such a manner as to not cause unsightliness, noise, or obnoxious odors.
A.
Purpose. To establish standards and criteria for the placement of newsracks and newspaper vending machines. It is the purpose of this section to establish reasonable time, place, and manner restrictions to further the city's objective in public safety and aesthetics.
B.
Standards.
1.
No person shall place, install, or maintain any newsrack that projects or rests onto, into, or over any part of the roadway of any public street.
2.
No person shall place, install, use or maintain a newsrack that endangers the safety of persons or property when such site interferes with public utility uses or other governmental use; when such newsrack impedes the flow of pedestrian or vehicular traffic, the ingress into or egress from any residence or place of business or any legally parked or stopped vehicle, or the use of light poles, posts, traffic signs or signals, hydrants, mailboxes, or any other objects permitted at or near such location; when such newsrack interferes with the cleaning of any sidewalk by use of any sidewalk cleaning machinery or the mowing of grass by mechanical mowing machinery or when such newsrack interferes with the ordinary use of public property.
3.
Newsracks are prohibited in any median within a public right-of-way, roadway, or street.
4.
All newsracks shall comply with the following standards:
i.
The newsracks shall be anchored, set, and maintained on a concrete pad.
5.
Newsracks shall not be placed, installed, used, or maintained:
i.
Within 10 feet of any marked crosswalk.
ii.
Within 15 feet of the curb return of an unmarked crosswalk.
iii
Within 10 feet of any fire hydrant.
iv.
Within 10 feet of any driveway.
v.
Within 15 feet of any designated mass transit bus stop.
vi.
Within 15 feet of a "No Parking" sign or zone.
6.
Newsracks shall not be used for the display of signs or placement of placards, other than to promote the newspaper, periodical, or other publications contained therein.
7.
Every person who places or maintains a newsrack in the city shall affix on the rear of the newsrack a weather resistant decal no larger than five inches x seven inches that states the distributor's name, address, and telephone number.
C.
Indemnification. All distributors of publications utilizing newsracks within the city shall execute an indemnification, in a form approved by the City Attorney, which will hold the city, its officers, employees and agents harmless from any claim, demand or judgment in favor of any person or entity arising out or resulting from the placement of any newsrack in or over a public right-of-way.
(3)
Enforcement. Removal of any and all newsracks shall be determined by the following criteria:
1.
Upon determination by a code enforcement officer (as specified in § 2-82.1 of the Code of Ordinances) that a newsrack has been installed or maintained in violation of the provisions of this section, a citation shall be issued, in a form prescribed by the city, and shall state:
2.
The time and date of issuance;
3.
The name and address of the distributor and in the case of a newspaper vending machine, the publisher of the respective newspaper, to whom the citation shall be issued to and served upon;
4.
The time and date of the violation;
5.
A brief description of the violation and the facts constituting reasonable cause;
6.
The number or section of this code violated;
7.
The name of the code enforcement officer;
8.
Shall specify a reasonable time, not to exceed ten days, in which corrective action should be taken;
9.
The procedure for the person cited to follow in order to pay the civil penalty or to contest the citation;
10.
The applicable minimum ($25) and maximum ($200) civil penalty if the person elects to contest the citation;
11.
The applicable civil penalty if the person elects not to contest the citation;
12.
A conspicuous statement that if the person fails to pay the civil penalty within the time allowed, or fails to appear in court, as the case may be, to contest the citation, the person will be deemed to have waived his right to contest the citation and that in such case, judgment may be entered against the person for the amount stated in the citation;
13.
A copy of the citation shall be affixed on the respective newsrack.
(4)
Any aggrieved party may appeal a final order to the Circuit Court. Such an appeal shall not be a hearing de novo, but shall be limited to appellate review of the record created before the County Court. An appeal must be filed within 30 days of the execution of the order to be appealed.
F.
Should any newsrack constitute a threat to public health or safety, or is in violation of this section after notice and hearing on said violation, the newsrack shall be subject to removal by the city within 48 hours, unless conditions warrant a shorter time period, following the issuance and service of a citation accompanied by a notice of intent to remove the newsrack. Upon removal, the code enforcement officer shall deliver a notice of removal to the distributor and, in the case of a newspaper vending machine, to the newspaper publisher such notice to describe the location from which the newsrack was removed, the address of the location where the newsrack is being stored and a brief explanation of the procedures by which the publisher or distributor may obtain a release of the newsrack.
G.
A newsrack removed hereunder shall be stored in a secure location for a period not to exceed 30 days. The newsrack shall be released to its distributor, upon proof of ownership and payment of reasonable and actual storage charges. A $25 pick-up and collection charge will be assessed in addition to the actual and reasonable storage charge for any newsrack not picked up within 48 hours. If any newsrack is not claimed within 30 days, the newsrack shall be deemed abandoned and shall become the property of the city, and thereafter be sold at public auction. Approximately ten days prior to the auction, the City Clerk shall furnish a description of the newsrack, the location from which it was removed and a notice of the auction in a newspaper of general circulation within Lee County. The proceeds of the sale shall be applied first to storage charges and then paid to the General Fund of the City of Cape Coral. The city may otherwise dispose of the newsrack in accordance with Florida law, as the city deems appropriate.
H.
Amortization period. Each newsrack legally located and placed on the adoption date of this section shall have 90 days from the adoption date of this section to comply with the provisions of this section to recoup any investment from that newsrack and to have sufficient time to transition nonconforming units out of locations throughout the city and to provide conforming newsracks for placement within city limits. Any newsrack not in compliance with this section following the 90-day amortization period may be removed by the city in accordance with this section.
A.
This chapter shall pertain to residential properties unless otherwise specifically stated herein. Accessory structures on non-residential properties shall be reviewed per the standards of that zoning district. Agriculturally zoned properties shall not be considered residential for purposes of this section.
B.
Accessory buildings shall be constructed to conform to the minimum building requirements and shall meet all other regulations applicable to the district.
C.
Residential accessory buildings shall be in the rear yard, other than those listed in Section 5.2.1, and shall comply with all of the requirements found in this Section.
D.
Accessory structures, such as pergolas, arbors, trellises, and flag poles may be in the rear, side, or front yard of the primary structure. Fences and sheds may be permitted in the rear or side yard of the primary structure.
E.
With the exception of marine improvements and boat canopies lawfully permitted under Chapter 4 of this article, no accessory structure, including fences, shall be constructed on any residential parcel not containing a primary structure.
F.
Accessory buildings shall be elevated above the base flood elevation (BFE) or provide hydrostatic vents consistent with FEMA regulations.
G.
All nonconforming accessory structures shall be subject to the requirements of Article 8 Nonconformities.
H.
Any accessory structure not listed in this chapter may be reviewed and considered for approval through a similar use determination process.
I.
In non-residential districts, all accessory structures shall be reviewed and held to the same standard as a non-residential structure.
J.
Setbacks shall be measured from the property line and must be considered in addition to all other locational requirements.
(Ord. 80-23, § 1, 11-1-2023)
Table 5.2.1.A. Setback Requirements for Accessory Structures.
X Not permitted
SAP Same as Principle Structure
N/A Not Applicable
Diagram 5.2.1.B Double Frontage Lot Fence and Accessory Structure Requirements.
A.
Arbors, trellises, and pergolas shall be allowed as freestanding or attached structures. There is no limit on the number of attached pergolas, arbors, and trellises per primary structure.
B.
Freestanding pergolas and arbors are limited to 200 square feet of coverage per single-family detached residential property. Freestanding pergolas and arbors are limited to 100 square feet per unit of a duplex property.
C.
The amount of freestanding square footage coverage for multi-family residential developments may be determined by the Community Development Director. The criteria for this determination include:
1.
Design, size, location, and number of proposed arbors, trellises, and pergolas;
2.
Design, size of property, location, and number of units of the multi-family residential development; and
3.
Whether the structure will be contrary to the public interest.
D.
Attached pergolas.
1.
Attached pergolas may be placed over the front entrance or walkway into a residence and must not extend beyond the most forward portion of the primary structure.
2.
A pergola is considered attached if a minimum of 20% of the pergola's perimeter is attached to the primary structure.
3.
A pergola that is attached to a previously-attached pergola is considered to be an extension of the original attached pergola; the enlarged pergola must abide by the setback requirements listed in Table 5.2.1.A.
E.
Pergolas, generally.
1.
Pergolas must conform to all zoning requirements in terms of height and setbacks.
2.
The only exception to the prohibition of the placement of a pergola in the rear setback is for pergolas on docks.
3.
If placed in the rear yard of a waterfront property, or on a dock, pergolas must not unreasonably restrict or block the view of the canal or waterway of an adjoining lot.
A.
All single-family detached and single-family semi-detached dwelling units and each unit of a duplex structures shall include a garage with minimum dimensions of 14 feet by 20 feet unobstructed space. Carports are prohibited on single-family detached, single-family semi-detached, and duplex residential properties requiring a garage.
(Ord. No. 55-20, § 1, 9-14-2020)
B.
For attached garages, the following shall apply:
1.
A garage shall be considered attached if:
a.
It shares at least a five-foot length of common wall with the principal structure; or
b.
It is connected to and accessible from the principal structure by a roofed breezeway with minimum dimensions of 4 feet by 8 feet. For purposes of this section, a roofed breezeway means a roofed open passage that contains a floor, an access door to the garage, and an access door to the principal structure so that a person may access the garage from the principal structure via the breezeway.
(Ord. No. 55-20, § 1, 9-14-2020)
2.
For purposes of this LDC, an attached garage shall be considered to be a part of the principal structure and shall comply with all district regulations for the zoning district in which it is located.
3.
An operable garage door capable of providing access to the garage by a motor vehicle is required.
4.
A driveway providing vehicular access to the garage is required and shall be constructed and maintained in a condition that is safe and free of potholes, and in accordance with the City of Cape Coral Engineering Design Standards.
5.
The garage shall not be included in determining the living area.
6.
No garage or storage area shall be used as living quarters unless another garage is constructed prior to conversion. Should a garage connected to the principal structure by a roofed breezeway be converted to living quarters, the conversion of the garage and roofed breezeway shall comply with all applicable regulations, rules, and laws for living quarters, including, but not limited to, the Florida Building Code.
(Ord. No. 55-20, § 1, 9-14-2020)
7.
The exterior building materials of an attached garage shall conform to the exterior building materials of the principal structure.
C.
For detached garages, the following shall apply:
1.
A detached garage shall meet all of the setback requirements of the principal structure.
2.
A detached garage shall be on the same parcel as the principal structure.
3.
The area of a detached garage shall not exceed the living area square footage of the principal structure or, if the principal structure has more than one story, the living area square footage of the first floor of the principal structure.
(Ord. No. 55-20, § 1, 9-14-2020)
4.
The height of a detached garage shall not exceed 14 feet in height when measured according to the definition of "building height" in the Land Development Code.
5.
An operable garage door capable of providing access to the garage by a motor vehicle is required.
6.
The maximum size and height restrictions shall not apply in the RE district or A district.
7.
No plumbing shall be allowed in a detached garage except that a utility sink and one bathroom consisting of a toilet and a sink shall be allowed.
(Ord. No. 55-20, § 1, 9-14-2020)
8.
The exterior building materials of a detached garage shall conform to the exterior building materials of the principal structure.
9.
A parcel may contain both an attached and detached garage, but only one detached garage shall be permitted.
10.
Except on a corner lot, the driveway to a detached garage shall connect the garage exclusively to the street that the principal structure faces. On a corner lot, the driveway to the detached garage may connect the garage to the street that intersects with the street that the principal structure faces.
11.
When a property, including but not limited to a parcel or a double frontage lot, has frontage on a street other than the street that the principal structure faces, no detached garage or any portion thereof shall be located farther than 115 feet from the property line abutting the street that the principal structure faces.
(Ord. No. 55-20, § 1, 9-14-2020)
A.
Requirements in the R1, RE, RML, and A districts.
1.
Lighting is prohibited on all outdoor recreation facilities on all properties containing single-family detached and duplex dwellings.
2.
An opaque landscape hedge shall be planted between a recreational facility and a side or rear property line of different ownership. The landscaping shall be maintained at a minimum of four feet in height and shall be provided along the entire length of the recreational facility.
B.
Requirements in the RMM or other districts with permitted multi-family uses.
1.
Lighting may be installed to allow evening use of the facility. All outdoor lighting shall be installed and maintained in such a manner that the light falls substantially within the perimeter of the property through the use of shielding and limitations on intensity. In no instance shall the facility lighting create glare off of the property exceeding 0.3 foot candles which impacts any roadway. Directional lighting may not be installed which shines directly into any dwelling unit.
2.
An opaque landscape buffer, a minimum of four feet in height, shall be installed which shields the recreational facility from any adjacent right-of-way. Fencing may be installed to a maximum height of ten feet.
A.
Decks extending into rear or side yard may not exceed a height of 30 inches above grade. Decks over 30 inches in height shall meet all setbacks.
B.
Deck height shall be measured from the walking surface of the deck, not the railing.
C.
Railing shall be spaced in such a way as to allow air and light to pass through.
A.
General Requirements.
1.
All fences shall be of sound construction and not detract from the surrounding area.
2.
No barbed wire, spire tips, sharp objects, or electrically charged fences shall be erected, except as otherwise provided herein. This shall not be interpreted to mean that bona fide agricultural users cannot use barbed wire or electrically charged fences to control livestock when located in districts permitting the raising, keeping, or breeding of livestock.
3.
No fences shall be placed within the visibility triangle.
4.
If a fence or wall is located in a public utility or drainage easement, the property owner shall be solely responsible for removal of the fence or wall as well as for any cost resulting from disturbance, damage, or destruction of the fence or wall resulting from work associated with utilities or drainage facilities, including those related to alley improvements within such easement.
5.
Unless the posts or other supports used in connection with the fence or wall are visible from and identical in appearance from both sides of the fence, all posts or other supports used in connection with the fence or wall shall be on the side of the fence or wall that faces the property on which it is to be erected. If a fence or wall is constructed in such a way that only one side of the fence is "finished", then the "finished" side of the fence shall face outward toward the street or adjoining property (facing away from the property on which it is erected). The "finished" side of the fence shall be the side that is painted, coated, or smoothed so as to be more decorative in appearance.
6.
Fencing for critical public utilities infrastructure, including water and wastewater facilities and electric and natural gas facilities, which may enclose either an entire site or only an area containing equipment, may be maintained at a height of eight feet. Barbed wire, spire tips, sharp objects, or electrically charged fencing are permitted on the top of fencing around critical infrastructure sites or equipment, however, the height of the fencing together with any barbed wire, spire tips, sharp objects, or electrically charged fencing may not exceed eight feet, and only the top two feet may contain barbed wire, spire tips, sharp objects, or electrically charged fencing.
7.
Reserved.
8.
Fences are not permitted on any unimproved property in a residential zoning district.
9.
Fences may be installed on unimproved sites in non-residential or mixed-use zoning districts, when the Director determines that such fence is necessary for:
a.
Site security or safety reasons;
b.
To secure temporary utility infrastructure storage areas; and
c.
Temporary fencing for demolition sites or sites with pending building permit or site development applications.
10.
No wall or fence of any kind whatsoever shall be constructed on any lot until after the height, type, design, and location has been approved in writing and proper permit issued by the Director.
11.
Fencing for recreational facilities may be increased in height to ten feet. Such fencing must immediately enclose the recreational facility. Hooded backstops for diamond sports may be increased to a maximum height of 28 feet. For sports other than diamond sports, backstops may be increased to a height of 12 feet. All fencing at recreational facilities must be constructed of at least nine-gauge fence fabric and schedule 40 tubing.
12.
A may be maintained at a height greater than otherwise allowed herein if a higher fence height is required by the city for the purpose of screening a special exception use.
13.
A fence or wall shall be constructed of one or more of the following materials or finishes:
a.
Wood (decay resistant or pressure treated only), shall be painted or stained;
b.
Concrete block with stucco (CBS);
c.
Reinforced concrete with stucco;
d.
Stone or brick, including cast (simulated) stone or brick;
e.
Concrete;
f.
Wrought iron;
g.
Aluminum;
h.
Plastic or vinyl;
i.
Galvanized steel privacy panels painted with alkali-resistant coatings. Alkali-resistant coatings include heavy-bodied bituminous paint or methacrylate lacquer; or
j.
Chain-link without slats
All other finishes and materials are prohibited.
14.
For fences or walls located in a public utility or drainage easement, only the following materials or finishes are permitted:
a.
Wood (decay resistant or pressure treated only);
b.
Aluminum;
c.
Chain-link without slats;
d.
Plastic or vinyl;
e.
Galvanized steel privacy panels painted with alkali-resistant coatings. Alkali-resistant coatings include heavy-bodied bituminous paint or methacrylate lacquer;
f.
Engineered reinforced concrete with stucco; or
g.
Engineered concrete block (CBS) with stucco.
If a fence or wall is located within a public utility or drainage easement, the property owner shall be solely responsible for the removal of any fence or wall as may be required by the City or a utility provider, at such entity's sole discretion. The property owner shall be responsible for all costs resulting from the disturbance, damage, destruction, removal, and replacement of any fence or wall resulting from any work associated with the utility or drainage infrastructure, including those related to alley improvements within such easement.
15.
Multi-family developments over 1 acre in size may construct a fence or wall around the entire perimeter of the property or in a location not otherwise allowed by this subsection.
16.
Maintenance. All fences shall be properly maintained, in accordance with the International Property Management Code Sec. 304.2 Protective Treatment, as referenced by Article 12, Section 12.1.C of this code.
B.
Residential Zoning Districts.
1.
A No fence shall be maintained at a height greater than six feet, and no wall or fence shall be erected or placed within the front setback lines of any residential lot, except if a residential use abuts property used for commercial or professional purposes, a fence may be maintained at a height up to eight feet along the side(s) of the property which abut(s) the property or properties containing commercial or professional uses. For purposes of this section, a property shall be deemed to abut another property if the two properties are either immediately adjacent to each other or separated only by an alley. Properties separated by a street, canal, lake, or other body of water shall not be deemed to be abutting properties.
2.
Any fencing within 20 feet of the rear property line on waterfront sites must be open mesh above a height of three feet. The Director may, in his or her discretion, approve minor projections above the restricted heights for architectural features.
3.
No part of a fence shall be located forward of the forward-most part of the side of the principal structure to which the fence is closest. In no instance shall a fence enclose any portion of the front facade of the principal structure.
4.
No fence, hedge, or other growth shall be erected on any residential property within the city which shall unreasonably restrict or block the view of a canal or other waterway from an adjoining lot, or except as required to screen a special exception use. No fence or hedge or other growth shall be erected on property which would obstruct the view of either a pedestrian or driver of a moving vehicle so as to create a hazard to the health and welfare of its citizens.
C.
Non-Residential and Mixed-Use Zoning Districts.
1.
Construction of fences or walls must meet the following restrictions:
a.
Maximum height: six feet, except property in a commercial, professional, or mixed-use zoning district, which contains a non-residential use, and which abuts a residential use, whether such use is in a residential zoning district or mixed-use zoning district, may erect a fence or wall up to eight feet in height along the side(s) of the property which abut(s) a residential use. For purposes of this subsection, a property shall be deemed to abut another property if the two properties share a common border or property line or if the two properties are separated by only an alley.
b.
Industrial business center uses in the Commercial Corridor (CC) zoning district shall construct an opaque wall that is 6 feet in height around the perimeter of the property.
c.
Required setbacks:
D.
Multi-family developments over 1 acre in size may construct a fence or wall around the entire perimeter of the property or in a location not otherwise allowed by this subsection.
E.
Industrial zoning district:
1.
Maximum height: eight feet.
2.
Required setbacks: none, except that fences shall be setback 10' from alleys.
3.
Fencing shall provide an opaque visual barrier, constructed of materials which conform to applicable codes, to conceal storage areas.
F.
Agricultural zoning district:
1.
Maximum height: eight feet.
2.
Required setbacks: none.
G.
Institutional zoning district:
1.
Maximum height: eight feet.
2.
Required setbacks: none, except that fences shall be setback 10' from alleys.
3.
Fencing shall provide an opaque visual barrier, constructed of materials which conform to applicable codes, to conceal storage areas.
H.
Preservation zoning district:
1.
Maximum height: eight feet.
2.
Required setbacks: none.
I.
South Cape and MXB zoning district(s):
1.
Maximum height.
a.
When placed in front yards, 42 inches.
b.
When not placed in front yards, six feet (except that a property which contains a non-residential use, and which abuts a property containing a residential use, whether such use is in a residential zoning district or mixed-use zoning district, may erect a fence up to eight feet in height along the side(s) of the property which abut(s) a property containing a residential use). For purposes of this subsection, a property shall be deemed to abut another property if the two properties are either immediately adjacent to each other or separated by only an alley. Properties which are separated by a street, canal, lake, or other body of water shall not be deemed to be abutting properties.
c.
Fences, walls, and hedges may be maintained at a height greater than otherwise allowed herein if a higher height is required by the city for the purpose of screening a special exception use.
d.
Fencing for recreational facilities may be increased in height to ten feet. Such fencing must immediately enclose the recreational facility. Hooded backstops for diamond sports may be increased to a maximum height of 28 feet.
e.
Required setbacks:
A.
Residential zoning districts or sites with residential uses shall be limited to no more than two flagpoles.
B.
In non-residential zoning districts, in mixed use zoning districts, and on sites containing non-residential uses in residential zoning districts, no more than three flagpoles are allowed on a site.
C.
Flagpoles shall not exceed 35 feet in height other than those on non-residential properties abutting Pine Island Road which shall not exceed 80 feet in height.
D.
The installation of a flag standard on a site does not require a permit. The number of flags that may be displayed on a flagpole or on a single flag standard is not limited.
E.
For the purposes of this article, flags on non-residential, private property which contain a symbol other than that of a nation, government, political subdivision, or other entity shall be presumed commercial; however, it shall be considered a rebuttable presumption, which may be overturned by the Director if the evidence contradicting it is true or if a reasonable person of average intelligence could logically conclude from the evidence that the presumption is not valid.
A.
Fountains and sculptures shall not to exceed 12 feet in height.
B.
Reflecting pools greater than 24 inches in depth deep shall be fenced for safety.
A.
Gazebos, sun shelters, and similar structures on residential single-family detached or duplex parcels may not exceed 150 square feet in roof coverage. The total area of all such structures shall not exceed 300 square feet.
B.
All structures in all other zoning districts may not exceed 300 square feet.
C.
The maximum height shall not exceed 14 feet as measured from the dock or land on which the structure is constructed. Should the surface on which the structure is constructed have a grade, the measurement required shall be from the lowest point of the grade under the structure, including overhangs.
D.
The minimum height of the palm fronds composing the sun shelter shall be six feet, as measured in subsection (C) above.
E.
These structures shall not be constructed within six feet of any rear lot line except on waterfront lots where sun shelters are permitted to be constructed on docks. These structures shall not overhang the edges of the dock or be constructed over an easement.
(Ord. 80-21, § 3, 11-3-2021)
A.
Detached structures serving as a guest house shall only be permitted in the Residential Estate (RE) zoning district and must comply with the following:
1.
Guest Houses shall only be on constructed on sites with a principal residential dwelling unit.
2.
May not exceed one story.
3.
Maximum building height shall not exceed 14 ft.
4.
May not exceed 30% of the area of the primary structure or 800 square feet, whichever is less.
B.
A guest house is not a dwelling unit to be rented, it provides only guest accommodations and shall meet the following requirements:
1.
A guesthouse may not contain more than two bedrooms.
2.
A guesthouse may not contain a kitchen or the electrical or gas connections to install a stove or oven.
3.
An additional parking space must be provided for a guesthouse.
A.
On residential single-family detached and duplex properties, the City shall not be responsible for permitting and inspection of play equipment.
B.
Play equipment for other than single-family detached and duplex properties must be permitted and inspected prior to any use.
A.
The maximum height of a shed or greenhouse shall not exceed 15 feet in overall height.
B.
The maximum floor area shall not exceed 200 square feet.
C.
Sheds and greenhouses are allowed in the R1, RML, RE, and A districts.
D.
A lot may contain no more than one shed and one greenhouse.
E.
Sheds and greenhouses may be within the side yard of a parcel so long as the shed or greenhouse is screened. Screening is required for that portion of the wall of the shed or greenhouse that is visible from the right-of-way and the nearest adjoining residential property. A wall, fence, shrubs, or a combination thereof may be used to meet screening requirements as follows:
1.
If an opaque wall or fence is used for screening, the wall or fence shall be six-feet in height. The wall or fence may be constructed of wood, vinyl, or a material that has the appearance of wood or vinyl, or the wall may be masonry, but not be unfinished concrete block. All other materials are prohibited. A screening wall with a continuous foundation may not encroach into any easement.
2.
Alternatively, sheds or greenhouses may be screened with shrubs that meet the following requirements:
a.
A row of shrubs planted along both sides of the shed and extend at least five feet beyond the walls of the shed or greenhouse.
b.
All shrubs required for screening within this subsection shall be a minimum of 32 inches in height and be in at least a seven-gallon container size at the time of planting. All shrubs shall be planted no more three feet apart as measured on center.
c.
All shrubs shall be maintained at a minimum height of six feet at maturity and shall be maintained in good condition as long as the shed requires screening pursuant to this subsection.
3.
A shed or greenhouse that would be visible from the right-of-way or from the nearest adjoining property, but for an existing fence, wall, or landscaping that shields the shed or greenhouse is exempt from additional screening requirements. In the event the screening is removed or altered to cause the shed or greenhouse to be visible from the right-of-way or nearest adjoining property, the shed or greenhouse shall be screened in accordance with those requirements outlined above or moved to fully comply with this Section.
4.
On a double frontage lot, sheds or greenhouses shall be screened from view from rights-of-way and adjoining properties. See Diagram 5.2.1.B. Double frontage lot fence and accessory structure requirements.
5.
On double frontage lots, sheds or greenhouses in the rear yard shall be setback to a distance equivalent to the front setback of any adjacent lots that are not double frontage lots.
A.
General requirements.
1.
Permitted accessory equipment. Rooftop photovoltaic solar systems shall be deemed permitted accessory equipment for all buildings in all zoning categories. Nothing contained in this chapter shall be deemed to prohibit the installation of rooftop photovoltaic solar systems on buildings containing legally nonconforming uses.
2.
Maintenance. The photovoltaic system shall be properly maintained and be kept free from hazards, including faulty wiring, loose fastenings, or being maintained in a condition that is unsafe or detrimental to public health, safety, or general welfare.
3.
Abandonment. Abandoned or unused freestanding solar energy systems not in use for a period of 18 months shall be removed at the owner's expense.
B.
Building-mounted PV systems.
1.
Roof mounted:
a.
Notwithstanding the height limitations of the zoning district, building mounted solar energy systems shall not extend higher than three feet above the ridge level of a roof, for structures with gable, hip, or gambrel roofs and shall not extend higher than 10 feet above the surface of the roof when installed on flat or shed roof.
b.
The solar collector surface and mounting devices shall be set back not less than one foot from the exterior perimeter of a roof for every one foot that the system extends above the roof surface on which the system is mounted. Solar energy systems that extend less than one foot above the roof surface shall be exempt from this provision.
2.
Wall mounted or flush to a building or structure:
a.
PV arrays are allowed on the walls or sides of any building or structure but shall not encroach into the required front yard setback and may not encroach into side and rear yard setback by more than three feet and shall not extend into or over an easement.
b.
A minimum of nine feet vertical distance shall be maintained under the PV array where needed to provide adequate clearance for pedestrians.
c.
To the maximum extent possible, wall mounted PV arrays shall be designed as compatible to the structure and surface to which it is attached.
C.
At-grade PV systems.
1.
Exemptions. The restrictions of this Subsection with respect to height, location, and setbacks are not applicable to any accessory component to a freestanding outdoor lighting fixture, telephone pole, parking meter, or any other similar structure, as determined by the city.
2.
Height. The maximum height of any at-grade PV array shall not exceed twelve feet, except for residential locations, as established in subsection 3., below.
3.
Residential location. For PV arrays in or abutting residential zoning districts, the following requirements apply:
a.
PV arrays up to six feet in height are allowed;
b.
PV arrays shall be setback at least seven and one-half feet from interior side property lines and 10' from rear property lines;
c.
PV arrays are not allowed within the front setback or front yard of a residentially zoned property; and
d.
The area of the solar collector surface of freestanding solar energy systems shall not exceed five percent of the lot area.
4.
Commercial location. For PV arrays in non-residential zoning districts and not adjacent to residentially zoned property, at-grade PV systems must meet all setback requirements for a structure within the zoning district.
5.
The supporting framework for freestanding solar energy systems shall not include unfinished lumber.
A.
Location of swimming pools, spas, and hot tubs.
1.
Except in the RE zoning district, swimming pools, spas, and hot tubs are prohibited in the front yard and front setback of any single-family detached, attached and semi-detached, or duplex dwelling.
In the RE zoning district, swimming pools, spas, and hot tubs are allowed in the front yard of any parcel that is greater than 3 acres in size.
2.
Swimming pools, spas, and hot tubs in the side yard of any single-family detached, attached and semi-detached, or duplex dwelling shall comply with the following regulations:
a.
Except for swimming pools, spas, and hot tubs in the side yard of a waterfront parcel, the swimming pool, spa, or hot tub in the side yard shall be screened from the view of all adjacent streets by a six-foot tall opaque fence or wall that meets all applicable standards in Section 5.2.7.
b.
Swimming pools, spas, and hot tubs in the side yard shall maintain a rear and side setback of ten feet.
c.
Swimming pools, spas, and hot tubs in the side yard shall maintain the same front setback or the same actual (i.e. as built) setback distance as the principal structure, whichever is the greater distance.
d.
The setback shall be measured from the exterior of the screen or fence for an enclosed swimming pool, spa or hot tub, or the waterline of an unenclosed swimming pool, spa, or hot tub to the closest point on the property line.
3.
Swimming pools, spas, hot tubs, pool enclosures, and screen enclosures are prohibited in public utility or drainage easements.
4.
All swimming pools, spas, hot tubs, and enclosures constructed or erected on any parcel, other than accessory to a single-family detached, attached and semi-detached, or duplex residence shall meet the minimum setback requirements specified for buildings or structures in the zoning district in which the construction occurs.
B.
Swimming pool, spa, and hot tub screening.
1.
All residential swimming pools, spas, or hot tubs shall be enclosed by either a fence or a screened enclosure. When using a fence only, the swimming pool, spa, and hot tub area or the entire rear yard shall be enclosed with a minimum four-foot high fence. When fencing a waterfront yard, the fence shall extend to and no farther than the water side of the seawall cap, otherwise the fence shall extend across the back yard to the rear of the swimming pool. This fencing or screened enclosure must be completed before the pool is filled with water over 24 inches in height and before a final inspection.
2.
In the event that the swimming pool, spa, or hot tub is secured solely by a required screened enclosure or solely by a permanent fence and the screened enclosure or permanent fence is damaged by a fire, accident, or severe weather event such as a hurricane, to the extent that the screened enclosure or permanent fence is no longer securing the swimming pool, spa, or hot tub, then a temporary mesh safety barrier that is a minimum height of four feet above grade shall be installed around the entire swimming pool, spa, or hot tub.
a.
The temporary mesh safety barrier shall be installed as soon as practicable but in no event more than ten days after such fire, accident, or severe weather event.
b.
The temporary mesh barrier may remain in place for a period not to exceed 90 days after the fire, accident, or severe weather event. The Director of the Department of Community Development may extend the time period stated herein upon good cause shown, such as satisfactory evidence that the property owner has contracted with a licensed contractor to replace the screened enclosure or permanent fence that was damaged by the fire, accident, or severe weather event.
C.
Non-residential swimming pool handrails and grabrails. Handrails shall be provided for all stairs. Grabrails shall be mounted in the pool deck at each side of recessed steps. Handrails and grabrails shall be anchored or mounted pursuant to the Florida Building Code. This sub-section C. shall apply to non-residential swimming pools only.
D.
Portable Swimming Pools, spas, and hot tubs. Portable swimming pools, spas, and hot tubs are prohibited in the front or the side of any residential and non-residential lot. Portable swimming pools, spas, and hot tubs capable of holding 24 inches in depth or more of water shall be anchored into the ground sufficiently to prohibit movement during a hurricane. Portable swimming pools, spas, and hot tubs shall be enclosed by either a fence or a screened enclosure, which must comply with the requirements for swimming pool, spa, and hot tub screening in Section 5.2.15.B. Drainage of swimming pools, spas, or hot tubs so as to permit the water to run onto property of other people is prohibited. Wading or splash pools not capable of holding 12 inches or more of water are exempt from the provisions of this subsection.
(Ord. No. 56-20, § 1, 9-14-2020)
A.
Unattended donation bins are prohibited except within commercial developments and subject to the following requirements:
B.
Unattended donation bins are permitted only on sites with a minimum of 125 parking spaces;
C.
Bins may not be in a required parking space or a drive aisle;
D.
Bins may not be placed in required landscape buffers and trees may not be removed in order to locate a bin;
E.
Bins shall be maintained in good condition and appearance with no structural damage, holes, or visible rust and shall be free of graffiti;
F.
Bins shall be locked or otherwise secured;
G.
Bins shall contain contact information in accordance with F.S. § 496.4121; and
H.
Bins shall be serviced and emptied as needed, but at least once per month, or within five business days of a request by the City. Boxes, garbage, and donation goods shall not be permitted to accumulate around unattended donation bins.
A.
Removal or extraction of dirt, soil, and sand.
1.
All borrow pits from which dirt, sand or soil has been removed shall be completely enclosed by a fence or earth berm at least six feet in height.
2.
Prior to any such removal or excavation, the following shall be submitted to the Department of Community Development: drainage plans, aerial photo of the site, a plan for development of the total site when the removal is completed, the estimated costs of restoring the site to a safe and developable condition, and a deposit of funds or other financial instruments payable to the City of Cape Coral is required equal to the estimated cost of restoring the site. The estimated cost for restoring the site shall include fence or berm removal, lake bank sloping and stabilization, site grading, seeding or mulching, drainage, and any other items that the Department, Hearing Examiner, or Council deems appropriate to ensure that the site is restored to a safe and usable condition. The plans shall be reviewed by the Hearing Examiner and written recommendation made to the Council prior to application for an excavation permit.
3.
Determination of the size of buffer strip necessary shall be made by the Hearing Examiner subject to final approval of the City Council.
B.
Removal or extraction of rock, gravel, shell, aggregate, or marl.
1.
All such excavations and extractions shall be sealed by fencing or grading or other device from general public access. All entrances to said excavation shall be fenced and locked during nonbusiness hours.
2.
Prior to any such removal or excavation, the following shall be submitted to the Department of Community Development: drainage plans, aerial photograph of the site, a plan for development of the total site when the removal is completed, the estimated costs of restoring the site to a safe and developable condition, and a deposit of funds or other financial instruments payable to the City of Cape Coral is required equal to the estimated cost of restoring the site. The estimated cost for restoring the site shall include fence or berm removal, lake, bank sloping and stabilization, site grading, seeding or mulching, drainage, and any other items that the Department, HEX, or Council deems appropriate to ensure that the site is restored to a safe and usable condition. The plans shall be reviewed by the HEX and written recommendation made to the Council prior to application for an excavation permit.
3.
Determination of the size of buffer strip necessary shall be made by the Hearing Examiner subject to final approval by the City Council.
4.
No excavation or extraction may be made with explosives without express permission of the Council. Excavation or borrow pit permits involving explosives must be renewed every 90 days.
C.
Excavations, removal, or extraction for purposes of oil or gas exploration or production.
1.
All such excavations, removals, or extractions shall be sealed by fencing or grading or other device from general public access. All entrances shall be fenced and locked during nonbusiness hours.
2.
Prior to any such excavation, removal, or extraction the following shall be submitted to the Department of Community Development: drainage plans, aerial photograph of the site, a plan for development of the total site when the removal is completed, the estimated costs of restoring the site to a safe and developable condition, and a deposit of funds or other financial instruments payable to the City of Cape Coral is required equal to the estimated cost of restoring the site. The estimated cost for restoring the site shall include fence or berm removal, lake, bank sloping and stabilization, site grading, seeding or mulching, drainage, and any other items that the Department, Hearing Examiner, or Council deems appropriate to ensure that the site is restored to a safe and usable condition. The plans shall be reviewed by the HEX and written recommendation made to the Council prior to application for an excavation permit. No permit to drill a gas or oil well shall be issued unless City Council approves the application for such permit by resolution.
3.
Determination of the size of buffer strip necessary shall be made by the Hearing Examiner subject to final approval by the City Council.
4.
No excavation or extraction may be made with explosives without express permission of the Council. Excavation permits involving explosives must be renewed every 90 days.
5.
No person or entity may engage in any oil and gas exploration or production that utilizes well stimulation within the corporate boundaries of the City of Cape Coral or, consistent with F.S. § 377.24(6), within the tidal waters of the state abutting or immediately adjacent to the corporate limits of the municipality, or within three miles of the City's corporate limits extending from the line of the mean high tide. As used in this section, the term "well stimulation" shall mean a well intervention, exploration, operation, or maintenance procedure performed by injecting fluid into a rock formation in order to increase production at an oil or gas well by improving the flow of hydrocarbons from the formation into the wellbore. Well stimulation does not include routine well cleaning that does not affect the integrity of the well or the formation.
D.
Procedures.
1.
The applicant shall meet with the Director and other city staff deemed appropriate by the Director prior to a public hearing with the Hearing Examiner to review staff concerns and to establish the basis for determining cost estimates as required.
2.
All excavation or borrow pit requests shall be reviewed by the city staff, the Lee County Health Department, and the Hearing Examiner. After their review and recommendation, the City Council shall call for a public hearing on the application and shall determine whether or not said application shall be granted.
3.
If the conceptual plan as presented by the applicant will require a zoning amendment for development, the applicant must prepare and submit a planned development project for the entire project prior to approval of the excavation.
4.
If the excavation or borrow pit application is approved, the applicant may then apply for an excavation or borrow pit permit.
A.
Proposed alterations to ground elevation or vegetative cover not associated with an approved Site Development Plan, Final Subdivision Plan, or building permit shall be submitted to the Director with an application for a permit for Land Clearing and Fill containing the required plans and documentation. The director may require certification by a registered professional engineer that site improvements have been made in accordance with permits issued pursuant to this Section.
B.
The following activities shall require a site improvement permit:
1.
Clearing of trees and vegetation without disturbing the soil surface;
2.
Clearing including stump removal and grubbing of top soils; and
3.
Filling.
C.
Maintenance:
1.
The applicant shall be responsible for the maintenance, repair, and replacement of all existing vegetation as may be required by the provisions of Chapter 8.
2.
In buffer areas and areas outside the impervious cover, plant material shall be tended and maintained in a healthy growing condition and free from refuse and debris. Plant materials required by Chapter 8 of this article which is unhealthy, dying, or dead shall be replaced during the next planting season.
D.
Excavation involving more than surface contouring for erosion control is only permitted with approval of a Site Development Plan or Subdivision Construction Plan.
E.
In all districts, other than agriculture zoning, the city shall not permit any new borrow pits or mining activities, however, reshaping or restoration of existing borrow pits may only be permitted incidental to an approved Site Development Plan or Subdivision Construction Plan. Agriculturally zoned lands may propose new borrow pits as a Special Exception.
F.
The following land clearing activities shall not require a permit:
1.
Removal of invasive plants without disturbance of the soil; or
2.
Land clearing for agricultural uses.
Construction sites shall be maintained in a manner which is non-deleterious to nearby properties. The requirements of this Section set minimum standards for the operation of the project site to eliminate or minimize impacts to the site and to the neighborhood to include vehicle parking and loading area, traffic control, fencing, placement of materials, safety, neatness, and cleanliness.
A.
Construction site management plan required. All development and building permit applications must be accompanied by a construction site management plan, unless waived by the building official or development services manager.
1.
Parking plan shall include:
a.
Location of on-site and adjacent unpaved portion of the right-of-way parking and the maximum number of vehicles that will be parked along the unpaved portion of the right-of-way.
b.
Parking plan for worker vehicles and machinery on the site.
c.
A single access with dimensions.
2.
A temporary fence location, height, and type shall comply with the following:
a.
For the purposes of construction site screening only, chain link fencing is permitted and shall be faced with a screen mesh.
b.
A maximum height of six feet in residential zoned properties and eight feet in commercially zoned properties.
c.
Fencing may not be required in agriculture or preservation zoned properties, upon a determination by the Director.
3.
Construction trailers, loading and unloading areas, and material storage areas shall not be stored in areas intended for stormwater retention or rain gardens.
4.
Traffic control plans shall include:
a.
Access points with dimensions;
b.
Area to be stabilized and a written plan on staging of construction related traffic including adequate parking (both on and off-site); and
c.
Plan for delivery of materials.
B.
Approval of plan and waivers. The building official or development services manager shall review, approve, or deny the construction site management plan and is authorized to grant waivers from submittal requirements:
1.
If the requirement is unrelated to proposed development;
2.
If the impact of the proposed development is negligible in that submittal requirement area; or
3.
If unusual site conditions do not allow full compliance with this Section.
In order to allow all waterfront property the same ability to utilize and access adjacent waterways, the development of docks, wharves, mooring piles, and watercraft moorings must be accomplished in a standard and unified manner. Marine improvements and boat canopies may be constructed by the owner of a waterfront lot after complying with the provisions of Chapter 4 of this article and receiving a building permit from the City.
(Ord. 80-23, § 2, 11-1-2023)
A.
An applicant who disagrees with the measurement of the calculated waterway width may submit a survey of the waterway width, prepared by a professional surveyor licensed in the state of Florida, to support the applicant's contention that the calculated waterway width is inaccurate. For purposes of this chapter, calculated waterway width shall be the width of the waterway measured using the City of Cape Coral's Geographic Information System (GIS).
B.
No dock or piling shall be permitted that interferes with the right to navigate safely within the waterways of the city. In no event shall the navigable area be reduced to less than 50% of the calculated waterway width.
C.
The property owner shall be solely responsible for compliance with all applicable provisions of the Lee County Manatee Protection Plan.
D.
Any marine improvement located in a non-residential zoning district or public projects shall require a Florida registered professional engineer to design the marine improvement and seal the plans prior to its submission for approval of the city.
E.
All marine improvements that are constructed of concrete shall be designed by a Florida registered professional engineer who shall seal the plans prior to their submission for approval by the city.
F.
All marine improvements and boat canopies shall be maintained in a safe condition and removed or replaced should they become unsafe. No structure or obstruction may be placed in a public waterway unless specifically provided for in this section. In addition, because the waterways in the City of Cape Coral are public rights-of-way, all marine improvements and boat canopies located in such waterways may be required by the city at any time to be relocated or removed for the benefit of the public health, safety, and welfare, regardless of whether the construction of such marine improvements and boat canopies had been permitted by the city.
G.
Except as otherwise provided herein for joint marine improvements, no marine vessel (or any part thereof) when secured in any way to a marine improvement shall extend beyond the ends of the water frontage of the parcel from which the marine improvement projects.
(Ord. 80-21, § 4, 11-3-2021)
A.
Protrusions into a waterway.
1.
Marine improvements which do not extend more than six feet into a waterway as measured from the water frontage line may extend the full length of the water frontage of the parcel. However, where the end of a parcel's water frontage line abuts the water frontage line of another parcel, the angle at which such two water frontage line ends meet shall be bisected and apportioned equally between the two waterfront parcels. Except as provided elsewhere in this section for corner parcels, end parcels, adjacent parcels, or for parcels located on a lake or basin, no part of a marine improvement shall extend beyond the bisector of the angle.
2.
Except as provided elsewhere in this section for corner parcels, end parcels, adjacent parcels, or for parcels located on a lake or basin, no marine improvement may extend more than six feet into a waterway as measured from the water frontage line, except under the following conditions:
a.
No part of a marine improvement which extends more than six feet into a waterway shall be located less than 12 feet from the ends of the water frontage line.
b.
Except as provided below, no part of any marine improvement, including but not limited to docks, mooring posts, boat lifts, lift structures, and walkways, shall project into a waterway to a point more than 25% of the calculated waterway width or 40 feet, whichever is less, as measured from the water frontage line.
i.
Marine improvements located within the Caloosahatchee River shall be subject to the requirements of state and federal regulations.
ii.
A marine improvement may project farther into a canal than would be otherwise allowed by this subsection, if the marine improvement is projecting from an outside corner parcel that projects into two canals at the intersection, excluding a "T" intersection, of two canals. Such farther projection, however, may only occur in the area that results from the following calculation: Each of the two waterfrontage lines of the property shall be extended from the point immediately preceding where it begins to curve to meet the other waterfrontage line or from where it angles to meet the other waterfrontage line, whichever is applicable, to a point 25% of the calculated canal width or 40 feet, whichever is less. Then, in each intersecting canal, a line shall be drawn that is parallel to the extension of each of the waterfrontage lines and that runs through a point that is located at 25% of the calculated waterway width or 40 feet from the waterfrontage line, whichever is less. A marine improvement may project up to 40 feet from the waterfrontage line within the area formed by the intersection of the aforesaid four lines, even if such distance is farther than would be otherwise allowed by this subsection. See Diagrams 5.4.3.O. & P.
iii.
In the event a significant portion of a waterway is not developable on one side due to ecological, or other constraints, a marine improvement located on the opposite side of the undevelopable portion shall be permitted to project into the waterway up to 50% of the calculated waterway width or 40 feet, whichever is less, as measured from the waterfrontage line. See Diagram 5.4.3.N.
3.
Marine improvements for parcels at or adjacent to canal ends or parcels on lakes and basins (excluding outside corner parcels) are subject to the following:
a.
For purposes of this section, a "canal end line" shall be deemed to be a line or lines drawn from the farthest point where the canal meets land perpendicular to the sides of the canal, or to the sides of the canal as extended if necessary. If the side of a canal curves near its end point, such canal side shall be extended from the point immediately preceding where it begins to curve. For purposes of this section, a waterfront parcel shall be deemed to be located at the end of a canal and, therefore, an "end parcel" if any part of the parcel abuts or includes within its boundaries any part of the canal end line or any part of an extension of a side line between the side line and the canal end line. Any waterfront parcel that is not an end parcel, but that abuts an end parcel, shall be deemed to be an "adjacent parcel" for purposes of this section.
b.
Canal ends. Except for parcels governed by Section 5.4.3.A.3.g below, end parcels shall be permitted to have marine improvements projecting into the waterway up to a maximum of 30 feet. Adjacent parcels shall be permitted to have marine improvements projecting into the waterway up to a maximum of 30 feet or 25% of the calculated canal width, whichever is less.
c.
Lakes and basins. Corner parcels shall be permitted to have marine improvements projecting into the waterway up to a maximum of 30 feet. Adjacent parcels shall be permitted to have marine improvements projecting into the waterway up to a maximum of 30 feet or 25% of the calculated waterway width, whichever is less. End parcels shall be permitted to have marine improvements projecting into the waterway up to a maximum of 40 feet or 25% of the calculated waterway width, whichever is less.
d.
With respect to end parcels with a water frontage line of at least 80 feet, no part of a marine improvement which extends more than six feet into a canal shall be located less than 12 feet from the ends of the water frontage line of the parcel. See Diagrams 5.4.3.A. & J
e.
With respect to end parcels with more than 40 feet, but less than 80 feet, of water frontage line, any part of a marine improvement which extends more than six feet into a canal shall be set back from the ends of the water frontage line of the parcel in accordance with the following formula: (Parcel Waterfrontage - 40 feet) x 0.3. The foregoing restrictions shall apply to marine improvements projecting from adjacent parcels (based on the length of their waterfrontage lines) in the same manner as end parcels, except that on the side of the adjacent parcel that abuts an end parcel, a marine improvement may be built up to the side boundary of the adjacent parcel's marine improvement area, as determined pursuant to paragraph 5.4.3.A.3.j.ii below. See Diagram 5.4.3.H
f.
With respect to end and adjacent parcels with 40 feet or less of water frontage, no marine improvement shall extend more than six feet into the canal except in accordance with the following:
i.
Such a parcel may have either a platform dock not more than ten feet wide and extending not more than 16 feet into the canal or not more than two finger piers (with or without a boat lift) that together total no more than six feet in deck width and that extend not more than 30 feet into the canal.
ii.
No marine improvement that projects more than six feet into the canal shall extend more than ten feet either side of the center point of the water frontage line of the parcel. Furthermore, no marine improvement shall extend beyond the ends of the water frontage line of the parcel. All marine improvements shall be centered on the centerline of the waterfront parcel's marine improvement area. See Diagram 5.4.3.F
iii.
At the end of the construction of any marine improvement extending more than six feet into the canal, but prior to the final inspection by the Department of Community Development, the property owner or his or her representative shall submit to the Department of Community Development a final signed and sealed survey showing that all construction is in compliance with the requirements of this section.
g.
When a parcel is at the corner of a waterway so as to include water frontage (all under the same ownership) on both the side and end of a waterway, the property owner may install or erect a marine improvement that extends from the side of the waterway to a maximum distance of 25% of the calculated width of the waterway or 30 feet, whichever is less, and from the end of the waterway a distance of 30 feet into the waterway.
h.
Except as otherwise provided herein for joint marine improvements, no marine vessel (or any part thereof) when secured in any way to a marine improvement projecting from an end parcel, an adjacent parcel, or a parcel on a lake or basin (excluding outside corner parcels) shall extend beyond the boundaries of the marine improvement area of the parcel.
i.
Marine improvements that do not project more than six feet into a waterway as measured from the water frontage line may extend the full length of the water frontage of the parcel. However, where the end of a parcel water frontage line abuts the water frontage line of another parcel, the angle at which such two water frontage line ends meet shall be bisected and apportioned equally between the two waterfront parcels. In that event, no marine improvement shall extend beyond the bisector of the angle.
j.
No marine improvement that projects more than six feet from the water frontage line of the property shall be permitted to be outside of the marine improvement area for a waterfront parcel. The boundaries and dimensions of the marine improvement area shall be determined as follows:
i.
End parcels.
(a)
The access width of the waterway shall be calculated by subtracting from the calculated waterway width twice the maximum distance that a marine improvement along one side of the waterway could lawfully project as determined pursuant to Section 5.4.3.A.2. For purposes of this section, the access width of a waterway shall be that portion of the waterway width in which no marine improvement may lawfully be constructed.
(b)
The waterway access ratio shall be calculated by dividing the waterway access width by the calculated width of the waterway.
(c)
The waterway center point (WCP) is a point on the centerline of the canal 30 feet from the water's end. All marine improvement area lines and intersections are calculated and plotted from the WCP. See Diagram 5.4.3.B.
(d)
Offset points for the parcel are determined as follows: If the parcel has 80 feet or more of water frontage line, then the offset points shall be located 12 feet from each end of the water frontage line of the parcel. If the parcel has more than 40 feet, but less than 80 feet of water frontage line, then the offset points shall be located in from the ends of the water frontage line the distance (in feet) resulting from the following formula: (Feet of Water Frontage Line - 40) x 0.3. If the parcel has 40 feet or less of water frontage line, then the ends of the parcel's water frontage line shall be the offset points. See Diagram 5.4.3.C.
(e)
From the WCP, plot a line having the same relationship to the WCP as the water frontage line has to the center of the canal end, but with all distances reduced in size by the waterway access ratio. This line is the offset line for the parcel. See Diagram 5.4.3.D.
(f)
The marine improvement area is that area enclosed by the water frontage line, the offset line, and lines connecting the ends of the offset line to corresponding offset points. See Diagram 5.4.3.E.
ii.
Adjacent parcels. The marine improvement area for an adjacent parcel shall be calculated in the same manner as that for an end parcel except as follows:
(a)
Adjacent parcel that abuts an end parcel with 40 feet or less of water frontage line. On the side of the adjacent parcel that abuts an end parcel with 40 feet or less of water frontage line, the side boundary of the marine improvement area shall constitute the side boundary of such adjacent parcel's marine improvement area. See Diagram 5.4.3.I. & J.
(b)
Adjacent parcel that abuts an end parcel with more than 40 feet of water frontage line. On the side of the adjacent parcel that abuts an end parcel with more than 40 feet of water frontage line, the side boundary of the adjacent parcel's marine improvement area shall be determined by drawing a line from the end of the subject adjacent parcel's water frontage line (on the same side as the subject end parcel) to the nearest terminus point of the subject end parcel's offset line and passing through the adjacent parcel's offset line. The side boundary shall be that portion of the aforesaid line between the end of the adjacent parcel water frontage line and the parcel's offset line. However, in no event shall the side boundary extend beyond the bisector of the angle formed where the adjacent parcel's water frontage line abuts the end parcel's water frontage line. The bisector shall be extended into the waterway the maximum distance a marine improvement could lawfully project within the marine improvement area. See Diagram 5.4.3.G.
iii.
Parcels on lakes and basins (excluding outside corner parcels). A waterfront parcel shall be deemed to be on a lake or a basin if the parcel abuts a body of water identified as a lake or a basin in the City's GIS database. Except for outside corner parcels, all waterfront parcels on lakes or basins shall be categorized as corner parcels, adjacent parcels, or end parcels. A corner lake or basin parcel shall be a parcel that either touches or is on both sides of an interior corner of a lake or basin. In other words, a corner lake or basin parcel may be one with a water frontage line that is V-shaped because it physically runs along the edge of the lake or basin, turns at the corner, and continues along the edge of the lake or basin, or it may be a parcel the water frontage line of which ends at a corner of the lake or basin where another side of the lake or basin begins, or it may be a parcel that is angled in such a way that each end of its water frontage line touches a different side of the lake or basin. Also, an adjacent lake or basin parcel shall be a parcel that is on a lake or basin and that abuts at least one corner parcel. All other parcels on lakes or basins and that are neither corner parcels nor adjacent parcels shall be treated as end parcels.
iv.
The marine improvement area for parcels on lakes or basins shall be calculated as follows:
(a)
For an end parcel, the side of the lake or basin upon which the parcel is physically located shall be deemed to be the end of the lake or basin and the sides of the lake or basin shall be deemed to be the sides of the lake or basin running roughly perpendicular to the end of the lake or basin and to the left and to the right of the parcel (when facing the lake or basin). For purposes of this Section, the waterway access ratio for all end lake and basin parcels shall be one. In addition, the WCP for end lake or basin parcels shall be 40 feet into the lake or basin as measured perpendicularly to the lake or basin end from the center of the lake or basin end. All marine improvement area lines and intersections are calculated and plotted from the WCP. The remainder of the marine improvement area boundary calculations for end lake or basin parcels shall be the same as those performed with respect to canal end parcels.
(b)
For corner lake or basin parcels, the configuration of the marine improvement area shall be determined by the physical configuration of the particular corner parcel. With respect to a corner parcel the water frontage line of which lies entirely on one side or end of a lake or basin, but terminates at the corner of the lake or basin where the other side of the lake or basin begins, the marine improvement area shall be calculated in the same manner as for end lake or basin parcels except that the side boundary of such marine improvement area (on the side where the corner of the lake or basin is located) shall be formed by a line bisecting the angle of such corner and extending to the offset line of the marine improvement area. See Diagram 5.4.3.K.
(c)
With respect to a corner parcel that is angled so that each end of its water frontage line is on a different side of the lake or basin or for a corner parcel with a V-shaped water frontage line, the marine improvement area configuration shall be determined as follows: First, calculate the waterway access ratio for each side of the lake or basin in the same manner as the waterway access ratio for a canal is determined. Then measure the distance from the center of each side of the lake or basin touched by the corner property to the end of the water frontage line, or to the offset point, if any, on such side of the lake or basin. Multiply each of the aforesaid distances by the waterway access ratio for the relative side of the lake or basin to obtain the length of the waterway line for each side of the lake or basin. Plot the waterway line from the center of the side of the lake or basin for which it was calculated to a point that is 30 feet waterward from the water frontage line. The offset line for a corner parcel marine improvement area is formed by connecting the two foregoing points. The marine improvement area for the corner parcel is that area enclosed by the parcel water frontage line, the offset line, and lines connecting the ends of the offset line to the corresponding offset points for the parcel, if any, or to the ends of the water frontage line. See Diagrams 5.4.3.L & M.
(d)
For adjacent lake or basin parcels, the marine improvement area shall be calculated in the same manner as that for end lake or basin parcels except as follows: With respect to an adjacent lake or basin parcel that abuts a corner parcel with 40 feet or less of water frontage line, the side boundary of the corner parcel marine improvement area (on the side where it abuts the adjacent parcel) shall form the side boundary of the adjacent parcel marine improvement area. With respect to an adjacent lake or basin parcel that abuts a corner parcel with more than 40 feet of water frontage line, the side boundary of the adjacent parcel (on the same side as the subject corner parcel) shall be determined by drawing a line from the end of the adjacent parcel water frontage line to the nearest terminus point of the subject corner parcel offset line and passing through the adjacent parcel offset line. The side boundary of the adjacent parcel shall be that portion of the aforesaid line between the end of the adjacent parcel waterfrontage line and such parcel's offset line. See Diagram 5.4.3.M
(e)
If the owner of a waterfront parcel on a lake or basin is aggrieved by the interpretation or application of this Section to such parcel due to the physical configuration of the particular lake or basin, then the Director may interpret and apply the provisions of this Section so as to alleviate the hardship resulting from the configuration of the lake or basin and so as to enable the waterfront parcel a reasonable marine improvement area.
4.
In the event a significant portion of a waterway is not developable on one side due to ecological or other constraints, a marine improvement on the opposite side of the unnavigable portion shall be permitted to project into the waterway up to 50% of the calculated waterway width or 40 feet, whichever is less, as measured from the waterfrontage line. See Diagram 5.4.3.N
5.
All properties adjacent to bridges shall be reviewed individually by the city to determine what, if any, marine improvement may project from that property. Factors to be considered in making this determination include, but are not limited to, public safety and the impact of a planned marine improvement on navigability.
B.
Maximum dock surface area.
1.
For parcels with more than 40 feet of waterfrontage, the maximum deck surface area coverage shall be calculated as follows: the linear feet of water frontage of the parcel minus 24 feet times one-half times the linear feet of the maximum projection into the waterway (25% of the calculated width of the waterway or 40 feet, whichever is less).
Maximum Dock Surface Area = (Linear Feet of Waterfrontage - 24) * (1/2 Maximum Projection)
Maximum Projection = 25% of width of waterway or 40 feet whichever is less
2.
For parcels with 40 feet or less of waterfrontage, the maximum deck surface area shall be calculated as follows: the linear feet of waterfrontage of the parcel times one-quarter times the linear feet of the maximum projection into the waterway (25% of the calculated width of the waterway or 40 feet, whichever is less).
Maximum Dock Surface Area = Linear Feet of Waterfrontage * (1/4 Maximum Projection)
Maximum Projection = 25% of width of waterway or 40 feet whichever is less
C.
Diagrams.
(Ord. 80-21, § 4, 11-3-2021)
Owners of adjoining waterfront parcels may adjust their abutting marine improvement area boundaries and offset requirements by entering into a written joint use agreement, provided the marine improvements are connected. A captain's walk does not constitute a connection for requiring a joint marine improvement. All limitations regarding the maximum area of marine improvements shall apply to each property and the maximum marine improvement area allowed for each parcel shall not be combined or modified in any way so as to increase the maximum marine improvement area allowed for either parcel. Marine vessels or boat canopies when secured in any way to a joint marine improvement may extend beyond the end of one of the waterfront parcels involved at the point where such parcel abuts the other parcel sharing the marine improvement. However, no marine vessel (or any part thereof) shall extend beyond the outer ends of the water frontage of the two waterfront parcels except as provided in § 5.4.2.G. The joint use agreement shall, at a minimum, comply with the following requirements.
A.
The agreement shall contain the name(s) and current home address(es) of both property owners.
B.
The agreement shall identify the waterway upon which the subject parcels are located and shall identify the waterfront parcels involved by legal description and by STRAP number. The agreement shall also include a signed and sealed survey of the subject adjoining parcels.
C.
The agreement shall include a drawing of the proposed marine improvement(s) to be constructed, showing the design and dimensions of the marine improvement(s), and where the marine improvements will project from the parcels.
D.
The agreement shall identify those areas that would be subject to access (ingress and egress) easements in conjunction with the joint marine improvement. Such easement(s) shall identify by legal description the property to which the easement attaches and shall be irrevocable except with the written consent of the city. The rights of each party with respect to such easement(s) shall run with the title to the respective parcels. A drawing identifying the easements shall also be included with the agreement.
E.
The agreement shall identify the responsibilities of each of the parties for the construction and maintenance of the facilities. However, identification or division of responsibilities between parties in the agreement shall not affect the ability of the city to enforce any and all provisions of its Code of Ordinances or Land Development Codes against the property owner(s) of the joint marine improvement, jointly and severally.
F.
The agreement shall state that the parties understand and agree to abide by all applicable federal, state, and local regulations pertaining to the construction, maintenance, and use of the facilities.
G.
The agreement shall run with the land and be binding upon the parties, their successors, heirs, and assignees and it shall provide that it may not be rescinded or amended without the written consent of the city.
H.
The parties to the agreement shall record the agreement, at their own expense, in the public records of Lee County. The agreement shall satisfy all requirements for recording, including those contained in the Florida Statutes. No permit for the construction of a joint marine improvement or for the erection or installation of a boat canopy on a joint marine improvement shall be issued by the city until the parties have first provided to the city a copy of the fully executed agreement and evidence of recording that is satisfactory to the city, in its sole discretion.
I.
Prior to execution and recording of the agreement, the parties shall submit a draft of the proposed agreement to the Community Development Director for review and comment.
(Ord. 80-21, § 4, 11-3-2021)
Editor's note— Ord. 80-21, § 4, adopted Nov. 3, 2021, repealed § 5.4.5, which pertained to quays and mooring piles and derived from the Original Land Development Code.
A.
Lifts: An electrical permit is required to install a lift on a dock.
B.
Davits:
1.
The minimum side setback for davit installation shall be five feet from the side lot line to the center of the davit base.
2.
Davits, including swinging lifts when extended over the water, may not extend further than 25% into the waterway or 30 feet whichever is less.
3.
Overhead hoists, davits, or machinery shall not exceed eight feet above mean high water when not in use.
C.
Floating docks and lifts:
1.
For dimensional requirements refer to Section 5.4.3. above.
2.
A floating dock or lift must be anchored in place so as not to impede the use of neighboring waterfront property.
(Ord. 80-21, § 4, 11-3-2021)
A.
No overhead structure shall be constructed on any dock other than an approved boat canopy or sun shelter. Sun shelters shall be erected or installed on docks only in accordance with Section 5.2.10. of this article.
B.
Boat canopies are permitted to be erected or installed on marine improvements for the purpose of protecting a vessel from the elements only in accordance with the following:
1.
The support(s) and frame(s) of a boat canopy shall be constructed of a corrosion-resistant material, with a diameter or width of not less than one and one-quarter inches. Boat canopy supports shall be arranged in an open design so as to allow visibility through the sides with openings no smaller than four feet in any dimension. No boat canopy support or frame shall be of a solid or opaque design so as to create a wall. No boat canopy shall have wooden framing or supports. No shutter roll-up design shall be permitted.
2.
The canopy shall be fabric or a material which can be rolled and folded without damage. The canopy shall be attached to the boat canopy supports or frames in such a manner that it detaches in a wind load of 70 mph or greater.
3.
The boat canopy shall not extend horizontally more than 30 inches over any dock or seawall to which the canopy is attached. Canopies attached to marine improvements that are built to the maximum projection, may extend up to 30 inches beyond the structure.
4.
No boat canopy shall exceed 40 feet in length or 18 feet in width.
5.
Boat canopies, their supports, and frames shall be maintained in good repair at all times. No canopy, canopy support, or frame shall be allowed to fall into disrepair or to become dilapidated, structurally dangerous, or unsafe. In the event a boat canopy, canopy support, or frame falls into disrepair, it shall be the responsibility of the owner of the waterfront parcel to remove the offending structure.
6.
Only one canopy may be permitted per parcel. On single-family residential properties which have a water frontage length greater than 80'-0", a second boat canopy is permitted provided that the maximum combined area of all boat canopies permitted on the property does not exceed nine times the length of the property's water frontage, or 1,500 square feet, whichever is less.
7.
No boat canopy, when measured at its highest point, shall extend more than 20'-0" from the Mean High Water Line of the waterway or 16'-0" above the grade of the decking of the attached marine improvement, whichever is less.
8.
The boat canopy shall be attached to the boat canopy side supports or frames so that at least 75% of the area of each side of the boat canopy structure is left open and uncovered.
9.
Except as otherwise provided herein for boat canopies attached to joint marine improvements, no part of any boat canopy shall be located less than 12 feet from the ends of the water frontage line unless the prior written consent of the affected abutting property owner(s) is obtained. Such consent shall be recorded in the public records of Lee County, at the expense of the property owner(s), shall be irrevocable by the affected abutting property owner, and shall be binding on the heirs, tenants, successors in interest and/or assigns of the affected property owner unless the owner of the property with the boat canopy that is located less than 12 feet from the ends of the water frontage line consents in writing to the revocation and removes or relocates the boat canopy so as to comply with all applicable requirements of this section. The owner of the parcel containing the marine improvement to which the boat canopy is attached shall be responsible for providing the aforesaid written consent to the city prior to obtaining a permit for the construction or erection of a boat canopy.
10.
Second boat canopies on single-family residential properties that obtained a deviation prior to April 2, 2015, to lawfully construct a second boat canopy, shall be deemed legal and conforming and, if damaged or removed, may be repaired or replaced.
11.
No boat canopy shall be located in or over a public waterway unless it is attached to a marine improvement or seawall.
12.
With respect to properties on which multi-family residential uses are located, no more than one boat canopy for each residential unit lawfully existing on the property shall be permitted.
(Ord. 51-19, § 1, 11-18-2019; Ord. 80-21, § 4, 11-3-2021; Ord. 56-24, § 1, 11-13-2024)
A.
Saline or brackish water; mandatory seawalls. Except as provided in Subsection A.1., all parcels having frontage or direct and immediate access to frontage on any saline, brackish, or tidally influenced canal or other body of water within or bordering the boundaries of the city are required to have constructed on them, at the owner's expense, a seawall bulkheading the entire frontage exposed to contact with the water. Seawalls shall be structurally maintained at owner's expense so as not to cause a nuisance or hazard to safety.
1.
Alternative shoreline stabilization: Parcels owned by the City of Cape Coral, or for projects in which the City is serving as the permit applicant, where the parcel has 85 feet or more water frontage, are required to have constructed on them either a seawall bulkhead or alternative shoreline stabilization along the water frontage. Proposed plans shall be reviewed and may be approved by the Public Works Director for a seawall bulkhead or alternative shoreline stabilization. Notwithstanding the foregoing, all applicable permits from local, state, and federal agencies shall be obtained prior to the commencement of construction.
B.
Fresh or non-saline water; mandatory seawalls or alternatives to vertical bulkheads. All parcels having frontage or direct and immediate access to frontage on any freshwater or non-tidal canal or other body of water within or bordering the boundaries of the city are required to have constructed on it, at the owner's expense, a seawall bulkheading the entire frontage exposed to contact with the water or alternatives to vertical bulkheads as specified in the City of Cape Coral Engineering Design Standards. Seawalls or their alternative shall be structurally maintained at owner's expense so as not to cause a nuisance or hazard to safety. The provisions of this Section shall not apply to any parcels adjacent to or contiguous with any drainage ditch, canal, pond, or lake within any public or private golf course or public park.
C.
Unexcavated platted waterway right-of-way.
1.
The original developer of Cape Coral dedicated waterways on the Plat but did not excavate certain waterways to the full width indicated on the Plat, resulting in dry land existing between a platted lot line and the water. For purposes of this Section, "unexcavated platted waterway right-of-way" shall mean land lying between a platted lot line and the actual water part of any platted waterway. In the event that a person desires to place, install, or construct a seawall, alternative to vertical bulkhead, marine improvement, or any combination thereof, upon any unexcavated platted waterway right-of-way, such person may apply for and, subject to the approval of the City, receive an approval for a vacation of the unexcavated platted waterway right-of-way pursuant to Section 3.4.5, or alternatively, enter into an agreement with the City as provided in this section.
2.
Written agreement required. It shall be unlawful for any person to place, install, or construct a seawall, alternative to vertical bulkhead, marine improvement, or any combination thereof, upon an unexcavated platted waterway right-of-way, without first entering into a written agreement with the City authorizing such work. The agreement to encroach into an unexcavated platted waterway right-of-way is intended as an alternative to the vacation of the subject right-of-way. Notwithstanding the foregoing, said agreement requirement is not intended to apply to seawalls, alternatives to vertical bulkheads, and marine improvements placed, installed, or constructed on or projecting from a platted lot line, directly into a platted waterway.
3.
Application. An abutting property owner may submit an application to enter into an agreement with the City to authorize the placement, installation, or construction of a seawall, alternative to vertical bulkhead, marine improvement, or any combination thereof upon an unexcavated platted waterway right-of-way on a form provided by the City, and shall include all required information as specified in the application, including, but not limited to:
a)
The legal description of the property that abuts the subject right-of-way, prepared by a professional surveyor licensed in the state of Florida within one year of the date of the application hereunder;
b)
A survey showing the boundaries and features of the subject right-of-way to be subject to encroachment(s), prepared by a professional surveyor licensed in the state of Florida within one year of the date of the application hereunder;
c)
A site plan drawn to scale and showing the location and dimensions of the proposed seawall, alternative to vertical bulkhead, and any marine improvements to be placed in the subject right-of-way;
d)
Proof of ownership of the subject property abutting the platted waterway right-of-way:
e)
Any additional information reasonably required by the City; and
f)
A non-refundable application fee, as may be established by resolution of the City Council.
4.
Review criteria. In determining whether an abutting property owner may place, install, or construct a seawall, alternative to vertical bulkhead, and marine improvements upon an unexcavated platted waterway right-of-way, the City shall consider factors that include, but are not limited to, the following:
a)
Effect on navigational safety;
b)
Effect on existing and proposed public utilities, powerlines, and other right-of-way improvements;
c)
Effect on surface waters and drainage patterns;
d)
Whether the proposed seawall, alternative to vertical bulkhead, and marine improvements would interfere with any infrastructure or maintenance use by the City or any utility company; and
e)
Whether the proposed marine improvements meet the requirements set forth in Chapter 4 of this article.
5.
Approval. The City Manager, or the City Manager's designee, is authorized to approve an application to encroach into an unexcavated platted waterway right-of-way and enter into a written agreement with the abutting property owner upon a determination that the proposed improvements will not have an unreasonably negative impact on the review criteria identified in Section 5.4.8.C.4., or the proposed marine improvements do not meet the requirements of Chapter 4. The form of said agreement shall be approved by the City Attorney's Office.
a)
Unless expressly prohibited by an approved agreement with the City pursuant to this Subsection C., a property owner abutting an unexcavated platted waterway right-of-way may use such area to place, install, construct, maintain, and operate any surface improvements, including, but not limited to, sidewalks, walkways, curbing, landscaping and fencing, but excluding buildings, pools or any structures with a foundation.
b)
Any approval to encroach into the platted waterway right-of-way shall not negate the requirement to obtain all other permits required by applicable governmental agencies, including, but not limited to, the City of Cape Coral and the U.S. Army Corps of Engineers.
c)
Any approval granted by the City is to be deemed solely as a right to encroach into the platted waterway right-of-way, and no other property interest is acquired by the property owner.
d)
Any approval granted by the City to the abutting property owner is made with the express condition that neither the owner or the owner's heirs, successors, assignees or any person claiming under or through them shall acquire any right superior to the City's right in such platted waterway right-of-way, whether by lapse of time or otherwise.
e)
The City shall record the agreement, at the abutting property owner's expense, in the public records of Lee County, Florida. The agreement shall run with the land and be binding upon the parties thereto, their heirs, successors, and assignees, and it shall provide that it may not be rescinded or amended in any manner without the written consent of the City.
6.
Denial. An application shall be denied by the City Manager, or the City Manager's designee, if the proposed improvements will have an unreasonably negative impact on the criteria in Section 5.4.8.C.4. or the proposed marine improvements do not meet the requirements of Chapter 4. If the City Manager, or the City Manager's designee, denies the application to encroach into a platted waterway right-of-way, the applicant shall have ten calendar days from the date of the notice of denial to appeal the decision to the City's Special Magistrate. Such appeal to the City's Special Magistrate shall be treated as an Administrative Appeal and follow the procedures provided in Section 3.1.14.B. of this Code.
7.
Maintenance and removal. The person who owns the property abutting the unexcavated platted waterway right-of-way in which a seawall, alternative to vertical bulkhead, marine improvements, or surface improvements are located or installed, shall be responsible for repairing any damage to approved encroachments in the right-of-way. Such person shall also be solely responsible to maintain the seawall, alternative to vertical bulkhead, marine improvements, surface improvements, and the subject unexcavated platted waterway right-of-way area in good condition so as to present a healthy, neat, and orderly appearance. Maintenance of the unexcavated platted waterway right-of-way area shall include, but not be limited to, grass mowing and erosion control. The failure to maintain the seawall, alternative to vertical bulkhead, marine improvements, and surface improvements shall constitute a violation of this section and may be grounds for removal by the City of such improvements from the right-of-way, at such abutting property owner's sole expense. The failure to maintain the unexcavated platted waterway right-of-way area shall constitute a violation of this section.
In the event that the City, during the course of exercising its rights over an unexcavated platted waterway right-of-way, damages a seawall or alternative to vertical bulkhead built by the abutting property owner pursuant to an agreement hereunder, the City shall repair or replace such seawall or alternative to vertical bulkhead at the City's sole cost and expense. The repair or replacement of any marine improvements and surface improvements shall not be the responsibility of the City. The abutting property owner assumes all liability and responsibility to repair or replace marine improvements and surface improvements built on an unexcavated platted waterway right-of-way, as permitted in the agreement with the City.
Any seawall, alternative to vertical bulkhead, marine improvement, or surface improvement placed, installed, or constructed upon an unexcavated platted waterway right-of-way without the express written permission of the City shall be subject to removal by the City in its sole discretion. The City may also, in its sole discretion, require the removal of any seawall, alternative to vertical bulkhead, marine improvements, or surface improvements located or installed in an unexcavated platted waterway right-of-way, for utility maintenance, safety, or any other reason. In such instance, the City Manager, or the City Manager's designee, shall give 60 days written notice to the abutting property owner that the agreement is canceled. Mailing of such notice by U.S. Mail to the current owner, at the address shown in the records of the Lee County Property Appraiser or such other address provided to the City, shall constitute prima facie evidence of sufficient notice in accordance with this section. Upon such notice of cancellation, the owner shall, within 90 days, remove from the right-of-way all items placed in it at such owner's sole expense. The failure to timely remove the seawall, alternative to vertical bulkhead, marine improvements, and surface improvements upon such notice by the City shall constitute a violation of this section. If the property owner fails to remove such items and if the City deems it to be in the best interest of the public health, safety, and welfare, the City may remove the items and seek reimbursement from the abutting property owner for the cost of removal. The authorization in this section for the removal of items from the right-of-way shall be construed as supplementary to any other means of enforcement available to the City and shall not be construed so as to negate the authority of the Code Compliance Special Magistrate to hear and adjudicate appropriate cases.
Alternatively, and in the City's sole discretion, the City may elect to remove such items at the City's expense.
In the event that the Agreement is cancelled or otherwise terminated by the City, the City shall record a Release of Agreement in the public records of Lee County, Florida.
(Ord. 51-19, § 2, 11-18-2019; Ord. 42-21, § 2, 6-2-2021; Ord. 34-24, § 1, 6-5-2024; Ord. No. 31-25, § 3, 6-4-2025)
A.
Handrails shall not exceed 42 inches in height (as measured from the deck of the structure). Pilings or posts used to support handrails may exceed 42 inches in height in accordance with § 5.4.10.G. A minimum distance of 30 inches must be maintained between pilings or posts used to support handrails.
B.
Interior handrail members (pickets, balusters, and rungs) must be parallel to each other and may not intersect. A minimum of four inches of open space must be maintained between interior handrail members. The actual dimensions of any handrail member shall not exceed two inches by six inches. Alternative handrail designs may be approved at the discretion of the Building Official, upon finding the alternate design meets the intent of this section.
(Ord. 51-19, § 3, 11-18-2019)
A.
All wooden pilings used in connection with marine improvements subject to the terms of this section shall be made of pressure treated wood. Such pilings shall conform to the specifications contained in ASTM (American Society for Testing of Material) D25-88 and shall be treated with preservatives meeting standards of AWPA (American Wood Preservers Association) Standard P-5. The minimum retention of preservative for such wooden pilings shall be 2.5 pounds per cubic foot (p.c.f.) of chromated copper arsenate (CCA) in the zone 0 to 1.5 inches from the surface of the piling and 1.5 pounds per cubic foot (p.c.f.) in the zone 1.5 to 2 inches from the surface of the piling.
B.
All pilings made of precast concrete and used in connection with marine improvements subject to the terms of this section shall have a minimum concrete strength of 3,000 pounds per square inch (psi) at 28 days and shall be at least eight inches square in cross section.
C.
All non-prestressed concrete pilings shall have at least four #5 epoxy-coated steel reinforcing bars the entire length of the piling and have at least two inches of concrete cover.
D.
All wooden pilings used for the support of a marine improvement or as framing for a marine improvement shall have a minimum classification of eight-inch butt diameter.
E.
All wooden pilings used for support of boat lifts, or other structures supporting marine vessels, shall conform to the specifications of the manufacturer of the boat lift or other structure supported by such wooden piling(s). However, in no event shall any wooden pilings used for support of boat lifts or other structures supporting marine vessels be less than eight inches in butt diameter.
F.
All wood that is located below mean high water or that is in contact with the water in any way shall be treated to two and one-half per cubic foot (p.c.f.) CCA. All wood that is located above mean high water shall be treated to four-tenths per cubic foot (p.c.f.) CCA, except that decking may be treated to a minimum of twenty-five-one-hundredths per cubic foot (p.c.f.) CCA.
G.
The elevation of pilings shall not exceed ten feet above the seawall cap or, if no seawall exists, 13 feet above mean water level.
H.
The elevation of the decking of a marine improvement shall not exceed two feet above the seawall cap, or if no seawall exists, five feet above mean water level. For marine improvements located in the Caloosahatchee River, and for marine improvements, located in canals, within 300 feet of the platted shoreline of the Caloosahatchee River, the elevation of the decking shall not exceed four feet above the seawall cap, or if no seawall exists, seven feet above mean water level.
I.
All pilings and/or mooring posts shall be offset a minimum of 3 feet from any storm drain outfall pipe. Such measurement shall be made from the outside edge of the outfall pipe to the center of the piling or mooring post.
J.
The minimum nominal dimensions of stringers and headers shall be two inches by eight inches. Stringers shall be supported by through bolts to pilings or by headers through-bolted to pilings with machine bolts or carriage bolts. Such machine bolts or carriage bolts shall have a diameter of not less than one-half inch. Machine bolts also shall have a suitable washer under both head and nut while carriage bolts shall have a suitable washer under the nut only. Headers shall be used below center stringers for support.
K.
Cross-bracing shall be either through-bolted with machine bolts or carriage bolts with a minimum diameter of one-half inch or fastened with lag bolts with a minimum diameter of one-half inch and a minimum length of six inches used in conjunction with a suitable washer under the head only.
L.
All fasteners shall be either stainless steel or hot dipped galvanized steel or of a substance which, in terms of corrosion-resistance, is at least equal to stainless steel or hot dipped galvanized steel. The Building Official shall determine whether a proposed fastener is equivalent to either stainless steel or hot dipped galvanized steel in terms of corrosion-resistance.
M.
All manufactured, re-manufactured, modified boat lifting devices and associated material or structural supplements, shall be certified by a Florida registered professional engineer. The capacity of the boat lift shall be affixed to the lift by the manufacturer and shall be affixed in a position as close as practicable to the lift controls.
N.
Except as otherwise provided herein, all pilings within six feet of the seawall face shall be driven a minimum of four feet into the submerged bottom of the waterway. Except as otherwise provided herein, pilings more than six feet from the seawall face shall be driven a minimum of six feet into the submerged bottom of the waterway. If pilings cannot be set to the depth provided herein, then the use and installation of cross bracing and/or tie backs shall be required to ensure the structural integrity of the structure. All pilings, whether wooden or concrete, shall be installed using equipment that is suitable to accomplish the task effectively. However, all freestanding mooring posts or other pilings shall be driven a minimum of eight feet into the submerged bottom of the waterway.
O.
Pilings shall be spaced in relation to stringer lumber size. However, when a single stringer of nominal dimensions less than or equal to two inches by eight inches is used, the space between any two consecutive pilings shall not exceed ten feet and eight inches (or 128 inches) when measured from the center of one piling to the center of the next consecutive piling. Any stringer splices shall occur within three feet of pilings. Scabs shall be not less than six feet in length and shall overlap the splice by not less than three feet and, if possible, bolted to the piling. Scabs shall not be used past the next to last piling in a row of pilings. Scabs shall be fastened using not less than six 20 penny, hot dipped galvanized steel nails per side. Stringers used for decking shall be spaced not more than 30 inches apart when measured from the center of one stringer to the center of the next consecutive stringer.
P.
The minimum nominal thickness of all wooden decking shall be two inches. Decking shall be either nailed into place by means of not less than 12d nails or screwed into place by means of not less than three-inch screws. The fastener pattern for all wooden decking shall be arranged so as not to cause a continuous split in excess of 18 inches in length. Spacing between wooden decking shall not exceed one-half inch on docks projecting into canals or one inch on docks projecting into the Caloosahatchee River at the time of installation.
Q.
Crossbracing shall be provided on every two closest adjacent pilings where water depth is more than eight feet from mean high water. Such cross bracing shall be oriented between 30 degrees and 45 degrees to the vertical. The actual dimension of any crossbracing shall be not less than two inches by six inches.
R.
All docks permitted under this section that project from a parcel with a seawall shall have a ladder extending from the dock into the waterway. No ladder extending from a dock into a waterway shall be made of wood.
1.
If one or more metal ladders are used in conjunction with a marine improvement, such ladders shall be made of stainless steel, anodized aluminum, or an equally corrosion-resistant material to be approved by the Building Official.
2.
If one or more plastic ladders are used in conjunction with a marine improvement, such ladders shall be constructed of a stabilized polymer plastic material resistant to degradation when exposed to the daily stress of sunlight, heat, and water.
3.
If a non-extendable ladder is used in conjunction with a marine improvement, such ladder shall be located so as to reach at least three feet under the surface of the water at low tide or to the bottom of the waterway, whichever is less.
4.
If an extendable ladder is used in conjunction with a marine improvement, such ladder shall be required to have the ability to extend to a point at least three feet under the surface of the water at low tide or so as to reach to the bottom of the waterway, whichever is less. Extendable ladders shall be of a type that is capable of being pulled down by a person in the water without the use of tools.
S.
Amber reflectors or amber reflective material with at least four square inches of reflective surface shall be placed on all freestanding mooring posts or other freestanding pilings as well as on the outside end pilings of all docks which project into a waterway. For purposes of this section, marine improvements which are "U"-shaped, "V"-shaped, "J"-shaped, or which otherwise have more than one section of the marine improvement projecting into the waterway shall have such reflectors or reflective material located on the outside end pilings of each section of the marine improvement which projects into the waterway. Such reflectors shall be located so as to be visible to vessels approaching in the waterway from any direction.
T.
This section shall control the regulation, construction, and maintenance of marine improvements within the City of Cape Coral. If any part of this section conflicts with any other codes adopted by the city, the most restrictive provision shall apply. Furthermore, all such marine improvements shall conform to all requirements of the National Fire Code, this section, and other applicable law.
A.
In accordance with Sections 3.3.6. and 3.4.2. of this Code, deviations from the strict application of the requirements of this chapter may be made as follows:
1.
Administrative deviations.
a.
Maximum length or width of a boat canopy. Deviations of up to a 10% increase in either the maximum length or width of the boat canopy requirements of this chapter may be approved by the Director in accordance with Section 3.3.6., provided that such deviation will not encroach into the side setbacks or project farther into the waterway than allowed per Section 5.4.7.B.3., will not be contrary to the public interest, and will be in harmony with the general intent and purpose of this section.
b.
In determining whether to approve such a deviation, factors the Director shall consider include, but are not limited to, the design, size, and location of the proposed larger boat canopy; the effect of such larger boat canopy on the waterway in which it is proposed to be located; and the effect of such larger boat canopy on the use and enjoyment of surrounding properties.
2.
Deviations requiring a public hearing.
a.
Deviations from the requirements of this chapter may be approved by the Hearing Examiner in accordance with Section 3.4.2., provided that the deviation will not be contrary to the public interest and will be in harmony with the general intent and purpose of this section.
b.
In determining whether to approve a deviation request related to a boat canopy, factors the Hearing Examiner shall consider include, but are not limited to, the design, size, and location of the proposed boat canopy; the effect of such boat canopy on the waterway in which it is proposed to be located; and the effect of such boat canopy on the use and enjoyment of surrounding properties.
c.
In determining whether to approve a deviation request related to marine improvements other than a boat canopy, factors the Hearing Examiner shall consider include, but are not limited to, the effect the proposed deviation would have on the navigability of the waterway involved; whether the proposed deviation would infringe upon the use of neighboring properties or any extant marine improvements in the subject waterway; whether there are special conditions related to the subject property or waterway which justify the proposed deviation; and whether conditions exist that are not the result of the applicant and which are such that a literal enforcement of the regulations involved would result in unnecessary or undue hardship. Subject to these standards and criteria, the Hearing Examiner shall approve only the minimum deviation from the provisions of this chapter necessary to avoid the unnecessary or undue hardship required herein.
(Ord. 80-21, § 4, 11-3-2021)
This section is established to provide general landscape regulations, to improve the appearance of certain setback and yard areas, including off-street vehicular parking, open lot sales and service areas, and to protect and preserve the appearance, character, and value of the surrounding neighborhoods. The principles of the Florida-Friendly Landscaping Program with regard to planning and design, soil improvement, efficient irrigation, limited turf areas, mulches, drought tolerant plants, and appropriate maintenance are the basis for the principles in this section and should be used as guidance in all new construction and landscape renovations so as to provide the most green with the least water and create a landscape that can survive largely undamaged in case of short term water restrictions.
The city strongly encourages adherence to the Florida-Friendly Landscaping Program that includes the following principles:
A.
Right plant, right place. Plants selected to suit a specific site will require minimal amounts of water, fertilizer and pesticides.
B.
Water efficiently. Irrigate only when lawn and landscape need water.
C.
Fertilize appropriately. Less is often better. Over-use of fertilizer can be hazardous to your yard and the environment.
D.
Mulch. Maintaining a layer of mulch will help retain soil moisture, prevent erosion and suppress weeds.
E.
Attract wildlife. Plants in private yards that provide food, water and shelter can conserve Florida's diverse wildlife.
F.
Manage yard pests responsibly. Unwise use of pesticides can harm people, pets, beneficial organisms, and the environment.
G.
Recycle yard waste. Grass clippings, leaves, and yard trimmings recycled onsite provide nutrients to the soil and reduce waste disposal.
H.
Reduce stormwater runoff. Water running off from private yards can carry pollutants such as soil, debris, fertilizer, and pesticides that can adversely impact water quality.
I.
Protect the waterfront. Waterfront property is very fragile and should be carefully protected to maintain freshwater and marine ecosystems.
A.
Except as provided under Section 5.5.4, Exemption, the landscape standards of this section shall apply to all new construction of single-family homes and duplexes, and to all other new construction requiring SDP review under Article 3. The landscape standards of this section are in addition to any landscape standards for specific land uses as established in Chapter 10, Specific Use Regulations, of this Article.
B.
Additionally, all landscape standards of this section shall apply to amendments to a site plan that would have the effect of:
1.
Increasing the total square footage of any one building or the total square footage of all buildings on a site by more than 20%;
2.
Increasing the number of buildings; or
3.
Adding any new or expanding any existing off-street parking area.
C.
The existing portion of an amended or expanded project which is demonstrated to be completely and fully in compliance with an approved landscape plan at the time of application is not required to be modified to comply with this section.
D.
All areas of an existing project affected by an amendment or expansion or those areas that are not in full compliance with an approved landscape plan are required to comply with this section.
E.
No certificate of occupancy or certificate of completion shall be issued until the Department of Community Development (DCD) has determined that the applicant has complied with all the provisions of this section and has approved the finished landscape product.
These regulations do not apply to projects located where the City Council has established specific landscape standards for a unique area of the city; unless the specific landscape standards otherwise expressly state their applicability.
If any of the landscape standards of this section conflict with any other provision of the City of Cape Coral Code of Ordinances or the LDC the provision that establishes the more specific standard governs. If neither conflicting provision establishes a more specific standard, then the more stringent provision governs unless otherwise expressly provided.
A.
Landscape plan required. A landscape plan that meets the requirements below shall be provided as required by Article 3.
B.
Landscape plan standards. Landscape plans for all projects that require a landscape plan, including Site Development Plans and Subdivision Construction Plans shall be signed and sealed by a landscape architect, or other licensed professional authorized pursuant to F.S. Ch. 481, Part II, as amended. All landscape plans shall meet the following requirements and contain the following information:
1.
Scale of not less than one-inch equals 30 feet. This requirement shall not preclude the inclusion of a smaller-scaled drawing such as a key map for the purpose of establishing the orientation of landscape plans for large sites that, because of their size, cannot be displayed on a single sheet.
2.
Zoning district and future land use classification for the subject parcel and all abutting parcels.
3.
The approximate location, quantity, diameter/caliper, botanical and common name, and native status of all heritage trees and other existing trees with a caliper of two inches or greater, and whether they are proposed to be preserved or removed. Trees to be removed, if any, shall be indicated on a separate sheet.
4.
Location, quantity, spacing, diameter/caliper, overall height (at time of planting) of proposed trees, palm trees, botanical and common name, and native status. Any existing trees located within the street right-of-way, between the closest outside edge of pavement and the subject property shall be shown.
5.
Location, quantity, spacing, container size, overall height (at time of planting) of proposed shrubs and groundcover, botanical and common name, and native status.
6.
Types, amounts, and placement of other hardscape materials such as berms and walls required by this section or Section 5.5.13, or both.
7.
A statement or plan describing compliance with the irrigation standards of these regulations.
8.
Location and type of existing and proposed utility lines, easements, electrical transformer boxes, fire hydrants or fire appliances, sidewalks, parking spaces, light poles, and stop signs.
9.
Indication of existing and proposed grades if existing vegetation is to be retained on site.
10.
Existing or proposed onsite curbing.
11.
Calculations, notes, and installation details indicating how the proposed landscaping will be in compliance with requirements of this section.
12.
Vegetation protection barricades to be used during construction, for all trees to be preserved.
13.
Safe sight distance triangles.
14.
Locations of proposed and existing off-street parking area lighting, if applicable.
15.
A note that all existing prohibited vegetation shall be removed.
Landscaping shall not interfere with or obstruct any existing or proposed pad-mounted transformer, overhead or underground utility line, utility service, fire hydrant, or fire appurtenance.
A.
Overhead power lines. Canopy tree branches or palm tree fronds within ten feet of existing overhead transmission or distribution lines, measured radially from the line, shall be subject to trimming or removal by the power company as necessary to maintain public overhead utilities in accordance with the National Electric Safety Code (NESC). No canopy trees or palm trees shall be planted closer to an overhead transmission or distribution line than as specified by the Minimum Separation Distance Between Center of Trees and Overhead Transmission or Distribution Lines indicated in Table 1. In order to avoid conflicts with power lines and avoid the need for removal or pruning that would harm or distort their natural shape, it is recommended that no canopy trees or palm trees should be planted closer to an overhead transmission or distribution line than as specified by the Recommended Separation Distance Between Trees and Overhead Transmission or Distribution Lines indicated in Table 1. The separation between a tree and an overhead transmission or distribution line shall be the distance from the center of the tree at ground level to the closest point on the ground that is within the vertical plane of an overhead transmission or distribution line at rest. A species of canopy tree or palm tree that is not listed in Tables 5.5.7.A and 5.5.7.B shall not be planted within 20 feet of existing overhead transmission or distribution lines without the prior written consent of the Department of Community Development Director.
A.
Generally. Except for trees on the Florida Exotic Pest Plant Council's list of Category I invasive exotics of those tress listed in Table 5.5.9, existing trees may be used to meet the minimum tree requirements for the site if they are indicated on the landscape plan (when a landscape plan is required), have a minimum diameter at breast height (DBH) of two inches, and are properly protected during any clearing or construction on the property.
Developers are encouraged to preserve existing heritage trees. For any site other than a single-family or duplex site, if during development or any time throughout the life of the development, regardless of change in ownership or use(s), any heritage tree is removed or damaged, it shall be replaced with a Florida native tree that meets the quality of materials standards in this article, with a minimum caliper of six inches measured at a height of 12 inches above the ground, with a height not less than 20 feet; however, this requirement shall not increase the total number of trees otherwise required for the site by more than 10%.
B.
Protection of trees during development activities. Prior to any land preparation or other development activities, a protective barrier shall be established around all trees that are not to be removed, as follows:
1.
The protective barrier shall enclose at least that area within a radius of one foot for every inch of caliper DBH around the tree.
2.
The protective barrier may encompass more than one tree, and shall be established with a barrier as follows:
a.
Posts shall be implanted in the ground deep enough to be stable and with at least three feet visible above ground.
b.
The protective posts shall be placed not more than six feet apart and shall be linked together at a height of at least three feet by rope, chain, silt fence fabric, or orange safety fence at least three feet in height, or any combination thereof.
3.
Required protective barriers and perimeter lines shall remain in place until all construction activity, except landscaping within the protected area, is terminated.
C.
Construction activity limitations.
1.
No attachment, wires (other than supportive wires), signs or permits may be fastened to any tree that is not to be removed.
2.
Landscaping activities within the area of the protective barrier (before and after it is removed) shall be accomplished with manual labor or light machinery that, if self-propelled, is not designed to bear the weight of the operator. Such light machinery may include string trimmers, walk-behind lawn mowers, or chainsaws. Except as necessary to perform landscaping activities as described above, no construction personnel shall enter the area within the protective barrier. Further, no equipment, tools, construction materials, debris of any kind, or more than six inches of soil shall be placed within the protective barrier.
3.
If fill is deposited adjacent to a protective barrier, a suitable temporary or permanent retaining structure shall be constructed to prevent siltation within the area of the protective barrier.
4.
If it can be reasonably accomplished, water, sewer, and other utility lines should be routed around the protective barrier of trees that are not to be removed. If a line cannot reasonably be routed around the protective barrier, the line shall be tunneled beneath the area and shall be offset to one side of the trunk to prevent damage to the main tap roots.
D.
Exempt trees. This subsection shall not apply to trees grown at commercial nurseries, as part of their stock.
A.
The following invasive exotic plants are prohibited and shall be removed from the development site, in its entirety. For projects developed in phases, all invasive exotic plants shall be removed from areas to be developed under future phases at the time the first or any subsequent phase is developed. Notwithstanding the foregoing, invasive exotic plants may be removed from public parks and recreational facilities in accordance with a phasing plan or an invasive exotic plant removal plan, as provided in Subsection B. below. Methods to remove and control invasive exotic plants must be included on required landscape plans, for projects that require a landscape plan. Methods of removal and control that would damage native vegetation to be preserved are prohibited. The development sites shall be maintained free from invasive exotic plants in perpetuity. For purposes of this subsection, invasive exotic plants include the following listed plants, or those plants currently listed as a Category I invasive by the Florida Exotic Pest Plant Council (FLEPPC) at the time of development:
B.
For public parks and recreational facility projects, invasive exotic plants may be removed from a site in accordance with a phasing plan or an invasive exotic plant removal plan. The plan shall be submitted to the Director for review and shall show areas of the site where exotics shall be removed in sequential fashion along with timelines for removing exotics for each area depicted on the plan. The plan shall be approved, approved with conditions, or denied by the Director. Factors to be considered by the Director in approving said plans shall include the area of the site, the estimated number of exotics, the accessibility of the exotics, and the estimated cost of removal. Such plans may be amended from time to time with the approval of the Director. A certificate of completion shall not be issued for an area shown on the plan until exotic vegetation has been removed from that particular area.
C.
The Weeping Fig (Ficus benjamina) is prohibited due to aggressive root systems unless it is maintained as a hedge with a maximum height of eight feet.
D.
City of Cape Coral and state-prohibited vegetation shall be removed from all sites prior to issuance of certificate of occupancy or certificate of completion.
(Ord. 96-20, § 1, 3-3-2021)
All plant materials required by this section shall conform to the following at the time of planting:
A.
Plant installation standards. Plant materials shall be installed in soil conditions that are conducive to the proper growth of the plant material. Soil in planting areas shall be loose, permeable, friable, and free of limestone and other construction materials, off-street parking area base material, rocks, noxious weeds, grasses, hard pan, clay, or other debris. For purposes of this section, noxious weeds are those plants listed in Section 5B-57.007, F.A.C, State Noxious Weed List, by the Florida Department of Agriculture and Consumer Services. It is recommended that such materials be removed to a depth of two and one-half feet for the well-being of plant materials. Required canopy trees, accent trees, palm trees, and shrubs shall be planted on grades not exceeding 3:1.
B.
Plant species and grade. A minimum of 50% of all required canopy trees and accent trees and a minimum of 30% of all required shrubs and groundcovers, excluding turf grass areas, shall be Florida native as defined by this section. Any plant material on the Florida Exotic Pest Plant Council's list of Category I or 2 invasive exotics, as may be amended, shall not be counted toward the required plantings in this section. The City of Cape Coral prohibits the use of any plant material on the Florida Exotic Pest Plant Council's list of Category I invasive exotics, which are not expressly prohibited by Section 5.5.9. Plant materials used in conformance with the provisions of this section shall meet or exceed the Standards for Florida No. 1, as set forth in the latest edition of "Grades and Standards for Nursery Plants" published by the State Department of Agriculture and Consumer Services, including minimum crown spread diameter, root-ball sizes, and container volumes.
C.
Tree standards.
1.
Canopy tree size. Except in the South Cape Downtown District, all canopy trees required to meet minimum requirements shall have a minimum height of ten feet and shall have a minimum caliper of two inches measured at a height of 12 inches above the ground. In the South Cape Downtown District, all canopy trees required to meet minimum requirements shall have a minimum height of 12 feet and a minimum caliper of three inches measured at a height of 12 inches above the ground at planting.
2.
Palm tree size. Palm trees required to meet minimum requirements shall have a minimum size of 16 feet overall, unless located within ten feet of a walkway, in which case they shall have a minimum of ten feet of clear trunk at planting.
3.
Accent tree size. Accent trees required to meet minimum requirements shall have a minimum height of eight feet and have a minimum caliper of one and one-half inches measured at a height of six inches above the ground at planting.
4.
Tree species mix. A mix of species shall be provided according to the overall number of trees required to be planted. Species shall be planted in proportion to the required mix. The minimum number of species to be planted is indicated in Table 2.
5.
Shrub standards. Except as otherwise provided herein, shrubs planted in residential development shall be a minimum of 18 inches in height and be in at least a three-gallon container size at time of planting. Shrubs planted in all non-residential and mixed-use development must be a minimum of 24 inches in height and be in at least a seven-gallon container size at time of planting. Shrubs required for buffer yard plantings must be a minimum of 32 inches in height and be in at least a seven-gallon container size at time of planting. Ornamental grasses may be used in lieu of 20% of shrubs required. Saw palmettos (Serenoa repens) and coonties (Zamia floridana) may be used as shrubs, provided they are 12 inches in height at time of planting.
6.
Groundcovers and sod.
a.
Groundcovers shall be planted no more than 24 inches apart for one-gallon pots or 12 inches apart for four-inch pots.
b.
Wherever used, sod shall be installed with no gaps or overlaps, so as to present a finished appearance and prohibit erosion of the planted area.
7.
Firewise landscaping. Landscaping within areas subject to wildfire hazard and should incorporate firewise landscaping techniques promulgated by the Florida Department of Economic Opportunity and the Department of Agriculture and Consumer Services.
No canopy trees, accent trees, palm trees, or shrubs required by this section shall be planted within a public drainage or utility easement without approval of the city. The city may deny approval to place landscaping materials in an easement if such would conflict with existing or proposed utilities or drainage functions. If the city approves the placement of any plant material installed to meet the requirements of this section within a public drainage or utility easement and the landscape material is removed or damaged by construction or maintenance of drainage facilities or utilities, the property owner shall replace all such plant material within 30 days of the completion of the drainage or utility work, in accordance with the following criteria:
A.
Canopy trees.
1.
If planted back in the public drainage or utility easement, the property owner shall replace the canopy tree with a tree having a minimum caliper as the removed or damaged tree; however, if the removed or damaged tree is greater than four inches in caliper (measured at a height of 12 inches above the ground), the replacement tree shall be required to be a minimum of four inches in caliper.
2.
If planted in an alternate location that is not within a public drainage or utility easement, the property owner shall replace the canopy tree with one meeting the minimum size required within this Chapter and that is subject to all other requirements of this section. For sites required to have a site plan, such alternate plant location shall be indicated on a revised landscape plan and is subject to approval by the city.
B.
Palm trees.
1.
If planted back in the public drainage or utility easement, the property owner shall replace the palm tree with a palm tree having a minimum caliper as the removed or damaged palm tree; however, if the removed or damaged palm tree is greater than nine inches in caliper (measured at a height of 12 inches above the ground), the replacement palm tree shall be required to be a minimum of nine inches in caliper.
2.
If planted in an alternate location that is not within a public drainage or utility easement, the property owner shall replace the palm tree with one meeting the minimum size required within this Chapter and that is subject to all other requirements of this section. For sites required to have a site plan, such alternate plant location shall be indicated on a revised landscape plan and is subject to approval by the city.
C.
Shrubs. Regardless of whether the shrub is located in a public drainage or utility easement, the property owner shall replace the shrub with a shrub meeting the minimum size required within this chapter.
The property owner shall notify the city when the replacement planting required by this subsection have been installed and are ready for re-inspection.
The following landscape requirements shall be met for all single-family and duplex units.
A.
Trees required for single-family homes. All newly constructed single-family homes shall have a minimum number of trees per building site in accordance with Table 5.5.12.A: Trees Required for Single-Family Homes. Where a home site includes a septic tank between the structure and the street, trees shall be planted a minimum of six feet from the septic tank or its drain field.
B.
Trees required for Duplexes. All newly constructed duplexes shall have a minimum number of trees per side in accordance with Table 5.5.12.B Trees Required for Duplexes. Where a site includes a septic tank between the structure and the street, trees shall be planted a minimum of six feet from the septic tank or its drain field.
C.
Credit for larger, canopy trees. The required number of canopy trees may be reduced by one tree if an existing or proposed canopy tree is at least two inches of increased caliper above the minimum planting size specified in this Chapter. Single-family homes and duplexes are not eligible for the Tree Credit Program provided by Section 5.5.15.
D.
Shrubs required. Each single-family home and duplex shall be landscaped with a minimum of 20 three-gallon shrubs of which a minimum of ten shall be planted at any location in the front yard.
E.
Mulch, groundcover, and planting beds.
1.
The soil surface of the land area not covered by structures or hardscape features shall be covered with sod or planting beds containing canopy trees, accent trees, palm trees, shrubs, groundcover, or any combination thereof. When shrubs are used in planting beds, shall be planted not more than 48 inches apart. Permeable synthetic turf may be used in lieu of sod, so long as it is not used to cover more than 20% of the total land area not covered by structures or hardscape features and is not within a front yard or right-of-way.
2.
A two-inch minimum layer of organic mulch, measured after watering-in, shall be placed and maintained around all newly installed canopy trees, accent trees, palm trees, and shrubs. A two-inch minimum layer of organic mulch, measured after watering-in, shall be placed around all newly installed groundcover plants so that bare areas of sod are not exposed; however, the mulch around groundcover plants is not required to be maintained after the groundcover becomes established. Except as otherwise provided in these regulations, each canopy tree, accent tree, and palm tree shall have organic mulch no less than 36 inches beyond its trunk in all directions; however, the mulch shall be kept away from the trunks and stems of plants so as to avoid conditions that may be conducive to collar rot, basal canker, or other fungi. The use of cypress or cedar mulch is strongly discouraged.
3.
The use of any inorganic mulch, including pebbles or shells to cover the soil surface is not recommended. Inorganic mulch should only be used to frame the outside of beds or to control erosion and should not be used to cover the root ball of newly planted trees or shrubs. Inorganic mulch shall not exceed 10% of the total land area not covered by hardscape features.
4.
The right-of-way from the edge of the street pavement to the property line shall be planted with sod or other approved groundcovers, except as otherwise provided in the City of Cape Coral Code of Ordinances or Land Development Code.
F.
Irrigation systems. Irrigation systems are encouraged but not required; however, where they are installed, they shall meet the standards of Section 5.5.14.
The provisions of this section shall not apply to single-family detached dwellings and duplexes unless otherwise specifically stated herein. The soil surface of the land area not covered by structures or hardscape features shall be covered with sod or planting beds containing canopy trees, accent trees, palm trees, shrubs, groundcover, or any combination thereof. Shrubs in planting beds shall be planted not more than 48 inches apart. Permeable synthetic turf may be used in lieu of sod, so long as it is not used to cover more than 20% of the total land area not covered by structures or hardscape features and is not within a front yard or right-of-way. The right-of-way from the edge of the street pavement to the property line shall be planted in accordance with the requirements of subsection B. below.
(Ord. 96-20, § 2, 3-3-2021)
A.
Tree planting requirements.
1.
Except in the South Cape District, all sites shall have at least one canopy tree for each 1,000 square feet of gross land area less lake areas as indicated in Subsection A.1.a. below, except that accent trees or palm trees may be substituted for a required canopy tree as indicated below. Trees required for buffers may be used for meeting the minimum number of trees required for a site. In the South Cape District, all sites shall have at least one canopy tree for each 3,500 square feet of gross land area, except that accent trees or palm trees may be substituted for a required canopy tree as indicated below. For all districts, in the event the calculation of required number of canopy trees yields a fractional number, that number shall be rounded up to the next highest whole number prior to any calculation of the quantity of substituted accent trees or palm trees. Trees planted to meet the other requirements of this section can be included in the calculation of total number of trees required by this section. Such trees may be planted singularly or grouped together. Required canopy trees shall not be spaced less than 20 feet on center. Except in the South Cape District, each canopy tree shall be planted in a minimum planting area of 100 square feet with a minimum dimension of seven feet in width unless an alternative minimum planting area or dimensions are approved by the Director, based on planting details that ensure reasonable soil surface and planting medium volumes.
a.
Lake areas or portions of lake areas 100' or greater in width may be deducted from the total property area for purposes of determining the general tree requirement.
b.
Requests for a reduction to the total tree planting requirements may be approved as provided in Section 5.5.13.A.3. Notwithstanding the foregoing, reductions of up to 15% of the total tree planting requirements may be elected and mitigated for development other than parks and recreation facilities pursuant to Section 5.5.13.A.3.c., without a request to or approval from the City. Any such tree reduction shall be reflected in the final landscape plan and calculations, including the method of mitigation pursuant to Section 5.5.13.A.3.c.
(Ord. 96-20, § 2, 3-3-2021; Ord. 75-23, § 1, 12-13-2023)
2.
In the South Cape District, each canopy tree shall be planted a minimum planting area of 24 square feet with a minimum dimension of four feet in width unless an alternative minimum planting area or dimensions are approved by the Director, based on planting details that ensure reasonable soil surface and planting medium volumes. Except in the South Cape District not more than 50% of the required canopy trees may be substituted with accent trees or palm trees in accordance with Section 5.5.13. In the South Cape District, not more than 25% of the required canopy trees may be substituted with accent trees or palm trees, in accordance with Section 5.5.13., as follows:
a.
Accent trees may be substituted for required canopy trees at a rate of two accent trees for each canopy tree required; however, no canopy tree required for a landscape buffer yard shall be substituted with an accent tree, unless the minimum width of available buffer yard options would preclude compliance with the minimum separation distance between trees and overhead power lines.
b.
The following palms shall not be substituted for required canopy trees:
To meet tree planting requirements in a landscape buffer yard or in off-street parking and vehicle use areas, palm trees, other than those listed above, may be substituted for canopy trees at a rate of three palm trees per each canopy tree substituted, regardless of the palm tree species. Except in the South Cape Downtown District, to meet tree planting requirements for areas other than a landscape buffer or off-street parking and vehicle use areas, palm trees may be substituted for required canopy trees at a rate of one palm tree per each canopy tree substituted. In the South Cape Downtown District, to meet tree planting requirements for areas other than a landscape buffer yard, palm trees may be substituted for required canopy trees at a rate of two palm trees per each canopy tree substituted.
c.
Except for plantings in or near surface water management areas, a two-inch minimum layer of organic mulch, measured after watering-in, shall be placed and maintained around all newly installed canopy trees, accent trees, palm trees, and shrubs. Except in the South Cape District, each tree shall have organic mulch no less than 36 inches beyond its trunk in all directions. In the South Cape District, each tree shall have organic mulch no less than 18 inches beyond its trunk in all directions. All mulch shall be kept away from the trunks and stems of plants so as to avoid conditions that may be conducive to collar rot, basal canker, or other fungi.
The use of cypress or cedar mulch is strongly discouraged.
d.
The use of any inorganic mulch, including pebbles or shells to cover the soil surface shall only be used to frame the outside of beds or to control erosion. Inorganic mulch shall not exceed 10% of the total land area not covered by structures, pools, accent boulders, driveways, sidewalks, or other paving. Inorganic mulch shall not be used to cover the root ball of newly planted trees or shrubs. The balance of the soil surface shall be covered with planting beds with a two-inch minimum layer of organic mulch.
(Ord. 75-23, § 1, 12-13-2023)
e.
Canopy trees shall not be planted within seven feet of any roadway, sidewalk, or public utility unless an acceptable root barrier material is installed between the tree and the roadway, sidewalk, or public utility. Acceptable root barrier material shall consist of one of the following: a manufactured root barrier material, installed in accordance with manufacturer's directions, reinforced concrete with a minimum depth of 16 inches, or a continuous sheet of aluminum with a minimum depth of 16 inches and a minimum thickness of 0.024 inches. Where a root barrier is required, it shall be installed for a minimum distance of 20 linear feet.
f.
In the event a property owner installs a public sidewalk closer than seven feet to any extant canopy tree, the property owner shall install an acceptable root barrier material in accordance with manufacturer's directions, such as herbicide impregnated materials or reinforced concrete of sufficient width and length, which will prevent the encroachment or undermining by the tree's root system, prior to the installation of the sidewalk.
(Ord. 75-23, § 1, 12-13-2023)
3.
Reductions to the Total Tree Planting Requirements.
a.
Reductions to the total tree planting requirements may be approved by the Director for public parks and recreational facilities as follows:
i.
In determining whether a particular request should be approved, the Director shall consider the following:
1.
Whether the required trees will be unnecessary for a facility primarily designed to be a natural area or preserve where a substantial number of native trees on the site will be protected; or
2.
Whether the required trees will interfere with the design, function, or purpose of all or part of the amenities planned for the facility, such as outdoor athletic fields, open space, or special event grounds; or
3.
Whether the facility, because of the area involved, will require an inordinately large number of trees to comply with the LDC.
ii.
Requests for reductions to the total tree planting requirement shall be made in writing to the Director. Materials submitted to the Director shall include a narrative explaining the magnitude of the reduction requested, why the request should be approved, and how the request would operate to the benefit of the public interest. The Director may request additional information necessary to adequately evaluate such requests, including a site plan, landscaping plan, and estimated cost of the landscaped materials.
iii.
The Director may approve reductions in the total tree planting requirement up to 100% for public parks and recreational facilities. The Director shall find the request would serve the intent of this section to protect the health, safety, and welfare of the public while ensuring a high level of overall functionality in the public park and recreational facility. In approving such requests, the Director may impose reasonable conditions on the project in conformity with this section.
iv.
The Director shall obtain a recommendation from the Director of Parks and Recreation for any request for a reduction to the total tree planting requirements exceeding 25%. The Director of Parks and Recreation shall consider the criteria in Section 5.5.13.A.3.a.i. when making such recommendations.
v.
Reductions to the total tree planting requirements approved pursuant to this section shall be reflected in the landscape plan calculations and shall be indicated on the final landscape plan.
b.
Reductions to total tree planting requirements, not to exceed 30%, may be approved by the Director for development other than parks and recreational facilities as follows:
i.
In determining whether a particular request should be approved, the Director shall consider the following:
1.
Whether existing site improvements would make it impractical to meet the total tree planting requirements; or
2.
Whether the size or shape of the property creates constraints that may make it impractical to meet the tree planting requirements; or
3.
Whether access and circulation requirements preclude planting of trees.
ii.
Requests for reductions to the total tree planting requirement shall be made in writing to the Director. Materials submitted to the Director shall include a narrative explaining the magnitude of the reduction requested, why the total tree planting requirements cannot be achieved and the proposed mitigation for the reduction. The Director may request additional information necessary to adequately evaluate such requests, including a site plan and landscaping plan demonstrating how the site constraints prohibit tree planting.
iii.
The Director may approve requested reductions in the total tree planting requirement in whole or in part and may impose reasonable conditions on the project in conformity with this section.
iv.
Overly intense development of a site shall not be considered a site constraint qualifying for a reduction in the total tree planting requirements.
v.
Tree reductions may not be applied to trees required in buffers or off-street parking and vehicular use areas.
vi.
Notwithstanding any provision to the contrary in this section, requests for total tree reductions up to 100% may be approved within the South Cape District, except for required buffers.
vii.
Reductions to the total tree planting requirements approved pursuant to this section shall be reflected in the landscape plan calculations and the method of mitigation shall be indicated on the final landscape plan.
c.
Mitigation options for reductions to the total tree planting requirements for development other than parks and recreational facilities. Applicants approved for tree planting reductions may:
i.
Contribute into the General Tree Fund a non-refundable Tree Contribution Amount, as established in Subsection iii below, for each two-inch caliper tree required pursuant to Section 5.5.19. for development in areas other than the South Cape District; or
ii.
Contribute into the South Cape Tree Fund a non-refundable Tree Contribution Amount, as established in Subsection iii below, for each three-inch caliper tree required pursuant to Section 5.5.19. for development in the South Cape District.
iii.
The City Council shall establish by Resolution the Tree Contribution Amount for the mitigation of required caliper trees. All Tree Funds received by the City hereunder shall be expended, utilized, and disbursed in accordance with the provisions of Section 5.5.19.D. Tree mitigation approved pursuant to this section shall run with the land.
d.
The provisions of this section do not preclude a developer from applying for most landscape deviations allowed pursuant to Article 3 or Article 5. However, a developer utilizing and contributing to a Tree Fund in order to reduce the total tree planting requirements for a site shall be prohibited from also requesting a deviation from the minimum number of trees required for the same site pursuant to Sections 3.3.6., 3.4.2., or 5.5.20.
(Ord. 75-23, § 1, 12-13-2023)
B.
Right-of-way. The right-of-way from the edge of the street pavement to the property line shall be planted with sod or other approved groundcovers, except as otherwise provided in the City of Cape Coral Code of Ordinances or Land Development Code.
C.
Landscape design features. Six types of landscaping may be required on a site, depending on the site location and the specific elements of the development: foundation landscaping, landscaping adjacent to roads, off-street parking and vehicle use areas, retention/detention areas, and buffers. Trees planted to meet the requirements of these landscape design features can be included in the calculation of total number of trees required by this section under tree planting requirements.
1.
Foundation Landscaping. To provide aesthetic relief between a building and off-street parking or vehicular use areas, all new development, except development in the Industrial District and South Cape District, must provide foundation landscaped areas equal to 10% of the proposed building gross ground level floor area. These foundation landscaped areas must be between the off-street parking area and the building, between public streets and the building, or between vehicular access ways and the building, or any combination thereof, with emphasis on the side(s) most visible to the public. Foundation landscaping may consist of surface level landscaped areas, raised planters, planter boxes, or any combination thereof. The width of the foundation landscaped areas shall be five feet, except for sites less than one acre with an average depth less than or equal to 135 feet, in which case the width shall be three feet. Foundation landscaped areas may be planted with trees, but must be planted with shrubs spaced a maximum of three feet on centers.
2.
Landscaping Adjacent to Roads. Where a development site abuts a public right-of-way, excluding a dedicated alley, the following shall apply except for development sites in the NC, MX7, MXB, and SC Zoning Districts:
(Ord. 60-21, § 1, 8-4-2021)
a.
Except as otherwise provided herein, a strip of land, a minimum of ten feet in width, shall be provided between the abutting right-of-way and any structure or off-street parking area. For sites or portions of sites that are 135 feet or less in depth, the width may be reduced to five feet.
b.
At a minimum, perimeter landscaping in this area shall consist of the following:
i.
One shrub for every three linear feet of landscaped area, planted separately or grouped, except where a carport or an off-street parking or vehicular use area abuts the strip of land that is required adjacent to roads. Where a carport or an off-street parking or vehicular use area abuts the strip of land required adjacent to roads, a continuous hedge, consisting of shrubs spaced no greater than three feet on center is required.
ii.
The requirement for canopy trees or accent trees depends on the presence of overhead electric distribution or transmission lines. Shade or accent trees shall be provided as follows:
(a)
Except as provided below, one canopy tree for each 30 linear feet of frontage is required. If the calculations yield a fractional number, that number shall be rounded up to the next highest whole number. Trees may be placed in any arrangement within the landscape strip provided that the spacing between tree trunks is no greater than 60 feet.
(b)
In locations where an adequate separation distance from overhead distribution or transmission lines, as specified in Tables 5.5.7.A and 5.5.7.B, is not available, two accent trees may be substituted for any shade tree required for each 30 linear feet of frontage.
(Ord. 60-21, § 1, 8-4-2021)
c.
Ingress and egress from the public right-of-way through all such landscaping to off-street parking or other vehicular use areas shall be permitted and may be subtracted from the linear dimension used to determine the number of trees and shrubs required.
d.
Visibility triangles. As an aid to allow for safe operation of vehicles, pedestrians, and cyclists in the proximity of intersecting streets, driveways, alleys, and bicycle paths, there shall be limitations on the height of fences, walls, gateways, ornamental structures, signs, hedges, shrubbery, and other fixtures as visually depicted in the Cape Coral Engineering and Design Standards and as follows:
i.
All landscaping and signs within the visibility triangle shall provide unobstructed visibility between 30 inches and eight feet, with the exception of tree trunks that do not create a traffic hazard.
ii.
The property owner shall be responsible for maintaining all landscaping within the visibility triangle to provide the unobstructed visibility.
iii.
The Community Development Director shall make the final determination regarding visibility triangles.
3.
Off-street parking and vehicle use areas. The provisions of this section apply to all new off-street parking or other vehicular use areas not situated directly beneath a building containing habitable space.
a.
Protection of landscaped areas from vehicular encroachment. When a landscaped area abuts or is within an off-street parking or vehicular use area, wheel stops or curbing shall be used to protect landscaped areas from encroachment. The placement of shrubs and trees shall be in accordance with the Parking Lot Standards of the City of Cape Coral Engineering Design Standards.
b.
Except in the South Cape District, landscaping for sites with both of the following: 1) an average depth less than or equal to 135 feet; and 2) an area less than or equal to one acre. All off-street parking areas shall be landscaped to provide visual relief and cooling effects and to define logical areas for pedestrian and vehicular circulation, as follows:
i.
Minimum landscaped area. Landscaped areas including, but not limited to, landscaped islands, foundation landscaping, and landscaping within divider medians shall equal or exceed a minimum of 5% of the total off-street parking and vehicle use areas.
ii.
Tree planting. At least one canopy tree shall be provided for every 150 square feet of required planting area. Palm trees may be substituted for canopy trees in accordance with this Chapter.
iii.
Divider medians. Where canopy trees are planted in divider medians, the minimum width of the divider median shall be nine feet.
iv.
Landscaping at the end of a row of parking spaces. Each row of parking spaces containing ten or more parking spaces shall be terminated by a landscaped area at each end that measures not less than five feet in width and not less than 15 feet in length. No required trees shall be planted in landscaped islands less than nine feet in width.
c.
Except in the South Cape District, landscaping for sites with either of the following: 1) an average depth greater than 135 feet; or 2) an area greater than one acre. All off-street parking areas shall be landscaped to provide visual relief and cooling effects and to define logical areas for pedestrian and vehicular circulation, as follows:
i.
Minimum landscaped area. Landscaped areas including landscaped islands, foundation landscaping, and landscaping within divider medians shall equal or exceed a minimum of 10% of the total paved surface area. Landscaped areas reserved for future parking spaces may not be included in this calculation.
ii.
Tree planting.
(1)
At least one canopy tree shall be provided for every 150 square feet of required planting area. Palm trees may be substituted for canopy trees in accordance with this Chapter.
(2)
No parking space may be more than 100 feet from a tree.
iii.
Divider medians. If a divider median is used to meet the landscaping requirements, it shall be a minimum width of nine feet.
iv.
Landscaping at the end of a row of parking spaces. Each row of parking spaces containing ten or more parking spaces shall be terminated by a landscaped area that measures not less than nine feet in width and not less than 15 feet in length. Each such landscaped area shall be planted with at least one canopy tree. Palm trees may be substituted for canopy trees in accordance with this Chapter.
v.
Landscape materials. All interior landscaped areas not dedicated to trees or to preservation of existing vegetation shall be landscaped with grass, groundcover, shrubs or other approved landscaping materials and this shall be noted on the landscape plans.
d.
Landscaping for sites in the South Cape District. Except within city dedicated parking areas, all off-street parking areas and applicable off-street parking area setbacks shall be landscaped to provide visual relief and cooling effects and to define logical areas for pedestrian and vehicular circulation, as follows:
i.
Minimum landscaped area.
1.
Unless otherwise provided herein, all required landscape areas shall be planted with trees, shrubs, groundcover, sod, or any combination thereof. At a minimum, the landscape area(s) shall include low-lying shrubs or ground cover plants with a minimum 50% coverage of the landscape area at time of planting. When utilized, shrubs shall be planted at no more than three feet on center.
2.
All applicable minimum off-street parking area setbacks required by Article 4, Chapter 5, except rear when abutting an alley, shall be landscaped unless otherwise provided herein. This provision shall not apply to portions of setbacks areas utilized for shared curb cuts, joint driveways and shared off-street parking areas across lot lines.
3.
Ingress and egress from the right-of-way through any setback area is permitted and the width of the ingress and egress may be subtracted from required landscape areas.
ii.
Landscaping for lots with a lot frontage greater than or equal to 125 feet. Off-street parking areas containing 24 or more parking spaces shall provide a landscaped area that measures not less than nine feet in width and not less than 15 feet in length for every 12 parking spaces. Such landscaped area(s) shall be located as intermediate within or terminal islands to parking space rows. Each such landscaped area shall be planted with at least one canopy tree and groundcovers or sod.
4.
Retention or detention areas.
a.
Planting of trees, palm trees, shrubs, and groundcovers in retention or detention areas is encouraged, provided that the placement does not conflict with the volume of storage required for the retention or detention areas and does not significantly interfere with or impede the flow of runoff in the retention or detention area.
b.
All retention or detention areas shall be stabilized with sod or other groundcover capable of stabilizing the soil. Organic mulch is not allowed.
5.
Buffers.
a.
Determination of required buffer. Landscape buffer and screening shall be required to separate uses of differing zoning districts from each other. The type and width of buffer required shall be determined by using Table 5.5.13.B: Table of Minimum Buffer Requirements. If the developing property contains a non-residential use in a Residential District, the buffer shall be as indicated along the row labeled "Non-Residential Uses in Residential Districts"; otherwise, the buffer required shall be as indicated along the row of the developing property's zoning district under the applicable column. The buffer that is required along any segment of property line, if any, is dependent on the zoning of the abutting property and property separated by only a street containing not more than two lanes for motor vehicle traffic. A bicycle "lane" shall not be considered to be a lane for motor vehicle traffic. The specifications for each type of buffer are provided in Table 5.5.13.B.
b.
Buffer specifications.
i.
The standards for minimum width, plant types and quantities, and opaque features shall be in accordance with Table 5.5.13.B: Minimum Buffer Width and Table 5.5.13 C, Buffer Plantings. All plants provided within a buffer are specific to, and must be located within the buffer area. The buffer landscaping is in addition to other landscaping required by this Chapter and this landscaping must be within the buffer area. For buffer options that include a wall, the wall must conform to the standards of Article 5, Chapter 2, including the setback requirements.
ii.
The buffer width shall be measured along a line perpendicular or radial to the property line.
iii.
The number of each type of plant required shall be determined by dividing the length of each side of the property requiring a given type of buffer by 100 and multiplied by the number of plants per 100 feet indicated for a selected option. If the calculations yield a fractional number, that number shall be rounded up to the next highest whole number.
iv.
If a wall is required, the wall shall extend the entire length of the property line, or until it connects to another wall.
v.
Ingress and egress from the right-of-way through any buffer shall be avoided; however, where it is determined by the city that avoidance is impractical or not preferable due to traffic flow or safety considerations, penetration through a buffer to ingress and egress from the right-of-way may be permitted and the width of the ingress and egress can be subtracted from the length of the buffer for the calculation of the number of plants required.
vi.
Plants, berms, or walls required for buffers within required sight triangles shall be in accordance with standards provided in Article 5, Section 1. Further, no fence, wall, or plant material shall be placed within a buffer that would impede the movement of or obstruct the view of either a pedestrian or driver of a vehicle that would create a potential safety hazard.
c.
Buffer requirements. No development within required buffer. Required buffer shall not contain any development other than drainage facilities, sidewalks, plants, walls, or berms. Driveways shall only be allowed in the required buffer if the buffer runs along a street. No grading, development, or land-disturbing activities shall occur within the buffer unless as part of an approved development or landscape plan.
d.
Buffer maintenance.
i.
Any landscape buffer required pursuant to this section shall be maintained in order to preserve such buffer.
ii.
The plantings, walls, and berms that constitute screening for any buffer required pursuant to this section shall be maintained for the life of the development. Such maintenance shall include all actions necessary to keep the buffer free of litter and debris, and to keep plantings, walls, and berms in good repair and neat appearance.
iii.
In the event that any buffer screening or any element thereof, is damaged or fails to live so that it no longer furthers the purpose and intent of this section, it shall be replanted or replaced, whichever is applicable, with the type and size of material specified on the landscape plan.
e.
Plant and tree arrangement. Required plants and trees shall be distributed in a manner to meet the intent of screening incompatible uses. In the event that plant materials are prohibited in a public drainage or utility easement which abuts or is coincident with a buffer, no new plant materials shall be centered closer than two feet from such easement.
f.
Existing vegetation.
i.
Retaining existing Florida native trees and other vegetation within a buffer is strongly encouraged.
ii.
If existing plants do not fully meet the standards for the type of buffer required, additional plant materials shall be installed.
g.
Buffer walls and berms.
i.
Whenever a wall is required within a buffer, it is shown in Table 5.5.13.B.
ii.
Where the buffer requires a berm, the berm shall be graded to appear smooth, rounded, and natural. Slopes shall not exceed a 3:1 grade.
iii.
Whenever a wall is required within a buffer, the wall shall conform to all requirements of Article 5 Section 2, and the requirements herein, and all other requirements for a wall. The wall may be placed anywhere in the buffer, provided at least 75% of the required trees and 100% of the required shrubs are on the side facing outward toward the right-of-way or abutting property (facing away from the property on which the wall is erected). Bare concrete block, even if painted, is prohibited. The following materials, either singly or in any combination, are the only materials that may be used to form the wall:
(a)
Concrete block coated with stucco;
(b)
Textured concrete block;
(c)
Stone;
(d)
Brick; or
(e)
Formed, decorative, or precast concrete.
iv.
Whenever a wall is required within a buffer, it shall be 100% opaque and shall be the maximum height allowed for the use and the location of the wall.
h.
Gates. A gate may be allowed in a buffer wall, provided such gate is opaque, unless spanning a vehicular entrance, and meets the intent and purpose of this section. Gates shall be maintained in accordance with the maintenance standards for screening contained in this section.
i.
Staggered walls. Whenever a wall is required within a buffer, it may be divided along the length of a buffer so that a wall consists of a series of wall segments instead of a continuous line. Such a divided wall shall be allowed only if it meets the intent and purpose of this section and if the wall segments overlap by a minimum of one-half of the distance between the two wall segments.
j.
Vehicular use areas. Concrete curbs or wheel stops at least five inches high shall be provided between vehicular use areas and buffer areas.
3.
Location of buffer.
a.
The landscape buffer required by this section shall be located along the perimeter of a property except at approved entrances or exits to the parcel.
b.
Buffers shall extend to the lot line or right-of-way line, except where easements, covenants, visibility triangles, or natural features require the buffer to be set back from the property line. The presence of an easement, covenant, or natural feature does not necessarily preclude the placement of a buffer, unless due to the nature of the easement, covenant, or natural feature the placement of a buffer would be precluded.
c.
Nothing other than open landscaped areas shall be located between the required buffer and the site perimeter unless the presence of an easement, covenant, or natural feature, which due to its nature, would preclude open landscaped areas.
d.
Buffers may not be located on any portion of an existing or dedicated street right-of-way or roadway easement.
All landscaping shall contain an automatic irrigation system. All required irrigation systems shall be designed to minimize the application of water to impervious areas, including roads, drives, and other vehicle areas. Required irrigation shall also be designed to avoid damage to existing native vegetation from over watering or from physical conflicts with plant roots. The following standards shall apply to the design, installation, and maintenance of irrigation systems:
A.
The irrigation system shall be properly maintained and operated consistent with watering schedules established by the South Florida Water Management District or the City of Cape Coral, whichever is more restrictive.
B.
Existing native plants are exempt from this requirement.
C.
Automatic control systems shall be equipped with an operable rain sensor or other devices, such as soil moisture sensors, to prevent unnecessary irrigation.
A.
Tree credits for all development other than single-family homes and duplexes are available, to encourage the planting of larger trees than are otherwise required and to preserve trees existing on development sites. Based on the gross square feet of land area, each tree credit earned can count toward the number of trees required, subject to limitations indicated below. If tree credits are used, the credits shall be shown in the calculations on the landscape plan. Single-family homes and duplexes are not eligible for the tree credit program provided by this subsection. In no event, shall the number of trees required in a buffer be reduced.
B.
Credit for planting larger canopy trees. One tree credit shall be applied to the overall tree count for each two inches of increased caliper above the minimum planting size specified in this Chapter. In no event, however, shall the actual number of trees be less than one-half of the total number required.
C.
Credit for preserving existing canopy trees. Existing canopy trees in good health and meeting the minimum standards provided in this Chapter that are preserved on a site, and that are properly protected prior to and during the course of development activities, may be used to meet the requirements of this section for the site where the existing trees are located. For purposes of this subsection, development activities include land clearing, construction, grading, or placement of fill. Canopy trees that exceed the minimum size required by Article 5, Section 15 are credited at the following ratios for existing canopy trees:
No credit shall be given to canopy trees on the Florida Exotic Pest Plant Council list of Category I or Category II invasive exotics.
D.
Credit for preserving existing palms. Existing palm trees in good health and having a minimum of ten feet of clear trunk that are preserved on a site and properly protected prior to and during the course of development activities, may be used to meet the requirements of this section for the site where the existing palm trees are located. This credit shall be available for palms preserved in place or transplanted within a site, using accepted horticultural procedures.
A.
General maintenance required. The property owner shall maintain all landscaping in accordance with the approved landscape plan, if any, and with the standards contained in this section, including:
1.
Trees, palm trees, shrubs, and other vegetation shall be trimmed so as to not be an obstruction to pedestrian or vehicular traffic or traffic visibility;
2.
Trees, palm trees, shrubs, and tree bed(s) shall be kept free of refuse, debris, and disease;
3.
Nonliving materials shall be maintained in good condition at all times.; and
4.
Shrubs planted in non-residential and mixed-use developments shall grow and be maintained at all times according to the minimum size specified on the approved landscape plan or to a minimum height of 36 inches, if not specified on the approved landscape plan. Shrubs that do not meet the minimum height specified or the alternate minimum height of 36 inches shall be replaced with like kind species and be maintained at a height of 36 inches.
This requirement shall not preclude the placement of additional plant materials or other landscape features that comply with other requirements of these regulations.
B.
Compliance required. For any development for which a landscape plan was submitted, the city shall not issue a certificate of occupancy or certificate of completion until the landscape architect or other licensed professional authorized pursuant to F.S. Ch. 481, Part II, who prepared, signed, and sealed the plan certifies to the city that all elements of the landscape plan have been installed in accordance with the approved plan. Each development will be inspected by the City of Cape Coral within two years after the certificate of occupancy or certificate of completion is issued, and from time to time thereafter to ensure compliance with the applicable landscape standards and with the approved landscape plan, if any. Any dead or missing plant, or plant that appears to be dying or unable to sustain healthy future growth shall be replaced by one that conforms to the requirements of this section and approved landscape plan, if any. Failure to comply with this requirement shall constitute a violation of the City of Cape Coral Code of Ordinances, subject to any penalty imposed by law.
C.
Changes subsequent to landscape plan approval. The replacement of plants indicated on an approved landscape plan with plants of the same species, or the placement of hardscape features that comply with other requirements of these regulations shall not require the submission of an amended landscape plan. The substitution of plants indicated on an approved landscape plan with plants of an alternative species of the same size and plant category (canopy tree, accent tree, palm tree, shrub) shall not require the submission of an amended landscape plan, unless a specific species has been prescribed as a condition of approval by the Hearing Examiner or City Council; however, any such substitution shall meet all other landscape requirements, including the minimum separation distance between trees and overhead power lines, the Florida native plant percentage, the tree species mix, and species specific palm tree substitution requirements. Except as described above, after a landscape plan has been approved, it shall be unlawful to change, modify, alter, or otherwise deviate from the terms or conditions of the landscape plan without first obtaining written approval of an amendment to the landscape plan. The approval of an amendment to a landscape plan does not constitute an amendment to the site plan. Modifications that require approval of an amended landscape plan include:
1.
Replacement of any plant indicated on an approved landscape plan with a plant of a different species; or
2.
The reduction of any quantity or size of plants below the size that was indicated on the most recently approved landscape plan.
The city may impose a reasonable fee for the review and approval of an application for an amendment to a landscape plan. An application for an amendment to a landscape plan shall be reviewed in accordance with the standards herein, unless the landscaped area is a legal nonconformity. An application for an amendment to a nonconforming landscaped area shall be reviewed in accordance with Article 5, Section 6.
D.
Nonconforming landscaped areas.
1.
Legal nonconforming landscaped areas established. All landscaped areas which were lawful prior to the adoption of this Code but which fail by reason of adoption of such amendment to comply therewith, are hereby declared to be nonconforming. Such nonconforming landscaped areas are hereby declared to be lawful and shall not be required to be altered to conform with such regulations as adopted by the City of Cape Coral; provided, however, that such nonconforming landscaped areas are restricted and subject to the requirements of this section.
2.
Requirements for nonconforming landscaped areas.
a.
For sites with an approved landscape plan, nonconforming landscaped areas, including buffers, shall be maintained in accordance with approved landscape plans, as modified by requirements of any approval for PUD, PDP, special exception, or variance, if any. If the minimum requirements for landscaping are reduced subsequent to the most recently approved landscape plan, the property owner may request approval of an amended landscape plan meeting the minimum requirements pursuant to Article 5, Section 6.
b.
For single-family and duplex sites, nonconforming landscaped areas shall be maintained in accordance with landscape regulations in effect at the time of issuance of the original building permit for the primary structure.
c.
For sites without an approved landscape plan, other than single-family and duplex sites, nonconforming landscaped areas shall be maintained in accordance with landscape regulations in effect at the time of the most recent site plan approval.
E.
Canopy tree pruning.
1.
Except as otherwise provided herein, trees required by regulations in effect at the time of site development shall only be pruned to promote healthy, uniform, natural growth, to keep trees trimmed back from doors, windows, and public sidewalks or where necessary to promote health, safety, and welfare. Pruning shall be in accordance with "American National Standard for Tree Care Operations - Tree, Shrub, and Other Woody Plant Maintenance - Standard Practices (Pruning) (A300, Part 1)" by the American National Standard Institute and "Best Management Practices: Tree Pruning" by the International Society of Arboriculture (ISA). Pruning of trees on any site over one acre should be supervised by a certified arborist. Pruning necessary to maintain public overhead utilities shall be in accordance with the National Electric Safety Code (NESC).
2.
Trees required by regulations in effect at the time of site development shall not be pruned so as to include topping of trees through removal of crown material or the central leader, or any other similar procedure to permanently limit growth to a reduced height or spread or that cause irreparable harm to the natural form of the tree, except where such procedures are necessary to maintain public overhead utilities. Severely pruned trees required by regulations in effect at the time of site development must be replaced by the property owner. Replacement trees must meet the tree size requirements of this Chapter. A tree's growth habit shall be considered in advance of conflicts that might arise (e.g., signs, power lines, sidewalks, buildings, and similar conflicts).
Excessively pruned trees.
3.
Palm maintenance and pruning. Palms shall only be pruned in such a manner that removal of fronds does not exceed a 9:00 to 3:00 pattern and no more than one-half of the fronds are removed at a single time. This limitation shall not apply to flower stalks or fronds that are yellow or dead.
A.
Permits.
1.
Required. It shall be unlawful for any person to place any landscape material, including plant materials and hardscape materials other than mulch, in any median or cul-de-sac under the control of the city, without first obtaining a permit for such work from the City.
2.
Application. An application for a permit shall be submitted on a form provided by the city and include all required information as specified in the permit application forms, including, but not limited to:
a.
A general vicinity map showing the nearest intersecting streets;
b.
The location of existing public and private utilities, including overhead power lines and drainage facilities within twenty (20) feet of the proposed landscaping;
c.
A planting plan showing all pertinent dimensions, the location of existing plant materials with indication if they are to be removed, the location of proposed plant materials indicating the size and species, the location of existing or proposed hardscape materials, and the proposed irrigation plan and source of water;
d.
Any additional information reasonably required by the City because of unique circumstances of the project; and
e.
A non-refundable application fee as established by Resolution of the City Council.
B.
Median or cul-de-sac design. Landscaping in medians or cul-de-sacs shall be in accordance with the City of Cape Coral Engineering Design Standards and the City-approved median landscape templates. The median landscape templates shall be approved by Resolution of the City Council.
C.
Prohibited vegetation. The prohibited vegetation standards of Section 5.5.9 of this article shall apply in medians and cul-de-sacs.
D.
Review criteria. In determining whether a permit will be issued, the city shall consider factors that include, but are not limited to, the following:
1.
Relationship to traffic and pedestrian safety in accordance with the City of Cape Coral Engineering Design Standards;
2.
Location of existing and proposed public utilities, power lines, and other right-of-way improvements;
3.
Effect on surface waters and drainage patterns;
4.
Aesthetic effect of the proposed landscaping, including whether the resultant theme and intensity would be consistent throughout the specific median or cul-de-sac in accordance with the median landscape templates, and whether the proposed landscaping would coordinate with the landscape theme and intensity established in the vicinity;
5.
Type, size, and location of any extant plant materials and hardscape materials, if any;
6.
Type, size, and location of proposed plant materials and hardscape materials on the median or cul-de-sac, in accordance with the median landscape templates;
7.
Method of removal of existing plant materials and hardscape materials;
8.
Adequacy of proposed irrigation, its expense to the city, and availability of water supply;
9.
The city's ability to maintain the landscaping including economic ability, manpower, and location of the median or cul-de-sac; and
10.
Potential sight obstructions and compliance with all standards and regulations regarding sight distances and clear zones.
E.
Approval.
1.
In its approval of any permit request, the city may request modifications, which may include:
a.
The planting plan, in accordance with the City of Cape Coral Engineering Design Standards and median landscape templates, including a requirement that the entire median or cul-de-sac be included in the design, as well as to plant sizes, species, location, and nature placement of hardscape materials;
b.
Plant installation or removal methods or specifications;
c.
Regulation of the commencement and completion date, work hours, or phasing of installation or removal;
d.
Requirement of a financial instrument to ensure removal of the landscaping;
e.
Requirement that all or part of the landscaping be installed by a licensed landscape contractor or certified arborist;
f.
Requirement that temporary traffic control measures be implemented by a barricade company with certification by the American Traffic Safety Services Association (ATSSA) or the International Municipal Signal Association (IMSA);
g.
Requirement that curbing be installed;
h.
Requirement that erosion control measures be implemented; and
i.
Submission of a hold harmless agreement acceptable to the city.
2.
The permittee shall be responsible for compliance with the permit.
3.
Approval of a permit to install landscape materials shall not obviate the requirement to obtain all other necessary permits, including permits for irrigation and signs.
F.
Changes subsequent to approval. After a planting plan has been approved, it shall be unlawful to change, modify, alter, or otherwise deviate from the terms of the planting plan without first obtaining written approval of an amendment to the planting plan. Modifications that require approval of an amended landscape plan include the following:
1.
Replacement of any plant indicated on an approved planting plan with a plant of a different species in accordance with the City of Cape Coral Engineering Design Standards and median landscape templates; or
2.
Modification of the location of any plants or other landscape materials.
The city may impose a reasonable fee for the review and approval of an application for an amendment to a planting plan. Such fee, if any, shall be established by Resolution of the City Council. An application for an amendment shall be reviewed in accordance with the standards herein. The replacement of plants indicated on an approved landscape plan with plants of the same species shall not require the submission of an amended landscape plan.
G.
Permit expiration. A permit for installing landscape materials in any median or cul-de-sac under the control of the city shall be valid for a one-year period from the date of issuance, except as otherwise provided within the permit approval.
H.
Maintenance. Once any landscape materials are installed in a median or cul-de-sac in accordance with the planting plan approved by the City, the materials shall be the property of the city. The City shall be responsible for maintaining any and all landscaping permitted by this subsection in accordance with Section 5.5.16 of this article. Should any plant material or other landscape material or portion thereof become a safety hazard, unsightly, or die or become diseased, or if it is installed or maintained in a manner inconsistent with the permitting requirements herein, the city shall have the option of replacing or removing it. The City will determine compliance with this subsection.
I.
Removal. Any landscape materials planted or installed without the express written permission of the city shall be subject to removal by the city in its sole discretion. Except for the City and persons with a permit or other written authorization from the City, no person shall remove landscape materials from a median or cul-de-sac.
1.
The authorization in this section for the removal of landscaping in medians and cul-de-sacs shall be construed as supplementary to any other means of enforcement available to the city and shall not be construed so as to negate the authority of the Code Compliance Special Magistrate to hear and adjudicate appropriate cases.
2.
The city may also, in its sole discretion, remove any landscape materials placed in any median or cul-de-sac under the city's control, for utility maintenance, safety, or any other reason. The City is not required to replace any landscaping removed pursuant to this section.
J.
Revocation. If any requirements of the approval are not satisfied, the city may revoke or stop work on any permit issued pursuant to this subsection.
K.
City improvements. The City may install infrastructure improvements and recognition signage in medians or cul-de-sacs improved pursuant to this section. The City has the sole discretion of the placement, location, and size of any recognition signage installed pursuant to this section. In making such determination the City's decision shall be based on, but not be limited to, the classification of the road; width of the roadway, median, or cul-de-sac; proximity to intersections; and curves/bends in the roadway.
(Ord. 33-20, § 1, 7-20-2020)
A.
No permit required- Registration required. It shall be unlawful to install any trees or shrubs in the city-owned lateral right-of-way without first obtaining a registration certificate from the city.
B.
Refer to Section 5.1.9 for landscaping that may be installed within the lateral right-of-way without a permit or registration certificate.
C.
Placement of planting material. In the South Cape Downtown District, in order to provide a cohesive urban streetscape, applicants may enter into an agreement with the city for placement of planting material in the lateral right-of-way. In all other districts, the planting of trees, palm trees, and shrubs, and the placement of the tree bed(s) shall be allowed in the city-owned lateral right-of-way subject to the following restrictions:
1.
The property owner must call the Sunshine 811 notification service to have all underground utilities located and marked on the ground prior to installation of any landscape material. All excavation on public property, rights-of-way, or dedicated easements shall comply with the requirements of F.S. Ch. 556. UNDERGROUND FACILITY DAMAGE PREVENTION AND SAFETY.
2.
Where potable water, irrigation or sanitary sewer force mains are located within the right of way, the property owner must contact the Utility Department to confirm the location of proposed canopy trees and palm trees.
3.
No canopy tree shall be planted within 10 feet of existing or proposed drainage inlet or potable water, irrigation and sanitary sewer force mains.
4.
No palm tree with a mature diameter of 8 inches or greater shall be planted within 5 feet of existing or proposed drainage inlet or potable water, irrigation and sanitary sewer force mains
5.
Planting near overhead utility infrastructure shall be in accordance with the requirements of Section 5.5.7 of this article;
6.
One or more trees may be immediately surrounded by a bed consisting of landscape edging materials, bedding plants or groundcover, and mulch or decorative rock so long as the size of the bed is reasonably related to the size and number of trees contained therein. Groundcover or annual bedding plants shall be permitted within the tree bed. Unless otherwise permitted, no other landscape edging material, concrete curbing, bedding plant or groundcover, mulch, or decorative rock shall be allowed in the city-owned lateral right-of-way;
7.
The property owner abutting the portion of the lateral right-of-way in which the plantings and the tree bed(s) are placed shall be responsible for any and all costs incurred by the city for damage sustained to any drainage system orunderground utility facilities as a result of said plantings or placement of the tree bed(s), and shall indemnify and hold the city, its officers, employees, and agents, harmless from any and all claims for injuries and damages to persons and property, both real and personal resulting from said plantings or placement of the tree bed(s);
8.
No tree, shrub, landscape edging material, concrete curbing, bedding plant, groundcover, mulch, or decorative rock shall be placed in the city-owned lateral right-of-way within five feet of the roadway. Canopy trees shall not be planted within seven feet of any roadway, sidewalk, or underground utility unless an acceptable root barrier material, installed in accordance with this Chapter.
9.
No tree, shrub, landscape edging material, concrete curbing, bedding plant, groundcover, mulch, or decorative rock shall be placed in the city-owned lateral right-of-way:
i.
Within five feet of either side property boundaries, as measured perpendicular from the side property line;
ii
Within three feet of the bottom on the swale in either direction;
iii.
Within three feet of a public sidewalk; or
iv.
So as to be an obstruction to pedestrian or vehicular traffic or traffic visibility and each shall be maintained accordingly.
D.
Maintenance. Once any landscape materials are installed in a lateral right-of-way, the materials are the property of the city. The person or entity who owns the property abutting a portion of the lateral right-of-way along a city street in which the trees, palm trees, shrubs, landscape edging material, concrete curbing, bedding plants, or groundcover, mulch, or decorative rock have been placed shall be responsible for the following:
1.
Maintaining all plantings and tree bed(s) in good condition so as to present a healthy, neat, and orderly appearance;
2.
Trimming such trees, palm trees, shrubs, and tree bed(s) so as to not be an obstruction to pedestrian or vehicular traffic or traffic visibility; and
3.
Keeping such trees, palm trees, shrubs, and tree bed(s) free of refuse, debris, and disease.
Failure to maintain such trees, palm trees, shrubs, and tree bed(s) in accordance with this provision shall constitute a violation of this section and shall be grounds for removal by the city of the trees, palm trees, shrubs, and tree bed(s) in the right-of-way.
E.
Removal.
1.
The authorization in this section for the removal of trees, palm trees, shrubs, and tree bed(s) shall be construed as supplementary to any other means of enforcement available to the city and shall not be construed so as to negate the authority of the Code Compliance Special Magistrate to hear and adjudicate appropriate cases.
2.
The city may also, in its sole discretion, remove any trees, palm trees, shrubs, and tree bed(s) placed in a city-owned lateral right-of-way for utility maintenance, safety, or any other reasonable cause. Except for the city, persons with written authorization from the city, and the property owner abutting the portion of the lateral right-of-way in which landscape materials have been placed, no person shall remove landscape materials from a lateral right-of-way.
3.
All expenses incurred by the city for removal trees, palm trees, shrubs, and tree bed(s), for any reason, shall be the responsibility of the property owner.
4.
If, for any reason, such trees, palm trees, shrubs, and tree bed(s) are removed, the adjoining owner shall be responsible for returning the right-of-way to its original condition prior to the placement of the plantings and tree bed(s) and any expenses related thereto regardless of whether the removal of the trees, palm trees, shrubs, and tree bed(s) was performed by the property owner or the city pursuant to this section.
A.
The General Tree Fund and the South Cape Tree Fund are established for the purpose of accepting and disbursing the fees paid to the City as assessed on development permits and any other monies deposited in the fund accounts for tree preservation and landscape beautification purposes. The General Tree Fund shall be used in areas other than the South Cape District. The South Cape Tree Fund shall be used in the South Cape District only.
B.
The Tree Funds established in this section shall be maintained, unless specifically terminated by the City Council.
C.
All monies received hereunder shall be placed in the appropriate Tree Fund account and inure to the use and benefit of the City.
D.
Administration of tree funds.
1.
The Tree Funds shall be expended, utilized, and disbursed by the Public Works department, upon approval of the City Manager or designee, for the purposes designated in this section.
2.
All Tree Funds deposited must be in separate accounts established and maintained apart from the general revenue funds and accounts of the City.
3.
All funds obtained hereunder may be accepted on behalf of the City by the City Manager, who shall promptly deliver to the Finance Department, which shall cause the same to be credited to the appropriate Tree Fund.
4.
Tree Funds shall be expended, utilized, and disbursed to obtain trees, irrigation systems, and any other items or materials necessary and proper for the installation and maintenance of trees in the urban forest on any publicly owned land, street right-of-way or publicly accessible parcels in the respective areas of the City. Tree Funds shall also be expended, utilized, and disbursed for the planning, planting, establishment, and preservation of trees on public lands; for planning and managing the urban forest; for reforestation; and for any other ancillary costs associated with the planting, establishment, or preservation of trees. These funds may also be expended by the City on similar programs approved by the City Council.
(Ord. 75-23, § 2, 12-13-2023)
A.
Deviations of up to 10% from the requirements of this section may be approved by the Director and as further provided herein) provided that the deviation will not be contrary to the public interest and will be in harmony with the general intent and purpose of this section and where either of the following applies:
1.
Conditions exist that are not the result of the applicant and which are such that a literal enforcement of the regulations involved would result in unnecessary or undue hardship; or
2.
Literal conformity with the regulations would inhibit innovation or creativity in design.
B.
In determining whether a particular deviation request should be approved as the result of unnecessary or undue hardship, factors the Director shall consider include the following: site constraints such as shape, topography, dimensions, and area of the property, the effect other regulations would have on the proposed development, or other locational factors that may make compliance with this section impossible or impracticable, and the effect the requested deviation would have on the community appearance. Additionally, the Director shall find that the approval of the deviation(s) would serve the intent of this section to protect the health, safety, and welfare of the public while ensuring a high level of overall aesthetic appeal and visual interest in the city.
C.
In determining whether a particular deviation request should be approved because literal conformity with the regulations would inhibit innovation or creativity in design, the Director may approve the request for deviation(s) if the applicant demonstrates that the design of the landscaping for which one or more deviations is sought is unique and innovative and, further, that the approval of the deviation(s) would enhance such unique and innovative design. Additionally, the Director shall find that the approval of the deviation(s) would serve the intent of this section to protect the health, safety, and welfare of the public while ensuring a high level of overall aesthetic appeal and visual interest in the city. For purposes of this section, indicia of unique and innovative design may include, but are not limited to, the following:
1.
Landscape details that are unique or that are exceptional in quality by virtue of artistic composition, quality of materials, dimensional attributes, or any combination thereof;
2.
Plant massing that evokes exceptional expression through use of angularity, curvature, or other means;
3.
Design elements or other forms that achieve dynamic or symmetric aesthetic balance; or
4.
Other details or forms that preclude visual monotony and are pleasing in aesthetic character.
D.
Requests for deviations and the reasons therefore shall be set forth by the applicant in the application for deviation and shall be accompanied by documentation including, a narrative that clearly defines the section(s) of the regulations of the requested deviation, a narrative explanation as to the reason for the requested deviation and why it should be approved, sample detail drawings, elevations, and perspectives which shall graphically demonstrate the proposed deviation(s) and illustrate how each deviation would operate to the benefit, or at least not to the detriment, of the public interest.
E.
For deviations to avoid unnecessary or undue hardship, the Director subject to these standards and criteria, shall approve only the minimum deviation from the provisions of this section. For deviations to avoid the inhibition of innovation or creativity in design, the Director shall approve deviations necessary to enhance the unique and innovative design. The Director may impose reasonable conditions of approval in conformity with this section. Violation of such conditions and safeguards, when made a part of the terms under which a deviation is granted, shall be deemed a violation of this section and shall be enforceable not only by revocation of the deviation, but also by all other remedies available to the city, including all code enforcement procedures.
The purpose and intent of this Section is to create outdoor lighting standards that promote the health, safety, and welfare of the residents and decrease the impacts of ambient lighting on the natural sky by establishing maximum intensities of lighting and controlling glare from lighting fixtures. The provisions of this article shall apply to all permanent outdoor lighting from any light source in nonresidential development.
A.
Outdoor lighting fixtures. All outdoor lighting fixtures shall be installed in such a manner that the source of each individual light is shielded, positioned, and maintained so as not to be visible off the premises.
B.
Light shielding for parking lot illumination. All parking lot lighting shall have no light emitted above 90 degrees.
C.
Outdoor lighting fixtures adjacent to residential. Any outdoor lighting fixture providing light to any parcel adjacent to a residentially zoned parcel, whether adjoining or not, shall emit no more than 0.1 foot-candles of light, as measured from the property line of the adjacent residential parcel, using a standard light meter, the cell of which is directed towards the source of the light.
D.
All areas designed for use after daylight hours shall be adequately lit, in accordance with Table 5.6.2. below.
Table 5.6.2. Lighting levels for commercial and industrial developments
E.
Illumination ratio. Luminaire fixtures in parking lots shall be arranged in order to provide uniform illumination throughout the parking lot area of not more than a 4:1 ratio of average to minimum illumination, and not more than 12:1 ratio of maximum to minimum illumination.
F.
Automatic Switching Requirements. Controls shall be provided that automatically extinguish all outdoor lighting when sufficient daylight is available using a control device or system such as a photoelectric switch, astronomic time switch, or equivalent functions from a programmable lighting controller, building automation system, or lighting energy management system, all with battery or similar backup power or device.
G.
Modifications. Additions, modifications, or replacement of more than 25 percent of outdoor lighting fixtures existing as of the effective date of this ordinance shall require the submission of a complete inventory and photometric plan detailing all existing and any proposed new outdoor lighting. Any new lighting shall meet the requirements of this ordinance.
H.
Exempt lighting. The provisions above shall not apply to streetlights, single-family residences, duplexes, or governmental facilities.
All rooftop equipment shall be screened from view from the right-of-way or adjacent properties by the use of a parapet wall or other architectural feature to screen the equipment or shall be set back adequately from the building edge to conceal the equipment from adjacent properties at ground level.
A.
All permitted storage areas shall be screened from adjacent properties and the right-of-way. Permissible screening materials include:
B.
A six-foot high wall of concrete or similar approved material, Section. 5.2.7 on walls;
C.
A six-foot high opaque fence of an approved material, Section. 5.2.7 fences; or
D.
A vegetative buffer, consisting of two staggered rows of shrubs a minimum of three feet tall at planting. The buffer shall create a dense barrier, at 80% opacity, within two years.
A.
All mechanical equipment at ground level shall be screened from adjacent property and the right-of-way. When possible, sound deadening materials shall be used. Permissible screening materials include:
1.
A wall or opaque fence of adequate height to screen the view of the equipment, see Section. 5.2.7 for approved materials.
2.
A vegetative buffer, which meets the specifications in Section 5.6 for a four-foot tall buffer.
Permanently installed stand-by generators serving all properties other than single-family and duplex residences where life and safety does not depend on the performance of the system.
A.
The generator may only be used in emergency situations when there is a power outage.
B.
Repairs and testing may only occur during daylight hours a maximum of once per week.
C.
Installation of a generator shall comply with the following restrictions:
1.
The generator shall not encroach more than three feet into any required setback, and in no case shall be any closer than two and one-half feet from any property line. The generator shall not be installed in an easement.
2.
The generator shall be screened from public view by:
a.
A vegetative buffer which meets the specifications in Section 5.6 for a five-foot high hedge; or
b.
A wall or opaque fence, of an adequate height to screen the equipment, which meets the specifications of Section 5.2.7.
3.
Permanent signs shall be placed at the electrical service indicating the type and location of the generator.
The appearance of non-residential and mixed-use development affects the visual image and attractiveness of the City of Cape Coral. Utilitarian design and developments with minimal architectural features detract from the city's image and character. The purpose and intent of the non-residential design standards is to promote the City as an attractive destination for tourists and residents, and to support economic vitality while protecting the public health, safety, and welfare. These regulations intend to:
A.
Enhance the visual image and attractiveness of the City;
B.
Establish reasonable standards that offer flexible and diverse design options;
C.
Ensure development in Cape Coral is of consistent high quality and character; and
D.
Regulate site layout and architectural features to ensure aesthetic and visual interest.
A.
The standards of this section shall apply to all non-residential and mixed-use development for which application for site plan approval, or a building permit is made.
B.
These design standards shall apply to existing development if a building's gross floor area is increased by 50% or more.
C.
Development on Industrial zoned sites shall be exempt from these standards.
D.
The design standards of this section do not apply when the City Council has established specific design standards for a unique area of the city unless the specific design standards otherwise expressly state their applicability.
The following types of buildings shall be exempt from the non-residential design standards.
A.
Any building that has received a temporary use permit.
B.
Any accessory structure.
C.
Bona fide agricultural buildings in the Agricultural and RE Districts such as barns and stables.
D.
Guard houses.
E.
Government facilities that are screened or not visible from a public street.
F.
Model homes.
G.
Municipal pump station buildings.
H.
Self-storage buildings provided the buildings are enclosed with a wall with a minimum height of eight feet.
I.
Pavilions, carports, gas canopies, and similar buildings that have support posts or columns but no sides except for roof treatments as required in Section 5.8.8.
J.
Buildings similar to those listed above as determined by the Director.
If any of the non-residential and mixed-use design standards of this section conflict with any other provision of the City of Cape Coral Code of Ordinances or Land Development Code, the provision that establishes the more specific standard or architectural theme governs. If neither conflicting provision establishes a specific standard or architectural theme, then the more restrictive provision governs unless otherwise expressly provided.
A.
Consistency Within a Development. Except for buildings on outparcels that contain only one unit, designed and constructed to be occupied by a single end user, regardless of the number of business operations conducted within the single unit, buildings within a development shall be designed with color schemes, building materials, finishes, roof types, roof lines, and exterior roof finishing consistent with or that resemble those of the principal building or structure on the main parcel(s).
B.
Consistency and Integrity of Building Components. All portions of any exterior side of a building, extending from finished grade to the top of the parapet wall or eaves, extending the entire width of the side of a building, must be designed with consistent architectural style, detail and trim features. All architectural features other than parapet walls, including towers or cupolas, shall be designed so as to have an equivalent character from any ground-level angle from which they can be viewed.
C.
Glazing.
1.
For buildings abutting and facing a public street, transparent windows, doors, or any combination thereof, shall cover at least 25% of the first story building wall area from grade to a height of 10 feet.
2.
For buildings with walls abutting but not facing a public street, transparent windows, doors, or any combination thereof, shall cover at least 15% of the first story building wall area from grade to a height of 10 feet
3.
For lots abutting dedicated city parking areas or portions of alleys abutting dedicated city parking areas, transparent windows, doors, or any combination thereof, shall cover at least 25% of the first story building wall area from grade to a height of 10 feet.
D.
Sides of a building. For buildings located on outparcels, all exterior sides of a building shall comply with this section. Additionally, except for a side of a building built flush with a side lot line, a side of a building that faces a rear lot line of an abutting property, and a side of a building that faces a property line that abuts an alley, all sides of a building shall comply with the standards of this section.
1.
All exterior sides of a building subject to this subsection shall include a repeating or varying pattern and shall comply with both design elements listed below. At least one of the three design elements shall repeat horizontally. All elements shall repeat or alternate at intervals of no more than 50 feet, either horizontally or vertically.
a.
Each wall shall provide visual differentiation of wall surfaces through variations in a minimum of one of the following:
i.
Building materials;
ii.
Finish textures; or
iii.
Color.
b.
Each wall shall provide a minimum of two of the following architectural features:
i.
Columns;
ii.
Pilasters;
iii.
Awnings;
iv.
Canopies;
v.
Reveals (if provided shall have a minimum depth of ½ inch);
vi.
Corbels;
vii.
Quoins ;
viii.
Keystones;
ix.
Cornices (if provided shall have a minimum height of four inches); or
x.
Other features as determined by the DCD Director that provide articulation or reduce building massing.
2.
All exterior sides of a building shall provide a minimum number of design elements among elements a. thru r. below in accordance with the gross square footage of a building, as provided herein. Required design elements may be located on an exterior wall of a building, on the roof of the building, or on both the wall(s) and the roof of a building, as applicable. If located on a roof, the design element shall be located on a portion of the roof that faces in the same direction as the exterior wall. It is not the intent of this section, however, to require the design elements to be on both the exterior wall(s) and the roof.
a.
Architectural features and detailing that create a frame and definition to the primary public entrance;
b.
One or more canopies or awnings that extend a total length of at least 30% of the length of any side of a building subject to this subsection;
c.
One or more attached porticos;
d.
Peaked or arched roof form;
e.
Overhanging eaves a minimum of 18 inches wide on all portions of a building with a pitched roof;
f.
Arcade;
g.
Colonnade;
h.
Arches or arched forms other than roof forms or an arcade;
i.
Windows or glazing that exceed the minimum glazing requirements of Subsection 5.8.5.C. by a minimum of 10% for a wall;
j.
Ornamental or structural details, including, banding or moldings used throughout the exterior building walls that add decoration and detail to a building roofline, building openings, or windows;
k.
Two or more ornamental or structural details that are horizontally continuous (except for interruptions for doors and windows), which may include belt courses or any type of three-dimensional molding, banding, projections, recesses, or niches that help to define a base, body, and cap to the proposed building;
l.
A tower such as a clock tower or bell tower;
m.
A cupola;
n.
Sculptured artwork (excluding corporate logos or advertising);
o.
Vertical articulation of walls, including pilasters, columns, or other relief with maximum separation of one third of the wall on which they are located, not to exceed a separation of 100 feet;
p.
Planter boxes that are integrated into the building architecture or wing walls that incorporate landscaped areas or places for sitting; or
q.
Curved wall containing an uninterrupted curve along at least 10% of the length of any side of a building subject to this subsection.
r.
One or more vegetated trellises that occupy a minimum of 25% of the area of a single wall.
3.
For buildings with a gross floor area of greater than 50,000 square feet, no exterior wall shall exceed 100 linear feet in a horizontal direction within a single, continuous wall plane, nor shall any single, continuous wall plane constitute more than 60% of the building's total length. A wall shall be deemed to be in a single, continuous wall plane unless it is offset (recessed or projected) by at least 24 inches from any adjacent wall plane or contains a pilaster that projects at least 36 inches from the wall.
A.
Buildings that are more than twice the height of the height of extant buildings on abutting property shall incorporate one or more transitional height elements to segue the height of the new building to the height of the closest existing building. The transitional height element shall be incorporated on the new building at the approximate cornice or roof line of the nearest existing building, if any. Where there is no extant building on adjacent property, the requirements of this sub-section will not apply. Where no single building is "nearest" to the new building, but instead two or more buildings are located an equidistance from the new building, the property owner may select the approximate cornice or roof line of any of such equidistant buildings at which to incorporate the transitional height element on the new building.
B.
Transitional height elements may include:
1.
Cornices or other decorative elements that run the length and width of the building and project a minimum of six inches from the wall;
2.
Upper story setbacks and offsets at the approximate cornice or roof line of the nearest existing building as provided above;
3.
Variations in roof planes.
Only the following finish materials for exterior walls are permitted. All other finish materials are prohibited.
A.
Concrete block with stucco finish (CBS), synthetic stucco (an exterior cladding system with a stucco-like outer finish applied over insulating boards or composite materials), or other exterior coating that is the visual equivalent of stucco. Non-textured concrete block with visible mortar joints, even if painted, is not an acceptable finished material.
B.
Textured or ribbed concrete block, e.g. "split-face block".
C.
Reinforced concrete of any finish.
D.
Glass or other glazing, whether transparent, translucent, or applied as a veneer. For purposes of this subsection, glazing consists of glass or any material that resembles glass including, but not limited to, Plexiglass or polycarbonate.
E.
Stone or brick, including simulated stone or brick.
F.
Wood, other than plywood or T1-11 type paneling, if termite-resistant species, pressure-treated, painted, or stained.
G.
Fiber-reinforced cement panels or boards.
H.
Tile.
I.
Architectural metal panels, provided that corrugated metal panels shall not exceed 30% of the surface of any wall.
J.
Vinyl siding, provided that vinyl siding shall not exceed 30% of the surface of any wall.
K.
Cargo or shipping containers, provided that any exterior wall of the container is completely sheathed with one of more of the allowable materials listed in this subsection.
A.
All non-residential and mixed-use buildings shall have variations in rooflines and roof features that are consistent with the building's mass and scale. In addition, roofs shall include features from at least two of the following five categories below.
1.
Parapet wall provided the parapet extends completely around the building on all sides. However, this requirement shall not prohibit the substitution of a pitched roof in lieu of a parapet for part of a building.
2.
A three-dimensional cornice treatment, a minimum of four inches high (not applicable along any portion of a wall that is built flush to the side lot line). Flashing at the top of a parapet shall not qualify as a cornice. Cornices shall return a minimum of eight feet around corners that transition from a building wall that requires a cornice to a building wall that does not require a cornice.
3.
Varied roof lines with different roof heights and or separate or distinct roof segments that fall at different horizontal planes above the cornice line;
4.
Overhanging eaves that extend at least 18 inches beyond the supporting walls, with a minimum fascia of six inches in height (not applicable along any portion of a wall that is built flush to the side lot line);
5.
Vertical variation in the roof line with a minimum change in elevation of two feet.
B.
Pitched roofs such as gable, hip, shed or mansard roofs shall be clad with highly durable materials such as standing seam metal, slate, ceramic, or fireproof composite tiles. Fiberglass and asphalt shingles are prohibited except for dimensional grade or better.
1.
Allowed slope. Pitched roofs shall have a minimum slope of three feet vertical rise for every 12 feet of horizontal run. The maximum slope of a pitched roof shall not exceed a one-foot vertical rise for every on foot of horizontal run.
C.
Roofs covering pavilions, carports, gas canopies, and similar structures with support posts or columns but no sides. Buildings with roofs that lack walls, whether free-standing or attached to another building, shall have a minimum slope of three feet vertical rise for every 12 feet of horizontal run. Unless a roof with an alternative design is approved by the DCD Director, all roofs are required to possess a pitched roof with a minimum slope of three feet vertical rise for every 12 feet of horizontal run. The DCD Director shall consider the following two criteria in determining whether to approve a roof with an alternative design:
1.
Whether the design of the roof evokes exceptional expression through the use of angularity, curvature, or other means; or
2.
Whether the design of the roof precludes visual monotony and enhances the aesthetic character.
Flat and parapet roofs are prohibited for buildings covered by this subsection.
A.
All buildings, whether residential, nonresidential or compound use, shall conform to the design standards provided herein., except as superseded by the following requirements.
B.
Public entrances. Public entrances shall be provided as follows:
1.
Any building facade that faces a street (excluding alleys) shall provide a public entrance oriented toward such street. In the case of a corner lot where more than one building facade faces a street, a corner entrance may serve to meet the requirements for the two streets that intersect and create the corner. All public entrances shall have convenient pedestrian access providing a direct connection from the street to the entrance via a walkway a minimum of four feet in width and not traversing any portion of an off-street parking area. In the event the City determines that this provision cannot be met due to site constraints, such walkway may traverse the off-street parking area but shall be clearly delineated by a change in paving material, pavement markings, or similar treatment.
2.
Any building facade that faces a dedicated city parking area shall provide a public entrance oriented toward such dedicated city parking area with convenient pedestrian access providing a direct connection via a walkway a minimum of four feet in width.
3.
It is not the intent of these provisions to require more than two public entrances to any use intended to be occupied by a single tenant. In the event that the provisions above cumulatively require more than two public entrances, then the requirements may be reduced such that two public entrances shall be required. In determining the orientation of such public entrances. Parkway street designations and dedicated city parking areas shall have priority.
C.
Transparency of building walls. Except for parking structures, building walls shall contain transparent windows, doors, or any combination thereof, meeting the following standards:
1.
For lots abutting primary or secondary street designations, transparent windows, doors, or any combination thereof, shall cover at least 50% of the first story building wall area that faces the primary or secondary street designation. Above the first story, non-residential uses, except hotels, shall provide transparent windows, doors, or any combination thereof, covering at least 25% of the entire building wall area; residential and hotel uses shall provide at least 15%.
2.
For lots abutting local street designations, non-residential uses, except hotels, shall provide transparent windows, doors, or any combination thereof, covering at least 25% of the entire building wall area that faces the secondary or tertiary street designations; residential and hotel uses shall provide at least 15%.
3.
For lots abutting dedicated city parking areas or portions of alleys abutting dedicated city parking areas, non-residential uses, except hotels, shall provide transparent windows, doors, or any combination thereof, covering at least 25% of the entire building wall area that faces the dedicated city parking area; residential and hotel uses shall provide at least 15%.
4.
Non-residential use building walls facing navigable waterways shall provide transparent windows, doors, or any combination thereof, covering at least 25% of the entire building wall area.
5.
The exterior of windows and doors shall remain unshuttered at all times of the day. This provision shall not apply to the following:
a.
Un-walled areas such as, but not limited to, dining and seating areas associated with restaurants and bars.
b.
Hurricane shutters or flood-proofing panels during the time period in which a flood watch or warning, a tropical storm watch or warning, or a hurricane watch or warning is in effect for any portion of Lee County. Such shutters or panels shall be removed within a week from the time they are put up, unless a hurricane, tropical storm, or flood has impacted the area, in which case the shutters may remain up for not more than three months from the date of the incident, except for good cause shown to the City.
D.
Non-residential buildings with a first story consisting of more than 35,000 square feet of floor area and consisting of a single use shall meet the following requirements:
1.
One public entrance shall be provided for every 75 feet of overall building frontage; or
2.
Liner buildings meeting the following requirements shall be provided:
a.
Liner buildings shall be provided along at least 50% of the overall building frontage.
b.
Liner buildings shall contain active uses with at least one public entrance provided for every 75 feet of liner building frontage. Such liner buildings shall comply with all applicable building setbacks and building frontages.
c.
Liner buildings shall have an interior depth of at least 15 feet.
d.
Liner buildings may be detached from, attached to, or integrated into the principal building.
E.
Architectural elements design standards: awnings, canopies, colonnades, arcades, balconies, front porches, stoops/landings, and cupolas. A first story facade facing a street or dedicated city parking area shall provide shade with awnings, canopies, colonnades, arcades, balconies, or any combination thereof, for at least 50% of its length or width, unless prohibited by Article 4, Chapter 5. Notwithstanding Section 5.1.6 of the LDC, architectural elements or any combination of architectural elements, may occur forward of the minimum setback, as applicable, but shall not extend forward of a lot line, except as provided herein. Notwithstanding Section 5.1.8 of the LDC, architectural elements, or any combination of architectural elements may extend forward of a lot line into the public right-of-way with the approval of the City Manager. The city may require the property the property owner to enter into a formal easement agreement or formal right-of-way agreement in a form acceptable to the City Attorney. The owner of the structure containing the architectural elements encroaching into the easement or right-of-way is solely responsible for repairing any damage to encroachments in the easement or right-of-way that result from maintenance or public infrastructure improvements. The property owner must comply with the provisions of Section 5.8.9.E.1-8 below.
1.
The City Manager shall consider the following criteria in determining whether to approve an architectural element, or any combination of architectural elements, that would encroach into the easement or public right-of-way.
a.
The extent to which the architectural element would encroach into the easement or right-of-way;
b.
The effect of such encroachment on any utilities that are either currently located in the easement or right-of-way or that may be located in the easement or right-of-way in the future; and
c.
The effect of such placement on any abutting properties or streetscape and on the navigability of the public right-of-way.
2.
Awnings and canopies. Awnings and canopies extending from the first story, facing a street or dedicated city parking area, and serving to meet the 50% length/width requirement of Article 4, Chapter 5 shall conform to the following:
a.
Depth shall be a five-foot minimum projection from the building facade.
b.
Height shall be an eight-foot minimum clearance, including suspended signs.
3.
Colonnades and arcades. Colonnades and arcades facing a street or dedicated city parking area shall conform to the following:
a.
Depth shall be a minimum of five feet from the building wall to the inside column face.
b.
Height shall be an eight-foot minimum clearance, including suspended signs. The lowest point on arches shall not extend below seven feet.
c.
Openings between piers, columns, or similar supporting elements shall be at least 50% of the colonnade or arcade facade area.
d.
Open multi-story verandas, awnings, balconies, and enclosed habitable space shall be permitted above the colonnade or arcade.
4.
Balconies. Balconies shall be open and un-air-conditioned. Balconies may have roofs. Roofed balconies may be enclosed with screen and may contain privacy partitions. Balconies shall not project beyond the rear building setback requirement, as applicable. Balconies shall be located no closer than six feet from the abutting side lot line. Balconies facing a street or dedicated city parking area shall have a height clearance of ten feet minimum from grade; their decorative or supporting elements that project from building walls shall have a clearance of seven feet from grade.
5.
Front porches. Front porches shall be un-air-conditioned. may be screened, and shall conform to the following:
a.
Front porches facing a street or dedicated city parking area and serving to meet the minimum building frontage requirements of Article 4, Chapter 5 shall be a minimum of eight feet in depth.
b.
Open multi-story verandas, awnings, balconies, and enclosed habitable space shall be permitted above front porches.
6.
Stoops and landings. Stoops and landings may be roofed or unroofed, and shall maintain the required minimum building setback, as applicable. However, access to a stoop, whether by stairs, ramp, or other means, may extend forward of the minimum building setback as applicable, if approved by the Director but shall not be located less than three feet from the front lot line.
7.
Cupolas. When provided, cupola(s) shall have a maximum of 400 square feet in horizontal dimension and shall be limited to two per building.
8.
Garage doors associated with residential uses, when facing the front of the lot, shall be set back at least 20 feet behind the building line.
A.
For all non-residential and mixed-use developments, air conditioning, heating, and similar equipment shall be placed on the roof or the ground.
1.
Air conditioning and heating equipment shall be prohibited from being mounted on the side of a building.
2.
Rooftop equipment shall be screened on all sides in a manner consistent with the architectural design of the building. Such screening shall be at least as high as the highest portion of the equipment or apparatus being screened.
3.
Equipment located on the ground shall be located or screened so as not to be visible from any property line abutting a public street other than an alley when viewed along a line perpendicular or radial to such property line. Screening shall consist of a wall, fence, plant material, or any combination thereof. Fences used for screening shall not be constructed of chain link with or without slats and are encouraged to be designed to appear to be constructed of material the same as the building, and to incorporate architectural trim features consistent with the building.
4.
Electric meters and similar panels may be wall-mounted and are subject to the same screening requirements outlined in subsection c. above. In lieu of screening, the equipment may be painted to match the color of the building.
5.
Attic vents and solar panels are exempt from the requirements of this subsection.
B.
Loading areas that are visible from an abutting property with a residential future land use classification or that is separated from a property with a residential future land classification by an alley or a two-lane street shall be screened by a wall that is at least six feet in height, which is constructed of the same material as the building or is designed to appear to be constructed of material the same as the building, and that incorporates architectural trim features consistent with the building, by an earthen berm that is at least six feet in height, or by a combination of wall and berm that is at least six feet in height.
A.
Deviations from the provisions of this section may be approved by the Director provided that the deviation will not be contrary to the public interest and will be in harmony with the general intent and purpose of this section and where either of the following applies:
1.
Conditions exist that are not the result of the applicant and which are such that a literal enforcement of the regulations involved would result in unnecessary or undue hardship; or
2.
Literal conformity with the regulations would inhibit innovation or creativity in design.
B.
In determining whether a particular deviation request should be approved as the result of unnecessary or undue hardship, factors the Director shall consider include, but are not limited to, the following: site constraints such as shape, topography, dimensions, and area of the property, the effect other regulations would have on the proposed development, or other locational factors that may make compliance with this section impossible or impracticable, the effect the requested deviation would have on the community appearance including, but not limited to, consideration of the mass, scale, and other characteristics of a proposed building relative to the characteristics of existing and approved surrounding buildings whether on the same or nearby sites, and the relative visibility and character of equipment or loading areas which are otherwise required to be screened along with constraints on alternative location of such equipment or loading areas. Additionally, the Director shall find that the approval of the deviation(s) would serve the intent of this section to protect the health, safety, and welfare of the public while ensuring a high level of overall aesthetic appeal and visual interest in the city.
C.
In determining whether a particular deviation request should be approved because compliance with the regulations would inhibit innovation or creativity in design, the Director approve the request for deviation(s) if the applicant demonstrates that the design of the building or development for which one or more deviations is sought is unique and innovative and further, that the approval of the deviation(s) would enhance such unique and innovative design. Additionally, the Director shall find that the approval of the deviation(s) would serve the intent of this section to protect the health, safety, and welfare of the public while ensuring a high level of overall aesthetic appeal and visual interest in the city. For purposes of this section, indicators of unique and innovative design may include, but are not limited to, the following:
1.
Architectural details that are unique or that are exceptional in quality by virtue of artistic composition, quality of materials, dimensional attributes, or any combination thereof;
2.
Building forms that evoke exceptional expression through use of angularity, curvature, or other means;
3.
Design elements or other forms that achieve dynamic or symmetric aesthetic balance; or
4.
Other details or forms that preclude visual monotony and are pleasing in aesthetic character.
D.
Requests for deviations and the reasons therefor shall be set forth by the applicant in the application for deviation and shall be accompanied by documentation including sample detail drawings, schematic architectural drawings, site plans, floor plans, elevations, and perspectives which shall graphically demonstrate the proposed deviation(s) and illustrate how each deviation would operate to the benefit or at least not to the detriment, of the public interest.
E.
Subject to these standards and criteria, the Director shall approve only the minimum deviation from the provisions of this section necessary to avoid either the unnecessary or undue hardship or the inhibition of innovation or creativity in design. The Director may impose reasonable conditions of approval in conformity with this section. Violation of such conditions and safeguards, when made a part of the terms under which a deviation is granted, shall be deemed a violation of this section and shall be enforceable not only by revocation of the deviation, but also by all other remedies available to the city, including, but not limited to, all code enforcement procedures.
A.
The purpose of this Section is to ensure all temporary events and activities are located and coordinated in harmony with the surrounding community. Temporary uses are authorized in this article as temporary accessory or principal uses for time periods proportionate and appropriate to the nature of the temporary use. Temporary uses permitted by this article may not be listed as a use in a particular zoning district. Temporary uses not listed in this article may be permitted through a temporary use agreement approved by the Director of Community Development
B.
All temporary uses and special events approved subject to the standards and requirements set forth under this article are deemed to be a privilege and not a right, which may be revoked by the city for failure to comply with any of the provisions of this article or any other local, state, or federal law governing the event. Approved temporary uses and special events may also be revoked if such revocation is in the best interest of the city based on emergency, disorder, or other unforeseen conditions. Private events held on private property shall not require a temporary use permit. Signs shall be limited to the signs permitted in Section 5.9.10 of this article and shall not be allowed within the right-of-way.
C.
Application for a temporary permit.
1.
Temporary use permits shall be coordinated by the Community Development department who may request reviews from the Fire, Police, Building, and Public Works departments as necessary to ensure safety.
2.
If a temporary use or event is proposed at a public park property, an application must be submitted to the Parks and Recreation Department along with any applicable fees and proof of insurance.
3.
Private events held on private property shall not require a temporary use permit.
Temporary outdoor sales are prohibited, except as provided here in. Excepted seasonal events involving outdoor sales of merchandise shall meet all appropriate requirements of the Building Code, Electrical Code, Fire (Life Safety) Code, and Plumbing Code, particularly regarding temporary sanitary facilities. Temporary outdoor sales are prohibited unless they have applied for and received all required permits in compliance with this Subsection. Firework, pumpkin, and Christmas tree sales may be in all nonresidential zoning districts except the Preservation and Public Zoning Districts subject to the following:
A.
Application. A complete application must be submitted to the Department of Community Development, along with a conceptual site plan.
B.
Dates and hours of operation:
1.
Firework sales may be operated from December 15 through January 1 and from June 1 through July 10;
2.
Pumpkin sales may be operated from October 1 through November 5;
3.
Christmas tree sales may be operated from November 15 to January 1; and
4.
Lots may be open from 8 AM to 10 PM.
C.
Parking and facilities.
1.
Temporary sales lots must provide five parking spaces per half acre. A paved parking lot shall not be required.
2.
Permission to place one or more tents (up to a total of 425 square feet in size) on the site, provided that the applicant provides proof of fire-retardancy and adequate tie-down measures with the application. Tents larger than 425 square feet shall require a separate tent permit. The location and setback of the tent(s) shall be shown on the conceptual site plan. If a sales trailer is being used in lieu of a sales tent, the sales trailer shall be handicap-equipped and accessible in accordance with the Florida Accessibility Code for Building Construction and ADA requirements and shall be anchored in accordance with all applicable building code standards.
3.
Permission to utilize an electric generator on site. A temporary electric pole shall not, however, be authorized by the temporary sale permit. A temporary electric pole shall require a separate permit to be applied for and issued to a licensed electrical contractor.
D.
The Director may approve temporary outdoor seasonal sales in the RML zoning district, if it is determined that such sale would not result in adverse impacts on the surrounding neighborhood. Approval of a season sale in the RML district may include conditions to protect the surrounding neighborhood from adverse impacts.
E.
The applicant shall request inspection by the city of the items authorized pursuant to this Section and shall receive approval thereof prior to beginning the sale activity. Inspection of items authorized pursuant to this Section shall be made by the Community Development and Fire Departments.
Unless otherwise permitted, outdoor display of merchandise is prohibited, except on improved property in accordance with the following conditions:
A.
All outdoor display of merchandise in non-residential districts are prohibited with the exception of the following items listed below when displayed in conjunction with an existing licensed business location which retails the items: boats; displays of new or used cars by auto dealerships or auto rental companies; bicycles; motorcycles; garden equipment such as lawnmowers, tillers, and edgers; landscaping nursery items displayed by a nursery business; tires as displayed in service stations; vehicles displayed as part of a temporary off-site vehicle sale approved pursuant to this Code; temporary sales approved pursuant to this Code; and seasonal fundraising events approved pursuant to this Code. In addition to the foregoing, the outdoor displays of fruit, vegetables, flowers, jewelry, books, or antiques are allowed in the South Cape zoning district. This restriction shall not apply to special events approved pursuant to the Code.
B.
All outdoor display of merchandise for sale, in non-residential districts is permitted with the following conditions:
1.
Except in the South Cape zoning district, such displays may be no closer than 10 feet to the front or rear property lines and five feet to side property lines or 15 feet to the side property line on corner lots.
2.
Displays may not placed in required parking areas.
3.
Displays may be placed on the public sidewalk subject to the following requirements:
a.
Displays may be placed only directly in front of the lawfully existing business which retails the items being displayed;
b.
Displays shall be placed on tables, shelves, or racks that are moved indoors during any hours the business is not open.
c.
Displays shall not impede pedestrian circulation, use of the sidewalk, or ingress and egress to nearby buildings.
C.
Outdoor display of merchandise for sale on vacant property is prohibited, except as permitted for seasonal events in accordance with Section 5.9.2. or special events in accordance with Section 5.9.10.
D.
All outdoor displays of merchandise must be approved the City Council. Notice of the Council meeting shall be mailed to surrounding property owners with 500' of the site in question.
Garage sales may be permitted on a private property in accordance with the following regulations:
A.
Garage sales are permitted to be held for a period not to exceed three days, on the basis of three such activities per residence per year, not to be held closer than 30 days apart.
B.
Prior to conducting a garage sale, the person conducting such sale is required to obtain a permit online from the city website or at the Code Enforcement Division. Such permit shall be posted or otherwise displayed on the property where the sale is being held to be visible from the street. In the event a garage sale is conducted without a permit, such sale shall be closed by the Police Department or the Code Enforcement Division, and shall remain closed until a valid garage sale permit is received from the city. Garage sale permits shall include authorization for on-site signs and off-site signs in accordance with applicable portions of the City of Cape Coral Land Development Code. On-site or off-site garage sale signs shall not be attached to any utility pole, street sign, tree, or other landscaping.
C.
The purchase of items for resale at a residence, which in essence establishes a residence as a second-hand store, is hereby prohibited.
D.
A violation of this Section shall be punishable by a fine of not less than $75 and not more than $250. Each day any violation of any provision of this Section occurs or continues shall constitute a separate offense. As an alternative, violators may be cited by a Code Enforcement Officer to appear before the Code Enforcement Special Master. In such event, violators shall be subject to fine(s) not to exceed $250 per day for first time violations or not to exceed $500 per day for repeat violations, as imposed by the Code Enforcement Special Master pursuant to the City of Cape Coral Code of Ordinances or the Florida Statutes. A person is subject to arrest if he or she refuses to close down a garage sale for which no valid permit is in effect.
A.
Construction trailers in residential zoning districts are subject to the following requirements.
1.
Construction trailers shall not be connected to potable water and sewer facilities. If the construction trailer is wired for electricity, the wiring must conform to all applicable city electric codes.
2.
The construction trailer must be removed from the site prior to issuance of a certificate of occupancy.
3.
No overnight residential use shall be permitted in a construction trailer.
4.
Construction trailers must comply with the setback requirements of the zoning district or the site.
5.
Construction trailers shall not be larger than 200 square feet.
B.
Construction trailers in non-residential zoning districts are subject to the following requirements.
1.
When a construction trailer is used as a temporary office, the trailer must be wired for electricity and must be connected to potable water and sewer facilities, if available. Wiring and plumbing must conform to applicable Electric and Plumbing Codes.
2.
The construction trailer must be located at the construction site or an abutting site with the property owner's written permission.
3.
The construction trailer must be removed from the site prior to issuance of a certificate of occupancy.
4.
No overnight residential use shall be permitted in a construction trailer.
5.
Construction trailers must comply with the setback requirements of the zoning district or the site.
A.
Contractor staging for essential public facilities. Contractor staging areas for materials used in construction of essential public facilities are permitted in all zoning districts, subject to the following requirements:
1.
The temporary staging area shall serve a project being carried out in the vicinity of the construction staging area;
2.
No land clearing, removal of vegetation, or fill shall occur to accommodate the staging area;
3.
All activities at the staging area shall occur between 7:00 a.m. to 7:00 p.m. Monday through Saturday only;
4.
Temporary fencing may be used to enclose the staging area;
5.
No structures other than a permitted construction trailer may be placed on the property; and
6.
No outdoor lighting is permitted for any staging area in a residential zoning district.
7.
The staging area shall be restored upon completion of the work and restoration of any damage to any City facilities, such as roadside swales, pipes, catch basins, pavement, signs, striping, etc.
B.
Construction staging areas. Construction staging areas are a permitted activity in all zoning districts, provided the staging area is on the same parcel where construction activity is authorized by a valid building permit. Construction staging areas on vacant, adjoining, or nearby parcels is prohibited.
C.
Post disaster debris staging areas. Post disaster debris staging areas are allowed in all zoning districts on sites designated by the City for such activity.
D.
Post disaster construction staging. Staging areas for post disaster reconstruction efforts are allowed in all non-residential zoning districts.
A.
Temporary sales offices are mobile structures used only for the sale or lease of units within that development. For the purpose of this section, units to be located within the development shall mean residential, non-residential, or mixed use habitable space or leasable floor area, whether occupying all of a building or individual area within a building including residential units, residential or non-residential units, individual units in a multi-unit non-residential development, or freestanding residential or non-residential structures.
B.
Requirements for a temporary sales office. The following requirements must be met prior to the approval of a temporary sales office:
1.
Connection to sewer and water is required. If sanitary sewer and potable water are unavailable to the site, bottled water and portable sanitary facilities may be utilized until such time as sanitary sewer and potable water are available. A temporary sales office shall be connected to such facilities within 90 days of availability or within 90 days of the permitted temporary sales office, whichever is less.
2.
The temporary sales office shall meet the setbacks of the zoning district in which it is located.
3.
A temporary sales office shall not be used as a place of habitation or abode by any person(s), and shall not be used or occupied for business, office, or other purpose(s) at any time except between the hours of 7:00 a.m. and 9:00 p.m.
4.
A minimum of three paved off-street parking spaces shall be provided for the temporary sales office.
5.
The entrance to the site on which the temporary sales office is located shall consist of a city approved driveway or construction entrance. Any impervious area added for the temporary sales office shall be subject to review and approval by the city.
6.
The base of any temporary sales office shall be fully obscured by landscaping and skirting. Shrubs must be planted on 30-inch centers and have a minimum planted height of two feet. The type of irrigation, if applicable, must also be provided on the plan. Erosion shall be minimized and prevented to the extent practicable around any disturbed area.
7.
The maximum duration of the permit shall not exceed one year. The Director may extend permits for up to six months each, based upon factors that include:
a.
Size of the project.
b.
Number of lots or units in the development remaining to be sold or leased.
c.
Effect that the extension would have on the surrounding properties.
d.
Developer's need for an extension and efforts, if any, the developer has put forward toward completion of the development (e.g., effort to complete construction in a timely manner, delays beyond the reasonable control of the developer, etc.).
8.
A temporary sales office shall be removed no later than the date the development is completed or within 30 days after notice by the city that the application for development has been denied, whichever is applicable.
C.
Permit application and submittal requirements. A permit shall be required for a temporary sales office. In order to obtain a permit for the use of a structure for a temporary sales office, the applicant shall submit the following to the Department of Community Development:
1.
A scaled drawing of the site, identifying the location of the temporary sales office with dimensions. Construction plans shall also be submitted.
2.
The names of the property owner and the operator of the temporary sales officer. In the event the operator is different from the property owner, written and notarized consent from the property owner must be submitted. Such written consent shall be revocable. In the event such consent is revoked, the temporary sales office shall be removed within 30 days.
3.
The length of time the temporary mobile sales office is proposed for the site.
4.
The description of potable water and sanitary facilities that will be available for the temporary office.
D.
Inspection by city officials. To ensure compliance with all applicable laws and regulations, the temporary sales office shall be held open for reasonable inspection, without court order, by employees or agents of the City of Cape Coral or any other duly authorized governmental agency.
A.
Temporary storage containers are prohibited in any zoning district of the city, except as follows:
1.
Residential zoning districts. No more than one temporary storage container per dwelling unit is permitted in residential zoning districts.
2.
Non-residential zoning districts. No more than two temporary storage containers are permitted in non-residential zoning districts. In the case of multi-tenant non-residential properties, each business or tenant may have a temporary storage container.
3.
This section is not intended to restrict the storage or location of temporary storage containers on the premises of a business which is lawfully engaged in the sale, rental, or distribution of such containers so long as the containers are on the property of such business as "merchandise" and not for temporary storage of items or goods.
4.
The provisions of this section shall not apply to prohibit or restrict the location of temporary storage containers on any property for which a valid City of Cape Coral building permit has been issued and is in effect provided that the construction on the property has not been abandoned or allowed to lie idle in violation of Article 5-2 of the City of Cape Coral Code of Ordinances.
B.
General Requirements:
1.
No temporary storage container may be placed in one or more parking spaces if the required number of parking spaces is reduced below the minimum number of spaces required for the site.
2.
No temporary storage container shall block or reduce access to fire lane(s), handicapped parking area(s), or drainage facilities or structures, including swales and catch basins.
3.
Temporary storage containers shall not be placed in an easement or in any area designated as a buffer.
4.
The maximum size of temporary storage containers shall not exceed ten feet in width, ten feet in height, or 40 feet in length.
5.
Non-residential zoning districts. Temporary storage container permits are valid for 30 days. A maximum of two temporary storage container permits may be issued for a property or, in the case of multi-use or multi-unit properties, for each business or commercial enterprise located on the property in any calendar year. Temporary container permits may run consecutively without any minimum period required to elapse between the issuance of permits.
6.
Residential zoning districts. Temporary storage container permits are valid for seven days. A maximum of two temporary storage container permits may be issued in any calendar year. Temporary container permits may run consecutively without any minimum period required to elapse between the issuance of permits. No dwelling unit shall utilize a temporary storage container for more than 14 days in any 12-month period.
A.
Purpose and intent. The purpose of this ordinance is to provide a means by which residents, business owners, governmental agencies, and medical facilities are able to live and conduct business on the same site as their damaged structure using temporary housing and temporary business structures. When disasters result in significant destruction rendering homes and businesses uninhabitable, temporary housing and temporary business structures will provide residents and businesses with the ability to quickly resume normal activities during the restoration of their permanent structures.
B.
Definitions. Terms used in this subsection shall have the meanings as defined in Article 11, Definitions, unless the context clearly indicates or requires a different meaning.
C.
Declaration of habitable structure emergency. Following a disaster, the city shall evaluate the effect of the disaster on the public health, safety, and welfare. If the City Council finds that the disaster has negatively affected residential housing or business structures in the city by a significant degree, the City Council may, by a majority vote, declare the existence of a habitable structure emergency. Upon the declaration of a habitable structure emergency by vote of the City Council, the provisions of this subsection shall become effective. The habitable structure emergency shall identify the disaster which created the emergency situation, and may be declared for either a specified period of time or an indefinite period of time. If the emergency is for an indefinite period of time, the emergency shall continue until City Council, by a majority vote, terminates the habitable structure emergency.
D.
Habitable structure emergencies. During a habitable structure emergency, the city will allow, in accordance with the provisions set forth herein, the use of temporary structures. Temporary residential structures and temporary business structures must be approved by the city with a temporary placement permit. Application and issuance criteria for a temporary placement permit are as set forth below.
E.
Temporary business structures may be used for business owners to provide a means for a business to remain open during the time the permanent business structure is being repaired or replaced. Temporary business structures may be used to provide temporary facilities for governmental uses, critical public facilities, charitable, religious, or educational institutions that have been rendered uninhabitable. The regulations for temporary business structures shall apply to temporary business structures used for governmental uses, critical public facilities, charitable, religious, or educational institutions. For these institutions, the habitable structure regulations shall apply; however, the Building Official may waive any regulations when strict enforcement may preclude them from carrying out their normal or emergency functions. Critical facilities shall be limited to the following:
1.
Federal, state, regional, or local government facilities;
2.
State, county, or local emergency operations centers;
3.
Police, fire, and emergency medical facilities;
4.
Radio and television stations;
5.
Public, semi-public, and privately-owned utilities;
6.
Hospitals, emergency medical care facilities, infusion centers, dialysis centers, physician's offices; and
7.
Nursing homes and assisted living facilities.
F.
Temporary placement permit. Following the declaration of a habitable structure emergency, a property owner may apply for a temporary placement permit (TPP) to locate onsite while the permanent structure is being repaired or rebuilt. A temporary placement permit (TPP) may be considered by the Building Official when the following criteria are met:
1.
The existing permanent habitable structure has been determined to be uninhabitable as the result of a disaster by inspection of the city Building Official;
2.
The property owner or occupant of a damaged structure desires to locate in a temporary residential or business structure; and
3.
A habitable structure emergency must be in effect at the time of application.
G.
Applications for temporary placement permits.
1.
Application forms and required fees.
2.
The following permits are required prior to application for a TPP:
a.
City permits for hook-up to electric, potable water, and wastewater utilities; and
b.
A State Department of Health or State Department of Environmental Protection permit authorizing the connection of the temporary residence to an onsite or small domestic wastewater treatment system.
H.
Time limits. Temporary structures may be located for a period not to exceed 30 days. At the end of that 30-day period, if no application has been filed, the temporary habitable structure must be immediately removed from the site. If an application has been filed within the 30-day time period, the temporary habitable structure may remain in place until the TPP is either approved or denied. Once approved, the temporary habitable structure may remain in accordance with the TPP. If denied, the temporary structure shall be removed within five days from the date of denial.
I.
Terms of use of temporary habitable structures. Applicants for a temporary habitable structure shall be subject to the following:
1.
Except as otherwise provided herein, temporary structures shall not be occupied until such time as a valid TPP has been issued and is in effect for the site.
2.
Connection to sanitary sewer and potable water, or onsite water and wastewater facilities, and an external electrical system are required within 20 days of issuance of the TPP. Inspections for such connections shall be called into the city within two days of completion of each connection. Electrical and plumbing connections must be done by electricians or plumbers licensed to do business in the City of Cape Coral. If there is no electricity to the site due to a power outage, a generator may be used. Upon restoration of electricity to the property, connection to the local power grid must be made within 24 hours of power restoration.
3.
An application for a building permit is required within three months from the date of issuance of the TPP for temporary residential structures or within six months for temporary business structures. Failure to apply for a building permit within the required time shall deem the TPP revoked pursuant.
4.
If a building permit application has not been submitted within the required time-frames, an applicant may petition City Council for relief from the time restrictions of this subsection. City Council shall determine whether the failure to apply for a building permit is due to good cause shown by the applicant. If City Council denies the request for relief, the temporary structure shall be removed from the site within ten days from the date of denial, or at the end of the initial three-month period for temporary residential structures, or at the end of the initial six-month period for temporary business structures, whichever is later.
5.
Temporary habitable structures with a TPP may be used until the earlier of: 1) completion of the rehabilitation or reconstruction of the damaged structure; or 2) until such time as the owner or occupants of the damaged structure are established in a permanent structure at another location.
6.
Occupants must comply with all mandatory hurricane evacuation requirements.
J.
Temporary structures. Temporary habitable structures must comply with the following:
1.
Temporary residential structures may consist of a recreational vehicle or a travel trailer. Temporary business structures may consist of recreational vehicles, travel trailers, or mobile offices. At the discretion of the Building Official, additional types of temporary business structures may be allowed, consistent with applicable federal, state, and local regulations and the provisions of this ordinance.
2.
Must meet all applicable National Fire Protection Association and Life Safety codes and regulations as well as all applicable state and local requirements for tie-downs.
3.
Shall contain plumbing (both water and wastewater) and electrical connections and shall be capable of being hooked up or attached to external plumbing and electrical systems. Temporary residential structures shall contain a kitchen capable of being hooked up or attached to external plumbing and electrical systems. Requirements for temporary business structures shall be based upon the proposed use.
4.
Shall meet the Florida Accessibility Code for building construction amenities.
L.
Placement of temporary habitable structures. The following site considerations are required for placement of a temporary habitable structure:
1.
Temporary residential structures may be anywhere on the site of the existing permanent residence; however, no a temporary residence is allowed within road rights-of-way or drainage or utility easements. The city may waive any development regulations regarding lot areas, dimensions, setbacks, lot coverage, height, and open space to accommodate temporary residential structures.
2.
Where more than one existing permanent residence has been rendered uninhabitable, the Building Official may allow up to the number of damaged permanent residences or residential units on the site. Such determination shall be based upon consideration of life, health, and safety requirements.
3.
For temporary business structures:
a.
Temporary business structures may be anywhere on the parcel of the existing business; however, temporary business structures are not allowed within road rights-of-way or drainage or utility easements. The city may waive any development regulations regarding lot areas, dimensions, setbacks, lot coverage, height, and open space to accommodate temporary business structures.
b.
Temporary business structures may be on property adjacent to the permanent business structure if a notarized, written consent from the property owner is submitted at the time of application for a TPP.
c.
The establishment of an emergency response team center on a parcel containing a business does not necessarily preclude the placement of one or more temporary business structures on the same parcel.
d.
Parking for a temporary business structure shall be provided based upon the square footage of the temporary business structure, including handicapped parking. However, a minimum of two handicapped parking spaces must be provided.
e.
The entrance to the site shall have a city approved driveway or construction entrance. Any impervious area added for the temporary business structure shall be subject to review and approval by the city.
f.
Additional conditions or restrictions may be placed on a temporary business structure as a condition of issuance in areas including, but not limited to, the following:
i.
Hours of operation;
ii.
Traffic control and access;
iii.
Lighting; and
iv.
Noise control.
M.
Issuance and revocation. The Building Official may revoke a TPP upon finding that any of the following has occurred:
1.
Failure to connect to water, sewer, and electrical within 20 days of the receipt of the TPP.
2.
If an application for a building permit has not been submitted within required time from the date of receipt of the TPP, or relocation has not occurred before the time of expiration of the TPP, or, if a building permit later expires.
3.
If, upon inspection by the Building Official, a temporary residence is not in compliance with the requirements of this subsection.
4.
Failure to evacuate temporary residence during mandatory evacuation orders.
5.
Upon revocation of a TPP, the temporary residence must be vacated and the temporary residence removed within five days of revocation. Failure to vacate or remove the temporary residence constitutes a violation subject to the penalty imposed herein.
N.
Extensions and expiration of temporary placement permits.
1.
Residential TPPs shall be valid for six months from the date of issuance. The Building Official may, for good cause shown, issue up to two extensions for six months each, for an 18-month maximum period of validity from the date of issuance.
2.
Non-residential TPPs shall be valid for nine months from the date of issuance. The Building Official may, for good cause shown, issue up to two extensions for six months each, for a 21-month maximum period of validity from the date of issuance.
3.
All applications for extensions of time must be submitted prior to the date of expiration of the current TPP.
4.
Any further extensions after the second extension and maximum time period may not be issued by the Building Official: however, applicants may submit a request to City Council for their approval of any further extension of time for the TPP.
5.
Factors to be considered by the Building Official or the City Council in determining whether to grant an extension of time of the TPP shall include:
a.
The ability of the property owner or occupant of the temporary residential or business structure to secure permanent quarters; and
b.
Any hardship that, in the opinion of the Building Official or City Council, as applicable, would warrant a further extension of the TPP.
6.
Upon the, expiration of a TPP, a temporary residence or business structure must be removed or placed in proper storage on the property within 30 days. Failure to remove or properly store the temporary residence or business structure constitutes a violation subject to the penalty imposed herein.
7.
Termination of temporary habitable structure. Once an uninhabitable structure has been issued a certificate of occupancy or certificate of use for a new or rehabilitated residence, business, or institutional facility, the TPP shall be deemed to be terminated. A temporary residential or business structure must then be removed or placed in proper storage on the property within 30 days. Failure to remove or properly store the temporary residence or business structure constitutes a violation subject to the penalty imposed herein.
8.
Penalty. Any violation of the provisions of this subsection shall be subject to a $500 fine. Each day of violation shall constitute a separate offense and shall be punishable as such.
The display of vehicles, including, but not limited to, automobiles, trucks, vans, recreational vehicles such as camping trailers, motorcycles and recreational terrain vehicles, and water craft such as boats, jet skis and wave runners, displayed for the purpose of sale, lease, trade or rental, shall be permitted at an off-site location (that is, on an improved property that is not the approved location of the business).
A.
Temporary Off-Site Vehicle Sales shall adhere to the following requirements:
1.
The commercial establishment seeking the temporary sale permit must have the written permission of the owner, or an authorized representative of the owner, of the property on which the temporary sale will be conducted. The written permission shall state that, as a condition of the city's issuance of a permit for the temporary sale, the property owner agrees to be responsible for any damage to the city's right-of-way or utility systems as a result of the sale and that any such damage shall be repaired at the expense of the property owner. In addition, such written permission shall also state that, in consideration of the city's issuance of the permit, the property owner shall hold the city harmless from any claim, loss, damage, or cause of action that arises because of the temporary sale or the issuance of the permit therefore, including any loss or damage to the owner's property or improvements thereon. Such written permission shall have a notarized signature and shall be filed with the Department of Community Development.
2.
The duration of any such temporary sale shall not exceed five consecutive days.
3.
The property on which the off-site sale is conducted shall not have been used for temporary off-site sales for more than six occasions in the preceding one-year period.
4.
Temporary sales shall only be conducted between the hours of 8:00 a.m. to 9:00 p.m.
5.
The display of vehicles and the operation of the temporary sale shall not interfere with the normal parking and traffic circulation of the business(es) located on the site.
6.
The temporary off-site vehicle sales permit shall, at all times during the permitted time period authorized for the sales, be displayed on the site upon which such sales are being conducted.
7.
No temporary sale shall begin until a permit therefore has been approved and issued by the city and all fees are paid in accordance with the city's adopted fee schedule. Prior to the issuance of a temporary sale permit, a complete application must be submitted to the Department of Community Development, along with a conceptual site plan. In addition to the proposed site layout and setbacks, the conceptual site plan shall address vehicular traffic and parking measures, fire protection measures, sanitary facilities and lighting and areas of electric needs. The temporary sale permit shall include, as applicable:
a.
The right to erect one sign or banner, a maximum of 32 square feet in size, or two such signs or banners for properties having frontage on more than one street. In lieu of such sign(s) or banner(s), the applicant may display an inflatable object in accordance with Article 7 of this code. The applicant shall include with the application sign details such as the placement of the sign and anchoring or tie-down measures. The placement and anchoring of the means of advertisement shall not interfere with the visual safety of motoring traffic.
b.
Permission to place one or more tents (up to a total of 425 square feet in size) on the site, provided that the applicant provides proof of fire-retardancy and adequate tie-down measures with the application. Tents larger than 425 square feet shall require a separate tent permit. The location and setback of the tent(s) shall be shown on the conceptual site plan. If a sales trailer is being used in lieu of a sales tent, the sales trailer shall be handicap-equipped and accessible in accordance with the Florida Accessibility Code for Building Construction and ADA requirements and shall be anchored in accordance with all applicable building code standards.
c.
Permission to utilize an electric generator on site. A temporary electric pole shall not, however, be authorized by the temporary sale permit. A temporary electric pole shall require a separate permit to be applied for and issued to a licensed electrical contractor.
d.
The applicant shall request inspection by the city of the items authorized under this section and shall receive approval thereof prior to beginning the off-site sale activity. Inspection of items authorized pursuant to subparagraphs a. through c. shall be made by the Department of Community Development. Items authorized pursuant to subparagraphs b. and c. shall also be made by the Fire Department.
B.
Any other outdoor display on improved property must be approved by City Council and is subject to review annually at the discretion of Council, except that the City Manager may approve requests for temporary displays of no longer than five days duration no more than two times per calendar year for any location or applicant when he or she is satisfied that the request would be in keeping with the harmony of the zoning district and that it would violate none of the ordinances of the City of Cape Coral.
A.
A tent may be permitted to be erected for a for a maximum of five days for an event.
B.
A tent permit is required, and the application must include the following information.
1.
A site plan showing tent location(s) with the dimensions from the property lines, existing structures, location of equipment, all streets, entrances, exits, parking areas, and restroom facilities;
2.
Notarized agent authorization from the property owner;
3.
Proof of current liability insurance; and
4.
If required, proof of sanitary facilities (port-o-let) or a letter from a neighboring business stating that restroom facilities are available for their use and the hours of operation are compatible.
C.
Review Criteria. All tent permits will be reviewed for zoning compliance, compliance with applicable building and fire code requirements, and a City Business Tax Receipt.
A person desiring to hold any temporary event, not listed herein, shall contact the Community Development department regarding the necessity of a permit and any additional permissions that may be required.
A.
Temporary seawall construction staging in residential zoning districts. Temporary off-site staging areas for seawall construction are allowed in residential zoning districts subject to the following requirements:
1.
Requirements for temporary seawall construction staging areas:
a.
Time limits. Temporary seawall staging areas may be permitted for up two years;
b.
Allowable storage of materials. Only materials used in the repair or reconstruction of seawalls may be stored on the permitted staging site. Materials shall not be located in the side yard setbacks of the staging site. All rubble or debris shall be stored in dumpsters;
c.
No land clearing, removal of vegetation, or fill shall occur to accommodate the staging area;
d.
All activities at the staging area shall occur between 7:00 a.m. to 7:00 p.m. Monday through Saturday only. No work shall occur on New Years Day, July 4 th , Thanksgiving, or Christmas Day;
e.
No structures other than a permitted construction trailer may be placed on the property;
f.
No outdoor lighting is permitted for any staging area in a residential zoning district;
g.
The permittee shall be responsible for restoration of the staging area upon completion of the work and restoration of any damage to any City facilities, such as roadside swales, pipes, catch basins, pavement, signs, striping, etc.;
h.
Barges may not be docked or moored in any manner that obstructs navigation or use of docks or boats; and
i.
Prohibited on-site activities. The following activities are prohibited:
i.
Jackhammering or other methods of breaking up concrete or other demolition debris from damaged seawalls;
ii.
Grinding or saw cutting of concrete or rebar debris; and
iii.
Any dust creating operations.
2.
Permit application and submittal requirements. A permit shall be required for a temporary seawall staging area. The applicant shall submit the following information to the Department of Community Development:
a.
A scaled drawing of the site showing the location of all material to be stored or staged for construction;
b.
The name and notarized written consent of the property owner(s). Such written authorization may be revoked at any time;
c.
The length of time the site is to be used for staging, including post-staging clean up; and
d.
The name, address, and contact information for the person(s) responsible for the staging area activities.
3.
Notice to Neighbors. Mailed notice to surrounding property owners is required for any individual seawall staging area expected to be used for a period exceeding nine months. The notice shall be mailed to all property owners of record in a 500' radius from the site. The applicant shall be responsible for the cost of notice.
4.
Extensions and expiration of seawall staging areas. Seawall staging area permits shall expire two-years from issuance unless an extension is granted. Permitted staging areas may apply for a (1) one-year extension.
5.
Inspection by City officials. In order to ensure compliance with all applicable laws and regulations, temporary seawall construction staging areas shall be held open for reasonable inspection, without court order, by employees or agents of the City of Cape Coral or any other duly authorized governmental agency.
6.
Penalty. Any violation of the provisions of this subsection shall be subject to a $500 fine. Each day of violation shall constitute a separate offense and fines.
A.
The uses listed in this chapter are deemed to be appropriate uses when developed and operated in accordance with the requirements listed within each Section. Approval may be granted administratively as long as the requirements are met and maintained. The applicant shall provide all documents necessary to prove that the requirements are met prior to receiving approval to operate and on an ongoing basis as required for the specific use.
B.
The landscape standards of this chapter are in addition to any landscape standards established in Chapter 5, Landscaping, of this Article.
A.
Requirements. All craft breweries, distilleries, or wineries which produces alcoholic beverages for consumption on premise or provide retail sales, shall comply with the following requirements:
1.
The business owner shall submit semi-annual production records to the Department of Community Development for all alcohol and nonalcohol products produced within the establishment.
2.
All mechanical equipment used in the alcohol production process shall be behind a wall or fence that separates the equipment from any property line abutting a public street other than an alley when viewed along a line perpendicular or radial to such property line. The wall or fence shall be opaque and have a minimum height of six feet.
3.
Loading and unloading areas shall be provided to the side or rear of the building. Loading and unloading areas shall not be along the front of the building.
4.
Spent or used grain or similar wastes may be placed outdoors for a period not to exceed 24 hours. The temporary stockpiling for spent or used grain shall be:
a.
Clearly shown on a detailed dimensional and labeled drawing that depicts the location of the stockpiled spent grains on the property and the distance of the stockpiled grains from the property lines and the building containing the artisan brewery, distillery, or winery;
b.
Located only along the side or rear of the building; and
c.
Fully enclosed in containers that are behind an opaque wall or fence. The wall or fence shall have a minimum height of six feet. Cargo containers and tractor trailers shall not be utilized for the temporary stockpiling of spent or used grains even if the cargo containers and tractor trailers are behind an opaque wall or fence.
B.
Waiver of requirements.
1.
Permitted and Conditional Uses. To encourage the repurposing of existing buildings in the NC or SC districts, any craft brewery, distillery, or winery that is approved as a permitted use, the provisions of this Section may be waived in part or in their entirety by the Director for the purpose of spurring economic development based on the criteria contained in Subsection 2.
2.
Criteria. In determining whether to waive one or more of these standards the Community Development Director shall utilize the following criteria:
a.
The visibility of the mechanical equipment and loading areas from any public street(s).
b.
The proximity and visibility of the mechanical equipment and loading areas from existing residential development.
c.
The existence of site conditions that are not the result of the applicant and which are such that a literal enforcement of the regulations involved would result in unnecessary or undue hardship.
d.
The effect other regulations would have on the proposed development or other locational factors that may make compliance with this Section impossible or impracticable.
e.
The annual production of alcohol anticipated to be produced by the establishment.
f.
The size and extent of the equipment requiring screening.
Duplexes and Single-family Semi-detached dwellings must meet the following conditions:
A.
All duplexes or single-family semi-detached dwellings on parcels less than 20,000 square feet in area must be served by public water and sewer.
B.
All duplex and single-family semi-detached dwelling parking areas and driveways in the RML zoning district shall conform to one of the following Duplex Driveway and Parking Design Standards:
C.
Duplex structures in the RML zoning district may not be sold, subdivided, or conveyed by deed into individually owned parcels or dwelling units.
D.
Landscaping shall be provided at a rate of two trees and six shrubs per each 2,500 square feet of the lot. A portion of the required landscaping shall be placed in the locations shown on the Duplex Driveway and Parking Design Standards.
E.
All duplexes and single-family semi-detached structures shall incorporate three of the following design elements into each dwelling unit:
1.
Dwelling entry as the primary façade feature;
2.
Garage door recessed from the front façade, a preferred minimum of four feet;
3.
Horizontal eaves broken up with gables, projection, and articulation;
4.
Projecting eaves and gables, related to building massing;
5.
Building massing and roof form which articulate individual unit definition;
6.
Offset of four feet where two garage doors are adjacent to each other; or
7.
Projections and decorative elements, such as trellises, for visual interest.
F.
Duplexes on corner lots that have at least one dwelling unit entry on the side of a duplex shall not be required to provide a turn-around or a bump-out driveway on a 2-lane street.
G.
As an alternative to the design requirements of subsection B, above, a duplex or single-family semi-detached dwelling unit in the RML zoning district may provide a two-car garage for each dwelling unit.
Editor's note— Ord. No. 69-21, § 3, adopted Oct. 20, 2021, repealed § 5.10.4, which pertained to home occupations and derived from the Original Land Development Code.
Editor's note— Ord. 29-20, § 2, adopted May 11, 2020, repealed § 5.10.5, which pertained to RV resorts and derived from the Original Code.
Roadside food and vegetable stands shall be subject to the following requirements:
A.
Must meet the minimum building setback requirements for the district;
B.
May be in operation during daylight hours only;
C.
Shall provide a designated parking area at the side or rear of the roadside food and vegetable stand sufficient to accommodate ten vehicles;
D.
Shall be no larger than eight feet by 32 feet in dimensions, and must be structurally sound;
E.
Must meet state, county, or local access requirements;
F.
May sell fruits, plants, and vegetables only;
G.
Must be built with tie downs capable of withstanding 110 mph winds; and
H.
Must contain adequate toilet facilities.
Accessory parking lots shall meet the following requirements:
A.
Accessory parking lots on RML property shall be used only in connection with an existing use or structure in the C, CC, or P zoning districts.
B.
The parcel shall meet minimum dimensional requirements.
C.
The lots in the RML, C, CC, and P zoning districts proposed for accessory parking shall be composed of contiguous lots in that district and owned by the commercial or professional property owner or corporation served by the parking site. For purposes of this section, lots separated only by a platted alley shall be deemed contiguous.
D.
A minimum of 40% of the required parking spaces for the use shall be in a Commercial or Professional zoning district. The number of required parking spaces shall be determined by Article 6.
E.
The location of accessory parking lots shall be immediately to the rear, or across any platted alley, and within the extended side yard lot lines of the property that the parking is intended to serve.
F.
Driveways from accessory parking in RML, C, CC, and P areas to streets with abutting R-1 zoning shall not be permitted. However, commercial property fronting on Del Prado Boulevard or Santa Barbara Boulevard with full block depth and abutting R-1 zoning, shall be permitted one driveway access to the street with abutting R-1 zoning, in accordance with the City of Cape Coral Engineering Design Standards.
G.
The driveway shall be included in any traffic impact study for the property to determine the impact of commercial traffic on the local street and its intersections and if improvements are needed.
H.
Where necessary for safe and efficient turn movements, the city may restrict certain turn movements at the driveway accessing the street with abutting R-1 zoning.
I.
The parking area shall be classified as part of the entire non-residential building site.
J.
A landscape plan for the accessory parking areas in RML, C, CC, and P zoning shall be submitted with the application for this use. Landscape plans shall be drawn to scale, including dimensions and distances, and shall clearly delineate:
1.
Existing and proposed parking spaces, or other vehicular use areas, access aisles, driveways, and ingress and egress points;
2.
The location and floor area of existing building(s) to be served;
3.
The source of water supply for plantings and materials to be installed or, if existing, to be used in accordance with the requirements hereof.
4.
All parking areas shall be landscaped in accordance with the requirements of Section 5.5.13 of this Article.
5.
There shall be a minimum of seven feet of green area in side setbacks and ten feet of green area in setbacks from street lot lines which face residential areas.
6.
There shall be a continuous undulating 18 inch to three feet high by five feet deep berm of earth extending along the property facing streets.
K.
Lighting. If any parking areas are artificially lighted, they shall be so designed and arranged that lighting is primarily directed on-site. Such areas shall not be lighted at any time other than during the same hours that the use to which the parking is appurtenant is open for business, except for necessary security lighting.
L.
Stormwater Management. All parking areas shall incorporate appropriate stormwater quality design features to be reviewed with the SDP application.
(Ord. 29-20, § 3, 5-11-2020)
Solar Arrays shall meet the following requirements:
A.
These facilities may only be permitted in the Agriculture, Institutional, or Industrial zoning districts.
B.
Solar Arrays may only be permitted on lots over one acre in size.
C.
Must maintain appropriate security fencing and signs for protection.
D.
Solar Arrays shall be effectively screened with a fence, landscape material, or a combination thereof, where visible from an abutting property or right-of-way as determined by the Director.
1.
The structures may be screened with an opaque wall or fence, up to the height allowed in that zoning district.
2.
Alternatively, the structures may be screened with shrubs that meet the following requirements:
a.
A row of shrubs shall be planted along all sides of the facility for which screening is required.
b.
All shrubs required for screening shall be a minimum of 32 inches in height and be in at least a seven-gallon container size at the time of planting. All shrubs shall be planted at a spacing of three feet apart as measured on center.
c.
All shrubs shall be maintained at a minimum height of six feet at maturity and shall be maintained in good condition as long as the structures requiring screening remain.
d.
An adequate combination of the two screening options may be permitted.
Vehicle Sales, Light must meet the following requirements:
A.
The minimum parcel size shall be 2 acres.
B.
Vehicle Sales, Light shall be a standalone use only.
C.
All display areas must be on an impervious surface such as asphalt or concrete.
D.
All repairs must be ancillary and must be conducted within a building.
E.
Other than vehicles, no outdoor display of any other items shall be permitted.
Wireless Communication Facilities are permitted with the following requirements:
1.
Adequate documentation that co-location on an existing approved tower or on an existing building or structure, has been attempted and is not feasible. Such documentation shall include:
2.
The results of a designed service study demonstrating to the satisfaction of the city that the equipment planned for a proposed communication tower cannot be accommodated on an existing or approved and un-built structure.
3.
The designed service study analysis shall be based upon a search area radius of three-quarters of a mile minimum distance from the location of the intended WCF or tower, including areas outside the City of Cape Coral. At the discretion of the city, based on the city's knowledge of existing co-location opportunities, the city may allow an applicant to provide an affidavit from a professional radio frequency engineer which establishes the search area diameter for the proposed WCF or tower location and identifies all other alternatives in the area. Further information may be required by the city on the ability of the WCF or tower to be accommodated on specific sites within three-quarters of a mile of the proposed WCF or tower.
4.
When co-location is determined by staff to be infeasible, the determination shall be based upon the results of the designed service study and other evidence provided by the applicant documenting one or more of the following reasons:
a.
Structural limitation. The proposed equipment would exceed the structural capacity of the existing or approved structure, as documented by a licensed professional engineer, and the existing or approved structure cannot be reinforced, modified, or replaced to accommodate the planned or equivalent equipment at a reasonable cost.
b.
Interference. The proposed equipment would cause interference or obstruction materially impacting the usability of other existing or planned equipment at the tower or building as documented by a qualified professional and the interference or obstruction cannot be prevented at a reasonable cost.
c.
Insufficient height. Existing or approved towers and buildings within the search radius cannot accommodate the planned equipment at a height necessary to function reasonably as documented by a licensed, if applicable, professional.
d.
Lack of space. Evidence from the applicant, verified by a licensed professional, of the lack of space on existing towers or other structures within the search radius to accommodate the proposed facility.
e.
Other factors. Other reasons that make it unfeasible to locate the planned equipment upon an existing or approved tower or building as documented by a qualified and licensed, if applicable, professional.
f.
Technical consultants. The city shall have the right to retain independent technical consultants and experts that it deems necessary to properly evaluate applications for wireless telecommunications facilities or towers and to charge reasonable fees as necessary to offset the cost of such evaluations.
In addition to any other applicable requirements provided elsewhere in the Land Development Code, an application for a communication tower shall include the following:
A.
Fall zone. In the event of a catastrophic failure or collapse, towers shall be designed to collapse within an engineered fall zone lying wholly within the lot lines of the parcel containing the tower. Such fall zone shall be certified by a professional engineer, licensed in the State of Florida.
B.
Tower design for co-location. A proposed tower shall be designed to allow for future rearrangement of antennas, to provide space for antennas to be mounted at varying elevations, and to accommodate co-location.
C.
Monopoles or stealth. All towers shall be monopoles or stealth design.
D.
Illumination. A tower shall not be artificially lighted except as may be required by federal or state regulations.
E.
Surface or finish color. All towers shall be painted or have a non-contrasting finish that minimizes the visibility of the facility from public view, except where contrasting color is required by federal or state regulation. In addition, the exterior of support facilities shall be designed to be compatible with the architectural design prevailing among the structures in the surrounding developed area.
F.
Sign. The main access gate in the tower shall have affixed to it a sign not to exceed two feet by three feet in size which displays the owner's or permittee's name and an emergency telephone number.
G.
Maximum height. The maximum height of towers shall be 100 feet if the tower is designed for one service provider, 120 feet if the tower is designed to accommodate two service providers, or 140 feet if the tower is designed to accommodate three or more service providers.
H.
Landscape screening. The accessory components to the tower shall be screened from view by shrubs maintained at a height of six feet, immediately adjacent to the fence surrounding the facility and minimum of eight trees planted outside of the shrub buffer
Model Homes shall meet the following requirements.
A.
Model homes are intended to facilitate the sale of the model design, or products similar in design to the model and is not intended to allow the full scope of real estate activities and shall be restricted primarily to the sale and marketing of the model, or products similar to the model. Model homes shall be permitted as a temporary, conditional use, not to exceed 10 years, in residential zoning districts (R1, RE, RML) or within a Planned Development.
B.
A model home must meet all of the zoning and building requirements for a residence in that zoning district as well as the following:
1.
Parking. Three off-street vehicular parking spaces, including the garage, shall be provided on the model site or on an adjacent vacant property.
2.
On-site parking. A parking space may be provided in the garage. A handicap parking space is required and shall count as one of the three required spaces.
3.
Off-site parking. Adjacent vacant single-family lot(s) may be used for model home parking. A plan to provide parking on an adjacent parcel shall require ownership by the same or an affidavit of authorization from the property owner as well as a surety deposit payable to the City of Cape Coral to convert the property back to a residential or other permitted use when the structure is converted or sold. The deposit shall cover the costs associated with the conversion of the parking lot. The deposit shall be based on no less than 110% of the estimated cost by a professional engineer licensed in the State of Florida which shall be signed and sealed by the engineer, and found to be acceptable to the City. Funds and resulting interest shall be returned upon conversion of the site to a residential or other permitted use, the entire amount if the work is completed by the applicant, or the remaining funds if the City completes the work.
4.
A hedge row of at least 36 inches in height shall be planted and maintained around the vehicular parking area.
5.
On-site or off-site parking shall be a paved or approved impervious surface with appropriate signs and markings, including handicap parking.
6.
Treatment of stormwater runoff will be required for the first inch of runoff from the paved area associated with the parking lot area only.
7.
Model home parking lots require a Limited Site Development Plan approval prior to construction.
C.
Handicapped standards shall be met throughout the home, including access per the Florida Building Code and handrail and grab bar requirements.
D.
Garage office. For any garage being used as an office for a model home the applicant must submit the following:
1.
Plan of garage-office facility, including false walls, temporary electrical and plumbing.
2.
Plan showing how garage will be returned to its original use.
3.
$10,000.00 refundable surety to ensure that the garage is converted back to the FEMA standards for single-family home usage.
E.
Sign standards as defined in Article 7 of this code.
F.
Upon completion of the construction and approval of the unit as a model home, a "temporary certificate of occupancy" will be issued to the owner of the model home to remain open for a period of five years. Extensions beyond this five-year temporary certificate of occupancy may be granted for the structure in the event an extension is approved for the model's permit by the Director of Community Development. The initial approval and maximum extension will allow the use of an individual model home to exist for a cumulative 10 years. The decision to extend the initial permit shall be pursuant to the following considerations:
1.
The number of existing model homes within the immediate area of the extension request and impacts of those on the neighborhood.
2.
The adequacy of the right(s)-of-way upon which the model home fronts.
3.
The character or makeup of the area surrounding the model home.
4.
The potential effect of the model home on adjacent and surrounding properties.
5.
The existence of complaints relating to that model home.
6.
A demonstration of good cause from the applicant why the extension request is needed.
7.
Approval as a model home shall be recorded against the title.
Buildings and construction with outdoor storage and display shall meet the following requirements:
A.
No storage or display shall be in fire lanes or required parking areas.
B.
Materials or equipment that are brought inside a building overnight shall not be considered as display.
Editor's note— Ord. 67-24, § 2, adopted Oct. 16, 2024, repealed § 5.10.16, which pertained to self-service storage facility and derived from Ord. 11-20, § 1, adopted April 20, 2020; and Ord. 21-23, § 1, adopted March 15, 2023.
Marine fuel pump uses in the C, I, INST, CC, NC, MX7, MXB, or SC Districts shall meet the following requirements. Properties that are owned by the City of Cape Coral shall be exempt from these requirements.
A.
The minimum parcel area shall be two acres.
B.
The site shall abut a waterway with a minimum width of 150 feet.
C.
The site shall have a minimum of 200 feet of continuous water frontage.
D.
A marine fuel pump use shall be an accessory use to a commercial establishment on the site.
E.
Except for a use classified as a marina, a marine fuel pump use shall not be used in conjunction with boat repair or boat storage.
(Ord. 20-24, § 3, 6-5-2024)
A.
Purpose and Intent
1.
To provide standards and criteria for review and approval of specified conditional uses for a specific site.
2.
To provide reasonable limitations or special conditions for conditional uses, in order to address, minimize, or ameliorate potential impacts of the use on surrounding property and for the protection of the public health, safety, and welfare.
B.
General Requirements. Proposed conditional uses must meet the following requirements:
1.
The conditional use standards identified in Article 4 for the specific zoning district use and conditional use in question.
2.
The proposed conditional use will not result in development that is inconsistent with the intended character of the applicable zoning district.
3.
A listed conditional use that does not meet the applicable conditional use standards may apply for approval as a Special Exception.
C.
Review Criteria. A Conditional Use may be approved by the Director based on criteria identified in Article 4. These criteria are specific to each conditional use.
Brewpubs in the MXB district must meet the following conditions:
A.
The area used for brewing, bottling, and kegging of all beverages produced by the establishment shall not exceed 40 percent of the total floor area of the restaurant, bar, or nightclub, or exceed a total floor area of 2,500 square feet devoted for brewing, bottling, and kegging, whichever is less.
B.
An interior floor plan shall be submitted that clearly shows the area of the building that will be devoted to the brewing, bottling, and kegging component of the establishment.
C.
No outdoor storage shall be allowed including the use of portable storage units, cargo containers, and tractor trailers, except as follows: spent or used grain may be placed outdoors for a period not to exceed 24 hours. The temporary stockpiling for spent or used grain shall be:
1.
Clearly shown on a detailed dimensional and labeled drawing that depicts the location of the stockpiled spent grains and the distance of the stockpiled grains from property lines and the building containing the brewpub;
2.
Placed only along the side or rear of the building; and
3.
Fully enclosed in containers that are screened behind an opaque wall or fence. The wall or fence shall have a minimum height of six feet.
Single-family attached dwellings in the RML, CC, NC, MX7, MXB, or SC zoning districts must meet the following conditions:
A.
The number of linearly attached units must be between three and nine.
B.
Landscaping shall be provided at a rate of two trees and six shrubs per 2,500 square feet of lot, rounding up to the next full number.
C.
Three of the following design elements shall be incorporated into each dwelling unit:
1.
Dwelling entry as the primary façade feature;
2.
Garage door recessed from the front façade, a preferred minimum of four feet;
3.
Horizontal eaves broken up with gables, projection, and articulation;
4.
Projecting eaves and gables, related to building massing;
5.
Building massing and roof form which articulate individual unit definition;
6.
Offset of four feet where two garage doors are adjacent to each other; or
7.
Projections and decorative elements, such as trellises, for visual interest.
D.
In the SC zoning district, single-family attached dwellings are only permitted on sites with frontage along local streets, as identified in Section 4.2.15.B.1.
E.
In the CC zoning district, single-family attached dwellings on sites with frontage along Pine Island Road shall meet the following criteria, in addition to the other requirements of this section:
1.
Size. Developments must contain a minimum of four acres of land as shown in Table 4.1.3.B.
2.
Density. Minimum density of ten units per acre without exceeding 25 units per acre. Each project must have a minimum of 50 total units as shown in Table 4.1.3.A.
3.
Pine Island Road Setback. On sites exceeding 200 ft in width as measured at the front property line on Pine Island Road, single-family attached dwellings must be set back at least 250 feet from the Pine Island Road right-of-way. Improvements associated with single-family attached dwellings in the setback area shall be limited to the following: driveways and drive isles, signs allowed under Article 7, and landscape buffers. Stormwater treatment areas shall be prohibited in the setback area unless the stormwater system is shared with a non-residential use located in the setback area.
a.
Reductions to the minimum setback requirement based on parcel configuration. Reductions to the minimum setback requirement of 250 feet for single-family attached dwellings may be approved by the Director. In determining whether a particular request should be approved, the Director shall consider the following:
i.
Whether an irregular or unusually shaped parcel creates a hardship in developing a single-family attached dwelling behind the minimum required setback.
ii.
Whether the presence of a public street or a platted alley to the rear of the site creates a parcel with insufficient depth to provide adequate room for buildings, stormwater, parking, and landscaped areas behind the minimum required setback.
b.
Requests to reduce the minimum setback requirement shall be made in writing to the Director. Materials submitted to the Director shall include a site plan and a letter of intent with a narrative explaining how the configuration of the site impedes or interferes with the development of a single-family attached dwelling behind the required setback line. The Director may request additional information necessary to adequately evaluate such requests.
In determining whether to approve a request to reduce the minimum setback requirement, the Director shall consider whether the request would serve the intent of this section to protect the health, safety, and welfare of the public. In approving such requests, the Director shall approve only the minimum setback relief necessary. The Director may impose reasonable conditions on the project including landscaping for buffering the site from Pine Island Road. Special consideration may be given to projects with a minimum of 10% of the units dedicated to affordable housing.
(Ord. 39-21, § 3, 6-16-2021)
Editor's note— Ord. 39-21, § 3, adopted June 16, 2021, changed the title of § 5.11.3 from "attached residential of three-units or more" to read as herein set out.
Multi-family dwellings in the RML, RMM, CC, NC, MXB, MX7, or SC zoning districts must meet the following conditions:
A.
Building Modulation and Articulation. All multi-family dwellings shall provide a combination of volumetric and massing modulation and articulations to prevent the construction of 'big boxes', but rather buildings that harmonize their architectural quality in a stylistically pleasant manner. All buildings shall incorporate the following combined elements from the articulation criteria identified below.
1.
A minimum of three of the following volumetric elements shall be provided:
a.
Pitched roof forms, minimum pitch of 4/12, whose sum covers greater than 30% of the overall roof area;
b.
Architectural roof overhangs four feet or greater in depth or cornices 12 inches or greater in height;
c.
Architectural arcades may be used as a means of sheltering pedestrian areas;
d.
Accent elements such as tower elements, porticos, cupolas, or domes; or
e.
A building with frontage 90 feet or less in length shall provide the following minimum massing articulations:
i.
A minimum of fifty percent (50%) of the cumulative frontage of each façade shall be setback a minimum of five feet from the primary façade and shall be distributed throughout the building frontage and shall not be provided as a single aggregated setback; and
ii.
A minimum of twenty percent (20%) of each frontage of each facade shall be setback a minimum of eight feet from the primary façade.
2.
A minimum of four of the following architectural elements shall be provided:
a.
Stoops on the ground floor and balconies on all floors above the ground floor;
b.
Porches on the ground floor;
c.
Pilasters, string courses, character lines, or other such means of subdividing the facade;
d.
Structural or ornamental details clearly distinct from the primary wall surface, e.g., lintels, sills, door and window surrounds, decorative panels, etc.;
e.
Decorative planters or planting areas a minimum of five feet in width, integrated into the building design; or
f.
Masonry in at least two contrasting tones or textures, accomplished by a change in material or coursing such as brick, natural stone, brick or stone veneer, glass, masonry stucco, decorative concrete block, decorative concrete panels, tile glazing and framing systems, split face or fluted concrete masonry, factory glazed concrete masonry units, or architectural pre-cast concrete.
B.
In the CC zoning district, multi-family dwellings that are not part of a vertical mixed-use project on sites with frontage along Pine Island Road shall meet the following criteria, in addition to the other requirements of this section:
1.
Size. Developments must contain a minimum of four acres of land as shown in Table 4.1.3.B.
2.
Density. Minimum density of ten units per acre without exceeding 25 units per acre. Each project must have a minimum of 50 total units as shown in Table 4.1.3.A.
3.
Pine Island Road Setback. On sites exceeding 200 ft in width as measured at the front property line on Pine Island Road, multi-family dwellings must be set back at least 250 feet from the Pine Island Road right-of-way. Improvements associated with multi-family dwellings within this setback area shall be limited to the following: driveways and drive isles, signs allowed under Article 7, and landscape buffers. Stormwater treatment areas shall be prohibited in the setback area unless the stormwater system is shared with a nonresidential use located in the setback area.
a.
Reductions to the minimum setback requirement based on parcel configuration. Reductions to the minimum setback requirement of 250 feet for a multi-family dwelling may be approved by the Director. In determining whether a particular request should be approved, the Director shall consider the following:
i.
Whether an irregular or unusually shaped parcel creates a hardship in developing a multi-family dwelling behind the minimum required setback.
ii.
Whether the presence of a public street or a platted alley to the rear of the site creates a parcel with insufficient depth to provide adequate room for buildings, stormwater, parking, and landscaped areas behind the minimum required setback.
b.
Requests to reduce the minimum setback requirement shall be made in writing to the Director. Materials submitted to the Director shall include a site plan and a letter of intent with a narrative explaining how the configuration of the site impedes or interferes with the development of a multi-family dwelling behind the required setback line. The Director may request additional information necessary to adequately evaluate such requests.
In determining whether to approve a request to reduce the minimum setback requirement, the Director shall consider whether the request would serve the intent of this section to protect the health, safety, and welfare of the public. In approving such requests, the Director shall approve only the minimum setback relief necessary. The Director may impose reasonable conditions on the project including landscaping for buffering the site from Pine Island Road. Special consideration may be given to projects with a minimum of 10% of the units dedicated to affordable housing.
4.
Mixed-Use Project. In a mixed-use project, any mixed-use building that is vertically integrated with multi-family dwelling units and a non-residential use does not require additional setbacks per Section 5.11.4.B.3. above. Multi-family dwellings in a horizontal mixed-use project must meet the required setbacks. Multi-family dwellings that are part of a horizontal mixed-use project are eligible for setback relief as outlined in Section 5.11.4.B.3.a-b.
(Ord. 39-21, § 4, 6-16-2021)
Vehicle Repair, Minor in the C and CC districts must meet the following conditions:
A.
The number of cars being kept on site, not in a garage bay, shall be limited to three.
B.
All cars kept on site for repairs must be visually screened from the right-of-way and adjacent properties.
C.
All repair work shall be performed within the garage.
D.
No outside storage of materials or chemicals, all installation to occur within garage.
E.
Hours of operation for repair work shall be limited from 7 a.m. to 8 p.m. when adjacent to any residential development.
Outdoor Screened Storage in the CC district must meet the following conditions:
A.
The screening must consist of opaque fence or wall. Chain-link fencing (with or without slats) is prohibited for screening.
B.
The minimum height of the screening shall be 6 feet.
C.
The height of the screening shall be tall enough to screen items being stored.
D.
All perimeter landscaping shall be on the outside of the screening.
E.
The screened area must be used in conjunction with principal use.
F.
The area used for storage must be an improved impervious surface such as asphalt or concrete.
G.
No vehicular access to the storage area shall be allowed from a local street.
Medical, Research, Testing or Development Laboratory Facilities in the NC district must meet the following conditions:
A.
The laboratory shall not produce any exterior impacts such as sound, smoke, or odor.
B.
No outside storage of materials shall be permitted.
Sporting Facilities, Indoor and Outdoor in the A district must be in conjunction with an agricultural use such as riding stadiums etc.
Boat Sales in the SC district may only be permitted on sites with water frontage and direct access to Caloosahatchee River.
Home-based businesses shall only be allowed as an accessory use to a residential use and must meet the following conditions:
A.
Home-based businesses shall comply with all applicable federal, state, county, and City laws, rules, and regulations, including, but not limited to, City business taxes.
B.
No more than two (2) employees or independent contractors who do not reside at the residential dwelling may work at the business. The business may have additional remote employees that do not work at the residential dwelling.
C.
Vehicles parked at home-based businesses must be parked in the driveway or other legal parking spaces that are not located within the right-of-way, on or over a sidewalk, or on or over any unimproved surfaces at the residence. All vehicles and trailers of any kind located at the residence must be in compliance with applicable parking regulations, including, but not limited to, Article 6 of this Code. The parking of any heavy equipment, such as commercial, industrial, or agricultural vehicles, equipment, or machinery is prohibited.
D.
As viewed from the street, the use of residential property is consistent with the uses of the residential areas that surround the property. External modifications made to a residential dwelling to accommodate a home-based business must conform to the residential character and architectural aesthetics of the neighborhood. The home-based business may not conduct retail transactions at a structure other than the residential dwelling; however, incidental business uses and activities may be conducted at the residential property.
E.
The business activities must comply with applicable City sign regulations in Article 7 of the Land Development Code.
F.
The business activities must comply with applicable local and state regulations with respect to equipment or processes that create noise, vibration, heat, smoke, dust, glare, fumes, or noxious odors.
G.
The business activities must comply with any relevant federal, state, county, and City regulations with respect to the use, storage, or disposal of any corrosive, combustible, or other hazardous or flammable materials or liquids.
(Ord. 69-21, § 4, 10-20-2021)
Vehicle fueling stations in the C, N, and SC (along primary streets) districts must meet the following conditions:
A.
General:
1.
All buildings, including pump islands, shall have a 25' setback from all property lines.
2.
In no case shall a lot have less than 100 feet of street frontage.
3.
Underground storage is required for all receptacles for combustible materials in excess of 55 gallons. Such storage shall comply with all building and fire codes and Environmental Protection Agency standards.
4.
The accumulation and storage of waste petroleum products is forbidden, unless in compliance with Environmental Protection Agency standards.
5.
Primary services and sales permissible include fueling stations and electric charging stations, and include only the following accessory uses:
a.
Car wash services;
b.
Sale of convenience goods; and
c.
Accessory fast food services without a drive-through.
6.
Uses permissible at a gas station do not include body work, straightening of body parts, painting, welding (other than minor repairs), or other work involving noise, glare, fumes, smoke, or other characteristics to an extent greater than normally found in vehicle fueling stations. A vehicle fueling station is not a body shop.
7.
Outside materials storage is not permissible.
8.
Lighting at a gas station shall be designed and installed so as to prevent glare or excessive light above 0.1 foot-candles on adjacent property. No source of illumination shall be allowed if such source of illumination, unshielded, would be visible from a residentially-zoned district to the extent that it interferes with the residential use of that area.
9.
The minimum size parcel shall be 1.25 acres.
10.
An eight-foot tall opaque wall constructed of concrete block coated with stucco, textured concrete block, stone, brick, or concrete (formed, decorative or precast) shall be constructed between any residential properties and a gas station. The wall shall be constructed within the gas station property, seven and one-half feet from the property line shared by the gas station and any adjacent residential property. The wall shall not be within a sight triangle.
a.
The residential side of the wall shall be landscaped with shrubs (seven-gallon and 32 inches at planting) which shall be maintained at a mature height between six and eight feet and 80 percent opacity.
11.
Stormwater runoff from the fueling and storage tank loading areas shall be directed to an oil/gas/water separator prior to entering the surface water treatment area for the project.
B.
Appearance:
1.
All structures on the site shall have a unified architectural theme.
2.
Gas station roofs shall be pitched a minimum of 4:12.
3.
A minimum of 12-inch overhangs shall be provided
4.
Roof and exterior wall surfaces, with the exception of glass areas, shall be nonreflective. Any glass coating shall not reflect outward.
5.
The use of flat steel or metal panels for the exterior walls of the gas station shall be prohibited.
6.
The rear and sides of buildings shall be finished with material that in texture and color resembles the front of the building.
7.
Glass windows and doors must make up at least 25 percent of the front elevation and 15 percent of the side elevations at eye level.
8.
Any canopy shall be restricted to a clearance of 14 feet in height and shall be consistent with the primary structure design. The canopy columns and roof shall be architecturally finished to match the building.
9.
The commercial advertising on the canopy shall be limited to 10 percent of the exterior area of the canopy and backlighting shall not be permitted on the canopy.
10.
Perimeter walls, if utilized, shall be architecturally compatible with the principal structure.
C.
Landscaping:
1.
Front yard buffer. An enhanced front yard buffer shall be required for automobile service stations to limit the visual impact of the use. The following requirements shall be utilized:
2.
Area to be landscaped. A strip of land at least 10 feet in depth, abutting the right-of-way and extending the length of the property except the entrance and exit drives, shall be landscaped.
3.
Minimum tree requirements. Palm clusters on the ends of landscape buffers parallel to the gas pump canopy. The palm clusters shall consist of three palms with a minimum of 13 feet of gray wood, at planting. One cluster shall be provided for every 30 feet of road frontage;
4.
Landscape accents. The use of landscape accents, such as planters and window boxes, shall be incorporated into the overall landscape design of the building and the site;
5.
Other materials. The remainder of the required landscaped area shall be landscaped with grass, ground cover, or other approved landscaping treatment.
D.
Vehicle Fueling Stations in the SC zoning district shall only be allowed with frontage along Del Prado Boulevard.
Religious Institutions in the R1, RML, RMM, RE, and A districts shall have a minimum size of three acres.
Industrial Business Centers in the CC zoning district shall meet the following conditions:
A.
All manufacturing, fabricating, packaging, assembly, and research shall be conducted inside of a building.
B.
No hazardous materials or chemicals shall be stored on-site or produced as a result of activities on-site.
C.
The wall required pursuant to Section 5.2.7.C. must be constructed of concrete block with stucco or brick and shall be constructed along the perimeter of the property in conjunction with the landscape buffer required in Subsection D. below.
D.
Landscaping shall be installed along the exterior of the wall. Required landscaping shall consist of the following:
1.
20-foot wide landscape buffer with nine canopy trees, four accent trees, and 80 shrubs per 100 linear feet.
2.
Canopy trees shall have a minimum height of ten feet and a minimum caliper of two inches measured at a height of 12 inches above the ground at the time of planting. The trees shall be spaced 20 feet apart.
3.
A row of shrubs shall also be planted in front of the canopy trees. The shrubs must be a minimum of 32 inches in height and be in at least a seven-gallon container size at time of planting.
4.
The landscape buffer shall meet all other requirements in Section 5.5.13.
E.
No outdoor storage of raw materials, finished products, or storage containers shall be permitted outside of a building.
(Ord. 98-21. § 4, 1-19-2022)
A.
Purpose and Intent. The purpose of this section is to establish operational and zoning regulations for Mobile Food Vendors (MFVs) in the City within select zoning districts and to provide for the safety of the public and customers of MFVs.
B.
Permitted and Prohibited locations.
1.
Subject to the requirements of this section, MFVs are allowed in the P, C, I, INST, NC, CC, MXB, MX7, and SC zoning districts. Except as provided in Subsection B.2., MFVs are prohibited in the R-1, RE, RML, RMM, PV, and A zoning districts;
2.
MFVs are prohibited in the R-1, RE, RML, RMM, PV, and A zoning districts, except if located in public parks and recreational facilities, City parking lots, or Government-owned or leased facilities, and the MFV complies with the additional requirements in Subsection D. For purposes of this section, City parking lots shall mean those improved parking lots owned or controlled by the City of Cape Coral, including those dedicated or reserved as public parking areas on the plat of the Cape Coral Subdivision; and
3.
MFVs are prohibited from vending or otherwise conducting business within any street right-of-way or right-of-way easement, except Ice Cream Vehicles operating or otherwise conducting business in accordance with Section 5.11.15.F.
C.
General requirements. MFVs shall meet the following requirements:
1.
It shall be a violation for any MFV to offer for retail sales, display or accessory advertising of any food or beverage product at any location except in compliance with the requirements of this section;
2.
All items related to the operation of MFV must be kept either on or in the MFV;
3.
The MFV must maintain the valid license required under F.S. § 509.241; and any other valid licenses and insurance required to operate a motor vehicle within the state;
4.
Alcoholic beverages must not be sold or dispensed by an MFV. Consumption of alcoholic beverages by patrons of an MFV is prohibited except when the MFV is operating as an ancillary use to and on the same premises as an establishment with a valid approval for outdoor consumption of premises;
5.
While vending or otherwise conducting business the operator of an MFV must possess and display the written and notarized permission from the owner of the property;
6.
MFVs must remove all vehicles, equipment, and other accessory items from the permitted site when not vending or otherwise conducting business;
7.
Liquid waste or grease must be disposed of at an approved location and may not be placed in tree pits, storm drains, or sanitary sewers, or onto sidewalks, streets, or other public or private space. If at any time evidence of the improper disposal of liquid waste or grease is discovered, the responsible MFV will be required to cease operation immediately and clean up the improperly disposed material to the reasonable satisfaction of the City. The responsible MFV may not resume vending or otherwise conducting business until an alternate method of disposal has been approved by the City Manager or the City Manager's designee;
8.
MFVs shall not block pedestrian or vehicular traffic entering, exiting, or maneuvering on a property;
9.
MFVs must be located on and over an approved impervious surface. No portion of an MFV shall be located on, or project over, a pervious surface;
10.
MFVs are prohibited from vending or otherwise conducting businesses within required off-street parking spaces on the site, including, but not limited to, handicap parking spaces;
11.
No MFV shall provide tables, chairs, or other furniture or equipment intended to provide accommodations for the patrons of an MFV;
12.
Tents and tarps for the purposes of providing weather protection for patrons in the process of ordering from an MFV may be provided; however, tents or tarps for the purposes of accommodating on-site dining for patrons are prohibited;
13.
Electrical service, if required, must be provided by a portable generator or by a temporary connection to an existing point of service;
14.
A permanent water or wastewater connection is prohibited;
15.
MFVs are limited to the following signs:
a.
Signs attached to its exterior, which must be secured and mounted flat against the conveyance and may not project more than six inches from the exterior of the conveyance;
b.
Awning signs, as defined in LDC Article 11, Definitions, provided that the awning does not project more than five feet (60 inches) from the exterior of the conveyance; and
c.
An A-Frame sign, as defined in LDC Article 11, Definitions, provided that the sign does not have a copy area wider than 24 inches by 36 inches.
16.
MFVs must provide a trash can or similar container and keep areas of consumption free of litter in accordance with City Code of Ordinances Chapter 9 - Health and Sanitation; and
17.
MFVs must meet all fire safety requirements of the Florida Fire Prevention Code (7 th Ed.) 2018, as amended.
D.
Additional requirements for MFVs at public parks and recreational facilities, City parking lots, or Government-owned or leased facilities.
1.
The location, dates, and hours of vending or otherwise conducting business must be approved in writing by the person or entity that owns or controls the property or public right-of-way; and
2.
MFVs, whether vending or otherwise conducting business or out of operation, are prohibited from being parked overnight at that location, regardless of the underlying zoning, unless written permission has been provided by an authorized representative of the Government entity. For purposes of this section, parked overnight shall mean parked or stored for any period of time between the hours of 2:00 a.m. and 6:00 a.m.
E.
Exemptions. The following MFVs are exempt from compliance with the requirements of this section:
1.
MFVs vending or otherwise conducting business as part of a permitted Special Event approved by the Parks and Recreation Department in accordance with LDC Article 3, Chapter 3;
2.
MFVs vending or otherwise conducting business on private property for private parties or a private event for a duration of less than one day and that is not open to the general public; and
3.
MFVs vending or otherwise conducting business during the period of a declared state of emergency in the City.
F.
Ice Cream Vehicles.
1.
Locations. An ice cream vehicle may operate within public rights-of-way and must stop as far to the right of the street as far as possible before serving customers, but may not stop or park within any open drainage conveyance.
2.
Standards. The following standards shall apply:
a.
Ice cream vehicles are allowed to operate between 9:00 a.m. and dusk in all zoning districts.
b.
Ice cream vehicles are permitted to play music from the vehicle to draw the attention of customers; however, this music must be turned off anytime the ice cream vehicle is stopped and serving customers.
G.
Any owner or operator of an MFV, or property owner(s) of property on which an MFV is located, who violates any of the provisions of this section shall be subject to a minimum civil penalty in the amount of $100.00. Each day that a violation exists shall constitute a separate and distinct violation for which a civil citation may be issued. Alternatively, a notice of violation in accordance with the code enforcement provisions and procedures provided in Chapter 2, Division 3, Cape Coral Code of Ordinances, may be issued to any person who violates any of the provisions of this section.
(Ord. 89-22, § 3, 1-25-2023)
A.
Purpose and Intent. The purpose of this section is to establish operational and zoning regulations for Mobile Food Courts (MFC) within select zoning districts and to provide for the safety of the public and customers of these businesses. It is the permanent nature that primarily distinguishes an MFC from temporary MFV locations.
B.
Permitted and Prohibited locations.
1.
Subject to the requirements of this section, MFCs are allowed in the P, C, INST, NC, CC, MXB, MX7, and SC zoning districts;
2.
MFCs are prohibited in the R-1, RE, RML, RMM, PV, I, and A zoning districts;
3.
MFCs are prohibited from occupying required off-street parking spaces; and
4.
MFCs are prohibited on public road rights-of-way.
C.
General requirements. MFCs shall meet the following requirements:
1.
MFCs must have a Site Development Plan (SDP) approved by the Director of the Development Services Department or the Director's designee;
2.
MFCs must provide a stabilized surface for each MFV that will be vending or otherwise conducting business on the property;
3.
Central water and sewer must be provided to each MFVs that will be vending or otherwise conducting business on the property;
4.
For the purposes of this section, the stabilized surface and the utility connections for an individual MFV permitted at an MFC constitute a "vending space";
5.
An MFC must provide for a minimum of three vending spaces on-site and one additional vending space for each additional MFV proposed to be permitted to vend or otherwise conduct business at the MFC. No MFV shall conduct business outside of an approved vending space;
6.
Every vending space and accessory structure must meet the setback requirements for the zoning district in which the MFC is located;
7.
All MFVs vending or otherwise conducting business within an MFC must be capable of being moved. An MFV located within a vending space shall not have any axles removed or be placed on blocks, timbers, or other materials;
8.
A minimum of three parking spaces shall be provided per vending space plus one additional parking space per 15 seats. Additional parking spaces for on-site accessory uses such as bars or restaurants are required per LDC Article 6, as amended;
9.
MFCs must provide on-site improvements for stormwater management, landscaping, sidewalks and roadway improvements, waste collection, and related improvements for non-residential land development;
10.
MFCs shall include restroom facilities on-site in conformance with the requirements of the Florida Building Code, as amended;
11.
All MFVs operating within an MFC must possess and display a current and valid Business Tax Receipt from the City of Cape Coral;
12.
MFCs must be kept free of litter in accordance with City Code of Ordinances Chapter 9 - Health and Sanitation; and
13.
MFCs must meet all fire safety requirements of the Florida Fire Prevention Code (7th Ed.) 2018, as amended.
D.
Any owner or operator of an MFV or MFC who violates any of the provisions of this section shall be subject to a minimum civil penalty in the amount of $100.00. Each day that a violation exists shall constitute a separate and distinct violation for which a civil citation may be issued. Alternatively, a notice of violation in accordance with the code enforcement provisions and procedures provided in Chapter 2, Division 3, Cape Coral Code of Ordinances, may be issued to any person who violates any of the provisions of this section.
(Ord. 89-22, § 4, 1-25-2023)
In addition to other provisions of the Land Development Code, Car wash facilities shall meet all of the following conditions:
A.
Applicability: This section shall apply to all car wash facilities as defined in LDC Section 11.2, except as noted below.
1.
Exceptions:
a.
Car wash facilities that are accessory to a primary use, where the accessory use area occupies no more than 20% of the overall site area, and which are fully integrated into the primary use structure or area are exempt from this section.
b.
Car wash facilities that are accessory to a primary use classified as light vehicle sales on sites where the establishment has a minimum developed area of five acres.
c.
Temporary outdoor car wash facilities associated with a non-profit, religious function, or governmental organization are exempt from this section provided that the use is temporary and no automated equipment or systems are utilized.
B.
Locational Requirements: All facilities shall conform to the following location standards:
1.
There shall be a minimum separation distance of one mile (5,280 feet) between parcels occupied, or to be occupied, by a car wash facility. Such a distance shall be measured by the shortest straight-line measurement between the nearest points of the applicable parcels.
2.
Car Wash facilities shall only be permitted on those parcels which have primary frontage on roadways with the following City of Cape Coral Functional Classifications: Minor Collector; Major Collector; Minor Arterial; Major Arterial; and Principal Arterial. Functional roadway classifications shall be determined by the City of Cape Coral and all classifications shall be made available to the public. Primary frontage is defined as a minimum linear frontage that is equal to or exceeds 75% of overall linear property frontage along all public rights-of-way.
3.
Parcels associated with car wash facilities shall not be permitted within 500 feet of any major intersection involving any combination of collector and/or arterial streets. This distance shall be measured in the shortest straight-line measurement between the centerline of the intersected rights-of-ways and the nearest point of the parcel.
C.
Enclosure Required: All washing uses, facilities, and equipment shall be within an enclosed building, including those systems and equipment which is ancillary or accessory to the operation of the facility except as noted below.
1.
Exception: Centrally designed vacuum facilities may have exposed apertures, nozzles, and piping directly associated with the servicing of a vehicle, provided all central equipment, including pumps, turbines, separators, filters, and manifolds, are completely enclosed within a building and that the noise generated from the exposed equipment is mitigated to the greatest extent possible.
D.
Residential Adjacency: The following regulations shall apply when a car wash facility is located directly adjacent to a site with residential zoning or a residential use, either through directly abutting property line(s) or being separated by an alleyway, canal, or local roadway:
1.
All uses and equipment shall be oriented away from the adjacent residential zoning or uses. Where such orientation would provide an undue hardship to the implementation of the uses on the site, additional screening shall be provided to mitigate the visual impact of the facility. Such screening may be comprised of additional vegetative hedging, living green walls, or an architecturally interesting vertical barrier and implemented as directed through conditions of approval applied by the City of Cape Coral.
2.
The facility shall be designed so as to provide an increased buffered separation along all directly abutting residential property lines. The buffer shall conform to all applicable standards and regulations contained in LDC Article 5, Section 5. The buffer width shall be in excess of 150% the required buffer width specified in Table 5.5.13.B and shall include the utilization of either a six-foot tall bermed earth feature or an eight-foot tall separation wall. The buffer area shall provide plantings of 150% or more of the required amount per LDC Section 5.5.13, for all plantings. The wall shall meet all applicable standards and requirements as specified per LDC Section 5.5.13.C.5.g.
a.
Where the facility abuts a mixed-use zoning district, or mixed-use site, which includes any form of residential uses and no buffer requirement is specified in table 5.5.13.B, the facility shall provide a buffer with a minimum width of twenty feet. Landscaping within the buffer shall be provided at the highest intensity specified per table 5.5.13.C abutting the R-1 district. The buffer area shall be designed to meet all other criteria listed in Section 5.11.17.D.2.
b.
Where a canal or road right-of-way separates two property lines requiring the buffer separation as specified in this section, the buffering requirements shall also be applied along the property lines adjacent to the right-of-way.
E.
Landscape Screening: Specifically designed landscape screenings and treatments shall be provided to mitigate the visual impact of exterior equipment and utilities, exterior vacuum apertures and equipment, and openings in enclosed facility spaces from all public rights-of-way. The screening shall be designed in such a way that the internal and external uses of the facility are screened to the greatest extent possible when viewed from the rights-of-way and shall be approved through conditions of approval applied by the City of Cape Coral.
F.
Outdoor Storage and Display: The outdoor storage and display of merchandise, parts and supplies shall be prohibited. All materials shall be located completely within an enclosed building.
G.
Hours of Operation: For facilities which are located adjacent to residentially zoned districts, the hours of operation for the facility shall be limited through conditions of approval applied by the City of Cape Coral.
H.
Noise Mitigation: The use of exterior loudspeakers, paging equipment or noise makers, is prohibited.
I.
Water Recycling: The facility shall be designed and constructed to comply with National Pollutant Discharge Elimination System (NPDES) requirements for car washes to prevent creating and carrying off the premises, of airborne particles of water, chemicals, and dust. No wash-water runoff generated by the facility may be conveyed off site into stormwater or wastewater systems without pretreatment. Car-wash equipment shall use a 90% water recycling system, utilizing 100% of wastewater.
J.
Prohibitions: The following shall be prohibited on site:
1.
Exterior detailing and waxing which utilizes any type of machines or equipment is prohibited.
K.
View Corridor Protection: Where a facility is developed adjacent to a residential site or use and has any frontage along a canal, or canal right-of-way, the facility shall be so designed to adequately protect visual corridors to the canal way for adjacent residential uses. Design and implementation shall be approved through conditions of approval applied by the City of Cape Coral.
(Ord. 66-24, § 2, 10-16-2024)
In addition to other provisions of the Land Development Code, any self-service storage facility shall meet all of the following conditions:
A.
Limitations: The total aggregated amount of self-service storage facility square-footage throughout the city limits of The City of Cape Coral shall be limited to a maximum of ten (10) square feet per resident. Resident population data shall be determined through the population data distributed through Bureau of Economic and Business Research (BEBR) Population Program for the City of Cape Coral. The City of Cape Coral shall publish the population or population estimate annually; the use of privately provided population estimates is prohibited. The City of Cape Coral shall track the total aggregated amount of permitted storage, as well as the area related to projects under review, and publish that number annually.
B.
Locational Requirements: All facilities shall conform to the following locational standards:
1.
There shall be a minimum separation distance of one mile (5,280 feet) between any parcels occupied, or proposed to be occupied, with a self-service storage facility. Such a distance shall be measured in the shortest straight-line measurement between the nearest points of the parcels.
2.
Self-service storage facilities shall only be permitted on those parcels which have primary frontage on roadways with the following City of Cape Coral Functional Classifications: Minor Collector; Major Collector; Minor Arterial; Major Arterial; and Principal Arterial. Functional roadway classifications shall be determined by the City of Cape Coral and all classifications shall be made available to the public. Primary frontage is defined as a minimum linear frontage that is equal to or exceeds 75% of overall linear property frontage along all public rights-of-way.
3.
Parcels utilized for self-service storage facilities shall be distanced from any major intersection by a minimum distance of 500 feet. This distance shall be measured in the shortest straight-line measurement between the centerline of the intersected rights-of-ways and the nearest point of the parcel.
C.
Enclosure Required: In all permissible zoning districts, except for (I) Industrial, all self-service storage uses, facilities, and equipment shall be completely within an enclosed building, including all uses, systems and equipment which are ancillary and/or accessory to the operation of the self-service storage facility. All storage units and storage areas shall only be accessible from the interior of the building.
D.
Mixed-Use Inclusion: Where a self-service storage facility is developed as part of an integrated vertical mixed-use development, the self-service storage facility may be developed without regard to Section 5.11.18.A provided all of the following are met:
1.
A permissible non-residential use, or any combination of permissible non-residential uses, shall occupy a minimum of 85% of the ground floor area;
2.
The permissible non-residential uses must predominantly front directly along and towards the adjacent rights-of-way;
3.
The permissible non-residential uses must be wholly distinct from, unrelated to, and not an accessory use to or of the self-service storage facility; and
4.
No storage unit or storage area may occupy any area of the ground level.
E.
Building and Site Aesthetics: All self-service storage facilities shall incorporate all of the following design features:
1.
All self-service storage facilities, including integrated mixed-use facilities, shall comply with all required standards established in Article 5, Chapter 8 of the Land Development Code. Where a conflict exists between the provisions of Chapter 8 and this section, the more restrictive provision shall govern.
2.
Multi-story buildings that are two or more floors must be designed to have the appearance of a multi-floor building. This may be achieved through the use of glazing, awnings, canopies, or other prominent architectural features that provide the impression of appearance of separate floors.
3.
Facades facing a public right-of-way or residential zoning district must provide a minimum of 40% transparent glazing area. The glazing area shall be distributed throughout the entire facade and designed in such a way as to present a holistic composition to the building's façade.
4.
Lighting: Light spillage from the facility shall be mitigated so as to limit all ambient lighting, either direct or indirect, from impacting the surrounding sites. Light limits shall meet the most restrictive standard of LDC Article 5, Chapter 6. The use of uplighting shall be prohibited unless the fixture is shielded by a roof overhang, or similar structural shield.
5.
Parking stalls and areas, as well as loading/unloading zones shall be oriented away from any residentially zoned district or right(s)-of-way. Where it is deemed impractical or provides a hardship to the development the city may permit the use of vegetative buffering and screening to reduce the visual impact of those uses on the surrounding neighborhood and rights-of-way. Vegetative buffering or screening may consist of any combination of dense hedge plantings, dense evergreen shrubbery, living green walls, architecturally significant screening structures, or earthen berms or walls per Section 5.5.13.C.5.g.
F.
Perimeter Landscaping: All self-service storage facilities, including integrated mixed-use facilities, shall provide a landscaped buffer area with a minimum width of twenty (20) feet around the entire perimeter of the site. The landscaping shall consist of a minimum of: six canopy trees per 100 feet; 6 accent trees per 100 feet; and 66 shrubs per 100 feet. The use of palm trees cannot be utilized to meet minimum planting requirements of this section. All landscaping within the buffer shall meet all applicable standards and requirements of LDC Article 5, Chapter 5.
1.
Where the facility is adjacent to a residential site, or a mixed-use site which contains any residential use, the buffer width shall be increased to 30 feet for the length of property abutting the adjacent site and shall incorporate either a six-foot high bermed earth separation or an eight-foot heigh separation wall. The required plantings within the landscape zone shall be provided in excess of 150% percent the amount required per this section. The wall shall meet all applicable standards and requirements as specified per LDC Section 5.5.13.C.5.g.
G.
Outdoor Storage and Display: The outdoor storage and/or display of merchandise, parts and supplies associated with the self-service storage use shall be prohibited. These materials shall be located completely within an enclosed building.
H.
Hours of Access: For self-service storage facilities which are located adjacent to residentially zoned districts, the hours in which the storage facility may be accessed by the public shall be limited through conditions of approval applied by the City of Cape Coral.
I.
Prohibitions: The following shall be prohibited on site:
1.
Other than the Industrial (I) district, the sale and/or rental of trucks, vans, trailers, or vehicles of any sort are prohibited.
2.
Other than the Industrial (I) district, the temporary or long-term exterior storage of vehicles of any type, including trailers, on site is prohibited. The storage of vehicles within completely enclosed individual storage units is permissible.
J.
Vehicle and Trailer Rental: The rental of moving vehicles and trailers shall be permitted on sites with Self-Service Storage Facilities provided that the rental is accessory to and operated in part with the self-storage facility use and that all vehicles and trailers associated with rental operations, in any capacity, are permanently parked behind the facility and shielded from both the right-of-way and adjacent residential uses. The vehicles and trailers shall not be parked along any rights-of-way and where adjacent to residential uses, the use of landscaping or buffer enclosures may be provided to soften the impact. The location, amount, and design of the rental area and accompanying systems and elements shall be determined and limited through conditions of approval applied by the City of Cape Coral.
(Ord. 67-24, § 3, 10-16-2024)
A.
Purpose and Intent.
1.
To provide standards and criteria for review and approval of certain special exception uses for a specific site.
2.
To provide reasonable limitations or special conditions for special exception uses, in order to address, minimize, or ameliorate potential impacts of the use on surrounding property and for the protection of the public health, safety, and welfare.
B.
General Requirements. Proposed special exception uses must meet the following requirements:
1.
The use must be a special exception use in the appropriate zoning district.
2.
The special exception use must meet the standards identified in Article 3, and those identified for the specific special exception use in Section 5.12.
3.
The proposed special exception use will not result in development that is inconsistent with the intended character of the applicable zoning district.
C.
Review Criteria. A Special Exception Use must be approved by the Hearing Examiner based on criteria identified in Article 3.
(Ord. 29-20, § 4, 5-11-2020)
Every special exception for a recreational vehicle resort must be approved through the Special Exception process. If a recreational vehicle resort is approved by the Hearing Examiner or City Council, such recreational vehicle resort shall comply not only with the conditions, if any, imposed by the Hearing Examiner or City Council, but also shall comply with the following special regulations:
A.
General provisions. Within a recreational vehicle resort, recreational vehicles that meet the requirements herein, whether self-propelled or pulled by a towing vehicle, and camping cabins, as regulated herein, may be used for temporary lodging. Facilities to accommodate administration, maintenance, recreation, dining, and personal care may be included within a recreational vehicle resort. Recreational vehicle resorts shall be deemed to be nonresidential uses, and any transient guest site occupied by a registered guest of a recreational vehicle resort shall not be deemed to be a "residence", "dwelling." or "residential premises" within the meaning of other provisions of the City of Cape Coral regulations. The management of all transient guest sites and camping cabins must be performed by a single on-site management company or entity, regardless of whether the transient guest sites, camping cabins, or both are owned by more than one person or entity.
B.
Lodging unit characteristics. Lodging shall only be allowed within recreational vehicles and camping cabins that have all of the following characteristics:
1.
Recreational vehicles:
a.
Shall be no more than eight and one-half feet in body width, exclusive of safety devices when slide outs are retracted;
b.
Shall have water and wastewater systems designed for continuous connection to water and wastewater service facilities while parked at a transient guest site; and
c.
Shall not be constructed with collapsible partial sidewalls that fold for towing in such a way as to be unusable for occupancy.
2.
Camping cabins shall comply with all of the following criteria:
a.
Cabins shall be constructed in compliance with the Florida Building Code;
b.
The square footage of interior space shall be a minimum of 200 square feet and a maximum of 600 square feet;
c.
Cabins shall be equipped with electric service and a full bathroom;
d.
Cabins are exempt from non-residential design standards, however when there is more than one cabin in a development, the color scheme, exterior materials on walls, exterior roof finishing, and roof type must be consistent among all cabins;
e.
Corrugated metal is prohibited for exterior walls; and
f.
Roofs shall consist of pitched roofs, including but not limited to, gable, hip, or mansard roofs; however, mansard roofs with flat decks and shed style roofs are prohibited.
C.
Location. Recreational vehicle resorts are permitted only on property with a Mixed-Use future land use designation. No new recreational vehicle resort shall be developed and no existing recreational vehicle resort shall be expanded within a coastal high hazard area, as depicted in the Comprehensive Plan.
D.
Minimum interior road standards. All interior roads shall be privately owned and maintained, and shall be constructed in accordance with the public road standards within the City of Cape Coral Engineering Design standards.
E.
Overall recreational vehicle resort area and density. The following requirements shall apply to the recreational vehicle resort net area:
1.
Minimum recreational vehicle resort net area: 25 acres;
2.
Maximum net density: 10 transient guest sites per acre, based on net area;
3.
Minimum net density: For recreational vehicle resorts with a net area of less than 50 acres, the minimum quantity of transient guest sites shall be 50; for recreational vehicle resorts with a net area of 50 or more acres, there shall be no less than one transient guest site per acre, rounded to the nearest whole number.
For purposes of this section, the net area shall mean the area of the recreational vehicle resort minus extant wetland areas and water areas (e.g. streams, waterways, lakes, estuaries). If an extant wetland or water area is expanded or contracted, the net area shall be based on the resultant wetland and water areas; and
4.
Overall site area: 75 acres, minimum.
F.
Transient guest sites. Transient guest sites can be designed with any of the following: 1) a pad for parking one recreational vehicle; 2) one camping cabin; or 3) one camping cabin and a pad for parking one recreational vehicle. The following standards shall apply to transient guest sites within a recreational vehicle resort:
1.
Each transient guest site shall be clearly defined by a permanent marker, constructed of a durable material such as masonry or metal, placed at all corners;
2.
No transient guest site shall include any space used for common areas, such as roadways, sidewalks, or community recreation areas;
3.
No more than 25% of the total transient guest sites shall be developed with a camping cabin. Transient guest sites with a pad for parking one recreational vehicle and one camping cabin shall not be factored into the 25% limitation to the number of camping cabins;
4.
All transient guest sites shall be designed to provide runoff of surface water to a drainage system or basin external to the transient guest site;
5.
Impervious area shall not exceed 65% of any transient guest site. Pervious areas of each transient guest site shall be covered in turf, groundcover, shrubs, trees, or any combination thereof;
6.
Each transient guest site shall have direct vehicular access to an interior road. No transient guest site shall have direct vehicular access to a public street;
7.
No transient guest site shall be located closer than 40 feet to any public street right-of-way;
8.
Separation: Each transient guest site shall be designed to ensure minimum separation between units. When measuring the distance from a recreational vehicle pad, paved areas that project more than four and one-half feet from the centerline of the pad, e.g., driveway apron flares, walkways, and patio areas, may be excluded. Distances of separation shall be as follows:
a.
Between camping cabins: 15 feet;
b.
Between a camping cabin and a recreational vehicle pad on the same transient guest site: 15 feet;
c.
Between a camping cabin and a recreational vehicle pad on a separate transient guest site: 20 feet;
d.
Between a transient guest site boundary line and a camping cabin: 7½ feet; and
e.
Between transient guest site boundary line and a recreational vehicle pad: 7½ feet.
9.
Each transient guest site designed with only a pad for parking a recreational vehicle shall have the following standards:
a.
Maximum number of recreational vehicles: 1;
b.
Minimum site area: 2,000 square feet;
c.
Maximum site area: 1 acre;
d.
Minimum site width: 35 feet, measured at right angles to and between the designated side boundary lines; and
e.
Pad and driveway materials: Each pad for a recreational vehicle and associated driveway shall be paved with concrete or pavers, or as otherwise approved by the city. The use of asphalt as a paving material for vehicle pads and driveways is prohibited.
10.
Each transient guest site developed with only a camping cabin shall have the following standards:
a.
Maximum number of camping cabins: 1;
b.
Minimum site: 2,500 square feet; and
c.
Parking space: Each site developed with a camping cabin shall include a minimum of one automobile vehicle parking space, paved with concrete or pavers, or as otherwise approved by the city, with minimum dimensions of 9 feet by 18 feet. This limitation shall not apply to transient guest sites with a pad for parking one recreational vehicle and one camping cabin. The use of asphalt as a paving material for vehicle parking spaces is prohibited.
11.
Each transient guest site developed with both a camping cabin and a pad for parking a recreational vehicle shall have the following standards:
a.
Maximum number of units: 1;
b.
Minimum site area: 5,000 square feet;
c.
Maximum site area: 1 acre;
d.
Minimum site width: 35 feet, measured at right angles to and between the designated side boundary lines; and
e.
Pad and driveway materials: Each pad for a recreational vehicle and associated driveway shall be paved with concrete or pavers, or as otherwise approved by the city. The use of asphalt as a paving material for vehicle pads and driveways is prohibited.
12.
Each transient guest site may also include accessory structures for outdoor living, including, but not limited to, an outdoor kitchen, fire pit, spa, hot tub, gazebo, shade shelter, marine improvements, and other hardscape features.
G.
Utilities. Each transient guest site shall have direct connections to central potable water, central wastewater, and electric services. All water and wastewater utility infrastructure within a recreational vehicle resort shall be privately owned and maintained, except as otherwise approved by the City Council. Within the recreational vehicle resort, all telephone, electric, television cable service, or other wires of all kinds must be underground, provided, however, that appurtenances to these systems which require aboveground installation may be exempted from these requirements and primary facilities providing service to the site of the development or necessary to service areas outside the planned development project may be exempted from this requirement.
H.
Lighting. All roads, walkways and parking areas shall be provided with lighting adequate to ensure the safety of vehicular and pedestrian traffic. All lighting shall be designed so that it is not directed toward neighboring properties.
I.
Parking. In addition to parking spaces on transient guest sites, a minimum of one parking space per ten recreational vehicle sites within the resort shall be provided for visitors.
J.
Designated storage. Except for boats at a rental facility or moored at a marine improvement, boats and utility trailers (tow dollies, "toy haulers", etc.) shall be stored in a designated storage area that shall occupy no more than 5% of the gross area of the resort. Such storage area shall be for the exclusive use of registered guests only during the period the guest is a registered occupant of a transient guest site. Designated storage areas shall be enclosed by an opaque visual barrier that is a minimum of eight feet in height. The following materials, either singly or in any combination, are the only materials that may be used to form the opaque visual barrier:
1.
Wood, plastic, vinyl, or metal fencing;
2.
Concrete block and stucco wall;
3.
Brick wall; or
4.
Formed, decorative, or precast concrete.
No storage area shall be located closer than 40 feet to any exterior property line of the recreational vehicle resort. No repair or maintenance other than cleaning shall be conducted within such storage area.
K.
Recreation area. At least one recreation area shall be provided within the resort, designed and improved to serve the recreational needs of the resort users. The recreation area(s) shall be a minimum of 500 square feet per transient guest site. All recreation areas shall be accessible to all occupants of the resort. If more than one recreation area is provided, no recreation area shall be less than 10,000 square feet. A minimum of 50% of the total required recreation area shall be comprised of recreation within a building, or outdoor facilities for active recreation, including, but not limited to, swimming pools, ball fields, tennis courts, or play lots with facilities. No portion of any transient guest site, perimeter buffer yard, internal road or road easement, or stormwater management area, except as provided below, shall be counted as required recreation area. Bodies of water may be counted toward required recreation area if recreational use is not otherwise prohibited on or in the body of water and if recreational amenities, including, but not limited to, a beach, boat rental or launching facilities, are provided. In no event, however, shall bodies of water comprise more than 50% of the required recreation area.
L.
Landscaping plan. Requests for approval for a recreational vehicle resort shall be accompanied by a landscaping plan that provides, at a minimum, compliance with Section 5.5.
M.
Phasing. The Director shall not issue a certificate of zoning compliance for a recreational vehicle resort prior to completion of construction of all of the transient guest sites, internal roads, drainage system, potable water and wastewater utilities, landscaping and buffering, and accessory structures approved for the resort, unless the Hearing Examiner (or the City Council, when applicable) approves a phasing plan that identifies size, location, sequence, and timing of the various phases of the development. If a phasing plan is approved, the Director shall not issue a certificate of zoning compliance for any phase that has not been completed in its entirety.
N.
Operation generally.
1.
Responsibilities of management. The owner of a recreational vehicle resort shall, at all times, maintain the resort and its facilities in a clean, orderly and sanitary condition. The resort management shall inform all registered occupants of transient guest sites of the provisions of this section and other related ordinances and statutes, and of their responsibilities thereunder.
2.
Certificate of use required. No lodging within recreational vehicles or camping cabins shall occur prior to the issuance of a certificate of use for the recreational vehicle resort.
3.
Length of occupancy. No owner of any recreational vehicle resort shall allow or permit any transient guest sites in a recreational vehicle resort to be rented to or occupied by any person or recreational vehicle for any period of time that would permit or allow any person or recreational vehicle to remain at such recreational vehicle resort for more than 180 days in any 365-day period.
4.
Register of occupants. The owner or operator of any recreational vehicle resort shall file a report with the Director showing the guest names and addresses, recreational vehicle license numbers, dates of arrival and departure, and the transient guest site occupied by each guest at the recreational vehicle resort during the preceding calendar quarter. Such reports shall be filed not later than April 15th, July 15th, October 15th and January 15th for the immediately preceding calendar quarter.
O.
Inspections authorized. The Director is hereby authorized to make periodic inspections of the recreational vehicle resort and transient guest sites for the purpose of determining satisfactory compliance with the regulations of this section pertaining to the health, safety and welfare of the community.
P.
Incidental facilities and amenities. Various facilities and amenities incidental to a recreational vehicle resort are permissible, however, all facilities and amenities must meet all requirements stated herein together with any additional conditions of approval.
1.
The following facilities may be approved as incidental to a recreational vehicle resort:
a.
Administrative offices;
b.
Caretaker or watchperson residence (no more than one);
c.
Car wash (Recreational vehicle washing facilities only);
d.
Clubhouses;
e.
Gatehouses;
f.
Grounds maintenance facilities;
g.
Laundry facilities;
h.
Marine improvements;
i.
Restrooms and community showers; and
j.
Sanitary dump stations.
2.
The following amenities are permitted as amenities incidental to the recreational vehicle resort even though they are typically land use classifications identified as individual "uses" within other zoning districts.
a.
Banquet halls;
b.
Bars;
c.
Commercial Recreation - indoor and outdoor;
d.
Cultural and civic facilities;
e.
Personal services;
f.
Professional Offices;
g.
Restaurant, no drive-thru; and
h.
Retail.
3.
For recreational vehicle resorts with no frontage on any type of arterial or collector street, food stores, personal services, and restaurants shall be limited as follows:
a.
Vehicular ingress/egress for parking lots supporting an amenity shall not be directly accessible from any public street, but shall only be accessible from a road within the resort;
b.
No signs shall be visible from outside the recreational vehicle resort; and
c.
The cumulative gross leasable floor area occupied by food stores, personal services, and restaurants shall not exceed 3% of the net area of the recreational vehicle resort. For purposes of this section, the net area shall mean the area of the recreational vehicle resort minus extant wetland areas and water areas (e.g. streams, waterways, lakes, estuaries). If an extant wetland or water area is expanded or contracted, the net area shall be based on the resultant wetland and water areas. Food stores shall not occupy more than 25,000 square feet of contiguous gross leasable floor area.
4.
For recreational vehicle resorts with frontage on any type of arterial or collector street, food stores, personal services, and restaurants shall be limited as follows:
a.
Vehicular ingress and egress for parking lots supporting food stores, personal services, and restaurants may be directly accessible from a public street. Visible evidence of the commercial character of food stores, personal services, and restaurants may be observable from a street outside the resort. For food stores, personal services, and restaurants that have vehicular ingress/egress directly accessible from a public street, or present visible evidence, observable from a street outside the resort, of their commercial character, no certificate of use shall be issued until a minimum of 20% of the total transient guest sites for the entire recreational vehicle resort have been constructed or installed; and
b.
The cumulative gross leasable floor area of food stores, personal services, and restaurants shall not occupy more than 3% of the net area of the resort. Not more than 25,000 square feet of contiguous gross leasable floor area shall be devoted to food stores.
5.
In the event that a recreational vehicle resort fails to meet the minimum required number of transient guest sites as a result of removal of transient guest sites or conversion to another use, or if the offering of lodging at transient guest sites is discontinued for one year or more, any activity that had previously been approved as an amenity incidental to the recreational vehicle resort use shall lose its status as an amenity and shall be treated in the same manner as a nonconforming use.
Q.
Prohibitions. The following uses, activities or improvements listed below are prohibited within a recreational vehicle resort:
1.
Permanent residential use is prohibited, except in an approved caretaker/watchperson residence.
2.
Lodging within any structure other than an approved recreational vehicle, camping cabin, caretaker, or watchperson residence (e.g., tent, mobile home, garage, shed, or agricultural building) is prohibited within a recreational vehicle resort.
3.
The storage of a recreational vehicle, boat, or accessory trailer during any period when the owner or lessee of the vehicle is not a registered occupant of a transient guest site is prohibited. Storage of boats and accessory trailers is prohibited on individual transient guest sites or on internal roads.
4.
The parking of a recreational vehicle, automobile, or truck in an area not designated for parking is prohibited.
5.
Drive-thru facilities for restaurants are prohibited.
6.
Fuel pumps for retail sales of fuel are prohibited.
R.
Evacuation plan. Prior to operation of a recreational vehicle resort, the owner or operator shall provide an emergency response plan, approved by the Fire Chief that requires the removal of all recreational vehicles in the event of a hurricane. At a minimum, all recreational vehicles and occupants shall evacuate when notified of a "Hurricane Watch" being issued for the city. Any amendment by the owner or operator to an approved evacuation plan requires approval by the Fire Chief.
(Ord. 29-20, § 4, 5-11-2020)
Every special exception for a campground must be approved through the Special Exception process. If a campground is approved by the Hearing Examiner or City Council, such campground shall comply not only with the conditions, if any, imposed by the Hearing Examiner or City Council, but also shall comply with the following special regulations:
A.
General provisions. Facilities to accommodate administration, maintenance, and recreation may be included within a campground. Campgrounds shall be deemed to be nonresidential uses, and any camp site occupied by a registered guest of a campground shall not be deemed to be a "residence", "dwelling." or "residential premises" within the meaning of other provisions of the City of Cape Coral regulations.
B.
Location. No new campgrounds shall be developed and no existing campground shall be expanded within a coastal high hazard area, as depicted in the Comprehensive Plan.
C.
Minimum interior road standards. All interior roads shall be privately owned and maintained, and shall be constructed in accordance with the public road standards within the City of Cape Coral Engineering Design standards.
D.
Overall camp site density is limited to 5 camp sites per acre, based on net area.
For purposes of this section, the net area shall mean the area of the campground minus extant wetland areas and water areas (e.g. streams, waterways, lakes, estuaries). If an extant wetland or water area is expanded or contracted, the net area shall be based on the resultant wetland and water areas.
E.
Camp sites. Camp sites can be designed for any temporary lodging which does not utilize a permanent structure. The following standards shall apply to camp sites within a campground:
1.
No camp site shall include any space used for common areas, such as roadways, sidewalks, or community recreation areas;
2.
No more than 25% of the total camp sites shall be used by a recreational vehicle at any given time.
3.
Impervious area shall not exceed 65% of any camp site. Pervious areas of each camp site shall be covered in turf, groundcover, shrubs, trees, or any combination thereof;
4.
Each camp site shall have direct vehicular access to an interior road. No camp site shall have direct vehicular access to a public street;
5.
No camp site shall be located closer than 40 feet to any public street right-of-way;
F.
Lighting. All roads, walkways and parking areas shall be provided with lighting adequate to ensure the safety of vehicular and pedestrian traffic. All lighting shall be designed so that it is not directed toward neighboring properties.
G.
Recreation area. Each campground shall provide at least one recreation area, designed and improved to serve the recreational needs of the campground users.
H.
Operation generally.
1.
Responsibilities of management. The owner of a campground shall, at all times, maintain the campground and its facilities in a clean, orderly and sanitary condition. The campground management shall inform all registered occupants of camp sites of the provisions of this section and other related ordinances and statutes, and of their responsibilities thereunder.
2.
Length of occupancy. No owner of any campground shall allow or permit any camp sites in a campground to be rented to or occupied by any person or recreational vehicle for any period of time that would permit or allow any person or recreational vehicle to remain at such campground for more than 21 days in any 365-day period.
3.
The management of all camp sites must be performed by a single on-site management company or entity.
I.
Inspections authorized. The Director is hereby authorized to make periodic inspections of the campground and camp sites for the purpose of determining satisfactory compliance with the regulations of this section pertaining to the health, safety and welfare of the community.
J.
Incidental facilities and amenities. Various facilities and amenities incidental to a campground are permissible, however, all facilities and amenities must meet all requirements stated herein together with any additional conditions of approval. The following facilities may be approved as incidental to a campground:
1.
Administrative offices;
2.
Caretaker or watchperson residence (no more than one);
3.
Clubhouses;
4.
Gatehouses;
5.
Grounds maintenance facilities;
6.
Marine improvements;
7.
Restrooms and community showers; and
8.
Sanitary dump stations.
K.
Prohibitions. The following uses, activities or improvements listed below are prohibited within a campground:
1.
Permanent residential use is prohibited, except in an approved caretaker/watchperson residence.
2.
Lodging within any structure other than an approved recreational vehicle, caretaker or watchperson residence, or temporary camping structure is prohibited within a campground.
3.
The storage of a recreational vehicle, boat, or accessory trailer during any period when the owner or lessee of the vehicle is not a registered occupant of a camp site is prohibited. Storage of boats and accessory trailers is prohibited on individual camp sites or on internal roads.
4.
The parking of a recreational vehicle, automobile, or truck in an area not designated for parking is prohibited.
L.
Evacuation plan. Prior to operation of a campground, the owner or operator shall provide an emergency response plan, approved by the Fire Chief that requires the removal of all vehicles in the event of a hurricane or other natural disaster. At a minimum, all vehicles and occupants shall evacuate when notified of a "Hurricane Watch" being issued for the city. Any amendment by the owner or operator or its successors to an approved evacuation plan requires approval by the Fire Chief or designee.
(Ord. 29-20, § 4, 5-11-2020)
The purpose of this section is to encourage the redevelopment of commercial sites with existing single-family or duplex dwellings resulting from an amendment to the Comprehensive Plan, including future land use map amendments, which amendment was not the result of an application or other action by the property owner. These provisions will provide owners with greater flexibility in converting these properties to new commercial uses while promoting the health, safety, and welfare of the surrounding community.
(Ord. 33-24, § 1, 6-5-2024)
Notwithstanding any Code provision to the contrary, sites with existing single-family dwellings or duplexes that are proposed to be converted to a nonresidential use where the owner was not an applicant of the Comprehensive Plan change that rendered the original residential use of the site to a legal nonconformity, shall comply with the following standards:
1.
Parking. A minimum of three spaces, including one handicap space shall be required on the site.
2.
Commercial trash receptacles. A commercial trash receptable and accompanying enclosure shall not be required. Trash receptacles may be stored in the building and rolled out to the curb for service. Trash receptacles stored outside shall be screened from view by an opaque fence or wall with a height of six feet from all public rights-of-way and adjacent properties.
3.
Landscaping. Landscape buffers described in LDC, Section 5.5.13.C.5. shall not be required. Where a site with nonresidential zoning shares one or more property lines with a site with residential zoning, landscaping shall include four canopy trees per 100 linear feet and a row of shrubs spaced every three feet on center along the shared property line or lines of the nonresidential site. Accent and palm trees may be substituted for canopy trees at the rate of two accent trees for every canopy tree, and three palms for every canopy tree. All shrubs shall be a minimum of 32 inches in height and be in at least a seven-gallon container size at time of planting.
4.
Sidewalks, alleys, and other right-of-way improvements. Right-of-way improvements when absent along an arterial or collector road shall be constructed consistent with LDC, Section 5.1.8. Required right-of-way improvements along local streets and alleys may be waived, in whole or in part, by the Director, at the sole discretion of the Director. In determining whether to waive any required right-of-way improvements, the Director shall consider the following:
a.
Whether the required right-of-way improvements will provide continuity with similar right-of-way improvements already present within the subject block along the subject street or alley; or
b.
Whether the site is within walking distance of ½ mile from a school or public park; or
c.
Whether the subject site has two or more sides of frontage along a public right-of-way lacking right-of-way improvements.
5.
Demolition of nonconforming residential building. In the event the owner of the site when the future land use amendment was approved demolishes the nonconforming single-family or duplex building, or proposes improvements that collectively equal or exceed 50% of the building value over a 12-month period, the provisions of this Chapter 13 shall not apply, and the site shall be redeveloped in conformance with the applicable provisions of the LDC. This provision, however, shall not restrict or prevent the owner from seeking relief from a provision appearing in the LDC that any other owner may be entitled to request.
6.
Other regulations and permits. Except as provided above, the owner of the site shall comply with all applicable local, state, and federal laws and regulations, including, but not limited to, applying for and obtaining any permits required for the development.
(Ord. 33-24, § 1, 6-5-2024)