47 - HOUSING OPPORTUNITY OVERLAY ZONE
A.
The housing opportunity overlay zone (HOO) is established to facilitate the development of housing "by-right" on underutilized industrial sites. The HOO zone is intended to be applied to properties that are currently zoned heavy manufacturing (M-2) and permits discontinued manufacturing uses to recycle to residential development. The overlay zone is further intended to serve as an implementation tool of the city's housing element of the general plan by facilitating residential development on identified "housing opportunity sites."
B.
The HOO has the following major objectives:
1.
Create "by-right" opportunities for residential development on underutilized manufacturing sites.
2.
Implement state laws that require cities to demonstrate available land capacity and zoning tools to accommodate the city's projected need for housing.
3.
Provide a mix of housing types.
4.
Facilitate well-designed new mixed-use development projects that combine residential and nonresidential uses (e.g., office, retail, business services, personal services, public spaces and uses, other community amenities, etc.) to promote a better balance of jobs and housing.
5.
Stimulate economic development and reinvestment through regulations based upon recognized urban design principles that allow property owners to respond with flexibility to market forces.
6.
Provide additional property rights while preserving existing property rights. This intent is achieved by providing additional development rights in compliance with this chapter, which property owners may exercise under certain conditions, while retaining all development rights conferred by the underlying zone to property owners in the HOO zone. Incentives and advantages include allowing a greater range and mix of uses and specifying more permissive dimensional specifications (e.g., greater floor area ratio, lot coverage ratio, and height, reduced setbacks, etc.).
(Ord. No. 656, § 4 (Exh. A), 11-19-2013)
A.
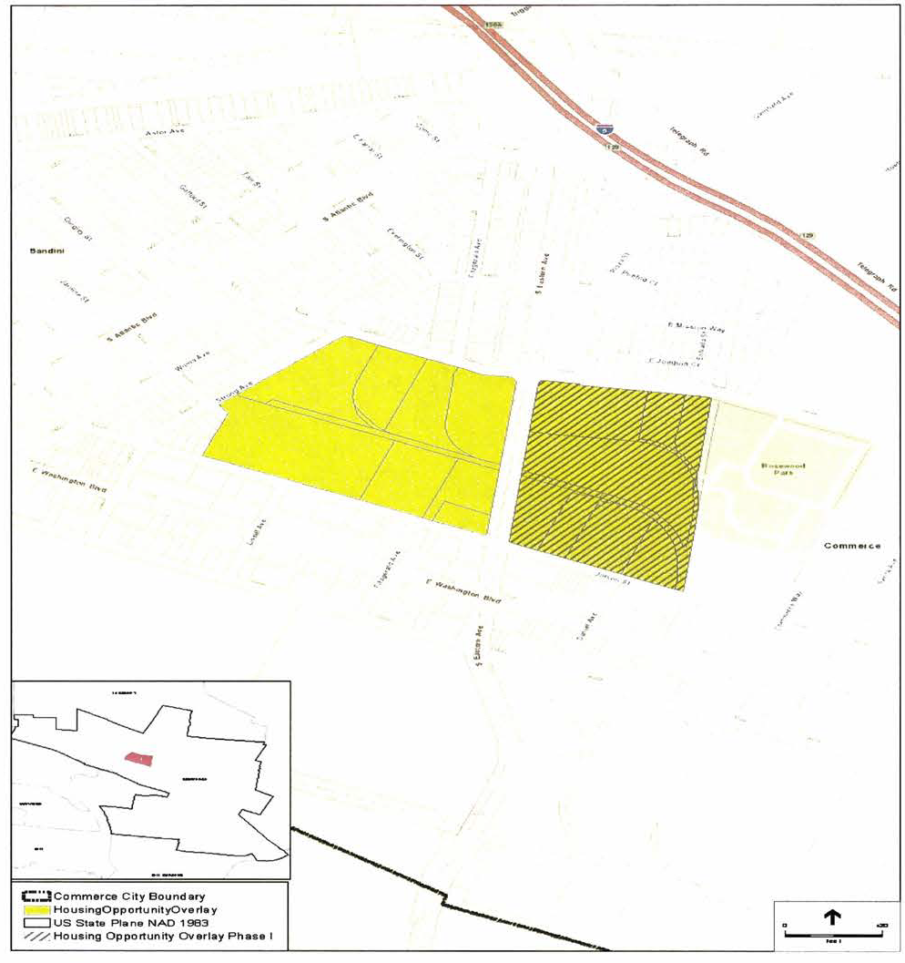
Application to Area. The HOO is an overlay zone to be used only in conjunction with an underlying heavy manufacturing (M-2) zone. The HOO area applies to approximately forty-four acres within the Rosewood Planning Area and is generally bounded by Harbor Street on the north, the Jillson Street on the south, Strong Avenue on the west and with no formal boundary on the east (eastern boundary is the Commerce Civic Center, Aquatorium and Rosewood Park), as depicted in Figure 1.
FIGURE 1: HOUSING OPPORTUNITY OVERLAY ZONE
B.
Relationship Between Base Zone Standards and Overlay Zone Standards. For property within the HOO zone, the regulations in this chapter allow residential and mixed-use development as an alternative to the stand-alone industrial development allowed under the base (underlying) zone standard.
C.
Base Zone Standards.
1.
The provisions in this chapter shall apply to all properties within the HOO zone, but the provisions do not supersede the underlying base zone provisions until a property is developed in compliance with the provisions of this chapter. New projects may be developed in compliance with the existing underlying base zone, provided that all standards and requirements of the underlying base zone are met.
2.
Regulations, development standards, and requirements in the underlying base zone shall continue to apply to those projects that are currently developed according to the existing standards.
3.
For legal nonconforming uses (i.e., uses that do not comply with the provisions of the base zone), the provisions in Chapter 19.37 (Nonconforming Uses and Structures) shall apply.
D.
Option to Apply HOO Zone Standards. The owner or developer of any property within the HOO zone may choose to develop in compliance with the standards and procedures in this chapter.
E.
Conversion of existing nonresidential structures into a residential use may be permitted subject to a conditional use permit pursuant to Chapter 19.39, Division 7 (Conditional Use Permit).
F.
After Completion of Development. Once a property is developed in compliance with the provisions of this chapter, the provisions of this chapter completely supersede the provisions of the underlying base zone. Whenever the requirements of the HOO zone impose a more or less restrictive standard than the provisions of the underlying base zone, the requirements of the HOO zone shall govern.
(Ord. No. 656, § 4 (Exh. A), 11-19-2013)
A.
All uses in the applicable underlying zone are allowed. In addition, Table 19.11.030A identifies the uses permitted in the HOO zone.
B.
Certain permitted uses and conditionally permitted uses may be subject to special conditions regarding location, operation or the design of the use. Such uses are marked in Table 19.11.030A with an asterisk (*), and the special conditions that apply are contained in Chapter 19.31 (Standards for Specific Land Uses) of this title.
C.
The "notes and exceptions" column of Table 19.11.030A indicates more precisely the use regulations for specific operating characteristics. The notes and exceptions must be reviewed in conjunction with the other information for that class of use.
D.
For uses or activities not specifically identified in Table 19.11.030A, the community development director shall have the authority to interpret and assign the use. The decision of the community development director can be appealed to the planning commission pursuant to Chapter 19.39, Division 4 (Appeals and Revocations) of this title.
E.
Any use or activity not identified in Table 19.11.030A, or any use or activity not interpreted by the community development director, shall be prohibited.
Table 19.47.030A
Uses in Housing Opportunity Overlay Zone
NOTE: All uses are subject to performance standards as defined in Chapter 19.19.
* = See "Notes and Exceptions" column.
P = Permitted by right.
X = Not permitted.
P/C = Either permitted by right or subject to conditional use permit review, depending upon criteria contained in Chapter 19.31
C = Conditional use permit required.
(Ord. No. 656, § 4 (Exh. A), 11-19-2013)
A.
All development in the HOO zone shall conform to the development standards set forth in Table 19.11.040A.
Table 19.11.040A
Development Standards—Housing Opportunity Overlay Zone (HOO)
Abbreviations: sf = square feet; ft. = feet or foot
(Ord. No. 656, § 4 (Exh. A), 11-19-2013)
A.
This section provides frontage type standards for buildings in the HOO zone. Types of frontages include:
1.
Live-Work/Office Fronts. A frontage that reinforces both residential and work activities that can occur in the building. The elevation of the ground floor is located at or near the grade of sidewalk to provide direct public access to the building. Entrances and windows are provided on the front of the facade to provide eyes on the street and direct sidewalk access to commercial and office uses. The front setback (if provided) may be improved with landscaping or as an extension of the public sidewalk to create a more pedestrian-friendly environment.
a.
Elevation of Ground Floor. The ground floor elevation shall be located near the elevation of the sidewalk to minimize the need for external steps and external ADA ramps at public entrances.
b.
Minimum Ground Floor Interior Height. Twelve feet minimum (floor-to-floor height—Commercial Ready).
c.
Ground Floor Unit Entrances. All ground floor tenant spaces that have street frontage shall have entrances on a facade fronting a street. All other ground floor uses may have a common lobby entrance along the front facade or private entrances along other facades.
d.
Upper Floor Unit Entrances. Entrances to upper floor units may be provided through a common lobby entrance and/or by a common entrance along a facade fronting a street.
e.
Recessed Entrances. Entrances may be recessed into the facade.
f.
Awnings and Marquees. Awnings or marquees may be provided over storefront windows and entrances. Awning and marquees may project up to six feet from the facade and extend over the sidewalk provided that at least eight feet of vertical clearance is provided.
g.
Projecting Elements (Balconies, Roof Overhangs, Shade Structures, and Bay Windows). Projecting elements on upper floors may project four feet from the facade and project into the setback.
h.
Sidewalk and Setback Treatment. The public sidewalk shall be improved with street trees with an average spacing of thirty feet on-center and pedestrian-scaled street lights (no taller than fourteen feet). If the front facade is setback from the public sidewalk, the setback shall be landscaped and/or improved as an extension of the public sidewalk.
2.
Residential Fronts. A frontage that reinforces the residential character and use of the building. The elevation of the ground floor is elevated above the grade of the lot to provide privacy for residences by preventing direct views into the home from the sidewalk. Entrances and windows are provided on the front of the facade to provide eyes on the street and direct sidewalk access to the building. Stoops are allowed to project into the front setback to enhance entrances. The front setback is primarily improved with landscaping.
a.
Elevation of Ground Floor. The ground floor elevation shall be located within six feet of the ground surface of the adjacent sidewalk or walkway.
b.
Minimum Ground Floor Ceiling Height. Ten feet minimum (floor-to-floor height).
c.
Ground Floor Unit Entrances. Entrances to ground floor units that have street frontage may be provided through a common lobby entrance and/or by private entrances from the adjacent sidewalk.
d.
Upper Floor Unit Entrances. Entrances to upper floor units may be provided through a common lobby entrance and/or by a common entrance along a facade fronting a street.
e.
Recessed Entrances. Entrances may be recessed into the facade.
f.
Stoops and Front Porches. Stoops and front porches may be provided in front of building and unit entrances. Stoops and front porches may project up to six feet from the facade and project into the setback.
g.
Projecting Elements (Balconies, Roof Overhangs, Shade Structures, and Bay Windows). Projecting elements on upper floors may project four feet from the facade and project into the setback.
h.
Sidewalk and Setback Treatment. The public sidewalk shall be improved with street trees with an average spacing of thirty feet on-center and pedestrian-scaled street lights (no taller than fourteen feet). If the front facade is setback from the public sidewalk, the setback shall be landscaped (excluding stoops/front porches and paved paths to building entrances).
3.
Storefronts. A frontage that reinforces the commercial character and use of the ground floor of the building. The elevation of the ground floor is located at or near the grade of sidewalk to provide direct public access into the building. Large storefronts display windows are provided on the front of the facade to encourage visual access to merchandise displays and to encourage window shopping. Awnings or marquees are provided over storefront windows and entrances. The front setback (if provided) is primarily improved as an extension of the public sidewalk to create a more pedestrian-friendly environment.
a.
Elevation of Ground Floor. The ground floor elevation shall be located near the elevation of the sidewalk to minimize the need for external steps and external ADA ramps at public entrances.
b.
Minimum Ground Floor Ceiling Height. Fifteen feet minimum (floor-to-floor height).
c.
Storefront Entrances. All ground floor tenant spaces that have street frontage shall have storefront entrances on the facade fronting a street.
d.
Lobby Entrances. Lobby entrances to upper floor uses shall be located on a facade fronting a street.
e.
Recessed Entrances. Storefront and lobby entrances may be recessed into the facade.
f.
Awnings and Marquees. Awnings or marquees are required over storefront windows and entrances. Awning and marquees may project up to six feet from the facade and extend over the sidewalk provided that at least eight feet of vertical clearance is provided.
g.
Projecting Elements (Balconies, Shade Structures, and Bay Windows). Projecting elements on upper floors may project four feet from the facade and project into the setback.
h.
Sidewalk and Setback Treatment. The public sidewalk shall be improved with street trees with an average spacing of thirty feet on-center and pedestrian-scaled street lights (no taller than fourteen feet). If the front facade is setback from the public sidewalk, the setback shall be improved as an extension of the public sidewalk.
(Ord. No. 656, § 4 (Exh. A), 11-19-2013)
This section provides open space standards for development within the HOO zone.
A.
Usable Open Space Defined. Usable open space areas are an open area or an indoor or outdoor recreational facility which is designed and intended to be used for outdoor living and/or recreation. Usable open space shall not include any portion of parking areas, streets, driveways, sidewalks, or turnaround areas.
B.
The following standards shall apply to the requirements for open space:
1.
Private Residential Open Space.
a.
For stand-alone multi-family residential projects or as part of a mixed-use development, each residential unit shall be provided with at least one area of private open space accessible directly from the living area of the unit, in the form of a fenced yard or patio, a deck or balcony at a minimum area of one hundred fifty square feet per unit for first floor units and one hundred square feet per unit for upper floors.
b.
The minimum dimension, width or depth, of a balcony shall be five feet.
2.
Common Residential Open Space.
a.
For stand-alone multi-family residential developments, each residential unit shall be provided with at least two hundred square feet of common residential open space.
b.
All common open space shall be conveniently located and accessible to all dwelling units on the site.
c.
Common open space areas may include landscaping, pedestrian paths, and recreational facilities.
d.
In projects containing fewer than ten units, the common open space shall have a minimum width and depth of ten feet. In projects containing ten or more units, the minimum width and depth shall be twenty feet.
3.
Recreational Amenities/Facilities.
a.
For projects containing twenty-five or more residential units in stand-alone multi-family residential developments and as part of a mixed-use development, one common recreational amenity shall be provided for each thirty units or fraction thereof. The following listed amenities satisfy the above recreational facilities requirements. Recognizing that certain facilities serve more people than others, have a wider interest or appeal, and/or occupy more area, specified items may be counted as two amenities, as noted. In all cases, each square foot of land area devoted to a recreational amenity shall be credited as common open space on a 1:1 basis.
i.
Clubhouse (two);
ii.
Swimming pool (two);
iii.
Tennis court (one per court);
iv.
Basketball court (one per court);
v.
Racquetball court (one per court);
vi.
Weightlifting facility;
vii.
Children's playground equipment;
viii.
Sauna;
ix.
Jacuzzi;
x.
Day care facility (two);
xi.
Other recreational amenities deemed adequate by the community development director.
(Ord. No. 656, § 4 (Exh. A), 11-19-2013)
A.
Each project proposed within the HOO zone must include a public open space amenity, or some form of physical interface for the pedestrian. Such features may include, but not be limited to:
1.
Formal Plazas. A formal plaza would be a publicly accessible open space which has a design that is influenced by classical urban planning design. A formal plaza would typically include some sort of central water fountain and/or symmetrical landscaping.
2.
Urban Gardens. An urban garden can be located on the ground level, or on upper levels of a structure. Urban gardens include ornamental landscaping arranged in raised or at-grade planters or planting areas, potted plants and trees. Many times there are sculptures or other forms of public art that are included within the urban garden.
3.
Covered Colonnades. Colonnades are linear in design and generous in depth. The intent is to provide a comfortably wide, covered pathway that is adjacent to the openings of a building. Sometimes the second floor of a building is utilized to create the "covered" element of the colonnade.
4.
Sidewalk Dining. Sidewalk dining may occur wherever a sidewalk space is ample enough to accommodate dining furniture without impeding pedestrian access of the sidewalk. Sidewalk dining may be defined with a railing or planters, or be open and accessible.
5.
Pedestrian Alleys and Walkways. A pedestrian alley or walkway is typically a "lane" that does not follow the alignment of a vehicular street, but provides a pedestrian access to either a public space or some other feature within the interior of a development. Pedestrian alleys or walkways must be designed in such a manner so as to be inviting to pedestrians. Therefore, issues such as lighting, security, line of sight, cleanliness and visual appeal are important considerations to a well designed pedestrian alley or walkway. Sometimes public art, street furniture and access to shops and public spaces are features of pedestrian alleys and walkways.
(Ord. No. 656, § 4 (Exh. A), 11-19-2013)
This section provides operational and compatibility standards for the development of live/work units within the HOO.
A.
Allowed Uses.
1.
The nonresidential component of a live/work unit shall only be a nonresidential use allowed within the HOO zone, except that certain uses are determined to be not appropriate within a residential environment and are therefore prohibited as provided in subsection (B) below.
2.
The residential component of a live/work unit shall only be a residential use allowed within the HOO zone.
B.
Prohibited Uses.
1.
A live/work unit shall not be used for any of the following activities or similar activities as determined by the director:
a.
Adult-oriented businesses;
b.
Animal care or boarding;
c.
Classroom instruction (e.g., art/music lessons, tutoring, and similar uses) involving five or more students at any one time;
d.
Commercial food preparation activities;
e.
Industrial uses;
f.
Vehicle maintenance or repair (i.e., body or mechanical work, including boats and recreational vehicles), vehicle detailing and painting, upholstery, etc.;
g.
Storage of flammable liquids or hazardous materials beyond that normally associated with a residential use;
h.
Medical and dental offices, clinics, and laboratories (not including chiropractors or counselors/psychotherapists).
2.
Activities or uses that are not compatible with residential activities or that would clearly conflict with other live/work activities or the character of the surrounding neighborhood as determined by the director; and
3.
Activities or uses that would adversely affect the health or safety of live/work unit residents, because of dust, glare, heat, noise, noxious gases, odor, smoke, traffic, vibration, or other impacts, or that would be hazardous because of materials, processes, products, or wastes.
C.
Site Planning and Design Standards.
1.
Each live/work unit fronting a public right-of-way shall have a pedestrian-oriented frontage that allows views into the interior of the nonresidential areas of the unit.
2.
Each live/work unit shall have a clearly identified, separate access from other live/work units within the structure or development. Access to individual units shall be from common access areas, parking lots, or walkways. Access to each unit shall be clearly identified to provide for emergency services.
3.
The living space within the live/work unit shall be contiguous with the working space, with direct access between the two areas.
D.
Operational Standards.
1.
No portion of a live/work unit shall be separately sold or rented.
2.
The owner or developer of a structure containing live/work units shall provide written notice to all occupants, tenants, and users that the surrounding area may be subject to higher impacts associated with nonresidential uses (e.g., noise) than exist in more predominantly residential areas. Performance standards for live/work units shall be those applicable to nonresidential uses allowed in the zone in which the live/work units are located.
3.
All activities related to the "work" component of a live/work unit shall be conducted within a completely enclosed building.
4.
Up to two additional persons who do not reside in the live/work unit may work in the unit.
5.
Client and customer visits to live/work units are allowed.
6.
Parking for each live/work unit shall be provided in compliance with Chapter 19.21 (Off-Street Parking Requirements).
7.
A live/work unit shall not be converted to either entirely residential use or entirely nonresidential use.
8.
A live/work use may display a window or building-mounted sign up to a maximum of five percent of the building frontage area used for commercial purposes. Signs shall not be illuminated, including neon signs.
(Ord. No. 656, § 4 (Exh. A), 11-19-2013)
This section provides operational and compatibility standards for mixed-use development within the HOO zone. Nonresidential uses are restricted to the ground floor only.
A.
Operational Standards.
1.
Joint Tenants and Owners Association.
a.
A joint tenants and owners association shall be formed to ensure the well-being of each tenant and owner in a mixed-use project.
b.
The association bylaws, including voting rights, shall be subject to review by the city attorney and approval by the director. The association's bylaws shall include the following:
i.
Assignment of parking spaces per each use.
ii.
Identification of maintenance responsibilities for landscaping, parking facilities, and recycling and refuse storage facilities. Noise notification procedures.
iii.
Relationship between uses regarding association representation.
iv.
Voting procedures.
v.
Procedures for solving problems that may arise between the different types of uses or residents.
2.
Loading and Unloading Activities. Where applicable, the covenants, conditions, and restrictions of a mixed-use project shall indicate the times when the loading and unloading of goods may occur on the street, provided that in no event shall loading or unloading take place after ten o'clock p.m. or before seven o'clock a.m. on any day of the week.
3.
Noise Notification.
a.
Residents, whether owners or tenants, of a mixed-use development project shall be notified in writing before taking up residence that they will be living in an urban type of environment and that the noise levels may be higher than a typical residential area.
b.
The covenants, conditions, and restrictions of a mixed-use project shall require that the residents acknowledge their receipt of the written noise notification. Their signatures shall confirm receipt and understanding of this information
B.
Fences and Walls. In addition to the regulations in Section 19.09.060 (Fences, hedges, and walls, commercial zone), fences and walls shall be subject to the following regulations:
1.
Separation Wall Required. A masonry separation wall shall be constructed on all property lines adjacent to any single-family residential district. Pedestrian access points are encouraged and may be allowed subject to approval of the director. The separation wall shall be six feet in height, as measured from the highest elevation of land contiguous to the wall, except in a required front setback area and in a required exterior side setback area for a corner, reverse corner or key lot, where the wall shall be limited to thirty-six inches in height.
2.
Other Fences and Walls. Fences and walls are allowed in any yard area subject to the following height regulations:
a.
Front Yard Area. In the front yard area, the height shall be limited to thirty-six inches.
b.
Street Side Yard. In street side yard areas, the height shall be limited to thirty-six inches.
c.
All Other Areas. In all other areas, the height shall be limited to six feet, as measured from the side of the fence or wall with the highest grade.
3.
Location. All perimeter fences and walls shall be constructed on the property line unless a different location is permitted by the community development director. No parallel wall or fence shall be constructed less than five feet from an existing wall or fence, unless approved by the community development director.
4.
Materials.
a.
Chain link fencing shall not be erected between a primary or accessory structure and a public or private street, except that chain link fencing may be used for security purposes for public utility structures and for temporary fencing needs (construction sites, special events, vacant lots, etc.).
b.
Barbed wire and concertina wire are prohibited, except at public utility structures.
C.
Landscaping. Landscaping shall comply with Chapter 19.23 (Landscaping).
D.
Screening and Buffering—Mechanical Equipment and Trash Facilities. Mechanical and air-conditioning equipment shall be screened and buffered in compliance with Section 19.19.100 (Mechanical equipment screening) and trash facilities shall be screened and buffered in compliance with Section 19.19.140 (Solid waste receptacles and enclosures).
E.
Signs. Signs shall comply with Chapter 19.25 (Signs). In addition, in the HOO zone where both residential and nonresidential uses are allowed, the signage rights and responsibilities applicable to a particular use shall be determined as follows: residential uses shall be treated as if they were located in the residential area where that type of use would be allowed as a matter of right, and nonresidential uses shall be treated as if they were located in a zone where that particular use would be allowed, either as a matter of right or subject to a discretionary process.
F.
Sound Mitigation. Residential dwelling units shall be designed to be sound attenuated against present and future project noise. New projects or new nonresidential uses in existing projects shall provide an acoustical analysis report, by an acoustical engineer, describing the acoustical design features of the structure required to satisfy the exterior and interior noise standards.
G.
Design Criteria.
1.
A mixed-use development project shall be designed and constructed to:
a.
Be pedestrian in its focus by:
i.
Providing direct pedestrian linkages to adjacent public sidewalks.
ii.
Creating enhanced pedestrian connections throughout the project between residential and nonresidential uses and parking areas.
iii.
Providing enhanced pedestrian amenities throughout the project, including seating, pedestrian area lighting, special paving, public art, water features, common open space, directories, and similar items to create a pleasant pedestrian experience.
b.
Incorporating architectural design elements and materials that relate to a pedestrian scale.
c.
Locate uses in proximity to one another without large intervening parking lots so that it is convenient for people to walk between the various uses and park their vehicles only once.
d.
Create a pedestrian scale and character of development along the street by providing significant wall articulation and varying roof heights, incorporating pedestrian scale elements (e.g., doors, windows, lighting, landscaping), and locating storefronts and common open space areas (e.g., plaza, courtyard, outdoor dining) near the public sidewalk to contribute to an active street environment.
2.
Consistent Use of Architectural Details and Materials. Architectural style and use of quality materials shall be compatible and consistent throughout an entire mixed-use project. However, differences in architectural details and materials may occur to differentiate between the residential and nonresidential portions of the project. The overall project design and site layout shall be one that promotes a strong pedestrian environment and active street frontage. This can be accomplished by incorporating features into the project as outlined in subsection (3) below.
3.
Features.
a.
Street Level Features. Variations in the front building plane shall be incorporated through the use of varying building setbacks, variations in wall planes, and the inclusion of pedestrian amenities (e.g., plaza, courtyard, outdoor dining, landscaping). Long expanses of blank walls shall be prohibited.
b.
Pedestrian-Oriented Features. At least seventy-five percent of the building frontage facing a public street, primary pedestrian way, or parking lot shall be devoted to pedestrian-oriented features (e.g., storefronts, pedestrian entrances to nonresidential uses; transparent display windows; landscaping).
c.
Upper Level Features. Upper floor balconies, bays, and windows shall be provided whenever opportunities exist for these types of features.
d.
Entrances. When nonresidential and residential uses are located in a vertical mixed use structure, separate pedestrian entrances shall be provided for each use. The entrances for nonresidential uses shall be designed to be visually distinct from the entrances for residential uses. Entrances to individual residential units in a vertical mixed use project shall not be allowed along a street frontage. Instead shared entrances to residential units located above the ground floor shall be from lobbies that serve multiple units.
e.
Neighborhood Interface. The design of new infill development shall be sensitive to the scale and design characteristics of established structures in abutting residential neighborhoods, with the objective of achieving a harmonious transition between the new development and existing neighborhood. Consideration shall be given to factors including, but not limited to, orientation of architectural features, building articulation, and exterior building treatments.
f.
Lighting. Lighting shall be incorporated along sidewalks or other pedestrian walkways, plazas, paseos, courtyards, and other common open areas to enhance the pedestrian environment and increase public safety. Lighting for nonresidential uses shall be designed, located, and shielded to ensure that they do not adversely impact the residential uses, but shall provide sufficient illumination for access and security purposes consistent with the provisions of Section 19.19.130 (Lighting).
g.
Security. Projects shall be designed to minimize security risks to residents and to minimize the opportunities for vandalism and theft. This may be accomplished by:
i.
Maximizing visibility to common open space areas, internal walkways, and public sidewalks. Use opportunities for natural surveillance to increase visibility.
ii.
Using walkways, low fences, lighting, signage, and landscaping to clearly guide people and vehicles to and from the proper entrances.
iii.
Eliminating areas of concealment, hiding places, and dead spaces.
iv.
Using lighting to improve the visibility of common areas while enhancing the pedestrian environment. Lighting should not be overly bright and should provide a uniform level of light over the subject area to eliminate dark spaces.
(Ord. No. 656, § 4 (Exh. A), 11-19-2013)
This section provides standards for outdoor dining areas within the HOO zone. Outdoor dining restricted is restricted to the ground floor only.
A.
Public Property. Outdoor dining on public property shall require approval of an encroachment permit by the public works director and compliance with the standards of the public works department.
B.
Private Property. Outdoor dining on private property shall comply with the following standards:
1.
Coordinated Design Scheme. The design and appearance of proposed improvements or furniture (e.g., tables, chairs, benches, umbrellas, planters, menu boards, etc.) to be placed in an outdoor dining area shall present a coordinated theme and shall be compatible with the appearance and design of the primary structure, as determined by the director.
2.
Hours of Operation. Hours of operation for outdoor dining areas shall coincide with those of the associated indoor restaurant.
3.
Property Maintenance. The operator shall maintain the outdoor dining area(s) in a neat, clean, and orderly condition at all times. This shall include all tables, benches, chairs, displays, or other related furniture. An adequate number of trash receptacles shall be provided to serve the outdoor dining area.
4.
Outdoor Bar Prohibited. A bar designed and/or operated to sell or dispense any alcoholic beverages shall not be allowed in the outside dining area.
5.
Location. Outdoor dining areas may be allowed to locate in required setback areas but shall not encroach into required parking areas. They may be allowed to encroach into a public right-of-way with an approved encroachment permit issued by the city engineer.
6.
Noise. Amplified sound (e.g., music, television, etc.) shall not be audible beyond the lot line.
C.
Review Criteria. When reviewing an application to allow outdoor dining, the review authority shall consider the relation of outdoor dining areas to sensitive noise receptors (e.g., hospitals, schools, and residential uses). Mitigation measures shall be applied to eliminate potential impacts related to glare, light, loitering, and noise.
(Ord. No. 656, § 4 (Exh. A), 11-19-2013)
This section will include standards for the design (width, pavement, fire access requirements, etc.) and placement (distance from intersections, line of sight standards, etc.) of driveways within the HOO zone.
A.
Access. Driveway access to a lot may be provided from a street or an adjacent property (if a shared access easement is provided). Driveways are encouraged to connect to other driveways to increase accessibility.
B.
Location. Driveway access points are prohibited within fifty feet of street intersections. A minimum of three hundred feet between driveways shall be maintained.
(Ord. No. 656, § 4 (Exh. A), 11-19-2013)
A.
Signage. All development within the HOO zone shall have a "sign program" as part of the project design. The sign program shall identify the location for all signage that may be located on the building, the allowable sign materials, lighting methods and sign design. In addition, temporary signs and banners will be included in the sign program, as to whether or not they are allowed, and if they are allowed, then where these signs may be located within the development project. At no time, shall the sign program allow for signage in excess of those standards within Chapter 19.25 (Signs). "Box" signs, "canister" or "can" signs are prohibited.
B.
Pedestrian-oriented, non-illuminated hanging "blade" signs that either hang under a colonnade or canopy, or project from the facade of a building, shall not be counted within the sign area formula that is used to calculate the maximum amount of sign area for each building. In other words, the hanging or projecting blade sign is a "free" sign in regards to being included in calculating the maximum amount of sign area that a development or store may have. In no case shall a pedestrian-oriented, non-illuminated hanging or projecting blade sign exceed two square feet maximum per sign face, or two square feet for a double-faced blade sign.
(Ord. No. 656, § 4 (Exh. A), 11-19-2013)
In addition to the requirements contained in Chapter 19.11, regulations contained in the following chapters of this title shall apply to development in the manufacturing zones:
Chapter 19.01: General Provisions
Chapter 19.19: Site Planning and General Development Standards
Chapter 19.21: Off-Street Parking and Loading
Chapter 19.23: Landscaping Standards
Chapter 19.25: Signs
Chapter 19.31: Standards for Specific Land Uses
Chapter 19.37: Nonconforming Uses and Structures
(Ord. No. 656, § 4 (Exh. A), 11-19-2013)
47 - HOUSING OPPORTUNITY OVERLAY ZONE
A.
The housing opportunity overlay zone (HOO) is established to facilitate the development of housing "by-right" on underutilized industrial sites. The HOO zone is intended to be applied to properties that are currently zoned heavy manufacturing (M-2) and permits discontinued manufacturing uses to recycle to residential development. The overlay zone is further intended to serve as an implementation tool of the city's housing element of the general plan by facilitating residential development on identified "housing opportunity sites."
B.
The HOO has the following major objectives:
1.
Create "by-right" opportunities for residential development on underutilized manufacturing sites.
2.
Implement state laws that require cities to demonstrate available land capacity and zoning tools to accommodate the city's projected need for housing.
3.
Provide a mix of housing types.
4.
Facilitate well-designed new mixed-use development projects that combine residential and nonresidential uses (e.g., office, retail, business services, personal services, public spaces and uses, other community amenities, etc.) to promote a better balance of jobs and housing.
5.
Stimulate economic development and reinvestment through regulations based upon recognized urban design principles that allow property owners to respond with flexibility to market forces.
6.
Provide additional property rights while preserving existing property rights. This intent is achieved by providing additional development rights in compliance with this chapter, which property owners may exercise under certain conditions, while retaining all development rights conferred by the underlying zone to property owners in the HOO zone. Incentives and advantages include allowing a greater range and mix of uses and specifying more permissive dimensional specifications (e.g., greater floor area ratio, lot coverage ratio, and height, reduced setbacks, etc.).
(Ord. No. 656, § 4 (Exh. A), 11-19-2013)
A.
Application to Area. The HOO is an overlay zone to be used only in conjunction with an underlying heavy manufacturing (M-2) zone. The HOO area applies to approximately forty-four acres within the Rosewood Planning Area and is generally bounded by Harbor Street on the north, the Jillson Street on the south, Strong Avenue on the west and with no formal boundary on the east (eastern boundary is the Commerce Civic Center, Aquatorium and Rosewood Park), as depicted in Figure 1.
FIGURE 1: HOUSING OPPORTUNITY OVERLAY ZONE
B.
Relationship Between Base Zone Standards and Overlay Zone Standards. For property within the HOO zone, the regulations in this chapter allow residential and mixed-use development as an alternative to the stand-alone industrial development allowed under the base (underlying) zone standard.
C.
Base Zone Standards.
1.
The provisions in this chapter shall apply to all properties within the HOO zone, but the provisions do not supersede the underlying base zone provisions until a property is developed in compliance with the provisions of this chapter. New projects may be developed in compliance with the existing underlying base zone, provided that all standards and requirements of the underlying base zone are met.
2.
Regulations, development standards, and requirements in the underlying base zone shall continue to apply to those projects that are currently developed according to the existing standards.
3.
For legal nonconforming uses (i.e., uses that do not comply with the provisions of the base zone), the provisions in Chapter 19.37 (Nonconforming Uses and Structures) shall apply.
D.
Option to Apply HOO Zone Standards. The owner or developer of any property within the HOO zone may choose to develop in compliance with the standards and procedures in this chapter.
E.
Conversion of existing nonresidential structures into a residential use may be permitted subject to a conditional use permit pursuant to Chapter 19.39, Division 7 (Conditional Use Permit).
F.
After Completion of Development. Once a property is developed in compliance with the provisions of this chapter, the provisions of this chapter completely supersede the provisions of the underlying base zone. Whenever the requirements of the HOO zone impose a more or less restrictive standard than the provisions of the underlying base zone, the requirements of the HOO zone shall govern.
(Ord. No. 656, § 4 (Exh. A), 11-19-2013)
A.
All uses in the applicable underlying zone are allowed. In addition, Table 19.11.030A identifies the uses permitted in the HOO zone.
B.
Certain permitted uses and conditionally permitted uses may be subject to special conditions regarding location, operation or the design of the use. Such uses are marked in Table 19.11.030A with an asterisk (*), and the special conditions that apply are contained in Chapter 19.31 (Standards for Specific Land Uses) of this title.
C.
The "notes and exceptions" column of Table 19.11.030A indicates more precisely the use regulations for specific operating characteristics. The notes and exceptions must be reviewed in conjunction with the other information for that class of use.
D.
For uses or activities not specifically identified in Table 19.11.030A, the community development director shall have the authority to interpret and assign the use. The decision of the community development director can be appealed to the planning commission pursuant to Chapter 19.39, Division 4 (Appeals and Revocations) of this title.
E.
Any use or activity not identified in Table 19.11.030A, or any use or activity not interpreted by the community development director, shall be prohibited.
Table 19.47.030A
Uses in Housing Opportunity Overlay Zone
NOTE: All uses are subject to performance standards as defined in Chapter 19.19.
* = See "Notes and Exceptions" column.
P = Permitted by right.
X = Not permitted.
P/C = Either permitted by right or subject to conditional use permit review, depending upon criteria contained in Chapter 19.31
C = Conditional use permit required.
(Ord. No. 656, § 4 (Exh. A), 11-19-2013)
A.
All development in the HOO zone shall conform to the development standards set forth in Table 19.11.040A.
Table 19.11.040A
Development Standards—Housing Opportunity Overlay Zone (HOO)
Abbreviations: sf = square feet; ft. = feet or foot
(Ord. No. 656, § 4 (Exh. A), 11-19-2013)
A.
This section provides frontage type standards for buildings in the HOO zone. Types of frontages include:
1.
Live-Work/Office Fronts. A frontage that reinforces both residential and work activities that can occur in the building. The elevation of the ground floor is located at or near the grade of sidewalk to provide direct public access to the building. Entrances and windows are provided on the front of the facade to provide eyes on the street and direct sidewalk access to commercial and office uses. The front setback (if provided) may be improved with landscaping or as an extension of the public sidewalk to create a more pedestrian-friendly environment.
a.
Elevation of Ground Floor. The ground floor elevation shall be located near the elevation of the sidewalk to minimize the need for external steps and external ADA ramps at public entrances.
b.
Minimum Ground Floor Interior Height. Twelve feet minimum (floor-to-floor height—Commercial Ready).
c.
Ground Floor Unit Entrances. All ground floor tenant spaces that have street frontage shall have entrances on a facade fronting a street. All other ground floor uses may have a common lobby entrance along the front facade or private entrances along other facades.
d.
Upper Floor Unit Entrances. Entrances to upper floor units may be provided through a common lobby entrance and/or by a common entrance along a facade fronting a street.
e.
Recessed Entrances. Entrances may be recessed into the facade.
f.
Awnings and Marquees. Awnings or marquees may be provided over storefront windows and entrances. Awning and marquees may project up to six feet from the facade and extend over the sidewalk provided that at least eight feet of vertical clearance is provided.
g.
Projecting Elements (Balconies, Roof Overhangs, Shade Structures, and Bay Windows). Projecting elements on upper floors may project four feet from the facade and project into the setback.
h.
Sidewalk and Setback Treatment. The public sidewalk shall be improved with street trees with an average spacing of thirty feet on-center and pedestrian-scaled street lights (no taller than fourteen feet). If the front facade is setback from the public sidewalk, the setback shall be landscaped and/or improved as an extension of the public sidewalk.
2.
Residential Fronts. A frontage that reinforces the residential character and use of the building. The elevation of the ground floor is elevated above the grade of the lot to provide privacy for residences by preventing direct views into the home from the sidewalk. Entrances and windows are provided on the front of the facade to provide eyes on the street and direct sidewalk access to the building. Stoops are allowed to project into the front setback to enhance entrances. The front setback is primarily improved with landscaping.
a.
Elevation of Ground Floor. The ground floor elevation shall be located within six feet of the ground surface of the adjacent sidewalk or walkway.
b.
Minimum Ground Floor Ceiling Height. Ten feet minimum (floor-to-floor height).
c.
Ground Floor Unit Entrances. Entrances to ground floor units that have street frontage may be provided through a common lobby entrance and/or by private entrances from the adjacent sidewalk.
d.
Upper Floor Unit Entrances. Entrances to upper floor units may be provided through a common lobby entrance and/or by a common entrance along a facade fronting a street.
e.
Recessed Entrances. Entrances may be recessed into the facade.
f.
Stoops and Front Porches. Stoops and front porches may be provided in front of building and unit entrances. Stoops and front porches may project up to six feet from the facade and project into the setback.
g.
Projecting Elements (Balconies, Roof Overhangs, Shade Structures, and Bay Windows). Projecting elements on upper floors may project four feet from the facade and project into the setback.
h.
Sidewalk and Setback Treatment. The public sidewalk shall be improved with street trees with an average spacing of thirty feet on-center and pedestrian-scaled street lights (no taller than fourteen feet). If the front facade is setback from the public sidewalk, the setback shall be landscaped (excluding stoops/front porches and paved paths to building entrances).
3.
Storefronts. A frontage that reinforces the commercial character and use of the ground floor of the building. The elevation of the ground floor is located at or near the grade of sidewalk to provide direct public access into the building. Large storefronts display windows are provided on the front of the facade to encourage visual access to merchandise displays and to encourage window shopping. Awnings or marquees are provided over storefront windows and entrances. The front setback (if provided) is primarily improved as an extension of the public sidewalk to create a more pedestrian-friendly environment.
a.
Elevation of Ground Floor. The ground floor elevation shall be located near the elevation of the sidewalk to minimize the need for external steps and external ADA ramps at public entrances.
b.
Minimum Ground Floor Ceiling Height. Fifteen feet minimum (floor-to-floor height).
c.
Storefront Entrances. All ground floor tenant spaces that have street frontage shall have storefront entrances on the facade fronting a street.
d.
Lobby Entrances. Lobby entrances to upper floor uses shall be located on a facade fronting a street.
e.
Recessed Entrances. Storefront and lobby entrances may be recessed into the facade.
f.
Awnings and Marquees. Awnings or marquees are required over storefront windows and entrances. Awning and marquees may project up to six feet from the facade and extend over the sidewalk provided that at least eight feet of vertical clearance is provided.
g.
Projecting Elements (Balconies, Shade Structures, and Bay Windows). Projecting elements on upper floors may project four feet from the facade and project into the setback.
h.
Sidewalk and Setback Treatment. The public sidewalk shall be improved with street trees with an average spacing of thirty feet on-center and pedestrian-scaled street lights (no taller than fourteen feet). If the front facade is setback from the public sidewalk, the setback shall be improved as an extension of the public sidewalk.
(Ord. No. 656, § 4 (Exh. A), 11-19-2013)
This section provides open space standards for development within the HOO zone.
A.
Usable Open Space Defined. Usable open space areas are an open area or an indoor or outdoor recreational facility which is designed and intended to be used for outdoor living and/or recreation. Usable open space shall not include any portion of parking areas, streets, driveways, sidewalks, or turnaround areas.
B.
The following standards shall apply to the requirements for open space:
1.
Private Residential Open Space.
a.
For stand-alone multi-family residential projects or as part of a mixed-use development, each residential unit shall be provided with at least one area of private open space accessible directly from the living area of the unit, in the form of a fenced yard or patio, a deck or balcony at a minimum area of one hundred fifty square feet per unit for first floor units and one hundred square feet per unit for upper floors.
b.
The minimum dimension, width or depth, of a balcony shall be five feet.
2.
Common Residential Open Space.
a.
For stand-alone multi-family residential developments, each residential unit shall be provided with at least two hundred square feet of common residential open space.
b.
All common open space shall be conveniently located and accessible to all dwelling units on the site.
c.
Common open space areas may include landscaping, pedestrian paths, and recreational facilities.
d.
In projects containing fewer than ten units, the common open space shall have a minimum width and depth of ten feet. In projects containing ten or more units, the minimum width and depth shall be twenty feet.
3.
Recreational Amenities/Facilities.
a.
For projects containing twenty-five or more residential units in stand-alone multi-family residential developments and as part of a mixed-use development, one common recreational amenity shall be provided for each thirty units or fraction thereof. The following listed amenities satisfy the above recreational facilities requirements. Recognizing that certain facilities serve more people than others, have a wider interest or appeal, and/or occupy more area, specified items may be counted as two amenities, as noted. In all cases, each square foot of land area devoted to a recreational amenity shall be credited as common open space on a 1:1 basis.
i.
Clubhouse (two);
ii.
Swimming pool (two);
iii.
Tennis court (one per court);
iv.
Basketball court (one per court);
v.
Racquetball court (one per court);
vi.
Weightlifting facility;
vii.
Children's playground equipment;
viii.
Sauna;
ix.
Jacuzzi;
x.
Day care facility (two);
xi.
Other recreational amenities deemed adequate by the community development director.
(Ord. No. 656, § 4 (Exh. A), 11-19-2013)
A.
Each project proposed within the HOO zone must include a public open space amenity, or some form of physical interface for the pedestrian. Such features may include, but not be limited to:
1.
Formal Plazas. A formal plaza would be a publicly accessible open space which has a design that is influenced by classical urban planning design. A formal plaza would typically include some sort of central water fountain and/or symmetrical landscaping.
2.
Urban Gardens. An urban garden can be located on the ground level, or on upper levels of a structure. Urban gardens include ornamental landscaping arranged in raised or at-grade planters or planting areas, potted plants and trees. Many times there are sculptures or other forms of public art that are included within the urban garden.
3.
Covered Colonnades. Colonnades are linear in design and generous in depth. The intent is to provide a comfortably wide, covered pathway that is adjacent to the openings of a building. Sometimes the second floor of a building is utilized to create the "covered" element of the colonnade.
4.
Sidewalk Dining. Sidewalk dining may occur wherever a sidewalk space is ample enough to accommodate dining furniture without impeding pedestrian access of the sidewalk. Sidewalk dining may be defined with a railing or planters, or be open and accessible.
5.
Pedestrian Alleys and Walkways. A pedestrian alley or walkway is typically a "lane" that does not follow the alignment of a vehicular street, but provides a pedestrian access to either a public space or some other feature within the interior of a development. Pedestrian alleys or walkways must be designed in such a manner so as to be inviting to pedestrians. Therefore, issues such as lighting, security, line of sight, cleanliness and visual appeal are important considerations to a well designed pedestrian alley or walkway. Sometimes public art, street furniture and access to shops and public spaces are features of pedestrian alleys and walkways.
(Ord. No. 656, § 4 (Exh. A), 11-19-2013)
This section provides operational and compatibility standards for the development of live/work units within the HOO.
A.
Allowed Uses.
1.
The nonresidential component of a live/work unit shall only be a nonresidential use allowed within the HOO zone, except that certain uses are determined to be not appropriate within a residential environment and are therefore prohibited as provided in subsection (B) below.
2.
The residential component of a live/work unit shall only be a residential use allowed within the HOO zone.
B.
Prohibited Uses.
1.
A live/work unit shall not be used for any of the following activities or similar activities as determined by the director:
a.
Adult-oriented businesses;
b.
Animal care or boarding;
c.
Classroom instruction (e.g., art/music lessons, tutoring, and similar uses) involving five or more students at any one time;
d.
Commercial food preparation activities;
e.
Industrial uses;
f.
Vehicle maintenance or repair (i.e., body or mechanical work, including boats and recreational vehicles), vehicle detailing and painting, upholstery, etc.;
g.
Storage of flammable liquids or hazardous materials beyond that normally associated with a residential use;
h.
Medical and dental offices, clinics, and laboratories (not including chiropractors or counselors/psychotherapists).
2.
Activities or uses that are not compatible with residential activities or that would clearly conflict with other live/work activities or the character of the surrounding neighborhood as determined by the director; and
3.
Activities or uses that would adversely affect the health or safety of live/work unit residents, because of dust, glare, heat, noise, noxious gases, odor, smoke, traffic, vibration, or other impacts, or that would be hazardous because of materials, processes, products, or wastes.
C.
Site Planning and Design Standards.
1.
Each live/work unit fronting a public right-of-way shall have a pedestrian-oriented frontage that allows views into the interior of the nonresidential areas of the unit.
2.
Each live/work unit shall have a clearly identified, separate access from other live/work units within the structure or development. Access to individual units shall be from common access areas, parking lots, or walkways. Access to each unit shall be clearly identified to provide for emergency services.
3.
The living space within the live/work unit shall be contiguous with the working space, with direct access between the two areas.
D.
Operational Standards.
1.
No portion of a live/work unit shall be separately sold or rented.
2.
The owner or developer of a structure containing live/work units shall provide written notice to all occupants, tenants, and users that the surrounding area may be subject to higher impacts associated with nonresidential uses (e.g., noise) than exist in more predominantly residential areas. Performance standards for live/work units shall be those applicable to nonresidential uses allowed in the zone in which the live/work units are located.
3.
All activities related to the "work" component of a live/work unit shall be conducted within a completely enclosed building.
4.
Up to two additional persons who do not reside in the live/work unit may work in the unit.
5.
Client and customer visits to live/work units are allowed.
6.
Parking for each live/work unit shall be provided in compliance with Chapter 19.21 (Off-Street Parking Requirements).
7.
A live/work unit shall not be converted to either entirely residential use or entirely nonresidential use.
8.
A live/work use may display a window or building-mounted sign up to a maximum of five percent of the building frontage area used for commercial purposes. Signs shall not be illuminated, including neon signs.
(Ord. No. 656, § 4 (Exh. A), 11-19-2013)
This section provides operational and compatibility standards for mixed-use development within the HOO zone. Nonresidential uses are restricted to the ground floor only.
A.
Operational Standards.
1.
Joint Tenants and Owners Association.
a.
A joint tenants and owners association shall be formed to ensure the well-being of each tenant and owner in a mixed-use project.
b.
The association bylaws, including voting rights, shall be subject to review by the city attorney and approval by the director. The association's bylaws shall include the following:
i.
Assignment of parking spaces per each use.
ii.
Identification of maintenance responsibilities for landscaping, parking facilities, and recycling and refuse storage facilities. Noise notification procedures.
iii.
Relationship between uses regarding association representation.
iv.
Voting procedures.
v.
Procedures for solving problems that may arise between the different types of uses or residents.
2.
Loading and Unloading Activities. Where applicable, the covenants, conditions, and restrictions of a mixed-use project shall indicate the times when the loading and unloading of goods may occur on the street, provided that in no event shall loading or unloading take place after ten o'clock p.m. or before seven o'clock a.m. on any day of the week.
3.
Noise Notification.
a.
Residents, whether owners or tenants, of a mixed-use development project shall be notified in writing before taking up residence that they will be living in an urban type of environment and that the noise levels may be higher than a typical residential area.
b.
The covenants, conditions, and restrictions of a mixed-use project shall require that the residents acknowledge their receipt of the written noise notification. Their signatures shall confirm receipt and understanding of this information
B.
Fences and Walls. In addition to the regulations in Section 19.09.060 (Fences, hedges, and walls, commercial zone), fences and walls shall be subject to the following regulations:
1.
Separation Wall Required. A masonry separation wall shall be constructed on all property lines adjacent to any single-family residential district. Pedestrian access points are encouraged and may be allowed subject to approval of the director. The separation wall shall be six feet in height, as measured from the highest elevation of land contiguous to the wall, except in a required front setback area and in a required exterior side setback area for a corner, reverse corner or key lot, where the wall shall be limited to thirty-six inches in height.
2.
Other Fences and Walls. Fences and walls are allowed in any yard area subject to the following height regulations:
a.
Front Yard Area. In the front yard area, the height shall be limited to thirty-six inches.
b.
Street Side Yard. In street side yard areas, the height shall be limited to thirty-six inches.
c.
All Other Areas. In all other areas, the height shall be limited to six feet, as measured from the side of the fence or wall with the highest grade.
3.
Location. All perimeter fences and walls shall be constructed on the property line unless a different location is permitted by the community development director. No parallel wall or fence shall be constructed less than five feet from an existing wall or fence, unless approved by the community development director.
4.
Materials.
a.
Chain link fencing shall not be erected between a primary or accessory structure and a public or private street, except that chain link fencing may be used for security purposes for public utility structures and for temporary fencing needs (construction sites, special events, vacant lots, etc.).
b.
Barbed wire and concertina wire are prohibited, except at public utility structures.
C.
Landscaping. Landscaping shall comply with Chapter 19.23 (Landscaping).
D.
Screening and Buffering—Mechanical Equipment and Trash Facilities. Mechanical and air-conditioning equipment shall be screened and buffered in compliance with Section 19.19.100 (Mechanical equipment screening) and trash facilities shall be screened and buffered in compliance with Section 19.19.140 (Solid waste receptacles and enclosures).
E.
Signs. Signs shall comply with Chapter 19.25 (Signs). In addition, in the HOO zone where both residential and nonresidential uses are allowed, the signage rights and responsibilities applicable to a particular use shall be determined as follows: residential uses shall be treated as if they were located in the residential area where that type of use would be allowed as a matter of right, and nonresidential uses shall be treated as if they were located in a zone where that particular use would be allowed, either as a matter of right or subject to a discretionary process.
F.
Sound Mitigation. Residential dwelling units shall be designed to be sound attenuated against present and future project noise. New projects or new nonresidential uses in existing projects shall provide an acoustical analysis report, by an acoustical engineer, describing the acoustical design features of the structure required to satisfy the exterior and interior noise standards.
G.
Design Criteria.
1.
A mixed-use development project shall be designed and constructed to:
a.
Be pedestrian in its focus by:
i.
Providing direct pedestrian linkages to adjacent public sidewalks.
ii.
Creating enhanced pedestrian connections throughout the project between residential and nonresidential uses and parking areas.
iii.
Providing enhanced pedestrian amenities throughout the project, including seating, pedestrian area lighting, special paving, public art, water features, common open space, directories, and similar items to create a pleasant pedestrian experience.
b.
Incorporating architectural design elements and materials that relate to a pedestrian scale.
c.
Locate uses in proximity to one another without large intervening parking lots so that it is convenient for people to walk between the various uses and park their vehicles only once.
d.
Create a pedestrian scale and character of development along the street by providing significant wall articulation and varying roof heights, incorporating pedestrian scale elements (e.g., doors, windows, lighting, landscaping), and locating storefronts and common open space areas (e.g., plaza, courtyard, outdoor dining) near the public sidewalk to contribute to an active street environment.
2.
Consistent Use of Architectural Details and Materials. Architectural style and use of quality materials shall be compatible and consistent throughout an entire mixed-use project. However, differences in architectural details and materials may occur to differentiate between the residential and nonresidential portions of the project. The overall project design and site layout shall be one that promotes a strong pedestrian environment and active street frontage. This can be accomplished by incorporating features into the project as outlined in subsection (3) below.
3.
Features.
a.
Street Level Features. Variations in the front building plane shall be incorporated through the use of varying building setbacks, variations in wall planes, and the inclusion of pedestrian amenities (e.g., plaza, courtyard, outdoor dining, landscaping). Long expanses of blank walls shall be prohibited.
b.
Pedestrian-Oriented Features. At least seventy-five percent of the building frontage facing a public street, primary pedestrian way, or parking lot shall be devoted to pedestrian-oriented features (e.g., storefronts, pedestrian entrances to nonresidential uses; transparent display windows; landscaping).
c.
Upper Level Features. Upper floor balconies, bays, and windows shall be provided whenever opportunities exist for these types of features.
d.
Entrances. When nonresidential and residential uses are located in a vertical mixed use structure, separate pedestrian entrances shall be provided for each use. The entrances for nonresidential uses shall be designed to be visually distinct from the entrances for residential uses. Entrances to individual residential units in a vertical mixed use project shall not be allowed along a street frontage. Instead shared entrances to residential units located above the ground floor shall be from lobbies that serve multiple units.
e.
Neighborhood Interface. The design of new infill development shall be sensitive to the scale and design characteristics of established structures in abutting residential neighborhoods, with the objective of achieving a harmonious transition between the new development and existing neighborhood. Consideration shall be given to factors including, but not limited to, orientation of architectural features, building articulation, and exterior building treatments.
f.
Lighting. Lighting shall be incorporated along sidewalks or other pedestrian walkways, plazas, paseos, courtyards, and other common open areas to enhance the pedestrian environment and increase public safety. Lighting for nonresidential uses shall be designed, located, and shielded to ensure that they do not adversely impact the residential uses, but shall provide sufficient illumination for access and security purposes consistent with the provisions of Section 19.19.130 (Lighting).
g.
Security. Projects shall be designed to minimize security risks to residents and to minimize the opportunities for vandalism and theft. This may be accomplished by:
i.
Maximizing visibility to common open space areas, internal walkways, and public sidewalks. Use opportunities for natural surveillance to increase visibility.
ii.
Using walkways, low fences, lighting, signage, and landscaping to clearly guide people and vehicles to and from the proper entrances.
iii.
Eliminating areas of concealment, hiding places, and dead spaces.
iv.
Using lighting to improve the visibility of common areas while enhancing the pedestrian environment. Lighting should not be overly bright and should provide a uniform level of light over the subject area to eliminate dark spaces.
(Ord. No. 656, § 4 (Exh. A), 11-19-2013)
This section provides standards for outdoor dining areas within the HOO zone. Outdoor dining restricted is restricted to the ground floor only.
A.
Public Property. Outdoor dining on public property shall require approval of an encroachment permit by the public works director and compliance with the standards of the public works department.
B.
Private Property. Outdoor dining on private property shall comply with the following standards:
1.
Coordinated Design Scheme. The design and appearance of proposed improvements or furniture (e.g., tables, chairs, benches, umbrellas, planters, menu boards, etc.) to be placed in an outdoor dining area shall present a coordinated theme and shall be compatible with the appearance and design of the primary structure, as determined by the director.
2.
Hours of Operation. Hours of operation for outdoor dining areas shall coincide with those of the associated indoor restaurant.
3.
Property Maintenance. The operator shall maintain the outdoor dining area(s) in a neat, clean, and orderly condition at all times. This shall include all tables, benches, chairs, displays, or other related furniture. An adequate number of trash receptacles shall be provided to serve the outdoor dining area.
4.
Outdoor Bar Prohibited. A bar designed and/or operated to sell or dispense any alcoholic beverages shall not be allowed in the outside dining area.
5.
Location. Outdoor dining areas may be allowed to locate in required setback areas but shall not encroach into required parking areas. They may be allowed to encroach into a public right-of-way with an approved encroachment permit issued by the city engineer.
6.
Noise. Amplified sound (e.g., music, television, etc.) shall not be audible beyond the lot line.
C.
Review Criteria. When reviewing an application to allow outdoor dining, the review authority shall consider the relation of outdoor dining areas to sensitive noise receptors (e.g., hospitals, schools, and residential uses). Mitigation measures shall be applied to eliminate potential impacts related to glare, light, loitering, and noise.
(Ord. No. 656, § 4 (Exh. A), 11-19-2013)
This section will include standards for the design (width, pavement, fire access requirements, etc.) and placement (distance from intersections, line of sight standards, etc.) of driveways within the HOO zone.
A.
Access. Driveway access to a lot may be provided from a street or an adjacent property (if a shared access easement is provided). Driveways are encouraged to connect to other driveways to increase accessibility.
B.
Location. Driveway access points are prohibited within fifty feet of street intersections. A minimum of three hundred feet between driveways shall be maintained.
(Ord. No. 656, § 4 (Exh. A), 11-19-2013)
A.
Signage. All development within the HOO zone shall have a "sign program" as part of the project design. The sign program shall identify the location for all signage that may be located on the building, the allowable sign materials, lighting methods and sign design. In addition, temporary signs and banners will be included in the sign program, as to whether or not they are allowed, and if they are allowed, then where these signs may be located within the development project. At no time, shall the sign program allow for signage in excess of those standards within Chapter 19.25 (Signs). "Box" signs, "canister" or "can" signs are prohibited.
B.
Pedestrian-oriented, non-illuminated hanging "blade" signs that either hang under a colonnade or canopy, or project from the facade of a building, shall not be counted within the sign area formula that is used to calculate the maximum amount of sign area for each building. In other words, the hanging or projecting blade sign is a "free" sign in regards to being included in calculating the maximum amount of sign area that a development or store may have. In no case shall a pedestrian-oriented, non-illuminated hanging or projecting blade sign exceed two square feet maximum per sign face, or two square feet for a double-faced blade sign.
(Ord. No. 656, § 4 (Exh. A), 11-19-2013)
In addition to the requirements contained in Chapter 19.11, regulations contained in the following chapters of this title shall apply to development in the manufacturing zones:
Chapter 19.01: General Provisions
Chapter 19.19: Site Planning and General Development Standards
Chapter 19.21: Off-Street Parking and Loading
Chapter 19.23: Landscaping Standards
Chapter 19.25: Signs
Chapter 19.31: Standards for Specific Land Uses
Chapter 19.37: Nonconforming Uses and Structures
(Ord. No. 656, § 4 (Exh. A), 11-19-2013)