SOUTH HILLSBORO PLAN DISTRICT
The South Hillsboro Plan District development and design standards reflect the City's goals and objectives for South Hillsboro and are intended to implement the vision, goals, policies and principles outlined in the South Hillsboro Community Plan to create a complete, connected and green community. More specifically, the South Hillsboro Plan District provides standards for developing a residential mixed-use community organized around a town center and complemented by a village center.
(Ord. 6401 § 1, 2022; Ord. 6110 § 8, 2015)
A.
Plan District Boundary. The standards of this section apply only within the South Hillsboro Plan District boundary as shown on Figure 12.65.930-A.
B.
Base Zones. The base zones used to implement the Community Plan designations include those listed in Table 12.65.020-1. In some cases, the base standards of these zones are modified by this plan district to the purpose of the South Hillsboro Plan District.
C.
Applicability of the South Hillsboro Community Plan Maps. Maps indicating the location and extent of the infrastructure improvements within South Hillsboro are included in Section 12.65.930. A land use application and a decision to approve the application shall provide improvements that substantially comply with these maps and are proportional to the proposed development or provide other improvements that are comparable in terms of size, capacity and location.
(Ord. 6401 § 1, 2022; Ord. 6322 § 1, 2019; Ord. 6110 § 8, 2015)
A.
Town Center and Village Center Core Areas. The Town Center Core Area and Village Center Core Area are intended to be vibrant areas with compact urban forms providing mixes of uses that encourage pedestrian activity.
1.
One Town Center Core Area and one Village Center Core Area shall be designated within the Mixed-Use—Village Town Center (MU-VTC) zone.
2.
The boundaries of the Town Center Core and Village Center Core shown on Figure 12.65.930-A illustrate the size, location and orientation of these areas.
3.
Development Standards for the Town Center Core or Village Center Core Areas shall be applied within the boundaries of those areas.
B.
Active Use Streets. The design of development along key streets within the Town Center Core Area and Village Center Core Area shall reinforce the pedestrian-friendly, main street character of these areas per Section 12.65.850.
1.
Active Use 1 and 2 Streets shall be designated within the Town Center Core Area and the Village Center Core Area. Active Use streets may exist and extend outside of the Town Center and Village Center Core Areas.
2.
The Active Use Streets shown on Figure 12.65.930-A illustrate the street type and location of these streets.
3.
The development standards applicable to the Active Use Streets apply to developments with frontage on an Active Use street.
(Ord. 6401 § 1, 2022; Ord. 6393 § 1, 2021; Ord. 6322 § 1, 2019; Ord. 6110 § 8, 2015)
A.
Purpose. The annexation agreement is intended to ensure awareness of the annexation process as well as reasonable certainty to the property owner, the City, and the public that the scope and timing of subsequent development of the property will occur in a manner that facilitates the timely and equitable construction of necessary infrastructure improvements. The agreement is intended to describe the intended use of the property following annexation, the process for development review, the parties' commitments regarding the subsequent development, and the infrastructure anticipated to be necessary to support development.
B.
Applicability. Unless waived by the City under subsection D, an annexation agreement consistent with this section shall be executed prior to and included with any owner-initiated annexation application under Section 12.80.010.
C.
Contents. Unless otherwise agreed by the City, an annexation agreement shall include the following information and, at a minimum, address the following elements to the City's satisfaction:
1.
A legal description of the property;
2.
The current zoning;
3.
The proposed zoning shown on the City Zoning Concept Map, Figure 31-3, in Section 31 of the Hillsboro Comprehensive Plan;
4.
The owner's/applicant's requested zoning if different from the City Zoning Concept Map;
5.
The owner's intended urban use of the property in sufficient detail to allow the City to determine the public facility impacts and required infrastructure improvements necessary to support the intended use. The description should include the anticipated type, size and density of the use, the timing of any anticipated phases, and an engineering assessment of impact on urban services at full build-out and for each phase of a phased project;
6.
A Transportation Study consistent with the requirements of Sections 12.70.200 and 12.65.910 that describes:
a.
The existing transportation facilities that serve the property, including the existing and planned capacity of the facilities,
b.
The committed and funded multi-modal transportation facilities expected to be available at full buildout of the property, and at each development phase of a phased project,
c.
The intended size, type, location and phased development timing, if any, of occupancy,
d.
The transportation impact of the intended use(s) at full buildout, and at each development phase of a phased project, and
e.
Any transportation improvements that may be necessary to accommodate full buildout, and each development phase of a phased project, including the potential impacts of anticipated future development as required under Paragraph 12.65.910.D.3.
D.
Waiver.
1.
The City may waive the requirement to execute and submit an annexation agreement if the City, in its sole discretion, determines the agreement is not necessary and would not achieve the purposes described in Subsection 12.65.040.A. for one or more of the following reasons:
a.
The size of the property is such that the development potential does not justify the analysis otherwise provided in the annexation agreement;
b.
The anticipated scope of the development is such that the transportation study is not necessary to identify and accommodate the likely impacts of the development;
c.
The property was included in a larger annexation processed under ORS 222.170 but the owner of the affected property did not consent to the annexation.
2.
If the City waives the requirement to execute and submit an annexation agreement, the City may require a development agreement described in Section 12.65.050 as a condition of approving the annexation or other land use application.
E.
Owner Commitments. The annexation agreement shall provide for at least the following owner commitments:
1.
To limit development of the property such that it will not exceed the capacity of:
a.
Affected transportation facilities, as determined by the Transportation Study, including any improvements proposed and constructed as part of the development; and
b.
Other affected public facilities including facilities for water, sanitary sewer and storm water management.
2.
That any requests by the owner for tax credits associated with the construction of an eligible improvement(s) will conform to the assumptions of the Transportation Financing Program, including any ordinances and methodology reports that implement the Program. This may include waiving the right to request tax credits under the County Transportation Development Tax (TDT) Ordinance for eligible improvements, if any such as but not limited to:
a.
The added costs of wet weather construction where dry weather construction was assumed in the Transportation Finance Program;
b.
Sidewalks greater than 6-foot standard where required by Figure 12.65.920-A to comply Active Use Overlay requirements;
c.
Costs associated with right-of-way, design, permitting and construction of conditioned non-contiguous "local street" improvements; and
d.
Eligible right-of-way costs in excess of $6.00 per square foot (2014 value, adjusted annually in accordance with the land value index methodology of the TDT ordinance).
3.
Authorize the City to limit or condition any land use decision or entitlements consistent with the Transportation Study and other available public infrastructure capacity analysis, as determined by the City, to ensure that adequate public infrastructure is available to serve the proposed development.
F.
City Commitments.
1.
To initiate the zone-change process to rezone the property to the appropriate City zone at the time of annexation or such other time as parties agree.
2.
To apply City zoning that is generally consistent with the Zoning Concept Map as depicted on Figure 31-3 in Comprehensive Plan Section 31.
G.
General Provisions.
1.
The City shall not approve "vertical" development of the property until the City approves a Financing Program for the South Hillsboro Plan Area and any implementing ordinances are adopted and effective. As used in this section, "vertical development" means any structure intended for human occupation or commerce for which a certificate of occupancy is required, except as may be necessary for the construction of public facilities, such as a construction trailer, or for the provision of public utilities such as a pump station.
2.
An annexation agreement shall include the parties' intended schedule of significant development-related events, including annexation, zone change, land division and development review.
3.
An annexation agreement expires 1 year from the last date it is signed by the parties unless the City has received an annexation application for the property and deemed the application complete.
4.
The provisions of an annexation agreement may be included in and made part of a subsequent land use decision, in which case the provisions of the land use decision supersede any conflicting provisions in the annexation agreement.
5.
An annexation agreement is not effective and binding on the parties until the annexation application is approved by the City Council under Section 12.80.010.
(Ord. 6401 § 1, 2022; Ord. 6322 § 1, 2019; Ord. 6110 § 8, 2015)
A.
Purpose. A development agreement is intended to provide reasonable certainty to the property owner, the City, and the public that the scope and timing of development of the property will occur in a manner that facilitates the timely and equitable construction of necessary infrastructure improvements. The development agreement is intended to follow annexation and describe in greater detail the owner's intended use of the property, the parties' commitments regarding subsequent development of the property, the infrastructure determined to be necessary to support development, and the parties' obligations with respect to financing and constructing the infrastructure.
B.
Applicability. A development agreement is required for all properties in South Hillsboro that are not subject to an annexation agreement under Section 12.65.040, unless otherwise agreed by the City.
C.
An executed development agreement consistent with this section is required prior to approval of any necessary land use applications for development if:
1.
An annexation agreement was not required prior to annexation;
2.
Any of the required items of the annexation agreement were deferred pursuant to 12.65.040;
3.
A development agreement was required by the annexation agreement;
4.
If required as a condition of approval of a land use decision.
D.
The development agreement must include the following information to the City's satisfaction:
1.
A description of the anticipated type and scope of commercial or residential development (including the number of housing units), consistent with the Zoning Concept (Figure 31-3) and in compliance with the assumptions set forth in the Transportation Finance Program and Methodology Report;
2.
A description of the parties' intended schedule of significant development-related events, including annexation, zone change, land division and development review;
3.
The proposed timing and any phasing of the development as it relates to available or planned infrastructure capacity;
4.
The financing and development obligations for any required or necessary infrastructure;
5.
The owner's commitment to design and construct amenities that further the goals and objectives of the South Hillsboro Community Plan;
6.
Any landscape maintenance agreements for medians and curbside planters;
7.
A detailed plan for financing and constructing complete and connected arterial and/or collector planned streets where the full right-of-way is under the control of the owner or developer, such that a new collector or arterial street is not terminated without connecting to another improved street. A "complete street" includes both adjacent and opposite side full street improvements, including public and private utilities, where required; and
8.
A description of specific aspects of the development, including, but not limited to:
a.
Design,
b.
Infrastructure,
c.
Open space,
d.
Amenities, and
e.
Phasing.
E.
General Provisions.
1.
The City shall not approve "vertical" development of the property until the City approves a Financing Program for the South Hillsboro Plan Area and any implementing ordinances are adopted and effective. As used in this section, "vertical development" means any structure intended for human occupation or commerce for which a certificate of occupation is required, except as may be necessary for the construction of public facilities, such as construction trailer, or for the provision of public utilities such as a pump station.
2.
The provisions of a development agreement may be included in and made part of a subsequent land use decision, in which case the provisions of the land use decision supersede any conflicting provisions in the development agreement.
(Ord. 6401 § 1, 2022; Ord. 6322 § 1, 2019; Ord. 6110 § 8, 2015)
Table 12.65.060-1 summarizes the applicability of Subchapter 12.50 Development and Design Standards within the South Hillsboro Plan District.
(Ord. 6401 § 1, 2022; Ord. 6322 § 1, 2019; Ord. 6110 § 8, 2015)
The standards of the applicable base zone or Section 12.50.110 shall apply in the South Hillsboro Plan District.
(Ord. 6401 § 1, 2022; Ord. 6110 § 8, 2015)
The standards of the applicable base zone and Section 12.50.120 shall apply in the South Hillsboro Plan District.
(Ord. 6401 § 1, 2022; Ord. 6110 § 8, 2015)
The standards of Section 12.50.130 and applicable base zones shall apply except as modified below:
A.
Maximum Setback Compliance. Maximum setback compliance within the South Hillsboro Plan District is considered met when either the standards of the applicable base zone are met; or for Active Use Street frontages, the standards of Section 12.65.850 are met.
B.
Structural Building Elements Projecting into Setbacks. Within the South Hillsboro Plan District, structural building elements such as porches, decks, pergolas, balconies, and stoops may encroach by no more than 4 feet into a required front or rear setback, subject to compliance with applicable standards of currently adopted codes, including the Oregon Structural Specialty Code and Oregon Fire Code, and to accommodation of public utility easements.
C.
Future Intersection Capacity Improvements. In accordance with Subparagraph 12.65.910.D.3.d, the required minimum setback for buildings and parking lots may be modified for anticipated intersection capacity improvements and future infill of Urban Growth Boundary areas.
(Ord. 6401 § 1, 2022; Ord. 6294 § 1, 2019; Ord. 6110 § 8, 2015)
The standards of Section 12.50.140 and the applicable base zones shall apply in the South Hillsboro Plan District.
(Ord. 6401 § 1, 2022; Ord. 6110 § 8, 2015)
The standards of Section 12.50.150 and the applicable base zones shall apply except as modified below.
A.
Residential Square Footage Counted Toward Floor Area Ratio (FAR). Mixed use buildings and free standing residential buildings within an approved PUD in the MU-VTC zone may be included in the FAR calculation.
B.
Exemptions from Minimum Floor Area Ratios (FAR) in Phased Developments. Individual phases of a phased development may be exempt from minimum FAR requirements pro-vided that a phasing plan approved as part of a PUD ensures that the minimum FAR requirements will be met upon completion of the project.
C.
Minimum Floor Area (FAR) Adjustments as permitted by MU-VTC 12.24.350.E.
(Ord. 6401 § 1, 2022; Ord. 6110 § 8, 2015)
Site design standards for the South Hillsboro Plan District include the following sections:
12.65.210 Usable Open Space
12.65.220 Landscaping
12.65.230 Tree Preservation
12.65.240 Exterior Lighting
12.65.250 Fences, Free-Standing Walls, Hedges and Berms
12.65.260 Sight Distance/Vision Clearance
12.65.270 Solar Accessories and Lot Orientation
(Ord. 6401 § 1, 2022; Ord. 6110 § 8, 2015)
The standards of Section 12.50.210 and the applicable base zones apply in the South Hillsboro Plan District.
(Ord. 6401 § 1, 2022; Ord. 6110 § 8, 2015)
In addition to the standards of Section 12.50.220, within the South Hillsboro Plan District the following standards apply.
A.
Purpose. Enhanced requirements for landscaping support the goal of creating a "green" community and are intended to:
1.
Enhance the character of public and private spaces;
2.
Create an inviting, year-round environment for pedestrians;
3.
Reduce urban heat island effects, intercept rainwater, and support urban wildlife;
4.
Frame or help define gathering places as well as natural areas; and
5.
Enhance ecological functions and provide access to nature.
B.
Applicability. Within the South Hillsboro Plan District, this section applies to developments subject to Development Review. In applicable developments, a minimum of 15% of the lot being developed, and any portion of a site not occupied by buildings, parking, improvements, or protected natural resources, shall be landscaped according to the requirements of this section.
C.
Landscaping on Public Properties.
1.
All landscaped areas in the public right-of-way, and all landscaped areas associated with any consolidated regional water quality facility, shall be designed by a registered Landscape Architect, unless this requirement is waived by the Review Authority.
2.
Landscaping on public properties shall be installed in accordance with the City of Hillsboro Design and Construction Standards, or in accordance with Parks and Recreation Department specifications for any area maintained by the Parks and Recreation Department.
3.
Landscaping on public properties shall be accompanied by a private maintenance agreement subject to the review and approval of the City Engineer.
D.
Landscaping Along Tualatin Valley Highway and the Railroad Right-of-Way. Private properties abutting the southern side of the railroad and adjacent public right-of-way shall include the following:
1.
There shall be a minimum 35-foot setback from the property line of the southern boundary of the right-of-way, which supersedes the base zone side or rear yard setback as applicable.
2.
The 35-foot setback required above shall be landscaped and contain a mixture of vertical and horizontal landscaping elements to provide visual and acoustic buffering.
E.
Landscape Materials. Landscaping shall be designed to feature plant materials that evoke the natural character of the Pacific Northwest and that are adaptable to climatic, topographic, and hydrologic characteristics and urban constraints.
1.
Ground covers are required in all planting areas, unless the entire bed is planted with shrubs that branch out so that they cover the surface of the ground. Bark, mulch or other organic soil covers are not considered to meet this standard.
2.
Landscaped areas may include a mixture of planted areas and hardscape elements as an overall landscape framework including, but not limited to:
a.
Private paths and trails;
b.
Walls;
c.
Seating;
d.
Raised planters;
e.
Rain gardens and other stormwater facilities that can serve multiple purposes; and
f.
Other features as approved by the Review Authority.
3.
Installation and maintenance of plant materials shall be in accordance with the following standards:
a.
Plant materials shall be nursery stock or the equivalent quality and installed to industry standards or better;
b.
Plant materials shall be staked to current industry standards or better. Stakes and guy wires shall not interfere with vehicular or pedestrian traffic; and
c.
Plant materials shall be maintained in accordance with approved landscape plans for the development approval.
4.
Landscaping shall incorporate a mixture of vertical and horizontal elements such as ground cover, shrubs and trees.
5.
The planting of nuisance plants as defined in Section 12.01.500 is prohibited.
6.
Irrigation methods shall minimize stormwater run-off through the use of drip irrigation, rain sensors, rotor irrigation heads and similar techniques.
(Ord. 6401 § 1, 2022; Ord. 6110 § 8, 2015)
In addition to the standards of Section 12.50.230, within the South Hillsboro Plan District the following standards apply.
A.
Purpose. Enhanced requirements for the preservation of mature trees support the goal of creating a "green" community, retaining mature trees and landscaping for environmental, habitat and aesthetic purposes.
B.
Applicability. The applicability requirements of Subsection 12.50.230.B. apply in the South Hillsboro Plan District.
C.
Standards for Mature Trees. The standards of Subsection 12.50.230.C. shall apply in the South Hillsboro Plan District.
D.
Standards for Specimen Trees. The standards of Subsection 12.50.230.D. do not apply in the South Hillsboro Plan District, but are superseded by the standards of this subsection.
1.
In addition to the standards in subsection C above, the standards in this subsection apply to the Specimen Trees described in Table 12.65.230-1 below. In Table 12.65.230-1, "grove" is defined as 5 or more trees with overlapping canopies, each of which meet the diameter standards in Table 12.65.230-1.
2.
No specimen tree or tree within a grove as defined in paragraph 1 above shall be removed or damaged during development construction unless 1 or more of the following criteria are met:
a.
A Certified Arborist registered in the State of Oregon submits a determination to the Review Authority that the tree:
i.
Is a safety hazard to persons or property due to its location or condition;
ii.
Is a dangerous tree as defined in Section 12.01.500;
iii.
Was diseased, weakened, or dying before construction began and no practicable means is available to preserve it; or
iv.
Was planted with the spacing and intent of being harvested for timber or as nursery stock.
b.
A Licensed Engineer registered in the State of Oregon submits an alternatives analysis to the Review Authority under paragraph 5 below, which demonstrates that removal of the tree is necessary:
i.
To accommodate construction equipment access where there is no practicable alternative route; or
ii.
To accommodate grading necessary for required storm water management or structural building integrity, and there is no practicable grading alternative to meet those requirements; or
iii.
To accommodate proposed buildings or other permanent improvements, and there is no practicable alternative location or design option for the improvements at the same scale within the development.
3.
Under Section 12.80.150, the Review Authority may authorize an adjustment or variance for reduced setbacks or a reduction in the number of parking spaces to avoid removal of a specimen tree or a tree within a grove as defined in paragraph 1 above, provided measures are also taken to preserve the health of the trees. If approved, reduced setbacks or numbers of parking spaces must remain in compliance with Building Department requirements.
E.
Exemptions. Removal or damage to a specimen tree or a tree within a grove as defined in paragraph D.1 above is exempt from the requirements of paragraph D.2 above if all of the following circumstances apply:
1.
The specimen tree or trees is/are located in either of the following areas:
a.
Within an existing or planned right-of-way for an arterial, collector, or neighborhood route street; or
b.
Within an infrastructure improvement shown on an adopted South Hillsboro Master Plan found in Section 12.65.930 or in the South Hillsboro Community Plan (Section 31 of Comprehensive Plan Ordinance No. 2793 as amended) such as sanitary and water transmission lines or public trail facilities; and
2.
The removal or damage is proposed in conjunction with a Type II or Type III land use approval or an approved public infrastructure project; and
3.
An alternatives analysis prepared pursuant to subsection F below has been approved by the Review Authority.
F.
Alternatives Analysis. The tree removal alternative analysis referenced in subparagraph D.2.b and in paragraph E.3 above shall include the following information, and shall be subject to approval by the Review Authority:
1.
Explanation of how retention of the tree(s) would impede construction of necessary infrastructure, obstruct compliance with the zoning and development standards of this Code, or hinder implementation of key components or policies of the South Hillsboro Community Plan (Comprehensive Plan Section 31);
2.
Explanation of why alternatives that would reduce tree removal or damage are not practicable;
3.
Assessment prepared by a Certified Arborist of the current health of the tree(s) and its long-term health prospects following development of the surrounding areas;
4.
Verification that the tree/grove is or is not within an area delineated as a Significant Natural Resource Site or Impact Area as identified under Subsection 12.27.230.F.4.;
5.
Justification of how the removal of the tree(s) would contribute to enhanced site design and more complete attainment of the goals and policies of the South Hillsboro Community Plan; and
6.
A mitigation plan prepared in accordance with Paragraph 12.50.230.C.5.
(Ord. 6401 § 1, 2022; Ord. 6322 § 1, 2019; Ord. 6178 § 1, 2016; Ord. 6110 § 8, 2015)
The standards of this section supersede Section 12.50.240 and shall apply in the South Hillsboro Plan District.
A.
Purpose. Lighting standards ensure that new development provides functional security for persons and property and allows extended use of properties into nighttime hours; lighting is installed and maintained to provide for an environmentally sensitive and energy efficient nighttime environment that includes the ability to view the stars against a dark sky from residential and other appropriate viewing areas; and ambient nighttime light levels do not adversely impact adjacent properties.
B.
Applicability. Except as provided in subsection F below, the standards of this section shall apply to all Type II and Type III development applications in which exterior lighting is proposed or required as a condition of approval, unless a Variance or Adjustment has been granted by the Review Authority pursuant to Section 12.80.140 Variances and Adjustments.
C.
Exterior Lighting Standards.
1.
Development applications shall include a lighting plan showing locations and specifications for all exterior lighting, including lighting used to illuminate streets, buildings, sidewalks, multi-use paths, parking lots, plazas, or open space areas. The lighting plan shall be evaluated during the land use approval process for compliance with the standards of this section.
2.
Lighting plans shall also show any proposed exterior architectural or aesthetic lighting used to create visual interest or emphasize building features. Aesthetic and architectural lighting shall also be evaluated during the land use approval process for compliance with the standards of this section.
3.
For safety purposes, lighting shall be provided throughout the on-site pedestrian circulation system, including street frontages, sidewalks, multi-use paths, parking lots, buildings, and plazas. The on-site pedestrian circulation system shall be lighted to a minimum level of 2 foot-candles and a maximum of 3 foot-candles to enhance pedestrian safety and allow use at night.
4.
Required bicycle parking lighting level shall be 3 foot-candles to allow secure use at night.
5.
The minimum lighting level for building entries of new multi-dwelling, retail, commercial, office, industrial and institutional buildings located within 300 feet of the property boundaries of a major transit stop shall be 4 foot-candles. The lighting level for all other primary building entrances shall be 3 foot-candles. Lights shall be 6 to 12 feet in height and the light source shall be shielded.
6.
Maximum lighting levels for parking lot lighting shall be 3 foot-candles.
7.
Fixtures on mixed-use and commercially zoned properties that are mounted to the underside of structures such as canopies, awnings, etc., (such as those found at gas stations, drive-through facilities, service stations and parking structures) shall be flush mounted to the canopy so that the lens does not protrude below the surface to which it is mounted. In instances where the canopy is not thick enough to accommodate a flush mount fixture, a fully shielded fixture may be utilized and mounted to the surface.
8.
Illumination of government flags is allowed provided the light fixtures direct the light downward or are fully shielded.
9.
Exterior lighting shall not blink, flash, or change color or intensity.
10.
Foreground spaces, such as building entrances and plaza seating areas, shall use pedestrian-scale lighting that defines the space without glare. Background spaces such as parking lots shall be illuminated as unobtrusively as practicable to meet the functional needs of safe circulation and of protecting people and property.
11.
Site lighting that could be confused with warning, emergency, or traffic signals is not permitted.
12.
Site lighting that could be confused with airport lighting is not permitted.
D.
Light Trespass Standards. Maximum lighting levels at property lines shall not increase lighting level more than 1.1 lumens/square meter 10 feet beyond the property line or 5.4 lumens/square meter adjacent to non-residentially zoned property or public rights-of-way.
Figure 12.65.240-A:
Examples of Light Trespass
E.
Shielding. Any light source or lamp that emits more than 900 lumens (13 watt compact fluorescent or 60 watt incandescent) shall be concealed or shielded with an Illumination Engineering Society of North America (IESNA) full cut-off style fixture with an angle not exceeding 90 degrees to minimize the potential for glare and unnecessary diffusion on adjacent property. Examples of shielded light fixtures are shown in Figure 12.65.240-B:
Figure 12.65.240-B:
Examples of Shielded Light Fixtures
1.
Light fixtures shall be fully shielded.
2.
Light fixtures shall be installed and used in a manner such that light is directed downward, not outward or upward.
F.
Exemptions. The following types of lighting are not subject to the requirements of this section:
1.
Public street and right-of-way lighting (standards for street lighting are addressed in the Public Works Design and Construction Standards);
2.
Temporary decorative seasonal lighting illuminated no longer than 60 days;
3.
Temporary lighting for emergency or nighttime work and construction;
4.
Temporary lighting for theatrical, television and performance areas, or for special public events;
5.
Lighting for a special district, street or building that, according to an adopted City plan or ordinance, is determined to require special lighting aesthetics as part of its physical character;
6.
Lighting required and regulated by the FAA; and
7.
Lighting for outdoor recreational uses such as stadiums, driving ranges, ball diamonds, playing fields, tennis courts and similar uses, provided that:
a.
Light poles are not more than 80 feet tall,
b.
Maximum illumination at the property line is not brighter than 21.5 lumens/square meter, and
c.
Exterior lighting is extinguished no later than 11:00 p.m.
(Ord. 6401 § 1, 2022; Ord. 6322 § 1, 2019; Ord. 6110 § 8, 2015)
Except as noted below, the standards of Section 12.50.250 shall apply in the South Hillsboro Plan District.
A.
Purpose. Fences, walls, hedges and berms within the South Hillsboro Plan District should balance the need for privacy with the need to provide a consistent, cohesive, visually pleasing and pedestrian friendly environment. Designs should contribute to the overall appearance of the plan district through the use of a uniform approach that includes high quality materials and avoids creating hard edges between adjacent neighborhoods and development projects.
B.
Applicability. The applicability requirements of Subsection 12.50.250.B. apply in the South Hillsboro Plan District. In addition, within the South Hillsboro Plan District the standards of Sections 12.50.250 and 12.65.250 also apply to development applications in which fences, hedges, free-standing walls or berms are proposed or required as a condition of approval.
C.
Fence Permit Required. The permit requirements of Subsection 12.50.250.C. shall apply in the South Hillsboro Plan District. In addition, a uniform fencing plan is required for all Type II or Type III applications.
D.
Standards. The standards in Subsections 12.50.250.D. through F. shall apply in the South Hillsboro Plan District except as modified by paragraphs 1 and 2, below.
1.
Maximum Height. Fences and free-standing walls in all zones shall not exceed 4 feet in height in the front yard and 6 feet in height in side and rear yards.
2.
Materials.
a.
Fences and free-standing walls shall be constructed of durable materials compatible with the primary materials used on the associated building façade. Materials may include but are not limited to, the following:
i.
Masonry or brick;
ii.
Solid wood with masonry or brick columns;
iii.
Wrought iron with masonry or brick columns; or
iv.
Alternative material(s) requested by the applicant if approved by the Review Authority.
b.
Use of plastic, vinyl, barbed wire, razor wire, and electric fences, industrial materials and unprocessed waste materials are prohibited as fencing or free-standing wall materials.
c.
Except for schools, recreational facilities, water quality facilities and other utility facilities as approved by the Review Authority, the use of chain link is prohibited. Where permitted, chain link fences shall include a top rail for security and maintenance and shall have a black, dark brown, or dark green powder coating.
d.
All fences and free-standing walls shall be treated with anti-graffiti sealant.
3.
Design. Fence designs shall contribute to overall appearance of development within the plan district through the use of a uniform approach that includes high quality materials and avoids creating hard edges between adjacent neighborhoods and development projects.
(Ord. 6401 § 1, 2022; Ord. 6322 § 1, 2019; Ord. 6110 § 8, 2015)
The requirements of Section 12.50.260 shall apply in the South Hillsboro Plan District.
(Ord. 6401 § 1, 2022; Ord. 6110 § 8, 2015)
A.
Purpose. Enhanced requirements for solar access support the policy goal of housing designs that incorporate passive use of solar energy for lighting and heating purposes, energy-efficient construction, the potential for installation of photovoltaic panels, and similar techniques.
B.
Applicability. The standards of this section shall apply to all Type II and Type III development within the South Hillsboro Plan Area unless a variance or adjustment has been granted by the Review Authority pursuant to Section 12.80.150 Variances and Adjustments.
C.
Solar Access and Lot Orientation Standards. Lots for single detached dwellings, duplexes, triplexes, and quadplexes with lot widths less than 50 feet shall be oriented with the side lot lines within plus or minus 20 degrees of geographical east-west.
D.
Exceptions to Solar Access and Orientation Standards. A variance or adjustment to subsection C above may be approved by the Review Authority pursuant to Sections 12.80.154, 12.80.156 and Subsection 12.80.158.O.
(Ord. 6401 § 1, 2022; Ord. 6193 § 1, 2016)
Vehicle parking standards for the South Hillsboro Plan District include the following sections:
12.65.310 Purpose, Applicability and Maintenance Responsibilities
12.65.330 Exempt Parking
12.65.350 Vehicle Parking and Loading: Location
12.65.360 Vehicle Parking and Loading: Design and Improvements
(Ord. No. 6488, §§ 1, 2(Exh. A), 12-3-2024; Ord. 6401 § 1, 2022; Ord. 6110 § 8, 2015)
The standards of Section 12.50.310 shall apply within the South Hillsboro Plan District except as modified below.
A.
Purpose. Modified parking standards support the goal of establishing a cohesive and active streetscape by providing for adjustments in the minimum number of required spaces, surface parking location requirements, and additional parking lot landscaping.
B.
Applicability. The applicability requirements of Section 12.50.310.B. apply within the South Hillsboro Plan District.
C.
Maintenance. The standards of Section 12.50.310.C. apply within the South Hillsboro Plan District.
(Ord. 6401 § 1, 2022; Ord. 6110 § 8, 2015)
Editor's note— Ord. No. 6488, §§ 1, 2(Exh. A), adopted Dec. 3, 2024, repealed § 12.65.320, which pertained to the number of required parking spaces and derived from Ord. 6110 § 1, adopted in 2015; and Ord. 6401 § 1, adopted in 2022.
The standards of Section 12.50.330 shall apply within the South Hillsboro Plan District.
(Ord. 6401 § 1, 2022; Ord. 6110 § 8, 2015)
Editor's note— Ord. No. 6488, §§ 1, 2(Exh. A), adopted Dec. 3, 2024, repealed § 12.65.340, which pertained to the number of required parking spaces and derived from Ord. 6110 § 1, adopted in 2015; and Ord. 6401 § 1, adopted in 2022.
The standards of Section 12.50.350 do not apply within the South Hillsboro Plan District. They are superseded by the standards below.
A.
Parking Location: General Provisions.
1.
Off-street parking for residential uses in the MU-VTC zone may be located off site, not farther than 400 feet from the use it serves. For residential uses in all other zones, [parking] shall be located on the same lot with the residential use.
2.
Parking for non-residential uses may be located off site, not farther than 1,000 feet from the use it serves.
3.
If parking is provided off site, the distance from the parking to the use shall be measured from the nearest parking space to the building entrance on a sidewalk or other pedestrian route.
4.
The location and terms of the off-site parking shall be specified in a written deed, lease or contract, signed and notarized by all affected property owners, recorded with Washington County and filed with the Planning Department.
B.
Loading Location: General Provisions.
1.
Service docks, maneuvering and loading areas shall be located interior to the site. Where location of these facilities adjacent to a street, driveway, or pedestrian route cannot be practicably avoided, screening walls for such facilities shall be constructed with elements such as artwork or decorative grates or tiles. Screening walls surrounding service docks and loading areas shall be at least 12 feet in height. Windows and display area are not required on screening walls surrounding service docks and loading areas.
2.
Off-street truck loading docks proposed for new non-residential development shall be sited and maintained to accommodate anticipated truck sizes, numbers and movement on-site, without blocking public streets. Off-street parking may be used for loading and unloading operations only during off-peak hours.
3.
Schools and Child Care Facilities. Access drives designed for continuous forward flow of passenger vehicles shall be provided at any school or child care facility with a capacity of 25 or more students.
C.
Parking Location: Multi-Dwelling, Non-Residential and Mixed-Use Developments. Surface parking and vehicular circulation facilities, such as driveways and access aisles shall be located behind or beside the building(s). If located beside the building(s), surface parking areas shall not be located forward of the front façade(s) of the building closest to the street and shall occupy no more than 50% of each street frontage of the development site. In zones, other than MU-VTC, frontages that provide a significant landscape feature such as a plaza or enhanced and activated usable open space may be granted an increase of up to 10% of this requirement (allowing surface parking to occupy up to 60% of the street frontage), if requested by the applicant per the processes in Sections 12.80.150, 12.80.154 and 12.80.156.
Figure 12.65.350-A:
Parking Location for Multi-Dwelling
Non-Residential and Mixed-Use Developments
D.
Carpool and Vanpool Parking. Carpool and vanpool parking is required within new commercial, industrial and institutional developments with 50 or more required parking spaces. Where provided, carpool and vanpool parking spaces shall be located closer to the main employee, student or commuter entrance than all other employee, student or commuter parking spaces with the exception of handicapped parking spaces. The carpool/vanpool spaces shall be clearly marked "Reserved - Carpool/Vanpool Only."
E.
Electric Car Charging Stations. In parking lots with 100 vehicle spaces or more, at least 1 electric car charging point within a rated capacity of at least 240 volts shall be provided per 100 vehicle parking spaces or portion thereof.
F.
Electric Vehicle Infrastructure Requirements.
1.
New commercial development shall provide electrical service capacity, as defined in ORS 455.417, to serve not less than 20% of all provided vehicle parking spaces.
2.
New multifamily residential buildings with 5 or more residential dwelling units, and new mixed-use buildings consisting of privately owned commercial space and 5 or more residential dwelling units, shall provide of electrical service capacity, as defined in ORS 455.417, to serve 40% of all provided vehicle parking spaces.
(Ord. No. 6488, §§ 1, 2(Exh. A), 12-3-2024; Ord. 6401 § 1, 2022; Ord. 6110 § 8, 2015)
The standards of Section 12.50.360 apply within the South Hillsboro Plan District. In addition, within the South Hillsboro Plan District, parking lots which include more than 40 parking spaces shall also comply with the following additional standards.
A.
Parking Lot Perimeter Landscape/Screening. Within the MU-VTC zone, parking area perimeter planter strips along any public or private street shall have a minimum width of 6 feet and shall be planted with large-scale street trees as listed in the Hillsboro Design and Construction Standards approved Street Tree List and spaced not more than 30 feet on center and a mix of shrubs and/or ground cover. Lawn, bark mulch or hardscape shall not be used to meet the screening requirement.
B.
Parking Lot Interior Landscaping. The applicant shall submit a landscaping plan demonstrating that all surface parking areas will be landscaped to achieve a 30% tree canopy at 15 years maturity. Eligible tree canopy must be directly over the parking lot and incorporated landscape islands.
Figure 12.65.360-A: Parking Lot Tree Canopy
C.
Structured Parking.
1.
Structured parking within or adjacent to a primary structure shall be integrated with the overall design of the primary structure it serves through the use of visually similar architectural features and façade materials.
2.
Free-standing parking structures shall be designed to complement surrounding buildings in terms of scale, design elements, building materials, and orientation on the site.
3.
Ground level structured parking with direct access from drive aisles to parking for individual dwelling units shall include garage doors on the elevation where vehicles enter and exit. The remaining outer side and rear walls of the structure shall be enclosed by walls or screens meeting the requirements of this section. Open-sided and open-ended carports are not permitted.
4.
Pedestrian-oriented design elements, including the following, shall be incorporated into parking structures to screen cars and provide visual interest. Such features are illustrated on Figure 12.65.360-B:
a.
Decorative panels for window openings and/or garage entrance gates;
b.
Integrated planting systems;
c.
Public art;
d.
Green roofs (for underground parking decks); and
e.
Other features as approved by the Review Authority.
Figure 12.65.360-B:
Parking Structures: Pedestrian-Oriented Design Elements
(Ord. 6401 § 1, 2022; Ord. 6110 § 8, 2015)
Bicycle parking and bicycle and pedestrian circulation and connectivity in the South Hillsboro Plan District include the following sections:
12.65.410 Bicycle Parking
12.65.420 Pedestrian and Bicycle Circulation
12.65.430 Connectivity and Design Standards at or near Transit Stops
(Ord. 6401 § 1, 2022; Ord. 6110 § 8, 2015)
The standards of Section 12.50.410 apply within the South Hillsboro Plan District.
(Ord. 6401 § 1, 2022; Ord. 6110 § 8, 2015)
A.
The on-site pedestrian and bicycle standards of Subsection 12.50.420.D. apply within the South Hillsboro Plan District.
B.
The following standards apply to off-site pedestrian and bicycle facilities within the South Hillsboro Plan District.
1.
Purpose. Enhanced pedestrian/bicycle accessways further the goal of creating a "connected" community that provides residents and visitors with full multi-modal access, seamlessly connecting neighborhoods to each other, to the Town and Village Centers and to open spaces. The standards support the policy of designing spaces to provide safe, convenient, and comfortable pedestrian movement by effectively connecting building entries, open spaces, streets, transit facilities, and parking areas.
2.
Applicability. Within the South Hillsboro Plan District, pedestrian and bicycle accessways shall include those facilities shown in Figure 12.65.930-E.
3.
Standards. The standards of Section 12.50.420 apply to bicycle and pedestrian facilities within the South Hillsboro Plan District except that accessways within the South Hillsboro Plan District are not subject to the fencing and screening requirements.
(Ord. 6401 § 1, 2022; Ord. 6110 § 8, 2015)
The standards of Section 12.50.430 apply within the South Hillsboro Plan District.
(Ord. 6401 § 1, 2022; Ord. 6110 § 8, 2015)
Access and street standards in the South Hillsboro Plan District include the following sections:
12.65.510 Purpose, Applicability and Exceptions
12.65.520 Street Connectivity and Access
12.65.530 Streets and Alleys Design and Improvement
12.65.540 Flag Lot Driveways: Design and Improvement
12.65.550 Sidewalk Widths: Design and Location
12.65.560 Street Trees and Landscaping
(Ord. 6401 § 1, 2022)
The standards of Section 12.50.510 shall apply within the South Hillsboro Plan District except as modified below.
A.
Purpose. Create a complete, connected and green community by providing smaller blocks, a consistent and legible block pattern, interconnected neighborhoods and amenities and solar orientation.
B.
Applicability. The applicability requirements of Subsection 12.50.510.B. shall apply within the South Hillsboro Plan District.
C.
Exceptions. The exceptions in Subsection 12.50.510.C. shall apply within the South Hillsboro Plan District.
(Ord. 6401 § 1, 2022; Ord. 6110 § 8, 2015)
The standards of Section 12.50.520 shall apply within the South Hillsboro Plan District except as modified below.
A.
General Standards. The standards of Subsection 12.50.520.A. shall apply within the South Hillsboro Plan District.
B.
Street Connectivity and Block Length Requirements in Standard Zones. The standards of Subsection 12.50.520.B. shall apply, except for Subsections 12.50.520.B.5. and 12.50.520.B.6, which are superseded by subsection D below.
C.
Street Connectivity and Block Length Requirements in Mixed-Use Zones. The standards of Subsection 12.50.520.C. shall apply, except for Subsection 12.50.520.C.5, which is superseded by subsection D below.
D.
Block Length and Orientation Requirements. The following block length and orientation standards shall apply within the South Hillsboro Plan District.
1.
The maximum block perimeter lengths created by the street and alley pattern shall be as shown in Table 12.65.520-1.
2.
Street connections along arterial streets are subject to review and approval by the Road Agency.
3.
Full movement street connections along collector roads shall not be less than 300 feet and no more than 500 feet apart unless superseded by the Road Agency.
4.
Street connections along neighborhood routes and local streets shall be spaced not more than 500 feet apart unless superseded by the Road Agency.
5.
To create a unified street grid and to facilitate solar access and orientation requirements in Section 12.65.270, streets shall be laid out to create blocks that reflect the dimensional and lot orientation requirements in Section 12.65.270. Blocks shall be oriented within plus or minus 20 degrees of either geographical east-west or north-south.
E.
Exceptions to Block Length and Orientation Requirements. A variance or adjustment to subsection D above may be approved by the Review Authority pursuant to Sections 12.80.154, 12.80.156 and Subsection 12.80.158.N.
F.
Alley Access Required for Single Detached, Townhouse and Duplex Developments. Unless precluded by barriers as described in subsection D above, all single detached, townhouse, and duplex developments shall provide vehicle access to all lots and units from an alley. Alleys shall be created at the time of land division approval and shall be public right-of-way.
G.
PUD Applications Required for Alternative Access to Residential Development. Alternative access for residential development, such as court yards and parking courts, may be approved as part of a PUD application provided that street design and connectivity requirements are met.
(Ord. 6401 § 1, 2022; Ord. 6193 § 1, 2016; Ord. 6110 § 8, 2015)
The standards of Section 12.50.530 apply within the South Hillsboro Plan District except as modified below.
A.
Street Cross-Sections. Street sections, curbs, gutters, sidewalks, street lights and street trees shall also be generally consistent with street cross-sections in Figures 12.65.940-A—T.
B.
Active Use Street Intersections. Within the Town Center and Village Center Core Areas, intersections of Active Use Streets shall incorporate appropriate pedestrian-friendly features including, but not limited to the following features as illustrated on Figure 12.65.530-A:
1.
Visible Crosswalks. Well-marked, visible crossings shall be provided to alert drivers to the fact that they are approaching a location where they may encounter crossing pedestrians. In some cases, raised or colored crossings may be appropriate.
2.
Parking Restrictions at Corners. Restricting parking adjacent to corners makes pedestrians and vehicles approaching intersections more visible to one another.
3.
Crossing Aids. Accessible pedestrian facilities such as curb ramps and accessible pedestrian signals shall be provided.
4.
Tight curb radii for turning vehicles shall be utilized to shorten crossing distances, increase pedestrian visibility, and slow turning traffic.
5.
Curb Extensions. The installation of curb extensions should be considered in areas with high pedestrian volumes to reduce crossing times, increase pedestrian visibility, and slow turning traffic.
6.
Median Refuges. Where medians are present or space otherwise exists, median refuges should be considered up to the crosswalk to provide a space for crossing pedestrians who may not be able to cross the entire roadway in the signal time allotted.
7.
Roadway and Pedestrian Lighting. Intersections should be well-lit at night to improve visibility for all users. Sufficient lighting to illuminate crossing pedestrians should be provided.
8.
Streetscape Elements. Streetscape elements, including trees, plantings, and seating should be provided adjacent to intersections to enhance the character and quality of the public realm and the sense of an intersection as an important public space.
9.
Traffic Calming Features. Intersections may contain traffic calming features such as traffic circles to slow vehicles and enhance neighborhood character.
Figure 12.65.530-A:
Active Use Street Intersections
(Ord. 6401 § 1, 2022; Ord. 6110 § 8, 2015)
The standards of Section 12.50.540 shall apply within the South Hillsboro Plan District except that flag lots are prohibited within the Mixed-Use — Village Town Center (MU-VTC) zone.
(Ord. 6401 § 1, 2022; Ord. 6110 § 8, 2015)
The standards of Section 12.50.550 shall apply within the South Hillsboro Plan District except that the width and location of sidewalks shall also be generally consistent with street cross-sections in Figure 12.65.530-A.
(Ord. 6401 § 1, 2022; Ord. 6110 § 8, 2015)
The standards of Section 12.50.560 shall apply within the South Hillsboro Plan District except that street trees and landscaping within the public right-of-way shall also be subject to the following standards:
A.
Street Tree Spacing. Street tree spacing in the South Hillsboro Plan District shall be based upon tree species and canopy size at maturity. The planting area shall be at least 24 square feet in area, typically configured at 5 feet by 5 feet. Trees shall be spaced approximately 25 feet on center, and at a maximum 30 feet on center. The selection of tree species shall be in accordance with the approved Street Tree List in the D&C standards, and shall be consistent with this spacing based upon tree spread. This spacing standard supersedes the Design and Construction Standards except as modified for regulatory and warning sign visibility per the Hillsboro Municipal Code and Hillsboro Design and Construction Standards.
B.
Root Barrier Installation. Root barriers shall be installed according to the manufacturer's specifications when a street tree is planted within 5 feet of any hard surface paving or utility box, or as otherwise required by the City Engineer.
(Ord. 6401 § 1, 2022; Ord. 6110 § 8, 2015)
Utilities, site grading, and storm water management standards for the South Hillsboro Plan District include the following sections:
12.65.610 Purpose, Applicability and Exceptions
12.65.620 Public Utilities General Requirements
12.65.630 Site Grading
12.65.640 Storm Water Facilities Site Integration
(Ord. 6401 § 1, 2022)
A.
Purpose. Encourage creation of a sustainable community that incorporates state-of-the-art green development practices, preserving and improving existing natural resources and wildlife corridors and reflect the goal of creating a community of distinction which provides for compact, pedestrian-friendly development within the MU-VTC zone generally, but particularly within the Town Center and Village Center Core Areas.
B.
Applicability. The standards of Section 12.50.610.B. shall apply within the South Hillsboro Plan District.
(Ord. 6401 § 1, 2022; Ord. 6110 § 8, 2015)
The standards of Section 12.50.620 shall apply within the South Hillsboro Plan District except that utilities are required to be undergrounded, with the exception of electrical transmission lines, either in the public right-of-way or in a public utility easement. Public Utility Easement and vault locations shall be subject to review and approval by the City Engineer and the utility provider.
(Ord. 6401 § 1, 2022; Ord. 6110 § 8, 2015)
The standards of Section 12.50.630 shall apply.
(Ord. 6401 § 1, 2022; Ord. 6110 § 8, 2015)
The standards of Section 12.50.640 shall apply within the South Hillsboro Plan District. In addition, within the Town Center and Village Center the City Engineer may approve increased depth in a storm drainage facility if site constraints make underground storm drainage facilities impractical and provision of surface storm facilities would prevent development at the minimum allowable density. Any deeper facility approved by the City Engineer shall meet the following standards:
A.
The perimeter shall be fenced for public safety;
B.
Landscaping shall be installed both inside and outside the fence;
C.
Fence materials and colors shall blend to the maximum practicable extent with the landscaping and surroundings; and
D.
The overall site plan shall use open space and landscaping for natural detention, retention and biofiltration to reduce the overall size and depth of the facility.
(Ord. 6401 § 1, 2022; Ord. 6110 § 8, 2015)
A.
Purpose. Create desirable residential neighborhoods as part of a complete, connected and green community, consistent with the design principles and best practices described in the South Hillsboro Community Plan to ensure high quality design that evokes a sense of place and permanence and a strong connection with the street.
B.
Applicability.
1.
The design standards for residential development in Section 12.50.710 apply except as modified or superseded by the standards in Section 12.65.710.
2.
The design standards in this section apply to all single detached residential, duplex, triplex, quadplex, townhouse, cottage cluster, and multi-dwelling development in the South Hillsboro Plan District unless otherwise specified. In addition, Section 12.65.715 applies only to middle housing and Section 12.65.720 applies only to multi-dwelling residential.
3.
The design standards in this section apply to all accessory dwelling units and accessory structures in the South Hillsboro Plan District associated with single detached dwelling and townhouse structures unless otherwise specified.
4.
Developments on Active Use streets are also subject to the design standards in Section 12.65.850.
5.
Applicants may request adjustments to these standards pursuant to Section 12.80.154 or 12.80.156.
C.
Exceptions.
1.
Non-conforming situations which existed prior to the adoption and effective date of the South Hillsboro Plan District.
2.
If alternative standards have been approved through a discretionary process.
D.
Standards.
1.
Main Entries. On each lot at least 1 main entrance shall meet both of the standards in a and b. These standards do not apply to cottage clusters.
a.
Front doors shall face the street.
b.
If the entry opens to a front porch the following standards shall be met:
i.
Openings more than 1 foot in area between the porch floor and finished grade must be covered by a solid material or lattice; and
ii.
The porch shall meet the standards contained in Subsection 12.50.710.C.
c.
For lots with more than 1 street frontage, any street-facing façade with a main entrance must meet the standards in subsections a and b.
2.
Windows. Cottage clusters are not subject to these standards; instead, see Subsection 12.50.715.D.11.
a.
Front Elevations.
i.
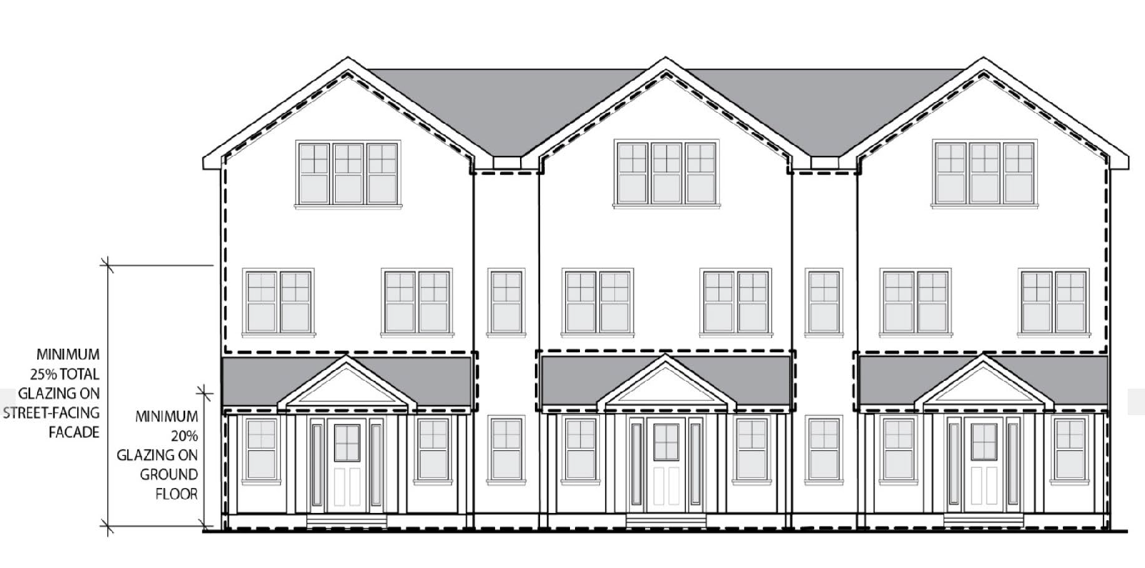
For front loaded dwellings, on single story structures, at least 15% of the total area of each façade facing a street or commonly-accessible open space shall be windows or entry doors with window insets, as illustrated in Figure 12.65.710-A. On multistory structures a minimum of 20% of the total area and 15% of the ground floor area facing a street or commonly-accessible open space shall be windows or entry doors with window insets as illustrated in Figure 12.65.710-A.
ii.
For rear loaded dwellings, at least 25% of the area of each front elevation facing a street or commonly-accessible open space, and 20% of the ground floor facing those 2 features, shall be windows or entry doors with window insets, as illustrated in Figure 12.65.710-A.
b.
Side Elevations. The combined sum of the windows or doors with window insets on the 2 side elevations shall be at least 20%, and individual side windows shall be a minimum of 8% of the total area of the side elevations.
c.
Rear Elevations.
i.
At least 25% of the area of each rear elevation shall be windows or doors with window insets.
ii.
At least 10% of the area of each side or rear elevation shall be windows or doors with window insets where a garage is present.
d.
"Percent of elevation" is measured as the percentage of the façade area, excluding gable ends which are not part of an upper story, containing doors, porches, balconies, terraces and/or windows per Figures 12.65.710-A and 12.65.710-B below. The standard applies to each full and partial building story.
Figure 12.65.710-A:
Street Facing Façade Area Calculation
Figure 12.65.710-B:
Window Area Calculation
3.
Foundation Materials. The standards in Section 12.50.710 apply.
4.
Articulation. Except as noted for cottage clusters, all building elevations in the South Hillsboro Plan District visible from a street right-of-way shall provide prominent defined entrances, and a combination of architectural features consistent with Section 12.50.710. Cottage clusters are subject to the standards in Subsection 12.50.715.E.12.
5.
Detailed Design Elements. Except as noted for cottage clusters, residential structures shall demonstrate variation, articulation and detailing on all elevations facing and visible from an open space or public or private streets, including elevations which may be separated from such streets by open areas such as rail rights-of-way, access streets, or parking lots as required by the standards in Section 12.50.710. Cottage clusters are subject to the standards in Subsection 12.50.715.E.12.
6.
Exterior Finish Materials. The following standards must be met on all building façades:
a.
Plain concrete block, plain concrete, corrugated metal, plywood and sheet pressboard are not allowed as exterior finish material, except as secondary finishes if they cover no more than 10% of the surface area of each façade.
b.
Composite and/or cementitious boards manufactured from wood or other products, such as hardboard or hardplank, may be used when the board product is less than 8 inches wide.
c.
Where wood products are used for siding, the siding must be shingles, shakes or horizontal siding.
d.
Where horizontal siding is used, it must be shiplap or clapboard siding composed of boards with a reveal of 3 to 8 inches.
e.
Trim detail must mark all building rooflines, porches, windows, and doors on all façades. Roofline (fascia) and porch trim shall be at least 6 inches wide and 1 inch thick. Window and door trim shall be at least 3 inches wide and ⅝ inch thick.
7.
Façade Requirements. Where alley access is not provided, the following standards shall apply:
a.
The width of the garage door(s) or parking area(s) facing the street shall not exceed 40% of the length of the street-facing building façade.
b.
The garage door that faces a street shall be further from the street lot line than the longest street-facing wall of the dwelling unit by at least 5 feet.
Figure 12.65.710-C: Façade Requirements
(Ord. 6401 § 1, 2022; Ord. 6323 § 1, 2019; Ord. 6322 § 1, 2019; Ord. 6294 § 1, 2019; Ord. 6193 § 1, 2016; Ord. 6110 § 8, 2015)
A.
Purpose. These standards are intended to work together with the standards in Section 12.65.710 to create desirable residential areas by promoting diversity of housing types, aesthetically pleasing environments, safety, privacy, energy conservation and recreational opportunities.
B.
Applicability.
1.
The design standards in this section apply to 3 or more unit townhouse, triplex, quadplex, and cottage cluster developments in the South Hillsboro Plan District unless otherwise specified.
2.
These standards do not apply to duplexes.
3.
These standards do not apply to middle housing created through conversion of, or addition to, an existing dwelling; however, the conversion or addition shall not increase nonconformance with these standards.
4.
Applicants may request adjustments to these standards pursuant to Section 12.80.154 or 12.80.156.
C.
Standards for Triplexes and Quadplexes. The standards of Subsection 12.50.715.C. apply unless they conflict with standards in Section 12.65.710, in which case the standards in Section 12.65.710 shall prevail.
D.
Standards for Townhouses. The standards of Subsection 12.50.715.D. apply unless they conflict with standards in Section 12.65.710, in which case the standards in Section 12.65.710 shall prevail.
E.
Standards for Cottage Clusters. The standards of Subsection 12.50.715.E. apply unless they conflict with standards in Section 12.65.710, in which case the standards in Section 12.65.710 shall prevail.
(Ord. 6401 § 1, 2022)
A.
Purpose. These standards are intended to ensure that higher density residential developments are designed to reinforce the goal of creating a complete, connected and green community, consistent with the policies in the South Hillsboro Community Plan, developments should provide high quality design that evokes a sense of place and permanence and a strong connection with the street.
B.
Applicability.
1.
The design standards in this section apply to all multi-dwelling developments in the South Hillsboro Plan District unless alternative standards are requested by the applicant and approved by the review authority.
2.
Developments on Active Use streets are also subject to the design standards in Section 12.65.850 and the more restrictive standards apply.
3.
Applicants may request adjustments to these standards pursuant to Section 12.80.154 or 12.80.156.
C.
Exceptions.
1.
Non-conforming situations which exist prior to the adoption and effective date of the South Hillsboro Plan District.
2.
If alternative standards have been approved through a discretionary process.
D.
Standards.
1.
Main entries shall be prominent and defined, as demonstrated by compliance with the standards of Subsections 12.50.710.C.1. and 12.50.720.C.1 within all zones in the South Hillsboro Plan District.
2.
On sites with multiple street frontages, the developer shall designate and orient the front of the structure to the street with the highest classification. Where streets are of equal classification, the developer may choose which street frontage to designate for the purposes of this standard. Developments on Active Use streets are subject to the Maximum Setback and Front Property Line Coverage requirements in Section 12.65.850.
3.
Windows.
a.
Front Elevation.
i.
At least 25% of the area of each façade facing a street or commonly-accessible open space shall be windows or entry doors with window insets, as illustrated in Figure 12.65.720-A. On multistory structures a minimum of 20% of the ground floor facing a street or commonly-accessible open space shall be windows or entry doors with window insets.
b.
Side Elevation. At least 15% of the area of each side façade shall be windows or doors with window insets.
c.
Rear Elevation.
i.
At least 20% of the area of each rear elevation shall be windows or doors with window insets.
ii.
At least 10% of the area of each side or rear elevation shall be windows or doors with window insets where a garage is present.
d.
"Percent of elevation" is measured as the percentage of the façade area, excluding gable ends which are not part of an upper story, containing doors, porches, balconies, terraces and/or windows per Figure 12.65.720-A. The standard applies to each full and partial building story.
Figure 12.65.720-A:
Three or More Unit Townhouse and Multi-Dwelling Window Calculation
4.
Roofs. The standards of Section 12.50.720 shall apply.
5.
Foundation Materials. The standards of Section 12.50.710 shall apply.
6.
Articulation. In addition to the standards of Section 12.50.710, street-facing elevations (walls and roofs) shall be divided into smaller areas or planes to break up large expanses of uninterrupted building surfaces. Street-facing elevations with areas larger than 750 square feet shall be divided into distinct planes of 500 square feet or less. In implementing this standard, areas of wall or roof entirely separated from other wall areas by a projection, such as the porch or a roof over a porch, shall be considered individual building wall planes.
7.
Detailed Design Elements. In addition to the design elements required in Section 12.50.710, public alley access is required for townhouse developments unless it is determined by the Review Authority to be infeasible due to natural resource, public infrastructure or topography constraints. For multi-dwelling development with individual garages, or where townhouses cannot be alley loaded, street access may be allowed provided each dwelling meets the following standards:
a.
The length of the garage wall or parking area facing the street shall not exceed 40% of the length of the street-facing building façade.
b.
The garage wall that faces a street shall be no closer to the street lot line than the longest street-facing wall of the dwelling unit.
Figure 12.65.720-B:
Detailed Design Elements
8.
Exterior Finish Materials. The following finish materials are prohibited or limited by the standards below:
a.
Plain concrete block, plain concrete, corrugated metal, plywood and sheet pressboard are not allowed as exterior finish materials.
b.
Composite and/or cementitious horizontal boards manufactured from wood or other products, such as hardboard or hardplank, may be used when the board product is less than 8 inches wide.
c.
Where horizontal siding is used, it must be shiplap or clapboard siding composed of boards with a reveal of 3 to 6 inches.
d.
Trim must mark all building rooflines, entries, windows, and doors on all façades. Roofline (fascia) and porch trim shall be at least 6 inches wide and 1 inch thick. Window and door trim shall be at least 3 inches wide and ⅝ inch thick.
9.
Waste and Recycling Facilities. The standards of Section 12.50.270 shall apply.
(Ord. 6401 § 1, 2022; Ord. 6322 § 1, 2019; Ord. 6110 § 8, 2015)
A.
Purpose. These standards are intended to ensure that non-residential and mixed-use developments are designed to reinforce the goal of creating a complete, connected and green community, consistent with the policies in the South Hillsboro Community Plan. Most, but not all, non-residential and mixed-use development within the District will occur within the Mixed-Use—Village Town Center (MU-VTC). Non-residential and mixed-use developments will contribute to the public realm by providing connections to the street that promote safety and a sense of interaction between activities inside and outside of buildings.
B.
Applicability.
1.
The design standards for non-residential and mixed-use development in Sections 12.50.800 through 12.50.890 apply to all non-residential and mixed-use development in all zones within the District except as modified or superseded by the standards in this section.
2.
Developments on Active Use streets are also subject to the design standards in Section 12.65.850 and should Code sections conflict, the more restrictive standards apply.
C.
Standards.
1.
Main Entries. Buildings shall contribute to the public realm by creating a clear sense of an entrance from nearby streets as well as offering pedestrians shelter from the elements and shall be subject to the following standards:
a.
Where a single tenant occupies 200 feet or more of a building façade, 1 additional entry shall be provided for each 200 feet of street façade.
b.
Main entries shall be covered by either roofs or be recessed within the building plane. The entry and cover shall be at least 10 feet wide and 5 feet deep.
2.
Entry Orientation. On sites with multiple street frontages, the developer shall designate and orient the front of the structure to the street with the highest classification. Where streets are of equal classification, the developer may choose which street frontage to designate for the purposes of this standard. Developments on Active Use Streets are subject to the Maximum Setback and Front Property Line Coverage requirements in Section 12.65.850.
3.
Ground Floor Windows. The standards of Section 12.50.830 shall apply.
4.
Articulation and Detailed Design. Building elevations shall be varied and articulated to avoid a flat appearance by incorporating at least 5 of the features found within Section 12.50.840. Except as modified above, the standards in Section 12.50.840 apply.
5.
Step-Back Requirements. The standards in Section 12.50.845 shall apply.
6.
Improvements and Activities between Streets and Buildings. The standards in Section 12.50.850 shall apply.
7.
Waste and Recycling Facilities. The standards of Section 12.50.270 shall apply.
8.
Sidewalk Dining and Displays. The standards of Section 12.50.870 shall apply.
9.
Outdoor Storage. The standards of Section 12.50.880 shall apply.
10.
Utilitarian Functions. The standards of Section 12.50.890 shall apply.
11.
Exterior Finish Materials. The following finish materials are prohibited or limited by the standards below:
a.
Plain concrete block, plain concrete, corrugated metal, plywood and sheet pressboard are not allowed as exterior finish materials.
b.
Composite and/or cementitious horizontal boards manufactured from wood or other products, such as hardboard or hardplank, may be used when the board product is less than 8 inches wide.
c.
Where horizontal siding is used, it must be shiplap or clapboard siding composed of boards with a reveal of 3 to 6 inches.
d.
Trim detail shall mark all building rooflines, entries, windows, and doors on all façades.
12.
Roofs. Roofs on the primary structure must meet the following standards:
a.
Sloped roofs may be permitted if the pitch is no steeper than 12/12, and no flatter than 4/12 and unless approved under paragraph b below.
b.
Flat roofs may be permitted in compliance with the following standards:
i.
The roof has a 2-part cornice that is harmonious with the selected building and trim materials, the upper portion of which projects at least 6 inches from the building face and at least 2 inches farther from the building face than the lower portion, and the overall height of which is based on the height of the building as shown in Table 12.50.800-1; or
ii.
The roof top is usable as a deck or balcony.
13.
Structured Parking.
a.
Structured parking within or adjacent to a primary structure shall be integrated with the overall design of the primary structure it serves through the use of visually similar architectural features and façade materials.
b.
Free-standing parking structures shall be designed to complement surrounding buildings in terms of scale, design elements, building materials, and orientation on the site.
c.
Ground level structured parking with direct access from drive aisles to parking for individual dwelling units shall include garage doors on the elevation where vehicles enter and exit. The remaining outer side and rear walls of the structure shall be enclosed by walls or screens meeting the requirements of this section. Open-sided and open-ended carports are not permitted.
d.
Pedestrian-oriented design elements, including the following, shall be incorporated into parking structures to screen cars and provide visual interest. Such features are illustrated on Figure 12.65.800-A:
i.
Decorative panels for window openings and/or garage entrance gates;
ii.
Integrated planting systems;
iii.
Public art;
iv.
Green roofs (for underground parking decks); and
v.
Other features as approved by the Review Authority.
Figure 12.65.800-A:
Parking Structures: Pedestrian-Oriented Design Elements
(Ord. 6401 § 1, 2022; Ord. 6322 § 1, 2019; Ord. 6294 § 1, 2019; Ord. 6110 § 8, 2015)
A.
Purpose. In order to further facilitate pedestrian-friendly development, certain streets are designated for "active use" and development along these streets is subject to the additional design standards in this section. The Active Use Street design standards assure that development will be compatible with the vision of South Hillsboro as a complete, connected and green community, consistent with the design principles and best practices described in the South Hillsboro Community Plan, while allowing for some flexibility for new development. Because designated Active Use Streets play a primary role in conveying the pattern of new development in South Hillsboro, buildings located along these corridors are expected to be more urban in character, and architecturally expressive. Public spaces between the building and the street should emphasize urban qualities of walkability and public gathering. All buildings should be sited with minimal setbacks and in a manner that engages the public realm and supports a pedestrian friendly environment. Building heights should be sufficient to create a sense of street enclosure, or "outdoor room."
1.
Active Use 1 Streets. Developments along designated Active Use 1 Streets should exhibit a strong pedestrian-orientation. Buildings should line the street to form a continuous storefront and building edge and larger building volumes should be oriented to the street to emphasize and enclose the street. Any setback areas between the building and sidewalk should be designed as extensions of the sidewalk, offering public places for people to sit and gather, or space for tables and chairs, associated with a café or restaurant.
2.
Active Use 2 Streets. Developments along designated Active Use 2 Streets are expected to exhibit the same type of sidewalk orientation as the buildings along Active Use 1 streets, but without the storefront retail space at the ground level. Along Active Use 2 Streets, other uses, such as office or residential, may also be located at the ground level, still encouraging pedestrian use, but not necessarily creating a continuous storefront-retail environment. Generally, building setbacks along these streets should follow the same principles as those for Active Use 1 Streets, although setbacks adjacent to ground-level residential uses may incorporate landscape plantings and/or trees.
B.
Applicability. The design standards in this section apply to all development on lots with frontage on an Active Use Street designated in accordance with Section 12.65.030.
C.
Exceptions. These standards do not apply if alternative standards have been approved through a PUD as specified in Subsection 12.65.030.B.
D.
Standards.
1.
Maximum Setback and Front Property Line Coverage Requirement. Buildings shall be sited in a manner that engages the public realm and supports a pedestrian friendly environment.
a.
The maximum setbacks established in Table 12.65.850-1 supersede any base zone setback requirements for building planes along Active Use Streets.
b.
Except as provided below, all buildings shall meet the maximum setback and front property line coverage requirements in Table 12.65.850-1 along Active Use Street frontages. The Review Authority may approve an increase in the maximum setback or a decrease in the percentage of required property line coverage allowed in the following circumstances:
i.
For the protection of a designated significant natural resource, preservation of a specimen tree or to accommodate topographic constraints or required utility easements.
ii.
To allow for the placement of pedestrian amenities within the setback, including, but not limited to, seating areas, water features, and plazas.
Figure 12.65.850-A:
Maximum Setback and Minimum Property Line Coverage Requirements
2.
Minimum Building Height at Street Corners. The intersection of Active Use Streets shall be designed as gateway locations that establish a sense of entry into the distinct South Hillsboro community. Where development is proposed on a corner lot created by the intersection of 2 Active Use Streets or at gateway locations designated on Figure 12.65.930-F, buildings with 30 feet of the intersection shall meet the following standards:
a.
Buildings shall be designed to preserve or create strong building edges at street corners.
b.
Buildings shall reinforce street corners by repeating façade elements such as awnings and window and wall treatments on both sides of the building facing the corner.
c.
Except as provided in paragraph d below, single story buildings located on street corners shall contain an architectural corner element which exceeds the eave height of the primary roof by at least 5 feet (see Figure 12.65.850-B). If the façade of the corner element exceeds 25 feet in height, then windows are required to provide the appearance of a usable second story.
d.
As an alternative to providing architectural corner elements, at up to 2 of the 4 corners of an intersection, buildings may be approved with chamfered corners, pedestrian plazas, enclosed porch, entrance pavilion or other design elements provided that the proposed design emphasizes the importance of intersections as gateways.
Figure 12.65.850-B:
Typical Corner Element
3.
Building Entries and Orientation. All buildings on Active Use Streets shall provide direct access from the main building entrance to the sidewalk along the Active Use Street.
a.
Development on lots fronting an Active Use Street and a non-designated street shall provide either a main building entrance oriented to the Active Use Street or to the corner where the streets intersect.
b.
Development on corner lots fronting on 2 Active Use Streets shall have a main entrance at the street intersection or within 30 feet of the intersection opening onto the higher classified Active Use Street. If the 2 Active Use Streets are of the same classification, then the applicant may choose to which Active Use Street the main entrance fronts.
c.
Surface parking facilities and vehicular circulation facilities, such as driveways and queues, are prohibited between the required building frontage and an Active Use Street.
4.
Weather Protection. On building façades facing an Active Use Street, weather protection for pedestrians shall be provided along a minimum of 50% of the façade. Weather protection may be an awning, canopy, arcade, colonnade, recessed entry, and/or some combination of these elements, with at least 10 feet minimum vertical clearance from the element to the sidewalk. Where provided, awnings and/or canopies shall meet the following standards:
a.
Constructed of glass, metal, wood or a combination of these materials;
b.
Minimum 5-foot projection from the building façade;
c.
Width matching the width of storefronts or window openings; and
d.
Location such that any transom windows present are not obscured.
Figure 12.65.850-C:
Weather Protection
5.
Ground Floor Windows. Buildings shall incorporate transparent windows into the ground level building façades along Active Use Street frontages. The windows shall provide an active and interesting streetscape; allow views of interior spaces and merchandise; enhance the safety of public spaces by providing direct visibility to the street; and create a more inviting environment for pedestrians.
a.
Minimum percentages for windows on ground level building façades shall be as follows:
i.
On Active Use 1 Streets: 70% of the length and 60% of the area of the ground level wall area shall be windows.
ii.
On Active Use 2 Streets: 60% of the length and 50% of the area of the ground level wall area shall be windows.
b.
Minimum Transparency Measurement. To apply paragraph a above, use the following measurement methodology and standards:
i.
Ground level wall area shall mean the area up to the finished ceiling height of the fronting space or 15 feet above finished grade, whichever is less.
ii.
All percentages shall be measured using elevation views of the building façade.
iii.
For non-residential uses, glazing on all ground floor windows shall be transparent.
iv.
For residential uses, glazing on ground floor windows of common hallways, foyers, or entryways shall be transparent to allow views into such areas. Glazing on ground floor windows of dwelling units may be translucent or opaque to protect privacy.
Figure 12.65.850-D:
Ground Floor Windows
6.
Pedestrian Active Use Requirements. Pedestrian active use requirements ensure that buildings on Active Use 1 Streets are developed to accommodate pedestrian-active uses (such as retail goods and services) in ground floor street frontages. At least 60% of Active Use 1 Street frontage of each primary building shall be constructed:
a.
With an internal floor-to-ceiling height of at least 15 feet;
b.
With a leasable area extending from the street façade of the building towards the interior of the building at least 30 feet; and
c.
With at least 1 pedestrian access from the street to a main building entrance per 100 linear feet of street frontage, or part thereof, at a level no more than 3 feet above or below sidewalk grade.
Figure 12.65.850-E:
Pedestrian Active Use Requirement
(Ord. 6401 § 1, 2022; Ord. 6393 § 1, 2021; Ord. 6110 § 8, 2015)
The Transportation Studies, Public Facility Master Plan Compliance Requirements, Figures and Maps, and Street Figures section includes the following sections:
12.65.910 Transportation Studies Requirements Unique to the District
12.65.920 Public Facility Master Plan Compliance Requirements
12.65.930 Figures and Maps
12.65.940 Street Cross-Sections
(Ord. 6401 § 1, 2022)
The requirements of Sections 12.70.200 through 12.70.230 apply to development in the South Hillsboro Plan District except as cited below.
A.
The requirements of Section 12.70.200 apply in their entirety.
B.
The requirements of Section 12.70.210 apply in their entirety.
C.
The requirements of Section 12.70.230 apply in their entirety.
D.
The requirements of Section 12.70.220 apply, with the following exceptions:
1.
Regarding Traffic Impact Analysis Study Areas, the requirements of Subsection 12.70.220.D. apply. Additional analysis or trip assignments may be required on the following off-site intersections as necessary to determine the scope and timing of planned improvements to evaluate the cumulative effect of annexations and development:
a.
SW Tualatin Valley Hwy and SE Century Blvd,
b.
SW Tualatin Valley Hwy and SW Cornelius Pass Rd,
c.
SW Tualatin Valley Hwy and SW 209th Ave,
d.
SW Tualatin Valley Hwy and SW 198th Ave,
e.
SE Century Blvd and SW Alexander St,
f.
SW Rosedale Rd and SW River Rd,
g.
SW 198th Ave and SW Kinnaman Rd,
h.
SW 209th Ave and SW Blanton St,
i.
SW 209th Ave and SW Kinnaman Rd,
j.
SW 209th Ave and SW McInnis Ln,
k.
SW 209th Ave and SE Deline St,
l.
SW 209th Ave and SE Butternut Creek Pkwy,
m.
SW 209th Ave and SW Murphy Ln,
n.
SW 209th Ave and SW Rosedale Rd,
o.
SW 209th Ave and SW Farmington Rd,
p.
SW 209th Ave and SE Vermont St,
q.
SW Tualatin Valley Hwy and SE Brookwood Ave.
2.
Regarding Contents of the Traffic Impact Analysis (Traffic Forecasts) the requirements of Subsection 12.70.220.E.3. are superseded by the following requirements in the South Hillsboro Plan District regarding traffic volume data. The Traffic Impact Analysis (TIA) shall provide traffic volume information in compliance with the standards listed below:
a.
Except as described in paragraph b. below, existing traffic shall be measured for the morning and afternoon peak periods within 12 months prior to the land use application submittal date.
b.
The City Engineer may allow use of traffic counts older than 12 months for a TIA submitted with a land use application on property in the South Hillsboro Plan District, for which a prior TIA was approved in conjunction with an executed annexation agreement.
c.
In addition to the requirements of paragraph a. above, mid-day period shall also be provided if the peak traffic period for the existing street, the proposed development, or the composite of both is greater than the morning and afternoon peak periods.
d.
Traffic volumes shall be based on data from a typical Tuesday through Thursday weekday of a week without holidays and during which public schools are in session, unless otherwise approved by the City Engineer. In addition, data shall be provided for weekends if weekends are the peak traffic period for either the existing adjacent street or the proposed development.
e.
Seasonal variations in traffic volumes shall be considered if required by an effected Road Authority.
3.
Regarding Contents of the Traffic Impact Analysis (Existing Conditions) the requirements of Subsection 12.70.220.E.4.i. and ii. are superseded by the following requirements in the South Hillsboro Plan District:
a.
Trip Generation. Estimates of the proposed development's trip generation shall be made for peak period traffic. Selection of the peak period used in the analysis shall be justified and shall consider, at a minimum, the peak period for the proposed development and the peak period for surrounding streets. The City Engineer may require review of other time periods based on known or anticipated marginal or substandard traffic capacity or traffic safety. Trip generation estimates shall be based on Institute of Transportation Engineers (ITE) Trip Generation 11th Edition. If the land use application is associated with properties included in the South Hillsboro Local Improvement District established by Ordinance No. 6161, trip generation estimates shall be based on ITE's Trip Generation 9th Edition. The City Engineer may approve different trip generation rates when trip generation rates are not available in ITE's Trip Generation or different rates are justified. Consideration of trip generation rate reductions due to alternative mode use, mixed land use interaction, and transportation demand management methods shall be approved by the Review Authority.
b.
Trip Distribution and Assignment. Traffic generated by the proposed development shall be logically distributed and assigned according to professional accepted practice to the street system within the Study Area and any additional locations previously identified by the City Engineer. Trip distribution and assignment shall be based on trip distribution information from Washington County, ODOT, Metro, analysis of local traffic patterns based on data less than 12 months old, or on an alternative data source approved by the City Engineer. For Traffic Impact Analyses prepared for development in the South Hillsboro Plan District, trip distribution for residential, office and retail uses shall comply with Figures 12.65.910-A, 12.65.910-B, and 12.65.910-C of this Section.
c.
Forecast Year Analysis. Forecast Year Analysis has been completed for the impacted intersections identified for mitigation improvements by cumulative development within the South Hillsboro Plan District.
i.
Figure 12.65.910-D illustrates critical intersection lane improvements identified to accommodate development under the Comprehensive Plan and Zoning Concept for the South Hillsboro Plan District in addition to development of Urban Growth Boundary expansion areas and infill development consistent with HB 4078 adopted by the 2014 Oregon Legislature. Traffic Impact Analyses prepared in conjunction with South Hillsboro Plan District development shall consider, and land use conditions of approval may include dedications of right-of-way and construction of, or accommodation for future construction of, identified improvements. An alternative analysis may be provided by a registered professional engineer utilizing forecast traffic volumes provided by the Road Agencies to recommend alternative intersection improvements; subject to review and approval of the Road Agencies.
ii.
Building and parking lot setbacks shall accommodate potential future intersection capacity improvements anticipated with growth in Urban Reserve areas established by HB 4078 adopted by the 2014 Oregon Legislature, and future infill of Urban Growth Boundary areas consistent with those depicted in Figure 12.65.910-E. An alternative analysis may be provided by a registered professional engineer utilizing forecast traffic volumes provided by the Road Agencies to recommend alternative intersection improvements; subject to review and approval of the Road Agencies.
Figure 12.65.910-A:
South Hillsboro Residential and Office Outer Cordon Trip Distribution
Figure 12.65.910-B:
South Hillsboro Residential and Office Inner Cordon Trip Distribution
Figure 12.65.910-C:
South Hillsboro Retail Trip Distribution
Figure 12.65.910-D:
Urban Growth Boundary Recommended Intersection Improvements
Figure 12.65.910-E:
Urban Reserves Recommended Intersection Improvements
(Ord. 6414 § 1, 2022; Ord. 6401 § 1, 2022; Ord. 6294 § 1, 2019; Ord. 6178 § 1, 2016; Ord. 6110 § 8, 2015)
A.
Purpose. Adequate public facilities are necessary to support development in the South Hillsboro Plan District. A development application shall describe the location and capacity of the public facilities that will provide service to the development site and a decision to approve the application may require the installation of additional facilities as necessary to provide an adequate level of service.
B.
Compliance with Community Plan Public Facilities Plans. Development in the South Hillsboro Plan District shall demonstrate compliance with the type, location and size of the public facilities described in the following public facilities master plans shown in Section 12.65.930: Streets; Existing and Future Water System; Existing and Future Sewer Facilities.
C.
Development Approvals Conditioned upon Compliance with Public Facilities Master Plans.
1.
The Review Authority may approve a Type II or Type III land use application for development provided that the following criteria are met:
a.
Adequate public facilities are available to serve the development or the decision is conditioned to require the installation of such services;
b.
The development will comply with the requirements of the Financing Program described in Section 31 of the Comprehensive Plan; and
c.
The developer's public facility obligations are consistent with the terms of an annexation agreement, if any, for the site.
2.
A decision to approve a development may include such conditions as necessary to ensure compliance with this section and any applicable requirements of Section 31 of the Comprehensive Plan.
(Ord. 6401 § 1, 2022; Ord. 6110 § 8, 2015)
A.
Plan District Boundary, Town Center and Village Center Boundaries, Active Use Streets. Figure 12.65.930-A shows the location of the South Hillsboro Plan District boundary, and the approximate locations of the Town Center and Village Center boundaries and the Active Use Streets.
Figure 12.65.930-A:
South Hillsboro Plan District Boundary,
Town and Village Center Core Areas and Active Use Streets*
* NOTE: The boundaries of the Town Center and Village Center and the location of Active Use Streets depicted on this map are for illustrative purposes only. The final location of these features shall be established through the PUD process pursuant to Sections 12.24.315 and 12.65.030.
B.
Streets. Figure 12.65.930-B shows the Streets Master Plan.
Figure 12.65.930-B:
Streets Master Plan
C.
Existing/Future Water System. Figure 12.65.930-C shows the Water System Master Plan.
Figure 12.65.930-C:
Water System Master Plan
D.
Existing/Future Sanitary Sewer System. Figure 12.65.930-D shows the Sanitary Sewer Master Plan.
Figure 12.65.930-D:
Sanitary Sewer Master Plan
E.
Parks, Trails, Schools, and Open Space Master Plan. Figure 12.65.930-E shows the Parks, Trails, Schools, and Open Space Master Plan.
Figure 12.65.930-E:
Parks, Trails, Schools, and Open Space Master Plan
F.
Gateway Opportunities. Figure 12.65.930-F shows the Gateway Opportunities Master Plan.
Figure 12.65.930-F:
Gateway Opportunities Master Plan
(Ord. 6414 § 1, 2022; Ord. 6401 § 1, 2022; Ord. 6110 § 8, 2015)
The Transportation Studies, Public Facility Master Plan Compliance Requirements, Figures and Maps, and Street Figures section includes the following figures:
Figure 12.65.940-A: "L1" — City Residential Cul-de-sac/Local Street (No Parking)
Figure 12.65.940-B: "L2" — City Residential Cul-de-sac/Local Street (Parking One Side)
Figure 12.65.940-C: "L3" — City Residential Local Street (Parking Both Sides)
Figure 12.65.940-D: "L4" — City Mixed-Use Local Street
Figure 12.65.940-E: "Y1" — City Alley
Figure 12.65.940-F: "N1" — City Neighborhood Route
Figure 12.65.940-G: "N2" — City Green Neighborhood Route
Figure 12.65.940-H: "C1" — City 3-Lane Collector
Figure 12.65.940-I: "C2" — City 3-Lane Neighborhood Collector
Figure 12.65.940-J: "C3" — City 3-Lane Collector with 12-Foot Sidewalks
Figure 12.65.940-K: "C4" — City 3-Lane Collector at UGB Boundary
Figure 12.65.940-L: "C5" — County 3-Lane Collector
Figure 12.65.940-M: "C6" — County 3-Lane Collector at UGB Boundary
Figure 12.65.940-N: "A1" — County 7-Lane Arterial with 12-Foot Sidewalks
Figure 12.65.940-O: "A2" — County 5-Lane Arterial
Figure 12.65.940-P: "A3" — County 5-Lane Arterial with 12-Foot Sidewalks
Figure 12.65.940-Q: "A4" — County 3-Lane Arterial at UGB Boundary
Figure 12.65.940-R: "A5" — County 3-Lane Arterial in a 5-Lane Right-of-Way
Figure 12.65.940-S: Active Use Overlay
Figure 12.65.940-T: Trail Adjacent to Public Local Street
Figure 12.65.940-A: "L1" — City Residential Cul-de-sac/Local Street
(<250 vehicles per day; no on-street parking)
Note: Building height in excess of 30 feet as measured from the grade plane (as defined by Fire Code) to the eave or the top of the parapet, whichever is greater, may require an increased drivable surface width of 26 paved feet.
Figure 12.65.940-B: "L2" — City Residential Cul-de-sac/Local Street
(> 250 vehicles per day but <1,500 vehicles per day; on-street parking on one side
only)
Note #1: Where on street parking is provided, curb bulb-outs shall be used at all public and private street intersections, and at all commercial and multi-dwelling (5 or more dwellings) residential driveways.
Note #2: Building height in excess of 30 feet as measured from the grade plane (as defined by Fire Code) to the eave or the top of the parapet, whichever is greater, may require an increased drivable surface width (not including parking) of 26 paved feet.
Figure 12.65.940-C: "L3" — City Residential Local Street
(>1,500 vehicles per day; on-street parking on both sides)
Note #1: Where on street parking is provided, curb bulb-outs shall be used at all public and private street intersections, and at all commercial and multi-dwelling (5 or more dwellings) residential driveways.
Note #2: Building height in excess of 30 feet as measured from the grade plane (as defined by Fire Code) to the eave or the top of the parapet, whichever is greater, may require an increased drivable surface width (not including parking) of 26 paved feet.
Figure 12.65.940-D: "L4" — City Mixed-Use Local Street
Note: Where on street parking is provided, curb bulb-outs shall be used at all public and private street intersections, and at all commercial and multi-dwelling (5 or more dwellings) residential driveways.
Figure 12.65.940-E: "Y1" — City Alley
Note: Building height in excess of 30 feet as measured from the grade plane (as defined by Fire Code) to the eave or the top of the parapet, whichever is greater, may require an increased drivable surface width of 26 paved feet.
Figure 12.65.940-F: "N1" — City Neighborhood Route
Note #1: Where on street parking is provided, curb bulb-outs shall be used at all public and private street intersections, and at all commercial and multi-dwelling (5 or more dwellings) residential driveways.
Figure 12.65.940-G: "N2" — City Green Neighborhood Route
Note #1: Where on street parking is provided, curb bulb-outs shall be used at all public and private street intersections, and at all commercial and multi-dwelling (5 or more dwellings) residential driveways.
Note #2: Building height in excess of 30 feet as measured from the grade plane (as defined by Fire Code) to the eave or the top of the parapet, whichever is greater, may require an increased drivable surface width (not including parking) of 26 paved feet.
Figure 12.65.940-H: "C1" — City 3-Lane Collector
Figure 12.65.940-I: "C2" — City 3-Lane Neighborhood Collector
Figure 12.65.940-J: "C3" — City 3-Lane Collector with 12-Foot Sidewalks
Figure 12.65.940-K: "C4" — City 3-Lane Collector at UGB Boundary
Figure 12.65.940-L: "C5" — County 3-Lane Collector
Figure 12.65.940-M: "C6" — County 3-Lane Collector at UGB Boundary
Figure 12.65.940-N: "A1" — County 7-Lane Arterial with 12-Foot Sidewalks
Figure 12.65.940-O: "A2" — County 5-Lane Arterial
Figure 12.65.940-P:
"A3" — County 5-Lane Arterial with 12-Foot Sidewalks
Note #1: Where on street parking is provided, curb bulb-outs shall be used at all public and private street intersections, and at all commercial and multi-dwelling (5 or more dwellings) residential driveways.
Figure 12.65.940-Q:
"A4" — County 3-Lane Arterial at UGB Boundary
Figure 12.65.940-R:
"A5" — County 3-Lane Arterial in a 5-Lane Right-of-Way
Figure 12.65.940-S: Active Use Overlay
Figure 12.65.940-T: Trail Adjacent to Public Local Street
(Ord. 6401 § 1, 2022; Ord. 6110 § 8, 2015)
SOUTH HILLSBORO PLAN DISTRICT
The South Hillsboro Plan District development and design standards reflect the City's goals and objectives for South Hillsboro and are intended to implement the vision, goals, policies and principles outlined in the South Hillsboro Community Plan to create a complete, connected and green community. More specifically, the South Hillsboro Plan District provides standards for developing a residential mixed-use community organized around a town center and complemented by a village center.
(Ord. 6401 § 1, 2022; Ord. 6110 § 8, 2015)
A.
Plan District Boundary. The standards of this section apply only within the South Hillsboro Plan District boundary as shown on Figure 12.65.930-A.
B.
Base Zones. The base zones used to implement the Community Plan designations include those listed in Table 12.65.020-1. In some cases, the base standards of these zones are modified by this plan district to the purpose of the South Hillsboro Plan District.
C.
Applicability of the South Hillsboro Community Plan Maps. Maps indicating the location and extent of the infrastructure improvements within South Hillsboro are included in Section 12.65.930. A land use application and a decision to approve the application shall provide improvements that substantially comply with these maps and are proportional to the proposed development or provide other improvements that are comparable in terms of size, capacity and location.
(Ord. 6401 § 1, 2022; Ord. 6322 § 1, 2019; Ord. 6110 § 8, 2015)
A.
Town Center and Village Center Core Areas. The Town Center Core Area and Village Center Core Area are intended to be vibrant areas with compact urban forms providing mixes of uses that encourage pedestrian activity.
1.
One Town Center Core Area and one Village Center Core Area shall be designated within the Mixed-Use—Village Town Center (MU-VTC) zone.
2.
The boundaries of the Town Center Core and Village Center Core shown on Figure 12.65.930-A illustrate the size, location and orientation of these areas.
3.
Development Standards for the Town Center Core or Village Center Core Areas shall be applied within the boundaries of those areas.
B.
Active Use Streets. The design of development along key streets within the Town Center Core Area and Village Center Core Area shall reinforce the pedestrian-friendly, main street character of these areas per Section 12.65.850.
1.
Active Use 1 and 2 Streets shall be designated within the Town Center Core Area and the Village Center Core Area. Active Use streets may exist and extend outside of the Town Center and Village Center Core Areas.
2.
The Active Use Streets shown on Figure 12.65.930-A illustrate the street type and location of these streets.
3.
The development standards applicable to the Active Use Streets apply to developments with frontage on an Active Use street.
(Ord. 6401 § 1, 2022; Ord. 6393 § 1, 2021; Ord. 6322 § 1, 2019; Ord. 6110 § 8, 2015)
A.
Purpose. The annexation agreement is intended to ensure awareness of the annexation process as well as reasonable certainty to the property owner, the City, and the public that the scope and timing of subsequent development of the property will occur in a manner that facilitates the timely and equitable construction of necessary infrastructure improvements. The agreement is intended to describe the intended use of the property following annexation, the process for development review, the parties' commitments regarding the subsequent development, and the infrastructure anticipated to be necessary to support development.
B.
Applicability. Unless waived by the City under subsection D, an annexation agreement consistent with this section shall be executed prior to and included with any owner-initiated annexation application under Section 12.80.010.
C.
Contents. Unless otherwise agreed by the City, an annexation agreement shall include the following information and, at a minimum, address the following elements to the City's satisfaction:
1.
A legal description of the property;
2.
The current zoning;
3.
The proposed zoning shown on the City Zoning Concept Map, Figure 31-3, in Section 31 of the Hillsboro Comprehensive Plan;
4.
The owner's/applicant's requested zoning if different from the City Zoning Concept Map;
5.
The owner's intended urban use of the property in sufficient detail to allow the City to determine the public facility impacts and required infrastructure improvements necessary to support the intended use. The description should include the anticipated type, size and density of the use, the timing of any anticipated phases, and an engineering assessment of impact on urban services at full build-out and for each phase of a phased project;
6.
A Transportation Study consistent with the requirements of Sections 12.70.200 and 12.65.910 that describes:
a.
The existing transportation facilities that serve the property, including the existing and planned capacity of the facilities,
b.
The committed and funded multi-modal transportation facilities expected to be available at full buildout of the property, and at each development phase of a phased project,
c.
The intended size, type, location and phased development timing, if any, of occupancy,
d.
The transportation impact of the intended use(s) at full buildout, and at each development phase of a phased project, and
e.
Any transportation improvements that may be necessary to accommodate full buildout, and each development phase of a phased project, including the potential impacts of anticipated future development as required under Paragraph 12.65.910.D.3.
D.
Waiver.
1.
The City may waive the requirement to execute and submit an annexation agreement if the City, in its sole discretion, determines the agreement is not necessary and would not achieve the purposes described in Subsection 12.65.040.A. for one or more of the following reasons:
a.
The size of the property is such that the development potential does not justify the analysis otherwise provided in the annexation agreement;
b.
The anticipated scope of the development is such that the transportation study is not necessary to identify and accommodate the likely impacts of the development;
c.
The property was included in a larger annexation processed under ORS 222.170 but the owner of the affected property did not consent to the annexation.
2.
If the City waives the requirement to execute and submit an annexation agreement, the City may require a development agreement described in Section 12.65.050 as a condition of approving the annexation or other land use application.
E.
Owner Commitments. The annexation agreement shall provide for at least the following owner commitments:
1.
To limit development of the property such that it will not exceed the capacity of:
a.
Affected transportation facilities, as determined by the Transportation Study, including any improvements proposed and constructed as part of the development; and
b.
Other affected public facilities including facilities for water, sanitary sewer and storm water management.
2.
That any requests by the owner for tax credits associated with the construction of an eligible improvement(s) will conform to the assumptions of the Transportation Financing Program, including any ordinances and methodology reports that implement the Program. This may include waiving the right to request tax credits under the County Transportation Development Tax (TDT) Ordinance for eligible improvements, if any such as but not limited to:
a.
The added costs of wet weather construction where dry weather construction was assumed in the Transportation Finance Program;
b.
Sidewalks greater than 6-foot standard where required by Figure 12.65.920-A to comply Active Use Overlay requirements;
c.
Costs associated with right-of-way, design, permitting and construction of conditioned non-contiguous "local street" improvements; and
d.
Eligible right-of-way costs in excess of $6.00 per square foot (2014 value, adjusted annually in accordance with the land value index methodology of the TDT ordinance).
3.
Authorize the City to limit or condition any land use decision or entitlements consistent with the Transportation Study and other available public infrastructure capacity analysis, as determined by the City, to ensure that adequate public infrastructure is available to serve the proposed development.
F.
City Commitments.
1.
To initiate the zone-change process to rezone the property to the appropriate City zone at the time of annexation or such other time as parties agree.
2.
To apply City zoning that is generally consistent with the Zoning Concept Map as depicted on Figure 31-3 in Comprehensive Plan Section 31.
G.
General Provisions.
1.
The City shall not approve "vertical" development of the property until the City approves a Financing Program for the South Hillsboro Plan Area and any implementing ordinances are adopted and effective. As used in this section, "vertical development" means any structure intended for human occupation or commerce for which a certificate of occupancy is required, except as may be necessary for the construction of public facilities, such as a construction trailer, or for the provision of public utilities such as a pump station.
2.
An annexation agreement shall include the parties' intended schedule of significant development-related events, including annexation, zone change, land division and development review.
3.
An annexation agreement expires 1 year from the last date it is signed by the parties unless the City has received an annexation application for the property and deemed the application complete.
4.
The provisions of an annexation agreement may be included in and made part of a subsequent land use decision, in which case the provisions of the land use decision supersede any conflicting provisions in the annexation agreement.
5.
An annexation agreement is not effective and binding on the parties until the annexation application is approved by the City Council under Section 12.80.010.
(Ord. 6401 § 1, 2022; Ord. 6322 § 1, 2019; Ord. 6110 § 8, 2015)
A.
Purpose. A development agreement is intended to provide reasonable certainty to the property owner, the City, and the public that the scope and timing of development of the property will occur in a manner that facilitates the timely and equitable construction of necessary infrastructure improvements. The development agreement is intended to follow annexation and describe in greater detail the owner's intended use of the property, the parties' commitments regarding subsequent development of the property, the infrastructure determined to be necessary to support development, and the parties' obligations with respect to financing and constructing the infrastructure.
B.
Applicability. A development agreement is required for all properties in South Hillsboro that are not subject to an annexation agreement under Section 12.65.040, unless otherwise agreed by the City.
C.
An executed development agreement consistent with this section is required prior to approval of any necessary land use applications for development if:
1.
An annexation agreement was not required prior to annexation;
2.
Any of the required items of the annexation agreement were deferred pursuant to 12.65.040;
3.
A development agreement was required by the annexation agreement;
4.
If required as a condition of approval of a land use decision.
D.
The development agreement must include the following information to the City's satisfaction:
1.
A description of the anticipated type and scope of commercial or residential development (including the number of housing units), consistent with the Zoning Concept (Figure 31-3) and in compliance with the assumptions set forth in the Transportation Finance Program and Methodology Report;
2.
A description of the parties' intended schedule of significant development-related events, including annexation, zone change, land division and development review;
3.
The proposed timing and any phasing of the development as it relates to available or planned infrastructure capacity;
4.
The financing and development obligations for any required or necessary infrastructure;
5.
The owner's commitment to design and construct amenities that further the goals and objectives of the South Hillsboro Community Plan;
6.
Any landscape maintenance agreements for medians and curbside planters;
7.
A detailed plan for financing and constructing complete and connected arterial and/or collector planned streets where the full right-of-way is under the control of the owner or developer, such that a new collector or arterial street is not terminated without connecting to another improved street. A "complete street" includes both adjacent and opposite side full street improvements, including public and private utilities, where required; and
8.
A description of specific aspects of the development, including, but not limited to:
a.
Design,
b.
Infrastructure,
c.
Open space,
d.
Amenities, and
e.
Phasing.
E.
General Provisions.
1.
The City shall not approve "vertical" development of the property until the City approves a Financing Program for the South Hillsboro Plan Area and any implementing ordinances are adopted and effective. As used in this section, "vertical development" means any structure intended for human occupation or commerce for which a certificate of occupation is required, except as may be necessary for the construction of public facilities, such as construction trailer, or for the provision of public utilities such as a pump station.
2.
The provisions of a development agreement may be included in and made part of a subsequent land use decision, in which case the provisions of the land use decision supersede any conflicting provisions in the development agreement.
(Ord. 6401 § 1, 2022; Ord. 6322 § 1, 2019; Ord. 6110 § 8, 2015)
Table 12.65.060-1 summarizes the applicability of Subchapter 12.50 Development and Design Standards within the South Hillsboro Plan District.
(Ord. 6401 § 1, 2022; Ord. 6322 § 1, 2019; Ord. 6110 § 8, 2015)
The standards of the applicable base zone or Section 12.50.110 shall apply in the South Hillsboro Plan District.
(Ord. 6401 § 1, 2022; Ord. 6110 § 8, 2015)
The standards of the applicable base zone and Section 12.50.120 shall apply in the South Hillsboro Plan District.
(Ord. 6401 § 1, 2022; Ord. 6110 § 8, 2015)
The standards of Section 12.50.130 and applicable base zones shall apply except as modified below:
A.
Maximum Setback Compliance. Maximum setback compliance within the South Hillsboro Plan District is considered met when either the standards of the applicable base zone are met; or for Active Use Street frontages, the standards of Section 12.65.850 are met.
B.
Structural Building Elements Projecting into Setbacks. Within the South Hillsboro Plan District, structural building elements such as porches, decks, pergolas, balconies, and stoops may encroach by no more than 4 feet into a required front or rear setback, subject to compliance with applicable standards of currently adopted codes, including the Oregon Structural Specialty Code and Oregon Fire Code, and to accommodation of public utility easements.
C.
Future Intersection Capacity Improvements. In accordance with Subparagraph 12.65.910.D.3.d, the required minimum setback for buildings and parking lots may be modified for anticipated intersection capacity improvements and future infill of Urban Growth Boundary areas.
(Ord. 6401 § 1, 2022; Ord. 6294 § 1, 2019; Ord. 6110 § 8, 2015)
The standards of Section 12.50.140 and the applicable base zones shall apply in the South Hillsboro Plan District.
(Ord. 6401 § 1, 2022; Ord. 6110 § 8, 2015)
The standards of Section 12.50.150 and the applicable base zones shall apply except as modified below.
A.
Residential Square Footage Counted Toward Floor Area Ratio (FAR). Mixed use buildings and free standing residential buildings within an approved PUD in the MU-VTC zone may be included in the FAR calculation.
B.
Exemptions from Minimum Floor Area Ratios (FAR) in Phased Developments. Individual phases of a phased development may be exempt from minimum FAR requirements pro-vided that a phasing plan approved as part of a PUD ensures that the minimum FAR requirements will be met upon completion of the project.
C.
Minimum Floor Area (FAR) Adjustments as permitted by MU-VTC 12.24.350.E.
(Ord. 6401 § 1, 2022; Ord. 6110 § 8, 2015)
Site design standards for the South Hillsboro Plan District include the following sections:
12.65.210 Usable Open Space
12.65.220 Landscaping
12.65.230 Tree Preservation
12.65.240 Exterior Lighting
12.65.250 Fences, Free-Standing Walls, Hedges and Berms
12.65.260 Sight Distance/Vision Clearance
12.65.270 Solar Accessories and Lot Orientation
(Ord. 6401 § 1, 2022; Ord. 6110 § 8, 2015)
The standards of Section 12.50.210 and the applicable base zones apply in the South Hillsboro Plan District.
(Ord. 6401 § 1, 2022; Ord. 6110 § 8, 2015)
In addition to the standards of Section 12.50.220, within the South Hillsboro Plan District the following standards apply.
A.
Purpose. Enhanced requirements for landscaping support the goal of creating a "green" community and are intended to:
1.
Enhance the character of public and private spaces;
2.
Create an inviting, year-round environment for pedestrians;
3.
Reduce urban heat island effects, intercept rainwater, and support urban wildlife;
4.
Frame or help define gathering places as well as natural areas; and
5.
Enhance ecological functions and provide access to nature.
B.
Applicability. Within the South Hillsboro Plan District, this section applies to developments subject to Development Review. In applicable developments, a minimum of 15% of the lot being developed, and any portion of a site not occupied by buildings, parking, improvements, or protected natural resources, shall be landscaped according to the requirements of this section.
C.
Landscaping on Public Properties.
1.
All landscaped areas in the public right-of-way, and all landscaped areas associated with any consolidated regional water quality facility, shall be designed by a registered Landscape Architect, unless this requirement is waived by the Review Authority.
2.
Landscaping on public properties shall be installed in accordance with the City of Hillsboro Design and Construction Standards, or in accordance with Parks and Recreation Department specifications for any area maintained by the Parks and Recreation Department.
3.
Landscaping on public properties shall be accompanied by a private maintenance agreement subject to the review and approval of the City Engineer.
D.
Landscaping Along Tualatin Valley Highway and the Railroad Right-of-Way. Private properties abutting the southern side of the railroad and adjacent public right-of-way shall include the following:
1.
There shall be a minimum 35-foot setback from the property line of the southern boundary of the right-of-way, which supersedes the base zone side or rear yard setback as applicable.
2.
The 35-foot setback required above shall be landscaped and contain a mixture of vertical and horizontal landscaping elements to provide visual and acoustic buffering.
E.
Landscape Materials. Landscaping shall be designed to feature plant materials that evoke the natural character of the Pacific Northwest and that are adaptable to climatic, topographic, and hydrologic characteristics and urban constraints.
1.
Ground covers are required in all planting areas, unless the entire bed is planted with shrubs that branch out so that they cover the surface of the ground. Bark, mulch or other organic soil covers are not considered to meet this standard.
2.
Landscaped areas may include a mixture of planted areas and hardscape elements as an overall landscape framework including, but not limited to:
a.
Private paths and trails;
b.
Walls;
c.
Seating;
d.
Raised planters;
e.
Rain gardens and other stormwater facilities that can serve multiple purposes; and
f.
Other features as approved by the Review Authority.
3.
Installation and maintenance of plant materials shall be in accordance with the following standards:
a.
Plant materials shall be nursery stock or the equivalent quality and installed to industry standards or better;
b.
Plant materials shall be staked to current industry standards or better. Stakes and guy wires shall not interfere with vehicular or pedestrian traffic; and
c.
Plant materials shall be maintained in accordance with approved landscape plans for the development approval.
4.
Landscaping shall incorporate a mixture of vertical and horizontal elements such as ground cover, shrubs and trees.
5.
The planting of nuisance plants as defined in Section 12.01.500 is prohibited.
6.
Irrigation methods shall minimize stormwater run-off through the use of drip irrigation, rain sensors, rotor irrigation heads and similar techniques.
(Ord. 6401 § 1, 2022; Ord. 6110 § 8, 2015)
In addition to the standards of Section 12.50.230, within the South Hillsboro Plan District the following standards apply.
A.
Purpose. Enhanced requirements for the preservation of mature trees support the goal of creating a "green" community, retaining mature trees and landscaping for environmental, habitat and aesthetic purposes.
B.
Applicability. The applicability requirements of Subsection 12.50.230.B. apply in the South Hillsboro Plan District.
C.
Standards for Mature Trees. The standards of Subsection 12.50.230.C. shall apply in the South Hillsboro Plan District.
D.
Standards for Specimen Trees. The standards of Subsection 12.50.230.D. do not apply in the South Hillsboro Plan District, but are superseded by the standards of this subsection.
1.
In addition to the standards in subsection C above, the standards in this subsection apply to the Specimen Trees described in Table 12.65.230-1 below. In Table 12.65.230-1, "grove" is defined as 5 or more trees with overlapping canopies, each of which meet the diameter standards in Table 12.65.230-1.
2.
No specimen tree or tree within a grove as defined in paragraph 1 above shall be removed or damaged during development construction unless 1 or more of the following criteria are met:
a.
A Certified Arborist registered in the State of Oregon submits a determination to the Review Authority that the tree:
i.
Is a safety hazard to persons or property due to its location or condition;
ii.
Is a dangerous tree as defined in Section 12.01.500;
iii.
Was diseased, weakened, or dying before construction began and no practicable means is available to preserve it; or
iv.
Was planted with the spacing and intent of being harvested for timber or as nursery stock.
b.
A Licensed Engineer registered in the State of Oregon submits an alternatives analysis to the Review Authority under paragraph 5 below, which demonstrates that removal of the tree is necessary:
i.
To accommodate construction equipment access where there is no practicable alternative route; or
ii.
To accommodate grading necessary for required storm water management or structural building integrity, and there is no practicable grading alternative to meet those requirements; or
iii.
To accommodate proposed buildings or other permanent improvements, and there is no practicable alternative location or design option for the improvements at the same scale within the development.
3.
Under Section 12.80.150, the Review Authority may authorize an adjustment or variance for reduced setbacks or a reduction in the number of parking spaces to avoid removal of a specimen tree or a tree within a grove as defined in paragraph 1 above, provided measures are also taken to preserve the health of the trees. If approved, reduced setbacks or numbers of parking spaces must remain in compliance with Building Department requirements.
E.
Exemptions. Removal or damage to a specimen tree or a tree within a grove as defined in paragraph D.1 above is exempt from the requirements of paragraph D.2 above if all of the following circumstances apply:
1.
The specimen tree or trees is/are located in either of the following areas:
a.
Within an existing or planned right-of-way for an arterial, collector, or neighborhood route street; or
b.
Within an infrastructure improvement shown on an adopted South Hillsboro Master Plan found in Section 12.65.930 or in the South Hillsboro Community Plan (Section 31 of Comprehensive Plan Ordinance No. 2793 as amended) such as sanitary and water transmission lines or public trail facilities; and
2.
The removal or damage is proposed in conjunction with a Type II or Type III land use approval or an approved public infrastructure project; and
3.
An alternatives analysis prepared pursuant to subsection F below has been approved by the Review Authority.
F.
Alternatives Analysis. The tree removal alternative analysis referenced in subparagraph D.2.b and in paragraph E.3 above shall include the following information, and shall be subject to approval by the Review Authority:
1.
Explanation of how retention of the tree(s) would impede construction of necessary infrastructure, obstruct compliance with the zoning and development standards of this Code, or hinder implementation of key components or policies of the South Hillsboro Community Plan (Comprehensive Plan Section 31);
2.
Explanation of why alternatives that would reduce tree removal or damage are not practicable;
3.
Assessment prepared by a Certified Arborist of the current health of the tree(s) and its long-term health prospects following development of the surrounding areas;
4.
Verification that the tree/grove is or is not within an area delineated as a Significant Natural Resource Site or Impact Area as identified under Subsection 12.27.230.F.4.;
5.
Justification of how the removal of the tree(s) would contribute to enhanced site design and more complete attainment of the goals and policies of the South Hillsboro Community Plan; and
6.
A mitigation plan prepared in accordance with Paragraph 12.50.230.C.5.
(Ord. 6401 § 1, 2022; Ord. 6322 § 1, 2019; Ord. 6178 § 1, 2016; Ord. 6110 § 8, 2015)
The standards of this section supersede Section 12.50.240 and shall apply in the South Hillsboro Plan District.
A.
Purpose. Lighting standards ensure that new development provides functional security for persons and property and allows extended use of properties into nighttime hours; lighting is installed and maintained to provide for an environmentally sensitive and energy efficient nighttime environment that includes the ability to view the stars against a dark sky from residential and other appropriate viewing areas; and ambient nighttime light levels do not adversely impact adjacent properties.
B.
Applicability. Except as provided in subsection F below, the standards of this section shall apply to all Type II and Type III development applications in which exterior lighting is proposed or required as a condition of approval, unless a Variance or Adjustment has been granted by the Review Authority pursuant to Section 12.80.140 Variances and Adjustments.
C.
Exterior Lighting Standards.
1.
Development applications shall include a lighting plan showing locations and specifications for all exterior lighting, including lighting used to illuminate streets, buildings, sidewalks, multi-use paths, parking lots, plazas, or open space areas. The lighting plan shall be evaluated during the land use approval process for compliance with the standards of this section.
2.
Lighting plans shall also show any proposed exterior architectural or aesthetic lighting used to create visual interest or emphasize building features. Aesthetic and architectural lighting shall also be evaluated during the land use approval process for compliance with the standards of this section.
3.
For safety purposes, lighting shall be provided throughout the on-site pedestrian circulation system, including street frontages, sidewalks, multi-use paths, parking lots, buildings, and plazas. The on-site pedestrian circulation system shall be lighted to a minimum level of 2 foot-candles and a maximum of 3 foot-candles to enhance pedestrian safety and allow use at night.
4.
Required bicycle parking lighting level shall be 3 foot-candles to allow secure use at night.
5.
The minimum lighting level for building entries of new multi-dwelling, retail, commercial, office, industrial and institutional buildings located within 300 feet of the property boundaries of a major transit stop shall be 4 foot-candles. The lighting level for all other primary building entrances shall be 3 foot-candles. Lights shall be 6 to 12 feet in height and the light source shall be shielded.
6.
Maximum lighting levels for parking lot lighting shall be 3 foot-candles.
7.
Fixtures on mixed-use and commercially zoned properties that are mounted to the underside of structures such as canopies, awnings, etc., (such as those found at gas stations, drive-through facilities, service stations and parking structures) shall be flush mounted to the canopy so that the lens does not protrude below the surface to which it is mounted. In instances where the canopy is not thick enough to accommodate a flush mount fixture, a fully shielded fixture may be utilized and mounted to the surface.
8.
Illumination of government flags is allowed provided the light fixtures direct the light downward or are fully shielded.
9.
Exterior lighting shall not blink, flash, or change color or intensity.
10.
Foreground spaces, such as building entrances and plaza seating areas, shall use pedestrian-scale lighting that defines the space without glare. Background spaces such as parking lots shall be illuminated as unobtrusively as practicable to meet the functional needs of safe circulation and of protecting people and property.
11.
Site lighting that could be confused with warning, emergency, or traffic signals is not permitted.
12.
Site lighting that could be confused with airport lighting is not permitted.
D.
Light Trespass Standards. Maximum lighting levels at property lines shall not increase lighting level more than 1.1 lumens/square meter 10 feet beyond the property line or 5.4 lumens/square meter adjacent to non-residentially zoned property or public rights-of-way.
Figure 12.65.240-A:
Examples of Light Trespass
E.
Shielding. Any light source or lamp that emits more than 900 lumens (13 watt compact fluorescent or 60 watt incandescent) shall be concealed or shielded with an Illumination Engineering Society of North America (IESNA) full cut-off style fixture with an angle not exceeding 90 degrees to minimize the potential for glare and unnecessary diffusion on adjacent property. Examples of shielded light fixtures are shown in Figure 12.65.240-B:
Figure 12.65.240-B:
Examples of Shielded Light Fixtures
1.
Light fixtures shall be fully shielded.
2.
Light fixtures shall be installed and used in a manner such that light is directed downward, not outward or upward.
F.
Exemptions. The following types of lighting are not subject to the requirements of this section:
1.
Public street and right-of-way lighting (standards for street lighting are addressed in the Public Works Design and Construction Standards);
2.
Temporary decorative seasonal lighting illuminated no longer than 60 days;
3.
Temporary lighting for emergency or nighttime work and construction;
4.
Temporary lighting for theatrical, television and performance areas, or for special public events;
5.
Lighting for a special district, street or building that, according to an adopted City plan or ordinance, is determined to require special lighting aesthetics as part of its physical character;
6.
Lighting required and regulated by the FAA; and
7.
Lighting for outdoor recreational uses such as stadiums, driving ranges, ball diamonds, playing fields, tennis courts and similar uses, provided that:
a.
Light poles are not more than 80 feet tall,
b.
Maximum illumination at the property line is not brighter than 21.5 lumens/square meter, and
c.
Exterior lighting is extinguished no later than 11:00 p.m.
(Ord. 6401 § 1, 2022; Ord. 6322 § 1, 2019; Ord. 6110 § 8, 2015)
Except as noted below, the standards of Section 12.50.250 shall apply in the South Hillsboro Plan District.
A.
Purpose. Fences, walls, hedges and berms within the South Hillsboro Plan District should balance the need for privacy with the need to provide a consistent, cohesive, visually pleasing and pedestrian friendly environment. Designs should contribute to the overall appearance of the plan district through the use of a uniform approach that includes high quality materials and avoids creating hard edges between adjacent neighborhoods and development projects.
B.
Applicability. The applicability requirements of Subsection 12.50.250.B. apply in the South Hillsboro Plan District. In addition, within the South Hillsboro Plan District the standards of Sections 12.50.250 and 12.65.250 also apply to development applications in which fences, hedges, free-standing walls or berms are proposed or required as a condition of approval.
C.
Fence Permit Required. The permit requirements of Subsection 12.50.250.C. shall apply in the South Hillsboro Plan District. In addition, a uniform fencing plan is required for all Type II or Type III applications.
D.
Standards. The standards in Subsections 12.50.250.D. through F. shall apply in the South Hillsboro Plan District except as modified by paragraphs 1 and 2, below.
1.
Maximum Height. Fences and free-standing walls in all zones shall not exceed 4 feet in height in the front yard and 6 feet in height in side and rear yards.
2.
Materials.
a.
Fences and free-standing walls shall be constructed of durable materials compatible with the primary materials used on the associated building façade. Materials may include but are not limited to, the following:
i.
Masonry or brick;
ii.
Solid wood with masonry or brick columns;
iii.
Wrought iron with masonry or brick columns; or
iv.
Alternative material(s) requested by the applicant if approved by the Review Authority.
b.
Use of plastic, vinyl, barbed wire, razor wire, and electric fences, industrial materials and unprocessed waste materials are prohibited as fencing or free-standing wall materials.
c.
Except for schools, recreational facilities, water quality facilities and other utility facilities as approved by the Review Authority, the use of chain link is prohibited. Where permitted, chain link fences shall include a top rail for security and maintenance and shall have a black, dark brown, or dark green powder coating.
d.
All fences and free-standing walls shall be treated with anti-graffiti sealant.
3.
Design. Fence designs shall contribute to overall appearance of development within the plan district through the use of a uniform approach that includes high quality materials and avoids creating hard edges between adjacent neighborhoods and development projects.
(Ord. 6401 § 1, 2022; Ord. 6322 § 1, 2019; Ord. 6110 § 8, 2015)
The requirements of Section 12.50.260 shall apply in the South Hillsboro Plan District.
(Ord. 6401 § 1, 2022; Ord. 6110 § 8, 2015)
A.
Purpose. Enhanced requirements for solar access support the policy goal of housing designs that incorporate passive use of solar energy for lighting and heating purposes, energy-efficient construction, the potential for installation of photovoltaic panels, and similar techniques.
B.
Applicability. The standards of this section shall apply to all Type II and Type III development within the South Hillsboro Plan Area unless a variance or adjustment has been granted by the Review Authority pursuant to Section 12.80.150 Variances and Adjustments.
C.
Solar Access and Lot Orientation Standards. Lots for single detached dwellings, duplexes, triplexes, and quadplexes with lot widths less than 50 feet shall be oriented with the side lot lines within plus or minus 20 degrees of geographical east-west.
D.
Exceptions to Solar Access and Orientation Standards. A variance or adjustment to subsection C above may be approved by the Review Authority pursuant to Sections 12.80.154, 12.80.156 and Subsection 12.80.158.O.
(Ord. 6401 § 1, 2022; Ord. 6193 § 1, 2016)
Vehicle parking standards for the South Hillsboro Plan District include the following sections:
12.65.310 Purpose, Applicability and Maintenance Responsibilities
12.65.330 Exempt Parking
12.65.350 Vehicle Parking and Loading: Location
12.65.360 Vehicle Parking and Loading: Design and Improvements
(Ord. No. 6488, §§ 1, 2(Exh. A), 12-3-2024; Ord. 6401 § 1, 2022; Ord. 6110 § 8, 2015)
The standards of Section 12.50.310 shall apply within the South Hillsboro Plan District except as modified below.
A.
Purpose. Modified parking standards support the goal of establishing a cohesive and active streetscape by providing for adjustments in the minimum number of required spaces, surface parking location requirements, and additional parking lot landscaping.
B.
Applicability. The applicability requirements of Section 12.50.310.B. apply within the South Hillsboro Plan District.
C.
Maintenance. The standards of Section 12.50.310.C. apply within the South Hillsboro Plan District.
(Ord. 6401 § 1, 2022; Ord. 6110 § 8, 2015)
Editor's note— Ord. No. 6488, §§ 1, 2(Exh. A), adopted Dec. 3, 2024, repealed § 12.65.320, which pertained to the number of required parking spaces and derived from Ord. 6110 § 1, adopted in 2015; and Ord. 6401 § 1, adopted in 2022.
The standards of Section 12.50.330 shall apply within the South Hillsboro Plan District.
(Ord. 6401 § 1, 2022; Ord. 6110 § 8, 2015)
Editor's note— Ord. No. 6488, §§ 1, 2(Exh. A), adopted Dec. 3, 2024, repealed § 12.65.340, which pertained to the number of required parking spaces and derived from Ord. 6110 § 1, adopted in 2015; and Ord. 6401 § 1, adopted in 2022.
The standards of Section 12.50.350 do not apply within the South Hillsboro Plan District. They are superseded by the standards below.
A.
Parking Location: General Provisions.
1.
Off-street parking for residential uses in the MU-VTC zone may be located off site, not farther than 400 feet from the use it serves. For residential uses in all other zones, [parking] shall be located on the same lot with the residential use.
2.
Parking for non-residential uses may be located off site, not farther than 1,000 feet from the use it serves.
3.
If parking is provided off site, the distance from the parking to the use shall be measured from the nearest parking space to the building entrance on a sidewalk or other pedestrian route.
4.
The location and terms of the off-site parking shall be specified in a written deed, lease or contract, signed and notarized by all affected property owners, recorded with Washington County and filed with the Planning Department.
B.
Loading Location: General Provisions.
1.
Service docks, maneuvering and loading areas shall be located interior to the site. Where location of these facilities adjacent to a street, driveway, or pedestrian route cannot be practicably avoided, screening walls for such facilities shall be constructed with elements such as artwork or decorative grates or tiles. Screening walls surrounding service docks and loading areas shall be at least 12 feet in height. Windows and display area are not required on screening walls surrounding service docks and loading areas.
2.
Off-street truck loading docks proposed for new non-residential development shall be sited and maintained to accommodate anticipated truck sizes, numbers and movement on-site, without blocking public streets. Off-street parking may be used for loading and unloading operations only during off-peak hours.
3.
Schools and Child Care Facilities. Access drives designed for continuous forward flow of passenger vehicles shall be provided at any school or child care facility with a capacity of 25 or more students.
C.
Parking Location: Multi-Dwelling, Non-Residential and Mixed-Use Developments. Surface parking and vehicular circulation facilities, such as driveways and access aisles shall be located behind or beside the building(s). If located beside the building(s), surface parking areas shall not be located forward of the front façade(s) of the building closest to the street and shall occupy no more than 50% of each street frontage of the development site. In zones, other than MU-VTC, frontages that provide a significant landscape feature such as a plaza or enhanced and activated usable open space may be granted an increase of up to 10% of this requirement (allowing surface parking to occupy up to 60% of the street frontage), if requested by the applicant per the processes in Sections 12.80.150, 12.80.154 and 12.80.156.
Figure 12.65.350-A:
Parking Location for Multi-Dwelling
Non-Residential and Mixed-Use Developments
D.
Carpool and Vanpool Parking. Carpool and vanpool parking is required within new commercial, industrial and institutional developments with 50 or more required parking spaces. Where provided, carpool and vanpool parking spaces shall be located closer to the main employee, student or commuter entrance than all other employee, student or commuter parking spaces with the exception of handicapped parking spaces. The carpool/vanpool spaces shall be clearly marked "Reserved - Carpool/Vanpool Only."
E.
Electric Car Charging Stations. In parking lots with 100 vehicle spaces or more, at least 1 electric car charging point within a rated capacity of at least 240 volts shall be provided per 100 vehicle parking spaces or portion thereof.
F.
Electric Vehicle Infrastructure Requirements.
1.
New commercial development shall provide electrical service capacity, as defined in ORS 455.417, to serve not less than 20% of all provided vehicle parking spaces.
2.
New multifamily residential buildings with 5 or more residential dwelling units, and new mixed-use buildings consisting of privately owned commercial space and 5 or more residential dwelling units, shall provide of electrical service capacity, as defined in ORS 455.417, to serve 40% of all provided vehicle parking spaces.
(Ord. No. 6488, §§ 1, 2(Exh. A), 12-3-2024; Ord. 6401 § 1, 2022; Ord. 6110 § 8, 2015)
The standards of Section 12.50.360 apply within the South Hillsboro Plan District. In addition, within the South Hillsboro Plan District, parking lots which include more than 40 parking spaces shall also comply with the following additional standards.
A.
Parking Lot Perimeter Landscape/Screening. Within the MU-VTC zone, parking area perimeter planter strips along any public or private street shall have a minimum width of 6 feet and shall be planted with large-scale street trees as listed in the Hillsboro Design and Construction Standards approved Street Tree List and spaced not more than 30 feet on center and a mix of shrubs and/or ground cover. Lawn, bark mulch or hardscape shall not be used to meet the screening requirement.
B.
Parking Lot Interior Landscaping. The applicant shall submit a landscaping plan demonstrating that all surface parking areas will be landscaped to achieve a 30% tree canopy at 15 years maturity. Eligible tree canopy must be directly over the parking lot and incorporated landscape islands.
Figure 12.65.360-A: Parking Lot Tree Canopy
C.
Structured Parking.
1.
Structured parking within or adjacent to a primary structure shall be integrated with the overall design of the primary structure it serves through the use of visually similar architectural features and façade materials.
2.
Free-standing parking structures shall be designed to complement surrounding buildings in terms of scale, design elements, building materials, and orientation on the site.
3.
Ground level structured parking with direct access from drive aisles to parking for individual dwelling units shall include garage doors on the elevation where vehicles enter and exit. The remaining outer side and rear walls of the structure shall be enclosed by walls or screens meeting the requirements of this section. Open-sided and open-ended carports are not permitted.
4.
Pedestrian-oriented design elements, including the following, shall be incorporated into parking structures to screen cars and provide visual interest. Such features are illustrated on Figure 12.65.360-B:
a.
Decorative panels for window openings and/or garage entrance gates;
b.
Integrated planting systems;
c.
Public art;
d.
Green roofs (for underground parking decks); and
e.
Other features as approved by the Review Authority.
Figure 12.65.360-B:
Parking Structures: Pedestrian-Oriented Design Elements
(Ord. 6401 § 1, 2022; Ord. 6110 § 8, 2015)
Bicycle parking and bicycle and pedestrian circulation and connectivity in the South Hillsboro Plan District include the following sections:
12.65.410 Bicycle Parking
12.65.420 Pedestrian and Bicycle Circulation
12.65.430 Connectivity and Design Standards at or near Transit Stops
(Ord. 6401 § 1, 2022; Ord. 6110 § 8, 2015)
The standards of Section 12.50.410 apply within the South Hillsboro Plan District.
(Ord. 6401 § 1, 2022; Ord. 6110 § 8, 2015)
A.
The on-site pedestrian and bicycle standards of Subsection 12.50.420.D. apply within the South Hillsboro Plan District.
B.
The following standards apply to off-site pedestrian and bicycle facilities within the South Hillsboro Plan District.
1.
Purpose. Enhanced pedestrian/bicycle accessways further the goal of creating a "connected" community that provides residents and visitors with full multi-modal access, seamlessly connecting neighborhoods to each other, to the Town and Village Centers and to open spaces. The standards support the policy of designing spaces to provide safe, convenient, and comfortable pedestrian movement by effectively connecting building entries, open spaces, streets, transit facilities, and parking areas.
2.
Applicability. Within the South Hillsboro Plan District, pedestrian and bicycle accessways shall include those facilities shown in Figure 12.65.930-E.
3.
Standards. The standards of Section 12.50.420 apply to bicycle and pedestrian facilities within the South Hillsboro Plan District except that accessways within the South Hillsboro Plan District are not subject to the fencing and screening requirements.
(Ord. 6401 § 1, 2022; Ord. 6110 § 8, 2015)
The standards of Section 12.50.430 apply within the South Hillsboro Plan District.
(Ord. 6401 § 1, 2022; Ord. 6110 § 8, 2015)
Access and street standards in the South Hillsboro Plan District include the following sections:
12.65.510 Purpose, Applicability and Exceptions
12.65.520 Street Connectivity and Access
12.65.530 Streets and Alleys Design and Improvement
12.65.540 Flag Lot Driveways: Design and Improvement
12.65.550 Sidewalk Widths: Design and Location
12.65.560 Street Trees and Landscaping
(Ord. 6401 § 1, 2022)
The standards of Section 12.50.510 shall apply within the South Hillsboro Plan District except as modified below.
A.
Purpose. Create a complete, connected and green community by providing smaller blocks, a consistent and legible block pattern, interconnected neighborhoods and amenities and solar orientation.
B.
Applicability. The applicability requirements of Subsection 12.50.510.B. shall apply within the South Hillsboro Plan District.
C.
Exceptions. The exceptions in Subsection 12.50.510.C. shall apply within the South Hillsboro Plan District.
(Ord. 6401 § 1, 2022; Ord. 6110 § 8, 2015)
The standards of Section 12.50.520 shall apply within the South Hillsboro Plan District except as modified below.
A.
General Standards. The standards of Subsection 12.50.520.A. shall apply within the South Hillsboro Plan District.
B.
Street Connectivity and Block Length Requirements in Standard Zones. The standards of Subsection 12.50.520.B. shall apply, except for Subsections 12.50.520.B.5. and 12.50.520.B.6, which are superseded by subsection D below.
C.
Street Connectivity and Block Length Requirements in Mixed-Use Zones. The standards of Subsection 12.50.520.C. shall apply, except for Subsection 12.50.520.C.5, which is superseded by subsection D below.
D.
Block Length and Orientation Requirements. The following block length and orientation standards shall apply within the South Hillsboro Plan District.
1.
The maximum block perimeter lengths created by the street and alley pattern shall be as shown in Table 12.65.520-1.
2.
Street connections along arterial streets are subject to review and approval by the Road Agency.
3.
Full movement street connections along collector roads shall not be less than 300 feet and no more than 500 feet apart unless superseded by the Road Agency.
4.
Street connections along neighborhood routes and local streets shall be spaced not more than 500 feet apart unless superseded by the Road Agency.
5.
To create a unified street grid and to facilitate solar access and orientation requirements in Section 12.65.270, streets shall be laid out to create blocks that reflect the dimensional and lot orientation requirements in Section 12.65.270. Blocks shall be oriented within plus or minus 20 degrees of either geographical east-west or north-south.
E.
Exceptions to Block Length and Orientation Requirements. A variance or adjustment to subsection D above may be approved by the Review Authority pursuant to Sections 12.80.154, 12.80.156 and Subsection 12.80.158.N.
F.
Alley Access Required for Single Detached, Townhouse and Duplex Developments. Unless precluded by barriers as described in subsection D above, all single detached, townhouse, and duplex developments shall provide vehicle access to all lots and units from an alley. Alleys shall be created at the time of land division approval and shall be public right-of-way.
G.
PUD Applications Required for Alternative Access to Residential Development. Alternative access for residential development, such as court yards and parking courts, may be approved as part of a PUD application provided that street design and connectivity requirements are met.
(Ord. 6401 § 1, 2022; Ord. 6193 § 1, 2016; Ord. 6110 § 8, 2015)
The standards of Section 12.50.530 apply within the South Hillsboro Plan District except as modified below.
A.
Street Cross-Sections. Street sections, curbs, gutters, sidewalks, street lights and street trees shall also be generally consistent with street cross-sections in Figures 12.65.940-A—T.
B.
Active Use Street Intersections. Within the Town Center and Village Center Core Areas, intersections of Active Use Streets shall incorporate appropriate pedestrian-friendly features including, but not limited to the following features as illustrated on Figure 12.65.530-A:
1.
Visible Crosswalks. Well-marked, visible crossings shall be provided to alert drivers to the fact that they are approaching a location where they may encounter crossing pedestrians. In some cases, raised or colored crossings may be appropriate.
2.
Parking Restrictions at Corners. Restricting parking adjacent to corners makes pedestrians and vehicles approaching intersections more visible to one another.
3.
Crossing Aids. Accessible pedestrian facilities such as curb ramps and accessible pedestrian signals shall be provided.
4.
Tight curb radii for turning vehicles shall be utilized to shorten crossing distances, increase pedestrian visibility, and slow turning traffic.
5.
Curb Extensions. The installation of curb extensions should be considered in areas with high pedestrian volumes to reduce crossing times, increase pedestrian visibility, and slow turning traffic.
6.
Median Refuges. Where medians are present or space otherwise exists, median refuges should be considered up to the crosswalk to provide a space for crossing pedestrians who may not be able to cross the entire roadway in the signal time allotted.
7.
Roadway and Pedestrian Lighting. Intersections should be well-lit at night to improve visibility for all users. Sufficient lighting to illuminate crossing pedestrians should be provided.
8.
Streetscape Elements. Streetscape elements, including trees, plantings, and seating should be provided adjacent to intersections to enhance the character and quality of the public realm and the sense of an intersection as an important public space.
9.
Traffic Calming Features. Intersections may contain traffic calming features such as traffic circles to slow vehicles and enhance neighborhood character.
Figure 12.65.530-A:
Active Use Street Intersections
(Ord. 6401 § 1, 2022; Ord. 6110 § 8, 2015)
The standards of Section 12.50.540 shall apply within the South Hillsboro Plan District except that flag lots are prohibited within the Mixed-Use — Village Town Center (MU-VTC) zone.
(Ord. 6401 § 1, 2022; Ord. 6110 § 8, 2015)
The standards of Section 12.50.550 shall apply within the South Hillsboro Plan District except that the width and location of sidewalks shall also be generally consistent with street cross-sections in Figure 12.65.530-A.
(Ord. 6401 § 1, 2022; Ord. 6110 § 8, 2015)
The standards of Section 12.50.560 shall apply within the South Hillsboro Plan District except that street trees and landscaping within the public right-of-way shall also be subject to the following standards:
A.
Street Tree Spacing. Street tree spacing in the South Hillsboro Plan District shall be based upon tree species and canopy size at maturity. The planting area shall be at least 24 square feet in area, typically configured at 5 feet by 5 feet. Trees shall be spaced approximately 25 feet on center, and at a maximum 30 feet on center. The selection of tree species shall be in accordance with the approved Street Tree List in the D&C standards, and shall be consistent with this spacing based upon tree spread. This spacing standard supersedes the Design and Construction Standards except as modified for regulatory and warning sign visibility per the Hillsboro Municipal Code and Hillsboro Design and Construction Standards.
B.
Root Barrier Installation. Root barriers shall be installed according to the manufacturer's specifications when a street tree is planted within 5 feet of any hard surface paving or utility box, or as otherwise required by the City Engineer.
(Ord. 6401 § 1, 2022; Ord. 6110 § 8, 2015)
Utilities, site grading, and storm water management standards for the South Hillsboro Plan District include the following sections:
12.65.610 Purpose, Applicability and Exceptions
12.65.620 Public Utilities General Requirements
12.65.630 Site Grading
12.65.640 Storm Water Facilities Site Integration
(Ord. 6401 § 1, 2022)
A.
Purpose. Encourage creation of a sustainable community that incorporates state-of-the-art green development practices, preserving and improving existing natural resources and wildlife corridors and reflect the goal of creating a community of distinction which provides for compact, pedestrian-friendly development within the MU-VTC zone generally, but particularly within the Town Center and Village Center Core Areas.
B.
Applicability. The standards of Section 12.50.610.B. shall apply within the South Hillsboro Plan District.
(Ord. 6401 § 1, 2022; Ord. 6110 § 8, 2015)
The standards of Section 12.50.620 shall apply within the South Hillsboro Plan District except that utilities are required to be undergrounded, with the exception of electrical transmission lines, either in the public right-of-way or in a public utility easement. Public Utility Easement and vault locations shall be subject to review and approval by the City Engineer and the utility provider.
(Ord. 6401 § 1, 2022; Ord. 6110 § 8, 2015)
The standards of Section 12.50.630 shall apply.
(Ord. 6401 § 1, 2022; Ord. 6110 § 8, 2015)
The standards of Section 12.50.640 shall apply within the South Hillsboro Plan District. In addition, within the Town Center and Village Center the City Engineer may approve increased depth in a storm drainage facility if site constraints make underground storm drainage facilities impractical and provision of surface storm facilities would prevent development at the minimum allowable density. Any deeper facility approved by the City Engineer shall meet the following standards:
A.
The perimeter shall be fenced for public safety;
B.
Landscaping shall be installed both inside and outside the fence;
C.
Fence materials and colors shall blend to the maximum practicable extent with the landscaping and surroundings; and
D.
The overall site plan shall use open space and landscaping for natural detention, retention and biofiltration to reduce the overall size and depth of the facility.
(Ord. 6401 § 1, 2022; Ord. 6110 § 8, 2015)
A.
Purpose. Create desirable residential neighborhoods as part of a complete, connected and green community, consistent with the design principles and best practices described in the South Hillsboro Community Plan to ensure high quality design that evokes a sense of place and permanence and a strong connection with the street.
B.
Applicability.
1.
The design standards for residential development in Section 12.50.710 apply except as modified or superseded by the standards in Section 12.65.710.
2.
The design standards in this section apply to all single detached residential, duplex, triplex, quadplex, townhouse, cottage cluster, and multi-dwelling development in the South Hillsboro Plan District unless otherwise specified. In addition, Section 12.65.715 applies only to middle housing and Section 12.65.720 applies only to multi-dwelling residential.
3.
The design standards in this section apply to all accessory dwelling units and accessory structures in the South Hillsboro Plan District associated with single detached dwelling and townhouse structures unless otherwise specified.
4.
Developments on Active Use streets are also subject to the design standards in Section 12.65.850.
5.
Applicants may request adjustments to these standards pursuant to Section 12.80.154 or 12.80.156.
C.
Exceptions.
1.
Non-conforming situations which existed prior to the adoption and effective date of the South Hillsboro Plan District.
2.
If alternative standards have been approved through a discretionary process.
D.
Standards.
1.
Main Entries. On each lot at least 1 main entrance shall meet both of the standards in a and b. These standards do not apply to cottage clusters.
a.
Front doors shall face the street.
b.
If the entry opens to a front porch the following standards shall be met:
i.
Openings more than 1 foot in area between the porch floor and finished grade must be covered by a solid material or lattice; and
ii.
The porch shall meet the standards contained in Subsection 12.50.710.C.
c.
For lots with more than 1 street frontage, any street-facing façade with a main entrance must meet the standards in subsections a and b.
2.
Windows. Cottage clusters are not subject to these standards; instead, see Subsection 12.50.715.D.11.
a.
Front Elevations.
i.
For front loaded dwellings, on single story structures, at least 15% of the total area of each façade facing a street or commonly-accessible open space shall be windows or entry doors with window insets, as illustrated in Figure 12.65.710-A. On multistory structures a minimum of 20% of the total area and 15% of the ground floor area facing a street or commonly-accessible open space shall be windows or entry doors with window insets as illustrated in Figure 12.65.710-A.
ii.
For rear loaded dwellings, at least 25% of the area of each front elevation facing a street or commonly-accessible open space, and 20% of the ground floor facing those 2 features, shall be windows or entry doors with window insets, as illustrated in Figure 12.65.710-A.
b.
Side Elevations. The combined sum of the windows or doors with window insets on the 2 side elevations shall be at least 20%, and individual side windows shall be a minimum of 8% of the total area of the side elevations.
c.
Rear Elevations.
i.
At least 25% of the area of each rear elevation shall be windows or doors with window insets.
ii.
At least 10% of the area of each side or rear elevation shall be windows or doors with window insets where a garage is present.
d.
"Percent of elevation" is measured as the percentage of the façade area, excluding gable ends which are not part of an upper story, containing doors, porches, balconies, terraces and/or windows per Figures 12.65.710-A and 12.65.710-B below. The standard applies to each full and partial building story.
Figure 12.65.710-A:
Street Facing Façade Area Calculation
Figure 12.65.710-B:
Window Area Calculation
3.
Foundation Materials. The standards in Section 12.50.710 apply.
4.
Articulation. Except as noted for cottage clusters, all building elevations in the South Hillsboro Plan District visible from a street right-of-way shall provide prominent defined entrances, and a combination of architectural features consistent with Section 12.50.710. Cottage clusters are subject to the standards in Subsection 12.50.715.E.12.
5.
Detailed Design Elements. Except as noted for cottage clusters, residential structures shall demonstrate variation, articulation and detailing on all elevations facing and visible from an open space or public or private streets, including elevations which may be separated from such streets by open areas such as rail rights-of-way, access streets, or parking lots as required by the standards in Section 12.50.710. Cottage clusters are subject to the standards in Subsection 12.50.715.E.12.
6.
Exterior Finish Materials. The following standards must be met on all building façades:
a.
Plain concrete block, plain concrete, corrugated metal, plywood and sheet pressboard are not allowed as exterior finish material, except as secondary finishes if they cover no more than 10% of the surface area of each façade.
b.
Composite and/or cementitious boards manufactured from wood or other products, such as hardboard or hardplank, may be used when the board product is less than 8 inches wide.
c.
Where wood products are used for siding, the siding must be shingles, shakes or horizontal siding.
d.
Where horizontal siding is used, it must be shiplap or clapboard siding composed of boards with a reveal of 3 to 8 inches.
e.
Trim detail must mark all building rooflines, porches, windows, and doors on all façades. Roofline (fascia) and porch trim shall be at least 6 inches wide and 1 inch thick. Window and door trim shall be at least 3 inches wide and ⅝ inch thick.
7.
Façade Requirements. Where alley access is not provided, the following standards shall apply:
a.
The width of the garage door(s) or parking area(s) facing the street shall not exceed 40% of the length of the street-facing building façade.
b.
The garage door that faces a street shall be further from the street lot line than the longest street-facing wall of the dwelling unit by at least 5 feet.
Figure 12.65.710-C: Façade Requirements
(Ord. 6401 § 1, 2022; Ord. 6323 § 1, 2019; Ord. 6322 § 1, 2019; Ord. 6294 § 1, 2019; Ord. 6193 § 1, 2016; Ord. 6110 § 8, 2015)
A.
Purpose. These standards are intended to work together with the standards in Section 12.65.710 to create desirable residential areas by promoting diversity of housing types, aesthetically pleasing environments, safety, privacy, energy conservation and recreational opportunities.
B.
Applicability.
1.
The design standards in this section apply to 3 or more unit townhouse, triplex, quadplex, and cottage cluster developments in the South Hillsboro Plan District unless otherwise specified.
2.
These standards do not apply to duplexes.
3.
These standards do not apply to middle housing created through conversion of, or addition to, an existing dwelling; however, the conversion or addition shall not increase nonconformance with these standards.
4.
Applicants may request adjustments to these standards pursuant to Section 12.80.154 or 12.80.156.
C.
Standards for Triplexes and Quadplexes. The standards of Subsection 12.50.715.C. apply unless they conflict with standards in Section 12.65.710, in which case the standards in Section 12.65.710 shall prevail.
D.
Standards for Townhouses. The standards of Subsection 12.50.715.D. apply unless they conflict with standards in Section 12.65.710, in which case the standards in Section 12.65.710 shall prevail.
E.
Standards for Cottage Clusters. The standards of Subsection 12.50.715.E. apply unless they conflict with standards in Section 12.65.710, in which case the standards in Section 12.65.710 shall prevail.
(Ord. 6401 § 1, 2022)
A.
Purpose. These standards are intended to ensure that higher density residential developments are designed to reinforce the goal of creating a complete, connected and green community, consistent with the policies in the South Hillsboro Community Plan, developments should provide high quality design that evokes a sense of place and permanence and a strong connection with the street.
B.
Applicability.
1.
The design standards in this section apply to all multi-dwelling developments in the South Hillsboro Plan District unless alternative standards are requested by the applicant and approved by the review authority.
2.
Developments on Active Use streets are also subject to the design standards in Section 12.65.850 and the more restrictive standards apply.
3.
Applicants may request adjustments to these standards pursuant to Section 12.80.154 or 12.80.156.
C.
Exceptions.
1.
Non-conforming situations which exist prior to the adoption and effective date of the South Hillsboro Plan District.
2.
If alternative standards have been approved through a discretionary process.
D.
Standards.
1.
Main entries shall be prominent and defined, as demonstrated by compliance with the standards of Subsections 12.50.710.C.1. and 12.50.720.C.1 within all zones in the South Hillsboro Plan District.
2.
On sites with multiple street frontages, the developer shall designate and orient the front of the structure to the street with the highest classification. Where streets are of equal classification, the developer may choose which street frontage to designate for the purposes of this standard. Developments on Active Use streets are subject to the Maximum Setback and Front Property Line Coverage requirements in Section 12.65.850.
3.
Windows.
a.
Front Elevation.
i.
At least 25% of the area of each façade facing a street or commonly-accessible open space shall be windows or entry doors with window insets, as illustrated in Figure 12.65.720-A. On multistory structures a minimum of 20% of the ground floor facing a street or commonly-accessible open space shall be windows or entry doors with window insets.
b.
Side Elevation. At least 15% of the area of each side façade shall be windows or doors with window insets.
c.
Rear Elevation.
i.
At least 20% of the area of each rear elevation shall be windows or doors with window insets.
ii.
At least 10% of the area of each side or rear elevation shall be windows or doors with window insets where a garage is present.
d.
"Percent of elevation" is measured as the percentage of the façade area, excluding gable ends which are not part of an upper story, containing doors, porches, balconies, terraces and/or windows per Figure 12.65.720-A. The standard applies to each full and partial building story.
Figure 12.65.720-A:
Three or More Unit Townhouse and Multi-Dwelling Window Calculation
4.
Roofs. The standards of Section 12.50.720 shall apply.
5.
Foundation Materials. The standards of Section 12.50.710 shall apply.
6.
Articulation. In addition to the standards of Section 12.50.710, street-facing elevations (walls and roofs) shall be divided into smaller areas or planes to break up large expanses of uninterrupted building surfaces. Street-facing elevations with areas larger than 750 square feet shall be divided into distinct planes of 500 square feet or less. In implementing this standard, areas of wall or roof entirely separated from other wall areas by a projection, such as the porch or a roof over a porch, shall be considered individual building wall planes.
7.
Detailed Design Elements. In addition to the design elements required in Section 12.50.710, public alley access is required for townhouse developments unless it is determined by the Review Authority to be infeasible due to natural resource, public infrastructure or topography constraints. For multi-dwelling development with individual garages, or where townhouses cannot be alley loaded, street access may be allowed provided each dwelling meets the following standards:
a.
The length of the garage wall or parking area facing the street shall not exceed 40% of the length of the street-facing building façade.
b.
The garage wall that faces a street shall be no closer to the street lot line than the longest street-facing wall of the dwelling unit.
Figure 12.65.720-B:
Detailed Design Elements
8.
Exterior Finish Materials. The following finish materials are prohibited or limited by the standards below:
a.
Plain concrete block, plain concrete, corrugated metal, plywood and sheet pressboard are not allowed as exterior finish materials.
b.
Composite and/or cementitious horizontal boards manufactured from wood or other products, such as hardboard or hardplank, may be used when the board product is less than 8 inches wide.
c.
Where horizontal siding is used, it must be shiplap or clapboard siding composed of boards with a reveal of 3 to 6 inches.
d.
Trim must mark all building rooflines, entries, windows, and doors on all façades. Roofline (fascia) and porch trim shall be at least 6 inches wide and 1 inch thick. Window and door trim shall be at least 3 inches wide and ⅝ inch thick.
9.
Waste and Recycling Facilities. The standards of Section 12.50.270 shall apply.
(Ord. 6401 § 1, 2022; Ord. 6322 § 1, 2019; Ord. 6110 § 8, 2015)
A.
Purpose. These standards are intended to ensure that non-residential and mixed-use developments are designed to reinforce the goal of creating a complete, connected and green community, consistent with the policies in the South Hillsboro Community Plan. Most, but not all, non-residential and mixed-use development within the District will occur within the Mixed-Use—Village Town Center (MU-VTC). Non-residential and mixed-use developments will contribute to the public realm by providing connections to the street that promote safety and a sense of interaction between activities inside and outside of buildings.
B.
Applicability.
1.
The design standards for non-residential and mixed-use development in Sections 12.50.800 through 12.50.890 apply to all non-residential and mixed-use development in all zones within the District except as modified or superseded by the standards in this section.
2.
Developments on Active Use streets are also subject to the design standards in Section 12.65.850 and should Code sections conflict, the more restrictive standards apply.
C.
Standards.
1.
Main Entries. Buildings shall contribute to the public realm by creating a clear sense of an entrance from nearby streets as well as offering pedestrians shelter from the elements and shall be subject to the following standards:
a.
Where a single tenant occupies 200 feet or more of a building façade, 1 additional entry shall be provided for each 200 feet of street façade.
b.
Main entries shall be covered by either roofs or be recessed within the building plane. The entry and cover shall be at least 10 feet wide and 5 feet deep.
2.
Entry Orientation. On sites with multiple street frontages, the developer shall designate and orient the front of the structure to the street with the highest classification. Where streets are of equal classification, the developer may choose which street frontage to designate for the purposes of this standard. Developments on Active Use Streets are subject to the Maximum Setback and Front Property Line Coverage requirements in Section 12.65.850.
3.
Ground Floor Windows. The standards of Section 12.50.830 shall apply.
4.
Articulation and Detailed Design. Building elevations shall be varied and articulated to avoid a flat appearance by incorporating at least 5 of the features found within Section 12.50.840. Except as modified above, the standards in Section 12.50.840 apply.
5.
Step-Back Requirements. The standards in Section 12.50.845 shall apply.
6.
Improvements and Activities between Streets and Buildings. The standards in Section 12.50.850 shall apply.
7.
Waste and Recycling Facilities. The standards of Section 12.50.270 shall apply.
8.
Sidewalk Dining and Displays. The standards of Section 12.50.870 shall apply.
9.
Outdoor Storage. The standards of Section 12.50.880 shall apply.
10.
Utilitarian Functions. The standards of Section 12.50.890 shall apply.
11.
Exterior Finish Materials. The following finish materials are prohibited or limited by the standards below:
a.
Plain concrete block, plain concrete, corrugated metal, plywood and sheet pressboard are not allowed as exterior finish materials.
b.
Composite and/or cementitious horizontal boards manufactured from wood or other products, such as hardboard or hardplank, may be used when the board product is less than 8 inches wide.
c.
Where horizontal siding is used, it must be shiplap or clapboard siding composed of boards with a reveal of 3 to 6 inches.
d.
Trim detail shall mark all building rooflines, entries, windows, and doors on all façades.
12.
Roofs. Roofs on the primary structure must meet the following standards:
a.
Sloped roofs may be permitted if the pitch is no steeper than 12/12, and no flatter than 4/12 and unless approved under paragraph b below.
b.
Flat roofs may be permitted in compliance with the following standards:
i.
The roof has a 2-part cornice that is harmonious with the selected building and trim materials, the upper portion of which projects at least 6 inches from the building face and at least 2 inches farther from the building face than the lower portion, and the overall height of which is based on the height of the building as shown in Table 12.50.800-1; or
ii.
The roof top is usable as a deck or balcony.
13.
Structured Parking.
a.
Structured parking within or adjacent to a primary structure shall be integrated with the overall design of the primary structure it serves through the use of visually similar architectural features and façade materials.
b.
Free-standing parking structures shall be designed to complement surrounding buildings in terms of scale, design elements, building materials, and orientation on the site.
c.
Ground level structured parking with direct access from drive aisles to parking for individual dwelling units shall include garage doors on the elevation where vehicles enter and exit. The remaining outer side and rear walls of the structure shall be enclosed by walls or screens meeting the requirements of this section. Open-sided and open-ended carports are not permitted.
d.
Pedestrian-oriented design elements, including the following, shall be incorporated into parking structures to screen cars and provide visual interest. Such features are illustrated on Figure 12.65.800-A:
i.
Decorative panels for window openings and/or garage entrance gates;
ii.
Integrated planting systems;
iii.
Public art;
iv.
Green roofs (for underground parking decks); and
v.
Other features as approved by the Review Authority.
Figure 12.65.800-A:
Parking Structures: Pedestrian-Oriented Design Elements
(Ord. 6401 § 1, 2022; Ord. 6322 § 1, 2019; Ord. 6294 § 1, 2019; Ord. 6110 § 8, 2015)
A.
Purpose. In order to further facilitate pedestrian-friendly development, certain streets are designated for "active use" and development along these streets is subject to the additional design standards in this section. The Active Use Street design standards assure that development will be compatible with the vision of South Hillsboro as a complete, connected and green community, consistent with the design principles and best practices described in the South Hillsboro Community Plan, while allowing for some flexibility for new development. Because designated Active Use Streets play a primary role in conveying the pattern of new development in South Hillsboro, buildings located along these corridors are expected to be more urban in character, and architecturally expressive. Public spaces between the building and the street should emphasize urban qualities of walkability and public gathering. All buildings should be sited with minimal setbacks and in a manner that engages the public realm and supports a pedestrian friendly environment. Building heights should be sufficient to create a sense of street enclosure, or "outdoor room."
1.
Active Use 1 Streets. Developments along designated Active Use 1 Streets should exhibit a strong pedestrian-orientation. Buildings should line the street to form a continuous storefront and building edge and larger building volumes should be oriented to the street to emphasize and enclose the street. Any setback areas between the building and sidewalk should be designed as extensions of the sidewalk, offering public places for people to sit and gather, or space for tables and chairs, associated with a café or restaurant.
2.
Active Use 2 Streets. Developments along designated Active Use 2 Streets are expected to exhibit the same type of sidewalk orientation as the buildings along Active Use 1 streets, but without the storefront retail space at the ground level. Along Active Use 2 Streets, other uses, such as office or residential, may also be located at the ground level, still encouraging pedestrian use, but not necessarily creating a continuous storefront-retail environment. Generally, building setbacks along these streets should follow the same principles as those for Active Use 1 Streets, although setbacks adjacent to ground-level residential uses may incorporate landscape plantings and/or trees.
B.
Applicability. The design standards in this section apply to all development on lots with frontage on an Active Use Street designated in accordance with Section 12.65.030.
C.
Exceptions. These standards do not apply if alternative standards have been approved through a PUD as specified in Subsection 12.65.030.B.
D.
Standards.
1.
Maximum Setback and Front Property Line Coverage Requirement. Buildings shall be sited in a manner that engages the public realm and supports a pedestrian friendly environment.
a.
The maximum setbacks established in Table 12.65.850-1 supersede any base zone setback requirements for building planes along Active Use Streets.
b.
Except as provided below, all buildings shall meet the maximum setback and front property line coverage requirements in Table 12.65.850-1 along Active Use Street frontages. The Review Authority may approve an increase in the maximum setback or a decrease in the percentage of required property line coverage allowed in the following circumstances:
i.
For the protection of a designated significant natural resource, preservation of a specimen tree or to accommodate topographic constraints or required utility easements.
ii.
To allow for the placement of pedestrian amenities within the setback, including, but not limited to, seating areas, water features, and plazas.
Figure 12.65.850-A:
Maximum Setback and Minimum Property Line Coverage Requirements
2.
Minimum Building Height at Street Corners. The intersection of Active Use Streets shall be designed as gateway locations that establish a sense of entry into the distinct South Hillsboro community. Where development is proposed on a corner lot created by the intersection of 2 Active Use Streets or at gateway locations designated on Figure 12.65.930-F, buildings with 30 feet of the intersection shall meet the following standards:
a.
Buildings shall be designed to preserve or create strong building edges at street corners.
b.
Buildings shall reinforce street corners by repeating façade elements such as awnings and window and wall treatments on both sides of the building facing the corner.
c.
Except as provided in paragraph d below, single story buildings located on street corners shall contain an architectural corner element which exceeds the eave height of the primary roof by at least 5 feet (see Figure 12.65.850-B). If the façade of the corner element exceeds 25 feet in height, then windows are required to provide the appearance of a usable second story.
d.
As an alternative to providing architectural corner elements, at up to 2 of the 4 corners of an intersection, buildings may be approved with chamfered corners, pedestrian plazas, enclosed porch, entrance pavilion or other design elements provided that the proposed design emphasizes the importance of intersections as gateways.
Figure 12.65.850-B:
Typical Corner Element
3.
Building Entries and Orientation. All buildings on Active Use Streets shall provide direct access from the main building entrance to the sidewalk along the Active Use Street.
a.
Development on lots fronting an Active Use Street and a non-designated street shall provide either a main building entrance oriented to the Active Use Street or to the corner where the streets intersect.
b.
Development on corner lots fronting on 2 Active Use Streets shall have a main entrance at the street intersection or within 30 feet of the intersection opening onto the higher classified Active Use Street. If the 2 Active Use Streets are of the same classification, then the applicant may choose to which Active Use Street the main entrance fronts.
c.
Surface parking facilities and vehicular circulation facilities, such as driveways and queues, are prohibited between the required building frontage and an Active Use Street.
4.
Weather Protection. On building façades facing an Active Use Street, weather protection for pedestrians shall be provided along a minimum of 50% of the façade. Weather protection may be an awning, canopy, arcade, colonnade, recessed entry, and/or some combination of these elements, with at least 10 feet minimum vertical clearance from the element to the sidewalk. Where provided, awnings and/or canopies shall meet the following standards:
a.
Constructed of glass, metal, wood or a combination of these materials;
b.
Minimum 5-foot projection from the building façade;
c.
Width matching the width of storefronts or window openings; and
d.
Location such that any transom windows present are not obscured.
Figure 12.65.850-C:
Weather Protection
5.
Ground Floor Windows. Buildings shall incorporate transparent windows into the ground level building façades along Active Use Street frontages. The windows shall provide an active and interesting streetscape; allow views of interior spaces and merchandise; enhance the safety of public spaces by providing direct visibility to the street; and create a more inviting environment for pedestrians.
a.
Minimum percentages for windows on ground level building façades shall be as follows:
i.
On Active Use 1 Streets: 70% of the length and 60% of the area of the ground level wall area shall be windows.
ii.
On Active Use 2 Streets: 60% of the length and 50% of the area of the ground level wall area shall be windows.
b.
Minimum Transparency Measurement. To apply paragraph a above, use the following measurement methodology and standards:
i.
Ground level wall area shall mean the area up to the finished ceiling height of the fronting space or 15 feet above finished grade, whichever is less.
ii.
All percentages shall be measured using elevation views of the building façade.
iii.
For non-residential uses, glazing on all ground floor windows shall be transparent.
iv.
For residential uses, glazing on ground floor windows of common hallways, foyers, or entryways shall be transparent to allow views into such areas. Glazing on ground floor windows of dwelling units may be translucent or opaque to protect privacy.
Figure 12.65.850-D:
Ground Floor Windows
6.
Pedestrian Active Use Requirements. Pedestrian active use requirements ensure that buildings on Active Use 1 Streets are developed to accommodate pedestrian-active uses (such as retail goods and services) in ground floor street frontages. At least 60% of Active Use 1 Street frontage of each primary building shall be constructed:
a.
With an internal floor-to-ceiling height of at least 15 feet;
b.
With a leasable area extending from the street façade of the building towards the interior of the building at least 30 feet; and
c.
With at least 1 pedestrian access from the street to a main building entrance per 100 linear feet of street frontage, or part thereof, at a level no more than 3 feet above or below sidewalk grade.
Figure 12.65.850-E:
Pedestrian Active Use Requirement
(Ord. 6401 § 1, 2022; Ord. 6393 § 1, 2021; Ord. 6110 § 8, 2015)
The Transportation Studies, Public Facility Master Plan Compliance Requirements, Figures and Maps, and Street Figures section includes the following sections:
12.65.910 Transportation Studies Requirements Unique to the District
12.65.920 Public Facility Master Plan Compliance Requirements
12.65.930 Figures and Maps
12.65.940 Street Cross-Sections
(Ord. 6401 § 1, 2022)
The requirements of Sections 12.70.200 through 12.70.230 apply to development in the South Hillsboro Plan District except as cited below.
A.
The requirements of Section 12.70.200 apply in their entirety.
B.
The requirements of Section 12.70.210 apply in their entirety.
C.
The requirements of Section 12.70.230 apply in their entirety.
D.
The requirements of Section 12.70.220 apply, with the following exceptions:
1.
Regarding Traffic Impact Analysis Study Areas, the requirements of Subsection 12.70.220.D. apply. Additional analysis or trip assignments may be required on the following off-site intersections as necessary to determine the scope and timing of planned improvements to evaluate the cumulative effect of annexations and development:
a.
SW Tualatin Valley Hwy and SE Century Blvd,
b.
SW Tualatin Valley Hwy and SW Cornelius Pass Rd,
c.
SW Tualatin Valley Hwy and SW 209th Ave,
d.
SW Tualatin Valley Hwy and SW 198th Ave,
e.
SE Century Blvd and SW Alexander St,
f.
SW Rosedale Rd and SW River Rd,
g.
SW 198th Ave and SW Kinnaman Rd,
h.
SW 209th Ave and SW Blanton St,
i.
SW 209th Ave and SW Kinnaman Rd,
j.
SW 209th Ave and SW McInnis Ln,
k.
SW 209th Ave and SE Deline St,
l.
SW 209th Ave and SE Butternut Creek Pkwy,
m.
SW 209th Ave and SW Murphy Ln,
n.
SW 209th Ave and SW Rosedale Rd,
o.
SW 209th Ave and SW Farmington Rd,
p.
SW 209th Ave and SE Vermont St,
q.
SW Tualatin Valley Hwy and SE Brookwood Ave.
2.
Regarding Contents of the Traffic Impact Analysis (Traffic Forecasts) the requirements of Subsection 12.70.220.E.3. are superseded by the following requirements in the South Hillsboro Plan District regarding traffic volume data. The Traffic Impact Analysis (TIA) shall provide traffic volume information in compliance with the standards listed below:
a.
Except as described in paragraph b. below, existing traffic shall be measured for the morning and afternoon peak periods within 12 months prior to the land use application submittal date.
b.
The City Engineer may allow use of traffic counts older than 12 months for a TIA submitted with a land use application on property in the South Hillsboro Plan District, for which a prior TIA was approved in conjunction with an executed annexation agreement.
c.
In addition to the requirements of paragraph a. above, mid-day period shall also be provided if the peak traffic period for the existing street, the proposed development, or the composite of both is greater than the morning and afternoon peak periods.
d.
Traffic volumes shall be based on data from a typical Tuesday through Thursday weekday of a week without holidays and during which public schools are in session, unless otherwise approved by the City Engineer. In addition, data shall be provided for weekends if weekends are the peak traffic period for either the existing adjacent street or the proposed development.
e.
Seasonal variations in traffic volumes shall be considered if required by an effected Road Authority.
3.
Regarding Contents of the Traffic Impact Analysis (Existing Conditions) the requirements of Subsection 12.70.220.E.4.i. and ii. are superseded by the following requirements in the South Hillsboro Plan District:
a.
Trip Generation. Estimates of the proposed development's trip generation shall be made for peak period traffic. Selection of the peak period used in the analysis shall be justified and shall consider, at a minimum, the peak period for the proposed development and the peak period for surrounding streets. The City Engineer may require review of other time periods based on known or anticipated marginal or substandard traffic capacity or traffic safety. Trip generation estimates shall be based on Institute of Transportation Engineers (ITE) Trip Generation 11th Edition. If the land use application is associated with properties included in the South Hillsboro Local Improvement District established by Ordinance No. 6161, trip generation estimates shall be based on ITE's Trip Generation 9th Edition. The City Engineer may approve different trip generation rates when trip generation rates are not available in ITE's Trip Generation or different rates are justified. Consideration of trip generation rate reductions due to alternative mode use, mixed land use interaction, and transportation demand management methods shall be approved by the Review Authority.
b.
Trip Distribution and Assignment. Traffic generated by the proposed development shall be logically distributed and assigned according to professional accepted practice to the street system within the Study Area and any additional locations previously identified by the City Engineer. Trip distribution and assignment shall be based on trip distribution information from Washington County, ODOT, Metro, analysis of local traffic patterns based on data less than 12 months old, or on an alternative data source approved by the City Engineer. For Traffic Impact Analyses prepared for development in the South Hillsboro Plan District, trip distribution for residential, office and retail uses shall comply with Figures 12.65.910-A, 12.65.910-B, and 12.65.910-C of this Section.
c.
Forecast Year Analysis. Forecast Year Analysis has been completed for the impacted intersections identified for mitigation improvements by cumulative development within the South Hillsboro Plan District.
i.
Figure 12.65.910-D illustrates critical intersection lane improvements identified to accommodate development under the Comprehensive Plan and Zoning Concept for the South Hillsboro Plan District in addition to development of Urban Growth Boundary expansion areas and infill development consistent with HB 4078 adopted by the 2014 Oregon Legislature. Traffic Impact Analyses prepared in conjunction with South Hillsboro Plan District development shall consider, and land use conditions of approval may include dedications of right-of-way and construction of, or accommodation for future construction of, identified improvements. An alternative analysis may be provided by a registered professional engineer utilizing forecast traffic volumes provided by the Road Agencies to recommend alternative intersection improvements; subject to review and approval of the Road Agencies.
ii.
Building and parking lot setbacks shall accommodate potential future intersection capacity improvements anticipated with growth in Urban Reserve areas established by HB 4078 adopted by the 2014 Oregon Legislature, and future infill of Urban Growth Boundary areas consistent with those depicted in Figure 12.65.910-E. An alternative analysis may be provided by a registered professional engineer utilizing forecast traffic volumes provided by the Road Agencies to recommend alternative intersection improvements; subject to review and approval of the Road Agencies.
Figure 12.65.910-A:
South Hillsboro Residential and Office Outer Cordon Trip Distribution
Figure 12.65.910-B:
South Hillsboro Residential and Office Inner Cordon Trip Distribution
Figure 12.65.910-C:
South Hillsboro Retail Trip Distribution
Figure 12.65.910-D:
Urban Growth Boundary Recommended Intersection Improvements
Figure 12.65.910-E:
Urban Reserves Recommended Intersection Improvements
(Ord. 6414 § 1, 2022; Ord. 6401 § 1, 2022; Ord. 6294 § 1, 2019; Ord. 6178 § 1, 2016; Ord. 6110 § 8, 2015)
A.
Purpose. Adequate public facilities are necessary to support development in the South Hillsboro Plan District. A development application shall describe the location and capacity of the public facilities that will provide service to the development site and a decision to approve the application may require the installation of additional facilities as necessary to provide an adequate level of service.
B.
Compliance with Community Plan Public Facilities Plans. Development in the South Hillsboro Plan District shall demonstrate compliance with the type, location and size of the public facilities described in the following public facilities master plans shown in Section 12.65.930: Streets; Existing and Future Water System; Existing and Future Sewer Facilities.
C.
Development Approvals Conditioned upon Compliance with Public Facilities Master Plans.
1.
The Review Authority may approve a Type II or Type III land use application for development provided that the following criteria are met:
a.
Adequate public facilities are available to serve the development or the decision is conditioned to require the installation of such services;
b.
The development will comply with the requirements of the Financing Program described in Section 31 of the Comprehensive Plan; and
c.
The developer's public facility obligations are consistent with the terms of an annexation agreement, if any, for the site.
2.
A decision to approve a development may include such conditions as necessary to ensure compliance with this section and any applicable requirements of Section 31 of the Comprehensive Plan.
(Ord. 6401 § 1, 2022; Ord. 6110 § 8, 2015)
A.
Plan District Boundary, Town Center and Village Center Boundaries, Active Use Streets. Figure 12.65.930-A shows the location of the South Hillsboro Plan District boundary, and the approximate locations of the Town Center and Village Center boundaries and the Active Use Streets.
Figure 12.65.930-A:
South Hillsboro Plan District Boundary,
Town and Village Center Core Areas and Active Use Streets*
* NOTE: The boundaries of the Town Center and Village Center and the location of Active Use Streets depicted on this map are for illustrative purposes only. The final location of these features shall be established through the PUD process pursuant to Sections 12.24.315 and 12.65.030.
B.
Streets. Figure 12.65.930-B shows the Streets Master Plan.
Figure 12.65.930-B:
Streets Master Plan
C.
Existing/Future Water System. Figure 12.65.930-C shows the Water System Master Plan.
Figure 12.65.930-C:
Water System Master Plan
D.
Existing/Future Sanitary Sewer System. Figure 12.65.930-D shows the Sanitary Sewer Master Plan.
Figure 12.65.930-D:
Sanitary Sewer Master Plan
E.
Parks, Trails, Schools, and Open Space Master Plan. Figure 12.65.930-E shows the Parks, Trails, Schools, and Open Space Master Plan.
Figure 12.65.930-E:
Parks, Trails, Schools, and Open Space Master Plan
F.
Gateway Opportunities. Figure 12.65.930-F shows the Gateway Opportunities Master Plan.
Figure 12.65.930-F:
Gateway Opportunities Master Plan
(Ord. 6414 § 1, 2022; Ord. 6401 § 1, 2022; Ord. 6110 § 8, 2015)
The Transportation Studies, Public Facility Master Plan Compliance Requirements, Figures and Maps, and Street Figures section includes the following figures:
Figure 12.65.940-A: "L1" — City Residential Cul-de-sac/Local Street (No Parking)
Figure 12.65.940-B: "L2" — City Residential Cul-de-sac/Local Street (Parking One Side)
Figure 12.65.940-C: "L3" — City Residential Local Street (Parking Both Sides)
Figure 12.65.940-D: "L4" — City Mixed-Use Local Street
Figure 12.65.940-E: "Y1" — City Alley
Figure 12.65.940-F: "N1" — City Neighborhood Route
Figure 12.65.940-G: "N2" — City Green Neighborhood Route
Figure 12.65.940-H: "C1" — City 3-Lane Collector
Figure 12.65.940-I: "C2" — City 3-Lane Neighborhood Collector
Figure 12.65.940-J: "C3" — City 3-Lane Collector with 12-Foot Sidewalks
Figure 12.65.940-K: "C4" — City 3-Lane Collector at UGB Boundary
Figure 12.65.940-L: "C5" — County 3-Lane Collector
Figure 12.65.940-M: "C6" — County 3-Lane Collector at UGB Boundary
Figure 12.65.940-N: "A1" — County 7-Lane Arterial with 12-Foot Sidewalks
Figure 12.65.940-O: "A2" — County 5-Lane Arterial
Figure 12.65.940-P: "A3" — County 5-Lane Arterial with 12-Foot Sidewalks
Figure 12.65.940-Q: "A4" — County 3-Lane Arterial at UGB Boundary
Figure 12.65.940-R: "A5" — County 3-Lane Arterial in a 5-Lane Right-of-Way
Figure 12.65.940-S: Active Use Overlay
Figure 12.65.940-T: Trail Adjacent to Public Local Street
Figure 12.65.940-A: "L1" — City Residential Cul-de-sac/Local Street
(<250 vehicles per day; no on-street parking)
Note: Building height in excess of 30 feet as measured from the grade plane (as defined by Fire Code) to the eave or the top of the parapet, whichever is greater, may require an increased drivable surface width of 26 paved feet.
Figure 12.65.940-B: "L2" — City Residential Cul-de-sac/Local Street
(> 250 vehicles per day but <1,500 vehicles per day; on-street parking on one side
only)
Note #1: Where on street parking is provided, curb bulb-outs shall be used at all public and private street intersections, and at all commercial and multi-dwelling (5 or more dwellings) residential driveways.
Note #2: Building height in excess of 30 feet as measured from the grade plane (as defined by Fire Code) to the eave or the top of the parapet, whichever is greater, may require an increased drivable surface width (not including parking) of 26 paved feet.
Figure 12.65.940-C: "L3" — City Residential Local Street
(>1,500 vehicles per day; on-street parking on both sides)
Note #1: Where on street parking is provided, curb bulb-outs shall be used at all public and private street intersections, and at all commercial and multi-dwelling (5 or more dwellings) residential driveways.
Note #2: Building height in excess of 30 feet as measured from the grade plane (as defined by Fire Code) to the eave or the top of the parapet, whichever is greater, may require an increased drivable surface width (not including parking) of 26 paved feet.
Figure 12.65.940-D: "L4" — City Mixed-Use Local Street
Note: Where on street parking is provided, curb bulb-outs shall be used at all public and private street intersections, and at all commercial and multi-dwelling (5 or more dwellings) residential driveways.
Figure 12.65.940-E: "Y1" — City Alley
Note: Building height in excess of 30 feet as measured from the grade plane (as defined by Fire Code) to the eave or the top of the parapet, whichever is greater, may require an increased drivable surface width of 26 paved feet.
Figure 12.65.940-F: "N1" — City Neighborhood Route
Note #1: Where on street parking is provided, curb bulb-outs shall be used at all public and private street intersections, and at all commercial and multi-dwelling (5 or more dwellings) residential driveways.
Figure 12.65.940-G: "N2" — City Green Neighborhood Route
Note #1: Where on street parking is provided, curb bulb-outs shall be used at all public and private street intersections, and at all commercial and multi-dwelling (5 or more dwellings) residential driveways.
Note #2: Building height in excess of 30 feet as measured from the grade plane (as defined by Fire Code) to the eave or the top of the parapet, whichever is greater, may require an increased drivable surface width (not including parking) of 26 paved feet.
Figure 12.65.940-H: "C1" — City 3-Lane Collector
Figure 12.65.940-I: "C2" — City 3-Lane Neighborhood Collector
Figure 12.65.940-J: "C3" — City 3-Lane Collector with 12-Foot Sidewalks
Figure 12.65.940-K: "C4" — City 3-Lane Collector at UGB Boundary
Figure 12.65.940-L: "C5" — County 3-Lane Collector
Figure 12.65.940-M: "C6" — County 3-Lane Collector at UGB Boundary
Figure 12.65.940-N: "A1" — County 7-Lane Arterial with 12-Foot Sidewalks
Figure 12.65.940-O: "A2" — County 5-Lane Arterial
Figure 12.65.940-P:
"A3" — County 5-Lane Arterial with 12-Foot Sidewalks
Note #1: Where on street parking is provided, curb bulb-outs shall be used at all public and private street intersections, and at all commercial and multi-dwelling (5 or more dwellings) residential driveways.
Figure 12.65.940-Q:
"A4" — County 3-Lane Arterial at UGB Boundary
Figure 12.65.940-R:
"A5" — County 3-Lane Arterial in a 5-Lane Right-of-Way
Figure 12.65.940-S: Active Use Overlay
Figure 12.65.940-T: Trail Adjacent to Public Local Street
(Ord. 6401 § 1, 2022; Ord. 6110 § 8, 2015)