- MOTOR VEHICLE ORIENTED BUSINESSES
Motor vehicle oriented businesses (MVOB) shall require a conditional use permit in all districts as indicated in appendix B, land use and required parking matrix, of this chapter. When approved as a conditional use, the MVOB must comply with all applicable requirements of this section.
(Ord. No. 2008-3179, § 1, 12-18-08)
Existing MVOBs which do not comply with the regulations and conditions of this chapter shall be considered to be nonconforming and allowed to continue; however, all nonconforming MVOBs shall comply with the following requirements within one (1) year after written notification by the building commissioner of items which must be corrected:
1.
Whenever an MVOB is located adjacent to a residential district or residential use on the ground floor, appropriate screening, as provided for in section 25-16.10, landscaping requirements for buffer areas and screening.
2.
All exterior lighting shall conform to article 18 of this chapter.
3.
All MVOBs shall provide suitable storage of trash within areas, which are so designed and constructed as to allow no view of the trash storage from a street, to prevent waste from blowing around the site or onto adjacent properties or public rights-of-way, and to permit safe, easy removal of trash by truck or hand.
4.
All storage of merchandise for sale, including vending machines, shall conform with the requirements of subsection 25-23.6.D.1.
(Ord. No. 2008-3179, § 1, 12-18-08)
All MVOBs must be a minimum of three hundred (300) feet from other motor vehicle oriented businesses, which distances shall be computed as follows:
A.
For such businesses on the same side of the street, a minimum of three hundred (300) feet shall be provided between the two (2) closest property lines, said minimum distance, however, being subject to the effect of the additional requirements set forth in subsections B. and C. of this section.
B.
For such businesses on opposite sides of the street, no such business shall be allowed on a lot where a line, drawn from either front corner of said proposed lot across the street and perpendicular to the street right-of-way on which the proposed lot fronts, crosses the right-of-way on the opposite side of the street at a point less than three hundred (300) feet from the closest property corner of an already existing or approved MVOB lot on said opposite side of the street.
C.
For four-corner intersections, only two (2) MVOBs may be allowed at such an intersection but only on diagonally opposite corners, regardless of their distance from one another. For "T" intersections, only two (2) MVOBs may be allowed.
D.
The planning commission may waive or reduce the minimum distance requirements set forth above when the MVOB is located in the "M-1", "C-2", "RD-C", "RD-M", or "PD" zoning districts. The planning commission shall, prior to deciding on the request for said waiver, receive and review a report from the city engineer or city's traffic consultant. The report shall include the impact on existing traffic of the waiver of said requirement along with the traffic consultant's recommendations for the mitigation of said impact through the installation of traffic control devices such as turning lanes, shared access drives, traffic signals, and signage.
E.
The city planner may request that an applicant for a waiver provide, at the applicant's expense, a traffic study to ascertain the project's impact and effect of any proposed traffic control devices. Said study shall be prepared by a registered professional engineer prequalified by the city to perform such studies and said study shall be in accordance with guidelines established by the city.
(Ord. No. 2008-3179, § 1, 12-18-08)
The following site design standards shall be met for all MVOBs except as otherwise noted:
A.
Minimum lot area. Twenty thousand (20,000) square feet.
B.
Minimum lot width. The minimum lot width at the building line shall be one hundred fifty (150) feet.
C.
Yard requirements:
1.
Front yard. There shall be a front yard having a depth of not less than thirty (30) feet. No accessory building, service island, or other service or pickup facilities shall project beyond the front building setback line except as noted in subsection 25-13.5.D, structural projections.
2.
Side yard. There shall be a side yard on each side of the building of not less than five (5) feet. Said yard requirements shall be twenty-five (25) feet where abutting any non-urban or residential zoning district.
3.
Rear yard. MVOBs shall maintain the same rear yard requirements as the zoning district in which the business is located.
D.
Ingress and egress:
1.
The minimum width of driveways at the property line shall be twenty-four (24) feet, and shall not exceed forty (40) feet.
2.
The radius used to increase the driveway opening at the curb or pavement edge shall not be less than ten (10) feet nor more than forty (40) feet. The edges of the opening shall not project beyond the side property line extended normal to the pavement.
3.
Driveway openings shall be limited to one (1) drive per two hundred (200) feet of lot frontage. On a corner lot, one (1) entrance from each street shall be permitted and located as far as possible from the street intersection corner.
4.
The angle of driveway intersection with the street shall be based upon reasonable criteria for safe traffic movements and subject to the review and approval of the city engineer.
5.
Motor vehicle oriented businesses integrated in a shopping center or cluster of commercial facilities shall use the common access with other business establishments in that center.
(Ord. No. 2008-3179, § 1, 12-18-08)
Except as otherwise noted elsewhere in this section, all drive-thru facilities shall be designed to meet the minimum requirements indicated:
A.
Storage length. If not specifically specified herein, storage length will be determined by the city planner with the input of the city's traffic consultant and/or city engineer based upon an evaluation of the company's projected sales for a ten-year period and the volume of adjacent street traffic.
B.
Exclusive use. The drive-thru lane shall be used exclusively for drive-thru vehicles.
C.
Lane width. The drive-thru lane must be a minimum of twelve (12) feet in width, except that a ten-foot wide lane will be permitted within the pick-up/service area to guide motorists adjacent to the drive-up facility.
D.
Minimum distance from a public roadway. When the drive-thru lane is oriented parallel to a public roadway, there must be a minimum distance of fifty (50) feet measured between the public road curb or edge of pavement and the nearest curb or edge of the drive-thru lane.
E.
Banking facilities shall meet the following standards:
1.
Storage length. All drive-thru facilities shall contain stacking capacity for vehicles in accordance with the following criteria:
a.
Drive-up teller windows (see table 23.1, stacking for drive-up teller windows).
b.
ATM's. Three (3) stacking spaces (sixty-six [66] feet) shall be provided for each automatic teller machine (ATM).
2.
Exclusive use. The drive-thru lane serving each drive-up window or ATM shall be used exclusively for drive-thru vehicles commencing at a point not less than sixty-six (66) feet back from the centerline of and leading to the drive-up window or ATM.
F.
Automated car washes shall meet the following standards:
1.
Storage length. Stacking spaces equivalent to ten (10) times the capacity of the car wash shall be provided. One (1) stacking space is equal to twenty-two (22) feet of pavement length.
2.
Exclusive use. The drive-thru lane shall be used exclusively for drive-thru vehicles for a distance equivalent to fifty (50) percent of the required storage length of the car wash.
G.
Fast food restaurants shall meet the following standards:
1.
Storage length. All drive-thru facilities shall contain stacking capacity for vehicles in accordance with table 23.2, stacking for drive-thru lanes. For one (1) drive-thru lane with two (2) windows divide column two (2) requirements by one point three (1.3).
2.
Exclusive use. The drive-thru lane shall be used exclusively for drive-thru vehicles from the order board, which is mandatory, to the pick-up window. The distance between the order board and the pick-up window should be sufficient to store four (4) cars (not including the vehicles at the pick-up window and order board).
3.
Delayed pick-up area provision. A pick-up area sufficient to store one (1) car shall be provided for each pick-up window.
4.
Escape lane provision. An escape lane is recommended to permit motorists to exit the site after reviewing the menu board.
H.
Retail fuel dispensing facilities shall meet the following standards:
1.
All businesses with retail fuel dispensing facilities shall be limited to two (2) service islands and three (3) gasoline pumps per island for the minimum size lot. One (1) service island and three (3) gasoline pumps may be added for each additional two thousand (2,000) square feet of site area exceeding the minimum; however, in no case shall more than six (6) service islands be allowed at any one (1) site.
2.
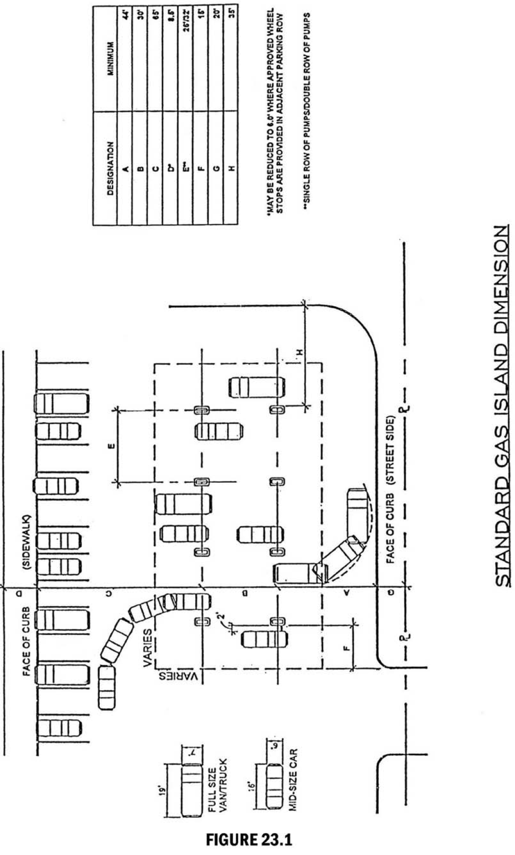
Lane width. Except as otherwise noted elsewhere in this section, all fuel dispensing facilities shall be designed to provide the minimum space requirements that are indicated on the following pages in figures 23.1 and 23.2, standard gas island dimension.
3.
The city planner, upon review by the city engineer, may specify equivalent dimensions to be used when the desired pump arrangement is not specified.
I.
Retail pharmacy. Except as otherwise noted elsewhere in this section, all retail pharmacy drive-thru facilities shall be designed to meet the minimum requirements indicated:
1.
Storage length. Stacking spaces equivalent to four (4) times the capacity of each drive-thru window be provided. One (1) stacking space is equal to twenty-two (22) feet of pavement length.
2.
Exclusive use. The drive-thru lane shall be used exclusively for prescription pick-up for a distance equivalent to fifty (50) percent of the required storage length of the drive-thru window.
(Ord. No. 2008-3179, § 1, 12-18-08)
A.
Off-street parking:
1.
All MVOBs shall provide for off-street parking in accordance with the requirements of section 25-14, Parking and Loading Regulations, except as otherwise noted elsewhere.
2.
The minimum width of a parking stall shall be ten (10) feet.
3.
No internal parking stall, cross drive aisle, or loading space shall be located closer to the street right-of-way than twenty (20) feet or within any side yard setback.
B.
Vehicular areas:
1.
The entire area used by vehicles for parking, storage, service, etc., shall be paved with concrete or asphaltic concrete.
2.
A raised six-inch concrete curb shall be provided at the edge of all pavement.
3.
When the rental of equipment, automobiles, trucks, and trailers is to be conducted on an MVOB site, additional land area and paved area shall be provided in addition to the driveway, parking area, and landscape areas required by this section. An additional one thousand (1,000) square feet of site area shall be provided for each five (5) rental units. No parking of rental units shall be permitted on landscaped areas or within driveways. All rental storage areas shall be paved and landscaped as approved by the city planner. Such rental equipment shall be stored in rear yard except when being picked up by customers.
C.
Performance standards:
1.
Outdoor sales and display at gasoline station convenience stores.
a.
Outdoor display and sales of merchandise may be permitted along the storefront. All other outdoor storage of materials and displays is specifically prohibited.
b.
Area. Said outdoor display shall be limited to twenty-five (25) percent of total store frontage with a maximum of one hundred (100) square feet (inclusive of vending machines).
c.
Height and other dimensions. The height of any outdoor display may not exceed five (5) feet with the exception of vending machines (and their surrounds) which shall not exceed eight (8) feet in height, three (3) feet in depth, or six (6) feet in width.
d.
Location.
i.
The placement of said display shall not obstruct public access to the building.
ii.
Vending machines shall not be located within three (3) feet of a fire department connection
iii.
Price signs shall be permitted on outdoor displays. Said price signage shall not exceed two (2) square feet and shall be placed upon the merchandise which it advertises.
e.
Parking. One (1) parking space, in addition to the number of spaces required for the convenience store, shall be provided for video rental and similar vending machines subject to the review and approval of the city planner.
2.
Flammable materials used in the conduct of MVOBs shall be stored according to the building code.
3.
All lubrication, washing, repair, and service of vehicles shall be conducted entirely within a building. The grease or wash racks, hydraulic hoists, pits, and other equipment used to perform these services shall be contained within a building.
4.
The planning commission may recommend, and the city council may require, other conditions which will tend to eliminate or reduce public nuisance caused by noise, heat, odors, smoke, dust, vibration, glare, flooding, and traffic congestion and promote the purpose of the zoning code.
5.
No service bay and/or loading zone shall face any street right-of-way.
6.
All paved and landscaped areas shall, at all times, be kept in good repair in accordance with this and other ordinances of the city and the continuous maintenance of said areas shall be the responsibility of the owners and lessees of the property.
D.
Utilities. All utility, power and telephone lines, except those located in designated overhead utility corridors, shall be located underground.
(Ord. No. 2008-3179, § 1, 12-18-08; Ord. No. 2013-3830, § 2, 12-5-13; Ord. No. 2023-4841, § 4, 12-7-23)
- MOTOR VEHICLE ORIENTED BUSINESSES
Motor vehicle oriented businesses (MVOB) shall require a conditional use permit in all districts as indicated in appendix B, land use and required parking matrix, of this chapter. When approved as a conditional use, the MVOB must comply with all applicable requirements of this section.
(Ord. No. 2008-3179, § 1, 12-18-08)
Existing MVOBs which do not comply with the regulations and conditions of this chapter shall be considered to be nonconforming and allowed to continue; however, all nonconforming MVOBs shall comply with the following requirements within one (1) year after written notification by the building commissioner of items which must be corrected:
1.
Whenever an MVOB is located adjacent to a residential district or residential use on the ground floor, appropriate screening, as provided for in section 25-16.10, landscaping requirements for buffer areas and screening.
2.
All exterior lighting shall conform to article 18 of this chapter.
3.
All MVOBs shall provide suitable storage of trash within areas, which are so designed and constructed as to allow no view of the trash storage from a street, to prevent waste from blowing around the site or onto adjacent properties or public rights-of-way, and to permit safe, easy removal of trash by truck or hand.
4.
All storage of merchandise for sale, including vending machines, shall conform with the requirements of subsection 25-23.6.D.1.
(Ord. No. 2008-3179, § 1, 12-18-08)
All MVOBs must be a minimum of three hundred (300) feet from other motor vehicle oriented businesses, which distances shall be computed as follows:
A.
For such businesses on the same side of the street, a minimum of three hundred (300) feet shall be provided between the two (2) closest property lines, said minimum distance, however, being subject to the effect of the additional requirements set forth in subsections B. and C. of this section.
B.
For such businesses on opposite sides of the street, no such business shall be allowed on a lot where a line, drawn from either front corner of said proposed lot across the street and perpendicular to the street right-of-way on which the proposed lot fronts, crosses the right-of-way on the opposite side of the street at a point less than three hundred (300) feet from the closest property corner of an already existing or approved MVOB lot on said opposite side of the street.
C.
For four-corner intersections, only two (2) MVOBs may be allowed at such an intersection but only on diagonally opposite corners, regardless of their distance from one another. For "T" intersections, only two (2) MVOBs may be allowed.
D.
The planning commission may waive or reduce the minimum distance requirements set forth above when the MVOB is located in the "M-1", "C-2", "RD-C", "RD-M", or "PD" zoning districts. The planning commission shall, prior to deciding on the request for said waiver, receive and review a report from the city engineer or city's traffic consultant. The report shall include the impact on existing traffic of the waiver of said requirement along with the traffic consultant's recommendations for the mitigation of said impact through the installation of traffic control devices such as turning lanes, shared access drives, traffic signals, and signage.
E.
The city planner may request that an applicant for a waiver provide, at the applicant's expense, a traffic study to ascertain the project's impact and effect of any proposed traffic control devices. Said study shall be prepared by a registered professional engineer prequalified by the city to perform such studies and said study shall be in accordance with guidelines established by the city.
(Ord. No. 2008-3179, § 1, 12-18-08)
The following site design standards shall be met for all MVOBs except as otherwise noted:
A.
Minimum lot area. Twenty thousand (20,000) square feet.
B.
Minimum lot width. The minimum lot width at the building line shall be one hundred fifty (150) feet.
C.
Yard requirements:
1.
Front yard. There shall be a front yard having a depth of not less than thirty (30) feet. No accessory building, service island, or other service or pickup facilities shall project beyond the front building setback line except as noted in subsection 25-13.5.D, structural projections.
2.
Side yard. There shall be a side yard on each side of the building of not less than five (5) feet. Said yard requirements shall be twenty-five (25) feet where abutting any non-urban or residential zoning district.
3.
Rear yard. MVOBs shall maintain the same rear yard requirements as the zoning district in which the business is located.
D.
Ingress and egress:
1.
The minimum width of driveways at the property line shall be twenty-four (24) feet, and shall not exceed forty (40) feet.
2.
The radius used to increase the driveway opening at the curb or pavement edge shall not be less than ten (10) feet nor more than forty (40) feet. The edges of the opening shall not project beyond the side property line extended normal to the pavement.
3.
Driveway openings shall be limited to one (1) drive per two hundred (200) feet of lot frontage. On a corner lot, one (1) entrance from each street shall be permitted and located as far as possible from the street intersection corner.
4.
The angle of driveway intersection with the street shall be based upon reasonable criteria for safe traffic movements and subject to the review and approval of the city engineer.
5.
Motor vehicle oriented businesses integrated in a shopping center or cluster of commercial facilities shall use the common access with other business establishments in that center.
(Ord. No. 2008-3179, § 1, 12-18-08)
Except as otherwise noted elsewhere in this section, all drive-thru facilities shall be designed to meet the minimum requirements indicated:
A.
Storage length. If not specifically specified herein, storage length will be determined by the city planner with the input of the city's traffic consultant and/or city engineer based upon an evaluation of the company's projected sales for a ten-year period and the volume of adjacent street traffic.
B.
Exclusive use. The drive-thru lane shall be used exclusively for drive-thru vehicles.
C.
Lane width. The drive-thru lane must be a minimum of twelve (12) feet in width, except that a ten-foot wide lane will be permitted within the pick-up/service area to guide motorists adjacent to the drive-up facility.
D.
Minimum distance from a public roadway. When the drive-thru lane is oriented parallel to a public roadway, there must be a minimum distance of fifty (50) feet measured between the public road curb or edge of pavement and the nearest curb or edge of the drive-thru lane.
E.
Banking facilities shall meet the following standards:
1.
Storage length. All drive-thru facilities shall contain stacking capacity for vehicles in accordance with the following criteria:
a.
Drive-up teller windows (see table 23.1, stacking for drive-up teller windows).
b.
ATM's. Three (3) stacking spaces (sixty-six [66] feet) shall be provided for each automatic teller machine (ATM).
2.
Exclusive use. The drive-thru lane serving each drive-up window or ATM shall be used exclusively for drive-thru vehicles commencing at a point not less than sixty-six (66) feet back from the centerline of and leading to the drive-up window or ATM.
F.
Automated car washes shall meet the following standards:
1.
Storage length. Stacking spaces equivalent to ten (10) times the capacity of the car wash shall be provided. One (1) stacking space is equal to twenty-two (22) feet of pavement length.
2.
Exclusive use. The drive-thru lane shall be used exclusively for drive-thru vehicles for a distance equivalent to fifty (50) percent of the required storage length of the car wash.
G.
Fast food restaurants shall meet the following standards:
1.
Storage length. All drive-thru facilities shall contain stacking capacity for vehicles in accordance with table 23.2, stacking for drive-thru lanes. For one (1) drive-thru lane with two (2) windows divide column two (2) requirements by one point three (1.3).
2.
Exclusive use. The drive-thru lane shall be used exclusively for drive-thru vehicles from the order board, which is mandatory, to the pick-up window. The distance between the order board and the pick-up window should be sufficient to store four (4) cars (not including the vehicles at the pick-up window and order board).
3.
Delayed pick-up area provision. A pick-up area sufficient to store one (1) car shall be provided for each pick-up window.
4.
Escape lane provision. An escape lane is recommended to permit motorists to exit the site after reviewing the menu board.
H.
Retail fuel dispensing facilities shall meet the following standards:
1.
All businesses with retail fuel dispensing facilities shall be limited to two (2) service islands and three (3) gasoline pumps per island for the minimum size lot. One (1) service island and three (3) gasoline pumps may be added for each additional two thousand (2,000) square feet of site area exceeding the minimum; however, in no case shall more than six (6) service islands be allowed at any one (1) site.
2.
Lane width. Except as otherwise noted elsewhere in this section, all fuel dispensing facilities shall be designed to provide the minimum space requirements that are indicated on the following pages in figures 23.1 and 23.2, standard gas island dimension.
3.
The city planner, upon review by the city engineer, may specify equivalent dimensions to be used when the desired pump arrangement is not specified.
I.
Retail pharmacy. Except as otherwise noted elsewhere in this section, all retail pharmacy drive-thru facilities shall be designed to meet the minimum requirements indicated:
1.
Storage length. Stacking spaces equivalent to four (4) times the capacity of each drive-thru window be provided. One (1) stacking space is equal to twenty-two (22) feet of pavement length.
2.
Exclusive use. The drive-thru lane shall be used exclusively for prescription pick-up for a distance equivalent to fifty (50) percent of the required storage length of the drive-thru window.
(Ord. No. 2008-3179, § 1, 12-18-08)
A.
Off-street parking:
1.
All MVOBs shall provide for off-street parking in accordance with the requirements of section 25-14, Parking and Loading Regulations, except as otherwise noted elsewhere.
2.
The minimum width of a parking stall shall be ten (10) feet.
3.
No internal parking stall, cross drive aisle, or loading space shall be located closer to the street right-of-way than twenty (20) feet or within any side yard setback.
B.
Vehicular areas:
1.
The entire area used by vehicles for parking, storage, service, etc., shall be paved with concrete or asphaltic concrete.
2.
A raised six-inch concrete curb shall be provided at the edge of all pavement.
3.
When the rental of equipment, automobiles, trucks, and trailers is to be conducted on an MVOB site, additional land area and paved area shall be provided in addition to the driveway, parking area, and landscape areas required by this section. An additional one thousand (1,000) square feet of site area shall be provided for each five (5) rental units. No parking of rental units shall be permitted on landscaped areas or within driveways. All rental storage areas shall be paved and landscaped as approved by the city planner. Such rental equipment shall be stored in rear yard except when being picked up by customers.
C.
Performance standards:
1.
Outdoor sales and display at gasoline station convenience stores.
a.
Outdoor display and sales of merchandise may be permitted along the storefront. All other outdoor storage of materials and displays is specifically prohibited.
b.
Area. Said outdoor display shall be limited to twenty-five (25) percent of total store frontage with a maximum of one hundred (100) square feet (inclusive of vending machines).
c.
Height and other dimensions. The height of any outdoor display may not exceed five (5) feet with the exception of vending machines (and their surrounds) which shall not exceed eight (8) feet in height, three (3) feet in depth, or six (6) feet in width.
d.
Location.
i.
The placement of said display shall not obstruct public access to the building.
ii.
Vending machines shall not be located within three (3) feet of a fire department connection
iii.
Price signs shall be permitted on outdoor displays. Said price signage shall not exceed two (2) square feet and shall be placed upon the merchandise which it advertises.
e.
Parking. One (1) parking space, in addition to the number of spaces required for the convenience store, shall be provided for video rental and similar vending machines subject to the review and approval of the city planner.
2.
Flammable materials used in the conduct of MVOBs shall be stored according to the building code.
3.
All lubrication, washing, repair, and service of vehicles shall be conducted entirely within a building. The grease or wash racks, hydraulic hoists, pits, and other equipment used to perform these services shall be contained within a building.
4.
The planning commission may recommend, and the city council may require, other conditions which will tend to eliminate or reduce public nuisance caused by noise, heat, odors, smoke, dust, vibration, glare, flooding, and traffic congestion and promote the purpose of the zoning code.
5.
No service bay and/or loading zone shall face any street right-of-way.
6.
All paved and landscaped areas shall, at all times, be kept in good repair in accordance with this and other ordinances of the city and the continuous maintenance of said areas shall be the responsibility of the owners and lessees of the property.
D.
Utilities. All utility, power and telephone lines, except those located in designated overhead utility corridors, shall be located underground.
(Ord. No. 2008-3179, § 1, 12-18-08; Ord. No. 2013-3830, § 2, 12-5-13; Ord. No. 2023-4841, § 4, 12-7-23)