33: GENERAL PARKING STANDARDS
The following standards are general standards to be applied generally throughout the county. If a specific zone or subdivision type requires a stricter standards than those set forth herein, the more specific zone or subdivision type shall control.
Any use of property which on the effective date of this chapter, or of any subsequent amendments thereto, is nonconforming relating to off street parking facilities, may continue in the same manner as if the parking facilities were conforming. Such parking facilities shall not be further reduced. If the use is expanded, current parking standards will apply.
At the time of the establishment of any use or at the time any building, structure, or improvement is enlarged or constructed, minimum off street parking shall be provided and permanently maintained, with adequate provisions for ingress or egress by standard sized automobiles as provided and described in this chapter. The actual number of spaces and whether such spaces must be covered are determined using the parking computation matrix in this chapter.
The required off-street parking facilities shall be a continuing obligation of the property owner so long as the use requiring the vehicle parking or vehicle loading facilities continues. It shall be unlawful for any owner of any building or use to discontinue with the required vehicle parking facilities.
A site plan showing the proposed parking area, number of stalls, aisle layout and accesses thereto shall be provided and approved prior to issuance of any building permit or site plan approval. In addition, the site plan shall clearly show the location, size, shape, design, bumpers, landscaping, lighting, building and use square footages and other features relevant to the proposed parking area.
The off street parking facilities required by this chapter shall be located on the same lot as the use except, in cases of practical difficulty the designated land use authority may approve a substitute location which meets the following conditions:
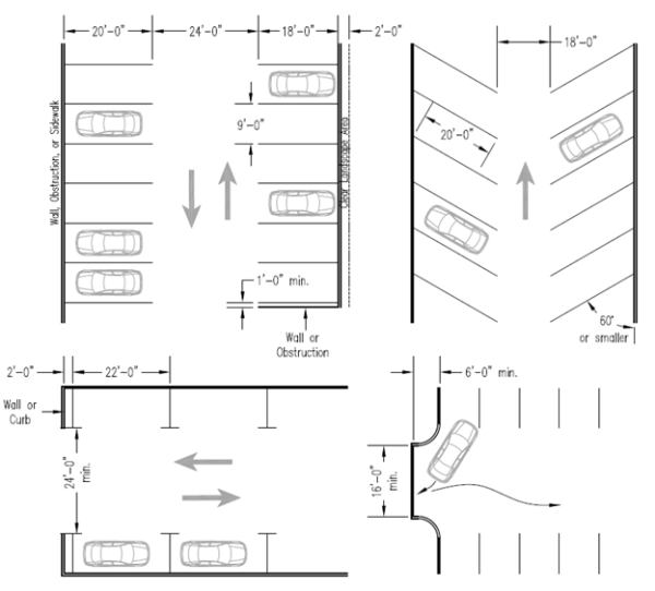
All off-street parking facilities shall be built in conformance with the following design standards:
16.33.08 Figure 1

Any lighting used to illuminate off street parking facilities shall be so arranged as to reflect the light away from the adjoining premises and downward so it will not interfere with the night sky. Additional, more specific lighting requirements that must be met are contained in section 16.21.16 of this title.
Except as otherwise provided in this Title, the number of off-street parking spaces shall be as follows:
| Use Description | Off Street Spaces Required | |
|---|---|---|
| Residential: | ||
| Single-family dwelling | 2 per unit up to 3 bedrooms 0.25 per bedroom above 3 (Minimum of 2 spaces are to be covered) | |
| Multi-family | 2 per unit up to 3 bedrooms and an additional .25 for each bedroom above 3 bedrooms (Minimum of 1 space per unit is to be covered) | |
| Accessory dwelling | 1 for up to 2 bedrooms, plus 1 for each additional bedroom | |
| Assisted living facilities | 1 for every 2 units, plus 1 for each 4 units for guest parking (Minimum of half [50%] of the spaces are to be covered) | |
| Retirement housing, single-family detached or attached without medical assistance | Treat the same as single-family dwelling (Minimum of half (50%) of the spaces are to be covered) | |
| Batching apartment | 2 stalls per bedroom, plus 1 stall for visitor parking per unit, unless designated for single room (1 person) occupancy, for which there shall be 1 stall per bedroom and 1 per unit for visitor parking | |
| Bed and breakfast - small | 1 for each bedroom, plus 1 for each daytime employee, plus 2 for residential family | |
| Commercial: | ||
| Adult entertainment (SOB) | 1 space for each 3 seats, based upon design capacity | |
| Art gallery | 1 per every 200 square feet of display area, plus 1 for each employee | |
| Auction house | 2 per every 100 square feet of floor area | |
| Auditorium, stadium or theater (indoor or outdoor) | 1 for every 3 seats, based upon design capacity | |
| Automobile and machinery sales and service garages (not gas stations) | 2 spaces plus 1 space for each 400 square feet of display area, plus 1 space for each daytime employee | |
| Bank, savings and loans, drive-in banking | Minimum of 20 spaces with 10 additional spaces for every teller cage over 3. For drive-in windows, 1 space in use, plus 3 in each approach lane. (Minimum of 1 space per 200 square feet of floor area on main floor and 1 space per 500 square feet on any other floor) | |
| Barber/beautician shop | 2 spaces per station | |
| Bowling alley | 4 spaces per alley, plus 1 for each employee, plus any required based upon accessory uses such as cafes or taverns | |
| Cafes, cafeterias, restaurants | 1 space for each 100 square feet of floor space including outside seating areas. | |
| Car wash | 3 spaces in each approach lane to each wash bay | |
| Churches | 1 space for every 3 seating spaces in the main assembly room(s), based upon the maximum occupancy | |
| Commercial recreation, i.e., billiard halls, etc. | 1 space for each 2 persons such place is designed to accommodate, including participants and spectators, based upon design capacity | |
| Dance halls | 1 space for every 3 persons based upon maximum occupancy | |
| Daycare center, children's nursery or preschool | 4 spaces, plus 1 space per 500 square feet of floor area | |
| Drive-in, fast food establishments | 1 space per 100 square feet of floor area but not less than 10 spaces | |
| Drive-up windows | 1 space in use plus 4 in the approach lane. If drive-up window traffic interferes with traffic on a road or unreasonably interferes with traffic flow in the parking lot, the drive-up window shall be closed. | |
| Dry cleaner | 1 space per employee, plus 3 spaces for customer use | |
| Gas stations and convenience stores | 1 space per pump site, plus 1 space per employee. If convenience store also, add 3 spaces per 200 square feet of store area | |
| Golf courses | 4 spaces per hole, plus 1 per daytime employee | |
| Hospitals, sanatoriums, convalescent hospitals, nursing homes | 1 space for each 2 bed capacity, plus 1 space for every employee at the highest shift | |
| Laboratory research, industrial, manufacturing, wholesale establishments | 1 space per employee on the highest shift | |
| Laundromat | 1 space per washer/dryer combination | |
| Library | 5 spaces for every 500 square feet of public area, plus 1 for each daytime employee | |
| Liquor store | 1 space for every 200 square feet, plus 1 space for each daytime employee | |
| Lounges, nightclubs, private clubs or taverns | 1 space for each 100 square feet of floor space | |
| Medical clinics | 4 spaces per staff doctor, physician's assistant, or nurse practitioner, plus 1 for each daytime employee | |
| Mortuary or funeral parlor | 1 space for every 3 persons based upon design occupancy | |
| Motel, hotel, inn | 1 space for each unit and 1 space for each daytime employee, plus 1 space for every 200 square feet of assembly area(s) | |
| Nursery or garden supplies | 1 space for each daytime employee, plus 1 space for each 300 square feet of display area(s) | |
| Offices | 1 space per 200 square feet of office floor space, including reception area(s) | |
| Post office | 1 space per vehicle used by the operation, plus 1 space per employee at the highest shift, plus 10 spaces for customers | |
| Professional office, i.e., legal, employment, insurance, travel, photo, real estate, etc. | 1 space per 200 square feet of office floor space, including reception area(s). | |
| Retail | 1 space for each daytime employee, plus 1 space for each 200 square feet of floor area(s) | |
| Skating rink | 1 per 200 square feet in the building | |
| Swimming pool | 1 per 100 square feet of pool area, plus 1 for each daytime employee | |
| Schools: | ||
| Elementary | 2 spaces for each classroom | |
| Middle and junior high | 2 spaces for each classroom | |
| Senior high | 1 space for each 4 seats provided in the auditorium or classroom, whichever is greater | |
| College | 1 space for each 3 seats provided in the classroom or auditorium, whichever is greater | |
33: GENERAL PARKING STANDARDS
The following standards are general standards to be applied generally throughout the county. If a specific zone or subdivision type requires a stricter standards than those set forth herein, the more specific zone or subdivision type shall control.
Any use of property which on the effective date of this chapter, or of any subsequent amendments thereto, is nonconforming relating to off street parking facilities, may continue in the same manner as if the parking facilities were conforming. Such parking facilities shall not be further reduced. If the use is expanded, current parking standards will apply.
At the time of the establishment of any use or at the time any building, structure, or improvement is enlarged or constructed, minimum off street parking shall be provided and permanently maintained, with adequate provisions for ingress or egress by standard sized automobiles as provided and described in this chapter. The actual number of spaces and whether such spaces must be covered are determined using the parking computation matrix in this chapter.
The required off-street parking facilities shall be a continuing obligation of the property owner so long as the use requiring the vehicle parking or vehicle loading facilities continues. It shall be unlawful for any owner of any building or use to discontinue with the required vehicle parking facilities.
A site plan showing the proposed parking area, number of stalls, aisle layout and accesses thereto shall be provided and approved prior to issuance of any building permit or site plan approval. In addition, the site plan shall clearly show the location, size, shape, design, bumpers, landscaping, lighting, building and use square footages and other features relevant to the proposed parking area.
The off street parking facilities required by this chapter shall be located on the same lot as the use except, in cases of practical difficulty the designated land use authority may approve a substitute location which meets the following conditions:
All off-street parking facilities shall be built in conformance with the following design standards:
16.33.08 Figure 1

Any lighting used to illuminate off street parking facilities shall be so arranged as to reflect the light away from the adjoining premises and downward so it will not interfere with the night sky. Additional, more specific lighting requirements that must be met are contained in section 16.21.16 of this title.
Except as otherwise provided in this Title, the number of off-street parking spaces shall be as follows:
| Use Description | Off Street Spaces Required | |
|---|---|---|
| Residential: | ||
| Single-family dwelling | 2 per unit up to 3 bedrooms 0.25 per bedroom above 3 (Minimum of 2 spaces are to be covered) | |
| Multi-family | 2 per unit up to 3 bedrooms and an additional .25 for each bedroom above 3 bedrooms (Minimum of 1 space per unit is to be covered) | |
| Accessory dwelling | 1 for up to 2 bedrooms, plus 1 for each additional bedroom | |
| Assisted living facilities | 1 for every 2 units, plus 1 for each 4 units for guest parking (Minimum of half [50%] of the spaces are to be covered) | |
| Retirement housing, single-family detached or attached without medical assistance | Treat the same as single-family dwelling (Minimum of half (50%) of the spaces are to be covered) | |
| Batching apartment | 2 stalls per bedroom, plus 1 stall for visitor parking per unit, unless designated for single room (1 person) occupancy, for which there shall be 1 stall per bedroom and 1 per unit for visitor parking | |
| Bed and breakfast - small | 1 for each bedroom, plus 1 for each daytime employee, plus 2 for residential family | |
| Commercial: | ||
| Adult entertainment (SOB) | 1 space for each 3 seats, based upon design capacity | |
| Art gallery | 1 per every 200 square feet of display area, plus 1 for each employee | |
| Auction house | 2 per every 100 square feet of floor area | |
| Auditorium, stadium or theater (indoor or outdoor) | 1 for every 3 seats, based upon design capacity | |
| Automobile and machinery sales and service garages (not gas stations) | 2 spaces plus 1 space for each 400 square feet of display area, plus 1 space for each daytime employee | |
| Bank, savings and loans, drive-in banking | Minimum of 20 spaces with 10 additional spaces for every teller cage over 3. For drive-in windows, 1 space in use, plus 3 in each approach lane. (Minimum of 1 space per 200 square feet of floor area on main floor and 1 space per 500 square feet on any other floor) | |
| Barber/beautician shop | 2 spaces per station | |
| Bowling alley | 4 spaces per alley, plus 1 for each employee, plus any required based upon accessory uses such as cafes or taverns | |
| Cafes, cafeterias, restaurants | 1 space for each 100 square feet of floor space including outside seating areas. | |
| Car wash | 3 spaces in each approach lane to each wash bay | |
| Churches | 1 space for every 3 seating spaces in the main assembly room(s), based upon the maximum occupancy | |
| Commercial recreation, i.e., billiard halls, etc. | 1 space for each 2 persons such place is designed to accommodate, including participants and spectators, based upon design capacity | |
| Dance halls | 1 space for every 3 persons based upon maximum occupancy | |
| Daycare center, children's nursery or preschool | 4 spaces, plus 1 space per 500 square feet of floor area | |
| Drive-in, fast food establishments | 1 space per 100 square feet of floor area but not less than 10 spaces | |
| Drive-up windows | 1 space in use plus 4 in the approach lane. If drive-up window traffic interferes with traffic on a road or unreasonably interferes with traffic flow in the parking lot, the drive-up window shall be closed. | |
| Dry cleaner | 1 space per employee, plus 3 spaces for customer use | |
| Gas stations and convenience stores | 1 space per pump site, plus 1 space per employee. If convenience store also, add 3 spaces per 200 square feet of store area | |
| Golf courses | 4 spaces per hole, plus 1 per daytime employee | |
| Hospitals, sanatoriums, convalescent hospitals, nursing homes | 1 space for each 2 bed capacity, plus 1 space for every employee at the highest shift | |
| Laboratory research, industrial, manufacturing, wholesale establishments | 1 space per employee on the highest shift | |
| Laundromat | 1 space per washer/dryer combination | |
| Library | 5 spaces for every 500 square feet of public area, plus 1 for each daytime employee | |
| Liquor store | 1 space for every 200 square feet, plus 1 space for each daytime employee | |
| Lounges, nightclubs, private clubs or taverns | 1 space for each 100 square feet of floor space | |
| Medical clinics | 4 spaces per staff doctor, physician's assistant, or nurse practitioner, plus 1 for each daytime employee | |
| Mortuary or funeral parlor | 1 space for every 3 persons based upon design occupancy | |
| Motel, hotel, inn | 1 space for each unit and 1 space for each daytime employee, plus 1 space for every 200 square feet of assembly area(s) | |
| Nursery or garden supplies | 1 space for each daytime employee, plus 1 space for each 300 square feet of display area(s) | |
| Offices | 1 space per 200 square feet of office floor space, including reception area(s) | |
| Post office | 1 space per vehicle used by the operation, plus 1 space per employee at the highest shift, plus 10 spaces for customers | |
| Professional office, i.e., legal, employment, insurance, travel, photo, real estate, etc. | 1 space per 200 square feet of office floor space, including reception area(s). | |
| Retail | 1 space for each daytime employee, plus 1 space for each 200 square feet of floor area(s) | |
| Skating rink | 1 per 200 square feet in the building | |
| Swimming pool | 1 per 100 square feet of pool area, plus 1 for each daytime employee | |
| Schools: | ||
| Elementary | 2 spaces for each classroom | |
| Middle and junior high | 2 spaces for each classroom | |
| Senior high | 1 space for each 4 seats provided in the auditorium or classroom, whichever is greater | |
| College | 1 space for each 3 seats provided in the classroom or auditorium, whichever is greater | |