35 - CC COMMUNITY COMMERCIAL ZONES REGULATIONS
Sections:
A.
Intent. The provisions of this Chapter shall be known as the CC Community Commercial Zones Regulations. The intent of the Community Commercial (CC) Zones is to create, maintain and enhance areas suitable for a wide variety of commercial and institutional operations along the City's major corridors and in shopping districts or centers. These regulations shall apply to the CC Zones.
B.
Description of Zones. This Chapter establishes land use regulations for the following three (3) zones:
1.
CC-1 Community Commercial - 1 Zone. The CC-1 Zone is intended to create, maintain, and enhance shopping centers and malls with a wide range of consumer businesses.
2.
CC-2 Community Commercial - 2 Zone. The CC-2 Zone is intended to create, maintain, and enhance areas with a wide range of commercial businesses with direct frontage and access along the City's corridors and commercial areas.
3.
CC-3 Community Commercial - 3 Zone. The CC-3 Zone is intended to create, maintain, and enhance areas with a wide range of commercial and service activities.
(Ord. No. 13357, § 3(Exh. A), 2-16-2016; Ord. No. 13090, § 4(Exh. A), 10-4-2011; Ord. No. 13064, § 2(Exh. A), 3-15-2011)
Except for projects that are exempt from design review as set forth in Section 17.136.025, no Building Facility, Designated Historic Property, Potentially Designated Historic Property, Telecommunications Facility, Sign, or other associated structure shall be constructed, established, or altered in exterior appearance, unless plans for the proposal have been approved pursuant to the design review procedure in Chapter 17.136, and when applicable, the Telecommunications regulations in Chapter 17.128, or the Sign regulations in Chapter 17.104.
(Ord. No. 13064, § 2(Exh. A), 3-15-2011)
Table 17.35.01 lists the permitted, conditionally permitted, and prohibited activities in the CC Zones. The descriptions of these activities are contained in Chapter 17.10. Section 17.10.040 contains permitted accessory activities.
"P" designates permitted activities in the corresponding zone.
"C" designates activities that are permitted only upon the granting of a Conditional Use permit (CUP) in the corresponding zone (see Chapter 17.134 for the CUP procedure).
"L" designates activities subject to certain limitations or notes listed at the bottom of the table.
"—" designates activities that are prohibited except as accessory activities according to the regulations contained in Section 17.010.040.
Table 17.35.01: Permitted and Conditionally Permitted Activities
Limitations on Table 17.35.01:
L1. See Section 17.103.010 for other regulations regarding Residential Care Residential Activities, and Sections 17.103.010 and 17.103.015 for other regulations regarding Emergency Shelter Residential Activities.
L2. Except as indicated in Subsection a. below, these activities are only permitted upon the granting of a Conditional Use Permit (see Chapter 17.134 for the CUP procedure) when located on the ground floor of a building and within thirty (30) feet of the principal street frontage.
a. Buildings not located within thirty (30) feet of the principal street frontage and incidental pedestrian entrances that lead to one of these activities elsewhere in a building are exempted from this Conditional Use Permit requirement.
L3. See Section 17.35.040 for limitations on the construction of new Residential Facilities.
L4. Emergency Shelters are permitted by-right on properties owned by churches, temples, synagogues, and other similar places of worship approved for Community Assembly Civic Activities; and within those portions of San Pablo Avenue and Webster Street corridors described in Section 17.103.015(A)(2)(3) respectively and subject to the development standards in Section 17.103.015(B); permitted upon the granting of a Conditional Use Permit elsewhere in the zone subject to the standards in Section 17.103.010.
L5. No new or expanded Special Health Care Civic Activity shall be located closer than two thousand five hundred (2,500) feet from any other such activity, or five hundred (500) feet from any K-12 school or Licensed Emergency Shelters. See Section 17.103.020 for further regulations regarding Special Health Care Civic Activities.
L6. See Section 17.102.170 for special regulations relating to massage services and Section 17.102.450 for special regulations relating to laundromats.
L7. No new or expanded Check Cashier and Check Cashing Commercial Activity shall be located closer than one thousand (1,000) feet from any other such activity or five hundred (500) feet from any Community Education, Community Assembly, or Recreational Assembly Civic Activity; State or Federally chartered bank, sayings association, credit union, or industrial loan company; or certain Alcoholic Beverage Sales Commercial Activities. See Section 17.103.040 for further regulations regarding Check Cashier and Check Cashing Commercial Activities.
L8. No new or expanded Adult Entertainment Activity shall be located closer than one thousand (1,000) feet to the boundary of any Residential Zone or three hundred (300) feet from any other Adult Entertainment Activity. See Section 17.102.160 for further regulations regarding Adult Entertainment Activities.
L9. Automobile and Other Light Vehicle Sales and Rental is only permitted upon the granting of a Conditional Use Permit (see Chapter 17.134 for the CUP procedure) when located on West Grand Avenue between San Pablo Avenue and Linden Street, and Telegraph Avenue between 28th Street and 1-580.
L10. This Conditional Use Permit may only be granted upon determination that the proposal conforms to the general use permit criteria set forth in the Conditional Use Permit procedure in Chapter 17.134 and to the following additional use permit criteria:
1. That all repair and servicing is performed in an enclosed building;
2. That a minimum six (6) foot tall masonry or decorative screening wall is provided at all parcels lines adjacent to an RH, RD or RM Zone;
3. That a landscape buffering is at all parcels lines adjacent to an RH, RD or RM Zone; and
4. That no auto repair activities shall be conducted before 7:00 a.m. or after 9:00 p.m. on any day of the week.
L11. This activity is only permitted upon the granting of a Conditional Use Permit (see Chapter 17.134 for the CUP procedure) when located on a lot that is six hundred (600) feet of a Residential Zone.
L12. Limited Agriculture is permitted if the activity occupies less than twenty thousand (20,000) square feet of land area and any sales area is less than one thousand (1,000) square feet; conditionally permitted if the activity is larger in either land or sales area (see Chapter 17.134 for the CUP procedure).
L13. Extensive Agriculture is only permitted upon the granting of a Conditional Use Permit (see Chapter 17.134 for the CUP procedure). In addition to the criteria contained in Section 17.134.050, this activity must meet the following use permit criteria:
1. The proposal will not adversely affect the livability or appropriate development of abutting properties and the surrounding neighborhood in terms of noise, water and pesticide runoff, farming equipment operation, hours of operation, odor, security, and vehicular traffic.
L14. The total floor area devoted to these activities on any single lot shall only exceed seven thousand five hundred (7,500) square feet upon the granting of a Conditional Use Permit (see Chapter 17.134 for the CUP procedure).
L15. These activities are only permitted upon the granting of a Conditional Use Permit (see Chapter 17.134 for the CUP procedure) when located on the ground floor of a street fronting building. Incidental pedestrian entrances that lead to one of these activities elsewhere in the building are exempted from this Conditional Use Permit requirement.
(Ord. No. 13763, § 5, 10-3-2023; Ord. No. 13393, § 2(Exh. A), 10-4-2016; Ord. No. 13357, § 3(Exh. A), 2-16-2016; Ord. No. 13270, § 3(Exh. A), 11-18-2014; Ord. No. 13251, § 5(Exh. A), 7-29-2014; Ord. No. 13248, § 3(Exh. A), 7-15-2014; Ord. No. 13172, § 3(Exh. A), 7-2-2013; Ord. No. 13064, § 2(Exh. A), 3-15-2011)
Table 17.35.02 lists the permitted, conditionally permitted, and prohibited facilities in the CC Zones. The descriptions of these facilities are contained in Chapter 17.10.
"P" designates permitted facilities in the corresponding zone.
"C" designates facilities that are permitted only upon the granting of a Conditional Use Permit (CUP) in the corresponding zone (see Chapter 17.134 for the CUP procedure).
"L" designates facilities subject to certain limitations listed at the bottom of the Table.
"—" designates facilities that are prohibited.
Table 17.35.02: Permitted and Conditionally Permitted Facilities
Limitations on Table 17.35.02:
L1. See Chapter 17.114, Nonconforming Uses, for additions and alterations to legal nonconforming Residential Facilities, provided, however, that Accessory Dwelling Units are permitted in the CC-1 and CC-2 Zones when there is an existing applicable Residential Facility on a lot, subject to the provisions of Section 17.103.080 and Chapter 17.88.
L2. Construction of new ground floor Residential Facilities is only permitted if part of a development that has a majority of the ground floor area devoted to Commercial Activities.
L3. Except as indicated in Subsection a. below, construction of new ground floor Residential Facilities within thirty (30) feet of the principal street frontage is only permitted upon the granting of a Conditional Use Permit (see Chapter 17.134 for the CUP procedure):
a. Buildings not located within thirty (30) feet of the principal street frontage and incidental pedestrian entrances that lead to one of these activities elsewhere in a building are exempted from this requirement.
L4. No new or expanded Fast-Food Restaurants with Drive-Through Nonresidential Facilities shall be located closer than five hundred (500) feet of an elementary school, park, or playground. See Sections 17.103.030 and 17.103.100 for further regulations regarding Drive-Through Nonresidential Facilities.
L5. See Section 17.128.025 for restrictions on Telecommunication Facilities near Residential Zones, HBX Zones, or D-CE-3 or D-CE-4 Zones.
L6. For the CC Zones in the West Oakland District (defined for the purposes of this Chapter as all areas between Interstate 980 to the east, Interstate 880 to the south and west, and Interstate 580 to the north), Open Nonresidential Facilities accommodating activities other than Civic Activities, Limited Agriculture, seasonal sales, or special events are only permitted upon the granting of a Conditional Use Permit (see Chapter 17.134 for the CUP procedure).
L7. All new Residential Facilities are prohibited in the CC-3 Zone, except for those facilities approved in conjunction with a permitted or conditionally permitted Emergency Shelter Activity, as indicated in Table 17.35.01.
L8. See Section 17.103.080 and Chapter 17.88 for regulations regarding permitted Accessory Dwelling Units.
(Ord. No. 13763, § 5, 10-3-2023; Ord. No. 13677, § 4(Exh. A), 1-18-2022; Ord. No. 13666, § 3(Exh. A), 11-16-2021; Ord. No. 13435, § 4(Exh. A), 5-2-2017; Ord. No. 13357, § 3(Exh. A), 2-16-2016; Ord. No. 13270, § 3(Exh. A), 11-18-2014; Ord. No. 13251, § 5(Exh. A), 7-29-2014; Ord. No. 13172, § 3(Exh. A), 7-2-2013; Ord. No. 13168, § 5(Exh. A-2), 6-18-2013; Ord. No. 13064, § 2(Exh. A), 3-15-2011)
A.
Zone Specific Standards. Table 17.35.03 below prescribes development standards specific to individual zones. The number designations in the "Additional Regulations" column refer to the regulations listed at the end of the Table. "N/A" designates a standard is not applicable to the specified zone.
Table 17.35.03: Property Development Standards
Additional Regulations for Table 17.35.03:
1. See Sections 17.106.010 and 17.106.020 for exceptions to lot area, lot width mean, and street frontage regulations.
2. If fifty percent (50%) or more of the frontage on one side of the street between two intersecting streets is in any Residential Zone and all or part of the remaining frontage is in any commercial or industrial zone, the required front setback of the commercially or industrially zoned lots is one-half (½) of the minimum front setback required in the Residential Zone. If fifty percent (50%) or more of the total frontage is in more than one Residential Zone, then the minimum front setback on the commercially or industrially zoned lots is one-half (½) of that required in the Residential Zone with the lesser front setback (see Illustration for Table 17.35.03 [Additional Regulation 2], below).
Illustration for Table 17.35.03 [Additional Regulation 2]
*for illustration purposes only
3. The following notes apply to the maximum front yard requirement:
a. The requirements only apply to the construction of new principal buildings; and if multiple new principal buildings are to be constructed on a lot, the requirements only apply to the building(s) that can be reasonably sited along the street frontage(s).
b. The requirements do not apply to lots containing the following principal activities: Recreational Assembly, Community Education, Utility and Vehicular, or Extensive Impact Civic Activities or Automobile and Other Light Vehicle Gas Station and Servicing Commercial Activities as principal activities.
c. Maximum yards apply to seventy-five percent (75%) of the street frontage on the principal street and fifty percent (50%) on other streets, if any. All percentages, however, may be reduced to fifty percent (50%) upon the granting of Regular Design Review (see Chapter 17.136 for the design review procedure). In addition to the criteria contained in Section 17.136.050, a proposal to reduce to fifty percent (50%) the amount of street frontage that maximum yards would apply to must also meet each of the following criteria:
i. The additional yard area abutting the principal street is designed to accommodate publicly accessible plazas, sidewalk cafes, or restaurants;
ii. The proposal will not impair a generally continuous wall of building facades;
iii. The proposal will not weaken the concentration and continuity of retail facilities at ground-level, and will not impair the retention or creation of an important shopping frontage; and
iv. The proposal will not interfere with the movement of people along an important pedestrian street.
4. Wherever an interior side lot line abuts an interior side lot line of any lot located in an RH or RD Zone, a side setback of six (6) feet is required. In the case where an interior side lot line abuts an interior side lot line in an RM Zone, the setback of the abutting portion of its side lot line is five (5) feet. In the case where an interior side lot line abuts an interior side lot line of any lot located in an RU-1 or RU-2 Zone, a side setback of four (4) feet is required (see Illustration for Table 17.35.03 [Additional Regulation 4], below). Also, see Section 17.108.130 for allowed projections into setbacks.
Illustration for Table 17.35.03 [Additional Regulation 4]
*for illustration purposes only
5. See Section 17.108.080 for the required interior side and rear yard setbacks on a lot containing two (2) or more living units and opposite a legally required living room window.
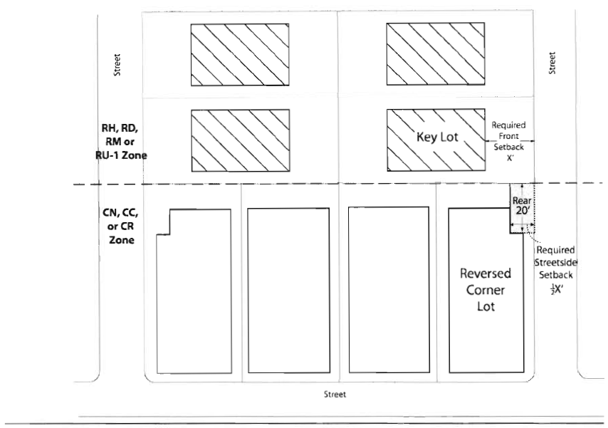
6. When the rear yard of a reversed corner lot abuts a key lot that is in an RH, RD, or RM Zone, the required street side yard setback in the rear ten (10) feet of the reversed corner lot is one-half (½) of the minimum front yard required on the key lot, but shall not be required to exceed four (4) feet in width if it would reduce to less than twenty-five (25) feet the buildable width of any corner lot (see Illustration for Table 17.33.03 [Additional Regulation 6], below). Also, see Section 17.108.130 for allowed projections into the setbacks.
Illustration for Table 17.35.03 [Additional Regulation 6]
*for illustration purposes only
7. Wherever a rear lot line abuts an alley, one-half (½) of the right-of-way width of the alley may be counted toward the required minimum rear setback; provided, however, that the portion of the minimum rear setback actually on the lot itself shall not be so reduced to less than ten (10) feet. Also, see Section 17.108.130 for allowed projections into setbacks.
8. When a rear lot line is adjacent to an RH, RD, or RM Zone, the required rear setback for both Residential and Nonresidential Facilities is ten (10) feet. When a rear lot line is not adjacent to an RH, RD, or RM Zone, the required rear setback is ten (10) feet for Residential Facilities and there is no required setback for Nonresidential Facilities.
9. This percentage of transparency is only required for principal buildings that include ground floor Nonresidential Facilities, and only applies to facades facing the principal street. The regulations only apply to facades located within twenty (20) feet of a street frontage. The area of required transparency is between two (2) feet and nine (9) feet in height of the ground floor and must be comprised of clear, non-reflective windows that allow views out of indoor activity space or lobbies (see Illustration for Table 17.35.03 [Additional Regulation 9], below). Areas required for garage doors shall not be included in the calculation of facade area (see Additional Regulation 12 for limitations on the location of parking access). Glass block does not qualify as a transparent window. Exceptions to this regulation may be allowed by the Planning Director for unique facilities such as convention centers, gymnasiums, parks, gas stations, theaters and other similar facilities.
Illustration for Table 17.35.03 [Additional Regulation 9]
*for illustration purposes only
10. This height is only required for new principal buildings with ground floor Nonresidential Facilities located within twenty (20) feet of the principal street frontage; and is measured from the sidewalk grade to the second story floor.
11. For the construction of new principal buildings in the CC-2 Zone, access to parking and loading facilities through driveways, garage doors, or other means shall not be from the principal street when alternative access is feasible from another location such as a secondary frontage or an alley. Where this is not feasible, every reasonable effort shall be made to share means of vehicular access with abutting properties. Open parking areas shall not be located between the sidewalk and a principal building.
12. For the construction of new principal buildings in the CC-2 Zone, ground level parking spaces, locker areas, mechanical rooms, and other non-active spaces shall not be located within thirty (30) feet of the principal street frontage, except for incidental entrances to such activities elsewhere in the building. Exceptions to this regulation may be permitted by the Planning Director for non-active spaces that cannot be feasibly placed in other locations of the building. Driveways, garage entrances, or other access to parking and loading facilities may be located on the ground floor of this area as regulated by Additional Regulation 11, above.
13. See Section 17.103.080 for additional parking regulations that apply to Accessory Dwelling Units.
14. Vehicular Residential Facilities shall be located a minimum of thirty (30) feet from the street or be located behind a building. See Section 17.103.085 for setback and separation requirements for Vehicular Residential Facilities.
B.
Height, Floor Area Ratio (FAR), Density, and Open Space. Table 17.35.04 below prescribes height, FAR, density, and open space standards associated with the Height Areas described in the Zoning Maps. The number designations in the "Additional Regulations" column refer to regulations below the table. "N/A" designates a regulation is not applicable to the specified Height Area.
Table 17.35.04 Height, Floor Area Ratio (FAR), Density, and Open Space Regulations
Additional Regulations for Table 17.35.04:
1. The maximum height within ten (10) feet of the front property line is either the height limit on the subject lot shown in the above table or the height maximum for the height area of the parcel directly across the principal street, whatever is less (see Illustration for Table 17.35.04 [Additional Regulation 1], below).
Illustration for Table 17.35.04 [Additional Regulation 1]
*for illustration purposes only
2. Buildings in the CC Zones shall have a thirty (30) foot maximum height at the setback line associated with any rear or interior side lot line that abut a lot in an RH, RD, or RM Zone; if the principal building on the abutting lot has a height of thirty (30) feet or less, this maximum height shall increase one foot for every foot of distance away from this setback line. If the principal building on the abutting lot has a height of greater than thirty (30) feet, the maximum height shall increase two (2) feet for every foot away from the applicable setback line (see Illustration for Table 17.35.04 [Additional Regulation 2], below). Also, see Section 17.108.030 for allowed projections above height limits and Section 17.108.020 for increased height limits in certain situations.
Illustration for Table 17.35.04 [Additional Regulation 2]
*for illustration purposes only
3. This minimum height requirement only applies to the new construction of a principal building that is located on parcels adjacent to a street right-of-way that is one hundred (100) feet wide or more. Buildings in the CC-1 Zone and buildings constructed to accommodate Essential Service, Utility and Vehicular, or Extensive Impact Civic Activities or Automobile and Automobile and Other Light Vehicle Sales and Rental, Automobile and Other Light Vehicle Gas Station and Servicing or Automobile and Other Light Vehicle Repair and Cleaning Commercial Activities may be exempted from the height minimum regulation by the Planning Director. The allowed projections into the height limits contained in Section 17.108.030 are not counted towards the height minimum.
4. See Chapter 17.107 for affordable and senior housing incentives. See Section 17.103.080 and Chapter 17.88 for regulations regarding permitted Accessory Dwelling Units. Also applicable are the provisions of Section 17.102.270 with respect to additional kitchens for a dwelling unit, and the provisions of Section 17.102.300 with respect to dwelling units with five (5) or more bedrooms.
5. As specified in Section 17.106.030, the total lot area shall be used as the basis for computing both the maximum nonresidential FAR and the maximum residential density for mixed use projects.
6. Usable open space is only required on lots with two (2) or more dwelling units, excluding any permitted Accessory Dwelling Units. Each one (1) square foot of private usable open space equals two (2) square feet towards the total usable open space requirement, except that actual group space shall be provided in the minimum amount specified in the table per dwelling unit, excluding any permitted Accessory Dwelling Units. All usable open space shall meet the standards contained in Chapter 17.126.
(Ord. No. 13763, § 5, 10-3-2023; Ord. No. 13677, § 4(Exh. A), 1-18-2022; Ord. No. 13666, § 3(Exh. A), 11-16-2021; Ord. No. 13357, § 3(Exh. A), 2-16-2016; Ord. No. 13270, § 3(Exh. A), 11-18-2014; Ord. No. 13251, § 5(Exh. A), 7-29-2014; Ord. No. 13172, § 3(Exh. A), 7-2-2013; Ord. No. 13090, § 4(Exh. A), 10-4-2011; Ord. No. 13064, § 2(Exh. A), 3-15-2011)
A.
Planned Unit Developments. Large integrated developments shall be subject to the Planned Unit Development (PUD) regulations in Chapter 17.142 if they exceed the sizes specified therein. In developments which are approved pursuant to said regulations, certain uses may be permitted in addition to those otherwise allowed in the CC Zones, and certain of the other regulations applying in said zone may be waived or modified. The normally required design review process may also be waived for developments at the time of initial granting of a Planned Unit Development (PUD) permit. Unless otherwise specified in the PUD permit, any future changes within the Planned Unit Development shall be subject to applicable design review regulations.
(Ord. No. 13763, § 5, 10-3-2023; Ord. No. 13677, § 4(Exh. A), 1-18-2022Ord. No. 13357, § 3(Exh. A), 2-16-2016; Ord. No. 13172, § 3(Exh. A), 7-2-2013; Ord. No. 13064, § 2(Exh. A), 3-15-2011)
Editor's note— Ord. No. 13677, § 4(Exh. A), adopted Jan. 18, 2022, amended the title of § 17.35.060 to read as herein set out. The former § 17.35.060 title pertained to special regulations for Mini-Lot and Planned Unit Developments.
A.
Home Occupations. Home occupations shall be subject to the applicable provisions of the home occupation regulations in Chapter 17.112. See Section 17.112.060 for home occupation regulations specific to the West Oakland Specific Plan Area.
B.
Nonconforming Uses. Nonconforming uses and changes therein shall be subject to the nonconforming use regulations in Chapter 17.114.
C.
General Provisions. The general exceptions and other regulations set forth in Chapters 17.102, 17.104, 17.106, and 17.108 shall apply in the CC Zones.
D.
Recycling Space Allocation Requirements. The regulations set forth in Chapter 17.118 shall apply in the CN Zones.
E.
Landscaping and Screening Standards. The landscaping and screening regulations set forth in Chapter 17.124 shall apply in the CC Zones.
F.
Buffering. All uses shall be subject to the applicable requirements of the buffering regulations in Chapter 17.110 with respect to screening or location of parking, loading, storage areas, control of artificial illumination, and other matters specified therein.
(Ord. No. 13357, § 3(Exh. A), 2-16-2016; Ord. No. 13251, § 5(Exh. A), 7-29-2014; Ord. No. 13172, § 3(Exh. A), 7-2-2013; Ord. No. 13064, § 2(Exh. A), 3-15-2011)
35 - CC COMMUNITY COMMERCIAL ZONES REGULATIONS
Sections:
A.
Intent. The provisions of this Chapter shall be known as the CC Community Commercial Zones Regulations. The intent of the Community Commercial (CC) Zones is to create, maintain and enhance areas suitable for a wide variety of commercial and institutional operations along the City's major corridors and in shopping districts or centers. These regulations shall apply to the CC Zones.
B.
Description of Zones. This Chapter establishes land use regulations for the following three (3) zones:
1.
CC-1 Community Commercial - 1 Zone. The CC-1 Zone is intended to create, maintain, and enhance shopping centers and malls with a wide range of consumer businesses.
2.
CC-2 Community Commercial - 2 Zone. The CC-2 Zone is intended to create, maintain, and enhance areas with a wide range of commercial businesses with direct frontage and access along the City's corridors and commercial areas.
3.
CC-3 Community Commercial - 3 Zone. The CC-3 Zone is intended to create, maintain, and enhance areas with a wide range of commercial and service activities.
(Ord. No. 13357, § 3(Exh. A), 2-16-2016; Ord. No. 13090, § 4(Exh. A), 10-4-2011; Ord. No. 13064, § 2(Exh. A), 3-15-2011)
Except for projects that are exempt from design review as set forth in Section 17.136.025, no Building Facility, Designated Historic Property, Potentially Designated Historic Property, Telecommunications Facility, Sign, or other associated structure shall be constructed, established, or altered in exterior appearance, unless plans for the proposal have been approved pursuant to the design review procedure in Chapter 17.136, and when applicable, the Telecommunications regulations in Chapter 17.128, or the Sign regulations in Chapter 17.104.
(Ord. No. 13064, § 2(Exh. A), 3-15-2011)
Table 17.35.01 lists the permitted, conditionally permitted, and prohibited activities in the CC Zones. The descriptions of these activities are contained in Chapter 17.10. Section 17.10.040 contains permitted accessory activities.
"P" designates permitted activities in the corresponding zone.
"C" designates activities that are permitted only upon the granting of a Conditional Use permit (CUP) in the corresponding zone (see Chapter 17.134 for the CUP procedure).
"L" designates activities subject to certain limitations or notes listed at the bottom of the table.
"—" designates activities that are prohibited except as accessory activities according to the regulations contained in Section 17.010.040.
Table 17.35.01: Permitted and Conditionally Permitted Activities
Limitations on Table 17.35.01:
L1. See Section 17.103.010 for other regulations regarding Residential Care Residential Activities, and Sections 17.103.010 and 17.103.015 for other regulations regarding Emergency Shelter Residential Activities.
L2. Except as indicated in Subsection a. below, these activities are only permitted upon the granting of a Conditional Use Permit (see Chapter 17.134 for the CUP procedure) when located on the ground floor of a building and within thirty (30) feet of the principal street frontage.
a. Buildings not located within thirty (30) feet of the principal street frontage and incidental pedestrian entrances that lead to one of these activities elsewhere in a building are exempted from this Conditional Use Permit requirement.
L3. See Section 17.35.040 for limitations on the construction of new Residential Facilities.
L4. Emergency Shelters are permitted by-right on properties owned by churches, temples, synagogues, and other similar places of worship approved for Community Assembly Civic Activities; and within those portions of San Pablo Avenue and Webster Street corridors described in Section 17.103.015(A)(2)(3) respectively and subject to the development standards in Section 17.103.015(B); permitted upon the granting of a Conditional Use Permit elsewhere in the zone subject to the standards in Section 17.103.010.
L5. No new or expanded Special Health Care Civic Activity shall be located closer than two thousand five hundred (2,500) feet from any other such activity, or five hundred (500) feet from any K-12 school or Licensed Emergency Shelters. See Section 17.103.020 for further regulations regarding Special Health Care Civic Activities.
L6. See Section 17.102.170 for special regulations relating to massage services and Section 17.102.450 for special regulations relating to laundromats.
L7. No new or expanded Check Cashier and Check Cashing Commercial Activity shall be located closer than one thousand (1,000) feet from any other such activity or five hundred (500) feet from any Community Education, Community Assembly, or Recreational Assembly Civic Activity; State or Federally chartered bank, sayings association, credit union, or industrial loan company; or certain Alcoholic Beverage Sales Commercial Activities. See Section 17.103.040 for further regulations regarding Check Cashier and Check Cashing Commercial Activities.
L8. No new or expanded Adult Entertainment Activity shall be located closer than one thousand (1,000) feet to the boundary of any Residential Zone or three hundred (300) feet from any other Adult Entertainment Activity. See Section 17.102.160 for further regulations regarding Adult Entertainment Activities.
L9. Automobile and Other Light Vehicle Sales and Rental is only permitted upon the granting of a Conditional Use Permit (see Chapter 17.134 for the CUP procedure) when located on West Grand Avenue between San Pablo Avenue and Linden Street, and Telegraph Avenue between 28th Street and 1-580.
L10. This Conditional Use Permit may only be granted upon determination that the proposal conforms to the general use permit criteria set forth in the Conditional Use Permit procedure in Chapter 17.134 and to the following additional use permit criteria:
1. That all repair and servicing is performed in an enclosed building;
2. That a minimum six (6) foot tall masonry or decorative screening wall is provided at all parcels lines adjacent to an RH, RD or RM Zone;
3. That a landscape buffering is at all parcels lines adjacent to an RH, RD or RM Zone; and
4. That no auto repair activities shall be conducted before 7:00 a.m. or after 9:00 p.m. on any day of the week.
L11. This activity is only permitted upon the granting of a Conditional Use Permit (see Chapter 17.134 for the CUP procedure) when located on a lot that is six hundred (600) feet of a Residential Zone.
L12. Limited Agriculture is permitted if the activity occupies less than twenty thousand (20,000) square feet of land area and any sales area is less than one thousand (1,000) square feet; conditionally permitted if the activity is larger in either land or sales area (see Chapter 17.134 for the CUP procedure).
L13. Extensive Agriculture is only permitted upon the granting of a Conditional Use Permit (see Chapter 17.134 for the CUP procedure). In addition to the criteria contained in Section 17.134.050, this activity must meet the following use permit criteria:
1. The proposal will not adversely affect the livability or appropriate development of abutting properties and the surrounding neighborhood in terms of noise, water and pesticide runoff, farming equipment operation, hours of operation, odor, security, and vehicular traffic.
L14. The total floor area devoted to these activities on any single lot shall only exceed seven thousand five hundred (7,500) square feet upon the granting of a Conditional Use Permit (see Chapter 17.134 for the CUP procedure).
L15. These activities are only permitted upon the granting of a Conditional Use Permit (see Chapter 17.134 for the CUP procedure) when located on the ground floor of a street fronting building. Incidental pedestrian entrances that lead to one of these activities elsewhere in the building are exempted from this Conditional Use Permit requirement.
(Ord. No. 13763, § 5, 10-3-2023; Ord. No. 13393, § 2(Exh. A), 10-4-2016; Ord. No. 13357, § 3(Exh. A), 2-16-2016; Ord. No. 13270, § 3(Exh. A), 11-18-2014; Ord. No. 13251, § 5(Exh. A), 7-29-2014; Ord. No. 13248, § 3(Exh. A), 7-15-2014; Ord. No. 13172, § 3(Exh. A), 7-2-2013; Ord. No. 13064, § 2(Exh. A), 3-15-2011)
Table 17.35.02 lists the permitted, conditionally permitted, and prohibited facilities in the CC Zones. The descriptions of these facilities are contained in Chapter 17.10.
"P" designates permitted facilities in the corresponding zone.
"C" designates facilities that are permitted only upon the granting of a Conditional Use Permit (CUP) in the corresponding zone (see Chapter 17.134 for the CUP procedure).
"L" designates facilities subject to certain limitations listed at the bottom of the Table.
"—" designates facilities that are prohibited.
Table 17.35.02: Permitted and Conditionally Permitted Facilities
Limitations on Table 17.35.02:
L1. See Chapter 17.114, Nonconforming Uses, for additions and alterations to legal nonconforming Residential Facilities, provided, however, that Accessory Dwelling Units are permitted in the CC-1 and CC-2 Zones when there is an existing applicable Residential Facility on a lot, subject to the provisions of Section 17.103.080 and Chapter 17.88.
L2. Construction of new ground floor Residential Facilities is only permitted if part of a development that has a majority of the ground floor area devoted to Commercial Activities.
L3. Except as indicated in Subsection a. below, construction of new ground floor Residential Facilities within thirty (30) feet of the principal street frontage is only permitted upon the granting of a Conditional Use Permit (see Chapter 17.134 for the CUP procedure):
a. Buildings not located within thirty (30) feet of the principal street frontage and incidental pedestrian entrances that lead to one of these activities elsewhere in a building are exempted from this requirement.
L4. No new or expanded Fast-Food Restaurants with Drive-Through Nonresidential Facilities shall be located closer than five hundred (500) feet of an elementary school, park, or playground. See Sections 17.103.030 and 17.103.100 for further regulations regarding Drive-Through Nonresidential Facilities.
L5. See Section 17.128.025 for restrictions on Telecommunication Facilities near Residential Zones, HBX Zones, or D-CE-3 or D-CE-4 Zones.
L6. For the CC Zones in the West Oakland District (defined for the purposes of this Chapter as all areas between Interstate 980 to the east, Interstate 880 to the south and west, and Interstate 580 to the north), Open Nonresidential Facilities accommodating activities other than Civic Activities, Limited Agriculture, seasonal sales, or special events are only permitted upon the granting of a Conditional Use Permit (see Chapter 17.134 for the CUP procedure).
L7. All new Residential Facilities are prohibited in the CC-3 Zone, except for those facilities approved in conjunction with a permitted or conditionally permitted Emergency Shelter Activity, as indicated in Table 17.35.01.
L8. See Section 17.103.080 and Chapter 17.88 for regulations regarding permitted Accessory Dwelling Units.
(Ord. No. 13763, § 5, 10-3-2023; Ord. No. 13677, § 4(Exh. A), 1-18-2022; Ord. No. 13666, § 3(Exh. A), 11-16-2021; Ord. No. 13435, § 4(Exh. A), 5-2-2017; Ord. No. 13357, § 3(Exh. A), 2-16-2016; Ord. No. 13270, § 3(Exh. A), 11-18-2014; Ord. No. 13251, § 5(Exh. A), 7-29-2014; Ord. No. 13172, § 3(Exh. A), 7-2-2013; Ord. No. 13168, § 5(Exh. A-2), 6-18-2013; Ord. No. 13064, § 2(Exh. A), 3-15-2011)
A.
Zone Specific Standards. Table 17.35.03 below prescribes development standards specific to individual zones. The number designations in the "Additional Regulations" column refer to the regulations listed at the end of the Table. "N/A" designates a standard is not applicable to the specified zone.
Table 17.35.03: Property Development Standards
Additional Regulations for Table 17.35.03:
1. See Sections 17.106.010 and 17.106.020 for exceptions to lot area, lot width mean, and street frontage regulations.
2. If fifty percent (50%) or more of the frontage on one side of the street between two intersecting streets is in any Residential Zone and all or part of the remaining frontage is in any commercial or industrial zone, the required front setback of the commercially or industrially zoned lots is one-half (½) of the minimum front setback required in the Residential Zone. If fifty percent (50%) or more of the total frontage is in more than one Residential Zone, then the minimum front setback on the commercially or industrially zoned lots is one-half (½) of that required in the Residential Zone with the lesser front setback (see Illustration for Table 17.35.03 [Additional Regulation 2], below).
Illustration for Table 17.35.03 [Additional Regulation 2]
*for illustration purposes only
3. The following notes apply to the maximum front yard requirement:
a. The requirements only apply to the construction of new principal buildings; and if multiple new principal buildings are to be constructed on a lot, the requirements only apply to the building(s) that can be reasonably sited along the street frontage(s).
b. The requirements do not apply to lots containing the following principal activities: Recreational Assembly, Community Education, Utility and Vehicular, or Extensive Impact Civic Activities or Automobile and Other Light Vehicle Gas Station and Servicing Commercial Activities as principal activities.
c. Maximum yards apply to seventy-five percent (75%) of the street frontage on the principal street and fifty percent (50%) on other streets, if any. All percentages, however, may be reduced to fifty percent (50%) upon the granting of Regular Design Review (see Chapter 17.136 for the design review procedure). In addition to the criteria contained in Section 17.136.050, a proposal to reduce to fifty percent (50%) the amount of street frontage that maximum yards would apply to must also meet each of the following criteria:
i. The additional yard area abutting the principal street is designed to accommodate publicly accessible plazas, sidewalk cafes, or restaurants;
ii. The proposal will not impair a generally continuous wall of building facades;
iii. The proposal will not weaken the concentration and continuity of retail facilities at ground-level, and will not impair the retention or creation of an important shopping frontage; and
iv. The proposal will not interfere with the movement of people along an important pedestrian street.
4. Wherever an interior side lot line abuts an interior side lot line of any lot located in an RH or RD Zone, a side setback of six (6) feet is required. In the case where an interior side lot line abuts an interior side lot line in an RM Zone, the setback of the abutting portion of its side lot line is five (5) feet. In the case where an interior side lot line abuts an interior side lot line of any lot located in an RU-1 or RU-2 Zone, a side setback of four (4) feet is required (see Illustration for Table 17.35.03 [Additional Regulation 4], below). Also, see Section 17.108.130 for allowed projections into setbacks.
Illustration for Table 17.35.03 [Additional Regulation 4]
*for illustration purposes only
5. See Section 17.108.080 for the required interior side and rear yard setbacks on a lot containing two (2) or more living units and opposite a legally required living room window.
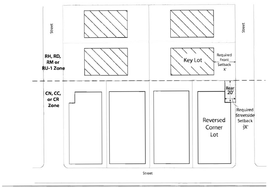
6. When the rear yard of a reversed corner lot abuts a key lot that is in an RH, RD, or RM Zone, the required street side yard setback in the rear ten (10) feet of the reversed corner lot is one-half (½) of the minimum front yard required on the key lot, but shall not be required to exceed four (4) feet in width if it would reduce to less than twenty-five (25) feet the buildable width of any corner lot (see Illustration for Table 17.33.03 [Additional Regulation 6], below). Also, see Section 17.108.130 for allowed projections into the setbacks.
Illustration for Table 17.35.03 [Additional Regulation 6]
*for illustration purposes only
7. Wherever a rear lot line abuts an alley, one-half (½) of the right-of-way width of the alley may be counted toward the required minimum rear setback; provided, however, that the portion of the minimum rear setback actually on the lot itself shall not be so reduced to less than ten (10) feet. Also, see Section 17.108.130 for allowed projections into setbacks.
8. When a rear lot line is adjacent to an RH, RD, or RM Zone, the required rear setback for both Residential and Nonresidential Facilities is ten (10) feet. When a rear lot line is not adjacent to an RH, RD, or RM Zone, the required rear setback is ten (10) feet for Residential Facilities and there is no required setback for Nonresidential Facilities.
9. This percentage of transparency is only required for principal buildings that include ground floor Nonresidential Facilities, and only applies to facades facing the principal street. The regulations only apply to facades located within twenty (20) feet of a street frontage. The area of required transparency is between two (2) feet and nine (9) feet in height of the ground floor and must be comprised of clear, non-reflective windows that allow views out of indoor activity space or lobbies (see Illustration for Table 17.35.03 [Additional Regulation 9], below). Areas required for garage doors shall not be included in the calculation of facade area (see Additional Regulation 12 for limitations on the location of parking access). Glass block does not qualify as a transparent window. Exceptions to this regulation may be allowed by the Planning Director for unique facilities such as convention centers, gymnasiums, parks, gas stations, theaters and other similar facilities.
Illustration for Table 17.35.03 [Additional Regulation 9]
*for illustration purposes only
10. This height is only required for new principal buildings with ground floor Nonresidential Facilities located within twenty (20) feet of the principal street frontage; and is measured from the sidewalk grade to the second story floor.
11. For the construction of new principal buildings in the CC-2 Zone, access to parking and loading facilities through driveways, garage doors, or other means shall not be from the principal street when alternative access is feasible from another location such as a secondary frontage or an alley. Where this is not feasible, every reasonable effort shall be made to share means of vehicular access with abutting properties. Open parking areas shall not be located between the sidewalk and a principal building.
12. For the construction of new principal buildings in the CC-2 Zone, ground level parking spaces, locker areas, mechanical rooms, and other non-active spaces shall not be located within thirty (30) feet of the principal street frontage, except for incidental entrances to such activities elsewhere in the building. Exceptions to this regulation may be permitted by the Planning Director for non-active spaces that cannot be feasibly placed in other locations of the building. Driveways, garage entrances, or other access to parking and loading facilities may be located on the ground floor of this area as regulated by Additional Regulation 11, above.
13. See Section 17.103.080 for additional parking regulations that apply to Accessory Dwelling Units.
14. Vehicular Residential Facilities shall be located a minimum of thirty (30) feet from the street or be located behind a building. See Section 17.103.085 for setback and separation requirements for Vehicular Residential Facilities.
B.
Height, Floor Area Ratio (FAR), Density, and Open Space. Table 17.35.04 below prescribes height, FAR, density, and open space standards associated with the Height Areas described in the Zoning Maps. The number designations in the "Additional Regulations" column refer to regulations below the table. "N/A" designates a regulation is not applicable to the specified Height Area.
Table 17.35.04 Height, Floor Area Ratio (FAR), Density, and Open Space Regulations
Additional Regulations for Table 17.35.04:
1. The maximum height within ten (10) feet of the front property line is either the height limit on the subject lot shown in the above table or the height maximum for the height area of the parcel directly across the principal street, whatever is less (see Illustration for Table 17.35.04 [Additional Regulation 1], below).
Illustration for Table 17.35.04 [Additional Regulation 1]
*for illustration purposes only
2. Buildings in the CC Zones shall have a thirty (30) foot maximum height at the setback line associated with any rear or interior side lot line that abut a lot in an RH, RD, or RM Zone; if the principal building on the abutting lot has a height of thirty (30) feet or less, this maximum height shall increase one foot for every foot of distance away from this setback line. If the principal building on the abutting lot has a height of greater than thirty (30) feet, the maximum height shall increase two (2) feet for every foot away from the applicable setback line (see Illustration for Table 17.35.04 [Additional Regulation 2], below). Also, see Section 17.108.030 for allowed projections above height limits and Section 17.108.020 for increased height limits in certain situations.
Illustration for Table 17.35.04 [Additional Regulation 2]
*for illustration purposes only
3. This minimum height requirement only applies to the new construction of a principal building that is located on parcels adjacent to a street right-of-way that is one hundred (100) feet wide or more. Buildings in the CC-1 Zone and buildings constructed to accommodate Essential Service, Utility and Vehicular, or Extensive Impact Civic Activities or Automobile and Automobile and Other Light Vehicle Sales and Rental, Automobile and Other Light Vehicle Gas Station and Servicing or Automobile and Other Light Vehicle Repair and Cleaning Commercial Activities may be exempted from the height minimum regulation by the Planning Director. The allowed projections into the height limits contained in Section 17.108.030 are not counted towards the height minimum.
4. See Chapter 17.107 for affordable and senior housing incentives. See Section 17.103.080 and Chapter 17.88 for regulations regarding permitted Accessory Dwelling Units. Also applicable are the provisions of Section 17.102.270 with respect to additional kitchens for a dwelling unit, and the provisions of Section 17.102.300 with respect to dwelling units with five (5) or more bedrooms.
5. As specified in Section 17.106.030, the total lot area shall be used as the basis for computing both the maximum nonresidential FAR and the maximum residential density for mixed use projects.
6. Usable open space is only required on lots with two (2) or more dwelling units, excluding any permitted Accessory Dwelling Units. Each one (1) square foot of private usable open space equals two (2) square feet towards the total usable open space requirement, except that actual group space shall be provided in the minimum amount specified in the table per dwelling unit, excluding any permitted Accessory Dwelling Units. All usable open space shall meet the standards contained in Chapter 17.126.
(Ord. No. 13763, § 5, 10-3-2023; Ord. No. 13677, § 4(Exh. A), 1-18-2022; Ord. No. 13666, § 3(Exh. A), 11-16-2021; Ord. No. 13357, § 3(Exh. A), 2-16-2016; Ord. No. 13270, § 3(Exh. A), 11-18-2014; Ord. No. 13251, § 5(Exh. A), 7-29-2014; Ord. No. 13172, § 3(Exh. A), 7-2-2013; Ord. No. 13090, § 4(Exh. A), 10-4-2011; Ord. No. 13064, § 2(Exh. A), 3-15-2011)
A.
Planned Unit Developments. Large integrated developments shall be subject to the Planned Unit Development (PUD) regulations in Chapter 17.142 if they exceed the sizes specified therein. In developments which are approved pursuant to said regulations, certain uses may be permitted in addition to those otherwise allowed in the CC Zones, and certain of the other regulations applying in said zone may be waived or modified. The normally required design review process may also be waived for developments at the time of initial granting of a Planned Unit Development (PUD) permit. Unless otherwise specified in the PUD permit, any future changes within the Planned Unit Development shall be subject to applicable design review regulations.
(Ord. No. 13763, § 5, 10-3-2023; Ord. No. 13677, § 4(Exh. A), 1-18-2022Ord. No. 13357, § 3(Exh. A), 2-16-2016; Ord. No. 13172, § 3(Exh. A), 7-2-2013; Ord. No. 13064, § 2(Exh. A), 3-15-2011)
Editor's note— Ord. No. 13677, § 4(Exh. A), adopted Jan. 18, 2022, amended the title of § 17.35.060 to read as herein set out. The former § 17.35.060 title pertained to special regulations for Mini-Lot and Planned Unit Developments.
A.
Home Occupations. Home occupations shall be subject to the applicable provisions of the home occupation regulations in Chapter 17.112. See Section 17.112.060 for home occupation regulations specific to the West Oakland Specific Plan Area.
B.
Nonconforming Uses. Nonconforming uses and changes therein shall be subject to the nonconforming use regulations in Chapter 17.114.
C.
General Provisions. The general exceptions and other regulations set forth in Chapters 17.102, 17.104, 17.106, and 17.108 shall apply in the CC Zones.
D.
Recycling Space Allocation Requirements. The regulations set forth in Chapter 17.118 shall apply in the CN Zones.
E.
Landscaping and Screening Standards. The landscaping and screening regulations set forth in Chapter 17.124 shall apply in the CC Zones.
F.
Buffering. All uses shall be subject to the applicable requirements of the buffering regulations in Chapter 17.110 with respect to screening or location of parking, loading, storage areas, control of artificial illumination, and other matters specified therein.
(Ord. No. 13357, § 3(Exh. A), 2-16-2016; Ord. No. 13251, § 5(Exh. A), 7-29-2014; Ord. No. 13172, § 3(Exh. A), 7-2-2013; Ord. No. 13064, § 2(Exh. A), 3-15-2011)