- CONDOMINIUM REGULATIONS
The purpose of this article is to regulate projects that divide real property under a contractual arrangement known as a condominium. New and conversion condominium projects shall conform to the requirements of this ordinance, all other applicable city regulations, and the Condominium Act (P.A. 59 of 1978, as amended). Each condominium project shall be reviewed in a manner consistent with equivalent projects within the zoning district.
Pursuant to the authority conferred by the Condominium Act (P.A. 59 of 1978, as amended), condominium subdivision plans shall be regulated by this ordinance as site condominiums, and shall be considered equivalent to a platted subdivision for the purposes of enforcing the city's site development standards. The intent of this article is to ensure that condominium subdivisions are developed in compliance with all applicable standards of this ordinance and chapter 82 (subdivisions) of the city's Code of Ordinances, except that the review procedures of this article and ordinance shall apply.
It is the intent of this article that review of condominium subdivision (site condominium) plans be accomplished, aside from procedural differences, with the objective and intent of achieving the same results as if the site were to be developed under the Land Division Act (P.A. 288 of 1967, as amended) and chapter 82 (subdivisions) of the Code of Ordinances, except that nothing in this article shall be construed to require a site condominium development to obtain plat approval.
The following regulations shall apply to all condominium units:
A.
Types of permitted condominium units. The following types of condominium units shall be permitted under this article, subject to conformance with the use and zoning district standards of this ordinance:
1.
Single-family detached units. In the case of a condominium project in which the condominium units are intended for detached single-family residential purposes (site condominium), not more than one single-family dwelling unit and permitted accessory structure shall be proposed or constructed on a condominium lot. No dwelling unit may be located on a condominium lot with any other approved principal use. The condominium unit shall be considered a lot under this ordinance.
2.
Attached residential or multiple-family residential units. Condominium buildings and units created by the construction of multiple or attached residential units containing individually owned condominium units, or by conversion of existing multiple-family or attached units or an existing building into residential condominium units shall conform with all requirements of this ordinance and the applicable zoning district.
3.
Non-residential condominium units. A non-residential condominium project consisting of either new building construction or the conversion of an existing building into individual condominium units shall conform with all requirements of this ordinance for the zoning district.
B.
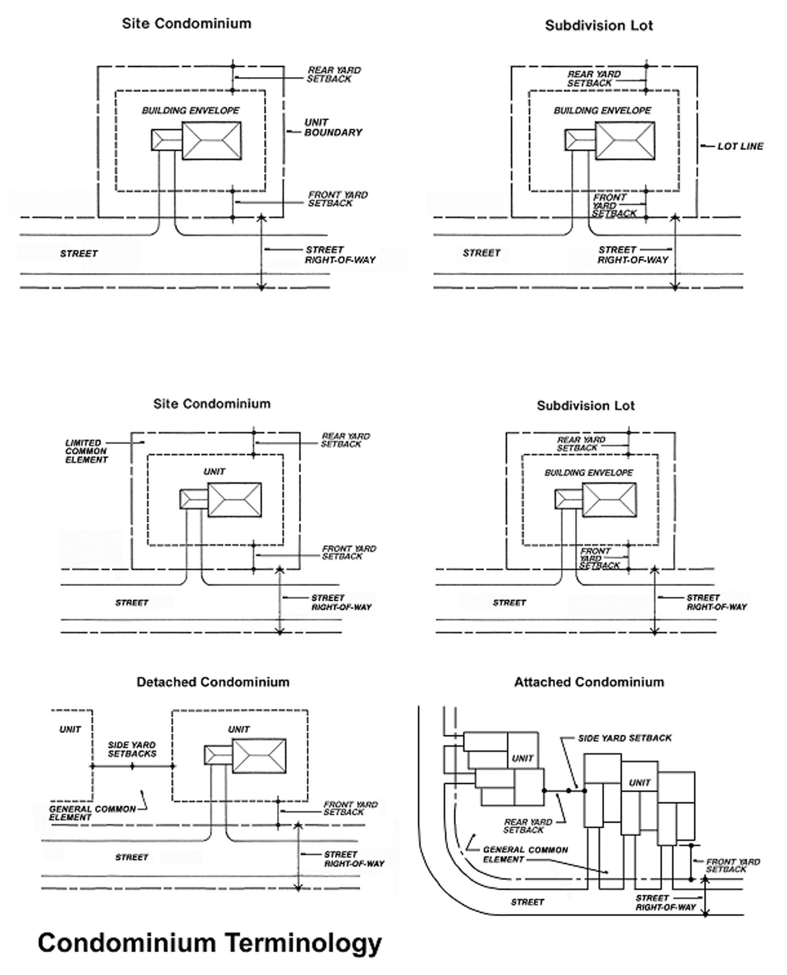
Condominium unit or site condominium lot. For purposes of this article and Ordinance, each detached condominium unit or site condominium lot shall be considered the equivalent of a platted lot of record as defined in Chapter 82 (Subdivisions) of the Code of Ordinances, and shall comply with the dimensional standards of the zoning district (see illustration).
C.
Area computation. The minimum area of the site condominium unit and the surrounding limited common element shall be equivalent to the minimum lot area and lot width requirements for the zoning district where the project is located. Areas within a public or private street right-of-way or equivalent easement or dedication shall not be included in the calculation of minimum condominium lot area or determination of dwelling density for a site.
D.
Relocation of lot boundaries. The relocation of boundaries or any other change in the dimensions of a condominium unit or site condominium lot shall be considered an amendment to the condominium documents and condominium site plan. Relocation of condominium lot boundaries, as permitted in Section 48 of the Condominium Act (P.A. 59 of 1978, as amended), shall comply with the requirements of article 5 (dimensional standards), and shall be subject to the review procedures specified in section 18.04 (site plan review procedure).
Any property remaining after the formation of a new unit lot by the relocation of an existing condominium lot boundary, as permitted by Section 49 of the Condominium Act (P.A. 59 of 1978, as amended), shall comply with the requirements of article 5 (dimensional standards) or shall be placed into common areas within the project.
A condominium project shall be subject to the site plan review procedures specified in section 18.04 (site plan review procedure), and the following:
A.
Conceptual review. To minimize time, costs and interpretation of city development requirements, applicants are encouraged to meet informally with the city planner and other city officials to discuss a conceptual condominium site plan, site issues and application of ordinance standards, prior to submitting plans for formal review.
1.
Any person may also request that a conceptual condominium site plan be placed on a regular planning commission meeting agenda as a discussion item for review and comment. The conceptual plan shall include the minimum information required by section 19.04A. (conceptual condominium plan requirements).
2.
Comments and suggestions by the city regarding a conceptual plan shall constitute neither an approval nor a disapproval of the plan, nor shall the city be bound in any way by such comments or suggestions in preparing for formal submittal or review of a condominium site plan.
For condominium subdivision (site condominium) developments, conceptual condominium site plan review shall be considered the equivalent of an initial plat investigation, as specified in Chapter 82 (Subdivisions) of the Code of Ordinances.
B.
Condominium site plan review. Prior to recording of the Master Deed of the condominium project as required by Section 72 of the Condominium Act, each condominium project shall be subject to review and approval of a condominium site plan by the planning commission. The plan shall include all information required by section 19.04B. (condominium site plan requirements).
The planning commission shall review and take action regarding a condominium site plan application in accordance with the review procedures specified in section 18.04 (site plan review procedure), and the standards for approval specified in section 18.13 (standards for site plan approval).
For site condominium developments, condominium site plan review shall be considered the equivalent of a preliminary plat review, as specified in Chapter 82 (Subdivisions) of the Code of Ordinances.
C.
Outside agency permits or approvals. The applicant shall be responsible for obtaining all necessary permits or approvals from applicable outside agencies, prior to construction plan approval.
D.
Condominium construction plans. When detailed construction or engineering plans are required by the city, county or other agency with jurisdiction, such plans shall be reviewed by the city in accordance with section 18.06 (construction plans). The plan shall include all information required by subsection 19.04.C. (condominium construction plan requirements).
For site condominium developments, condominium construction plan review shall be considered the equivalent of a final plat review, as specified in Chapter 82 (Subdivisions) of the City of Richmond Code of Ordinances.
A.
Conceptual condominium plan requirements. The following information shall be included with a conceptual condominium site plan:
1.
Ownership interest. Declaration of all persons with an ownership interest in the land on which the condominium project will be located, including a description of the nature of each entity's interest (e.g. fee owner, option holder, lessee or land contract vendee).
2.
Proposed use. The proposed use(s) of the condominium project.
3.
Density. The total acreage of the condominium site, acreage set aside for street rights-of-way, number of condominium units to be developed on the subject parcel and density computation on a unit per acre basis.
4.
Circulation. The vehicular and pedestrian circulation system planned for the proposed development, including the designation of any streets for dedication to the public.
5.
Street layout. The location of existing streets adjacent to the development, with details for the location and design of interior streets and access drives, and proposed connections to abutting streets.
6.
Unit lot orientation. The proposed layout of structures, unit lots, parking areas, open space and recreation areas.
7.
Drainage. Site drainage showing topography and flow directions, including computations of flows into storm sewers or retention or detention areas;
8.
Natural features. Specific locations and dimensions of wetland areas, wetland buffers, floodplain, and significant natural features such as tree stands, unusual slopes, streams and water drainage areas. The gross land area of all wetland areas and proposed open space dedications shall be provided.
B.
Condominium site plan requirements. The following information shall be included with a condominium site plan:
1.
Site plan information. All information required for a site plan review, as specified in section 18.03 (required information for site plans). For condominium subdivision (site condominium) developments, all information required for preliminary plat approval shall be provided on the condominium subdivision plan.
2.
Condominium restrictions. All deed restrictions, restrictive covenants or other proposed regulations for the layout, use and maintenance of public or common areas and structures shall be incorporated into the site plan as detail sheets and notes.
3.
Common areas defined. Limited common elements, common elements, unit lots, preservation areas, convertible areas and any other designated ownership areas shall be clearly delineated on the site plan.
4.
Documents. The master deed, condominium bylaws, restrictive covenants, and related condominium documents shall be provided for city attorney review.
5.
Additional information. The following additional information shall be submitted for city review:
a.
Cross sections of streets, driveways, sidewalks, and other paved areas.
b.
Details of any proposed sanitary, storm, and water system improvements.
c.
All condominium documents as defined in this ordinance.
d.
All necessary easement documents showing the dedication of land areas for the purposes of constructing, operating, inspecting, maintaining, repairing, altering, replacing or removing pipelines, mains, conduits and other installations of a similar character; providing public utilities, including conveyance of sewage, water and storm water run-off across, through and under the property subject to said easement; and excavating and refilling ditches and trenches necessary for the location of said structures.
C.
Condominium construction plan requirements. The following shall be submitted to the city as part of any construction or engineering plans for a condominium project:
1.
Revised plan. A revised, dated, and sealed condominium construction plan shall be submitted incorporating all changes, if any, required to comply with condominium site plan approval.
2.
Outside agency approvals. Verification of all required state and county approvals or comments pursuant to subsection 19.03.C. (outside agency permits or approvals) above.
3.
Section 71 comments. Presentation of all comments pursuant to Section 71 of the Condominium Act (P.A. 59 of 1978, as amended).
4.
Condominium documents. Copies of the recorded condominium documents or copies of the documents in their final recordable form, including the required condominium construction plan (Exhibit B).
The following standards are applicable to condominiums:
A.
Use standards. Uses within a condominium project shall be regulated by standards of the zoning district where the project is located.
B.
Subdivision requirements. All design standards and requirements for streets, sidewalks, utilities, storm drainage, and subdivision lots specified in the Land Division Act (P.A. 288 of 1967, as amended) and Chapter 82 (Subdivisions), Article III (Design Layout Standards) of the City of Richmond Code of Ordinances shall apply to condominium subdivision (site condominium) projects.
C.
Setbacks. The setback requirements of the underlying zoning district, as specified in article 5 (dimensional standards), shall establish the required interior and perimeter setbacks for the condominium development. Such setbacks shall be measured from the perimeter of the condominium lot or street right-of-way line to the nearest part of the structure or building envelope.
D.
Utility connections. Each site condominium unit shall be separately connected to available public water supply and sanitary sewer systems.
E.
Streets and sidewalks. The internal circulation system shall provide adequate means of vehicular and non-vehicular circulation, subject to the following:
1.
Streets. The proposed development shall provide logical extensions of existing or planned streets in the city, and shall provide suitable street connections to adjacent parcels, where applicable. Internal streets and street rights-of-way shall be designed to meet the city's engineering design standards, and shall be dedicated to the public. Curb cuts and driveway access shall comply with the standards of article 10 (access management).
2.
Sidewalks and pedestrian paths. To provide access to all common areas and uses, minimum five-foot wide concrete sidewalks shall be provided along both sides of all interior and perimeter streets serving a condominium development. Pedestrian access and circulation shall be further subject to the following:
a.
Additional pedestrian paths of concrete, asphalt, crushed limestone or similar material approved by the planning commission may be provided for secondary pedestrian access and circulation within and through the site.
b.
Logical connections to and extensions of sidewalks and pedestrian paths outside of the condominium project shall be provided, where applicable.
c.
The planning commission may approve alternative sidewalk locations or may waive the sidewalk requirement upon determination that it would not serve the purpose of providing adequate pedestrian access and circulation.
3.
Traffic impacts. Traffic to, from, and within the site shall not be hazardous or inconvenient to the project or to the neighborhood. In applying this standard, the planning commission shall consider, among other things, convenient routes for pedestrian traffic, relationship of the proposed project to main thoroughfares and street intersections; and the general character and intensity of the existing and potential development of the neighborhood. A traffic impact study may be required by the planning commission, per section 10.06 (traffic impact studies).
F.
Infrastructure and other site improvements. Drainage and utility facilities and improvements shall meet or exceed the applicable city and county requirements. All new utilities shall be installed underground. Stormwater detention/retention basins shall be designed to emulate a naturally formed or free form depression, and to minimize the need for perimeter fencing.
All condominium subdivision (site condominium) projects shall be clearly marked with monuments as follows:
A.
Required. Monuments shall be placed in the ground according to the following requirements, but it is not intended or required that monuments be placed within the traveled portion of a street to mark angles in the boundary of the condominium project if the angle points can be readily re-established by reference to monuments along the sidelines of the streets.
B.
Construction. Monuments shall be made of solid iron or steel bars at least one-half-inch in diameter and 36 inches long, and completely encased in concrete at least four inches in diameter.
C.
Location. Monuments shall be located in the ground at all angles in the boundaries of the condominium project; at the intersection lines of streets and at the intersection of the lines of streets with the boundaries of the condominium project; at all points of curvature, points of tangency, points of compound curvature, points of reverse curvature, and angle points in the side lines of streets and alleys; at all angles of an intermediate traverse line; and at the intersection of all limited common elements and all common elements.
1.
Reference. If the required location of a monument is inaccessible or locating a monument would be impractical, it is sufficient to place a reference monument nearby, with the precise location clearly indicated on the plans and referenced to the true point.
2.
Steel rods. If a monument point is required to be on a bedrock outcropping, a steel rod, at least one-half-inch in diameter shall be drilled and grouted into solid rock to a depth of at least eight inches.
3.
Set at grade. All required monuments should be placed flush with the surrounding grade where practicable.
D.
Condominium unit corners. Each site condominium unit corner shall be monumented in the field by iron or steel bars or iron pipes at least 18 inches long and one-half inch in diameter, or other markers approved by the city engineer. Each condominium lot must be able to be defined by reference to appropriate condominium unit monuments.
E.
Timing. The building official, upon recommendation of the city engineer, may waive the placing of any required monuments and markers for a reasonable time period on the condition that the proprietor deposits with the city clerk a performance guarantee in an amount sufficient for the installation of all required monuments and markers, per section 1.11 (performance guarantees). Cost estimates for completing such improvements shall be made or verified by the city engineer.
The period shall not exceed 365 days after the date of condominium construction plan approval. The performance guarantee shall be returned to the proprietor upon receipt of a certificate by a licensed surveyor that the monuments and markers have been placed as required within the time specified. Failure to complete within the time period will lead to a forfeiture of the performance guarantee and the completion of the placement under the direction of the building official.
A.
Document submittals.
1.
It shall be the responsibility of the developer or proprietor of a condominium project to furnish the following items to the building official:
a.
One copy of the recorded Master Deed and all restrictive covenants;
b.
Two copies of the project site plan and an "as built survey," sealed by a licensed professional engineer, landscape architect or similar certified professional, in a format acceptable to the city; and
c.
One copy of the project site plan and an "as built survey" in an electronic format acceptable to the city.
2.
The building official may withhold the issuing of any certificate of occupancy for any structure within the condominium project, if such documents have not been submitted within ten days after written request from the building official to do so.
3.
The developer or proprietor shall also record all condominium documents and exhibits with the county register of deeds office in a manner and format acceptable to the county.
B.
Temporary occupancy. The building official may allow occupancy of a condominium unit before all required improvements are installed, provided that a performance guarantee sufficient in amount and type to provide for the installation of all remaining improvements shall be submitted in accordance with section 1.11 (performance guarantees). Improvements shall be completed before the expiration of the temporary occupancy permit to prevent forfeiture and completion of required improvements under the direction of the city.
C.
Plan revisions. If the condominium construction plan [Exhibit B, as required by the Condominium Act (P.A. 59 of 1978, as amended)] is revised, the revised plan shall be submitted to the city for review and approval in accordance with section 18.12 (revisions to approved site plans).
D.
Amended documents. Amendments to any condominium document that significantly impact the approved condominium site plan, or any conditions of the condominium site plan approval, shall be submitted to the planning commission for review and approval, prior to the issuance of a building permit.
E.
Condominium site plan expiration. Condominium site plans shall expire 365 days after the date of approval, unless the construction plan for the project has been submitted to the city for review. Upon written request received by the city prior to the expiration date, the planning commission may grant one extension of final approval for up to 365 days, provided that site conditions have not changed in a way that would affect the character, design or use of the site, and that the approved plan remains in conformance with all applicable provisions of this ordinance.
F.
Rescinding approval of a condominium site plan. Condominium site plan approval may be rescinded by the planning commission upon determination that the site has not been improved, constructed or maintained in compliance with approved permits, plans, or conditions of approval. Such action shall be taken in accordance with the procedural requirements of section 18.11 (rescinding approval of site plans).
- CONDOMINIUM REGULATIONS
The purpose of this article is to regulate projects that divide real property under a contractual arrangement known as a condominium. New and conversion condominium projects shall conform to the requirements of this ordinance, all other applicable city regulations, and the Condominium Act (P.A. 59 of 1978, as amended). Each condominium project shall be reviewed in a manner consistent with equivalent projects within the zoning district.
Pursuant to the authority conferred by the Condominium Act (P.A. 59 of 1978, as amended), condominium subdivision plans shall be regulated by this ordinance as site condominiums, and shall be considered equivalent to a platted subdivision for the purposes of enforcing the city's site development standards. The intent of this article is to ensure that condominium subdivisions are developed in compliance with all applicable standards of this ordinance and chapter 82 (subdivisions) of the city's Code of Ordinances, except that the review procedures of this article and ordinance shall apply.
It is the intent of this article that review of condominium subdivision (site condominium) plans be accomplished, aside from procedural differences, with the objective and intent of achieving the same results as if the site were to be developed under the Land Division Act (P.A. 288 of 1967, as amended) and chapter 82 (subdivisions) of the Code of Ordinances, except that nothing in this article shall be construed to require a site condominium development to obtain plat approval.
The following regulations shall apply to all condominium units:
A.
Types of permitted condominium units. The following types of condominium units shall be permitted under this article, subject to conformance with the use and zoning district standards of this ordinance:
1.
Single-family detached units. In the case of a condominium project in which the condominium units are intended for detached single-family residential purposes (site condominium), not more than one single-family dwelling unit and permitted accessory structure shall be proposed or constructed on a condominium lot. No dwelling unit may be located on a condominium lot with any other approved principal use. The condominium unit shall be considered a lot under this ordinance.
2.
Attached residential or multiple-family residential units. Condominium buildings and units created by the construction of multiple or attached residential units containing individually owned condominium units, or by conversion of existing multiple-family or attached units or an existing building into residential condominium units shall conform with all requirements of this ordinance and the applicable zoning district.
3.
Non-residential condominium units. A non-residential condominium project consisting of either new building construction or the conversion of an existing building into individual condominium units shall conform with all requirements of this ordinance for the zoning district.
B.
Condominium unit or site condominium lot. For purposes of this article and Ordinance, each detached condominium unit or site condominium lot shall be considered the equivalent of a platted lot of record as defined in Chapter 82 (Subdivisions) of the Code of Ordinances, and shall comply with the dimensional standards of the zoning district (see illustration).
C.
Area computation. The minimum area of the site condominium unit and the surrounding limited common element shall be equivalent to the minimum lot area and lot width requirements for the zoning district where the project is located. Areas within a public or private street right-of-way or equivalent easement or dedication shall not be included in the calculation of minimum condominium lot area or determination of dwelling density for a site.
D.
Relocation of lot boundaries. The relocation of boundaries or any other change in the dimensions of a condominium unit or site condominium lot shall be considered an amendment to the condominium documents and condominium site plan. Relocation of condominium lot boundaries, as permitted in Section 48 of the Condominium Act (P.A. 59 of 1978, as amended), shall comply with the requirements of article 5 (dimensional standards), and shall be subject to the review procedures specified in section 18.04 (site plan review procedure).
Any property remaining after the formation of a new unit lot by the relocation of an existing condominium lot boundary, as permitted by Section 49 of the Condominium Act (P.A. 59 of 1978, as amended), shall comply with the requirements of article 5 (dimensional standards) or shall be placed into common areas within the project.
A condominium project shall be subject to the site plan review procedures specified in section 18.04 (site plan review procedure), and the following:
A.
Conceptual review. To minimize time, costs and interpretation of city development requirements, applicants are encouraged to meet informally with the city planner and other city officials to discuss a conceptual condominium site plan, site issues and application of ordinance standards, prior to submitting plans for formal review.
1.
Any person may also request that a conceptual condominium site plan be placed on a regular planning commission meeting agenda as a discussion item for review and comment. The conceptual plan shall include the minimum information required by section 19.04A. (conceptual condominium plan requirements).
2.
Comments and suggestions by the city regarding a conceptual plan shall constitute neither an approval nor a disapproval of the plan, nor shall the city be bound in any way by such comments or suggestions in preparing for formal submittal or review of a condominium site plan.
For condominium subdivision (site condominium) developments, conceptual condominium site plan review shall be considered the equivalent of an initial plat investigation, as specified in Chapter 82 (Subdivisions) of the Code of Ordinances.
B.
Condominium site plan review. Prior to recording of the Master Deed of the condominium project as required by Section 72 of the Condominium Act, each condominium project shall be subject to review and approval of a condominium site plan by the planning commission. The plan shall include all information required by section 19.04B. (condominium site plan requirements).
The planning commission shall review and take action regarding a condominium site plan application in accordance with the review procedures specified in section 18.04 (site plan review procedure), and the standards for approval specified in section 18.13 (standards for site plan approval).
For site condominium developments, condominium site plan review shall be considered the equivalent of a preliminary plat review, as specified in Chapter 82 (Subdivisions) of the Code of Ordinances.
C.
Outside agency permits or approvals. The applicant shall be responsible for obtaining all necessary permits or approvals from applicable outside agencies, prior to construction plan approval.
D.
Condominium construction plans. When detailed construction or engineering plans are required by the city, county or other agency with jurisdiction, such plans shall be reviewed by the city in accordance with section 18.06 (construction plans). The plan shall include all information required by subsection 19.04.C. (condominium construction plan requirements).
For site condominium developments, condominium construction plan review shall be considered the equivalent of a final plat review, as specified in Chapter 82 (Subdivisions) of the City of Richmond Code of Ordinances.
A.
Conceptual condominium plan requirements. The following information shall be included with a conceptual condominium site plan:
1.
Ownership interest. Declaration of all persons with an ownership interest in the land on which the condominium project will be located, including a description of the nature of each entity's interest (e.g. fee owner, option holder, lessee or land contract vendee).
2.
Proposed use. The proposed use(s) of the condominium project.
3.
Density. The total acreage of the condominium site, acreage set aside for street rights-of-way, number of condominium units to be developed on the subject parcel and density computation on a unit per acre basis.
4.
Circulation. The vehicular and pedestrian circulation system planned for the proposed development, including the designation of any streets for dedication to the public.
5.
Street layout. The location of existing streets adjacent to the development, with details for the location and design of interior streets and access drives, and proposed connections to abutting streets.
6.
Unit lot orientation. The proposed layout of structures, unit lots, parking areas, open space and recreation areas.
7.
Drainage. Site drainage showing topography and flow directions, including computations of flows into storm sewers or retention or detention areas;
8.
Natural features. Specific locations and dimensions of wetland areas, wetland buffers, floodplain, and significant natural features such as tree stands, unusual slopes, streams and water drainage areas. The gross land area of all wetland areas and proposed open space dedications shall be provided.
B.
Condominium site plan requirements. The following information shall be included with a condominium site plan:
1.
Site plan information. All information required for a site plan review, as specified in section 18.03 (required information for site plans). For condominium subdivision (site condominium) developments, all information required for preliminary plat approval shall be provided on the condominium subdivision plan.
2.
Condominium restrictions. All deed restrictions, restrictive covenants or other proposed regulations for the layout, use and maintenance of public or common areas and structures shall be incorporated into the site plan as detail sheets and notes.
3.
Common areas defined. Limited common elements, common elements, unit lots, preservation areas, convertible areas and any other designated ownership areas shall be clearly delineated on the site plan.
4.
Documents. The master deed, condominium bylaws, restrictive covenants, and related condominium documents shall be provided for city attorney review.
5.
Additional information. The following additional information shall be submitted for city review:
a.
Cross sections of streets, driveways, sidewalks, and other paved areas.
b.
Details of any proposed sanitary, storm, and water system improvements.
c.
All condominium documents as defined in this ordinance.
d.
All necessary easement documents showing the dedication of land areas for the purposes of constructing, operating, inspecting, maintaining, repairing, altering, replacing or removing pipelines, mains, conduits and other installations of a similar character; providing public utilities, including conveyance of sewage, water and storm water run-off across, through and under the property subject to said easement; and excavating and refilling ditches and trenches necessary for the location of said structures.
C.
Condominium construction plan requirements. The following shall be submitted to the city as part of any construction or engineering plans for a condominium project:
1.
Revised plan. A revised, dated, and sealed condominium construction plan shall be submitted incorporating all changes, if any, required to comply with condominium site plan approval.
2.
Outside agency approvals. Verification of all required state and county approvals or comments pursuant to subsection 19.03.C. (outside agency permits or approvals) above.
3.
Section 71 comments. Presentation of all comments pursuant to Section 71 of the Condominium Act (P.A. 59 of 1978, as amended).
4.
Condominium documents. Copies of the recorded condominium documents or copies of the documents in their final recordable form, including the required condominium construction plan (Exhibit B).
The following standards are applicable to condominiums:
A.
Use standards. Uses within a condominium project shall be regulated by standards of the zoning district where the project is located.
B.
Subdivision requirements. All design standards and requirements for streets, sidewalks, utilities, storm drainage, and subdivision lots specified in the Land Division Act (P.A. 288 of 1967, as amended) and Chapter 82 (Subdivisions), Article III (Design Layout Standards) of the City of Richmond Code of Ordinances shall apply to condominium subdivision (site condominium) projects.
C.
Setbacks. The setback requirements of the underlying zoning district, as specified in article 5 (dimensional standards), shall establish the required interior and perimeter setbacks for the condominium development. Such setbacks shall be measured from the perimeter of the condominium lot or street right-of-way line to the nearest part of the structure or building envelope.
D.
Utility connections. Each site condominium unit shall be separately connected to available public water supply and sanitary sewer systems.
E.
Streets and sidewalks. The internal circulation system shall provide adequate means of vehicular and non-vehicular circulation, subject to the following:
1.
Streets. The proposed development shall provide logical extensions of existing or planned streets in the city, and shall provide suitable street connections to adjacent parcels, where applicable. Internal streets and street rights-of-way shall be designed to meet the city's engineering design standards, and shall be dedicated to the public. Curb cuts and driveway access shall comply with the standards of article 10 (access management).
2.
Sidewalks and pedestrian paths. To provide access to all common areas and uses, minimum five-foot wide concrete sidewalks shall be provided along both sides of all interior and perimeter streets serving a condominium development. Pedestrian access and circulation shall be further subject to the following:
a.
Additional pedestrian paths of concrete, asphalt, crushed limestone or similar material approved by the planning commission may be provided for secondary pedestrian access and circulation within and through the site.
b.
Logical connections to and extensions of sidewalks and pedestrian paths outside of the condominium project shall be provided, where applicable.
c.
The planning commission may approve alternative sidewalk locations or may waive the sidewalk requirement upon determination that it would not serve the purpose of providing adequate pedestrian access and circulation.
3.
Traffic impacts. Traffic to, from, and within the site shall not be hazardous or inconvenient to the project or to the neighborhood. In applying this standard, the planning commission shall consider, among other things, convenient routes for pedestrian traffic, relationship of the proposed project to main thoroughfares and street intersections; and the general character and intensity of the existing and potential development of the neighborhood. A traffic impact study may be required by the planning commission, per section 10.06 (traffic impact studies).
F.
Infrastructure and other site improvements. Drainage and utility facilities and improvements shall meet or exceed the applicable city and county requirements. All new utilities shall be installed underground. Stormwater detention/retention basins shall be designed to emulate a naturally formed or free form depression, and to minimize the need for perimeter fencing.
All condominium subdivision (site condominium) projects shall be clearly marked with monuments as follows:
A.
Required. Monuments shall be placed in the ground according to the following requirements, but it is not intended or required that monuments be placed within the traveled portion of a street to mark angles in the boundary of the condominium project if the angle points can be readily re-established by reference to monuments along the sidelines of the streets.
B.
Construction. Monuments shall be made of solid iron or steel bars at least one-half-inch in diameter and 36 inches long, and completely encased in concrete at least four inches in diameter.
C.
Location. Monuments shall be located in the ground at all angles in the boundaries of the condominium project; at the intersection lines of streets and at the intersection of the lines of streets with the boundaries of the condominium project; at all points of curvature, points of tangency, points of compound curvature, points of reverse curvature, and angle points in the side lines of streets and alleys; at all angles of an intermediate traverse line; and at the intersection of all limited common elements and all common elements.
1.
Reference. If the required location of a monument is inaccessible or locating a monument would be impractical, it is sufficient to place a reference monument nearby, with the precise location clearly indicated on the plans and referenced to the true point.
2.
Steel rods. If a monument point is required to be on a bedrock outcropping, a steel rod, at least one-half-inch in diameter shall be drilled and grouted into solid rock to a depth of at least eight inches.
3.
Set at grade. All required monuments should be placed flush with the surrounding grade where practicable.
D.
Condominium unit corners. Each site condominium unit corner shall be monumented in the field by iron or steel bars or iron pipes at least 18 inches long and one-half inch in diameter, or other markers approved by the city engineer. Each condominium lot must be able to be defined by reference to appropriate condominium unit monuments.
E.
Timing. The building official, upon recommendation of the city engineer, may waive the placing of any required monuments and markers for a reasonable time period on the condition that the proprietor deposits with the city clerk a performance guarantee in an amount sufficient for the installation of all required monuments and markers, per section 1.11 (performance guarantees). Cost estimates for completing such improvements shall be made or verified by the city engineer.
The period shall not exceed 365 days after the date of condominium construction plan approval. The performance guarantee shall be returned to the proprietor upon receipt of a certificate by a licensed surveyor that the monuments and markers have been placed as required within the time specified. Failure to complete within the time period will lead to a forfeiture of the performance guarantee and the completion of the placement under the direction of the building official.
A.
Document submittals.
1.
It shall be the responsibility of the developer or proprietor of a condominium project to furnish the following items to the building official:
a.
One copy of the recorded Master Deed and all restrictive covenants;
b.
Two copies of the project site plan and an "as built survey," sealed by a licensed professional engineer, landscape architect or similar certified professional, in a format acceptable to the city; and
c.
One copy of the project site plan and an "as built survey" in an electronic format acceptable to the city.
2.
The building official may withhold the issuing of any certificate of occupancy for any structure within the condominium project, if such documents have not been submitted within ten days after written request from the building official to do so.
3.
The developer or proprietor shall also record all condominium documents and exhibits with the county register of deeds office in a manner and format acceptable to the county.
B.
Temporary occupancy. The building official may allow occupancy of a condominium unit before all required improvements are installed, provided that a performance guarantee sufficient in amount and type to provide for the installation of all remaining improvements shall be submitted in accordance with section 1.11 (performance guarantees). Improvements shall be completed before the expiration of the temporary occupancy permit to prevent forfeiture and completion of required improvements under the direction of the city.
C.
Plan revisions. If the condominium construction plan [Exhibit B, as required by the Condominium Act (P.A. 59 of 1978, as amended)] is revised, the revised plan shall be submitted to the city for review and approval in accordance with section 18.12 (revisions to approved site plans).
D.
Amended documents. Amendments to any condominium document that significantly impact the approved condominium site plan, or any conditions of the condominium site plan approval, shall be submitted to the planning commission for review and approval, prior to the issuance of a building permit.
E.
Condominium site plan expiration. Condominium site plans shall expire 365 days after the date of approval, unless the construction plan for the project has been submitted to the city for review. Upon written request received by the city prior to the expiration date, the planning commission may grant one extension of final approval for up to 365 days, provided that site conditions have not changed in a way that would affect the character, design or use of the site, and that the approved plan remains in conformance with all applicable provisions of this ordinance.
F.
Rescinding approval of a condominium site plan. Condominium site plan approval may be rescinded by the planning commission upon determination that the site has not been improved, constructed or maintained in compliance with approved permits, plans, or conditions of approval. Such action shall be taken in accordance with the procedural requirements of section 18.11 (rescinding approval of site plans).