Zoneomics Logo
search icon

Herriman City Zoning Code

CHAPTER 10

31 AUTO MALL SPECIAL DISTRICT

10-31-1 Purpose

The purpose of the Auto Mall Special District (AMSD) is to concentrate new and used automobile sales, and related products and services, within a contiguous master-planned commercial development located north of 12600 South Street between Mountain View Corridor and Herriman Main Street. The AMSD also includes the sale of new and used recreational vehicles, all-terrain vehicles, boats, and related products and services. All land uses within the AMSD shall comply with the commercial development standards for the C-2 Commercial Zone, unless specified otherwise within this chapter.

(Code 2023, § 10-31-1; Ord. No. 2018-41, 12-12-2018)

HISTORY
Adopted by Ord. 2025-13 on 5/14/2025

10-31-2 Definitions

Certain words and phrases in this chapter, including uses, are defined in HCC chapter 10-3. The following words, terms and phrases, when used in this chapter, shall have the meanings ascribed to them in this section, except where the context clearly indicates a different meaning:

Architectural concrete means concrete designed and placed for the exterior ornamentation or finish of a building or structure that is treated by color or texture and color as depicted in HCC 10-31-14(D).

Covered vehicle storage means a private area used exclusively for vehicle storage that is covered by roofs supported by posts or walls extending to the ground beneath but not entirely enclosed by walls, windows, and doors that provides partial protection from the elements of weather.

Enclosed vehicle storage means a private area used exclusively for vehicle storage that is completely enclosed by a building with roofs, walls, windows, and doors that provides protection from the elements of weather and unwanted entry.

Franchise dealership means a motor vehicle dealer that operates according to a franchise or similar agreement with a national or international manufacturer of motor vehicles such as General Motors, Ford, Toyota, Tesla, Dodge, Yamaha, and Polaris.

Motor vehicle dealer means a dealership; automobile, trucks, sales and service (new); dealership; automobile, trucks, sales and service (used); dealership; recreational vehicle, all-terrain vehicle, boat or trailer, sales and service (new); or dealership; recreational vehicle, all-terrain vehicle, boat or trailer, sales and service (used).

Outdoor vehicle storage means a private area used exclusively for vehicle storage that is not fully enclosed within a building or covered by a structure but has walls that provide screening from public and private views and protection from unwanted entry. Outdoor vehicle storage shall require a six-foot-tall precast or masonry wall around all sides of the outdoor vehicle storage area, except for gate openings. The width of a gate opening shall be the minimum amount necessary to facilitate safe ingress and egress. The gate shall be opaque and constructed of solid materials to screen the outdoor vehicle storage area from view. Additional wall height may be required by the community development director or designee if necessary for compliance with this Code and adopted standards.

Vehicle storage means storage of operating vehicles, boats, recreational vehicles, all-terrain vehicles, utility task vehicles, and other similar movable apparatuses with a motor for more than 24 hours. The term "vehicle storage" does not include inoperable apparatuses with a motor, lawnmowers, snow blowers, generators, or other similar movable apparatuses with a small engine. The term "vehicle storage" includes enclosed, covered, and outdoor vehicle storage.

(Code 2023, § 10-31-2; Ord. No. 2019-31, 9-11-2019; Ord. No. 2022-40, 10-12-2022)

HISTORY
Adopted by Ord. 2025-13 on 5/14/2025

10-31-3 Permitted Uses

Unless otherwise allowed by state law, the permitted uses within the AMSD are shown in the tables of uses in HCC 10-16-1.

(Code 2023, § 10-31-3; Ord. No. 2018-41, 12-12-2018; Ord. No. 2019-31, 9-11-2019; Ord. No. 2022-40, 10-12-2022)

HISTORY
Adopted by Ord. 2025-13 on 5/14/2025

10-31-4 Accessory Uses

The following uses are considered accessory uses within the AMSD zone, subject to the development and other standards in this chapter:

  1. Vehicle repair;
  2. Limited vehicle storage.

(Code 2023, § 10-31-4; Ord. No. 2018-41, 12-12-2018; Ord. No. 2019-31, 9-11-2019; Ord. No. 2022-40, 10-12-2022)

HISTORY
Adopted by Ord. 2025-13 on 5/14/2025

10-31-5 Applicability Of Auto Mall Special District

The standards outlined in this chapter shall apply to the development of all parcels or lots that are zoned AMSD and located within the boundaries shown in HCC 10-31-14(A). The provisions of this chapter may be applied to other properties in the city, with appropriate modifications, by an approved master development agreement.

(Code 2023, § 10-31-5; Ord. No. 2018-41, 12-12-2018; Ord. No. 2022-40, 10-12-2022)

HISTORY
Adopted by Ord. 2025-13 on 5/14/2025

10-31-6 Schematic Development Plans

Development within the AMSD shall comply with the regulations of this chapter.

(Code 2023, § 10-31-6; Ord. No. 2018-41, 12-12-2018; Ord. No. 2022-40, 10-12-2022)

HISTORY
Adopted by Ord. 2025-13 on 5/14/2025

10-31-7 C-2 Modifications

HCC 10-12-6(C)(1), (4), (6), (7), (13), (15), (17) and (18) of the C-2 district shall not apply to the AMSD.

  1. Architectural design and materials.
    1. Building design and materials for all permitted uses shall be subject to the following:
      1. Materials shall be selected which require low maintenance, such as CMU, stone, cultured stone, metal, stucco, engineering wood, or fiber cement board. Buildings should consist of at least three different materials.
      2. The following materials shall be specifically prohibited:
        1. Unpainted, plain concrete walls;
        2. Metal or tin, unless where used as an accent material.
    2. Tilt-up concrete construction is permitted.
    3. Roofs shall not be exposed unless they are part of the decorative or architectural treatment of the building, such as parapets, columns, and similar elements.
  2. Commercial design criteria. Building design and materials for all conditional uses shall comply with the commercial design criteria in HCC 10-12-6(C).
  3. Lot coverage. Lot coverage by buildings and covered or semi-enclosed outbuildings shall not exceed 40 percent.
  4. Buffers, fences, and walls. As part of the site plan approval process, special buffers, fences, and walls shall be required to provide separations between public/commercial areas, service, loading, refuse collection, equipment and/or storage areas.
  5. Building size. Maximum building size shall be 100,000 square feet.
  6. Building height. Maximum building height shall be 55 feet. Additional height may be permitted as conditional use, subject to the following:
    1. In evaluating an application for additional building height, the planning commission shall find that the increased height will result in:
      1. Improved site layout and amenities;
      2. Architectural features that give the roofline a distinctive form or skyline;
      3. Lighting that highlights the architectural detailing of the entire building, but shall not exceed the maximum lighting standards as described elsewhere within this title; and
    2. Additional building height shall be limited to 15 feet.
  7. Parking/vehicle storage. The minimum number of parking spaces required shall be 400 square feet for every 400 square feet of public showroom display area for all auto-related uses. Spaces may be used for customer, employee, inventory or service bays. All other uses shall provide parking as per this Code.
  8. New and used car display. Car displays, arrangement of parking spaces, and circulation shall be at the dealer's option. However, no car displays shall block minimum required clear vision areas at driveway intersections or block lanes for public safety, egress or fire access. These clear vision areas and emergency access lanes shall be noted on the proposed site plan.
  9. Security for display vehicles. To the extent deemed necessary by individual dealers, curb walls no higher than 16 inches, closely spaced concrete bollards, berms, low-security fencing, and rails may be used. The design must be compatible with project theme and architectural detailing in other parts of the site.
  10. Inventory and parts storage areas. Inventory and parts storage areas shall be provided within buildings or in screened areas in accordance with subsection (C) of this section. To the extent practical, areas for storage should be combined with adjacent dealership properties.
  11. Access and internal circulation.
    1. Driveway access. Except where otherwise required for compliance with applicable codes and for fire lanes, driveways shall be a minimum of 24 feet wide, and all drives shall have a minimum 12.5 foot radius.
    2. Service area access. Service areas shall have sufficient stacking lanes on site to stack a minimum of one vehicle per service bay. Stacking lanes shall not block the flow of traffic or fire access lanes.
  12. Fences, screens and walls.
    1. Fences, screens, and walls shall be compatible and architecturally complementary between two adjoining sites. This may be achieved by use of similar materials and finishes to the building, landscaping materials, or other architectural design features.
    2. Location of fences shall be compatible with adjoining property users to permit the common use of gates and accesses.
    3. Neither chain-link fencing nor plain concrete block fences are permitted.
    4. Ten-foot screening walls around auto storage areas shall be permitted.
  13. Display pedestals.
    1. The number of display pedestals allowed in the front setback shall be one pedestal per 100 feet of street frontage or part thereof. The total number of pedestals allowed on the site may be clustered together to achieve more effective display, sales area, or circulation.
    2. Display pedestals shall be no closer than two feet from a property line.
    3. Display pedestals shall meet all clear view requirements of this Code and the city engineering standards.
  14. Site lighting. All outdoor lighting, including streetlights and parking lot lights, shall be in conformance with the requirements of city engineering standards as per HCC 9-2-2.
  15. Display pedestals.
    1. The number of display pedestals allowed in the front setback shall be one pedestal per 100 feet of street frontage or part thereof. The total number of pedestals allowed on the site may be clustered together to achieve more effective display, sales area, or circulation.
    2. Display pedestals shall be no closer than two feet from a property line.
    3. Display pedestals shall meet all clear view requirements of this Code and the city engineering standards.

(Code 2023, § 10-31-7; Ord. No. 2018-41, 12-12-2018; Ord. No. 2022-40, 10-12-2022; Ord. No. 2023-14, exh. A(10-31-7), 7-12-2023)

HISTORY
Adopted by Ord. 2025-13 on 5/14/2025

10-31-8 Development Standards For Franchise Dealerships

If certain design standards, including, but not limited to, building materials or colors, glazing, sizes, signage, lighting, setbacks, or heights, are mandated by the national or international manufacturer on a franchise dealership, then those design standards shall be deemed approved by the city.

(Code 2023, § 10-31-8; Ord. No. 2022-40, 10-12-2022)

HISTORY
Adopted by Ord. 2025-13 on 5/14/2025

10-31-9 Development Standards For Non-Franchise Dealerships

  1. Architectural design and materials.
    1. Building design and materials for all permitted uses shall be subject to the following:
      1. Materials shall be selected which require low maintenance, such as CMU, stone, cultured stone, metal, stucco, engineered wood, painted or integrally colored architectural concrete, metal cladding (as an accent material), or fiber cement board. Buildings shall consist of at least three different materials.
      2. The following materials shall be specifically prohibited:
        1. Unpainted, uncolored plain concrete that is not architectural concrete;
        2. Metal or tin, unless where used as an accent material.
      3. Tilt-up concrete construction is permitted so long as it is painted or integrally colored architectural concrete.
      4. Roofs shall not be exposed unless they are part of the decorative or architectural treatment of the building, such as parapets, columns, and similar elements.
    2. Building design and materials for all conditional uses shall comply with the commercial design criteria in HCC 10-12-6(C).
  2. Lot coverage. Lot coverage by buildings and covered or semi-enclosed outbuildings shall not exceed 40 percent.
  3. Lot size. The minimum lot size shall be three acres.
  4. Buffers, fences, and walls. As part of the site plan approval process, special buffers, fences, and walls shall be required to provide separations between public/commercial areas, service, loading, refuse collection, equipment and/or storage areas.
  5. Building size. Minimum building size shall be 3,500 square feet. Maximum building size shall be 100,000 square feet.
  6. Building height. Maximum building height shall be 55 feet. Additional height may be permitted as conditional use, subject to the following:
    1. In evaluating an application for additional building height, the planning commission shall find that the increased height will result in:
      1. Improved site layout and amenities;
      2. Architectural features that give the roofline a distinctive form or skyline;
      3. Lighting that highlights the architectural detailing of the entire building, but shall not exceed the maximum lighting standards as described elsewhere within this title; and
    2. Additional building height shall be limited to 15 feet.
  7. Required elements. For all buildings, at least two of the following elements should repeat horizontally. Buildings with front façades greater than 100 feet in length should include several of such elements, repeated at appropriate intervals, either horizontally or vertically:
    1. Color change. Minimum of two colors per elevation shall be required.
    2. Texture change.
    3. Material change.
    4. Architectural variety and interest.
    5. The city council, in its discretion, may grant an exception to this criteria.
  8. Façades. For any primary use building (not an accessory use building), the front façades shall be constructed with a minimum 15 percent and maximum 85 percent glass. The remaining front façade shall consist of a one or more of the following materials: brick, stone, glass, decorative block or concrete, stucco, aluminum composite material, architectural concrete, or simulated stone panels. Side and back façades shall include at least two of the following: glass, brick, stone, decorative block or concrete, stucco, aluminum composite material, architectural concrete, and simulated stone panels. The city council, in its discretion, may grant an exception to this criteria.
  9. Parking/vehicle storage. The minimum number of parking spaces required shall be one for ever 400 square feet public showroom display area for all auto-related uses. Spaces may be used for customer, employee, inventory or service bays. All other uses shall provide parking as per this Code.
  10. New and used car display. Car displays, arrangement of parking spaces, and circulation shall be at the dealer's option. However, no car displays shall block minimum required clear view areas at driveway intersections or block lanes for public safety, egress or fire access. These clear vision areas and emergency access lanes shall be noted on the proposed site plan.
  11. Security for display vehicles. To the extent deemed necessary by individual dealers, curb walls no higher than 16 inches, closely spaced concrete bollards, berms, low-security fencing, and rails may be used. The design must be compatible with project theme and architectural detailing in other parts of the site.
  12. Inventory and parts storage areas. Inventory and parts storage areas shall be provided within buildings or in screened areas in accordance with subsection (B) of this section. To the extent practical, areas for storage should be combined with adjacent dealership properties.
  13. Access and internal circulation.
    1. Driveway access. Except where otherwise required for compliance with applicable codes and for fire lanes, driveways shall be a minimum of 24 feet wide, and all drives shall have a minimum 12.5-foot radius measured from the top back of curb.
    2. Service area access. Service areas shall have sufficient stacking lanes on site to stack a minimum of one vehicle per service bay. Stacking lanes shall not block the flow of traffic or fire access lanes.
  14. Fences, screens and walls.
    1. Fences, screens, and walls shall be compatible and architecturally complementary between two adjoining sites. This may be achieved by use of similar materials and finishes to the building, landscaping materials, or other architectural design features.
    2. Location of fences shall be compatible with adjoining property users.
    3. Neither chain-link fencing nor plain concrete block fences are permitted.
    4. Ten-foot screening walls around auto storage areas shall be permitted.
  15. Display pedestals.
    1. The number of display pedestals allowed in the front setback shall be one pedestal per 100 feet of street frontage or part thereof. The total number of pedestals allowed on the site may be clustered together to achieve more effective display, sales area, or circulation.
    2. Display pedestals shall be no closer than two feet from a property line.
    3. Display pedestals shall meet all clear view requirements of this Code and the city engineering standards.
  16. Site lighting. All outdoor lighting, including streetlights and parking lot lights, shall be in conformance with the following:
    1. Where illuminance values are specified, the plan of reference shall be at ground level. Lighting will meet the dark sky compliance standards and will pass the International Dark-Sky Association (ID) Fixture Seal of Approval program.
    2. The following specifications:

      General Area LotsInterior RowsFront Row
      Average Illuminance30 fc. max50 fc. max
      Avg./Min. Uniformity ratio3:1 max3:1 max
      Maximum Allowable Illuminance40 fc. max60 fc. max
    3. 20-foot-tall light poles with LED lighting mounted on a three-foot concrete base is to be standard.

(Code 2023, § 10-31-9; Ord. No. 2022-40, 10-12-2022)

HISTORY
Adopted by Ord. 2025-13 on 5/14/2025

10-31-10 Landscape And Other Standards

  1. Variety. Landscaping shall consist of a variety of trees, shrubs, flowers, and other planted material, and shall be primarily comprised of water-wise landscaping applications of ground covers, rock, and mulch.
  2. Water efficiency. All new landscaping and revisions to existing landscape shall incorporate water-efficient landscape materials.
  3. Minimum required along public rights-of-way. A minimum of 15 feet width of landscaping will be required along and adjacent to all public rights-of-way. Except every 100 feet, a frontage car display area of no more than 20 feet long may narrow the landscaping width down to two feet. A minimum of five feet width of landscaping will be required for all rear and side yard landscaped areas.
  4. Minimum required along Mountain View Corridor. A minimum of five feet width of landscaping will be required along parcels abutting the Mountain View Corridor right-of-way. Landscaping improvements consisting of rockscape requiring no water are required to be installed and maintained by each dealer in the area between the existing sidewalk and the property line for lots along Mountain View Corridor.
  5. Number of trees within landscape easement. The number of trees to be planted shall equal no fewer than one for every 30 feet of frontage. The trees need not be spaced 30 feet apart on the frontage, but may be planted in clusters. Any clustering shall not exceed 60 feet apart.
  6. Trees within parking, display areas. Within the internal landscape areas of parking/display areas, a minimum of one tree shall be planted for every 4,000 square feet of parking/display area. Trees may be clustered around the parking area. Inventory display areas do not require trees.
  7. Common areas. Landscaping or other side or rear yard barriers or side yards between adjoining dealership properties may be eliminated if the yard area is used in conjunction with an adjoining property for common driveways display.
  8. Vehicle storage. The accessory use of vehicle storage shall comply with the following:
    1. Operating hours. A business with vehicle storage may only operate between 9:00 a.m. to 6:00 p.m.
    2. Relationship to primary use. Vehicle storage must be located on the same parcel as its primary permitted use.
    3. Ownership. Vehicle storage must be under common ownership, as defined by the regulations in the Internal Revenue Service, as the primary permitted use.
    4. Fencing. Vehicle storage shall be screen by a minimum six-foot-high masonry fence.
    5. Height. For enclosed or covered vehicle storage, the maximum height shall be 20 feet unless located within 20 feet of a residential property line, then the height shall be no more than 15 feet.
  9. Vehicle repair, limited. The accessory use of vehicle repair, limited, shall comply with the following conditions:
    1. The accessory use shall only be on property that is owned or controlled by the owner of the primary permitted use of the motor vehicle dealer as defined by the regulations of the Internal Revenue Service; and
    2. The accessory use is located within 800 feet of the primary permitted use of the motor vehicle dealer measured from the nearest property line to the nearest property of each respective use.

(Code 2023, § 10-31-10; Ord. No. 2018-41, 12-12-2018; Ord. No. 2022-40, 10-12-2022; Ord. No. 2023-14, exh. A(10-31-10), 7-12-2023)

HISTORY
Adopted by Ord. 2025-13 on 5/14/2025

10-31-11 Interim Facilities

  1. To facilitate economic development within the city, a dealership may request the use of an interim structure or facility in the AMSD. Request for use of an interim structure or facility shall be reviewed and decided by the planning commission, subject to the following:
    1. An interim structure or facility request must be accompanied by a preliminary development plan that demonstrates compliance with all applicable city codes and regulations upon completion of the final development plan.
    2. The design and materials of the interim structure or facility shall conform to the aesthetic values and visual form of the AMSD while fulfilling its temporary purpose. The requirements of HCC 10-31-9(A)(1)(a) (use of three different architectural materials) shall not apply to interim facilities.
    3. Use and development of the subject property shall comply with all other requirements of this chapter, including, but not limited to, landscaping, screening, signage, paving, access and internal circulation.
    4. The development plan shall include a phasing schedule, not to exceed three years from the date of building permit issuance for development of a parcel or lot.
    5. The dealership, or its agent, shall agree to present an annual report on construction of the phased development plan to the planning commission.
    6. Failure to comply with phased development plan schedule shall be grounds for permit revocation as provided in HCC 10-7-7(F).
  2. For the purpose of this chapter, use of an interim building or facility may not exceed a period of three years, unless an extension of time is granted by the planning commission, which extension shall not exceed a period of six months. A complete building permit must be submitted within 24 months of an interim facility being used. Use of an interim facility may only be used one time on a parcel within a ten-year period.

(Code 2023, § 10-31-11; Ord. No. 2018-41, 12-12-2018; Ord. No. 2022-40, 10-12-2022)

HISTORY
Adopted by Ord. 2025-13 on 5/14/2025

10-31-12 Signage

  1. Purpose. The purpose of signage in the AMSD is to provide additional opportunities for signage in the city. Signage is an important component of land use within the AMSD. All signs shall comply with the HCC chapter 10-27 unless specifically addressed in this section.
  2. Applicability. The provisions of this section shall apply to all the following conditions:
    1. All land shown in HCC 10-31-14(B).
    2. Have a minimum development frontage on a state-owned corridor, 12600 South, Main Street or auto row of at least 200 feet.
  3. Development approval. Any sign utilizing the provisions of this chapter shall be considered a permitted use and shall follow the established process for said use. Except as otherwise provided in this chapter, all other procedural requirements, such as applications for subdivision approval, site plan review, conditional use, and any other permit, shall be processed in accordance with city regulation, policy, or procedure.
  4. Development standards. Signage is an important component of land use within the AMSD. All signs shall comply with the HCC chapter 10-27, with the following exceptions:
    1. Generally. All standards not specified in this chapter shall comply with all other regulations, specifically those in HCC chapter 10-27 and all applicable federal and state laws:
      1. Location of all ground-mounted signs shall be limited to the locations in HCC 10-31-14(B), meet the requirements for traffic safety and visibility, and be located outside the clear view area (including traffic lights).
      2. Illuminated signs shall be internally lighted. Exposed neon is also permitted as an accent or decorative sign element.
      3. No flat faced box or cabinet type sign with painted copy shall be permitted.
      4. If signage is integrated with an architectural feature of the building, such as a backlit element, face or column, or a design element that is cast into architectural materials, only the portion of the sign that is text or corporate logo shall be counted toward the total allowed signage area.
      5. All banner signs, inflatables, flags, balloons, animated signs, and temporary signs, as allowed in this title, shall not require an additional sign permit from the city.
    2. Permanent signage.
      1. Mountain View Corridor (MVC) frontage.
        1. Two monolithic signs of maximum 50 feet high by 15 feet wide; and
        2. Each dealer adjacent to MVC may have a sign that complies with the requirements of a planned center sign as found in HCC 10-27-7.
      2. Main Street frontage. Each dealer adjacent to Main Street may have a sign that complies with the requirements of a planned center sign as found in HCC 10-27-7.
      3. Private street frontage. Each dealer with frontage on a private street shall be allowed to have monument signs as allowed in HCC 10-27-7. In addition monument signs at each motor vehicle dealer property three types of permanent signage are allowed at the sizes and locations specified in HCC 10-31-14(B).
      4. Building signage.
        1. Location. Signs shall be mounted on building façades parallel to and contiguous with the wall upon which the sign is attached. Signs may be attached to screen walls or service buildings facing a street.
        2. Quantity. A maximum sign copy area allowance for each façade of a building facing a public right-of-way shall be ten percent of the façade. In the case that a building fronts a public way on more than one façade, the maximum sign area allowance shall apply to each façade. A transfer of sign allowance area between façades on the same building shall not exceed 125 percent of the allowed area for any given façade. Allowed signage area on a façade may be comprised of one or more individual signs and need not be contiguous.
        3. Construction. Signs shall be internally illuminated, with individual pan channel or channelume letters, or construction methods with similar intent. Exposed neon as an accent element, logo or decorative feature is allowed as part of the sign area allowance.
      5. On-site directional/destination and information signs. On-site signs shall be located as needed to facilitate internal circulation and destination identification.
    3. Temporary signage.
      1. General standards.
        1. Signs shall not be placed in or over a public right-of-way.
        2. Signs shall not flash, blink, spin, rotate, block traffic visibility, constitute a vehicular or pedestrian traffic hazard, or cause a public nuisance of any kind.
        3. Signs shall not be attached to light poles, trees or security gates.
        4. Signs must be firmly secured.
        5. Signs within a power line easement shall comply with height conditions of the easement.
        6. Prior to December 15 of each calendar year, property owners within the AMSD shall jointly submit to the city planning department a calendar for the coming year of special promotion periods and holiday promotion periods that establishes fly dates for temporary signs, balloons, and inflatables. Fly dates shall comply with the provisions for special promotion and holiday promotion periods established in this section.
      2. Banners.
        1. Flag banners may be placed along frontage streets with a minimum interval spacing of at least 30 feet.
        2. Pole banners may be attached to non-public poles and supports.
        3. Flag banners may be freestanding feather banners with in-ground supports and spikes.
      3. Temporary sign devices. The following types of sign devices may be used during the permitted special promotion and holiday promotion periods:
        1. Banners attached to the buildings, not exceeding 15 percent of the building façade and no more than one banner per façade, but temporary building banners shall not be counted toward maximum allowance for permanent signage;
        2. Vehicle decorations, including antenna flags, balloons, windshield paintings, and hood displays;
        3. Tall balloons designed to attract attention from long distances, including cloud busters (balloons attached in a series with string or pennant flags) and hot air balloons;
        4. Carnival tents;
        5. Search or spotlights; and
        6. Inflatable objects for the purpose of advertising a specific product or to bring attention to a special promotion, such as inflatable mascots, gorillas, bounce houses, and promotional sponsors.
      4. Special promotion periods.
        1. Property owners within the AMSD may implement jointly up to 21 special promotion periods per calendar year.
        2. Each period may not exceed five consecutive days in length.
        3. Special promotional periods shall not be combined to run consecutively and must be separated by nine calendar days between each special promotion period.
        4. A sign permit for temporary signage is not required, provided the signage meets the requirements of this section.
      5. Holiday promotion periods.
        1. Property owners within the AMSD may implement jointly up to nine holiday promotion periods per calendar year.
        2. Unless otherwise noted below, each period may not exceed six consecutive days in length.
        3. Holiday promotional periods may be combined to run consecutively with other special promotion periods.
        4. The following days shall be considered holiday promotion periods:
          1. New Year's Day (January);
          2. Presidents Day (February);
          3. Tax season (April, seven days);
          4. Memorial Day (May);
          5. 4th of July (July);
          6. 24th of July (July);
          7. Labor Day (September);
          8. Thanksgiving (November); and
          9. End of year/Christmas (December 15--December 31).
    4. Sign 1 (HCC 10-31-14(C)) along state-owned corridor. Sign 1 shall be a permitted use and shall conform to applicable requirements of HCC chapter 10-27. An application for a permitted sign shall first obtain planning approval from the planning commission confirming compliance with each of the following requirements in advance of applying for a building permit:
      1. The sign shall be located within 50 feet of any state-owned right-of-way.
      2. The sign shall not be located within 200 feet from another multi-tenant sign.
      3. The maximum height of the sign shall not exceed 77 feet to the top of the sign above:
        1. The average elevation of the most adjacent traveled way of Mountain View Corridor (north-bound and south-bound lanes) located within 100 feet from the base of the sign.
        2. The most adjacent traveled way of any other state-owned street within 100 feet from the base of the sign.
    5. Sign 2 (HCC 10-31-14(C)) along 12600 South and Main Street. Sign 2 shall be a permitted use and shall conform to applicable requirements of HCC chapter 10-27. An application for a permitted sign shall first obtain planning approval from the planning commission confirming compliance with each of the following requirements in advance of applying for a building permit:
      1. The sign shall be located within 50 feet of 12600 South or Main Street.
      2. The sign shall not be located within 200 feet from another multi-tenant sign.
      3. The maximum height of the sign shall not exceed 25 feet to the top of the sign to the finish grade of the base sign.
      4. Each sign may have two display faces with an active display area not to exceed 87 square feet each, and an inactive (static) display area not to exceed 96 square feet; however, in no event shall the total sign area (active plus inactive) exceed 183 square feet.
    6. Sign 3 (HCC 10-31-14(C)) along auto row and Main Street. Sign 3 shall be a permitted use and shall conform to applicable requirements of HCC chapter 10-27. An application for a permitted sign shall first obtain planning approval from the planning commission confirming compliance with each of the following requirements in advance of applying for a building permit:
      1. The sign shall be located within 50 feet of auto row or Main Street.
      2. The sign shall not be located within 200 feet from another multi-tenant sign.
      3. The maximum height of the sign shall not exceed 12 feet to the top of the sign to the finish grade at the base of the sign.
      4. Each sign may have two display faces with an active display area not to exceed 39 square feet each, and an inactive (static) display area not to exceed 60 square feet; however, in no event shall the total sign area (active plus inactive) exceed 99 square feet.
    7. Additional standards.
      1. Each sign face shall be oriented towards the traveled way of the adjacent state-owned street, public street and away from any residential dwellings.
      2. The sign, including the supporting structure, shall be architecturally consistent with surrounding development and shall include decorative material such as stone, brick, decorative steel, or similar materials. In no case is an exposed support pole permitted.
      3. No sign shall extend closer than five feet to the edge of the right-of-way property line, nor impede a required easement.
      4. In addition to the information required for a building permit, and the requirements as set forth in HCC chapter 10-27, an application for sign 1, 2 or 3 shall satisfy the requirements described below:
        1. A site plan depicting the location of the proposed sign on the subject property, a rendering of the sign calling out materials and sign dimensions, and any fencing or other screening to segregate the sign area from adjoining uses;
        2. A photometric plan for the sign along with a statement from the electronic display manufacturer certifying that each display will allow for automatic dimming based on nighttime and daytime and ambient light conditions based on industry best practices; and
        3. An acknowledgement from the sign owner that the sign will be operated in accordance with HCC 10-27-11.
      5. Signage and exhibits. Signage shall be allowed on land located in the C-2 and AMSD zone as follows:
        1. Underlying zones. Signage shall be allowed to the same extent authorized in the underlying zone as set forth in HCC chapter 10-27.
        2. Sign 1, 2 and 3 signs. Square footage of the signs 1, 2 and 3 shall not count towards the overall signage of an individual building.
        3. Notwithstanding any other restriction in this Code, including HCC chapter 10-27, or this title, any sign shall be owned and operated by the developer of the overall commercial site.
        4. According to HCC 10-31-14(A).
        5. According to HCC 10-31-14(B).
        6. According to HCC 10-31-14(C).

(Code 2023, § 10-31-12; Ord. No. 2018-41, 12-12-2018; Ord. No. 2022-40, 10-12-2022)

HISTORY
Adopted by Ord. 2025-13 on 5/14/2025

10-31-13 Procedure

Except as otherwise provided in this chapter, all other procedural requirements, such as applications for subdivision approval, site plan review, conditional use, and any other permit shall be processed in accordance with city regulation, policy, or procedure.

(Code 2023, § 10-31-13; Ord. No. 2018-41, 12-12-2018)

HISTORY
Adopted by Ord. 2025-13 on 5/14/2025

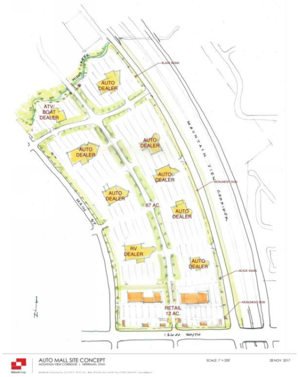
10-31-14 Reference Material (Exhibits)

Following are the exhibits referenced throughout this chapter:

  1. Exhibit A; auto mall special district boundaries.





  2. Exhibit B; signs 1, 2 and 3 locations.

  3. Exhibit C.





  4. Exhibit D; architectural concrete.



(Code 2023, § 10-31-14; Ord. No. 2018-41, 12-12-2018; Ord. No. 2022-40, 10-12-2022)

HISTORY
Adopted by Ord. 2025-13 on 5/14/2025

2025-13