- MEASUREMENTS
When calculations required under this zoning code result in fractions, the results must be rounded as follows:
A.
Minimum requirements. When a regulation is expressed in terms of a minimum requirement, any fractional result must be rounded up to the next consecutive whole number. For example, if a minimum requirement of one tree for every thirty (30) feet is applied to a fifty-foot strip, the resulting fraction of 1.67 is rounded up to two (2) required trees.
B.
Maximum limits. When a regulation is expressed in terms of maximum limits, any fractional result must be rounded down to the preceding whole number. For example, if a maximum limit of one dwelling unit for every three thousand seven hundred fifty (3,750) square feet of lot area is applied to an eight thousand-square-foot lot, the resulting fraction of 2.13 is rounded down to two (2) allowed dwelling units.
Lot area is measured as the total ground-level surface area contained within the property lines of a lot.
Lot area per unit is a measure of residential density. It governs the amount of lot area required for each dwelling unit on the subject lot. To determine the number of dwelling units allowed on a lot, divide the area of the lot by the minimum lot-area-per-unit requirement, and round any fractional result down to a whole number. If, for example, a minimum lot-area-per-unit requirement of one thousand seven hundred fifty (1,750) feet is applied to a ten thousand-square-foot lot, a maximum of five (5) units would be allowed on that lot (5.71 rounded down to five (5)). In applying minimum lot-area-per-unit requirements to fraternity, sorority and rooming/boarding house uses, each six hundred (600) square feet of floor area is counted as one dwelling unit.
The floor area of a building is measured as the sum of the gross horizontal areas of all floors within the building, including basements, as measured from the exterior faces of the exterior walls or from the centerline of walls separating 2 buildings. The floor area of enclosed required off-street parking areas is not included in the measurement of floor area.
The floor area ratio (FAR) is the floor area of all buildings on a lot, divided by the area of that lot.
Lot width refers to the average horizontal distance between the side property lines of a lot. Lot width is calculated as follows:
Lot Width = Lot Area (square feet) divided by (/) Lot Depth (feet)
(Ord. No. 25330, § 19, 6-5-2024)
Lot depth is measured as the distance, in a straight line, between the midpoint of the front lot line and the midpoint of the rear lot line.
Figure 90-1: Lot Depth Measurement
(Ord. No. 25330, § 20, 6-5-2024)
Street frontage is measured between side property lines of a lot along the property line that abuts the street. For purposes of determining compliance with zoning district lot and building regulations, the frontage of a lot that abuts a cul-de-sac or similarly curved non-arterial street may be measured along the required setback line. Lot boundaries that abut a limited access freeway are not considered street frontage for the purpose of complying with zoning district lot and building regulations.
A.
Open space per unit refers to the amount of outdoor open space required to be provided on a lot for each dwelling unit on the subject lot. Multiply the minimum open space-per-unit requirement by the number of dwelling units to determine the total amount of open space required on a lot. In applying minimum open space-per-unit requirements to fraternity, sorority and rooming/boarding house uses, each six hundred (600) square feet of floor area is counted as one dwelling unit.
B.
The following may be counted toward satisfying minimum open space-per unit requirements:
1.
Outdoor areas that are not occupied by buildings, driveways or parking areas and are generally useable by residents;
2.
Driveways and parking areas located in the rear yard of a detached house or duplex; and
3.
Green roofs covering twenty-five (25) percent or more of the subject building's overall roof area.
C.
Required open space within a townhouse development may be provided on each townhouse lot or may be provided in outdoor common areas within the townhouse development, as designated on the recorded subdivision plat or in a separately recorded legal instrument.
A.
Measurement. Required setbacks are measured from the applicable lot line, right-of-way, planned right-of-way or location referred to below. Building setbacks are measured to the nearest exterior building wall. Minimum setbacks that apply to other features (parking areas, fences, storage areas) are measured from the nearest point of the area or feature for which a setback is required. See Subsection 90.090C. for information on structures and building features that are allowed to occupy setback and yard areas in R zoning districts. Unless otherwise expressly stated, no part of any structure may be located within the street right-of-way, nor within the planned right-of-way of streets shown on the major street and highway plan, nor within twenty-five (25) feet of the centerline of the right-of-way on streets not shown on the major street and highway plan. If a variance of the prohibition against location of a structure within the right-of-way or planned right-of-way is granted by the Board of Adjustment, no part of any structure may be located within the street right-of-way, nor within the planned right-of-way of streets shown on the major street and highway plan, nor within twenty-five (25) feet of the centerline of the right-of-way on streets not shown on the major street and highway plan, unless a license has been granted by the city, in the case of the right-of-way, or a removal agreement has been entered into, in the case of the planned right-of-way.
1.
Street setbacks are measured from the actual right-of-way line of the street (other than an alley), provided that if the following measurement results in a greater setback, the greater setback applies:
a.
For streets shown on the major street and highway plan, if the width of the planned right-of-way exceeds the width of the actual right-of-way, the measurement must be taken from the planned right-of-way; and
b.
For streets not shown on the major street and highway plan, if the width of the right-of-way is fifty (50) feet or less, the measurement must be taken from a point that is twenty-five (25) feet from the centerline of the actual right-of-way.
Figure 90-3: Street Setback Measurement
2.
Side (interior) setbacks are measured from a side lot line that does not abut a street.
Figure 90-4: Side (Interior) Setback Measurement
3.
Rear setbacks are measured from the rear lot line, except on double-frontage lots. On double-frontage lots, street setbacks apply from all property lines that abut streets.
Figure 90-5: Rear Setback Measurement
B.
Setbacks on Irregular Lots. Setbacks are measured from lot lines towards the center of the lot, as follows:
1.
Generally, setbacks are measured as set out in Subsection 90.090A.
2.
When lot lines are curvilinear, setbacks must be measured parallel to the curvilinear lot line.
Figure 90-6: Setbacks from Curvilinear Lot Lines
3.
When there are multiple rear lot lines, the rear setback must be measured from each of rear lot lines.
Figure 90-7: Setbacks from Multiple Rear Lot Lines
4.
When there is no rear lot line, the rear setback must be measured as a radial distance from the intersection of side lot lines at the rear of the lot.
Figure 90-8: Rear Setback Measurement When there is No Rear Lot Line
C.
Permitted setback obstructions in R zoning districts Setbacks in R zoning districts must be unobstructed and unoccupied from the ground to the sky except as indicated in Table 90-1:
Table 90-1: Permitted Setback Obstructions in R Zoning Districts
Table 90-1 Notes:
[1]
Special exception approval required; see Subsection 90.090C.1.
[2]
Must be setback at least three (3) feet from side and rear lot lines.
[3]
May be allowed in the street setback within a rear yard.
1.
Carports. Carports are allowed in street setbacks and yards in R zoning districts only if approved in accordance with the special exception procedures of Section 70.120. Any carport that occupies all or a portion of the street setback or street yard area must comply with the following regulations, unless otherwise expressly approved by the board of adjustment as part of the special exception process:
a.
A carport may be a detached accessory building or an integral part of the principal building.
b.
The area of a carport may not exceed twenty (20) feet in length by twenty (20) feet in width.
c.
A detached carport may not exceed eight (8) feet in height at its perimeter or eighteen (18) feet in height at its highest point. A carport erected as an integral part of the principal building may not exceed eight (8) feet in height within ten (10) feet of a side lot line or eighteen (18) feet at its highest point.
d.
The carport structure must be setback from side lot lines by a minimum distance of five (5) feet or the depth of the principal building setback, whichever is a greater distance from the side lot line.
e.
The carport structure may project into the required street setback by a maximum distance of twenty (20) feet. This distance must be measured from the required street setback line or the exterior building wall of the principal building, whichever results in the least obstruction of the street setback.
f.
All sides of a carport that are within the required street setback must be open and unobstructed, except for support columns, which may not obstruct more than fifteen (15) percent of the area of any side.
g.
The entire area under a carport may be used only for storage of operable, licensed motor vehicles (i.e., cars, boats, pickup trucks, vans, sport utility vehicles), which are customarily accessory to the dwelling. No other use of the carport area is allowed.
2.
Detached Accessory Buildings in R Districts.
a.
Detached accessory buildings may be located in rear setbacks, provided that:
(1)
The building does not exceed one story or 18 feet in height and is not more than 10 feet in height to the top of the top plate; and
(2)
The building does not exceed two stories or 25 feet in height and is not more than 18 feet in height to the top of the top plate if it contains an accessory dwelling unit on the second floor; and
Figure 90-9: Maximum Height of Accessory Buildings in Rear Setbacks
(3)
Garage doors are limited to 8 feet in height; and
(4)
Building coverage in the rear setback does not exceed the maximum limits established in Table 90-2:
Table 90-2: Accessory Building Coverage Limits in Rear Setback
b.
Detached accessory buildings in the rear setback must be set back at least 3 feet from all interior lot lines. For lot lines abutting street right-of-way, detached accessory buildings must comply with the same setback requirements that apply to principal buildings.
Figure 90-10: Required Setbacks for Accessory Buildings in Rear Setbacks within R
District
c.
Nonconforming detached accessory buildings in the rear yard that are set back less than three (3) feet from interior lot lines may be expanded or demolished and reconstructed without complying with the three-foot setback requirements, provided that the reconstructed or expanded building complies with all of the following requirements:
(1)
It is no closer to any interior lot line than the existing nonconforming structure;
(2)
It is not over one story in height;
(3)
It does not cover more of the required rear yard than permitted in Subsection 90.090C.2.a.(2); and
(4)
It does not exceed five hundred (500) square feet in floor area if the building does not comply with the setback requirements of Subsection 90.090C.2.b.
D.
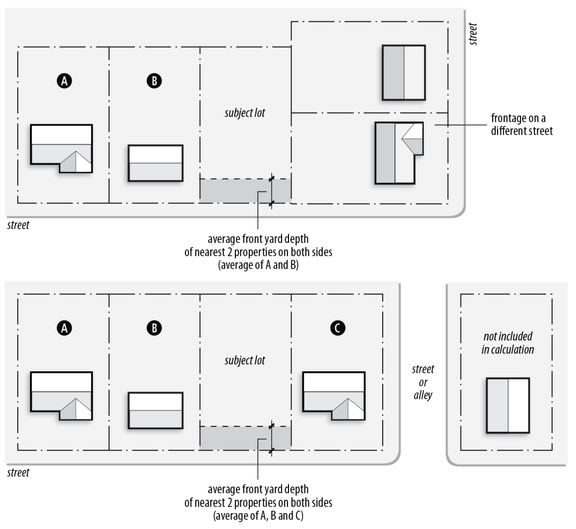
Contextual setbacks. When existing buildings on one or more abutting lots are closer to the street (front or street side) property line than the otherwise required setback, additions to existing buildings or construction of new buildings on the subject lot may comply with the average street yard depth that exists on the nearest two (2) lots on either side of the subject lot instead of complying with the zoning district's minimum street setback requirement. Existing yard depths must be based on the front corners of the buildings on the lots used in the contextual setback determination that are nearest to the subject lot.
Figure 90-11: Contextual Setbacks (1)
1.
If one or more of the lots required to be included in the averaging calculation is vacant, that vacant lot will be deemed to have a street yard depth equal to the minimum street setback requirement of the subject zoning district.
Figure 90-12: Contextual Setbacks (2)
2.
Lots with frontage on a different street than the subject lot or that are separated from the subject lot by a street or alley may not be used in computing the average.
Figure 90-13: Contextual Setbacks (3)
3.
When the subject lot is a corner lot, the average street yard depth will be computed on the basis of the nearest two (2) lots with frontage on the same street as the subject lot.
Figure 90-14: Contextual Setbacks (4)
4.
When the subject lot abuts a corner lot with frontage on the same street, the average street yard depth will be computed on the basis of the abutting corner lot and the nearest two (2) lots with frontage on the same street as the subject lot.
Figure 90-15: Contextual Setbacks (5)
5.
These contextual setback provisions may not be used to reduce the setback of a street-facing garage door to less than twenty (20) feet.
(Ord. No. 25429, § 19, 10-30-2024)
A.
All on-site parking spaces must be located behind any applicable parking setback line. This requirement applies whether such spaces are located in a surface (open-air) parking lot or in a parking structure. Parking setbacks do not apply to on-street parking spaces, parking spaces located in an underground structure or parking spaces located above the ground floor.
B.
Parking setbacks are measured in accordance with Subsection 90.090A.
A.
The build-to-zone is the area on the lot where all or a portion of the street-facing building façade must be located, established as a minimum and maximum setback range, measured in accordance with the setback measurement provisions of Subsection 90.090A.
B.
The street-facing building façade must be located in and extend along the length of the build-to-zone for a minimum distance equal to a percentage of the width of the lot, as required by specific provisions of this zoning code. The required minimum percentage is calculated by dividing the width of the building façade located within the build-to-zone by the width of the lot. For purposes of this calculation, the width of the lot is the narrowest width of the lot within the build-to-zone.
C.
On corner lots, the development administrator is authorized to designate which street is the primary street and which street is the secondary or side street. The primary street designation must be based on consideration of the following criteria:
1.
The street with the highest functional street classification;
2.
The street that the lot takes its address from; and
3.
The street parallel to an alley within the block.
D.
On corner lots, the building must be within the required build-to-zone for the first twenty-five (25) feet extending from the intersection of the two (2) street rights-of-way.
Building coverage is the total area of a lot covered by principal and accessory buildings. Only building areas beneath a roof are counted for purposes of measuring building coverage. A porch with a roof, for example, is counted, but an uncovered deck structure is not considered building coverage.
Ceiling height is measured from the finished floor to the ceiling immediately above. At least fifty (50) percent of the enclosed ground floor area must comply with established floor-to-ceiling height requirements and all of the first thirty (30) feet of building depth, measured from the principal street-facing façade, must comply with established ceiling height requirements. Buildings in existence or that were the subject of an approved building permit before the effective date specified in Section 1.030 are exempt from ceiling height requirements.
A.
Transparency regulations govern the percentage of a street-facing building façade that must be covered by transparent elements (e.g., transparent windows and doors). Such transparent elements shall be designed and maintained to provide views into and out of the building, and shall not be permanently obstructed by fixed elements, such as signage, shelving, furniture, etc.
B.
Unless otherwise expressly stated, the transparency area of a ground floor facade is measured between three (3) and eight (8) feet above the adjacent curb. Such transparent elements shall not begin higher than three (3) feet above the level of the adjoining curb and shall have a minimum width of two (2) feet.
Figure 90-17: Ground Floor Transparency Measurement

C.
The transparency of an upper story facade is measured from top of the finished floor to the top of the finished floor above. When there is no floor above, upper story transparency is measured from the top of the finished floor to the top of the wall plate.
Figure 90-18: Upper Floor Transparency Measurement
D.
Glazed elements used to satisfy minimum transparency requirements must be clear and non-reflective and not be painted or tinted (transparent, low-emissivity glass is permitted).
A.
Required street-facing building entrances must provide ingress and egress for residents and customers. Additional entrances off another street, pedestrian area or internal parking area are also permitted.
B.
An angled entrance may be provided at any corner of a building along the street to meet street-facing entrance requirements.
A.
Measurement.
1.
Building height is measured as the vertical distance from the average ground elevation along the exterior building wall to the highest point of the subject building. For purposes of measuring height:
a.
The average ground elevation is the mid-point between the highest and lowest ground elevations along the exterior building wall; and
b.
The highest point of the building is the coping of a flat roof, the top of a mansard roof or shed roof, or the peak of the highest gable of a gambrel or hip roof. For buildings without a roof, height is measured to the highest point of the structure.
Figure 90-19: Building Height Measurement
B.
Exceptions.
1.
Farm buildings and farm-related structures are not subject to building height limits.
2.
Chimneys, elevators, equipment penthouses, monitors, cooling towers and ventilators may exceed maximum building height limits, provided they are not intended for human occupancy and they do not extend more than twenty (20) feet above the top of the principal structure to which they are attached. This twenty-foot limit may be increased through the special exception procedures of Section 70.120.
3.
Belfries, clock towers, cupolas, domes, flag poles and spires may exceed maximum building height limits, provided they are not intended for human occupancy and they are not more than one hundred fifty (150) percent taller than the applicable height limit. This one hundred fifty (150) percent limit may be increased through the special exception procedures of Section 70.120.
A.
Fences and walls. The height of fences and walls is measured as vertical distance from the average finished grade on the inside of the fence to the top of the fence or wall. Fences atop walls or landscape features (e.g., raised beds) are measured to average finished grade at the base of the wall or landscape feature. In the case of retaining walls, average finished grade may be measured from the side of the retaining wall abutting and contacting the earth being supported. Fence posts may exceed the height of the highest connected portion of the fence by up to twelve (12) inches.
B.
Other structures. The height of structures other than buildings, fences or walls is measured as vertical distance from the average finished grade at the base of the structure to the highest point of the structure. Unless otherwise expressly stated, the height of a structure may not exceed the maximum building height allowed in the subject zoning district.
(Ord. No. 25330, § 21, 6-5-2024)
For the purpose of determining compliance with any noise limits expressed in db(A) (A-weighted decibels), the noise must be measured on the A-weighting scale on a sound level meter of standard design and quality having characteristics established by the American National Standards Institute.
For the purpose of determining compliance with standards or requirements based on building occupancy or capacity, calculations must be based on the building code.
- MEASUREMENTS
When calculations required under this zoning code result in fractions, the results must be rounded as follows:
A.
Minimum requirements. When a regulation is expressed in terms of a minimum requirement, any fractional result must be rounded up to the next consecutive whole number. For example, if a minimum requirement of one tree for every thirty (30) feet is applied to a fifty-foot strip, the resulting fraction of 1.67 is rounded up to two (2) required trees.
B.
Maximum limits. When a regulation is expressed in terms of maximum limits, any fractional result must be rounded down to the preceding whole number. For example, if a maximum limit of one dwelling unit for every three thousand seven hundred fifty (3,750) square feet of lot area is applied to an eight thousand-square-foot lot, the resulting fraction of 2.13 is rounded down to two (2) allowed dwelling units.
Lot area is measured as the total ground-level surface area contained within the property lines of a lot.
Lot area per unit is a measure of residential density. It governs the amount of lot area required for each dwelling unit on the subject lot. To determine the number of dwelling units allowed on a lot, divide the area of the lot by the minimum lot-area-per-unit requirement, and round any fractional result down to a whole number. If, for example, a minimum lot-area-per-unit requirement of one thousand seven hundred fifty (1,750) feet is applied to a ten thousand-square-foot lot, a maximum of five (5) units would be allowed on that lot (5.71 rounded down to five (5)). In applying minimum lot-area-per-unit requirements to fraternity, sorority and rooming/boarding house uses, each six hundred (600) square feet of floor area is counted as one dwelling unit.
The floor area of a building is measured as the sum of the gross horizontal areas of all floors within the building, including basements, as measured from the exterior faces of the exterior walls or from the centerline of walls separating 2 buildings. The floor area of enclosed required off-street parking areas is not included in the measurement of floor area.
The floor area ratio (FAR) is the floor area of all buildings on a lot, divided by the area of that lot.
Lot width refers to the average horizontal distance between the side property lines of a lot. Lot width is calculated as follows:
Lot Width = Lot Area (square feet) divided by (/) Lot Depth (feet)
(Ord. No. 25330, § 19, 6-5-2024)
Lot depth is measured as the distance, in a straight line, between the midpoint of the front lot line and the midpoint of the rear lot line.
Figure 90-1: Lot Depth Measurement
(Ord. No. 25330, § 20, 6-5-2024)
Street frontage is measured between side property lines of a lot along the property line that abuts the street. For purposes of determining compliance with zoning district lot and building regulations, the frontage of a lot that abuts a cul-de-sac or similarly curved non-arterial street may be measured along the required setback line. Lot boundaries that abut a limited access freeway are not considered street frontage for the purpose of complying with zoning district lot and building regulations.
A.
Open space per unit refers to the amount of outdoor open space required to be provided on a lot for each dwelling unit on the subject lot. Multiply the minimum open space-per-unit requirement by the number of dwelling units to determine the total amount of open space required on a lot. In applying minimum open space-per-unit requirements to fraternity, sorority and rooming/boarding house uses, each six hundred (600) square feet of floor area is counted as one dwelling unit.
B.
The following may be counted toward satisfying minimum open space-per unit requirements:
1.
Outdoor areas that are not occupied by buildings, driveways or parking areas and are generally useable by residents;
2.
Driveways and parking areas located in the rear yard of a detached house or duplex; and
3.
Green roofs covering twenty-five (25) percent or more of the subject building's overall roof area.
C.
Required open space within a townhouse development may be provided on each townhouse lot or may be provided in outdoor common areas within the townhouse development, as designated on the recorded subdivision plat or in a separately recorded legal instrument.
A.
Measurement. Required setbacks are measured from the applicable lot line, right-of-way, planned right-of-way or location referred to below. Building setbacks are measured to the nearest exterior building wall. Minimum setbacks that apply to other features (parking areas, fences, storage areas) are measured from the nearest point of the area or feature for which a setback is required. See Subsection 90.090C. for information on structures and building features that are allowed to occupy setback and yard areas in R zoning districts. Unless otherwise expressly stated, no part of any structure may be located within the street right-of-way, nor within the planned right-of-way of streets shown on the major street and highway plan, nor within twenty-five (25) feet of the centerline of the right-of-way on streets not shown on the major street and highway plan. If a variance of the prohibition against location of a structure within the right-of-way or planned right-of-way is granted by the Board of Adjustment, no part of any structure may be located within the street right-of-way, nor within the planned right-of-way of streets shown on the major street and highway plan, nor within twenty-five (25) feet of the centerline of the right-of-way on streets not shown on the major street and highway plan, unless a license has been granted by the city, in the case of the right-of-way, or a removal agreement has been entered into, in the case of the planned right-of-way.
1.
Street setbacks are measured from the actual right-of-way line of the street (other than an alley), provided that if the following measurement results in a greater setback, the greater setback applies:
a.
For streets shown on the major street and highway plan, if the width of the planned right-of-way exceeds the width of the actual right-of-way, the measurement must be taken from the planned right-of-way; and
b.
For streets not shown on the major street and highway plan, if the width of the right-of-way is fifty (50) feet or less, the measurement must be taken from a point that is twenty-five (25) feet from the centerline of the actual right-of-way.
Figure 90-3: Street Setback Measurement
2.
Side (interior) setbacks are measured from a side lot line that does not abut a street.
Figure 90-4: Side (Interior) Setback Measurement
3.
Rear setbacks are measured from the rear lot line, except on double-frontage lots. On double-frontage lots, street setbacks apply from all property lines that abut streets.
Figure 90-5: Rear Setback Measurement
B.
Setbacks on Irregular Lots. Setbacks are measured from lot lines towards the center of the lot, as follows:
1.
Generally, setbacks are measured as set out in Subsection 90.090A.
2.
When lot lines are curvilinear, setbacks must be measured parallel to the curvilinear lot line.
Figure 90-6: Setbacks from Curvilinear Lot Lines
3.
When there are multiple rear lot lines, the rear setback must be measured from each of rear lot lines.
Figure 90-7: Setbacks from Multiple Rear Lot Lines
4.
When there is no rear lot line, the rear setback must be measured as a radial distance from the intersection of side lot lines at the rear of the lot.
Figure 90-8: Rear Setback Measurement When there is No Rear Lot Line
C.
Permitted setback obstructions in R zoning districts Setbacks in R zoning districts must be unobstructed and unoccupied from the ground to the sky except as indicated in Table 90-1:
Table 90-1: Permitted Setback Obstructions in R Zoning Districts
Table 90-1 Notes:
[1]
Special exception approval required; see Subsection 90.090C.1.
[2]
Must be setback at least three (3) feet from side and rear lot lines.
[3]
May be allowed in the street setback within a rear yard.
1.
Carports. Carports are allowed in street setbacks and yards in R zoning districts only if approved in accordance with the special exception procedures of Section 70.120. Any carport that occupies all or a portion of the street setback or street yard area must comply with the following regulations, unless otherwise expressly approved by the board of adjustment as part of the special exception process:
a.
A carport may be a detached accessory building or an integral part of the principal building.
b.
The area of a carport may not exceed twenty (20) feet in length by twenty (20) feet in width.
c.
A detached carport may not exceed eight (8) feet in height at its perimeter or eighteen (18) feet in height at its highest point. A carport erected as an integral part of the principal building may not exceed eight (8) feet in height within ten (10) feet of a side lot line or eighteen (18) feet at its highest point.
d.
The carport structure must be setback from side lot lines by a minimum distance of five (5) feet or the depth of the principal building setback, whichever is a greater distance from the side lot line.
e.
The carport structure may project into the required street setback by a maximum distance of twenty (20) feet. This distance must be measured from the required street setback line or the exterior building wall of the principal building, whichever results in the least obstruction of the street setback.
f.
All sides of a carport that are within the required street setback must be open and unobstructed, except for support columns, which may not obstruct more than fifteen (15) percent of the area of any side.
g.
The entire area under a carport may be used only for storage of operable, licensed motor vehicles (i.e., cars, boats, pickup trucks, vans, sport utility vehicles), which are customarily accessory to the dwelling. No other use of the carport area is allowed.
2.
Detached Accessory Buildings in R Districts.
a.
Detached accessory buildings may be located in rear setbacks, provided that:
(1)
The building does not exceed one story or 18 feet in height and is not more than 10 feet in height to the top of the top plate; and
(2)
The building does not exceed two stories or 25 feet in height and is not more than 18 feet in height to the top of the top plate if it contains an accessory dwelling unit on the second floor; and
Figure 90-9: Maximum Height of Accessory Buildings in Rear Setbacks
(3)
Garage doors are limited to 8 feet in height; and
(4)
Building coverage in the rear setback does not exceed the maximum limits established in Table 90-2:
Table 90-2: Accessory Building Coverage Limits in Rear Setback
b.
Detached accessory buildings in the rear setback must be set back at least 3 feet from all interior lot lines. For lot lines abutting street right-of-way, detached accessory buildings must comply with the same setback requirements that apply to principal buildings.
Figure 90-10: Required Setbacks for Accessory Buildings in Rear Setbacks within R
District
c.
Nonconforming detached accessory buildings in the rear yard that are set back less than three (3) feet from interior lot lines may be expanded or demolished and reconstructed without complying with the three-foot setback requirements, provided that the reconstructed or expanded building complies with all of the following requirements:
(1)
It is no closer to any interior lot line than the existing nonconforming structure;
(2)
It is not over one story in height;
(3)
It does not cover more of the required rear yard than permitted in Subsection 90.090C.2.a.(2); and
(4)
It does not exceed five hundred (500) square feet in floor area if the building does not comply with the setback requirements of Subsection 90.090C.2.b.
D.
Contextual setbacks. When existing buildings on one or more abutting lots are closer to the street (front or street side) property line than the otherwise required setback, additions to existing buildings or construction of new buildings on the subject lot may comply with the average street yard depth that exists on the nearest two (2) lots on either side of the subject lot instead of complying with the zoning district's minimum street setback requirement. Existing yard depths must be based on the front corners of the buildings on the lots used in the contextual setback determination that are nearest to the subject lot.
Figure 90-11: Contextual Setbacks (1)
1.
If one or more of the lots required to be included in the averaging calculation is vacant, that vacant lot will be deemed to have a street yard depth equal to the minimum street setback requirement of the subject zoning district.
Figure 90-12: Contextual Setbacks (2)
2.
Lots with frontage on a different street than the subject lot or that are separated from the subject lot by a street or alley may not be used in computing the average.
Figure 90-13: Contextual Setbacks (3)
3.
When the subject lot is a corner lot, the average street yard depth will be computed on the basis of the nearest two (2) lots with frontage on the same street as the subject lot.
Figure 90-14: Contextual Setbacks (4)
4.
When the subject lot abuts a corner lot with frontage on the same street, the average street yard depth will be computed on the basis of the abutting corner lot and the nearest two (2) lots with frontage on the same street as the subject lot.
Figure 90-15: Contextual Setbacks (5)
5.
These contextual setback provisions may not be used to reduce the setback of a street-facing garage door to less than twenty (20) feet.
(Ord. No. 25429, § 19, 10-30-2024)
A.
All on-site parking spaces must be located behind any applicable parking setback line. This requirement applies whether such spaces are located in a surface (open-air) parking lot or in a parking structure. Parking setbacks do not apply to on-street parking spaces, parking spaces located in an underground structure or parking spaces located above the ground floor.
B.
Parking setbacks are measured in accordance with Subsection 90.090A.
A.
The build-to-zone is the area on the lot where all or a portion of the street-facing building façade must be located, established as a minimum and maximum setback range, measured in accordance with the setback measurement provisions of Subsection 90.090A.
B.
The street-facing building façade must be located in and extend along the length of the build-to-zone for a minimum distance equal to a percentage of the width of the lot, as required by specific provisions of this zoning code. The required minimum percentage is calculated by dividing the width of the building façade located within the build-to-zone by the width of the lot. For purposes of this calculation, the width of the lot is the narrowest width of the lot within the build-to-zone.
C.
On corner lots, the development administrator is authorized to designate which street is the primary street and which street is the secondary or side street. The primary street designation must be based on consideration of the following criteria:
1.
The street with the highest functional street classification;
2.
The street that the lot takes its address from; and
3.
The street parallel to an alley within the block.
D.
On corner lots, the building must be within the required build-to-zone for the first twenty-five (25) feet extending from the intersection of the two (2) street rights-of-way.
Building coverage is the total area of a lot covered by principal and accessory buildings. Only building areas beneath a roof are counted for purposes of measuring building coverage. A porch with a roof, for example, is counted, but an uncovered deck structure is not considered building coverage.
Ceiling height is measured from the finished floor to the ceiling immediately above. At least fifty (50) percent of the enclosed ground floor area must comply with established floor-to-ceiling height requirements and all of the first thirty (30) feet of building depth, measured from the principal street-facing façade, must comply with established ceiling height requirements. Buildings in existence or that were the subject of an approved building permit before the effective date specified in Section 1.030 are exempt from ceiling height requirements.
A.
Transparency regulations govern the percentage of a street-facing building façade that must be covered by transparent elements (e.g., transparent windows and doors). Such transparent elements shall be designed and maintained to provide views into and out of the building, and shall not be permanently obstructed by fixed elements, such as signage, shelving, furniture, etc.
B.
Unless otherwise expressly stated, the transparency area of a ground floor facade is measured between three (3) and eight (8) feet above the adjacent curb. Such transparent elements shall not begin higher than three (3) feet above the level of the adjoining curb and shall have a minimum width of two (2) feet.
Figure 90-17: Ground Floor Transparency Measurement

C.
The transparency of an upper story facade is measured from top of the finished floor to the top of the finished floor above. When there is no floor above, upper story transparency is measured from the top of the finished floor to the top of the wall plate.
Figure 90-18: Upper Floor Transparency Measurement
D.
Glazed elements used to satisfy minimum transparency requirements must be clear and non-reflective and not be painted or tinted (transparent, low-emissivity glass is permitted).
A.
Required street-facing building entrances must provide ingress and egress for residents and customers. Additional entrances off another street, pedestrian area or internal parking area are also permitted.
B.
An angled entrance may be provided at any corner of a building along the street to meet street-facing entrance requirements.
A.
Measurement.
1.
Building height is measured as the vertical distance from the average ground elevation along the exterior building wall to the highest point of the subject building. For purposes of measuring height:
a.
The average ground elevation is the mid-point between the highest and lowest ground elevations along the exterior building wall; and
b.
The highest point of the building is the coping of a flat roof, the top of a mansard roof or shed roof, or the peak of the highest gable of a gambrel or hip roof. For buildings without a roof, height is measured to the highest point of the structure.
Figure 90-19: Building Height Measurement
B.
Exceptions.
1.
Farm buildings and farm-related structures are not subject to building height limits.
2.
Chimneys, elevators, equipment penthouses, monitors, cooling towers and ventilators may exceed maximum building height limits, provided they are not intended for human occupancy and they do not extend more than twenty (20) feet above the top of the principal structure to which they are attached. This twenty-foot limit may be increased through the special exception procedures of Section 70.120.
3.
Belfries, clock towers, cupolas, domes, flag poles and spires may exceed maximum building height limits, provided they are not intended for human occupancy and they are not more than one hundred fifty (150) percent taller than the applicable height limit. This one hundred fifty (150) percent limit may be increased through the special exception procedures of Section 70.120.
A.
Fences and walls. The height of fences and walls is measured as vertical distance from the average finished grade on the inside of the fence to the top of the fence or wall. Fences atop walls or landscape features (e.g., raised beds) are measured to average finished grade at the base of the wall or landscape feature. In the case of retaining walls, average finished grade may be measured from the side of the retaining wall abutting and contacting the earth being supported. Fence posts may exceed the height of the highest connected portion of the fence by up to twelve (12) inches.
B.
Other structures. The height of structures other than buildings, fences or walls is measured as vertical distance from the average finished grade at the base of the structure to the highest point of the structure. Unless otherwise expressly stated, the height of a structure may not exceed the maximum building height allowed in the subject zoning district.
(Ord. No. 25330, § 21, 6-5-2024)
For the purpose of determining compliance with any noise limits expressed in db(A) (A-weighted decibels), the noise must be measured on the A-weighting scale on a sound level meter of standard design and quality having characteristics established by the American National Standards Institute.
For the purpose of determining compliance with standards or requirements based on building occupancy or capacity, calculations must be based on the building code.