- BUILDING TYPES AND USE CATEGORIES
This section establishes and describes the building types regulated by this zoning code.
A.
Detached house. A detached house is a principal residential building, other than a manufactured housing unit or mobile home, that contains only one dwelling unit and that is located on a single lot that is not occupied by other principal residential buildings. Detached houses are not attached to and do not abut other dwelling units. Detached houses include conventional ("stick-built") construction and construction involving modular or system-built components as long as such construction complies with city building codes. (An accessory dwelling unit, as defined by Subsection 45.031A., is not considered a detached house.)
B.
Patio house. A patio house is a principal residential building occupied by one dwelling unit and that is located on a single lot that is not occupied by other principal residential buildings. Patio houses are not attached to and do not abut other dwelling units. The building is shifted to one side of the lot so that there is a more usable side yard on one side of the house and very little or no private yard on the other side. Patio houses are subject to the same lot and building regulations that apply to detached houses except as modified by the supplemental patio house regulations of Section 40.290.
C.
Townhouse. A townhouse building is a principal residential building that is occupied by multiple dwelling units, each located on its own lot with a common or abutting wall along the dwelling units' shared lot lines. Each dwelling unit has its own external entrance. There are two (2) types of townhouses: two-unit townhouses and 3+-unit townhouses.
1.
A two-unit townhouse is a townhouse building occupied by only two (2) dwelling units.
2.
A 3+-unit townhouse is a townhouse building occupied by three (3) or more dwelling units.
D.
Cottage House Development. A cottage house development is a grouping of small detached houses around a common open space or shared courtyard. Cottage house developments are subject to lot and building regulations of the subject zoning district and the supplemental cottage house development regulations of Section 40.110.
Figure 35-4: Cottage House Development
E.
Duplex. A duplex is a principal residential building occupied by two (2) dwelling units, both of which are located on a single lot that is not occupied by other principal residential buildings. The two (2) dwelling units are attached and may be located on separate floors or side-by-side.
F.
Multi-unit house. A multi-unit house is a principal residential building that contains three (3) or four (4) dwelling units that share common walls and/or common floors/ceilings. The building is located on a single lot that is not occupied by other principal residential buildings. Multi-unit houses have the appearance of large detached houses and have only one entrance visible from the street.
G.
Apartment/Condo. An apartment/condo building is a principal residential building on a single lot that is occupied by three (3) or more dwelling units (other than a multi-unit house) that share common walls and/or common floors/ceilings.
H.
Manufactured housing unit. A manufactured housing unit is a principal residential building that complies with the National Manufactured Housing Construction and Safety Standards Act of 1974 (42 U.S.C. § 5401, et seq.). Manufactured housing units are subject to the same regulations that apply to detached houses, except as modified by supplemental regulations of Section 40.210.
I.
Manufactured housing subdivision. A manufactured housing subdivision is a residential subdivision primarily comprising home sites for manufactured housing units on individual lots. Manufactured housing subdivisions are subject to the supplemental regulations of Section 40.220.
J.
Mobile home. A mobile home is a principal residential building that is built on a permanent chassis and that complies with Standard for Mobile Homes, National Fire Protection Association (NFPA) 501, American National Standards Institute (ANSI) 119.1, in effect at the time that the unit was manufactured. Mobile homes are allowed only within mobile home parks, which are subject to the regulations of Section 40.240.
K.
Mobile home park. A mobile home park is a lot or multiple lots upon which mobile homes or manufactured housing units are available for lease or upon which spaces for mobile homes or manufactured housing units are available for lease.
L.
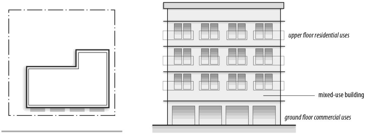
Mixed-use building, vertical. A vertical mixed-use building is a principal building occupied by one or more commercial uses on the ground floor and one or more residential dwelling units on upper floors.
Figure 35-8: Vertical Mixed-use Building
M.
Mixed-use building. A mixed-use building is a principal building occupied by one or more commercial uses and one or more residential dwelling units.
N.
Commercial building A commercial building is a principal building occupied primarily by non-residential uses.
Figure 35-9: Commercial Building
O.
Civic/Institutional building. A civic/institutional building is a principal building occupied primarily by public, civic or institutional uses.
Figure 35-10: Civic/Institutional Building
P.
Open space site. Open space sites are parcels occupied primarily by parks, open spaces, natural areas and similar large outdoor open spaces.
This section establishes and describes the use categorization system used to classify principal uses in this zoning code.
A.
Use categories. This zoning code classifies principal land uses into eight (8) major groupings (described in Section 35.030 through Section 35.100). These major groupings are referred to as "use categories." The use categories are as follows:
1.
Residential. See Section 35.030.
2.
Public, Civic and Institutional. See Section 35.040.
3.
Commercial. See Section 35.050.
4.
Wholesale, Distribution and Storage. See Section 35.060.
5.
Industrial. See Section 35.070.
6.
Recycling. See Section 35.080.
7.
Agricultural. See Section 35.090.
8.
Other. See Section 35.100.
B.
Use subcategories. Each use category is further divided into more specific "subcategories." Use subcategories classify principal land uses and activities based on common functional, product or physical characteristics, such as the type and amount of activity, the type of customers or residents, and how goods or services are sold or delivered and site conditions.
C.
Specific use types. Some use subcategories are further broken down to identify specific types of uses that are regulated differently than the subcategory as a whole.
D.
Use tables. Use tables are used in this zoning code to identify the land uses allowed within the respective zoning districts. The structure of the use tables reflects the hierarchical nature of the use categorization system described in this section.
Table 35-1: Sample Use Table Format
[1] Table notes
E.
Determination of use categories and subcategories.
1.
The development administrator or land use administrator has the authority to classify uses on the basis of the use category, subcategory and specific use type descriptions of this chapter.
2.
When a use cannot be reasonably classified into a use category, subcategory or specific use type, or appears to fit into multiple categories, subcategories or specific use types, the development administrator is authorized to determine the most similar and thus most appropriate use category, subcategory or specific use type based on the actual or projected characteristics of the principal use or activity in relationship to the use category, subcategory and specific use type descriptions provided in this chapter. In making such determinations, the development administrator must consider:
a.
The types of activities that will occur in conjunction with the use;
b.
The types of equipment and processes to be used;
c.
The existence, number and frequency of residents, customers or employees;
d.
Parking demands associated with the use; and
e.
Other factors deemed relevant to a use determination.
3.
If a use can reasonably be classified in multiple categories, subcategories or specific use types, the development administrator is authorized to categorize each use in the category, subcategory or specific use type that provides the most exact, narrowest and appropriate "fit."
This category includes uses that provide living accommodations for one or more persons. The residential use subcategories are as follows:
A.
Household living. Residential occupancy of a dwelling unit by a household. When dwelling units are rented, tenancy is arranged on a month-to-month or longer basis. Uses where tenancy may be arranged for a shorter period are not considered residential; they are considered a form of lodging.
B.
Group living. Residential occupancy of a building or any portion of a building by a group other than a household. Group living uses typically provide communal kitchen/dining facilities. Group living use types include convents, monasteries, novitiates, fraternity and sorority houses, homeless centers and the following:
1.
Assisted living center. A residential facility designed to meet housing and care needs of older persons and individuals with disabilities in a residential rather than institutional environment, while maximizing independence, choice and privacy. Assisted living programs provide personal care for persons with needs for assistance in the activities of daily living and can respond to unscheduled needs for assistance. Services typically provided include meals, housekeeping, laundry and linen service, medication monitoring, transportation and activities. Assisted living settings also typically provide features that enhance resident autonomy, such as lockable doors, full bathrooms, temperature control and single occupancy, and may provide limited cooking facilities in individual units.
2.
Community group home. A community-based group living use for elderly persons or persons with disabilities that allows independent living and that provides communal room and board, personal care, and habilitation services in a household-like environment. Community group homes for eight (8) or fewer persons are considered household living uses.
3.
Elderly/Retirement center. A residential facility designed for and principally occupied by elderly persons. Such facilities sometimes include congregate meals in a common dining area, but do not include medical or skilled nursing care, as distinguished from life care retirement centers.
4.
Emergency and protective shelter. A residential use that provides room and board for a continuous period of no more than thirty (30) consecutive days for adults or children who have been abused, displaced or are transient. Such uses provide protection services and typically provide counseling and pre-placement screening services as well.
5.
Life care retirement center. A residential facility designed for and principally occupied by elderly persons in a planned retirement community that includes a residential complex, an activity or community center and a medical or skilled nursing care facility licensed by the State of Oklahoma as an intermediate care facility or a skilled nursing center.
6.
Re-entry facility. A facility operated by the city, the state, the federal government or a private party under contract with the city, the state or the federal government and used for rehabilitation and overnight accommodation of individuals, including staff, who are (a) under the jurisdiction of a court, but not under confinement, or (b) individuals recently released from the jurisdiction of a court. Re-entry facilities are operated for the purpose of providing treatment or rehabilitation intended to assist such individuals with their re-entry into the community.
7.
Residential treatment center. A community-based residential facility that provides diagnostic or therapeutic services, counseling, or treatment and long-term room and board in a highly structured environment for persons receiving active treatment for alcoholism, drug abuse or behavioral disorders.
8.
Rooming and boarding house. A residential use that provides congregate meals and lodging and that is not otherwise classified as another form of group living use or lodging use.
9.
Transitional living center. A community-based residential facility that provides room and board, a supervised living environment, counseling and rehabilitation services for persons with a history of juvenile delinquency, behavioral disorders, alcoholism or drug abuse for a continuous period of no more than one hundred twenty (120) consecutive days.
This category includes public, quasi-public and private uses that provide unique services that are of benefit to the public at-large. The public, civic and institutional subcategories are as follows:
A.
Airport or ground transportation terminal. Facilities from which FAA-certified aircraft take off, land and operate, including customary accessory uses and structures. Also includes passenger ticketing, loading and unloading facilities for buses (local or intercity) and trains.
B.
Cemetery. Land or structures used for burial or permanent storage of the dead or their cremated remains. Typical uses include cemeteries and mausoleums. Also includes pet cemeteries.
C.
College or university. Institutions of higher learning that offer courses of general or specialized study and are authorized to grant academic degrees. The college or university use subcategory includes classrooms and instructional spaces, as well as on-campus residence halls, fraternity and sorority houses, administrative buildings, auditoriums and other on-campus uses and facilities that provide customary accessory and support functions for college or university uses.
D.
Day Care.
1.
Child Care Center. Uses providing care and supervision for children or adults for a fee on a regular basis away from their primary residence for less than twenty-four (24) hours per day. Uses providing care and supervision for children or adults for twenty-four (24) hours per day or longer are classified as group living uses. Child care centers in residential districts are subject to the same lot and building regulations that apply to detached houses, except as modified by supplemental regulations of Section 40.120-A.
2.
Family Child Care Home. A day care that provides care and supervision for twelve (12) or fewer children for less than twenty-four (24) hours per day. Family child care homes may be a principal use or accessory to an allowed household living use. Family child care homes are subject to the same lot and building regulations that apply to detached houses, except as modified by the supplemental regulations of Section 40.120-B.
E.
Detention and correctional facility. An institution operated by the city, the state, the federal government or a private party under contract with the city, the state or the federal government for the confinement and punishment and treatment or rehabilitation of offenders under the jurisdiction of a court.
F.
Fraternal organization. The use of a building or lot by a not-for-profit organization that restricts access to its facility to bona fide, annual dues-paying members and their occasional guests and where the primary activity is a service not carried on as a business enterprise.
G.
Governmental service or similar functions. Local, state or federal governmental services or similar functions, that are not otherwise classified. Typical uses include health departments, courthouses, soup/food kitchens, and food pantries.
H.
Hospital. Uses providing medical or surgical care to patients and offering inpatient (overnight) care.
I.
Library or cultural exhibit. Museum-like preservation and exhibition of objects in one or more of the arts and sciences, gallery exhibition of works of art or library collections of books, manuscripts and similar materials for study and reading. Includes aquariums and planetariums.
J.
Natural resource preservation. Undeveloped land left in a natural state for specific use as visual open space or environmental purposes. Typical uses include wildlife or nature preserves, arboretums, flood management projects and reservoirs.
K.
Parks and recreation. Recreational, social or multi-purpose uses associated with public parks and open spaces, including playgrounds, playfields, play courts, community centers and other facilities typically associated with public parks and open space areas. Also includes public and private golf courses and tennis clubs.
L.
Postal service. Facilities operated by the U.S. Postal Service, including post offices and mail sorting and distribution facilities.
M.
Religious assembly. Religious services involving public assembly that customarily occur in churches, synagogues, temples, mosques and other facilities used for religious worship.
N.
Safety service. Establishments that provide fire, police or life protection, together with the incidental storage and maintenance of necessary vehicles. Typical uses include fire stations, police stations, ambulance services and storm or civil defense shelters.
O.
School. Public and private schools at the primary, elementary, middle school or high school level that provide basic, compulsory education.
P.
Utilities and public service facility, minor. Infrastructure services that need to be located in or close to the area where the service is provided. Minor utilities and public service facilities generally do not have regular employees at the site and typically have few if any impacts on surrounding areas. Typical uses include water and sewer pump stations; gas regulating stations; underground electric distribution substations; electric transformers; water conveyance systems; stormwater facilities and conveyance systems; telephone switching equipment and emergency communication warning/broadcast facilities.
1.
The production, collection or distribution of renewable energy, water, organic waste, or other similar resources at a neighborhood, district or campus scale are classified as minor utilities and public service facilities. This includes distributed energy facilities that produce or distribute energy from renewable sources; neighborhood composting areas and neighborhood stormwater facilities.
2.
District-, neighborhood- or campus-scale systems that produce or distribute energy from the biological breakdown of organic matter produced within the subject neighborhood or campus are also considered minor utilities and public service facilities.
3.
Energy production systems that generate energy from the byproducts of the principal use are considered accessory uses, including net metered installations and installations that generate power to sell at wholesale to the power grid.
Q.
Utilities and public service facility, major. Infrastructure services that typically have substantial visual or operational impacts on nearby areas. Typical uses include but are not limited to water and wastewater treatment facilities, high-voltage electric substations, utility-scale power generation facilities (including wind, solar and other renewable and nonrenewable energy sources), sanitary landfills and utility-scale water storage facilities, such as water towers and reservoirs.
R.
Wireless communication facility. Towers, antennas, equipment, equipment buildings and other facilities used in the provision of wireless communication services. The following are wireless communication facility specific use types:
1.
Freestanding towers. A structure intended to support equipment that is used to transmit and/or receive telecommunications signals, including monopoles and guyed and lattice construction steel structures.
2.
Building or tower-mounted antennas. The physical device that is attached to a freestanding tower, building or other structure, through which electromagnetic, wireless telecommunications signals authorized by the Federal Communications Commission are transmitted or received.
(Ord. No. 24382, § 3, 6-10-2020; Ord. No. 25092, § 3, 7-26-2023; Ord. No. 25192, § 8, 12-6-2023)
The commercial use category includes uses that provide a business service or involve the selling, leasing or renting of merchandise to the general public. The commercial use subcategories are as follows:
A.
Animal service. Uses that provide goods and services for care of animals, including the following specific use types:
1.
Grooming. Grooming of dogs, cats and similar small animals, including dog bathing and clipping salons and pet grooming shops.
2.
Boarding or shelter. Animal shelters, care services and kennel services for dogs, cats and small animals, including boarding kennels, pet resorts/hotels, pet adoption centers, dog training centers, animal rescue shelters and zoos and animal sanctuaries.
3.
Veterinary. Animal hospitals and veterinary clinics.
B.
Assembly and entertainment. Uses that provide gathering places for participant or spectator recreation, entertainment or other assembly activities. Assembly and entertainment uses may provide incidental food or beverage service. Typical uses include gun clubs, shooting ranges, health clubs, gymnasiums, riding stables and academies, banquet halls, entertainment centers, event centers, billiard centers, bowling centers, cinemas, go-cart tracks, laser tag, paintball, miniature golf courses, stadiums, arenas, video arcades, race tracks, fairgrounds, rodeo grounds, water parks, amusement parks, food truck courts, and live theaters. Outdoor seating and dining areas that exceed fifty (50) percent of the indoor floor area of the subject principal use (e.g., bar, restaurant or indoor assembly and entertainment use) are regulated as an outdoor assembly and entertainment use.
C.
Broadcast or recording studio. Uses that provide for audio or video production, recording or broadcasting.
D.
Commercial service. Uses that provide for consumer or business services and for the repair and maintenance of a wide variety of products. Specific commercial service use types include the following:
1.
Building service. Uses that provide maintenance and repair services for all structural and mechanical elements of structures, as well as the exterior spaces of premises. Typical uses include janitorial, landscape maintenance, carpet cleaning, chimney sweeps, extermination, plumbing, electrical, HVAC, roofing, window cleaning and similar services.
2.
Business support service. Uses that provide personnel services, printing, copying, package (delivery) drop-off, photographic services or communication services to businesses or consumers. Typical uses include employment agencies, day labor hiring services, armored car services, copy and print shops, delivery/courier service drop-off location for consumers, caterers, telephone answering services and photo developing labs.
3.
Consumer maintenance and repair service. Uses that provide maintenance, cleaning and repair services for consumer goods on a site other than that of the customer (i.e., customers bring goods to the site of the repair/maintenance business). Typical uses include laundry and dry cleaning pick-up shops, tailors, taxidermists, dressmakers, shoe repair, picture framing shops, gunsmiths, locksmiths, vacuum repair shops, electronics repair shops and similar establishments. Business that offer repair and maintenance service for large equipment or technicians who visit customers' homes or places of business are classified as a "building service."
4.
Personal improvement service. Uses that provide personal grooming, cosmetic or health and well-being-related services. Typical uses include barbers, hair and nail salons, tanning salons, day spas, and body art services.
5.
Research service. Uses engaged in scientific research and testing services leading to the development of new products and processes. Such uses resemble office buildings or campuses and do not involve the mass production, distribution or sale of products. Research services do not produce odors, dust, noise, vibration or other external impacts that are detectable beyond the property lines of the subject property. Includes medical marijuana testing laboratories, and medical marijuana research facilities, as licensed by the Oklahoma Medical Marijuana Authority, in accordance with the terms of such license.
E.
Financial service. Uses related to the exchange, lending, borrowing and safe-keeping of money. Automatic teller machines, kiosks and similar facilities that do not have on-site employees or amplified sound are not classified as financial service uses if they meet the criteria for classification as an accessory use (see Subsection 45.010B.). Specific financial service use types are banks, credit unions, and the following types of personal credit establishments:
1.
Check cashing. An establishment that:
a.
Is not a bank or financial lending institution subject to federal or state regulation;
b.
Charges a fee to cash a check or have a check processed; and
c.
Provides such services to the public.
2.
Pawnshop. An establishment that is engaged to any extent in any of the following business or activities:
a.
The lending of money on the deposit or pledge of personal property, other than choses in action, securities or written evidence of indebtedness;
b.
The purchase of personal property either from an individual, another pawn business or any other business with an expressed or implied agreement or understanding to offer the property for sale to the public, and if that sale is unsuccessful, then to sell it back to the previous owner at a subsequent time at a stipulated price or negotiated price;
c.
The purchase of precious metals with the intent to melt down, provided that such activity is not clearly incidental to the principal use of the establishment; or
d.
The lending of money upon personal property, goods, wares, or merchandise pledged, stored or deposited as collateral security.
3.
Payday lender. An establishment that is substantially in the business of negotiating, arranging, aiding, or assisting a consumer in procuring payday loans.
4.
Bail bond. A use that provides surety and pledged money or property as bail for the appearance of persons accused in court.
F.
Funeral and mortuary service. Uses that provide services related to the death of a human or domestic, household pet, including funeral homes and mortuaries. Funeral and mortuary services may include crematoriums as an accessory use. Other crematoriums and animal rendering uses are classified as moderate-impact manufacturing and industry.
G.
Lodging. Uses that provide temporary lodging for less than thirty (30) days where rents are charged by the day or by the week. Lodging uses sometimes provide food or entertainment, primarily to registered guests. Examples of specific lodging use types include:
1.
Bed and Breakfast. An establishment in which the owner/operator offers overnight accommodations to guests for compensation. A bed and breakfast may serve meals to guests subject to the supplemental use regulations; a bed and breakfast may be rented for on-site events.
2.
Hotel/Motel. An establishment, other than a bed and breakfast, short-term rental or rural retreat, in which temporary lodging is offered for compensation. A hotel/motel use may include an accessory bar.
3.
Recreational Vehicle Park/Campground. An establishment that provides temporary overnight accommodations for camping in recreational vehicles or tents.
4.
Rural Retreat. An establishment that is part of a working farm or ranch that provides temporary overnight accommodations for individuals or groups engaged in supervised training or personal improvement activities. Examples include corporate retreat facilities, educational facilities and dude ranches or working farm learning centers.
5.
Short-Term Rental. A dwelling unit, which is not the primary residence of a household, or a portion thereof, in which temporary lodging is offered for compensation. A short-term rental is limited to a maximum occupancy of eight (8) persons at any one time. Short-Term Rentals can be principal or accessory uses. Accessory use short-term rentals are defined in Section 45.185.
H.
Marina. Facilities that provide moorage, launching, storage, fueling, supplies and services (other than repair) commonly associated with storing, maintaining and operating recreational and commercial watercraft.
I.
Office. Uses in an enclosed building, customarily performed in an office, that focus on providing executive, management, administrative, professional or medical services. Specific office use types include the following:
1.
Business and professional office. Office uses that are not medical, dental, health practitioner offices or plasma centers. Examples include corporate office, law offices, architectural firms, insurance companies and other executive, management or administrative offices for businesses and corporations. Also included are union halls that offer only office and meeting space and insurance claims adjusters/estimators with no more than one vehicle inspection bay and no on-site repair facilities.
2.
Medical, dental and health practitioner office. Office uses related to diagnosis and treatment of human patients' illnesses, injuries and physical maladies that can be performed in an office setting with no overnight care. Typical uses include offices of physicians, dentists, psychiatrists, psychologists, chiropractors and practitioners of massage therapy. Surgical, rehabilitation and other medical centers that do not involve overnight patient stays are included in this use subcategory, as are medical and dental laboratories, unless otherwise expressly indicated. Ancillary sales of medications and medical products are allowed in association with a medical, dental or health practitioner office.
3.
Plasma center. An establishment primarily involved in the collection of human blood plasma from plasma donors.
J.
Parking, non-accessory. Parking that is not provided to comply with minimum off-street parking requirements or that is not provided exclusively to serve occupants of or visitors to a particular use, but rather is available to the public at-large. A parking facility that provides both accessory and non-accessory parking will be classified as non-accessory parking if it leases twenty-five (25) percent or more of its spaces to non-occupants of or persons other than visitors to a particular use. Specific non-accessory parking use types include the following:
1.
Surface parking, non-accessory. A non-accessory parking lot.
2.
Structured parking, non-accessory. A non-accessory parking garage.
K.
Restaurants and bars.
1.
Bar. Uses that cater primarily to adults, 21 years of age and older and that sell and serve alcoholic beverages as their principal business. Specific bar use types include bars, taverns, beer bars, brewpubs, nightclubs, pool halls, dance halls, hookah lounges, and similar establishments. See also the definition of accessory use bar in Section 95.040.
a.
Hookah lounge. An establishment whose business operation, whether as a principal use or as an accessory use, includes the smoking of tobacco or other substances through one or more hookah pipes (also commonly referred to as a hookah, waterpipe, shisha or narghile), including but not limited to establishments known variously as hookah bars, hookah parlors or hookah cafés.
b.
Brewpub. An establishment where beer and malt beverages are made on the premises in conjunction with a restaurant and/or bar and where (1) less than five thousand (5,000) barrels (one hundred fifty-five thousand (155,000) gallons) of beer and malt beverages are produced per calendar year and (2) at least thirty-three (33) percent of the beer and malt beverages produced on site are sold on site. Where allowed by law, brewpubs may sell beer and malt beverages "to go" and/or distribute to off-site accounts.
2.
Restaurant. An establishment that serves food or beverages for on- or off-premise consumption as its principal business. The preparation and processing of food or beverages to be served or sold on-site directly to consumers is permitted as an accessory use to a restaurant, including on-site coffee roasting with a maximum roasting capacity of forty-five (45) kilograms per batch. Typical examples of restaurant uses include principal use restaurants, cafés, cafeterias, ice cream/yogurt shops, donut shops and coffee shops.
a.
Principal use restaurant. A restaurant that employs at least one full-time cook, has a menu, a fully equipped kitchen for cooking and preparation of meals and in which dining, kitchen and non-service areas occupy at least seventy-five (75) percent of the floor area of the business. A principal use restaurant may include an accessory use bar, but any bar area that does not meet the definition of an accessory use bar (Section 95.040) is classified and regulated as a bar.
3.
Outdoor seating and dining areas. Outdoor seating and dining areas that exceed fifty (50) percent of the indoor floor area of the subject bar or restaurant are regulated as an outdoor assembly and entertainment use.
L.
Retail sales. Uses involving the sale, lease or rental of new or used goods to the ultimate consumer. Specific retail use types include the following:
1.
Convenience goods. Retail sales uses that sell or otherwise provide (1) sundry goods; (2) products for personal grooming and for the day-to-day maintenance of personal health; or (3) food or beverages for off-premise consumption, retail bakeries and similar uses that provide incidental and accessory food and beverage service as part of their primary retail sales business. Typical uses include convenience stores, drug stores, specialty food stores, package stores, gift shops, newsstands, florists and tobacco stores. Does not include small box discount stores or grocery stores.
2.
Consumer shopping goods. Retail sales uses that sell or otherwise provide wearing apparel, fashion accessories, furniture, household appliances and similar consumer goods, large and small, functional and decorative, for use, entertainment, comfort or aesthetics. Typical uses include clothing stores, department stores, appliance stores, TV and electronics stores, bike shops, book stores, costume rental stores, stationery stores, art galleries, hobby shops, furniture stores, pet stores and pet supply stores, shoe stores, antique shops, secondhand stores, record stores, toy stores, sporting goods stores, variety stores, video stores, musical instrument stores, medical supplies, office supplies and office furnishing stores and wig shops. Does not include small box discount stores, grocery stores or medical marijuana dispensaries.
3.
Building supplies and equipment. Retail sales uses that sell or otherwise provide goods to repair, maintain or visually enhance a structure or premises. Typical uses include hardware stores, home improvement stores, paint and wallpaper supply stores and garden supply stores.
4.
Small box discount store. Retail sales uses with floor area less than twelve thousand (12,000) square feet that offer for sale a combination and variety of convenience shopping goods and consumer shopping goods; and continuously offer a majority of the items in their inventory for sale at a price less than ten dollars ($10.00) per item. Does not include medical marijuana dispensaries.
5.
Grocery store. Retail sales uses that sell or otherwise provide assorted goods; products for personal grooming and for the day-to-day maintenance of personal health; and that sell food and beverages for off-premise consumption; and that have a minimum floor area of five hundred (500) square feet dedicated to the sale of fresh meat, fruits and vegetables. A principal use grocery store may include an accessory use restaurant or dining area for on-premise consumption of food and beverage items. Does not include medical marijuana dispensaries.
6.
Medical Marijuana Dispensary. Retail sales uses that sell or otherwise provide medical marijuana or medical marijuana products by the holder of a medical marijuana dispensary license issued by the Oklahoma Medical Marijuana Authority, in accordance with the terms of such license, which may be sold or provided only to the holder of a medical marijuana patient or caregiver license.
M.
Self-service storage facility. An enclosed use that provides separate, small-scale, self-service storage facilities leased or rented to individuals or small businesses. Facilities are designed and used to accommodate only interior access to storage lockers or drive-up access only from regular size passenger vehicles and two-axle non-commercial vehicles.
N.
Sexually oriented business establishment. Sexually oriented business establishments include all of the following:
1.
Adult amusement or entertainment. Amusement or entertainment that is distinguished or characterized by an emphasis on acts or material depicting, describing or relating to sexual conduct or specified anatomical areas, including but not limited to topless or bottomless dancers, exotic dancers, strippers, male or female impersonators or similar entertainment.
2.
Adult bookstore. An establishment wherein ten (10) percent or more of its display area consists of books, films, videos, magazines, periodicals, games, novelties or other materials that are distinguished or characterized by an emphasis on depicting or describing sexual conduct or specified anatomical areas (referred to in this section as "sexually oriented materials"). As used in this definition of "adult bookstore," "display area" is measured as follows:
a.
For bookshelves, magazine racks and similar display devices, display area is calculated by multiplying the length times the width of such devices. If sexually oriented materials are mixed with non-sexually oriented materials in or on such devices, the entire device is considered as consisting of sexually oriented materials.
b.
For table tops, counters, display cases and similar display devices, display area is calculated by multiplying the length times the width of each surface on which merchandise is displayed. If sexually oriented materials are mixed with non-sexually oriented materials on such surfaces, the entire surface is considered as consisting of sexually oriented materials.
c.
For walls, display area is the area of the wall enclosed by the smallest imaginary rectangle that contains each item.
d.
The display area of merchandise hanging or suspended from the ceiling is calculated by multiplying the item's length or width, whichever is longer, times the item's height.
3.
Adult mini motion picture theater. An enclosed building with a capacity of fewer than fifty (50) persons used for presenting material distinguished or characterized by an emphasis on depicting or describing sexual conduct or specified anatomical areas.
4.
Adult motel. A motel in which material is presented, as part of the motel services, via closed circuit TV or otherwise, that is distinguished or characterized by an emphasis on depicting or describing sexual conduct or specified anatomical areas.
5.
Adult motion picture arcade. Any place to which the public is permitted or invited wherein coin or slug operated or electronically, electrically or mechanically controlled, still or motion picture machines, projectors, or other image producing devices are maintained to show images to five (5) or fewer persons per machine at any one time, and where the images so displayed are distinguished or characterized by an emphasis on depicting or describing sexual conduct or specified anatomical areas.
6.
Adult motion picture theater. An enclosed building with a capacity of fifty (50) or more persons used for presenting material distinguished or characterized by an emphasis on depicting or describing sexual conduct or specified anatomical areas.
7.
Massage parlor. Any place where for any form of consideration or gratuity, massage, alcohol rub, administration of fomentations, electric or magnetic treatments, or any other treatment or manipulation of the human body occurs as part of or in connection with sexual conduct or where any person providing such treatment, manipulation or service related thereto exposes specified anatomical areas.
8.
Model studio. Any place other than public park, museum or university or college art classes where, for any form of consideration or gratuity, figure models who display specified anatomical areas are provided to be observed, sketched, drawn, painted, sculptured, photographed, or similarly depicted by persons paying such consideration or gratuity.
9.
Sexual encounter center. Any building or structure that contains, or is used for commercial entertainment where the patron directly or indirectly is charged a fee to engage in personal contact with or to allow personal contact by, employees, devices or equipment or by personnel provided by the establishment that appeals to the prurient interest of the patron, to include, but not to be limited to bath houses, massage parlors, and related or similar activities.
O.
Studio, artist or instructional service. Uses in an enclosed building that focus on providing individual or small group instruction or training in fine arts, music, dance, drama, fitness, language or similar activities. Also includes dance studios, ballet academies, yoga studios, martial arts instruction, tutoring, artist studios and photography studios.
P.
Trade school. Uses in an enclosed building that focus on teaching the skills needed to perform a particular job. Examples include schools of cosmetology, modeling academies, computer training facilities, vocational schools, administrative business training facilities and similar uses. Licensed medical marijuana education facilities are expressly included. Truck driving schools are classified as "trucking and transportation terminals" (wholesale, distribution and storage use category).
Q.
Vehicle sales and service. Uses that provide for the sale, rental, maintenance or repair of new or used vehicles and vehicular equipment. The vehicle sales and service subcategory includes the following specific use types:
1.
Commercial vehicle repair and maintenance. Uses, excluding vehicle paint finishing shops, that repair, install or maintain the mechanical components or the bodies of large trucks, mass transit vehicles, large construction or agricultural equipment, aircraft or similar large vehicles and vehicular equipment. Includes truck stops and fleet vehicle fueling facilities, which may dispense conventional vehicle fuels and/or alternative vehicle fuels.
2.
Commercial vehicle sales and rentals. Uses that provide for the sale or rental of large trucks, moving equipment (e.g., U-haul and Ryder) construction or agricultural equipment, aircraft, or similar large vehicles and vehicular equipment.
3.
Fueling station (for personal, consumer vehicles). Uses engaged in retail sales of vehicle fuels for personal vehicles, other than fleet fueling facilities and truck stops. (Note: Fleet vehicle fueling facilities and truck stops are part of the "Commercial Vehicle Repair and Maintenance" specific use type). Fueling stations may dispense conventional vehicle fuels and/or alternative vehicle fuels.
4.
Personal vehicle repair and maintenance. Uses that repair, install or maintain the mechanical components of automobiles, small trucks or vans, motorcycles, motor homes or recreational vehicles including recreational boats or that wash, clean or otherwise protect the exterior or interior surfaces of these vehicles.
5.
Personal vehicle sales and rentals. Uses that provide for the sale or rental of new or used autos, small trucks or vans, trailers, motorcycles, motor homes or recreational vehicles including recreational watercraft. Typical examples include automobile dealers, auto malls, car rental agencies. Car-share vehicles that are parked or stored when not being used by members of a car-share program are not regulated as personal vehicle sales and rental uses, but are instead considered accessory parking.
6.
Vehicle equipment and supplies sales and rentals. Uses related to the sale, lease or rental of new or used parts, tools or supplies for the purpose of repairing or maintaining motor vehicles.
7.
Vehicle body and paint finishing shop. Uses that primarily conduct motor vehicle body work and repairs or that apply paint to the exterior or interior surfaces of motor vehicles by spraying, dipping, flow-coating or other similar means.
R.
Farmers market. A designated area in which farmers, growers or producers gather on a regularly scheduled basis to sell at retail non-hazardous farm food products to the public. Farm food products are grown or raised on a farm, including but not limited to, vegetables, mushrooms, herbs, nuts, shell eggs, honey or other bee products, flowers, nursery stock, livestock food products and fish. A portion of the raw food ingredients used by the individual vendor to produce a product must have been grown or raised by the vendor. Farmers markets must have written operational guidelines and a minimum of six (6) vendors along with a designated market manager or advisory board who will be responsible for distribution of a copy of the guidelines to the vendors. Farmers markets must be registered with the Oklahoma Department of Agriculture, Food and Forestry. This definition does not include individual farmers who grow and sell unprocessed fruit and/or vegetables from the farm, roadside or truck. Farmers markets may be located inside a building or outdoors using permanent shelters or tents that can be placed and removed on the subject site when the market is not operating.
(Ord. No. 24328, § 5, 3-11-2020; Ord. No. 25330, §§ 4—6, 6-5-2024; Ord. No. 25604, § 8, 6-18-2025)
This category includes uses that provide and distribute goods in large quantities, principally to retail sales, commercial services or industrial establishments. Long-term and short-term storage of supplies, equipment, commercial goods and personal items is included. The wholesale, distribution and storage subcategories are as follows:
A.
Equipment and materials storage, outdoor. Uses related to outdoor storage of equipment, products or materials, whether or not stored in containers.
B.
Trucking and transportation terminals. Uses engaged in the dispatching and long-term or short-term storage of trucks, buses and other vehicles, including parcel service delivery vehicles, taxis and limousines. Minor repair and maintenance of vehicles stored on the premises is also included. Includes uses engaged in the moving of household or office furniture, appliances and equipment from one location to another, including the temporary on-site storage of those items.
C.
Warehouse. Uses conducted within a completely enclosed building that are engaged in long-term and short-term storage of goods and that do not meet the definition of a "self-service storage facility" or a "trucking and transportation terminal."
D.
Wholesale sales and distribution. Uses engaged in the wholesale sales, bulk storage and distribution of goods. Such uses may also include incidental retail sales and wholesale showrooms. Expressly includes the following uses: bottled gas and fuel oil sales, flea markets, ice distribution centers, monument sales, portable storage building sales, vending machine sales, auctioneers, and frozen food lockers. Includes uses engaged in the transportation and distribution of medical marijuana products to and from the licensed premises of commercial medical marijuana licensees.
(Ord. No. 25330, §§ 4—7, 6-5-24)
This category includes uses that produce goods from extracted and raw materials or from recyclable or previously prepared materials, including the design, storage and handling of these products and the materials from which they are produced. The industrial subcategories are:
A.
Low-impact manufacturing and industry. Manufacturing and industrial uses that do not, as part of their normal operations, generate noticeable off-site impacts in terms of noise, smoke, particulate matter, odors, or vibration. Typical examples of low-impact manufacturing and industrial uses include: commercial laundries and linen supply services, apparel manufacturing, bakery products manufacturing, production of medical marijuana products, such as edibles and pre-rolls, using medical marijuana components processed elsewhere, bottling plants, ice manufacturing, mattress manufacturing and assembly, microbreweries, micro distilleries, coffee roasting with a maximum roasting capacity of 45 kilograms per batch, musical instrument and parts manufacturing, newspaper printing and binderies.
1.
Microbrewery. An establishment in which beer or malt beverages are made on the premises and then sold or distributed, and which produces less than fifteen thousand (15,000) barrels (four hundred sixty-five thousand (465,000) gallons) of beer and malt beverages per calendar year. Where allowed by law, microbreweries may include tasting rooms and direct sales to consumers in addition to other methods of distribution.
2.
Micro distillery. A distillery producing distilled spirits in total quantity of no more than forty thousand (40,000) proof gallons per calendar year. Where allowed by law, micro distilleries may include tasting rooms and direct sales to consumers in addition to other methods of distribution.
3.
Low-impact medical marijuana processor. A medical marijuana processor issued a nonhazardous processor license by the Oklahoma Medical Marijuana Authority.
B.
Moderate-impact manufacturing and industry. Manufacturing and industrial uses that, as part of their normal operations, generate noticeable off-site impacts in terms of noise, smoke, particulate matter, odors, or vibration. Typical examples of moderate-impact manufacturing and industrial uses include: large breweries, distilleries and alcohol manufacturing (other than micro distilleries), coffee roasting with a roasting capacity of more than forty-five (45) kilograms per batch, medical marijuana waste disposal facilities, dairy products manufacturing, foundries, chrome plating, crematoriums and animal rendering plants, electroplating, fiberglass manufacturing, flour mills and paper products manufacturing.
1.
Large brewery. An establishment where beer or malt beverages are made on the premises at an annual production rate of over fifteen thousand (15,000) barrels (four hundred sixty-five thousand (465,000) gallons). Large breweries may include tasting rooms.
2.
Medical marijuana waste disposal facility. A facility issued a medical marijuana waste disposal facility license by the Oklahoma Medical Marijuana Authority.
C.
High-impact manufacturing and industry. Manufacturing and industrial uses that regularly use hazardous chemicals or procedures or that produce hazardous byproducts or explosive hazards. Typical examples of high-impact manufacturing and industrial uses include: the manufacture of acetylene, cement, lime, gypsum or plaster-of-Paris, chlorine, corrosive acid or fertilizer, insecticides, disinfectants, poisons, explosives, paint, lacquer, varnish, petroleum products, coal products, plastic and synthetic resins and radioactive materials. This subcategory also includes petrochemical tank farms, gasification plants, smelting, animal slaughtering, oil refining, asphalt and concrete (batch) plants and tanneries.
1.
High-impact medical marijuana processing facility. An establishment in which the preparation, manufacture, processing or packaging of medical marijuana products by the holder of a hazardous medical marijuana processor license issued by the Oklahoma Medical Marijuana Authority is conducted, in accordance with the terms of such license, and in which extraction processes include the use of flammable substances such as butane, propane, ethanol and alcohol.
D.
Junk or salvage yard. An open area where waste, scrap, used or second-hand materials are bought, sold, exchanged, stored, baled, packed, disassembled, crushed, processed, or handled for reclamation, disposal or other similar purposes, including but not limited to scrap iron and other metals, paper, rags, rubber tires and bottles.
E.
Mining or mineral processing. The extraction or quarrying of coal, ores, stone, minerals, top soil or aggregate resources from the ground. Examples include quarrying or dredging for sand, gravel or other aggregate materials; mining and top soil extraction. Also includes crushing, washing and grading coal, ore, stone, sand, gravel, minerals, top soil or aggregate resources and manufacture of Portland cement.
(Ord. No. 25330, §§ 8—11, 6-5-2024)
This category includes uses that collect, store or process recyclable material for the purpose of marketing or reusing the material in the manufacturing of new, reused or reconstituted products. The recycling use subcategories are as follows:
A.
Construction or demolition debris. Establishments that receive and process general construction or demolition debris for recycling.
B.
Consumer material drop-off station. An establishment that (1) accepts consumer recyclable commodities directly from the consuming party; (2) is staffed by personnel on site for a minimum of twenty (20) hours per week; and (3) stores materials temporarily before transferring them to recyclable material processing facilities. Establishments that process recyclable material are classified as "consumer material processing" establishments. (Note: Accessory use dumpsters and recyclable material bins/donation bins are subject to the regulations of Sections 45.050 and 45.051.)
C.
Consumer material processing. Establishments that receive and process consumer recyclable commodities for subsequent use in the secondary market.
(Ord. No. 24279, § 1, 12-11-2019)
This category includes uses such as gardens, farms and orchards that involve the raising and harvesting of food and non-food crops and the raising of farm animals. The agricultural subcategories are:
A.
Animal husbandry. Uses that involve the feeding, housing and care of farm animals for private or commercial purposes.
B.
Community garden. An area less than one acre in area that is managed and maintained by an individual, group or business entity to grow and harvest food crops or non-food crops (e.g., flowers). A community garden area may be divided into separate garden plots or orchard areas for cultivation by one or more individuals or may be farmed collectively by members of the group. Community gardens may be principal or accessory uses.
C.
Farm, market or community-supported. An area managed and maintained by an individual, group or business entity to grow and harvest food crops or non-food crops (e.g., flowers) for sale or distribution. Farms may be principal or accessory uses and may be located on a roof or within a building.
D.
Horticulture nursery. A use involving propagation and growth of trees or plants in containers or in the ground for wholesale or retail sales and distribution. Does not include on-site retail sales unless such sales are otherwise allowed in the subject zoning district.
1.
Medical marijuana grower operation. Uses involving the growing, harvesting and packaging of medical marijuana by the holder of a medical marijuana grower license issued by the Oklahoma Medical Marijuana Authority, in accordance with the terms of such license. Does not include retail sales.
(Ord. No. 25330, § 12, 6-5-2024)
This category includes uses that do not fit the other use categories.
A.
Drive-in or drive-through facility. Any use with drive-through windows or drive-through lanes or that otherwise offer service to the occupants of motor vehicles. Typical uses include drive-through restaurants, drive-through pharmacies, drive-in restaurants and drive-in cinemas. Automatic teller machine kiosks and similar drop-off or pick-up facilities that do not have on-site employees or amplified sound are not classified as drive-in or drive-through facilities if they meet the criteria for classification as an accessory use (see Subsection 45.010B.).
B.
Off-premise outdoor advertising sign. A sign that directs attention to a business, commodity, service, or activity that is conducted, sold or offered elsewhere than upon the lot where the subject sign is located.
C.
Oil or gas well. Any hole or bore, of any depth, for the purpose of producing and recovering oil, gas, or other hydrocarbon substances or for the injection or disposal of any oil, gas, or other hydrocarbon substances. See also Title 42A of the Tulsa Revised Ordinances.
- BUILDING TYPES AND USE CATEGORIES
This section establishes and describes the building types regulated by this zoning code.
A.
Detached house. A detached house is a principal residential building, other than a manufactured housing unit or mobile home, that contains only one dwelling unit and that is located on a single lot that is not occupied by other principal residential buildings. Detached houses are not attached to and do not abut other dwelling units. Detached houses include conventional ("stick-built") construction and construction involving modular or system-built components as long as such construction complies with city building codes. (An accessory dwelling unit, as defined by Subsection 45.031A., is not considered a detached house.)
B.
Patio house. A patio house is a principal residential building occupied by one dwelling unit and that is located on a single lot that is not occupied by other principal residential buildings. Patio houses are not attached to and do not abut other dwelling units. The building is shifted to one side of the lot so that there is a more usable side yard on one side of the house and very little or no private yard on the other side. Patio houses are subject to the same lot and building regulations that apply to detached houses except as modified by the supplemental patio house regulations of Section 40.290.
C.
Townhouse. A townhouse building is a principal residential building that is occupied by multiple dwelling units, each located on its own lot with a common or abutting wall along the dwelling units' shared lot lines. Each dwelling unit has its own external entrance. There are two (2) types of townhouses: two-unit townhouses and 3+-unit townhouses.
1.
A two-unit townhouse is a townhouse building occupied by only two (2) dwelling units.
2.
A 3+-unit townhouse is a townhouse building occupied by three (3) or more dwelling units.
D.
Cottage House Development. A cottage house development is a grouping of small detached houses around a common open space or shared courtyard. Cottage house developments are subject to lot and building regulations of the subject zoning district and the supplemental cottage house development regulations of Section 40.110.
Figure 35-4: Cottage House Development
E.
Duplex. A duplex is a principal residential building occupied by two (2) dwelling units, both of which are located on a single lot that is not occupied by other principal residential buildings. The two (2) dwelling units are attached and may be located on separate floors or side-by-side.
F.
Multi-unit house. A multi-unit house is a principal residential building that contains three (3) or four (4) dwelling units that share common walls and/or common floors/ceilings. The building is located on a single lot that is not occupied by other principal residential buildings. Multi-unit houses have the appearance of large detached houses and have only one entrance visible from the street.
G.
Apartment/Condo. An apartment/condo building is a principal residential building on a single lot that is occupied by three (3) or more dwelling units (other than a multi-unit house) that share common walls and/or common floors/ceilings.
H.
Manufactured housing unit. A manufactured housing unit is a principal residential building that complies with the National Manufactured Housing Construction and Safety Standards Act of 1974 (42 U.S.C. § 5401, et seq.). Manufactured housing units are subject to the same regulations that apply to detached houses, except as modified by supplemental regulations of Section 40.210.
I.
Manufactured housing subdivision. A manufactured housing subdivision is a residential subdivision primarily comprising home sites for manufactured housing units on individual lots. Manufactured housing subdivisions are subject to the supplemental regulations of Section 40.220.
J.
Mobile home. A mobile home is a principal residential building that is built on a permanent chassis and that complies with Standard for Mobile Homes, National Fire Protection Association (NFPA) 501, American National Standards Institute (ANSI) 119.1, in effect at the time that the unit was manufactured. Mobile homes are allowed only within mobile home parks, which are subject to the regulations of Section 40.240.
K.
Mobile home park. A mobile home park is a lot or multiple lots upon which mobile homes or manufactured housing units are available for lease or upon which spaces for mobile homes or manufactured housing units are available for lease.
L.
Mixed-use building, vertical. A vertical mixed-use building is a principal building occupied by one or more commercial uses on the ground floor and one or more residential dwelling units on upper floors.
Figure 35-8: Vertical Mixed-use Building
M.
Mixed-use building. A mixed-use building is a principal building occupied by one or more commercial uses and one or more residential dwelling units.
N.
Commercial building A commercial building is a principal building occupied primarily by non-residential uses.
Figure 35-9: Commercial Building
O.
Civic/Institutional building. A civic/institutional building is a principal building occupied primarily by public, civic or institutional uses.
Figure 35-10: Civic/Institutional Building
P.
Open space site. Open space sites are parcels occupied primarily by parks, open spaces, natural areas and similar large outdoor open spaces.
This section establishes and describes the use categorization system used to classify principal uses in this zoning code.
A.
Use categories. This zoning code classifies principal land uses into eight (8) major groupings (described in Section 35.030 through Section 35.100). These major groupings are referred to as "use categories." The use categories are as follows:
1.
Residential. See Section 35.030.
2.
Public, Civic and Institutional. See Section 35.040.
3.
Commercial. See Section 35.050.
4.
Wholesale, Distribution and Storage. See Section 35.060.
5.
Industrial. See Section 35.070.
6.
Recycling. See Section 35.080.
7.
Agricultural. See Section 35.090.
8.
Other. See Section 35.100.
B.
Use subcategories. Each use category is further divided into more specific "subcategories." Use subcategories classify principal land uses and activities based on common functional, product or physical characteristics, such as the type and amount of activity, the type of customers or residents, and how goods or services are sold or delivered and site conditions.
C.
Specific use types. Some use subcategories are further broken down to identify specific types of uses that are regulated differently than the subcategory as a whole.
D.
Use tables. Use tables are used in this zoning code to identify the land uses allowed within the respective zoning districts. The structure of the use tables reflects the hierarchical nature of the use categorization system described in this section.
Table 35-1: Sample Use Table Format
[1] Table notes
E.
Determination of use categories and subcategories.
1.
The development administrator or land use administrator has the authority to classify uses on the basis of the use category, subcategory and specific use type descriptions of this chapter.
2.
When a use cannot be reasonably classified into a use category, subcategory or specific use type, or appears to fit into multiple categories, subcategories or specific use types, the development administrator is authorized to determine the most similar and thus most appropriate use category, subcategory or specific use type based on the actual or projected characteristics of the principal use or activity in relationship to the use category, subcategory and specific use type descriptions provided in this chapter. In making such determinations, the development administrator must consider:
a.
The types of activities that will occur in conjunction with the use;
b.
The types of equipment and processes to be used;
c.
The existence, number and frequency of residents, customers or employees;
d.
Parking demands associated with the use; and
e.
Other factors deemed relevant to a use determination.
3.
If a use can reasonably be classified in multiple categories, subcategories or specific use types, the development administrator is authorized to categorize each use in the category, subcategory or specific use type that provides the most exact, narrowest and appropriate "fit."
This category includes uses that provide living accommodations for one or more persons. The residential use subcategories are as follows:
A.
Household living. Residential occupancy of a dwelling unit by a household. When dwelling units are rented, tenancy is arranged on a month-to-month or longer basis. Uses where tenancy may be arranged for a shorter period are not considered residential; they are considered a form of lodging.
B.
Group living. Residential occupancy of a building or any portion of a building by a group other than a household. Group living uses typically provide communal kitchen/dining facilities. Group living use types include convents, monasteries, novitiates, fraternity and sorority houses, homeless centers and the following:
1.
Assisted living center. A residential facility designed to meet housing and care needs of older persons and individuals with disabilities in a residential rather than institutional environment, while maximizing independence, choice and privacy. Assisted living programs provide personal care for persons with needs for assistance in the activities of daily living and can respond to unscheduled needs for assistance. Services typically provided include meals, housekeeping, laundry and linen service, medication monitoring, transportation and activities. Assisted living settings also typically provide features that enhance resident autonomy, such as lockable doors, full bathrooms, temperature control and single occupancy, and may provide limited cooking facilities in individual units.
2.
Community group home. A community-based group living use for elderly persons or persons with disabilities that allows independent living and that provides communal room and board, personal care, and habilitation services in a household-like environment. Community group homes for eight (8) or fewer persons are considered household living uses.
3.
Elderly/Retirement center. A residential facility designed for and principally occupied by elderly persons. Such facilities sometimes include congregate meals in a common dining area, but do not include medical or skilled nursing care, as distinguished from life care retirement centers.
4.
Emergency and protective shelter. A residential use that provides room and board for a continuous period of no more than thirty (30) consecutive days for adults or children who have been abused, displaced or are transient. Such uses provide protection services and typically provide counseling and pre-placement screening services as well.
5.
Life care retirement center. A residential facility designed for and principally occupied by elderly persons in a planned retirement community that includes a residential complex, an activity or community center and a medical or skilled nursing care facility licensed by the State of Oklahoma as an intermediate care facility or a skilled nursing center.
6.
Re-entry facility. A facility operated by the city, the state, the federal government or a private party under contract with the city, the state or the federal government and used for rehabilitation and overnight accommodation of individuals, including staff, who are (a) under the jurisdiction of a court, but not under confinement, or (b) individuals recently released from the jurisdiction of a court. Re-entry facilities are operated for the purpose of providing treatment or rehabilitation intended to assist such individuals with their re-entry into the community.
7.
Residential treatment center. A community-based residential facility that provides diagnostic or therapeutic services, counseling, or treatment and long-term room and board in a highly structured environment for persons receiving active treatment for alcoholism, drug abuse or behavioral disorders.
8.
Rooming and boarding house. A residential use that provides congregate meals and lodging and that is not otherwise classified as another form of group living use or lodging use.
9.
Transitional living center. A community-based residential facility that provides room and board, a supervised living environment, counseling and rehabilitation services for persons with a history of juvenile delinquency, behavioral disorders, alcoholism or drug abuse for a continuous period of no more than one hundred twenty (120) consecutive days.
This category includes public, quasi-public and private uses that provide unique services that are of benefit to the public at-large. The public, civic and institutional subcategories are as follows:
A.
Airport or ground transportation terminal. Facilities from which FAA-certified aircraft take off, land and operate, including customary accessory uses and structures. Also includes passenger ticketing, loading and unloading facilities for buses (local or intercity) and trains.
B.
Cemetery. Land or structures used for burial or permanent storage of the dead or their cremated remains. Typical uses include cemeteries and mausoleums. Also includes pet cemeteries.
C.
College or university. Institutions of higher learning that offer courses of general or specialized study and are authorized to grant academic degrees. The college or university use subcategory includes classrooms and instructional spaces, as well as on-campus residence halls, fraternity and sorority houses, administrative buildings, auditoriums and other on-campus uses and facilities that provide customary accessory and support functions for college or university uses.
D.
Day Care.
1.
Child Care Center. Uses providing care and supervision for children or adults for a fee on a regular basis away from their primary residence for less than twenty-four (24) hours per day. Uses providing care and supervision for children or adults for twenty-four (24) hours per day or longer are classified as group living uses. Child care centers in residential districts are subject to the same lot and building regulations that apply to detached houses, except as modified by supplemental regulations of Section 40.120-A.
2.
Family Child Care Home. A day care that provides care and supervision for twelve (12) or fewer children for less than twenty-four (24) hours per day. Family child care homes may be a principal use or accessory to an allowed household living use. Family child care homes are subject to the same lot and building regulations that apply to detached houses, except as modified by the supplemental regulations of Section 40.120-B.
E.
Detention and correctional facility. An institution operated by the city, the state, the federal government or a private party under contract with the city, the state or the federal government for the confinement and punishment and treatment or rehabilitation of offenders under the jurisdiction of a court.
F.
Fraternal organization. The use of a building or lot by a not-for-profit organization that restricts access to its facility to bona fide, annual dues-paying members and their occasional guests and where the primary activity is a service not carried on as a business enterprise.
G.
Governmental service or similar functions. Local, state or federal governmental services or similar functions, that are not otherwise classified. Typical uses include health departments, courthouses, soup/food kitchens, and food pantries.
H.
Hospital. Uses providing medical or surgical care to patients and offering inpatient (overnight) care.
I.
Library or cultural exhibit. Museum-like preservation and exhibition of objects in one or more of the arts and sciences, gallery exhibition of works of art or library collections of books, manuscripts and similar materials for study and reading. Includes aquariums and planetariums.
J.
Natural resource preservation. Undeveloped land left in a natural state for specific use as visual open space or environmental purposes. Typical uses include wildlife or nature preserves, arboretums, flood management projects and reservoirs.
K.
Parks and recreation. Recreational, social or multi-purpose uses associated with public parks and open spaces, including playgrounds, playfields, play courts, community centers and other facilities typically associated with public parks and open space areas. Also includes public and private golf courses and tennis clubs.
L.
Postal service. Facilities operated by the U.S. Postal Service, including post offices and mail sorting and distribution facilities.
M.
Religious assembly. Religious services involving public assembly that customarily occur in churches, synagogues, temples, mosques and other facilities used for religious worship.
N.
Safety service. Establishments that provide fire, police or life protection, together with the incidental storage and maintenance of necessary vehicles. Typical uses include fire stations, police stations, ambulance services and storm or civil defense shelters.
O.
School. Public and private schools at the primary, elementary, middle school or high school level that provide basic, compulsory education.
P.
Utilities and public service facility, minor. Infrastructure services that need to be located in or close to the area where the service is provided. Minor utilities and public service facilities generally do not have regular employees at the site and typically have few if any impacts on surrounding areas. Typical uses include water and sewer pump stations; gas regulating stations; underground electric distribution substations; electric transformers; water conveyance systems; stormwater facilities and conveyance systems; telephone switching equipment and emergency communication warning/broadcast facilities.
1.
The production, collection or distribution of renewable energy, water, organic waste, or other similar resources at a neighborhood, district or campus scale are classified as minor utilities and public service facilities. This includes distributed energy facilities that produce or distribute energy from renewable sources; neighborhood composting areas and neighborhood stormwater facilities.
2.
District-, neighborhood- or campus-scale systems that produce or distribute energy from the biological breakdown of organic matter produced within the subject neighborhood or campus are also considered minor utilities and public service facilities.
3.
Energy production systems that generate energy from the byproducts of the principal use are considered accessory uses, including net metered installations and installations that generate power to sell at wholesale to the power grid.
Q.
Utilities and public service facility, major. Infrastructure services that typically have substantial visual or operational impacts on nearby areas. Typical uses include but are not limited to water and wastewater treatment facilities, high-voltage electric substations, utility-scale power generation facilities (including wind, solar and other renewable and nonrenewable energy sources), sanitary landfills and utility-scale water storage facilities, such as water towers and reservoirs.
R.
Wireless communication facility. Towers, antennas, equipment, equipment buildings and other facilities used in the provision of wireless communication services. The following are wireless communication facility specific use types:
1.
Freestanding towers. A structure intended to support equipment that is used to transmit and/or receive telecommunications signals, including monopoles and guyed and lattice construction steel structures.
2.
Building or tower-mounted antennas. The physical device that is attached to a freestanding tower, building or other structure, through which electromagnetic, wireless telecommunications signals authorized by the Federal Communications Commission are transmitted or received.
(Ord. No. 24382, § 3, 6-10-2020; Ord. No. 25092, § 3, 7-26-2023; Ord. No. 25192, § 8, 12-6-2023)
The commercial use category includes uses that provide a business service or involve the selling, leasing or renting of merchandise to the general public. The commercial use subcategories are as follows:
A.
Animal service. Uses that provide goods and services for care of animals, including the following specific use types:
1.
Grooming. Grooming of dogs, cats and similar small animals, including dog bathing and clipping salons and pet grooming shops.
2.
Boarding or shelter. Animal shelters, care services and kennel services for dogs, cats and small animals, including boarding kennels, pet resorts/hotels, pet adoption centers, dog training centers, animal rescue shelters and zoos and animal sanctuaries.
3.
Veterinary. Animal hospitals and veterinary clinics.
B.
Assembly and entertainment. Uses that provide gathering places for participant or spectator recreation, entertainment or other assembly activities. Assembly and entertainment uses may provide incidental food or beverage service. Typical uses include gun clubs, shooting ranges, health clubs, gymnasiums, riding stables and academies, banquet halls, entertainment centers, event centers, billiard centers, bowling centers, cinemas, go-cart tracks, laser tag, paintball, miniature golf courses, stadiums, arenas, video arcades, race tracks, fairgrounds, rodeo grounds, water parks, amusement parks, food truck courts, and live theaters. Outdoor seating and dining areas that exceed fifty (50) percent of the indoor floor area of the subject principal use (e.g., bar, restaurant or indoor assembly and entertainment use) are regulated as an outdoor assembly and entertainment use.
C.
Broadcast or recording studio. Uses that provide for audio or video production, recording or broadcasting.
D.
Commercial service. Uses that provide for consumer or business services and for the repair and maintenance of a wide variety of products. Specific commercial service use types include the following:
1.
Building service. Uses that provide maintenance and repair services for all structural and mechanical elements of structures, as well as the exterior spaces of premises. Typical uses include janitorial, landscape maintenance, carpet cleaning, chimney sweeps, extermination, plumbing, electrical, HVAC, roofing, window cleaning and similar services.
2.
Business support service. Uses that provide personnel services, printing, copying, package (delivery) drop-off, photographic services or communication services to businesses or consumers. Typical uses include employment agencies, day labor hiring services, armored car services, copy and print shops, delivery/courier service drop-off location for consumers, caterers, telephone answering services and photo developing labs.
3.
Consumer maintenance and repair service. Uses that provide maintenance, cleaning and repair services for consumer goods on a site other than that of the customer (i.e., customers bring goods to the site of the repair/maintenance business). Typical uses include laundry and dry cleaning pick-up shops, tailors, taxidermists, dressmakers, shoe repair, picture framing shops, gunsmiths, locksmiths, vacuum repair shops, electronics repair shops and similar establishments. Business that offer repair and maintenance service for large equipment or technicians who visit customers' homes or places of business are classified as a "building service."
4.
Personal improvement service. Uses that provide personal grooming, cosmetic or health and well-being-related services. Typical uses include barbers, hair and nail salons, tanning salons, day spas, and body art services.
5.
Research service. Uses engaged in scientific research and testing services leading to the development of new products and processes. Such uses resemble office buildings or campuses and do not involve the mass production, distribution or sale of products. Research services do not produce odors, dust, noise, vibration or other external impacts that are detectable beyond the property lines of the subject property. Includes medical marijuana testing laboratories, and medical marijuana research facilities, as licensed by the Oklahoma Medical Marijuana Authority, in accordance with the terms of such license.
E.
Financial service. Uses related to the exchange, lending, borrowing and safe-keeping of money. Automatic teller machines, kiosks and similar facilities that do not have on-site employees or amplified sound are not classified as financial service uses if they meet the criteria for classification as an accessory use (see Subsection 45.010B.). Specific financial service use types are banks, credit unions, and the following types of personal credit establishments:
1.
Check cashing. An establishment that:
a.
Is not a bank or financial lending institution subject to federal or state regulation;
b.
Charges a fee to cash a check or have a check processed; and
c.
Provides such services to the public.
2.
Pawnshop. An establishment that is engaged to any extent in any of the following business or activities:
a.
The lending of money on the deposit or pledge of personal property, other than choses in action, securities or written evidence of indebtedness;
b.
The purchase of personal property either from an individual, another pawn business or any other business with an expressed or implied agreement or understanding to offer the property for sale to the public, and if that sale is unsuccessful, then to sell it back to the previous owner at a subsequent time at a stipulated price or negotiated price;
c.
The purchase of precious metals with the intent to melt down, provided that such activity is not clearly incidental to the principal use of the establishment; or
d.
The lending of money upon personal property, goods, wares, or merchandise pledged, stored or deposited as collateral security.
3.
Payday lender. An establishment that is substantially in the business of negotiating, arranging, aiding, or assisting a consumer in procuring payday loans.
4.
Bail bond. A use that provides surety and pledged money or property as bail for the appearance of persons accused in court.
F.
Funeral and mortuary service. Uses that provide services related to the death of a human or domestic, household pet, including funeral homes and mortuaries. Funeral and mortuary services may include crematoriums as an accessory use. Other crematoriums and animal rendering uses are classified as moderate-impact manufacturing and industry.
G.
Lodging. Uses that provide temporary lodging for less than thirty (30) days where rents are charged by the day or by the week. Lodging uses sometimes provide food or entertainment, primarily to registered guests. Examples of specific lodging use types include:
1.
Bed and Breakfast. An establishment in which the owner/operator offers overnight accommodations to guests for compensation. A bed and breakfast may serve meals to guests subject to the supplemental use regulations; a bed and breakfast may be rented for on-site events.
2.
Hotel/Motel. An establishment, other than a bed and breakfast, short-term rental or rural retreat, in which temporary lodging is offered for compensation. A hotel/motel use may include an accessory bar.
3.
Recreational Vehicle Park/Campground. An establishment that provides temporary overnight accommodations for camping in recreational vehicles or tents.
4.
Rural Retreat. An establishment that is part of a working farm or ranch that provides temporary overnight accommodations for individuals or groups engaged in supervised training or personal improvement activities. Examples include corporate retreat facilities, educational facilities and dude ranches or working farm learning centers.
5.
Short-Term Rental. A dwelling unit, which is not the primary residence of a household, or a portion thereof, in which temporary lodging is offered for compensation. A short-term rental is limited to a maximum occupancy of eight (8) persons at any one time. Short-Term Rentals can be principal or accessory uses. Accessory use short-term rentals are defined in Section 45.185.
H.
Marina. Facilities that provide moorage, launching, storage, fueling, supplies and services (other than repair) commonly associated with storing, maintaining and operating recreational and commercial watercraft.
I.
Office. Uses in an enclosed building, customarily performed in an office, that focus on providing executive, management, administrative, professional or medical services. Specific office use types include the following:
1.
Business and professional office. Office uses that are not medical, dental, health practitioner offices or plasma centers. Examples include corporate office, law offices, architectural firms, insurance companies and other executive, management or administrative offices for businesses and corporations. Also included are union halls that offer only office and meeting space and insurance claims adjusters/estimators with no more than one vehicle inspection bay and no on-site repair facilities.
2.
Medical, dental and health practitioner office. Office uses related to diagnosis and treatment of human patients' illnesses, injuries and physical maladies that can be performed in an office setting with no overnight care. Typical uses include offices of physicians, dentists, psychiatrists, psychologists, chiropractors and practitioners of massage therapy. Surgical, rehabilitation and other medical centers that do not involve overnight patient stays are included in this use subcategory, as are medical and dental laboratories, unless otherwise expressly indicated. Ancillary sales of medications and medical products are allowed in association with a medical, dental or health practitioner office.
3.
Plasma center. An establishment primarily involved in the collection of human blood plasma from plasma donors.
J.
Parking, non-accessory. Parking that is not provided to comply with minimum off-street parking requirements or that is not provided exclusively to serve occupants of or visitors to a particular use, but rather is available to the public at-large. A parking facility that provides both accessory and non-accessory parking will be classified as non-accessory parking if it leases twenty-five (25) percent or more of its spaces to non-occupants of or persons other than visitors to a particular use. Specific non-accessory parking use types include the following:
1.
Surface parking, non-accessory. A non-accessory parking lot.
2.
Structured parking, non-accessory. A non-accessory parking garage.
K.
Restaurants and bars.
1.
Bar. Uses that cater primarily to adults, 21 years of age and older and that sell and serve alcoholic beverages as their principal business. Specific bar use types include bars, taverns, beer bars, brewpubs, nightclubs, pool halls, dance halls, hookah lounges, and similar establishments. See also the definition of accessory use bar in Section 95.040.
a.
Hookah lounge. An establishment whose business operation, whether as a principal use or as an accessory use, includes the smoking of tobacco or other substances through one or more hookah pipes (also commonly referred to as a hookah, waterpipe, shisha or narghile), including but not limited to establishments known variously as hookah bars, hookah parlors or hookah cafés.
b.
Brewpub. An establishment where beer and malt beverages are made on the premises in conjunction with a restaurant and/or bar and where (1) less than five thousand (5,000) barrels (one hundred fifty-five thousand (155,000) gallons) of beer and malt beverages are produced per calendar year and (2) at least thirty-three (33) percent of the beer and malt beverages produced on site are sold on site. Where allowed by law, brewpubs may sell beer and malt beverages "to go" and/or distribute to off-site accounts.
2.
Restaurant. An establishment that serves food or beverages for on- or off-premise consumption as its principal business. The preparation and processing of food or beverages to be served or sold on-site directly to consumers is permitted as an accessory use to a restaurant, including on-site coffee roasting with a maximum roasting capacity of forty-five (45) kilograms per batch. Typical examples of restaurant uses include principal use restaurants, cafés, cafeterias, ice cream/yogurt shops, donut shops and coffee shops.
a.
Principal use restaurant. A restaurant that employs at least one full-time cook, has a menu, a fully equipped kitchen for cooking and preparation of meals and in which dining, kitchen and non-service areas occupy at least seventy-five (75) percent of the floor area of the business. A principal use restaurant may include an accessory use bar, but any bar area that does not meet the definition of an accessory use bar (Section 95.040) is classified and regulated as a bar.
3.
Outdoor seating and dining areas. Outdoor seating and dining areas that exceed fifty (50) percent of the indoor floor area of the subject bar or restaurant are regulated as an outdoor assembly and entertainment use.
L.
Retail sales. Uses involving the sale, lease or rental of new or used goods to the ultimate consumer. Specific retail use types include the following:
1.
Convenience goods. Retail sales uses that sell or otherwise provide (1) sundry goods; (2) products for personal grooming and for the day-to-day maintenance of personal health; or (3) food or beverages for off-premise consumption, retail bakeries and similar uses that provide incidental and accessory food and beverage service as part of their primary retail sales business. Typical uses include convenience stores, drug stores, specialty food stores, package stores, gift shops, newsstands, florists and tobacco stores. Does not include small box discount stores or grocery stores.
2.
Consumer shopping goods. Retail sales uses that sell or otherwise provide wearing apparel, fashion accessories, furniture, household appliances and similar consumer goods, large and small, functional and decorative, for use, entertainment, comfort or aesthetics. Typical uses include clothing stores, department stores, appliance stores, TV and electronics stores, bike shops, book stores, costume rental stores, stationery stores, art galleries, hobby shops, furniture stores, pet stores and pet supply stores, shoe stores, antique shops, secondhand stores, record stores, toy stores, sporting goods stores, variety stores, video stores, musical instrument stores, medical supplies, office supplies and office furnishing stores and wig shops. Does not include small box discount stores, grocery stores or medical marijuana dispensaries.
3.
Building supplies and equipment. Retail sales uses that sell or otherwise provide goods to repair, maintain or visually enhance a structure or premises. Typical uses include hardware stores, home improvement stores, paint and wallpaper supply stores and garden supply stores.
4.
Small box discount store. Retail sales uses with floor area less than twelve thousand (12,000) square feet that offer for sale a combination and variety of convenience shopping goods and consumer shopping goods; and continuously offer a majority of the items in their inventory for sale at a price less than ten dollars ($10.00) per item. Does not include medical marijuana dispensaries.
5.
Grocery store. Retail sales uses that sell or otherwise provide assorted goods; products for personal grooming and for the day-to-day maintenance of personal health; and that sell food and beverages for off-premise consumption; and that have a minimum floor area of five hundred (500) square feet dedicated to the sale of fresh meat, fruits and vegetables. A principal use grocery store may include an accessory use restaurant or dining area for on-premise consumption of food and beverage items. Does not include medical marijuana dispensaries.
6.
Medical Marijuana Dispensary. Retail sales uses that sell or otherwise provide medical marijuana or medical marijuana products by the holder of a medical marijuana dispensary license issued by the Oklahoma Medical Marijuana Authority, in accordance with the terms of such license, which may be sold or provided only to the holder of a medical marijuana patient or caregiver license.
M.
Self-service storage facility. An enclosed use that provides separate, small-scale, self-service storage facilities leased or rented to individuals or small businesses. Facilities are designed and used to accommodate only interior access to storage lockers or drive-up access only from regular size passenger vehicles and two-axle non-commercial vehicles.
N.
Sexually oriented business establishment. Sexually oriented business establishments include all of the following:
1.
Adult amusement or entertainment. Amusement or entertainment that is distinguished or characterized by an emphasis on acts or material depicting, describing or relating to sexual conduct or specified anatomical areas, including but not limited to topless or bottomless dancers, exotic dancers, strippers, male or female impersonators or similar entertainment.
2.
Adult bookstore. An establishment wherein ten (10) percent or more of its display area consists of books, films, videos, magazines, periodicals, games, novelties or other materials that are distinguished or characterized by an emphasis on depicting or describing sexual conduct or specified anatomical areas (referred to in this section as "sexually oriented materials"). As used in this definition of "adult bookstore," "display area" is measured as follows:
a.
For bookshelves, magazine racks and similar display devices, display area is calculated by multiplying the length times the width of such devices. If sexually oriented materials are mixed with non-sexually oriented materials in or on such devices, the entire device is considered as consisting of sexually oriented materials.
b.
For table tops, counters, display cases and similar display devices, display area is calculated by multiplying the length times the width of each surface on which merchandise is displayed. If sexually oriented materials are mixed with non-sexually oriented materials on such surfaces, the entire surface is considered as consisting of sexually oriented materials.
c.
For walls, display area is the area of the wall enclosed by the smallest imaginary rectangle that contains each item.
d.
The display area of merchandise hanging or suspended from the ceiling is calculated by multiplying the item's length or width, whichever is longer, times the item's height.
3.
Adult mini motion picture theater. An enclosed building with a capacity of fewer than fifty (50) persons used for presenting material distinguished or characterized by an emphasis on depicting or describing sexual conduct or specified anatomical areas.
4.
Adult motel. A motel in which material is presented, as part of the motel services, via closed circuit TV or otherwise, that is distinguished or characterized by an emphasis on depicting or describing sexual conduct or specified anatomical areas.
5.
Adult motion picture arcade. Any place to which the public is permitted or invited wherein coin or slug operated or electronically, electrically or mechanically controlled, still or motion picture machines, projectors, or other image producing devices are maintained to show images to five (5) or fewer persons per machine at any one time, and where the images so displayed are distinguished or characterized by an emphasis on depicting or describing sexual conduct or specified anatomical areas.
6.
Adult motion picture theater. An enclosed building with a capacity of fifty (50) or more persons used for presenting material distinguished or characterized by an emphasis on depicting or describing sexual conduct or specified anatomical areas.
7.
Massage parlor. Any place where for any form of consideration or gratuity, massage, alcohol rub, administration of fomentations, electric or magnetic treatments, or any other treatment or manipulation of the human body occurs as part of or in connection with sexual conduct or where any person providing such treatment, manipulation or service related thereto exposes specified anatomical areas.
8.
Model studio. Any place other than public park, museum or university or college art classes where, for any form of consideration or gratuity, figure models who display specified anatomical areas are provided to be observed, sketched, drawn, painted, sculptured, photographed, or similarly depicted by persons paying such consideration or gratuity.
9.
Sexual encounter center. Any building or structure that contains, or is used for commercial entertainment where the patron directly or indirectly is charged a fee to engage in personal contact with or to allow personal contact by, employees, devices or equipment or by personnel provided by the establishment that appeals to the prurient interest of the patron, to include, but not to be limited to bath houses, massage parlors, and related or similar activities.
O.
Studio, artist or instructional service. Uses in an enclosed building that focus on providing individual or small group instruction or training in fine arts, music, dance, drama, fitness, language or similar activities. Also includes dance studios, ballet academies, yoga studios, martial arts instruction, tutoring, artist studios and photography studios.
P.
Trade school. Uses in an enclosed building that focus on teaching the skills needed to perform a particular job. Examples include schools of cosmetology, modeling academies, computer training facilities, vocational schools, administrative business training facilities and similar uses. Licensed medical marijuana education facilities are expressly included. Truck driving schools are classified as "trucking and transportation terminals" (wholesale, distribution and storage use category).
Q.
Vehicle sales and service. Uses that provide for the sale, rental, maintenance or repair of new or used vehicles and vehicular equipment. The vehicle sales and service subcategory includes the following specific use types:
1.
Commercial vehicle repair and maintenance. Uses, excluding vehicle paint finishing shops, that repair, install or maintain the mechanical components or the bodies of large trucks, mass transit vehicles, large construction or agricultural equipment, aircraft or similar large vehicles and vehicular equipment. Includes truck stops and fleet vehicle fueling facilities, which may dispense conventional vehicle fuels and/or alternative vehicle fuels.
2.
Commercial vehicle sales and rentals. Uses that provide for the sale or rental of large trucks, moving equipment (e.g., U-haul and Ryder) construction or agricultural equipment, aircraft, or similar large vehicles and vehicular equipment.
3.
Fueling station (for personal, consumer vehicles). Uses engaged in retail sales of vehicle fuels for personal vehicles, other than fleet fueling facilities and truck stops. (Note: Fleet vehicle fueling facilities and truck stops are part of the "Commercial Vehicle Repair and Maintenance" specific use type). Fueling stations may dispense conventional vehicle fuels and/or alternative vehicle fuels.
4.
Personal vehicle repair and maintenance. Uses that repair, install or maintain the mechanical components of automobiles, small trucks or vans, motorcycles, motor homes or recreational vehicles including recreational boats or that wash, clean or otherwise protect the exterior or interior surfaces of these vehicles.
5.
Personal vehicle sales and rentals. Uses that provide for the sale or rental of new or used autos, small trucks or vans, trailers, motorcycles, motor homes or recreational vehicles including recreational watercraft. Typical examples include automobile dealers, auto malls, car rental agencies. Car-share vehicles that are parked or stored when not being used by members of a car-share program are not regulated as personal vehicle sales and rental uses, but are instead considered accessory parking.
6.
Vehicle equipment and supplies sales and rentals. Uses related to the sale, lease or rental of new or used parts, tools or supplies for the purpose of repairing or maintaining motor vehicles.
7.
Vehicle body and paint finishing shop. Uses that primarily conduct motor vehicle body work and repairs or that apply paint to the exterior or interior surfaces of motor vehicles by spraying, dipping, flow-coating or other similar means.
R.
Farmers market. A designated area in which farmers, growers or producers gather on a regularly scheduled basis to sell at retail non-hazardous farm food products to the public. Farm food products are grown or raised on a farm, including but not limited to, vegetables, mushrooms, herbs, nuts, shell eggs, honey or other bee products, flowers, nursery stock, livestock food products and fish. A portion of the raw food ingredients used by the individual vendor to produce a product must have been grown or raised by the vendor. Farmers markets must have written operational guidelines and a minimum of six (6) vendors along with a designated market manager or advisory board who will be responsible for distribution of a copy of the guidelines to the vendors. Farmers markets must be registered with the Oklahoma Department of Agriculture, Food and Forestry. This definition does not include individual farmers who grow and sell unprocessed fruit and/or vegetables from the farm, roadside or truck. Farmers markets may be located inside a building or outdoors using permanent shelters or tents that can be placed and removed on the subject site when the market is not operating.
(Ord. No. 24328, § 5, 3-11-2020; Ord. No. 25330, §§ 4—6, 6-5-2024; Ord. No. 25604, § 8, 6-18-2025)
This category includes uses that provide and distribute goods in large quantities, principally to retail sales, commercial services or industrial establishments. Long-term and short-term storage of supplies, equipment, commercial goods and personal items is included. The wholesale, distribution and storage subcategories are as follows:
A.
Equipment and materials storage, outdoor. Uses related to outdoor storage of equipment, products or materials, whether or not stored in containers.
B.
Trucking and transportation terminals. Uses engaged in the dispatching and long-term or short-term storage of trucks, buses and other vehicles, including parcel service delivery vehicles, taxis and limousines. Minor repair and maintenance of vehicles stored on the premises is also included. Includes uses engaged in the moving of household or office furniture, appliances and equipment from one location to another, including the temporary on-site storage of those items.
C.
Warehouse. Uses conducted within a completely enclosed building that are engaged in long-term and short-term storage of goods and that do not meet the definition of a "self-service storage facility" or a "trucking and transportation terminal."
D.
Wholesale sales and distribution. Uses engaged in the wholesale sales, bulk storage and distribution of goods. Such uses may also include incidental retail sales and wholesale showrooms. Expressly includes the following uses: bottled gas and fuel oil sales, flea markets, ice distribution centers, monument sales, portable storage building sales, vending machine sales, auctioneers, and frozen food lockers. Includes uses engaged in the transportation and distribution of medical marijuana products to and from the licensed premises of commercial medical marijuana licensees.
(Ord. No. 25330, §§ 4—7, 6-5-24)
This category includes uses that produce goods from extracted and raw materials or from recyclable or previously prepared materials, including the design, storage and handling of these products and the materials from which they are produced. The industrial subcategories are:
A.
Low-impact manufacturing and industry. Manufacturing and industrial uses that do not, as part of their normal operations, generate noticeable off-site impacts in terms of noise, smoke, particulate matter, odors, or vibration. Typical examples of low-impact manufacturing and industrial uses include: commercial laundries and linen supply services, apparel manufacturing, bakery products manufacturing, production of medical marijuana products, such as edibles and pre-rolls, using medical marijuana components processed elsewhere, bottling plants, ice manufacturing, mattress manufacturing and assembly, microbreweries, micro distilleries, coffee roasting with a maximum roasting capacity of 45 kilograms per batch, musical instrument and parts manufacturing, newspaper printing and binderies.
1.
Microbrewery. An establishment in which beer or malt beverages are made on the premises and then sold or distributed, and which produces less than fifteen thousand (15,000) barrels (four hundred sixty-five thousand (465,000) gallons) of beer and malt beverages per calendar year. Where allowed by law, microbreweries may include tasting rooms and direct sales to consumers in addition to other methods of distribution.
2.
Micro distillery. A distillery producing distilled spirits in total quantity of no more than forty thousand (40,000) proof gallons per calendar year. Where allowed by law, micro distilleries may include tasting rooms and direct sales to consumers in addition to other methods of distribution.
3.
Low-impact medical marijuana processor. A medical marijuana processor issued a nonhazardous processor license by the Oklahoma Medical Marijuana Authority.
B.
Moderate-impact manufacturing and industry. Manufacturing and industrial uses that, as part of their normal operations, generate noticeable off-site impacts in terms of noise, smoke, particulate matter, odors, or vibration. Typical examples of moderate-impact manufacturing and industrial uses include: large breweries, distilleries and alcohol manufacturing (other than micro distilleries), coffee roasting with a roasting capacity of more than forty-five (45) kilograms per batch, medical marijuana waste disposal facilities, dairy products manufacturing, foundries, chrome plating, crematoriums and animal rendering plants, electroplating, fiberglass manufacturing, flour mills and paper products manufacturing.
1.
Large brewery. An establishment where beer or malt beverages are made on the premises at an annual production rate of over fifteen thousand (15,000) barrels (four hundred sixty-five thousand (465,000) gallons). Large breweries may include tasting rooms.
2.
Medical marijuana waste disposal facility. A facility issued a medical marijuana waste disposal facility license by the Oklahoma Medical Marijuana Authority.
C.
High-impact manufacturing and industry. Manufacturing and industrial uses that regularly use hazardous chemicals or procedures or that produce hazardous byproducts or explosive hazards. Typical examples of high-impact manufacturing and industrial uses include: the manufacture of acetylene, cement, lime, gypsum or plaster-of-Paris, chlorine, corrosive acid or fertilizer, insecticides, disinfectants, poisons, explosives, paint, lacquer, varnish, petroleum products, coal products, plastic and synthetic resins and radioactive materials. This subcategory also includes petrochemical tank farms, gasification plants, smelting, animal slaughtering, oil refining, asphalt and concrete (batch) plants and tanneries.
1.
High-impact medical marijuana processing facility. An establishment in which the preparation, manufacture, processing or packaging of medical marijuana products by the holder of a hazardous medical marijuana processor license issued by the Oklahoma Medical Marijuana Authority is conducted, in accordance with the terms of such license, and in which extraction processes include the use of flammable substances such as butane, propane, ethanol and alcohol.
D.
Junk or salvage yard. An open area where waste, scrap, used or second-hand materials are bought, sold, exchanged, stored, baled, packed, disassembled, crushed, processed, or handled for reclamation, disposal or other similar purposes, including but not limited to scrap iron and other metals, paper, rags, rubber tires and bottles.
E.
Mining or mineral processing. The extraction or quarrying of coal, ores, stone, minerals, top soil or aggregate resources from the ground. Examples include quarrying or dredging for sand, gravel or other aggregate materials; mining and top soil extraction. Also includes crushing, washing and grading coal, ore, stone, sand, gravel, minerals, top soil or aggregate resources and manufacture of Portland cement.
(Ord. No. 25330, §§ 8—11, 6-5-2024)
This category includes uses that collect, store or process recyclable material for the purpose of marketing or reusing the material in the manufacturing of new, reused or reconstituted products. The recycling use subcategories are as follows:
A.
Construction or demolition debris. Establishments that receive and process general construction or demolition debris for recycling.
B.
Consumer material drop-off station. An establishment that (1) accepts consumer recyclable commodities directly from the consuming party; (2) is staffed by personnel on site for a minimum of twenty (20) hours per week; and (3) stores materials temporarily before transferring them to recyclable material processing facilities. Establishments that process recyclable material are classified as "consumer material processing" establishments. (Note: Accessory use dumpsters and recyclable material bins/donation bins are subject to the regulations of Sections 45.050 and 45.051.)
C.
Consumer material processing. Establishments that receive and process consumer recyclable commodities for subsequent use in the secondary market.
(Ord. No. 24279, § 1, 12-11-2019)
This category includes uses such as gardens, farms and orchards that involve the raising and harvesting of food and non-food crops and the raising of farm animals. The agricultural subcategories are:
A.
Animal husbandry. Uses that involve the feeding, housing and care of farm animals for private or commercial purposes.
B.
Community garden. An area less than one acre in area that is managed and maintained by an individual, group or business entity to grow and harvest food crops or non-food crops (e.g., flowers). A community garden area may be divided into separate garden plots or orchard areas for cultivation by one or more individuals or may be farmed collectively by members of the group. Community gardens may be principal or accessory uses.
C.
Farm, market or community-supported. An area managed and maintained by an individual, group or business entity to grow and harvest food crops or non-food crops (e.g., flowers) for sale or distribution. Farms may be principal or accessory uses and may be located on a roof or within a building.
D.
Horticulture nursery. A use involving propagation and growth of trees or plants in containers or in the ground for wholesale or retail sales and distribution. Does not include on-site retail sales unless such sales are otherwise allowed in the subject zoning district.
1.
Medical marijuana grower operation. Uses involving the growing, harvesting and packaging of medical marijuana by the holder of a medical marijuana grower license issued by the Oklahoma Medical Marijuana Authority, in accordance with the terms of such license. Does not include retail sales.
(Ord. No. 25330, § 12, 6-5-2024)
This category includes uses that do not fit the other use categories.
A.
Drive-in or drive-through facility. Any use with drive-through windows or drive-through lanes or that otherwise offer service to the occupants of motor vehicles. Typical uses include drive-through restaurants, drive-through pharmacies, drive-in restaurants and drive-in cinemas. Automatic teller machine kiosks and similar drop-off or pick-up facilities that do not have on-site employees or amplified sound are not classified as drive-in or drive-through facilities if they meet the criteria for classification as an accessory use (see Subsection 45.010B.).
B.
Off-premise outdoor advertising sign. A sign that directs attention to a business, commodity, service, or activity that is conducted, sold or offered elsewhere than upon the lot where the subject sign is located.
C.
Oil or gas well. Any hole or bore, of any depth, for the purpose of producing and recovering oil, gas, or other hydrocarbon substances or for the injection or disposal of any oil, gas, or other hydrocarbon substances. See also Title 42A of the Tulsa Revised Ordinances.