MEASUREMENTS AND EXCEPTIONS
When calculations required under this zoning ordinance result in fractions, the results must be rounded as follows:
Lot area is measured as the total ground-level surface area contained within the property lines of a lot.
Lot area per dwelling unit is a measure of residential density. It governs the amount of lot area required for each dwelling unit on a lot. To determine the number of dwelling units allowed on a lot, divide the lot area by the minimum lot-area-per-unit requirement, and round any fractional result down to a whole number. If, for example, a minimum lot-area-per-unit requirement of 1,750 feet is applied to a 10,000 square foot lot, a maximum of 5 units would be allowed on that lot (5.71 rounded down to 5).
The floor area of a building is measured as the sum of the gross horizontal areas of all floors of the subject building, measured from the interior faces of the exterior walls or from interior faces of walls between separate buildings. “Floor area” includes basement and cellar floor areas; elevator shafts and stairwells at each floor; floor space used for mechanical equipment, open or enclosed, located on the roof; penthouse; attic space having headroom of 7 feet 10 inches or more; interior balconies and mezzanines; enclosed porches; and floor area devoted to accessory uses. Space devoted to off-street parking or loading is not included in floor area calculations.
The floor area ratio (FAR) of a building is the floor area of the building divided by the area of the lot upon which the building is located.
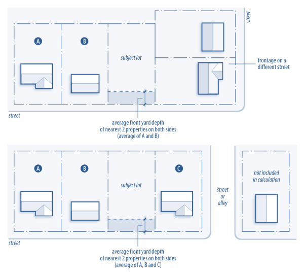
Street frontage is measured between side property lines of a lot along the property line that abuts the street.
Lot width is measured as the average (mean) horizontal distance between the side property lines of a lot.
Figure 19-1: Lot Width Measurement





| Allowed Within Setback? | |||
| Obstruction | Street | Side | Rear |
| Accessory buildings (see also Chapter 9) | No | No | Yes |
| Air conditioning units (Window units only) | Yes | Yes | Yes |
| A/C condensers, generators, compressors, transformers, pool, rainwater collection and geothermal equipment (ground-mounted) | No | No | Yes |
| Arbors, pergolas and trellises | Yes | Yes | Yes |
| Awnings, canopies, light shelves and solar shading devices projecting no more than 2 feet into the setback | Yes | Yes | Yes |
| Barbeque pits and outdoor fireplaces | No | No | Yes |
| Bay windows projecting no more than 2 feet into the setback | Yes | Yes | Yes |
| Carports | Yes | Yes | Yes |
| Chimneys and flues projecting no more than 2 feet into the setback | Yes | Yes | Yes |
| Clotheslines | No | Yes | Yes |
| Decks, patios, and other features and structures less than 30 inches in height above grade | Yes | Yes | Yes |
| Eaves and gutters projecting no more than 2 feet into the setback | Yes | Yes | Yes |
| Fences and walls | Yes | Yes | Yes |
| Fire escapes projecting no more than 4.5 feet into the setback | Yes | Yes | Yes |
| Flagpoles and similar features | Yes | Yes | Yes |
| Geothermal heat pumps and geothermal heat exchange equipment up to 4 feet in height above grade | No | No | Yes |
| Green houses and hoop houses | No | No | Yes |
| Insulation added to the outside of the exterior wall of an existing building | Yes | Yes | Yes |
| Plants and cold frames | Yes | Yes | Yes |
| Porches | Yes | No | Yes |
| Rainwater harvesting equipment projecting no more than 4. 5 feet into the setback | Yes | Yes | Yes |
| Recreational equipment (e.g., swing sets, playground equipment, tree houses, etc.) | No | No | Yes |
| Satellite dish antennas | See 11-9-6 | ||
| Signs (see also Chapter 13) | Yes | Yes | Yes |
| Sills, belt courses, cornices and similar architectural features projecting no more than 2 feet | Yes | Yes | Yes |
| Solar energy systems, building-mounted | No | Yes | Yes |
| Solar energy systems, ground-mounted | No | No | Yes |
| Swimming pools and tennis courts | No | No | Yes |
| Vehicle parking/storage, inoperable | No | No | Yes |
| Wheelchair lifts and ramps that meet federal, state and local accessibility standards | Yes | Yes | Yes |






Building coverage is the total area of a lot covered by principal and accessory buildings. Only building areas beneath a roof are counted for purposes of measuring building coverage. A porch with a roof, for example, is counted, but an uncovered deck structure is not considered building coverage.



For the purpose of determining compliance with standards or requirements based on building occupancy or capacity, calculations must be based on the building code.
MEASUREMENTS AND EXCEPTIONS
When calculations required under this zoning ordinance result in fractions, the results must be rounded as follows:
Lot area is measured as the total ground-level surface area contained within the property lines of a lot.
Lot area per dwelling unit is a measure of residential density. It governs the amount of lot area required for each dwelling unit on a lot. To determine the number of dwelling units allowed on a lot, divide the lot area by the minimum lot-area-per-unit requirement, and round any fractional result down to a whole number. If, for example, a minimum lot-area-per-unit requirement of 1,750 feet is applied to a 10,000 square foot lot, a maximum of 5 units would be allowed on that lot (5.71 rounded down to 5).
The floor area of a building is measured as the sum of the gross horizontal areas of all floors of the subject building, measured from the interior faces of the exterior walls or from interior faces of walls between separate buildings. “Floor area” includes basement and cellar floor areas; elevator shafts and stairwells at each floor; floor space used for mechanical equipment, open or enclosed, located on the roof; penthouse; attic space having headroom of 7 feet 10 inches or more; interior balconies and mezzanines; enclosed porches; and floor area devoted to accessory uses. Space devoted to off-street parking or loading is not included in floor area calculations.
The floor area ratio (FAR) of a building is the floor area of the building divided by the area of the lot upon which the building is located.
Street frontage is measured between side property lines of a lot along the property line that abuts the street.
Lot width is measured as the average (mean) horizontal distance between the side property lines of a lot.
Figure 19-1: Lot Width Measurement





| Allowed Within Setback? | |||
| Obstruction | Street | Side | Rear |
| Accessory buildings (see also Chapter 9) | No | No | Yes |
| Air conditioning units (Window units only) | Yes | Yes | Yes |
| A/C condensers, generators, compressors, transformers, pool, rainwater collection and geothermal equipment (ground-mounted) | No | No | Yes |
| Arbors, pergolas and trellises | Yes | Yes | Yes |
| Awnings, canopies, light shelves and solar shading devices projecting no more than 2 feet into the setback | Yes | Yes | Yes |
| Barbeque pits and outdoor fireplaces | No | No | Yes |
| Bay windows projecting no more than 2 feet into the setback | Yes | Yes | Yes |
| Carports | Yes | Yes | Yes |
| Chimneys and flues projecting no more than 2 feet into the setback | Yes | Yes | Yes |
| Clotheslines | No | Yes | Yes |
| Decks, patios, and other features and structures less than 30 inches in height above grade | Yes | Yes | Yes |
| Eaves and gutters projecting no more than 2 feet into the setback | Yes | Yes | Yes |
| Fences and walls | Yes | Yes | Yes |
| Fire escapes projecting no more than 4.5 feet into the setback | Yes | Yes | Yes |
| Flagpoles and similar features | Yes | Yes | Yes |
| Geothermal heat pumps and geothermal heat exchange equipment up to 4 feet in height above grade | No | No | Yes |
| Green houses and hoop houses | No | No | Yes |
| Insulation added to the outside of the exterior wall of an existing building | Yes | Yes | Yes |
| Plants and cold frames | Yes | Yes | Yes |
| Porches | Yes | No | Yes |
| Rainwater harvesting equipment projecting no more than 4. 5 feet into the setback | Yes | Yes | Yes |
| Recreational equipment (e.g., swing sets, playground equipment, tree houses, etc.) | No | No | Yes |
| Satellite dish antennas | See 11-9-6 | ||
| Signs (see also Chapter 13) | Yes | Yes | Yes |
| Sills, belt courses, cornices and similar architectural features projecting no more than 2 feet | Yes | Yes | Yes |
| Solar energy systems, building-mounted | No | Yes | Yes |
| Solar energy systems, ground-mounted | No | No | Yes |
| Swimming pools and tennis courts | No | No | Yes |
| Vehicle parking/storage, inoperable | No | No | Yes |
| Wheelchair lifts and ramps that meet federal, state and local accessibility standards | Yes | Yes | Yes |






Building coverage is the total area of a lot covered by principal and accessory buildings. Only building areas beneath a roof are counted for purposes of measuring building coverage. A porch with a roof, for example, is counted, but an uncovered deck structure is not considered building coverage.



For the purpose of determining compliance with standards or requirements based on building occupancy or capacity, calculations must be based on the building code.