11.- SPECIAL USE STANDARDS
(a)
Purpose. This section is established to provide regulations and design standards for accessory apartments, extended living areas, or guesthouses related to single-family dwellings in primarily residential zone districts. These accessory living areas enable additional dwelling units to be available to moderate income households, provide economic relief to homeowners who might otherwise be forced to leave a neighborhood, and make dwelling units available which are appropriate for households at a variety of stages in the life cycle.
(b)
General Requirements. The following requirements must be met in order to have either an accessory apartment, extended living area, or a guesthouse:
(1)
Number Permitted. Only one accessory apartment or extended living area shall be created within a single-family dwelling structure. The accessory apartment or extended living area shall not occupy any accessory buildings. No lot or parcel shall contain more than one guesthouse.
(2)
Retain Single-Family Dwelling Appearance. The accessory apartment, extended living area, or guesthouse shall be designed so that the appearance of the building remains that of a single-family residence, including the following:
a.
Entrances. Only one primary entrance into the existing dwelling is allowed facing the street or front property. No additional entryways or access to these accessory living areas shall be visible from the street or front property line. All entrances for an accessory living area shall be located on the side or in the rear of the dwelling or from within the home or garage.
b.
Design. Any additions to the existing dwelling unit or detached guesthouse, shall be designed and constructed as to blend in and be compatible with the architectural components of the primary dwelling unit (including, but not limited to matching exterior materials, colors, windows, architectural style, building articulations, design elements, and roof pitch). Accessory apartments or extended living areas do not require internal connectivity; however, they must be connected to the existing living area of the home by a common wall and not connected through a breezeway or nonhabitable space (e.g. garage, storage area, etc.).
c.
Utilities and Meters. It shall be prohibited to install separate utility connections or meters. Private utility meters installed behind the primary meters and internal to the dwelling may be allowed.
d.
Addressing. No separate addresses will be assigned to the property. Additional mailboxes are also prohibited.
c.
Landscaping. The retention and enhancement of landscaping and property maintenance standards shall be met with any site or building alterations.
(3)
Building Code Compliance Required. The design of the accessory apartments, extended living areas, or guesthouses shall conform to all applicable standards in the City's adopted Fire, Building, and Health Codes. The applicant shall obtain all necessary building permits prior to construction of the accessory apartment, extended living area, or guesthouse.
(4)
Parking. Off-street parking space shall be available for use by the occupants of the accessory apartment, extended living area, or guesthouse, and shall comply with the City's adopted residential parking standards. A nonconforming single-family dwelling must be brought into conformity with all required parking requirements. If a required parking area is to be modified in the creation of an accessory living area, the required parking shall be replaced on-site. Any additional vehicles owned by occupants must be accommodated on-site. On-street parking shall be reserved for visitors only.
(5)
Mobile Homes. It shall be prohibited to construct an accessory apartment or extended living area within a mobile home.
(6)
Septic Systems. Any dwelling that is using a septic system, must show proof by a licensed professional that the system is in property working condition or be required to connect to the existing sewer infrastructure.
(7)
Short Term Rental (STR). It is prohibited to rent or offer the rental of an accessory apartment, extended living area, or guesthouse for a period of less than 30 consecutive days unless the property has obtained approvals for such use as found in the Land Development Code and all other Sandy City Code. In no event, shall any portion of the property be rented out for both short and long-term rentals at the same time.
(c)
Additional Requirements for Approval of an Accessory Apartment. An accessory apartment may be allowed by an administrative special use permit from the Community Development Department and being issued a valid accessory apartment business license. The following requirements must be met in order to grant a permit:
(1)
Application. A completed application as provided by Sandy City.
(2)
Owner Occupancy. The owner of the subject property shall live in the primary dwelling unit and must reside therein as their primary residence.
a.
An individual shall prove ownership of the property as evidenced by a copy of a transfer deed listing the applicant as the fee title owner. Fee title owner may be an individual or trustor of a family trust that possesses 50 percent or more ownership of the primary dwelling. The fee title owner may not be a corporation, partnership, limited liability company, or similar entity.
b.
To establish that the property is the owner's primary residence, the owner shall:
1.
Present the owner's most recent State and Federal tax returns both listing the property as the owner's primary residence; and
2.
Present a government-issued identification document listing the address of the property as the address of the owner; and
3.
A signed affidavit sworn before a notary public shall be provided by the owner stating that the proposed property is the primary residence of the owner and they will occupy the property as their residence, except for bona fide temporary absences.
(3)
Dwelling Description. A detailed written description and/or drawing of the property that identifies the use of each room of the dwelling and defines the portions of the dwelling to be used for an accessory apartment shall be provided.
(4)
Site Plan. A site plan and architectural elevations shall be submitted to the Community Development Department to determine compliance with the requirements herein. The site plan shall be drawn to scale, clearly showing the location of all existing and proposed structures, walls, parking, driveways, and walkways.
(5)
Occupancy Restrictions. The occupants of the accessory apartment shall be an additional single family. The occupants of the accessory apartment shall not sublease any portion of the accessory apartment to other individuals.
(6)
Recordation. Approval for an accessory apartment shall be recorded with the Salt Lake County Recorder's Office, including a reversion clause to utilize the area as an extended living area should the special use permit expire. Proof of recordation shall be submitted to the Community Development Department prior to occupancy. A recorded copy shall be kept on file with the Community Development Department.
(7)
Duration of Approval and Transferability. The special use permit shall continue until:
a.
A sale of the property, or
b.
Change of residence of the primary occupant, or
c.
If the business license expires.
At the event of any of the above, the special use permit shall expire and is not transferable to new property owners. If the permit expires, the area previously used as an accessory apartment shall revert to an extended living area use only, meaning it can only be occupied and utilized only by the primary dwelling occupants and their non-paying guests.
(d)
Additional Requirements for Approval of an Extended Living Area. An extended living area is a permitted use approved by the Director at the time of building permit review to create any additional living facilities within the structure. The following standards shall apply:
(1)
Occupancy Restrictions. Extended living areas shall be used by the primary dwelling family members and their non-paying guests or for employed household maintenance personnel (e.g. on a non-rental basis).
(2)
Expired Accessory Apartments. Any expired special use permit for an accessory apartment shall revert to an extended living area and become subject to these requirements until a new permit is obtained by the property owner.
(3)
Recordation. Approval for an extended living area must be recorded with the Salt Lake County Recorder's Office. Proof of recordation shall be submitted to the Community Development Department prior to issuance of a building permit. A recorded copy shall be kept on file with the Community Development Department.
(4)
Duration of Approval and Transferability. Upon sale of the home or change of primary occupant, the approval for an extended living area shall be transferred to the new owner or occupant. The new owner and occupant shall be subject to these requirements.
(e)
Additional Requirements for Approval of a Guesthouse. A guesthouse use may be allowed by an administrative special use permit from the Community Development Department. The following standards must be met:
(1)
Application. A completed application as provided by Sandy City.
(2)
Occupants. A guesthouse shall be used only by the occupants of the primary dwelling or their non-paying guests.
(3)
Lot Size. A guesthouse will only be considered on a lot containing at least 20,000 square feet which has an existing owner-occupied single-family dwelling unit, or where a building permit has been issued and construction is in process for the single-family dwelling on a lot 20,000 square feet or larger.
(4)
Location. Guesthouse setbacks shall be no less than ten feet from the side and rear property lines and six feet from the primary dwelling unit. If a guesthouse is attached to an existing accessory structure, the living space of the guesthouse shall be ten feet from the property line. The guesthouse may be located within the rear (the area lying between the rear lot line and rear wall of the primary dwelling extended to the side lot lines) of the primary dwelling or within the side yard, provided that the guesthouse is located behind the front plane of the home. If the guesthouse is located within the side yard, the side yard setback shall be the same as the minimum in the zoning district in which the lot is located.
(5)
Maximum Size Permitted. In no case shall a guesthouse comprise more than 400 square feet and have no more than one bedroom. This square footage will be considered part of the allowable square footage of the respective zoning district for accessory structures.
(6)
Height. A guesthouse shall be limited to a single story and subject to the requirements for accessory structures.
(7)
Kitchen Facilities. There shall be no full-size kitchen or cooking facilities within a guesthouse. A limited kitchenette consisting of a microwave, compact refrigerator (less than 7.75 cubic feet and 36 inches or less in height), counter length not exceeding six feet, and a wet bar sink (12 inches wide or less) are permitted.
(8)
Site Plan. A site plan and architectural elevations shall be submitted to the Community Development Department to determine compliance with the requirements herein. The site plan shall be drawn to scale, clearly showing the location of all existing and proposed structures, walls, parking, driveways, and walkways.
(9)
Conversion. Existing accessory structures (shed, garage, workshop, etc.) may be converted to a guest house, provided that the proposed guesthouse complies with all title standards and the adopted Building Code. The number of required off-street parking stalls shall not be eliminated with the conversion of an accessory garage.
(10)
Basements. No basements will be allowed within a guesthouse.
(11)
Recordation. Approval for a guesthouse shall be recorded with the Salt Lake County Recorder's Office. Proof of recordation shall be submitted to the Community Development Department prior to issuance of a building permit. A recorded copy shall be kept on file with the Community Development Department.
(12)
Inspections. Yearly inspections may be required to determine compliance if determined appropriate by the Director or Chief Building Official.
(13)
Duration of Approval and Transferability. Upon sale of the home or change of primary occupant, the approval for guesthouse shall be transferred to the new owner or occupant. The new owner and occupant shall also be subject to these requirements.
(g)
Enforcement. In addition to any other legal or equitable remedies available to the City, upon a determination that a violation of the accessory apartment regulations exists, the City may also utilize all remedies identified and allowed under Section 10-9a-530 of Utah State Code, or its successor (see U.C.A. 1953, § 10-9a-530).
(LDC 2008, § 15A-11-01; Ord. No. 21-28, § 1(Exh. A), 9-28-2021; Ord. No. 24-11, § 1(Exh. A), 6-18-2024)
(a)
Residential Standards.
(1)
Setbacks and Location Restrictions.
a.
General. Eave projections shall not encroach more than four inches into the setback area. Accessory buildings shall be constructed in such a manner that the water runoff does not infringe onto adjoining property, and the setback areas are kept free of weeds, trash and debris. Accessory buildings located three feet or less from the property line shall have concrete, asphalt, or other approved surface between the property line and accessory building. Accessory buildings shall comply with the minimum setback distances listed in this section.
b.
"A" Designated Zones. Those properties within an "A" designated zone, with at least 40,000 square feet, shall be allowed to build an accessory structure, for animals or personal storage, within the front and/or side yard areas, provided the structure is beyond the required setbacks for main dwelling units. These accessory structures shall be limited to 20 feet in height, 2,000 square feet, and be at least 30 feet from neighboring dwelling units. The structure must be in scale and character with the main dwelling unit. Any exception from the height or setback requirements may be reviewed by the Planning Commission through the conditional use permit process.
c.
Table of Minimum Setbacks.
*There shall be a minimum three-foot-wide unobstructed access to the rear yard for emergency purposes. Said access may be gated, and may be located on either side yard of the home.
Accessory structures built closer than five feet to property line will be required to comply with the International Residential Code.
1.
Accessory buildings less than six feet from the main dwelling must meet the setback of the main dwelling of the underlying zone. If the accessory building cannot meet the setback of the main dwelling, it shall be setback six feet from the main dwelling.
2.
Additional setbacks may be required as per Subsections (a)(1)e and (a)(3) of this section.
d.
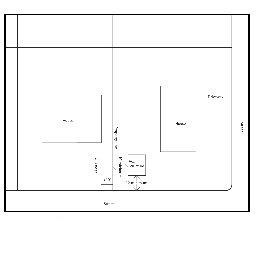
Corner Lots. An accessory structure may be located between the main dwelling unit and the front property line (see Figure 1), adjacent to a street, if the structure complies with the maximum height and size requirements listed below. These structures must be at least six-feet from the main dwelling and two-feet from the property line. No structures are allowed within the sight visibility triangle. These structures will not be allowed to have access to the public right-of-way closest to the structure, unless the Transportation Engineer reviews and approves the location based upon safety of pedestrians and vehicular access.
Figure 1. A Typical Setback Configuration for Corner and Interior Lots
If the adjacent interior lot has a driveway within ten feet of the rear property line of the corner lot, the structure must be setback at least ten feet from both the front and rear property lines. (See Figure 1a.)
Figure 1a. Location Restrictions on Corner Lots
e.
Lots with Multiple Street Frontages. Any accessory building on a lot with multiple street frontages is subject to additional setbacks from the property line abutting a street if the building is over ten feet in height. Additional height is allowed at a rate of one additional foot of height for each additional foot of setback (in excess of ten feet) to a maximum height allowed within the zone.
Figure 2. An Example of Lots With Multiple Street Frontages
A six-foot opaque fence is required if an accessory building is constructed along a street frontage to provide screening. A shorter non-opaque fence may be used if the property is located in a zone with an "A" designation. The height restriction and fencing requirement shall apply up to the point that a rear setback of 15 feet has been reached. If the accessory building is under ten feet in height (measured to the peak of the roof), no additional setback is required.
f.
Easements. Accessory buildings shall not encroach upon any easement or right-of-way without proper written release or acknowledgment from all utility and drainage companies. Copy of such release/acknowledgment shall be presented at time of building permit application. Release of use of the easement does not remove any other requirements as stated in this Code.
g.
Detached Garages. Detached garages or any detached structure 240 square feet or larger shall be substantially set within the rear yard of the home. They shall not be permitted in the side yard, except for minor encroachments as determined by the Director, or unless the structure meets or exceeds the minimum setbacks of the primary dwelling. These structures will not be allowed to have an additional access to the public right-of-way closest to the structure, unless the Transportation Engineer reviews and approves the location based upon established standards of this code and after considering safety of pedestrians and vehicular access.
(2)
Maximum Square Footage.
a.
Table of Maximum Accessory Structure Size.
1.
For those zones not listed (such as SD and PUD zones), the residential district most closely associated with that zone shall be used to determine the maximum size allowable. All zones with animal rights (with the "A" designation at the end of the zone classification) shall conform to its similar non-animal right zone classification.
2.
No single accessory building shall exceed 1,500 square feet, unless the Planning Commission approves a larger size through the conditional use permit process.
b.
Table of Maximum Accessory Structure Size for Corner Lots Between the Main Dwelling Unit and the Front Property Line, Adjacent to a Street (See Figure 1).
*Structures exceeding the above height and square footage limitations must be within the rear yard.
c.
Number of Accessory Buildings. A maximum of two accessory buildings are permitted on a property. This restriction does not apply to zones with an "A" designation.
d.
Conditional Use Permit. The total maximum square footage of all accessory buildings on the property may be increased up to 25 percent larger than the permitted size upon receipt of a conditional use permit from the Sandy City Planning Commission. However, the Planning Commission may not approve any accessory structure over 25 percent of the rear yard. For any properties over 40,000 square feet, or with an "A" designation, the total maximum square footage of all accessory buildings on the property may be increased up to 50 percent larger than the permitted size through a conditional use permit. The Planning Commission shall consider the scale of the buildings in relation to the immediate surroundings, the nature of the zone and land uses in the immediate vicinity, architectural design, landscaping, access, proposed use, impact upon adjacent properties, in addition to other criteria normally considered during the conditional use permit process. The Planning Commission may require additional setback from side and rear property lines as a condition of approval.
(3)
Maximum Height.
a.
Table of Maximum Accessory Structure Height.
* If the structure otherwise meets the minimum setbacks for the zone for a primary dwelling, it may be built up to the maximum height of the rear yard. The Planning Commission may review a request for additional height through a Conditional Use Permit.
1.
For those zones not listed (such as "SD" and "PUD" zones), the residential district most closely associated with that zone shall be used to determine the maximum height allowable. All zones with animal rights (with the "A" designation at the end of the zone classification) shall conform to its' similar non-animal right zone classification.
b.
Additional Setback Requirement. Detached structures exceeding 15 feet in height shall increase the minimum setback one foot for each one foot of additional height up to the minimum setback for the primary dwelling. However, if the accessory building abuts a property line that is adjacent to a commercially zoned property, then no additional setback is required. This requirement may also be waived by the Planning Commission through a conditional use permit process.
c.
Conditional Use Permit. A building may be built taller, up to the maximum building height for a permitted dwelling within the zone in which it is located, upon receipt of a conditional use permit from the Sandy City Planning Commission. The Planning Commission shall consider the scale of the building in relation to the immediate surroundings, the nature of the zone and land uses in the immediate vicinity, architectural design, landscaping, access, proposed use, impact upon adjacent properties, in addition to other criteria normally considered during the conditional use permit process. The Planning Commission may require additional setback from side and rear property lines as a condition of approval.
(4)
Other Requirements.
a.
Ancillary to Main Dwelling. Accessory buildings are only allowed on properties where a main dwelling or building exists, except as provided in Section 21-11-3.
b.
Utility Connections. Separate meter connections for electricity, water, sewer, or gas utilities are not permitted for accessory buildings.
c.
Architectural Guidelines. Generally, accessory structures and buildings shall be designed and constructed as to be compatible with the architectural components of the main dwelling or building. However, if the accessory structure is intended to be an outdoor animal domicile see Section 21-11-3; other standards may apply, such as location, visibility, scale, general aesthetics in the immediate vicinity, etc.
d.
Building Standards. Accessory buildings must meet all construction standards and fire rating requirements of the International Residential Code (IRC).
e.
Lots without Attached Garage. For those residences that were not originally constructed with an attached two-car garage, a detached garage may be built in the rear yard up to 480 square feet in size regardless of the percentage of the lot covered. The garage must meet the minimum garage size standards as determined in this title. In no way does this section permit the intrusion into required building setbacks to property lines, easements or main structures.
f.
When Detached Garages are Primary Garages. All detached garages that serve as the primary garage for a dwelling are subject to review by the Sandy City Transportation Engineer to determine if the location of the structure is safe and accessible.
g.
Screening Required for Side Yards. Accessory buildings in the side yard shall be screened from view from access streets and adjacent properties by a six-foot opaque type screening unless located in a zoning district with an "A" designation.
h.
Other Structures. These provisions do not apply to children's play equipment, flagpoles, light poles, stand-alone arbors, or other similar structures.
i.
Prohibited Structures. Shipping containers, semi-trailers, boxcars, portable on demand storage (PODS), temporary carports, canopies, tents, or similar structures may not be installed or maintained on a residential lot for longer than 30 days, or up to six months with a valid building permit for construction on the property.
(b)
Nonresidential Standards.
(1)
Accessory structures are only allowed if designated on a City-approved site plan.
(2)
Accessory structure heights shall not exceed 15 feet at the peak of the roof and must have a minimum three-twelfths pitch.
(3)
Setbacks shall follow the development standards specified in this title for the main structure unless otherwise stipulated.
(LDC 2008, § 15A-11-02; Ord. No. 09-28, 10-19-2009; Ord. No. 10-26, 7-30-2010; Ord. No. 09-19, 7-31-2010; Ord. No. 15-29, 9-12-2015; Ord. No. 19-10, § 1(Exh. A), 4-9-2019)
(a)
Farm Animals.
(1)
Designation of Appropriate Zone Districts. Property owners in any R-1-40, R-1-30, R-1-20, or R-1-15 residential district may submit an application for rezoning for designation of the district for the keeping and raising of farm animals. An "A" following a zone designation indicates farm animals are permitted.
(2)
Procedure for Designation. A request for rezoning must include at least five contiguous properties or have at least 1½ acres.
(3)
Ratio of Animals to Lot Size for Farm Animals. In order to have farm animals on a residential lot with an "A" designated zone, the following minimum square footage requirements will be required for each animal:
a.
Each large animal requires at least 10,000 square feet. Each medium animal requires at least 4,000 square feet. Each small animal requires at least 400 square feet. For example, a 20,000 square foot lot could have no more than two large animals, or no more than five medium animals, or no more than 50 small animals, or a combination of one large animal, two medium animals, and five small animals.
b.
Vietnamese potbellied pigs may be kept at a ratio of two animals for each one-half acre of lot size (no less than 20,000 square feet). The maximum number of Vietnamese potbellied pigs shall be two per residential lot.
(b)
Household Pets.
(1)
Maximum Number Allowed. All zones are allowed no more than a total of six common household pets (dogs, cats, rabbits, and ducks). These household pets may be kept on-site for family use only. Roosters are not allowed as a household pet. Exceptions:
a.
In addition to the six common household pets, there shall be no more than ten chickens, kept on a non-nuisance basis.
b.
No more than three dogs per residence are allowed unless the resident has procured a dog hobby license to allow up to a total of five dogs.
(c)
Outdoor Animal Domiciles Structure. Partially enclosed and/or roofed structures (e.g., barns, corrals, cages, pens, coops, kennels and runs, etc.) are encouraged to be provided and maintained for all animals kept outdoors. Such structures shall be sited at the rear of the main dwelling and at least 30 feet from neighboring dwellings and comply with all other setback and yard regulations for accessory structures (unless the parcel is over 40,000 square feet and the accessory structure is placed beyond the front or side yard setbacks. See Subsection (a)(1)b of this section). The facilities shall be placed in compliance with all animal regulations, noise and nuisance regulations, and Salt Lake Valley Health Department regulations and procedures, with the following exceptions:
(1)
All dog kennels and dog runs must be set back at least ten feet from the property line and at least 40 feet from all neighboring dwellings.
(2)
For properties which have an "A" designation, the Director may allow an outdoor animal domicile structure for farm animals to be constructed prior to construction of a main dwelling under the following conditions:
a.
The structure complies with all accessory structure setback, height, and size standards.
b.
The structure is in scale and character with other accessory buildings located within one-half mile of the property and located in the same or larger lot zone district or is an improvement to the immediate area (e.g., R-1-15A, R-1-20A, R-1-30A, R-1-40A).
c.
That an agreement be recorded against the property that the structure will be relocated or removed as necessary to comply with setback standards upon additional development of the property (e.g., construction of the main dwelling, subdivision, etc.). In addition, a plot plan shall be submitted which indicates the location of the structure in relation to a future residence on the property, and this information shall also be provided within the agreement.
Note: This section applies only to those animal facilities placed outside the main dwelling unit. This regulation does not apply to any location within the interior of the home, including the garage or other attached interior space.
(LDC 2008, § 15A-11-03; Ord. No. 12-05, 1-31-2012; Ord. No. 12-22, 6-18-2012; Ord. No. 15-25, 7-21-2015; Ord. No. 20-3, § 1, 6-6-2020)
(a)
Development Standards. The following regulations shall apply to dwellings constructed underground or partially underground for purposes of energy conservation:
(1)
Emergency Egress. There shall be immediate emergency egress from all sleeping rooms.
(2)
Exterior Windows. At least half of the habitable rooms of an earth-sheltered dwelling unit shall be provided with exterior windows and shall receive a minimum of one hour of sunlight on each clear day. There shall be a minimum exposure of western windowed walls to the late afternoon sun in the summer.
(3)
Natural Light. Artificial light may be allowed as a substitute for natural lighting. However, the overall natural lighting or exterior glazing requirement shall be eight to ten percent of the floor area of the habitable rooms.
(4)
Minimum Floor Area. The required minimum floor area may be waived for any earth-sheltered dwelling structure if that structure is designed for energy conservation, and the structure will meet all applicable building, development, and health codes.
(5)
Setbacks. Any exterior wall in an earth-sheltered dwelling unit may extend into the rear, side, or front setback a maximum of one-half of the required setback distance of that zone district. Exceptions include:
a.
Any exterior wall containing a window facing the front street property line shall be built behind the required front setback area.
b.
The distance between the side lot line and a side wall containing windows shall not be less than six feet from the side property line.
c.
No part of the outdoor living area shall exceed eight percent slope, and 15 feet of the depth shall not exceed two percent slope.
d.
No inside living space or exterior wall may encroach upon any easement, right-of-way, any access for maintenance, or cause instability to neighboring structures.
(6)
Bermed Structures. Bermed structures shall have one foot of setback for every foot of berm above existing grade.
(7)
Guardrails. Fences or barriers shall be required along roof edges or any vertical drop. Fences or barriers which will prevent access to the roof area may be set back from the roof edge.
(b)
Site Plan Review. Plans for construction of earth-sheltered dwellings shall be subject to the applicable standards outlined in this title, including a Grading and Landscaping Plan.
(LDC 2008, § 15A-11-04)
(a)
Purpose. The purposes of this Section are to:
(1)
Provide an opportunity for home occupations as an accessory use when they are compatible with the neighborhoods in which they are located.
(2)
Provide an opportunity for a home occupation to engage in the business of child care and other group child activities and encourage this type of home occupation to draw clients/customers from their immediate neighborhood.
(3)
Guide business activities which are not compatible with neighborhoods to appropriate commercial zones.
(4)
Safeguard peace, quiet, and domestic tranquility within all residential neighborhoods. Protect residents from the adverse effects of business uses being conducted in residential areas from noise, nuisance, traffic, fire hazards, and other possible business uses that create significant impacts on a neighborhood.
(5)
Provide a means to enforce and regulate the businesses that are licensable through the authority of the business license regulations of this Code, and, if necessary, terminate home occupations if violations of the ordinances regulating home occupations occur.
(b)
Home Occupation License. All home occupations shall be licensed unless specifically provided an exemption in this Section or in the business license regulations of this Code. Regardless of whether a license is required, all home occupations must adhere to the standards and qualifications listed in this Section. The authority to issue a license to conduct a home occupation shall be under the jurisdiction of the Business License Office of the Community Development Department.
(c)
Categories and Requirements of Home Occupation Licenses. Home occupation businesses are classified as Category I, Permitted Home Occupation, or Category II, Conditional Use Home Occupation. A Category II, Conditional Use Home Occupation requires review and approval of the Planning Commission.
(d)
Home Occupation Standards. All home occupations, licensed or not, shall comply with the following standards at all times:
(1)
Bona Fide Resident. The home occupation business shall be owned by and carried on only by a bona fide resident of the home that resides in the home more than six months (183 days or more) per calendar year. Proof of residency shall be provided as follows:
a.
A signed statement stating that the property is the primary residence of the business owner and will remain as the primary residence for the duration of the home occupation license; and
b
A government-issued identification listing the address of the property as the address of the business owner, unless the Director determines, for good cause, it is not required.
(2)
Satellite Office Not Allowed. A home occupation shall not be construed to mean an employee working in his home in the service of an employer whose principal place of business is licensed at another location. Business activities that do not qualify for the exemption from licensure as described in this Section shall not be conducted at the home of an employee of a company and shall not be conducted by nonresident company employees.
(3)
Accessory Use on the Property. For residential purposes, the home occupation shall be clearly secondary and incidental to the primary use of the dwelling unit.
(4)
On-Site Employees. One full-time or full-time equivalent nonresident may be employed, volunteer, or work on the premises where the home occupation business is located. No more than two persons shall comprise the equivalent full-time employee, and only one nonresident employee may work at the home at one time.
(5)
Off-Site Employees. Any home occupation may utilize employees to work off-site. The off-site employee, volunteer, hiree, or any other person engaged with the home occupation shall not come to the home for purposes related to the home occupation business license except for incidental vehicle stops.
(6)
Off-Street Parking. All business-related vehicles which park at the location of the home occupation, including those of the applicant, employee, customers, clients, or business-related visitor vehicles, must use off-street parking. This provision excludes stops made by delivery vehicles.
(7)
Vehicle Advertisement. Vehicles, trailers, or equipment may not be used for the primary purpose of advertising the home occupation at the site of the home occupation.
(8)
Designating Areas of Property to be Used. The home occupation applicant must designate the portion of the home, accessory structure, yard, or attached or detached garage to be used as the location for business activities. No businesses are allowed to operate outside of an enclosed structure, unless otherwise approved by the Planning Commission for outside activities.
(9)
External Appearance. The home occupation must maintain or improve the external residential appearance of the principal structure, attached or detached garage, or accessory structure. Any structural alterations to accommodate the home occupation shall maintain the architectural aesthetics and compatibility of the neighborhood.
(10)
Outdoor/Yard Space. The home occupation shall not involve the use of any yard space for storage or display of supplies, inventory, or equipment when such use is in conjunction with the sales, service, or production of goods, unless specifically stored within trailers or accessory structures as allowed herein. Any screened area or structure used for the home occupation must be located in either the side or rear yard areas.
(11)
Business Trailer. One trailer may be used in association with the home occupation. Trailers allowed in conjunction with a home occupation are as follows:
a.
An open or enclosed trailer with a body length of 20 feet or less, excluding the tongue.
b.
Materials/equipment shall not be stored outside of the trailer.
c.
The trailer shall be placed in the side or rear yard behind a fence or garaged on private property and not within the front yard of the dwelling. If the home is located on a corner lot, the trailer shall not be stored on the street side of the house unless it is out of the required front yard setback. If the topography of the lot prohibits the parking of the trailer on the side or rear yard, the trailer must be stored off-site.
d.
The trailer must be well-maintained and must not present negative impacts for adjacent neighbors, including, but not limited to, odors, dust, or parking location.
e.
All areas utilized for the parking of trailers shall be paved with a hard surface (e.g., concrete, asphalt, brick, or other water impenetrable surface). This includes the side and rear yard of the home. It is prohibited to park upon areas that have been landscaped or are reserved for future landscaping.
f.
A site plan shall be included with all business license applications indicating where the trailer will be stored outside of the front yard.
(12)
Commercial Vehicle. Only one such vehicle may be parked on a residential lot. A commercial vehicle parked or stored on a residential lot must be owned or apportioned by an occupant who resides at the residence. This vehicle must comply with all residential parking requirements contained within this title.
(13)
Conformity with Safety Codes. There shall be complete conformity with fire, building, plumbing, electrical, and all other City, County, State, and Federal codes.
(14)
Health and Safety. No process can be used which is hazardous to public health, safety, morals, or welfare.
(15)
No Excessive Utility Uses. The home occupation shall not cause a demand for municipal, community, or utility services that are substantially in excess of those usually and customarily provided for residential uses.
(16)
Neighborhood Disruptions Not Permitted. The home occupation shall not interfere or disrupt the peace, quiet, and domestic tranquility of the neighborhood. The home occupation shall not create or be associated with or produce odor, smoke, dust, heat, fumes, light, glare, noises or vibrations, excessive traffic, or other nuisances, including interferences with radio and television reception, or any other adverse effects within the neighborhood.
(17)
Renter/Owner Responsibility. If the applicant for a home occupation license rents or leases the property wherein the home occupation is intended to be conducted, the applicant must provide a letter of acknowledgment and consent from the property owner at the time the application is submitted to the Business License Office.
(18)
Interior Alterations/Remodeling. Interior alterations of the principal dwelling for the purpose of accommodating the home occupation are prohibited if such alteration eliminates the kitchen, and/or all of the dining areas, bathrooms, living areas, or all of the bedrooms.
(19)
Exempt from Business Licensure. A business license will not be required unless the combined off-site impact of the home occupation and the primary residential use materially exceeds the impact of the primary residential use alone. If a home occupation has any of the following impacts, a business license is required:
a.
Business-related customers, client visits, or meetings on the property.
b.
Signage or advertising of the business that is visible from the exterior of the home.
c.
The business owner or operator desires a physical copy of a business license.
d.
Any nonresident working on the property.
e.
Business-related deliveries are made to or from the property.
f.
Accessory or commercial vehicles are stored or parked on the property for the home occupation.
g.
The home or property requires inspections from any regulatory authority or agency, including, but not limited to, the City, Salt Lake Valley Health Department, and/or the Department of Agriculture.
h.
The business generates any additional vehicular traffic or parking on the property.
i.
If the State requires a sales tax number for any reason.
j.
If the home occupation is categorized as a Category II, Conditional Use Home Occupations, as described herein.
k.
If the home requires any modification requiring a building permit to accommodate the business operations.
l.
When the business use within the home exceeds 25 percent of the primary dwelling.
(e)
Category I Qualifications. In addition to the standards previously set forth above, all Category I home occupation businesses must also comply with the provision of the qualifications outlined below. If a business finds that they are unable to fully comply with all of the qualifications set forth, the applicant may pursue possible approval as a Category II home occupation through the conditional use permit process before submitting the application for a home occupation business license.
(1)
Hours. No visitors in conjunction with the home occupation (clients, patrons, employees, volunteers, students, pupils, etc.) shall be permitted between the hours of 10:00 p.m. and 6:00 a.m.
(2)
Traffic. Vehicular traffic from business related visitors and customers shall not exceed that which normally and reasonably occurs for a home in the neighborhood and shall be conducted so that the neighbors will not be significantly impacted by its existence. The home occupation shall be limited to two business related visitors or customers per hour, to a maximum of eight business related visitors or customers per day. Business related deliveries or pickups shall not exceed two per day.
(3)
Delivery Vehicles. The receipt or delivery of merchandise, goods, or supplies for use in a home occupation shall be limited to vehicles with a gross vehicle weight rating (GVWR) of 23,000 pounds or less.
(4)
Conducted in a Home. When business activities are being conducted on the property that is to be licensed, the home occupation shall be primarily conducted within the principal home.
(5)
Maximum Floor Space. No more than 25 percent of the total main floor area or upper living levels of the dwelling unit, nor, in the alternative, more than 50 percent of the total floor area of any basement of the home unit shall be utilized for the home occupation.
(6)
Signs. The home occupation may utilize one unanimated, nonilluminated flat sign for each street upon which the home abuts. The sign must be placed either in a window or on the exterior wall of the home wherein the home occupation is being conducted and may not have an area greater than one square foot.
(7)
Display of Products. The home occupation may include the sale of tangible goods. Direct sales from display apparatus is permitted only if the goods or products are not visible from the exterior of any approved structure being used for the home occupation.
(8)
Food or Beverage Preparation for Consumption Outside of the Home. Any home occupation involving or proposing to involve food or drink preparation, storage, or catering will be permitted when it is authorized by the appropriate State or County department or agency.
(9)
Category I Home Occupation Licensing Involving Child Day Care and Other Child Group Activities.
a.
This type of home occupation shall not exceed eight children associated with child day care or other child group activities (e.g., dance schools, preschool, music classes, etc.) at any one time. A maximum of eight students/children are permitted per day. This number shall include the licensee's own children if they are under six years of age and are under the care of the licensee at the time the home occupation is conducted.
b.
All child day care and other group child activity facilities shall provide safe, outdoor play time and spaces as required by Federal, State, County, or local laws governing such business activities.
(10)
Category I Home Occupation License Involving Adult Day Care.
a.
This type of home occupation shall not exceed supervising more than two elderly persons 60 years of age or older or more than two persons who have an intellectual or physical disability or acquired brain injury, as defined by the Utah Department of Health and Human Services (DHHS) Division of Services for People with Disabilities (DSPD). Any home occupation of this nature which exceeds two individuals or more than 12 hours of operation will be considered a Category II home occupation and shall be reviewed and approved by the Planning Commission.
b.
This type of home occupation must comply with all local and state laws governing such business activity.
(11)
Category I Home Occupation Licensing Involving Renting Recreational Vehicles from Personal Property in Single-Family Residential Zones.
a.
A property owner/resident living in the home may rent one recreational vehicle that is owned by the owner/resident. Where more than one recreational vehicle can fit on a recreational trailer, the owner may rent a maximum of two recreational vehicles.
b.
Any recreational vehicle must be parked according to the residential parking requirements and restrictions within this title, except that any recreational vehicle that is being rented from the home must be parked on a hard surface (concrete, asphalt, brick, or other impenetrable surface). In addition, the maximum area of hard surface for the purpose of parking a recreational vehicle shall be complied with.
c.
Advertising on the recreational vehicle is prohibited.
d.
Servicing the recreational vehicle shall be limited to those activities which will comply with Chapter 13-2 and Title 19.
e.
Any customer renting the recreational vehicle shall not leave their own car on the street, but may place their vehicle on the homeowner's property in compliance with all residential parking requirements during the time the recreational vehicle is being rented.
(12)
Category I Home Occupation Licensing Involving a Home-based Microschool.
a.
A Home-based microschool provides kindergarten through grade 12 education services for compensation. A home-based microschool does not include a daycare.
b.
A maximum of eight students is permitted at any one time.
c.
A maximum of eight students is permitted per day.
d.
The maximum number of students includes the licensee's and any employees' children if they are a student at the time the home occupation is conducted.
(f)
Category II, Conditional Use Permit Required. If a home occupation is able to comply with all of the standards but is unable to comply with all of the Category I qualifications established above, the proposed business activities must be reviewed by the Planning Commission and granted a conditional use permit before pursuing a home occupation business license through the Business License Office.
(1)
General. In addition to any conditions established by the Planning Commission at the time of its review, all Category II home occupations must comply with the following:
a.
All Category II home occupation uses shall only be conducted from property with a single-family dwelling.
b.
The conditional use permit and the home occupation business license shall be maintained in good standing for the entire period that business is being conducted.
(2)
Compliance. Uses are appropriate as licensable home occupations only if they are determined to be compatible with residential neighborhoods after full conditional use review by the Planning Commission, compliance with Title 15, all of the standards and qualifications that have not been granted an exception through the conditional use process, and additional regulations set forth hereafter.
(3)
Child Day Care. The following items indicate maximum limits that may be granted by the Planning Commission when a child day care is expected to exceed eight children at one time:
a.
A maximum of 16 children is permitted at any one time.
b.
A maximum of 18 children is permitted per day.
c.
These numbers shall include the licensee's and any employees' children if they are under six years of age and are under the care of the licensee at the time the home occupation is conducted.
d.
A maximum of 24 vehicular stops per day for child drop off or pick up is permitted.
(4)
Group Child Activities. The following provisions indicate a maximum limit that may be granted by the Planning Commission for other group child activities which are expected to generate or exceed eight children/students (e.g., dance schools, preschools, music classes, other care or instruction for children) at any one time other than child day care:
a.
The following guidelines shall be used to determine the maximum number of students/children permitted:
1.
A Traffic Plan that has been reviewed and approved by the City Transportation Engineer which includes acceptable traffic flow, drop off, and turn-around areas.
2.
The existing residential street is of sufficient width to accommodate additional vehicular traffic.
b.
A maximum of 12 students/children per session and a maximum of 24 students/children per day shall be permitted.
c.
A maximum of four sessions per day may be permitted.
d.
All sessions combined shall not generate more than 24 vehicular stops per day.
e.
The total number of students/children shall include the licensee's and any employees' children if they are under six years of age and are under the care of the licensee at the time the home occupation is conducted.
f.
No group child activities falling under a Category II home occupation may be established within 300 feet as measured from property line to property line of another group child activity, Category II home occupation use.
(5)
Home-based Microschool. The following provisions indicate maximum limits that may be granted by the Planning Commission when a Home-based Microschool is unable to fully comply with all the qualifications set forth for a Category I Home Occupation License.
a.
The following shall be used to determine the maximum number of students permitted:
1.
A Traffic Plan that has been reviewed and approved by the City Transportation Engineer which includes acceptable traffic flow, drop off, and turn-around areas.
2.
The existing residential street is of sufficient width to accommodate additional vehicular traffic.
3.
No more than 24 vehicular stops per day for student drop off or pick up is permitted.
b.
A maximum of 16 students is permitted at any one time.
c.
A maximum of 16 students is permitted per day.
d.
The maximum number of students includes the licensee's and any employees' children if they are a student at the time the home occupation is conducted.
(6)
Work Shops. Repair shops, including welding, carpentry, sheet metal work, furniture manufacturing, upholstery, and other similar manufacturing activities
(7)
Business Not Conducted Within a Home. Any home occupation which proposes or conducts activities within an outbuilding, accessory building, attached or detached garage. The following standards shall be used to determine the maximum impacts permitted:
a.
The applicant for a home occupation business license shall designate the areas of the home, attached/detached garage or accessory structure that will be used for the home occupation. If approved, the home occupation may be conducted only in the designated area.
b.
No more than a maximum of 200 square feet, or, in the alternative, no more than 50 percent of the total floor space (whichever is the greater) of any accessory structure or attached or detached garage may be used for a home occupation unless an exception is granted by the Planning Commission through the conditional use permit, and they find that:
1.
The total floor space used for the home occupation in a detached accessory structure does not exceed the maximum size of an accessory structure that is permitted by-right within the zone, as regulated in this title (for example, the size of the accessory structure does not require a conditional use permit); and
2.
The use does not adversely impact the residential character of the neighborhood.
c.
Any home occupation uses in an attached or detached garage may not eliminate minimum parking requirements for the particular zone wherein the home occupation is located. The required minimum off-street parking area shall be maintained and clear of all materials and equipment that would prohibit the parking of vehicles during nonbusiness hours.
d.
Any accessory structure used for a home occupation must maintain the architectural aesthetics or compatibility of the home and the immediate neighborhood.
e.
The home occupation may utilize one unanimated, nonilluminated flat sign to be attached to the accessory structure where the home occupation is being conducted in lieu of a sign attached to the home or in a window. The sign may not have an area greater than one square foot.
(8)
Home Occupations and Outdoor Activities. Any home occupations proposing to conduct business utilizing any yard space or in a swimming pool.
(9)
Dangerous Home Occupations. Any home occupation using explosives, incendiary products and devices, flammable, or hazardous chemicals.
(10)
Home Occupations Generating Excessive Traffic. Any home occupation which will generate in excess of two customers or visitors per hour or eight per day. A maximum of 12 business-associated visitors per day may be allowed under a conditional use permit, except as provided for child day care and other group child activities.
(11)
Large, Business Related Vehicles. Any home occupation which utilizes vehicles more than 24 feet in length (with the exception of renting recreational vehicles).
(12)
More Than Two Home Occupation Licenses. Any home where the applicant is seeking more than two home occupation licenses.
(g)
Prohibited Home Occupations. The following uses, by nature of the occupation, substantially impair the use and value of residentially zoned areas for residential purposes and are, therefore, prohibited:
(1)
Mortuary, crematorium, columbarium, or mausoleum.
(2)
Animal hospitals or veterinary services.
(3)
Clinic, dental office, medical office, chiropractic office, or hospital.
(4)
Junkyard, auto wrecking yard, or salvage yard.
(5)
Stables, animal kennels, animal day-care, on-site animal training, pet store, commercial animal breeding business, or any other similar activities are prohibited.
a.
Activities may be allowed within the scope of a hobby license as issued by the Animal Services Division of Sandy City.
b.
Pet grooming services without on-site kenneling may be allowed to operate in accordance with the standards of this section.
(6)
Storage, service, repair, or sales of ambulances, tow trucks, recreational vehicles, water craft, automobiles, ATVs, or other motorized vehicles.
(7)
Fitness or health spa facilities that exceed two clients at a time.
(8)
Boutiques, sample sale, or craft shows.
(9)
Auto body repair or motor vehicle repair.
(10)
Use of specified chemicals, pesticides and flammable/combustible materials, and including any other process or business where current adopted Building and Fire Codes would require an operational permit.
(11)
Number of vehicular stops or visits that would exceed 24 per day.
(12)
Massage therapy or other alternative healing and energy healing businesses, with the exception that a home occupation license may be issued if the applicant is the only person employed in said operation and has obtained any required licenses from the State of Utah. Limit one massage therapy or alternative healing and energy healing business per residence. All other standards and Category I qualifications must be complied with. No massage therapy or other alternative healing and energy healing businesses may be permitted if a Category II qualification is required.
(13)
Bed and breakfast facilities.
(14)
Parent-child or adult group activities that exceed two clients at a time.
(Ord. No. 09-18, 7-31-2009; Ord. No. 10-45, 12-14-2010; Ord. No. 12-33, 9-17-2012; Ord. No. 15-25, 7-21-2015; Ord. No. 16-13, 3-23-2016; Ord. No. 17-29, § 1, 12-1-2017; Ord. No. 24-05, § 1(Exh. A), 3-26-2024; Ord. No. 24-14, § 1(Exh. A), 7-30-2024)
All manufactured homes placed in an R-1 zone, placed pursuant to U.C.A. 1953, § 10-9a-514, shall install a concrete foundation wall around the perimeter of the structure. Such structures shall also include a required two-car garage (attached or detached) prior to occupancy of the structure.
(LDC 2008, § 15A-11-06)
No mobile home shall be placed, used, or occupied except within approved mobile home subdivisions, mobile home parks, or mobile home sales lots.
(LDC 2008, § 15A-11-07)
(a)
Purpose. The purpose of this section is to:
(1)
Comply with the Utah Code Annotated.
(2)
Avoid discrimination in housing against persons with disabilities pursuant to the Utah Fair Housing Act (U.C.A. 1953, § 57-21-1 et seq.) and the Federal Fair Housing Act, as interpreted by courts whose decisions are binding in Utah. This section is not a separate zone for such facilities, but applies to all residential zones within Sandy City. If any facility, residence, congregate living, or other housing arrangement meets the definition of a residential facility for elderly persons or a residential facility for persons with a disability as set forth in this title, the requirements of this section shall govern the same, notwithstanding any conflicting provision of this Code. Except as provided herein, the requirements of this section shall not be construed to prohibit or limit other applicable provisions of this Code, or other local, County, state, or federal laws.
(b)
Permitted Uses.
(1)
Permitted Uses. Notwithstanding any contrary provision of this title, a residential facility for elderly persons and a residential facility for persons with a disability shall be permitted uses in any zone where a dwelling is allowed as a permitted or conditional use subject to the development standards in Subsection (d) of this section.
(2)
Termination. A use permitted by this section is nontransferable and shall terminate if:
a.
The facility is devoted to a use other than a residential facility for elderly persons or a residential facility for persons with a disability.
b.
Any license or certification issued by the Utah Department of Health or the Department of Human Services for such facility terminates or is revoked.
c.
The facility fails to comply with requirements set forth in this Code.
(c)
Review Process. In addition to other information required by this Code, the following information must be submitted with the business license application for a residential facility. Additional information may be requested to aid in that review.
(1)
A statement of the specific type of facility (as defined by State regulations) the applicant seeks to operate and by which State agency it is regulated.
(2)
The number of residents and resident staff who will live at the residential facility.
(3)
The complete name of the business, the type of business entity and whether the business is a for-profit or nonprofit organization.
(4)
The typical or average length of stay of the residents.
(d)
Development Standards. The development standards set forth in this subsection shall apply to any residential facility for elderly persons or residential facility for persons with a disability.
(1)
Building, Safety, and Health Regulations. The facility shall comply with building, safety, and health regulations applicable to similar residential structures within the residential zone in which the facility is located.
a.
Each facility shall be subject to the same development standards applicable to similar residential structures located in the same zoning district in which the facility is located.
b.
The minimum number of parking spaces required for a facility shall be the same as for similar structures located in the same zoning district in which the facility is located.
(2)
No Dangerous Persons Permitted. No facility shall be made available to an individual whose tenancy would:
a.
Constitute a direct threat to the health or safety of other individuals.
b.
Result in substantial physical damage to the property of others.
(3)
Day Treatment and Outpatient Treatment. Any such facility may seek an approval from the Planning Commission which would allow day treatment and/or outpatient treatment if the following measures have been taken to ensure the facility will not alter the fundamental character of the neighborhood:
a.
The facility has direct access to an arterial or major collector street, with no access permitted to any minor collector or local street.
b.
The facility is located on the same block or within 800 feet of an institutional care facility.
c.
The facility has enough off-street parking to accommodate each staff member, van/carpool parking, and each outpatient client.
d.
All day treatment clients are transported to the residential facility for disabled persons from a separate facility using a van/carpool.
e.
The maximum number of day and outpatient treatment clients will not exceed eight at any one time as permitted by the Building Code.
f.
The facility is licensed for all three different activities by both the City and the State.
g.
The facility meets all Building, Fire, and Life Safety Codes.
h.
Any approval is subject to periodic review or review upon legitimate complaint. If, upon review, the facility is found to be out of compliance with these criteria, the approval may be revoked.
(4)
Prohibited. A residential facility for persons with a disability that would likely create a fundamental change in the character of a residential neighborhood is not allowed.
(e)
License and Certification. Prior to occupancy of any facility, the person or entity operating the facility shall:
(1)
State License. Provide to the City a copy of any license or certification required by the Utah State Department of Health or the Utah State Department of Human Services, including any policies and procedures that are required under state law.
(2)
Certification Requirements. Certify in a sworn statement that no person will reside or remain in the facility whose tenancy would:
a.
Constitute a direct threat to the health or safety of other individuals.
b.
Result in substantial physical damage to the property of others.
(3)
City License. Obtain a Sandy City business license, if required.
(4)
Compliance/Renewal. Any such facility must comply with all Federal, State, County, and City regulations. At the time of renewal, the applicant must provide copies of all necessary certifications/recertifications or licenses as required by State regulations.
(f)
Accommodation Request.
(1)
Reasonable Accommodation Required. In accordance with the Americans with Disabilities Act, the Fair Housing Act, Fair Housing Amendments Act and applicable law, none of the requirements of this section shall be interpreted to limit any accommodation which is reasonable and necessary to allow the establishment or occupancy of a residential facility for persons with a disability.
(2)
Request for Accommodation. Any person or entity may request an accommodation after being informed that an existing or proposed:
a.
Residential facility for persons with a disability; or
b.
Business license application or building permit application for a residential facility for persons with a disability, does not comply with the requirements of this title. The application and required fees shall be submitted to the Director, shall articulate in writing the nature of the requested accommodation and the basis for the request, and shall include all other information relevant to the request. The requested accommodation must relate to the use of the property so that it may be enjoyed as other similarly situated properties.
(g)
Review and Hearing Process. A Hearing Officer with demonstrated experience as a Hearing Officer and knowledge of the Americans with Disabilities Act or Fair Housing Act, shall be appointed by the Mayor with the advice and consent of the City Council, to review the request for accommodation. Additional information may be requested by the Hearing Officer to aid in that review.
(1)
Hearing Officer Scheduling of Hearing. The Hearing Officer shall review the request for accommodation within ten days after receipt of the written request by the Director. The Hearing Officer shall determine whether additional information is needed from the Director, the person or entity making the request, or both.
a.
If additional information is needed, the Hearing Officer shall notify the Director and the person or entity making the request within 21 days after receipt of the written request by the Director. The Director and requesting person or entity shall have seven days to submit the requested information, or such reasonable additional time as approved by the Hearing Officer. The Hearing Officer shall determine within three days after receipt of additional information whether the submission is responsive to the Hearing Officer's request.
b.
If no additional information is needed or if the Hearing Officer receives the requested additional information, the Hearing Officer shall schedule a hearing. The Hearing Officer shall provide written notice of the hearing date and time to the person or entity requesting the accommodation and the Director. Unless otherwise agreed to by the person or entity requesting the accommodation and the Director, the Hearing Officer shall hold the hearing within 14 days after the Hearing Officer determines that all requested information has been received and no additional information is needed. Unless agreed upon by the person or entity requesting the accommodation and the Director, the hearing shall be held no more than 45 days after receipt of the request by the Director. If the Hearing Officer has not received all requested information at that time, the Hearing Officer may continue the hearing or deny the request based on insufficient information.
(2)
Findings. The Hearing Officer shall make a determination and prepare written findings within seven days after the hearing.
a.
At a minimum, the written findings shall address the following issues:
1.
Whether the requested accommodation is reasonable;
2.
Whether the requested accommodation is necessary for financial and therapeutic viability;
3.
Whether the facility with the requested accommodation is or is not likely to create a fundamental change in the character of the residential neighborhood; and
4.
Other findings in support of the Hearing Officer's determination.
b.
The Hearing Officer shall mail a copy of the written determination and findings to the Director and the person or entity requesting the accommodation, along with a letter notifying the Director and the person or entity requesting the accommodation that the decision is final and may be appealed to a court of competent jurisdiction.
c.
The Hearing Officer shall forward a copy of the decision to the Mayor, the City Recorder and the City Council.
(3)
Appeal. The determination of the Hearing Officer shall be final and may be appealed to a court of competent jurisdiction.
(h)
Exemptions. A residential facility for persons with a disability shall not include facilities which house persons who are violent, who are not voluntarily residing therein, or who are residing therein as a part of or in lieu of confinement, rehabilitation, or treatment in a correctional facility.
(LDC 2008, § 15A-11-08; Ord. No. 10-04, 2-19-2010; Ord. No. 17-14, exh. A(15A-11-08), 6-21-2017)
State Law reference— Regulation of residential facilities for persons with disabilities, U.C.A. 1953, § 10-9a-516.
(a)
Residential Zones. Half-pipe ramps may be allowed as a conditional use. The following is required for review prior to approval of a half-pipe ramp as a conditional use in any residential zone:
(1)
Drawings. Drawings showing the scale, design, and materials of which the half-pipe ramp is to be built. This is to evaluate the noise, vibration, and nuisance impact of the half-pipe ramp.
(2)
Description. A written description of the materials and location of all screening to evaluate the half-pipe ramp's impact upon and harmony with adjacent properties.
(3)
Lighting. A written description of the scale, location, and direction of all lighting.
(4)
Rules. A set of written rules which will govern the use and operation of the half-pipe ramp.
(5)
Neighborhood Notification. The names and addresses of all property owners within 300 feet of the proposed half-pipe ramp, proof that all such owners have been notified of the proposed half-pipe ramp, have had an opportunity to comment, and a written statement indicating any comments received by the applicant from them.
(6)
Affidavit. A written statement that the owner has reviewed all laws, ordinances and regulations related to half-pipe ramp construction and use and a written agreement to comply therewith.
(b)
Conditional Use Review.
(1)
After receipt of the submittals required by Subsection (a) of this section, the Planning Commission shall review the proposal and may thereafter approve the proposed use as a conditional use only if and so long as:
a.
The proposal complies with all applicable building and zoning regulations and will not likely constitute or cause any of the following:
1.
Does not cause a public nuisance or other illegal use under state or local laws or Health Department rules and regulations.
2.
Does not cause a fundamental change in the character of a residential neighborhood.
3.
Does not cause adverse impacts greater than typical of permitted residential uses in the zone.
(2)
The Planning Commission may hold a public hearing or meeting to consider the proposal prior to his decision. Any person aggrieved by the Planning Commission's decision may request review by the Sandy City Council which decision shall be final.
(c)
Development Standards.
(1)
Design. Every proposed half-pipe ramp shall be of a scale and design and constructed of materials which will minimize noise, vibration, and other nuisance factors commonly associated with half-pipe usage. Portions of the half-pipe ramp may be located below ground level, but in no case shall any portion of the half-pipe ramp exceed six feet in height above ground level, excluding handrails. Hours of operation shall be from 8:00 a.m. to 8:00 p.m. during standard time, and 8:00 a.m. to 9:00 p.m. during daylight savings time.
(2)
Screening. Walls, fences, hedges, trees, and other screen planting shall be installed sufficient to ensure harmony with adjacent properties and to conceal any unsightly development.
(3)
Lighting. Half-pipe ramp lighting shall not be installed more than six feet above ground level and shall be directed in such a manner as to not cause disturbance to neighboring residents.
(4)
Personal Use. No commercial or advertised use of the half-pipe ramp shall be permitted, and no donations or contributions shall be solicited or received for use or attendance at half-pipe ramp activities.
(5)
Rules. Written rules have been adopted by property owners to ensure safe and reasonable use and operation of the half-pipe ramp.
(6)
Agreement to Comply. Property owners have reviewed the laws, ordinances, and regulations related to half-pipe ramp construction and use and have agreed to comply with such provisions.
(7)
Compliance to Codes. The proposed half-pipe ramp shall comply with all pertinent sections of the International Building Code and all zoning requirements, including side and rear yard setbacks and size regulations for accessory structures.
(8)
Penalty. It shall be a Class C misdemeanor for any owner of residential property upon which a half-pipe ramp is located to permit the half-pipe ramp to be used in violation of any ordinance of Sandy City or any rule or regulation of the Salt Lake Valley Health Department, regardless of whether the property owner had knowledge of the actual violation.
(LDC 2008, § 15A-11-09; Ord. No 15-25, 7-21-2015)
(a)
Private Swimming Pools. Any private swimming pool not completely enclosed within a building having solid walls shall be set back at least five feet from property lines. Any swimming pool shall be completely surrounded by a fence or wall having a height of at least six feet. There shall be no openings larger than 36 square inches except for gates, which shall be equipped with self-closing and self-latching devices.
(b)
Semi-Private Swimming Pools Special Exception. The Planning Commission may grant a special exception to temporarily or permanently use land in any district for semi-private swimming pools or recreational facilities providing that in all cases the following conditions are met:
(1)
The facilities shall be owned and maintained by the members and a minimum of 75 percent of the membership must be residents of the neighborhood or section of the subdivision in which the recreational facility is to be located.
(2)
The area to be used for recreational purposes is of sufficient size to accommodate all proposed facilities, together with off-street parking, where required by the Planning Commission. A landscaped front yard of not less than 30 feet and a landscaped side yard on both sides and rear of not less than ten feet is required.
(3)
The area to be developed into a recreational area must be of such size and shape as to cause no undue infringement on the privacy of the abutting residential areas and be in keeping with the design of the neighborhood in which the recreational area is to be situated.
(4)
A solid wall or substantial fence shall be required around the entire recreational area to a height of not less than six feet and no more than eight feet. The fence across the front of the property shall be constructed no closer to the front property line than the required front setback, unless otherwise approved by the Planning Commission.
(5)
Under no condition may any type of retail or business facilities, including vending machines, be permitted in the recreational area except those specifically approved by the Planning Commission.
(6)
Before authorizing the recreational facility, complete plans for the development of the area must be submitted to the Planning Commission. Together with the plans, there must be submitted a detailed outline showing how the area is to be funded, managed, and maintained. If any of the requirements are not complied with, the authorization will be void.
(7)
The owners of the proposed recreational facility must have a statement from the owners of all abutting properties and at least 75 percent of the property owners within a radius of 300 feet of said development giving permission to develop a recreational facility. Covenants and conditions regulating the use of the facility shall be submitted to the Planning Commission and the Salt Lake Valley Health Department for review and approval.
(LDC 2008, § 15A-11-10; Ord. No. 23-08, § 1(Exh. A), 7-18-2023)
This section is established to provide regulations and site standards for bed and breakfast facilities within residentially zoned districts as may be allowed through the development review process. Bed and breakfast facilities may be allowed by conditional use permit where the applicant can show evidence of compliance with outlined standards and procedures and where there is clearly minimal impacts on adjacent residential properties and neighborhoods.
(1)
Requirements for Approval.
a.
A conditional use permit may be granted by the Planning Commission for a bed and breakfast facility provided the requirements herein are met. The granting of a conditional use permit for a bed and breakfast facility shall not exempt the applicant from meeting other applicable ordinances, covenants, codes, or laws recognized by Sandy City.
b.
The following pre-conditions and documentation are required:
1.
A letter of application sworn before a notary public shall be provided by the owners stating that such owners or live-in residential manager will occupy the facility except for bona fide temporary absences. Said letter shall be recorded by the Salt Lake County Recorder with a certified copy to accompany the building permit application.
2.
The effective period of the conditional use permit for bed and breakfast facilities shall be two years from the date of the original permit. At the end of every two years, renewal shall be automatically granted upon receipt by the Director of certification by the property owner that the property remains the principal residence of the owner or live-in residential manager, and that all other conditions required at the time of approval remain unchanged. Notification shall be sent to the owner for response. Failure to obtain such certification may be the basis for revocation of the conditional use permit. The Planning Commission, at its discretion, may require a new application and a demonstration of compliance with all conditions necessary for a conditional use permit.
3.
Building plans or a floor plan (one-fourth inch to the foot) showing the bed and breakfast facility shall be provided.
(2)
Development Standards and Requirements for Bed and Breakfast Facilities.
a.
The owners of the property or live-in residential manager shall live within the facility, except for bona fide temporary absences.
b.
The location of a bed and breakfast facility shall have direct access to an arterial or collector through street. Said facility will typically be isolated somewhat from adjoining residential properties and will not unduly increase local traffic in the immediate neighborhood.
c.
The location of a bed and breakfast facility shall be at least one-fourth mile from any other similarly approved facility, unless it is determined by the Planning Commission that extraordinary circumstances warrant a shorter distance.
d.
The bed and breakfast facility shall be located on a larger parcel than a typical residential lot. The parcel shall also be of sufficient size to be in scale with the size of structures, the number of people using the facility, parking areas, open space areas, etc. In no case shall the parcel be less than one-half acre in size, unless it is determined by the Planning Commission that the site is architecturally or historically significant enough to justify a smaller parcel.
e.
The bed and breakfast facility shall be designed or modified so that, to the degree reasonably feasible, the appearance of the structure remains as a residential dwelling. Unique architecture is encouraged, where possible, in keeping with the local area.
f.
Signage for a bed and breakfast facility shall be low key, identifying the name of the facility without any advertising copy. Natural materials are encouraged for sign construction and should be architecturally compatible with the bed and breakfast facility. Sign size shall be no more than four square feet.
g.
The Planning Commission may require additional setbacks, buffering, landscaping, and natural setting to mitigate impacts on adjoining residential properties.
h.
At least one off-street parking space shall be provided for each guest room in addition to needed parking for owners/employees of the facility.
i.
The design and size of the bed and breakfast facility shall conform to all applicable standards in the Fire, Building, and Health Codes. The facility shall be licensed in conformance with all City ordinances.
j.
Any other appropriate or more stringent conditions deemed necessary for bed and breakfast facilities protecting public health, safety, welfare, and the residential character of the neighborhood may be required by the Planning Commission.
(LDC 2008, § 15A-11-11)
(a)
Permitted Locations. Commercial schools (low-impact) are allowed according to the commercial and residential land use matrices and all must comply with the following restrictions:
(1)
The proposed use must have direct access to an arterial or major collector street, with no access permitted to any minor collector or local street.
(2)
The appearance of the structure shall be compatible to other uses within the same zoning district.
(3)
Occupancy shall be limited to no more than two instructors and a total of 20 students at any one time. However, the number of instructors may be increased up to four, and/or the number of students may be increased up to a total of 30 students if it is found by the Planning Commission that the site can adequately contain the required parking while still meeting the requirements of Subsection (a)(4)b of this section, and if such allowance does not adversely impact the surrounding neighborhood.
(4)
Required Parking.
a.
Required parking shall consist of at least one space for each instructor, four visitor spaces, and four queuing spaces.
b.
In addition, one visitor space is required for every five students or portion thereof allowed beyond the first 20 students.
(5)
An on-site drop-off area shall be provided.
(b)
Commercial Schools Unable to Meet Criteria. Any commercial school (low-impact) which cannot meet the above criteria must meet the standard location and use allowances for commercial school as shown in the land use matrices.
(LDC 2008, § 15A-11-12)
(a)
General. This section provides specific standards for certain uses which are permitted or are operated as accessory uses as part of an exposition/convention center. All uses are not allowed unless the standards described in this section are met.
(b)
Standards Applicable to All Activities.
(1)
No temporary signage is permitted within the landscape area along street frontages. The exposition/convention center electronic message board signs shall be the primary street identification for shows and activities within the facility.
(2)
Temporary banners may be affixed above approved designated entrances to assist in directing patrons to a specific exhibition hall.
(3)
Admittance to any activity, regardless of time extension, shall cease at 12:00 midnight Sunday through Thursday, and shall cease at 1:00 a.m. for Friday and Saturday. No activity, including private meetings, shall extend beyond these hours unless otherwise approved as permitted in Subsection (c)(3) of this section for extended hours.
(4)
Outdoor uses (e.g., sales, display, sporting events, or activity areas) that occupy required parking areas shall ensure that adequate parking is provided. A detailed Parking Plan shall be submitted and approved by the Community Development Department to ensure that adequate parking is provided. The Parking Plan may include areas that are off-site provided a shuttle service is provided. The shuttle service is required to operate one-half hour after the event.
(5)
In addition to all other necessary licenses and permits, all vendors who sell or contract to sell a product or other taxable service shall obtain a temporary sales tax number indicating Sandy City as the point of sale. Temporary sales tax licenses (aka special event permit, issued by the State Tax Commission) shall be made available upon demand to an authorized representative of the Business License Office or Utah State Tax Commission.
(6)
The promoter of an event shall provide, upon demand, a list of all participating vendors to an authorized representative of the Sandy City Business License Office or to an authorized representative of the State Tax Commission. The format of the list (electronic, paper, etc.) shall be provided in a manner acceptable to the agency placing the demand.
(7)
Outdoor sales or consumption of alcohol is prohibited.
(8)
Pornographic material or performances are prohibited. Any material or performance is pornographic if considered, as a whole, applying contemporary community standards.
(9)
Distribution or posting of handbills upon vehicles or upon the site is prohibited.
(10)
The sponsor of a function is responsible to provide appropriate indoor and parking lot security for private meetings and functions. Proper supervision of patrons is required. The sponsor must comply with all City and state laws governing alcohol sales and consumption.
(c)
Additional Standards for Specific Activities. In addition to the above standards, the following requirements apply to the following activity classifications:
(1)
Outdoor Activities (e.g., vehicle shows/sales, sporting events, product demonstrations).
a.
Outdoor sales and attendance by the general public to the outdoor portion of any show shall be restricted to 9:00 a.m. to 9:00 p.m.
b.
No outdoor sporting event shall continue after dusk (one-half hour after sunset) or 8:00 p.m., whichever is earlier.
c.
Outdoor displays and booths are permitted only in designated areas.
d.
No outdoor display or booth shall occupy a required parking area unless an appropriate Parking Plan has been submitted and approved by the Director.
e.
No outdoor display shall create noise or odor in violation of applicable noise and health ordinances.
f.
No outdoor event shall take place within the area for loading/unloading activities or adjacent to residential areas.
(2)
Concerts (Live or Broadcast) and/or Dances.
a.
For concerts, ticketed, assigned, and fixed seating are required. Unassigned or non-fixed seating (also known as festival seating) is not permitted.
b.
One security guard per 200 individuals attending must be provided unless otherwise required by the Police Department or facility management.
c.
Emergency medical personnel must be provided on-site as required by the Fire Department.
d.
All doors of the facility that are adjacent to a residential area must be closed during a performance.
e.
Live bands are prohibited from warming up or performing in outdoor areas adjacent to residential areas.
f.
No loitering in the parking lot by patrons is allowed. Security must also patrol any parking areas to prevent patrons from loitering in the parking lot.
g.
All laws and ordinances for curfew for individuals under the age of 18 must be obeyed.
h.
The business license permit for a concert and/or dance shall be submitted to the Community Development Department at least 15 business days before the proposed event may take place. For a complete application, the applicant shall submit a letter of approval from the Sandy City Police and Fire Departments and the South Towne Expo Center Administration.
(3)
Extended Hours Past 12:00 Midnight (Sunday through Thursday) and/or 1:00 a.m. (Friday and Saturday). A separate permit shall be required from the Director for extended hours. No more than three permits for extended hours for the facility shall be issued in a calendar year (January through December). This is not to be interpreted to mean three separate permits per event operator. Three is the total number permitted per year for the entire facility. An approval letter from the South Towne Expo Center Administration shall be submitted with the permit for extended hours.
a.
Admittance to any activity, regardless of time extension, shall cease at 12:00 midnight Sunday through Thursday, and shall cease at 1:00 a.m. for Friday and Saturday.
b.
In no instance may a permit be granted for operation of any activity beyond 2:00 a.m.
c.
All laws and ordinances for curfew for individuals under the age of 18 must be obeyed.
d.
No loitering in the parking lot by patrons is allowed. Security must also patrol parking areas to prevent patrons from loitering in the parking lot.
e.
All doors of the facility that are adjacent to a residential area must be closed during the activity.
f.
Time for the set-up and take-down of indoor events may be approved beyond the approved extended hours. When adjacent to residential areas, loading/unloading activities shall comply with applicable noise ordinances.
(LDC 2008, § 15A-11-13)
(a)
Purpose and Intent. The purpose and intent of the temporary use permit is to allow certain uses, within Sandy City, which are transitory or seasonal in nature, in a manner that will assure compatibility with the zone district and adjacent properties. A temporary use, which is subject to the following provisions, is typically a commercial business venture for which a business license is required and which is conducted on private property. A special event, which is governed by policy, is generally an event which is not required to obtain a business license and is conducted on public property.
(b)
Standards for All Temporary Uses.
(1)
A temporary use shall comply with the following general standards, with two exceptions listed in Subsection (b)(2) of this section:
a.
No more than two temporary uses are allowed per site at one time. Each temporary use is limited to two structures (e.g., tent and storage container).
b.
Sanitary facilities shall be available for waste disposal for the protection of community health and safety. Any time portable toilets are going to be used, the applicant must submit an executed sanitary contract to the City wherein it states that the toilets will be serviced no less than a bi-weekly basis.
c.
Acceptable space shall be available for any off-street parking and traffic circulation generated by the uses.
d.
Hours of operation shall be limited to the hours of 7:00 a.m. to 10:00 p.m.
e.
Signs must comply with the City-adopted sign regulations.
f.
A use and/or display may not be placed within the public right-of-way or on any landscaped area. Produce stands may be located on the landscaped area subject to Subsection (b)(1)h of this section.
g.
Night lighting shall be compatible with adjacent uses, shielded and directed downward to avoid light spill onto adjacent properties.
h.
All temporary use businesses, including all facilities and/or structures, shall be cleared off the site within two days after the license expires.
i.
In authorizing a temporary use, the Community Development Department shall impose such additional requirements and conditions as considered necessary for the protection of adjacent properties and the public safety and welfare in conformance with standards as provided in this section.
(2)
Exceptions:
a.
Produce stands (sale of fruits and vegetables that have been produced on the same site as the temporary sales) are required to comply only with Subsections (a)(1)f through i of this section; and
b.
A temporary use permit to be approved by the City Engineer and Director for construction trailers, staging areas, and equipment sheds. Said uses may utilize or occupy vacant, unimproved, or improved properties, staging areas, or projects that are under construction.
(c)
Development Standards for temporary Uses Located Upon Vacant Properties (Other Than for Uses Outlined in Subsection (b)(2)b of this Section). Before any temporary use is approved to locate in a vacant lot (no currently licensed business with a permanent structure on-site), the property owner, or authorized agent, must submit a site plan to be approved by City staff. The site plan shall be drawn to a standardized scale that identifies the location of all proposed structures with setbacks indicated on the plan. The following improvements are required for each site:
(1)
An all-weather surface parking lot approved by the City Engineer and Fire Marshal to include other materials approved for safety specifications as approved by staff.
(2)
Curb, gutter, and sidewalk on all street frontages, that Sandy City has jurisdictional control over approved by the City Engineer, or provide a Safety Plan that provides safe pedestrian pathways and restricted vehicle access points to be approved by staff.
(3)
An approved fire hydrant within 200 feet of any building or facility on-site that meets International Fire Code standards.
(4)
An approved dedicated right-of-way access point to a public road.
(5)
Site must be able to manage all stormwater on-site. All temporary use permits shall be reviewed by the Public Utilities Department to ensure compliance with the Groundwater Source Protection Ordinance.
(6)
Fifteen feet of landscaping, including acceptable xeriscape designs, that is maintained along the entire frontage adjacent to a public right-of-way (unless the site has gone through a previous site plan approval process and is now legal nonconforming relative to landscaping). The plan shall include the location of an approved water meter, including any installation requirements from the Public Utilities Department.
(d)
Temporary Use Permit Required. A temporary use permit and business license, where applicable, shall be required for the following:
(e)
Application for Temporary Use Permit. An application for a temporary use permit shall be made to the Community Development Department, in conjunction with a business license, when applicable, at least ten days prior to the date of requested use. No temporary use permit shall be issued more than 180 days prior to the start of the temporary use period. The Department may issue or deny the application for a temporary use permit.
(1)
Information Required for Application. An application for a temporary use permit shall be accompanied by the following information:
a.
Description. A written description of the proposed use, including requested length of permit and hours of operation.
b.
Authorization for Use. If the applicant is not the owner of the property, the ownership shall be identified along with evidence of permission of the owner for such temporary use to take place.
c.
Site Review. A vicinity map and plot plan with sufficient information to determine the primary use of the property and the required site requirements, sanitary facilities and availability of parking to serve the uses.
(2)
Insurance/Bond Required. The following insurance policies and/or bonds shall be posted:
a.
Public Property. All temporary uses that utilize public property shall obtain a general liability insurance policy which names the City as an additional insured, and which is not less than the current damage caps set forth in the Utah Governmental Immunity Act.
b.
All Temporary Uses. All temporary uses shall post a $1,000.00 bond, to ensure clean-up of the property, as required in Title 15. If an itinerant business is located on the premises of a shopping mall or center or other such permanent commercial building, the owners of the mall or building may, at their option, provide a cash or surety bond in the amount of $2,000.00, in lieu of individual merchants posting a $1,000.00 bond.
(f)
Revocation of Temporary Use Permit.
(1)
Authority. A temporary use permit may be revoked by the Director in accordance with the provisions of this section, if the recipient of the permit fails to develop or maintain the property in accordance with the plans submitted, the requirements of the title, or any additional requirements lawfully imposed in connection with the issuance of the temporary use permit.
(2)
Notice. Before a temporary use permit may be revoked, written notice of the decision to revoke shall be given to the permit holder. The notice shall inform the permit holder of the grounds for the revocation and advise the permit holder that the revocation shall be effective 30 days for the date of the notice unless, before the revocation date, the permit holder either:
a.
Demonstrates to the satisfaction of the Director compliance with the requirements of the zoning certificate; or
b.
Files an appeal of the Director's decision to revoke pursuant to Subsection (f)(4) of this section.
(3)
Effect of Revocation. No person may continue to make use of land or buildings in the manner authorized by any temporary use permit after such permit has been revoked in accordance with Subsection (f)(4) of this section.
(4)
Appeal. Revocation of a temporary use permit by the Director may be appealed to the Board of Adjustment in accordance with the provisions of this title.
(LDC 2008, § 15A-11-14; Ord. No. 12-17, 5-29-2012; Ord. No. 13-06, 2-4-2013)
The following standards shall apply to all garage sales at residences within Sandy City:
(1)
Frequency. There shall be no more than three garage sales at a residence per calendar year. The calendar year is defined as January 1 through December 31. Garage sale events must be separated by at least a 14-day period.
(2)
Duration of Sale. A garage sale is permitted for a period no longer than 48 consecutive hours.
(3)
Location of Garage Sale. The garage sales shall be located at the actual residence of the owner of the materials to be sold. At a neighborhood garage sale event (i.e., three through five neighbors pool their belongings into a super garage sale), the materials must be located at the residence of only one of the participating sellers.
(4)
Goods to be Sold. The items that are permitted to be sold must be used items from that residence. Items purchased or obtained from other locations with the intent to be resold at a garage sale are prohibited and a violation of this section.
(5)
Temporary Sales. Temporary sales within commercial areas are permitted as regulated elsewhere in this title.
(LDC 2008, § 15A-11-15)
The following standards shall apply to all model homes within Sandy City:
(1)
Location. Model homes are only allowed within City-approved and -recorded residential developments of five units or more. They must be located on a platted lot or site within the advertised development.
(2)
Duration. Model homes may be operated for no more than two years from first occupancy of a dwelling unit in the development or until the second to last unit is sold within the advertised development, whichever comes first. The Director may approve an extension on a case-by-case basis.
(3)
Advertising. Model homes may not advertise properties located in another subdivision or property located off of the development site.
(4)
Construction Standards. Model homes must comply with all standards and conditions of approval for the advertised development, including building materials, setbacks, landscaping, etc., and must comply with all applicable residential dwelling standards upon discontinued use as a sales office.
(LDC 2008, § 15A-11-16)
(a)
Purpose. It is the purpose and objective of this section that the City establish reasonable and uniform regulations to prevent the concentration of sexually oriented businesses, escort agencies, outcall service agencies, and semi-nude dancing agencies in areas deleterious to Sandy City; to regulate the signage of such businesses; and to control the adverse effects of such businesses and signage. This section is to be construed as a regulation of time, place, and manner of the operation of these businesses, consistent with the limitations provided by provisions of the United States of America and Utah Constitutions.
(b)
Definition. The following words, terms and phrases, when used in this section, shall have the meanings ascribed to them in this subsection, except where the context clearly indicates a different meaning:
(1)
Gateway means 9000 South Street as it begins at the western-most boundary continuing east to State Street and 10600 South Street as it begins at the western-most boundary continuing east to State Street; 11400 South Street as it begins at the western-most boundary continuing east to State Street; State Street as it begins at the City's northern-most boundary continuing south to the City's southern-most boundary; 700 East Street as it begins at the City's northern-most boundary continuing south to the City's southern-most boundary; and 1300 East Street as it begins at the City's northern-most boundary continuing south to the City's southern-most boundary.
(c)
General Provisions.
(1)
Sexually oriented businesses, escort agencies, outcall service agencies and semi-nude dancing agencies shall be permitted only in areas zoned ID and be subject to the following restrictions:
a.
No sexually oriented business, escort agency, outcall service agency or semi-nude dancing agency shall be located:
1.
Within 1,000 feet from any school, public park, library, or religious, or cultural activity.
2.
Within 500 feet of any other sexually oriented business, escort agency, outcall service agency, or semi-nude dancing agency.
3.
Within 600 feet from an agricultural or residential use or residential zoning boundary. For the purposes of this subsection, the measurement from an agricultural or residential use shall begin at the property line of such use.
4.
Within 150 feet of the 9000 South Street gateway, the distance shall be measured from right-of-way boundary.
5.
No property within 800 feet of the Interstate 15 freeway right-of-way boundary. This includes an entire parcel of property any portion of which is within 800 feet of the Interstate.
b.
Distance requirements from structures for this section shall be measured in a straight line, without regard to intervening structures or zoning districts, from the structure of the school, public park, religious or cultural activity, residential use, or other sexually oriented business, escort agency, outcall service agency, or semi-nude dancing agency.
c.
Distance requirements from zoning districts for this section shall be measured in a straight line, without regard to intervening structures or zoning districts, from the zoning boundary of a residential or agricultural district to the structure of the sexually oriented business, escort agency, outcall service agency, or semi-nude dancing agency.
(2)
All existing legal nonconforming sexually oriented businesses, escort agencies, outcall service agencies, and semi-nude dancing agencies on the effective date of the ordinance from which this section is derived, or any amendment hereto, shall comply with the provisions of this section within one year from the date of the enactment of this section or any amendment thereto.
(d)
Signage. Notwithstanding anything contrary contained elsewhere in this title governing sign regulations, the more restrictive requirements for signs shall prevail. Signs for sexually oriented businesses, escort agencies, outcall service agencies, and semi-nude dancing agencies shall be limited as follows:
(1)
No more than one exterior sign shall be allowed.
(2)
No sign shall be allowed to exceed 18 square feet.
(3)
No animation shall be permitted on or around any sign or on the exterior walls or roof of such premises.
(4)
No photographs, silhouettes, drawings or pictorial representations of any manner shall be allowed on any sign. Said signs may contain only the name of the enterprise.
(5)
Only flat signs shall be permitted.
(6)
Painted wall advertising shall not be allowed.
(7)
Other than the signs specifically allowed by this section, the escort agency, outcall service agency, and semi-nude dancing agency shall not construct or allow to be constructed any temporary sign, banner, light, or other device designed to draw attention to the business location.
(e)
Severability. If any provision or clause of this section or the application thereof to any person or circumstances is held to be unconstitutional or otherwise invalid by any court of competent jurisdiction, such invalidity shall not affect other sections, provisions, clauses, or applications hereof which can be implemented without the invalid provisions, clause or application hereof, and to this end the provisions and clauses of this section are declared to severable.
(LDC 2008, § 15A-11-17)
State Law reference— Municipal regulation of sexually oriented businesses, U.C.A. 1953, § 10-8-41.5.
(a)
Development Standards.
(1)
Location of Sites. All church sites should be located adjacent to streets which are a minimum of 60 feet wide. No church should be located where access is less than the above, except for churches which can show that members will come from the local neighborhoods so that traffic impacts are lessened.
(2)
Access. It is preferred that churches be located where there is access to two streets (corner lots) unless otherwise approved by the Planning Commission.
(3)
Parcel Size. No minimum parcel size is required; however, the parcel chosen for a church must be adequate to meet all of the development standards to be listed below that include, but are not limited to, setbacks, landscaping, parking, improvements, and dedications.
(4)
Building Setbacks (Except as May be Approved in Chapter 21-14).
a.
Commercial Zone.
1.
Front: 30 feet from property line. (If project fronts on more than one street, setback applies to all street frontages.)
2.
Side and rear: minimum ten feet, unless located adjacent to a residential zone. In this case, the minimum setback to buildings must be 30 feet.
b.
Residential Zone.
1.
Front: 30 feet from front property line. (If project is on a corner lot, setbacks are 30 feet on one street and 20 feet on the other.)
2.
Side and rear: follow setbacks required according to the zone the property is in. A greater setback may be needed as may be deemed necessary by the Planning Commission by larger structures.
(5)
Building Height. Maximum building height shall follow zoning that the project is in. Thirty-five feet is the maximum height in a residential zone or in any zone adjacent to a residential zone (not including chimneys, steeples and the like).
(6)
Landscaping Setbacks.
a.
Front: 30 feet minimum from property line. (If on a corner lot in a residential zone, 20 feet on shorter setback side.)
b.
Sides and rear: five feet minimum.
c.
Landscaping in the front areas shall also include the parkstrip adjacent to the curb, including grass and street trees (minimum two-inch caliper and spaced 30 feet on center).
d.
Landscaping shall also be required within the parking lot itself where large expanses of asphalt occur. There shall be a minimum of one ten-foot-wide planter within the parking lot area where over 125 linear feet of asphalt occurs.
(7)
Fencing.
a.
As a general rule, fencing shall follow that of the surrounding area. However, chainlink fencing is not acceptable unless prior Planning Commission approval is granted. In cases where chainlink fencing is approved, vinyl coated chainlink mesh will be required.
b.
Acceptable fence types shall include vinyl, pre-cast concrete, decorative iron, architecturally designed brick or block, or structural wood fences with square tube metal posts with tongue-in-groove redwood siding and redwood for all other wood members.
(8)
Parking.
a.
All parking for church facilities shall be on-site. No parking is allowed on the street.
b.
No parking is permitted within the front landscape setback.
(9)
Trash Enclosures and Accessory (Maintenance or Storage) Buildings.
a.
All trash bins shall be surrounded with six-foot-high masonry (or pre-cast) enclosures to match the main building with solid metal gates. Trash enclosures may be combined with accessory (maintenance or storage) buildings. The setback of such structures shall be at least the same as the minimum required front landscape setback, but in no case shall trash enclosures be located any closer than ten feet to a residential district lot line or five feet to a commercial district lot line.
b.
Accessory (maintenance or storage) buildings shall be built of the same materials as the main building (siding and roofing) so as to blend in with the entire project. Minimum setbacks to the front property lines shall be the same as the main building. Buildings adjacent to a side or rear property line (other than a street side of the property), which are built of one-hour fire rated construction, can be considered an accessory structure and may be set back as close as three feet to a side or rear property line.
(10)
Lighting. All lighting for church buildings, parking lots, and accessory uses, if applicable, shall be downlit and minimize any adverse impact on adjacent residential areas.
(b)
Ancillary Uses.
(1)
Ancillary uses such as parks, ball diamonds, pavilions, etc., shall not count towards landscaping on the church site but shall stand alone and be considered as a separate site and subject to separate conditional use approval. Any such ancillary uses are subject to, but not limited to, the standards of this section (if applicable).
(2)
An on-site, church-operated day care will be considered a permitted ancillary use provided there is enough parking on-site to accommodate the number of children enrolled in the day care. The amount of parking is one space per instructor, plus drop-off space.
(c)
Procedure for Approval.
(1)
Church facilities are conditional uses in all zones and as such require Planning Commission approval.
(2)
Upon receiving a conditional use approval from the Planning Commission, all church projects will proceed through the site plan review process with staff.
(LDC 2008, § 15A-11-18; Ord. No. 10-43, 12-14-2010)
(a)
Purpose. This section is established to provide regulation and design standards for mobile food businesses, mobile food courts, and street vendors in commercial or industrial land use areas, except as otherwise allowed herein. These regulations are designed to expand the opportunity of various types of temporary mobile vendors in the City, while guiding them to appropriate locations, and ensuring they are conducted safely and in harmony with the surrounding land uses.
(b)
General Requirements. The following requirements must be met for all mobile food businesses, street vendors, and mobile food courts. Provisions found in this section shall not apply to other uses identified as a temporary use that are specifically regulated by this title.
(1)
License Required. No person shall operate a mobile food or street vendor business without first having obtained a business license from Sandy City. A mobile food business may provide a copy of a current business license in good standing from another political subdivision in the State in lieu of a Sandy City business license.
(2)
Prohibited Sales. No alcohol shall be provided/sold from a mobile food or street vendor business.
(3)
Use of Public or Private Property (excluding public right-of-way). Mobile food businesses and street vendors shall be allowed to operate on property within all commercial or industrial land use areas, in accordance with the provisions of this section. Each business shall abide by the following:
a.
Property Owner Approval. Prior written consent from the property owner is required for every location a business desires to operate. Said letter must include information about where the vendor is permitted on the site that complies with the location requirements herein. Upon inspection, the business must provide proof of permission to operate in any given location.
b.
Parking and Circulation. Acceptable space shall be available for any off-street parking and traffic circulation generated by the uses. The location and use of a site may not interfere with the existing parking demand and circulation of the surrounding development.
c.
Vacant Lots. Prior to operating a mobile food or street vendor business on a vacant lot (where there is no current licensed business with a permanent structure on-site), the improvements outlined within this title for temporary uses are required for each site prior to operating business.
(4)
Use of Public Right-of-Way. Mobile food businesses and street vendors may be allowed to operate in the public right-of-way only in appropriate locations as determined by the City in accordance with the provisions in this section. Each business seeking to operate within the public right-of-way shall abide by the following conditions and requirements:
a.
City Approval. Written permission from the City to operate a business in the public right-of-way is required. Said permission may be granted if an applicant can demonstrate compliance with the regulations in this section.
b.
Parking and Traffic Regulations. Mobile food and street vendor businesses shall obey all on-street parking and traffic regulations as stated in state statute and/or City ordinances.
c.
Prohibited Parking Areas. Parking on a sidewalk, parkstrip, or otherwise landscaped area is not allowed. Street vendors are exempt from this prohibition if they are set up on a paved surface, do no harm to landscaped areas, and comply with all other provisions of this section.
d.
Parallel Parking Spaces. Mobile food businesses utilizing parking space within the public right-of-way shall park only in parallel parking spaces. Mobile food businesses must be parked so that neither the vehicle nor the customers interfere with public access to adjacent parking stalls or to driveways or entrances of existing buildings or uses.
e.
Orientation of Vending Window. The operator shall locate the vending window facing the sidewalk or on private property, unless the roadway has been closed to vehicular traffic for a public event.
f.
Parking for Primary Use. No mobile food or street vendor business shall create a parking issue for the surrounding primary uses.
g.
No Sales in Roadway. No sales shall be made to any person standing in a roadway unless the roadway has been closed to vehicular traffic for a public event.
h.
Locations. Mobile food businesses shall not operate on public streets where the speed limit exceeds 35 miles per hour, unless the roadway has been closed to vehicular traffic for a public event, nor locations that are otherwise deemed hazardous by the Sandy City Engineer.
i.
Certificate of Insurance. When locating on public property, each applicant for a license or renewal under this section shall submit, with the application, a Certificate of Insurance executed by an insurance company or association authorized to transact business in this State, showing that there is in full force and effect, for the full term of the license, general liability insurance in the amount not less than $200,000.00 for personal injury to each person, $500,000.00 for each occurrence, and $500,000.00 for each occurrence involving property damage; or a single limit policy of not less than $500,000.00 covering all claims per occurrence. Such policies shall also include coverage of all motor vehicles used in connection with the applicant's business and the coverage shall be primary. A current certificate of insurance shall be kept on file with the Business License Administrator at all times that the applicant is licensed by the City verifying such continuing coverage and naming Sandy City, its officers, officials, and employees as additional insureds. The Certificate shall contain a statement that the City will be given written notification at least 30 days prior to cancellation or material change in the coverage. Cancellation shall constitute grounds for suspensions or revocation of the license issued hereunder unless another insurance policy complying herewith is provided and is in effect at the time of cancellation/termination. In the case of a mobile food court, a Certificate of Insurance would be required for each vehicle.
j.
Indemnity Clause. When locating on public property, each applicant for a license or renewal under this section shall submit, with the application, a signed statement that the licensee shall hold the City and its officers and employees harmless from any and all liability and shall indemnify the City and its officers and employees from any claims for damage to property or injury to persons arising from any activity carried on under the terms of the license.
(5)
Open Space Zones and Public Parks. It shall be unlawful for any mobile food or street vendor business to operate adjacent to or in a public park, or in an OS Zone, without the prior written consent of the Community Development Director. Authorization may be granted by the Director after consultation with the Parks and Recreation Director. Authorization does not supersede or replace the requirement that the business obtain a business license.
(6)
Pedestrian Flow. The business shall ensure that its use of the right-of-way, including the sidewalk, in no way interferes with or limits sidewalk users' free and unobstructed passage. The vendor must maintain clear, continuous sidewalk width of no less than four feet.
(7)
Location Restrictions. Mobile food businesses and street vendors must not be located within:
a.
Ten feet of any fire hydrant;
b.
Ten feet of any bus or transit stop;
c.
Ten feet or one stall away from any handicap parking space or access ramp;
d.
Ten feet from any curb cut;
e.
Ten feet from any other mobile food business or street vendor;
f.
Ten feet from any manhole or storm drain inlet;
g.
Sixty feet from any intersection or driveway; and
h.
One thousand feet from any private/public school K through 12 between the hours of 7:00 a.m. to 4:00 p.m., Monday through Friday, unless permission is given from an authorized representative from the school to locate on school property. School authorization does not supersede or replace the requirement that the business obtain a business license.
(8)
Restrooms. Access to restroom facilities shall be made available.
(9)
Display of License, Inspections, and Registration. The business license, Fire Inspection Certificate, and health department food truck permit and inspection must be displayed in a visible location on the vehicle, trailer, or cart. The vehicle, trailer, or cart must also have the license plate, proof of insurance coverage, safety inspection, and vehicular registration.
(10)
Multiple Locations. The business may operate from several locations (both public and private) within the City under the same business license.
(11)
Business Activity to be Temporary. All business activity related to mobile food and street vendor businesses shall be of a temporary nature, the duration of which shall not extend for more than 12 hours within any 24-hour period at any one location, unless the Director approves a longer time on either public or private property. All vehicles, trailers, or carts must be removed from the public right-of-way or private property at the close of each business day. The hours of operation shall be restricted to 7:00 a.m. to 10:00 p.m., unless approved by the Director if one or more of the following conditions are met:
a.
The extended hours are part of an approved special event.
b.
The location is a site that contains a business that has been approved for extended hours.
(12)
Noise Ordinance. Live music will not be performed, nor loudspeakers played from a mobile food business or in a mobile food court area unless the decibel level is in conformance with the Salt Lake Valley Health Department Noise Ordinance.
(13)
Drive-Thru Prohibited. The business shall not have or operate as a drive-thru.
(14)
Appearance. The mobile food vehicle, trailer, or cart shall be kept in a good operating condition and no peeling paint or rust shall be visible.
(15)
Auxiliary Power. Any auxiliary power required for the operation of the mobile food business shall be self-contained. The use of power or water located in private property is not allowed, unless the property owner grants permission.
(16)
Illegal to Discharge in Storm Drain. It is illegal to discharge or dispose of any substance, material, food, or waste into the storm drain system.
(17)
Garbage. All garbage or other refuse generated from a mobile food or street vendor business shall be disposed of properly. All grounds utilized by a mobile food or street vendor business shall at all times be maintained in a clean and attractive condition. Trash containers shall be provided for use of the business patrons. If a mobile food or street vendor business has operated on or adjacent to a public right-of-way, that vendor shall be responsible for cleaning up litter dropped or discarded onto the public right-of-way prior to leaving the location.
(18)
Signage. Signage shall be allowed as part of the design of the vehicle, trailer, or cart itself or upon the canopy or umbrella. One menu board A-frame sign may be used with a maximum size of three inches by four inches. Signs shall not block or impede pedestrian traffic.
(19)
Professional and Personal Services Prohibited. Professional or personal services shall not be provided from a mobile food business or street vendor.
(20)
Sales Tax Compliance Responsibility. All vendors are subject to Sandy City sales tax for goods sold within the boundaries of Sandy City. Vendors shall be required to keep accurate records of daily sales that occur within the Sandy City limits.
(c)
Additional Design and Operation Standards for Mobile Food Businesses. Mobile food businesses shall comply with the following design and operation requirements:
(1)
Canopy Regulations. Any canopy extensions must be integrated into the design of the mobile food business vehicle and must not project onto or over the public sidewalk or any other part of the public right-of-way in a way that impedes pedestrian passage or is lower than seven feet measured from the lowest portion of the canopy to the sidewalk or ground surface. Walled enclosures, whether hard or soft, are not authorized. Chairs and tables are not allowed in the public right-of-way.
(2)
Comply with Motor Vehicle Regulations. Licensees/owners will ensure their business vehicles are at all times in compliance with all applicable laws or ordinances regulating motor vehicles.
(d)
Additional Design Standards for Street Vendors and Mobile Food Carts. Street vendor carts and mobile food carts shall comply with the following design standards:
(1)
Canopy Clearance. Umbrellas or canopies shall be a minimum of seven feet and a maximum of ten feet above the sidewalk if they extend beyond the edge of the cart.
(2)
Canopy Size. Umbrellas or canopies shall not exceed 100 square feet in area.
(3)
Cart Size. The cart shall not exceed three and one-half feet in width and eight feet in length, including the hitch. The height of the mobile device or push cart, excluding canopies, umbrellas, or transparent enclosures, shall not exceed five feet. Mobile food carts are exempt from cart size restrictions.
(4)
Non-Motorized Carts. The cart shall be on wheels and of sufficiently lightweight construction that it can be moved from place to place by one adult person without auxiliary power. The device or cart shall not be motorized so as to move on its own power.
(e)
Additional Design and Operation Standards for Mobile Food Courts. A mobile food court, which consists of three or more mobile food businesses or street vendors that congregate at a site or street at the same time on a temporary or permanent basis, is subject to the additional standards in this subsection. Temporary mobile food courts are located on sites that are typically set up in an existing parking lot as an accessory use or street and operate on a weekly, seasonal, or other temporary basis. A permanent mobile food court is a site constructed as a primary use on private property specifically designed for hosting various vendors and intended to operate year round on a consistent basis. Permanent mobile food courts will be allowed in certain zone districts as determined in the land use tables of this title. A mobile food court shall only be approved if it complies with the following design and operation requirements:
(1)
Administrative Permit. Temporary mobile food courts are allowed by administrative special use permit, in accordance with the provisions of this section and other applicable provisions in this title. Permanent mobile food courts will be required to adhere to the provisions of this section and all applicable commercial site plan review requirements in this title.
(2)
Parcel Size. A mobile food court is required to be on a parcel that is at least 2,000 square feet in size.
(3)
Number of Food Vendors. No more than ten individual mobile food businesses or other authorized vendors are allowed in a mobile food court.
(4)
Business License. A promoter, mobile food court operator, or property owner must obtain a mobile food court license.
(5)
Landscape Requirements. All landscaping requirements shall be met prior to issuing a permit.
(6)
Comply with Site Approvals. The proposed mobile food court complies with all conditions pertaining to any existing variances, conditional uses or other approvals granted for the property.
(7)
Health Department Approval. All activities associated with a mobile food court must comply with all Salt Lake Valley Health Department requirements.
(8)
Site Plan. A site plan demonstrating the following is required:
a.
The location and orientation of each vendor pad.
b.
The location of any paving, trash enclosures, landscaping, planters, fencing, canopies, umbrellas or other table covers, barriers or any other site requirement by the International Building Code, or Health Department.
c.
The location of all existing and proposed activities on-site.
d.
The circulation of all pedestrian and vehicle traffic on the site.
e.
The location of restroom facilities to be used for the mobile food court.
f.
The location of any permanent structures or facilities (such as restrooms, ancillary food preparation facility, etc.).
(9)
Parking. Parking for a mobile food court is required at a ratio of two stalls per mobile food business. This requirement may be modified or waived by the Director if there is sufficient and available on-street parking or the applicant can demonstrate that their use will not generate as much parking demand. Hard surface paving at the vehicular entrance to the mobile food court and for each individual mobile food business pad is required. Alternatives to asphalt and concrete may be approved as part of the special use review if the applicant is able to demonstrate that the alternative will not result in the accumulation of mud or debris on the City rights-of-way.
(f)
Special Events. The restrictions of this section notwithstanding, nothing herein shall prohibit the City from authorizing mobile food businesses other than those licensed under this section, to conduct concurrent vending operations within the public right-of-way, or such other areas as the City may deem appropriate, during special events. The special event vendors shall still be governed by this section, except as specifically provided otherwise by the special event permit or such other ordinance, policy, or executive order as may be applicable. However, as long as the public right-of-way remains open to the general public, such authorization or special event vendors shall not require removal of a permittee under this section from operating within an otherwise lawfully occupied location of a mutually acceptable adjacent alternative location during such special event, unless otherwise provided under City ordinances. If the City is closing a public right-of-way to general access, either partially or fully, in order to accommodate a special event, a mobile food business may not access that right-of-way unless specifically authorized by the City.
(g)
Grounds for Denial, Suspension or Revocation. Failure to comply with the requirements of this section shall be grounds for denial, suspension or revocation of a business license as described in Title 15. Failure to comply may result in the suspension or revocation of a business license, and is a Class B misdemeanor.
(Ord. No. 17-30, § 1, 12-1-2017; Ord. No. 22-13, § 1(Exh. A), 11-15-2022)
Non-Depository Institutions are permitted as a conditional use within the Central Business District (CBD), Regional Commercial (RC), Boulevard Commercial (BC), Community Commercial (CC), Neighborhood Commercial (CN), Commercial Planned Unit Development (CR-PUD), Industrial (ID), and AutoMall Commercial (AM Commercial) Zoning Districts and subject to the following restrictions:
(1)
Shall not be located within 5,280 feet (one mile) of the same type of use inside or outside the Sandy City geographical boundaries. This distance shall be measured from the exterior walls of the buildings or portions thereof in which the businesses are conducted or proposed to be conducted.
(2)
Shall conform to the Architectural Design Standards as established by the City. In addition to these guidelines, the following will also be required:
a.
The color of the building shall be restricted to earth tones or shall match the design theme of the center in which it is a part.
b.
At least 25 percent of the first floor facade that faces a public street or sidewalk shall be windows or doors of clear or lightly tinted glass that allows views into and out of the building at eye level.
c.
The use of bars, chains or similar security devices that are visible from a public street or sidewalk shall be prohibited.
d.
The use of neon lighting shall be prohibited on the building exterior exclusive of building signage.
(3)
Shall conform to the sign regulations as described in this title.
(4)
Shall be limited to one non-depository institution per 10,000 in population, to include all residents in Sandy City and the Salt Lake County unincorporated islands within the City's geographical boundaries. The total population figures shall be based on the U.S. Census Bureau's annual estimates.
(LDC 2008, § 15A-11-20)
(a)
Scope and Applicability. Earth station regulations shall apply to earth stations with a dish diameter over four feet in size. Earth stations with a dish diameter under four feet in size shall be regulated in the same manner as television antennas.
(b)
Location.
(1)
Location of Earth Stations over Four Feet in Diameter in Residential Districts.
a.
Ground-Mounted in All Residential Districts.
1.
Maximum Height. Maximum height from grade to the top of the dish shall be 12 feet. Any ground-mounted earth station with a height exceeding 12 feet shall be allowed only with a conditional use approval from the Planning Commission.
2.
Number Per Lot. A maximum of one earth station structure shall exist at any one time on any residentially zoned property.
3.
Front Yard. If there is no other alternative for the location, earth stations may be allowed in the front yard area only with a conditional use approval from the Planning Commission.
(i)
Setback maximums from the public street shall be determined by the Planning Commission.
(ii)
Applicants shall provide a site plan indicating the location of the earth station.
4.
Rear and Side Yards. Earth stations shall be located in rear yards, where possible. If rear yards are not acceptable for proper reception of signals, the earth station may be located in either side yard.
5.
Corner Lots. On corner lots, an earth station may be situated to the rear of the main dwelling and within the area between the main building and street when approved as a conditional use by the Planning Commission.
6.
Easements, Rights-of-Way. No earth station shall be located on any legally recorded public utility easement or right-of-way.
7.
Multifamily. One earth station shall be allowed per building. A second earth station may be allowed with conditional use approval from the Planning Commission.
b.
Roof-Mounted in All Residential Zones.
1.
Approval. If the rear and side yards are deemed unacceptable for suitable signal reception, then roof-mounted earth stations may be permitted with conditional use review and approval from the Planning Commission. Such roof installations may be permitted by the Planning Commission under the following criteria:
(i)
Roof-mounted earth stations shall be mounted directly upon the roof of a primary structure and shall not be mounted upon appurtenances such as chimneys, towers, trees, poles, or spires.
(ii)
An earth station shall not exceed a height determined appropriate by the Planning Commission. The height of the structure shall not exceed the maximum height limits established within the zone in which the earth station is to be located.
(iii)
Evidence of wind loading and structural safety of the earth station shall be provided to the Planning Commission by the applicants.
(iv)
An earth station mounted on a roof shall be located on the portion of the roof which is oriented to the rear yard rather than located on the portion of the roof visible from the street.
(v)
Other criteria as deemed appropriate by the Planning Commission.
(2)
Location of Earth Stations, over Four Feet in Diameter, in Commercial and Industrial Districts.
a.
Ground-Mounted in Commercial and Industrial Districts.
1.
Maximum Height. Maximum height from grade to the top of the dish shall be 15 feet. Any earth station with a height exceeding 15 feet shall be allowed only with conditional use approval from the Planning Commission.
2.
Number Allowed. Two earth station structures shall be permitted at any one time per separate commercial or industrial business. More than two earth stations may be permitted with conditional use approval from the Planning Commission.
3.
Advertising. No earth station shall display lettering or numbers for advertising purposes.
4.
Rear and Side Yards. An earth station in any commercial or industrial district shall be located in the rear or side yard area, if possible.
5.
Front Yards. An earth station may be located in the front yard provided the structure is not located in the minimum front landscape area, and the structure does not interfere with pedestrian or vehicular traffic.
6.
Easements, Rights-of-Way. No earth station shall be located on any legally recorded public utility easement or right-of-way.
b.
Roof-Mounted in All Commercial and Industrial Zones.
1.
Approval. If the front, rear, and side yards are deemed unacceptable for suitable signal reception or pose a negative aesthetic or neighborhood impact, then roof-mounted earth stations may be permitted with conditional use review and approval from the Planning Commission. Such roof installations may be permitted under the following criteria:
(i)
Roof-mounted earth stations shall be mounted directly upon the roof of a primary structure and shall not be mounted upon appurtenances such as chimneys, towers, trees, poles which exceed the minimum height of mast required to mount the antennae to the roof, spires, or similar structures.
(ii)
The height of a roof-mounted earth station located in any commercial or industrial district shall not exceed 12 feet above the highest point of the roof upon which the structure is located. Height increases over 12 feet may be approved by the Planning Commission as deemed appropriate. The roof-mounted earth station shall not exceed the maximum height limits established within the zone in which the earth station is to be located.
(iii)
All roof-mounted earth stations shall be screened from view from adjacent streets and properties in the same manner as is required of all other roof-mounted equipment in this title. Said station shall not significantly change the architectural character of the structure.
(iv)
Other criteria as deemed appropriate by the Planning Commission.
(LDC 2008, § 15A-11-21)
These regulations shall apply to all solar energy systems, private or public, to the extent that design review is not pre-empted by State or Federal law.
(1)
Review and Standards. Solar energy systems are allowed as an accessory use to the primary structure on a parcel. All applications for building permits for structures with solar installations shall be forwarded to the Community Development Department for review and approval. The proposed installation will be reviewed to assure compliance with the following standards:
a.
Ground-Mounted.
1.
Ground-mounted solar energy systems shall be permitted in the side and rear yards subject to the guidelines outlined below.
2.
Setbacks for ground-mounted solar energy systems are subject to the same setbacks from the side and rear property lines as accessory buildings outlined in this chapter.
3.
Any ground-mounted solar energy system that exceeds six feet in height must be mounted on the roof of either the principle building or an accessory building.
4.
The overall square footage of the ground-mounted solar energy system shall be included in the total accessory building square footage limits.
b.
Attached to the Building. Where attached to a building, the solar energy system shall be subject to the same regulations as the building in terms of height and setbacks. Solar energy systems may be attached to the roof and/or the building wall.
1.
Roof-mounted solar energy systems shall include solar panels integrated as the surface layer of the roof structure with no apparent change in relief or projections, or separate flush-mounted solar panels attached to the roof surface.
(i)
Surface flush-mounted solar panels installed in a building with a sloped roof surface shall not project vertically above the peak of the roof to which it is attached.
(ii)
Solar panels mounted on a flat roof shall not project vertically higher than the height of the parapet wall surrounding the roof or shall be screened by architectural features outlined in this title.
(iii)
There shall be a minimum three-foot setback from the ridge or edges of the roof.
c.
Non-Reflective Coating. Solar energy systems shall be equipped with non-reflective coating and shall blend with the surface to which it is attached.
d.
Building Permit. Solar energy systems shall comply with all applicable Fire and Building Codes, including applicable permits and inspections.
e.
Batteries. If solar storage batteries are included as part of the solar energy system, they must be placed in a secure storage container or enclosure meeting the requirements of the Fire and Building Codes when in use, and when no longer in use shall be disposed of in accordance with all applicable laws and regulations.
(2)
Planning Commission Review.
a.
If any of the standards above cannot be complied with, the Planning Commission may grant a special exception if it can be determined that any negative impacts on adjacent properties can be mitigated by specific conditions.
b.
Prior to the meeting, the applicant shall provide the following:
1.
Site plan.
2.
Drawings showing existing and proposed building elevations.
3.
The kind, color, and texture of materials to be used.
4.
Any other pertinent information determined to be necessary by the Director.
c.
The Planning Commission shall approve, approve with conditions, or deny the development or structure.
(LDC 2008, § 15A-11-22; Ord. No. 15-30, 9-12-2015)
Wind energy conversion systems shall meet the following standards:
(1)
Minimum tower setback from any property line shall equal the height of the tower.
(2)
Towers shall meet main dwelling setbacks for the particular zone in which the tower is located.
(3)
There shall be sufficient safety measures to prevent the tower from becoming a climbing hazard.
(4)
The tower shall not be located on a utility easement or right-of-way.
(5)
In the case of joint ownership of a tower, the structure may be located on any lots as approved by the Chief Building Official, provided the tower meets setback requirements mentioned above in respect to all perimeter properties.
(6)
The owner shall obtain a building permit and certification by a registered engineer as to the safety of equipment and installation.
(LDC 2008, § 15A-11-23)
(a)
Purpose. The purpose of this section is to address planning issues brought on by the rapid growth in demand for low power wireless telecommunications services. This section establishes provisions that deal with issues of demand, visual mitigation, engineering, residential impacts, health, safety, and facility siting.
(b)
Application. The requirements of this section apply to both commercial and private telecommunications facilities. All telecommunications facilities shall comply with the following regulations and all other ordinances of the City and any pertinent regulations of the Federal Communications Commission and the Federal Aviation Administration.
(c)
Telecommunication Facility Justification Study and Master Plan Required. A Master Plan for each company shall be submitted. Additionally, a complete application and Telecommunication Facility Justification Study shall be submitted by each company for each proposed telecommunications facility. The Telecommunication Facility Justification Study and Master Plan shall be submitted to the Community Development Department, which will provide a preliminary review. Upon completion of the Community Development Department review, the Telecommunication Facility Justification Study and Master Plan will be scheduled with the Development Committee for further review and recommendation to the Planning Commission, together with the complete application.
(d)
Master Plan Requirements. A Master Plan shall be completed by each company. The Master Plan shall show proposed locations of future telecommunication facilities and include the rationale for each potential telecommunication facility. Maps shall be utilized to graphically illustrate the coverage radius of each potential telecommunication facility.
(e)
Telecommunication Facility Justification Study Requirements. A Telecommunication Facility Justification Study shall be completed for each telecommunication facility. The Study shall include:
(1)
Rationale. The rationale for the selection of the proposed telecommunication facility in view of the relative merits of any feasible alternative telecommunication facilities within the search ring. The Telecommunication Facility Justification Study shall include a description of the telecommunication facility, a description of the telecommunications facilities proposed to be placed on the location with technical reasons for their design and efforts made to minimize impacts on the surrounding land uses, a listing of other telecommunication facilities within the search ring which were evaluated and a statement of reasons why the final location was chosen. Staff may request the search ring and propagation information for the proposed telecommunication facilities. The applicant shall justify that the telecommunications facilities comply with the General Plan, as well as the required setback, height and landscaping requirements of the zoning district in which they are proposed to be located.
(2)
Co-location. The Study shall also examine the potential for co-location at an existing or the proposed telecommunication facility. If co-location is not possible at an existing telecommunication facility, or if the proposed new telecommunication facility is not available for co-location, then the applicant shall include a written explanation why co-location is not possible.
(3)
Height. The height of the antennas and antenna support structures shall be justified through a detailed written analysis that explains in non-technical terms the reasons why service cannot be effectively provided unless at the requested height. If the proposed telecommunication facility is a roof mount or wall mount, the City may request that the Study verify that the existing or proposed screening will screen from view all telecommunications facilities.
(4)
Equipment Facilities. The Study must include a detailed, written explanation and analysis, not limited to fiscal reasons alone, of the potential for the equipment facilities to be either:
a.
Located in an existing building; or
b.
Designed using stealth design technology, or other visual screening is utilized that readily conceals the appearance of the equipment facilities.
(5)
Visual Analysis. The applicant shall submit a visual analysis, which may include photosimulation, field mock up or other techniques, which identifies the potential for visual impacts of the proposed telecommunications facility. The analysis shall consider views from public areas (streets, parks, etc.) and from private residences. The analysis shall assess the cumulative impacts of the proposed telecommunications facility and other existing or approved telecommunications facilities in the area as provided by City staff and shall identify all mitigation measures consistent with the technical aspects and requirements of the proposed telecommunications facility. All costs associated with this requirement are to be borne by the applicant.
(6)
Independent Review. The City may, if it deems necessary, cause each telecommunications facility to be reviewed by a qualified Radio Frequency Engineer. The purpose of the review is to determine if other locations are available to achieve an equivalent signal distribution and not significantly affect the operation of the telecommunications facility. Such a review may be required when an applicant indicates that no other acceptable location exists. The costs shall be borne by the applicant.
(f)
Permitted Uses. The following telecommunications facilities are classified as permitted uses. Any request for telecommunications facilities differing from the standards as allowed in this section shall require a Technical Necessity Exception from the Planning Commission. All telecommunications facilities must comply with the General Plan as well as the required setback, height and landscaping requirements of the zoning district in which they are to be located and are subject to all provisions for site plan review, including modifications to existing site plans. All permitted use equipment facilities listed in this section must be located in an existing building or designed using stealth design technology, or other visual screening is utilized that readily conceals the appearance of the equipment facilities.
(1)
City Property. Telecommunications facilities located on City-owned property are allowed as a permitted use provided the facilities meet the standards as specified for each type of facility as contained in this section, and the facility owner has entered into a lease-type agreement with the City.
(2)
Wall-Mounted Antenna. Wall-mounted antennas which comply with the following standards are allowed as a permitted use:
a.
Locations. Located on a parcel in a commercial, industrial, or professional office zone district on a commercial, industrial, or office structure or in residential zone districts on residential institutional uses.
b.
Mounting Method. Wall-mounted antennas shall not extend above the wall line of the building or extend more than four feet horizontally from the face of the building.
c.
Stealth Design. Antennas, equipment facilities, and the antenna support structure shall be constructed with stealth design to match the color of the building or structure and to be architecturally compatible with the building or to match the color of the background against which they are most commonly seen.
(3)
Roof-Mounted Antenna. Roof-mounted antennas which comply with the following standards are permitted uses:
a.
Locations. Located on a parcel in a commercial, industrial, or professional office zone district on a commercial, industrial, or office structure or in residential zone districts on residential institutional uses.
b.
Mounting Location.
1.
Roof-mounted antennas may be located on top of existing penthouses or mechanical equipment rooms provided the telecommunications facilities are enclosed by a structure that creates a visual screen. The screening structure and telecommunications facilities shall not extend more than eight feet above the existing roofline of the penthouse or mechanical equipment room.
2.
For roof-mounted antennas not mounted on a penthouse or mechanical equipment room, the telecommunications facilities shall be mounted at least five feet from the exterior wall of a building. For antennas mounted between five and ten feet from the exterior wall, the maximum height of a roof-mounted antenna is directly proportional to the distance the antenna is set back from the exterior wall up to a maximum height of ten feet above the roofline of the building to which the antenna is attached.
3.
Telecommunications facilities shall be mounted at least five feet behind any parapet wall. For antennas mounted between five and ten feet behind a parapet wall, the maximum height of the antenna is directly proportional to the distance the antenna is set back from the wall up to a maximum of ten feet as measured from the top of the parapet wall.
c.
Screening. Roof-mounted telecommunications facilities shall be located only on a flat roof and shall be screened, constructed, and/or colored to match the structure to which they are attached. Roof-mounted telecommunications facilities for pitched roofs must receive a Technical Necessity Exception.
d.
Area Limitations for Wall- and Roof-Mounted Antennas. A combination of both roof and wall-mounted antennas are allowed on a building. The total area for all wall and roof-mounted antennas and antenna support structures combined shall not exceed 40 square feet for each exterior wall of the building or a total of 160 square feet per building per carrier. A maximum of four walls shall be occupied by antennas. The total area is the sum of the area of each individual antenna face and the visible portion of the antenna support structure and the equipment facility as viewed when looking directly at the face of the building. The total area for a roof-mounted antenna shall apply to the closest exterior wall. Up to three carriers may utilize each building side for a maximum of four sides as a permitted use.
(4)
Co-location. Co-location of antennas on an existing monopole is a permitted use provided the antennas do not extend more than 12 inches from the monopole and meet all the provisions as stated for landscaping, fencing and safety and equipment facilities.
(5)
Stealth Design. Telecommunications facilities that incorporate stealth design technology and are located on a parcel in a commercial, industrial, or professional office zone district or in a residential zone district containing a residential institutional use are a permitted use.
(6)
Conversion. Conversion of existing flagpoles, light standards, athletic field lights, or other similar structures, provided the structure's height is not increased more than ten feet or unless approved by the Community Development Director as provided for in modified site plan review as described in this title, are a permitted use.
(7)
Utility Pole Antennas. Utility pole antennas which comply with the following standards are permitted uses:
a.
Location. Utility pole antennas may only be located on existing utility poles.
b.
Method of Mounting. Such antennas shall be designed and installed by the applicant according to the City's specifications and details for utility poles.
c.
Agreement. Consistent with the use of public rights-of-way by other utility and cable providers, each telecommunication provider is required to enter into an agreement with the City prior to installing any telecommunication facilities in the rights-of-way. The Planning Commission shall review site plan conditions prior to the execution of the agreement.
(g)
Technical Necessity Exception/Conditional Uses.
(1)
If an applicant cannot meet the standards for telecommunications facilities as provided for in Subsection (f) of this section for technical reasons, an applicant may request a Technical Necessity Exception under the conditional use process from the Planning Commission. If an applicant cannot or will not meet those standards for reasons other than technical reasons, the use is not allowed.
(2)
Telecommunications facilities which meet the following standards, and it is determined by the Planning Commission that a Technical Necessity Exception is appropriate, are conditional uses:
a.
General Plan Compliance. Comply with the General Plan as well as the required setback, height, and landscaping requirements of the zoning district in which they are located.
b.
Technical Necessity. An applicant cannot meet the standards for telecommunication facilities as provided in Subsection (f) of this section for technical reasons.
c.
Antennas in Multifamily Zones. Wall mount antennas, roof mount antennas, and stealth applications on structures containing ten or more dwelling units and conversions are conditional uses which require a Technical Necessity Exception. Antennas on structures containing less than ten units are not allowed. The antennas and their related antenna support structures and equipment facilities must meet the design standards for each respective telecommunications facility as referenced in Subsection (f) of this section.
d.
Monopoles.
1.
Monopoles are not allowed in any zone within the City without a Technical Necessity Exception being granted by the Planning Commission. Following are the minimum standards for a monopole to qualify for a Technical Necessity Exception/conditional use. The Planning Commission may impose additional requirements pursuant to the conditional uses review standards in this title.
(i)
Independent Review. All applications requesting a monopole under the Technical Necessity Exception provision shall complete an independent radio frequency engineering review of the proposed monopole telecommunication facility in relation to the requested height, alternative locations, other proposed telecommunication facilities, and existing telecommunication facilities. The cost of the independent review shall be borne by the applicant.
(ii)
Antenna Sizing. The maximum visible width of antennas and antenna support structures on a monopole shall not exceed eight feet in height or three feet in width as viewed looking directly at the monopole at same elevation as the antennas and antenna support structure. Top hat design is not permitted.
(iii)
Location and Minimum Setbacks. Monopoles shall be allowed only in the rear yard area of any commercial or industrial lot which contains a commercial or industrial use or City property. These structures shall not be located in a required landscaped area, buffer area or required parking area. No such antenna shall be located within 165 feet of a residential property line. However, the Planning Commission may reduce the required setback from a residential property line if practical difficulties are demonstrated by the applicant (e.g., City park location, public buildings, etc.).
(iv)
Height Limit. Monopoles shall not project higher than ten feet above the average building height to a maximum of 60 feet or, if there are no buildings within 300 feet, these facilities shall not project higher than ten feet above the average tree canopy height to a maximum of 60 feet, measured from ground level.
(v)
Landscaping, Fencing and Safety. Monopoles shall, at minimum, be landscaped as per the requirements of the zoning district in which they are located. If there are no buildings immediately adjacent to the monopole and equipment facilities, all monopoles and equipment facilities shall be surrounded by dense tree growth to screen views of the facility in all directions. These trees may be existing on the subject property or planted on subject property. The Planning Commission may require additional landscaping or fencing as part of the site plan approval. The climbing pegs shall be removed from the lower 20 feet of the monopole.
2.
Exception. Monopoles may be allowed in PUD zones if the following conditions are met:
(i)
The PUD consists of at least 400 acres.
(ii)
The monopole and equipment facility are placed in an open space or common area within the PUD.
(iii)
The location must be in a mature landscape area to provide a screen and buffer. Alternatively, new landscaping must be provided around the proposed monopole or other types of screening that may be approved by the Planning Commission.
(iv)
Any proposed location, including all leased area for the wireless facility, will no longer be considered open space. Therefore, any proposed location must not reduce the open space below the minimum acreage for the development.
(v)
The monopole and equipment facility must utilize stealth technology.
(vi)
The monopole shall not project higher than ten feet above the average building height or average tree canopy up to a maximum of 45 feet. The Planning Commission may increase the height beyond ten feet above the tree canopy if it is determined that this will aid on compliance with stealth requirements. To provide for additional carriers, clustering of multiple poles of varying heights is encouraged.
(vii)
No antenna shall be located within 165 feet of a residential property line or residence. However, the Planning Commission may reduce the required setback from a residential property line or residence if the applicant demonstrates that the proposed facility would follow the City's standards for stealth applications more closely or if they can demonstrate other practical difficulties.
(viii)
The applicant must demonstrate a technical need (explained in simple terms) for the proposed monopole.
e.
Resubmittal of facilities. The applicant shall re-submit each telecommunication facility which has been granted a Technical Necessity Exception/conditional use for review seven years to a maximum of ten years from final approval as established by the Planning Commission. At the time of this review, the applicant shall provide information to show that the telecommunications facility is still necessary at the approved location, employs the most current available technological advances, and has been in compliance with all the requirements established by this section and the Planning Commission.
f.
Additional information required. In addition to conditional use standards outlined in this title for conditional uses, the information concerning the following shall be submitted by the applicant and considered by the Planning Commission for all Technical Necessity Exception requests:
1.
Compatibility of the proposed telecommunications facilities with the height and mass of existing buildings and utility structures.
2.
Whether it is possible to locate the antenna on other existing structures with less aesthetic impact in the same vicinity such as other monopoles, buildings, utility poles, athletic field lights, parking lot lights, etc., without significantly impacting transmission or reception.
3.
The location of the telecommunications facilities in relation to existing vegetation, topography, and buildings to obtain the best visual screening.
4.
Whether the spacing between the proposed and existing telecommunications facilities creates detrimental impacts to adjoining properties.
5.
Substantial existing or proposed landscaping, including tree cover, to reduce visibility of telecommunications facilities.
6.
Whether the telecommunications facility complies with the General Plan, as well as the required setback, height, and landscaping requirements of the zoning district in which the telecommunications facility is proposed to be located and whether it complies with provisions as stated in Chapter 21-32, including modifications to existing site plans.
(h)
Equipment Facilities. All equipment facilities shall be located in an existing building or designed whereby the incorporation of stealth design technology or other screening is utilized that readily conceals the appearance of the equipment facility. All power lines on the lot leading to the telecommunication facility shall be underground. If the Planning Commission does not require the applicant to place the equipment facility underground or utilize stealth design technology, then the telecommunications facility shall be fenced with a six-foot vinyl coated chainlink fence or other fencing and landscaping as approved or required by the Planning Commission.
(i)
Historic Districts. Any telecommunications facility proposed for a location within a historic district or on a landmark site must be reviewed by the Planning Commission.
(j)
Non-Allowed Uses. The following telecommunications facilities are not allowed in any zone district:
(1)
Lattice towers.
(2)
Whip antennas on wall-mounted support structures.
(3)
Any telecommunications facility not specifically listed in Subsection (f) of this section or not in compliance with the requirements for a Technical Necessity Exception/Conditional Use.
(k)
Non-Maintained or Abandoned Facilities.
(1)
The Director may require each non-maintained or abandoned telecommunication facility to be removed when such a telecommunications facility has not been repaired or put into use by the owner, person having control or person receiving benefit of such structure within 30 calendar days after notice of non-maintenance or abandonment is given to the owner, person having control, or person receiving the benefit of such structure.
(2)
If the structure upon which the antenna is placed, including, but not limited to, utility poles, water tanks, light poles or buildings, is no longer used or is proposed by the owner or operator of that structure to be removed or replaced, the antenna must be removed within 90 calendar days after notice from the City. Any replacement telecommunication facility, if necessary, is required to comply with the requirements herein or any subsequent amendment hereto.
(l)
Building Permits. Prior to the construction of any telecommunications facility, the applicant shall obtain the proper building permits, road cut permits, and other permits as required by this Code.
(m)
Wireless Telecommunications Facilities Illustrations. The following illustrations are referred to in this section. They are meant to demonstrate graphically the intent of the Section:
(LDC 2008, § 15A-11-24; Ord. No. 10-44, 12-14-2010; Ord. No. 23-08, § 1(Exh. A), 7-18-2023)
State Law reference— Regulation of amateur radio antennas, U.C.A. 1953, § 10-9a-515.
(a)
General Scope. This section and not Section 21-11-24 shall apply to the construction, modification, removal and operation of small wireless communications facilities (SWFs) installed in the public right-of-way (ROW). All references to SWFs in this chapter shall refer only to SWFs in the ROW and not SWFs located anywhere outside of the ROW. No person shall install, construct, modify, or otherwise place any SWF within the public right-of-way except pursuant to the provisions of this section. The definitions used in this section are found in Chapter 21-37.
(b)
Purpose.
(1)
The purpose of this section is to reasonably regulate, to the extent permitted by Utah and Federal law, the installation, operation, collocation, modification and removal of SWFs in the City of Sandy in a manner that protects and promotes public health, safety and welfare, and balances the benefits that flow from robust personal wireless services with the unique and historic character, aesthetics and local values of the City. This section is intended to meet the following goals, to the extent not inconsistent with applicable Federal and State law:
a.
Promote and protect the public health, safety, and welfare by reducing the visibility of SWFs to the fullest extent possible, including, but not limited to the following method: camouflage or stealth concealment, design techniques and placing SWFs and related accessory equipment, which is not placed on or in the utility pole, underground, except equipment which cannot be placed underground if the SWF is to function properly.
b.
Provide for the managed development and installation, maintenance, modification, and removal of wireless communication infrastructure in the City with the fewest number of SWFs needed to provide cell service, in a nondiscriminatory manner.
c.
Encourage the deployment of smaller, less intrusive SWFs to supplement existing larger macro-cell sites.
d.
Encourage the deployment of SWFs primarily along major and minor arterials, and major and minor collectors, and limit the deployment of new utility poles along local streets and residential districts where the streets are 60 feet wide or narrower, and new poles and SWFs in historic districts, and design districts where they are discouraged or not allowed.
e.
Encourage the location of SWFs in nonresidential areas, in a manner that minimizes the total number of SWF support poles needed throughout the City.
f.
Encourage the location of SWFs to utilize existing right-of-way corridors, and encourage SWFs to be installed at street intersections. Encourage collocation of SWFs on new and existing sites.
g.
Encourage the location of SWFs, to the extent economically and technically feasible, at places and in areas where the adverse visual impact on the community is minimized.
h.
Enhance the ability of wireless service providers to provide services to the community quickly, effectively, and efficiently.
i.
Effectively manage SWFs in the ROW.
j.
Nothing herein is intended to waive or limit the City's right to enforce or condition approval on compliance with generally applicable building, structural, electrical, and safety codes and with other laws codifying objective standards reasonably related to public health and safety.
k.
Provide for the nondiscriminatory use of the right-of-way.
(2)
This section does not intend, and shall not be interpreted or applied to:
a.
Prohibit or effectively prohibit personal wireless services; or
b.
Unreasonably discriminate among wireless service providers of functionally equivalent personal wireless services; or
c.
Regulate the installation, operation, collocation, modification or removal of SWFs on the basis of the environmental effects of RF emissions to the extent that such emissions comply with all applicable FCC regulations; or
d.
Prohibit or effectively prohibit any collocation or modification that the City may not deny under Utah or Federal law; or
e.
Preempt or conflict with any applicable Utah or Federal law.
(c)
Applicant, Permit. Any person seeking to locate or modify a SWF or utility pole in the ROW shall, except as otherwise provided herein, first submit an application, and in historic and design districts, obtain a permit under this section, and shall provide to the City on an application form provided by or acceptable to the City information sufficient, in the City's reasonable discretion, to enable the City to make an informed determination regarding such permit. Fees for permits will be established by the Sandy City Council.
(1)
Exceptions to Permitting.
a.
Wireless service providers are not required to submit an application, obtain a permit, or pay a fee for the following activities, but shall provide not less than ten days' notice to the City Public Works and Public Utilities Departments of such activities:
1.
Routine maintenance;
2.
The replacement of a small wireless facility with a small wireless facility that is substantially similar or smaller in size;
3.
The installation, placement, maintenance, operation, or replacement of a micro wireless facility that is strung on a cable between existing utility poles, in compliance with the National Electrical Safety Code; or
4.
Any other installation or activity otherwise allowed by superseding law.
b.
A wireless service provider shall obtain a permit for work that requires excavation or cutting of any road, sidewalk or other surface or closing of sidewalks or vehicular lanes in the right-of-way. The City shall process and approve the permit within the same time period the City processes and approves a permit for all other types of entities.
(2)
Lessees to Comply with this Section. Applicants who enter into lease or license agreements with the City to locate, modify or collocate SWFs on City-owned light, sign, traffic signal or other poles shall be required in those instruments to comply with the provisions of this section, except as specifically negotiated and clearly stated in the written instrument otherwise.
(3)
Compliance. All persons subject to this section shall:
a.
At all times comply with all applicable statutes, laws, ordinances, and policies;
b.
Upon reasonable request, timely provide written confirmation sufficient for customary land survey purposes concerning location of SWFs;
c.
Upon reasonable request, timely provide the City with accurate as-built maps and plans certifying location of SWFs in paper copies and GIS-layer ESRI format (shape file or geographic database) with data about the physical aspects of each SWF required by the City, including but not limited to height of the SWF, range of transmission, type of transmission (cellular, voice, data, Wi-Fi, etc.), nature of the pole or support, permittee of the pole or support, and similar information;
d.
Upon request, timely make available to the City, books, records, maps and other documents maintained with respect to SWFs for inspection at reasonable times and places;
e.
Pay all applicable fees required by the City.
(4)
Subject to Superseding Federal and State Law. The provisions of this section shall be subject to and superseded by conflicting applicable Federal or State law now in force or hereafter enacted.
(d)
Operational Standards.
(1)
Federal and State Requirements. All SWFs shall meet the current standards and regulations of the United States Federal Aviation Administration (FAA), the Federal Communications Commission (FCC), and any other agency of the Federal and Utah State governments with the authority to regulate SWFs. If such standards and regulations are changed, then the permittees shall bring such facilities into compliance with such revised standards and regulations within the time period mandated by the controlling Federal or State agency. Failure to meet such revised standards and regulations shall constitute grounds for the removal of the SWF facility at the permittee's expense.
(2)
Radio Frequency Standards. If concerns or complaints regarding compliance with radio frequency emissions standards for a SWF have been communicated to the City, the City may request that the permittee provide information demonstrating compliance which the permittee shall promptly provide. If such information is not sufficient, in the reasonable discretion of the City, to demonstrate compliance, the City may request, and the permittee of the SWF shall submit a project implementation report which provides cumulative field measurements of radio frequency emissions of all antennas installed at the subject site, and which compares the results with established Federal standards. If, upon review, the City finds that the SWF does not meet Federal standards, the City may require corrective action within a reasonable period of time, and if not corrected, may require removal of the SWF at the permittee's expense. Any reasonable costs incurred by the City, including reasonable consulting costs needed in the Director's discretion, to verify compliance with these requirements, shall be paid by the permittee.
(3)
Signal Interference. All SWFs shall be designed and sited so as not to cause interference with the normal operation of radio, television, telephone, other SWFs, and other communication services utilized by nearby residential and nonresidential properties. SWFs shall not interfere with any public safety communications except with the written approval of the public safety agency whose communications are so affected. The applicant shall provide a written statement from a qualified radio frequency engineer certifying that a technical evaluation of existing and proposed SWFs indicates no potential interference problems with the communications referred to just above. The permittee of the SWF shall allow the City to monitor interference levels with public safety communications during this process. In addition, the permittee of a SWF shall notify the City at least 14 calendar days prior to the introduction of new personal wireless service of changes in existing personal wireless service, and shall allow the City to monitor interference levels with public safety or other communications during the testing process. The permittee shall not begin new service or change service of the SWF until the City has notified the permittee that the SWF is acceptable, or the expiration of the 14 days, whichever occurs first.
(4)
Operation and Maintenance. To ensure the structural integrity of SWFs and the support poles on which they are mounted, the permittee of a SWF shall ensure that it is maintained in compliance with standards contained in applicable local building and safety codes, State of Utah Blue-Stakes laws, and with the City's Standard Specifications and Details for Municipal Construction as most recently promulgated. If upon inspection, or upon other reliable evidence, the City concludes that a SWF support pole or SWF fails to comply with such codes or constitutes a danger to persons or property, then, upon written notice being provided to the permittee of the SWF, the permittee shall have 30 days from the date of notice to demonstrate that the SWF or support pole is structurally sound and safe, or to bring such SWF into compliance. Upon good cause shown by the permittee, the City may extend such compliance period not to exceed 90 days from the date of said notice. If the permittee fails to bring such SWF into compliance within said time period, and fails to remove the SWF, then the City may remove such SWF at the permittee's expense. The City may, in its discretion, require an industry-standard pole load analysis be completed and submitted to an authority indicating that the utility pole, to which the SWF is to be attached, will safely support the load.
(5)
Abandonment and Removal. If a SWF has not been in use for a period of three months, the permittee of the SWF shall notify the City of the non-use, and shall indicate whether re-use is expected within the ensuing three months. Any SWF that is not operated for a continuous period of six months shall be considered abandoned. The City, in its sole discretion, may require that an abandoned SWF be removed. The permittee of such SWF shall remove the same within 30 days of receipt of written notice from the City. If such SWF is not removed within said 30 days, the City may remove it at the permittee's expense, and any approved permits for the SWF shall be deemed to have expired.
(6)
Hazardous Materials.
a.
No permittee and no agent or subcontractor of a permittee shall use, store or release hazardous materials in, on, about or from any SWFs or any property on which any SWF is located, except those necessary for the operations of the SWF, and only in accordance with all applicable laws governing such materials. No permittee and no agent or subcontractor of a permittee shall store, generate, release or dispose of hazardous materials in or on any SWFs or any City property without the prior signed written consent of the City's mayor or chief administrative officer, and only if such writing clearly allows such storage, generation, release or disposal of hazardous materials.
b.
If a permittee discovers that any spill, leak or release of any quantity of hazardous materials has occurred on, in or under any SWF, the permittee shall promptly notify all appropriate governmental agencies and the City. In the event such release is caused by the permittee, a lessee or permittee, their officers, employees agents or subcontractors, the permittee shall (or shall cause others to) unless otherwise directed by the City, promptly and fully investigate, clean up, remediate and remove all such hazardous materials as may remain and so much of any portion of the environment as shall have become contaminated, all in accordance with applicable government requirements, and a plan approved by the City, and shall replace any removed portion of the environment (such as soil) with uncontaminated material of the same or better character as existed prior to contamination.
(e)
Applications and Submissions. No SWF shall be collocated, and no new, modified, or replacement SWF support pole associated with a SWF may be placed in the right-of-way, and no initial location, collocation, or modification constituting a substantial change to any SWF may occur except upon the issuance of a permit after submission of a written application from an applicant, reviewed and approved by the City in accordance with this section. Permits issued hereunder shall be of general applicability. A SWF on a wire strung between poles does not require a permit or application. All SWFs shall be reviewed pursuant to the following procedures:
(1)
Pre-Submittal Meeting. Before first application submittal, applicants shall schedule and attend a pre-submittal consultation meeting with City staff for all facilities intended for installation in the public right-of-way, unless waived by the Director or his designee because the City determines that it already has sufficient information about an applicant's proposed facilities, or because the proposed facilities are expected to have little impact on the City. City staff will endeavor to provide applicants an appointment within 15 working days after a written request for an appointment is received.
(2)
Twenty-Five Permits Per Application. A consolidated application may be submitted for the collocation of no more than 25 SWFs if all of the SWFs are substantially of the same type and proposed for collocation on substantially the same type of structures, or at the applicant's discretion, an applicant may file a consolidated application for the installation, modification or replacement of up to 25 utility poles in the ROW. An applicant may file no more than three consolidated applications within any 30-day period or multiple applications for more than 75 utility poles or SWFs within any 30-day period. A consolidated application may not combine applications solely for collocation of SWFs on existing utility poles with applications for the installation, modification, or replacement of a utility pole. If the City denies the application for one or more utility poles or SWFs in a consolidated application, the City may not use the denial as a basis to delay the application process of any other utility pole or small wireless facility in the same consolidated application.
(3)
Submittal Requirements. In addition to an application form signed by an authorized official or employee of an applicant, signal interference letter, and required submittal fees, each applicant shall submit the following documents in a form acceptable to the City:
a.
An accurately scaled site plan of all of applicant's SWFs and wireless facility support poles within one mile of the facility to be installed; such site plan shall be submitted in paper and GIS-layer ESRI format (shape file or geographic database) with data about the physical aspects of each SWF required by the City, including but not limited to height and dimensions of the SWF, range of transmission, type of transmission (cellular, voice, data, Wi-Fi, etc.), nature of the pole or support, permittee, owner and operator of the pole or support, and similar information;
b.
Accurate photo simulation of all proposed aboveground SWFs, collocations, and modifications of existing SWFs;
c.
A scaled elevation view and other supporting accurate drawings, calculations, and other documentation of the proposed SWF and support pole for it;
d.
If required by the City, documentation showing the financial and technical ability and legal capacity of the applicant to perform the work requested, and to operate and maintain the SWFs for longer than one year;
e.
Letters, agreements, or other documents showing permissions to locate SWFs on the poles or in facilities of the City or other permittees, and if an applicant places SWFs or related accessory equipment on City poles, then it shall have an executed signed master license agreement with the City, and a pole attachment permit or agreement from the City for each City pole;
f.
Letters, reports or memoranda signed by appropriate qualified professionals where required by the City, showing the location and dimension of all improvements, including information concerning topography, radio frequency coverage, pole height, setbacks, drives, parking, fencing, landscaping, adjacent uses, drainage, and other information deemed by the Director to be necessary to assess compliance with this section;
g.
Submission of evidence of required licenses and registrations from Federal and State regulatory bodies, including the Federal Communications Commission, necessary for the services to be provided; and
h.
A franchise from the City allowing the wireless provider to operate in the right-of-way if it does not already have a fiber-optic franchise from the City.
(4)
Other Information. Each applicant for a SWF permit or for the erection of a utility pole in the ROW shall provide to the Director, unless waived by the Director, the following information and documents:
a.
The business form of the person making the application.
b.
If the applicant is a partnership or limited partnership, the names and addresses of all such partners and their respective interests; if a corporation, the names and addresses of the officers and directors of the corporation and the names of any persons holding more than ten percent of the common and preferred stock of the company, together with their proportionate interests indicated.
c.
A proposed plan for the installation, operation and maintenance of the applicant's communications system indicating methods of construction, including specifications for design, installation, technical capacity and maintenance, and arrangements with any other company or person for use of poles or other facilities.
d.
The most current financial statement of the applicant.
e.
The applicant's experience in the field of service it plans to provide in the City.
f.
The applicant's capability to provide cellular service, if reasonably in question.
g.
The applicant's agreement to pay the fees and rates for use of the right-of-way provided in this section.
h.
An attestation by an authorized officer of the applicant that the SWF will be operational for use by a wireless service provider within 270 days after the day on which the City issues the permit except in the case that the lack of commercial power or communications transport infrastructure to the site delays completion, or for other good cause reasonably beyond the control of the provider approved by the Director.
i.
The Community Development Department may share information on the location of SWFs and wireless communication support poles with other applicants applying for administrative approvals or permits under this section, or other organizations seeking to locate SWFs within the City, provided that doing so does not violate any records confidentiality requirements of U.C.A. 1953, § 63G-2-305, and provided, however, that the Community Development Department is not, by sharing such information, in any way representing or warranting that such sites are available or suitable, or that the information provided by an applicant is correct.
(5)
Applications for New and Modified or Replacement Poles. Each application to erect a new, modified or replacement wireless communications pole in the right-of-way shall be reviewed by the Director or his designee for conformance to this section and the Land Development Code using the Site Plan review procedures set forth in the Land Development Code. Should the Director determine that the proposed pole or SWF will have a significant adverse visual impact, (e.g., due to proximity to historic or aesthetically significant structures, views, and/or community features) or otherwise be incompatible with the surrounding area the Director may deny the application or refer the application to the Telecommunications Review Group for a recommendation. A wireless service provider may replace or upgrade a utility pole only with the written approval of the utility pole's owner.
(6)
Power and Fiber-Optic Connections. With all applications for SWFs, each applicant shall provide written documentation from the wireless communications pole or SWF permittee affirming that an agreement has been reached with the applicant to allow for legal access to and from the pole or facility. The City may require evidence that agreement has been reached for the legal provision of needed services with Rocky Mountain Power or other lawful electricity provider for electricity and other providers of facilities (such as fiber-optic service) needed to operate and maintain the SWF.
(f)
Time Frame for Review.
(1)
Subject to the tolling provisions of Subsection (f)(2) of this section, within 30 days of the date on which an applicant submits an application seeking collocation of a SWF or for a new, modified, or replacement utility pole, the City shall determine whether the application is complete, and notify the applicant that the City's determination of whether the application is complete.
(2)
If the City determines, within the applicable time period described in Subsection (f)(1) of this section, that an application is incomplete, the City shall specifically identify the missing information in the written notification sent to the applicant; and the processing deadline for the application is tolled from the day on which the City sends the applicant the written notice to the day on which the City receives the applicant's missing information; or as the applicant and the City agree.
(3)
An application for a SWF expires if:
a.
The City notifies the wireless service provider that the wireless provider's application is incomplete, in accordance with this section; and
b.
The wireless service provider fails to respond within 90 days after the day on which the City notifies the wireless service provider under this section.
(4)
The City shall process an application on a nondiscriminatory basis and approve or deny an application:
a.
For the collocation of a SWF, within 60 days after the day on which the City receives the complete application; and
b.
For a new, modified, or replacement utility pole, within 105 days after the day on which the City receives the complete application.
If the City fails to approve or deny an application within the applicable time period described in Subsection (f)(4)a or b of this section, the application is approved. Notwithstanding Subsection (f)(4)a and b of this section, the City may extend the applicable period described in Subsection (f)(4)a or b of this section for a single additional period of ten business days, if the City notifies the applicant before the day on which approval or denial is originally due. If the City denies an application it shall document the basis for the denial, including any specific law on which the denial is based; and shall send such documentation to the applicant on or before the day on which the City denies the application.
(g)
Compliance with Applicable Law.
(1)
Notwithstanding the approval of an application for collocation or non-substantial modification as described herein, all work done pursuant to permits issued hereunder must be completed in accordance with all applicable building and safety requirements as set forth in this Code, the Land Development Code, the site plan approval (if applicable), and all other applicable regulations. In addition, all SWFs shall be operated and maintained in compliance with the following requirements:
a.
They shall comply with all applicable permits or licenses issued by a local, State or Federal government agency with jurisdiction over the SWF;
b.
They shall comply with license or lease agreements, easements, covenants, conditions and/or restrictions on or applicable to the underlying real property;
c.
They shall be maintained in good working condition and to the standards established at the time of application approval, or as required by then-current Federal or State law; and
d.
They and the areas around them shall remain free from trash, debris, litter, graffiti, and other forms of waste and vandalism. Any graffiti shall be promptly removed or painted over, and any damage shall be repaired as soon as practicable after a permit is granted by the City, when required, and in no instance more than ten calendar days from the time of notification by the City or after discovery by the permittee of the SWF.
(2)
Compliance Report. Upon request by the City, the applicant shall provide a compliance report within 45 days after installation of a SWF, demonstrating that as installed and in operation, the SWF complies with all conditions of approval, applicable City ordinances and applicable regulations.
(h)
Permit and Renewal Term. Any validly issued permit for a SWF or utility pole will automatically expire at 12:01 a.m. local time exactly ten years and one day from the issuance date. If there is no basis for denial, an authority shall grant the renewal of an application under this section for an equivalent duration. No renewal shall be valid unless all of a wireless provider's SWFs and related wireless communication facilities fully comply with this section, Utah State Code, and City ordinances.
(i)
Siting, Design, Stealth Implementation.
(1)
Siting and Design. SWFs and related facilities shall meet the requirements of this section unless the applicant can clearly show and the Director finds that such requirements are not technically and economically feasible for the applicant.
(2)
Stealth Implementation. Construction of SWFs must utilize stealth implementation meeting the provisions of this section if such camouflage measures are technically and economically feasible consistent with Utah law. A SWF or a supporting pole employs stealth design or implementation when it:
a.
Is integrated harmoniously into an outdoor fixture such as a light pole, in a manner which minimizes or eliminates visual impact, avoids notice, or is not readily apparent; or
b.
Uses design which mimics and is consistent with the nearby natural or architectural features or replaces existing facilities so that the presence of the SWF is not readily apparent.
Stealth implementation includes the following methods of implementation, which shall be required of all SWFs and related facilities which are placed in the right-of-way. All SWFs and supporting poles on which they are mounted shall comply with the following requirements, subject to the exceptions in this section, or technical necessity exceptions found in Chapter 21-11 pertaining to special use standards.
(3)
Height of the Combined Pole and Antenna. For all new facilities and substantial modifications to existing facilities, height of the combined pole and antenna, including after a change or collocation under Section 6409(a) of the Middle Class Tax Relief and Job Creation Act of 1996, except as otherwise required by Section 6409(a), as measured from the base of the pole at ground level (including any concrete or other support) will, except in respect to poles legally erected before the effective date of the ordinance from which this section is derived, be limited to 50 feet in height for City streets which are not residential streets, and major and minor arterial streets, although the City encourages poles no higher than 30 feet on major and minor arterials, and not more than 20 feet on local streets. An antenna associated with a SWF may not extend more than ten feet above the top of a utility pole existing on or before September 1, 2018. The height restrictions may be exceeded only with a technical necessity exception provided and paid for by the applicant. The height will be reviewed by the Telecommunications Review Group and approved or denied by the Director. SWFs shall be located no closer to the nearest building than the combined height of the pole and antenna.
(4)
Antennas. No antenna shall be taller than ten feet above the top of the wireless communications pole or pole extender on which it is mounted except as otherwise allowed by U.C.A. 1953, § 54-21-602.
(5)
Power to Pole. Power to the SWF support pole must come through the base of the pole.
(6)
Use Existing Poles. Wireless service providers of SWFs are encouraged, to the extent practicable, to use existing utility poles and other infrastructure, including street signs, light poles, traffic lights, and other similar infrastructure.
(7)
Invisibility of Seams, Bolts, Wires, Cables, Assemblies. Seams, bolts/screws, antennas, wires, cables, and conduits and shroud assembly shall be fabricated and installed in a manner so as to reduce visibility. Wires and cables which cannot be placed inside a pole shall be placed in conduits which are as inconspicuous as is commercially feasible.
(8)
Wireless Facility Poles; Construction and Finish. To the extent technically and economically feasible, wireless facility poles installed by a wireless service provider shall be constructed of metal or a material, which when painted or otherwise finished, looks like metal, such as fiberglass, and shall match nearby existing City light poles in appearance. New wood poles will not be allowed. Antennas and all related accessory equipment, including mounting mechanisms, must be painted and repainted to match the pole.
(9)
Decorative Poles. If necessary to collocate a SWF, a wireless service provider may replace a decorative pole, if the replacement pole reasonably conforms to the appearance of the replaced decorative pole.
(10)
Sharing of Poles Encouraged. Sharing of wireless communication poles and utility poles is encouraged for all SWFs where feasible.
(11)
Street Intersection Preference. Wireless service providers are encouraged to locate SWFs where feasible at or near the corners of street intersections.
(12)
No Extension into Traveled ROW. Except for a traffic signal pole, City light pole or City light fixture, no portion of any SWF or its supporting pole shall extend into portion of the right-of-way or any public sidewalk intended for travel by vehicles or pedestrians, nor shall any SWF be placed in the median of any street.
(13)
New and Replacement Poles Designed for Collocation. New and replacement wireless communication poles shall match nearby existing City light poles, and shall be designed and constructed to permit the pole or other support facility to accommodate SWFs from at least two wireless service providers on the same pole, unless the Director approves an alternative design, or unless the applicant clearly demonstrates that doing so is not practically feasible. Collocation of SWFs shall be allowed by the permittees of SWFs except where impracticable or otherwise illegal. A permittee which installs a new pole or a pole replacing a City-owned pole shall be responsible for the maintenance of the pole at its expense, but the City shall be allowed to maintain any lights, traffic semaphores, or other City-owned equipment on the pole at the City's expense. The City will own the new pole.
(14)
Pole Extender. A pole extender may be used instead of replacing an existing pole, provided the pole extender is safe, structurally sound and can otherwise meet the requirements of this section, unless a further height increase is required and confirmed in writing by the pole owner, and that such height increase is the minimum extension possible to provide sufficient separation and/or clearance from electrical and wireline facilities and does not extend the total height of the pole, with the pole extender, more than 50 feet. The pole extender shall be painted or finished to substantially match the color of the pole and the diameter of the pole measured at the top of the pole. A "pole extender" as used herein is a structure affixed between the utility pole and the antenna for the purpose of increasing the height of the antenna above the pole.
(15)
Pole-Mounted Equipment. All pole-mounted equipment and antennas must be installed as close to the pole horizontally as technically and economically feasible and enclosed in a container approved by the Director as technically and economically feasible, but no larger than six cubic feet in volume for an antenna, and no larger than 28 cubic feet for all wireless equipment, including the antenna and ground- and pole-mounted equipment; to minimize impacts to the visual profile, be painted flat and nonreflective colors to match the supporting pole, placed behind existing signs, and oriented away from prominent views; all required or permitted signage in the right-of-way must face toward the street or otherwise be placed to minimize visibility from adjacent sidewalks and structures; and all conduits, conduit attachments, cables, wires and other connectors must be concealed from public view to the extent feasible. To the extent reasonably feasible, each SWF shall be consistent with the size and shape of the pole-mounted equipment installed by communications companies on utility poles on the same pole and near the proposed SWF.
(16)
Aesthetic Impacts. Each SWF shall be sited and maintained to minimize the negative aesthetic impacts to the right-of-way.
(17)
Traffic Signals. Each SWF shall be designed such that antenna installations on traffic signal poles are placed in a manner so that the size and appearance of the signal will not be significantly altered, and so that there will be no alteration in the function of the signal.
(18)
Visual Clutter. To the extent technically and economically feasible each SWF shall be designed and maintained such that all antennas, mast arms, related accessory equipment, and other facilities and elements are sized to minimize visual clutter.
(19)
Newly Installed Equipment Boxes and Underground Equipment. All newly installed equipment boxes and related accessory equipment shall be located in a manner that poses no significant risk to public safety and such that boxes and equipment meet the aesthetic requirements of this section, and if such equipment is not installed on or in a pole, then it shall be installed in a flush-to-grade or underground equipment vault whenever all cable and utility facilities, other than City poles and attachments, are so placed.
(20)
Interference of SWFs. No SWF shall alter vehicular circulation, usual travel, public safety or parking within the right-of-way or impede vehicular, bicycle, or pedestrian access or visibility along the right-of-way. No SWF may be located or maintained in a manner that causes unreasonable interference. The term "unreasonable interference" means any use of the right-of-way that disrupts or interferes with its use by the City or operation of City improvements, use by the general public, or other person authorized to use or be present upon the right-of-way, when there exists an alternative that would result in less disruption or interference. Unreasonable interference includes any use of the right-of-way that disrupts vehicular or pedestrian traffic, any interference with public utilities, and any other activity that will present a hazard to public health, safety, or welfare. In addition, no SWF or utility pole may obstruct, damage, or interfere with: another utility facility in a right-of-way; or a utility's use of the utility's facility in a right-of-way.
(21)
Relocation. Wireless service providers are encouraged to locate or relocate SWFs and wireless communication poles concurrently with other users of the right-of-way in order to minimize disruption. Wires and communication cables serving SWFs shall be installed within existing underground ducts or conduit where feasible.
(22)
Relocation at City Request. After adequate written notice to a wireless service provider, the Public Works Director may require a wireless service provider, at the wireless service provider's sole expense and in accordance with the standards in this chapter applicable to such facility, to relocate a facility in the right-of-way in a timely manner as the City deems necessary to maintain or reconfigure the right-of-way for other public projects or take any actions necessary to protect public health, safety and welfare.
(23)
Signs, Advertising. No SWF may display any signage or advertisements unless expressly allowed by the City in a written approval, recommended under FCC regulations or required by law or permit condition. Every SWF shall at all times display signage that accurately identifies the facility owner and provides the facility owner's unique site number, and also provides a local or toll-free telephone number and street address to contact the facility owner's operations center. Such identifying signs shall be less than three by five inches in size with letters between ten and 14 points in size, and shall be clearly visible and readable.
(24)
Historic and Design Districts. An applicant shall obtain a permit before collocating a pole or a SWF in a historic or design district. Such poles and SWFs shall meet the pole-height and stealth requirements of this section, and shall match, as closely as economically and technically feasible, the closest City light poles in the zone where located.
(j)
Technical Necessity Exceptions. If an applicant cannot meet the requirements of stealth design in this section because of engineering or technological incapability or substantial implacability ("technical reasons"), an applicant may apply for a technical necessity exception, which may be granted by the Director after receiving a recommendation from the Telecommunications Facilities Group, provided that even where a technical necessity exception is allowed, the applicant shall, to the extent it can, meet the requirements of this section. If an applicant cannot or will not meet those standards for reasons other than technical reasons, the use is not allowed.
(1)
New Poles and SWFs in Residential Districts. No new utility poles or SWFs shall be permitted in a public right-of-way which is not more than 60 feet wide as depicted in the official plat records and adjacent to single-family residential lots, other multi-family residences, or undeveloped land that is designated for residential use by zoning or deed restrictions unless the applicant demonstrates to the reasonable satisfaction of the City's Director or Telecommunications Review Group that without such utility pole the applicant will be unable to will not meet the applicant's reasonable wireless communication needs and qualifies for a technical necessity exception under this chapter. Evidence submitted with the application for the technical necessity exception may consist of, but shall not be limited to, the following things:
a.
No existing poles with a suitable height are located within the geographic area required to meet the applicant's engineering requirements even if applicant increases the number of existing poles and antennas it uses;
b.
Existing poles do not have sufficient structural strength to support applicant's proposed SWF;
c.
The applicant's proposed SWFs would cause electromagnetic interference with the SWFs on the existing SWFs or the existing SWF would cause interference with the applicant's proposed SWF;
d.
The applicant demonstrates that there are other limiting factors that render existing poles, cabinets and other SWFs on or in which applicant might collocate unsuitable for collocation; and
e.
Any poles erected anywhere other than at the intersections of streets shall be centered between trees where practicable, but shall be no closer than ten feet from any tree in the ROW.
(2)
Independent Consultant Review.
a.
The City Council authorizes the Community Development Director to, in his or her discretion, select and retain an independent consultant with expertise in telecommunications satisfactory to the Community Development Director in connection with any permit application.
b.
The Community Development Director may request independent consultant review on any issue that involves specialized or expert knowledge in connection with the permit application. Such issues may include, but are not limited to: Permit application completeness or accuracy; planned compliance with applicable RF exposure standards; whether and where a significant gap exists or may exist, and whether such a gap relates to service coverage or service capacity; whether technically feasible and potentially available alternative locations and designs exist; the applicability, reliability and/or sufficiency of analyses or methodologies used by the applicant to reach conclusions about any issue within this scope; and any other issue that requires expert or specialized knowledge identified by the Community Development Director.
c.
The applicant must pay for the cost of such review and for the technical consultant's initial testimony as requested by the Director, and must provide a reasonable advance deposit of the estimated cost of such review with the City prior to the commencement of any work by the technical consultant. The applicant must provide an additional advance deposit to cover the consultant's testimony and expenses at any meeting where that testimony is requested by the Community Development Director. Where the advance deposits are insufficient to pay for the cost of such review and/or testimony, the Director shall invoice the applicant who shall pay the invoice in full within ten calendar days after receipt of the invoice. No permit shall issue to an applicant where that applicant has not timely paid a required fee. The Director has the discretion to hold a public hearing in deciding matters under this section.
(k)
Performance Bonds. Each wireless service provider shall provide to the City and shall maintain for the period it has SWFs in the City's ROW a bond to assure the performance of its obligations under this section with a company with an A.M. Best's rating of B+ or better in an amount of 140 percent of the City's reasonable estimated cost of removal of the facilities to be installed or constructed by applicant. The City may require that the amount of the surety bond be increased if the City reasonably believes that the amount of the bond is insufficient to cover the City's cost of removal of a wireless service provider's facilities or support poles, or if the wireless service provider increases the number such poles or facilities. If the wireless service provider fails to perform its obligations under this chapter in any respect, including making any payment to the City required by this agreement or by applicable law for reimbursable costs incurred by the City, the City may, after 30 days' written notice to the wireless service provider, if the obligation is not performed by the wireless service provider, withdraw or make a claim for that amount from the security fund.
(l)
Related Accessory Equipment. Related accessory equipment for all SWFs shall meet the following requirements: All shall be placed on or inside of poles where they meet stealth requirements, or placed underground or flush-mounted to ground level consistent with U.C.A. 1953, § 54-21-207. Cabinets and other accessory components which cannot feasibly be placed underground shall be grouped as closely as reasonably possible and camouflaged to the extent reasonably possible unless otherwise approved by the Director; the total footprint on or under the ground of the SWF shall not exceed six square feet; and no SWF or related accessory equipment shall exceed 30 feet in height, unless placed on or inside of poles.
(1)
Lighting. SWFs shall not be artificially lit, unless required by the FAA or other applicable governmental authority, except in cases in which the SWF is mounted on a light pole or other similar structure primarily used for lighting purposes. If lighting is required, it must be approved by the Director. The City may review the available lighting alternatives and approve the design that would cause the least disturbance to the nearby properties and surrounding views. Lighting shall be shielded or directed to the greatest extent possible so as to minimize the amount of glare and light falling onto nearby properties, particularly residences. No visible flashing indicator lights or similar devices will be allowed in the right-of-way, unless part of existing light poles where lighting is an intended use, and unless such flashing lights or similar devices are part of the City's normal lighting program for such facilities, unless otherwise approved by the Director for good cause.
(2)
Noise. Noise generated at the site of a SWF must not exceed the levels permitted by City or Salt Lake County ordinances, except that a SWF permittee may, when necessary, exceed such standards for a reasonable period of time during installation, removal and repairs, not to exceed two hours in any day without prior authorization from the City.
(m)
Pruning Trees and Shrubs. If a permittee or its contractor determines that trees and vegetation in the right-of-way interfere with the installation, maintenance, or removal of applicant's SWFs and need trimming, it shall request of the Public Works Department that such trimming or pruning be done with sufficient specificity for the City to assess the need to perform the work. If the trees or vegetation unreasonably interfere with the permittee's needed installation, removal or maintenance of such SWFs, and if the City has not trimmed or removed the vegetation within 15 days of such request, then the permittee may by its own employees or by a contractor perform the needed work, provided (i) that it first give at least three business days' written notice to the Public Works Department of the work it intends to do in detail with respect to each tree or shrub, and (ii) provided the Public Works Department does not send a written objection before the end of the three-day period. The Public Works Department may allow such trimming and pruning on less notice when the need to trim a tree or vegetation is due to an emergency, or is urgently needed in order to repair a SWF which is seriously damaged or is not operating properly. All pruning and trimming performed by or for a permittee shall comply with City ordinances and the American National Standard for Tree Care Operation (ANSI A300) and Best Management Practices: Utility Pruning of Trees and be conducted under the direction of an arborist certified with the International Society of Arboriculture.
(n)
Damage and Repair.
(1)
Damage by applicant or permittee. No applicant for or permittee of any SWF, or anyone acting on such person's behalf shall take any action or permit any action to take place which may impair or damage any right-of-way or the property of another located in, on, or adjacent thereto. If a wireless service provider's activity causes damage to a right-of-way, the wireless service provider shall repair the right-of-way to substantially the same condition as before the damage. If a wireless service provider fails to make a repair required by an authority under Subsection(s) within a reasonable time after written notice, the authority may: make the required repair; and charge the wireless service provider the reasonable, documented, actual cost for the repair. If the damage described in Subsection (n)(1)b of this section causes an urgent safety hazard, an authority may: immediately make the necessary repair; and charge the wireless service provider the reasonable, documented, actual cost for the repair.
a.
Notice of Work. Unless otherwise provided in a permit, no person or anyone acting on such person's behalf shall commence any non-emergency work in or about the right-of-way without ten days' written notice to the Department of Public Works and permittees of property adjacent or near the work area and likely affected by such work of the intent to do so. The notice shall contain a reasonably detailed description of the work to be performed, the properties and area to be affected by it, and a reasonable estimate of the time the work is expected to take. The Department of Public Works may develop a procedure for dispensing with this notice procedure in situations where the impact of the work to be performed is not substantial, or in cases of emergency where notice is not practical in the discretion of the Department.
b.
Repair and Emergency Work. In the event of an unexpected and urgently needed repair or emergency, a permittee may commence repair or emergency work as reasonably required under the circumstances, provided notice is given to the City and property owners as promptly as possible, which shall contain all required information, and reasonably detailed information about the work performed and how it is likely to affect the City, the public using the right-of-way, the adjacent or nearby property or permittees, utility and telecommunications equipment permittees.
c.
Removal of Unauthorized SWFs. Within 45 days of written notice by the City, a permittee shall, at its sole expense, remove any SWF from the right-of-way upon any of the following events:
1.
Termination or expiration of such person's permit, approval, or license under which the SWF was authorized;
2.
Abandonment of a SWF within the right-of-way;
3.
The facility having been constructed or located without the prior grant of a permit, or constructed or located at a location not so permitted; or
4.
Circumstances reasonably determined by the City to be inconsistent with public health, safety, or welfare, the circumstances of which were not known at or which arose after the time of the issuance of any permit, approval, or license.
d.
Failure to Remove or Relocate. If any person subject to this section who owns, controls, or maintains any unauthorized SWFs within the right-of-way fails to remove or relocate any SWFs as required in this section, the City may cause such removal or relocation and charge the permittee for the costs incurred.
e.
Emergency Removal or Relocation of SWFs. The City reserves the right to cut, alter, remove, or relocate any SWFs located within the right-of-way as necessary in the event of an imminent or current public health or safety emergency.
(2)
Damage to SWFs by City. The City shall not be liable for any damage or destruction of any SWF damaged by the City, its contractors or agents which was not relocated or removed by the permittee within the time required by the City.
(o)
Insurance.
(1)
Unless specifically agreed to by the City after evaluating the risk, a person subject to this section shall secure and maintain in force the following liability insurance policies (or evidence of self-insurance satisfactory to the City):
a.
Two million dollars for personal injury or death to any one person and $3,000,000.00 aggregate for personal injury or death per single accident or occurrence.
b.
Two million dollars for property damage to any one person and $3,000,000.00 aggregate for property damage per single accident or occurrence.
c.
Two million dollars for all other types of liability including claims for damages for invasion of the right of privacy; for defamation of any person, firm, or corporation; for the violation or infringement of any copyright, trademark, trade name, service mark or patent; or for damage to any other person, firm, or corporation arising out of or alleged to arise out of failure to comply with the provisions of any statute, regulation or resolution of the United States, State of Utah, or any local agency with jurisdiction.
(2)
Such insurance shall specifically name as additional insured the City, its officers, volunteers and employees, and shall further provide that the policy shall not be modified or canceled during the life of the permit without giving at least 30 days' written notice to the City.
(3)
A person subject to this section shall file with the City copies of all Certificates of Insurance showing up-to-date coverage, additional insured coverage, and evidence of payment of premiums as set forth above before commencing any work in the right-of-way, and upon request by the City. Coverage shall not be changed or canceled without approval of the City, and failure to maintain required insurance may be considered a breach of this agreement. The City may at its option review all insurance coverage. If it is determined by the City Risk Manager that circumstances require and that it is reasonable and necessary to increase insurance coverage and liability limits to adequately cover the risks of the City, the City may require additional insurance to be acquired. The City shall provide written notice should the City exercise its right to require additional insurance. All insurance shall provide 30 days' prior written notice to the City in the event of modification or cancellation. The City shall be provided written notice within 30 days after any approved reduction in the general annual aggregate limit.
(4)
The Director or the City's Risk Manager may require increases in insurance coverage when the dollar values change by more than 20 percent as measured by the CPI-U.
(p)
Indemnification. A person subject to this section shall, at its sole expense, fully indemnify, defend and hold harmless the City, and in its capacity as such, the officers and employees thereof, from and against any and all claims, suits, actions, liability and judgments for damage or otherwise (except those arising from the sole negligence on the part of the City, its employees or agents):
(1)
For actual or alleged injury to persons or property, including loss of use of property due to an occurrence, whether or not such property is physically damaged or destroyed, in any way arising out of or through or alleged to arise out of or through the acts or omissions of such person or its officers, agents, employees, or contractors or to which such person or its officers', agents', employees' or contractors' acts or omissions in any way contribute, and whether or not such acts or omissions were authorized or contemplated by the permit or applicable law;
(2)
Arising out of or alleged to arise out of any claim for damages for such person's invasion of the right of privacy, defamation of any person, firm or corporation, or the violation or infringement of any copyright, trademark, trade name, service mark or patent, or of any other right of any person, firm or corporation; and/or
(3)
Arising out of or alleged to arise out of such person's failure to comply with the provisions of any statute, regulation or applicable policy of the United States, State of Utah or any local agency applicable to such person in its business. Nothing herein shall be deemed to prevent the City, its officers, or its employees from participating in the defense of any litigation by their own counsel at such parties' expense. Such participation shall not under any circumstances relieve a person subject to this section from its duty of defense against liability or of paying any judgment entered against the City, its officers, or its employees.
(q)
Assignments or Transfers of Permits. The City reserves the right to require in any permit issued under this section that ownership or control of a person subject to this section shall not, directly or indirectly, be transferred, assigned, or disposed of by sale, lease, merger, consolidation or other act of such person, by operation of law or otherwise without the prior written consent of the City, which consent the City may withhold or condition in its discretion. The subleasing of the space on poles is permitted, subject to the terms of this section and the terms of any license or lease agreement for use of the poles.
(1)
Absent extraordinary and unforeseeable circumstances, no permit shall be assigned or transferred before construction of the SWFs has been completed.
(2)
A permittee and the proposed assignee or transferee shall provide and certify the following to the City not less than 120 days prior to the proposed date of transfer: Detailed information setting forth the nature, terms and conditions of the proposed assignment or transfer; all information otherwise reasonably required by the City of a permit applicant under this section with respect to the proposed assignee or transferee; and an application fee which shall be set by the City, plus any other costs actually and reasonably incurred by the City in processing and investigating the proposed assignment or transfer.
(3)
No transfer shall be approved unless the assignee or transferee has the legal, technical, financial, and other requisite qualifications to carry on the activities of the permit required by applicable laws, ordinances, approvals, licenses and permits.
(4)
Any transfer or assignment of a permit without the prior written consent of the City as set forth herein shall be void and shall result in revocation of the existing permit.
(5)
Before a transfer is effective, the transferee shall file with the Director a signed statement signed by the transferee that the transferee shall accept of all permit terms and conditions. Failure to submit the notice required herein shall be a cause for the City to revoke the applicable permits pursuant to and following the procedure set out in this section.
(r)
Transfers Affecting Control. Any transactions which singularly or collectively result in a change of 50 percent or more of the ownership or working control of the permittee, or of the ownership or control of affiliated entities which have ownership or working control of the permittee, or of control of the capacity or the SWFs or substantial parts thereof shall be considered an assignment or transfer requiring City approval. Transactions between affiliated entities are not exempt from City approval; however, a transfer by a permittee to another person or entity controlling, controlled by, or under common control with the permittee shall not require City approval, provided notice thereof is timely provided to the City. Approval shall not be required for mortgaging purposes.
(s)
Obligation to Comply with this Section. An applicant or permittee shall not be relieved of its obligation to comply with every provision of this Code, this section, any permit issued hereunder or any applicable law or regulation by reason of any failure of the City to notice, enforce or prompt compliance by the applicant or permittee.
(t)
Conflicts with Prior Ordinances. In the event that any City ordinance or regulation, in whole or in part, adopted prior to the effective date of this section, conflicts with any provisions in this section, the provisions of this section will control.
(u)
Violations. Any unauthorized installation made prior to obtaining a permit, approval of an applicant's master plan, and violations of other related requirements of the City, may be grounds for denial of an application, or other sanctions allowed by law.
(v)
Revocation or Termination.
(1)
A permit granted hereunder may be revoked (or revoked in respect to those facilities in the permit determined to violate the following subsections) for the following reasons:
a.
Construction or operation anywhere in the City without a permit contrary to City ordinances;
b.
Construction or operation at an unauthorized location;
c.
Unauthorized assignment of a permit;
d.
Unauthorized sale, assignment or transfer of all of a permittee's assets, or a substantial interest therein;
e.
Misrepresentation by or on behalf of a person in any application upon which the City relies in making any decision herein;
f.
Abandonment of SWFs in the ROWs without timely removal and restoration as required by law;
g.
Failure to relocate or remove SWFs as required in this section;
h.
Failure to pay taxes, compensation, fees or costs when and as due;
i.
Insolvency or bankruptcy of the permittee;
j.
Violation of a provision of this section; or
k.
Violation of the terms of a permit.
(2)
Standards for Revocation or Lesser Sanctions. In determining whether a person subject to this section has violated or failed to comply with provisions of this section or of a permit, the Director shall determine the appropriate action to take considering the nature, circumstances, extent and gravity of the violation as reflected by one or more of the following factors:
a.
Whether the misconduct was egregious;
b.
Whether substantial harm resulted;
c.
Whether the violation was intentional;
d.
Whether there is a history in the City or in other jurisdictions within the last five years of prior violations of the same or other requirements;
e.
Whether there is a history of overall compliance in the City or in other jurisdictions within the last five years; and
f.
Whether the violation was voluntarily disclosed, admitted or cured.
(w)
Notice and Duty to Cure. In the event that the City believes that grounds exist for revocation of a permit, the City shall give the person subject to this section written notice of the apparent violation or noncompliance, providing a short and concise statement of the nature and general facts of the violation or noncompliance, and providing such person a reasonable period of time not exceeding 30 days to furnish evidence:
(1)
That corrective action has been, or is being actively and expeditiously pursued, to remedy the violation or noncompliance.
(2)
That rebuts the alleged violation or noncompliance.
(3)
That it would be in the public interest to impose some penalty or sanction less than revocation.
(x)
Limited Exemptions from Standards. All exemptions granted under this section are subject to review and reconsideration by the Community Development Director. The applicant always bears the burden to demonstrate why an exemption should be granted. An applicant seeking an exemption under this section for SWFs on the basis that a permit denial would effectively prohibit personal wireless services must demonstrate with clear and convincing evidence all the following: A significant gap in an applicant's service coverage exists; and all alternative sites identified in the application review process are either technically infeasible or not potentially available.
(y)
Appeals. A person aggrieved by a decision of the City may appeal to the City's Board of Adjustment, and may not appeal to district court without first appealing to the Board of Adjustment.
(z)
Severability. If any provision of this section or any amendments thereto is in conflict with any applicable federal or state law now in force or hereafter enacted, such provision shall be inoperative to the extent of such conflict and be treated as though it had not been included herein, but all other provisions of this section shall remain in force. In the event that a court of competent jurisdiction holds any section, subsection, paragraph, sentence, clause or phrase in this section unconstitutional, preempted, or otherwise invalid, the invalid portion shall be severed from this section and shall not affect the validity of the remaining portions of this section. The City hereby declares that it would have adopted each section, subsection, paragraph, sentence, clause or phrase in this section irrespective of the fact that any one or more sections, subsections, paragraphs, sentences, clauses or phrases in this section might be declared unconstitutional, preempted or otherwise invalid.
(aa)
Headings and Captions. Headings and captions used in this section other than the section, article, division and section numbers, are employed for reference purposes only and shall not be deemed a part of the text of any section.
(bb)
Force Majeure Events.
(1)
Neither a wireless service provider nor the City shall not be in breach of its obligations under this section nor shall the City or a wireless service provider incur any liability to the other for any losses or damages of any nature whatsoever incurred or suffered by that other (otherwise than under any express indemnity in this section) if and to the extent that it is prevented from carrying out those obligations by, or such losses or damages are caused by, a force majeure event, except to the extent that the relevant breach of its obligations would have occurred, or the relevant losses or damages would have arisen, even if the force majeure event had not occurred (in which case this section shall not apply to that extent).
(2)
As soon as reasonably practicable following the date of commencement of a force majeure event, and within a reasonable time following the date of termination of a force majeure event, the wireless service provider or the City invoking it shall submit to the other reasonable proof of the nature of the force majeure event and of its effect upon the performance of the wireless service provider's or the City's obligations under this agreement.
(3)
Each wireless service provider and its subcontractors shall, at all times take all reasonable steps within their respective powers and consistent with good operating practices (but without incurring unreasonable additional costs) to:
a.
Prevent force majeure events affecting the performance of the provider's obligations under this section;
b.
Mitigate the effect of any force majeure event; and comply with its obligations under this section.
(4)
A wireless service provider and the City invoking a force majeure event shall consult together in relation to the above matters following the occurrence of such an event. The term "force majeure event" means the occurrence of:
a.
An act of war (whether declared or not), hostilities, invasion, act of foreign enemies, terrorism or civil disorder;
b.
Ionizing radiations, or contamination by radioactivity from any nuclear fuel, or from any nuclear waste from the combustion of nuclear fuel, radioactive, toxic, explosive or other hazardous properties of any explosive nuclear assembly or nuclear component thereof;
c.
Pressure waves from devices travelling at supersonic speeds or damage caused by any aircraft or similar device;
d.
A strike or strikes or other industrial action or blockade or embargo or any other form of civil disturbance (whether lawful or not), in each case affecting on a general basis the industry related to the affected services and which is not attributable to any unreasonable action or inaction on the part of the wireless facilities provider or any of its subcontractors or suppliers and the settlement of which is beyond the reasonable control of all such persons;
e.
Specific incidents of exceptional adverse weather conditions in excess of those required to be designed for in this section which are materially worse than those encountered in the relevant places at the relevant time of year during the 40 years prior to the time the wireless services provider first provides service through SWFs within the City;
f.
Tempest, tornado, earthquake or any other natural disaster of overwhelming proportions;
g.
Pollution of water sources;
h.
Discontinuation of electricity supply; or
i.
Other unforeseeable circumstances beyond the control of the wireless service provider against which it would have been unreasonable for it to take precautions and which it cannot avoid even by using its best efforts, which in each case directly causes the wireless service provider to be unable to comply with all or a material part of its obligations under this section.
(Ord. No. 18-28, § 1(15A-11-25), 9-20-2018)
(a)
Purpose. This section is established to provide regulations and design standards for residential short-term rentals (STRs) related to single-family and multifamily neighborhoods. These standards seek to allow for STRs while also protecting the safety and general welfare of Sandy residents and preserving the residential character of Sandy neighborhoods. In allowing STRs, this section provides existing property homeowners economic relief who might otherwise be forced to leave a neighborhood, thus promoting and preserving affordable housing in Sandy City. This section also intends to stabilize neighborhoods by promoting home ownership and preserving long term rental housing in the market.
(b)
Residential Short-Term Rental (STR) Special Use Permit and License Required. STRs in all residential dwellings, residential districts, residential PUD districts and residential SD districts are required to first obtain a STR special use permit as regulated in this section, and a valid short-term rental business license (STRL), as regulated by Chapter 15-11. The following are exempt and shall not be subject to the provisions of this section:
(1)
A residential lease of 30 or more consecutive days.
(2)
Bed and breakfasts, hotels, and motels, as described and regulated in the Sandy Land Development Code and this Sandy City Code.
(c)
General Standards and Requirements for STR Special Use Permits. A STR may be allowed within any existing legal owner-occupied residential dwelling by an administrative STR special use permit and business license from the Community Development Department, pursuant to an application that demonstrates compliance with requirements found in the Sandy Land Development Code, this Sandy City Code, and all the following standards and requirements:
(1)
Application. A completed STR application, as provided by Sandy City, shall be submitted to the Community Development Department. Only the owner, as defined in Section 15-11-1, may apply for an STR special use permit. A complete STR application shall include:
a.
Proof of Ownership. Proof of ownership of the STR property shall be provided. The applicant shall prove ownership of the property as evidenced by a copy of a transfer deed listing the applicant as the fee title owner. Fee title owner may be an individual or trustor of a family trust that possesses 50 percent or more ownership of the proposed STR. The fee title owner may not be a corporation, partnership, limited liability company, or similar entity.
b.
Conflict of Private Restrictions. The owner shall provide a signed affidavit sworn before a notary public that certifies to the City that the subject property has no existing private covenants, conditions, or restrictions prohibiting STRs.
c.
Proof of Owner Occupancy. The owner shall show proof that the STR property is the owner's primary residence by submitting all the following documentation:
1.
The owner's most recent State and Federal tax returns both listing the property as the owner's primary residence; and
2.
A government-issued identification document listing the address of the property as the address of the owner; and
3.
A signed affidavit sworn before a notary public shall be provided by the owner stating that the proposed property is the primary residence of the owner, and the owner will remain as the primary occupant of the dwelling for the duration of the STR special use permit, wherein they reside at least 183 days per calendar year.
d.
Short Term Rental Management Course. The owner shall show proof of the successful completion of a STR management course, as selected or created by the City and approved by the City Council. The owner need only complete one STR management course to satisfy this requirement.
e.
Parking Plan. A detailed written description and drawing of an off-street parking plan shall be submitted, in accordance with this section, to ensure there is sufficient on-site parking capacity for all occupants of the home and renters of the STR.
f.
Compliance Certification. The owner shall provide a signed affidavit sworn before a notary public that certifies to the City that the owner agrees to comply with the terms and conditions of this section and to ensure each renter complies with the terms and conditions of this section.
g.
Property Description. A detailed written description, a site plan of the property, an interior layout that identifies the use of each room of the dwelling and location of all smoke and carbon monoxide detectors and defines the portions of the dwelling to be used for a STR shall be provided. Only one designated STR area is allowed for a property.
(2)
Owner Occupancy. The owner of the subject property shall live in the primary dwelling in which a STR is desired and must reside therein as their primary residence for a minimum of 183 days per calendar year.
(3)
Occupancy During Rental Period. The STR shall comply with the following occupancy restrictions:
a.
The maximum renter occupancy shall be no more than eight people.
b.
The STR shall not be rented to more than one renter at any given time, and the owner shall not divide and rent out portions of the dwelling to multiple renters at the same time.
c.
The STR property shall only be rented for a minimum duration of one night and a maximum duration of 29 consecutive nights.
d.
A STR property where the whole dwelling is rented out shall not be rented more than 182 nights per year.
e.
A STR property where a portion of the dwelling is rented out may be rented 365 nights per year.
(4)
Parking Plan. A detailed written description and a drawing of an off-street parking plan is required to ensure there is sufficient on-site parking capacity for all occupants of the home and renters of the STR. The parking plan shall be limited to the existing garage, driveway, and dedicated parking spots of the residential unit and shall not include any on-street parking. Any proposed parking improvements may also be included in the off-street parking plan, so long as they are completed prior to issuance of a STRL. All elements of the parking plan must be in compliance with all other requirements of this title. The owner shall ensure that all renters of a STR comply with the Parking Plan.
(5)
Urgent Response. The owner, or a designated representative, shall be available to immediately respond to the STR 24 hours per day, 365 days per year by telephone, and when necessary, be able to physically respond to the STR within one hour of any legitimate complaint. If the owner is unreachable after three attempted contacts by the City, the City shall issue a notice of violation to the owner.
(6)
Property Maintenance Requirements. All STRs shall adhere to this Code, including, but not limited to the following:
a.
Maintenance. The owner must adhere to Title 19, the Property Maintenance Chapter of this Code, including, but not limited to, requirements for weed abatement, landscaping, garbage removal, structure maintenance, and fence/wall maintenance.
b.
Snow Removal. The owner shall remove all snow from the sidewalks of the property within 24 hours after snowfall in accordance with this Code.
c.
Noise and Nuisance Control. The owner shall ensure that all renters are aware of and adhere to Chapter 13-2 the Noise Control Chapter of this Code and Salt Lake County Health Department Health Regulation No. 21: Community Noise Pollution Control. If a renter violates the Noise Control Chapter more than once in any given 72-hour period, the owner shall immediately evict all renters from the property.
d.
Health and Safety. The owner shall ensure that the dwelling or the rented portion of the dwelling maintains at least one working smoke alarm in each sleeping area and on each floor, and at least one working carbon monoxide detector on each floor.
(7)
Noticing and Posting Requirements.
a.
One nameplate sign that includes the name and the 24/7 contact information for the owner, or a designated representative, must be posted on the exterior side of the main entrance of the STR.
b.
An informational packet must be posted in a highly visible place within the dwelling or the STR area of the dwelling, and must include all the following:
1.
City-issued STRL and STR special use permit.
2.
The name and contact information for the owner or a designated representative.
3.
Parking requirements, information about the STR's parking plan, and the City Ordinance on Parking, Chapter 14-7.
4.
Maximum occupancy of the STR.
5.
Sandy City Ordinance on Noise Control, Chapter 13-2 and a copy of Salt Lake County Health Department Health Regulation No. 21 Community Noise Pollution Control.
6.
Garbage pickup dates and a written description of where garbage receptacles must be placed for pickup.
7.
Emergency and nonemergency contact information for the Sandy City Police and Fire Departments, and the address of the STR dwelling.
8.
Sandy City Ordinance on Residential Short-Term Rentals, Section 21-11-26 and Business Licensing for Short-Term Rentals, Chapter 15-11.
c.
The informational packet shall be made available to the City for inspection upon 24 hours prior written notice.
(d)
Limited Number of STR Special Use Permits. The total number of STR special use permits issued within the City shall be limited as follows:
(1)
The maximum number of STR special use permits shall be calculated for each community within Sandy City as follows: Each community shall have a minimum base of two STR special use permits plus one STR special use permit for every 100 single-family detached dwellings within the community boundary.
(2)
The total number of available STR special use permits shall be recalculated every odd year in July, based on the estimated number of single-family dwellings within the City as determined by the Community Development Department.
(3)
If a complete application that meets all other requirements for approval is received after the maximum number of approvals has been issued for the community the proposed STR property is located within, the application shall be placed on a waiting list in order of the date of receipt of a completed application. This list shall be reviewed on an annual basis. No fees will be due until a special use approval becomes available. A complete application shall include completion of all requirements of this section.
(e)
Duration of Approval and Transferability. The STR special use permit shall be valid and continue until the sale of the home or the STRL expires. The STR special use permit shall expire upon the closing date of the sale of the home or on the date the STRL expires. STR special use permits are not transferable. If the STR special use permit expires, the STR shall automatically revert to be occupied by the primary dwelling occupants only and their nonpaying guests.
(f)
Violations. It shall be a violation for any person to operate a STR:
(1)
Without first obtaining a STR special use permit, as regulated in this section, and issued a valid STRL; or
(2)
That does not comply with the requirements of this chapter, this Code, or the Sandy City Land Development Code.
(g)
Enforcement and Fines. Upon a determination that a violation exists, the Community Development Director, or designee, shall contact the owner requiring such owner to halt, eradicate, destroy, remove, or otherwise cure the violation within 48 hours, or such later time the Director, or designee, may determine.
(1)
For any violation of this section, the issuing officer may issue a written citation or notice of violation to the owner, specifying the violation and the penalty to be imposed.
a.
Upon a third violation within any 12-month period, in addition to the civil fine, the STRL and STR special use permit shall be automatically revoked. The owner shall be ineligible for a STR special use permit and a STRL for a period of two years from the date of the third notice of violation.
b.
For any violation within any 12-month period following the third violation, the penalty shall be a civil fine and the owner shall be banned from receiving a STR special use permit and a STRL.
(2)
Fines shall be assessed and accrued pursuant to the current fee schedule and as outlined in Title 1, Chapter 4 of this Code.
(3)
Enforcement may be done criminally, civilly, or administratively pursuant to Title 1 Chapter 4 of this Code.
(4)
Subject to the limitations and requirements of applicable budget appropriations, the City shall utilize short term rental tracking software to assist with enforcement, unless otherwise prohibited by state or federal law.
(Ord. No. 18-21, § 1(15A-11-26), 8-30-2018; Ord. No. 21-28, § 1(Exh. A), 9-28-2021; Ord. No. 24-17, § 1(Exh. A), 10-15-2024; Ord. No. 25-09, § 1(Exh. A), 2-4-2025)
(a)
A Micro-education entity provides kindergarten through grade 12 education services for compensation. Micro-education entities are allowed according to the land use matrices as a special use provided it complies with all the following restrictions:
(1)
Occupancy shall be limited to a maximum of 100 students at any one time and a maximum of 100 students per day.
(2)
The proposed use must have direct access to an arterial or major collector street, with no access permitted to any minor collector or local street.
(3)
The following shall be used to determine the maximum number of students permitted:
a.
A Traffic Plan that has been reviewed and approved by the City Transportation Engineer which includes acceptable traffic flow, drop off, and turn-around areas.
b.
The street is of sufficient width to accommodate additional vehicular traffic.
(4)
Required Parking.
a.
Required parking shall consist of at least one space for each instructor and staff, four visitor parking spaces, and four queuing spaces.
b.
In addition, one visitor parking space and one queuing space is required for every five students or a portion thereof beyond the first 20 students.
(5)
An on-site drop-off area shall be provided.
(Ord. No. 24-14, § 1(Exh. A), 7-30-2024)
11.- SPECIAL USE STANDARDS
(a)
Purpose. This section is established to provide regulations and design standards for accessory apartments, extended living areas, or guesthouses related to single-family dwellings in primarily residential zone districts. These accessory living areas enable additional dwelling units to be available to moderate income households, provide economic relief to homeowners who might otherwise be forced to leave a neighborhood, and make dwelling units available which are appropriate for households at a variety of stages in the life cycle.
(b)
General Requirements. The following requirements must be met in order to have either an accessory apartment, extended living area, or a guesthouse:
(1)
Number Permitted. Only one accessory apartment or extended living area shall be created within a single-family dwelling structure. The accessory apartment or extended living area shall not occupy any accessory buildings. No lot or parcel shall contain more than one guesthouse.
(2)
Retain Single-Family Dwelling Appearance. The accessory apartment, extended living area, or guesthouse shall be designed so that the appearance of the building remains that of a single-family residence, including the following:
a.
Entrances. Only one primary entrance into the existing dwelling is allowed facing the street or front property. No additional entryways or access to these accessory living areas shall be visible from the street or front property line. All entrances for an accessory living area shall be located on the side or in the rear of the dwelling or from within the home or garage.
b.
Design. Any additions to the existing dwelling unit or detached guesthouse, shall be designed and constructed as to blend in and be compatible with the architectural components of the primary dwelling unit (including, but not limited to matching exterior materials, colors, windows, architectural style, building articulations, design elements, and roof pitch). Accessory apartments or extended living areas do not require internal connectivity; however, they must be connected to the existing living area of the home by a common wall and not connected through a breezeway or nonhabitable space (e.g. garage, storage area, etc.).
c.
Utilities and Meters. It shall be prohibited to install separate utility connections or meters. Private utility meters installed behind the primary meters and internal to the dwelling may be allowed.
d.
Addressing. No separate addresses will be assigned to the property. Additional mailboxes are also prohibited.
c.
Landscaping. The retention and enhancement of landscaping and property maintenance standards shall be met with any site or building alterations.
(3)
Building Code Compliance Required. The design of the accessory apartments, extended living areas, or guesthouses shall conform to all applicable standards in the City's adopted Fire, Building, and Health Codes. The applicant shall obtain all necessary building permits prior to construction of the accessory apartment, extended living area, or guesthouse.
(4)
Parking. Off-street parking space shall be available for use by the occupants of the accessory apartment, extended living area, or guesthouse, and shall comply with the City's adopted residential parking standards. A nonconforming single-family dwelling must be brought into conformity with all required parking requirements. If a required parking area is to be modified in the creation of an accessory living area, the required parking shall be replaced on-site. Any additional vehicles owned by occupants must be accommodated on-site. On-street parking shall be reserved for visitors only.
(5)
Mobile Homes. It shall be prohibited to construct an accessory apartment or extended living area within a mobile home.
(6)
Septic Systems. Any dwelling that is using a septic system, must show proof by a licensed professional that the system is in property working condition or be required to connect to the existing sewer infrastructure.
(7)
Short Term Rental (STR). It is prohibited to rent or offer the rental of an accessory apartment, extended living area, or guesthouse for a period of less than 30 consecutive days unless the property has obtained approvals for such use as found in the Land Development Code and all other Sandy City Code. In no event, shall any portion of the property be rented out for both short and long-term rentals at the same time.
(c)
Additional Requirements for Approval of an Accessory Apartment. An accessory apartment may be allowed by an administrative special use permit from the Community Development Department and being issued a valid accessory apartment business license. The following requirements must be met in order to grant a permit:
(1)
Application. A completed application as provided by Sandy City.
(2)
Owner Occupancy. The owner of the subject property shall live in the primary dwelling unit and must reside therein as their primary residence.
a.
An individual shall prove ownership of the property as evidenced by a copy of a transfer deed listing the applicant as the fee title owner. Fee title owner may be an individual or trustor of a family trust that possesses 50 percent or more ownership of the primary dwelling. The fee title owner may not be a corporation, partnership, limited liability company, or similar entity.
b.
To establish that the property is the owner's primary residence, the owner shall:
1.
Present the owner's most recent State and Federal tax returns both listing the property as the owner's primary residence; and
2.
Present a government-issued identification document listing the address of the property as the address of the owner; and
3.
A signed affidavit sworn before a notary public shall be provided by the owner stating that the proposed property is the primary residence of the owner and they will occupy the property as their residence, except for bona fide temporary absences.
(3)
Dwelling Description. A detailed written description and/or drawing of the property that identifies the use of each room of the dwelling and defines the portions of the dwelling to be used for an accessory apartment shall be provided.
(4)
Site Plan. A site plan and architectural elevations shall be submitted to the Community Development Department to determine compliance with the requirements herein. The site plan shall be drawn to scale, clearly showing the location of all existing and proposed structures, walls, parking, driveways, and walkways.
(5)
Occupancy Restrictions. The occupants of the accessory apartment shall be an additional single family. The occupants of the accessory apartment shall not sublease any portion of the accessory apartment to other individuals.
(6)
Recordation. Approval for an accessory apartment shall be recorded with the Salt Lake County Recorder's Office, including a reversion clause to utilize the area as an extended living area should the special use permit expire. Proof of recordation shall be submitted to the Community Development Department prior to occupancy. A recorded copy shall be kept on file with the Community Development Department.
(7)
Duration of Approval and Transferability. The special use permit shall continue until:
a.
A sale of the property, or
b.
Change of residence of the primary occupant, or
c.
If the business license expires.
At the event of any of the above, the special use permit shall expire and is not transferable to new property owners. If the permit expires, the area previously used as an accessory apartment shall revert to an extended living area use only, meaning it can only be occupied and utilized only by the primary dwelling occupants and their non-paying guests.
(d)
Additional Requirements for Approval of an Extended Living Area. An extended living area is a permitted use approved by the Director at the time of building permit review to create any additional living facilities within the structure. The following standards shall apply:
(1)
Occupancy Restrictions. Extended living areas shall be used by the primary dwelling family members and their non-paying guests or for employed household maintenance personnel (e.g. on a non-rental basis).
(2)
Expired Accessory Apartments. Any expired special use permit for an accessory apartment shall revert to an extended living area and become subject to these requirements until a new permit is obtained by the property owner.
(3)
Recordation. Approval for an extended living area must be recorded with the Salt Lake County Recorder's Office. Proof of recordation shall be submitted to the Community Development Department prior to issuance of a building permit. A recorded copy shall be kept on file with the Community Development Department.
(4)
Duration of Approval and Transferability. Upon sale of the home or change of primary occupant, the approval for an extended living area shall be transferred to the new owner or occupant. The new owner and occupant shall be subject to these requirements.
(e)
Additional Requirements for Approval of a Guesthouse. A guesthouse use may be allowed by an administrative special use permit from the Community Development Department. The following standards must be met:
(1)
Application. A completed application as provided by Sandy City.
(2)
Occupants. A guesthouse shall be used only by the occupants of the primary dwelling or their non-paying guests.
(3)
Lot Size. A guesthouse will only be considered on a lot containing at least 20,000 square feet which has an existing owner-occupied single-family dwelling unit, or where a building permit has been issued and construction is in process for the single-family dwelling on a lot 20,000 square feet or larger.
(4)
Location. Guesthouse setbacks shall be no less than ten feet from the side and rear property lines and six feet from the primary dwelling unit. If a guesthouse is attached to an existing accessory structure, the living space of the guesthouse shall be ten feet from the property line. The guesthouse may be located within the rear (the area lying between the rear lot line and rear wall of the primary dwelling extended to the side lot lines) of the primary dwelling or within the side yard, provided that the guesthouse is located behind the front plane of the home. If the guesthouse is located within the side yard, the side yard setback shall be the same as the minimum in the zoning district in which the lot is located.
(5)
Maximum Size Permitted. In no case shall a guesthouse comprise more than 400 square feet and have no more than one bedroom. This square footage will be considered part of the allowable square footage of the respective zoning district for accessory structures.
(6)
Height. A guesthouse shall be limited to a single story and subject to the requirements for accessory structures.
(7)
Kitchen Facilities. There shall be no full-size kitchen or cooking facilities within a guesthouse. A limited kitchenette consisting of a microwave, compact refrigerator (less than 7.75 cubic feet and 36 inches or less in height), counter length not exceeding six feet, and a wet bar sink (12 inches wide or less) are permitted.
(8)
Site Plan. A site plan and architectural elevations shall be submitted to the Community Development Department to determine compliance with the requirements herein. The site plan shall be drawn to scale, clearly showing the location of all existing and proposed structures, walls, parking, driveways, and walkways.
(9)
Conversion. Existing accessory structures (shed, garage, workshop, etc.) may be converted to a guest house, provided that the proposed guesthouse complies with all title standards and the adopted Building Code. The number of required off-street parking stalls shall not be eliminated with the conversion of an accessory garage.
(10)
Basements. No basements will be allowed within a guesthouse.
(11)
Recordation. Approval for a guesthouse shall be recorded with the Salt Lake County Recorder's Office. Proof of recordation shall be submitted to the Community Development Department prior to issuance of a building permit. A recorded copy shall be kept on file with the Community Development Department.
(12)
Inspections. Yearly inspections may be required to determine compliance if determined appropriate by the Director or Chief Building Official.
(13)
Duration of Approval and Transferability. Upon sale of the home or change of primary occupant, the approval for guesthouse shall be transferred to the new owner or occupant. The new owner and occupant shall also be subject to these requirements.
(g)
Enforcement. In addition to any other legal or equitable remedies available to the City, upon a determination that a violation of the accessory apartment regulations exists, the City may also utilize all remedies identified and allowed under Section 10-9a-530 of Utah State Code, or its successor (see U.C.A. 1953, § 10-9a-530).
(LDC 2008, § 15A-11-01; Ord. No. 21-28, § 1(Exh. A), 9-28-2021; Ord. No. 24-11, § 1(Exh. A), 6-18-2024)
(a)
Residential Standards.
(1)
Setbacks and Location Restrictions.
a.
General. Eave projections shall not encroach more than four inches into the setback area. Accessory buildings shall be constructed in such a manner that the water runoff does not infringe onto adjoining property, and the setback areas are kept free of weeds, trash and debris. Accessory buildings located three feet or less from the property line shall have concrete, asphalt, or other approved surface between the property line and accessory building. Accessory buildings shall comply with the minimum setback distances listed in this section.
b.
"A" Designated Zones. Those properties within an "A" designated zone, with at least 40,000 square feet, shall be allowed to build an accessory structure, for animals or personal storage, within the front and/or side yard areas, provided the structure is beyond the required setbacks for main dwelling units. These accessory structures shall be limited to 20 feet in height, 2,000 square feet, and be at least 30 feet from neighboring dwelling units. The structure must be in scale and character with the main dwelling unit. Any exception from the height or setback requirements may be reviewed by the Planning Commission through the conditional use permit process.
c.
Table of Minimum Setbacks.
*There shall be a minimum three-foot-wide unobstructed access to the rear yard for emergency purposes. Said access may be gated, and may be located on either side yard of the home.
Accessory structures built closer than five feet to property line will be required to comply with the International Residential Code.
1.
Accessory buildings less than six feet from the main dwelling must meet the setback of the main dwelling of the underlying zone. If the accessory building cannot meet the setback of the main dwelling, it shall be setback six feet from the main dwelling.
2.
Additional setbacks may be required as per Subsections (a)(1)e and (a)(3) of this section.
d.
Corner Lots. An accessory structure may be located between the main dwelling unit and the front property line (see Figure 1), adjacent to a street, if the structure complies with the maximum height and size requirements listed below. These structures must be at least six-feet from the main dwelling and two-feet from the property line. No structures are allowed within the sight visibility triangle. These structures will not be allowed to have access to the public right-of-way closest to the structure, unless the Transportation Engineer reviews and approves the location based upon safety of pedestrians and vehicular access.
Figure 1. A Typical Setback Configuration for Corner and Interior Lots
If the adjacent interior lot has a driveway within ten feet of the rear property line of the corner lot, the structure must be setback at least ten feet from both the front and rear property lines. (See Figure 1a.)
Figure 1a. Location Restrictions on Corner Lots
e.
Lots with Multiple Street Frontages. Any accessory building on a lot with multiple street frontages is subject to additional setbacks from the property line abutting a street if the building is over ten feet in height. Additional height is allowed at a rate of one additional foot of height for each additional foot of setback (in excess of ten feet) to a maximum height allowed within the zone.
Figure 2. An Example of Lots With Multiple Street Frontages
A six-foot opaque fence is required if an accessory building is constructed along a street frontage to provide screening. A shorter non-opaque fence may be used if the property is located in a zone with an "A" designation. The height restriction and fencing requirement shall apply up to the point that a rear setback of 15 feet has been reached. If the accessory building is under ten feet in height (measured to the peak of the roof), no additional setback is required.
f.
Easements. Accessory buildings shall not encroach upon any easement or right-of-way without proper written release or acknowledgment from all utility and drainage companies. Copy of such release/acknowledgment shall be presented at time of building permit application. Release of use of the easement does not remove any other requirements as stated in this Code.
g.
Detached Garages. Detached garages or any detached structure 240 square feet or larger shall be substantially set within the rear yard of the home. They shall not be permitted in the side yard, except for minor encroachments as determined by the Director, or unless the structure meets or exceeds the minimum setbacks of the primary dwelling. These structures will not be allowed to have an additional access to the public right-of-way closest to the structure, unless the Transportation Engineer reviews and approves the location based upon established standards of this code and after considering safety of pedestrians and vehicular access.
(2)
Maximum Square Footage.
a.
Table of Maximum Accessory Structure Size.
1.
For those zones not listed (such as SD and PUD zones), the residential district most closely associated with that zone shall be used to determine the maximum size allowable. All zones with animal rights (with the "A" designation at the end of the zone classification) shall conform to its similar non-animal right zone classification.
2.
No single accessory building shall exceed 1,500 square feet, unless the Planning Commission approves a larger size through the conditional use permit process.
b.
Table of Maximum Accessory Structure Size for Corner Lots Between the Main Dwelling Unit and the Front Property Line, Adjacent to a Street (See Figure 1).
*Structures exceeding the above height and square footage limitations must be within the rear yard.
c.
Number of Accessory Buildings. A maximum of two accessory buildings are permitted on a property. This restriction does not apply to zones with an "A" designation.
d.
Conditional Use Permit. The total maximum square footage of all accessory buildings on the property may be increased up to 25 percent larger than the permitted size upon receipt of a conditional use permit from the Sandy City Planning Commission. However, the Planning Commission may not approve any accessory structure over 25 percent of the rear yard. For any properties over 40,000 square feet, or with an "A" designation, the total maximum square footage of all accessory buildings on the property may be increased up to 50 percent larger than the permitted size through a conditional use permit. The Planning Commission shall consider the scale of the buildings in relation to the immediate surroundings, the nature of the zone and land uses in the immediate vicinity, architectural design, landscaping, access, proposed use, impact upon adjacent properties, in addition to other criteria normally considered during the conditional use permit process. The Planning Commission may require additional setback from side and rear property lines as a condition of approval.
(3)
Maximum Height.
a.
Table of Maximum Accessory Structure Height.
* If the structure otherwise meets the minimum setbacks for the zone for a primary dwelling, it may be built up to the maximum height of the rear yard. The Planning Commission may review a request for additional height through a Conditional Use Permit.
1.
For those zones not listed (such as "SD" and "PUD" zones), the residential district most closely associated with that zone shall be used to determine the maximum height allowable. All zones with animal rights (with the "A" designation at the end of the zone classification) shall conform to its' similar non-animal right zone classification.
b.
Additional Setback Requirement. Detached structures exceeding 15 feet in height shall increase the minimum setback one foot for each one foot of additional height up to the minimum setback for the primary dwelling. However, if the accessory building abuts a property line that is adjacent to a commercially zoned property, then no additional setback is required. This requirement may also be waived by the Planning Commission through a conditional use permit process.
c.
Conditional Use Permit. A building may be built taller, up to the maximum building height for a permitted dwelling within the zone in which it is located, upon receipt of a conditional use permit from the Sandy City Planning Commission. The Planning Commission shall consider the scale of the building in relation to the immediate surroundings, the nature of the zone and land uses in the immediate vicinity, architectural design, landscaping, access, proposed use, impact upon adjacent properties, in addition to other criteria normally considered during the conditional use permit process. The Planning Commission may require additional setback from side and rear property lines as a condition of approval.
(4)
Other Requirements.
a.
Ancillary to Main Dwelling. Accessory buildings are only allowed on properties where a main dwelling or building exists, except as provided in Section 21-11-3.
b.
Utility Connections. Separate meter connections for electricity, water, sewer, or gas utilities are not permitted for accessory buildings.
c.
Architectural Guidelines. Generally, accessory structures and buildings shall be designed and constructed as to be compatible with the architectural components of the main dwelling or building. However, if the accessory structure is intended to be an outdoor animal domicile see Section 21-11-3; other standards may apply, such as location, visibility, scale, general aesthetics in the immediate vicinity, etc.
d.
Building Standards. Accessory buildings must meet all construction standards and fire rating requirements of the International Residential Code (IRC).
e.
Lots without Attached Garage. For those residences that were not originally constructed with an attached two-car garage, a detached garage may be built in the rear yard up to 480 square feet in size regardless of the percentage of the lot covered. The garage must meet the minimum garage size standards as determined in this title. In no way does this section permit the intrusion into required building setbacks to property lines, easements or main structures.
f.
When Detached Garages are Primary Garages. All detached garages that serve as the primary garage for a dwelling are subject to review by the Sandy City Transportation Engineer to determine if the location of the structure is safe and accessible.
g.
Screening Required for Side Yards. Accessory buildings in the side yard shall be screened from view from access streets and adjacent properties by a six-foot opaque type screening unless located in a zoning district with an "A" designation.
h.
Other Structures. These provisions do not apply to children's play equipment, flagpoles, light poles, stand-alone arbors, or other similar structures.
i.
Prohibited Structures. Shipping containers, semi-trailers, boxcars, portable on demand storage (PODS), temporary carports, canopies, tents, or similar structures may not be installed or maintained on a residential lot for longer than 30 days, or up to six months with a valid building permit for construction on the property.
(b)
Nonresidential Standards.
(1)
Accessory structures are only allowed if designated on a City-approved site plan.
(2)
Accessory structure heights shall not exceed 15 feet at the peak of the roof and must have a minimum three-twelfths pitch.
(3)
Setbacks shall follow the development standards specified in this title for the main structure unless otherwise stipulated.
(LDC 2008, § 15A-11-02; Ord. No. 09-28, 10-19-2009; Ord. No. 10-26, 7-30-2010; Ord. No. 09-19, 7-31-2010; Ord. No. 15-29, 9-12-2015; Ord. No. 19-10, § 1(Exh. A), 4-9-2019)
(a)
Farm Animals.
(1)
Designation of Appropriate Zone Districts. Property owners in any R-1-40, R-1-30, R-1-20, or R-1-15 residential district may submit an application for rezoning for designation of the district for the keeping and raising of farm animals. An "A" following a zone designation indicates farm animals are permitted.
(2)
Procedure for Designation. A request for rezoning must include at least five contiguous properties or have at least 1½ acres.
(3)
Ratio of Animals to Lot Size for Farm Animals. In order to have farm animals on a residential lot with an "A" designated zone, the following minimum square footage requirements will be required for each animal:
a.
Each large animal requires at least 10,000 square feet. Each medium animal requires at least 4,000 square feet. Each small animal requires at least 400 square feet. For example, a 20,000 square foot lot could have no more than two large animals, or no more than five medium animals, or no more than 50 small animals, or a combination of one large animal, two medium animals, and five small animals.
b.
Vietnamese potbellied pigs may be kept at a ratio of two animals for each one-half acre of lot size (no less than 20,000 square feet). The maximum number of Vietnamese potbellied pigs shall be two per residential lot.
(b)
Household Pets.
(1)
Maximum Number Allowed. All zones are allowed no more than a total of six common household pets (dogs, cats, rabbits, and ducks). These household pets may be kept on-site for family use only. Roosters are not allowed as a household pet. Exceptions:
a.
In addition to the six common household pets, there shall be no more than ten chickens, kept on a non-nuisance basis.
b.
No more than three dogs per residence are allowed unless the resident has procured a dog hobby license to allow up to a total of five dogs.
(c)
Outdoor Animal Domiciles Structure. Partially enclosed and/or roofed structures (e.g., barns, corrals, cages, pens, coops, kennels and runs, etc.) are encouraged to be provided and maintained for all animals kept outdoors. Such structures shall be sited at the rear of the main dwelling and at least 30 feet from neighboring dwellings and comply with all other setback and yard regulations for accessory structures (unless the parcel is over 40,000 square feet and the accessory structure is placed beyond the front or side yard setbacks. See Subsection (a)(1)b of this section). The facilities shall be placed in compliance with all animal regulations, noise and nuisance regulations, and Salt Lake Valley Health Department regulations and procedures, with the following exceptions:
(1)
All dog kennels and dog runs must be set back at least ten feet from the property line and at least 40 feet from all neighboring dwellings.
(2)
For properties which have an "A" designation, the Director may allow an outdoor animal domicile structure for farm animals to be constructed prior to construction of a main dwelling under the following conditions:
a.
The structure complies with all accessory structure setback, height, and size standards.
b.
The structure is in scale and character with other accessory buildings located within one-half mile of the property and located in the same or larger lot zone district or is an improvement to the immediate area (e.g., R-1-15A, R-1-20A, R-1-30A, R-1-40A).
c.
That an agreement be recorded against the property that the structure will be relocated or removed as necessary to comply with setback standards upon additional development of the property (e.g., construction of the main dwelling, subdivision, etc.). In addition, a plot plan shall be submitted which indicates the location of the structure in relation to a future residence on the property, and this information shall also be provided within the agreement.
Note: This section applies only to those animal facilities placed outside the main dwelling unit. This regulation does not apply to any location within the interior of the home, including the garage or other attached interior space.
(LDC 2008, § 15A-11-03; Ord. No. 12-05, 1-31-2012; Ord. No. 12-22, 6-18-2012; Ord. No. 15-25, 7-21-2015; Ord. No. 20-3, § 1, 6-6-2020)
(a)
Development Standards. The following regulations shall apply to dwellings constructed underground or partially underground for purposes of energy conservation:
(1)
Emergency Egress. There shall be immediate emergency egress from all sleeping rooms.
(2)
Exterior Windows. At least half of the habitable rooms of an earth-sheltered dwelling unit shall be provided with exterior windows and shall receive a minimum of one hour of sunlight on each clear day. There shall be a minimum exposure of western windowed walls to the late afternoon sun in the summer.
(3)
Natural Light. Artificial light may be allowed as a substitute for natural lighting. However, the overall natural lighting or exterior glazing requirement shall be eight to ten percent of the floor area of the habitable rooms.
(4)
Minimum Floor Area. The required minimum floor area may be waived for any earth-sheltered dwelling structure if that structure is designed for energy conservation, and the structure will meet all applicable building, development, and health codes.
(5)
Setbacks. Any exterior wall in an earth-sheltered dwelling unit may extend into the rear, side, or front setback a maximum of one-half of the required setback distance of that zone district. Exceptions include:
a.
Any exterior wall containing a window facing the front street property line shall be built behind the required front setback area.
b.
The distance between the side lot line and a side wall containing windows shall not be less than six feet from the side property line.
c.
No part of the outdoor living area shall exceed eight percent slope, and 15 feet of the depth shall not exceed two percent slope.
d.
No inside living space or exterior wall may encroach upon any easement, right-of-way, any access for maintenance, or cause instability to neighboring structures.
(6)
Bermed Structures. Bermed structures shall have one foot of setback for every foot of berm above existing grade.
(7)
Guardrails. Fences or barriers shall be required along roof edges or any vertical drop. Fences or barriers which will prevent access to the roof area may be set back from the roof edge.
(b)
Site Plan Review. Plans for construction of earth-sheltered dwellings shall be subject to the applicable standards outlined in this title, including a Grading and Landscaping Plan.
(LDC 2008, § 15A-11-04)
(a)
Purpose. The purposes of this Section are to:
(1)
Provide an opportunity for home occupations as an accessory use when they are compatible with the neighborhoods in which they are located.
(2)
Provide an opportunity for a home occupation to engage in the business of child care and other group child activities and encourage this type of home occupation to draw clients/customers from their immediate neighborhood.
(3)
Guide business activities which are not compatible with neighborhoods to appropriate commercial zones.
(4)
Safeguard peace, quiet, and domestic tranquility within all residential neighborhoods. Protect residents from the adverse effects of business uses being conducted in residential areas from noise, nuisance, traffic, fire hazards, and other possible business uses that create significant impacts on a neighborhood.
(5)
Provide a means to enforce and regulate the businesses that are licensable through the authority of the business license regulations of this Code, and, if necessary, terminate home occupations if violations of the ordinances regulating home occupations occur.
(b)
Home Occupation License. All home occupations shall be licensed unless specifically provided an exemption in this Section or in the business license regulations of this Code. Regardless of whether a license is required, all home occupations must adhere to the standards and qualifications listed in this Section. The authority to issue a license to conduct a home occupation shall be under the jurisdiction of the Business License Office of the Community Development Department.
(c)
Categories and Requirements of Home Occupation Licenses. Home occupation businesses are classified as Category I, Permitted Home Occupation, or Category II, Conditional Use Home Occupation. A Category II, Conditional Use Home Occupation requires review and approval of the Planning Commission.
(d)
Home Occupation Standards. All home occupations, licensed or not, shall comply with the following standards at all times:
(1)
Bona Fide Resident. The home occupation business shall be owned by and carried on only by a bona fide resident of the home that resides in the home more than six months (183 days or more) per calendar year. Proof of residency shall be provided as follows:
a.
A signed statement stating that the property is the primary residence of the business owner and will remain as the primary residence for the duration of the home occupation license; and
b
A government-issued identification listing the address of the property as the address of the business owner, unless the Director determines, for good cause, it is not required.
(2)
Satellite Office Not Allowed. A home occupation shall not be construed to mean an employee working in his home in the service of an employer whose principal place of business is licensed at another location. Business activities that do not qualify for the exemption from licensure as described in this Section shall not be conducted at the home of an employee of a company and shall not be conducted by nonresident company employees.
(3)
Accessory Use on the Property. For residential purposes, the home occupation shall be clearly secondary and incidental to the primary use of the dwelling unit.
(4)
On-Site Employees. One full-time or full-time equivalent nonresident may be employed, volunteer, or work on the premises where the home occupation business is located. No more than two persons shall comprise the equivalent full-time employee, and only one nonresident employee may work at the home at one time.
(5)
Off-Site Employees. Any home occupation may utilize employees to work off-site. The off-site employee, volunteer, hiree, or any other person engaged with the home occupation shall not come to the home for purposes related to the home occupation business license except for incidental vehicle stops.
(6)
Off-Street Parking. All business-related vehicles which park at the location of the home occupation, including those of the applicant, employee, customers, clients, or business-related visitor vehicles, must use off-street parking. This provision excludes stops made by delivery vehicles.
(7)
Vehicle Advertisement. Vehicles, trailers, or equipment may not be used for the primary purpose of advertising the home occupation at the site of the home occupation.
(8)
Designating Areas of Property to be Used. The home occupation applicant must designate the portion of the home, accessory structure, yard, or attached or detached garage to be used as the location for business activities. No businesses are allowed to operate outside of an enclosed structure, unless otherwise approved by the Planning Commission for outside activities.
(9)
External Appearance. The home occupation must maintain or improve the external residential appearance of the principal structure, attached or detached garage, or accessory structure. Any structural alterations to accommodate the home occupation shall maintain the architectural aesthetics and compatibility of the neighborhood.
(10)
Outdoor/Yard Space. The home occupation shall not involve the use of any yard space for storage or display of supplies, inventory, or equipment when such use is in conjunction with the sales, service, or production of goods, unless specifically stored within trailers or accessory structures as allowed herein. Any screened area or structure used for the home occupation must be located in either the side or rear yard areas.
(11)
Business Trailer. One trailer may be used in association with the home occupation. Trailers allowed in conjunction with a home occupation are as follows:
a.
An open or enclosed trailer with a body length of 20 feet or less, excluding the tongue.
b.
Materials/equipment shall not be stored outside of the trailer.
c.
The trailer shall be placed in the side or rear yard behind a fence or garaged on private property and not within the front yard of the dwelling. If the home is located on a corner lot, the trailer shall not be stored on the street side of the house unless it is out of the required front yard setback. If the topography of the lot prohibits the parking of the trailer on the side or rear yard, the trailer must be stored off-site.
d.
The trailer must be well-maintained and must not present negative impacts for adjacent neighbors, including, but not limited to, odors, dust, or parking location.
e.
All areas utilized for the parking of trailers shall be paved with a hard surface (e.g., concrete, asphalt, brick, or other water impenetrable surface). This includes the side and rear yard of the home. It is prohibited to park upon areas that have been landscaped or are reserved for future landscaping.
f.
A site plan shall be included with all business license applications indicating where the trailer will be stored outside of the front yard.
(12)
Commercial Vehicle. Only one such vehicle may be parked on a residential lot. A commercial vehicle parked or stored on a residential lot must be owned or apportioned by an occupant who resides at the residence. This vehicle must comply with all residential parking requirements contained within this title.
(13)
Conformity with Safety Codes. There shall be complete conformity with fire, building, plumbing, electrical, and all other City, County, State, and Federal codes.
(14)
Health and Safety. No process can be used which is hazardous to public health, safety, morals, or welfare.
(15)
No Excessive Utility Uses. The home occupation shall not cause a demand for municipal, community, or utility services that are substantially in excess of those usually and customarily provided for residential uses.
(16)
Neighborhood Disruptions Not Permitted. The home occupation shall not interfere or disrupt the peace, quiet, and domestic tranquility of the neighborhood. The home occupation shall not create or be associated with or produce odor, smoke, dust, heat, fumes, light, glare, noises or vibrations, excessive traffic, or other nuisances, including interferences with radio and television reception, or any other adverse effects within the neighborhood.
(17)
Renter/Owner Responsibility. If the applicant for a home occupation license rents or leases the property wherein the home occupation is intended to be conducted, the applicant must provide a letter of acknowledgment and consent from the property owner at the time the application is submitted to the Business License Office.
(18)
Interior Alterations/Remodeling. Interior alterations of the principal dwelling for the purpose of accommodating the home occupation are prohibited if such alteration eliminates the kitchen, and/or all of the dining areas, bathrooms, living areas, or all of the bedrooms.
(19)
Exempt from Business Licensure. A business license will not be required unless the combined off-site impact of the home occupation and the primary residential use materially exceeds the impact of the primary residential use alone. If a home occupation has any of the following impacts, a business license is required:
a.
Business-related customers, client visits, or meetings on the property.
b.
Signage or advertising of the business that is visible from the exterior of the home.
c.
The business owner or operator desires a physical copy of a business license.
d.
Any nonresident working on the property.
e.
Business-related deliveries are made to or from the property.
f.
Accessory or commercial vehicles are stored or parked on the property for the home occupation.
g.
The home or property requires inspections from any regulatory authority or agency, including, but not limited to, the City, Salt Lake Valley Health Department, and/or the Department of Agriculture.
h.
The business generates any additional vehicular traffic or parking on the property.
i.
If the State requires a sales tax number for any reason.
j.
If the home occupation is categorized as a Category II, Conditional Use Home Occupations, as described herein.
k.
If the home requires any modification requiring a building permit to accommodate the business operations.
l.
When the business use within the home exceeds 25 percent of the primary dwelling.
(e)
Category I Qualifications. In addition to the standards previously set forth above, all Category I home occupation businesses must also comply with the provision of the qualifications outlined below. If a business finds that they are unable to fully comply with all of the qualifications set forth, the applicant may pursue possible approval as a Category II home occupation through the conditional use permit process before submitting the application for a home occupation business license.
(1)
Hours. No visitors in conjunction with the home occupation (clients, patrons, employees, volunteers, students, pupils, etc.) shall be permitted between the hours of 10:00 p.m. and 6:00 a.m.
(2)
Traffic. Vehicular traffic from business related visitors and customers shall not exceed that which normally and reasonably occurs for a home in the neighborhood and shall be conducted so that the neighbors will not be significantly impacted by its existence. The home occupation shall be limited to two business related visitors or customers per hour, to a maximum of eight business related visitors or customers per day. Business related deliveries or pickups shall not exceed two per day.
(3)
Delivery Vehicles. The receipt or delivery of merchandise, goods, or supplies for use in a home occupation shall be limited to vehicles with a gross vehicle weight rating (GVWR) of 23,000 pounds or less.
(4)
Conducted in a Home. When business activities are being conducted on the property that is to be licensed, the home occupation shall be primarily conducted within the principal home.
(5)
Maximum Floor Space. No more than 25 percent of the total main floor area or upper living levels of the dwelling unit, nor, in the alternative, more than 50 percent of the total floor area of any basement of the home unit shall be utilized for the home occupation.
(6)
Signs. The home occupation may utilize one unanimated, nonilluminated flat sign for each street upon which the home abuts. The sign must be placed either in a window or on the exterior wall of the home wherein the home occupation is being conducted and may not have an area greater than one square foot.
(7)
Display of Products. The home occupation may include the sale of tangible goods. Direct sales from display apparatus is permitted only if the goods or products are not visible from the exterior of any approved structure being used for the home occupation.
(8)
Food or Beverage Preparation for Consumption Outside of the Home. Any home occupation involving or proposing to involve food or drink preparation, storage, or catering will be permitted when it is authorized by the appropriate State or County department or agency.
(9)
Category I Home Occupation Licensing Involving Child Day Care and Other Child Group Activities.
a.
This type of home occupation shall not exceed eight children associated with child day care or other child group activities (e.g., dance schools, preschool, music classes, etc.) at any one time. A maximum of eight students/children are permitted per day. This number shall include the licensee's own children if they are under six years of age and are under the care of the licensee at the time the home occupation is conducted.
b.
All child day care and other group child activity facilities shall provide safe, outdoor play time and spaces as required by Federal, State, County, or local laws governing such business activities.
(10)
Category I Home Occupation License Involving Adult Day Care.
a.
This type of home occupation shall not exceed supervising more than two elderly persons 60 years of age or older or more than two persons who have an intellectual or physical disability or acquired brain injury, as defined by the Utah Department of Health and Human Services (DHHS) Division of Services for People with Disabilities (DSPD). Any home occupation of this nature which exceeds two individuals or more than 12 hours of operation will be considered a Category II home occupation and shall be reviewed and approved by the Planning Commission.
b.
This type of home occupation must comply with all local and state laws governing such business activity.
(11)
Category I Home Occupation Licensing Involving Renting Recreational Vehicles from Personal Property in Single-Family Residential Zones.
a.
A property owner/resident living in the home may rent one recreational vehicle that is owned by the owner/resident. Where more than one recreational vehicle can fit on a recreational trailer, the owner may rent a maximum of two recreational vehicles.
b.
Any recreational vehicle must be parked according to the residential parking requirements and restrictions within this title, except that any recreational vehicle that is being rented from the home must be parked on a hard surface (concrete, asphalt, brick, or other impenetrable surface). In addition, the maximum area of hard surface for the purpose of parking a recreational vehicle shall be complied with.
c.
Advertising on the recreational vehicle is prohibited.
d.
Servicing the recreational vehicle shall be limited to those activities which will comply with Chapter 13-2 and Title 19.
e.
Any customer renting the recreational vehicle shall not leave their own car on the street, but may place their vehicle on the homeowner's property in compliance with all residential parking requirements during the time the recreational vehicle is being rented.
(12)
Category I Home Occupation Licensing Involving a Home-based Microschool.
a.
A Home-based microschool provides kindergarten through grade 12 education services for compensation. A home-based microschool does not include a daycare.
b.
A maximum of eight students is permitted at any one time.
c.
A maximum of eight students is permitted per day.
d.
The maximum number of students includes the licensee's and any employees' children if they are a student at the time the home occupation is conducted.
(f)
Category II, Conditional Use Permit Required. If a home occupation is able to comply with all of the standards but is unable to comply with all of the Category I qualifications established above, the proposed business activities must be reviewed by the Planning Commission and granted a conditional use permit before pursuing a home occupation business license through the Business License Office.
(1)
General. In addition to any conditions established by the Planning Commission at the time of its review, all Category II home occupations must comply with the following:
a.
All Category II home occupation uses shall only be conducted from property with a single-family dwelling.
b.
The conditional use permit and the home occupation business license shall be maintained in good standing for the entire period that business is being conducted.
(2)
Compliance. Uses are appropriate as licensable home occupations only if they are determined to be compatible with residential neighborhoods after full conditional use review by the Planning Commission, compliance with Title 15, all of the standards and qualifications that have not been granted an exception through the conditional use process, and additional regulations set forth hereafter.
(3)
Child Day Care. The following items indicate maximum limits that may be granted by the Planning Commission when a child day care is expected to exceed eight children at one time:
a.
A maximum of 16 children is permitted at any one time.
b.
A maximum of 18 children is permitted per day.
c.
These numbers shall include the licensee's and any employees' children if they are under six years of age and are under the care of the licensee at the time the home occupation is conducted.
d.
A maximum of 24 vehicular stops per day for child drop off or pick up is permitted.
(4)
Group Child Activities. The following provisions indicate a maximum limit that may be granted by the Planning Commission for other group child activities which are expected to generate or exceed eight children/students (e.g., dance schools, preschools, music classes, other care or instruction for children) at any one time other than child day care:
a.
The following guidelines shall be used to determine the maximum number of students/children permitted:
1.
A Traffic Plan that has been reviewed and approved by the City Transportation Engineer which includes acceptable traffic flow, drop off, and turn-around areas.
2.
The existing residential street is of sufficient width to accommodate additional vehicular traffic.
b.
A maximum of 12 students/children per session and a maximum of 24 students/children per day shall be permitted.
c.
A maximum of four sessions per day may be permitted.
d.
All sessions combined shall not generate more than 24 vehicular stops per day.
e.
The total number of students/children shall include the licensee's and any employees' children if they are under six years of age and are under the care of the licensee at the time the home occupation is conducted.
f.
No group child activities falling under a Category II home occupation may be established within 300 feet as measured from property line to property line of another group child activity, Category II home occupation use.
(5)
Home-based Microschool. The following provisions indicate maximum limits that may be granted by the Planning Commission when a Home-based Microschool is unable to fully comply with all the qualifications set forth for a Category I Home Occupation License.
a.
The following shall be used to determine the maximum number of students permitted:
1.
A Traffic Plan that has been reviewed and approved by the City Transportation Engineer which includes acceptable traffic flow, drop off, and turn-around areas.
2.
The existing residential street is of sufficient width to accommodate additional vehicular traffic.
3.
No more than 24 vehicular stops per day for student drop off or pick up is permitted.
b.
A maximum of 16 students is permitted at any one time.
c.
A maximum of 16 students is permitted per day.
d.
The maximum number of students includes the licensee's and any employees' children if they are a student at the time the home occupation is conducted.
(6)
Work Shops. Repair shops, including welding, carpentry, sheet metal work, furniture manufacturing, upholstery, and other similar manufacturing activities
(7)
Business Not Conducted Within a Home. Any home occupation which proposes or conducts activities within an outbuilding, accessory building, attached or detached garage. The following standards shall be used to determine the maximum impacts permitted:
a.
The applicant for a home occupation business license shall designate the areas of the home, attached/detached garage or accessory structure that will be used for the home occupation. If approved, the home occupation may be conducted only in the designated area.
b.
No more than a maximum of 200 square feet, or, in the alternative, no more than 50 percent of the total floor space (whichever is the greater) of any accessory structure or attached or detached garage may be used for a home occupation unless an exception is granted by the Planning Commission through the conditional use permit, and they find that:
1.
The total floor space used for the home occupation in a detached accessory structure does not exceed the maximum size of an accessory structure that is permitted by-right within the zone, as regulated in this title (for example, the size of the accessory structure does not require a conditional use permit); and
2.
The use does not adversely impact the residential character of the neighborhood.
c.
Any home occupation uses in an attached or detached garage may not eliminate minimum parking requirements for the particular zone wherein the home occupation is located. The required minimum off-street parking area shall be maintained and clear of all materials and equipment that would prohibit the parking of vehicles during nonbusiness hours.
d.
Any accessory structure used for a home occupation must maintain the architectural aesthetics or compatibility of the home and the immediate neighborhood.
e.
The home occupation may utilize one unanimated, nonilluminated flat sign to be attached to the accessory structure where the home occupation is being conducted in lieu of a sign attached to the home or in a window. The sign may not have an area greater than one square foot.
(8)
Home Occupations and Outdoor Activities. Any home occupations proposing to conduct business utilizing any yard space or in a swimming pool.
(9)
Dangerous Home Occupations. Any home occupation using explosives, incendiary products and devices, flammable, or hazardous chemicals.
(10)
Home Occupations Generating Excessive Traffic. Any home occupation which will generate in excess of two customers or visitors per hour or eight per day. A maximum of 12 business-associated visitors per day may be allowed under a conditional use permit, except as provided for child day care and other group child activities.
(11)
Large, Business Related Vehicles. Any home occupation which utilizes vehicles more than 24 feet in length (with the exception of renting recreational vehicles).
(12)
More Than Two Home Occupation Licenses. Any home where the applicant is seeking more than two home occupation licenses.
(g)
Prohibited Home Occupations. The following uses, by nature of the occupation, substantially impair the use and value of residentially zoned areas for residential purposes and are, therefore, prohibited:
(1)
Mortuary, crematorium, columbarium, or mausoleum.
(2)
Animal hospitals or veterinary services.
(3)
Clinic, dental office, medical office, chiropractic office, or hospital.
(4)
Junkyard, auto wrecking yard, or salvage yard.
(5)
Stables, animal kennels, animal day-care, on-site animal training, pet store, commercial animal breeding business, or any other similar activities are prohibited.
a.
Activities may be allowed within the scope of a hobby license as issued by the Animal Services Division of Sandy City.
b.
Pet grooming services without on-site kenneling may be allowed to operate in accordance with the standards of this section.
(6)
Storage, service, repair, or sales of ambulances, tow trucks, recreational vehicles, water craft, automobiles, ATVs, or other motorized vehicles.
(7)
Fitness or health spa facilities that exceed two clients at a time.
(8)
Boutiques, sample sale, or craft shows.
(9)
Auto body repair or motor vehicle repair.
(10)
Use of specified chemicals, pesticides and flammable/combustible materials, and including any other process or business where current adopted Building and Fire Codes would require an operational permit.
(11)
Number of vehicular stops or visits that would exceed 24 per day.
(12)
Massage therapy or other alternative healing and energy healing businesses, with the exception that a home occupation license may be issued if the applicant is the only person employed in said operation and has obtained any required licenses from the State of Utah. Limit one massage therapy or alternative healing and energy healing business per residence. All other standards and Category I qualifications must be complied with. No massage therapy or other alternative healing and energy healing businesses may be permitted if a Category II qualification is required.
(13)
Bed and breakfast facilities.
(14)
Parent-child or adult group activities that exceed two clients at a time.
(Ord. No. 09-18, 7-31-2009; Ord. No. 10-45, 12-14-2010; Ord. No. 12-33, 9-17-2012; Ord. No. 15-25, 7-21-2015; Ord. No. 16-13, 3-23-2016; Ord. No. 17-29, § 1, 12-1-2017; Ord. No. 24-05, § 1(Exh. A), 3-26-2024; Ord. No. 24-14, § 1(Exh. A), 7-30-2024)
All manufactured homes placed in an R-1 zone, placed pursuant to U.C.A. 1953, § 10-9a-514, shall install a concrete foundation wall around the perimeter of the structure. Such structures shall also include a required two-car garage (attached or detached) prior to occupancy of the structure.
(LDC 2008, § 15A-11-06)
No mobile home shall be placed, used, or occupied except within approved mobile home subdivisions, mobile home parks, or mobile home sales lots.
(LDC 2008, § 15A-11-07)
(a)
Purpose. The purpose of this section is to:
(1)
Comply with the Utah Code Annotated.
(2)
Avoid discrimination in housing against persons with disabilities pursuant to the Utah Fair Housing Act (U.C.A. 1953, § 57-21-1 et seq.) and the Federal Fair Housing Act, as interpreted by courts whose decisions are binding in Utah. This section is not a separate zone for such facilities, but applies to all residential zones within Sandy City. If any facility, residence, congregate living, or other housing arrangement meets the definition of a residential facility for elderly persons or a residential facility for persons with a disability as set forth in this title, the requirements of this section shall govern the same, notwithstanding any conflicting provision of this Code. Except as provided herein, the requirements of this section shall not be construed to prohibit or limit other applicable provisions of this Code, or other local, County, state, or federal laws.
(b)
Permitted Uses.
(1)
Permitted Uses. Notwithstanding any contrary provision of this title, a residential facility for elderly persons and a residential facility for persons with a disability shall be permitted uses in any zone where a dwelling is allowed as a permitted or conditional use subject to the development standards in Subsection (d) of this section.
(2)
Termination. A use permitted by this section is nontransferable and shall terminate if:
a.
The facility is devoted to a use other than a residential facility for elderly persons or a residential facility for persons with a disability.
b.
Any license or certification issued by the Utah Department of Health or the Department of Human Services for such facility terminates or is revoked.
c.
The facility fails to comply with requirements set forth in this Code.
(c)
Review Process. In addition to other information required by this Code, the following information must be submitted with the business license application for a residential facility. Additional information may be requested to aid in that review.
(1)
A statement of the specific type of facility (as defined by State regulations) the applicant seeks to operate and by which State agency it is regulated.
(2)
The number of residents and resident staff who will live at the residential facility.
(3)
The complete name of the business, the type of business entity and whether the business is a for-profit or nonprofit organization.
(4)
The typical or average length of stay of the residents.
(d)
Development Standards. The development standards set forth in this subsection shall apply to any residential facility for elderly persons or residential facility for persons with a disability.
(1)
Building, Safety, and Health Regulations. The facility shall comply with building, safety, and health regulations applicable to similar residential structures within the residential zone in which the facility is located.
a.
Each facility shall be subject to the same development standards applicable to similar residential structures located in the same zoning district in which the facility is located.
b.
The minimum number of parking spaces required for a facility shall be the same as for similar structures located in the same zoning district in which the facility is located.
(2)
No Dangerous Persons Permitted. No facility shall be made available to an individual whose tenancy would:
a.
Constitute a direct threat to the health or safety of other individuals.
b.
Result in substantial physical damage to the property of others.
(3)
Day Treatment and Outpatient Treatment. Any such facility may seek an approval from the Planning Commission which would allow day treatment and/or outpatient treatment if the following measures have been taken to ensure the facility will not alter the fundamental character of the neighborhood:
a.
The facility has direct access to an arterial or major collector street, with no access permitted to any minor collector or local street.
b.
The facility is located on the same block or within 800 feet of an institutional care facility.
c.
The facility has enough off-street parking to accommodate each staff member, van/carpool parking, and each outpatient client.
d.
All day treatment clients are transported to the residential facility for disabled persons from a separate facility using a van/carpool.
e.
The maximum number of day and outpatient treatment clients will not exceed eight at any one time as permitted by the Building Code.
f.
The facility is licensed for all three different activities by both the City and the State.
g.
The facility meets all Building, Fire, and Life Safety Codes.
h.
Any approval is subject to periodic review or review upon legitimate complaint. If, upon review, the facility is found to be out of compliance with these criteria, the approval may be revoked.
(4)
Prohibited. A residential facility for persons with a disability that would likely create a fundamental change in the character of a residential neighborhood is not allowed.
(e)
License and Certification. Prior to occupancy of any facility, the person or entity operating the facility shall:
(1)
State License. Provide to the City a copy of any license or certification required by the Utah State Department of Health or the Utah State Department of Human Services, including any policies and procedures that are required under state law.
(2)
Certification Requirements. Certify in a sworn statement that no person will reside or remain in the facility whose tenancy would:
a.
Constitute a direct threat to the health or safety of other individuals.
b.
Result in substantial physical damage to the property of others.
(3)
City License. Obtain a Sandy City business license, if required.
(4)
Compliance/Renewal. Any such facility must comply with all Federal, State, County, and City regulations. At the time of renewal, the applicant must provide copies of all necessary certifications/recertifications or licenses as required by State regulations.
(f)
Accommodation Request.
(1)
Reasonable Accommodation Required. In accordance with the Americans with Disabilities Act, the Fair Housing Act, Fair Housing Amendments Act and applicable law, none of the requirements of this section shall be interpreted to limit any accommodation which is reasonable and necessary to allow the establishment or occupancy of a residential facility for persons with a disability.
(2)
Request for Accommodation. Any person or entity may request an accommodation after being informed that an existing or proposed:
a.
Residential facility for persons with a disability; or
b.
Business license application or building permit application for a residential facility for persons with a disability, does not comply with the requirements of this title. The application and required fees shall be submitted to the Director, shall articulate in writing the nature of the requested accommodation and the basis for the request, and shall include all other information relevant to the request. The requested accommodation must relate to the use of the property so that it may be enjoyed as other similarly situated properties.
(g)
Review and Hearing Process. A Hearing Officer with demonstrated experience as a Hearing Officer and knowledge of the Americans with Disabilities Act or Fair Housing Act, shall be appointed by the Mayor with the advice and consent of the City Council, to review the request for accommodation. Additional information may be requested by the Hearing Officer to aid in that review.
(1)
Hearing Officer Scheduling of Hearing. The Hearing Officer shall review the request for accommodation within ten days after receipt of the written request by the Director. The Hearing Officer shall determine whether additional information is needed from the Director, the person or entity making the request, or both.
a.
If additional information is needed, the Hearing Officer shall notify the Director and the person or entity making the request within 21 days after receipt of the written request by the Director. The Director and requesting person or entity shall have seven days to submit the requested information, or such reasonable additional time as approved by the Hearing Officer. The Hearing Officer shall determine within three days after receipt of additional information whether the submission is responsive to the Hearing Officer's request.
b.
If no additional information is needed or if the Hearing Officer receives the requested additional information, the Hearing Officer shall schedule a hearing. The Hearing Officer shall provide written notice of the hearing date and time to the person or entity requesting the accommodation and the Director. Unless otherwise agreed to by the person or entity requesting the accommodation and the Director, the Hearing Officer shall hold the hearing within 14 days after the Hearing Officer determines that all requested information has been received and no additional information is needed. Unless agreed upon by the person or entity requesting the accommodation and the Director, the hearing shall be held no more than 45 days after receipt of the request by the Director. If the Hearing Officer has not received all requested information at that time, the Hearing Officer may continue the hearing or deny the request based on insufficient information.
(2)
Findings. The Hearing Officer shall make a determination and prepare written findings within seven days after the hearing.
a.
At a minimum, the written findings shall address the following issues:
1.
Whether the requested accommodation is reasonable;
2.
Whether the requested accommodation is necessary for financial and therapeutic viability;
3.
Whether the facility with the requested accommodation is or is not likely to create a fundamental change in the character of the residential neighborhood; and
4.
Other findings in support of the Hearing Officer's determination.
b.
The Hearing Officer shall mail a copy of the written determination and findings to the Director and the person or entity requesting the accommodation, along with a letter notifying the Director and the person or entity requesting the accommodation that the decision is final and may be appealed to a court of competent jurisdiction.
c.
The Hearing Officer shall forward a copy of the decision to the Mayor, the City Recorder and the City Council.
(3)
Appeal. The determination of the Hearing Officer shall be final and may be appealed to a court of competent jurisdiction.
(h)
Exemptions. A residential facility for persons with a disability shall not include facilities which house persons who are violent, who are not voluntarily residing therein, or who are residing therein as a part of or in lieu of confinement, rehabilitation, or treatment in a correctional facility.
(LDC 2008, § 15A-11-08; Ord. No. 10-04, 2-19-2010; Ord. No. 17-14, exh. A(15A-11-08), 6-21-2017)
State Law reference— Regulation of residential facilities for persons with disabilities, U.C.A. 1953, § 10-9a-516.
(a)
Residential Zones. Half-pipe ramps may be allowed as a conditional use. The following is required for review prior to approval of a half-pipe ramp as a conditional use in any residential zone:
(1)
Drawings. Drawings showing the scale, design, and materials of which the half-pipe ramp is to be built. This is to evaluate the noise, vibration, and nuisance impact of the half-pipe ramp.
(2)
Description. A written description of the materials and location of all screening to evaluate the half-pipe ramp's impact upon and harmony with adjacent properties.
(3)
Lighting. A written description of the scale, location, and direction of all lighting.
(4)
Rules. A set of written rules which will govern the use and operation of the half-pipe ramp.
(5)
Neighborhood Notification. The names and addresses of all property owners within 300 feet of the proposed half-pipe ramp, proof that all such owners have been notified of the proposed half-pipe ramp, have had an opportunity to comment, and a written statement indicating any comments received by the applicant from them.
(6)
Affidavit. A written statement that the owner has reviewed all laws, ordinances and regulations related to half-pipe ramp construction and use and a written agreement to comply therewith.
(b)
Conditional Use Review.
(1)
After receipt of the submittals required by Subsection (a) of this section, the Planning Commission shall review the proposal and may thereafter approve the proposed use as a conditional use only if and so long as:
a.
The proposal complies with all applicable building and zoning regulations and will not likely constitute or cause any of the following:
1.
Does not cause a public nuisance or other illegal use under state or local laws or Health Department rules and regulations.
2.
Does not cause a fundamental change in the character of a residential neighborhood.
3.
Does not cause adverse impacts greater than typical of permitted residential uses in the zone.
(2)
The Planning Commission may hold a public hearing or meeting to consider the proposal prior to his decision. Any person aggrieved by the Planning Commission's decision may request review by the Sandy City Council which decision shall be final.
(c)
Development Standards.
(1)
Design. Every proposed half-pipe ramp shall be of a scale and design and constructed of materials which will minimize noise, vibration, and other nuisance factors commonly associated with half-pipe usage. Portions of the half-pipe ramp may be located below ground level, but in no case shall any portion of the half-pipe ramp exceed six feet in height above ground level, excluding handrails. Hours of operation shall be from 8:00 a.m. to 8:00 p.m. during standard time, and 8:00 a.m. to 9:00 p.m. during daylight savings time.
(2)
Screening. Walls, fences, hedges, trees, and other screen planting shall be installed sufficient to ensure harmony with adjacent properties and to conceal any unsightly development.
(3)
Lighting. Half-pipe ramp lighting shall not be installed more than six feet above ground level and shall be directed in such a manner as to not cause disturbance to neighboring residents.
(4)
Personal Use. No commercial or advertised use of the half-pipe ramp shall be permitted, and no donations or contributions shall be solicited or received for use or attendance at half-pipe ramp activities.
(5)
Rules. Written rules have been adopted by property owners to ensure safe and reasonable use and operation of the half-pipe ramp.
(6)
Agreement to Comply. Property owners have reviewed the laws, ordinances, and regulations related to half-pipe ramp construction and use and have agreed to comply with such provisions.
(7)
Compliance to Codes. The proposed half-pipe ramp shall comply with all pertinent sections of the International Building Code and all zoning requirements, including side and rear yard setbacks and size regulations for accessory structures.
(8)
Penalty. It shall be a Class C misdemeanor for any owner of residential property upon which a half-pipe ramp is located to permit the half-pipe ramp to be used in violation of any ordinance of Sandy City or any rule or regulation of the Salt Lake Valley Health Department, regardless of whether the property owner had knowledge of the actual violation.
(LDC 2008, § 15A-11-09; Ord. No 15-25, 7-21-2015)
(a)
Private Swimming Pools. Any private swimming pool not completely enclosed within a building having solid walls shall be set back at least five feet from property lines. Any swimming pool shall be completely surrounded by a fence or wall having a height of at least six feet. There shall be no openings larger than 36 square inches except for gates, which shall be equipped with self-closing and self-latching devices.
(b)
Semi-Private Swimming Pools Special Exception. The Planning Commission may grant a special exception to temporarily or permanently use land in any district for semi-private swimming pools or recreational facilities providing that in all cases the following conditions are met:
(1)
The facilities shall be owned and maintained by the members and a minimum of 75 percent of the membership must be residents of the neighborhood or section of the subdivision in which the recreational facility is to be located.
(2)
The area to be used for recreational purposes is of sufficient size to accommodate all proposed facilities, together with off-street parking, where required by the Planning Commission. A landscaped front yard of not less than 30 feet and a landscaped side yard on both sides and rear of not less than ten feet is required.
(3)
The area to be developed into a recreational area must be of such size and shape as to cause no undue infringement on the privacy of the abutting residential areas and be in keeping with the design of the neighborhood in which the recreational area is to be situated.
(4)
A solid wall or substantial fence shall be required around the entire recreational area to a height of not less than six feet and no more than eight feet. The fence across the front of the property shall be constructed no closer to the front property line than the required front setback, unless otherwise approved by the Planning Commission.
(5)
Under no condition may any type of retail or business facilities, including vending machines, be permitted in the recreational area except those specifically approved by the Planning Commission.
(6)
Before authorizing the recreational facility, complete plans for the development of the area must be submitted to the Planning Commission. Together with the plans, there must be submitted a detailed outline showing how the area is to be funded, managed, and maintained. If any of the requirements are not complied with, the authorization will be void.
(7)
The owners of the proposed recreational facility must have a statement from the owners of all abutting properties and at least 75 percent of the property owners within a radius of 300 feet of said development giving permission to develop a recreational facility. Covenants and conditions regulating the use of the facility shall be submitted to the Planning Commission and the Salt Lake Valley Health Department for review and approval.
(LDC 2008, § 15A-11-10; Ord. No. 23-08, § 1(Exh. A), 7-18-2023)
This section is established to provide regulations and site standards for bed and breakfast facilities within residentially zoned districts as may be allowed through the development review process. Bed and breakfast facilities may be allowed by conditional use permit where the applicant can show evidence of compliance with outlined standards and procedures and where there is clearly minimal impacts on adjacent residential properties and neighborhoods.
(1)
Requirements for Approval.
a.
A conditional use permit may be granted by the Planning Commission for a bed and breakfast facility provided the requirements herein are met. The granting of a conditional use permit for a bed and breakfast facility shall not exempt the applicant from meeting other applicable ordinances, covenants, codes, or laws recognized by Sandy City.
b.
The following pre-conditions and documentation are required:
1.
A letter of application sworn before a notary public shall be provided by the owners stating that such owners or live-in residential manager will occupy the facility except for bona fide temporary absences. Said letter shall be recorded by the Salt Lake County Recorder with a certified copy to accompany the building permit application.
2.
The effective period of the conditional use permit for bed and breakfast facilities shall be two years from the date of the original permit. At the end of every two years, renewal shall be automatically granted upon receipt by the Director of certification by the property owner that the property remains the principal residence of the owner or live-in residential manager, and that all other conditions required at the time of approval remain unchanged. Notification shall be sent to the owner for response. Failure to obtain such certification may be the basis for revocation of the conditional use permit. The Planning Commission, at its discretion, may require a new application and a demonstration of compliance with all conditions necessary for a conditional use permit.
3.
Building plans or a floor plan (one-fourth inch to the foot) showing the bed and breakfast facility shall be provided.
(2)
Development Standards and Requirements for Bed and Breakfast Facilities.
a.
The owners of the property or live-in residential manager shall live within the facility, except for bona fide temporary absences.
b.
The location of a bed and breakfast facility shall have direct access to an arterial or collector through street. Said facility will typically be isolated somewhat from adjoining residential properties and will not unduly increase local traffic in the immediate neighborhood.
c.
The location of a bed and breakfast facility shall be at least one-fourth mile from any other similarly approved facility, unless it is determined by the Planning Commission that extraordinary circumstances warrant a shorter distance.
d.
The bed and breakfast facility shall be located on a larger parcel than a typical residential lot. The parcel shall also be of sufficient size to be in scale with the size of structures, the number of people using the facility, parking areas, open space areas, etc. In no case shall the parcel be less than one-half acre in size, unless it is determined by the Planning Commission that the site is architecturally or historically significant enough to justify a smaller parcel.
e.
The bed and breakfast facility shall be designed or modified so that, to the degree reasonably feasible, the appearance of the structure remains as a residential dwelling. Unique architecture is encouraged, where possible, in keeping with the local area.
f.
Signage for a bed and breakfast facility shall be low key, identifying the name of the facility without any advertising copy. Natural materials are encouraged for sign construction and should be architecturally compatible with the bed and breakfast facility. Sign size shall be no more than four square feet.
g.
The Planning Commission may require additional setbacks, buffering, landscaping, and natural setting to mitigate impacts on adjoining residential properties.
h.
At least one off-street parking space shall be provided for each guest room in addition to needed parking for owners/employees of the facility.
i.
The design and size of the bed and breakfast facility shall conform to all applicable standards in the Fire, Building, and Health Codes. The facility shall be licensed in conformance with all City ordinances.
j.
Any other appropriate or more stringent conditions deemed necessary for bed and breakfast facilities protecting public health, safety, welfare, and the residential character of the neighborhood may be required by the Planning Commission.
(LDC 2008, § 15A-11-11)
(a)
Permitted Locations. Commercial schools (low-impact) are allowed according to the commercial and residential land use matrices and all must comply with the following restrictions:
(1)
The proposed use must have direct access to an arterial or major collector street, with no access permitted to any minor collector or local street.
(2)
The appearance of the structure shall be compatible to other uses within the same zoning district.
(3)
Occupancy shall be limited to no more than two instructors and a total of 20 students at any one time. However, the number of instructors may be increased up to four, and/or the number of students may be increased up to a total of 30 students if it is found by the Planning Commission that the site can adequately contain the required parking while still meeting the requirements of Subsection (a)(4)b of this section, and if such allowance does not adversely impact the surrounding neighborhood.
(4)
Required Parking.
a.
Required parking shall consist of at least one space for each instructor, four visitor spaces, and four queuing spaces.
b.
In addition, one visitor space is required for every five students or portion thereof allowed beyond the first 20 students.
(5)
An on-site drop-off area shall be provided.
(b)
Commercial Schools Unable to Meet Criteria. Any commercial school (low-impact) which cannot meet the above criteria must meet the standard location and use allowances for commercial school as shown in the land use matrices.
(LDC 2008, § 15A-11-12)
(a)
General. This section provides specific standards for certain uses which are permitted or are operated as accessory uses as part of an exposition/convention center. All uses are not allowed unless the standards described in this section are met.
(b)
Standards Applicable to All Activities.
(1)
No temporary signage is permitted within the landscape area along street frontages. The exposition/convention center electronic message board signs shall be the primary street identification for shows and activities within the facility.
(2)
Temporary banners may be affixed above approved designated entrances to assist in directing patrons to a specific exhibition hall.
(3)
Admittance to any activity, regardless of time extension, shall cease at 12:00 midnight Sunday through Thursday, and shall cease at 1:00 a.m. for Friday and Saturday. No activity, including private meetings, shall extend beyond these hours unless otherwise approved as permitted in Subsection (c)(3) of this section for extended hours.
(4)
Outdoor uses (e.g., sales, display, sporting events, or activity areas) that occupy required parking areas shall ensure that adequate parking is provided. A detailed Parking Plan shall be submitted and approved by the Community Development Department to ensure that adequate parking is provided. The Parking Plan may include areas that are off-site provided a shuttle service is provided. The shuttle service is required to operate one-half hour after the event.
(5)
In addition to all other necessary licenses and permits, all vendors who sell or contract to sell a product or other taxable service shall obtain a temporary sales tax number indicating Sandy City as the point of sale. Temporary sales tax licenses (aka special event permit, issued by the State Tax Commission) shall be made available upon demand to an authorized representative of the Business License Office or Utah State Tax Commission.
(6)
The promoter of an event shall provide, upon demand, a list of all participating vendors to an authorized representative of the Sandy City Business License Office or to an authorized representative of the State Tax Commission. The format of the list (electronic, paper, etc.) shall be provided in a manner acceptable to the agency placing the demand.
(7)
Outdoor sales or consumption of alcohol is prohibited.
(8)
Pornographic material or performances are prohibited. Any material or performance is pornographic if considered, as a whole, applying contemporary community standards.
(9)
Distribution or posting of handbills upon vehicles or upon the site is prohibited.
(10)
The sponsor of a function is responsible to provide appropriate indoor and parking lot security for private meetings and functions. Proper supervision of patrons is required. The sponsor must comply with all City and state laws governing alcohol sales and consumption.
(c)
Additional Standards for Specific Activities. In addition to the above standards, the following requirements apply to the following activity classifications:
(1)
Outdoor Activities (e.g., vehicle shows/sales, sporting events, product demonstrations).
a.
Outdoor sales and attendance by the general public to the outdoor portion of any show shall be restricted to 9:00 a.m. to 9:00 p.m.
b.
No outdoor sporting event shall continue after dusk (one-half hour after sunset) or 8:00 p.m., whichever is earlier.
c.
Outdoor displays and booths are permitted only in designated areas.
d.
No outdoor display or booth shall occupy a required parking area unless an appropriate Parking Plan has been submitted and approved by the Director.
e.
No outdoor display shall create noise or odor in violation of applicable noise and health ordinances.
f.
No outdoor event shall take place within the area for loading/unloading activities or adjacent to residential areas.
(2)
Concerts (Live or Broadcast) and/or Dances.
a.
For concerts, ticketed, assigned, and fixed seating are required. Unassigned or non-fixed seating (also known as festival seating) is not permitted.
b.
One security guard per 200 individuals attending must be provided unless otherwise required by the Police Department or facility management.
c.
Emergency medical personnel must be provided on-site as required by the Fire Department.
d.
All doors of the facility that are adjacent to a residential area must be closed during a performance.
e.
Live bands are prohibited from warming up or performing in outdoor areas adjacent to residential areas.
f.
No loitering in the parking lot by patrons is allowed. Security must also patrol any parking areas to prevent patrons from loitering in the parking lot.
g.
All laws and ordinances for curfew for individuals under the age of 18 must be obeyed.
h.
The business license permit for a concert and/or dance shall be submitted to the Community Development Department at least 15 business days before the proposed event may take place. For a complete application, the applicant shall submit a letter of approval from the Sandy City Police and Fire Departments and the South Towne Expo Center Administration.
(3)
Extended Hours Past 12:00 Midnight (Sunday through Thursday) and/or 1:00 a.m. (Friday and Saturday). A separate permit shall be required from the Director for extended hours. No more than three permits for extended hours for the facility shall be issued in a calendar year (January through December). This is not to be interpreted to mean three separate permits per event operator. Three is the total number permitted per year for the entire facility. An approval letter from the South Towne Expo Center Administration shall be submitted with the permit for extended hours.
a.
Admittance to any activity, regardless of time extension, shall cease at 12:00 midnight Sunday through Thursday, and shall cease at 1:00 a.m. for Friday and Saturday.
b.
In no instance may a permit be granted for operation of any activity beyond 2:00 a.m.
c.
All laws and ordinances for curfew for individuals under the age of 18 must be obeyed.
d.
No loitering in the parking lot by patrons is allowed. Security must also patrol parking areas to prevent patrons from loitering in the parking lot.
e.
All doors of the facility that are adjacent to a residential area must be closed during the activity.
f.
Time for the set-up and take-down of indoor events may be approved beyond the approved extended hours. When adjacent to residential areas, loading/unloading activities shall comply with applicable noise ordinances.
(LDC 2008, § 15A-11-13)
(a)
Purpose and Intent. The purpose and intent of the temporary use permit is to allow certain uses, within Sandy City, which are transitory or seasonal in nature, in a manner that will assure compatibility with the zone district and adjacent properties. A temporary use, which is subject to the following provisions, is typically a commercial business venture for which a business license is required and which is conducted on private property. A special event, which is governed by policy, is generally an event which is not required to obtain a business license and is conducted on public property.
(b)
Standards for All Temporary Uses.
(1)
A temporary use shall comply with the following general standards, with two exceptions listed in Subsection (b)(2) of this section:
a.
No more than two temporary uses are allowed per site at one time. Each temporary use is limited to two structures (e.g., tent and storage container).
b.
Sanitary facilities shall be available for waste disposal for the protection of community health and safety. Any time portable toilets are going to be used, the applicant must submit an executed sanitary contract to the City wherein it states that the toilets will be serviced no less than a bi-weekly basis.
c.
Acceptable space shall be available for any off-street parking and traffic circulation generated by the uses.
d.
Hours of operation shall be limited to the hours of 7:00 a.m. to 10:00 p.m.
e.
Signs must comply with the City-adopted sign regulations.
f.
A use and/or display may not be placed within the public right-of-way or on any landscaped area. Produce stands may be located on the landscaped area subject to Subsection (b)(1)h of this section.
g.
Night lighting shall be compatible with adjacent uses, shielded and directed downward to avoid light spill onto adjacent properties.
h.
All temporary use businesses, including all facilities and/or structures, shall be cleared off the site within two days after the license expires.
i.
In authorizing a temporary use, the Community Development Department shall impose such additional requirements and conditions as considered necessary for the protection of adjacent properties and the public safety and welfare in conformance with standards as provided in this section.
(2)
Exceptions:
a.
Produce stands (sale of fruits and vegetables that have been produced on the same site as the temporary sales) are required to comply only with Subsections (a)(1)f through i of this section; and
b.
A temporary use permit to be approved by the City Engineer and Director for construction trailers, staging areas, and equipment sheds. Said uses may utilize or occupy vacant, unimproved, or improved properties, staging areas, or projects that are under construction.
(c)
Development Standards for temporary Uses Located Upon Vacant Properties (Other Than for Uses Outlined in Subsection (b)(2)b of this Section). Before any temporary use is approved to locate in a vacant lot (no currently licensed business with a permanent structure on-site), the property owner, or authorized agent, must submit a site plan to be approved by City staff. The site plan shall be drawn to a standardized scale that identifies the location of all proposed structures with setbacks indicated on the plan. The following improvements are required for each site:
(1)
An all-weather surface parking lot approved by the City Engineer and Fire Marshal to include other materials approved for safety specifications as approved by staff.
(2)
Curb, gutter, and sidewalk on all street frontages, that Sandy City has jurisdictional control over approved by the City Engineer, or provide a Safety Plan that provides safe pedestrian pathways and restricted vehicle access points to be approved by staff.
(3)
An approved fire hydrant within 200 feet of any building or facility on-site that meets International Fire Code standards.
(4)
An approved dedicated right-of-way access point to a public road.
(5)
Site must be able to manage all stormwater on-site. All temporary use permits shall be reviewed by the Public Utilities Department to ensure compliance with the Groundwater Source Protection Ordinance.
(6)
Fifteen feet of landscaping, including acceptable xeriscape designs, that is maintained along the entire frontage adjacent to a public right-of-way (unless the site has gone through a previous site plan approval process and is now legal nonconforming relative to landscaping). The plan shall include the location of an approved water meter, including any installation requirements from the Public Utilities Department.
(d)
Temporary Use Permit Required. A temporary use permit and business license, where applicable, shall be required for the following:
(e)
Application for Temporary Use Permit. An application for a temporary use permit shall be made to the Community Development Department, in conjunction with a business license, when applicable, at least ten days prior to the date of requested use. No temporary use permit shall be issued more than 180 days prior to the start of the temporary use period. The Department may issue or deny the application for a temporary use permit.
(1)
Information Required for Application. An application for a temporary use permit shall be accompanied by the following information:
a.
Description. A written description of the proposed use, including requested length of permit and hours of operation.
b.
Authorization for Use. If the applicant is not the owner of the property, the ownership shall be identified along with evidence of permission of the owner for such temporary use to take place.
c.
Site Review. A vicinity map and plot plan with sufficient information to determine the primary use of the property and the required site requirements, sanitary facilities and availability of parking to serve the uses.
(2)
Insurance/Bond Required. The following insurance policies and/or bonds shall be posted:
a.
Public Property. All temporary uses that utilize public property shall obtain a general liability insurance policy which names the City as an additional insured, and which is not less than the current damage caps set forth in the Utah Governmental Immunity Act.
b.
All Temporary Uses. All temporary uses shall post a $1,000.00 bond, to ensure clean-up of the property, as required in Title 15. If an itinerant business is located on the premises of a shopping mall or center or other such permanent commercial building, the owners of the mall or building may, at their option, provide a cash or surety bond in the amount of $2,000.00, in lieu of individual merchants posting a $1,000.00 bond.
(f)
Revocation of Temporary Use Permit.
(1)
Authority. A temporary use permit may be revoked by the Director in accordance with the provisions of this section, if the recipient of the permit fails to develop or maintain the property in accordance with the plans submitted, the requirements of the title, or any additional requirements lawfully imposed in connection with the issuance of the temporary use permit.
(2)
Notice. Before a temporary use permit may be revoked, written notice of the decision to revoke shall be given to the permit holder. The notice shall inform the permit holder of the grounds for the revocation and advise the permit holder that the revocation shall be effective 30 days for the date of the notice unless, before the revocation date, the permit holder either:
a.
Demonstrates to the satisfaction of the Director compliance with the requirements of the zoning certificate; or
b.
Files an appeal of the Director's decision to revoke pursuant to Subsection (f)(4) of this section.
(3)
Effect of Revocation. No person may continue to make use of land or buildings in the manner authorized by any temporary use permit after such permit has been revoked in accordance with Subsection (f)(4) of this section.
(4)
Appeal. Revocation of a temporary use permit by the Director may be appealed to the Board of Adjustment in accordance with the provisions of this title.
(LDC 2008, § 15A-11-14; Ord. No. 12-17, 5-29-2012; Ord. No. 13-06, 2-4-2013)
The following standards shall apply to all garage sales at residences within Sandy City:
(1)
Frequency. There shall be no more than three garage sales at a residence per calendar year. The calendar year is defined as January 1 through December 31. Garage sale events must be separated by at least a 14-day period.
(2)
Duration of Sale. A garage sale is permitted for a period no longer than 48 consecutive hours.
(3)
Location of Garage Sale. The garage sales shall be located at the actual residence of the owner of the materials to be sold. At a neighborhood garage sale event (i.e., three through five neighbors pool their belongings into a super garage sale), the materials must be located at the residence of only one of the participating sellers.
(4)
Goods to be Sold. The items that are permitted to be sold must be used items from that residence. Items purchased or obtained from other locations with the intent to be resold at a garage sale are prohibited and a violation of this section.
(5)
Temporary Sales. Temporary sales within commercial areas are permitted as regulated elsewhere in this title.
(LDC 2008, § 15A-11-15)
The following standards shall apply to all model homes within Sandy City:
(1)
Location. Model homes are only allowed within City-approved and -recorded residential developments of five units or more. They must be located on a platted lot or site within the advertised development.
(2)
Duration. Model homes may be operated for no more than two years from first occupancy of a dwelling unit in the development or until the second to last unit is sold within the advertised development, whichever comes first. The Director may approve an extension on a case-by-case basis.
(3)
Advertising. Model homes may not advertise properties located in another subdivision or property located off of the development site.
(4)
Construction Standards. Model homes must comply with all standards and conditions of approval for the advertised development, including building materials, setbacks, landscaping, etc., and must comply with all applicable residential dwelling standards upon discontinued use as a sales office.
(LDC 2008, § 15A-11-16)
(a)
Purpose. It is the purpose and objective of this section that the City establish reasonable and uniform regulations to prevent the concentration of sexually oriented businesses, escort agencies, outcall service agencies, and semi-nude dancing agencies in areas deleterious to Sandy City; to regulate the signage of such businesses; and to control the adverse effects of such businesses and signage. This section is to be construed as a regulation of time, place, and manner of the operation of these businesses, consistent with the limitations provided by provisions of the United States of America and Utah Constitutions.
(b)
Definition. The following words, terms and phrases, when used in this section, shall have the meanings ascribed to them in this subsection, except where the context clearly indicates a different meaning:
(1)
Gateway means 9000 South Street as it begins at the western-most boundary continuing east to State Street and 10600 South Street as it begins at the western-most boundary continuing east to State Street; 11400 South Street as it begins at the western-most boundary continuing east to State Street; State Street as it begins at the City's northern-most boundary continuing south to the City's southern-most boundary; 700 East Street as it begins at the City's northern-most boundary continuing south to the City's southern-most boundary; and 1300 East Street as it begins at the City's northern-most boundary continuing south to the City's southern-most boundary.
(c)
General Provisions.
(1)
Sexually oriented businesses, escort agencies, outcall service agencies and semi-nude dancing agencies shall be permitted only in areas zoned ID and be subject to the following restrictions:
a.
No sexually oriented business, escort agency, outcall service agency or semi-nude dancing agency shall be located:
1.
Within 1,000 feet from any school, public park, library, or religious, or cultural activity.
2.
Within 500 feet of any other sexually oriented business, escort agency, outcall service agency, or semi-nude dancing agency.
3.
Within 600 feet from an agricultural or residential use or residential zoning boundary. For the purposes of this subsection, the measurement from an agricultural or residential use shall begin at the property line of such use.
4.
Within 150 feet of the 9000 South Street gateway, the distance shall be measured from right-of-way boundary.
5.
No property within 800 feet of the Interstate 15 freeway right-of-way boundary. This includes an entire parcel of property any portion of which is within 800 feet of the Interstate.
b.
Distance requirements from structures for this section shall be measured in a straight line, without regard to intervening structures or zoning districts, from the structure of the school, public park, religious or cultural activity, residential use, or other sexually oriented business, escort agency, outcall service agency, or semi-nude dancing agency.
c.
Distance requirements from zoning districts for this section shall be measured in a straight line, without regard to intervening structures or zoning districts, from the zoning boundary of a residential or agricultural district to the structure of the sexually oriented business, escort agency, outcall service agency, or semi-nude dancing agency.
(2)
All existing legal nonconforming sexually oriented businesses, escort agencies, outcall service agencies, and semi-nude dancing agencies on the effective date of the ordinance from which this section is derived, or any amendment hereto, shall comply with the provisions of this section within one year from the date of the enactment of this section or any amendment thereto.
(d)
Signage. Notwithstanding anything contrary contained elsewhere in this title governing sign regulations, the more restrictive requirements for signs shall prevail. Signs for sexually oriented businesses, escort agencies, outcall service agencies, and semi-nude dancing agencies shall be limited as follows:
(1)
No more than one exterior sign shall be allowed.
(2)
No sign shall be allowed to exceed 18 square feet.
(3)
No animation shall be permitted on or around any sign or on the exterior walls or roof of such premises.
(4)
No photographs, silhouettes, drawings or pictorial representations of any manner shall be allowed on any sign. Said signs may contain only the name of the enterprise.
(5)
Only flat signs shall be permitted.
(6)
Painted wall advertising shall not be allowed.
(7)
Other than the signs specifically allowed by this section, the escort agency, outcall service agency, and semi-nude dancing agency shall not construct or allow to be constructed any temporary sign, banner, light, or other device designed to draw attention to the business location.
(e)
Severability. If any provision or clause of this section or the application thereof to any person or circumstances is held to be unconstitutional or otherwise invalid by any court of competent jurisdiction, such invalidity shall not affect other sections, provisions, clauses, or applications hereof which can be implemented without the invalid provisions, clause or application hereof, and to this end the provisions and clauses of this section are declared to severable.
(LDC 2008, § 15A-11-17)
State Law reference— Municipal regulation of sexually oriented businesses, U.C.A. 1953, § 10-8-41.5.
(a)
Development Standards.
(1)
Location of Sites. All church sites should be located adjacent to streets which are a minimum of 60 feet wide. No church should be located where access is less than the above, except for churches which can show that members will come from the local neighborhoods so that traffic impacts are lessened.
(2)
Access. It is preferred that churches be located where there is access to two streets (corner lots) unless otherwise approved by the Planning Commission.
(3)
Parcel Size. No minimum parcel size is required; however, the parcel chosen for a church must be adequate to meet all of the development standards to be listed below that include, but are not limited to, setbacks, landscaping, parking, improvements, and dedications.
(4)
Building Setbacks (Except as May be Approved in Chapter 21-14).
a.
Commercial Zone.
1.
Front: 30 feet from property line. (If project fronts on more than one street, setback applies to all street frontages.)
2.
Side and rear: minimum ten feet, unless located adjacent to a residential zone. In this case, the minimum setback to buildings must be 30 feet.
b.
Residential Zone.
1.
Front: 30 feet from front property line. (If project is on a corner lot, setbacks are 30 feet on one street and 20 feet on the other.)
2.
Side and rear: follow setbacks required according to the zone the property is in. A greater setback may be needed as may be deemed necessary by the Planning Commission by larger structures.
(5)
Building Height. Maximum building height shall follow zoning that the project is in. Thirty-five feet is the maximum height in a residential zone or in any zone adjacent to a residential zone (not including chimneys, steeples and the like).
(6)
Landscaping Setbacks.
a.
Front: 30 feet minimum from property line. (If on a corner lot in a residential zone, 20 feet on shorter setback side.)
b.
Sides and rear: five feet minimum.
c.
Landscaping in the front areas shall also include the parkstrip adjacent to the curb, including grass and street trees (minimum two-inch caliper and spaced 30 feet on center).
d.
Landscaping shall also be required within the parking lot itself where large expanses of asphalt occur. There shall be a minimum of one ten-foot-wide planter within the parking lot area where over 125 linear feet of asphalt occurs.
(7)
Fencing.
a.
As a general rule, fencing shall follow that of the surrounding area. However, chainlink fencing is not acceptable unless prior Planning Commission approval is granted. In cases where chainlink fencing is approved, vinyl coated chainlink mesh will be required.
b.
Acceptable fence types shall include vinyl, pre-cast concrete, decorative iron, architecturally designed brick or block, or structural wood fences with square tube metal posts with tongue-in-groove redwood siding and redwood for all other wood members.
(8)
Parking.
a.
All parking for church facilities shall be on-site. No parking is allowed on the street.
b.
No parking is permitted within the front landscape setback.
(9)
Trash Enclosures and Accessory (Maintenance or Storage) Buildings.
a.
All trash bins shall be surrounded with six-foot-high masonry (or pre-cast) enclosures to match the main building with solid metal gates. Trash enclosures may be combined with accessory (maintenance or storage) buildings. The setback of such structures shall be at least the same as the minimum required front landscape setback, but in no case shall trash enclosures be located any closer than ten feet to a residential district lot line or five feet to a commercial district lot line.
b.
Accessory (maintenance or storage) buildings shall be built of the same materials as the main building (siding and roofing) so as to blend in with the entire project. Minimum setbacks to the front property lines shall be the same as the main building. Buildings adjacent to a side or rear property line (other than a street side of the property), which are built of one-hour fire rated construction, can be considered an accessory structure and may be set back as close as three feet to a side or rear property line.
(10)
Lighting. All lighting for church buildings, parking lots, and accessory uses, if applicable, shall be downlit and minimize any adverse impact on adjacent residential areas.
(b)
Ancillary Uses.
(1)
Ancillary uses such as parks, ball diamonds, pavilions, etc., shall not count towards landscaping on the church site but shall stand alone and be considered as a separate site and subject to separate conditional use approval. Any such ancillary uses are subject to, but not limited to, the standards of this section (if applicable).
(2)
An on-site, church-operated day care will be considered a permitted ancillary use provided there is enough parking on-site to accommodate the number of children enrolled in the day care. The amount of parking is one space per instructor, plus drop-off space.
(c)
Procedure for Approval.
(1)
Church facilities are conditional uses in all zones and as such require Planning Commission approval.
(2)
Upon receiving a conditional use approval from the Planning Commission, all church projects will proceed through the site plan review process with staff.
(LDC 2008, § 15A-11-18; Ord. No. 10-43, 12-14-2010)
(a)
Purpose. This section is established to provide regulation and design standards for mobile food businesses, mobile food courts, and street vendors in commercial or industrial land use areas, except as otherwise allowed herein. These regulations are designed to expand the opportunity of various types of temporary mobile vendors in the City, while guiding them to appropriate locations, and ensuring they are conducted safely and in harmony with the surrounding land uses.
(b)
General Requirements. The following requirements must be met for all mobile food businesses, street vendors, and mobile food courts. Provisions found in this section shall not apply to other uses identified as a temporary use that are specifically regulated by this title.
(1)
License Required. No person shall operate a mobile food or street vendor business without first having obtained a business license from Sandy City. A mobile food business may provide a copy of a current business license in good standing from another political subdivision in the State in lieu of a Sandy City business license.
(2)
Prohibited Sales. No alcohol shall be provided/sold from a mobile food or street vendor business.
(3)
Use of Public or Private Property (excluding public right-of-way). Mobile food businesses and street vendors shall be allowed to operate on property within all commercial or industrial land use areas, in accordance with the provisions of this section. Each business shall abide by the following:
a.
Property Owner Approval. Prior written consent from the property owner is required for every location a business desires to operate. Said letter must include information about where the vendor is permitted on the site that complies with the location requirements herein. Upon inspection, the business must provide proof of permission to operate in any given location.
b.
Parking and Circulation. Acceptable space shall be available for any off-street parking and traffic circulation generated by the uses. The location and use of a site may not interfere with the existing parking demand and circulation of the surrounding development.
c.
Vacant Lots. Prior to operating a mobile food or street vendor business on a vacant lot (where there is no current licensed business with a permanent structure on-site), the improvements outlined within this title for temporary uses are required for each site prior to operating business.
(4)
Use of Public Right-of-Way. Mobile food businesses and street vendors may be allowed to operate in the public right-of-way only in appropriate locations as determined by the City in accordance with the provisions in this section. Each business seeking to operate within the public right-of-way shall abide by the following conditions and requirements:
a.
City Approval. Written permission from the City to operate a business in the public right-of-way is required. Said permission may be granted if an applicant can demonstrate compliance with the regulations in this section.
b.
Parking and Traffic Regulations. Mobile food and street vendor businesses shall obey all on-street parking and traffic regulations as stated in state statute and/or City ordinances.
c.
Prohibited Parking Areas. Parking on a sidewalk, parkstrip, or otherwise landscaped area is not allowed. Street vendors are exempt from this prohibition if they are set up on a paved surface, do no harm to landscaped areas, and comply with all other provisions of this section.
d.
Parallel Parking Spaces. Mobile food businesses utilizing parking space within the public right-of-way shall park only in parallel parking spaces. Mobile food businesses must be parked so that neither the vehicle nor the customers interfere with public access to adjacent parking stalls or to driveways or entrances of existing buildings or uses.
e.
Orientation of Vending Window. The operator shall locate the vending window facing the sidewalk or on private property, unless the roadway has been closed to vehicular traffic for a public event.
f.
Parking for Primary Use. No mobile food or street vendor business shall create a parking issue for the surrounding primary uses.
g.
No Sales in Roadway. No sales shall be made to any person standing in a roadway unless the roadway has been closed to vehicular traffic for a public event.
h.
Locations. Mobile food businesses shall not operate on public streets where the speed limit exceeds 35 miles per hour, unless the roadway has been closed to vehicular traffic for a public event, nor locations that are otherwise deemed hazardous by the Sandy City Engineer.
i.
Certificate of Insurance. When locating on public property, each applicant for a license or renewal under this section shall submit, with the application, a Certificate of Insurance executed by an insurance company or association authorized to transact business in this State, showing that there is in full force and effect, for the full term of the license, general liability insurance in the amount not less than $200,000.00 for personal injury to each person, $500,000.00 for each occurrence, and $500,000.00 for each occurrence involving property damage; or a single limit policy of not less than $500,000.00 covering all claims per occurrence. Such policies shall also include coverage of all motor vehicles used in connection with the applicant's business and the coverage shall be primary. A current certificate of insurance shall be kept on file with the Business License Administrator at all times that the applicant is licensed by the City verifying such continuing coverage and naming Sandy City, its officers, officials, and employees as additional insureds. The Certificate shall contain a statement that the City will be given written notification at least 30 days prior to cancellation or material change in the coverage. Cancellation shall constitute grounds for suspensions or revocation of the license issued hereunder unless another insurance policy complying herewith is provided and is in effect at the time of cancellation/termination. In the case of a mobile food court, a Certificate of Insurance would be required for each vehicle.
j.
Indemnity Clause. When locating on public property, each applicant for a license or renewal under this section shall submit, with the application, a signed statement that the licensee shall hold the City and its officers and employees harmless from any and all liability and shall indemnify the City and its officers and employees from any claims for damage to property or injury to persons arising from any activity carried on under the terms of the license.
(5)
Open Space Zones and Public Parks. It shall be unlawful for any mobile food or street vendor business to operate adjacent to or in a public park, or in an OS Zone, without the prior written consent of the Community Development Director. Authorization may be granted by the Director after consultation with the Parks and Recreation Director. Authorization does not supersede or replace the requirement that the business obtain a business license.
(6)
Pedestrian Flow. The business shall ensure that its use of the right-of-way, including the sidewalk, in no way interferes with or limits sidewalk users' free and unobstructed passage. The vendor must maintain clear, continuous sidewalk width of no less than four feet.
(7)
Location Restrictions. Mobile food businesses and street vendors must not be located within:
a.
Ten feet of any fire hydrant;
b.
Ten feet of any bus or transit stop;
c.
Ten feet or one stall away from any handicap parking space or access ramp;
d.
Ten feet from any curb cut;
e.
Ten feet from any other mobile food business or street vendor;
f.
Ten feet from any manhole or storm drain inlet;
g.
Sixty feet from any intersection or driveway; and
h.
One thousand feet from any private/public school K through 12 between the hours of 7:00 a.m. to 4:00 p.m., Monday through Friday, unless permission is given from an authorized representative from the school to locate on school property. School authorization does not supersede or replace the requirement that the business obtain a business license.
(8)
Restrooms. Access to restroom facilities shall be made available.
(9)
Display of License, Inspections, and Registration. The business license, Fire Inspection Certificate, and health department food truck permit and inspection must be displayed in a visible location on the vehicle, trailer, or cart. The vehicle, trailer, or cart must also have the license plate, proof of insurance coverage, safety inspection, and vehicular registration.
(10)
Multiple Locations. The business may operate from several locations (both public and private) within the City under the same business license.
(11)
Business Activity to be Temporary. All business activity related to mobile food and street vendor businesses shall be of a temporary nature, the duration of which shall not extend for more than 12 hours within any 24-hour period at any one location, unless the Director approves a longer time on either public or private property. All vehicles, trailers, or carts must be removed from the public right-of-way or private property at the close of each business day. The hours of operation shall be restricted to 7:00 a.m. to 10:00 p.m., unless approved by the Director if one or more of the following conditions are met:
a.
The extended hours are part of an approved special event.
b.
The location is a site that contains a business that has been approved for extended hours.
(12)
Noise Ordinance. Live music will not be performed, nor loudspeakers played from a mobile food business or in a mobile food court area unless the decibel level is in conformance with the Salt Lake Valley Health Department Noise Ordinance.
(13)
Drive-Thru Prohibited. The business shall not have or operate as a drive-thru.
(14)
Appearance. The mobile food vehicle, trailer, or cart shall be kept in a good operating condition and no peeling paint or rust shall be visible.
(15)
Auxiliary Power. Any auxiliary power required for the operation of the mobile food business shall be self-contained. The use of power or water located in private property is not allowed, unless the property owner grants permission.
(16)
Illegal to Discharge in Storm Drain. It is illegal to discharge or dispose of any substance, material, food, or waste into the storm drain system.
(17)
Garbage. All garbage or other refuse generated from a mobile food or street vendor business shall be disposed of properly. All grounds utilized by a mobile food or street vendor business shall at all times be maintained in a clean and attractive condition. Trash containers shall be provided for use of the business patrons. If a mobile food or street vendor business has operated on or adjacent to a public right-of-way, that vendor shall be responsible for cleaning up litter dropped or discarded onto the public right-of-way prior to leaving the location.
(18)
Signage. Signage shall be allowed as part of the design of the vehicle, trailer, or cart itself or upon the canopy or umbrella. One menu board A-frame sign may be used with a maximum size of three inches by four inches. Signs shall not block or impede pedestrian traffic.
(19)
Professional and Personal Services Prohibited. Professional or personal services shall not be provided from a mobile food business or street vendor.
(20)
Sales Tax Compliance Responsibility. All vendors are subject to Sandy City sales tax for goods sold within the boundaries of Sandy City. Vendors shall be required to keep accurate records of daily sales that occur within the Sandy City limits.
(c)
Additional Design and Operation Standards for Mobile Food Businesses. Mobile food businesses shall comply with the following design and operation requirements:
(1)
Canopy Regulations. Any canopy extensions must be integrated into the design of the mobile food business vehicle and must not project onto or over the public sidewalk or any other part of the public right-of-way in a way that impedes pedestrian passage or is lower than seven feet measured from the lowest portion of the canopy to the sidewalk or ground surface. Walled enclosures, whether hard or soft, are not authorized. Chairs and tables are not allowed in the public right-of-way.
(2)
Comply with Motor Vehicle Regulations. Licensees/owners will ensure their business vehicles are at all times in compliance with all applicable laws or ordinances regulating motor vehicles.
(d)
Additional Design Standards for Street Vendors and Mobile Food Carts. Street vendor carts and mobile food carts shall comply with the following design standards:
(1)
Canopy Clearance. Umbrellas or canopies shall be a minimum of seven feet and a maximum of ten feet above the sidewalk if they extend beyond the edge of the cart.
(2)
Canopy Size. Umbrellas or canopies shall not exceed 100 square feet in area.
(3)
Cart Size. The cart shall not exceed three and one-half feet in width and eight feet in length, including the hitch. The height of the mobile device or push cart, excluding canopies, umbrellas, or transparent enclosures, shall not exceed five feet. Mobile food carts are exempt from cart size restrictions.
(4)
Non-Motorized Carts. The cart shall be on wheels and of sufficiently lightweight construction that it can be moved from place to place by one adult person without auxiliary power. The device or cart shall not be motorized so as to move on its own power.
(e)
Additional Design and Operation Standards for Mobile Food Courts. A mobile food court, which consists of three or more mobile food businesses or street vendors that congregate at a site or street at the same time on a temporary or permanent basis, is subject to the additional standards in this subsection. Temporary mobile food courts are located on sites that are typically set up in an existing parking lot as an accessory use or street and operate on a weekly, seasonal, or other temporary basis. A permanent mobile food court is a site constructed as a primary use on private property specifically designed for hosting various vendors and intended to operate year round on a consistent basis. Permanent mobile food courts will be allowed in certain zone districts as determined in the land use tables of this title. A mobile food court shall only be approved if it complies with the following design and operation requirements:
(1)
Administrative Permit. Temporary mobile food courts are allowed by administrative special use permit, in accordance with the provisions of this section and other applicable provisions in this title. Permanent mobile food courts will be required to adhere to the provisions of this section and all applicable commercial site plan review requirements in this title.
(2)
Parcel Size. A mobile food court is required to be on a parcel that is at least 2,000 square feet in size.
(3)
Number of Food Vendors. No more than ten individual mobile food businesses or other authorized vendors are allowed in a mobile food court.
(4)
Business License. A promoter, mobile food court operator, or property owner must obtain a mobile food court license.
(5)
Landscape Requirements. All landscaping requirements shall be met prior to issuing a permit.
(6)
Comply with Site Approvals. The proposed mobile food court complies with all conditions pertaining to any existing variances, conditional uses or other approvals granted for the property.
(7)
Health Department Approval. All activities associated with a mobile food court must comply with all Salt Lake Valley Health Department requirements.
(8)
Site Plan. A site plan demonstrating the following is required:
a.
The location and orientation of each vendor pad.
b.
The location of any paving, trash enclosures, landscaping, planters, fencing, canopies, umbrellas or other table covers, barriers or any other site requirement by the International Building Code, or Health Department.
c.
The location of all existing and proposed activities on-site.
d.
The circulation of all pedestrian and vehicle traffic on the site.
e.
The location of restroom facilities to be used for the mobile food court.
f.
The location of any permanent structures or facilities (such as restrooms, ancillary food preparation facility, etc.).
(9)
Parking. Parking for a mobile food court is required at a ratio of two stalls per mobile food business. This requirement may be modified or waived by the Director if there is sufficient and available on-street parking or the applicant can demonstrate that their use will not generate as much parking demand. Hard surface paving at the vehicular entrance to the mobile food court and for each individual mobile food business pad is required. Alternatives to asphalt and concrete may be approved as part of the special use review if the applicant is able to demonstrate that the alternative will not result in the accumulation of mud or debris on the City rights-of-way.
(f)
Special Events. The restrictions of this section notwithstanding, nothing herein shall prohibit the City from authorizing mobile food businesses other than those licensed under this section, to conduct concurrent vending operations within the public right-of-way, or such other areas as the City may deem appropriate, during special events. The special event vendors shall still be governed by this section, except as specifically provided otherwise by the special event permit or such other ordinance, policy, or executive order as may be applicable. However, as long as the public right-of-way remains open to the general public, such authorization or special event vendors shall not require removal of a permittee under this section from operating within an otherwise lawfully occupied location of a mutually acceptable adjacent alternative location during such special event, unless otherwise provided under City ordinances. If the City is closing a public right-of-way to general access, either partially or fully, in order to accommodate a special event, a mobile food business may not access that right-of-way unless specifically authorized by the City.
(g)
Grounds for Denial, Suspension or Revocation. Failure to comply with the requirements of this section shall be grounds for denial, suspension or revocation of a business license as described in Title 15. Failure to comply may result in the suspension or revocation of a business license, and is a Class B misdemeanor.
(Ord. No. 17-30, § 1, 12-1-2017; Ord. No. 22-13, § 1(Exh. A), 11-15-2022)
Non-Depository Institutions are permitted as a conditional use within the Central Business District (CBD), Regional Commercial (RC), Boulevard Commercial (BC), Community Commercial (CC), Neighborhood Commercial (CN), Commercial Planned Unit Development (CR-PUD), Industrial (ID), and AutoMall Commercial (AM Commercial) Zoning Districts and subject to the following restrictions:
(1)
Shall not be located within 5,280 feet (one mile) of the same type of use inside or outside the Sandy City geographical boundaries. This distance shall be measured from the exterior walls of the buildings or portions thereof in which the businesses are conducted or proposed to be conducted.
(2)
Shall conform to the Architectural Design Standards as established by the City. In addition to these guidelines, the following will also be required:
a.
The color of the building shall be restricted to earth tones or shall match the design theme of the center in which it is a part.
b.
At least 25 percent of the first floor facade that faces a public street or sidewalk shall be windows or doors of clear or lightly tinted glass that allows views into and out of the building at eye level.
c.
The use of bars, chains or similar security devices that are visible from a public street or sidewalk shall be prohibited.
d.
The use of neon lighting shall be prohibited on the building exterior exclusive of building signage.
(3)
Shall conform to the sign regulations as described in this title.
(4)
Shall be limited to one non-depository institution per 10,000 in population, to include all residents in Sandy City and the Salt Lake County unincorporated islands within the City's geographical boundaries. The total population figures shall be based on the U.S. Census Bureau's annual estimates.
(LDC 2008, § 15A-11-20)
(a)
Scope and Applicability. Earth station regulations shall apply to earth stations with a dish diameter over four feet in size. Earth stations with a dish diameter under four feet in size shall be regulated in the same manner as television antennas.
(b)
Location.
(1)
Location of Earth Stations over Four Feet in Diameter in Residential Districts.
a.
Ground-Mounted in All Residential Districts.
1.
Maximum Height. Maximum height from grade to the top of the dish shall be 12 feet. Any ground-mounted earth station with a height exceeding 12 feet shall be allowed only with a conditional use approval from the Planning Commission.
2.
Number Per Lot. A maximum of one earth station structure shall exist at any one time on any residentially zoned property.
3.
Front Yard. If there is no other alternative for the location, earth stations may be allowed in the front yard area only with a conditional use approval from the Planning Commission.
(i)
Setback maximums from the public street shall be determined by the Planning Commission.
(ii)
Applicants shall provide a site plan indicating the location of the earth station.
4.
Rear and Side Yards. Earth stations shall be located in rear yards, where possible. If rear yards are not acceptable for proper reception of signals, the earth station may be located in either side yard.
5.
Corner Lots. On corner lots, an earth station may be situated to the rear of the main dwelling and within the area between the main building and street when approved as a conditional use by the Planning Commission.
6.
Easements, Rights-of-Way. No earth station shall be located on any legally recorded public utility easement or right-of-way.
7.
Multifamily. One earth station shall be allowed per building. A second earth station may be allowed with conditional use approval from the Planning Commission.
b.
Roof-Mounted in All Residential Zones.
1.
Approval. If the rear and side yards are deemed unacceptable for suitable signal reception, then roof-mounted earth stations may be permitted with conditional use review and approval from the Planning Commission. Such roof installations may be permitted by the Planning Commission under the following criteria:
(i)
Roof-mounted earth stations shall be mounted directly upon the roof of a primary structure and shall not be mounted upon appurtenances such as chimneys, towers, trees, poles, or spires.
(ii)
An earth station shall not exceed a height determined appropriate by the Planning Commission. The height of the structure shall not exceed the maximum height limits established within the zone in which the earth station is to be located.
(iii)
Evidence of wind loading and structural safety of the earth station shall be provided to the Planning Commission by the applicants.
(iv)
An earth station mounted on a roof shall be located on the portion of the roof which is oriented to the rear yard rather than located on the portion of the roof visible from the street.
(v)
Other criteria as deemed appropriate by the Planning Commission.
(2)
Location of Earth Stations, over Four Feet in Diameter, in Commercial and Industrial Districts.
a.
Ground-Mounted in Commercial and Industrial Districts.
1.
Maximum Height. Maximum height from grade to the top of the dish shall be 15 feet. Any earth station with a height exceeding 15 feet shall be allowed only with conditional use approval from the Planning Commission.
2.
Number Allowed. Two earth station structures shall be permitted at any one time per separate commercial or industrial business. More than two earth stations may be permitted with conditional use approval from the Planning Commission.
3.
Advertising. No earth station shall display lettering or numbers for advertising purposes.
4.
Rear and Side Yards. An earth station in any commercial or industrial district shall be located in the rear or side yard area, if possible.
5.
Front Yards. An earth station may be located in the front yard provided the structure is not located in the minimum front landscape area, and the structure does not interfere with pedestrian or vehicular traffic.
6.
Easements, Rights-of-Way. No earth station shall be located on any legally recorded public utility easement or right-of-way.
b.
Roof-Mounted in All Commercial and Industrial Zones.
1.
Approval. If the front, rear, and side yards are deemed unacceptable for suitable signal reception or pose a negative aesthetic or neighborhood impact, then roof-mounted earth stations may be permitted with conditional use review and approval from the Planning Commission. Such roof installations may be permitted under the following criteria:
(i)
Roof-mounted earth stations shall be mounted directly upon the roof of a primary structure and shall not be mounted upon appurtenances such as chimneys, towers, trees, poles which exceed the minimum height of mast required to mount the antennae to the roof, spires, or similar structures.
(ii)
The height of a roof-mounted earth station located in any commercial or industrial district shall not exceed 12 feet above the highest point of the roof upon which the structure is located. Height increases over 12 feet may be approved by the Planning Commission as deemed appropriate. The roof-mounted earth station shall not exceed the maximum height limits established within the zone in which the earth station is to be located.
(iii)
All roof-mounted earth stations shall be screened from view from adjacent streets and properties in the same manner as is required of all other roof-mounted equipment in this title. Said station shall not significantly change the architectural character of the structure.
(iv)
Other criteria as deemed appropriate by the Planning Commission.
(LDC 2008, § 15A-11-21)
These regulations shall apply to all solar energy systems, private or public, to the extent that design review is not pre-empted by State or Federal law.
(1)
Review and Standards. Solar energy systems are allowed as an accessory use to the primary structure on a parcel. All applications for building permits for structures with solar installations shall be forwarded to the Community Development Department for review and approval. The proposed installation will be reviewed to assure compliance with the following standards:
a.
Ground-Mounted.
1.
Ground-mounted solar energy systems shall be permitted in the side and rear yards subject to the guidelines outlined below.
2.
Setbacks for ground-mounted solar energy systems are subject to the same setbacks from the side and rear property lines as accessory buildings outlined in this chapter.
3.
Any ground-mounted solar energy system that exceeds six feet in height must be mounted on the roof of either the principle building or an accessory building.
4.
The overall square footage of the ground-mounted solar energy system shall be included in the total accessory building square footage limits.
b.
Attached to the Building. Where attached to a building, the solar energy system shall be subject to the same regulations as the building in terms of height and setbacks. Solar energy systems may be attached to the roof and/or the building wall.
1.
Roof-mounted solar energy systems shall include solar panels integrated as the surface layer of the roof structure with no apparent change in relief or projections, or separate flush-mounted solar panels attached to the roof surface.
(i)
Surface flush-mounted solar panels installed in a building with a sloped roof surface shall not project vertically above the peak of the roof to which it is attached.
(ii)
Solar panels mounted on a flat roof shall not project vertically higher than the height of the parapet wall surrounding the roof or shall be screened by architectural features outlined in this title.
(iii)
There shall be a minimum three-foot setback from the ridge or edges of the roof.
c.
Non-Reflective Coating. Solar energy systems shall be equipped with non-reflective coating and shall blend with the surface to which it is attached.
d.
Building Permit. Solar energy systems shall comply with all applicable Fire and Building Codes, including applicable permits and inspections.
e.
Batteries. If solar storage batteries are included as part of the solar energy system, they must be placed in a secure storage container or enclosure meeting the requirements of the Fire and Building Codes when in use, and when no longer in use shall be disposed of in accordance with all applicable laws and regulations.
(2)
Planning Commission Review.
a.
If any of the standards above cannot be complied with, the Planning Commission may grant a special exception if it can be determined that any negative impacts on adjacent properties can be mitigated by specific conditions.
b.
Prior to the meeting, the applicant shall provide the following:
1.
Site plan.
2.
Drawings showing existing and proposed building elevations.
3.
The kind, color, and texture of materials to be used.
4.
Any other pertinent information determined to be necessary by the Director.
c.
The Planning Commission shall approve, approve with conditions, or deny the development or structure.
(LDC 2008, § 15A-11-22; Ord. No. 15-30, 9-12-2015)
Wind energy conversion systems shall meet the following standards:
(1)
Minimum tower setback from any property line shall equal the height of the tower.
(2)
Towers shall meet main dwelling setbacks for the particular zone in which the tower is located.
(3)
There shall be sufficient safety measures to prevent the tower from becoming a climbing hazard.
(4)
The tower shall not be located on a utility easement or right-of-way.
(5)
In the case of joint ownership of a tower, the structure may be located on any lots as approved by the Chief Building Official, provided the tower meets setback requirements mentioned above in respect to all perimeter properties.
(6)
The owner shall obtain a building permit and certification by a registered engineer as to the safety of equipment and installation.
(LDC 2008, § 15A-11-23)
(a)
Purpose. The purpose of this section is to address planning issues brought on by the rapid growth in demand for low power wireless telecommunications services. This section establishes provisions that deal with issues of demand, visual mitigation, engineering, residential impacts, health, safety, and facility siting.
(b)
Application. The requirements of this section apply to both commercial and private telecommunications facilities. All telecommunications facilities shall comply with the following regulations and all other ordinances of the City and any pertinent regulations of the Federal Communications Commission and the Federal Aviation Administration.
(c)
Telecommunication Facility Justification Study and Master Plan Required. A Master Plan for each company shall be submitted. Additionally, a complete application and Telecommunication Facility Justification Study shall be submitted by each company for each proposed telecommunications facility. The Telecommunication Facility Justification Study and Master Plan shall be submitted to the Community Development Department, which will provide a preliminary review. Upon completion of the Community Development Department review, the Telecommunication Facility Justification Study and Master Plan will be scheduled with the Development Committee for further review and recommendation to the Planning Commission, together with the complete application.
(d)
Master Plan Requirements. A Master Plan shall be completed by each company. The Master Plan shall show proposed locations of future telecommunication facilities and include the rationale for each potential telecommunication facility. Maps shall be utilized to graphically illustrate the coverage radius of each potential telecommunication facility.
(e)
Telecommunication Facility Justification Study Requirements. A Telecommunication Facility Justification Study shall be completed for each telecommunication facility. The Study shall include:
(1)
Rationale. The rationale for the selection of the proposed telecommunication facility in view of the relative merits of any feasible alternative telecommunication facilities within the search ring. The Telecommunication Facility Justification Study shall include a description of the telecommunication facility, a description of the telecommunications facilities proposed to be placed on the location with technical reasons for their design and efforts made to minimize impacts on the surrounding land uses, a listing of other telecommunication facilities within the search ring which were evaluated and a statement of reasons why the final location was chosen. Staff may request the search ring and propagation information for the proposed telecommunication facilities. The applicant shall justify that the telecommunications facilities comply with the General Plan, as well as the required setback, height and landscaping requirements of the zoning district in which they are proposed to be located.
(2)
Co-location. The Study shall also examine the potential for co-location at an existing or the proposed telecommunication facility. If co-location is not possible at an existing telecommunication facility, or if the proposed new telecommunication facility is not available for co-location, then the applicant shall include a written explanation why co-location is not possible.
(3)
Height. The height of the antennas and antenna support structures shall be justified through a detailed written analysis that explains in non-technical terms the reasons why service cannot be effectively provided unless at the requested height. If the proposed telecommunication facility is a roof mount or wall mount, the City may request that the Study verify that the existing or proposed screening will screen from view all telecommunications facilities.
(4)
Equipment Facilities. The Study must include a detailed, written explanation and analysis, not limited to fiscal reasons alone, of the potential for the equipment facilities to be either:
a.
Located in an existing building; or
b.
Designed using stealth design technology, or other visual screening is utilized that readily conceals the appearance of the equipment facilities.
(5)
Visual Analysis. The applicant shall submit a visual analysis, which may include photosimulation, field mock up or other techniques, which identifies the potential for visual impacts of the proposed telecommunications facility. The analysis shall consider views from public areas (streets, parks, etc.) and from private residences. The analysis shall assess the cumulative impacts of the proposed telecommunications facility and other existing or approved telecommunications facilities in the area as provided by City staff and shall identify all mitigation measures consistent with the technical aspects and requirements of the proposed telecommunications facility. All costs associated with this requirement are to be borne by the applicant.
(6)
Independent Review. The City may, if it deems necessary, cause each telecommunications facility to be reviewed by a qualified Radio Frequency Engineer. The purpose of the review is to determine if other locations are available to achieve an equivalent signal distribution and not significantly affect the operation of the telecommunications facility. Such a review may be required when an applicant indicates that no other acceptable location exists. The costs shall be borne by the applicant.
(f)
Permitted Uses. The following telecommunications facilities are classified as permitted uses. Any request for telecommunications facilities differing from the standards as allowed in this section shall require a Technical Necessity Exception from the Planning Commission. All telecommunications facilities must comply with the General Plan as well as the required setback, height and landscaping requirements of the zoning district in which they are to be located and are subject to all provisions for site plan review, including modifications to existing site plans. All permitted use equipment facilities listed in this section must be located in an existing building or designed using stealth design technology, or other visual screening is utilized that readily conceals the appearance of the equipment facilities.
(1)
City Property. Telecommunications facilities located on City-owned property are allowed as a permitted use provided the facilities meet the standards as specified for each type of facility as contained in this section, and the facility owner has entered into a lease-type agreement with the City.
(2)
Wall-Mounted Antenna. Wall-mounted antennas which comply with the following standards are allowed as a permitted use:
a.
Locations. Located on a parcel in a commercial, industrial, or professional office zone district on a commercial, industrial, or office structure or in residential zone districts on residential institutional uses.
b.
Mounting Method. Wall-mounted antennas shall not extend above the wall line of the building or extend more than four feet horizontally from the face of the building.
c.
Stealth Design. Antennas, equipment facilities, and the antenna support structure shall be constructed with stealth design to match the color of the building or structure and to be architecturally compatible with the building or to match the color of the background against which they are most commonly seen.
(3)
Roof-Mounted Antenna. Roof-mounted antennas which comply with the following standards are permitted uses:
a.
Locations. Located on a parcel in a commercial, industrial, or professional office zone district on a commercial, industrial, or office structure or in residential zone districts on residential institutional uses.
b.
Mounting Location.
1.
Roof-mounted antennas may be located on top of existing penthouses or mechanical equipment rooms provided the telecommunications facilities are enclosed by a structure that creates a visual screen. The screening structure and telecommunications facilities shall not extend more than eight feet above the existing roofline of the penthouse or mechanical equipment room.
2.
For roof-mounted antennas not mounted on a penthouse or mechanical equipment room, the telecommunications facilities shall be mounted at least five feet from the exterior wall of a building. For antennas mounted between five and ten feet from the exterior wall, the maximum height of a roof-mounted antenna is directly proportional to the distance the antenna is set back from the exterior wall up to a maximum height of ten feet above the roofline of the building to which the antenna is attached.
3.
Telecommunications facilities shall be mounted at least five feet behind any parapet wall. For antennas mounted between five and ten feet behind a parapet wall, the maximum height of the antenna is directly proportional to the distance the antenna is set back from the wall up to a maximum of ten feet as measured from the top of the parapet wall.
c.
Screening. Roof-mounted telecommunications facilities shall be located only on a flat roof and shall be screened, constructed, and/or colored to match the structure to which they are attached. Roof-mounted telecommunications facilities for pitched roofs must receive a Technical Necessity Exception.
d.
Area Limitations for Wall- and Roof-Mounted Antennas. A combination of both roof and wall-mounted antennas are allowed on a building. The total area for all wall and roof-mounted antennas and antenna support structures combined shall not exceed 40 square feet for each exterior wall of the building or a total of 160 square feet per building per carrier. A maximum of four walls shall be occupied by antennas. The total area is the sum of the area of each individual antenna face and the visible portion of the antenna support structure and the equipment facility as viewed when looking directly at the face of the building. The total area for a roof-mounted antenna shall apply to the closest exterior wall. Up to three carriers may utilize each building side for a maximum of four sides as a permitted use.
(4)
Co-location. Co-location of antennas on an existing monopole is a permitted use provided the antennas do not extend more than 12 inches from the monopole and meet all the provisions as stated for landscaping, fencing and safety and equipment facilities.
(5)
Stealth Design. Telecommunications facilities that incorporate stealth design technology and are located on a parcel in a commercial, industrial, or professional office zone district or in a residential zone district containing a residential institutional use are a permitted use.
(6)
Conversion. Conversion of existing flagpoles, light standards, athletic field lights, or other similar structures, provided the structure's height is not increased more than ten feet or unless approved by the Community Development Director as provided for in modified site plan review as described in this title, are a permitted use.
(7)
Utility Pole Antennas. Utility pole antennas which comply with the following standards are permitted uses:
a.
Location. Utility pole antennas may only be located on existing utility poles.
b.
Method of Mounting. Such antennas shall be designed and installed by the applicant according to the City's specifications and details for utility poles.
c.
Agreement. Consistent with the use of public rights-of-way by other utility and cable providers, each telecommunication provider is required to enter into an agreement with the City prior to installing any telecommunication facilities in the rights-of-way. The Planning Commission shall review site plan conditions prior to the execution of the agreement.
(g)
Technical Necessity Exception/Conditional Uses.
(1)
If an applicant cannot meet the standards for telecommunications facilities as provided for in Subsection (f) of this section for technical reasons, an applicant may request a Technical Necessity Exception under the conditional use process from the Planning Commission. If an applicant cannot or will not meet those standards for reasons other than technical reasons, the use is not allowed.
(2)
Telecommunications facilities which meet the following standards, and it is determined by the Planning Commission that a Technical Necessity Exception is appropriate, are conditional uses:
a.
General Plan Compliance. Comply with the General Plan as well as the required setback, height, and landscaping requirements of the zoning district in which they are located.
b.
Technical Necessity. An applicant cannot meet the standards for telecommunication facilities as provided in Subsection (f) of this section for technical reasons.
c.
Antennas in Multifamily Zones. Wall mount antennas, roof mount antennas, and stealth applications on structures containing ten or more dwelling units and conversions are conditional uses which require a Technical Necessity Exception. Antennas on structures containing less than ten units are not allowed. The antennas and their related antenna support structures and equipment facilities must meet the design standards for each respective telecommunications facility as referenced in Subsection (f) of this section.
d.
Monopoles.
1.
Monopoles are not allowed in any zone within the City without a Technical Necessity Exception being granted by the Planning Commission. Following are the minimum standards for a monopole to qualify for a Technical Necessity Exception/conditional use. The Planning Commission may impose additional requirements pursuant to the conditional uses review standards in this title.
(i)
Independent Review. All applications requesting a monopole under the Technical Necessity Exception provision shall complete an independent radio frequency engineering review of the proposed monopole telecommunication facility in relation to the requested height, alternative locations, other proposed telecommunication facilities, and existing telecommunication facilities. The cost of the independent review shall be borne by the applicant.
(ii)
Antenna Sizing. The maximum visible width of antennas and antenna support structures on a monopole shall not exceed eight feet in height or three feet in width as viewed looking directly at the monopole at same elevation as the antennas and antenna support structure. Top hat design is not permitted.
(iii)
Location and Minimum Setbacks. Monopoles shall be allowed only in the rear yard area of any commercial or industrial lot which contains a commercial or industrial use or City property. These structures shall not be located in a required landscaped area, buffer area or required parking area. No such antenna shall be located within 165 feet of a residential property line. However, the Planning Commission may reduce the required setback from a residential property line if practical difficulties are demonstrated by the applicant (e.g., City park location, public buildings, etc.).
(iv)
Height Limit. Monopoles shall not project higher than ten feet above the average building height to a maximum of 60 feet or, if there are no buildings within 300 feet, these facilities shall not project higher than ten feet above the average tree canopy height to a maximum of 60 feet, measured from ground level.
(v)
Landscaping, Fencing and Safety. Monopoles shall, at minimum, be landscaped as per the requirements of the zoning district in which they are located. If there are no buildings immediately adjacent to the monopole and equipment facilities, all monopoles and equipment facilities shall be surrounded by dense tree growth to screen views of the facility in all directions. These trees may be existing on the subject property or planted on subject property. The Planning Commission may require additional landscaping or fencing as part of the site plan approval. The climbing pegs shall be removed from the lower 20 feet of the monopole.
2.
Exception. Monopoles may be allowed in PUD zones if the following conditions are met:
(i)
The PUD consists of at least 400 acres.
(ii)
The monopole and equipment facility are placed in an open space or common area within the PUD.
(iii)
The location must be in a mature landscape area to provide a screen and buffer. Alternatively, new landscaping must be provided around the proposed monopole or other types of screening that may be approved by the Planning Commission.
(iv)
Any proposed location, including all leased area for the wireless facility, will no longer be considered open space. Therefore, any proposed location must not reduce the open space below the minimum acreage for the development.
(v)
The monopole and equipment facility must utilize stealth technology.
(vi)
The monopole shall not project higher than ten feet above the average building height or average tree canopy up to a maximum of 45 feet. The Planning Commission may increase the height beyond ten feet above the tree canopy if it is determined that this will aid on compliance with stealth requirements. To provide for additional carriers, clustering of multiple poles of varying heights is encouraged.
(vii)
No antenna shall be located within 165 feet of a residential property line or residence. However, the Planning Commission may reduce the required setback from a residential property line or residence if the applicant demonstrates that the proposed facility would follow the City's standards for stealth applications more closely or if they can demonstrate other practical difficulties.
(viii)
The applicant must demonstrate a technical need (explained in simple terms) for the proposed monopole.
e.
Resubmittal of facilities. The applicant shall re-submit each telecommunication facility which has been granted a Technical Necessity Exception/conditional use for review seven years to a maximum of ten years from final approval as established by the Planning Commission. At the time of this review, the applicant shall provide information to show that the telecommunications facility is still necessary at the approved location, employs the most current available technological advances, and has been in compliance with all the requirements established by this section and the Planning Commission.
f.
Additional information required. In addition to conditional use standards outlined in this title for conditional uses, the information concerning the following shall be submitted by the applicant and considered by the Planning Commission for all Technical Necessity Exception requests:
1.
Compatibility of the proposed telecommunications facilities with the height and mass of existing buildings and utility structures.
2.
Whether it is possible to locate the antenna on other existing structures with less aesthetic impact in the same vicinity such as other monopoles, buildings, utility poles, athletic field lights, parking lot lights, etc., without significantly impacting transmission or reception.
3.
The location of the telecommunications facilities in relation to existing vegetation, topography, and buildings to obtain the best visual screening.
4.
Whether the spacing between the proposed and existing telecommunications facilities creates detrimental impacts to adjoining properties.
5.
Substantial existing or proposed landscaping, including tree cover, to reduce visibility of telecommunications facilities.
6.
Whether the telecommunications facility complies with the General Plan, as well as the required setback, height, and landscaping requirements of the zoning district in which the telecommunications facility is proposed to be located and whether it complies with provisions as stated in Chapter 21-32, including modifications to existing site plans.
(h)
Equipment Facilities. All equipment facilities shall be located in an existing building or designed whereby the incorporation of stealth design technology or other screening is utilized that readily conceals the appearance of the equipment facility. All power lines on the lot leading to the telecommunication facility shall be underground. If the Planning Commission does not require the applicant to place the equipment facility underground or utilize stealth design technology, then the telecommunications facility shall be fenced with a six-foot vinyl coated chainlink fence or other fencing and landscaping as approved or required by the Planning Commission.
(i)
Historic Districts. Any telecommunications facility proposed for a location within a historic district or on a landmark site must be reviewed by the Planning Commission.
(j)
Non-Allowed Uses. The following telecommunications facilities are not allowed in any zone district:
(1)
Lattice towers.
(2)
Whip antennas on wall-mounted support structures.
(3)
Any telecommunications facility not specifically listed in Subsection (f) of this section or not in compliance with the requirements for a Technical Necessity Exception/Conditional Use.
(k)
Non-Maintained or Abandoned Facilities.
(1)
The Director may require each non-maintained or abandoned telecommunication facility to be removed when such a telecommunications facility has not been repaired or put into use by the owner, person having control or person receiving benefit of such structure within 30 calendar days after notice of non-maintenance or abandonment is given to the owner, person having control, or person receiving the benefit of such structure.
(2)
If the structure upon which the antenna is placed, including, but not limited to, utility poles, water tanks, light poles or buildings, is no longer used or is proposed by the owner or operator of that structure to be removed or replaced, the antenna must be removed within 90 calendar days after notice from the City. Any replacement telecommunication facility, if necessary, is required to comply with the requirements herein or any subsequent amendment hereto.
(l)
Building Permits. Prior to the construction of any telecommunications facility, the applicant shall obtain the proper building permits, road cut permits, and other permits as required by this Code.
(m)
Wireless Telecommunications Facilities Illustrations. The following illustrations are referred to in this section. They are meant to demonstrate graphically the intent of the Section:
(LDC 2008, § 15A-11-24; Ord. No. 10-44, 12-14-2010; Ord. No. 23-08, § 1(Exh. A), 7-18-2023)
State Law reference— Regulation of amateur radio antennas, U.C.A. 1953, § 10-9a-515.
(a)
General Scope. This section and not Section 21-11-24 shall apply to the construction, modification, removal and operation of small wireless communications facilities (SWFs) installed in the public right-of-way (ROW). All references to SWFs in this chapter shall refer only to SWFs in the ROW and not SWFs located anywhere outside of the ROW. No person shall install, construct, modify, or otherwise place any SWF within the public right-of-way except pursuant to the provisions of this section. The definitions used in this section are found in Chapter 21-37.
(b)
Purpose.
(1)
The purpose of this section is to reasonably regulate, to the extent permitted by Utah and Federal law, the installation, operation, collocation, modification and removal of SWFs in the City of Sandy in a manner that protects and promotes public health, safety and welfare, and balances the benefits that flow from robust personal wireless services with the unique and historic character, aesthetics and local values of the City. This section is intended to meet the following goals, to the extent not inconsistent with applicable Federal and State law:
a.
Promote and protect the public health, safety, and welfare by reducing the visibility of SWFs to the fullest extent possible, including, but not limited to the following method: camouflage or stealth concealment, design techniques and placing SWFs and related accessory equipment, which is not placed on or in the utility pole, underground, except equipment which cannot be placed underground if the SWF is to function properly.
b.
Provide for the managed development and installation, maintenance, modification, and removal of wireless communication infrastructure in the City with the fewest number of SWFs needed to provide cell service, in a nondiscriminatory manner.
c.
Encourage the deployment of smaller, less intrusive SWFs to supplement existing larger macro-cell sites.
d.
Encourage the deployment of SWFs primarily along major and minor arterials, and major and minor collectors, and limit the deployment of new utility poles along local streets and residential districts where the streets are 60 feet wide or narrower, and new poles and SWFs in historic districts, and design districts where they are discouraged or not allowed.
e.
Encourage the location of SWFs in nonresidential areas, in a manner that minimizes the total number of SWF support poles needed throughout the City.
f.
Encourage the location of SWFs to utilize existing right-of-way corridors, and encourage SWFs to be installed at street intersections. Encourage collocation of SWFs on new and existing sites.
g.
Encourage the location of SWFs, to the extent economically and technically feasible, at places and in areas where the adverse visual impact on the community is minimized.
h.
Enhance the ability of wireless service providers to provide services to the community quickly, effectively, and efficiently.
i.
Effectively manage SWFs in the ROW.
j.
Nothing herein is intended to waive or limit the City's right to enforce or condition approval on compliance with generally applicable building, structural, electrical, and safety codes and with other laws codifying objective standards reasonably related to public health and safety.
k.
Provide for the nondiscriminatory use of the right-of-way.
(2)
This section does not intend, and shall not be interpreted or applied to:
a.
Prohibit or effectively prohibit personal wireless services; or
b.
Unreasonably discriminate among wireless service providers of functionally equivalent personal wireless services; or
c.
Regulate the installation, operation, collocation, modification or removal of SWFs on the basis of the environmental effects of RF emissions to the extent that such emissions comply with all applicable FCC regulations; or
d.
Prohibit or effectively prohibit any collocation or modification that the City may not deny under Utah or Federal law; or
e.
Preempt or conflict with any applicable Utah or Federal law.
(c)
Applicant, Permit. Any person seeking to locate or modify a SWF or utility pole in the ROW shall, except as otherwise provided herein, first submit an application, and in historic and design districts, obtain a permit under this section, and shall provide to the City on an application form provided by or acceptable to the City information sufficient, in the City's reasonable discretion, to enable the City to make an informed determination regarding such permit. Fees for permits will be established by the Sandy City Council.
(1)
Exceptions to Permitting.
a.
Wireless service providers are not required to submit an application, obtain a permit, or pay a fee for the following activities, but shall provide not less than ten days' notice to the City Public Works and Public Utilities Departments of such activities:
1.
Routine maintenance;
2.
The replacement of a small wireless facility with a small wireless facility that is substantially similar or smaller in size;
3.
The installation, placement, maintenance, operation, or replacement of a micro wireless facility that is strung on a cable between existing utility poles, in compliance with the National Electrical Safety Code; or
4.
Any other installation or activity otherwise allowed by superseding law.
b.
A wireless service provider shall obtain a permit for work that requires excavation or cutting of any road, sidewalk or other surface or closing of sidewalks or vehicular lanes in the right-of-way. The City shall process and approve the permit within the same time period the City processes and approves a permit for all other types of entities.
(2)
Lessees to Comply with this Section. Applicants who enter into lease or license agreements with the City to locate, modify or collocate SWFs on City-owned light, sign, traffic signal or other poles shall be required in those instruments to comply with the provisions of this section, except as specifically negotiated and clearly stated in the written instrument otherwise.
(3)
Compliance. All persons subject to this section shall:
a.
At all times comply with all applicable statutes, laws, ordinances, and policies;
b.
Upon reasonable request, timely provide written confirmation sufficient for customary land survey purposes concerning location of SWFs;
c.
Upon reasonable request, timely provide the City with accurate as-built maps and plans certifying location of SWFs in paper copies and GIS-layer ESRI format (shape file or geographic database) with data about the physical aspects of each SWF required by the City, including but not limited to height of the SWF, range of transmission, type of transmission (cellular, voice, data, Wi-Fi, etc.), nature of the pole or support, permittee of the pole or support, and similar information;
d.
Upon request, timely make available to the City, books, records, maps and other documents maintained with respect to SWFs for inspection at reasonable times and places;
e.
Pay all applicable fees required by the City.
(4)
Subject to Superseding Federal and State Law. The provisions of this section shall be subject to and superseded by conflicting applicable Federal or State law now in force or hereafter enacted.
(d)
Operational Standards.
(1)
Federal and State Requirements. All SWFs shall meet the current standards and regulations of the United States Federal Aviation Administration (FAA), the Federal Communications Commission (FCC), and any other agency of the Federal and Utah State governments with the authority to regulate SWFs. If such standards and regulations are changed, then the permittees shall bring such facilities into compliance with such revised standards and regulations within the time period mandated by the controlling Federal or State agency. Failure to meet such revised standards and regulations shall constitute grounds for the removal of the SWF facility at the permittee's expense.
(2)
Radio Frequency Standards. If concerns or complaints regarding compliance with radio frequency emissions standards for a SWF have been communicated to the City, the City may request that the permittee provide information demonstrating compliance which the permittee shall promptly provide. If such information is not sufficient, in the reasonable discretion of the City, to demonstrate compliance, the City may request, and the permittee of the SWF shall submit a project implementation report which provides cumulative field measurements of radio frequency emissions of all antennas installed at the subject site, and which compares the results with established Federal standards. If, upon review, the City finds that the SWF does not meet Federal standards, the City may require corrective action within a reasonable period of time, and if not corrected, may require removal of the SWF at the permittee's expense. Any reasonable costs incurred by the City, including reasonable consulting costs needed in the Director's discretion, to verify compliance with these requirements, shall be paid by the permittee.
(3)
Signal Interference. All SWFs shall be designed and sited so as not to cause interference with the normal operation of radio, television, telephone, other SWFs, and other communication services utilized by nearby residential and nonresidential properties. SWFs shall not interfere with any public safety communications except with the written approval of the public safety agency whose communications are so affected. The applicant shall provide a written statement from a qualified radio frequency engineer certifying that a technical evaluation of existing and proposed SWFs indicates no potential interference problems with the communications referred to just above. The permittee of the SWF shall allow the City to monitor interference levels with public safety communications during this process. In addition, the permittee of a SWF shall notify the City at least 14 calendar days prior to the introduction of new personal wireless service of changes in existing personal wireless service, and shall allow the City to monitor interference levels with public safety or other communications during the testing process. The permittee shall not begin new service or change service of the SWF until the City has notified the permittee that the SWF is acceptable, or the expiration of the 14 days, whichever occurs first.
(4)
Operation and Maintenance. To ensure the structural integrity of SWFs and the support poles on which they are mounted, the permittee of a SWF shall ensure that it is maintained in compliance with standards contained in applicable local building and safety codes, State of Utah Blue-Stakes laws, and with the City's Standard Specifications and Details for Municipal Construction as most recently promulgated. If upon inspection, or upon other reliable evidence, the City concludes that a SWF support pole or SWF fails to comply with such codes or constitutes a danger to persons or property, then, upon written notice being provided to the permittee of the SWF, the permittee shall have 30 days from the date of notice to demonstrate that the SWF or support pole is structurally sound and safe, or to bring such SWF into compliance. Upon good cause shown by the permittee, the City may extend such compliance period not to exceed 90 days from the date of said notice. If the permittee fails to bring such SWF into compliance within said time period, and fails to remove the SWF, then the City may remove such SWF at the permittee's expense. The City may, in its discretion, require an industry-standard pole load analysis be completed and submitted to an authority indicating that the utility pole, to which the SWF is to be attached, will safely support the load.
(5)
Abandonment and Removal. If a SWF has not been in use for a period of three months, the permittee of the SWF shall notify the City of the non-use, and shall indicate whether re-use is expected within the ensuing three months. Any SWF that is not operated for a continuous period of six months shall be considered abandoned. The City, in its sole discretion, may require that an abandoned SWF be removed. The permittee of such SWF shall remove the same within 30 days of receipt of written notice from the City. If such SWF is not removed within said 30 days, the City may remove it at the permittee's expense, and any approved permits for the SWF shall be deemed to have expired.
(6)
Hazardous Materials.
a.
No permittee and no agent or subcontractor of a permittee shall use, store or release hazardous materials in, on, about or from any SWFs or any property on which any SWF is located, except those necessary for the operations of the SWF, and only in accordance with all applicable laws governing such materials. No permittee and no agent or subcontractor of a permittee shall store, generate, release or dispose of hazardous materials in or on any SWFs or any City property without the prior signed written consent of the City's mayor or chief administrative officer, and only if such writing clearly allows such storage, generation, release or disposal of hazardous materials.
b.
If a permittee discovers that any spill, leak or release of any quantity of hazardous materials has occurred on, in or under any SWF, the permittee shall promptly notify all appropriate governmental agencies and the City. In the event such release is caused by the permittee, a lessee or permittee, their officers, employees agents or subcontractors, the permittee shall (or shall cause others to) unless otherwise directed by the City, promptly and fully investigate, clean up, remediate and remove all such hazardous materials as may remain and so much of any portion of the environment as shall have become contaminated, all in accordance with applicable government requirements, and a plan approved by the City, and shall replace any removed portion of the environment (such as soil) with uncontaminated material of the same or better character as existed prior to contamination.
(e)
Applications and Submissions. No SWF shall be collocated, and no new, modified, or replacement SWF support pole associated with a SWF may be placed in the right-of-way, and no initial location, collocation, or modification constituting a substantial change to any SWF may occur except upon the issuance of a permit after submission of a written application from an applicant, reviewed and approved by the City in accordance with this section. Permits issued hereunder shall be of general applicability. A SWF on a wire strung between poles does not require a permit or application. All SWFs shall be reviewed pursuant to the following procedures:
(1)
Pre-Submittal Meeting. Before first application submittal, applicants shall schedule and attend a pre-submittal consultation meeting with City staff for all facilities intended for installation in the public right-of-way, unless waived by the Director or his designee because the City determines that it already has sufficient information about an applicant's proposed facilities, or because the proposed facilities are expected to have little impact on the City. City staff will endeavor to provide applicants an appointment within 15 working days after a written request for an appointment is received.
(2)
Twenty-Five Permits Per Application. A consolidated application may be submitted for the collocation of no more than 25 SWFs if all of the SWFs are substantially of the same type and proposed for collocation on substantially the same type of structures, or at the applicant's discretion, an applicant may file a consolidated application for the installation, modification or replacement of up to 25 utility poles in the ROW. An applicant may file no more than three consolidated applications within any 30-day period or multiple applications for more than 75 utility poles or SWFs within any 30-day period. A consolidated application may not combine applications solely for collocation of SWFs on existing utility poles with applications for the installation, modification, or replacement of a utility pole. If the City denies the application for one or more utility poles or SWFs in a consolidated application, the City may not use the denial as a basis to delay the application process of any other utility pole or small wireless facility in the same consolidated application.
(3)
Submittal Requirements. In addition to an application form signed by an authorized official or employee of an applicant, signal interference letter, and required submittal fees, each applicant shall submit the following documents in a form acceptable to the City:
a.
An accurately scaled site plan of all of applicant's SWFs and wireless facility support poles within one mile of the facility to be installed; such site plan shall be submitted in paper and GIS-layer ESRI format (shape file or geographic database) with data about the physical aspects of each SWF required by the City, including but not limited to height and dimensions of the SWF, range of transmission, type of transmission (cellular, voice, data, Wi-Fi, etc.), nature of the pole or support, permittee, owner and operator of the pole or support, and similar information;
b.
Accurate photo simulation of all proposed aboveground SWFs, collocations, and modifications of existing SWFs;
c.
A scaled elevation view and other supporting accurate drawings, calculations, and other documentation of the proposed SWF and support pole for it;
d.
If required by the City, documentation showing the financial and technical ability and legal capacity of the applicant to perform the work requested, and to operate and maintain the SWFs for longer than one year;
e.
Letters, agreements, or other documents showing permissions to locate SWFs on the poles or in facilities of the City or other permittees, and if an applicant places SWFs or related accessory equipment on City poles, then it shall have an executed signed master license agreement with the City, and a pole attachment permit or agreement from the City for each City pole;
f.
Letters, reports or memoranda signed by appropriate qualified professionals where required by the City, showing the location and dimension of all improvements, including information concerning topography, radio frequency coverage, pole height, setbacks, drives, parking, fencing, landscaping, adjacent uses, drainage, and other information deemed by the Director to be necessary to assess compliance with this section;
g.
Submission of evidence of required licenses and registrations from Federal and State regulatory bodies, including the Federal Communications Commission, necessary for the services to be provided; and
h.
A franchise from the City allowing the wireless provider to operate in the right-of-way if it does not already have a fiber-optic franchise from the City.
(4)
Other Information. Each applicant for a SWF permit or for the erection of a utility pole in the ROW shall provide to the Director, unless waived by the Director, the following information and documents:
a.
The business form of the person making the application.
b.
If the applicant is a partnership or limited partnership, the names and addresses of all such partners and their respective interests; if a corporation, the names and addresses of the officers and directors of the corporation and the names of any persons holding more than ten percent of the common and preferred stock of the company, together with their proportionate interests indicated.
c.
A proposed plan for the installation, operation and maintenance of the applicant's communications system indicating methods of construction, including specifications for design, installation, technical capacity and maintenance, and arrangements with any other company or person for use of poles or other facilities.
d.
The most current financial statement of the applicant.
e.
The applicant's experience in the field of service it plans to provide in the City.
f.
The applicant's capability to provide cellular service, if reasonably in question.
g.
The applicant's agreement to pay the fees and rates for use of the right-of-way provided in this section.
h.
An attestation by an authorized officer of the applicant that the SWF will be operational for use by a wireless service provider within 270 days after the day on which the City issues the permit except in the case that the lack of commercial power or communications transport infrastructure to the site delays completion, or for other good cause reasonably beyond the control of the provider approved by the Director.
i.
The Community Development Department may share information on the location of SWFs and wireless communication support poles with other applicants applying for administrative approvals or permits under this section, or other organizations seeking to locate SWFs within the City, provided that doing so does not violate any records confidentiality requirements of U.C.A. 1953, § 63G-2-305, and provided, however, that the Community Development Department is not, by sharing such information, in any way representing or warranting that such sites are available or suitable, or that the information provided by an applicant is correct.
(5)
Applications for New and Modified or Replacement Poles. Each application to erect a new, modified or replacement wireless communications pole in the right-of-way shall be reviewed by the Director or his designee for conformance to this section and the Land Development Code using the Site Plan review procedures set forth in the Land Development Code. Should the Director determine that the proposed pole or SWF will have a significant adverse visual impact, (e.g., due to proximity to historic or aesthetically significant structures, views, and/or community features) or otherwise be incompatible with the surrounding area the Director may deny the application or refer the application to the Telecommunications Review Group for a recommendation. A wireless service provider may replace or upgrade a utility pole only with the written approval of the utility pole's owner.
(6)
Power and Fiber-Optic Connections. With all applications for SWFs, each applicant shall provide written documentation from the wireless communications pole or SWF permittee affirming that an agreement has been reached with the applicant to allow for legal access to and from the pole or facility. The City may require evidence that agreement has been reached for the legal provision of needed services with Rocky Mountain Power or other lawful electricity provider for electricity and other providers of facilities (such as fiber-optic service) needed to operate and maintain the SWF.
(f)
Time Frame for Review.
(1)
Subject to the tolling provisions of Subsection (f)(2) of this section, within 30 days of the date on which an applicant submits an application seeking collocation of a SWF or for a new, modified, or replacement utility pole, the City shall determine whether the application is complete, and notify the applicant that the City's determination of whether the application is complete.
(2)
If the City determines, within the applicable time period described in Subsection (f)(1) of this section, that an application is incomplete, the City shall specifically identify the missing information in the written notification sent to the applicant; and the processing deadline for the application is tolled from the day on which the City sends the applicant the written notice to the day on which the City receives the applicant's missing information; or as the applicant and the City agree.
(3)
An application for a SWF expires if:
a.
The City notifies the wireless service provider that the wireless provider's application is incomplete, in accordance with this section; and
b.
The wireless service provider fails to respond within 90 days after the day on which the City notifies the wireless service provider under this section.
(4)
The City shall process an application on a nondiscriminatory basis and approve or deny an application:
a.
For the collocation of a SWF, within 60 days after the day on which the City receives the complete application; and
b.
For a new, modified, or replacement utility pole, within 105 days after the day on which the City receives the complete application.
If the City fails to approve or deny an application within the applicable time period described in Subsection (f)(4)a or b of this section, the application is approved. Notwithstanding Subsection (f)(4)a and b of this section, the City may extend the applicable period described in Subsection (f)(4)a or b of this section for a single additional period of ten business days, if the City notifies the applicant before the day on which approval or denial is originally due. If the City denies an application it shall document the basis for the denial, including any specific law on which the denial is based; and shall send such documentation to the applicant on or before the day on which the City denies the application.
(g)
Compliance with Applicable Law.
(1)
Notwithstanding the approval of an application for collocation or non-substantial modification as described herein, all work done pursuant to permits issued hereunder must be completed in accordance with all applicable building and safety requirements as set forth in this Code, the Land Development Code, the site plan approval (if applicable), and all other applicable regulations. In addition, all SWFs shall be operated and maintained in compliance with the following requirements:
a.
They shall comply with all applicable permits or licenses issued by a local, State or Federal government agency with jurisdiction over the SWF;
b.
They shall comply with license or lease agreements, easements, covenants, conditions and/or restrictions on or applicable to the underlying real property;
c.
They shall be maintained in good working condition and to the standards established at the time of application approval, or as required by then-current Federal or State law; and
d.
They and the areas around them shall remain free from trash, debris, litter, graffiti, and other forms of waste and vandalism. Any graffiti shall be promptly removed or painted over, and any damage shall be repaired as soon as practicable after a permit is granted by the City, when required, and in no instance more than ten calendar days from the time of notification by the City or after discovery by the permittee of the SWF.
(2)
Compliance Report. Upon request by the City, the applicant shall provide a compliance report within 45 days after installation of a SWF, demonstrating that as installed and in operation, the SWF complies with all conditions of approval, applicable City ordinances and applicable regulations.
(h)
Permit and Renewal Term. Any validly issued permit for a SWF or utility pole will automatically expire at 12:01 a.m. local time exactly ten years and one day from the issuance date. If there is no basis for denial, an authority shall grant the renewal of an application under this section for an equivalent duration. No renewal shall be valid unless all of a wireless provider's SWFs and related wireless communication facilities fully comply with this section, Utah State Code, and City ordinances.
(i)
Siting, Design, Stealth Implementation.
(1)
Siting and Design. SWFs and related facilities shall meet the requirements of this section unless the applicant can clearly show and the Director finds that such requirements are not technically and economically feasible for the applicant.
(2)
Stealth Implementation. Construction of SWFs must utilize stealth implementation meeting the provisions of this section if such camouflage measures are technically and economically feasible consistent with Utah law. A SWF or a supporting pole employs stealth design or implementation when it:
a.
Is integrated harmoniously into an outdoor fixture such as a light pole, in a manner which minimizes or eliminates visual impact, avoids notice, or is not readily apparent; or
b.
Uses design which mimics and is consistent with the nearby natural or architectural features or replaces existing facilities so that the presence of the SWF is not readily apparent.
Stealth implementation includes the following methods of implementation, which shall be required of all SWFs and related facilities which are placed in the right-of-way. All SWFs and supporting poles on which they are mounted shall comply with the following requirements, subject to the exceptions in this section, or technical necessity exceptions found in Chapter 21-11 pertaining to special use standards.
(3)
Height of the Combined Pole and Antenna. For all new facilities and substantial modifications to existing facilities, height of the combined pole and antenna, including after a change or collocation under Section 6409(a) of the Middle Class Tax Relief and Job Creation Act of 1996, except as otherwise required by Section 6409(a), as measured from the base of the pole at ground level (including any concrete or other support) will, except in respect to poles legally erected before the effective date of the ordinance from which this section is derived, be limited to 50 feet in height for City streets which are not residential streets, and major and minor arterial streets, although the City encourages poles no higher than 30 feet on major and minor arterials, and not more than 20 feet on local streets. An antenna associated with a SWF may not extend more than ten feet above the top of a utility pole existing on or before September 1, 2018. The height restrictions may be exceeded only with a technical necessity exception provided and paid for by the applicant. The height will be reviewed by the Telecommunications Review Group and approved or denied by the Director. SWFs shall be located no closer to the nearest building than the combined height of the pole and antenna.
(4)
Antennas. No antenna shall be taller than ten feet above the top of the wireless communications pole or pole extender on which it is mounted except as otherwise allowed by U.C.A. 1953, § 54-21-602.
(5)
Power to Pole. Power to the SWF support pole must come through the base of the pole.
(6)
Use Existing Poles. Wireless service providers of SWFs are encouraged, to the extent practicable, to use existing utility poles and other infrastructure, including street signs, light poles, traffic lights, and other similar infrastructure.
(7)
Invisibility of Seams, Bolts, Wires, Cables, Assemblies. Seams, bolts/screws, antennas, wires, cables, and conduits and shroud assembly shall be fabricated and installed in a manner so as to reduce visibility. Wires and cables which cannot be placed inside a pole shall be placed in conduits which are as inconspicuous as is commercially feasible.
(8)
Wireless Facility Poles; Construction and Finish. To the extent technically and economically feasible, wireless facility poles installed by a wireless service provider shall be constructed of metal or a material, which when painted or otherwise finished, looks like metal, such as fiberglass, and shall match nearby existing City light poles in appearance. New wood poles will not be allowed. Antennas and all related accessory equipment, including mounting mechanisms, must be painted and repainted to match the pole.
(9)
Decorative Poles. If necessary to collocate a SWF, a wireless service provider may replace a decorative pole, if the replacement pole reasonably conforms to the appearance of the replaced decorative pole.
(10)
Sharing of Poles Encouraged. Sharing of wireless communication poles and utility poles is encouraged for all SWFs where feasible.
(11)
Street Intersection Preference. Wireless service providers are encouraged to locate SWFs where feasible at or near the corners of street intersections.
(12)
No Extension into Traveled ROW. Except for a traffic signal pole, City light pole or City light fixture, no portion of any SWF or its supporting pole shall extend into portion of the right-of-way or any public sidewalk intended for travel by vehicles or pedestrians, nor shall any SWF be placed in the median of any street.
(13)
New and Replacement Poles Designed for Collocation. New and replacement wireless communication poles shall match nearby existing City light poles, and shall be designed and constructed to permit the pole or other support facility to accommodate SWFs from at least two wireless service providers on the same pole, unless the Director approves an alternative design, or unless the applicant clearly demonstrates that doing so is not practically feasible. Collocation of SWFs shall be allowed by the permittees of SWFs except where impracticable or otherwise illegal. A permittee which installs a new pole or a pole replacing a City-owned pole shall be responsible for the maintenance of the pole at its expense, but the City shall be allowed to maintain any lights, traffic semaphores, or other City-owned equipment on the pole at the City's expense. The City will own the new pole.
(14)
Pole Extender. A pole extender may be used instead of replacing an existing pole, provided the pole extender is safe, structurally sound and can otherwise meet the requirements of this section, unless a further height increase is required and confirmed in writing by the pole owner, and that such height increase is the minimum extension possible to provide sufficient separation and/or clearance from electrical and wireline facilities and does not extend the total height of the pole, with the pole extender, more than 50 feet. The pole extender shall be painted or finished to substantially match the color of the pole and the diameter of the pole measured at the top of the pole. A "pole extender" as used herein is a structure affixed between the utility pole and the antenna for the purpose of increasing the height of the antenna above the pole.
(15)
Pole-Mounted Equipment. All pole-mounted equipment and antennas must be installed as close to the pole horizontally as technically and economically feasible and enclosed in a container approved by the Director as technically and economically feasible, but no larger than six cubic feet in volume for an antenna, and no larger than 28 cubic feet for all wireless equipment, including the antenna and ground- and pole-mounted equipment; to minimize impacts to the visual profile, be painted flat and nonreflective colors to match the supporting pole, placed behind existing signs, and oriented away from prominent views; all required or permitted signage in the right-of-way must face toward the street or otherwise be placed to minimize visibility from adjacent sidewalks and structures; and all conduits, conduit attachments, cables, wires and other connectors must be concealed from public view to the extent feasible. To the extent reasonably feasible, each SWF shall be consistent with the size and shape of the pole-mounted equipment installed by communications companies on utility poles on the same pole and near the proposed SWF.
(16)
Aesthetic Impacts. Each SWF shall be sited and maintained to minimize the negative aesthetic impacts to the right-of-way.
(17)
Traffic Signals. Each SWF shall be designed such that antenna installations on traffic signal poles are placed in a manner so that the size and appearance of the signal will not be significantly altered, and so that there will be no alteration in the function of the signal.
(18)
Visual Clutter. To the extent technically and economically feasible each SWF shall be designed and maintained such that all antennas, mast arms, related accessory equipment, and other facilities and elements are sized to minimize visual clutter.
(19)
Newly Installed Equipment Boxes and Underground Equipment. All newly installed equipment boxes and related accessory equipment shall be located in a manner that poses no significant risk to public safety and such that boxes and equipment meet the aesthetic requirements of this section, and if such equipment is not installed on or in a pole, then it shall be installed in a flush-to-grade or underground equipment vault whenever all cable and utility facilities, other than City poles and attachments, are so placed.
(20)
Interference of SWFs. No SWF shall alter vehicular circulation, usual travel, public safety or parking within the right-of-way or impede vehicular, bicycle, or pedestrian access or visibility along the right-of-way. No SWF may be located or maintained in a manner that causes unreasonable interference. The term "unreasonable interference" means any use of the right-of-way that disrupts or interferes with its use by the City or operation of City improvements, use by the general public, or other person authorized to use or be present upon the right-of-way, when there exists an alternative that would result in less disruption or interference. Unreasonable interference includes any use of the right-of-way that disrupts vehicular or pedestrian traffic, any interference with public utilities, and any other activity that will present a hazard to public health, safety, or welfare. In addition, no SWF or utility pole may obstruct, damage, or interfere with: another utility facility in a right-of-way; or a utility's use of the utility's facility in a right-of-way.
(21)
Relocation. Wireless service providers are encouraged to locate or relocate SWFs and wireless communication poles concurrently with other users of the right-of-way in order to minimize disruption. Wires and communication cables serving SWFs shall be installed within existing underground ducts or conduit where feasible.
(22)
Relocation at City Request. After adequate written notice to a wireless service provider, the Public Works Director may require a wireless service provider, at the wireless service provider's sole expense and in accordance with the standards in this chapter applicable to such facility, to relocate a facility in the right-of-way in a timely manner as the City deems necessary to maintain or reconfigure the right-of-way for other public projects or take any actions necessary to protect public health, safety and welfare.
(23)
Signs, Advertising. No SWF may display any signage or advertisements unless expressly allowed by the City in a written approval, recommended under FCC regulations or required by law or permit condition. Every SWF shall at all times display signage that accurately identifies the facility owner and provides the facility owner's unique site number, and also provides a local or toll-free telephone number and street address to contact the facility owner's operations center. Such identifying signs shall be less than three by five inches in size with letters between ten and 14 points in size, and shall be clearly visible and readable.
(24)
Historic and Design Districts. An applicant shall obtain a permit before collocating a pole or a SWF in a historic or design district. Such poles and SWFs shall meet the pole-height and stealth requirements of this section, and shall match, as closely as economically and technically feasible, the closest City light poles in the zone where located.
(j)
Technical Necessity Exceptions. If an applicant cannot meet the requirements of stealth design in this section because of engineering or technological incapability or substantial implacability ("technical reasons"), an applicant may apply for a technical necessity exception, which may be granted by the Director after receiving a recommendation from the Telecommunications Facilities Group, provided that even where a technical necessity exception is allowed, the applicant shall, to the extent it can, meet the requirements of this section. If an applicant cannot or will not meet those standards for reasons other than technical reasons, the use is not allowed.
(1)
New Poles and SWFs in Residential Districts. No new utility poles or SWFs shall be permitted in a public right-of-way which is not more than 60 feet wide as depicted in the official plat records and adjacent to single-family residential lots, other multi-family residences, or undeveloped land that is designated for residential use by zoning or deed restrictions unless the applicant demonstrates to the reasonable satisfaction of the City's Director or Telecommunications Review Group that without such utility pole the applicant will be unable to will not meet the applicant's reasonable wireless communication needs and qualifies for a technical necessity exception under this chapter. Evidence submitted with the application for the technical necessity exception may consist of, but shall not be limited to, the following things:
a.
No existing poles with a suitable height are located within the geographic area required to meet the applicant's engineering requirements even if applicant increases the number of existing poles and antennas it uses;
b.
Existing poles do not have sufficient structural strength to support applicant's proposed SWF;
c.
The applicant's proposed SWFs would cause electromagnetic interference with the SWFs on the existing SWFs or the existing SWF would cause interference with the applicant's proposed SWF;
d.
The applicant demonstrates that there are other limiting factors that render existing poles, cabinets and other SWFs on or in which applicant might collocate unsuitable for collocation; and
e.
Any poles erected anywhere other than at the intersections of streets shall be centered between trees where practicable, but shall be no closer than ten feet from any tree in the ROW.
(2)
Independent Consultant Review.
a.
The City Council authorizes the Community Development Director to, in his or her discretion, select and retain an independent consultant with expertise in telecommunications satisfactory to the Community Development Director in connection with any permit application.
b.
The Community Development Director may request independent consultant review on any issue that involves specialized or expert knowledge in connection with the permit application. Such issues may include, but are not limited to: Permit application completeness or accuracy; planned compliance with applicable RF exposure standards; whether and where a significant gap exists or may exist, and whether such a gap relates to service coverage or service capacity; whether technically feasible and potentially available alternative locations and designs exist; the applicability, reliability and/or sufficiency of analyses or methodologies used by the applicant to reach conclusions about any issue within this scope; and any other issue that requires expert or specialized knowledge identified by the Community Development Director.
c.
The applicant must pay for the cost of such review and for the technical consultant's initial testimony as requested by the Director, and must provide a reasonable advance deposit of the estimated cost of such review with the City prior to the commencement of any work by the technical consultant. The applicant must provide an additional advance deposit to cover the consultant's testimony and expenses at any meeting where that testimony is requested by the Community Development Director. Where the advance deposits are insufficient to pay for the cost of such review and/or testimony, the Director shall invoice the applicant who shall pay the invoice in full within ten calendar days after receipt of the invoice. No permit shall issue to an applicant where that applicant has not timely paid a required fee. The Director has the discretion to hold a public hearing in deciding matters under this section.
(k)
Performance Bonds. Each wireless service provider shall provide to the City and shall maintain for the period it has SWFs in the City's ROW a bond to assure the performance of its obligations under this section with a company with an A.M. Best's rating of B+ or better in an amount of 140 percent of the City's reasonable estimated cost of removal of the facilities to be installed or constructed by applicant. The City may require that the amount of the surety bond be increased if the City reasonably believes that the amount of the bond is insufficient to cover the City's cost of removal of a wireless service provider's facilities or support poles, or if the wireless service provider increases the number such poles or facilities. If the wireless service provider fails to perform its obligations under this chapter in any respect, including making any payment to the City required by this agreement or by applicable law for reimbursable costs incurred by the City, the City may, after 30 days' written notice to the wireless service provider, if the obligation is not performed by the wireless service provider, withdraw or make a claim for that amount from the security fund.
(l)
Related Accessory Equipment. Related accessory equipment for all SWFs shall meet the following requirements: All shall be placed on or inside of poles where they meet stealth requirements, or placed underground or flush-mounted to ground level consistent with U.C.A. 1953, § 54-21-207. Cabinets and other accessory components which cannot feasibly be placed underground shall be grouped as closely as reasonably possible and camouflaged to the extent reasonably possible unless otherwise approved by the Director; the total footprint on or under the ground of the SWF shall not exceed six square feet; and no SWF or related accessory equipment shall exceed 30 feet in height, unless placed on or inside of poles.
(1)
Lighting. SWFs shall not be artificially lit, unless required by the FAA or other applicable governmental authority, except in cases in which the SWF is mounted on a light pole or other similar structure primarily used for lighting purposes. If lighting is required, it must be approved by the Director. The City may review the available lighting alternatives and approve the design that would cause the least disturbance to the nearby properties and surrounding views. Lighting shall be shielded or directed to the greatest extent possible so as to minimize the amount of glare and light falling onto nearby properties, particularly residences. No visible flashing indicator lights or similar devices will be allowed in the right-of-way, unless part of existing light poles where lighting is an intended use, and unless such flashing lights or similar devices are part of the City's normal lighting program for such facilities, unless otherwise approved by the Director for good cause.
(2)
Noise. Noise generated at the site of a SWF must not exceed the levels permitted by City or Salt Lake County ordinances, except that a SWF permittee may, when necessary, exceed such standards for a reasonable period of time during installation, removal and repairs, not to exceed two hours in any day without prior authorization from the City.
(m)
Pruning Trees and Shrubs. If a permittee or its contractor determines that trees and vegetation in the right-of-way interfere with the installation, maintenance, or removal of applicant's SWFs and need trimming, it shall request of the Public Works Department that such trimming or pruning be done with sufficient specificity for the City to assess the need to perform the work. If the trees or vegetation unreasonably interfere with the permittee's needed installation, removal or maintenance of such SWFs, and if the City has not trimmed or removed the vegetation within 15 days of such request, then the permittee may by its own employees or by a contractor perform the needed work, provided (i) that it first give at least three business days' written notice to the Public Works Department of the work it intends to do in detail with respect to each tree or shrub, and (ii) provided the Public Works Department does not send a written objection before the end of the three-day period. The Public Works Department may allow such trimming and pruning on less notice when the need to trim a tree or vegetation is due to an emergency, or is urgently needed in order to repair a SWF which is seriously damaged or is not operating properly. All pruning and trimming performed by or for a permittee shall comply with City ordinances and the American National Standard for Tree Care Operation (ANSI A300) and Best Management Practices: Utility Pruning of Trees and be conducted under the direction of an arborist certified with the International Society of Arboriculture.
(n)
Damage and Repair.
(1)
Damage by applicant or permittee. No applicant for or permittee of any SWF, or anyone acting on such person's behalf shall take any action or permit any action to take place which may impair or damage any right-of-way or the property of another located in, on, or adjacent thereto. If a wireless service provider's activity causes damage to a right-of-way, the wireless service provider shall repair the right-of-way to substantially the same condition as before the damage. If a wireless service provider fails to make a repair required by an authority under Subsection(s) within a reasonable time after written notice, the authority may: make the required repair; and charge the wireless service provider the reasonable, documented, actual cost for the repair. If the damage described in Subsection (n)(1)b of this section causes an urgent safety hazard, an authority may: immediately make the necessary repair; and charge the wireless service provider the reasonable, documented, actual cost for the repair.
a.
Notice of Work. Unless otherwise provided in a permit, no person or anyone acting on such person's behalf shall commence any non-emergency work in or about the right-of-way without ten days' written notice to the Department of Public Works and permittees of property adjacent or near the work area and likely affected by such work of the intent to do so. The notice shall contain a reasonably detailed description of the work to be performed, the properties and area to be affected by it, and a reasonable estimate of the time the work is expected to take. The Department of Public Works may develop a procedure for dispensing with this notice procedure in situations where the impact of the work to be performed is not substantial, or in cases of emergency where notice is not practical in the discretion of the Department.
b.
Repair and Emergency Work. In the event of an unexpected and urgently needed repair or emergency, a permittee may commence repair or emergency work as reasonably required under the circumstances, provided notice is given to the City and property owners as promptly as possible, which shall contain all required information, and reasonably detailed information about the work performed and how it is likely to affect the City, the public using the right-of-way, the adjacent or nearby property or permittees, utility and telecommunications equipment permittees.
c.
Removal of Unauthorized SWFs. Within 45 days of written notice by the City, a permittee shall, at its sole expense, remove any SWF from the right-of-way upon any of the following events:
1.
Termination or expiration of such person's permit, approval, or license under which the SWF was authorized;
2.
Abandonment of a SWF within the right-of-way;
3.
The facility having been constructed or located without the prior grant of a permit, or constructed or located at a location not so permitted; or
4.
Circumstances reasonably determined by the City to be inconsistent with public health, safety, or welfare, the circumstances of which were not known at or which arose after the time of the issuance of any permit, approval, or license.
d.
Failure to Remove or Relocate. If any person subject to this section who owns, controls, or maintains any unauthorized SWFs within the right-of-way fails to remove or relocate any SWFs as required in this section, the City may cause such removal or relocation and charge the permittee for the costs incurred.
e.
Emergency Removal or Relocation of SWFs. The City reserves the right to cut, alter, remove, or relocate any SWFs located within the right-of-way as necessary in the event of an imminent or current public health or safety emergency.
(2)
Damage to SWFs by City. The City shall not be liable for any damage or destruction of any SWF damaged by the City, its contractors or agents which was not relocated or removed by the permittee within the time required by the City.
(o)
Insurance.
(1)
Unless specifically agreed to by the City after evaluating the risk, a person subject to this section shall secure and maintain in force the following liability insurance policies (or evidence of self-insurance satisfactory to the City):
a.
Two million dollars for personal injury or death to any one person and $3,000,000.00 aggregate for personal injury or death per single accident or occurrence.
b.
Two million dollars for property damage to any one person and $3,000,000.00 aggregate for property damage per single accident or occurrence.
c.
Two million dollars for all other types of liability including claims for damages for invasion of the right of privacy; for defamation of any person, firm, or corporation; for the violation or infringement of any copyright, trademark, trade name, service mark or patent; or for damage to any other person, firm, or corporation arising out of or alleged to arise out of failure to comply with the provisions of any statute, regulation or resolution of the United States, State of Utah, or any local agency with jurisdiction.
(2)
Such insurance shall specifically name as additional insured the City, its officers, volunteers and employees, and shall further provide that the policy shall not be modified or canceled during the life of the permit without giving at least 30 days' written notice to the City.
(3)
A person subject to this section shall file with the City copies of all Certificates of Insurance showing up-to-date coverage, additional insured coverage, and evidence of payment of premiums as set forth above before commencing any work in the right-of-way, and upon request by the City. Coverage shall not be changed or canceled without approval of the City, and failure to maintain required insurance may be considered a breach of this agreement. The City may at its option review all insurance coverage. If it is determined by the City Risk Manager that circumstances require and that it is reasonable and necessary to increase insurance coverage and liability limits to adequately cover the risks of the City, the City may require additional insurance to be acquired. The City shall provide written notice should the City exercise its right to require additional insurance. All insurance shall provide 30 days' prior written notice to the City in the event of modification or cancellation. The City shall be provided written notice within 30 days after any approved reduction in the general annual aggregate limit.
(4)
The Director or the City's Risk Manager may require increases in insurance coverage when the dollar values change by more than 20 percent as measured by the CPI-U.
(p)
Indemnification. A person subject to this section shall, at its sole expense, fully indemnify, defend and hold harmless the City, and in its capacity as such, the officers and employees thereof, from and against any and all claims, suits, actions, liability and judgments for damage or otherwise (except those arising from the sole negligence on the part of the City, its employees or agents):
(1)
For actual or alleged injury to persons or property, including loss of use of property due to an occurrence, whether or not such property is physically damaged or destroyed, in any way arising out of or through or alleged to arise out of or through the acts or omissions of such person or its officers, agents, employees, or contractors or to which such person or its officers', agents', employees' or contractors' acts or omissions in any way contribute, and whether or not such acts or omissions were authorized or contemplated by the permit or applicable law;
(2)
Arising out of or alleged to arise out of any claim for damages for such person's invasion of the right of privacy, defamation of any person, firm or corporation, or the violation or infringement of any copyright, trademark, trade name, service mark or patent, or of any other right of any person, firm or corporation; and/or
(3)
Arising out of or alleged to arise out of such person's failure to comply with the provisions of any statute, regulation or applicable policy of the United States, State of Utah or any local agency applicable to such person in its business. Nothing herein shall be deemed to prevent the City, its officers, or its employees from participating in the defense of any litigation by their own counsel at such parties' expense. Such participation shall not under any circumstances relieve a person subject to this section from its duty of defense against liability or of paying any judgment entered against the City, its officers, or its employees.
(q)
Assignments or Transfers of Permits. The City reserves the right to require in any permit issued under this section that ownership or control of a person subject to this section shall not, directly or indirectly, be transferred, assigned, or disposed of by sale, lease, merger, consolidation or other act of such person, by operation of law or otherwise without the prior written consent of the City, which consent the City may withhold or condition in its discretion. The subleasing of the space on poles is permitted, subject to the terms of this section and the terms of any license or lease agreement for use of the poles.
(1)
Absent extraordinary and unforeseeable circumstances, no permit shall be assigned or transferred before construction of the SWFs has been completed.
(2)
A permittee and the proposed assignee or transferee shall provide and certify the following to the City not less than 120 days prior to the proposed date of transfer: Detailed information setting forth the nature, terms and conditions of the proposed assignment or transfer; all information otherwise reasonably required by the City of a permit applicant under this section with respect to the proposed assignee or transferee; and an application fee which shall be set by the City, plus any other costs actually and reasonably incurred by the City in processing and investigating the proposed assignment or transfer.
(3)
No transfer shall be approved unless the assignee or transferee has the legal, technical, financial, and other requisite qualifications to carry on the activities of the permit required by applicable laws, ordinances, approvals, licenses and permits.
(4)
Any transfer or assignment of a permit without the prior written consent of the City as set forth herein shall be void and shall result in revocation of the existing permit.
(5)
Before a transfer is effective, the transferee shall file with the Director a signed statement signed by the transferee that the transferee shall accept of all permit terms and conditions. Failure to submit the notice required herein shall be a cause for the City to revoke the applicable permits pursuant to and following the procedure set out in this section.
(r)
Transfers Affecting Control. Any transactions which singularly or collectively result in a change of 50 percent or more of the ownership or working control of the permittee, or of the ownership or control of affiliated entities which have ownership or working control of the permittee, or of control of the capacity or the SWFs or substantial parts thereof shall be considered an assignment or transfer requiring City approval. Transactions between affiliated entities are not exempt from City approval; however, a transfer by a permittee to another person or entity controlling, controlled by, or under common control with the permittee shall not require City approval, provided notice thereof is timely provided to the City. Approval shall not be required for mortgaging purposes.
(s)
Obligation to Comply with this Section. An applicant or permittee shall not be relieved of its obligation to comply with every provision of this Code, this section, any permit issued hereunder or any applicable law or regulation by reason of any failure of the City to notice, enforce or prompt compliance by the applicant or permittee.
(t)
Conflicts with Prior Ordinances. In the event that any City ordinance or regulation, in whole or in part, adopted prior to the effective date of this section, conflicts with any provisions in this section, the provisions of this section will control.
(u)
Violations. Any unauthorized installation made prior to obtaining a permit, approval of an applicant's master plan, and violations of other related requirements of the City, may be grounds for denial of an application, or other sanctions allowed by law.
(v)
Revocation or Termination.
(1)
A permit granted hereunder may be revoked (or revoked in respect to those facilities in the permit determined to violate the following subsections) for the following reasons:
a.
Construction or operation anywhere in the City without a permit contrary to City ordinances;
b.
Construction or operation at an unauthorized location;
c.
Unauthorized assignment of a permit;
d.
Unauthorized sale, assignment or transfer of all of a permittee's assets, or a substantial interest therein;
e.
Misrepresentation by or on behalf of a person in any application upon which the City relies in making any decision herein;
f.
Abandonment of SWFs in the ROWs without timely removal and restoration as required by law;
g.
Failure to relocate or remove SWFs as required in this section;
h.
Failure to pay taxes, compensation, fees or costs when and as due;
i.
Insolvency or bankruptcy of the permittee;
j.
Violation of a provision of this section; or
k.
Violation of the terms of a permit.
(2)
Standards for Revocation or Lesser Sanctions. In determining whether a person subject to this section has violated or failed to comply with provisions of this section or of a permit, the Director shall determine the appropriate action to take considering the nature, circumstances, extent and gravity of the violation as reflected by one or more of the following factors:
a.
Whether the misconduct was egregious;
b.
Whether substantial harm resulted;
c.
Whether the violation was intentional;
d.
Whether there is a history in the City or in other jurisdictions within the last five years of prior violations of the same or other requirements;
e.
Whether there is a history of overall compliance in the City or in other jurisdictions within the last five years; and
f.
Whether the violation was voluntarily disclosed, admitted or cured.
(w)
Notice and Duty to Cure. In the event that the City believes that grounds exist for revocation of a permit, the City shall give the person subject to this section written notice of the apparent violation or noncompliance, providing a short and concise statement of the nature and general facts of the violation or noncompliance, and providing such person a reasonable period of time not exceeding 30 days to furnish evidence:
(1)
That corrective action has been, or is being actively and expeditiously pursued, to remedy the violation or noncompliance.
(2)
That rebuts the alleged violation or noncompliance.
(3)
That it would be in the public interest to impose some penalty or sanction less than revocation.
(x)
Limited Exemptions from Standards. All exemptions granted under this section are subject to review and reconsideration by the Community Development Director. The applicant always bears the burden to demonstrate why an exemption should be granted. An applicant seeking an exemption under this section for SWFs on the basis that a permit denial would effectively prohibit personal wireless services must demonstrate with clear and convincing evidence all the following: A significant gap in an applicant's service coverage exists; and all alternative sites identified in the application review process are either technically infeasible or not potentially available.
(y)
Appeals. A person aggrieved by a decision of the City may appeal to the City's Board of Adjustment, and may not appeal to district court without first appealing to the Board of Adjustment.
(z)
Severability. If any provision of this section or any amendments thereto is in conflict with any applicable federal or state law now in force or hereafter enacted, such provision shall be inoperative to the extent of such conflict and be treated as though it had not been included herein, but all other provisions of this section shall remain in force. In the event that a court of competent jurisdiction holds any section, subsection, paragraph, sentence, clause or phrase in this section unconstitutional, preempted, or otherwise invalid, the invalid portion shall be severed from this section and shall not affect the validity of the remaining portions of this section. The City hereby declares that it would have adopted each section, subsection, paragraph, sentence, clause or phrase in this section irrespective of the fact that any one or more sections, subsections, paragraphs, sentences, clauses or phrases in this section might be declared unconstitutional, preempted or otherwise invalid.
(aa)
Headings and Captions. Headings and captions used in this section other than the section, article, division and section numbers, are employed for reference purposes only and shall not be deemed a part of the text of any section.
(bb)
Force Majeure Events.
(1)
Neither a wireless service provider nor the City shall not be in breach of its obligations under this section nor shall the City or a wireless service provider incur any liability to the other for any losses or damages of any nature whatsoever incurred or suffered by that other (otherwise than under any express indemnity in this section) if and to the extent that it is prevented from carrying out those obligations by, or such losses or damages are caused by, a force majeure event, except to the extent that the relevant breach of its obligations would have occurred, or the relevant losses or damages would have arisen, even if the force majeure event had not occurred (in which case this section shall not apply to that extent).
(2)
As soon as reasonably practicable following the date of commencement of a force majeure event, and within a reasonable time following the date of termination of a force majeure event, the wireless service provider or the City invoking it shall submit to the other reasonable proof of the nature of the force majeure event and of its effect upon the performance of the wireless service provider's or the City's obligations under this agreement.
(3)
Each wireless service provider and its subcontractors shall, at all times take all reasonable steps within their respective powers and consistent with good operating practices (but without incurring unreasonable additional costs) to:
a.
Prevent force majeure events affecting the performance of the provider's obligations under this section;
b.
Mitigate the effect of any force majeure event; and comply with its obligations under this section.
(4)
A wireless service provider and the City invoking a force majeure event shall consult together in relation to the above matters following the occurrence of such an event. The term "force majeure event" means the occurrence of:
a.
An act of war (whether declared or not), hostilities, invasion, act of foreign enemies, terrorism or civil disorder;
b.
Ionizing radiations, or contamination by radioactivity from any nuclear fuel, or from any nuclear waste from the combustion of nuclear fuel, radioactive, toxic, explosive or other hazardous properties of any explosive nuclear assembly or nuclear component thereof;
c.
Pressure waves from devices travelling at supersonic speeds or damage caused by any aircraft or similar device;
d.
A strike or strikes or other industrial action or blockade or embargo or any other form of civil disturbance (whether lawful or not), in each case affecting on a general basis the industry related to the affected services and which is not attributable to any unreasonable action or inaction on the part of the wireless facilities provider or any of its subcontractors or suppliers and the settlement of which is beyond the reasonable control of all such persons;
e.
Specific incidents of exceptional adverse weather conditions in excess of those required to be designed for in this section which are materially worse than those encountered in the relevant places at the relevant time of year during the 40 years prior to the time the wireless services provider first provides service through SWFs within the City;
f.
Tempest, tornado, earthquake or any other natural disaster of overwhelming proportions;
g.
Pollution of water sources;
h.
Discontinuation of electricity supply; or
i.
Other unforeseeable circumstances beyond the control of the wireless service provider against which it would have been unreasonable for it to take precautions and which it cannot avoid even by using its best efforts, which in each case directly causes the wireless service provider to be unable to comply with all or a material part of its obligations under this section.
(Ord. No. 18-28, § 1(15A-11-25), 9-20-2018)
(a)
Purpose. This section is established to provide regulations and design standards for residential short-term rentals (STRs) related to single-family and multifamily neighborhoods. These standards seek to allow for STRs while also protecting the safety and general welfare of Sandy residents and preserving the residential character of Sandy neighborhoods. In allowing STRs, this section provides existing property homeowners economic relief who might otherwise be forced to leave a neighborhood, thus promoting and preserving affordable housing in Sandy City. This section also intends to stabilize neighborhoods by promoting home ownership and preserving long term rental housing in the market.
(b)
Residential Short-Term Rental (STR) Special Use Permit and License Required. STRs in all residential dwellings, residential districts, residential PUD districts and residential SD districts are required to first obtain a STR special use permit as regulated in this section, and a valid short-term rental business license (STRL), as regulated by Chapter 15-11. The following are exempt and shall not be subject to the provisions of this section:
(1)
A residential lease of 30 or more consecutive days.
(2)
Bed and breakfasts, hotels, and motels, as described and regulated in the Sandy Land Development Code and this Sandy City Code.
(c)
General Standards and Requirements for STR Special Use Permits. A STR may be allowed within any existing legal owner-occupied residential dwelling by an administrative STR special use permit and business license from the Community Development Department, pursuant to an application that demonstrates compliance with requirements found in the Sandy Land Development Code, this Sandy City Code, and all the following standards and requirements:
(1)
Application. A completed STR application, as provided by Sandy City, shall be submitted to the Community Development Department. Only the owner, as defined in Section 15-11-1, may apply for an STR special use permit. A complete STR application shall include:
a.
Proof of Ownership. Proof of ownership of the STR property shall be provided. The applicant shall prove ownership of the property as evidenced by a copy of a transfer deed listing the applicant as the fee title owner. Fee title owner may be an individual or trustor of a family trust that possesses 50 percent or more ownership of the proposed STR. The fee title owner may not be a corporation, partnership, limited liability company, or similar entity.
b.
Conflict of Private Restrictions. The owner shall provide a signed affidavit sworn before a notary public that certifies to the City that the subject property has no existing private covenants, conditions, or restrictions prohibiting STRs.
c.
Proof of Owner Occupancy. The owner shall show proof that the STR property is the owner's primary residence by submitting all the following documentation:
1.
The owner's most recent State and Federal tax returns both listing the property as the owner's primary residence; and
2.
A government-issued identification document listing the address of the property as the address of the owner; and
3.
A signed affidavit sworn before a notary public shall be provided by the owner stating that the proposed property is the primary residence of the owner, and the owner will remain as the primary occupant of the dwelling for the duration of the STR special use permit, wherein they reside at least 183 days per calendar year.
d.
Short Term Rental Management Course. The owner shall show proof of the successful completion of a STR management course, as selected or created by the City and approved by the City Council. The owner need only complete one STR management course to satisfy this requirement.
e.
Parking Plan. A detailed written description and drawing of an off-street parking plan shall be submitted, in accordance with this section, to ensure there is sufficient on-site parking capacity for all occupants of the home and renters of the STR.
f.
Compliance Certification. The owner shall provide a signed affidavit sworn before a notary public that certifies to the City that the owner agrees to comply with the terms and conditions of this section and to ensure each renter complies with the terms and conditions of this section.
g.
Property Description. A detailed written description, a site plan of the property, an interior layout that identifies the use of each room of the dwelling and location of all smoke and carbon monoxide detectors and defines the portions of the dwelling to be used for a STR shall be provided. Only one designated STR area is allowed for a property.
(2)
Owner Occupancy. The owner of the subject property shall live in the primary dwelling in which a STR is desired and must reside therein as their primary residence for a minimum of 183 days per calendar year.
(3)
Occupancy During Rental Period. The STR shall comply with the following occupancy restrictions:
a.
The maximum renter occupancy shall be no more than eight people.
b.
The STR shall not be rented to more than one renter at any given time, and the owner shall not divide and rent out portions of the dwelling to multiple renters at the same time.
c.
The STR property shall only be rented for a minimum duration of one night and a maximum duration of 29 consecutive nights.
d.
A STR property where the whole dwelling is rented out shall not be rented more than 182 nights per year.
e.
A STR property where a portion of the dwelling is rented out may be rented 365 nights per year.
(4)
Parking Plan. A detailed written description and a drawing of an off-street parking plan is required to ensure there is sufficient on-site parking capacity for all occupants of the home and renters of the STR. The parking plan shall be limited to the existing garage, driveway, and dedicated parking spots of the residential unit and shall not include any on-street parking. Any proposed parking improvements may also be included in the off-street parking plan, so long as they are completed prior to issuance of a STRL. All elements of the parking plan must be in compliance with all other requirements of this title. The owner shall ensure that all renters of a STR comply with the Parking Plan.
(5)
Urgent Response. The owner, or a designated representative, shall be available to immediately respond to the STR 24 hours per day, 365 days per year by telephone, and when necessary, be able to physically respond to the STR within one hour of any legitimate complaint. If the owner is unreachable after three attempted contacts by the City, the City shall issue a notice of violation to the owner.
(6)
Property Maintenance Requirements. All STRs shall adhere to this Code, including, but not limited to the following:
a.
Maintenance. The owner must adhere to Title 19, the Property Maintenance Chapter of this Code, including, but not limited to, requirements for weed abatement, landscaping, garbage removal, structure maintenance, and fence/wall maintenance.
b.
Snow Removal. The owner shall remove all snow from the sidewalks of the property within 24 hours after snowfall in accordance with this Code.
c.
Noise and Nuisance Control. The owner shall ensure that all renters are aware of and adhere to Chapter 13-2 the Noise Control Chapter of this Code and Salt Lake County Health Department Health Regulation No. 21: Community Noise Pollution Control. If a renter violates the Noise Control Chapter more than once in any given 72-hour period, the owner shall immediately evict all renters from the property.
d.
Health and Safety. The owner shall ensure that the dwelling or the rented portion of the dwelling maintains at least one working smoke alarm in each sleeping area and on each floor, and at least one working carbon monoxide detector on each floor.
(7)
Noticing and Posting Requirements.
a.
One nameplate sign that includes the name and the 24/7 contact information for the owner, or a designated representative, must be posted on the exterior side of the main entrance of the STR.
b.
An informational packet must be posted in a highly visible place within the dwelling or the STR area of the dwelling, and must include all the following:
1.
City-issued STRL and STR special use permit.
2.
The name and contact information for the owner or a designated representative.
3.
Parking requirements, information about the STR's parking plan, and the City Ordinance on Parking, Chapter 14-7.
4.
Maximum occupancy of the STR.
5.
Sandy City Ordinance on Noise Control, Chapter 13-2 and a copy of Salt Lake County Health Department Health Regulation No. 21 Community Noise Pollution Control.
6.
Garbage pickup dates and a written description of where garbage receptacles must be placed for pickup.
7.
Emergency and nonemergency contact information for the Sandy City Police and Fire Departments, and the address of the STR dwelling.
8.
Sandy City Ordinance on Residential Short-Term Rentals, Section 21-11-26 and Business Licensing for Short-Term Rentals, Chapter 15-11.
c.
The informational packet shall be made available to the City for inspection upon 24 hours prior written notice.
(d)
Limited Number of STR Special Use Permits. The total number of STR special use permits issued within the City shall be limited as follows:
(1)
The maximum number of STR special use permits shall be calculated for each community within Sandy City as follows: Each community shall have a minimum base of two STR special use permits plus one STR special use permit for every 100 single-family detached dwellings within the community boundary.
(2)
The total number of available STR special use permits shall be recalculated every odd year in July, based on the estimated number of single-family dwellings within the City as determined by the Community Development Department.
(3)
If a complete application that meets all other requirements for approval is received after the maximum number of approvals has been issued for the community the proposed STR property is located within, the application shall be placed on a waiting list in order of the date of receipt of a completed application. This list shall be reviewed on an annual basis. No fees will be due until a special use approval becomes available. A complete application shall include completion of all requirements of this section.
(e)
Duration of Approval and Transferability. The STR special use permit shall be valid and continue until the sale of the home or the STRL expires. The STR special use permit shall expire upon the closing date of the sale of the home or on the date the STRL expires. STR special use permits are not transferable. If the STR special use permit expires, the STR shall automatically revert to be occupied by the primary dwelling occupants only and their nonpaying guests.
(f)
Violations. It shall be a violation for any person to operate a STR:
(1)
Without first obtaining a STR special use permit, as regulated in this section, and issued a valid STRL; or
(2)
That does not comply with the requirements of this chapter, this Code, or the Sandy City Land Development Code.
(g)
Enforcement and Fines. Upon a determination that a violation exists, the Community Development Director, or designee, shall contact the owner requiring such owner to halt, eradicate, destroy, remove, or otherwise cure the violation within 48 hours, or such later time the Director, or designee, may determine.
(1)
For any violation of this section, the issuing officer may issue a written citation or notice of violation to the owner, specifying the violation and the penalty to be imposed.
a.
Upon a third violation within any 12-month period, in addition to the civil fine, the STRL and STR special use permit shall be automatically revoked. The owner shall be ineligible for a STR special use permit and a STRL for a period of two years from the date of the third notice of violation.
b.
For any violation within any 12-month period following the third violation, the penalty shall be a civil fine and the owner shall be banned from receiving a STR special use permit and a STRL.
(2)
Fines shall be assessed and accrued pursuant to the current fee schedule and as outlined in Title 1, Chapter 4 of this Code.
(3)
Enforcement may be done criminally, civilly, or administratively pursuant to Title 1 Chapter 4 of this Code.
(4)
Subject to the limitations and requirements of applicable budget appropriations, the City shall utilize short term rental tracking software to assist with enforcement, unless otherwise prohibited by state or federal law.
(Ord. No. 18-21, § 1(15A-11-26), 8-30-2018; Ord. No. 21-28, § 1(Exh. A), 9-28-2021; Ord. No. 24-17, § 1(Exh. A), 10-15-2024; Ord. No. 25-09, § 1(Exh. A), 2-4-2025)
(a)
A Micro-education entity provides kindergarten through grade 12 education services for compensation. Micro-education entities are allowed according to the land use matrices as a special use provided it complies with all the following restrictions:
(1)
Occupancy shall be limited to a maximum of 100 students at any one time and a maximum of 100 students per day.
(2)
The proposed use must have direct access to an arterial or major collector street, with no access permitted to any minor collector or local street.
(3)
The following shall be used to determine the maximum number of students permitted:
a.
A Traffic Plan that has been reviewed and approved by the City Transportation Engineer which includes acceptable traffic flow, drop off, and turn-around areas.
b.
The street is of sufficient width to accommodate additional vehicular traffic.
(4)
Required Parking.
a.
Required parking shall consist of at least one space for each instructor and staff, four visitor parking spaces, and four queuing spaces.
b.
In addition, one visitor parking space and one queuing space is required for every five students or a portion thereof beyond the first 20 students.
(5)
An on-site drop-off area shall be provided.
(Ord. No. 24-14, § 1(Exh. A), 7-30-2024)