STANDARD URBAN CENTER DISTRICT REGULATIONS
A.
The Comprehensive Development Master Plan (CDMP) contains directives to promote urban centers in places where mass transit, roadways, and highways are highly accessible. The CDMP provides for three types of urban centers: community (CUC), metropolitan (MUC) and regional (RUC).
B.
The regulations in this article shall apply to urban centers, as defined in the CDMP. Specifically, these standard regulations apply to the Urban Center Districts provided for in this Code that were created after the effective date of this ordinance (July 27, 2005). Each Urban Center District, as adopted by the Board of County Commissioners by separate ordinances, shall contain a set of regulating plans and additional regulations addressing unique circumstances that, in conjunction with this article, shall control development in each particular urban center.
C.
The standard regulations contained in this chapter and Chapter 18-A, Code of Miami-Dade County, Florida, shall apply to this article, except as otherwise added to or modified herein.
D.
The area within the boundaries of an urban center is divided in three Sub-districts: Core, Center and Edge. The highest density and intensity within an urban center shall be allocated to the Core Sub-districts, a mixed-use area adjacent to the transit station(s) or major transit stop(s). The densities and intensities shall then gradually decrease from the Core to the Center Sub-district where mixed-uses are still permitted and then further decrease to the Edge Sub-district which is characterized by single uses, including low density residential.
E.
In the case of multiple-phase development, each phase of the development, whether standing independently or in conjunction with existing developed or proposed future contiguous phases, shall meet all the requirements of this article and of the additional requirements and of the regulating plans provided in each Urban Center Districts. In addition, construction of each phase shall be directed first toward the street of higher hierarchy as provided in the Urban Center Districts; and the minimum building frontage length requirements may be disregarded in approving each individual phase, provided that the building frontage length requirements are met at the conclusion of all phases.
(Ord. No. 05-143, § 1, 7-7-05)
Terms used throughout this article shall take their commonly accepted meaning unless otherwise defined in Chapters 18-A, 28 or 33 of the Code of Miami-Dade County. Terms requiring interpretation specific to this article are as follows:
1.
Accessory Building: An enclosed building that is subordinate to and not the main or principal building on a lot or parcel and that is used as a dwelling unit, garage, storage shed, or similar use.
2.
Accessory Structure: An unenclosed structure that is subordinate to and not the main or principal building on a lot or parcel and that is used: as a garden feature, such as a fountain, gazebo or cabana; for recreation, such as a pool or hard courts; for the accommodation of mechanical equipment, such as a pump, a/c compressor or electrical generator units; or uses similar to the foregoing.
3.
Anchor point: The location depicted on the Open Space Plan on which some portion of a plaza, green, or square must be situated.
4.
Bike lane: A corridor dedicated specifically for bicycle use.
5.
Block: A combination of contiguous building lots, the perimeter of which abuts public street(s), private street(s) or easement(s) or designated open space(s).
6.
Block face: The public street, private street or easement line that delineates a block edge.
7.
Boulevard: A public street, private street or easement flanked with a landscaped median, sidewalks, on-street parking, street trees and buildings.
8.
Building Frontage: The portion of the building required to be located along the build-to line or within the building frontage zone.
8.1
Building Frontage Zone: The portion of a lot adjoining a street or right-of-way. The width of the building frontage zone is established by the applicable building placement diagram or frontage table.
9.
Building placement diagrams: Diagrams that provide a schematic representation of the permissible footprints and profiles of structures by land use and Sub-district.
10.
Build-to line: A line parallel to the block face, along which a building shall be built.
11.
Busway: A restricted access right-of-way for the exclusive use of buses.
12.
Clear zone: An area within the curb radius, which shall be kept clear of all objects to a prescribed height to provide vehicle clearance.
13.
Close: A landscaped median divided street with a closed turning area in one end and an intersecting street on the other (see Fig. 1).
Fig. 1: Close
14.
Colonnade: A roofed structure, extending over a private walkway that is open to the street and sidewalk except for supporting columns or piers.
15.
Community Garden: Open space set aside for the cultivation and harvesting of produce such as flowers, fruits and vegetables.
16.
Courtyard House: A single-family dwelling containing a court or atrium. The court shall be enclosed on at least three sides by habitable space and shall provide penetrable openings such as windows and doors between the interior of the dwelling and the court. A Courtyard house may occupy the full width of the lot (see Fig. 2).
Fig. 2: Courtyard House
17.
Designated open space: An outdoor, at-grade space including greens, squares, plazas and colonnades as indicated on the Designated Open Space Plan.
18.
Entertainment Center: An enclosed building or open lot area designated for amusement, entertainment, cultural, ecological, or historical complex (or any combination thereof) that is open to the public, including without limitation: buildings for public assembly; mechanical rides; games and contests; exhibits and demonstrations; art exhibits and musical shows; retail sales; marketplaces, including second-hand sales; food services, including fast food restaurants; and water attractions.
19.
Fenestration: Design and position of windows, entrances, and other structural openings in a building.
20.
Floorplate: The shape and size of any given floor of a building. The floorplate that touches the ground is called the footprint, after the shape it leaves on the land.
21.
Forecourt: The front yard area defined by three sides of the principal building and a low garden wall parallel to the street making the space suitable for gardens and outdoor seating (see Fig. 3). At street corners, the forecourt edges are defined by two (2) principal building walls and a low garden wall parallel to the street (see Fig. 4).
Fig. 3: Interior Lot Forecourt
Fig. 4: Corner Lot Forecourt
22.
Front Property Line: The property line abutting the higher ranking street in accordance with the urban centers Street Types Regulating Plan. For equal ranking streets, either frontage may be designated as the front property line.
23.
Green: An outdoor open space that shall not be hard surfaced for more than twenty (20) percent of the area exclusive of dedicated streets. The landscapes shall consist primarily of lawn, trees, and garden structures (see Fig. 5).
Fig. 5: Green
24.
Greenway or linear park: An outdoor open space along a natural edge, including without limitation, a river front, a canal, a scenic road, or other route. Greenways provide passage for pedestrians or bicycles and are used to link nature reserves, cultural features, other parks, and open spaces and/or historic sites.
25.
Habitable Space: Building space the use of which involves regular human presence. Habitable space shall not include areas devoted to parking, storage, or warehouses.
26.
Home Office: A professional office use within a residential use, as provided in Section 33-25.1 of this Code.
27.
Irregularly shaped lot: A lot in areas designated Residential (R) and Residential Modified (RM) with an irregular shape due to its location on a corner or intersection or at the end of a grouping of single-family detached or attached units. The dimensions of the front yard of such lot shall be similar to the dimensions of the front yards of adjacent homes.
28.
Live-work building: A mixed-use building type with residential dwellings located above work spaces.
29.
Main street: A vehicular and pedestrian thoroughfare lined primarily with mixed-use buildings, as depicted on the Street Types Regulating Plan.
30.
Minor street: A street that is predominantly residential in character as depicted on the Street Types Regulating Plan.
31.
Mixed-use building: A building that includes a combination of two or more vertically integrated uses, such as retail and/or office uses on the ground floor, with residential uses above.
32.
Off-street parking: Garage parking or surface parking not on a public or private street.
33.
On-street parking: Parking on a public or private street.
34.
Outdoor Market: An outdoor commercial establishment where produce, hand-made crafts and other items are offered for sale.
35.
Pedestal: The bottom portion of a building that creates the street frontage.
36.
Pedestrian passages: Interconnected paved walkways that provide pedestrian passage through blocks and that connect directly with the network of sidewalks and open spaces.
37.
Penthouse: Topmost built area of a building with a floorplate area less than that of the tower below.
38.
Permeable Materials: Materials used for paving parking lot and roadway surfaces that allow stormwater run-off to infiltrate the ground, such as porous concrete, porous asphalt, concrete, brick, stone or similar materials.
39.
Plaza: An outdoor open space fronted by mixed-use, retail, and office uses. A minimum of fifty (50) percent and a maximum of seventy-five (75) percent of the plaza's area, exclusive of dedicated streets, shall be hard surfaced. The landscape of plazas shall consist primarily of hard-surfaced areas, permanent architecture or water-oriented features, and trees that are placed in an orderly fashion and that are regularly spaced as shown below (see Fig. 6).
Fig. 6: Plaza
40.
Residential Building Type: One of the following residential building types permitted in the Urban Center or Area Districts: single-family detached; duplex; rowhouse; courtyard house; sideyard house; urban villa, and apartment.
41.
Rowhouse: A single-family attached dwelling unit of a group of three (3) or more units, each separated from the adjoining unit by a common party fire wall. Each common party fire wall shall extend to the roof line or above the roof of units that it serves and shall have no openings therein. Each rowhouse unit shall be serviced with separate utilities and shall otherwise be independent of any other unit.
42.
Service road: A private or public vehicular passageway providing primary, secondary, or service access to the sides or rear of building lots.
43.
Setback Area: The area between the street, either public or private, and the build-to line.
44.
Sideyard house: A single-family dwelling that provides an extensive porch oriented toward a side yard; the side yard is screened from the view of the street by a six (6) foot masonry wall along the build-to line (see Fig. 7).
Fig. 7: Sideyard House
45.
Site Improvements: Improvements to a site including, but not limited to: buildings, walls, signage, paved areas and installed landscaping.
46.
Square: An outdoor open space that shall be flanked by streets on at least three (3) sides and shall not be hard-surfaced for more than fifty (50) percent of the area exclusive of dedicated streets. Squares shall be located according to the Designated Open Space Plan, and their landscapes shall consist primarily of hard-surfaced walks, lawns, and trees that are placed in an orderly fashion and that are regularly spaced (see Fig. 8).
Fig. 8: Square
47.
Storefront: The first story portion of a mixed-use building consisting of habitable space used for business, office, or institutional purposes.
48.
Story: an enclosed floor level within a building containing habitable space.
49.
Street: Any thoroughfare, such as a public street, private street, or easement that affords primary access to abutting property.
50.
Street network: A system of intersecting and interconnecting streets and service roads.
51.
Street Type Development Parameters: The design criteria that establish the required elements for the placement and size of the following: sidewalks; curbs and gutters; parking; medians; bike lanes; traffic lanes; street trees; and landscape strips in the street.
52.
Street vista: A view through or along a street centerline terminating with the view of a significant visual composition of an architectural structure or element. Street Vistas are indicated on the Open Space Regulating Plan by arrows; direction of the vista is indicated by the direction of the arrow. Garages and blank walls are not significant visual compositions.
53.
Tower: The middle portion of a building above the pedestal and below the penthouse.
54.
Urban Center District: A zoning district established for a CDMP-designated urban center. A zoning district established for the unincorporated portion of a CDMP-designated urban center or for an area encompassing more than one CDMP-designated urban center, may also be referred to as an Urban Area District.
55.
Urban Villa: A single-family dwelling where the primary structure shall be built in close proximity to the front property line as depicted in the building placement diagrams in this article. Walled courts, patios or roof terraces may be used to provide open space. Vehicular parking areas and driveways shall be screened from the view of the street by garage doors and/or walls.
56.
Weather Protection Features: Architectural features that provide protection from the sun and rain, including without limitation, colonnades, awnings, bus shelters, or projecting roofs.
57.
Work-force Housing Unit or WHU: A dwelling unit, the sale, rental or pricing which is restricted to households whose income is up to one hundred forty (140) percent of the most recent median family income for the County reported by the U.S. HUD as maintained by the Department of Planning and Zoning.
(Ord. No. 05-143, § 2, 7-7-05; Ord. No. 06-10, § 1, 1-24-06; Ord. No. 07-93, § 1, 7-10-07; Ord. No. 12-86, § 1, 10-2-12; Ord. No. 18-02, § 1, 1-23-18)
No land, body of water, or structure shall be used or permitted to be used, and no structure shall be hereafter erected, constructed, reconstructed, moved, structurally altered, or maintained for any purpose in the Urban Center (UC) or Urban Area (UA) Districts, except as provided in this article. The uses delineated herein shall be permitted only in compliance with the Regulating Plans and standards provided in this article. The following regulations outline permitted uses in the R (Residential), RM (Residential Modified), MC (Mixed-Use Corridor), MM (Mixed-Use Main Street), MO (Mixed-Use Optional), MCS (Mixed-Use Special), MCI (Mixed-Use Industrial), ID (Industrial District) and I (Institutional) Land Use Areas.
A.
Land Uses in General.
1.
Outdoor uses/enclosed uses. All uses shall be conducted within completely enclosed buildings, except outdoor uses expressly permitted in this article. Materials and products shall be stored within an enclosed building or within an area completely enclosed within walls having a life expectancy of twenty (20) years or more from the date of installation. Storage shall not be visible above the height of the walls. Commercial vehicles shall be stored or parked within an enclosed building or an area enclosed by a fence, wall, or hedge, and out of the view from adjacent properties.
2.
Density Calculation.
a.
Density averaging shall be permitted when a unified development is located on one or more parcels, with different land uses or Sub-district designations, under the same ownership.
b.
A single accessory dwelling unit permitted with a single-family residence shall not count towards the minimum required and maximum permitted density thresholds.
c.
Minimum required and maximum permitted density shall be calculated based on net lot area. For purposes of this article, net lot area shall include dedicated road rights-of-way, which means the area between the existing or proposed lot right-of-way line and the street centerline.
3.
Work-force Housing. Unless otherwise specified in the District regulations, all residential or mixed-use developments that: (a) are located within the Core or Center Sub-districts of an urban center district adopted by the Board or County Commissioners after July 10, 2007, and (b) have more than four (4) residential units, shall provide a minimum of twelve and a half (12.5) percent of their units as Work-force Housing Units.
4.
Mixed Use. The vertical or horizontal integration of residential, business and office, and institutional uses shall be permitted as provided herein. Vertical integration allows any combination of primary uses, with business uses typically located on the ground floor and office and/or residential uses on the upper floors. Horizontal integration allows any combination of parcels with different primary uses within the same block.
5.
Temporary Uses. Temporary uses including seasonal tent sales; stands for the sale of flowers, fruit and similar uses; and festivals and farmers' markets are permitted in the MC, MO, MM, MCS, MCI, ID and I categories, subject to the following conditions:
a.
Except for the following, no temporary use shall be permitted for more than fourteen (14) consecutive days and the time between temporary activities shall be at least three times as long as the duration of the last event.
i.
A temporary use for the sale of holiday related items such as holiday trees, fireworks, and similar items shall be permitted for thirty (30) consecutive days leading up to the holiday date.
ii.
A temporary use that occurs on two (2) or less consecutive days shall be permitted weekly.
b.
When applicable, a Zoning Improvement Permit (ZIP) and Certificate of Use shall be obtained. A site plan shall be submitted with the ZIP application indicating, at a minimum;
i.
Location of temporary activities and structures, which shall not be subject to the Building Placement Standards set forth in Section 33-284.85 of this article;
ii.
Anticipated number of patrons;
iii.
Location of parking facilities;
iv.
Temporary street closures;
v.
Hours of operation;
vi.
Location and description of lighting and amplification devices.
c.
Outdoor festivals and farmers' markets shall be restricted to daylight hours unless written waivers of objection for the specific use and hours of operation are obtained from all property owners within five hundred (500) feet. The Director may reduce or expand the notification requirement based on potential visual, noise or traffic impacts to adjacent properties.
d.
A carnival or circus, that involves an amusement ride, acrobatic apparatus, or trained animal, shall only be permitted if approved upon public hearing.
6.
Unusual and New Uses. Except as expressly permitted in this article, unusual and new uses, as outlined in Section 33-13 of this chapter, shall only be permitted if approved upon public hearing.
B.
Land Use Groups. The uses listed following each group in this section shall be permitted in the land use categories shown in Table (C) subject to the provisions noted for each land use category. Uses provided in Table (C) below not listed in this subsection shall be permitted subject to the provisions noted for each land use area. The Director shall have the authority to determine that a use not specifically enumerated below may nevertheless be permitted in a land use category because it is similar to an enumerated use.
1.
Accommodation Uses: Facilities that provide short-term lodging including hotels, motels, rooming houses, bed and breakfasts, and similar uses.
2.
Automotive Uses: Establishments specializing in the service or repair of automobiles; automobile tire sales and replacement; automobile parts sales and installation; sales of new and used automobiles; and gas stations or other form of stations used for the powering/charging of automobile vehicles.
3.
Child Care Facilities: Child care facilities shall be those defined in Article XA of this chapter and shall be subject to the requirements therein, as applicable; except that child care facilities shall provide recreation areas in accordance with Section 33-284.86(D)(2) of this article. Where conflicts exist, the provisions of this article shall apply.
4.
Civic Uses: Uses that are accessible to the public and serves the religious, recreational, educational, cultural and/or governmental needs of the community. Civic uses include, but are not limited to: convention halls or meeting halls; private clubs; libraries; schools; police stations; fire stations; post offices; clubhouses; religious buildings; museums; athletic facilities; auditoriums theaters, movie theaters, and other visual and performance arts buildings; and governmental facilities. The architecture of a civic use building shall reflect its civic nature. The sale of alcohol, if provided, shall be ancillary to the primary civic use and shall comply with Article X of this Chapter.
5.
Private Colleges/Universities: Facilities that serve the educational needs of the adult population. This group shall include universities; colleges; commuter colleges; trade schools; and similar uses.
6.
Commercial Parking Garage: Structures that provide parking as the primary on-site use. These facilities offer short-term parking of vehicles and may charge a fee for such use. This group includes: shared parking facilities; shuttle parking facilities; and transit park-and-ride facilities. This group shall not include parking facilities that are ancillary to another on-site use.
7.
Health Care Services: A facility that provides out-patient health care services to the local community. These facilities shall include: clinics; doctor's office; dentist's offices; federally qualified health centers; urgent care facilities; diagnostic centers including sleep centers; and similar uses. These facilities shall not provide in-patient care.
8.
Drive-Through Facilities: Drive-through facilities associated with a retail use, personal service establishment or restaurant.
9.
Entertainment Use: Uses in this group shall include: nightclubs; arcades; movie theaters; performance theaters; radio, movie and/or television studios; billiard halls; skating rinks; bingo halls; piano bars; adult entertainment uses (as defined in Section 33-259.1 of this chapter); bowling alleys; and similar uses. The sale of alcohol, if provided, shall be ancillary to the primary entertainment use and shall comply with Article X of this chapter.
10.
Food/Beverage Establishments: This group shall include: full service restaurants; fast food restaurants; bars and pubs; and similar uses. The sale of alcohol, if provided, shall comply with Article X of this chapter, except that full-service restaurants serving alcoholic beverages shall be exempt from Sections 33-150(A) and 33-150(B) of this chapter.
11.
General Retail/Personal Service Establishments: Establishments that provide goods and services geared toward an individual consumer. This group shall include businesses such as: banks; beauty parlors; adult day care; bakeries; bookstores; apparel stores; grocery stores; pharmacies; tailor shops; health clubs; gift shops; indoor pet care centers/boarding and indoor kennels (soundproofed and air-conditioned building required); vehicle retail showrooms; and similar uses. This group shall also include schools offering instruction in dance, music, martial arts and similar activities, but this group shall not include colleges/universities. Except as otherwise authorized in this article, uses enumerated in the BU-3 zoning district shall only be permitted in the MCS and MCI categories and shall be subject to the public hearing and spacing requirements set forth in Section 33-255 of this chapter. Dispensing facilities for low-THC or medical cannabis, in accordance with the requirements of article IXA of this chapter, shall also be allowed in areas designated MC, MCS, MCI, and ID.
12.
Group Residential Facility: As defined in Section 33-1.
13.
Industrial Uses: The Industrial Use group shall include uses permitted in Section 33-259 of this chapter, unless specifically prohibited by this chapter. Residential spacing requirements shall not be required for uses in this group.
14.
Live/work Units: An individual residential unit integrated with a general retail/personal service establishment, professional business office, or workshop.
15.
Professional Business Offices: Facilities used primarily for the business of professionals with only limited transactions occurring on-site. This group shall include offices for: accountants; architects; appraisers; attorneys; consulates; financial firms; insurance adjusters; realtors; medical offices and other uses found by the Director to be similar.
16.
Residential Uses: Single-family detached homes, urban villas, courtyard houses, sideyard houses, duplexes, rowhouses, apartments (including student housing), and other similar uses. Home offices as provided in Section 33-25.1 of this chapter shall be permitted.
17.
Workshop: an enclosed workplace on the ground floor area of a building used as an office or for the manufacturing of artifacts and crafts utilizing only hand held and/or table mounted electrical tools.
C.
Table of Permitted Uses. Unless the regulations for a specific urban center district provide otherwise, the Land Use Groups in paragraph (B) of this section shall be permitted in the R (Residential), RM (Residential Modified), MC (Mixed-Use Corridor), MM (Mixed-Use Main Street), MO (Mixed-Use Optional), MCS (Mixed-Use Special), MCI (Mixed-Use Industrial), ID (Industrial District) and I (Institutional) land use categories in accordance with the following table:
P:
Permitted Use, although specific uses may require approval as special exception
SE:
Special Exception - only permitted if approved upon public hearing
[ # ]
Footnote (as provided below)
Footnotes:
1.
The vertical integration of uses shall be required in the MM category and shall be encouraged in the MC, MO, MCS, and MCI categories. When residential uses are provided in the MM category, uses other than residential shall be required on the first floor. Self-service mini-warehouse storage facilities located in the MCS and MCI categories shall only be permitted upon approval at public hearing and when vertically integrated with, screened by, or located to the rear of habitable space, as defined in Section 33-284.82, and shall only be established in accordance with the conditions set forth in Section 33-255. In addition, no such facility shall be located less than 2,500 feet from any other such facility, measured by following a straight line from the nearest portion of the structure of the proposed use to the nearest portion of the structure of the existing use. The aforementioned requirements shall also apply to self-service mini-warehouse storage facilities located in the Downtown Kendall Urban Center District (Article XXXIII(I)) and the Palmer Lake Metropolitan Urban Center District (Article XXXIII(T)).
2.
Residential uses shall be permitted in noted categories, either alone or when vertically integrated with other lawful uses; except that developments with more than fifty (50) residential units shall provide a minimum of ten (10) square feet of retail space for each residential unit.
3.
Accessory structures shall be permitted as ancillary to the noted uses.
4.
For single-family homes in the R and RM categories, an accessory building may be used as a dwelling unit only if: (a) it contains a maximum of six hundred (600) square feet of habitable space; and (b) it is maintained under the same ownership as the single family home.
5.
Residential uses shall be permitted in the ID category when buffered from an industrial use by a street, a service road, or a live-work unit.
6.
For Group Residential Facilities:
a.
Group homes shall comply with the group home requirements of Section 33-199, and community residential homes shall comply with the community residential home requirements of Section 33-203.
b.
For group residential facilities, other than group homes, in the RM, MC, MM, MO, MCS, and MCI categories, three occupants shall be deemed to be one dwelling unit, and the maximum number of dwelling units allowed shall be equal to the permitted residential density.
7.
Schools shall be subject to the requirements of Article XA or XI of this chapter, as applicable; except that non-public educational facilities shall provide recreation areas in accordance with Section 33-284.86(D)(2) of this article. Where conflicts exist, the provisions of this article shall apply.
8.
General retail and personal service establishment shall be limited to forty thousand (40,000) square feet of ground floor area; a greater ground floor area for such uses shall only be permitted if approved as a special exception.
a.
Indoor pet kennels shall be permitted subject to the following conditions: (i) all kennel buildings shall be soundproofed and air-conditioned; (ii) where outside exercise runs are provided, a landscaped buffer or decorative masonry wall shall enclose the runs, and use of the runs shall be restricted to use during daylight hours; (iii) where outside exercise runs are not provided, an outside area shall be designated for dogs (or cats) to relieve themselves, and that area shall be enclosed by a landscape buffer or masonry wall; (iv) an administrative site plan review (ASPR) shall be required, and the site plan shall show all fencing, berms, and soundproofing designed to mitigate the noise impact of the kennel on the surrounding properties.
b.
Vehicle Retail Showrooms shall only be permitted in accordance with the conditions set forth in Section 33-253(9.5) of this chapter.
c.
The following uses shall only be permitted if approved as special exceptions: on-site storage of vehicles; and outdoor pet kennels subject to the conditions set forth in Section 33-255(9.1) of this chapter, except that ASPR shall not be required if a site plan is approved upon public hearing.
9.
Drive-through facilities shall be permitted in all Sub-districts, provided that such facilities are concealed from streets by buildings or walls. Said walls shall be six (6) feet in height (except that in the ID category, walls shall be eight (8) feet in height) and shall be placed at the build-to line.
10.
Gas/Service stations shall:
a.
Be permitted, subject to the Building Placement Standards set forth in section 33-284.85: in the MCS category in all Sub-districts; in the MCI and Industrial (ID) categories in the Center and Edge Sub-districts; and in the MC category, subject to the requirements set forth in footnote 19; and
b.
Be exempt from the minimum height requirements.
11.
Liquor package stores shall be permitted only in the Core and Center Sub-district and only in compliance with Article X of this chapter and all other applicable regulations of this Code.
12.
In the RM category, accommodation uses shall be permitted only in conjunction with an owner-occupied residence; the total number of units shall not exceed the density permitted by the land use designation. In the MM, MC, MO, MCS, MCI, and ID categories, hotel/motel uses shall not exceed seventy-five (75) units per net acre or the maximum density permitted by the land use category, whichever is greater. For all density calculations required by this subsection, one hotel room shall equal one dwelling unit.
13.
Outdoor table service and outside walk-up window service in conjunction with restaurants and coffee houses may be provided subject to the following requirements:
a.
The restaurant furniture located on the sidewalk shall maintain a minimum five (5) foot wide obstacle-free corridor for pedestrian circulation along the sidewalk.
b.
Alcoholic beverages may be served outdoors only where such service is strictly incidental to the service of food.
14.
Commercial parking garages shall meet the requirements of Section 33-284.86(F)(6) of this article.
15.
In the R and RM categories, child care uses shall be subject to the requirements for such uses in the RU-1 District, as set forth in Section 33-199 of this chapter, except that the total number of children may exceed five (5) if approved as a special exception.
16.
Adult entertainment uses, as defined in Section 33-259.1 of this chapter, shall be prohibited in all land use categories except MCI and ID. In the MCI and ID categories, such adult entertainment uses shall only be permitted if approved as special exceptions.
17.
Only the following uses shall be permitted in connection with a residence in a live-work unit in the MCI and ID land use categories:
a.
Antique shops.
b.
Art goods stores, artist studios, galleries.
c.
Artisanal use.
d.
Bait and tackle shops.
e.
Bakeries.
f.
Cabinet shops.
g.
Dance studios.
h.
Dry cleaning and dyeing establishments.
i.
Engines, sales and service.
j.
Glass installation.
k.
Health and exercise clubs.
l.
Interior design shops.
m.
Leather goods manufacturing, excluding tanning.
n.
Locksmith shops, sharpening and grinding shops.
o.
Mail order office, including storage of products.
p.
Office uses.
q.
Photography labs.
r.
Pottery shops.
s.
Printing shops.
t.
Restaurants, excluding drive-through service.
u.
Secondhand stores.
v.
Shoe stores and shoe repair shops.
w.
Upholstery and furniture shops.
x.
Wholesale salesrooms.
y.
Other similar uses as determined by the Director.
18.
In the Residential (R) area, multi-family apartments are permitted provided that all of the following requirements are met:
a.
The overall density does not exceed that allowed on the density regulating plan; and
b.
The building height conforms with the building heights regulating plan; and
c.
The multi-family buildings conform with the Rowhouse/Multi-family building placement standard; and
d.
Curbs and gutters are provided along all streets.
19.
Gas/Service Station in the MC Category shall:
a.
Be located no closer than within 0.5 miles of the center point of an Urban Center as designated on the CDMP Land Use Plan Map;
b.
Have a maximum lot size of 1.25 acres;
c.
Have a maximum of 6 gas pump islands (equivalent to a total of 12 fueling positions);
d.
Have a maximum size of principal structure, including fresh food area, of 3,500 square feet;
e.
Have a minimum of 15 percent of the principal structure consist of a fresh food area, meaning an area for the sale and service of perishable food, such as coffee, fruit, salad, sandwiches, or pizza; and
f.
Have a continuous, pedestrian-friendly walkway in front of the principal structure and along all roadways and driveways, established by decorative concrete, landscape elements, or similar, integrated landscape and hardscape elements that define and shape the pedestrian area.
(Ord. No. 05-143, § 3, 7-7-05; Ord. No. 07-93, § 2, 7-10-07; Ord. No. 08-102, § 1, 9-2-08; Ord. No. 12-86, § 2, 10-2-12; Ord. No. 13-82, § 3, 9-17-13; Ord. No. 16-67, § 5, 7-6-16; Ord. No. 17-46, § 1, 7-6-17; Ord. No. 18-02, § 1, 1-23-18; Ord. No. 18-136, § 5, 11-8-18; Ord. No. 20-110, § 11, 10-6-20)
1.
A set of Regulating Plans shall be provided with each adopted Urban Center or Urban Area District. As provided in section 33-305 of this chapter, the Regulating Plan maps for each district shall thereafter be maintained by the Director and kept on file with the Department and shall be amended, modified, and changed by resolution of the County Commission. The Regulating Plans shall consist of a series of controlling plans that include the following:
A.
The Street Types Plan, which establishes a hierarchy of street types in existing and future locations that shall be provided and shown in all development plans.
B.
The Sub-districts Plan, which delineates three (3) sub-districts: Core, Center and Edge. These Sub-districts shall regulate the allowable intensity of development in accordance with the Comprehensive Development Master Plan and this article.
C.
The Land Use Plan, which delineates the areas where specified land uses and development of various types and intensities shall be permitted.
D.
The Designated Open Space Plan, which designates open spaces, which shall be shown in all development plans. The designated open spaces shall be controlled by anchor points.
E.
The New Streets Plan, which shows the location and the number of new streets needed to create the prescribed network of streets within each Urban Center or Area District. All new A streets shall be required in the same general location as shown on the New Streets Plan. All B streets shall be located as provided in section 33-284.86(C) of this article.
F.
The Bike Route Plan, which depicts the designated bike routes, including the bike facility requirements if any, which shall be shown in all development plans.
2.
Repeal of previously approved density and building height regulating plans. For the following urban center and urban area districts, all previously approved Density and Building Heights regulating plans, and any provisions of Land Use regulating plans that specify residential density, are hereby repealed: Naranja Community Urban Center (Article XXXIII(J)); Goulds Community Urban Center (Article XXXIII(L)); Princeton Community Urban Center (Article XXXIII(M)); Perrine Community Urban Center (Article XXXIII(N)); Ojus Urban Area District (Article XXXIII(O)); Cutler Ridge Metropolitan Urban Center, (Article XXXIII(P)); Leisure City Community Urban Center (Article XXXIII(Q)); Model City Urban Center (Article XXXIII(R)); North Central Urban Area (Article XXXIII(S)); Bird Road Corridor Urban Area (Article XXXIII(U)); and Country Club Urban Area (Article XXXIII(V)).
(Ord. No. 05-143, § 4, 7-7-05; Ord. No. 12-86, § 3, 10-2-12; Ord. No. 16-91, § 6, 9-7-16; Ord. No. 18-124, § 2, 10-2-18; Ord. No. 20-97, § 2, 10-6-20)
A.
Maximum Density and Building Height Range Tables. Notwithstanding any other provision to the contrary, the following tables set forth the maximum residential densities and building heights for developments in each urban center or urban area district:
1.
For Land Use Categories RM, RML, MO, MC, MM, MCS, MCI, SD (Marketplace), SD (Storeporch), AD, MD (Market), ID, and I.
2.
For Land Use Category R.
B.
Intensity Standard. Notwithstanding any other provision to the contrary, to ensure consistency with CDMP policies requiring high intensity, well-designed urban centers and promotion of transit-oriented development, each property in an urban center or urban area district shall be developed in accordance with the following minimum intensity standards:
1.
The development shall be consistent with the height ranges set forth in the table above; or
2.
The development shall provide the applicable minimum floor-area ratio:
a.
In community urban center or urban area districts, except the Ojus Urban Area District:
i.
In the Edge Sub-district, a minimum floor area ratio of 0.5;
ii.
In the Center Sub-district, a minimum floor area ratio of 1; and
iii.
In the Core Sub-district a minimum of floor area ratio of 1.5.
b.
In metropolitan urban center districts and in the Ojus Urban Area District:
i.
In the Edge Sub-district, a minimum floor area ratio of 1.5;
ii.
In the Center Sub-district, a minimum floor area ratio of 1.75; and
iii.
In the Core Sub-district, a minimum floor area ratio of 3.
3.
Properties designated R shall not be subject to these minimum intensity requirements.
C.
Compatibility with single-family residential areas. At the time of administrative site plan review, in addition to any other applicable criteria, the Department shall review applications to mitigate impacts of the proposed development on single-family residential areas.
(Ord. No. 18-124, § 3, 10-2-18; Ord. No. 19-47, § 1, 6-4-19; Ord. No. 19-120, § 1, 12-3-19; Ord. No. 20-97, § 2, 10-6-20)
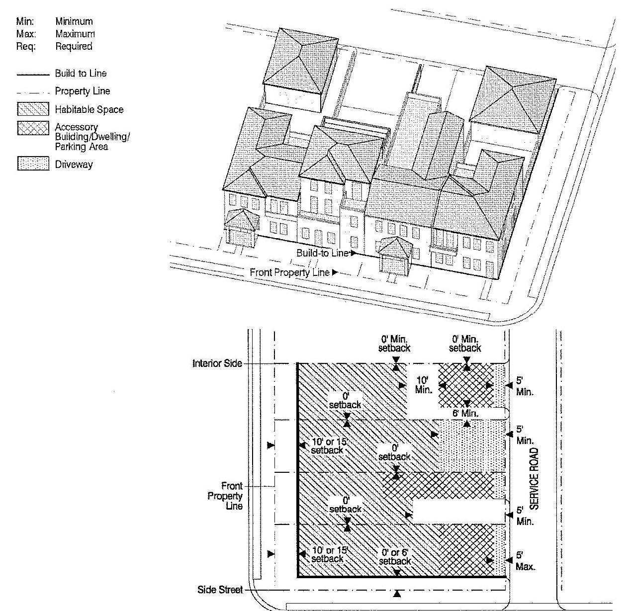
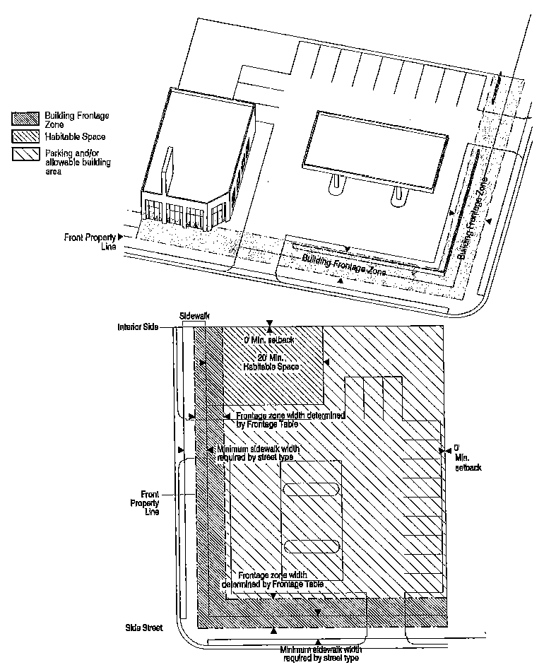
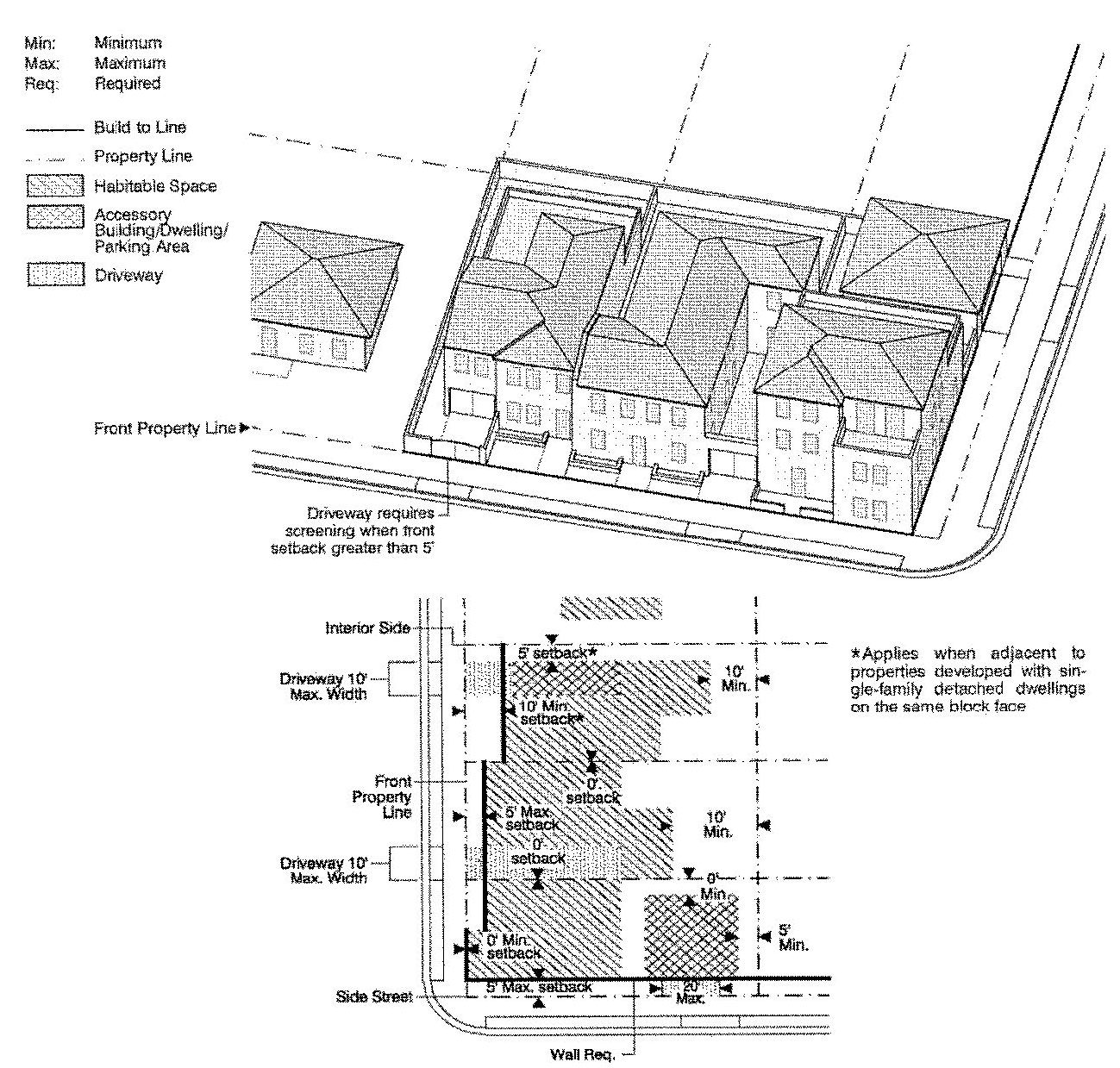
A.
The diagrams in paragraph (G) of this section establish the Building Placement Standards by land use category. Building frontage and setback areas shall be required as illustrated in the Building Placement Standards Diagrams.
B.
Where Building Placement Standards Diagrams reference a Frontage Table, such table specific to each Urban Center or Area District shall be provided in the regulations for each individual District. It is provided, however, that colonnades may be placed on the property line regardless of any such frontage requirements. Unless otherwise provided, the colonnade height and width shall be in accordance with Section 33-284.86(B) of this article. When a Frontage Table is not provided in the individual Urban Center or Area District regulations, building setbacks shall be required as set forth in the following table:
Standard Frontage Table
C.
In all Sub-districts, mixed-use, non-residential, and multi-family, developments shall comply with the following:
1.
Minimum building frontage requirements may be met by a single building, multiple buildings or multi-phased developments, and such requirements shall apply along the front property line only.
2.
Where a minimum number of stories is required, said stories above the second story may be set back further than the requirements set forth in the Building Placement Standards Diagrams.
3.
To articulate the building facade, fifty (50) percent of the portion of the building required to be located along the build-to line may be recessed up to two (2) feet. Further, once the minimum building frontage requirement is met, the remainder of the building may be set back from the build-to line.
4.
A portion of the building may be set back up to twenty-five (25) feet to accommodate a forecourt.
5.
Belfries, chimneys, spires/steeples, and other such non-habitable structures shall comply with Section 33-55 of this chapter.
6.
Accessory buildings shall follow parking and/or allowable building area setbacks provided in the Building Placement Standards Diagrams.
D.
In all Sub-districts, accessory buildings for rowhouse, courtyard, sideyard, single-family detached, duplex and urban villa shall follow the accessory building/dwelling/parking area setbacks provided in the Building Placement Standards Diagrams.
E.
In all Sub-districts, for all land use categories, accessory structures shall be permitted provided that they do not encroach on the front and side street setbacks.
F.
The table below identifies the Building Placement Standards that apply to each Land Use Category:
G.
Building Placement Standards Diagrams.
1.
Mixed Use, Multi-Family:
a.
Building Frontage Required: Seventy (70) percent minimum at build-to line. Minimum frontage requirement applies along the front property line only.
b.
Build-to lines or street setback requirements shall be measured from the edge of sidewalk.
c.
All on-site parking shall be accessed from a service road or the lowest ranking street.
d.
The vehicular entry width permitted shall be a maximum of thirty-three (33) feet.
e.
The minimum interior side/rear setback for the pedestal, tower, and penthouse shall be zero (0) feet.
f.
Where a wall or fence is used to screen parking areas along streets, a five (5) foot landscape strip with a hedge shall be required in front of the wall or fence.
g.
Colonnades shall be two (2) stories high and a minimum of fifteen (15) feet deep. The colonnade depth shall not exceed the colonnade height. The exterior of the colonnade shall be no closer than two (2) feet from the curb line.
2.
Mixed Use, Multi-Family:
a.
Building Frontage Required: Seventy (70) percent minimum at build-to line in all Sub-districts. Minimum frontage requirement applies along the front property line only.
b.
Build-to lines or street setback requirements shall be measured from the edge of sidewalk.
c.
The interior side/rear setbacks shall be as shown above.
d.
When provided, the front setback shall be hard surfaced and finished to match the adjoining sidewalk. A minimum of five (5) feet clear width within the setback shall be kept unobstructed for pedestrians.
e.
All on-site parking shall be accessed from the service road or lowest ranking street.
f.
Where a wall or fence is used to screen parking areas along streets, a five (5) foot landscape strip with a hedge shall be required in front of the wall or fence.
g.
Above the fourth story the setback shall be from the property line.
3.
Industrial:
a.
Building Frontage Required: Twenty-five (25) percent minimum at build-to line. Minimum frontage requirement applies along the front property line only.
b.
Build-to lines or street setback requirements shall be measured from the edge of sidewalk.
c.
For industrial uses, any part of the build-to line not occupied by a building shall have an eight (8) foot high masonry wall, not pierced except to provide pedestrian and vehicular ingress/egress.
d.
For all other uses permitted in the ID category, walls, fences and hedges shall be provided in accordance with Section 33-284.86(H) of this article, and where a wall or fence is used to screen parking areas along streets, a 5-foot landscape strip with a hedge shall be required in front of the wall or fence.
e.
The interior side/rear setbacks shall be as shown above.
f.
When provided, the front setback and side street setback shall be landscaped or hard surfaced and finished to match the adjoining sidewalk.
g.
Above the fourth story the setback shall be from the property line.
h.
All on-site parking shall be accessed from a service road or from the lowest ranking street.
4.
Rowhouse, Multi-Family:
a.
Building Frontage Required: Seventy (70) percent minimum at build-to line. Minimum frontage requirement applies along the front property line only.
b.
Front and side street setback requirements shall be measured from the edge of sidewalk.
c.
All on-site parking shall be accessed from the service road or lowest ranking street.
d.
The front setback and, when provided, the side street setback shall be landscaped.
e.
Where a wall or fence is used to screen parking areas along streets, a five (5) foot landscape strip with a hedge shall be required in front of the wall or fence.
f.
Above the fourth story the setback shall be from the property line.
5.
Rowhouse:
a.
Building Frontage Required: One hundred (100) percent at build-to line except at end of building groups. Minimum frontage requirement applies along the front property line only.
b.
Front and side street setback requirements shall be measured from the edge of sidewalk.
c.
For Rowhouses all on-site parking shall be accessed from the service road.
d.
The front setback and, when provided, the side street setback shall be landscaped.
e.
Common parking facilities shall be permitted.
6.
Courtyard, Sideyard:
a.
For Sideyard and Courtyard Houses, all on-site parking shall be accessed from the service road.
b.
Front and side street setback requirements shall be measured from the edge of sidewalk.
c.
Any part of the build-to line not occupied by a building shall have a masonry wall with a minimum height of forty-two (42) inches and a maximum height of seventy-two (72) inches, not pierced except to provide pedestrian and vehicular ingress/egress.
d.
The front setback and, when provided, the side street setback shall be landscaped.
7.
Single-Family:
a.
All on-site parking shall be accessed from the service road, where provided.
b.
Front and side street setback requirements shall be measured from the edge of sidewalk.
c.
For lots with frontages between fifty (50) and seventy-five (75) feet, the minimum interior side setback shall be ten (10) percent of the lot frontage; for lots with frontage greater than seventy-five (75) feet, the interior side setback shall be a minimum of seven and a half (7.5) feet.
d.
The front and side street setback shall be landscaped.
8.
Single-Family:
a.
All on-site parking shall be accessed from the street as shown above.
b.
Front and side street setback requirements shall be measured from the edge of sidewalk.
c.
The front and side street setback shall be landscaped.
d.
Any part of the build-to line not occupied by a building shall have a masonry wall with a minimum height of forty-two (42) inches and a maximum height of seventy-two (72) inches, not pierced except to provide pedestrian and vehicular ingress/egress.
e.
Driveways between the front property line and build-to line shall be a maximum of ten (10) feet wide.
9.
Duplex:
a.
All on-site parking shall be accessed from the service road.
b.
Front and side street setback requirements shall be measured from the edge of sidewalk.
c.
The front and side street setback shall be landscaped.
10.
Duplex:
a.
This building standard shall only be permitted on existing platted lots less than twelve thousand (12,000) square feet in area.
b.
Front and side street setback requirements shall be measured from the edge of sidewalk.
c.
All on-site parking shall be accessed from the street as shown above.
d.
Any part of the build-to line not occupied by a building shall have a masonry wall with a minimum height of forty-two (42) inches and a maximum height of seventy-two (72) inches, not pierced except to provide pedestrian and vehicular ingress/egress.
e.
Driveways between the front or side street property lines and build-to line shall be a maximum of ten (10) feet wide.
f.
The front and side street setback shall be landscaped.
11.
Civic:
a.
All on-site parking shall be accessed from the service road, where provided. For properties without an adjoining service road, parking may be accessed from the street through a driveway as shown above.
b.
Build-to lines and street setback requirements shall be measured from the edge of sidewalk.
c.
When on-site parking is provided, the off-street parking spaces shall be placed to the rear of the building.
d.
Civic uses shall not be required to comply with height requirements indicated on the Building Heights Plan.
e.
When provided, the front and side street setback areas shall be treated as a green or plaza. When treated as a plaza, the setback area shall not be required to be fronted by mixed-use, retail, or office uses. When treated as a plaza or green, the plaza or green shall be in addition to any designated open space required by the regulating plan.
f.
Where a wall or fence is used to screen parking areas along streets, a five (5) foot landscape strip with a hedge shall be required in front of the wall or fence.
12.
Urban Villa:
a.
Building Frontage Required. Eighty (80) percent minimum at build-to line. Minimum frontage requirement applies along the front property line only. At least fifty (50) percent of Urban Villas along a block face shall provide a walled court or patio between the front property line and the building face; maximum setback shall be fifteen (15) feet only where such court or patio is provided.
b.
Front and side street setback requirements shall be measured from the edge of sidewalk.
c.
Parking shall be accessed from the street as shown above. Garage entrances accessed from the front property line shall be a maximum of ten (10) feet in width and no further than ten (10) feet from the front property line. Walled courts or patios shall not be used for parking.
d.
The minimum height for an Urban Villa shall be two (2) stories.
e.
The front setback, and when provided, the side street setback, shall be landscaped.
13.
Gas/Service Station:
a.
Building Frontage Required. 40 percent minimum within or adjoining the Building Frontage Zone. Minimum frontage requirement applies along the front property line only.
b.
A continuous street façade consisting of buildings or walls along all streets except driveways shall be required; walls shall not exceed 3.5 feet in height and shall be a minimum of 75 percent opaque.
c.
Building Frontage Zone width shall be measured from the property line.
d.
Except for required tree grates, tree planters, or hedges along walls, Building Frontage Zone shall be hard-surfaced and finished to match the adjoining sidewalk. A minimum of five feet clear width within the setback shall be kept unobstructed for pedestrians.
e.
Setbacks for pump island canopies shall comply with section 33-47.
(Ord. No. 05-143, § 5, 7-7-05; Ord. No. 06-10, § 2, 1-24-06; Ord. No. 07-93, § 3, 7-10-07; Ord. No. 07-169, § 8, 11-6-07; Ord. No. 08-102, § 2, 9-2-08; Ord. No. 12-86, § 4, 10-2-12; Ord. No. 17-46, § 2, 7-6-17; Ord. No. 18-02, § 1, 1-23-18)
A.
Lots and blocks. The following shall be required:
B.
Buildings.
1.
Storefronts shall be provided on the first floor of mixed-use buildings, and shall be directly accessible from a street frontage or a designated open space as follows:
a.
For properties with two or more frontages, storefronts shall be located on a minimum of two frontages, with priority given to frontages on a designated open space and the highest ranking street.
b.
Storefronts shall have a transparent clear glazed area of not less than seventy (70) percent of the facade area and shall be occupied by habitable uses that generate pedestrian activity and provide surveillance of the street. Security enclosures, if any, shall be of the mesh type that pedestrians can see through, and shall be located behind storefront displays.
2.
All colonnades shall comply with the following:
a.
Finished floor elevation of the colonnade shall match the adjoining sidewalk.
b.
Colonnades shall have a minimum unobstructed clear height of ten (10) feet and a minimum clear width of ten (10) feet. Awnings shall be permitted but shall not count towards the required colonnades. Colonnades shall not cause roof drainage into the street. Colonnades shall be attached to buildings. In no instance shall the depth of a colonnade exceed the colonnade's height.
c.
Freestanding colonnades shall not satisfy the build-to line requirement.
3.
A minimum of thirty (30) percent of all building streetwalls shall be fenestrated with windows. Mirror type glass shall be prohibited. All glazing shall be of a type that permits view of human activities and spaces within the structure. Colonnade column spacing, windows, and doors shall be proportioned such that the height of each opening is greater than its width. At least fifty (50) percent of the area of security screens and gates shall be transparent.
4.
The height of an accessory building shall not exceed the height of the principal building.
5.
An open, covered, or paved connection between an accessory building and a single-family detached house, urban villa, courtyard house, sideyard house, duplex, or rowhouse may be built within the minimum required ten (10) foot spacing as shown in the Building Placement Standards set forth in Section 33-284.85 of this article.
6.
Weather protection features shall be required when storefronts are provided in the MM, MC, MO, MCS, and MCI categories. In the ID category, weather protection features shall be required when the front setback is hard surfaced.
7.
Awnings, balconies, stoops, stairs, open porches, and bay windows shall be permitted to extend into the minimum required setbacks, to a maximum of:
Roof eaves, chimneys, signs, and ramps may encroach into all setbacks. Porticoes, canopies, and colonnades shall be guttered, and drainage shall be deposited onsite.
8.
Where a zero (0) foot setback is permitted, roof eaves, bay windows, and balconies may encroach beyond the property line a maximum of three (3) feet, except when abutting private property. In all Sub-districts, awnings may encroach into the street no more than six (6) inches from the face of the curb. All street encroachments shall be a minimum of eleven (11) feet above the sidewalk.
9.
In the Edge Sub-district, accessory buildings shall be permitted to have balconies or bay windows that encroach a maximum of three (3) feet into the rear yard setback.
10.
Service areas shall be located out of the view from adjacent properties or from the street and shall be screened by a wall or fence in accordance with Subsection (H) below.
11.
The primary entrance of a building shall provide access to a street or a designated open space. The primary entrance to the upper levels of a mixed-use building with colonnades shall be through the colonnaded area along the front property line.
12.
Each story shall have a maximum height of sixteen (16) feet, as measured from floor to floor. Any height above sixteen (16) feet shall count as an additional story, except as follows:
a.
Buildings with less than six (6) stories may have a single story with a maximum height of thirty (30) feet, provided that no mezzanine area intended for commercial use exceeds ten (10) percent and no mezzanine area intended for residential use exceeds eighty (80) percent of the floor area of that story. Multiple levels of parking shall be permitted within this single story provided that they are in compliance with Subsection (F)(6) below.
b.
Buildings with six (6) or more stories, may have two stories with a maximum height of thirty (30) feet, provided that no mezzanine area intended for commercial use exceeds ten (10) percent and no mezzanine area intended for residential use exceeds eighty (80) percent of the floor area of a story. Multiple levels of parking shall be permitted within these two stories provided that they are in compliance with Subsection (F)(6) below.
13.
Notwithstanding the building heights regulating plans, rowhouses may have up to three (3) stories.
14.
A live-work unit shall have two components: a workshop and a residential unit. The workshop shall be located on the first floor and shall be directly accessible from the primary street frontage or a designated open space. The workshop's facade shall have a transparent clear glazed area of not less than seventy (70) percent of the facade. The residential component of a live-work unit shall connect internally with the work component.
15.
Projects with fifty (50) or fewer single-family units shall have a minimum of three (3) substantially different front elevations. Projects with more than fifty (50) and up to one hundred (100) single-family units shall have a minimum of five (5) substantially different front elevations and shall provide, within each block, a minimum of two (2) different single-family building types. Projects with more than one hundred (100) single-family units shall have a minimum of five (5) substantially different front elevations and shall provide, within each block, a minimum of three (3) different single-family building types. Substantially different front elevations shall include variations in fenestration, material, and color.
16.
Rowhouses shall provide a minimum of fifteen (15) feet between building groups and the length of a building group shall not exceed two hundred forty (240) feet.
17.
Floorplates above eight (8) stories shall not exceed twenty thousand (20,000) square feet. Cantilever balconies shall not count towards floor plate calculation.
18.
Civic use designated parcels and lots with less than twenty-five thousand (25,000) square feet shall not be required to comply with the minimum height requirement on the Building Heights Plan.
C.
Streets, Service Roads and Utilities. All streets and service roads shall comply with the Street Types parameters as set forth in this section.
1.
Typical Minor Street Illustration.
*
Refer to column B in the Street Types Table for required landscape elements.
**
Curb and gutter between the sidewalk and parking/travel lanes may be utilized in place of the valley gutter illustrated.
2.
Typical Two-Lane Boulevard Street Illustration.
*
Refer to column B in Street Types Table for required landscape elements.
**
Curb and gutter between the sidewalk and parking/travel lanes may be utilized in place of the valley gutter illustrated.
3.
Typical Four-Lane Boulevard Street Illustration.
*
Refer to column B in Street Types Table for required landscape elements
**
Curb and gutter between the sidewalk and parking/travel lanes may be utilized in place of the valley gutter illustrated
4.
Street Types Development Parameters.
Footnotes:
a.
Landscape area is exclusive of the minimum sidewalk width.
b.
Street trees shall have a minimum caliper of six (6) inches at time of planting.
c.
Permanent irrigation is required.
d.
Tree grates shall have a minimum area of twenty-four (24) square feet; tree planters shall have a minimum area of thirty-two (32) square feet; continuous landscape strips shall have a minimum width of six (6) feet in the Core and Center Sub-districts, eight (8) feet in the Edge Sub-district.
e.
In all Sub-districts, curbs and gutters shall be provided at all intersections and roadway edges of arterials, boulevards and Main Street; in Core and Center Sub-districts, curbs and gutters shall be provided at all intersections and roadway edges of minor streets.
f.
On-street parking shall count towards the minimum required parking.
g.
Bike lanes shall be four (4) feet in width when adjacent to curb or swale; five (5) feet in width when adjacent to a parking lane.
h.
The minimum required width of one-lane/one-way travel lanes shall be determined by the Department of Public Works and Waste Management and Fire Rescue Department on a case-by-case basis during the Administrative Site Plan Review process (ASPR).
i.
The use of permeable materials to pave private street sidewalks, on-street parking, and vehicular drives is permitted. Use of permeable materials to pave public street sidewalks, on-street parking and vehicular drives shall require approval from the Director of the Department of Public Works and Waste Management.
5.
All streets shall be located according to the New Streets Plan.
a.
All new A streets shall be in the same general location shown on the New Streets Plan and may be modified with respect to alignment, provided that the final realignment does not compromise street connectivity. No new A streets shall be deleted.
b.
B streets and service roads shown on the New Streets Plan are encouraged to promote connectivity and to conform with block length requirements. New B streets and service roads may be modified or deleted as provided in paragraph (6) below.
c.
All streets shall allow general public access. Privately built streets shall provide an approved plat restriction to allow general public access. No gates that impede through traffic are permitted along A or B streets.
6.
[Modification approval.] The Director shall approve the modification of A or B streets or service road or the deletion of a B street if the following conditions are satisfied:
a.
The modification/deletion has been approved by the Director of the Public Works and Waste Management Department who shall review the proposed modification for traffic and safety issues.
b.
The modification/deletion does not diminish the general size and location of an open space shown in the Designated Open Space Plan.
c.
The modification/deletion maintains connectivity to the surrounding area.
d.
The modification/deletion enhances pedestrian safety.
e.
The modification/deletion is compatible with the surrounding area.
f.
The modification/deletion allows for the appropriate use of private property.
7.
[Design compliance.] The design of new streets and modifications of existing streets shall comply with the following requirements:
a.
Streets shall be in accordance with the Street Types Development Parameters criteria set forth in this section.
b.
All streets and service roads shall connect to other streets or service roads. Dead-end streets and T-turnarounds shall only be permitted temporarily for new streets when the adjacent property is not platted, not developed, or both. When the adjacent property is platted or developed, a street shall connect to existing development and the dead-end street or T-turnaround removed.
c.
Cul-de-sacs shall be prohibited, except that a close shall be permitted when:
i.
A street is interrupted by a natural barrier such as a river, protected land, or similar natural resource designated by Miami-Dade County or any government agency responsible for the protection of such natural resources; and
ii.
Such agency prohibits the street to continue through said natural resource; and
iii.
Existing development adjacent to or near the natural resource does not provide a means for the street to connect to the existing or proposed street network.
The median of such a close shall be landscaped. The landscaped area shall be maintained by a special taxing district, homeowner's association or other mechanism acceptable to the Department of Public Works and Waste Management to positively provide for the proper and continuous payment of maintenance without expense to general taxpayers.
d.
All sidewalks shall provide the following:
i.
Minimum width of six (6) feet, unless a different width is required by the Street Types Development Parameters set forth in this section;
ii.
Minimum unobstructed area of sixty (60) inches;
iii.
Where a colonnade is required, free and clear use of a continuous unobstructed area of at least sixty (60) inches within the colonnade; and
iv.
No utility poles, fire hydrants or any other temporary or permanent structures within the unobstructed area.
e.
Where on-street parking is provided, parking lanes shall be no closer than twenty-five (25) feet from the intersection measured from the outermost corner of the nearest corner property line.
f.
Maximum curb radii at intersections shall not be larger than required for the safe travel of emergency and service vehicles.
g.
Curbs and gutters shall be provided as follows:
i.
All Sub-districts: At all intersections and roadway edges of arterials, boulevards and Main Street.
ii.
Core and Center Sub-districts: At all intersections and roadway edges of minor streets.
iii.
Edge Sub-district: Not required, except when indicated by the urban center street type development parameters.
h.
Utilities other than fire hydrants shall run underground.
i.
Buildings placed at the end of a Street Vista may provide one additional story above that otherwise permitted by the Building Heights Regulating Plan; such additional story shall occupy up to fifteen (15) percent of the floor area of the story immediately below.
j.
Service roads may occur within buildings.
k.
Service road access from the front property line shall be limited to one (1) point of access for every two hundred fifty (250) feet of frontage.
D.
Open Spaces and Recreation Areas.
1.
Open spaces under this article shall be classified as (a) designated or (b) private open spaces.
a.
Designated open spaces shall be subject to the following requirements:
i.
The general location, area, and dimensions shall conform with the Designated Open Space Plan. The street area on the side adjoining the designated open space and consisting of the curb, street tree landscape strip and sidewalk shall count towards the square footage of the open space.
ii.
Designated open spaces shall include the anchor point depicted on the Regulating Plan, and shall be provided at grade level.
iii.
Provided that all other parameters on the Designated Open Space Plan are met and that an individual/developer owns the entire designated open space area and an adjacent area, the final location of the designated open space may be pivoted around its anchor point onto such adjacent area, allowing the area previously designated as open space to be developed as permitted in the land use regulating plan.
iv.
Designated open spaces shall be provided in the form of squares, greens, or plazas as provided in the Designated Open Space Plan. Golf courses and parking lot buffers shall not count towards the designated open space requirement. Fifty (50) percent of an area designated as open space may contain a lake.
v.
No replatting or other land subdivision shall divide property in such a way that required designated open space is avoided or its location changed.
vi.
Designated open spaces shall be shaded, and their ground surface shall be a combination of paving materials, lawn, or groundcover.
vii.
If a lot or group of lots is designated entirely as open space in the Designated Open Space Plan, half of the lot or group shall be developable in a contiguous pattern and at a density in compliance with its land use designation for the entire parcel. Two (2) additional stories above the number of stories permitted by the Sub-districts and Building Heights Plans shall be permitted. Under this circumstance, the developable portion shall not be required to comply with the private open space requirement for residential development provided herein.
viii.
If a lot or group of lots is designated partially as open space in the Designated Open Space Plan, the portion not designated as open space shall be developable in a contiguous pattern at a density/intensity which will equal the density/intensity permitted by the land use designation for the entire parcel. Up to an additional two (2) stories above the number of stories permitted by the Sub-districts and Building Heights Plans shall be permitted to allow the increased density/intensity only.
ix.
Around designated open spaces, the building's frontage, height and placement shall be in accordance with the Building Placement Standards set forth in Section 33-284.85 of this article.
b.
Private open spaces shall be subject to the following requirements:
i.
Private open spaces shall be provided in the form of colonnades, courtyards, terraces, lawns, community gardens, and landscaped roof terraces/gardens on buildings or garage structures. Designated open spaces shall count towards the private open space requirement. Lakes, golf courses, and parking lot buffers shall not count towards the open space requirement.
ii.
All residential developments, except for multi-family residential and live-work units, shall provide a minimum of four hundred (400) square feet of private open space per lot, in the form of courtyards, terraces, or lawns.
iii.
All multi-family residential, nonresidential and mixed-use developments shall reserve a minimum of ten (10) percent of the site for common, private open space.
iv.
Private open spaces shall be shaded, and their ground surface shall be a combination of paving materials, lawn, ground cover, flowers, fruits or vegetables. Enclosures of private open spaces shall comply with subsection (H) below.
c.
Community gardens shall be permitted in all land use categories to satisfy private open space requirements, subject to the following restrictions:
i.
Cultivated and harvested products may only be sold at permitted farmers markets and at grocery stores.
ii.
The raising or sale of livestock or poultry is prohibited.
iii.
Only handheld tools shall be permitted in the cultivation and harvesting process. Use of heavy agriculture equipment is prohibited.
iv.
All tools, equipment and products used to grow and harvest plant material shall be stored in an enclosed structure subject to the Building Placement Standards set forth in Section 33-284.85 of this article.
v.
Gardens shall only be tended between sunrise and sunset.
2.
Recreation Areas. Educational and child care facilities located within an Urban Center District shall be exempt from the outdoor recreation area requirements of Section 33-151.18(a) of this chapter and shall be required to provide indoor and/or outdoor recreation areas subject to the following requirements:
E.
Landscape. Except as provided herein, landscape shall be provided as required by Chapter 18A of this Code. In the Core and Center Sub-districts, landscape shall be provided as follows:
1.
Street trees shall be planted at a maximum of twenty-five (25) feet average on center, with a minimum six (6) inch diameter at breast height. Unless otherwise indicated by the Urban Center District or Area street type parameters, street trees shall be planted in one or more of the following methods of installation as required by Section 33-284.86(C)(4) above;
a.
Tree grates. Trees are planted within openings on the sidewalk. The openings shall be covered by permanently installed grates perforated to permit natural irrigation. The grates shall be installed flush with the surrounding sidewalk.
b.
Tree planters. Trees are planted within a raised planter located on the sidewalk. The planter shall be defined on all sides by a permanent masonry structure to consist of a minimum six (6) inch raised curb. The area within the planter, in addition to the required trees, shall be planted with ground cover, shrubs, or other appropriate plant material.
c.
Continuous landscape strips. Trees are planted in the area between the curb or roadway edge and the sidewalk. This area, in addition to the required trees, shall be planted with grass.
2.
For all land uses except for single-family or duplex, tree requirements for private property shall be based on sixteen (16) trees per net acre of lot area and, in addition to the placement on the lot, may be placed in greens, squares, plazas and medians within the Urban Center District or Area.
F.
Parking. Except as provided herein, parking shall be provided as required by Section 33-124 of this chapter.
1.
Multi-story parking garages, parking lots, and on-street parking shall count toward all parking requirements. In the event on-street parking spaces are removed due to roadway improvements, those removed spaces that were counted toward a development's parking requirement shall not cause that development to become nonconforming.
2.
At a minimum, parking shall be provided as follows:
Single Family Residential:
Single-family detached: 2 spaces/unit
Courtyard or sideyard house: 2 spaces/unit
Rowhouse or urban villa: 2 spaces/unit
Duplex: 2 spaces/unit
Multi-Family Residential:
1 spaces/1 bedroom unit
1.5 spaces/2 bedroom unit
1.75 spaces/3 or more bedroom units
Housing for the elderly: 0.5 spaces/unit
Hotel/Motel: 1 space/first 40 guest rooms and 1 additional space/ every 2 guest rooms or suites thereafter
General Retail/Personal Services and Entertainment Uses: 1 space/250 square feet of gross floor area
Professional Business Offices and Health Care Services: 1 space/400 square feet of gross floor area
Food/Beverage Establishments: 1 space/ 50 square feet of patron area
Industrial: shall comply with Section 33-124 of this chapter.
Live-work units:
(1) Residential component: 2 spaces/unit, and
(2) Workshop component: 1 space/325 square feet of workshop area
Live-work buildings:
(1) Residential component: shall comply with the multi-family residential requirements
described in this subsection, and
(2) Work space, nonresidential component: shall comply with Section 33-124, of this chapter.
Civic uses: shall comply with Section 33-124 of this chapter.
All other uses shall comply with the parking standards provided in Section 33-124 of this chapter. Educational and child care facilities located within a mixed-use building shall be exempt from the auto-stacking requirements of Section 33-151.18(c) of this chapter.
3.
Parking reduction. Development meeting certain criteria shall be permitted to reduce the number of parking spaces required. Specific use, location, and parcel requirements and permitted reductions are provided in the following table:
Developments meeting more than one of the use, location, and parcel criteria shall be permitted to combine each permitted reduction; the combined reduction shall be calculated by reducing the first applicable criteria from each group in the order of the table above.
4.
Mixed-use, multi-family residential, or non-residential developments in all Sub-districts may provide the required parking off-site, where the off-site parking is within seven hundred fifty (750) feet of the development and in a land use designation that is similar to or higher intensity than the land use designation of the development being served. Any certificate of use for mixed-use, multi-family residential, or nonresidential development shall immediately terminate in the event such parking area is not available. An applicant for approval of a mixed-use, multi-family residential or nonresidential development with off-site parking shall execute and record in the public records of this County a declaration of restrictions approved by the Director covenanting that such development shall cease and terminate upon the elimination of such parking area, and that no development requiring such parking shall be made of such property until the required parking area is available and provided.
5.
Except for detached single-family homes, courtyard or sideyard houses, and duplexes, all parking may be in the form of parking garage structures or parking lots which shall be located in the rear or on one side of the building, and shall be screened from the street. Parking is not permitted in setback areas required along street frontages.
6.
Parking garage structures shall be screened by a liner building containing a minimum depth of twenty (20) feet of habitable space for all stories along the primary frontage, and for parcels with three (3) or more frontages, on at least two (2) frontages. For all other frontages, architectural features of a parking structure shall appear consistent and harmonious with that of habitable space. On parcels having a lot depth at any one point of less than one hundred fifty (150) feet, as measured from the front property line, a liner building shall only be required on the ground floor. No vehicles parked within the structure shall be visible from the street.
7.
Mechanized parking shall be allowed for mixed-use, nonresidential, and multi-family developments and, when provided, shall be exempt from the provisions of Section 33-122 of this Code. For the purpose of this article, mechanized parking shall be defined as a mechanism with vertical and horizontal transport capability that provides for automobile storage and retrieval. A mechanized parking space shall be counted toward the parking requirements of this section. When provided, mechanized parking shall comply with the following:
a.
A queuing analysis is submitted and approved during the Administrative Site Plan Review process.
8.
Parking lots shall provide for vehicular connectivity to adjacent parking areas.
9.
The use of permeable materials for paving parking lots shall be permitted in the urban center districts.
10.
Parking for individuals with disabilities shall comply with the Florida Building Code.
11.
Parking for persons transporting strollers shall comply with Section 33-122.2 of this chapter.
12.
Individual parking garages for single-family homes shall count towards the parking requirement.
13.
In the Edge Sub-district, parking for detached single family homes and duplexes on platted lots of 12,000 square feet or less shall be subject to the following:
a.
Where there is no service road, parking shall be in the form of individual garages or carports accessed through a driveway from the street. When provided, attached garages and carports shall be located as provided in the Building Placement Standards set forth in Section 33-284.85 of this article.
b.
Along the front property line the maximum width of the driveways in front of the build-to line shall be ten (10) feet. On any other frontage the maximum width of the driveway shall be twenty (20) feet.
c.
The parking area shall be screened at the build-to line through the use of walls, hedges, or fences in accordance with Subsection (H) below and the Building Placement Standards set forth in Section 33-284.85 of this article.
d.
The sidewalk shall be continuous and remain at a constant level at all instances where a driveway intersects it.
14.
Required parking for single-family homes, courtyard or sideyard houses, duplexes, urban villas and rowhouses may be provided in a tandem configuration.
15.
Where a wall or fence is used for screening parking areas along streets, a five (5) foot landscape strip with a hedge shall be required in front of the wall or fence.
16.
The provisions of Section 33-131 of this chapter shall not apply to the required parking for mixed-use and nonresidential developments.
G.
Lighting.
1.
Street lighting shall comply with the following:
a.
Street lighting shall be provided in these areas: commercial and live-work unit driveways and parking areas, sidewalks and pedestrian passages, commercial establishment entryways, recreation areas, and multi-family residential common areas and entryways.
b.
Outdoor lighting of these areas shall comply with Section 33-4.1 of this chapter.
c.
All light fixtures shall be of a pedestrian scale, with a maximum height of eighteen (18) feet and a maximum spacing between fixtures of sixty (60) feet or such other spacing as may be required by the Department of Public Works and Waste Management, whichever is the most restrictive.
d.
The type and spacing of light fixtures shall be approved by the Department of Public Works and Waste Management or its successor. Approval shall be based on uniformity of types, location, right-of-way width, and luminosity.
e.
Weather and vandalism resistant covers shall protect all light fixtures.
f.
Streetlamps shall be installed on both sides of streets.
g.
Cobra-head lights shall not be permitted.
2.
Open parking lot, access road, and service road lighting shall be provided as required in Section 8C-3 of this Code. Lighting fixtures in these areas shall have a maximum height of eighteen (18) feet above grade.
____________
H.
Walls, fences, and hedges.
1.
The following shall be permitted:
2.
Hedges and shrubs shall be subject to Chapter 18A of this Code.
3.
Additional requirements for walls, fences and hedges may be included in the Building Placement Standards set forth in Section 33-284.85 of this article, and in the event of a conflict, the Building Placement Standards shall govern.
4.
Notwithstanding any other provision of this chapter to the contrary, in Targeted Urban Areas defined pursuant to Chapter 30A, Article VI, walls, fences, and hedges associated with residential, single-family homes that were legally established in accordance with a zoning district or zoning approval that predates the rezoning to urban center district shall be permitted to a maximum height of 72 inches, regardless of location.
5.
Notwithstanding any other provisions of this chapter to the contrary, where the front or side street of a residential use is a roadway of four or more lanes, hedges or electrostatic-plated aluminum or wrought iron fences may be located in front of the build-to line abutting a roadway and shall be permitted to a maximum height of 72 inches, provided that any fence is screened by landscaping with a height of at least 60 inches.
6.
Notwithstanding any other provisions of this chapter to the contrary, the maximum height for fences and walls for nonpublic educational and child care facilities subject to Article XA, and for public charter school facilities subject to Article XI, shall be as provided in section 33-11.
(Ord. No. 05-143, § 6, 7-7-05; Ord. No. 06-10, § 3, 1-24-06; Ord. No. 07-93, § 4, 7-10-07; Ord. No. 07-169, § 9, 11-6-07; Ord. No. 08-102, § 3, 9-2-08; Ord. No. 12-86, § 5, 10-2-12; Ord. No. 15-140, § 4, 12-1-15; Ord. No. 17-36, § 1, 6-6-17; Ord. No. 19-76, § 2, 9-4-19; Ord. No. 24-11, § 4, 2-6-24)
Except as provided herein, the definitions set forth in Section 33-84 of this chapter shall apply. In the event of a conflict, the provisions of this section shall govern. Non-commercial signs shall be allowed wherever commercial signs are allowed.
A.
For purposes of this section, the following definitions shall apply:
1.
Digital technology (signs): Electronic technology that allows for changes to a sign copy resulting from digital data input. Included in this technology are signs that use series of lights, including light emitting diodes (LED), fiber optics, or other similar technology.
2.
Nits: Luminance is the measure of the light emanating from an object with respect to its size and is the term used to quantify electronic sign brightness. The unit of measurement for luminance is nits (nt), which is the total amount of light emitted from a sign divided by the surface area of the sign [candelas per square meter (cd/m 2 )].
B.
Temporary Signs in MUCs and CUCs. Temporary signs (Class A) shall be permitted in compliance with Section 33-99 of this chapter.
C.
Permanent Point of Sale Signs. Permanent point of sale signs (Class B) shall be permitted as follows:
1.
The following permanent point of sale signs are permitted in all Sub-districts in conjunction with permitted business and industrial uses: flat attached, hanging, awning, cantilever, projecting, and monument. No other detached sign shall be permitted except monument signs.
a.
Projecting signs shall be mounted and perpendicular to the building.
b.
The copy of an awning sign shall only be located on the valance of the awning.
c.
The bottom of a hanging sign shall be located at a minimum height of eight (8) feet from the finished floor.
d.
Monument signs, which are freestanding, 2-faced signs, shall have a base at least seventy-five (75) percent of the horizontal width of the sign and located directly on the ground or a maximum of twelve (12) inches above grade.
e.
Cantilever signs are mounted on those portions of the building that project horizontally.
2.
Maximum size, location, and number of signs shall be as follows:
3.
Illumination/lighting shall comply with the following:
a.
All signs shall be static and shall not include digital technology, except as expressly provided for in this article. Signs illuminated by flashing, moving, intermittent, chasing or rotating lights are prohibited. Signs may be illuminated by exposed bulbs, fluorescent tubes, interior lighting, or by indirect lighting from any external source. Indirect lighting, such as floodlights, shall not shine directly on adjacent property, motorists or pedestrians. Illumination shall be such that it will provide reasonable illumination and eliminate glare and intensity which might pose safety hazards to drivers and pedestrians. Revolving and rotating signs shall be illuminated by internal lighting only.
b.
Where digital technology is allowed, it shall be provided in compliance with the following:
i.
No auditory message or mechanical sounds shall be emitted from the sign.
ii.
The sign shall not display any illumination that moves, appears to move, blinks, fades, rolls, dissolves, flashes, scrolls, shows animated movement, or changes in intensity during the static display period.
iii.
All digital signs shall be modulated so that, from sunset to sunrise, the brightness shall not be more than 500 Nits. Sunset and sunrise times are those times established by the Miami office of the National Weather Service. At all other times, the maximum brightness levels shall not exceed 5,000 Nits. All digital signs shall have installed ambient light monitors and at all times shall allow such monitors to automatically adjust the brightness level of the sign based on ambient light conditions.
iv.
The message display shall not change more often than once each eight seconds, with all moving parts or illumination moving or changing simultaneously.
v.
Any digital sign that malfunctions, fails, or ceases to operate in its usual or normal programmed manner shall immediately revert to a black screen and shall be restored to its normal operation conforming to the requirements of this section within 24 hours.
4.
Maximum heights shall be as follows:
a.
Six (6) feet above grade to top of sign for monument signs; except, for signs associated with nonconforming structures located on corner parcels fronting major or minor roads identified on the Land Use Plan, one monument sign may be constructed at a maximum height of twelve (12) feet above grade to top of sign in lieu of two six-foot signs;
b.
No height limits for flat attached, cantilever, or projecting signs;
c.
For signs painted on the facade of a building or on the valance of an awning, the copy shall not exceed one (1) foot.
5.
No setback is required for any sign. Cantilever, projecting, and awning signs may encroach into any required setback. Awning signs and projecting signs attached to awnings may encroach into the right-of-way. Where a zero (0) foot setback is permitted, cantilever and projecting signs may encroach into the right-of-way up to three (3) feet. Signs encroaching into the right-of-way shall be a minimum of eleven (11) feet above the sidewalk.
D.
Directional Signs. Directional signs, to direct traffic flow and locate entrances and exits shall be permitted on private property in connection with any permitted use. Detached directional signs shall not exceed three (3) square feet in area; directional signs attached to buildings shall not exceed twelve (12) square feet in area. The maximum height of a detached directional sign shall be ten (10) feet. Directional signs shall be shown and approved on site plans which indicate sign size, location, copy, etc.
E.
Flags. Each parcel may display no more than three (3) flags and three (3) flagpoles. Flagpoles shall not exceed seventy (70) feet in height. Flag dimensions shall be proportional to the pole such that the hoist side of the flag is not more than fifty (50) percent of the vertical height of the flagpole. For purposes of this section, "flag" means any fabric or bunting containing colors, patterns, or symbols.
F.
Kiosk signs. Kiosk signs shall be permitted in accordance with section 33-107.
G.
Prohibited Signs. The following types of outdoor signs shall be prohibited:
1.
Revolving, rotating, and other moving signs.
2.
Backlit signs of any type.
3.
Banners.
4.
Roof signs.
5.
Balloon signs.
6.
Class C commercial signs or other outdoor advertising, except those within bus shelters and kiosk signs as provided herein.
(Ord. No. 05-143, § 7, 7-7-05; Ord. No. 06-10, § 4, 1-24-06; Ord. No. 08-102, § 4, 9-2-08; Ord. No. 12-86, § 6, 10-2-12; Ord. No. 17-43, § 3, 7-6-17; Ord. No. 18-3, § 4, 1-23-18)
Except for individual single-family homes and duplexes, all applications for development approval within an Urban Center District that are not otherwise permitted as nonconforming uses or structures shall comply with the requirements of this article and with the site plan and architectural review criteria contained herein. Developments shall be processed and approved administratively as follows:
A.
Administrative site and architectural plan review.
1.
Purpose and intent. The purpose of the administrative site and architectural plan review is to encourage logic, imagination, innovation and variety in the design process and thereby ensure the congruity of the proposed development and its compatibility with the surrounding area.
2.
Review by Department. The Department shall review plans, including the exhibits listed below, for completeness and compliance with the aforementioned purpose, provisions of this article, including the Regulating Plans, and for compliance with the site plan review criteria provided herein.
3.
Review by other agencies. Additionally, all applications shall be reviewed by the following departments of Miami-Dade County and other public entities for potential impacts on infrastructure and other services resulting from the application: Department of Transportation and Public Works or its successor, Department of Solid Waste or its successor, Division of Environmental Resources Management or its successor, Miami-Dade Fire Rescue Department or its successor, the Miami-Dade County School Board, and such other County departments as the Director may deem appropriate to review the application. In the event the application indicates impacts on services and infrastructure provided by any of the foregoing, the applicant shall meet with the affected department or entity to discuss potential mitigation of the impacts and shall submit evidence to the Department of such discussion.
4.
Time for review. The Director shall issue a final decision within 21 days of the date of submission of the completed application. The applicant shall have the right to extend the 21-day period by an additional 21 days upon timely request made in writing to the Department. The Department shall have the right to extend the 21-day period by written notice to the applicant that additional information is needed. Denials shall be in writing and shall specifically set forth the grounds for the denial.
5.
Appeals. Any final decision of the Director may be appealed in accordance with the procedures established in this Chapter for appeals of administrative decisions relating to administrative site plan review.
B.
Applications for administrative site plan and architectural review under this Article shall be accompanied by exhibits prepared by registered architects and landscape architects which shall be submitted to the Department and shall include the following:
1.
Site plan(s) including:
a.
Sub-district location;
b.
Street layouts and designations as per this Article;
c.
Locations, shape, size, and height of existing buildings;
d.
Building exterior finish material;
e.
Indication of street vistas;
f.
Lot lines, setbacks and build-to lines;
g.
Location of open spaces including anchor points if applicable;
h.
Location of on-street and off-street parking including type of permeable materials if used on parking lots, loading facilities, and waste collection areas;
i.
Indication of signage;
j.
Indication of any site or building design methods used to conserve energy;
k.
Locations of backflow prevention devices and connections;
l.
Indication of the placement and type(s) of lighting fixtures illuminating roadways and parking areas; and
m.
Locations for loading and unloading of vehicular passengers, to: (i) accommodate passengers who use vehicles for hire or transportation network companies; and (ii) minimize impacts of passenger loading and unloading on the surrounding roadway network. A loading or unloading zone that is shared among adjacent or adjoining parcels may be permitted, provided that a safe pedestrian route to each parcel is provided.
2.
Landscape plans, including specifications of species of plant material, location, and size in accordance with this Article and Chapter 18A of this Code.
3.
Street cross-sections, including adjacent buildings and open space.
4.
Floor plans, elevations, and sections of all buildings, including total gross square feet of area for each floor and all dimensions relating to the requirements of this Article. A pattern book may be submitted for detached and attached single-family units including, at a minimum, unit plans and elevations, elevation of unit groupings, and typical design details such as street lamps, benches, fencing, and paving details.
5.
Figures indicating the following:
a.
Gross and net acreage;
b.
Total square footage for each use by type;
c.
Total number of dwelling units;
d.
Amount of passive and active open space in square feet; and
e.
Such other design data as may be needed to evaluate the project's compliance with the requirements of this Article and Chapter.
(Ord. No. 05-143, § 8, 7-7-05; Ord. No. 12-86, § 7, 10-2-12; Ord. No. 19-51, § 32, 6-4-19; Ord. No. 20-39, § 3, 5-5-20)
Relief from the following requirements of this Article shall be permitted only pursuant to the standards and requirements of Section 33-311(A)(4)(a) of this Code:
1.
Minimum and maximum densities;
2.
Required liner buildings used to screen parking;
3.
Colonnade regulations, including minimum horizontal and vertical clearances;
4.
Provision of A streets;
5.
Requirements for street trees, greens, plazas, squares and medians;
7.
Maximum size of blocks;
8.
Curb requirement in the Core and Center sub-district; and
9.
Signage.
(Ord. No. 05-143, § 9, 7-7-05)
A.
Requests for special exceptions as permitted in this article shall be in accordance with Section 33-311(A)(3) of this Code.
B.
Standards for Site Plan Review. To ensure compatibility with the surrounding area, the following site plan review standards shall be utilized by the Director, the Community Zoning Appeals Board, and the Board of County Commissioners in the consideration of requests for special exceptions pursuant to this Article:
1.
Except for street tree requirements, developments shall provide two (2) times the landscaping required by this Article and applicable Chapter 18A (Landscape Code) regulations.
2.
The proposed development's scale and architecture shall be compatible with buildings in the surrounding area. Building height transitions shall be used when the proposed permitted maximum height for a development is greater than existing or proposed buildings in the adjoining or adjacent neighborhood.
3.
The development shall meet the standards and criteria of the urban center's land use category designation and Building Placement Standards as provided in this article, and shall meet all other requirements for such particular use set forth in this chapter.
(Ord. No. 12-86, § 9, 10-2-12)
A.
Purpose/Applicability.
1.
Nothing contained in this article shall be deemed or construed to prohibit the continuation of a legally established non-conforming use, structure, or occupancy, as those terms are defined in Sections 33-1, 33-34, and 33-35 of this chapter. The intent of this Section is to encourage nonconformities to ultimately be brought into compliance with current regulations. This section shall govern in the event of conflicts with other regulations of this Code pertaining to legally established nonconforming uses, structures, and occupancies.
2.
The term "nonconformity" shall refer to a use, building, or lot that does not comply with the regulations of this article. Only legally established nonconformities shall have rights under this section.
3.
For purposes of this section, the term "expansion" shall mean an improvement, addition, enlargement, extension, or modification to a structure that increases the square footage of the structure.
4.
For the purposes of this section, "legally established" shall apply to the following circumstances:
a.
A lot that does not meet the lot frontage, lot width, lot depth, and/or lot area requirements of the current zoning district, provided that such lot met the regulations in effect at the time of platting.
b.
A site or improvement that is rendered nonconforming through the lawful use of eminent domain, an order of a court of competent jurisdiction, or the voluntary dedication of property.
c.
An existing use which conformed to the code at the time it was established.
d.
A building and/or site improvement that was permitted in accordance with regulations in effect at the time of permitting or that was approved pursuant to a public hearing.
e.
A building and/or site improvement that had received final site plan approval through a public hearing pursuant to this chapter or through administrative site plan review or had a valid building permit.
f.
Discontinuation of the use, structure, or occupancy would abrogate a vested right as determined by Sections 2-114.1 to 2-114.4 of this Code.
B.
Nonconforming Lots, Uses and Structures.
1.
Nonconforming Lots.
a.
Development on a legally established, nonconforming lot that does not meet the lot frontage and/or lot area requirements of this article shall be permitted, provided that the development meets all other requirements of this article.
b.
Expansions to structures on legally established, nonconforming lots shall be permitted in accordance with this section.
c.
Variances from other requirements of this article shall require a public hearing, pursuant to this article and Section 33-311 of this chapter.
2.
Nonconforming Uses.
a.
A legally established nonconforming use may continue. Expansions to a structure containing a nonconforming use shall require Administrative Site Plan Review [see Subsection (C)] below.
b.
If a nonconforming use is discontinued for a period of more than one year, the use may not be reestablished. A use shall be considered discontinued once the activities or commerce, essential to the continuation of the use are abandoned. Discontinuance due to acts of force majeure shall not constitute abandonment, provided that a good faith effort is made to reestablish the use.
c.
Expansions of nonconforming single-family and two-family residences shall be permitted and shall not require Administrative Site Plan approval, provided that the project complies with the Building Placement Standards for single-family detached or duplex lots set forth in Section 33-284.85 of this article.
3.
Nonconforming Structures.
a.
To prevent changes in regulation from unduly burdening property owners, legally established, nonconforming structures may continue to be used and maintained. Expansions, repairs, alterations, and improvements to nonconforming structures shall be permitted only in accordance with the following provisions:
i.
Internal and external repairs, alterations, and improvements to, and internal expansions that increase the internal square footage of, the nonconforming structure shall be permitted and shall not be subject to the requirements of this article, provided that: (1) they do not increase the external footprint or total internal cubic content of the nonconforming structure; and (2) increases to internal square footage shall require Administrative Site Plan Review.
ii.
External expansions that increase the external footprint of a nonconforming structure shall be permitted as follows:
(a)
If the total square footage of the proposed improvement is less than 50 percent of the structure's net square footage at the time it became nonconforming, the improvement shall require Administrative Site Plan Review [see Subsection (C) below].
(b)
If the total square footage of the proposed improvement is equal to or exceeds 50 percent of the structure's net square footage at the time it became nonconforming, the entire structure and site improvements shall be brought into compliance with current regulations.
(c)
Once the cumulative total of additional square footage of improvements equals to 50 percent of the structure's net square footage at the time it became nonconforming, no additional expansions shall be permitted and the entire structure and site improvements shall be brought into compliance with current regulations.
(d)
For the purposes of this article, net square footage shall refer to the square footage indicated on the building permit or determined through equivalent evidence.
b.
If a nonconforming structure is damaged by fire, flood, explosion, wind, war, riot or any other act of force majeure, repairs shall be subject to the following provisions:
i.
If the repair/replacement cost is less than fifty (50) percent of the value of the structure based upon the average of two (2) independent appraisals, the structure may be reconstructed up to the same building height and within the same building footprint existing prior to the damage, provided that an application for final building permit has been submitted within twelve (12) months of the date of such damage unless extended by the Board of County Commissioners.
ii.
If the repair/replacement cost is equal to or exceeds fifty (50) percent of the building's value based upon the average of two (2) independent appraisals, the building and site improvements shall be brought into compliance with current regulations.
iii.
Routine internal and external maintenance, repairs and material replacement such as re-roofing, painting, window or door replacement, mechanical equipment repair and replacement, plumbing and electrical maintenance, and similar repair, maintenance and replacements shall be permitted and shall not be subject to the requirements of this Article.
c.
If a nonconforming building is deemed to be unsafe pursuant to Chapter 8 of this Code, and demolition is required, the building shall be rebuilt in accordance with current regulations.
d.
In addition to the requirements of this section, all repairs, improvements and expansions to a nonconforming building shall comply with the Florida Building Code.
4.
Notwithstanding any other provision to the contrary, a lawfully existing single-family or two-family home use or mobile home park use may be repaired without being brought into compliance with current regulations, even if it is discontinued for a period of six months or more or incurs damage to the roof or structure to an extent of 50 percent or more of its market value.
C.
Administrative Site Plan Review Standards.
1.
Where Subsection (B) above permits the expansion of a nonconforming use or structure subject to administrative review, the project shall be reviewed according to the plan review standards outlined in this sub-section. The intent of the plan review shall be to allow for the continuation of viable uses and structures while seeking opportunities to lessen the adverse impacts of proposed expansions and encouraging nonconformities to ultimately be brought into compliance.
2.
Expansions to nonconforming single-family and two-family residences are permitted and shall not require Administrative Site Plan Review (ASPR) approval, provided said expansion complies with the single-family detached or duplex lot criteria indicated in the building placement standards of this article. One-family and two-family residences that were rendered nonconforming due to the assignment of a nonresidential land use designation shall be permitted to continue and expand in accordance with Subsection (B) above. The expansion shall not require ASPR approval provided said expansion meets the applicable single-family detached or duplex lot criteria indicated in the building placement standards of this article.
3.
Expansions permitted under Subsection (B) above subject to the Administrative Site Plan Review (ASPR) process, shall be permitted by the Department upon a showing that the project satisfies all of the following criteria:
a.
The expansions will not cause adverse impacts, such as traffic, noise, dust, odors and parking congestion, on surrounding properties or significantly change the character of the area.
b.
The expansion shall comply with the setback requirements applicable only to the expanded area, as indicated in the Building Placement Standards set forth in Section 33-284.85 of this article. Other requirements set forth in Section 33-284.85 such as building frontage may be waived by the Director.
c.
The number of parking spaces necessitated by the expansion is provided in accordance with the minimum number of parking spaces requirements in Section 33-284.86(F)(2).
d.
The expansion shall comply with the street tree requirement in this article and with the parking lot buffers requirement in Chapter 18A (Landscape Code).
4.
If the project does not meet the aforementioned criteria, it shall be permitted if approved upon public hearing. At public hearing, additional conditions may be imposed to enhance compatibility of the project with the surrounding area, including without limitation, the following:
a.
Limit the manner in which the use is conducted, including restricting hours of operation and other restraints, to minimize adverse impacts such as noise, vibration, air pollution, glare and odor.
b.
Specify additional screening or open space to minimize impacts to surrounding properties or the character of the area.
c.
Restrict the height, size, or location of a building or other structure.
d.
Require additional right-of-way dedication or road improvements.
e.
Restrict the number, size, location, height or lighting of signage.
f.
Limit the location and intensity of outdoor lighting or require its shielding.
g.
Restrictions to protect existing natural, cultural and historical resources.
h.
Impose additional restrictions necessary to protect existing natural, cultural, and historical resources.
i.
Impose additional conditions necessary to further the intent and purpose of this article and the Comprehensive Development Master Plan.
(Ord. No. 12-86, § 10, 10-2-12; Ord. No. 13-43, § 14, 5-7-13; Ord. No. 16-90, § 2; 9-7-16; Ord. No. 20-97, § 2, 10-6-20)
Notwithstanding any other provision of this Code to the contrary, for properties that have a zoning classification of urban center or urban area district, an application (i) to amend a land use regulating plan to change the land use category to which a specific property is designated or (ii) to amend any other element of a regulating plan as applicable to the particular property (iii) or to expand the boundaries of an urban center or urban area district shall be processed as an application for a district boundary change in accordance with the procedures set forth in Article XXXVI of this chapter.
(Ord. No. 13-119, § 1, 12-3-13; Ord. No. 16-91, § 6, 9-7-16)
This article shall govern in the event of conflicts with other zoning, subdivision, or landscape regulations of this Code, or with the Miami-Dade Department of Public Works Manual of Public Works.
(Ord. No. 05-143, § 10, 7-7-05)
STANDARD URBAN CENTER DISTRICT REGULATIONS
A.
The Comprehensive Development Master Plan (CDMP) contains directives to promote urban centers in places where mass transit, roadways, and highways are highly accessible. The CDMP provides for three types of urban centers: community (CUC), metropolitan (MUC) and regional (RUC).
B.
The regulations in this article shall apply to urban centers, as defined in the CDMP. Specifically, these standard regulations apply to the Urban Center Districts provided for in this Code that were created after the effective date of this ordinance (July 27, 2005). Each Urban Center District, as adopted by the Board of County Commissioners by separate ordinances, shall contain a set of regulating plans and additional regulations addressing unique circumstances that, in conjunction with this article, shall control development in each particular urban center.
C.
The standard regulations contained in this chapter and Chapter 18-A, Code of Miami-Dade County, Florida, shall apply to this article, except as otherwise added to or modified herein.
D.
The area within the boundaries of an urban center is divided in three Sub-districts: Core, Center and Edge. The highest density and intensity within an urban center shall be allocated to the Core Sub-districts, a mixed-use area adjacent to the transit station(s) or major transit stop(s). The densities and intensities shall then gradually decrease from the Core to the Center Sub-district where mixed-uses are still permitted and then further decrease to the Edge Sub-district which is characterized by single uses, including low density residential.
E.
In the case of multiple-phase development, each phase of the development, whether standing independently or in conjunction with existing developed or proposed future contiguous phases, shall meet all the requirements of this article and of the additional requirements and of the regulating plans provided in each Urban Center Districts. In addition, construction of each phase shall be directed first toward the street of higher hierarchy as provided in the Urban Center Districts; and the minimum building frontage length requirements may be disregarded in approving each individual phase, provided that the building frontage length requirements are met at the conclusion of all phases.
(Ord. No. 05-143, § 1, 7-7-05)
Terms used throughout this article shall take their commonly accepted meaning unless otherwise defined in Chapters 18-A, 28 or 33 of the Code of Miami-Dade County. Terms requiring interpretation specific to this article are as follows:
1.
Accessory Building: An enclosed building that is subordinate to and not the main or principal building on a lot or parcel and that is used as a dwelling unit, garage, storage shed, or similar use.
2.
Accessory Structure: An unenclosed structure that is subordinate to and not the main or principal building on a lot or parcel and that is used: as a garden feature, such as a fountain, gazebo or cabana; for recreation, such as a pool or hard courts; for the accommodation of mechanical equipment, such as a pump, a/c compressor or electrical generator units; or uses similar to the foregoing.
3.
Anchor point: The location depicted on the Open Space Plan on which some portion of a plaza, green, or square must be situated.
4.
Bike lane: A corridor dedicated specifically for bicycle use.
5.
Block: A combination of contiguous building lots, the perimeter of which abuts public street(s), private street(s) or easement(s) or designated open space(s).
6.
Block face: The public street, private street or easement line that delineates a block edge.
7.
Boulevard: A public street, private street or easement flanked with a landscaped median, sidewalks, on-street parking, street trees and buildings.
8.
Building Frontage: The portion of the building required to be located along the build-to line or within the building frontage zone.
8.1
Building Frontage Zone: The portion of a lot adjoining a street or right-of-way. The width of the building frontage zone is established by the applicable building placement diagram or frontage table.
9.
Building placement diagrams: Diagrams that provide a schematic representation of the permissible footprints and profiles of structures by land use and Sub-district.
10.
Build-to line: A line parallel to the block face, along which a building shall be built.
11.
Busway: A restricted access right-of-way for the exclusive use of buses.
12.
Clear zone: An area within the curb radius, which shall be kept clear of all objects to a prescribed height to provide vehicle clearance.
13.
Close: A landscaped median divided street with a closed turning area in one end and an intersecting street on the other (see Fig. 1).
Fig. 1: Close
14.
Colonnade: A roofed structure, extending over a private walkway that is open to the street and sidewalk except for supporting columns or piers.
15.
Community Garden: Open space set aside for the cultivation and harvesting of produce such as flowers, fruits and vegetables.
16.
Courtyard House: A single-family dwelling containing a court or atrium. The court shall be enclosed on at least three sides by habitable space and shall provide penetrable openings such as windows and doors between the interior of the dwelling and the court. A Courtyard house may occupy the full width of the lot (see Fig. 2).
Fig. 2: Courtyard House
17.
Designated open space: An outdoor, at-grade space including greens, squares, plazas and colonnades as indicated on the Designated Open Space Plan.
18.
Entertainment Center: An enclosed building or open lot area designated for amusement, entertainment, cultural, ecological, or historical complex (or any combination thereof) that is open to the public, including without limitation: buildings for public assembly; mechanical rides; games and contests; exhibits and demonstrations; art exhibits and musical shows; retail sales; marketplaces, including second-hand sales; food services, including fast food restaurants; and water attractions.
19.
Fenestration: Design and position of windows, entrances, and other structural openings in a building.
20.
Floorplate: The shape and size of any given floor of a building. The floorplate that touches the ground is called the footprint, after the shape it leaves on the land.
21.
Forecourt: The front yard area defined by three sides of the principal building and a low garden wall parallel to the street making the space suitable for gardens and outdoor seating (see Fig. 3). At street corners, the forecourt edges are defined by two (2) principal building walls and a low garden wall parallel to the street (see Fig. 4).
Fig. 3: Interior Lot Forecourt
Fig. 4: Corner Lot Forecourt
22.
Front Property Line: The property line abutting the higher ranking street in accordance with the urban centers Street Types Regulating Plan. For equal ranking streets, either frontage may be designated as the front property line.
23.
Green: An outdoor open space that shall not be hard surfaced for more than twenty (20) percent of the area exclusive of dedicated streets. The landscapes shall consist primarily of lawn, trees, and garden structures (see Fig. 5).
Fig. 5: Green
24.
Greenway or linear park: An outdoor open space along a natural edge, including without limitation, a river front, a canal, a scenic road, or other route. Greenways provide passage for pedestrians or bicycles and are used to link nature reserves, cultural features, other parks, and open spaces and/or historic sites.
25.
Habitable Space: Building space the use of which involves regular human presence. Habitable space shall not include areas devoted to parking, storage, or warehouses.
26.
Home Office: A professional office use within a residential use, as provided in Section 33-25.1 of this Code.
27.
Irregularly shaped lot: A lot in areas designated Residential (R) and Residential Modified (RM) with an irregular shape due to its location on a corner or intersection or at the end of a grouping of single-family detached or attached units. The dimensions of the front yard of such lot shall be similar to the dimensions of the front yards of adjacent homes.
28.
Live-work building: A mixed-use building type with residential dwellings located above work spaces.
29.
Main street: A vehicular and pedestrian thoroughfare lined primarily with mixed-use buildings, as depicted on the Street Types Regulating Plan.
30.
Minor street: A street that is predominantly residential in character as depicted on the Street Types Regulating Plan.
31.
Mixed-use building: A building that includes a combination of two or more vertically integrated uses, such as retail and/or office uses on the ground floor, with residential uses above.
32.
Off-street parking: Garage parking or surface parking not on a public or private street.
33.
On-street parking: Parking on a public or private street.
34.
Outdoor Market: An outdoor commercial establishment where produce, hand-made crafts and other items are offered for sale.
35.
Pedestal: The bottom portion of a building that creates the street frontage.
36.
Pedestrian passages: Interconnected paved walkways that provide pedestrian passage through blocks and that connect directly with the network of sidewalks and open spaces.
37.
Penthouse: Topmost built area of a building with a floorplate area less than that of the tower below.
38.
Permeable Materials: Materials used for paving parking lot and roadway surfaces that allow stormwater run-off to infiltrate the ground, such as porous concrete, porous asphalt, concrete, brick, stone or similar materials.
39.
Plaza: An outdoor open space fronted by mixed-use, retail, and office uses. A minimum of fifty (50) percent and a maximum of seventy-five (75) percent of the plaza's area, exclusive of dedicated streets, shall be hard surfaced. The landscape of plazas shall consist primarily of hard-surfaced areas, permanent architecture or water-oriented features, and trees that are placed in an orderly fashion and that are regularly spaced as shown below (see Fig. 6).
Fig. 6: Plaza
40.
Residential Building Type: One of the following residential building types permitted in the Urban Center or Area Districts: single-family detached; duplex; rowhouse; courtyard house; sideyard house; urban villa, and apartment.
41.
Rowhouse: A single-family attached dwelling unit of a group of three (3) or more units, each separated from the adjoining unit by a common party fire wall. Each common party fire wall shall extend to the roof line or above the roof of units that it serves and shall have no openings therein. Each rowhouse unit shall be serviced with separate utilities and shall otherwise be independent of any other unit.
42.
Service road: A private or public vehicular passageway providing primary, secondary, or service access to the sides or rear of building lots.
43.
Setback Area: The area between the street, either public or private, and the build-to line.
44.
Sideyard house: A single-family dwelling that provides an extensive porch oriented toward a side yard; the side yard is screened from the view of the street by a six (6) foot masonry wall along the build-to line (see Fig. 7).
Fig. 7: Sideyard House
45.
Site Improvements: Improvements to a site including, but not limited to: buildings, walls, signage, paved areas and installed landscaping.
46.
Square: An outdoor open space that shall be flanked by streets on at least three (3) sides and shall not be hard-surfaced for more than fifty (50) percent of the area exclusive of dedicated streets. Squares shall be located according to the Designated Open Space Plan, and their landscapes shall consist primarily of hard-surfaced walks, lawns, and trees that are placed in an orderly fashion and that are regularly spaced (see Fig. 8).
Fig. 8: Square
47.
Storefront: The first story portion of a mixed-use building consisting of habitable space used for business, office, or institutional purposes.
48.
Story: an enclosed floor level within a building containing habitable space.
49.
Street: Any thoroughfare, such as a public street, private street, or easement that affords primary access to abutting property.
50.
Street network: A system of intersecting and interconnecting streets and service roads.
51.
Street Type Development Parameters: The design criteria that establish the required elements for the placement and size of the following: sidewalks; curbs and gutters; parking; medians; bike lanes; traffic lanes; street trees; and landscape strips in the street.
52.
Street vista: A view through or along a street centerline terminating with the view of a significant visual composition of an architectural structure or element. Street Vistas are indicated on the Open Space Regulating Plan by arrows; direction of the vista is indicated by the direction of the arrow. Garages and blank walls are not significant visual compositions.
53.
Tower: The middle portion of a building above the pedestal and below the penthouse.
54.
Urban Center District: A zoning district established for a CDMP-designated urban center. A zoning district established for the unincorporated portion of a CDMP-designated urban center or for an area encompassing more than one CDMP-designated urban center, may also be referred to as an Urban Area District.
55.
Urban Villa: A single-family dwelling where the primary structure shall be built in close proximity to the front property line as depicted in the building placement diagrams in this article. Walled courts, patios or roof terraces may be used to provide open space. Vehicular parking areas and driveways shall be screened from the view of the street by garage doors and/or walls.
56.
Weather Protection Features: Architectural features that provide protection from the sun and rain, including without limitation, colonnades, awnings, bus shelters, or projecting roofs.
57.
Work-force Housing Unit or WHU: A dwelling unit, the sale, rental or pricing which is restricted to households whose income is up to one hundred forty (140) percent of the most recent median family income for the County reported by the U.S. HUD as maintained by the Department of Planning and Zoning.
(Ord. No. 05-143, § 2, 7-7-05; Ord. No. 06-10, § 1, 1-24-06; Ord. No. 07-93, § 1, 7-10-07; Ord. No. 12-86, § 1, 10-2-12; Ord. No. 18-02, § 1, 1-23-18)
No land, body of water, or structure shall be used or permitted to be used, and no structure shall be hereafter erected, constructed, reconstructed, moved, structurally altered, or maintained for any purpose in the Urban Center (UC) or Urban Area (UA) Districts, except as provided in this article. The uses delineated herein shall be permitted only in compliance with the Regulating Plans and standards provided in this article. The following regulations outline permitted uses in the R (Residential), RM (Residential Modified), MC (Mixed-Use Corridor), MM (Mixed-Use Main Street), MO (Mixed-Use Optional), MCS (Mixed-Use Special), MCI (Mixed-Use Industrial), ID (Industrial District) and I (Institutional) Land Use Areas.
A.
Land Uses in General.
1.
Outdoor uses/enclosed uses. All uses shall be conducted within completely enclosed buildings, except outdoor uses expressly permitted in this article. Materials and products shall be stored within an enclosed building or within an area completely enclosed within walls having a life expectancy of twenty (20) years or more from the date of installation. Storage shall not be visible above the height of the walls. Commercial vehicles shall be stored or parked within an enclosed building or an area enclosed by a fence, wall, or hedge, and out of the view from adjacent properties.
2.
Density Calculation.
a.
Density averaging shall be permitted when a unified development is located on one or more parcels, with different land uses or Sub-district designations, under the same ownership.
b.
A single accessory dwelling unit permitted with a single-family residence shall not count towards the minimum required and maximum permitted density thresholds.
c.
Minimum required and maximum permitted density shall be calculated based on net lot area. For purposes of this article, net lot area shall include dedicated road rights-of-way, which means the area between the existing or proposed lot right-of-way line and the street centerline.
3.
Work-force Housing. Unless otherwise specified in the District regulations, all residential or mixed-use developments that: (a) are located within the Core or Center Sub-districts of an urban center district adopted by the Board or County Commissioners after July 10, 2007, and (b) have more than four (4) residential units, shall provide a minimum of twelve and a half (12.5) percent of their units as Work-force Housing Units.
4.
Mixed Use. The vertical or horizontal integration of residential, business and office, and institutional uses shall be permitted as provided herein. Vertical integration allows any combination of primary uses, with business uses typically located on the ground floor and office and/or residential uses on the upper floors. Horizontal integration allows any combination of parcels with different primary uses within the same block.
5.
Temporary Uses. Temporary uses including seasonal tent sales; stands for the sale of flowers, fruit and similar uses; and festivals and farmers' markets are permitted in the MC, MO, MM, MCS, MCI, ID and I categories, subject to the following conditions:
a.
Except for the following, no temporary use shall be permitted for more than fourteen (14) consecutive days and the time between temporary activities shall be at least three times as long as the duration of the last event.
i.
A temporary use for the sale of holiday related items such as holiday trees, fireworks, and similar items shall be permitted for thirty (30) consecutive days leading up to the holiday date.
ii.
A temporary use that occurs on two (2) or less consecutive days shall be permitted weekly.
b.
When applicable, a Zoning Improvement Permit (ZIP) and Certificate of Use shall be obtained. A site plan shall be submitted with the ZIP application indicating, at a minimum;
i.
Location of temporary activities and structures, which shall not be subject to the Building Placement Standards set forth in Section 33-284.85 of this article;
ii.
Anticipated number of patrons;
iii.
Location of parking facilities;
iv.
Temporary street closures;
v.
Hours of operation;
vi.
Location and description of lighting and amplification devices.
c.
Outdoor festivals and farmers' markets shall be restricted to daylight hours unless written waivers of objection for the specific use and hours of operation are obtained from all property owners within five hundred (500) feet. The Director may reduce or expand the notification requirement based on potential visual, noise or traffic impacts to adjacent properties.
d.
A carnival or circus, that involves an amusement ride, acrobatic apparatus, or trained animal, shall only be permitted if approved upon public hearing.
6.
Unusual and New Uses. Except as expressly permitted in this article, unusual and new uses, as outlined in Section 33-13 of this chapter, shall only be permitted if approved upon public hearing.
B.
Land Use Groups. The uses listed following each group in this section shall be permitted in the land use categories shown in Table (C) subject to the provisions noted for each land use category. Uses provided in Table (C) below not listed in this subsection shall be permitted subject to the provisions noted for each land use area. The Director shall have the authority to determine that a use not specifically enumerated below may nevertheless be permitted in a land use category because it is similar to an enumerated use.
1.
Accommodation Uses: Facilities that provide short-term lodging including hotels, motels, rooming houses, bed and breakfasts, and similar uses.
2.
Automotive Uses: Establishments specializing in the service or repair of automobiles; automobile tire sales and replacement; automobile parts sales and installation; sales of new and used automobiles; and gas stations or other form of stations used for the powering/charging of automobile vehicles.
3.
Child Care Facilities: Child care facilities shall be those defined in Article XA of this chapter and shall be subject to the requirements therein, as applicable; except that child care facilities shall provide recreation areas in accordance with Section 33-284.86(D)(2) of this article. Where conflicts exist, the provisions of this article shall apply.
4.
Civic Uses: Uses that are accessible to the public and serves the religious, recreational, educational, cultural and/or governmental needs of the community. Civic uses include, but are not limited to: convention halls or meeting halls; private clubs; libraries; schools; police stations; fire stations; post offices; clubhouses; religious buildings; museums; athletic facilities; auditoriums theaters, movie theaters, and other visual and performance arts buildings; and governmental facilities. The architecture of a civic use building shall reflect its civic nature. The sale of alcohol, if provided, shall be ancillary to the primary civic use and shall comply with Article X of this Chapter.
5.
Private Colleges/Universities: Facilities that serve the educational needs of the adult population. This group shall include universities; colleges; commuter colleges; trade schools; and similar uses.
6.
Commercial Parking Garage: Structures that provide parking as the primary on-site use. These facilities offer short-term parking of vehicles and may charge a fee for such use. This group includes: shared parking facilities; shuttle parking facilities; and transit park-and-ride facilities. This group shall not include parking facilities that are ancillary to another on-site use.
7.
Health Care Services: A facility that provides out-patient health care services to the local community. These facilities shall include: clinics; doctor's office; dentist's offices; federally qualified health centers; urgent care facilities; diagnostic centers including sleep centers; and similar uses. These facilities shall not provide in-patient care.
8.
Drive-Through Facilities: Drive-through facilities associated with a retail use, personal service establishment or restaurant.
9.
Entertainment Use: Uses in this group shall include: nightclubs; arcades; movie theaters; performance theaters; radio, movie and/or television studios; billiard halls; skating rinks; bingo halls; piano bars; adult entertainment uses (as defined in Section 33-259.1 of this chapter); bowling alleys; and similar uses. The sale of alcohol, if provided, shall be ancillary to the primary entertainment use and shall comply with Article X of this chapter.
10.
Food/Beverage Establishments: This group shall include: full service restaurants; fast food restaurants; bars and pubs; and similar uses. The sale of alcohol, if provided, shall comply with Article X of this chapter, except that full-service restaurants serving alcoholic beverages shall be exempt from Sections 33-150(A) and 33-150(B) of this chapter.
11.
General Retail/Personal Service Establishments: Establishments that provide goods and services geared toward an individual consumer. This group shall include businesses such as: banks; beauty parlors; adult day care; bakeries; bookstores; apparel stores; grocery stores; pharmacies; tailor shops; health clubs; gift shops; indoor pet care centers/boarding and indoor kennels (soundproofed and air-conditioned building required); vehicle retail showrooms; and similar uses. This group shall also include schools offering instruction in dance, music, martial arts and similar activities, but this group shall not include colleges/universities. Except as otherwise authorized in this article, uses enumerated in the BU-3 zoning district shall only be permitted in the MCS and MCI categories and shall be subject to the public hearing and spacing requirements set forth in Section 33-255 of this chapter. Dispensing facilities for low-THC or medical cannabis, in accordance with the requirements of article IXA of this chapter, shall also be allowed in areas designated MC, MCS, MCI, and ID.
12.
Group Residential Facility: As defined in Section 33-1.
13.
Industrial Uses: The Industrial Use group shall include uses permitted in Section 33-259 of this chapter, unless specifically prohibited by this chapter. Residential spacing requirements shall not be required for uses in this group.
14.
Live/work Units: An individual residential unit integrated with a general retail/personal service establishment, professional business office, or workshop.
15.
Professional Business Offices: Facilities used primarily for the business of professionals with only limited transactions occurring on-site. This group shall include offices for: accountants; architects; appraisers; attorneys; consulates; financial firms; insurance adjusters; realtors; medical offices and other uses found by the Director to be similar.
16.
Residential Uses: Single-family detached homes, urban villas, courtyard houses, sideyard houses, duplexes, rowhouses, apartments (including student housing), and other similar uses. Home offices as provided in Section 33-25.1 of this chapter shall be permitted.
17.
Workshop: an enclosed workplace on the ground floor area of a building used as an office or for the manufacturing of artifacts and crafts utilizing only hand held and/or table mounted electrical tools.
C.
Table of Permitted Uses. Unless the regulations for a specific urban center district provide otherwise, the Land Use Groups in paragraph (B) of this section shall be permitted in the R (Residential), RM (Residential Modified), MC (Mixed-Use Corridor), MM (Mixed-Use Main Street), MO (Mixed-Use Optional), MCS (Mixed-Use Special), MCI (Mixed-Use Industrial), ID (Industrial District) and I (Institutional) land use categories in accordance with the following table:
P:
Permitted Use, although specific uses may require approval as special exception
SE:
Special Exception - only permitted if approved upon public hearing
[ # ]
Footnote (as provided below)
Footnotes:
1.
The vertical integration of uses shall be required in the MM category and shall be encouraged in the MC, MO, MCS, and MCI categories. When residential uses are provided in the MM category, uses other than residential shall be required on the first floor. Self-service mini-warehouse storage facilities located in the MCS and MCI categories shall only be permitted upon approval at public hearing and when vertically integrated with, screened by, or located to the rear of habitable space, as defined in Section 33-284.82, and shall only be established in accordance with the conditions set forth in Section 33-255. In addition, no such facility shall be located less than 2,500 feet from any other such facility, measured by following a straight line from the nearest portion of the structure of the proposed use to the nearest portion of the structure of the existing use. The aforementioned requirements shall also apply to self-service mini-warehouse storage facilities located in the Downtown Kendall Urban Center District (Article XXXIII(I)) and the Palmer Lake Metropolitan Urban Center District (Article XXXIII(T)).
2.
Residential uses shall be permitted in noted categories, either alone or when vertically integrated with other lawful uses; except that developments with more than fifty (50) residential units shall provide a minimum of ten (10) square feet of retail space for each residential unit.
3.
Accessory structures shall be permitted as ancillary to the noted uses.
4.
For single-family homes in the R and RM categories, an accessory building may be used as a dwelling unit only if: (a) it contains a maximum of six hundred (600) square feet of habitable space; and (b) it is maintained under the same ownership as the single family home.
5.
Residential uses shall be permitted in the ID category when buffered from an industrial use by a street, a service road, or a live-work unit.
6.
For Group Residential Facilities:
a.
Group homes shall comply with the group home requirements of Section 33-199, and community residential homes shall comply with the community residential home requirements of Section 33-203.
b.
For group residential facilities, other than group homes, in the RM, MC, MM, MO, MCS, and MCI categories, three occupants shall be deemed to be one dwelling unit, and the maximum number of dwelling units allowed shall be equal to the permitted residential density.
7.
Schools shall be subject to the requirements of Article XA or XI of this chapter, as applicable; except that non-public educational facilities shall provide recreation areas in accordance with Section 33-284.86(D)(2) of this article. Where conflicts exist, the provisions of this article shall apply.
8.
General retail and personal service establishment shall be limited to forty thousand (40,000) square feet of ground floor area; a greater ground floor area for such uses shall only be permitted if approved as a special exception.
a.
Indoor pet kennels shall be permitted subject to the following conditions: (i) all kennel buildings shall be soundproofed and air-conditioned; (ii) where outside exercise runs are provided, a landscaped buffer or decorative masonry wall shall enclose the runs, and use of the runs shall be restricted to use during daylight hours; (iii) where outside exercise runs are not provided, an outside area shall be designated for dogs (or cats) to relieve themselves, and that area shall be enclosed by a landscape buffer or masonry wall; (iv) an administrative site plan review (ASPR) shall be required, and the site plan shall show all fencing, berms, and soundproofing designed to mitigate the noise impact of the kennel on the surrounding properties.
b.
Vehicle Retail Showrooms shall only be permitted in accordance with the conditions set forth in Section 33-253(9.5) of this chapter.
c.
The following uses shall only be permitted if approved as special exceptions: on-site storage of vehicles; and outdoor pet kennels subject to the conditions set forth in Section 33-255(9.1) of this chapter, except that ASPR shall not be required if a site plan is approved upon public hearing.
9.
Drive-through facilities shall be permitted in all Sub-districts, provided that such facilities are concealed from streets by buildings or walls. Said walls shall be six (6) feet in height (except that in the ID category, walls shall be eight (8) feet in height) and shall be placed at the build-to line.
10.
Gas/Service stations shall:
a.
Be permitted, subject to the Building Placement Standards set forth in section 33-284.85: in the MCS category in all Sub-districts; in the MCI and Industrial (ID) categories in the Center and Edge Sub-districts; and in the MC category, subject to the requirements set forth in footnote 19; and
b.
Be exempt from the minimum height requirements.
11.
Liquor package stores shall be permitted only in the Core and Center Sub-district and only in compliance with Article X of this chapter and all other applicable regulations of this Code.
12.
In the RM category, accommodation uses shall be permitted only in conjunction with an owner-occupied residence; the total number of units shall not exceed the density permitted by the land use designation. In the MM, MC, MO, MCS, MCI, and ID categories, hotel/motel uses shall not exceed seventy-five (75) units per net acre or the maximum density permitted by the land use category, whichever is greater. For all density calculations required by this subsection, one hotel room shall equal one dwelling unit.
13.
Outdoor table service and outside walk-up window service in conjunction with restaurants and coffee houses may be provided subject to the following requirements:
a.
The restaurant furniture located on the sidewalk shall maintain a minimum five (5) foot wide obstacle-free corridor for pedestrian circulation along the sidewalk.
b.
Alcoholic beverages may be served outdoors only where such service is strictly incidental to the service of food.
14.
Commercial parking garages shall meet the requirements of Section 33-284.86(F)(6) of this article.
15.
In the R and RM categories, child care uses shall be subject to the requirements for such uses in the RU-1 District, as set forth in Section 33-199 of this chapter, except that the total number of children may exceed five (5) if approved as a special exception.
16.
Adult entertainment uses, as defined in Section 33-259.1 of this chapter, shall be prohibited in all land use categories except MCI and ID. In the MCI and ID categories, such adult entertainment uses shall only be permitted if approved as special exceptions.
17.
Only the following uses shall be permitted in connection with a residence in a live-work unit in the MCI and ID land use categories:
a.
Antique shops.
b.
Art goods stores, artist studios, galleries.
c.
Artisanal use.
d.
Bait and tackle shops.
e.
Bakeries.
f.
Cabinet shops.
g.
Dance studios.
h.
Dry cleaning and dyeing establishments.
i.
Engines, sales and service.
j.
Glass installation.
k.
Health and exercise clubs.
l.
Interior design shops.
m.
Leather goods manufacturing, excluding tanning.
n.
Locksmith shops, sharpening and grinding shops.
o.
Mail order office, including storage of products.
p.
Office uses.
q.
Photography labs.
r.
Pottery shops.
s.
Printing shops.
t.
Restaurants, excluding drive-through service.
u.
Secondhand stores.
v.
Shoe stores and shoe repair shops.
w.
Upholstery and furniture shops.
x.
Wholesale salesrooms.
y.
Other similar uses as determined by the Director.
18.
In the Residential (R) area, multi-family apartments are permitted provided that all of the following requirements are met:
a.
The overall density does not exceed that allowed on the density regulating plan; and
b.
The building height conforms with the building heights regulating plan; and
c.
The multi-family buildings conform with the Rowhouse/Multi-family building placement standard; and
d.
Curbs and gutters are provided along all streets.
19.
Gas/Service Station in the MC Category shall:
a.
Be located no closer than within 0.5 miles of the center point of an Urban Center as designated on the CDMP Land Use Plan Map;
b.
Have a maximum lot size of 1.25 acres;
c.
Have a maximum of 6 gas pump islands (equivalent to a total of 12 fueling positions);
d.
Have a maximum size of principal structure, including fresh food area, of 3,500 square feet;
e.
Have a minimum of 15 percent of the principal structure consist of a fresh food area, meaning an area for the sale and service of perishable food, such as coffee, fruit, salad, sandwiches, or pizza; and
f.
Have a continuous, pedestrian-friendly walkway in front of the principal structure and along all roadways and driveways, established by decorative concrete, landscape elements, or similar, integrated landscape and hardscape elements that define and shape the pedestrian area.
(Ord. No. 05-143, § 3, 7-7-05; Ord. No. 07-93, § 2, 7-10-07; Ord. No. 08-102, § 1, 9-2-08; Ord. No. 12-86, § 2, 10-2-12; Ord. No. 13-82, § 3, 9-17-13; Ord. No. 16-67, § 5, 7-6-16; Ord. No. 17-46, § 1, 7-6-17; Ord. No. 18-02, § 1, 1-23-18; Ord. No. 18-136, § 5, 11-8-18; Ord. No. 20-110, § 11, 10-6-20)
1.
A set of Regulating Plans shall be provided with each adopted Urban Center or Urban Area District. As provided in section 33-305 of this chapter, the Regulating Plan maps for each district shall thereafter be maintained by the Director and kept on file with the Department and shall be amended, modified, and changed by resolution of the County Commission. The Regulating Plans shall consist of a series of controlling plans that include the following:
A.
The Street Types Plan, which establishes a hierarchy of street types in existing and future locations that shall be provided and shown in all development plans.
B.
The Sub-districts Plan, which delineates three (3) sub-districts: Core, Center and Edge. These Sub-districts shall regulate the allowable intensity of development in accordance with the Comprehensive Development Master Plan and this article.
C.
The Land Use Plan, which delineates the areas where specified land uses and development of various types and intensities shall be permitted.
D.
The Designated Open Space Plan, which designates open spaces, which shall be shown in all development plans. The designated open spaces shall be controlled by anchor points.
E.
The New Streets Plan, which shows the location and the number of new streets needed to create the prescribed network of streets within each Urban Center or Area District. All new A streets shall be required in the same general location as shown on the New Streets Plan. All B streets shall be located as provided in section 33-284.86(C) of this article.
F.
The Bike Route Plan, which depicts the designated bike routes, including the bike facility requirements if any, which shall be shown in all development plans.
2.
Repeal of previously approved density and building height regulating plans. For the following urban center and urban area districts, all previously approved Density and Building Heights regulating plans, and any provisions of Land Use regulating plans that specify residential density, are hereby repealed: Naranja Community Urban Center (Article XXXIII(J)); Goulds Community Urban Center (Article XXXIII(L)); Princeton Community Urban Center (Article XXXIII(M)); Perrine Community Urban Center (Article XXXIII(N)); Ojus Urban Area District (Article XXXIII(O)); Cutler Ridge Metropolitan Urban Center, (Article XXXIII(P)); Leisure City Community Urban Center (Article XXXIII(Q)); Model City Urban Center (Article XXXIII(R)); North Central Urban Area (Article XXXIII(S)); Bird Road Corridor Urban Area (Article XXXIII(U)); and Country Club Urban Area (Article XXXIII(V)).
(Ord. No. 05-143, § 4, 7-7-05; Ord. No. 12-86, § 3, 10-2-12; Ord. No. 16-91, § 6, 9-7-16; Ord. No. 18-124, § 2, 10-2-18; Ord. No. 20-97, § 2, 10-6-20)
A.
Maximum Density and Building Height Range Tables. Notwithstanding any other provision to the contrary, the following tables set forth the maximum residential densities and building heights for developments in each urban center or urban area district:
1.
For Land Use Categories RM, RML, MO, MC, MM, MCS, MCI, SD (Marketplace), SD (Storeporch), AD, MD (Market), ID, and I.
2.
For Land Use Category R.
B.
Intensity Standard. Notwithstanding any other provision to the contrary, to ensure consistency with CDMP policies requiring high intensity, well-designed urban centers and promotion of transit-oriented development, each property in an urban center or urban area district shall be developed in accordance with the following minimum intensity standards:
1.
The development shall be consistent with the height ranges set forth in the table above; or
2.
The development shall provide the applicable minimum floor-area ratio:
a.
In community urban center or urban area districts, except the Ojus Urban Area District:
i.
In the Edge Sub-district, a minimum floor area ratio of 0.5;
ii.
In the Center Sub-district, a minimum floor area ratio of 1; and
iii.
In the Core Sub-district a minimum of floor area ratio of 1.5.
b.
In metropolitan urban center districts and in the Ojus Urban Area District:
i.
In the Edge Sub-district, a minimum floor area ratio of 1.5;
ii.
In the Center Sub-district, a minimum floor area ratio of 1.75; and
iii.
In the Core Sub-district, a minimum floor area ratio of 3.
3.
Properties designated R shall not be subject to these minimum intensity requirements.
C.
Compatibility with single-family residential areas. At the time of administrative site plan review, in addition to any other applicable criteria, the Department shall review applications to mitigate impacts of the proposed development on single-family residential areas.
(Ord. No. 18-124, § 3, 10-2-18; Ord. No. 19-47, § 1, 6-4-19; Ord. No. 19-120, § 1, 12-3-19; Ord. No. 20-97, § 2, 10-6-20)
A.
The diagrams in paragraph (G) of this section establish the Building Placement Standards by land use category. Building frontage and setback areas shall be required as illustrated in the Building Placement Standards Diagrams.
B.
Where Building Placement Standards Diagrams reference a Frontage Table, such table specific to each Urban Center or Area District shall be provided in the regulations for each individual District. It is provided, however, that colonnades may be placed on the property line regardless of any such frontage requirements. Unless otherwise provided, the colonnade height and width shall be in accordance with Section 33-284.86(B) of this article. When a Frontage Table is not provided in the individual Urban Center or Area District regulations, building setbacks shall be required as set forth in the following table:
Standard Frontage Table
C.
In all Sub-districts, mixed-use, non-residential, and multi-family, developments shall comply with the following:
1.
Minimum building frontage requirements may be met by a single building, multiple buildings or multi-phased developments, and such requirements shall apply along the front property line only.
2.
Where a minimum number of stories is required, said stories above the second story may be set back further than the requirements set forth in the Building Placement Standards Diagrams.
3.
To articulate the building facade, fifty (50) percent of the portion of the building required to be located along the build-to line may be recessed up to two (2) feet. Further, once the minimum building frontage requirement is met, the remainder of the building may be set back from the build-to line.
4.
A portion of the building may be set back up to twenty-five (25) feet to accommodate a forecourt.
5.
Belfries, chimneys, spires/steeples, and other such non-habitable structures shall comply with Section 33-55 of this chapter.
6.
Accessory buildings shall follow parking and/or allowable building area setbacks provided in the Building Placement Standards Diagrams.
D.
In all Sub-districts, accessory buildings for rowhouse, courtyard, sideyard, single-family detached, duplex and urban villa shall follow the accessory building/dwelling/parking area setbacks provided in the Building Placement Standards Diagrams.
E.
In all Sub-districts, for all land use categories, accessory structures shall be permitted provided that they do not encroach on the front and side street setbacks.
F.
The table below identifies the Building Placement Standards that apply to each Land Use Category:
G.
Building Placement Standards Diagrams.
1.
Mixed Use, Multi-Family:
a.
Building Frontage Required: Seventy (70) percent minimum at build-to line. Minimum frontage requirement applies along the front property line only.
b.
Build-to lines or street setback requirements shall be measured from the edge of sidewalk.
c.
All on-site parking shall be accessed from a service road or the lowest ranking street.
d.
The vehicular entry width permitted shall be a maximum of thirty-three (33) feet.
e.
The minimum interior side/rear setback for the pedestal, tower, and penthouse shall be zero (0) feet.
f.
Where a wall or fence is used to screen parking areas along streets, a five (5) foot landscape strip with a hedge shall be required in front of the wall or fence.
g.
Colonnades shall be two (2) stories high and a minimum of fifteen (15) feet deep. The colonnade depth shall not exceed the colonnade height. The exterior of the colonnade shall be no closer than two (2) feet from the curb line.
2.
Mixed Use, Multi-Family:
a.
Building Frontage Required: Seventy (70) percent minimum at build-to line in all Sub-districts. Minimum frontage requirement applies along the front property line only.
b.
Build-to lines or street setback requirements shall be measured from the edge of sidewalk.
c.
The interior side/rear setbacks shall be as shown above.
d.
When provided, the front setback shall be hard surfaced and finished to match the adjoining sidewalk. A minimum of five (5) feet clear width within the setback shall be kept unobstructed for pedestrians.
e.
All on-site parking shall be accessed from the service road or lowest ranking street.
f.
Where a wall or fence is used to screen parking areas along streets, a five (5) foot landscape strip with a hedge shall be required in front of the wall or fence.
g.
Above the fourth story the setback shall be from the property line.
3.
Industrial:
a.
Building Frontage Required: Twenty-five (25) percent minimum at build-to line. Minimum frontage requirement applies along the front property line only.
b.
Build-to lines or street setback requirements shall be measured from the edge of sidewalk.
c.
For industrial uses, any part of the build-to line not occupied by a building shall have an eight (8) foot high masonry wall, not pierced except to provide pedestrian and vehicular ingress/egress.
d.
For all other uses permitted in the ID category, walls, fences and hedges shall be provided in accordance with Section 33-284.86(H) of this article, and where a wall or fence is used to screen parking areas along streets, a 5-foot landscape strip with a hedge shall be required in front of the wall or fence.
e.
The interior side/rear setbacks shall be as shown above.
f.
When provided, the front setback and side street setback shall be landscaped or hard surfaced and finished to match the adjoining sidewalk.
g.
Above the fourth story the setback shall be from the property line.
h.
All on-site parking shall be accessed from a service road or from the lowest ranking street.
4.
Rowhouse, Multi-Family:
a.
Building Frontage Required: Seventy (70) percent minimum at build-to line. Minimum frontage requirement applies along the front property line only.
b.
Front and side street setback requirements shall be measured from the edge of sidewalk.
c.
All on-site parking shall be accessed from the service road or lowest ranking street.
d.
The front setback and, when provided, the side street setback shall be landscaped.
e.
Where a wall or fence is used to screen parking areas along streets, a five (5) foot landscape strip with a hedge shall be required in front of the wall or fence.
f.
Above the fourth story the setback shall be from the property line.
5.
Rowhouse:
a.
Building Frontage Required: One hundred (100) percent at build-to line except at end of building groups. Minimum frontage requirement applies along the front property line only.
b.
Front and side street setback requirements shall be measured from the edge of sidewalk.
c.
For Rowhouses all on-site parking shall be accessed from the service road.
d.
The front setback and, when provided, the side street setback shall be landscaped.
e.
Common parking facilities shall be permitted.
6.
Courtyard, Sideyard:
a.
For Sideyard and Courtyard Houses, all on-site parking shall be accessed from the service road.
b.
Front and side street setback requirements shall be measured from the edge of sidewalk.
c.
Any part of the build-to line not occupied by a building shall have a masonry wall with a minimum height of forty-two (42) inches and a maximum height of seventy-two (72) inches, not pierced except to provide pedestrian and vehicular ingress/egress.
d.
The front setback and, when provided, the side street setback shall be landscaped.
7.
Single-Family:
a.
All on-site parking shall be accessed from the service road, where provided.
b.
Front and side street setback requirements shall be measured from the edge of sidewalk.
c.
For lots with frontages between fifty (50) and seventy-five (75) feet, the minimum interior side setback shall be ten (10) percent of the lot frontage; for lots with frontage greater than seventy-five (75) feet, the interior side setback shall be a minimum of seven and a half (7.5) feet.
d.
The front and side street setback shall be landscaped.
8.
Single-Family:
a.
All on-site parking shall be accessed from the street as shown above.
b.
Front and side street setback requirements shall be measured from the edge of sidewalk.
c.
The front and side street setback shall be landscaped.
d.
Any part of the build-to line not occupied by a building shall have a masonry wall with a minimum height of forty-two (42) inches and a maximum height of seventy-two (72) inches, not pierced except to provide pedestrian and vehicular ingress/egress.
e.
Driveways between the front property line and build-to line shall be a maximum of ten (10) feet wide.
9.
Duplex:
a.
All on-site parking shall be accessed from the service road.
b.
Front and side street setback requirements shall be measured from the edge of sidewalk.
c.
The front and side street setback shall be landscaped.
10.
Duplex:
a.
This building standard shall only be permitted on existing platted lots less than twelve thousand (12,000) square feet in area.
b.
Front and side street setback requirements shall be measured from the edge of sidewalk.
c.
All on-site parking shall be accessed from the street as shown above.
d.
Any part of the build-to line not occupied by a building shall have a masonry wall with a minimum height of forty-two (42) inches and a maximum height of seventy-two (72) inches, not pierced except to provide pedestrian and vehicular ingress/egress.
e.
Driveways between the front or side street property lines and build-to line shall be a maximum of ten (10) feet wide.
f.
The front and side street setback shall be landscaped.
11.
Civic:
a.
All on-site parking shall be accessed from the service road, where provided. For properties without an adjoining service road, parking may be accessed from the street through a driveway as shown above.
b.
Build-to lines and street setback requirements shall be measured from the edge of sidewalk.
c.
When on-site parking is provided, the off-street parking spaces shall be placed to the rear of the building.
d.
Civic uses shall not be required to comply with height requirements indicated on the Building Heights Plan.
e.
When provided, the front and side street setback areas shall be treated as a green or plaza. When treated as a plaza, the setback area shall not be required to be fronted by mixed-use, retail, or office uses. When treated as a plaza or green, the plaza or green shall be in addition to any designated open space required by the regulating plan.
f.
Where a wall or fence is used to screen parking areas along streets, a five (5) foot landscape strip with a hedge shall be required in front of the wall or fence.
12.
Urban Villa:
a.
Building Frontage Required. Eighty (80) percent minimum at build-to line. Minimum frontage requirement applies along the front property line only. At least fifty (50) percent of Urban Villas along a block face shall provide a walled court or patio between the front property line and the building face; maximum setback shall be fifteen (15) feet only where such court or patio is provided.
b.
Front and side street setback requirements shall be measured from the edge of sidewalk.
c.
Parking shall be accessed from the street as shown above. Garage entrances accessed from the front property line shall be a maximum of ten (10) feet in width and no further than ten (10) feet from the front property line. Walled courts or patios shall not be used for parking.
d.
The minimum height for an Urban Villa shall be two (2) stories.
e.
The front setback, and when provided, the side street setback, shall be landscaped.
13.
Gas/Service Station:
a.
Building Frontage Required. 40 percent minimum within or adjoining the Building Frontage Zone. Minimum frontage requirement applies along the front property line only.
b.
A continuous street façade consisting of buildings or walls along all streets except driveways shall be required; walls shall not exceed 3.5 feet in height and shall be a minimum of 75 percent opaque.
c.
Building Frontage Zone width shall be measured from the property line.
d.
Except for required tree grates, tree planters, or hedges along walls, Building Frontage Zone shall be hard-surfaced and finished to match the adjoining sidewalk. A minimum of five feet clear width within the setback shall be kept unobstructed for pedestrians.
e.
Setbacks for pump island canopies shall comply with section 33-47.
(Ord. No. 05-143, § 5, 7-7-05; Ord. No. 06-10, § 2, 1-24-06; Ord. No. 07-93, § 3, 7-10-07; Ord. No. 07-169, § 8, 11-6-07; Ord. No. 08-102, § 2, 9-2-08; Ord. No. 12-86, § 4, 10-2-12; Ord. No. 17-46, § 2, 7-6-17; Ord. No. 18-02, § 1, 1-23-18)
A.
Lots and blocks. The following shall be required:
B.
Buildings.
1.
Storefronts shall be provided on the first floor of mixed-use buildings, and shall be directly accessible from a street frontage or a designated open space as follows:
a.
For properties with two or more frontages, storefronts shall be located on a minimum of two frontages, with priority given to frontages on a designated open space and the highest ranking street.
b.
Storefronts shall have a transparent clear glazed area of not less than seventy (70) percent of the facade area and shall be occupied by habitable uses that generate pedestrian activity and provide surveillance of the street. Security enclosures, if any, shall be of the mesh type that pedestrians can see through, and shall be located behind storefront displays.
2.
All colonnades shall comply with the following:
a.
Finished floor elevation of the colonnade shall match the adjoining sidewalk.
b.
Colonnades shall have a minimum unobstructed clear height of ten (10) feet and a minimum clear width of ten (10) feet. Awnings shall be permitted but shall not count towards the required colonnades. Colonnades shall not cause roof drainage into the street. Colonnades shall be attached to buildings. In no instance shall the depth of a colonnade exceed the colonnade's height.
c.
Freestanding colonnades shall not satisfy the build-to line requirement.
3.
A minimum of thirty (30) percent of all building streetwalls shall be fenestrated with windows. Mirror type glass shall be prohibited. All glazing shall be of a type that permits view of human activities and spaces within the structure. Colonnade column spacing, windows, and doors shall be proportioned such that the height of each opening is greater than its width. At least fifty (50) percent of the area of security screens and gates shall be transparent.
4.
The height of an accessory building shall not exceed the height of the principal building.
5.
An open, covered, or paved connection between an accessory building and a single-family detached house, urban villa, courtyard house, sideyard house, duplex, or rowhouse may be built within the minimum required ten (10) foot spacing as shown in the Building Placement Standards set forth in Section 33-284.85 of this article.
6.
Weather protection features shall be required when storefronts are provided in the MM, MC, MO, MCS, and MCI categories. In the ID category, weather protection features shall be required when the front setback is hard surfaced.
7.
Awnings, balconies, stoops, stairs, open porches, and bay windows shall be permitted to extend into the minimum required setbacks, to a maximum of:
Roof eaves, chimneys, signs, and ramps may encroach into all setbacks. Porticoes, canopies, and colonnades shall be guttered, and drainage shall be deposited onsite.
8.
Where a zero (0) foot setback is permitted, roof eaves, bay windows, and balconies may encroach beyond the property line a maximum of three (3) feet, except when abutting private property. In all Sub-districts, awnings may encroach into the street no more than six (6) inches from the face of the curb. All street encroachments shall be a minimum of eleven (11) feet above the sidewalk.
9.
In the Edge Sub-district, accessory buildings shall be permitted to have balconies or bay windows that encroach a maximum of three (3) feet into the rear yard setback.
10.
Service areas shall be located out of the view from adjacent properties or from the street and shall be screened by a wall or fence in accordance with Subsection (H) below.
11.
The primary entrance of a building shall provide access to a street or a designated open space. The primary entrance to the upper levels of a mixed-use building with colonnades shall be through the colonnaded area along the front property line.
12.
Each story shall have a maximum height of sixteen (16) feet, as measured from floor to floor. Any height above sixteen (16) feet shall count as an additional story, except as follows:
a.
Buildings with less than six (6) stories may have a single story with a maximum height of thirty (30) feet, provided that no mezzanine area intended for commercial use exceeds ten (10) percent and no mezzanine area intended for residential use exceeds eighty (80) percent of the floor area of that story. Multiple levels of parking shall be permitted within this single story provided that they are in compliance with Subsection (F)(6) below.
b.
Buildings with six (6) or more stories, may have two stories with a maximum height of thirty (30) feet, provided that no mezzanine area intended for commercial use exceeds ten (10) percent and no mezzanine area intended for residential use exceeds eighty (80) percent of the floor area of a story. Multiple levels of parking shall be permitted within these two stories provided that they are in compliance with Subsection (F)(6) below.
13.
Notwithstanding the building heights regulating plans, rowhouses may have up to three (3) stories.
14.
A live-work unit shall have two components: a workshop and a residential unit. The workshop shall be located on the first floor and shall be directly accessible from the primary street frontage or a designated open space. The workshop's facade shall have a transparent clear glazed area of not less than seventy (70) percent of the facade. The residential component of a live-work unit shall connect internally with the work component.
15.
Projects with fifty (50) or fewer single-family units shall have a minimum of three (3) substantially different front elevations. Projects with more than fifty (50) and up to one hundred (100) single-family units shall have a minimum of five (5) substantially different front elevations and shall provide, within each block, a minimum of two (2) different single-family building types. Projects with more than one hundred (100) single-family units shall have a minimum of five (5) substantially different front elevations and shall provide, within each block, a minimum of three (3) different single-family building types. Substantially different front elevations shall include variations in fenestration, material, and color.
16.
Rowhouses shall provide a minimum of fifteen (15) feet between building groups and the length of a building group shall not exceed two hundred forty (240) feet.
17.
Floorplates above eight (8) stories shall not exceed twenty thousand (20,000) square feet. Cantilever balconies shall not count towards floor plate calculation.
18.
Civic use designated parcels and lots with less than twenty-five thousand (25,000) square feet shall not be required to comply with the minimum height requirement on the Building Heights Plan.
C.
Streets, Service Roads and Utilities. All streets and service roads shall comply with the Street Types parameters as set forth in this section.
1.
Typical Minor Street Illustration.
*
Refer to column B in the Street Types Table for required landscape elements.
**
Curb and gutter between the sidewalk and parking/travel lanes may be utilized in place of the valley gutter illustrated.
2.
Typical Two-Lane Boulevard Street Illustration.
*
Refer to column B in Street Types Table for required landscape elements.
**
Curb and gutter between the sidewalk and parking/travel lanes may be utilized in place of the valley gutter illustrated.
3.
Typical Four-Lane Boulevard Street Illustration.
*
Refer to column B in Street Types Table for required landscape elements
**
Curb and gutter between the sidewalk and parking/travel lanes may be utilized in place of the valley gutter illustrated
4.
Street Types Development Parameters.
Footnotes:
a.
Landscape area is exclusive of the minimum sidewalk width.
b.
Street trees shall have a minimum caliper of six (6) inches at time of planting.
c.
Permanent irrigation is required.
d.
Tree grates shall have a minimum area of twenty-four (24) square feet; tree planters shall have a minimum area of thirty-two (32) square feet; continuous landscape strips shall have a minimum width of six (6) feet in the Core and Center Sub-districts, eight (8) feet in the Edge Sub-district.
e.
In all Sub-districts, curbs and gutters shall be provided at all intersections and roadway edges of arterials, boulevards and Main Street; in Core and Center Sub-districts, curbs and gutters shall be provided at all intersections and roadway edges of minor streets.
f.
On-street parking shall count towards the minimum required parking.
g.
Bike lanes shall be four (4) feet in width when adjacent to curb or swale; five (5) feet in width when adjacent to a parking lane.
h.
The minimum required width of one-lane/one-way travel lanes shall be determined by the Department of Public Works and Waste Management and Fire Rescue Department on a case-by-case basis during the Administrative Site Plan Review process (ASPR).
i.
The use of permeable materials to pave private street sidewalks, on-street parking, and vehicular drives is permitted. Use of permeable materials to pave public street sidewalks, on-street parking and vehicular drives shall require approval from the Director of the Department of Public Works and Waste Management.
5.
All streets shall be located according to the New Streets Plan.
a.
All new A streets shall be in the same general location shown on the New Streets Plan and may be modified with respect to alignment, provided that the final realignment does not compromise street connectivity. No new A streets shall be deleted.
b.
B streets and service roads shown on the New Streets Plan are encouraged to promote connectivity and to conform with block length requirements. New B streets and service roads may be modified or deleted as provided in paragraph (6) below.
c.
All streets shall allow general public access. Privately built streets shall provide an approved plat restriction to allow general public access. No gates that impede through traffic are permitted along A or B streets.
6.
[Modification approval.] The Director shall approve the modification of A or B streets or service road or the deletion of a B street if the following conditions are satisfied:
a.
The modification/deletion has been approved by the Director of the Public Works and Waste Management Department who shall review the proposed modification for traffic and safety issues.
b.
The modification/deletion does not diminish the general size and location of an open space shown in the Designated Open Space Plan.
c.
The modification/deletion maintains connectivity to the surrounding area.
d.
The modification/deletion enhances pedestrian safety.
e.
The modification/deletion is compatible with the surrounding area.
f.
The modification/deletion allows for the appropriate use of private property.
7.
[Design compliance.] The design of new streets and modifications of existing streets shall comply with the following requirements:
a.
Streets shall be in accordance with the Street Types Development Parameters criteria set forth in this section.
b.
All streets and service roads shall connect to other streets or service roads. Dead-end streets and T-turnarounds shall only be permitted temporarily for new streets when the adjacent property is not platted, not developed, or both. When the adjacent property is platted or developed, a street shall connect to existing development and the dead-end street or T-turnaround removed.
c.
Cul-de-sacs shall be prohibited, except that a close shall be permitted when:
i.
A street is interrupted by a natural barrier such as a river, protected land, or similar natural resource designated by Miami-Dade County or any government agency responsible for the protection of such natural resources; and
ii.
Such agency prohibits the street to continue through said natural resource; and
iii.
Existing development adjacent to or near the natural resource does not provide a means for the street to connect to the existing or proposed street network.
The median of such a close shall be landscaped. The landscaped area shall be maintained by a special taxing district, homeowner's association or other mechanism acceptable to the Department of Public Works and Waste Management to positively provide for the proper and continuous payment of maintenance without expense to general taxpayers.
d.
All sidewalks shall provide the following:
i.
Minimum width of six (6) feet, unless a different width is required by the Street Types Development Parameters set forth in this section;
ii.
Minimum unobstructed area of sixty (60) inches;
iii.
Where a colonnade is required, free and clear use of a continuous unobstructed area of at least sixty (60) inches within the colonnade; and
iv.
No utility poles, fire hydrants or any other temporary or permanent structures within the unobstructed area.
e.
Where on-street parking is provided, parking lanes shall be no closer than twenty-five (25) feet from the intersection measured from the outermost corner of the nearest corner property line.
f.
Maximum curb radii at intersections shall not be larger than required for the safe travel of emergency and service vehicles.
g.
Curbs and gutters shall be provided as follows:
i.
All Sub-districts: At all intersections and roadway edges of arterials, boulevards and Main Street.
ii.
Core and Center Sub-districts: At all intersections and roadway edges of minor streets.
iii.
Edge Sub-district: Not required, except when indicated by the urban center street type development parameters.
h.
Utilities other than fire hydrants shall run underground.
i.
Buildings placed at the end of a Street Vista may provide one additional story above that otherwise permitted by the Building Heights Regulating Plan; such additional story shall occupy up to fifteen (15) percent of the floor area of the story immediately below.
j.
Service roads may occur within buildings.
k.
Service road access from the front property line shall be limited to one (1) point of access for every two hundred fifty (250) feet of frontage.
D.
Open Spaces and Recreation Areas.
1.
Open spaces under this article shall be classified as (a) designated or (b) private open spaces.
a.
Designated open spaces shall be subject to the following requirements:
i.
The general location, area, and dimensions shall conform with the Designated Open Space Plan. The street area on the side adjoining the designated open space and consisting of the curb, street tree landscape strip and sidewalk shall count towards the square footage of the open space.
ii.
Designated open spaces shall include the anchor point depicted on the Regulating Plan, and shall be provided at grade level.
iii.
Provided that all other parameters on the Designated Open Space Plan are met and that an individual/developer owns the entire designated open space area and an adjacent area, the final location of the designated open space may be pivoted around its anchor point onto such adjacent area, allowing the area previously designated as open space to be developed as permitted in the land use regulating plan.
iv.
Designated open spaces shall be provided in the form of squares, greens, or plazas as provided in the Designated Open Space Plan. Golf courses and parking lot buffers shall not count towards the designated open space requirement. Fifty (50) percent of an area designated as open space may contain a lake.
v.
No replatting or other land subdivision shall divide property in such a way that required designated open space is avoided or its location changed.
vi.
Designated open spaces shall be shaded, and their ground surface shall be a combination of paving materials, lawn, or groundcover.
vii.
If a lot or group of lots is designated entirely as open space in the Designated Open Space Plan, half of the lot or group shall be developable in a contiguous pattern and at a density in compliance with its land use designation for the entire parcel. Two (2) additional stories above the number of stories permitted by the Sub-districts and Building Heights Plans shall be permitted. Under this circumstance, the developable portion shall not be required to comply with the private open space requirement for residential development provided herein.
viii.
If a lot or group of lots is designated partially as open space in the Designated Open Space Plan, the portion not designated as open space shall be developable in a contiguous pattern at a density/intensity which will equal the density/intensity permitted by the land use designation for the entire parcel. Up to an additional two (2) stories above the number of stories permitted by the Sub-districts and Building Heights Plans shall be permitted to allow the increased density/intensity only.
ix.
Around designated open spaces, the building's frontage, height and placement shall be in accordance with the Building Placement Standards set forth in Section 33-284.85 of this article.
b.
Private open spaces shall be subject to the following requirements:
i.
Private open spaces shall be provided in the form of colonnades, courtyards, terraces, lawns, community gardens, and landscaped roof terraces/gardens on buildings or garage structures. Designated open spaces shall count towards the private open space requirement. Lakes, golf courses, and parking lot buffers shall not count towards the open space requirement.
ii.
All residential developments, except for multi-family residential and live-work units, shall provide a minimum of four hundred (400) square feet of private open space per lot, in the form of courtyards, terraces, or lawns.
iii.
All multi-family residential, nonresidential and mixed-use developments shall reserve a minimum of ten (10) percent of the site for common, private open space.
iv.
Private open spaces shall be shaded, and their ground surface shall be a combination of paving materials, lawn, ground cover, flowers, fruits or vegetables. Enclosures of private open spaces shall comply with subsection (H) below.
c.
Community gardens shall be permitted in all land use categories to satisfy private open space requirements, subject to the following restrictions:
i.
Cultivated and harvested products may only be sold at permitted farmers markets and at grocery stores.
ii.
The raising or sale of livestock or poultry is prohibited.
iii.
Only handheld tools shall be permitted in the cultivation and harvesting process. Use of heavy agriculture equipment is prohibited.
iv.
All tools, equipment and products used to grow and harvest plant material shall be stored in an enclosed structure subject to the Building Placement Standards set forth in Section 33-284.85 of this article.
v.
Gardens shall only be tended between sunrise and sunset.
2.
Recreation Areas. Educational and child care facilities located within an Urban Center District shall be exempt from the outdoor recreation area requirements of Section 33-151.18(a) of this chapter and shall be required to provide indoor and/or outdoor recreation areas subject to the following requirements:
E.
Landscape. Except as provided herein, landscape shall be provided as required by Chapter 18A of this Code. In the Core and Center Sub-districts, landscape shall be provided as follows:
1.
Street trees shall be planted at a maximum of twenty-five (25) feet average on center, with a minimum six (6) inch diameter at breast height. Unless otherwise indicated by the Urban Center District or Area street type parameters, street trees shall be planted in one or more of the following methods of installation as required by Section 33-284.86(C)(4) above;
a.
Tree grates. Trees are planted within openings on the sidewalk. The openings shall be covered by permanently installed grates perforated to permit natural irrigation. The grates shall be installed flush with the surrounding sidewalk.
b.
Tree planters. Trees are planted within a raised planter located on the sidewalk. The planter shall be defined on all sides by a permanent masonry structure to consist of a minimum six (6) inch raised curb. The area within the planter, in addition to the required trees, shall be planted with ground cover, shrubs, or other appropriate plant material.
c.
Continuous landscape strips. Trees are planted in the area between the curb or roadway edge and the sidewalk. This area, in addition to the required trees, shall be planted with grass.
2.
For all land uses except for single-family or duplex, tree requirements for private property shall be based on sixteen (16) trees per net acre of lot area and, in addition to the placement on the lot, may be placed in greens, squares, plazas and medians within the Urban Center District or Area.
F.
Parking. Except as provided herein, parking shall be provided as required by Section 33-124 of this chapter.
1.
Multi-story parking garages, parking lots, and on-street parking shall count toward all parking requirements. In the event on-street parking spaces are removed due to roadway improvements, those removed spaces that were counted toward a development's parking requirement shall not cause that development to become nonconforming.
2.
At a minimum, parking shall be provided as follows:
Single Family Residential:
Single-family detached: 2 spaces/unit
Courtyard or sideyard house: 2 spaces/unit
Rowhouse or urban villa: 2 spaces/unit
Duplex: 2 spaces/unit
Multi-Family Residential:
1 spaces/1 bedroom unit
1.5 spaces/2 bedroom unit
1.75 spaces/3 or more bedroom units
Housing for the elderly: 0.5 spaces/unit
Hotel/Motel: 1 space/first 40 guest rooms and 1 additional space/ every 2 guest rooms or suites thereafter
General Retail/Personal Services and Entertainment Uses: 1 space/250 square feet of gross floor area
Professional Business Offices and Health Care Services: 1 space/400 square feet of gross floor area
Food/Beverage Establishments: 1 space/ 50 square feet of patron area
Industrial: shall comply with Section 33-124 of this chapter.
Live-work units:
(1) Residential component: 2 spaces/unit, and
(2) Workshop component: 1 space/325 square feet of workshop area
Live-work buildings:
(1) Residential component: shall comply with the multi-family residential requirements
described in this subsection, and
(2) Work space, nonresidential component: shall comply with Section 33-124, of this chapter.
Civic uses: shall comply with Section 33-124 of this chapter.
All other uses shall comply with the parking standards provided in Section 33-124 of this chapter. Educational and child care facilities located within a mixed-use building shall be exempt from the auto-stacking requirements of Section 33-151.18(c) of this chapter.
3.
Parking reduction. Development meeting certain criteria shall be permitted to reduce the number of parking spaces required. Specific use, location, and parcel requirements and permitted reductions are provided in the following table:
Developments meeting more than one of the use, location, and parcel criteria shall be permitted to combine each permitted reduction; the combined reduction shall be calculated by reducing the first applicable criteria from each group in the order of the table above.
4.
Mixed-use, multi-family residential, or non-residential developments in all Sub-districts may provide the required parking off-site, where the off-site parking is within seven hundred fifty (750) feet of the development and in a land use designation that is similar to or higher intensity than the land use designation of the development being served. Any certificate of use for mixed-use, multi-family residential, or nonresidential development shall immediately terminate in the event such parking area is not available. An applicant for approval of a mixed-use, multi-family residential or nonresidential development with off-site parking shall execute and record in the public records of this County a declaration of restrictions approved by the Director covenanting that such development shall cease and terminate upon the elimination of such parking area, and that no development requiring such parking shall be made of such property until the required parking area is available and provided.
5.
Except for detached single-family homes, courtyard or sideyard houses, and duplexes, all parking may be in the form of parking garage structures or parking lots which shall be located in the rear or on one side of the building, and shall be screened from the street. Parking is not permitted in setback areas required along street frontages.
6.
Parking garage structures shall be screened by a liner building containing a minimum depth of twenty (20) feet of habitable space for all stories along the primary frontage, and for parcels with three (3) or more frontages, on at least two (2) frontages. For all other frontages, architectural features of a parking structure shall appear consistent and harmonious with that of habitable space. On parcels having a lot depth at any one point of less than one hundred fifty (150) feet, as measured from the front property line, a liner building shall only be required on the ground floor. No vehicles parked within the structure shall be visible from the street.
7.
Mechanized parking shall be allowed for mixed-use, nonresidential, and multi-family developments and, when provided, shall be exempt from the provisions of Section 33-122 of this Code. For the purpose of this article, mechanized parking shall be defined as a mechanism with vertical and horizontal transport capability that provides for automobile storage and retrieval. A mechanized parking space shall be counted toward the parking requirements of this section. When provided, mechanized parking shall comply with the following:
a.
A queuing analysis is submitted and approved during the Administrative Site Plan Review process.
8.
Parking lots shall provide for vehicular connectivity to adjacent parking areas.
9.
The use of permeable materials for paving parking lots shall be permitted in the urban center districts.
10.
Parking for individuals with disabilities shall comply with the Florida Building Code.
11.
Parking for persons transporting strollers shall comply with Section 33-122.2 of this chapter.
12.
Individual parking garages for single-family homes shall count towards the parking requirement.
13.
In the Edge Sub-district, parking for detached single family homes and duplexes on platted lots of 12,000 square feet or less shall be subject to the following:
a.
Where there is no service road, parking shall be in the form of individual garages or carports accessed through a driveway from the street. When provided, attached garages and carports shall be located as provided in the Building Placement Standards set forth in Section 33-284.85 of this article.
b.
Along the front property line the maximum width of the driveways in front of the build-to line shall be ten (10) feet. On any other frontage the maximum width of the driveway shall be twenty (20) feet.
c.
The parking area shall be screened at the build-to line through the use of walls, hedges, or fences in accordance with Subsection (H) below and the Building Placement Standards set forth in Section 33-284.85 of this article.
d.
The sidewalk shall be continuous and remain at a constant level at all instances where a driveway intersects it.
14.
Required parking for single-family homes, courtyard or sideyard houses, duplexes, urban villas and rowhouses may be provided in a tandem configuration.
15.
Where a wall or fence is used for screening parking areas along streets, a five (5) foot landscape strip with a hedge shall be required in front of the wall or fence.
16.
The provisions of Section 33-131 of this chapter shall not apply to the required parking for mixed-use and nonresidential developments.
G.
Lighting.
1.
Street lighting shall comply with the following:
a.
Street lighting shall be provided in these areas: commercial and live-work unit driveways and parking areas, sidewalks and pedestrian passages, commercial establishment entryways, recreation areas, and multi-family residential common areas and entryways.
b.
Outdoor lighting of these areas shall comply with Section 33-4.1 of this chapter.
c.
All light fixtures shall be of a pedestrian scale, with a maximum height of eighteen (18) feet and a maximum spacing between fixtures of sixty (60) feet or such other spacing as may be required by the Department of Public Works and Waste Management, whichever is the most restrictive.
d.
The type and spacing of light fixtures shall be approved by the Department of Public Works and Waste Management or its successor. Approval shall be based on uniformity of types, location, right-of-way width, and luminosity.
e.
Weather and vandalism resistant covers shall protect all light fixtures.
f.
Streetlamps shall be installed on both sides of streets.
g.
Cobra-head lights shall not be permitted.
2.
Open parking lot, access road, and service road lighting shall be provided as required in Section 8C-3 of this Code. Lighting fixtures in these areas shall have a maximum height of eighteen (18) feet above grade.
____________
H.
Walls, fences, and hedges.
1.
The following shall be permitted:
2.
Hedges and shrubs shall be subject to Chapter 18A of this Code.
3.
Additional requirements for walls, fences and hedges may be included in the Building Placement Standards set forth in Section 33-284.85 of this article, and in the event of a conflict, the Building Placement Standards shall govern.
4.
Notwithstanding any other provision of this chapter to the contrary, in Targeted Urban Areas defined pursuant to Chapter 30A, Article VI, walls, fences, and hedges associated with residential, single-family homes that were legally established in accordance with a zoning district or zoning approval that predates the rezoning to urban center district shall be permitted to a maximum height of 72 inches, regardless of location.
5.
Notwithstanding any other provisions of this chapter to the contrary, where the front or side street of a residential use is a roadway of four or more lanes, hedges or electrostatic-plated aluminum or wrought iron fences may be located in front of the build-to line abutting a roadway and shall be permitted to a maximum height of 72 inches, provided that any fence is screened by landscaping with a height of at least 60 inches.
6.
Notwithstanding any other provisions of this chapter to the contrary, the maximum height for fences and walls for nonpublic educational and child care facilities subject to Article XA, and for public charter school facilities subject to Article XI, shall be as provided in section 33-11.
(Ord. No. 05-143, § 6, 7-7-05; Ord. No. 06-10, § 3, 1-24-06; Ord. No. 07-93, § 4, 7-10-07; Ord. No. 07-169, § 9, 11-6-07; Ord. No. 08-102, § 3, 9-2-08; Ord. No. 12-86, § 5, 10-2-12; Ord. No. 15-140, § 4, 12-1-15; Ord. No. 17-36, § 1, 6-6-17; Ord. No. 19-76, § 2, 9-4-19; Ord. No. 24-11, § 4, 2-6-24)
Except as provided herein, the definitions set forth in Section 33-84 of this chapter shall apply. In the event of a conflict, the provisions of this section shall govern. Non-commercial signs shall be allowed wherever commercial signs are allowed.
A.
For purposes of this section, the following definitions shall apply:
1.
Digital technology (signs): Electronic technology that allows for changes to a sign copy resulting from digital data input. Included in this technology are signs that use series of lights, including light emitting diodes (LED), fiber optics, or other similar technology.
2.
Nits: Luminance is the measure of the light emanating from an object with respect to its size and is the term used to quantify electronic sign brightness. The unit of measurement for luminance is nits (nt), which is the total amount of light emitted from a sign divided by the surface area of the sign [candelas per square meter (cd/m 2 )].
B.
Temporary Signs in MUCs and CUCs. Temporary signs (Class A) shall be permitted in compliance with Section 33-99 of this chapter.
C.
Permanent Point of Sale Signs. Permanent point of sale signs (Class B) shall be permitted as follows:
1.
The following permanent point of sale signs are permitted in all Sub-districts in conjunction with permitted business and industrial uses: flat attached, hanging, awning, cantilever, projecting, and monument. No other detached sign shall be permitted except monument signs.
a.
Projecting signs shall be mounted and perpendicular to the building.
b.
The copy of an awning sign shall only be located on the valance of the awning.
c.
The bottom of a hanging sign shall be located at a minimum height of eight (8) feet from the finished floor.
d.
Monument signs, which are freestanding, 2-faced signs, shall have a base at least seventy-five (75) percent of the horizontal width of the sign and located directly on the ground or a maximum of twelve (12) inches above grade.
e.
Cantilever signs are mounted on those portions of the building that project horizontally.
2.
Maximum size, location, and number of signs shall be as follows:
3.
Illumination/lighting shall comply with the following:
a.
All signs shall be static and shall not include digital technology, except as expressly provided for in this article. Signs illuminated by flashing, moving, intermittent, chasing or rotating lights are prohibited. Signs may be illuminated by exposed bulbs, fluorescent tubes, interior lighting, or by indirect lighting from any external source. Indirect lighting, such as floodlights, shall not shine directly on adjacent property, motorists or pedestrians. Illumination shall be such that it will provide reasonable illumination and eliminate glare and intensity which might pose safety hazards to drivers and pedestrians. Revolving and rotating signs shall be illuminated by internal lighting only.
b.
Where digital technology is allowed, it shall be provided in compliance with the following:
i.
No auditory message or mechanical sounds shall be emitted from the sign.
ii.
The sign shall not display any illumination that moves, appears to move, blinks, fades, rolls, dissolves, flashes, scrolls, shows animated movement, or changes in intensity during the static display period.
iii.
All digital signs shall be modulated so that, from sunset to sunrise, the brightness shall not be more than 500 Nits. Sunset and sunrise times are those times established by the Miami office of the National Weather Service. At all other times, the maximum brightness levels shall not exceed 5,000 Nits. All digital signs shall have installed ambient light monitors and at all times shall allow such monitors to automatically adjust the brightness level of the sign based on ambient light conditions.
iv.
The message display shall not change more often than once each eight seconds, with all moving parts or illumination moving or changing simultaneously.
v.
Any digital sign that malfunctions, fails, or ceases to operate in its usual or normal programmed manner shall immediately revert to a black screen and shall be restored to its normal operation conforming to the requirements of this section within 24 hours.
4.
Maximum heights shall be as follows:
a.
Six (6) feet above grade to top of sign for monument signs; except, for signs associated with nonconforming structures located on corner parcels fronting major or minor roads identified on the Land Use Plan, one monument sign may be constructed at a maximum height of twelve (12) feet above grade to top of sign in lieu of two six-foot signs;
b.
No height limits for flat attached, cantilever, or projecting signs;
c.
For signs painted on the facade of a building or on the valance of an awning, the copy shall not exceed one (1) foot.
5.
No setback is required for any sign. Cantilever, projecting, and awning signs may encroach into any required setback. Awning signs and projecting signs attached to awnings may encroach into the right-of-way. Where a zero (0) foot setback is permitted, cantilever and projecting signs may encroach into the right-of-way up to three (3) feet. Signs encroaching into the right-of-way shall be a minimum of eleven (11) feet above the sidewalk.
D.
Directional Signs. Directional signs, to direct traffic flow and locate entrances and exits shall be permitted on private property in connection with any permitted use. Detached directional signs shall not exceed three (3) square feet in area; directional signs attached to buildings shall not exceed twelve (12) square feet in area. The maximum height of a detached directional sign shall be ten (10) feet. Directional signs shall be shown and approved on site plans which indicate sign size, location, copy, etc.
E.
Flags. Each parcel may display no more than three (3) flags and three (3) flagpoles. Flagpoles shall not exceed seventy (70) feet in height. Flag dimensions shall be proportional to the pole such that the hoist side of the flag is not more than fifty (50) percent of the vertical height of the flagpole. For purposes of this section, "flag" means any fabric or bunting containing colors, patterns, or symbols.
F.
Kiosk signs. Kiosk signs shall be permitted in accordance with section 33-107.
G.
Prohibited Signs. The following types of outdoor signs shall be prohibited:
1.
Revolving, rotating, and other moving signs.
2.
Backlit signs of any type.
3.
Banners.
4.
Roof signs.
5.
Balloon signs.
6.
Class C commercial signs or other outdoor advertising, except those within bus shelters and kiosk signs as provided herein.
(Ord. No. 05-143, § 7, 7-7-05; Ord. No. 06-10, § 4, 1-24-06; Ord. No. 08-102, § 4, 9-2-08; Ord. No. 12-86, § 6, 10-2-12; Ord. No. 17-43, § 3, 7-6-17; Ord. No. 18-3, § 4, 1-23-18)
Except for individual single-family homes and duplexes, all applications for development approval within an Urban Center District that are not otherwise permitted as nonconforming uses or structures shall comply with the requirements of this article and with the site plan and architectural review criteria contained herein. Developments shall be processed and approved administratively as follows:
A.
Administrative site and architectural plan review.
1.
Purpose and intent. The purpose of the administrative site and architectural plan review is to encourage logic, imagination, innovation and variety in the design process and thereby ensure the congruity of the proposed development and its compatibility with the surrounding area.
2.
Review by Department. The Department shall review plans, including the exhibits listed below, for completeness and compliance with the aforementioned purpose, provisions of this article, including the Regulating Plans, and for compliance with the site plan review criteria provided herein.
3.
Review by other agencies. Additionally, all applications shall be reviewed by the following departments of Miami-Dade County and other public entities for potential impacts on infrastructure and other services resulting from the application: Department of Transportation and Public Works or its successor, Department of Solid Waste or its successor, Division of Environmental Resources Management or its successor, Miami-Dade Fire Rescue Department or its successor, the Miami-Dade County School Board, and such other County departments as the Director may deem appropriate to review the application. In the event the application indicates impacts on services and infrastructure provided by any of the foregoing, the applicant shall meet with the affected department or entity to discuss potential mitigation of the impacts and shall submit evidence to the Department of such discussion.
4.
Time for review. The Director shall issue a final decision within 21 days of the date of submission of the completed application. The applicant shall have the right to extend the 21-day period by an additional 21 days upon timely request made in writing to the Department. The Department shall have the right to extend the 21-day period by written notice to the applicant that additional information is needed. Denials shall be in writing and shall specifically set forth the grounds for the denial.
5.
Appeals. Any final decision of the Director may be appealed in accordance with the procedures established in this Chapter for appeals of administrative decisions relating to administrative site plan review.
B.
Applications for administrative site plan and architectural review under this Article shall be accompanied by exhibits prepared by registered architects and landscape architects which shall be submitted to the Department and shall include the following:
1.
Site plan(s) including:
a.
Sub-district location;
b.
Street layouts and designations as per this Article;
c.
Locations, shape, size, and height of existing buildings;
d.
Building exterior finish material;
e.
Indication of street vistas;
f.
Lot lines, setbacks and build-to lines;
g.
Location of open spaces including anchor points if applicable;
h.
Location of on-street and off-street parking including type of permeable materials if used on parking lots, loading facilities, and waste collection areas;
i.
Indication of signage;
j.
Indication of any site or building design methods used to conserve energy;
k.
Locations of backflow prevention devices and connections;
l.
Indication of the placement and type(s) of lighting fixtures illuminating roadways and parking areas; and
m.
Locations for loading and unloading of vehicular passengers, to: (i) accommodate passengers who use vehicles for hire or transportation network companies; and (ii) minimize impacts of passenger loading and unloading on the surrounding roadway network. A loading or unloading zone that is shared among adjacent or adjoining parcels may be permitted, provided that a safe pedestrian route to each parcel is provided.
2.
Landscape plans, including specifications of species of plant material, location, and size in accordance with this Article and Chapter 18A of this Code.
3.
Street cross-sections, including adjacent buildings and open space.
4.
Floor plans, elevations, and sections of all buildings, including total gross square feet of area for each floor and all dimensions relating to the requirements of this Article. A pattern book may be submitted for detached and attached single-family units including, at a minimum, unit plans and elevations, elevation of unit groupings, and typical design details such as street lamps, benches, fencing, and paving details.
5.
Figures indicating the following:
a.
Gross and net acreage;
b.
Total square footage for each use by type;
c.
Total number of dwelling units;
d.
Amount of passive and active open space in square feet; and
e.
Such other design data as may be needed to evaluate the project's compliance with the requirements of this Article and Chapter.
(Ord. No. 05-143, § 8, 7-7-05; Ord. No. 12-86, § 7, 10-2-12; Ord. No. 19-51, § 32, 6-4-19; Ord. No. 20-39, § 3, 5-5-20)
Relief from the following requirements of this Article shall be permitted only pursuant to the standards and requirements of Section 33-311(A)(4)(a) of this Code:
1.
Minimum and maximum densities;
2.
Required liner buildings used to screen parking;
3.
Colonnade regulations, including minimum horizontal and vertical clearances;
4.
Provision of A streets;
5.
Requirements for street trees, greens, plazas, squares and medians;
7.
Maximum size of blocks;
8.
Curb requirement in the Core and Center sub-district; and
9.
Signage.
(Ord. No. 05-143, § 9, 7-7-05)
A.
Requests for special exceptions as permitted in this article shall be in accordance with Section 33-311(A)(3) of this Code.
B.
Standards for Site Plan Review. To ensure compatibility with the surrounding area, the following site plan review standards shall be utilized by the Director, the Community Zoning Appeals Board, and the Board of County Commissioners in the consideration of requests for special exceptions pursuant to this Article:
1.
Except for street tree requirements, developments shall provide two (2) times the landscaping required by this Article and applicable Chapter 18A (Landscape Code) regulations.
2.
The proposed development's scale and architecture shall be compatible with buildings in the surrounding area. Building height transitions shall be used when the proposed permitted maximum height for a development is greater than existing or proposed buildings in the adjoining or adjacent neighborhood.
3.
The development shall meet the standards and criteria of the urban center's land use category designation and Building Placement Standards as provided in this article, and shall meet all other requirements for such particular use set forth in this chapter.
(Ord. No. 12-86, § 9, 10-2-12)
A.
Purpose/Applicability.
1.
Nothing contained in this article shall be deemed or construed to prohibit the continuation of a legally established non-conforming use, structure, or occupancy, as those terms are defined in Sections 33-1, 33-34, and 33-35 of this chapter. The intent of this Section is to encourage nonconformities to ultimately be brought into compliance with current regulations. This section shall govern in the event of conflicts with other regulations of this Code pertaining to legally established nonconforming uses, structures, and occupancies.
2.
The term "nonconformity" shall refer to a use, building, or lot that does not comply with the regulations of this article. Only legally established nonconformities shall have rights under this section.
3.
For purposes of this section, the term "expansion" shall mean an improvement, addition, enlargement, extension, or modification to a structure that increases the square footage of the structure.
4.
For the purposes of this section, "legally established" shall apply to the following circumstances:
a.
A lot that does not meet the lot frontage, lot width, lot depth, and/or lot area requirements of the current zoning district, provided that such lot met the regulations in effect at the time of platting.
b.
A site or improvement that is rendered nonconforming through the lawful use of eminent domain, an order of a court of competent jurisdiction, or the voluntary dedication of property.
c.
An existing use which conformed to the code at the time it was established.
d.
A building and/or site improvement that was permitted in accordance with regulations in effect at the time of permitting or that was approved pursuant to a public hearing.
e.
A building and/or site improvement that had received final site plan approval through a public hearing pursuant to this chapter or through administrative site plan review or had a valid building permit.
f.
Discontinuation of the use, structure, or occupancy would abrogate a vested right as determined by Sections 2-114.1 to 2-114.4 of this Code.
B.
Nonconforming Lots, Uses and Structures.
1.
Nonconforming Lots.
a.
Development on a legally established, nonconforming lot that does not meet the lot frontage and/or lot area requirements of this article shall be permitted, provided that the development meets all other requirements of this article.
b.
Expansions to structures on legally established, nonconforming lots shall be permitted in accordance with this section.
c.
Variances from other requirements of this article shall require a public hearing, pursuant to this article and Section 33-311 of this chapter.
2.
Nonconforming Uses.
a.
A legally established nonconforming use may continue. Expansions to a structure containing a nonconforming use shall require Administrative Site Plan Review [see Subsection (C)] below.
b.
If a nonconforming use is discontinued for a period of more than one year, the use may not be reestablished. A use shall be considered discontinued once the activities or commerce, essential to the continuation of the use are abandoned. Discontinuance due to acts of force majeure shall not constitute abandonment, provided that a good faith effort is made to reestablish the use.
c.
Expansions of nonconforming single-family and two-family residences shall be permitted and shall not require Administrative Site Plan approval, provided that the project complies with the Building Placement Standards for single-family detached or duplex lots set forth in Section 33-284.85 of this article.
3.
Nonconforming Structures.
a.
To prevent changes in regulation from unduly burdening property owners, legally established, nonconforming structures may continue to be used and maintained. Expansions, repairs, alterations, and improvements to nonconforming structures shall be permitted only in accordance with the following provisions:
i.
Internal and external repairs, alterations, and improvements to, and internal expansions that increase the internal square footage of, the nonconforming structure shall be permitted and shall not be subject to the requirements of this article, provided that: (1) they do not increase the external footprint or total internal cubic content of the nonconforming structure; and (2) increases to internal square footage shall require Administrative Site Plan Review.
ii.
External expansions that increase the external footprint of a nonconforming structure shall be permitted as follows:
(a)
If the total square footage of the proposed improvement is less than 50 percent of the structure's net square footage at the time it became nonconforming, the improvement shall require Administrative Site Plan Review [see Subsection (C) below].
(b)
If the total square footage of the proposed improvement is equal to or exceeds 50 percent of the structure's net square footage at the time it became nonconforming, the entire structure and site improvements shall be brought into compliance with current regulations.
(c)
Once the cumulative total of additional square footage of improvements equals to 50 percent of the structure's net square footage at the time it became nonconforming, no additional expansions shall be permitted and the entire structure and site improvements shall be brought into compliance with current regulations.
(d)
For the purposes of this article, net square footage shall refer to the square footage indicated on the building permit or determined through equivalent evidence.
b.
If a nonconforming structure is damaged by fire, flood, explosion, wind, war, riot or any other act of force majeure, repairs shall be subject to the following provisions:
i.
If the repair/replacement cost is less than fifty (50) percent of the value of the structure based upon the average of two (2) independent appraisals, the structure may be reconstructed up to the same building height and within the same building footprint existing prior to the damage, provided that an application for final building permit has been submitted within twelve (12) months of the date of such damage unless extended by the Board of County Commissioners.
ii.
If the repair/replacement cost is equal to or exceeds fifty (50) percent of the building's value based upon the average of two (2) independent appraisals, the building and site improvements shall be brought into compliance with current regulations.
iii.
Routine internal and external maintenance, repairs and material replacement such as re-roofing, painting, window or door replacement, mechanical equipment repair and replacement, plumbing and electrical maintenance, and similar repair, maintenance and replacements shall be permitted and shall not be subject to the requirements of this Article.
c.
If a nonconforming building is deemed to be unsafe pursuant to Chapter 8 of this Code, and demolition is required, the building shall be rebuilt in accordance with current regulations.
d.
In addition to the requirements of this section, all repairs, improvements and expansions to a nonconforming building shall comply with the Florida Building Code.
4.
Notwithstanding any other provision to the contrary, a lawfully existing single-family or two-family home use or mobile home park use may be repaired without being brought into compliance with current regulations, even if it is discontinued for a period of six months or more or incurs damage to the roof or structure to an extent of 50 percent or more of its market value.
C.
Administrative Site Plan Review Standards.
1.
Where Subsection (B) above permits the expansion of a nonconforming use or structure subject to administrative review, the project shall be reviewed according to the plan review standards outlined in this sub-section. The intent of the plan review shall be to allow for the continuation of viable uses and structures while seeking opportunities to lessen the adverse impacts of proposed expansions and encouraging nonconformities to ultimately be brought into compliance.
2.
Expansions to nonconforming single-family and two-family residences are permitted and shall not require Administrative Site Plan Review (ASPR) approval, provided said expansion complies with the single-family detached or duplex lot criteria indicated in the building placement standards of this article. One-family and two-family residences that were rendered nonconforming due to the assignment of a nonresidential land use designation shall be permitted to continue and expand in accordance with Subsection (B) above. The expansion shall not require ASPR approval provided said expansion meets the applicable single-family detached or duplex lot criteria indicated in the building placement standards of this article.
3.
Expansions permitted under Subsection (B) above subject to the Administrative Site Plan Review (ASPR) process, shall be permitted by the Department upon a showing that the project satisfies all of the following criteria:
a.
The expansions will not cause adverse impacts, such as traffic, noise, dust, odors and parking congestion, on surrounding properties or significantly change the character of the area.
b.
The expansion shall comply with the setback requirements applicable only to the expanded area, as indicated in the Building Placement Standards set forth in Section 33-284.85 of this article. Other requirements set forth in Section 33-284.85 such as building frontage may be waived by the Director.
c.
The number of parking spaces necessitated by the expansion is provided in accordance with the minimum number of parking spaces requirements in Section 33-284.86(F)(2).
d.
The expansion shall comply with the street tree requirement in this article and with the parking lot buffers requirement in Chapter 18A (Landscape Code).
4.
If the project does not meet the aforementioned criteria, it shall be permitted if approved upon public hearing. At public hearing, additional conditions may be imposed to enhance compatibility of the project with the surrounding area, including without limitation, the following:
a.
Limit the manner in which the use is conducted, including restricting hours of operation and other restraints, to minimize adverse impacts such as noise, vibration, air pollution, glare and odor.
b.
Specify additional screening or open space to minimize impacts to surrounding properties or the character of the area.
c.
Restrict the height, size, or location of a building or other structure.
d.
Require additional right-of-way dedication or road improvements.
e.
Restrict the number, size, location, height or lighting of signage.
f.
Limit the location and intensity of outdoor lighting or require its shielding.
g.
Restrictions to protect existing natural, cultural and historical resources.
h.
Impose additional restrictions necessary to protect existing natural, cultural, and historical resources.
i.
Impose additional conditions necessary to further the intent and purpose of this article and the Comprehensive Development Master Plan.
(Ord. No. 12-86, § 10, 10-2-12; Ord. No. 13-43, § 14, 5-7-13; Ord. No. 16-90, § 2; 9-7-16; Ord. No. 20-97, § 2, 10-6-20)
Notwithstanding any other provision of this Code to the contrary, for properties that have a zoning classification of urban center or urban area district, an application (i) to amend a land use regulating plan to change the land use category to which a specific property is designated or (ii) to amend any other element of a regulating plan as applicable to the particular property (iii) or to expand the boundaries of an urban center or urban area district shall be processed as an application for a district boundary change in accordance with the procedures set forth in Article XXXVI of this chapter.
(Ord. No. 13-119, § 1, 12-3-13; Ord. No. 16-91, § 6, 9-7-16)
This article shall govern in the event of conflicts with other zoning, subdivision, or landscape regulations of this Code, or with the Miami-Dade Department of Public Works Manual of Public Works.
(Ord. No. 05-143, § 10, 7-7-05)