GOULDS COMMUNITY URBAN CENTER DISTRICT
A.
The regulations contained in this chapter and Chapter 18A, Landscape Code, Code of Miami-Dade County, Florida, shall apply to this article, except as otherwise added to or modified herein.
B.
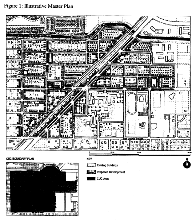
The Illustrative Master Plan (Figure 1), illustrates the citizens' vision and may be used to interpret this article. Where the Illustrative Master Plan conflicts with the text of this article, the text shall govern.
C.
The boundaries shown in Figure 1 illustrate the Goulds Community Urban Center Boundary Plan and are generally described as follows: from the intersection of the south side of the right-of-way of the Black Creek Canal with the extension of the centerline of SW 114th Avenue, then south along the centerline of SW 114th Avenue to the centerline of SW 214th Street, then east along theoretical SW 214th Street to the centerline of SW 113th Avenue, then south along the centerline of SW 113th Avenue to the centerline of SW 216th Street, then west along the centerline of SW 216th Street to the centerline of SW 115th Avenue, then south along the centerline of SW 115th Avenue to the centerline of SW 220th Street, then west along the centerline of SW 220th Street to a point located approximately 190 feet west of the centerline SW 120th Avenue, then north along an imaginary line at 190 feet to the west of the centerline of SW 120th Avenue to the south side of the right-of-way of the Black Creek Canal, then east along the south side of the right-of-way of the Black Creek Canal to the beginning point.
D.
Full scale maps and a legal description of the boundaries of the Illustrative Master Plan presented in Figure 1, as well as all the Regulating Plans and Street Development Parameters figures, are on file with the Department.
E.
No provision in this article shall be applicable to any property lying outside the boundaries of the Goulds Community Urban Center District (GCUC) as described herein. No property lying within the boundaries of the GCUC shall be entitled to the uses or subject to the regulations provided in this article until an application for a district boundary change to GCUC has been heard and approved in accordance with the provisions of this chapter.
Figure 1: Illustrative Master Plan
(Ord. No. 05-144, § 1, 7-7-05; Ord. No. 16-91, § 7, 9-7-16)
Except as provided herein, all developments within the GCUC shall comply with the requirements provided in Article XXXIII(K), Standard Urban Center District Regulations, of this Code.
(Ord. No. 05-144, § 2, 7-7-05)
Except as provided herein, all permitted, conditionally permitted, and temporary uses within the GCUC shall comply with Section 33-284.83 of this Code.
A.
Permitted Uses. The following uses shall be permitted in the Store Porch Special District (SD) Area:
1.
outdoor produce markets
2.
on lots fronting a Main Street, all uses permitted in Mixed Use Main Street (MM)
3.
all uses permitted in the Mixed Use Corridor (MC)
B.
Conditionally Permitted Uses. An entertainment center shall be permitted after public hearing pursuant to Section 33-311(A)(3) of this Code, provided that the following conditions are also satisfied:
1.
The site contains a minimum of 5 net acres and a maximum of 20 net acres.
2.
A landscaped buffer of 25 feet is provided along all property lines, allowing only access and egress therein, except that Main Street frontage shall comply with the Building Placement and Design Parameters.
3.
All buildings are setback a minimum of 30 feet from all property lines except along a Main Street.
(Ord. No. 05-144, § 3, 7-7-05; Ord. No. 06-10, § 5, 1-24-06)
Editor's note— Ord. No. 16-91, § 8, adopted Sept. 7, 2016, repealed § 33-284.94, which pertained to the regulating plans and derived from Ord. No. 05-144, § 4, adopted July 7, 2009; Ord. No. 06-10, § 6, adopted Jan. 24, 2006; and Ord. No. 07-95, § 1, adopted July 10, 2007.
A.
All new development and redevelopment within the GCUC shall comply with the Building Placement and Design Parameters as provided in Section 33-284.85 of this Code.
B.
All new development and redevelopment within the GCUC shall comply with the Street Type Parameters as provided herein:
C.
Unless otherwise provided by the Building Placement and Design Parameters in Section 33-284.85 of this Code, the following front and side street setbacks shall be required within the GCUC:
Store Porch Special District
U.S. 1/S.R. 5 Core/Center
SW 216 Street/Main Street West of U.S. 1 Core
(Ord. No. 05-144, § 5, 7-7-05; Ord. No. 07-95, § 2, 7-10-07)
This article shall govern in the event of conflicts with other zoning, subdivision, or landscape regulations of this Code, or with the Miami-Dade Department of Public Works Manual of Public Works.
(Ord. No. 05-144, § 5, 7-7-05)
Nothing contained in this article shall be deemed or construed to prohibit a continuation of a legal nonconforming structure, use, or occupancy in the GCUC that either (1) was existing as of the date of the district boundary change on the property to GCUC District or (2) on or before said date, had received final site plan approval through a public hearing pursuant to this chapter or through administrative site plan review or had a valid building permit. However, any structure, use, or occupancy in the GCUC District that is discontinued for a period of at least six months, or is superseded by a lawful structure, use or occupancy permitted under this chapter, or that incurs damage to the roof or structure to an extent of 50 percent or more of its market value, shall be subject to Section 33-35(c) of this Code. However, a lawfully existing single-family home use that is discontinued for a period of at least six months or that incurs damage to the roof or structure to an extent of 50 percent or more of its market value, shall not be subject to Section 33-35(c) of this Code.
(Ord. No. 05-144, § 5, 7-7-05; Ord. No. 06-10, § 7, 1-24-06)
GOULDS COMMUNITY URBAN CENTER DISTRICT
A.
The regulations contained in this chapter and Chapter 18A, Landscape Code, Code of Miami-Dade County, Florida, shall apply to this article, except as otherwise added to or modified herein.
B.
The Illustrative Master Plan (Figure 1), illustrates the citizens' vision and may be used to interpret this article. Where the Illustrative Master Plan conflicts with the text of this article, the text shall govern.
C.
The boundaries shown in Figure 1 illustrate the Goulds Community Urban Center Boundary Plan and are generally described as follows: from the intersection of the south side of the right-of-way of the Black Creek Canal with the extension of the centerline of SW 114th Avenue, then south along the centerline of SW 114th Avenue to the centerline of SW 214th Street, then east along theoretical SW 214th Street to the centerline of SW 113th Avenue, then south along the centerline of SW 113th Avenue to the centerline of SW 216th Street, then west along the centerline of SW 216th Street to the centerline of SW 115th Avenue, then south along the centerline of SW 115th Avenue to the centerline of SW 220th Street, then west along the centerline of SW 220th Street to a point located approximately 190 feet west of the centerline SW 120th Avenue, then north along an imaginary line at 190 feet to the west of the centerline of SW 120th Avenue to the south side of the right-of-way of the Black Creek Canal, then east along the south side of the right-of-way of the Black Creek Canal to the beginning point.
D.
Full scale maps and a legal description of the boundaries of the Illustrative Master Plan presented in Figure 1, as well as all the Regulating Plans and Street Development Parameters figures, are on file with the Department.
E.
No provision in this article shall be applicable to any property lying outside the boundaries of the Goulds Community Urban Center District (GCUC) as described herein. No property lying within the boundaries of the GCUC shall be entitled to the uses or subject to the regulations provided in this article until an application for a district boundary change to GCUC has been heard and approved in accordance with the provisions of this chapter.
Figure 1: Illustrative Master Plan
(Ord. No. 05-144, § 1, 7-7-05; Ord. No. 16-91, § 7, 9-7-16)
Except as provided herein, all developments within the GCUC shall comply with the requirements provided in Article XXXIII(K), Standard Urban Center District Regulations, of this Code.
(Ord. No. 05-144, § 2, 7-7-05)
Except as provided herein, all permitted, conditionally permitted, and temporary uses within the GCUC shall comply with Section 33-284.83 of this Code.
A.
Permitted Uses. The following uses shall be permitted in the Store Porch Special District (SD) Area:
1.
outdoor produce markets
2.
on lots fronting a Main Street, all uses permitted in Mixed Use Main Street (MM)
3.
all uses permitted in the Mixed Use Corridor (MC)
B.
Conditionally Permitted Uses. An entertainment center shall be permitted after public hearing pursuant to Section 33-311(A)(3) of this Code, provided that the following conditions are also satisfied:
1.
The site contains a minimum of 5 net acres and a maximum of 20 net acres.
2.
A landscaped buffer of 25 feet is provided along all property lines, allowing only access and egress therein, except that Main Street frontage shall comply with the Building Placement and Design Parameters.
3.
All buildings are setback a minimum of 30 feet from all property lines except along a Main Street.
(Ord. No. 05-144, § 3, 7-7-05; Ord. No. 06-10, § 5, 1-24-06)
Editor's note— Ord. No. 16-91, § 8, adopted Sept. 7, 2016, repealed § 33-284.94, which pertained to the regulating plans and derived from Ord. No. 05-144, § 4, adopted July 7, 2009; Ord. No. 06-10, § 6, adopted Jan. 24, 2006; and Ord. No. 07-95, § 1, adopted July 10, 2007.
A.
All new development and redevelopment within the GCUC shall comply with the Building Placement and Design Parameters as provided in Section 33-284.85 of this Code.
B.
All new development and redevelopment within the GCUC shall comply with the Street Type Parameters as provided herein:
C.
Unless otherwise provided by the Building Placement and Design Parameters in Section 33-284.85 of this Code, the following front and side street setbacks shall be required within the GCUC:
Store Porch Special District
U.S. 1/S.R. 5 Core/Center
SW 216 Street/Main Street West of U.S. 1 Core
(Ord. No. 05-144, § 5, 7-7-05; Ord. No. 07-95, § 2, 7-10-07)
This article shall govern in the event of conflicts with other zoning, subdivision, or landscape regulations of this Code, or with the Miami-Dade Department of Public Works Manual of Public Works.
(Ord. No. 05-144, § 5, 7-7-05)
Nothing contained in this article shall be deemed or construed to prohibit a continuation of a legal nonconforming structure, use, or occupancy in the GCUC that either (1) was existing as of the date of the district boundary change on the property to GCUC District or (2) on or before said date, had received final site plan approval through a public hearing pursuant to this chapter or through administrative site plan review or had a valid building permit. However, any structure, use, or occupancy in the GCUC District that is discontinued for a period of at least six months, or is superseded by a lawful structure, use or occupancy permitted under this chapter, or that incurs damage to the roof or structure to an extent of 50 percent or more of its market value, shall be subject to Section 33-35(c) of this Code. However, a lawfully existing single-family home use that is discontinued for a period of at least six months or that incurs damage to the roof or structure to an extent of 50 percent or more of its market value, shall not be subject to Section 33-35(c) of this Code.
(Ord. No. 05-144, § 5, 7-7-05; Ord. No. 06-10, § 7, 1-24-06)