COUNTRY CLUB URBAN AREA DISTRICT (CCUAD)
A.
The CCUAD is guided by the goals, objectives, policies and interpretative text of the Land Use Element of the Comprehensive Development Master Plan.
B.
The regulations contained in this chapter and Chapter 18A, Landscape Code, Code of Miami-Dade County, Florida, shall apply to this article, except as otherwise added to or modified herein.
C.
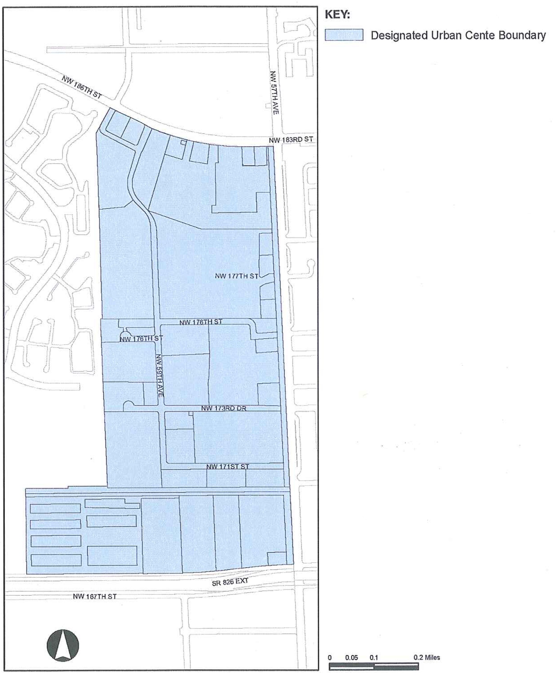
Figure 1 shows the boundaries of the Country Club Urban Area District (CCUAD).
D.
The CCUAD's Designated Urban Center shall consist of the areas designated as the Core and Center Sub-districts on the Sub-districts Plan. As provided in the Standard Urban Center District Regulations, the Workforce Housing requirement shall apply to the area included in the Designated Urban Center boundaries. The legal description of the boundaries of the CCUAD is on file with the Department.
E.
Full scale maps of the boundaries presented in Figure 1, as well as all the Regulating Plans and Street Development Parameters figures, are on file with the Department.
F.
No provision in this article shall be applicable to any property lying outside the boundaries of the CCUAD as described herein. No property lying within the boundaries of the CCUAD shall be entitled to the uses or subject to the regulations provided in this article until an application for a district boundary change to CCUAD has been heard and approved in accordance with the provisions of this chapter.
Figure 1: Country Club Urban Area Boundary
(Ord. No. 14-64, § 1, 7-1-14; Ord. No. 16-91, § 29, 9-7-16)
Except as provided herein, all developments within the CCUAD shall comply with the requirements provided in Article XXXIII(K), Standard Urban Center District Regulations, of this chapter.
(Ord. No. 14-64, § 2, 7-1-14)
Except as provided herein, all permitted, conditionally permitted, and temporary uses within the CCUAD shall comply with Section 33-284.83 of this Code.
A.
Conditionally Permitted Uses. Notwithstanding the provisions of Section 33-284.83, only the following conditional uses shall be permitted, subject to the administrative approval of a site plan as required by Section 33-284.88 of this Code:
1.
Liquor package stores, which shall only be permitted in the Core and Center Sub-districts, and only in compliance with Article X of this chapter.
(Ord. No. 14-64, § 3, 7-1-14)
Editor's note— Ord. No. 16-91, § 30, adopted Sept. 7, 2016, repealed § 33-284.99.77, which pertained to regulating plans and derived from Ord. No. 14-64, § 4, adopted August 1, 2014.
A.
Except as otherwise provided in this section, all new development and redevelopment within the CCUAD shall comply with the development parameters as set forth in Article XXXIII(K) of this chapter.
B.
All new development and redevelopment in areas designated MCS shall comply with the development parameters for the MC area as set forth in Article XXXIII(K) of this chapter.
C.
Except for State roads, streets within the CCUAD shall comply at a minimum with the Street Type Parameters for Type 5, Minor Street, as provided in Section 33-284.86. Right-of-way improvements are subject to the review and approval of the Public Works and Waste Management Department and may vary from the requirements in Section 33-284.86 due to right-of-way limitations, recorded easements, roadway geometry or other constraints.
D.
Buffering between dissimilar land uses shall be in accordance with Section 18A-6(H) of this Code.
E.
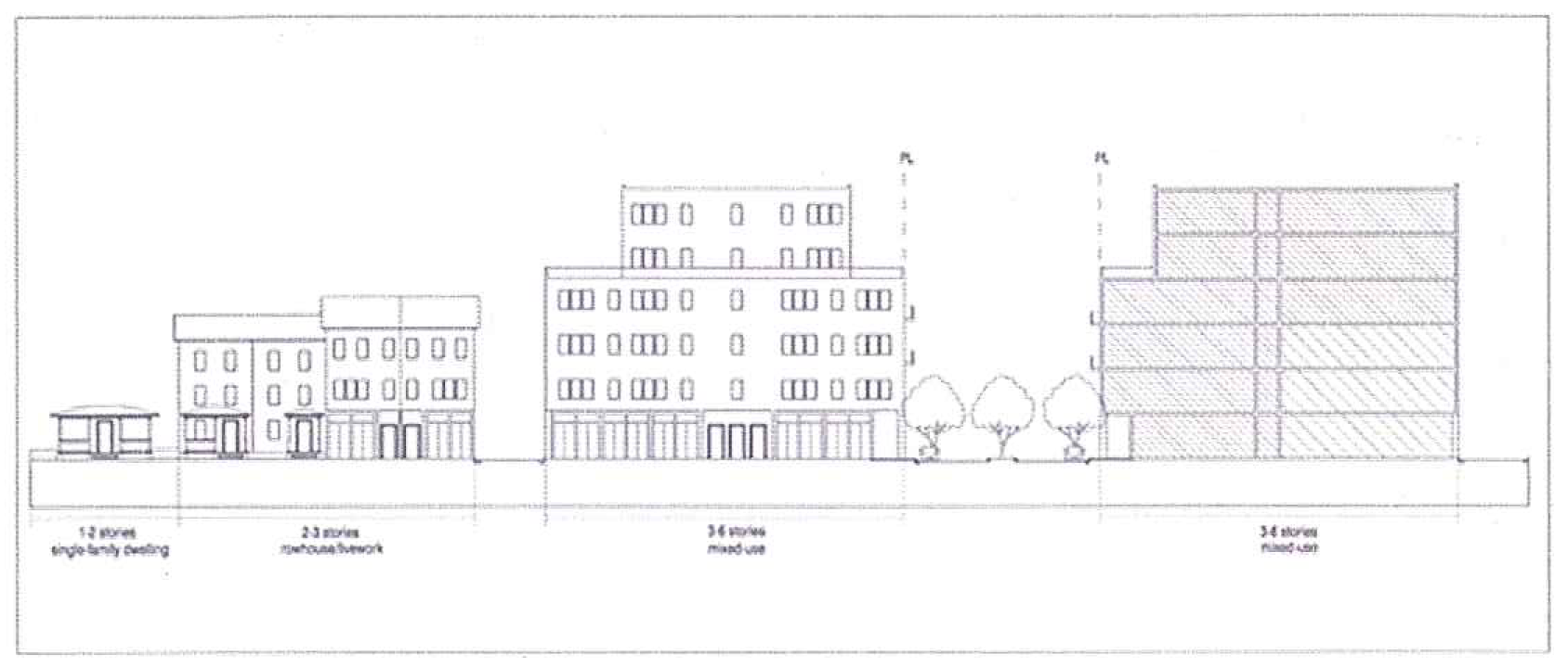
Where a proposed development abuts an area designated for single-family residential on the Future Land Use Map of the CDMP, the height of the proposed development along the abutting property line, for a minimum depth of 50 feet, shall be no greater than three stories. Examples of the required height transition are shown below.
Example of building heights transition from mixed-use to single-family
(Ord. No. 14-64, § 5, 7-1-14)
This article shall govern in the event of conflicts with other zoning, subdivision, or landscape regulations of this Code, or with the Miami-Dade Department of Public Works Manual of Public Works.
(Ord. No. 14-64, § 6, 7-1-14)
Nonconforming uses and structures shall be governed by the provisions of Section 33-284.89.2 of this Code.
(Ord. No. 14-64, § 7, 7-1-14)
COUNTRY CLUB URBAN AREA DISTRICT (CCUAD)
A.
The CCUAD is guided by the goals, objectives, policies and interpretative text of the Land Use Element of the Comprehensive Development Master Plan.
B.
The regulations contained in this chapter and Chapter 18A, Landscape Code, Code of Miami-Dade County, Florida, shall apply to this article, except as otherwise added to or modified herein.
C.
Figure 1 shows the boundaries of the Country Club Urban Area District (CCUAD).
D.
The CCUAD's Designated Urban Center shall consist of the areas designated as the Core and Center Sub-districts on the Sub-districts Plan. As provided in the Standard Urban Center District Regulations, the Workforce Housing requirement shall apply to the area included in the Designated Urban Center boundaries. The legal description of the boundaries of the CCUAD is on file with the Department.
E.
Full scale maps of the boundaries presented in Figure 1, as well as all the Regulating Plans and Street Development Parameters figures, are on file with the Department.
F.
No provision in this article shall be applicable to any property lying outside the boundaries of the CCUAD as described herein. No property lying within the boundaries of the CCUAD shall be entitled to the uses or subject to the regulations provided in this article until an application for a district boundary change to CCUAD has been heard and approved in accordance with the provisions of this chapter.
Figure 1: Country Club Urban Area Boundary
(Ord. No. 14-64, § 1, 7-1-14; Ord. No. 16-91, § 29, 9-7-16)
Except as provided herein, all developments within the CCUAD shall comply with the requirements provided in Article XXXIII(K), Standard Urban Center District Regulations, of this chapter.
(Ord. No. 14-64, § 2, 7-1-14)
Except as provided herein, all permitted, conditionally permitted, and temporary uses within the CCUAD shall comply with Section 33-284.83 of this Code.
A.
Conditionally Permitted Uses. Notwithstanding the provisions of Section 33-284.83, only the following conditional uses shall be permitted, subject to the administrative approval of a site plan as required by Section 33-284.88 of this Code:
1.
Liquor package stores, which shall only be permitted in the Core and Center Sub-districts, and only in compliance with Article X of this chapter.
(Ord. No. 14-64, § 3, 7-1-14)
Editor's note— Ord. No. 16-91, § 30, adopted Sept. 7, 2016, repealed § 33-284.99.77, which pertained to regulating plans and derived from Ord. No. 14-64, § 4, adopted August 1, 2014.
A.
Except as otherwise provided in this section, all new development and redevelopment within the CCUAD shall comply with the development parameters as set forth in Article XXXIII(K) of this chapter.
B.
All new development and redevelopment in areas designated MCS shall comply with the development parameters for the MC area as set forth in Article XXXIII(K) of this chapter.
C.
Except for State roads, streets within the CCUAD shall comply at a minimum with the Street Type Parameters for Type 5, Minor Street, as provided in Section 33-284.86. Right-of-way improvements are subject to the review and approval of the Public Works and Waste Management Department and may vary from the requirements in Section 33-284.86 due to right-of-way limitations, recorded easements, roadway geometry or other constraints.
D.
Buffering between dissimilar land uses shall be in accordance with Section 18A-6(H) of this Code.
E.
Where a proposed development abuts an area designated for single-family residential on the Future Land Use Map of the CDMP, the height of the proposed development along the abutting property line, for a minimum depth of 50 feet, shall be no greater than three stories. Examples of the required height transition are shown below.
Example of building heights transition from mixed-use to single-family
(Ord. No. 14-64, § 5, 7-1-14)
This article shall govern in the event of conflicts with other zoning, subdivision, or landscape regulations of this Code, or with the Miami-Dade Department of Public Works Manual of Public Works.
(Ord. No. 14-64, § 6, 7-1-14)
Nonconforming uses and structures shall be governed by the provisions of Section 33-284.89.2 of this Code.
(Ord. No. 14-64, § 7, 7-1-14)