Zoneomics Logo
search icon

Fredericksburg City Zoning Code

Sec. 7.860

Design Standards.

Standards. Design standards are established by this section to set basic minimum dimensions and guidelines for design construction, and maintenance of parking and loading facilities.

Parking Space Dimensions. The following basic dimensions shall be observed for parking spaces.

Each standard parking space shall consist of a rectangular area not less than 8.5 wide and 18.5 feet long. Each compact parking space shall consist of a rectangular area not less than 7.5 feet wide and 15.0 feet long. Each space shall have a vertical clearance of not less than 7.5 feet. Each space shall be independently accessible.

Each parking space designated for use by the handicapped shall consist of a rectangular area not less than 12.5 feet wide and 18.5 feet long, shall have a vertical clearance not less than 7.5 feet, shall be located in an area not exceeding a two percent (2%) slope, and shall be located near and convenient to a level or ramp entrance accessible to handicapped persons. Parking spaces for the handicapped shall be signed and restricted for use by the handicapped only.

Each parking space shall have adequate drives, aisles, and turning and maneuvering areas for access and usability, and shall at all times have access to a public street or alley.

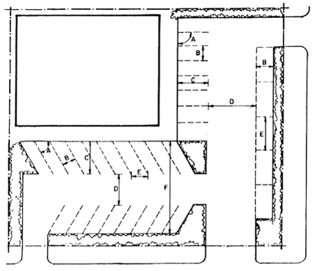
Parking Facility Design. Minimum parking facility design standards are illustrated in Table 7.862. Additional supplemental guidelines and standards for parking facility design, internal layout, acceptable turning radii and pavement slope, vehicular and pedestrian circulation, and other design features may be adopted by resolution of the Planning and Zoning Commission, upon recommendation of the Director of Planning and Building.

Paving and Drainage. The following basic standards shall be observed:

In all districts parking and loading facilities shall be an all weather surface. Materials may be pervious (see Appendix D for impervious coverage requirements). All parking and loading facilities shall be appropriately marked with lines, buttons, or other approved markers.

All parking facilities shall be graded and provided with permanent storm drainage facilities, meeting the construction specifications set by the City Engineer. Surfacing, curbing and drainage improvements shall be sufficient to preclude free flow of water onto adjacent properties or public streets or alleys and to provide adequate drainage.

Curbing shall be provided along the parking facility area for all streets upon which it fronts.

Safety Features. Parking facilities shall meet the following standards:

Safety barriers, protective bumpers or curbing, and directional markers shall be provided to ensure safety, efficient utilization, protection of landscaping and prevention of encroachment onto adjoining public or private property.

Visibility of and between pedestrians, bicyclists and motorists shall be ensured when entering individual parking spaces, when circulating within a parking facility and when entering and exiting a parking facility.

Internal circulation patterns, and the location and traffic directions of all access drives, shall be designed, designated and maintained in accordance with accepted principles of traffic engineering and traffic safety.

All ingress and egress shall be constructed in accordance with Section G, Access Standards.

Lighting. Lights provided to illuminate any parking facility or paved area shall, to the maximum extent feasible, be designed to reflect away from any residential use.

Access Standards.

The width of a residential access from a public street to an off-street parking area or other vehicular use area shall not exceed twenty-one (21) feet. Exception: A residence with an attached three car garage may have up to thirty-one (31) feet.

The width of a commercial, industrial, or civic use access, from a public street to an off-street parking area or other vehicular use area, shall not exceed forty (40) feet.

No more than one access shall be permitted for any street frontage up to two hundred (200) lineal feet except that single family residential lots located in residential zoning districts are permitted two accesses provided the lot has a minimum of one hundred (100) feet of street frontage along the side of the lot which is to contain two accesses. Properties situated at the corner of two intersecting public streets shall provide a minimum corner clearance calculated as street frontage divided by five (5), but in no case less than twenty-five (25) feet.

No more than two (2) accesses shall be permitted for any street frontage over two hundred (200) lineal feet but less than six hundred (600) lineal feet of street frontage. The distance between access or from the corner of two intersecting public streets shall provide a minimum separation as calculated by street frontage divided by five (5), but in no case more than one hundred (100) feet.

Any frontage over six hundred (600) lineal feet is considered a special design requiring special engineering review and determinations, and more than two (2) accesses may be permitted only if deemed appropriate by the Planning and Zoning Commission (or the Director of Planning and Building if the development plan need not to be reviewed by the Planning and Zoning Commission).

Existing developed properties that do not have street curbs and street curbs are planned to be constructed, and a single driveway or two (2) driveways clearly exist (i.e.: each drive has a specific location and separate function) then the requirements as provided herein shall not apply. In no case shall there be more than two (2) accesses for frontage less than two hundred (200) feet. The second driveway shall be closed at the time of curbing if it imposes or creates a potential hazard to vehicular or pedestrian traffic as determined by the Director of Planning and Building.

The above standards shall be applicable to any property constituting a separate tract or platted lot or which has or will be developed jointly or under one site plan.

Refuse Collection and Storage.

All businesses shall provide suitable trash and refuse storage areas which are designed and constructed to prevent view from the street and to prevent refuse from being displaced about the site, into adjacent properties or public right-of-way and to permit safe, easy removal of refuse by truck or hand.

_____

TABLE: 7.861
MINIMUM PARKING FACILITY STANDARDS

A Angle of Parking (Degrees) B Width of Stall C Depth of Stall 90 to Aisle D Width of Aisle E Width of Stall Parallel To Aisle F Width Module

 

Parking Spaces
30 8.5 16.9 12.5 17.0 47
45 8.5 17.5 13.0 12.0 48
60 8.5 19.0 18.0 9.8 56
75 8.5 19.5 25.0 8.8 64
90 8.5 18.5 28.0 8.5 65
90 9.0 18.5 26.0 9.0 63
90 9.5 18.5 25.0 9.5 62

 

Parking Spaces
30 7.5 14.0 12.5 15.0 41
45 7.5 15.9 13.0 10.6 45
60 7.5 16.7 18.0 8.7 52
75 7.5 16.4 18.0 7.8 51
90 7.5 15.0 18.0 7.5 48

 

Parking Spaces
0 8.5 8.5 12.5 22.0 30
Width Length

 

_____

_____

PARKING FACILITY STANDARDS
DIAGRAM ILLUSTRATES FACILITY MEASUREMENTS AS REQUIRED BY TABLE 7.861

TABLE: 7.863
OFF-STREET PARKING

All requirements based on gross square feet.

USE CLASSIFICATION MINIMUM OFF-STREET PARKING REQUIREMENTS
Single Family Residential 2 spaces per dwelling unit (plus 2 spaces per unit if insufficient Right-of way ["R.O.W."] exists to allow on-street parking). Tandem parking is allowed.
Short-term Rental, Unoccupied Parking spaces shall be provided at a ratio of one space per bedroom.
In no case shall the number of required off-street parking spaces be reduced below two spaces per parcel.
Tandem parking is allowed for multiple vehicles, so long as no part of any parked vehicle obstructs a public right-of-way.
Short-term Rental, Accessory Two spaces for the primary structure, plus one space per each bedroom in the accessory structure used for short-term rental operations.
In no case shall the number of required off-street parking spaces be reduced below two spaces per parcel. Tandem parking is allowed for multiple vehicles, so long as no part of any parked vehicle obstructs a public right-of-way.
Short-term Rental, B&B Two spaces for the primary structure, plus one space per each bedroom within the primary structure used for short-term rental operations.
Tandem parking is allowed for multiple vehicles, so long as no part of any parked vehicle obstructs a public right-of-way.
Patio Home Residential 2 spaces per dwelling unit (plus 2 spaces per unit if insufficient R.O.W. exists to allow on-street parking)
Tandem parking is allowed.
Duplex Residential 2 spaces per dwelling unit (plus 2 spaces per unit if insufficient R.O.W. exists to allow on-street parking).
Townhouse Residential 2 spaces per dwelling unit (plus 2 spaces per unit if insufficient R.O.W. exists to allow on-street parking).
Tandem parking is allowed.
Condominium Residential 1 space per bedroom plus 1 space per unit for guest parking.
Multiple Family Residential and Group Residential Efficiency and One Bedroom: 1.5 spaces per dwelling unit.
Two-bedrooms: 2 spaces per dwelling unit.
Three-bedrooms: 2.5 spaces per dwelling unit.
Four or more bedrooms: 3 spaces per unit.
Guest parking shall be added at a ratio of ten percent of the total required spaces for the development.
Short-term Rental, Facility Parking spaces shall be provided at a ratio of 60% of the permitted occupancy.
Tandem parking is allowed for multiple vehicles, so long as no part of any parked vehicle obstructs a public right-of-way.
Manufactured Home Residential 2 spaces per Manufactured Home Space or lot. Tandem parking is allowed.
COMMERCIAL USE TYPES
Administrative and Business Offices 1 space per 400 square feet
Agricultural Sales and Services See Schedule A
Automotive Rentals See Schedule A
Automotive Repair Services 2 spaces per mechanic or repair stall whichever is greater
Automotive Sales See Schedule A
Automotive Washing Queue Line space equivalent to 1 times the service capacity of the use
Building Maintenance Services See Schedule A
Business Support Services See Schedule A
Business or Trade School 1 space per 5 person capacity
Campground 1 space per camping unit
Cocktail Lounge 1 space per 3 persons capacity
Commercial Off-Street Parking Facility No requirement
Communications Services 1 space per 500 square feet
Construction Sales and Services See Schedule A
Consumer Convenience Services See Schedule B
Consumer Repair Services 1 space per 400 square feet
Convenience Storage 1 space per 2000 square feet
Convenience Store/Self Serve Gasoline 1 space per 300 square feet and 1 space per gasoline pump
Dance Halls/Meeting Halls 1 per 40 square feet or 2 per 6 seats for patron use
Dance Halls (Liquor Sales) 1 per 4 patron seating
Drive through facility, as an ancillary use May be adjusted through the Site Plan Review or Conditional Use procedure
Equipment Repair Services See Schedule A
Equipment Sales See Schedule A
Exterminating Services 1.5 spaces per 1000 square feet
Financial Services 1 space per 400 square feet
Food Sales 1 space per 300 square feet
Funeral Services 1 space per 4 person capacity
General Retail Services 1 per 400 square feet
Hotel/Motel First 50 Rooms: 1.10 spaces per room Each additional room over 50 rooms: 1.0 space per room Other use activities within hotel/motel: 100% of Table 7.863 requirements
Indoor Entertainment 1 per 100 square feet or 1 space per 4 seats
Indoor Sports and Recreation 1 per 400 square feet
Kennels 1 space per 750 square feet of kennel space
Laundry Services 1 space per 200 square feet or 4 customer spaces and 1 space per employee, whichever is greater
Liquor Sales 1 space per 400 square feet
Medical Offices 1 space per 300 square feet of exam, testing, waiting rooms & offices
Outdoor Entertainment See Schedule B
Outdoor Sports and Recreation See Schedule B
Pawn Shop Services 1 space per 400 square feet
Personal Improvement 1 space per 300 square feet
Personal Services 1 space per 300 square feet
Pet Services 1 space per 400 square feet
Professional Offices 1 space per 400 square feet
Research Services 1 space per 400 square feet
Restaurant 1 space per 4 seats, plus cocktail lounge requirements
Restaurant, Drive-In/Fast Food 3 spaces per each 100 square feet within the customer service and dining area
Scrap and Salvage Services See Schedule A
Service Station 1 space per 2 gas pumps plus 1 space per service person
Shopping Center 1 space per 200 square feet
Stables See Schedule B
Vehicle Storage No requirement
Veterinary Services 1 space per 500 square feet
INDUSTRIAL USE TYPES (See Section 7.820)
Basic Industry See Schedule A
Custom Manufacturing See Schedule A
General Warehousing See Schedule A
Light Manufacturing See Schedule A
Limited Warehousing See Schedule A
Resource Extraction 1 per employee based on the largest shift plus 25% to cover shift change
Stockyards 1 per employee based on the largest shift
CIVIC USE TYPES
Administrative Services 1 space per 400 square feet
Aviation Facilities See Schedule B
Cemetery See Schedule B
Club or Lodge 1 space per 5 persons capacity
College and University Facilities See Schedule B
Community Recreation 1 space per 5 persons capacity
Convalescent Services 1 space per 4 beds patient capacity, plus 1 space per 2 employees (Maximum shift)
Cultural Services 1 per 400 square feet
Day Care Services 1½ space per teacher, administrator, or day care provider
Detention Facilities See Schedule B
Guidance Services 1 per 400 square feet
Hospital Services (General) 1 space per bed
Hospital Services (Limited) 1 space per 200 square feet of examination, treating, waiting rooms and offices
Local Utility Services See Schedule B
Maintenance and Service Facilities See Schedule A
Major Utility Facilities See Schedule A
Military Installations See Schedule B
Park and Recreation Services See Schedule B
Postal Facilities See Schedule B
Public and Private Primary Educational Facilities 2 spaces per classroom plus public assembly requirement for auditorium or assembly hall
Public and Private Secondary Educational Facilities 1½ off-street parking space per classroom and one space for each three students anticipated to be enrolled in the 11th and 12th grades
Public Assembly 1 space per 5 persons capacity
Railroad Facilities See Schedule B
Religious Assembly (Church) 1 space per 4 seats in sanctuary
Safety Services See Schedule B
Transportation Terminals See Schedule B
AGRICULTURAL USE TYPES
Horticulture 1 per 1000 square feet

 

TABLE: 7.864
SCHEDULE A

Specific off-street parking requirements to be determined by the Director of Planning and Building based on the following minimum requirements for applicable functions or activities associated with each use:

ACTIVITY REQUIREMENT
Office or administration activity 1 space per 400 square feet
Indoor sales, service or display 1 space per 750 square feet
Outdoor sales, service or display 1 space per 1200 square feet
Indoor storage, warehousing, equipment servicing or manufacturing 1 space per 1,000 square feet or 1 space per employee, based on the largest shift
Outdoor storage, equipment servicing or manufacturing 1 space per 2,300 square feet

 

TABLE: 7.865
SCHEDULE B

The minimum off-street motor vehicle parking and loading requirements for uses subject to Schedule B shall be determined by the Director of Planning and Building. In making such determination, the Director of Planning and Building shall consider the requirements applicable to similar uses, the location and characteristics of the use, and appropriate traffic engineering and planning data.

(Ord. No. 2022-13, § 22(Exh. U), 3-21-2022; Ord. No. 2023-18, § 7, 11-7-2023)