20.020.- NEIGHBORHOOD SUBURBAN SINGLE-FAMILY DISTRICTS NS
The neighborhood suburban (NS) districts are reserved for single-family residential neighborhoods of the suburban style. Suburban neighborhood characteristics include single-use development, horizontally oriented architecture, relatively large lots and frontages, and wide residential streets and buildings that respond to the needs of automobile travel. The majority of homes within these neighborhoods were constructed following World War II through the present and are primarily designed to meet the needs and lifestyle of families with children. The homes are similar in size and character but reflect a variety of architectural styles from the latter half of the 20th Century. Typically, lots are a minimum of 60 feet wide with the majority of lots having a minimum width of 75 feet. Buildings are set back from the property line to allow gracious front yards and landscaping opportunities. Parking and garages are typically accessed from the street creating driveways in the front yard as a common feature. Pedestrian sidewalks may or may not exist within the rights-of-way. Recent trends suggest that renovation, additions, and improvement of these residential areas will continue.
(Code 1992, § 16.20.020.1; Ord. No. 876-G, § 3, 2-21-2008)
The regulations of the NS districts protect the single-family character of these neighborhoods, while permitting rehabilitation, improvement and redevelopment in keeping with the scale of the neighborhood. The standards for each of the districts are intended to reflect and reinforce their unique character. Conventional street standards apply in order to provide easy vehicular access. Architectural and building design regulations permit front-facing garages, but lot design restricts excess driveway pavement.
(Code 1992, § 16.20.020.2; Ord. No. 876-G, § 3, 2-21-2008)
Uses in these districts shall be allowed as provided in the Matrix: Use Permissions and Parking Requirements.
(Code 1992, § 16.20.020.3; Ord. No. 876-G, § 3, 2-21-2008)
NS districts are primarily single-family in character. Generally, multifamily uses are prohibited. Some multifamily uses are existing and grandfathered.
(Code 1992, § 16.20.020.4; Ord. No. 876-G, § 3, 2-21-2008)
The NS districts are the NS-1, NS-2, and NS-E districts. The standards for the NS districts are intended to allow for additions and improvements, while respecting the existing development pattern and the character of the neighborhoods.
16.20.020.5.1. Neighborhood Suburban-1 (NS-1).
In the NS-1 district, single-family homes are the principal use. Driveways and garages are allowed in the front yard according to specific design criteria.
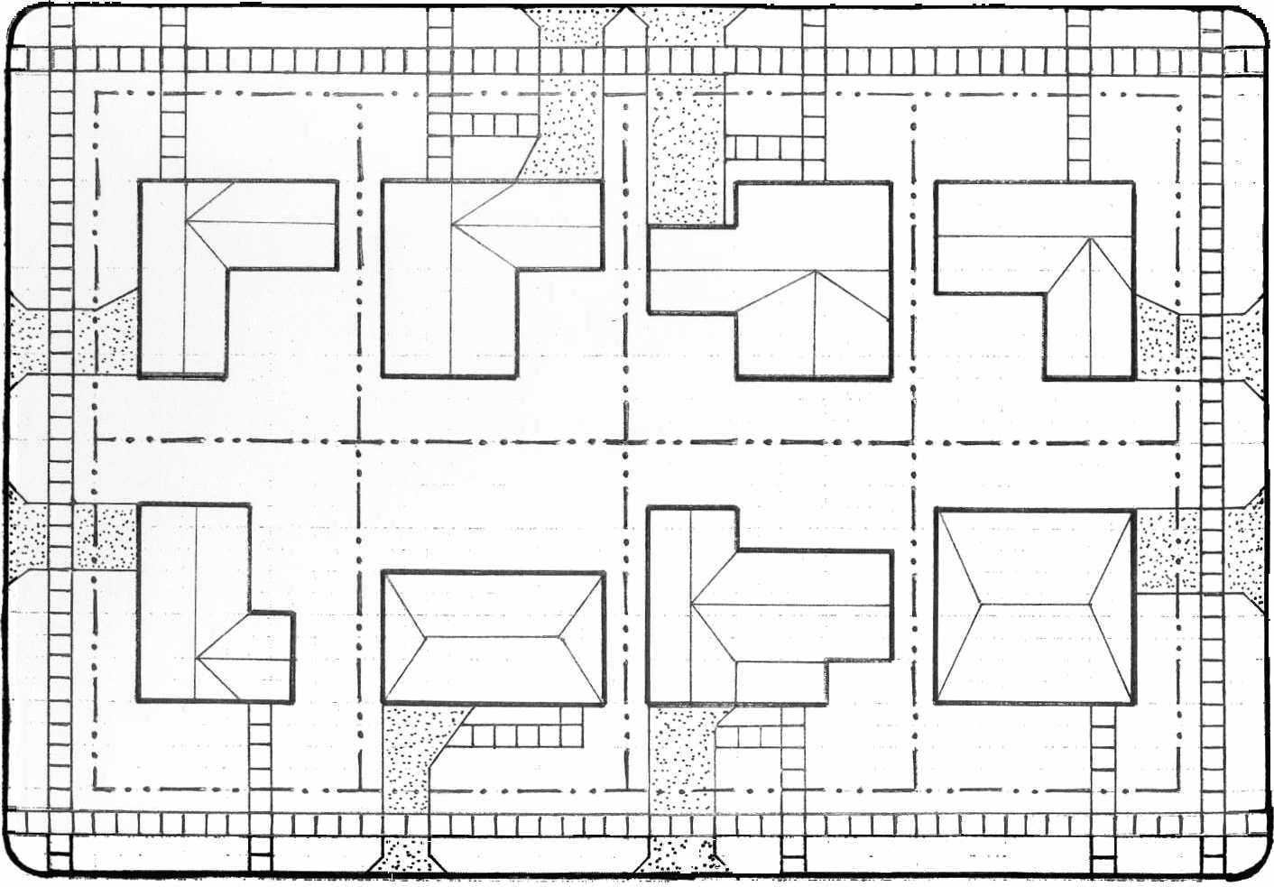
Typical Single-Family Homes Within the NS-1 District
16.20.020.5.2. Neighborhood Suburban-2 (NS-2).
In the NS-2 district, single-family homes are the principal use. Additional design requirements apply which will ensure that new development is compatible with the higher level of architectural legacy and the established character of these areas.
Typical Single-Family Homes Within the NS-2 District
16.20.020.5.3. Neighborhood Suburban Estate (NS-E).
The NS-E district is the least dense of the NS districts. Single-family homes are the principal use; however, accessory dwelling units are allowed on the same lot as the principal residence with a maximum density of two units per acre. These homes generally exhibit an exceptionally high level of architecture and are on some of the largest single-family lots in the City.
Typical Single-Family Homes Within the NS-E District
(Code 1992, § 16.20.020.5; Ord. No. 876-G, § 3, 2-21-2008)
Development potential is slightly different within each district to respect the character of the neighborhoods. Achieving maximum development potential will depend upon market forces, such as minimum desirable unit size, and development standards, such as minimum lot size, parking requirements, height restrictions, floor area ratios, maximum building and impervious surface ratios, and building setbacks.
To maintain community character and provide for desirable redevelopment and infill housing, homes shall be built using FARs as set forth herein. Various design standards may be used to increase the FAR and maintain the compatibility of new and modified homes with the existing neighborhood character. Therefore a maximum FAR is established and FAR bonuses may be permitted if the home incorporates design elements as set forth herein which are intended to be beneficial to the character of the neighborhood and reduce the appearance of mass and bulk from the public view.
Minimum Lot Size, Maximum Density and Maximum Intensity
(1) Refer to use specific development standards for regulations regarding development of accessory dwelling and accessory living space.
(2) Floor Area Ratio limits for residential uses are not applicable in any Neighborhood Suburban (NS) single-family zoning districts.
(3) Refer to technical standards regarding measurement of lot dimensions, calculation of maximum residential density, nonresidential floor area and impervious surface.
(4) For mixed use developments, refer to additional regulations within the use specific development standards section for mixed uses (currently section 16.50.200).
(Code 1992, § 16.20.020.6; Ord. No. 876-G, § 3, 2-21-2008; Ord. No. 166-H, § 3, 5-21-2015; Ord. No. 203-H, § 10, 11-23-2015; Ord. No. 287-H, § 6, 7-20-2017; Ord. No. 540-H, § 4, 3-23-2023)
Maximum Building Height (All NS Districts)
Maximum Building Height, Minimum Building Setbacks
Notes:
(1)
Open porch shall be limited to a one story covered porch with or without a second story uncovered porch; a two story covered porch shall meet the principal structure setback.
M (minor encroachment). Minor encroachments into the normally prescribed setbacks may be allowed so that an addition may align with the side of the existing structure, provided:
(a)
The total floor area of the encroaching portion of an addition shall not exceed 50 square feet;
(b)
No portion of the encroachment shall exceed 24 feet in height;
(c)
In no case shall any setback be less than four feet.
For properties located in a Special Flood Hazard Area, encroachments into normally prescribed setbacks may be allowed in order to accommodate an existing single-family home being elevated to meet the required FEMA design flood elevation provided:
(a)
Any additions to the existing building footprint, stairways or elevated decks must meet the normally prescribed setbacks, except for a stoop which shall have a minimum front yard setback of 14 feet.
(b)
The minimum front yard setback shall be 20 feet for existing garages converted to habitable space when elevating the structure.
(c)
The minimum interior side yard setback shall be three feet.
Refer to the dimensional regulations and lot characteristics and height, maximum allowable and encroachments sections (currently 16.60.010 and 020) for yard types and stoop and setback encroachments.
Enclosing porches in the front yard setback is regulated by the general development standards.
Building setbacks are based on the overall height of the various sections of a proposed
building.
As the building height increases, so does the minimum required setback.
Minimum Building Setbacks for SE Uses
(Code 1992, § 16.20.020.7; Ord. No. 876-G, § 3, 2-21-2008; Ord. No. 893-G, § 3, 9-4-2008; Ord. No. 287-H, § 7, 7-20-2017; Ord. No. 611-H, § 11, 7-10-2025)
The ability to make renovations, additions and improvements to single-family houses that exist within the NS-1 district is constrained by the fact that a significant number of these houses were originally built close to the rear yard building setback line. In response to more recent trends in construction and family composition, the criteria contained within this subsection have been designed to accommodate growth while preserving and protecting the single-family character of the surrounding properties and neighborhood. Additions to single-family houses that are consistent with the following criteria are allowed and shall not require variance to the minimum rear yard building setback:
1.
The single-family house shall have received a development order before September 10, 2007;
2.
The single-family house shall be located within the NS-1 district;
3.
Additions within the waterfront yard are not allowed under this section and remain subject to the standard building setback requirements;
4.
The maximum building height of the addition shall be limited to 18 feet as measured from the established grade to the peak of the roof;
5.
The addition shall be at least ten feet from the property line; and
6.
The maximum width of the addition, measured to the exterior of the walls or supporting structures, shall not exceed 33 percent of the identified lot width.
(Code 1992, § 16.00.000.7.1; Ord. No. 876-G, § 3, 2-21-2008)
Editor's note— Ord. No. 166-H, § 4, repealed § 16.20.020.7.2 which pertained to accessory storage sheds on waterfront lots and derived from Ord. No. 893-G, § 5, adopted Sept. 4, 2008, and Ord. No. 100-H, § 1, adopted Dec. 19, 2013.
Required building setbacks increase above 24 feet in height except for towers, turrets and dormers as provided herein. At 24 feet or below, a cornice line shall be provided and the roofline shall begin. The roof slope shall not exceed 45 degrees (12:12 pitch). The roof peak shall not exceed the maximum height of 36 feet. If a sloped roof is not characteristic of the design style, the wall plane shall be accentuated with a cornice line at or below 24 feet in height. Any portion of a wall exceeding 24 feet in height shall be set back at least twice the normally required side yard setback from the side property line.
(Code 1992, § 16.20.020.8; Ord. No. 876-G, § 3, 2-21-2008)
Many architectural styles feature towers and turrets. A tower or turret may exceed the roof slope, provided no horizontal wall dimension exceeds 16 feet and for a tower or turret with a non-straight (rounded) wall, this dimension shall be calculated using the smallest rectangle which will enclose the wall.
(Code 1992, § 16.20.020.9; Ord. No. 876-G, § 3, 2-21-2008; Ord. No. 985-G, § 20, 7-15-2010)
Many architectural styles feature dormers. Dormers may exceed the roof slope above 24 feet, provided the width of the dormer wall or the total width of the dormer walls, if more than one dormer, shall not exceed 50 percent of the roof width, or 16 feet of length, whichever is less. Dormers shall be compatible with the chosen architectural style.
(Code 1992, § 16.20.020.10; Ord. No. 876-G, § 3, 2-21-2008)
There are building setback and FAR characteristics of existing neighborhoods related to front yard setbacks, FAR, and alignment of buildings along the block face. Minimum yard setback and FAR characteristics of neighborhoods may differ from the requirements of this district. The POD may approve, without a variance, residential development that meets these setback characteristics. Approval shall be based on the following:
1.
To qualify for a reduced front yard setback at least 50-percent of the structures in the block face on both sides of the street in which the development is proposed must have a front yard setback that is less than current requirements and the reduced front yard setback that may be approved shall be the average of those numbers.
2.
FAR will be based on predominant building FAR established in the block and on the block face on both sides of the street in which the development is proposed based on the property appraisers records.
3.
Predominant shall mean the median that is within the range of numbers, if there is more than one median of numbers, the average between the medians shall be used.
4.
These are administrative approvals appealable only by the property owner.
(Code 1992, § 16.20.020.11; Ord. No. 876-G, § 3, 2-21-2008; Ord. No. 100-H, § 1, 12-19-2013; Ord. No. 246-H, § 5, 10-20-2016; Ord. No. 287-H, § 8, 7-20-2017; Ord. No. 611-H, § 12, 7-10-2025)
The following design criteria allow the property owner and design professional to choose their preferred architectural style, building form, scale and massing, while creating a framework for good urban design practices which create a positive experience for the pedestrian.
Site layout and orientation. The City is committed to creating and preserving a network of linkages for pedestrians. Consequently, pedestrian and vehicle connections between public rights-of-way and private property are subject to a hierarchy of transportation, which begins with the pedestrian.
Building layout and orientation.
1.
For nonresidential uses, all service areas and loading docks shall be located behind the front façade line of the principal structure. Dumpsters shall be located in an enclosure that is finished with material that is consistent with the architecture of the principal structure and include opaque gates (chain link with slats is prohibited). The enclosure shall be located behind the front façade line of the principal structure.
2.
All mechanical equipment and utility functions (for e.g. electrical conduits, meters, HVAC equipment) shall be located behind the front façade line of the principal structure. Mechanical equipment that is visible from the primary street shall be screened with a material that is compatible or consistent with the architecture of the principal structure, landscaping, or a 6-foot-tall decorative fence or wall.
3.
Accessory structures, not including attached garages, shall be located behind the front façade line of the principal structure.
Building and architectural design standards. All buildings should present an inviting, human scale façade to the streets, internal drives, parking areas and surrounding neighborhoods. The architectural elements of a building should give it character, richness and visual interest and shall be consistent with the chosen architectural style.
Building style.
1.
New construction shall utilize an identifiable architectural style, which is recognized by design professionals as having a basis in academic architectural design philosophies. See architectural and building design section, currently Section 16.40.020.
2.
Design of homes within the same block face on either side of the street or within an adjacent block face on either side of the street shall be varied, such that a substantially similar design will not be replicated. There shall be a minimum separation of three parcels in every direction before a substantially similar design can be repeated. Variation is not required for homes with a different number of habitable stories. Variation shall include at least three of the following five elements: 1) architectural style, 2) roof form (principal or porch), 3) materials, 4) architectural details (doors, windows, columns and porches), and 5) front façade height and front façade width.
3.
Renovations, additions and accessory structures shall utilize the architectural style of the existing structure, or the entire existing structure shall be modified to utilize an identifiable architectural style, which is recognized by design professionals as having a basis in academic architectural design philosophies.
Wall composition. Wall composition standards ensure that ground-level storefronts and multifamily and single-family residential buildings offer attractive features to the pedestrian. Wall composition standards also mitigate blank walls and ensure that all sides of a building have visual interest. Providing for transparency enhances visual connections between activities inside and outside buildings thereby improving pedestrian safety. The following criteria shall not apply to accessory structures.
1.
Doors, windows and other appropriate fenestration, architectural details and features shall be incorporated into all sides of a building. With the exception of garages up to 15-feet in height located at the rear one-third of the lot there shall be no blank façades. No portion of a façade on any story shall contain a blank area greater than 16 feet in width, except as otherwise provided herein. Interior side and rear façades on principal structures and all façades on accessory structures located in the rear one-half of the lot may contain a blank area up to 20 feet in width, provided that the façade is not visible from a right-of-way, excluding alleys.
2.
Structures which are situated on corner lots, through lots, or by the nature of the site layout have a façade which is clearly visible from rights-of-way, excluding alleys, shall be designed with full architectural treatment on all sides visible from rights-of-way. Full architectural treatment shall include roof design, wall materials, trim, and door and window openings. While it is recognized that buildings have primary and secondary façades, the construction materials and detailing should be similar throughout. Windows on the street side façades shall be evenly distributed in a consistent pattern, unless a different proportion is permitted or required by an identifiable architectural style. No portion of any façade visible from a right-of-way, excluding alleys, shall contain a blank area greater than 16 feet in width.
Refer to Section 16.90.020 for the definition of fenestration and architectural details.
For yards on through-lots see the dimensional regulations and lot characteristics section.
3.
Where the required design elevation is equal to or greater than 48 inches above finished grade, an articulated base is required to delineate the first floor level. The base may consist of a different material or decorative band, depending on the architectural style.
4.
Windows recessed less than three inches shall feature architectural trim including a header, sill and side trim or decorative shutters. Windows recessed three inches or more shall feature a window sill. Trim including a header, sill and side trim are not required if not consistent with the architectural style, i.e. Modern or Mediterranean Revival.
Roofs. Rooflines add visual interest to the streetscape and establish a sense of continuity between adjacent buildings. When used properly, rooflines can help distinguish between residential and commercial land uses, reduce the mass of large structures, emphasize entrances, and provide shade and shelter for pedestrians.
1.
Buildings shall provide a pitched roof or a flat roof with a decorative parapet wall compatible with the architectural style of the building.
Garages. Garage standards maintain and enhance the attractiveness of the streetscape and are influenced by a hierarchy of transportation, which begins with the pedestrian.
1.
Where alley access exists, alley access is highly encouraged.
2.
Garage doors shall comprise no more than 60 percent of the linear frontage of the façade of the principal structure. When garage doors comprise more than 40 percent of the linear frontage of the façade, the principal structure shall feature a porch connected to the principal entry that projects a minimum of five feet in front of the front façade line.
3.
Where garages, including detached garages, which project past the front or street side façade of the principal structure and have garage doors that face a street, the garage entry shall feature at least one of the following enhancements: decorative garage doors, an arbor system surrounding the garage doors, a projecting balcony, cupola or other decorative element above the garage to lessen the impact of the vehicular orientation of the house. The decorative feature proposed by the applicant shall be compatible with the principal structure and must be approved by the POD. This decision may only be appealed by the property owner.
Building materials. Building material standards protect neighboring properties by holding the building's value longer, thereby creating a greater resale value and stabilizing the value of neighboring properties.
1.
Building materials shall be appropriate to the selected architectural style and shall be consistent throughout the structure except for one story covered patios, pergolas, sunrooms, or screen enclosures located at least ten feet behind the front façade of the principal structure. If multiple materials are used in a building façade, the visually heavier materials shall be located below the lighter materials, e.g. brick or stone shall be located below stucco or siding materials, unless they are used as architectural features. Conversion of an existing covered patio, screen enclosure with solid roof, or sunroom to enclosed habitable space is exempt from matching the roof style of the principal structure.
Accessory structures and ancillary equipment and carports. Accessory structures shall reinforce the pedestrian character of the City. Above-ground utility and service features, accessory storage structures, and carports shall be located and designed to reduce their visual impact upon the streetscape. See use specific standards for accessory structures.
1.
Detached accessory structures, such as garages and garage apartments, shall be consistent with the architectural style, materials, and color of the principal structure. For multi-story accessory buildings, there shall be no blank façades on the second story and no portion of an exterior wall on any floor may contain a blank area greater than 20-feet in width.
(Code 1992, § 16.20.020.12; Ord. No. 876-G, § 3, 2-21-2008; Ord. No. 1029-G, § 16, 9-8-2011; Ord. No. 287-H, § 9, 7-20-2017; Ord. No. 611-H, § 13, 7-10-2025)
20.020.- NEIGHBORHOOD SUBURBAN SINGLE-FAMILY DISTRICTS NS
The neighborhood suburban (NS) districts are reserved for single-family residential neighborhoods of the suburban style. Suburban neighborhood characteristics include single-use development, horizontally oriented architecture, relatively large lots and frontages, and wide residential streets and buildings that respond to the needs of automobile travel. The majority of homes within these neighborhoods were constructed following World War II through the present and are primarily designed to meet the needs and lifestyle of families with children. The homes are similar in size and character but reflect a variety of architectural styles from the latter half of the 20th Century. Typically, lots are a minimum of 60 feet wide with the majority of lots having a minimum width of 75 feet. Buildings are set back from the property line to allow gracious front yards and landscaping opportunities. Parking and garages are typically accessed from the street creating driveways in the front yard as a common feature. Pedestrian sidewalks may or may not exist within the rights-of-way. Recent trends suggest that renovation, additions, and improvement of these residential areas will continue.
(Code 1992, § 16.20.020.1; Ord. No. 876-G, § 3, 2-21-2008)
The regulations of the NS districts protect the single-family character of these neighborhoods, while permitting rehabilitation, improvement and redevelopment in keeping with the scale of the neighborhood. The standards for each of the districts are intended to reflect and reinforce their unique character. Conventional street standards apply in order to provide easy vehicular access. Architectural and building design regulations permit front-facing garages, but lot design restricts excess driveway pavement.
(Code 1992, § 16.20.020.2; Ord. No. 876-G, § 3, 2-21-2008)
Uses in these districts shall be allowed as provided in the Matrix: Use Permissions and Parking Requirements.
(Code 1992, § 16.20.020.3; Ord. No. 876-G, § 3, 2-21-2008)
NS districts are primarily single-family in character. Generally, multifamily uses are prohibited. Some multifamily uses are existing and grandfathered.
(Code 1992, § 16.20.020.4; Ord. No. 876-G, § 3, 2-21-2008)
The NS districts are the NS-1, NS-2, and NS-E districts. The standards for the NS districts are intended to allow for additions and improvements, while respecting the existing development pattern and the character of the neighborhoods.
16.20.020.5.1. Neighborhood Suburban-1 (NS-1).
In the NS-1 district, single-family homes are the principal use. Driveways and garages are allowed in the front yard according to specific design criteria.
Typical Single-Family Homes Within the NS-1 District
16.20.020.5.2. Neighborhood Suburban-2 (NS-2).
In the NS-2 district, single-family homes are the principal use. Additional design requirements apply which will ensure that new development is compatible with the higher level of architectural legacy and the established character of these areas.
Typical Single-Family Homes Within the NS-2 District
16.20.020.5.3. Neighborhood Suburban Estate (NS-E).
The NS-E district is the least dense of the NS districts. Single-family homes are the principal use; however, accessory dwelling units are allowed on the same lot as the principal residence with a maximum density of two units per acre. These homes generally exhibit an exceptionally high level of architecture and are on some of the largest single-family lots in the City.
Typical Single-Family Homes Within the NS-E District
(Code 1992, § 16.20.020.5; Ord. No. 876-G, § 3, 2-21-2008)
Development potential is slightly different within each district to respect the character of the neighborhoods. Achieving maximum development potential will depend upon market forces, such as minimum desirable unit size, and development standards, such as minimum lot size, parking requirements, height restrictions, floor area ratios, maximum building and impervious surface ratios, and building setbacks.
To maintain community character and provide for desirable redevelopment and infill housing, homes shall be built using FARs as set forth herein. Various design standards may be used to increase the FAR and maintain the compatibility of new and modified homes with the existing neighborhood character. Therefore a maximum FAR is established and FAR bonuses may be permitted if the home incorporates design elements as set forth herein which are intended to be beneficial to the character of the neighborhood and reduce the appearance of mass and bulk from the public view.
Minimum Lot Size, Maximum Density and Maximum Intensity
(1) Refer to use specific development standards for regulations regarding development of accessory dwelling and accessory living space.
(2) Floor Area Ratio limits for residential uses are not applicable in any Neighborhood Suburban (NS) single-family zoning districts.
(3) Refer to technical standards regarding measurement of lot dimensions, calculation of maximum residential density, nonresidential floor area and impervious surface.
(4) For mixed use developments, refer to additional regulations within the use specific development standards section for mixed uses (currently section 16.50.200).
(Code 1992, § 16.20.020.6; Ord. No. 876-G, § 3, 2-21-2008; Ord. No. 166-H, § 3, 5-21-2015; Ord. No. 203-H, § 10, 11-23-2015; Ord. No. 287-H, § 6, 7-20-2017; Ord. No. 540-H, § 4, 3-23-2023)
Maximum Building Height (All NS Districts)
Maximum Building Height, Minimum Building Setbacks
Notes:
(1)
Open porch shall be limited to a one story covered porch with or without a second story uncovered porch; a two story covered porch shall meet the principal structure setback.
M (minor encroachment). Minor encroachments into the normally prescribed setbacks may be allowed so that an addition may align with the side of the existing structure, provided:
(a)
The total floor area of the encroaching portion of an addition shall not exceed 50 square feet;
(b)
No portion of the encroachment shall exceed 24 feet in height;
(c)
In no case shall any setback be less than four feet.
For properties located in a Special Flood Hazard Area, encroachments into normally prescribed setbacks may be allowed in order to accommodate an existing single-family home being elevated to meet the required FEMA design flood elevation provided:
(a)
Any additions to the existing building footprint, stairways or elevated decks must meet the normally prescribed setbacks, except for a stoop which shall have a minimum front yard setback of 14 feet.
(b)
The minimum front yard setback shall be 20 feet for existing garages converted to habitable space when elevating the structure.
(c)
The minimum interior side yard setback shall be three feet.
Refer to the dimensional regulations and lot characteristics and height, maximum allowable and encroachments sections (currently 16.60.010 and 020) for yard types and stoop and setback encroachments.
Enclosing porches in the front yard setback is regulated by the general development standards.
Building setbacks are based on the overall height of the various sections of a proposed
building.
As the building height increases, so does the minimum required setback.
Minimum Building Setbacks for SE Uses
(Code 1992, § 16.20.020.7; Ord. No. 876-G, § 3, 2-21-2008; Ord. No. 893-G, § 3, 9-4-2008; Ord. No. 287-H, § 7, 7-20-2017; Ord. No. 611-H, § 11, 7-10-2025)
The ability to make renovations, additions and improvements to single-family houses that exist within the NS-1 district is constrained by the fact that a significant number of these houses were originally built close to the rear yard building setback line. In response to more recent trends in construction and family composition, the criteria contained within this subsection have been designed to accommodate growth while preserving and protecting the single-family character of the surrounding properties and neighborhood. Additions to single-family houses that are consistent with the following criteria are allowed and shall not require variance to the minimum rear yard building setback:
1.
The single-family house shall have received a development order before September 10, 2007;
2.
The single-family house shall be located within the NS-1 district;
3.
Additions within the waterfront yard are not allowed under this section and remain subject to the standard building setback requirements;
4.
The maximum building height of the addition shall be limited to 18 feet as measured from the established grade to the peak of the roof;
5.
The addition shall be at least ten feet from the property line; and
6.
The maximum width of the addition, measured to the exterior of the walls or supporting structures, shall not exceed 33 percent of the identified lot width.
(Code 1992, § 16.00.000.7.1; Ord. No. 876-G, § 3, 2-21-2008)
Editor's note— Ord. No. 166-H, § 4, repealed § 16.20.020.7.2 which pertained to accessory storage sheds on waterfront lots and derived from Ord. No. 893-G, § 5, adopted Sept. 4, 2008, and Ord. No. 100-H, § 1, adopted Dec. 19, 2013.
Required building setbacks increase above 24 feet in height except for towers, turrets and dormers as provided herein. At 24 feet or below, a cornice line shall be provided and the roofline shall begin. The roof slope shall not exceed 45 degrees (12:12 pitch). The roof peak shall not exceed the maximum height of 36 feet. If a sloped roof is not characteristic of the design style, the wall plane shall be accentuated with a cornice line at or below 24 feet in height. Any portion of a wall exceeding 24 feet in height shall be set back at least twice the normally required side yard setback from the side property line.
(Code 1992, § 16.20.020.8; Ord. No. 876-G, § 3, 2-21-2008)
Many architectural styles feature towers and turrets. A tower or turret may exceed the roof slope, provided no horizontal wall dimension exceeds 16 feet and for a tower or turret with a non-straight (rounded) wall, this dimension shall be calculated using the smallest rectangle which will enclose the wall.
(Code 1992, § 16.20.020.9; Ord. No. 876-G, § 3, 2-21-2008; Ord. No. 985-G, § 20, 7-15-2010)
Many architectural styles feature dormers. Dormers may exceed the roof slope above 24 feet, provided the width of the dormer wall or the total width of the dormer walls, if more than one dormer, shall not exceed 50 percent of the roof width, or 16 feet of length, whichever is less. Dormers shall be compatible with the chosen architectural style.
(Code 1992, § 16.20.020.10; Ord. No. 876-G, § 3, 2-21-2008)
There are building setback and FAR characteristics of existing neighborhoods related to front yard setbacks, FAR, and alignment of buildings along the block face. Minimum yard setback and FAR characteristics of neighborhoods may differ from the requirements of this district. The POD may approve, without a variance, residential development that meets these setback characteristics. Approval shall be based on the following:
1.
To qualify for a reduced front yard setback at least 50-percent of the structures in the block face on both sides of the street in which the development is proposed must have a front yard setback that is less than current requirements and the reduced front yard setback that may be approved shall be the average of those numbers.
2.
FAR will be based on predominant building FAR established in the block and on the block face on both sides of the street in which the development is proposed based on the property appraisers records.
3.
Predominant shall mean the median that is within the range of numbers, if there is more than one median of numbers, the average between the medians shall be used.
4.
These are administrative approvals appealable only by the property owner.
(Code 1992, § 16.20.020.11; Ord. No. 876-G, § 3, 2-21-2008; Ord. No. 100-H, § 1, 12-19-2013; Ord. No. 246-H, § 5, 10-20-2016; Ord. No. 287-H, § 8, 7-20-2017; Ord. No. 611-H, § 12, 7-10-2025)
The following design criteria allow the property owner and design professional to choose their preferred architectural style, building form, scale and massing, while creating a framework for good urban design practices which create a positive experience for the pedestrian.
Site layout and orientation. The City is committed to creating and preserving a network of linkages for pedestrians. Consequently, pedestrian and vehicle connections between public rights-of-way and private property are subject to a hierarchy of transportation, which begins with the pedestrian.
Building layout and orientation.
1.
For nonresidential uses, all service areas and loading docks shall be located behind the front façade line of the principal structure. Dumpsters shall be located in an enclosure that is finished with material that is consistent with the architecture of the principal structure and include opaque gates (chain link with slats is prohibited). The enclosure shall be located behind the front façade line of the principal structure.
2.
All mechanical equipment and utility functions (for e.g. electrical conduits, meters, HVAC equipment) shall be located behind the front façade line of the principal structure. Mechanical equipment that is visible from the primary street shall be screened with a material that is compatible or consistent with the architecture of the principal structure, landscaping, or a 6-foot-tall decorative fence or wall.
3.
Accessory structures, not including attached garages, shall be located behind the front façade line of the principal structure.
Building and architectural design standards. All buildings should present an inviting, human scale façade to the streets, internal drives, parking areas and surrounding neighborhoods. The architectural elements of a building should give it character, richness and visual interest and shall be consistent with the chosen architectural style.
Building style.
1.
New construction shall utilize an identifiable architectural style, which is recognized by design professionals as having a basis in academic architectural design philosophies. See architectural and building design section, currently Section 16.40.020.
2.
Design of homes within the same block face on either side of the street or within an adjacent block face on either side of the street shall be varied, such that a substantially similar design will not be replicated. There shall be a minimum separation of three parcels in every direction before a substantially similar design can be repeated. Variation is not required for homes with a different number of habitable stories. Variation shall include at least three of the following five elements: 1) architectural style, 2) roof form (principal or porch), 3) materials, 4) architectural details (doors, windows, columns and porches), and 5) front façade height and front façade width.
3.
Renovations, additions and accessory structures shall utilize the architectural style of the existing structure, or the entire existing structure shall be modified to utilize an identifiable architectural style, which is recognized by design professionals as having a basis in academic architectural design philosophies.
Wall composition. Wall composition standards ensure that ground-level storefronts and multifamily and single-family residential buildings offer attractive features to the pedestrian. Wall composition standards also mitigate blank walls and ensure that all sides of a building have visual interest. Providing for transparency enhances visual connections between activities inside and outside buildings thereby improving pedestrian safety. The following criteria shall not apply to accessory structures.
1.
Doors, windows and other appropriate fenestration, architectural details and features shall be incorporated into all sides of a building. With the exception of garages up to 15-feet in height located at the rear one-third of the lot there shall be no blank façades. No portion of a façade on any story shall contain a blank area greater than 16 feet in width, except as otherwise provided herein. Interior side and rear façades on principal structures and all façades on accessory structures located in the rear one-half of the lot may contain a blank area up to 20 feet in width, provided that the façade is not visible from a right-of-way, excluding alleys.
2.
Structures which are situated on corner lots, through lots, or by the nature of the site layout have a façade which is clearly visible from rights-of-way, excluding alleys, shall be designed with full architectural treatment on all sides visible from rights-of-way. Full architectural treatment shall include roof design, wall materials, trim, and door and window openings. While it is recognized that buildings have primary and secondary façades, the construction materials and detailing should be similar throughout. Windows on the street side façades shall be evenly distributed in a consistent pattern, unless a different proportion is permitted or required by an identifiable architectural style. No portion of any façade visible from a right-of-way, excluding alleys, shall contain a blank area greater than 16 feet in width.
Refer to Section 16.90.020 for the definition of fenestration and architectural details.
For yards on through-lots see the dimensional regulations and lot characteristics section.
3.
Where the required design elevation is equal to or greater than 48 inches above finished grade, an articulated base is required to delineate the first floor level. The base may consist of a different material or decorative band, depending on the architectural style.
4.
Windows recessed less than three inches shall feature architectural trim including a header, sill and side trim or decorative shutters. Windows recessed three inches or more shall feature a window sill. Trim including a header, sill and side trim are not required if not consistent with the architectural style, i.e. Modern or Mediterranean Revival.
Roofs. Rooflines add visual interest to the streetscape and establish a sense of continuity between adjacent buildings. When used properly, rooflines can help distinguish between residential and commercial land uses, reduce the mass of large structures, emphasize entrances, and provide shade and shelter for pedestrians.
1.
Buildings shall provide a pitched roof or a flat roof with a decorative parapet wall compatible with the architectural style of the building.
Garages. Garage standards maintain and enhance the attractiveness of the streetscape and are influenced by a hierarchy of transportation, which begins with the pedestrian.
1.
Where alley access exists, alley access is highly encouraged.
2.
Garage doors shall comprise no more than 60 percent of the linear frontage of the façade of the principal structure. When garage doors comprise more than 40 percent of the linear frontage of the façade, the principal structure shall feature a porch connected to the principal entry that projects a minimum of five feet in front of the front façade line.
3.
Where garages, including detached garages, which project past the front or street side façade of the principal structure and have garage doors that face a street, the garage entry shall feature at least one of the following enhancements: decorative garage doors, an arbor system surrounding the garage doors, a projecting balcony, cupola or other decorative element above the garage to lessen the impact of the vehicular orientation of the house. The decorative feature proposed by the applicant shall be compatible with the principal structure and must be approved by the POD. This decision may only be appealed by the property owner.
Building materials. Building material standards protect neighboring properties by holding the building's value longer, thereby creating a greater resale value and stabilizing the value of neighboring properties.
1.
Building materials shall be appropriate to the selected architectural style and shall be consistent throughout the structure except for one story covered patios, pergolas, sunrooms, or screen enclosures located at least ten feet behind the front façade of the principal structure. If multiple materials are used in a building façade, the visually heavier materials shall be located below the lighter materials, e.g. brick or stone shall be located below stucco or siding materials, unless they are used as architectural features. Conversion of an existing covered patio, screen enclosure with solid roof, or sunroom to enclosed habitable space is exempt from matching the roof style of the principal structure.
Accessory structures and ancillary equipment and carports. Accessory structures shall reinforce the pedestrian character of the City. Above-ground utility and service features, accessory storage structures, and carports shall be located and designed to reduce their visual impact upon the streetscape. See use specific standards for accessory structures.
1.
Detached accessory structures, such as garages and garage apartments, shall be consistent with the architectural style, materials, and color of the principal structure. For multi-story accessory buildings, there shall be no blank façades on the second story and no portion of an exterior wall on any floor may contain a blank area greater than 20-feet in width.
(Code 1992, § 16.20.020.12; Ord. No. 876-G, § 3, 2-21-2008; Ord. No. 1029-G, § 16, 9-8-2011; Ord. No. 287-H, § 9, 7-20-2017; Ord. No. 611-H, § 13, 7-10-2025)